技术方案目录
第一章 总体概述 89
第一节工程概况表 89
第二节 建筑设计概况 92
第三节 工程自然条件及现场施工条件 93
第四节 施工总程序 96
第五节 施工准备 96
第二章 对工程重点、难点的分析及解决方案,关键施工技术、工艺水平 99
第一节工程项目实施的难点要点分析及主要对策 99
第二节 测量放线方案 101
第三节 排水措施 103
第四节 土方开挖施工方案 105
第五节 土方填筑施工方案 108
第六节 钻孔灌注桩施工方案 111
第七节 水泥搅拌桩施工方案 118
第八节 松木桩施工方案 121
第九节钢筋工程 123
第十节 模板工程 130
第十一节混凝土工程 133
第十二节砌石工程 139
第十三节金属结构制作安装施工方案 141
第十四节房屋建筑施工方案 155
第三章劳动力投入计划及保证措施 162
第一节月劳动力计划表 162
第二节、劳动力投入保证措施 162
第四章机械设备投入、进场计划及保证措施 165
第一节材料投入计划及其保证措施 165
第二节机械设备和检测设备投入计划及其保证措施 168
第五章 工程质量保证措施及承诺 173
第一节 质量目标及违约承诺 173
第二节 质量保证体系 173
第三节 质量保证及控制措施 180
第四节 模板工程的质量控制 189
第五节 混凝土浇筑工程质量控制 189
第六节 雨季施工措施 190
第六章 施工进度计划和各阶段进度保证措施及承诺 191
第一节 工期目标及违约责任承诺 191
第二节 施工进度计划 191
第三节 采取动态管理 192
第四节 保证充足的劳动力投入 193
第五节 施工进度保证措施 193
第六节 降低成本措施 199
第七章 安全文明施工保证措施及承诺 202
第一节 安全措施 202
第二节 现场文明施工措施 212
第三节 安全、文明施工违约责任承诺 217
第八章 合理化建设和需要说明的其它问题 218
第一节 对本工程招标文件的响应 218
第二节 新技术的应用及合理化建议 219
第九章 施工平面布置和临时设施布置 222
第一节 施工现场设施布置 222
第十章 项目组织机构设置 227
附:施工总进度计划
施工总平面布置图
一、工程建设概况
工程名称 | 某水闸水闸重建工程 | |
|---|---|---|
工程位置 | 某围堤西干堤 | |
各参建单位 | 项目法人 | 某市某镇堤段加固工程建设管理所 |
设计单位 | 中山市水利水电勘测设计咨询有限公司 | |
质监单位 | 中山市水利工程质量安全监督站 | |
投标单位 | 某公司 | |
工程要求 | 工程质量 | 全部工程质量须符合设计要求及水利部门颁布的《水利水电工程施工质量检验与评定规程(SL176-2007)》中优良等级标准。 |
施工工期 | 总工期:10个月,计划2008年11月1日开工,其中2009年4月15日前必须完成所有水下工程验收;2009年6月30日前完成所有主体工程;2009年10月底全部工程完工 | |
施工安全 | 不发生重大安全事故,轻伤事故率控制在3‰内。 | |
文明施工 | 达到中山市规定文明工地“合格”标准 | |
二、主要工程及施工内容
序号 | 类别 | 施工内容 |
1 | 水闸、暗窦 土建 金属结构 工程 | 围堰填筑、排水 |
2 | 拆除原有旧水闸、暗窦 | |
3 | 土方开挖、土方回填 | |
4 | 水泥搅拌桩、水下砼灌注桩、松木桩 | |
5 | 浆砌石护底 | |
6 | 水闸主体砼 | |
7 | 桩钢筋笼及其他钢筋制安 | |
|
| |
8 | 平板闸门、埋件制作安装、闸门防腐 | |
9 | 启闭机购买安装 | |
10 | 外内河侧 | 抛石防冲槽 |
11 | 抛石护脚、护坡、护面、挤淤 | |
| C25砼消力池 | |
| C30二期砼 | |
| M7.5浆砌石 | |
12 | 平面钢模板 | |
13 | 闸侧部分 | 翼墙C25(埋石率20%) |
14 | 土工布 | |
15 | M7.5浆砌石 | |
| 砼路面C25 | |
| 砼草砖护坡 | |
| 平面、曲面钢模板 | |
16 | 启闭室 工程 | 钢筋混凝土框架 |
17 | 砖砌体 | |
18 | 室内外一般抹灰、外墙釉面砖镶贴 | |
19 | 铝合金窗、不锈钢门制装 | |
20 | 整体楼地面水泥砂浆抛光砖面层,抛光砖踢脚线镶贴 | |
21 | 屋面涂膜防水涂料刮涂、隔热块铺砌 | |
22 | 电气工程 | 控制箱 |
23 | 电缆及管线 | |
24 | 照明 | |
25 | 防雷接地 |
三、建筑总体平面布局

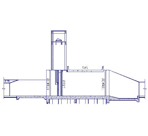
一、水闸结构平面图
二、水闸纵剖面图

一、地理位置
本工程位于某围堤西干堤上,座落于某市某镇某水闸内,水闸出水口连接西江,场外交通方便。
二、工程水文所气象条件
气象特征:某市某镇位于我国低纬度地区,处于北回归线以南,属亚热带季风气侯,雨量充沛,气侯温和,四季常青,台风较多。年无霜期平均为359天,相对湿度平均83%,最大86%,最小81%。
由于受海洋性气侯的调节,气温变化缓和,7月份平均气温28.4℃,一月份平均气温13.1℃,年平均气温21.82℃,年最高气温36.2℃(1987年7月10日),年最低气温-1.32℃(1955年)。年平均蒸发量1448mm,最大年蒸发量1606mm(Φ80蒸发器测量值),多年平均日照时间2320小时,最小年日照时间1785小时。
某市某镇是台风、暴潮频繁侵袭的地区之一。依历史资料分析统计,正面袭击的台风8级以上的平均一年一次,12级台风以上(含12级)约10年一次。台风风向影响最大的是:东部以东南风至东风为主,南部以东南风至面风为主。每逢台风侵袭遇上大潮时,形成台风暴潮,最大增水值达2.19m。
台风是影响某围堤西干堤暴雨的热带天气系统,发源于西太平洋菲律宾群岛以东洋面和南海,90%的台风发生在7月~9月,珠江三角洲是台风经常登陆的沿海地区之一。
水文特征:某市某镇面临海洋,受热带季候风的影响,其降雨量多、强度大、年际变化大、年内分配极不均匀。年平均降雨量1737.0mm,最大年降雨量2669mm(1981年),最小降雨量1001mm(1956年),两者相差2.67倍,区域差异也较大,南部大于北部,山区大于平原,其中北部年平均降雨量1600mm,南部1800mm。年最大24小时降雨量北部145mmm,中部165mm,南部山区173mm。中山站发生年最大24小时暴雨为429.8mm(1981年6月29日)。降雨年内分配不均匀,汛期(4月~9月)雨量占年降落量的83%,枯水期(1月~3月,10月~12月)占17%。
本工程堤段属于海堤,主要受台风和暴潮的严重威胁。潮水位每天两次涨落,属不规则半日潮,日潮不等现象显著。月内有朔望大潮和上下弦小潮,约15天为一周期。在一年中夏潮高于冬潮。台风对潮位有很大影响,最高潮位一般出现在汛期,以7月份为最高。
三、工程地质条件
(1)区域地质:
水闸站址位于广东省三级构造单元粤中拗陷区(ⅢS)的隆断束内,区内广为由淤泥、砂及粉质粘土等组成的三角洲海陆相混合沉积物覆盖,下伏为下部古生界(P21)变质岩及印支侵入期细粒花岗岩。站址岩层构造完整,未发现大型断裂构造通过的现象。
根据《中国地震烈度区划图1:400万(1990年)》,本区地震基本烈度为VⅡ度。
(2)工程地质:
本工程位于某市某镇某围堤西干堤上,某围堤西干堤填筑土成分及质量不均一,总体上以粘土为主,稍经压密。
三、现场施工条件
施工现场交通条件:某市某镇水陆交通很方便,工地经某围堤西干堤堤顶公路连接,水闸出水口即西江水道,工程建设主要材料由水路或陆路运输都极为方便快捷。场内主要交通依靠利用原有某围堤西干堤堤顶公路作临时施工道路解决。工程所需的机械设备、材料及人员除砂石料和水泥通过船运外,皆由陆路解决。
施工用电:据招标条件说明,现场施工用电由我公司计划接电网大电,并安排相应的自备发电机组作备用。据工程实施要求,配120KW发电机1套,配50KW发电机1套。
施工用水:项目部生产和生活用水用2寸镀锌管接到固定位置,施工用水通过分点挖井用潜水泵送到相应施工面。
施工项目部设置规划范围约400平方米,场内实行地面硬化处理,采用砖砌明渠排水沟收集生活用水进行沉淀净化处理后外排。
一、施工总程序
![]()
![]()
![]()
![]()
![]()
![]()
![]()
![]()
![]()
![]()
![]()
![]()
![]()
![]()

![]()
![]()
![]()
![]()
![]()
![]()
![]()
![]()
![]()
![]()
![]()
![]()

![]()
一、施工准备工作计划
施工准备工作是整个施工生产的前提,根据本工程的工程内容和实际情况公司、工程处以及项目部共同制定施工的准备计划。为工程顺利进展打下良好的基础。
施工准备工作计划中主要包括的工作项目有:实施性工程总施工组织计划编制(施工阶段)、施工组织机构建立、施工现场平面布置、施工机械设备进场就位、施工部分急需材料进场、施工劳动力进场与教育、单项工程施工方案编制及技术交底、图纸会审、砂浆及混凝土现场配合比设计、施工进度计划交底、施工质量安全交底等。
以上各项施工准备工作又可具体分为施工技术准备、施工物质条件生产准备、施工现场准备等几个各部分。
二、技术交底工作准备
根据本工程的结构类型和具体情况,结合以前的施工经验,编制切实可行的各单项工程施工工艺和施工方案,做好技术交底工作。并在工程开工前,由公司总工程师组织质检科、施工技术科向项目经理进行技术交底工作。
三、施工物质条件生产准备
施工工程中所需的材料、构配件、施工机械品种多、数量大,保证按计划供应,对整个施工过程举足轻重,直接影响工程工期、质量和成本。
1、材料准备
(1)根据施工进度计划和施工预算的工料分析,拟定工程施工材料供应计划。并对水泥、砂卵石、钢材、木材等各项建筑材料根据实际情况编制各项材料计划表,按计划分批进场。
(2)对各种材料的入库,保管和出库制订完善的管理办法,同时加强防盗、防火的管理。
2、构配件加工准备
根据施工进度计划和施工预算的所提供的各种构配件,提前做好加工、翻样、预制、预埋件加工等工作,并编制相应的需求量计划表,按计划有条不紊实施,以保证施工顺利进行。
3、施工机械准备
根据施工进度计划和施工预算提供的施工机械数量,拟订施工机械计划表,按计划组织相应施工机械进场就位。
4、运输准备
项目部配备相应的运输车辆,便于小型配件、生活物资、小批量材料的运输、材料送检和业务联系等日常工作开展。
本工程为重建水闸工程,工程项目多、工期短,且为穿堤建筑物,对工程施工有防洪、度汛要求。在众多的分项工程中,其重点、难点以及我公司采用的对策、方法如下:
1、临时围堰工程:胃炎的安全与否,是直接关系整个工程能否正常施工、按期完成的关键,我公司采用的对策是内外围堰的填筑严格按设计要求施工,本工程的内外围堰均采用土工织物管袋充填粉细砂,坡角用土袋护脚,围堰迎水坡侧采用防渗彩条布布和30厘厚的土袋防渗,内外坡比均为1:3,确保度汛安全,做到万无一失。
2、基础处理工程:在本工程水闸、暗窦基础、处理型式中,含有四种桩型:钻孔钢筋砼灌注桩(φ1000)、水泥搅拌桩(φ500)、砂桩(φ600)和松木桩,其中钻孔灌注桩具有数量较多,共100根,总长约1698m;共分两个区域(水闸底板、外内河侧翼墙),如何保证钻孔灌注桩的成桩质量和施工进度是本工程施工的重点和难点。
对策:选用4台BRM-08型反循环回转钻机,以水闸底板、水闸翼墙进行施工。
3、砼浇筑
本工程砼浇筑总量大,且水下部分阶段验收需提前至2009年4月15日,故砼浇筑及水下部分工作安排也是本工程难点之一。
对策:
① 详细研究本工程的各项工程任务,确定施工工区的分布,在工程交接桩位完成后,按照投标文件所定的施工管理人员和机械设备迅速组织进场,进行临时生产生活设施营造。尽早迅速组织施工。
② 根据本工程砼方量大的特点,我们将采用现场搅拌砼,采取泵送砼方式来解决和提高砼浇筑强度。
③ 强化质量和进度要求,开工后一周内通过开动员大会和岗前培训,提高员工质量意识和保证工期重要性。
④ 为确保工程质量和进度要求,我公司拟派出高质素的管理人员,其中项目经理为一级建造师,高级工程师职称,并配套相应的项目部成员。落实各专业技工的质量和数量,结合工程跨越汛期,做好安全渡汛的准备工作。
4、启闭机室施工,属高空作业,大量的钢筋、模板等材料要运上去,且到处是钢筋、脚手架,存在着不安全因素和不安全隐患,为此,我公司采取成立专门的安全检查小组,随时检查各种孔洞、临空面栏杆、脚手架、安全网等安全防护设施是否牢固,警示标牌是否醒目,安全帽是否佩戴,降低安全事故发生的几率,经常对广大施工人员进行安全教育,提高人员的安全意识,自学遵守各种操作规则,将安全隐患消灭在萌芽状态。
1.1测量人员配置
本工程项目部成立测量队,测量队在业务上归属项目部工程科领导。测量队由4名专职测量人员组成,负责本标段工程的施工测量工作。
1.2测量仪器配置
根据本工程实际情况和施工需要,本标段配置主要测量仪器如下:
主要测量仪器配置表
仪器名称 | 规格型号 | 数 量 |
全站仪 | GTS-332 | 1 |
经纬仪 | J2 | 1 |
水准仪 | S3 | 1 |
水准尺 | 3m,5m | 2+2 |
1.3测量依据
⑴发包人和监理人提供的平面控制网点、测量基准点、基准线、水准点及基本资料和数据;
⑵发包人委托监理人提供的施工详图及本工程施工要求;
⑶《水利水电工程施工测量规范》SL52-1993;
⑷《工程测量规范》GB50026-93。
1.4测量放样基本工作内容
测量工作是工程施工的前提和先导工作,施工测量放样是设计图纸和工程具体实施的中间纽带,本工程施工前和施工过程中,将重点进行以下测量工作:
⑴对发包人和监理人提供的平面控制网点、测量基准点、基准线、水准点及基本资料和数据进行查对复核,发现问题,及时上报并协商解决。
⑵工程科科长组织工程科全部技术人员和测量队人员一起对施工图纸认真研究和探讨,对一些重要部位的相关参数进行必要的验算,找出相互之间的控制关系,并编制测量放样和控制计划。
⑶以发包人和监理人提供的平面控制网点、测量基准点、基准线、水准点及基本资料和数据为依据,以实际施工和测量放样为基础,沿建筑物四周布设施工控制网,并在施工过程中,每月对所布设的施工控制网点复查一次,防止施工过程中破坏。
⑷施工进场后,先测绘工程原始平面图和原始断面图。
⑸施工过程中,随时测定并检查施工部位的水平位置和高程。
⑹施工过程中定期对所用仪器进行保养、校核,发现问题及时处理,竣工后配合监理人测绘竣工图。
1.5施工测量质量控制
⑴测量精度要求
测量精度严格按照《工程测量规范》(GB50026-1993)执行,精度要求见下表:
三角测量精度表
平面控制 | 内 容 | 精度要求 |
相对闭合差 | 1/5000 | |
边长丈量相对误差 | 1/10000 | |
测量中误差 | ±20″ | |
方位角闭合差 | ±60″ | |
高程控制 | 每公里高程误差 | ±7.5mm |
闭合差 | ±12mm |
⑵质量控制措施
①按照“内业预测指导→外业现场实测、记录→操作者自我复核、记录→专业测量工程师复核、记录→向施工员和质检员下发放样通知单”的程序控制。
②放样前,对已有数据、资料和施工图纸中的几何尺寸必须校核,严禁凭口头通知或无签字的草图放样。
③发现控制点有位移迹象时,应进行检测,其精度不低于测放时的精度。
④水平角观测误差超限时,应在原来度盘位置上进行重测,并应符合下列规定:
a.2倍照准差变动范围或各测回较观测误差超限时,重测超限方向,并联测零方向。
b.下半测回归零差或零方向的2倍照准差变动范围超限时,应重测该测回。
c.若一测回中重测方向数超过总方向数的1/3时,应重测该测回。当重测的回测总数超过总测回数的1/3时,应重测该站。
⑤水准测量时,两次观测高差超误差规定值时应重测。
⑥测量注意事项:
a.对发包人或监理人提供的基准点首先进行复核校验,发现问题及时纠正,控制网点要做醒目标志,并采取保护措施。
b.测量作业完成后进行平差计算及内业资料整理,并将成果报监理人验收,审批合格后方可作为各项工程定点放样的依据。
c.测量资料的计算必须由2人用不同的方法计算,其结果一致后方可进行实地测量放样。
d.对所有观测记录手簿,必须保持完整,不得任意撕页,记录中间也不得无故留下空页。
e.施工测量成果资料(包括观测记簿、放样单、放样记载手簿),图表(包括地形图、控制网计算资料)应予统一编号,妥善保管,分类建档。
f.现场作业时,必须遵守有关安全、技术操作规程,注意人身和仪器的安全,禁止冒险作业。
1.6测量方案
⑴布设测量控制网
①按照发包人提供的图纸和施工需要,采用导线法布设本标段的施工测量控制网。
②结合平面控制网和发包方提供的高程控制基点,根据施工需要,布设本标段工程的高程控制网。
③在施工中,根据需要对上述“两网”的首期成果,进行加密。
⑵原始地形测量
①施工控制网布设完毕之后,对建筑物场区的原始地形进行全面测绘,取得原始测量资料,此期间要和监理人有效配合,确保测量成果的准确性和真实性。
②原始地形测量采用“断面法”进行测量,并依此计算本项工程挖填工程量。 同时进行控制网的加密。
⑶施工测量
①施工期间的测量工作,主要任务为配合施工进度,及时、准确提供建筑物设计位置和高程,确保按图施工。
②对在施工中的任务完成情况进行测量和计算,为检查施工计划完成情况、计划调整、经济核算、进度结算与支付提供依据。
③进行建筑物的位置、几何尺寸复测,提供偏差准确数据,检验施工质量的完成情况。
⑷竣工图测量、绘制
①按照相关规范确定竣工总平面图的比例尺,在图纸上精确绘出坐标方格网,将施工控制点展绘在坐标图上,然后进行室内绘制工作。
②如出现与规范相符的情况时,应到现场进行竣工测量。
③单位工程的竣工图绘制应与施工进度完成情况相一致,以确保竣工图绘制的质量,同时可以考核和反映施工进度。
④工程交工时,所有测量资料、图纸要仔细整理、分类、装订成册,移交管理单位。
2.1施工导流
2.1.1总体思路
根据施工总进度计划安排,本工程计划2008年11月1日开工,2009年4月10日完成主体工程水下部分的施工任务,该时间段处于非汛期。为确保本项工程能够顺利施工,根据本工程的具体情况,本工程在距闸底板中心线下游68米处填筑一条下游临时挡水围堰,并且利用老闸在闸门上安装橡胶止水进行闸门落闸挡水作为上游临时围堰,而且在下游围堰右岸附近原堤顶道路上修建一个临时暗窦,施工期间利用暗窦进行排涝,确保施工安全。
2.1.2导流设计及施工
按招设计满足施工导流采用10年一遇洪(潮)水位(h=1.73m)的标准要求,计划测量放样在下游围堰右岸附近原堤顶道路上修建一个临时暗窦,暗窦底面高程设计为-2.0,底厚为20cm砼,暗窦基础采用间距为50*50的松木桩(桩长为5米)进行处理,暗窦窦身埋设直径为1.5米的涵管10个,涵管埋设好后对其上部进行土方回填恢复交通,该暗窦需要设计制作两个闸门挡水,一个闸门挡四个涵管,一个闸门挡六个涵管,在涵管前面(靠近外江侧)浇筑闸门槽,在闸门槽上方架设工子钢梁以方便挂倒链对闸门进行升降控制,暗窦修建成后需拆除原堤进行导流,在导流完成后立马对其恢复原状。该暗窦修建成后与右岸的鱼塘相连,利用鱼塘作为导流明渠,鱼塘右侧不够高的塘埂进行加高加固处理(现在的鱼塘糖埂高程为1.3米,需要加高一米即可满足导流要求。该鱼塘上游又与内江只隔一条进场道路,在该道路上修筑一个临时导流交通桥以方便导流,这样就形成了一条内河、外江相通的导流明渠。
2.1.3围堰设计及施工
根据现场勘察及资料,本工程施工围堰的设计采用10年一遇的洪水标准进行设计,施工围堰设计参数为:围堰设计安全超高按0.5m,围堰内外边坡均为1:3,围堰顶宽3m,堰顶高程2.5m,暗窦围堰和水闸上、下游游围堰均采用土工织物管袋充填粉细砂,坡角用土袋护脚,围堰迎水坡侧采用防渗彩条布布和30厘厚的土袋防渗。在施工期间,发生超标准洪水时及时加高挡水围堰,以确保安全施工。
围堰施工自中间向两端填筑,采用进占法施工。围堰填筑时,采用空压机向土工织物管袋内充填粉细砂,运砂船运输粉细砂,人工辅助管袋伸开摊平。
建筑物围堰拆除采用抽砂砂船拆除,运砂船运输至原取料点堆放。施工过程中,按照本工程安全度汛方案,落实对上下游围堰的巡护和检查等各项安全度汛措施。
一、场地排水
土料场开挖常会遇到地下水和地表滞水大量渗入,造成场地浸水,破坏边坡稳定,影响施工进行,因此必须做好现场场地的排水、截水、 疏水、排洪等工作,并尽可能减少雨季施工工作量,一般方法是:
1、在现场周围地段应修设临时或永久性排水沟和防洪沟,以拦截附近的雨水、潜水排入施工区域内。
2、现场内外原有自然排水系统尽可能保留或适当加以整修、疏水,改造或根据需要增设少量排水沟,以利排泄现场积水、雨水和地表滞水。
3、现场道路应在两侧设排水沟,支道应在两侧设小排水沟,沟底坡度一般为2%~8%,保持场地排水和道路畅通。
4、基坑初期排水完成后,可以利用原河底低洼地带,挖成排水沟,在围堰堰脚前4-5m挖一个深约2m,长×宽为3×1.5m的集水井,用以汇集渗水。
5、大面积的表水,可采取在施工范围区段内挖排水沟,工程范围内再设纵横排水支沟,将水流疏干,再在低洼地段设集水、排水设施,将水排走。
二、基坑排水
系在开挖基坑的上下游两侧设置集水井,并通过四周排水沟使地下水流汇集于集水井内,再用水泵将地下水排出基坑外。排水沟深度应如终保持比挖土面低0.4~0.5m;集水井应比排水沟低0.5~1.0m,保持水流畅通,使地下水位低于开挖基坑底0.5m。一侧排水沟设在地下水的上游。一般小面积基坑排水沟深0.3~0.6m,底宽应不小于0.2~0.3m,水沟的边坡为1:1~1.5,沟底设有0.2%~0.5%的纵坡,使水流不致阻塞。集水井截面为0.6m *0.6m~0.8m* 0.8m,井壁用木方、木板支撑加固。至基底以下井底应填以20cm厚碎石或卵石,水泵抽水龙头应包以滤网,防止泥砂进入水泵。抽水应连续进行,直至基础施工完毕,回填土后才停止。
本工程中的基础土方开挖工程,主要为基础土方开挖,工程量为17568.53m3。
一、土方开挖程序
![]()
![]()
![]()

![]()
![]()
![]()
![]()
![]()
![]()
![]()
![]()
![]()
![]()
![]()
![]()
![]()
![]()
![]()
![]()
![]()
![]()
![]()
二、测量放样
根据确定的控制点及基线进行构造物基础开挖边线,严格按照有关规定和技术要求施测,力争放样定位准确,并随时根据工程需要进行复测,保证测量成果误差控制在规定的精度要求以内。对已测好的开挖边线做好标志,开挖断面放样后对轮廓设立样架,以便实施开挖,控制开挖坡比。
2、施工期间,认真保护好测量基本控制点,堤防基线的永久埋桩,标架和水准点,避免测量网点的缺失或损坏。
三、土方开挖施工方法
1、土方机械的选择
土方施工机械的选择:根据本工程规模(开挖断面、范围大小和土方量)、不同工程对象、地质情况、土方机械的特点(技术性能、适应性)以及施工现场条件等选择2台反铲挖土机,机型为W1-100,2台T1-100型推土机。
2、施工方法
主要采取沟端开挖法和多层接力挖土法,因本工程土方开挖高度在3-4米之间,故采取沟端开挖法为主,即将反铲挖土机位于开挖面一侧,后退挖土,一次开挖到位。同时卸土由5辆自卸汽车运至指定地点,用堆土机整平。而对水闸基坑较深部位的土方开挖,则采取多层接力挖土法,即利用2台挖土机分别在基坑的不同标高,同时挖土,两台挖土机位于基坑不同标高的台阶上,边挖土边向上传递到上层的地表,挖土机连挖土带装车,用自卸汽车运至指定地点。(示意图如下)
多层接力挖土法示意图
3、土方开挖施工质量保证措施
(1)土方开挖应绘制土方开挖图,确定开挖路线、顺序、范围、基底标高、边坡坡度、排水沟、集水井位置以及挖出的土方堆放地点等。绘制土方开挖图应尽可能使机械多挖,减少机械超挖和人工挖方。
(2)基坑边角部位,机械开挖不到之处,应用少量人工配合清坡, 将土清至机械作业半径范围内,再用机械掏取运走。
(3)考虑本工程基础开挖面积大,基坑底标高不一,故机械开挖次序一般采取先整片开挖,然后再挖个别较深部位。
(4)各层土方开挖后,新的开挖作业平台四周做好排水沟排水,平台面须修整成自然排水坡地状,防止积水或坡面被冲刷。
(5)严格按照设计的边坡开挖,即根据地质资料,开挖坡比根据不同开挖深度按1∶4或1:3进行。局部特殊部位尚需采取松木桩支护。
(6)做好基坑排水措施
基坑以外地表设置截水沟、排水沟排除地表水和雨水,以免流入基坑引起塌方;
(7)机械开挖基底及边坡应预留一层30cmm厚土层用人工清底、修坡、找平,以保证基底标高和边坡坡度正确,避免超挖和土层遭受扰动。
(8)加强施工机械维修保养,确保设备完好,保证施工进度要求的使用率。
4、土方开挖施工质量检验方法
(1)表面标高应符合规范要求;
(2)长度、宽度应符合规范要求。
本工程土方回填主要包括水闸两侧、进出口挡土墙、岸墙及堤身土方回填,总的回填方量约为11038.6m³。
一、土方填筑施工程序
![]()
![]()
![]()
![]()
![]()
![]()
![]()
![]()
![]()
![]()
![]()
![]()
![]()
![]()
![]()
![]()

![]()
![]()
![]()
![]()
![]()
![]()
![]()
![]()
![]()
![]()
![]()
![]()
![]()
![]()
![]()
![]()
![]()
![]()
![]()
![]()
![]()
![]()

![]()
![]()
![]()
![]()
![]()
二、土方填筑施工方法
1、回填土方机械选择
本工程主要采取堆土机和蛙式打夯机进行,对小面积及墙后5米范围内的土方回填一律采取蛙并辅助人工夯实方法进行,其它大面部位则采取堆土机堆平、碾压。
4、土方填筑质量保证措施
(1)铺料作业
① 地面起伏不平时,应按水平分层由低处开始逐层填筑,不得顺坡铺填。
② 相邻施工段的作业面宜均衡上升,若段与段之间不可避免出现高差时,应以斜坡面相接。
③ 已铺土料表面在压实前被晒干时,应洒水湿润。
④ 若发现局部“弹簧土”、层间光面、层间中空、松土层或剪切破坏等质量问题时,应及时进行处理,并经检验合格后,方准铺填新土。
⑤ 铺料前必须清除结合部位的各种杂物、杂草、表层浮土,清除表土厚度以能清干净杂物、杂草、表层浮土为准。铺料前还应将老土坡挖成台阶状,再分层填筑,将土料铺至规定部位。
(2)压实作业
① 分段填筑,各段应设立标志,以防漏压、欠压和过压。上、下层的分段接缝位置应错开。
② 对墙后0.5米范围之内的土方回填应采取蛙式打夯机并辅助人工夯实方法进行。
③ 分段、分片碾压,相邻作业面的搭接碾压宽度,平行路轴线方向不应小于3m,垂直轴线方向不应小于0.5m。
④ 机械碾压时应控制行车速度,以不超过下列规定为宜,平碾为2km/h,振动碾为2km/h。墙后土方回填速度每周不宜超过0.6米,高度不超过墙高的二分之一,以避免墙体发生位移或变形。
⑤ 机械碾压不到的部位,应辅以夯具夯实,夯实时应采用连环套打夯实,夯迹双向套压,夯压夯1/3,行压行1/3;分段、分片夯压时,夯迹搭压宽度应不小于1/3夯径。
⑥ 与刚性建筑物(涵闸、堤内埋管、混凝土防渗墙等)相接合时,要符合下列要求:
a.在填土前,必须用钢丝刷等工具,清除建筑表面的乳皮、粉尘、油污等物;
b.在开始填筑时,必须先将建筑物表面洒水湿润,并边涂刷浓泥浆、边铺土、边夯实、泥浆涂刷高度必须与铺土厚度一致,并应与下部涂层衔接,严禁泥浆干固后再铺土和夯实,泥浆的浓度可为1:2.5~1:4.9(土、水重量比),涂层厚度宜为3~5mm;
c.填筑用的压实工具,应采用各种类型的夯具,并应做到贴边夯实;
d.刚性墙两侧的填土,应保持平衡上升。
⑦ 雨天施工
a. 雨前应及时压实作业面,并做成中央凸起向两侧微倾。当降小雨时,应停止粘性土填筑。
b. 粘性土填筑面在下雨时人行不宜践踏,并应严禁车辆通行。雨后恢复施工,填筑面应经晾晒,复压处理必要时应对表层再次进行清理,并待质检合格后及时复工。
5、土方填筑质量检测
1)项目经理部执行严格的质量保证体系,施工现场按“三检制度”进行质量检测;每填筑完一层土,自检、互检、专职检合格后通知监理验收,合格后方可进行下一层填筑。
2)密实度现场检测一般采用先进的核子密度仪。
3)每填筑完一层土,要进行标高、断面、坡度等平面尺寸的检测。
4)工地试验室对土料质量随时进行检测,不合格土料不准使用。
本工程水闸闸室、翼墙基础、管理房基础设计采用钻孔灌注桩基础。钻孔灌注桩桩径均为Φ1000mm,总计100根,总长1698米,C25水下混凝土,钢筋制安约为87.91吨。
一、钻孔桩施工程序
![]()
![]()
![]()
![]()
![]()
![]()
![]()
![]()
![]()
![]()
![]()
![]()
![]()
![]()
![]()
![]()
![]()
![]()
![]()
![]()
![]()
![]()
![]()
![]()
![]()
![]()

![]()
![]()
![]()
![]()
![]()
![]()
![]()
![]()
![]()
![]()
![]()
![]()
![]()
![]()
二、施工方法
1、钻孔准备
(1)平整桩基范围内的场地,清除杂物,在桩基范围内回填0.6
米回填砂,再铺0.2米石粉或细砂并平整;道路部位采用石碴,填筑高度与工作面齐平。
(2)采用十字法拉线埋设护筒,护筒比桩径大10cm。护筒沉落后,周边用粘土回填夯实。护筒下沉时要核对桩轴线,保证与护筒中心一致,护筒高出地面30cm。
2、成孔
(1)钻机就位前,对各项准备工作进行检查。钻机就位后,用枕木作机座,要使底座和顶端平稳,保证在钻进和运行中不产生位移,倾斜和沉陷,否则及时找出原因,及时处理。
(2)钻机就位施钻时,将钻机底盘调成水平状态,当钻头吊入护筒开始钻下第一钻时,应小心使钻尖对准设计中心,然后盖上封口板,卡上推钳,试转数圈。
(3)开钻时,在桩孔内投入一定数量的粘土及相应的水,钻机不进尺空转,利用钻头搅制泥浆,搅拌后抽至循环池泥浆的相对密度为1.05~1.20,待循环池及桩孔全部储够该桩泥浆后,先启动泥浆泵和转盘,后进行进尺钻进,慢速钻进,
(4)在钻进过程中,进尺的快慢根据土质情况来控制,并经常对钻孔泥浆的相对密度和粘度等检查观察,在粘性土及含砂率小的泥岩中,宜用中等转速稀泥浆(相对密度为1.05~1.20)钻进,在砂性土及含砂率高的地层中,宜用低转速、大泵量、稠泥浆(相对密度为1.20~1.45)钻进。确保泥浆护壁的相应厚度和质量。
(5)钻进成孔过程中,经常捞取钻渣,观察地层的变化,以及时调整泥浆的稠度,确定是否增加或减少转速,在岩土变化处均捞取 渣样,判明分层发表情况,并记入记录表中。当钻进入基岩后,每10~30厘米应分段取样一次。
(6)施工作业分班连续进行,职确因故须停止钻进时,将钻头停放在也底不超过12小时,以免被泥浆埋住钻头。
(7)及时详细填写钻孔施工记录,交接班时,交代钻进情况及下一班应注意事项。
3、终孔及清孔
钻孔桩施工时密切注意地层的变化,当孔深已达到设计标高,但岩样硬度未能达到设计要求时,则仍继续钻孔并同时通知监理及设计人员,变更该孔的终孔标高。
成孔工序验收合格后,进行第一次清孔工序的施工。清孔采用换浆法施工,即钻孔完成后,提起钻锥至底约20cm,继续旋转,然后以相对密度较大的泥浆换出,换至孔内泥浆的相对密度低于1.3g/cm3。在清孔排渣时,保持孔内水头,防止坍孔,清孔后沉碴厚度不得大于50mm。
4、钢筋骨架的制作与安装
(1)钢筋采用现场加工。钢筋的加工遵照施工技术规范及设计要求进行。
(2)按桩基决定钢筋的开料,依钢筋笼的长短及起吊的能力来确定分段制作的长度。
(3)依设计图纸的规定,先制作相应的加劲筋,然后按规定的根数布置主筋,每隔2m设立一道的加劲筋,加强筋下垫以枕木,枕木必须铺设在平整的场地上,排列好后将主筋按规定间距焊死在加劲筋上,以保证钢筋笼骨架的顺直,再依设计规定的间距点焊箍筋,电焊时应注意使用相应性能的焊条,保证焊接强度。
(4)成孔验收第一次清孔后,利用吊车将骨架吊入桩孔,钢筋骨架分段制作,每下完一节后用钢管或方木固位,再用吊车吊住另一节进行驳接,段间驳接采用电弧焊焊接,焊缝长度单面不小于10d,焊缝厚度应按规范要求,特别注意钢筋笼同一截面内焊接接头不得大于50%。在骨架外侧绑混凝土垫块以保证保护层的厚度不小于60mm。吊放钢筋骨架入桩孔时,均匀下落,保证骨架居中,并切勿碰撞孔壁,以免造成孔壁塌落。
(5)骨架落到设计标高后,将其校正在桩中心位置并固定。
5、水下混凝土灌注
(1)导管吊装前试拼,接口连接严密牢固,若接口胶垫有破损,更换后使用。同时检查拼装后的垂直情况,根据桩孔的总长,确定导管的拼装长度。使用前,进行水密试验,试验时的水压万赖无声井口内水深至1.5倍的压力,当导管通过水密试验认为接头密贴,不漏水,导管壁也不漏水,方能作为灌注水下砼之用。吊装时,导管应位于井口中央,并在灌注前进行升降试验。
(2)复核孔底标高,检查沉渣的厚度,判断是否达到设计及灌注要求。满足要求后,经现场监理工程师签证后,方可灌注砼。
(3)为保证工期,桩基采用现场集中搅拌站生产砼,由自卸汽车运送至孔口。
(4)砼灌注采用直升导管法,汽车吊配合进行。先由实验室作好理论配合比,在灌注水下砼时做施工配合比的调整,在灌注过程中如遇下雨也要及时做施工配合比的调整。检查砼坍落度在18~22cm范围为宜,确定砼可以使用后,在导管上端连接砼漏斗,开始灌注。当漏斗内储足了首批灌注的砼数量时,使砼突然落下,待漏斗内砼徐徐下落快完毕前即放吊斗内砼接上,以加大第一次进入孔内砼数量,确保了导管有足够的埋置深度。
(5)在灌注过程中,灌注应连续进行,并边灌注边缓慢提升导管,其提升速度要比砼上升速度慢。使砼经常处于流动状态,导管底埋置于混凝土内的深度以2~6m为宜,或导管中混凝土落不下去时,可将导管提升。提升速度不能过快,提升后导管的埋深不小于1m。提升导管时先将顶上漏斗挪开,然后垂直提升导管,拆去顶上一节后再接上漏斗,继续灌注砼。提升导管要保持导管垂直及居中,不使倾侧和牵动钢筋骨架。
(6)孔内砼面位置的探测,采用锤重不小于2kg的锥形探测锤探测。砼灌注到桩顶下部5m以内时,不再拆除导管,待灌注至规定标高一次提升导管,拔管采用慢提及反插。提升导管时特别要测量计算准确导管的埋深,不能将导管提出砼面而造成灌注中断。
(7)灌注过程中有短时间停歇时,经常抖动导管,使混凝土保持良好的流动性。
(8)在灌注过程中,将井孔内溢出的泥浆引流沉淀池再流入过滤池以便下一根桩施钻时重复使用。如不适用也要流入适当地点处理,防止污染环境。
(9)在灌注过程中,特别要注意钢筋笼上浮的现象出现,因此事前要将钢筋笼固定好在孔口上,上浮出现时应减少导管埋深减缓砼灌注速度。
(10)灌注时随机抽取砼样做抗压试件,每根取一组样,每组3块。灌注完成后及时清洗灌注工具及清除部分表面混凝土浆层,待终凝后再凿砼桩头到砼新鲜面(不小于80cm)。
6、凿桩头
采用人工配合机械凿除桩头,凿桩头时,第一步先用风炮凿至桩顶标高20厘米处,余下的用小锤修至桩顶标高,使桩保持完整,并留出接头钢筋,严禁用风炮横向打桩头。
三、质量控制和保护措施
1、质量控制:
(1)桩径D容许偏差+100,-40;
(2)桩垂直度容许偏差为1/100;
(3)桩中心位置允许偏差:
① 单排桩基沿垂直轴线方向和群桩基础边桩的偏差为D/6,但相邻两桩不能偏往同一方向;
② 群桩基础中间桩的偏差为D/4,但相邻两桩不能偏往同一方向;
③ 柱下单桩中心位置允许偏差为D/15;
④ 灌注水下混凝土完成面之标高比桩顶的设计标高高出800mm。
2、保护措施
由于本工程淤泥呈流塑~软塑状,根据以往同类地质条件的施工经验,容易出现钻进过程出现缩孔;浇筑过程易出现严重扩孔;开挖较深时桩基可能产生偏位,甚至断桩。因此施工时应在采取相应措施:
(1)钻进淤泥层时,应适当提高泥浆比重、快速慢进。
(2)桩顶标高超出基坑标高较大的,桩基浇筑采取分段进行,先浇筑至略高于基坑,其余部分采取接桩处理。如安装间等。
(3)桩施工过程采取退打法,桩身砼在未达到设计强度前,严禁大型机械在桩附近行走或作业。
(4)在淤泥层过程中如出现较严重砼扩散时,必须采取相应措施。采取在钢筋笼外包裹薄铁皮历回长我护筒办法处理。
(5)对河堤大气磅有抛石与木桩的存在可能性,成孔困难,桩位偏移,应采取冲孔桩机施工,抛石体埋藏较浅时采取先挖除后回填。
本工程的引堤基础及岸墙支护防渗处理采用Φ500水泥搅拌桩,合计653根,桩长15米,总长10601m。
一、水泥搅拌桩施工程序
![]()
![]()
![]()
![]()
![]()
![]()
![]()
![]()
![]()
![]()
![]()
![]()
![]()
![]()

![]()
![]()
![]()
![]()
二、施工方法
1、放线定位:根据搅拌桩设计布置范围及间距,在现场采用小木桩或竹板桩准确定出每个桩位,在桩机对位完毕后再将其拔掉。
2、桩机对位:首先核对图纸中桩号与实际桩位是否一致,然后将桩机移动至所施工位置,移动中坚持一人指挥,一人操作,保持桩机周正,平稳,钻头中心对准桩位中心,确保桩位准确及桩身垂直度。单桩中心偏差小于50mm,垂直偏差不超过0.5%。
3、启动搅拌机,钻头边旋转边钻进。为了不致堵塞喷射口,开钻时不喷射加固料,只喷射压缩空气,使负载扭矩减小,顺利钻进(在钻进过程中,待加固土体在原位受到搅动)。钻至设计深度后钻机停止钻进。
4、改变钻机的旋转方向,提升钻头的同时开启粉体发送器边提升边将水泥喷入被搅动的土体中,使土体和水泥充分拌和。
5、当转头提升至地面以下600mm时关闭粉体发送器,停止喷粉作业。
6、为了使上部分桩身的土体和水泥充分拌和,重新复搅1/3桩身。
7、施工中应严格控制钻进提升速度,提升速度控制在0.57m/min~0.8m/min间。根据试验桩情况,确定最佳送灰器转速及钻具提升速度。
三、质量控制和保护措施
1、施工管理。必须加强现场管理,有具体的管理措施,严格的组织纪律,最佳的施工方法,较强的技术力量和既懂技术又善管理的指挥者。
2、技术管理。施工队伍必须是高质量的,具有一定的技术等级,尤其是生产骨干应有足够的技术素质。
3、机械设备。必须根据工艺要求配备完整的制桩设备,所有设备应具有可靠性和配套性,机械功能应能满足设计要求。
4、质量把关应落实到人。建立质量把关逐级责任制,质量责任人必须在施工过程中处处检查,层层把关,把事故消灭在萌芽状态。
5、所用的固化剂和各种掺合料必须符合标准,不允许将不合格的材料用于工程。所有材料进场前必须经过检查和试验,当确认符合要求时始可使用。要使用符合国家标准的水泥,严防使用吸水受潮、过期、某引起有害元素超标的水泥。
6、施工工艺控制。应严格按照施工工艺组织施工,钻进速度、提钻速度、喷灰量以及施工布置等,均要按设计要求的进行。施工过程中应设专职人员负责质量检查,并做好施工记录。
7、施工前应做好技术交底,严格执行各项质量检查与验收制度。
8、在成桩过程中,由于各种原因造成的停机,使成桩工艺中断时,当搅拌机重新起动时,为防止断桩,均应将搅拌机下沉0.5m再继续制桩,且喷灰量≥60kg/m
9、原始施工记录应对每桩的深度、加灰量等情况及时、准确进行现场记录,严禁事后补记,并及时移交给施工技术负责,施工技术负责应及时汇总、登记。
10、施工技术人员负责人应随时检查施工记录,并对每根桩进行质量评定。对于不合格桩应根据其位置和数量等具体情况,分别采取补桩或加强邻桩等措施。
本工程的新建暗窦基础处理采用松木桩复合地基,松木桩要求长5米,尾径不小于60mm,总计316条。
一、木桩施工程序
二、木桩施工方法
1、施工机械:木桩施工选用1台简易柴油或电动打桩机,锤重不小于350kg为主。
2、施工工艺说明
① 平整场地:由于简易打桩机轻便,必须平整场地,无积水、杂物便可施工。
② 测量放样:由专业人员与测量人员按设计图纸进行桩位放样,采用小木桩标记。
③ 桩机就位:在场地平整及放样满足施工要求并报监理复检合格后,即进入桩机就位,按一定顺序依次施打,用挖掘机打桩时,则视场地情况采取边退边打方法或工侧面就位施打。
④ 木桩定位:施工时由桩机卷扬起方桩,由两人配合对准桩位,稳定后,轻击慢放,待桩入土一定深度,校正垂直桩位偏差均符合要求后再转入正常锤击贯入。
⑤ 锤击成桩:施工时,严格控制好锤的落距,控制好桩顶标高与设计标高相符,打桩时,桩身要垂直,严禁倾斜,垂直度不大于0.5%,当桩尖进入硬土层时,严禁采取移动等强行回扳的方法纠偏。
⑥ 验收:方桩施工完成,经桩位、桩顶高程检查后,报请设计、监理等有关人员进行隐蔽工程验收签证。
1、保证项目
(1)钢筋的材质、规格及焊条类型应符合钢筋工程的设计和施工规范,有材质及产品合格证书和物理性能检验,对于进口钢材需增加化学性能检定,检验合格后方能使用。
(2)钢筋的规格、形状、尺寸、数量、间距、锚固长度、接头位置、保护层厚度必须符合设计要求和施工规范的规定。
(3)焊工必须持相应等级焊工证才允许上岗操作。
(4)在焊接前应预先用相同的材料、焊接条件及参数,制作二个抗拉试件,其试验结果大于该类别钢筋的抗拉强度时,才允许正式施焊,此时可不再从成品抽样取试件。
2、基本项目
(1)钢筋、骨架绑扎、缺扣、松扣不超过应绑扎数的10%,且不应集中。
(2)钢筋弯钩的朝向正确,绑扎接头符合施工规范的规定,搭接长度不小于规定值。
(3)所有焊接接头必须进行外观检验,其要求是:焊缝表面平顺,没有较明显的咬边、凹陷、焊瘤、夹渣及气孔,严禁有裂纹出现。
3、机械性能试验、检查方法
根据焊件的机械性能的有关规定进行取样送检。
钢筋加工制作时,要将钢筋加工下料表与设计图复核,检查下料表是否有错误和遗漏,对每种钢筋要按下料表检查是否达到要求,经过这两道检查后,再按下料表放出实样,试制合格后方可成批制作,加工好的钢筋要挂牌堆放整齐有序。
施工中如需要钢筋代换时,必须先充分了解设计意图和代换材料性能,严格遵守现行钢筋混凝土设计规范的各种规定,并不得以等面积的高强度钢筋代换低强度的钢筋。凡重要部位的钢筋代换,须征得设计单位同意,并有书面通知时方可代换。
1、钢筋表面应洁净,粘着的油污、泥土、浮锈使用前必须清理干净,可结合冷拉工艺除锈。
2、钢筋调直,可用机械或人工调直。经调直后的钢筋不得有局部弯曲、死弯、小波浪形,其表面伤痕不应使钢筋截面减小5%。
3、钢筋切断应根据钢筋号、直径、长度和数量,长短搭配,先断长料后断短料,尽量减少和缩短钢筋短头,以节约钢材。
4、钢筋弯钩或弯曲:
(1)钢筋弯钩。
形式有三种,分别为半圆弯钩、直弯钩及斜弯钩。钢筋弯曲后,弯曲处内皮收缩。外皮延伸、轴线长度不变,弯曲处形成圆弧,弯起后尺寸不大于下料尺寸,应考虑弯曲调整值。
钢筋弯心直径为2.5d,平直部分为3d。钢筋弯钩增加长度的理论计算值:对装半圆弯钩为6.25d,对直弯钩为3.5d,对斜弯钩为4.9d。
(2)弯起钢筋:中间部位弯折处的弯曲直径D,不小于钢筋直径的5倍。
(3)箍筋:箍筋的未端应作弯钩,弯钩形式应符合设计要求。箍筋调整值,即为弯钩增加长度和弯曲调整值两项之差或和,根据箍筋量外包尺寸或内皮尺寸而定。
(4)钢筋下料长度应根据构件尺寸、混凝土保护层厚度、钢筋弯曲调整值和弯钩增加长度等规定综合考虑。
A、直钢筋下料长度=构件长度一保护层厚度十弯钩增加长度
B、弯起钢筋下料长度=直段长度十斜弯长度一弯曲调整值十弯钩增加长度
C、箍筋下料长度=箍筋内周长十箍筋调整值十弯钩增加长度
钢筋绑扎前先认真熟悉图纸,检查配料表与图纸,设计是否有出入,仔细检查成品尺寸、形状是否与下料表相符。核对无误后方可进行绑扎。
1、底板及承台钢筋绑扎
底板钢筋绑扎:底板钢筋工程量大,穿插复杂,必须注意施工顺序:
(1)施工前弹出钢筋位置线,以确保钢筋绑扎后位置的正确性。
(2)先绑扎承台、地梁钢筋,绑扎时用钢管搭设支架临时固定,成型后拆除。
(3)承台、地梁钢筋绑扎完成后,按弹出的底板钢筋位置线,先铺底板下层钢筋,根据底板受力情况,底板面筋应放在地梁主筋下面。
(4)钢筋绑扎时,靠近外围两行的相交点每点都绑扎,中间部分可梅花型绑扎,双向受力钢筋应满绑。
(5)底排筋用混凝土垫块垫起,梅花状布置,确保保护层厚度。
(6)绑扎完下层钢筋后,摆放钢筋马凳,底部与下层筋点焊固定,在马凳上纵向或横向固定定位钢筋,然后再绑扎上层钢筋。

钢筋支撑图
2、墙
(1)墙的钢筋网绑扎同基础。钢筋有180度弯钩时,弯钩应朝向混凝土内。
(2)采用双层钢筋网时,在两层钢筋之间,应设置撑铁(钩)以固定钢筋的间距。
(3)墙筋绑扎时应吊线控制垂直度,并严格控制主筋间距。剪力墙上下三道水平筋处应满扎,其余可梅花点绑扎。
(4)为了保证钢筋位置的正确,竖向受力筋外绑一道水平筋或箍筋,并将其与竖筋点焊,以固定墙、柱筋的位置如附图,在点焊固定时要用线锤校正。
(5)外墙浇筑后严禁开洞,所有洞口预埋件及埋管均应预留,洞边加筋详见施工图。墙、柱内预留钢筋做防雷接地引线,应焊成通路。其位置、数量及做法详见安装施工图,焊接工作应选派合格的焊工进行,不得损伤结构钢筋,水电安装的预埋,土建必须配合,不能错埋和漏埋。
(6)当上下层墙截面有变化时,纵向钢筋处理见附图。
3、梁与板
(1)纵向受力钢筋出现双层或多层排列时,两排钢筋之间应垫以直径25mm的短钢筋,如纵向钢筋直径大于25mm时,短钢筋直径规格与纵向钢筋相同规格。
(2)箍筋的接头应交错设置,并与两根架立筋绑扎,悬臂飘梁则箍筋接头在下,其余做法与柱相同。梁主筋外角处与箍筋应满扎,其余可梅花点绑扎。
(3)板的钢筋网绑扎与基础相同,但应注意板上部的负钢筋(面加筋)要防止被踩下;特别是雨蓬、挑檐、阳台、窗台等悬臂板,要严格控制负筋位置,在板根部与端部必须加设板凳铁,确保负筋的有效高度。

墙钢筋定位图
(4)板、次梁与主梁交叉处,板的钢筋在上,次梁的钢筋在中层,主梁的钢筋在下,当有圈梁或垫梁时,主粱钢筋在上。
(5)楼板钢筋的弯起点,如加工厂(场)在加工没有起弯时,设计图纸又无特殊注明的,可按以下规定弯起钢筋,板的边跨支座按跨度1/10L为弯起点。板的中跨及连续多跨可按支座中线1/6L为弯起点。(L一板的中一中跨度)。
(6)框架梁节点处钢筋穿插十分稠密时,应注意梁顶面主筋间的净间距要有留有30mm,以利灌筑混凝土之需要。
(7)钢筋的绑扎接头应符合下列规定:
①搭接长度的未端距钢筋弯折处,不得小于钢筋直径的10倍,接头不宜位于构件最大弯矩处。
②受拉区域内,Ⅰ级钢筋绑扎接头的未端应做弯钩。
③钢筋搭接处,应在中心和两端用铁丝扎牢。
④受拉钢筋绑扎接头的搭接长度,应符合结构设计要求。
⑤受力钢筋的混凝土保护层厚度,应符合结构设计要求。
(8)板筋绑扎前须先按设计图要求间距弹线,按线绑扎,控制质量。
(9)为了保证钢筋位置的正确和梁主筋的有效受力范围,地下室主次梁采取用钢筋支撑顶排钢筋的方法,没跨设置3条。
梁钢筋支撑图
本工程钢筋电弧焊采用搭接焊接头形式。
1、帮条焊
帮条焊适用于Ⅰ、Ⅱ钢筋的接驳,帮条宜采用与主筋同级别、同直径的钢筋制作,其操作要点如下:
(1)先将主筋和帮条间用四点定位焊固定,离端部约20mm,主筋间隙留2-5mm。
(2)施焊应在帮条内侧开始打弧,收弧时弧坑应填满,并向帮条一侧拉出灭弧。
(3)尽量施水平焊,需多层焊时,第一层焊的电流可以稍大,以增加焙化深度,焊完一层之后,应将焊渣清除干净。
(4)当需要立焊时,焊接电流应比平焊减少10%-15%。
(5)当不能进行双面焊时,可采用单面焊接,但帮条长度要比双面焊加大一倍。
2、搭接焊
搭接焊只适用于Ⅰ、Ⅱ、Ⅲ级钢筋的焊接,其制作要点除注意对钢筋搭接部位的预弯和安装,应确保两钢筋轴线相重合之外,其余则与帮条焊工艺基本相同。
本工程模板主要选用定型钢模板,个别部位采用木模。其中挡墙、闸墩等砼外观质量要求较高的结构部位采用规格为600*1500mm或900*1500mm的钢模板,组合钢模板选用300*1500用于各种底板的侧模。变截面、变曲面部位,由专门的内业人员,用木板加胎梢,经过放大祥,在室内加工而成。
1、模板支设方案
(1)柱子模板支垫木方肋间距为300,钢管箍夹固,钢管箍沿柱子高度第600设置一道。对边长超过800的柱子模板沿柱子高度每隔600(即钢管箍中部)在截面宽度方向对拉4根Ф12螺杆。为防止柱子模板根部在浇筑砼时移位,在柱脚周围的砼楼板上插置钢筋头,作为柱脚模板支垫固定锚点。柱子撑模时注意留置与墙体的拉结筋。
(2)砼墙体模板支垫竖向木方肋间距为400,横向木方肋位于竖向木方肋外,间距600,每排横向木方肋处对拉螺杆,螺杆间距600,上下排错位布置,柱子及墙体模板支撑时要在底部和上部施工缝处留置清洗口。
(3)梁板模为满堂红钢管支撑,支撑架立杆间距1500,梁侧立杆加密至600,当梁高大于800时,在梁2/3高度位置设Ф12间距1000的对拉螺杆,跨部梁中部及悬挑梁端部模板起拱0.5%,且不少于20。
2、模板支设要求
(1)所有构件支模前均应由专人进行配板设计和画出配板放样图并编号,余留量由缝模调节。
(2)模板及其支撑均应落在实处,不得有“虚”脚,安拆均设专人负责。
(3)支设楼板模时,上下楼层支撑布置应尽量保持一致,以防因局部应力过大而破坏楼板。
(4)所有外模和边梁底模不得连于外脚手架上。
(5)模板操作严格按规范程序进行。
(6)对于跨度等于或大于4.0m的整体式钢筋砼梁,模板应起拱,起拱高度宜为全跨度的1/1000-1/3000。
(7)模板及其支架在安装过程中,必须设置足够的临时支撑,以防倾覆。安装上层支架及模板时,下层楼板应达到足够的强度或有足够的支架支撑。
二、模板拆除
模板的拆除,除了非承重侧模应以能保证砼表面及棱角不受损坏时(砼强度大于2 .5mpa)方可拆除外,承重模板应按《砼结构工程施工及验收规范》的有关规定执行。
模板拆除的顺序的方法,应按照配板设计的规定进行,遵循先支后拆、后支先拆、先非承重部位和后承重部位以及自上而下的原则,拆模时,严禁用大锤和撬棍硬砸硬撬。拆除的模板等配件,严禁抛扔,要有人接应传递,按指定地点堆放。并做到及时清理、维修和涂刷好隔离剂,以备待用。
![]()
![]()
![]()
![]()
![]()
![]()
![]()
![]()
![]()
![]()
![]()

![]()
![]()

![]()
![]()
![]()
![]()
![]()
![]()
![]()
![]()
![]()
![]()
![]()
![]()
![]()
![]()
![]()
![]()
本工程采用商品混凝土,垫层采用现场拌制,原材料和配合比按设计要求进行自检和送检。
1、根据配合比确定的每盘(槽)各种材料用量,均要过称。
2、装料顺序:一般先装石子,再装水泥,最后装砂子,需加掺合料时,应与水泥一并加入。
3、混凝土搅拌的最短时间根据施工规范要求确定,掺有外加剂时,搅拌时间应适当延长。粉煤灰混凝土的搅拌时间宜比基准混凝土延长10至30s。
1、浇筑的一般要求
(1)浇筑前应对模板浇水湿润,墙、柱模板的清扫口应在清除杂物及积水后再封闭。
(2)混凝土自吊斗口下落的自由倾落高度不得超过2米,如超过2m时必须采取加串筒措施。
(3)浇筑竖向结构混凝土时,如浇筑高度超过3m时,应采用溜筒、导管、溜槽或在模板侧面开门子洞。
(4)浇筑混凝土时应分段分层进行,每层浇筑高度应根据结构特点、钢筋疏密决定。一般分层高度为插入式振动器作用部分长度的1.25倍,大不超过500mm,平板振动器的分层厚度为200mm。
(5)使用插入式振动器应快插慢拔,插点要均匀排列,逐点移动,按顺序进行,不得遗漏,做到均匀振实。移动问距不大于振动棒作用半径的1.5倍(一般为300~400mm)。振捣上一层时应插入下层混凝土面50mm,以消除两层间的接缝。平板振动器的移动间距应能保证振动器的平板覆盖已振实部分边缘。
(6)浇筑混凝土应连续进行。如必须间歇,其间歇时问应尽量缩短。并应在前层混凝土初凝之前,将次层混凝土浇筑完毕。问歇的最长时间应按所有水泥品种及混凝土初凝条件确定,一般超过2小时应按施工缝处理。
(7)浇筑混凝土时应派专人经常观察模板钢筋、预留孔洞、预埋件、插筋等有无位移变形或堵塞情况,发现问题应立即停止浇灌,并应在已浇筑的混凝土上初凝前修整完毕。
2、底板混凝土浇筑方法
本工程底板砼浇筑量大,一次浇筑砼量多,最大一次砼浇筑(水闸底板砼:740.28m3),因此做好底板浇筑显得十分重要。
(1)混凝土浇筑根据砼方量提预约搅拌站供应。
(2)采用平铺法薄层浇筑方式,每铺料层厚度最大不超过40cm。浇筑大于500厚混凝土底板时,采用“两头推进、分段分层、斜面浇筑、一个坡度、薄层浇捣、循序推进、一次到顶”的方式,见附图所示。按水闸底板考虑:底板厚100cm,短边长21米,长边28.6米,从短边一侧向另一侧方向进行,混凝土自然流淌形成斜坡,按浇筑宽度为3米,则最大一个来回浇筑砼量为15*1.0*3.0=45方,从而可避免对上下层混凝土间隙时间不超过1.5小时起到保证作用。根据混凝土自然形成一个坡度的实际情况,在每个浇筑带的前、后布置两道振动器,前一道布置在卸料点,主要解决上部混凝土的捣实;后一道布置在混凝土坡脚处确保下部混凝土的密实。随着混凝土浇筑的推进,振动器也相应的跟进,以确保整个高度混凝土的质量。

![]()
砼浇筑方向示意图
(3)混凝土浇筑前准确掌握天气情况,避开雨天,尽量安排底板混凝土在低温时浇筑,以降低较厚处混凝土内部水化热。浇筑混凝土前需设置马凳及人行通道和操作平台,严禁直接踩踏钢筋,通道谁打谁拆,浇注混凝土时,模板、支撑、钢筋、预埋、预留应设专人值班,如有位移、变形应及时处理,确保混凝土质量。
(4)大体积混凝土浇筑其表面水泥浆较厚,在混凝土浇筑结束后,要认真处理,经2~4小时左右,初步按标高用长刮尺刮平,初凝前用铁滚筒碾压数遍,再用木抹子收平压实,以闭合收水裂缝,约12小时后,再覆盖塑料布、麻袋,充分浇水湿润养护。
3、柱、墙混凝土浇筑
(1)柱、墙浇筑前,或新浇混凝土与下层混凝土结合处,应在底面上均匀浇筑50mm厚与混凝土配比相同的水泥砂浆。砂浆应用铁铲入模,不应用料斗直接倒入模内。
(2)柱墙混凝土应分层浇筑振捣,每层浇筑厚度控制在500mm左右。混凝土下料点应分散布置循环推进,连续进行。
(3)浇筑墙体洞口时,要使洞口两侧混凝土高大体一致。混凝土振捣要均匀密实,特别是墙厚较小,门窗洞口结构加筋与连接交错钢筋较密的部位,应采用Φ25振动棒,其它墙梁部位采用Φ50振动棒,考虑到墙窗洞下墙体位混凝土封模后无法直接振捣,可事先将窗洞下口留成活口,待混凝土浇至该位置并振捣密实后再行封模和加固。振捣时,振动棒应距洞边300mm以上,并从两侧同时振捣,以防止洞口变形。大洞口下部模板应开口并补充振捣。
(4)构造柱混凝土应分层浇筑,每层厚度不得超过300mm。
(5)浇筑粱板混凝土时,墙、柱节点区同按高强度等级混凝土施工,分界面在墙柱边500处如图示。

墙柱与梁板不同结点处
4、梁、板混凝土浇筑
(1)肋形楼板的梁板应同时浇筑,浇筑方法应由一端开始用" 赶浆法"推进,先将梁分层浇筑成阶梯 ,当达到楼板位置时再与板的混凝土一起浇筑。
(2)楼板浇筑的虚铺厚度应略大于板厚,用平板振动器垂直浇筑方向来回振捣。注意不断用移动标志或插杆检查以控制混凝土板厚度。振捣完毕,用刮尺或拖板抹平表面。
(3)在浇筑与柱、墙连成整体的梁和板时,应在柱和墙浇筑完毕后停歇1~1.5小时,使其获得初步沉实,再继续浇筑。
(4)施工缝设置:宜沿着次梁方向浇筑楼板,施工缝应留置在次梁跨度1/3范围内,施工缝表面应与次梁轴线或板面垂直。单向板的施工缝留置在平行于板的短边的任何位置。
(5)施工缝用木板、钢丝网挡牢。
(6)施工缝处须待已浇混凝土的抗压强度不少于1.2MPa时,才允许继续浇筑。
(7)在施工缝处继续浇筑混凝土前,混凝土施工缝表面应凿毛,清除水泥薄膜和松动石子,并用水冲洗干净。排除积水后,先浇一层水泥浆或与混凝土成分相同的水泥砂浆然后继续浇筑混凝土。
1、混凝土浇筑完毕后,应在12小时以内加以覆盖,并浇水养护。
2、混凝土浇水养护日期,掺用缓凝型外加剂或有抗渗要求的混凝土不得小于14天。在混凝土强度达到1.2MPa之前,不得在其上踩踏或施工振动。柱、墙带模养护2天以上,拆模后,用棉布包住,浇水在棉花布上养护,以确保立面结构表面保持湿润状态。
3、每日浇水次数应能保持混凝土处于足够的润湿状态。
本工程砌体主要是浆砌石护坡,挡墙、护底。
块石从附近石场购买,用自卸汽车或运石船运至施工作业区,由反铲挖机配合,人工挑、抬或手推车运至砌筑工作面。砌用砂从砂场购买,施工用水泥从当地购买符合标准的国家免检水泥汽运至施工仓库。
一、浆砌石护底施工施工工艺
测量放样→垫层施工→人工砌石→勾凸缝→检查验收。
二、浆砌石砌筑方法
1.施工放线
根据设计图纸及监理公司提供的基准控制点,将脚槽的边线及标高进行测设,并保证设有标准点,做好保护。
2.土方开挖
土方开挖采用反铲挖土机开挖,人工进行修整,机械开挖的土方预留的厚度为20cm。
3.浆砌石砌筑
⑴施工材料选择
①石料符合有关设计规定类别和标号,石质质地坚硬、均匀,不易风化、无裂纹。其抗水性、抗冻性、抗压强度均符合设计详图或有关技术要求的规定。用于砌体表面的石料必须有一个用作砌体表面的平整面,尺寸较大时,稍作修整。其性能符合有关规范的要求和规定。
②块石形状大致方正,上下面平整,厚度约20cm~30cm,宽度约为厚度的1.0~1.5倍,长度约为厚度的1.5~3.0倍,如有锋棱锐角,必须敲除。同时,不得使用一边厚一边薄的块石。
③块石镶面时,由外露面四周向内稍加修凿,下部可不加修凿,但要略小于修凿部分。
⑵施工布置
石料、水泥、砂等材料均通过指定的码头运到岸上,并用翻斗车从堤顶路运至施工现场。
开挖到达设计高程后迅速铺筑垫层和进行浆砌施工,脚槽施工分段进行,以50m为一段较为合适。
⑶砌筑技术要求
1)砌筑前须完成地基整平工作,浆砌块石体必须采用铺浆法砌筑。砌筑时,先铺砂浆后砌筑,石块分层卧砌,上、下错缝,内外搭砌,砌立稳定。相邻工作段的砌筑高差不大于0.3m,每层大体找平,分段位置尽量设在沉降缝或伸缩缝处。
2)在铺砌浆之前,石料洒水湿润,使其表面充分吸水,但不得有残留积水。灰缝厚度一般为20~35mm,较大的空隙用碎石填塞,但不得在底座上或石块的下面用高于砂浆层的石块支垫。
3)砌体基础的第一层石块将大面向下。砌体的第一层及其转角、交叉与洞穴、孔口等处,均选用较大的平整毛石。
4)砌体的结构尺寸和位置,必须符合施工详图规定,表面偏差在2m范围内不得大于30mm;砌缝宽度,平缝15~20mm、竖缝20~30mm。
本工程工程金属结构设备及安装工程包括闸门及埋件的制作安装。项目范围包括材料、制造、组装、防腐、出厂验收、保护、包装运至工地卸货、场地安装等。
一、金属结构制作
(一)一般资料
1、技术资料
闸门制造前应具备下列资料:
(1)设计图纸和技术文件;
(2)主要钢材、焊材及防腐材料质量证明书;
(3)标准和非标准协作件证书。
2、材料
闸门使用的钢材必须符合图纸规定,且应有出厂质量证明书。
焊接材料必须具有出厂质量证明书,焊条的化学成分、机械性能和扩散氢含量等各项指标符合GB5117《碳钢焊条》的规定。
3、基准点和测量工具
证明制造、安装所用的钢尺和测量仪器精度应达到下述规定:
(1)精度为万分之一的钢卷尺;(2)J2型经纬仪;(3)S3型水准仪。
(二)零件和单个构件制造
钢板和型钢切割、下料,其未注公差尺寸的极限偏差应不大于
±2.0㎜。
钢板和型钢的切断面为待焊边缘时,切断面断面粗糙度应
≤50μm,长度方向的直线度公差不大于边棱长度的0.5/1000且不大于1.5㎜;厚度方向的垂直度公差不大于0.5㎜(δ≤24㎜)。
钢板和型钢切断面为非焊接边缘时,切断面应光滑、平整、无毛刺。长度方向的直线度公差应不大于1.0㎜,厚度方向的垂直度公差不大于δ/10,且不大于2.0㎜。
钢板,型钢经矫正后,钢板平面度、型钢直线度、工字钢、槽钢翌的垂直和扭曲符合规范要求。
(三)钢闸门制作
平板钢闸门制作在我公司加工厂进行,首先在加工厂制作工作平台和1:1闸门大样的放线平台,并配有闸门翻身起吊设备和翻身坑。
制作钢闸门材料采用Q235钢,焊条采用E43系列焊条,焊接处均为连续满焊,焊缝高度大于7㎜;吊耳焊缝大于10㎜,采用批坡焊。
1、放样和切割
(1)材料的放样应根据钢闸门的工艺要求预留制作和安装时的收缩量和切割以及表面加工等所需余量。
(2)气割前应清除切割边缘50㎜范围内的锈斑、油污等,气割后应清除焙渣和飞溅物等。机械切割时,剪切面应平整。
2、矫正
(1)受力构件中的零件,在冷矫正和冷弯曲时,应按施工图的规定矫正其弯曲率半径和弯曲矢高,若图纸无规定时,则应按GB50205-95附录A的规定执行。
(2)钢材矫正后表面不应有明显的凹面和损伤,划痕深度不得大于该钢材厚度负偏差值的1/2,且不大于0.5㎜。钢材 矫正后的允许偏差应符合GB50205-95表4.2.4的规定。
(3)弯曲成形的零件应采用样板检查。成形部位与样板间隙 不得大于2.0㎜。
3、边缘加工
(1)刨、铣加工的边缘,要求平直光滑
(2)切割后的钢材、零件外观表面及焊缝坡口处,应按施工图纸的规定进行加工。若施工图纸未作规定时,其刨削边缘加工的允许偏差应符合GB50205-95表4.3.2的规定:顶紧接触面端部铣平的允许偏差应符合GB50205-95表4.9.1的规定。
(3)焊接坡口的形式和尺寸应按施工图纸的要求确定。
4、组装
(1)钢闸门组装前,应进行零、部件的检验,度作好记录,检验合格后方可投入组装。
(2)连接表面及沿焊缝每边30~50㎜范围的铁锈、毛刺和油污等脏物应清除干净。
(3)板材、型材的拼接应在组装前进行,构件的组装应在部件组装焊接和矫正后进行。
(4)焊接连接组装允许偏差应符合GB50205-95表4.6.3的规定。
(5)零、部件间顶紧接触面应有75%以上的面积紧贴,用
0.3㎜塞尺检查,塞入面积之和应少于25%,边缘间隙不得大于
0.8㎜,顶紧面应在焊接前检查,并作好记录。
5、H型钢的组焊
(1)H型钢的板材焊接组装时,其翼缘长度方向拼焊,腹板拼接焊缝采用“+”字型或“T”字型。翼缘板和腹板的拼接焊缝间距应大于20㎜。
(2)H型钢组焊的允许偏差应符合GB50205-95表4.8.4的规定。
6、焊接
(1)参加焊接的所有焊工必须取得相应位置的操作证,严禁无证操作。
(2)为保证焊接质量,减少焊接变形,应采用合理的焊接顺序。主要顺序:
① 焊接主梁与纵隔板的连接角焊缝,根据主梁的数量用不同的焊工数,2根主梁可用4名焊工,4根主梁可用8名焊工,由中向外进行对称分段焊;
② 焊接主梁与边梁的角焊缝,仍由4人或8人分区对称焊接;
③ 焊接隔板的立筋板;
④ 焊接小横梁与边梁的连接焊缝;
⑤ 待主梁、边梁、纵隔板、小横梁等组成刚性整体框架后,进行面板与整体框架连接缝的焊接;
⑥ 其余焊缝的焊接。
(3)施焊前,焊工应复查焊件表面和接头的清理质量,当不符合要求时,应予修整合格后方能施焊。
(4)焊工应严格遵守焊接工艺规程不得在焊道外的母材上引弧、对接、角接、T形和+字接头等以及对接和角接的组合焊缝,应在焊缝两端加设引弧和引板,其材质及坡口型式应与焊件相同。引弧和引出焊缝的长度;埋弧焊应大于50㎜;手工电焊弧焊及气体保护焊应大于20㎜。沓接完毕后,应采用气割切除引弧和引出板,度修磨平整,严禁用锤击落。角焊缝转角处应连续绕角施焊。
(5)焊件焊接收缩量应符合JGJ81-91附录六的规定。
(6)在约束焊道上施焊中断进行再焊时,应清理焊缝表面,度应对已焊的焊缝局部进行预热处理,使之正常焙合并熔透。
(7)焊接工作完毕后,焊工应清理焊缝表面,自检焊缝外观合格后,在焊缝部位旁打上焊工的工号钢印。
(8)焊缝质量检验
① 承包方应按GB10854-89的规定,对全部焊接缝的外形尺寸进行检查,并根据施工图纸所示标出钢结构焊缝质量等级,按GB50205-95表4.7.20规定进行外观检查,并作好记录。
② 承包方应按排经过专业培训,并经考核合格的无损探伤人员对焊缝进行超声波探伤检查,并将检查成果交监理单位审查。承包方应根据施工图纸标示的焊缝质量等级,并按GB50205-95表4.7.20的规定划定无损探伤范围:
一级焊缝 100%焊缝长度 B级检验
二级焊缝 20%焊缝长度 B级检验
三级焊缝 不检验
③ 二级焊缝的检验范围应抽及每个工的工作部位,经无损探伤的二级焊缝有不允许的缺陷时,应在焊缝两端增加无损探伤范围,其延伸长度不应小于焊缝长度的10%,且不小于200㎜;在延伸部位仍有不允许的缺陷时,进行100%的焊缝探伤检查。
④ 监理单位有权选择局部可疑部位进行无损探伤的抽样检查。抽样检查部位若发现有不允许的缺陷时,亦应按上述第③项的规定处理。
⑤ 素钢的无损探伤检查应在焊缝 冷却到环境温度后进行;低合金钢则应在完成焊接24小时后方能进行无损探伤。
⑥ 监理单位认为有必要时,承包方应根据监理单位指示,对大型钢结构的重要焊缝中经超声波探伤检查祟缺陷可疑部位进行X射线抽样检验。抽样检验的焊缝应大于超声波探伤总长度的10%。
⑦ 经检查确认必须返修的焊缝缺陷,应由承包方负责按监理单位批准的修理措施进行返修。返修后的原缺陷部位仍需按上述第②~ ⑥项的规定进行探伤检查。同一部位在返修次数不应超过两次;当超过两次时,应重新制定新的返修措施报监理单位审批。
7、防腐
(1)干喷砂工艺及设备
干喷砂工艺处理门叶表面主要原理:利用被压缩的空气带动砂粒喷射到被处理的工件表面上,将其锈层、水污、油垢等除掉。使表面露出金属光泽。其工艺流程及设备是:空气压缩机将储气罐的干砂去除锈。
(2)技术要求
① 干喷砂中的压缩空气应干燥、洁净、不得含有水分和油污。
② 喷砂材料应选用有棱角的石英砂,粒径在0.5~2.0㎜,砂子要干净、干燥、不含油脂。
③ 喷砂后的金属表面应达到无锈斑、油污、水分、表面粗糙,并露出灰白的金属光泽。
④ 预处理工作环境,空气相对湿度低于85%,基体金属表面湿度不低于露点以上3ºC。
预处理完毕,应立即进行喷涂,正常天气下预埋开始至喷涂开始时间间隔不超过12小时。
(3)喷涂工艺
操作要点:
① 气体压力的控制
常用的喷枪为ZQP-1型中速自动调速式喷枪,要求乙炔压力控制在0.1~0.15Mpa范围,氧气压力控制在0.11~0.12 Mpa范围。
② 压缩空气的压力控制在0.4~0.6 Mpa范围。
③ 喷涂的距离与角度喷镀时,喷枪与工件表面垂直,无法垂直时斜度不应小于45º,喷枪与工件表面距离125~175㎜范围。
④ 喷涂厚度及走丝速度:
喷镀厚度超过100μm,分层喷镀,前一层后一层应交叉45~90度。喷枪移动速度300~400㎜/S。铝丝走丝速度2~2.2m/min。
(4)封闭涂料
涂料封闭宜在金属喷涂层(干膜不低于100μm)留有余温时进行,采取刷涂的方式施工。喷锌后先涂两道881环氧云铁底漆,干膜不低于60μm,再涂两道881聚氨面酯,干膜厚度不低于60μm。
工地焊缝两侧应予留100~150㎜宽度,用底漆临时保护,现场拼装后,按上述要求对预留区域进行表面处理补喷。
安装完毕,对因吊装、运输、碰撞等原因造成金属局部损伤时。按原工艺处理修补。
(四)闸门安装
1、安装前的准备工作
按闸门的出厂验收记录,仔细了解其尺寸误差。制造质量,应符合规范要求。
闸门及其人埋件运到工地后,按发货单及图纸清算数量,进行外观检查,有否碰损,变形等异常现象,如发现异常应及时汇同监理,作书面凭证及研究处理方案。
对到货的闸门及其零部件应妥善存放,保管。闸门应平放,不得堆叠,加工面应予保护。止水橡皮应平放室内,不得盘折。一、小型零部件,开箱后分类,编号入库保管。
按图纸对闸门外形尺寸相配尺寸进行复核,轴、销等进行试装检查。检查构件变形情况,不应超过规范或图纸要求,否则应在安装前进行处理。
闸门安装前应具备的资料:
(1)设计图纸和安装必须的技术文件。
(2)闸门出厂合格证。
(3)闸门验收资料和质量证书。
(4)发货清单。
(5)安装用控制点位置图。
2、平面闸门安装
(1)埋件安装
①安装程序
a. 门槽检查,清理;
b. 复查确认安装基准点;
c. 由安装基准点放安装控制点、线;
d. 埋件安装前检查及变形处理;
e. 埋件吊装、调整、加固;
f. 校核复测、验收、移交土建浇筑二期砼;
g. 二期砼浇筑完后,清理、复测,必要时进行局部处理。
②控制点设置:
基准点由测量部门提供,应尽是接近安装部位,有书面凭证,度经监理确认,施工过程中应妥善保护。控制点由基准点引入,一般距安装构件100~200㎜,控制点设置应牢固、可靠、正确、并经复核。
③底坎安装:
底坎吊装前,将予埋插筋焊成支架,支架依底坎结构而定。其架面高程低于底坎构件底面10~15㎜,以便底坎就位后,留有调整的裕度。利用门槽两侧放好的样点,拉一水平钢丝线,找正底坎的高程及水平。每隔0.5m测量一点,调整至合格。同时也用水准仪配合测量检查底坎高程。底坎中心的调整是利用已设置的闸孔纵横中心线来控制。中心偏差不超过±0.5㎜,倾斜不超过1㎜,底坎左右两头相对高程不超过3㎜。因为底坎是门槽构件的安装基础,装好后必须支撑加固牢靠,以防二期砼浇筑,振捣时走样。
④主轨安装
主轨安装前,在已安好的底坎上定出中心位置,根据底坎的中心位置定出主轨的位置,将主轨吊入门槽,底部落在底坎上,同时对准底坎中心位置。上端焊上两个调整螺栓,松钩后,在主轨前面100㎜左右焊上两套重力线锤,侧面再挂一套线锤。调整从下端开始,逐步向上进行,每隔0.5m测量一次。若轨道有里弯或外凸,可用千斤顶调整。符合要求后,电焊加固。接头错牙用砂轮机打磨平滑。
⑤反轨、侧轨安装:
安装方法与主轨相同,安装允许误差应符合图纸及规范规定。
⑥门楣安装:
门楣吊装就位前,予先在轨道面上定出门楣的横向中心高度线。并在两主轨道的内侧固定两个托架。将门楣吊落在托架上。沿门楣水封中心拉一钢丝,调整不平度和中心高程。
门楣的倾斜度检查,可以在止水面前上下拉两道钢丝,测量两次读数误差小于1㎜。
⑦埋件的复测:
埋件安装调整,加固后,再复测。确认合格无误后,方可交付浇筑二期砼。二期砼拆模后,再对埋件进行复测,并作安装记录。
⑧二期砼浇筑
埋件安装前,门槽中的模板等杂物必须清除干净。一、二期砼在结合面应全部凿毛,二期砼的断面尺寸及预埋锚筋位置应符合要求。
埋件安装完后,经检查合格,应在5~7天内浇筑二期砼。如过期或有碰撞,应予复测,复测合格,方可浇筑二期砼。砼一次浇筑高度不宜超过5米,浇筑捣实砼时,应注意防止碰撞。
二期砼拆模后对埋件进行复测,半作记录。如有超过应予处理。拆模后还应检查二期混凝土面的尺寸,清除遗留的钢筋和杂物,以免影响闸门启闭。如遇有鼓曲情况,应将其凿平。工程挡水前,应对全部门槽进行试槽。
(2)门体组装
闸门出厂前必须进行整体组装检查,检查合格后,方可出厂。
①门体安装程序:
a. 门体外形及配合尺寸复测检查;
b. 门槽清理、检查;
c. 单节运输、吊装;
d. 水封安装及水封座板面密封情况检查、处理;
e. 无水启闭试验。
②门叶拼装
对于分块制造的闸门,安装前必须进行工地拼装,拼装可采用在门槽非工作段组装的方法:
将第一块门叶吊入门槽落在门槽上下游之间设立的支承梁上,门体分别用千斤顶或葫芦临时固定,防止倾倒。挂三组铅锤,根据事先设在门体前放出的控制点,调整门叶垂直度,使其倾斜和扭曲值均达到要求。合格后将已调整好的门体牢固地固定在门槽中,接着吊入第二块六叶落在第一块门叶上,其调整方法相同,至此整扇闸门 组装完毕,几何尺寸检查合格后进行立焊作业。
焊接完成,卸去千斤顶及支撑,检查闸门质量,合格后作出记录。若施工场地允许,在闸门槽顶部平台拼装、焊接,更为方便。
③滑动支座的安装
滑动支座的安装是在整个门叶结构安装焊接完毕,并经过校正合格后才进行。各个滑动支座的承压面调整到一个平面上。
(五)闸门试验
闸门安装完毕,应在无水情况下,全行程启闭三次。试验前应清除闸门和门槽内的杂物,检查启闭机和吊钩是否正常可靠。闸门在启闭过程中,启闭机的左右吊点应同步,闸门及启吊设备升降灵活、平稳、无卡阻现象,止水橡皮不被刮伤。闸门吊入门槽之前,闸门上滑动支承面应涂抹基黄油,在闸门试验的全过程对止水橡皮及门槽不断浇水,以免干磨擦损伤橡皮。
闸门处于水封工作部位时,必须用灯光等检查止水橡皮的压缩程度,不得出现透亮或间隙。
闸门在受水压时,通过任意1m长止水橡皮范围内的漏水量不得超过0.1L/S。
水封压缩量处理方法:
局部有间隙或压缩量偏少,采用局部加垫方法解决。
二、启闭设备安装
1、卷扬式启闭机安装工艺流程
![]()
![]()
![]()
![]()
![]()
![]()
![]()
![]()
![]()
![]()
![]()
![]()
![]()
![]()
![]()
2、安装工艺方法
(1)在安装工作之前,对卷扬机进行检查和必要的解体清洗。对应当灌注润滑油脂的部位,灌足润滑油脂。
(2)检查基础螺栓的埋设位置,螺栓埋入深度及露出部分的长度是否准确。
(3)扬机的安装定位,以实际装好的门槽为基准,确定起吊中心线,度依据起吊中心线找正,其纵横向中心线偏差不大于13㎜。
(4)启闭机单独式运行。在启闭机安装完毕后,不与闸门连接的情况下,作启闭机空载运行,检查各传动机构的安装正确性。
(5)将启闭机与闸门连接好,让闸门在不承受水压的情况下,作开启和关闭运行同。检查各传动机构的运行有否变化,闸门上两个吊点的钢丝绳长度是否一致,闸门开度指示器的显示是否正确,各限位开关是否正确地动作。同时测量电动机的电流、电压值的变化情况。这些试验工作承包方应该重复做3次,并且每次试验均做出记录递交给监理单位。每个门槽都同样的重复3次,检查门叶与门槽的吻合情况和各有关参量的变化。
(6)启闭机带负荷试验,按有关规范、设计要求 在闸门承受设计水头的情况下,作闸门开启和关闭试验。检查闸门和启闭机的安装是否都达到施工详图和制造性能要求。试验的记录和以上的各次记录都作为安装验收的依据,递交给监理单位。
本工程的砌体建筑装修工程主要是启闭室,其装修施工程序:以砌体工程为先导,内墙抹灰、面砖装饰、地面工程、防水工程等适时插入施工,在空间上实行平面分段,同步流水;在顺序上先砌体,后装饰,在时间上,内装修工作在移交机电安装之前完成,形成各主要分项工程紧凑搭接,工序穿插衔接,实行立体交叉施工。
一、砌体工程
1、材料
(1)本工程砌体主要是内外墙。砖的规格及强度应符合相关规范要求。
(2)砂采用中砂,用筛网除草根等杂物,其含泥量小于5%。
(3)水泥选用满足设计要求及对应的国家质量标准,并经过检验合格方可使用。
(4)施工用水采用自来水。
2、作业准备
(1)砌筑部位清理干净,放出墙身中心线及边线,浇水湿润。
(2)在砖墙的转角处及交接处立皮数杆,在皮数杆之间拉准线。
(3)砂浆标号经试验试配后开出配合比。
3、构造要求
(1)砖砌体的转角处和交接处应同时砌筑,不能同时砌筑而又必须留置的临时间断处,应砌成斜槎或配筋直槎。砖砌体接槎时,必须将接槎处的表面清理干净,浇水湿润,并填实砂浆,保持灰缝平直。
(2)砌筑钢筋砖过梁,底面铺1:3水泥砂浆层,其厚度宜为
3㎝钢筋应埋入砂浆层中,两端伸入砌体内不少于24㎝,并有90º弯钩埋入墙的竖缝中。
(3)墙中的洞口、管道、沟槽和预埋件等在砌筑时正确留出或预埋,宽度超过30㎝的洞口砌筑平拱或设置过梁。
4、施工要点
(1)在砌筑前1天~2天浇水湿润,不得干砖上墙。
(2)砌筑时要先排砖,根据弹好的门窗洞口位置线,认真核对长度尺寸是否符合排砖模数。
(3)要体结构填充墙砌筑前,先将预留在柱里的拉结筋凿出,并处理顺直。砖墙砌至梁底下,上部两皮必须侧砖或立砖斜砌挤紧,保证与梁底接触紧密。
(4)每一单元或250m³砌体中的各种标号砂浆,做一组试块送检。
(5)砂浆随拌随用,严禁使用隔夜砂浆,砂浆拌成后或使用时,均盛入贮灰器内,如砂浆出现泌水现象,在砌筑前再次拌和。
(6)在墙体的下列部位不得设置脚手眼
半砖墙:过梁上部与过梁线60º角的三角形范围内;
宽度小于1m的窗间墙:门窗洞口两侧20㎝和墙体黑心角处45㎝的范围内;
设计规定不允许设脚手眼的部位。
(7)砌体的灰缝做到横平竖直,全部灰缝填铺砂浆,水平 灰缝的砂浆饱满度不得低于80%。严禁用水冲浆浇灌灰缝。砌体的水平灰缝和竖向灰缝宽度一般为10㎜,不应小于8㎜,也不得大于12㎜,埋设的拉结钢筋和钢筋网片,必须放置在砂浆层中。
(8)砌筑用砂浆搅拌时间自投料算起,不得小于1.5分钟。砂浆随拌随用。水泥砂浆和水泥混合砂浆必须分别在拌成后3h 和4h内使用完毕。如期间最高气温超过30ºC,必须分别拌成后2h 和3h内使用完毕。
二、抹灰工程
1、材料
水泥选用品种和标号符合设计要求度满足规范要求的产品。砂选用中砂或粗砂,含泥量不大于3%。石灰选用熟化后在石灰膏,石灰膏应细腻洁白,不得含有未熟化颗粒。
2、抹灰前准备
(1)抹灰前认真做好基层处理,将基层表面清扫干净,脚 手架孔洞填塞堵核严,墙面突出部分要事先剔平净刷,基层墙面在施工前浇水,要浇透均匀,门窗框边要认真塞缝,要采取措施以保证与墙体连接牢固。
(2)钢筋混凝土楼板、天花抹灰前,用浅水润湿,度满扫纯水泥浆一道。
(3)天花抹灰前在四周墙上弹出水平线,以墙上水平线为依据,先抹天花四周,圈边找平。
(4)墙面抹灰前,先找好规矩,即四角规方,横线打平,竖线吊直,弹出准线和墙裙、踢脚板线。
3、施工做法
(1)内墙面抹灰:第一层,水泥砂浆打底;第二层,贝灰罩面。
(2)天花抹灰:第一层,水泥砂浆打底;第二层,水泥 石灰砂浆找平;第三层,贝灰罩面。
三、乳胶漆工程
1、材料
腻子:采用石膏腻子。
乳胶漆:根据设计要求选用。
2、施工方法
(1)施工顺序:
基层处理→第一遍满刮腻子→第二遍满刮腻子→封底漆→第一遍乳胶液→第二乳胶液→清扫
(2)施工要点
① 表面清扫干净后,用合适稠度的腻子将麻面、蜂窝、洞眼及残缺处理好,腻子横向刮抹平整、均匀、光滑线脚边棱 整齐,尽量刮薄,不能漏刮,接头不能留槎。待腻子干透后,把多余腻子铲平,再用粗砂纸打磨平整。
② 第二遍满刮腻子刮抹方向与第一遍相垂直,然后用细砂纸打磨平整光滑。
③ 第二满腻子干透后,采用滚涂的方法施工封底漆。
④ 封底漆施工至少4小时以后滚涂乳胶漆,第一遍乳胶漆应根据产品要求加水稀释,保持每次加水量一致,施工时先横向涂刷,再纵向滚压,滚不到的地方用毛刷补齐。第一遍乳胶漆干燥后,用细砂纸打磨,磨后清扫干净。
⑤ 第二遍乳胶漆比第一遍乳胶漆稠,具体加水量视产品要求,施工方法同第一遍,若遮盖差,则需打磨后再涂一遍。
四、墙地面砖工程
1、材料
打底用水泥及勾缝用白水泥选用品种和标号均符合设计要求并满足规范要求的水泥。
面砖采用规格、颜色符合设计要求的优质产品。
2、基层处理
基体表面的杂质、油污清除干净,光滑的基层凿毛。找平层施工前,基层浇水湿润,否则找平层的砂浆会产生空鼓。当基层的偏差较大时,找平层分层进行,若一次抹得太厚,砂浆易于开裂。涂抹应平整,表面要粗糙,平整可减少粘结砂浆的厚薄不匀,粗糙可增强砂浆的粘结力。
3、施工方法
(1)分层做法
7mm厚1:3水泥砂浆打底划毛;12~15mm厚混合砂浆粘结层;粘贴面砖。
(2)施工要点
① 面砖使用前清洁干净,施工前一天放入清水中浸泡后阴干备用。阴干时间以砖的表面无水膜又有潮湿感为准。
② 根据设计要求,统一弹线分格,排砖,一般要求横缝与窗台相平,竖向阳角窗口都是整砖,并在底子灰上弹上垂直线。横向不是整砖时,要切割整齐,如按整砖分格,可用调整砖缝大小解决。
③ 粘贴时,在面砖背后满铺粘结砂浆,粘贴后,用小铲把轻轻敲击,使之与基层粘结牢固,并用靠尺随时找平找方,贴完一皮后,须将砖上口灰刮平。
④ 在面砖粘贴完成一定流水段后,立即用白水泥浆勾缝。
⑤ 整个工程完工后,可用10%稀盐酸刷洗表面,并随即用水冲洗干净。
五、防水工程
防水工程施工要严格按照国家标准及设计要求进行,确保无渗漏现象,不影响使用功能。具体执行国家标准《屋面工程技术规范》。
六、门窗工程
1、施工准备
(1)熟悉图纸,对门窗结构进行检查和测绘,按设计要求,并经设计、监理人员同意后,方可施工。
(2)所采用的材料,零附件符合有关规定,有出厂合格证。
2、施工工艺
(1)放线:根据主体结构上轴线和标高线,按设计要求支承骨架的安装位置线准确地弹到主体结构上,为骨架安装提供依据。
(2)清理预埋件和安装连接铁件:做完线后,对各预埋件的位置应做逐一的检查,剔除水泥,混凝土灰渣。
3、质量标准和检验方法
(1)保证项目
① 门窗材料质量符合设计要求和有关规定。
② 安装牢固,无脱层、翘曲、折裂、缺楞等缺陷。
③ 骨架安装位置正确,连接牢固。
(2)基本项目
① 门窗表面平整洁净,颜色一致,无污染,无凹凸不平等。
② 骨架横平竖直,无弯曲,无变形。
月劳动力计划表
工 种 | 人 数 | |||||||||
2008年 | 2009年 | |||||||||
| 11月 | 12月 | 1月 | 2月 | 3月 | 4月 | 5月 | 6月 | 7月 | 8月 |
机械工 | 19 | 19 | 19 | 19 | 16 | 12 | 12 | 10 | 10 | 10 |
砼工 | 16 | 16 | 20 | 20 | 20 | 20 | 20 | 16 | 16 | 12 |
模板 架子工 | 22 | 34 | 34 | 34 | 34 | 34 | 28 | 15 | 15 | 15 |
钢筋工 | 10 | 10 | 20 | 20 | 20 | 15 | 15 | 15 | 10 | 5 |
砌石工 | 0 | 10 | 16 | 20 | 30 | 30 | 25 | 10 | 10 | 5 |
普工 | 12 | 12 | 12 | 12 | 12 | 12 | 12 | 86 | 8 | 8 |
砌筑工 | 0 | 0 | 10 | 20 | 20 | 20 | 20 | 20 | 10 | 10 |
机电工 | 8 | 8 | 8 | 8 | 8 | 8 | 8 | 6 | 6 | 6 |
1、组织措施
(1)根据本项目的工程量及要求工期和施工总程序、工艺流程,按现行劳动定额计算拟定劳动力数量,并按工种要求划分作业班组,每个班组设班长一名,全面负责本班组的施工工作。施工专业班班长不脱产,跟班作业。
(2)选择专业性强、技术精湛、具有专项施工经验、长期与公司合作的作业队伍来参加本工程施工。工人进场前,必须严格的挑选,考核合格才能上岗。对进场的施工人员进行有计划的入场教育,包括公司及项目部管理制度的学习、安全知识教育、基本施工规程学习等。
(3)对施工作业技术含量较高的作业班组,在公司直属专业队伍中调配,对施工作业技术含量较低的劳务工种,由项目部负责在劳务市场招聘,并通过考核择优录取。
(4)在项目部成立劳动力筹建小组,并委派专人负责,按已确定的筹建方案组织落实。
(5)加强劳动保护和安全卫生工作,改善劳动条件,健全生活居住、后勤服务保障措施,丰富员工的业余文化生活,保证员工的健康与安全生产。
2、技术措施
(1)对照施工进度网络计划中的工艺组织关系以及施工总进度计划中的分部分项工程开工、完工时间,编排劳动力进出场时间,并与施工进度计划安排前后呼应。
(2)按照劳动力安排计划组织工人按时进场,工人进场后组织进行岗前“三级”教育,使工人树立“安全第一,质量第一”的正确思想,自学遵守有关施工技术、安全作业规程和当地治安条例。
(3)对特殊作业工种、施工作业技术含量较高的工种,由项目技术负责人组织按作业班组对工人进行工前作业技术培训,考核上岗。未通过考核或考核不合格的工人,不得安排上岗。
(4)工人上岗作业前,由项目技术负责人组织,按作业工种和施工部位,进行详细的技术交底,下达作业指导书,努力提高工人的施工作业技术水平。
(5)根据工程进度,经常检查施工现场施工人数是否满足施工进度的要求,如发现劳动力不足,要及时增加劳动力人数来满足施工进度需要。
3、经济、合同措施
(1)建立健全现场劳动力纪律,与作业工人签定劳动合同;与作业班组签定责任承包合同,加强法制教育,使工人自学遵守劳动纪律和合同协议,保证施工顺利进行。
(2)项目部与作业班组签定责任承包合同中,要明确工期要求,并将实际施工进度与经济利益挂钩。
(3)在施工过程中,向作业班组安排施工作业任务时,实行“施工作业任务书”书面指令制,下达的“施工作业任务书”中要明确施工的部位、工程量以及安全、质量、工期要求,并有详细的施工技术交底。
(4)坚持“以人为本”。定期开展劳务考评,对作业工人实行奖优罚劣,奖勤罚懒,充分调动工人的生产积极性和创造性。
一、材料投入计划
根据施工图纸预算和单位工程汇总表,提前提出需用计划,技术组织根据工程实际进度需要,按月提出工程材料,周转材料及零星材料需用计划,送项目物资部门做好现场的验收工作,物资采购必须提前进场,该工程所有和各种材料必须有出厂合格证,材质证明书。进场的各种材料应作二次复检工作,各种材料的材质证明及化验报告经有关部门审查合格后,才能使用在各个分部单元工程上。
二、材料投入的保证措施
1、组织措施
(1)项目经理是现场材料管理全面领导责任者;主管材料人员是现场材料管理直接责任人,班组材料员在主管材料员指导下,协助班组长组织和监督本班组合理领、用、退料。
(2)合理地、科学地组织材料的采购、加工、储备、运输、建立严密的计划、调度体系,加强材料的周转,减少材料的占用量,按质、按量如期地满足建设需要,确保施工正常进行。
(3)正确按定额计量使用材料、加强运输、仓库、保管工作,加强材料限额管理发放工作,健全现场材料管理制度,避免材料损失变质。
2、经济措施
(1)掌握材料质量、价格、供货能力的信息,选择好的供货厂家,从而确保工程质量,降低工程造价。
(2)材料订货时,要求厂家提供质量保证文件。采购质量应满足有关标准和设计要求。交货期应满足施工进度计划要求。
(3)对大宗材料、设备采购,实行招标采购。
(4)严格执行材料限额领料制度,控制材料消耗,同时作好余料的回收和利用。
(5)钢管脚手架和模板等周转材料进出场都要清点,正确核实并减少赔偿数量。使用后回收、整理、堆放并及时退场,节约租费。
(6)根据施工生产的需要,合理安排材料储备量,减少资金的占用,提高资金周转利用率。
3、合同措施
(1)材料产品质量的优劣是保证工程质量的基础。在订货时应依据质量标准签订合同,必要时应先鉴定样品,经鉴定合格的样品应封存,作为以后材料验收的依据。
(2)对业主供应的材料,首先业主向我方提供材料供应一览表,作为合同附件,我方接到业主到货通知后,与业主共同对材料进行清点并检查材料的产品合格证。必须保证材料符合质量标准和设计要求方可使用。
4、技术措施
(1)材料质量的控制,重点加强材料的验收,严把材料质量关。
1)对于用于本工程的材料,进场时必须具备正式的出厂合格证,材质化验单、如不具备或对检验证明有影响时,应补做检验。
2)本工程中所有的各种构件,必须具备厂家批号和出厂合格证,由于运输、安装等原因出现的构件质量问题,应分析研究,经处理鉴定后方能使用。
3)凡标志不清或认为质量有问题的材料,对质量保证料有怀疑或与合同规定不符的一般材料,需进行追踪检验,以控制昨保证其质量的材料等,均派专人负责进行抽检。
4)材料质量抽样和检验的方法,应符合《建筑材料质量标准与管理规程》,要能反映该批材料的质量性能,对于重要构件或非匀质的材料,还应酌情增加采样的数量。
5)在现场配制的材料,如砼、砂浆等配合比,应先提出试配要求,经试验合格后才能使用。
(2)材料的使用认证,以防错用或使用不合格的材料。
1)对材料性能、质量标准、使用范围和对施工的要求必须充分了解,以便慎重选择和使用材料。
2)凡是用于重要结构、部位的材料,使用时由专人仔细核对、认证其材料的品种、规格、型号、性能有无错误,是否适合工程特点和满足设计要求等。
3)新材料应用必须通过试验鉴定。代用材料必须通过计算和充分的论证,并要符合结构要求。
4)材料认证不合格时,不许用于工程中。有些不合格材料,如过期、受潮的水泥是否降级使用,亦需结合工程的特点予以论证,但决不允许用于重要的工程或部位。
5)建立原材料、半成品和各种加工预制品的检验保管制度。
一、机械设备投入计划
施工机械设备和检测设备是施工现场工、料、机三大投入的重要组成部分,施工机械设备和检测设备的合理与否,直接影响着进度计划的实施,劳动力的投入及成本的降低,特别是大型机械的配备更与工程的施工进度密切相关。为了确保本工程的进度计划得以实施,并尽可能经缩短工期,减少劳动力投入和降低成本,根据本工程的实际特点和建设方的工期要求,本公司对施工机械设备和检测设备投入如下表:
拟投入本合同的主要施工机械设备表
设备 名称 | 型号及 规格 | 数量 | 制造 厂家 | 购置 年份 | 已使用 台时数 | 检修 情况 | 现在 何处 | 进场 时间 | 备注 |
反铲挖掘机 | KATO-820 | 2 | 日本 | 2000 | 340 | 良好 | 中山 | 2008.11 |
|
推土机 | T2-60 | 2 | 洛阳 | 1999 | 600 | 良好 | 中山 | 2008.11 |
|
自卸汽车 | 东风EQ341 5吨 | 8 | 中国二汽 | 2001 | 410 | 良好 | 中山 | 2008.11 |
|
载重汽车 | FAW8吨 | 4 | 中国一汽 | 1998 | 800 | 良好 | 中山 | 2008.11 |
|
平板拖车 | FAW30吨 | 1 | 中国一汽 | 1998 | 300 | 良好 | 中山 | 施工要求 |
|
洒水车 | 6m3 | 1 | 上海 | 1998 | 420 | 良好 | 中山 | 施工要求 |
|
清水泵 | 7.5KW | 5 | 佛山 | 2000 | 280 | 良好 | 中山 | 2008.11 |
|
泥泵 | 2-4KW | 4 | 佛山 | 1999 | 280 | 良好 | 中山 | 2008.11 |
|
砂浆拌和机 | JZC0.75m3 | 2 | 韶关 | 2001 | 450 | 良好 | 中山 | 施工要求 |
|
砼拌和机 | JZC0.5m3 | 2 | 韶关 | 2000 | 632 | 良好 | 中山 | 2008.11 |
|
输送泵 | 夹江 | 1 | 广东 | 2002 | 326 | 良好 | 中山 | 2008.10 |
|
装载机 | 厦工ZL40 2m3 | 1 | 厦门 | 1998 | 280 | 良好 | 中山 | 施工要求 |
|
插入式振捣器 | ZP-50 | 10 | 广东 | 2003 | 250 | 良好 | 中山 | 2008.11 |
|
平板振捣器 | ZB220 | 4 | 广东 | 2002 | 250 | 良好 | 中山 | 2008.11 |
|
钢筋切断机 | GQ40-1 | 1 | 南海 | 2000 | 358 | 良好 | 中山 | 2008.11 |
|
钢筋弯曲机 | GW40-1/2 | 1 | 南海 | 2000 | 294 | 良好 | 中山 | 进度要求 |
|
电焊机 | BX3-300 | 6 | 广东 | 1999 | 470 | 良好 | 中山 | 2008.11 |
|
木工锯刨床 |
| 1 | 广东 | 2001 | 270 | 良好 | 中山 | 2008.11 |
|
木工锯床 |
| 1 | 广东 | 2001 | 280 | 良好 | 中山 | 2008.11 |
|
液压小柴油翻斗车 | FCY15 | 12 | 江苏 | 2001 | 180 | 良好 | 中山 | 进度要求 |
|
人力手推翻斗车 |
| 15 | 广东 | 2000 | 250 | 良好 | 中山 | 施工要求 |
|
柴油发电机组 | 120、50KW | 2 | 上海 | 1998 | 720 | 良好 | 中山 | 2008.11 |
|
振动碾 | YZ10P | 1 | 洛阳 | 1998 | 980 | 良好 | 中山 | 进度要求 |
|
手扶振动夯机 | HC400 | 2 | 湖南 | 1999 | 620 | 良好 | 中山 | 进度要求 |
|
平地机 | BPDJ16 | 1 | 广东 | 2000 | 200 | 良好 | 中山 | 进度要求 |
|
双钢轮压路机 | BW202 AD-2 | 1 | 上海 | 1999 | 880 | 良好 | 中山 | 进度要求 |
|
柴油打桩机 | 锤重3.5T | 2 | 上海 | 1998 | 458 | 良好 | 中山 | 2008.11 |
|
粉喷桩机 | PH-5B | 1 | 上海 | 1998 | 420 | 良好 | 中山 | 2008.11 |
|
钻孔桩机 | BRM-08 | 4 | 广东 | 1997 | 518 | 良好 | 中山 | 2008.11 |
|
简易打桩机 |
| 2 | 上海 | 1998 | 760 | 良好 | 中山 | 2008.11 |
|
全站仪 | GTS-4 | 1 | 日本 | 2002 | 410 | 良好 | 中山 | 2008.11 |
|
红外线测距仪 | DCH2 | 1 | 国产 | 2002 | 280 | 良好 | 中山 | 2008.11 |
|
经纬仪 | J2 | 1 | 南京 | 2003 | 348 | 良好 | 中山 | 2008.11 |
|
水准仪 | S2 | 1 | 南京 | 2003 | 452 | 良好 | 中山 | 2008.11 |
|
环刀法容量试验仪 | AY | 1组 |
| 2004 | 180 | 良好 | 中山 | 进度要求 |
|
砼抗折试模 | 15*15*45 | 3组 | 广州 | 2003 | 280 | 良好 | 中山 | 进度要求 |
|
砼抗压试模 | 15*15*15 | 5组 | 广州 | 2003 | 418 | 良好 | 中山 | 2008.11 |
|
投标单位名称(盖单位公章):某公司
投标单位法定代表人(或委托代理人)签字/印鉴:
日 期: 2008 年 10 月 13 日
二、机械设备保证措施
1、组织措施
1)机械设备管理部门统一管理机械设备。项目经理编制机械设备使用计划报企业审批。项目经理对进入现场的机械设备做好使用中的维护和管理。
2)根据施工进度计划和施工方案合理组织机械进场,要按设备名称、型号、规格、数量的清单逐一检查验收,并按有关设备的技术要求和质量标准进行安装并试运行,经质安部及有关部门检验合格后方可投入使用,并将验收鉴定结论、测试记录等全部清点,整理归档。
3)在项目部成立机电设备部,设立组成一名,专职负责日常施工中机械设备的调配、使用、维修和保养。
2、经济措施
1)根据工程特点和施工方案,采用先进的机械设备,合理选择机械型号、规格、性能,充分发挥机械的效能,节约机械费用。
2)合理安排机械施工,提高机械利用率,减少机械费用成本。
3)严格执行机械维修保养制度,加强平时的机械维修保养,保证机械完好效率并保持良好状态在施工中正常运转,为提高机械化作业、减轻人工劳动强度、加快施工进度、降低施工成本发挥作用。
3、机械设备的合理使用
1)人机固定,实行机械使用、保养责任制,将机械设备的使用与个人经济利益挂钩。
2)实行操作证制度,操作人员必须经培训和统一考试,确认合格。
3)操作人员必须搞好机械设备的例行保养。
4)遵守走合理使用规定和实行单机或机组核算制度。
5)建立设备档案制度和合理组织机械设备施工。
6)搞好机械设备的综合利用和机械设备安全作业。
4、机械设备定期检查保养检修。
为了保证机械设备的正常运转和完好率,保证本工程的顺利进行,保证安全生产,使机械设备处于绝对安全使用的状态,根据各机型的使用情况和设备的性能情况,按照上级和公司的有关规定,制定本项目工程的机械设备定期保养检查检修计划。
1)检查周期:按机械设备的型式及性能制定每日、周、月、半年及工程结束后等几种周期。
2)检查组人员组成:每日例行检查由操作人员(司机)自行检查,并记录在保养卡上。每周检查,由机修工,电工班长合同各机机长或司机进行检查,并作好检查记录。
5、建立各项规章制度
实行定机、定人、定岗位责任的“三定”制度。操作人员认真执行各项规章制度,严格遵守操作规程,做好“五好”标准。
质量目标:保证全部工程质量须符合设计要求及水利部门颁布的《水利水电工程施工质量检验与评定规程《SL176-2007》中优良标准。
承诺:若工程验收时达不到上述要求的,工程结算时我单位自愿接受按中标价累进扣罚质量违约金:中标价的300万元以下部分扣罚5%,中标价超出300万元、不足500万元的部分扣罚3%, 中标价超出500万元的部分扣罚2%。在施工过程中我方严格按照工序进行施工,在检查中若发现某工序我方未按设计和规范要求施工,即使验收前抽检合格,我单位自愿接受扣除该施工工序的全部造价。
按照国际标准化组织颁布的1SO9002质量标准,建立起一套行之有效的规范化的质量保证体系。该体系囊括了从工程项目的投标,签定合同到竣工交付使用,直到交工后保修与回访的全过程,充分体现了ISO9002中19个要素的要求。该体系以质量手册为核心和指导,以程序文件为日常工作准则,以作业指导书为操作的具体指导,所有质量活动都有质量计划并具体反映到质量记录中,使得施工过程标准化。规范化、有章可循。责任分明。
一、质量标准的要素及其在保证体系中的具体反映
下文是ISO9002中19个要素。各要素4.n具体表现见相应的程序文件COPn.*(COP为程序文件的代号,n为要素的编号)。
⒋1管理评审
质量体系应定期评审,以保证其符合ISO9002标准及实现企业的质量方针。质量评审采用现场评审或会议形式。详见COP1.1《管理评审程序》。
4.2质量体系
建立并维持行之有效的规范化的质量体系,以保证工程质量稳定、连续并不断提高。详见COP2.1《质量计划编制与实施控制程序》。
4.3合同评审
通过对招标文件和合同草案的评审,确保合同条款明确完整和对其正确理解,正式合同签订前及执行期间都应对合同进行评审。详见COP3.1《合同评审程序》及COP3.2《工程招标管理程序》。
4.5文件控制
通过对公司所有质量体系文件和工程技术文件从产生到回收的全过程进行控制,使其处于受控状态并能及时修改或换版。详见COP5.1《质量体系文件控制程序》。COP5.2《工程技术文件控制程序》、COP5.3《设计变更控制程序》。
4.6采购
通过对供应商和分包商的选择及对产品的质量关的严格控制,保证所采购的材料符合要求。建立合格供应商和合格分包商的名单,并定期对其进行评审。采购产品时必须有完整的计划。合同和相应的规范、标准等,并严格进行验证。详见COP6.1《供应商的评价程序》。COP6.2《工程材料采购控制程序》和COP6.3《工程分包管理程序》。
4.7业主提供的物资
通过对业主提供的物资进行有效的控制,使其能满足施工的需要。必须在合同中规定双方的责任,将业主提供的物资列入采购计划,按规定对其进行验证、检验,贮存和保管,出现问题加以记录。详见COP7.1《业主供料控制程序》。
4.8产品标识与可追溯性
通过对原材料、施工过程及竣工工程的标识,使产品具有可识别性和可追溯性。对原材料应在记录上和实物上进行标识,对重要材料还应记录、跟踪其使用部位;施工过程中除应在记录和实物上标识外,特殊工序还应记录、跟踪其使用部位。详见COP8.1《工程材料及物项标识程序》。
4.9工序控制
通过对施工工序各个环节的控制,保证其质量满足要求。详见COP9.1《工程项目开工管理程序》、COP9.2《施工过程控制程序》、COP9.3《工程分包管理程序》、COP9.4《技术交底管理程序》、COP9.5《生产设备管理程序》和COP9.6《安全生产控制程序》、COP9.7《工程施工进度计划管理程序》。
4.10检验与试验
通过按规定对产品和过程进行检验和试验,以确保质量符合要求。详见COP10.1《工程材料检验和试验程序》、COP10.2《施工过程的检验与程序》、COP10.3《工程竣工内部验收程序》和COP10.4《竣工工程交付程序》。
4.11检验、测量和试验设备
通过按规定对检验、测量和试验设备的购置、统一管理、使用、保养和定期检定、校准等工作进行严格控制,使之处于完好状态并且其精度能满足使用要求。详见COP11.1《计量器具控制程序》和COP11.2《试验设备控制程序》。
4.12检验和试验状态
通过对检验和试验状态的标识和控制,确保只有通过了规定的检验和试验且合格的产品才能使用和安装。标识的方式有记录和实物标识。详见COP12.1《检验和试验状态控制程序》。
4.13不合格品的控制
通过对原材料、半成品及工序中不合格品的及时标识、隔离、评审并采取相应的处置措施,使其不得被使用、安装或隐蔽。详见COPl3.1《不合格品的控制程序》。
4.14纠正和预防措施
通过对各工作中比较严重的不合格或反复发生的不合格情况进行调查和分析,采取相应的纠正措施;并定期总结,分析其发生趋势和可能性,采取相应的预防措施,把不合格情况减至最少。详见COP14.1《纠正和预防措施控制程序》和COP14.2《业主投诉的处理程序》。
4.15搬运、贮存、防护和交付
通过对施工材料的搬运、存贮,保管和交付的严格控制,防止其损坏或变质。详见COP15.1《施工材料搬运和贮存、保管程序》、COP15.2《施工过程成品半成品防护控制程序》。
4.16质量记录的控制
通过对质量记录的标识、填写、收集、归档、存贮、保管按规定进行严格控制,以证实产品达到规定的要求及质量体系正在有效运行。详见COP16.1《质量记录管理程序》。
4.17内部质量审核
通过定其进行内部质量审核,验证质量活动和有关结果是否符合计划的安排,并确定质量体系的有效性。详见COP17.1《内部质量审核程序》COPl7.2《工序质量审核程序》。
4.18培训
通过对员工进行上岗前培训、特殊关键作业培训或技术管理人员培训等,使其素质满足施工要求。详见COP18.1《培训控制程序》。
4.19服务
通过对己交付使用工程的保修和回访工作的严格管理,保证售后服务的质量,提高我公司的社会信誉。详见COP19.1《技术服务程序》。
4.20统计技术
正确运用统计技术,为质量管理和控制工作服务。详见COP20.1《统计技术应用程序》。
二、主要分部分项工程操作方法
各分部分项工程的具体操作方法。操作要点、注意事项、质量要求等详见我公司的作业指导书。严格按作业指导书进行操作和检查,才能保证各分部分项工程的施工质量。下面是主要分部分项工程及其对应的作业指导书:
1、模板制安:SE-F01《散装模板加工指导书》、SE-F02《大模板加工指导书》、SE-F04《墙体模板安装指导书》。
2、砌筑施工:SE-B01《砂浆拌合、运输作业指导书》。
3、混凝土施工:SE-C03《混凝土浇筑作业指导书》。
4、其它:材料验收、垂直运输机械管理、检验与测量仪器检定等见我公司相应的作业指导书。
三、质量保证体系
1、在该工程施工中,按照ISO9002标准的全部要素组织施工,公司建立以总工程师为首的质量监督检查组织机构,横向包括各职能机构,纵向包括工程处、项目直至施工班组,形成质量管理网络,项目建立以项目经理为总负责,项目质量工程师中间控制,项目质检员基层检查的管理系统,对工程质量进行全过程、全方位、全员的控制。
2、建立健全和严格执行各项制度
(1)推行施工现场工程组织管理总负责人技术管理工作责任制,用严谨的科学态度和认真的工作作风严格要求自己。正确贯彻执行政府的各项技术政策,科学地组织各项技术工作,建立正常的工程技术秩序,把技术管理工作的重点集中放到提高工程质量,缩短建设工期和提高经济效益的具体技术工作业务上。
(2)建立健全各级技术责任制,正确划分各级技术管理工作的权限,使每位工程技术人员各有专职、各司其事,有职,有权、有责。以充分发挥每一位工程技术人员的工作积极性和创造性,为本工程建设发挥应有的骨干作用。
(3)建立施工组织设计的施工方案审查制度,工程开工前,将我公司技术主管部门批准的单位工程施工组织设计报送监理工程师审核。对于重大或关键部位的施工,以及新技术新材料的使用,我施工单位提前一周提出具体的施工方案、施工技术保证措施,以及新技术新材料的试验,鉴定证明材料呈报监理主管工程师审批。
(4)建立严格的奖罚制度:在施工前和施工过程中项目经理组织有关人员,根据公司有关规定,制定符合本工程施工的详细的规章制度和奖罚措施,尤其是保证工程质量的奖罚措施。对施工质量好的作业人员进行重奖,对违章施工造成质量事故的人员进行重罚,不允许出现不合格品。
(5)建立健全技术复核制度和技术交底制度,在认真组织进行施工图会审和技术交底的基础上,进一步强化对关键部位和影响工程全局的技术工作的复核。工程施工过程,除按质量标准规定的复查、检查内容进行严格的复查、检查外,在重点工序施工前,必须对关键的检查项目进行严格的复核。如建筑物轴线坐标和高程;基础的土质、位置、标高、尺寸;墙体混凝土模板的尺寸、位置、标高,以及预埋件(管)和预留孔的位置;混凝土的配合比和钢材、水泥的试验成果资料:特殊项目大样图的形状、尺寸;以及其它需要复核的项目。杜绝重大差错事故的发生。
(6)坚持“三检”制度。即每道工序完后,首先由作业班组提出自检,再由施工员项目经理组织有关施工人员、质检员、技术员进行互检和交接检。隐蔽工程在做好“三检制”的基础上,请监理工程师审核并签证认可。
(7)坚持“三级”检查制度。公司每月对项目工程质量全面检查一次,工程处对项目的工程质量检查一次。检查中严格执行有关规范和标准,对在检查中发现的不合格项,提出不合格报告,限期纠正,并进行跟踪验证。质量检查程序见图。
(8)实施混凝土浇筑令签发制度。混凝土浇灌前,混凝土施工员必须向项目经理提出签发“混凝土浇筑令”的书面申请,经项目经理审查确认已具备浇灌条件后,签发“混凝土浇灌令”,否则不得开机进行混凝土工程施工,申请签发“混凝土浇灌令”时,必须递交以下资料:
A、“混凝土浇灌令”申请报告
B、由工程监理和质量监督等单位现场代表共同签证的混凝土浇筑部位的各隐蔽项目的隐蔽工程验收记录。
C、由各专业技术主管共同签证的“专业工程完工会签表”。
D、混凝土配合比试验报告,钢材、水泥的骨料等质量检测报告及合格证。
一、质量管理流程
施工过程中严格遵守质量管理流程,具体见下页质量管理流程图。
二、确保施工质量的技术措施
1、严格执行ISO9002质量标准,按程序文件进行质量管理,按作业指导书进行操作,是质量水平保持稳定、连续并不断上升的根本保证。
2、加强技术管理,认真贯彻执行国家规定。操作规程和各项管理制度,明确岗位责任制,认真做好技术交底工作,除进行书面交底外,还应组织各班组召开技术交底会,对施工难点和重点进行讲解。
3、各种不同材料必须合理分类、堆放整齐。对于钢筋须挂牌标示,避免锈蚀和污染。加强原材料检验工作,严格执行各项材料的检验制度,水泥、钢材及搭设架子的钢管、钢丝绳都必须有出厂合格证和试验资料。混凝土严格按配合比施工,认真做到开盘交底和拆模申请制度。
4、各工序技术措施
(1)测量放线
设立专门的测量放线小组,测量仪器及工具事先检查、定期校正。测量控制的重点是保证建筑物垂直的控制。
(2)模板工程施工
鉴于模板工程是影响工程质量好坏的重要环节,采用“一次成优”的质量控制法,以便在结构工程施工时为装饰工程提供优越的条件,其具体的施工流程说明如下:
A、工程技术人员在工序开工前将各工序部位的模板安装图详细绘出,工人按图施工,质检员严格按图检查验收。
B、认真做好工序交接检,当钢筋工程完工后应组织钢筋、木工班组长和技术员进行现场交接检,凡钢筋位置不符合要求的必须整改完后方可封模。
质量管理流程图
![]()

![]()
![]()
![]()
![]()
![]()
![]()
![]()
![]()
![]()
![]()
![]()
![]()
![]()
![]()
![]()

![]()
![]()
![]()

![]()


![]()
![]()
![]()
![]()
![]()
![]()
![]()
![]()
![]()
![]()
C、提高模板施工质量标准,垂直平整度均要在规定范围之内,尤其要重视外墙垂直度,这是影响工程质量的一个重要因素。
D、模板拆模后要进行清理修正,涂刷隔离剂后才能继续使用。
E、为保证板缝能满足优良标准要求,在模板安装完毕后,应用透明胶纸粘贴板缝。
(3)混凝土工程施工
A、严格执行材料进场验收制度,特别是对水泥要有计划地提前做好化验工作,杜绝不经化验而先使用的现象。
B、预拌混凝土到现场后要有专职质检员进行检验。
C、作业面设技术人员和专职质检员跟班作业,对振捣密实度、下料方法、高低差留置、平整度。墙钢筋进行监督检查,对不符合施工工艺标准的将行使质量否决权,有权下令停工修复,直至符合工艺标准才能继续施工。
(4)土方施工
A、对于挖方区域,机械开挖深度应控制在设计基础底面标高以上200-300mm,以防机械超挖或挠动原土,余土改由人工清除。
B、对于填方区域,必须分段采用“水平分层法”施工,松铺土层厚度小于300,填筑一层,整平一层,夯实一层,确保填土区密实度达到规范要求。
C、填筑碾压前,要经常测定土料含水量,根据实际情况分别采用凉晒法或洒水法使其接近最佳含水量确保碾压达到最佳效果。
D、各种构筑物背后的填土要特别注意,尽量机械夯实,局部以人工补夯。
三、保证质量的管理措施
1、岗位责任制:按质量目标分解,将质量责任层层挂牌,层层落实。由质检员行使质量否决权和奖罚权。
2、奖罚制;拉大班组优良与合格的上资差距,质量评定按各部位分开进行,实行优质重奖,劣质重罚的方法,最大限度地调动工人的积极性。
3、材料进场检查制:要特别注意杜绝无准用证书水泥的使用。商品混凝土进场要核实混凝土强度等级和检验坍落度;半成品先选定样品,再接样品验收大宗进料。
4、三检制:主要分项工程质量严格检查,坚持“班组自检、质检员复检、监理抽检”三检制。
5、隐检制:根据施工进度安排预检、隐检计划,进行预检、隐检程序,办理预检、隐检手续,并及时履行签字归档。
6、工程例会制:
(1)外联工程例会:汇报工程进展情况;听取业主,监理、质检站及设计院等各方面的指导和意见,提出施工或图纸上的问题、方案措施;协调与业主外包专业工程施工单位的矛盾、协作关系。
(2)内部工程例会:总结工程施工的进度、质量、安全情况,传达外联工程会议精神,明确各专业的施工顺序和工序穿叉的交接关系及质量责任,加强各专业工种之间的协调、配合及工序交接管理,保证施上顺利进行。定于每星期五下午召开工程例会。
7、成品保护制度:
施工过程中,后插入的工序,应采取确实行措施,如覆盖、防护等进行深护,免遭污染或破坏。
1、土方工程:
(1)回填土应按规定每层取样测量夯实后的干容重,在符合设计或规范要求后才能回填卜一层。
(2)严格控制每层回填厚度,禁止汽车直接卸土入槽。
(3)严格选用回填土料质量,控制含水量、夯实遍数等是防止回填土下沉的重要环节。
(4)机械夯填的边角位置及墙与地坪,散水的交接处,应仔细夯实,并应使用细粒土料回填。
(5)雨大不应进行填方的施工。如必须施工时,应分段尽快完成,且宜采用碎石类土和砂土、石屑等填料。现场应有防雨和排水排施,防止地面水流入坑(槽)内。
2、模板工程:
(1)模板安装前,先检查模板的质量,不符质量标准的不得使用。
(2)墙模板:
通病现象:
炸模、断面尺寸鼓出、漏浆、混凝土不密实,或蜂窝麻面、偏斜、柱身扭曲。
防治措施:
A、根据规定的柱箍间距要求钉牢固。
B、四周斜撑要牢固。
3、混凝土工程:
(1)混凝土浇筑:
A、蜂窝
产生原因:振捣不实或漏振;模板缝隙过大导致水泥浆流失,钢筋较密或石子相应过大。
预防措施:按规定使用和移动振动器。中途停歇后再浇捣时,新旧接缝范围要小心振捣。模板安装前应清理模板表面及模板拼缝处的粘浆,才能使接缝严密。若接缝宽度超过2.5mm应予填封,梁筋过密时应选择相应的石子粒径。
B、露筋
产生原因:主筋保护层垫块不足,导致钢筋紧贴模板;振捣不实。
预防措施:钢筋垫块厚度要符合设计规定的保护层厚度;垫块放置间距适当,钢筋直径较小时垫块间距宜密些,使钢筋下重挠度减少;使用振动器必须待混凝土中气泡完全排除后才移动。
C、麻面
产生原因:模板表面不光滑;模板湿润不够;漏涂隔离剂。
预防措施:模板应平整光滑,安装前要把粘浆清除干净,并满涂隔离剂,浇捣前对模板要浇水湿润。
D、孔洞
产生原因:在钢筋较密的部位,混凝土被卡住或漏振。
预防措施:对钢筋较密的部位(如梁柱接头)应分次下料,缩小分层振捣的厚度;按照规程使用振动器。
E、缝隙及夹渣
产生原因:施工缝没有按规定进行清理和浇浆。
预防措施:浇注前对施工缝等部位重新检查,清理杂物、泥沙、木屑。
F、墙柱底部缺陷(烂脚)
产生原因:模板下口缝隙不严密,导致漏水泥浆;或浇筑前没有先浇灌足够50mm厚以上水泥砂浆。
预防措施:模板缝隙宽度超过2.5mm应予以填塞严密,特别防止侧板吊脚;浇注混凝土前先浇足50~100mm厚的水泥砂浆。
G、混凝土表面不规则裂缝
产生原因:一般是淋水保养不及时,湿润不足,水分蒸发过快或厚大构件温差收缩,没有执行有关规定。
预防措施:混凝土终凝后立即进行淋水保养;高温或干燥天气要加麻袋草袋等覆盖,保持构件有较久的湿润时间。厚大构件参照大体积混凝土施工的有关规定。
H、缺棱掉角
产生原因:投料不准确,搅拌不均匀,出现局部强度低;或拆模板过早,拆模板方法不当。
预防措施:指定专人监控投料,投料计量准确;搅拌时间要足够;拆模应在混凝土强度能保证其表面及棱角不应在拆除模板而受损坏时方能拆除。拆除时对构件棱角应予以保护。
I、计量不准确。砂、石、水泥(包括散装水泥和水)未经计量或计量不准:外加剂没有按程序操作,而导致混凝土质量下降。
J、混凝土缺陷的处理
①、麻面:先用清水对表面冲刷干净后用1:2或1:2.5水泥砂浆抹平。
②、蜂窝、露筋:先凿除孔洞周围疏松软弱的混凝土,然后用压力水或钢丝刷洗刷干净,对小的蜂窝孔洞用1:2或1:2.5水泥砂浆抹平压实,对大的蜂窝露筋按孔洞处理。
③、孔洞:凿去疏松软弱的混凝土,用压力水或钢丝刷洗刷干净,支模后,用高标号混凝土捣实,面涂纯水环氧水泥浆进行封闭处理;裂缝较严重时,可用埋管压力灌浆。
(2)预拌混凝土生产及运输:
A、遇有雨水影响砂、石含水率,应及时通知试验员进行测检,并调整配合比。
B、经常检查掺合料、外加剂的自动计量系统的工作状态是否正常。
C、混凝土搅拌车卸料前应检查拌简内拌合物是否搅拌均匀。
D、混凝土搅拌车在现场交货地点抽检的坍落度超过允许偏差值时应及时处理。
E、混凝土搅拌车卸车前已超过配比中规定的缓凝时间,应及时处理。
F、搅拌车的转速应按搅拌站对装料。搅拌、卸料等不同要求或搅拌车产品说明书要求进行动转,以保证产品质量。
G、搅拌车开工前要用水浇湿拌筒,并在装料前排清积水。
1、质量管理点设置包括模板的安装质量(包括刚度、强度和稳定性);模板的平整度、垂直度、截面尺寸、标高、接缝严密情况,以及预埋件、预留孔洞的位置、轴线位移。
2、预控措施:施工前检查上道工序质量,钢筋位置及放线位置是否正确;及时更换有缺陷的模板,并予以修复,加强工序自检;加强模板出场管理及现场保养;连结件扣紧不松动;支撑点牢固可靠,损坏变形的钢龙骨、钢支柱不予使用。
3、做好管理点的质量记录。
1、质量管理点的设置:包括水泥的品种、标号和砂、石、外加剂的质量;搅拌时应重点控制配合比、原材料计量、坍落度;浇筑时应重点控制浇筑高度和振捣棒插入间距、深度、顺序。
2、预控措施:检查原材料出厂合格证和试验报告,必须保证各项材料指标的稳定性;搅拌时应严格控制配合比、原材料计量和坍落度;浇筑前应检查钢筋位置和保护层厚度,注意固定垫块,垫块位置必须合理,分布均匀;下料一次不得过多,自由倾落高度一般不得超过2 m,应分层捣固,掌握每点的振捣时间;预留洞处应在两侧同时下料,采用正确的振捣方法,严防漏振;在模板上沿施工缝通条开口,以便清理杂物和冲洗;混凝土浇筑后12 h内覆盖浇水养护,在混凝土强度达到1.2 MPa后方可在已浇筑的结构上走动;大体积混凝土浇筑时应根据工程特点采用分段分层浇筑方法,控制浇筑厚度,超过2 m时应加串筒、溜管等,结合层浇筑要细致振捣,特殊情况时预留后浇施工缝;大体积混凝土冬季保温应经热工计算并覆盖养护,高温季节要浇水降温,经热工计算降低入模温度并选用水化热低的水泥或掺加缓凝剂、减水剂,选择适当的砂石级配,尽量减少水泥用量,以降低水化热。
3、做好管理点的质量记录。
雨季施工一般要求
做好雨季期施工的各项准备工作,准备好雨季期施工所需要的材料。
做好雨季期施工的人员培训与交底。 分别对管理人员、操作人员进行雨季期施工技术交底,使每一个人都清楚雨季期施工的技术要求及做法,避免盲目施工。
密切注意天气变化,防止寒潮袭击,因此,要专人负责收听天气预报。
一、工期目标:
计划开工日期 | 2008年11月1日 |
计划竣工日期 | 要求2009年4月15日前必须完成所有水下工程验收;要求2009年6月30日前完成所有主体工程;要求2009年10月底全部工程完工。 |
总工期 | 10个月 |
二、违约责任承诺:
保证 10个月内竣工交付使用,若我单位未能在合同约定竣工时间前全部完工的,我方自愿接受按每延误一天扣 2000 元(不得低于2000元)的扣罚。并将采取有效措施加快工程进度,且赶工费用由我方承担。
一、施工进度计划的内容
1、用施工进度网络计划图明确表示各施工段各项目间的组织工艺关系、施工顺序;用关键线路控制总工期。
2、用施工进度横道图明确表示各施工项目间的搭接关系、开工完工时间。
二、施工阶段的划分
根据施工招标文件中要求的承包施工内容,为了统筹安排施工进度,合理协调各工种作业,按期完成施工任务,将本工程分成五个施工阶段。施工阶段及各阶段施工内容划分见下表:
施工项目 | 主要施工内容 | |
第一施工阶段 | 临时工程 | 临时房屋、道路、水、电,机械设备安装,围堰施工、基坑排水、撤除旧闸 |
第二施工阶段 | 基础工程 | 土方开挖、桩基础施工。 |
第三施工阶段 | 主体工程 | 主体结构层模板安装、钢筋、混凝土, 金属结构、埋件、管线安装、 |
第四施工阶段 | 砌体装饰工程 | 砌体、室内外抹灰、外墙面镶贴、板块镶贴、防水施工、隔热块铺贴。 |
附属工程水电安装及环境整治工程 | 室内给排水管安装、消防设施安装、室外排水、化粪池、场内道路及环境绿化施工。 | |
第五施工阶段 | 收尾工程 | 竣工预检、现场清理复原、机具退场、 交工验收。 |
三、施工进度总计划图(见附图)
在施工中以总工期为目标,以阶段控制计划为保证,采取动态管理,使施工组织科学化,合理化,确保阶段计划按期或提前完成。
推行全面计划管理,认真编制切实可行的工程总进度计划,网络计划和相应的月、旬、周施工作业计划。对每个作业班组下达生产计划任务书,使施工生产上下协调,长、短期计划衔接。利用微机控制全面进度计划,坚持日平衡、周调度,确保月计划的实施,从而保证该工程总工期的实现。
保证充足的劳动力投入,我公司施工人员充足,对于本工程的施工,我公司均由本公司的施工人员进场施工,劳动力由总公司统一调配,保证满足施工的需要。
在确保工程质量和安全的基础上,对工程施工进度实行严格控制,以总进度网络计划为依据,按不同施工阶段、不同专业工种分解为不同的进度分目标,以各项技术、管理措施为保证手段,进行施工全过程的动态控制。
一、重点抓好项目
1、保证按照施工进度计划作业,对照网络计划,合理安排施工工序。
2、全力保证关键线路工序的资金、人力、物力的投入,保证总工期不能拖延。
3、加强施工前的施工准备和技术准备工作,建立健全现场施工的计划管理系统。实行统筹解决问题,全盘布置下期工作目标,会议调整各工序之间的矛盾,确保各工序同步施工,按计划实施。
4、各种建筑材料预约订购,提前备料,建立阶段性材料使用计划和月使用计划,旬使用计划。以旬保月、以月保季,保证各种材料的施工需用量,按计划充足供应。
5、各种机械设备经常检查保养,筹备好备用机械设备,确保施工作业正常进行。
6、强化质量意识,项目质检人员经常巡视作业现场,定期、不定期检查工序质量,把好工程质量关,杜绝质量隐患和返工现象,防止因返工延误工期。
二、进度控制的方法
1、按施工阶段分解,突出控制节点。
以关键线路为主要线索,以网络计划中心起止里程碑为控制点,在不同施工阶段确定重点控制对象,制定施工细则。以确保控制节点的顺利完成。
2、按施工项目分解,明确分部目标。
以总进度网络计划为依据,明确各个单位的分部目标,通过合同责任书落实相关责任,以分头实现各自的目标来确保总目标的实现。
3、按专业工种分解,确定交接时间。
在不同专业和不同工种的任务之间,要进行综合平衡,并强调相互间的衔接配合,确定相互交接的日期,强化工期的严肃性,保证工程进度不在本工序造成延误。通过对各道工序完成的质量与时间的控制达到保证各分部工程进度的实现。
4、按总进度网络计划的时间要求,将施工总进度计划分解为年度、季度、月度、旬期和周等不同时间控制单位的进度网络计划,及时与总计划目标对比,发现偏差,分析原因,制定措施,及时调整。

工程施工进度控制系统
三、强化进度计划管理
1、工程开工前,必须严格根据施工招标书的工期要求,提出工程总进度计划,并在对其是否科学、合理,能否满足合同规定工期要求等问题,进行认真细致论证。
2、在工程施工总进度计划的控制下,施工过程,坚持逐月(周)编制出具体的工程施工计划和工作安排,并对其科学性、可行性进行认真的推敲。
3、工程计划执行过程,如发现未能按期完成工程计划,必须及时检查分析原因,及时调整计划和采取补救措施,以保证工程施工总进度计划的实现。
四、施工进度的控制
施工进度计划的控制是一个循环渐进的动态控制过程,施工现场的条件和情况千变万化,施工项目经理部要及时了解和掌握与施工进度有关的各种信息,不断将实际进度与计划进度进行比较,一旦发现进度拖后,要分析原因,并系统分析对后续工作会产生的影响。调整有施工管理经验的人员担任管理工作,并针对技术、质量、安全、文明施工、后勤保障工作配置数名项目副经理主抓分项工作。
1、建立严格的《施工日记》制度,逐日详细记录工程进度,质量、设计修改、工地洽商和现场拆迁等问题,以及工程施工过程必须记录的有关问题。
2、坚持每周定期召开一次由工程施工总负责人主持,各专业工程施工负责人参加的工程施工协调会议,听取关于工程施工进度问题的汇报,协调工程施工外部关系,解决工程施工内部矛盾,对其中有关施工进度的问题,提出明确的计划调整意见。
3、各级领导必须“干一观二计划三”,提前为下道工序的施工,做好人力、物力和机械设备的准备,确保工程一环扣一环地紧凑施工。对于影响工程施工总进度的关键项目、关键工序,主要领导和有关管理人员必须跟班作业,必要时组织有效力量,加班加点突破难点,以确保工程总进度计划的实现。
五、保证工期的技术措施
在施工生产中影响进度的因素纷繁复杂,如设计变更、施工技术、资金、机械、材料、人力、水电供应、气候、施工组织协调等等,要保证目标总工期的实现,就必须采取各种措施预防和克服上述影响进度的诸多因素,其中从技术措施入手是最直接有效的途径之一。
1、设计变更因素:是进度执行中最大干扰因素,其中包括改变部分工程的功能引起大量变更施工工作量,以及因设计图纸本身欠缺而变更或补充造成增量、返工,打乱施工流水节奏,致使施工减速、延期甚至停顿。针对这些现象,项目经理部要通过理解图纸与业主意图,进行自审、会审和与设计院交流,采取主动姿态,最大限度地实现事前预控,把影响降到最低。
2、保证资源配置
(1)劳动力配置:在保证工程劳动力需求的条件下,优化对工人的技术等级、思想、身体素质等的管理与配备。流水作业方式以均衡流水为主,以利施工组织,对关键工序、关键环节等影响工程工期的重要环节配备足够的施工劳动力。
(2)材料配置:按照施工进度计划要求及时进货,做到既满足施工要求,又要使现场无太多的积压材料,以便有更多的场地安排工程施工。建立有效的材料市场调查、采购、供应部门。
(3)机械配置:为保证工程的按期完成,配备足够的施工机械,不仅满足工程正常施工使用,还要保证有效备用。为确保在市电网停电的情况下也能正常施工,在工地配备柴油发电机以备用。另外,要做好施工机械的定期检查和日常维修,保证施工机械处于良好的状态。
(4)资金配备:根据施工实际情况编制月进度报表,根据合同条款申请工程款,并将预付款、工程款合理分配于人工费、材料费等各个方面,确保施工能顺利进行。资金配备由总公司对项目部进行统筹。资金构成由公司划拨流动资金和工程进度款计划组成。确保资金满足材料、设备订购和工人工资。我公司确保按时足量发放员工工资。
月用款计划表
2008年 11月: 人民币 1500000 元
2008年 12月: 人民币 1600000 元
2009年 01月: 人民币 2000000 元
2009年 02月: 人民币 2500000 元
2009年 03月: 人民币 2000000 元
2009年 04月: 人民币 1500000 元
2009年 05月: 人民币 1200000 元
2009年 06月: 人民币 1000000 元
2009年 07月: 人民币 1000000 元
2009年 08月: 人民币 800000 元
(5)后勤保障:后勤服务人员要作好生活服务供应工作,重点抓好吃、住两大难题,工地食堂的饭菜要保证品种多、味道好,同时开饭时间要随时根据施工进度进行调整。
3、技术因素:
(1)实行工种流水交叉,循序跟进的施工程序,抢工期期间昼夜分两班作业。
(2)发扬技术力量雄厚的优势,大力应用、推广“三新项目”(新材料、新技术、新工艺),运用1SO9002国际标准、TQC、网络计划、计算机等现代化的管理手段或工具为本工程的施工服务。
工程的施工成本目标是使工程实际成本始终控制在合同价范围之内,并保证各项上缴费用。在此基础上,通过及时、严密有效地成本管理工作力争多获利润,取得较好的经济效益。
一、成本管理核算形式
工程项目经理部负责对工程的工期、质量、安全、成本等进行全面管理协调。在预算成本的基础上实行全额经济承包。项目经理部负责项目的成本归集、核算,竣工决算和各项成本分析,直接对工程处负责。
三、预算成本
项目预算成本是按照现行广东省水利工程综合价定额,二类工程取费,并结合具体情况编制,是考核工程成本的依据,但最终将合同价按费用分解后直接作为项目的预算成本。
四、计划成本
计划成本是在预算成本的基础上,根据施工组织设计,和历年来在单位工程上各项费用的开支水平,挖潜的可能性,及上级下达的成本降低指标,按照成本组织的内容经分解后组成。
五、成本控制
根据判定的成本目标,执行成本管理程序,对成本形式的每项经营活动进行监督和调整,使成本始终控制在预算成本范围内。通过成本管理程序能够及时发现成本偏差,随即分析原因,采取措施预以纠正,达到预期的降低成本目的。在计划成本的初步确定后,为了保证成本计划的实现,业务部门按各自职能范围具体落实。如人工费,内业部门每月按照劳动力计划及其动态曲线,向项目经理提供人员使用情况报表。在每一结构施工面积减少之前,根据施工实情相应减少人数,报与项目经理。尽量减少人员投入。
对材料费用控制:材料费的控制主要从材料采购单价入手,在市场价格低落时购入或签字材料采购合同,将因材料市场价格波动引起费用增加施工工艺。如模板系统采用实用快捷的快拆系统,加速模板周转及施工进度,提高劳动效率。同时注意废旧回收,钢筋合理配料,并采用适宜的形式接长,节约钢筋量。在材料使用过程中,严格按照工程量,采取限额领料的形式,建立起一套从计划→采购→使用的管理制度,减少材料费用在各个环节的耗损因素,做好成本的事前控制。
施工过程中的成本控制是通过经常及时的成本分析,检查各个时期各项费用的使用情况和成本计划的执行情况,分析节约和超支的原因,从而挖掘成本的潜力。成本分析工作,每月末进行一次,将本月预算数与实际发生的人工费、材料费、机械费、管理费分项进行对比,考核计划成本的执行情况。着重分析预算成本与实际成本的差异,找出原因,制定调整措施,再进入成本控制循环,使项目成本始终保持在有明确目标的轨迹上。
一、安全目标:
保证施工期间不发生重大安全事故,轻伤事故率控制在 3‰的范围内。
二、安全生产管理体系
公司安全工作领导小组领导全面的安全工作,主要职责是领导公司开展安全教育,贯彻宣传各类法规,通知和上级部门的文件精神,制订各类管理条例,每周对各项目工程进行安全工作检查、评比,处理有关较大的安全问题。项目部成立安全管理小组,并设专职安全员,主要职责是负责进行对工人的安全技术交底,贯彻上级精神,每天检查工程施工安全工作,每周召开工程安全会议一次。制订具体的安全规程和违章处理措施,并向公司安全领导小组汇报1次。各作业班组设立兼职安全员,主要是带领各班组认真操作,对每个工人耐心指导,发现问题即时处理并及时向工地安全管理小组汇报工作。
三、安全检查制度
在施工过程中,除正常的安全检查外,公司每月检查一次,工程处每半月检查一次,项目部每周检查一次,发现问题落实到人,限期整改,消除隐患,确保施工安全。
1、安全教育制度
按照公司的安全教育制度,加强宣传教育,制订科学合理的施工方案,现场组织切合实际的作业程序,正确严格地执行和运用施工及安全规范。对进场的工人进行摸底测试,统一进行安全教育,增强质量、安全意识。各专业班组认真钻研设计图纸进行技术交底,认真学习和深刻体会施工技术规范和施工安全规范。经过培训交底达到合格的职工才允许上岗操作,为安全工作顺利圆满开展打下坚实的基础。在施工过程中,建立每周一次的安全教育,由项目经理或专职安全员主持。同时在每道施工工序进行前,由专职安全员做书面的安全技术交底,各班组长带领施工人员认真贯彻落实。
四、安全生产保证措施
1、技术措施
(1)在施工总平面设计中人流和货流的安全通道的规划,仓库、物料、机具的布置都要符合消防和安全卫生规定,并落实消防和卫生急救设施,设置不同类型的安全防护棚。
(2)主体结构施工针对的结构、模板体系分别详细地在分项工程方案中专门编制安全技术交底。
2、施工机械安全
机械:按操作规程使用,加强对机械设备的管理,做到常检、常修、常保养,保持良好的工作状态。
3、防台风、防雨、防雷措施
塔吊及外架必须有避雷措施。防雷接地可与工程的避雷预埋件临时焊接连通,接地电阻达到规定要求,每月检测一次,发现问题及时改正。设专人掌握气象信息,及时作出大风,大雨预报,采取相应技术措施,防止发生事故。禁止在台风、暴雨等恶劣的气候条件下施工。
4、脚手架安全
脚手架应按施工实际可能承受的最大荷载进行设计和计算。应在安全人员和技术人员的监督下由熟练工人负责搭设;脚手架的检查分验收检查。定期检查和特别检查。使用中要严格控制架子上的荷载,尽量使之均匀分布,以免局部超载或整体超载;使用时还应特别注意保持架子原有的结构和状态,严禁乱挖基脚、任意拆卸结构杆件和连墙拉结及防护设施。项目部安全负责人组织分段验收,并报请公司安全部门核验。
5、安全标志和安全防护
(1)安全标志:划分安全区域,充分和正确使用安全标志,布置适当的安全标语和标志牌,各种施工机械均需挂设操作规程。
(2)安全防护:
1)“三宝、四口、五临边”防护
现场人员坚持使用“三宝”。进入现场人员必须戴安全帽并系紧帽带,穿胶底鞋,不得穿硬底鞋、高跟鞋、拖鞋或赤脚、高处作业必须系安全带。
做好“四口”的防护工作。在楼梯口、电梯口、预留洞口设置围拦、盖板、架网,正在施工的建筑物出人口和并字架,门式架进出料口,必须搭设符合要求的防护棚,并设置醒目的标志。
(1)安全用电措施
1)接地与接零
在施工现场专用的中性点直接接地的低压电力线中,必须采取TN-S接零保护系统(即三相五线制)。
A、保护零线应由工作接地线或配电室的零线或第一级漏电保护器电源侧的零线引出;
B、保护零线应与工作零线分开单独敷设,不作它用,保护零线PE必须采用绿/黄双色线;
C、保护零线必须在配电室(或总配电箱)配电线路中间和末端至少三处作重复接地,重复接地线应与保护零线相连接;
D、保护零线的截面应不小于工作零线的截面,同时必须满足机械强度的要求,其中,架空敷设间距不大于12米时,采用绝缘铜线截面不小于10MM2,采用绝缘铝线截面不小于16MM2;与电气设备相连接的保护零线为截面不小于2.5mm2的绝缘多股铜线;
E、电气设备的正常情况下不带电的金属外壳、框架、部件、管道、轨道、金属操作台以及靠近带电部分的金属围栏、金属门等均应用保护接零;
F、供电电力变压器中性点的直接工作接地电阻值应不小于4欧姆,保护零线重复接地电阻值应不小于10欧姆。不得一部分设备作保护接零,另一部分作保护接地。
2)配置漏电保护器
A、施工现场的配电箱(配电室)和开关箱至少配置两级漏电保护器;
B、漏电保护器应选用电流动作型,一般场合漏电保护器的额定漏电动作电流应不大于30MA,额定漏电动作时间应不大于0.1s;潮湿和有腐蚀介质场所的漏电保护器,其额定漏电动作电流和额定漏电动作时间乘积的极限值为(大于)30MA.S;
C、开关箱内漏电保护器的选用应与动力设备的容量大小、相数等实际情况相适应、相配合,如三相电动机则应选用参数匹配的三相三线的漏电保护器;照明用电必须与动力用电分开,照明应选用单相二线的漏电保护器。
3)开关箱按三级设置,即总配电箱、分配电箱、开关箱,开关箱距离机具不能超过三米,开关箱实行“一机一闸一漏”电保护。
4)外电保护
A、在建工程(含脚手架)的外侧边缘与外电架空线路的边线之间和最小安全操作距离:电压1KV以下为4米;电压1KV-10KV之间为6米;
B、施工现场的机动车道与外电架空线路交叉时的最小垂直距离:电压1KV以下为6米,电压1KV-10KV之间为7米;
5)配电系统
A、所有的电线架设都必须使用电杆、绝缘子、横担等,按规范要求架设;
B、开关电器及电气装置必须完好无损;
C、开关电器及电气装置必须装设端正、牢固,不得拖地放置;
D、带线导线与导线之间的接头必须绝缘包扎,带电导线必须绝缘良好;
E、带电导线严禁搭、挂、压在脚手架或其它物体上;
F、配电箱与开关箱应作名称、用途、分路标记;配电箱、开关箱应配锁并有专人负责;
G、电箱内部及其周围临近区域不得有杂物、灌木和杂草等;
H、室外用电严禁拉设使用花线,严禁使用铜线或其它金属线代替保险丝使用,严禁工人宿舍内乱拉电线、插座、烧电炉、电饭煲;
I、电气装置应定期检修,检修时必须做到:
①、停电;
②、悬挂停电标志牌,挂接必要的接地;
③、由相应级别的专业电工检修;
④、检修人员应穿绝缘鞋和手套,使用电工绝缘工具;
⑤、有组织和专人统一指挥。
6)照明
A、在夜间施工或自然采光的场所、料具堆放场、道路、仓库、办公室、食堂、宿舍等设备一般照明、局部照明或混合照明;
B、根据使用场所的环境条件选择相应的照明器;
C、行灯电压不超过36V,灯具离地面高度底于2.4米等场所照明电压不大于36V。潮湿及易触及带电体场所照明电压不大于24V;
D、根据需要设置警卫和红色信号照明和事故照明,其电源应设在施工现场电源总开关的前侧,并配备电源。
7)对各类用电人员进行安全用电基本知识培训。
(2)安全用电组织措施
1)建立临时用电施工组织设计和安全用电技术措施的编制、审批制度,并建立相应的技术档案。
2)建立技术交底制度。
向专业电工、各类用电人员介绍临时用电施工组织设计和安全用电技术措施的总体意图、技术内容和注意事项,并应在技术交底文字资料上履行交底人和被交底人的签字手续,载明交底日期。
3)建立安全检测制度。从临时用电工程竣工开始,定期对临时用电工程进行检测,主要内容是:接地电阻值、电气设备绝缘电阻值、漏电保护器动作参数等,以监视临时用电工程是否安全可靠,并作好检测记录。
4)建立电气维修制度。加强日常和定期维修工作,及时发现和消除隐患,并建立维修工作记录,记载维修时间、地点、内容、技术措施、处理结果、维修人员、验收人员等。
5)建筑工程竣工后,临时用电工程的拆除应有统一的组织和指挥,并须规定拆除时间、人员、程序、方法、注意事项和防护措施等。
6)建立安全检查和评估制度。施工管理部门和企业要按照JGJ59-88《建筑安全检查评分标准》定期对现场用电安全情况进行检查评估。
7)建立安全用电责任制,对临时用电工程各部位的操作、监护、维修分片、分块、分机、落实到人,并辅以必要的奖惩。
8)建立安全教育和培训制度。定期对专业电工和各类用电人员进行用电安全教育和培训,经过考核合格者持证上岗。禁止无证或随意串岗。
9)强化安全用电领导体制,改善用电技术队伍素质。
(3)电气防火技术措施
1)合理配置、整定、更换各种保护电器,对电器和设备的过载、短路故障进行可靠的保护。
2)在电气装置和线路周围不堆放易燃、易爆和强腐蚀介质,不使用火源。
3)在电气装置相对集中的场所,如变电所、配电室、发电机室等配置绝缘灭火器材等,并禁止烟火。
4)加强电气设备相间和相一地间绝缘,防止闪烁。
5)合理设置防雷装置。
(1)电气防火组织措施
1)建立易燃、易爆物和强腐蚀介质管理制度。
2)建立电气防火责任制,加强电气防火重点场所烟火管制,并设置禁止烟火标志。
3)建立电气防火教育制,经常进行电气防火知识教育和宣传,提高各类用电人员电气防火自觉性。
4)建立电气防火检查制,发现问题,及时处理。
5)强化电气防火领导体制,建立电气防火队伍。
7、现场消防措施
(1)建立消防组织,设立防火小组和消防小分队,进行防火检查,及时消除火灾隐患。
(2)编制防火技术措施。
(3)按要求配置灭火器材并合理布置。
(4)按施工平面布置做好临时消防龙头和消防水池。并时刻保证消防通道的畅通。
(5)现场禁止使用明火,动火作业必须履行专职安全员审批制度。
(6)工作区和生活区的照明、动力电路皆由专业电工按规定架设,任何人不得乱拉电线。
(7)材料保管:对储存物品进行火灾危险性的分类并分开存放,各种气瓶等危险品应单独设库存放。
(8)木工作业棚防火:采用阻燃材料搭设,电气设备应密封或采用防爆型,防止电线短路。用电设备过载运行,严禁在作业场所吸烟生火;配备足够的灭火器材。
(9)电、气焊作业:焊割作业区与气瓶距离,与易燃易爆物品距离,乙炔发生器与氧气瓶距离都应大于安全规定距离,焊割设备上的安全附件要保证完整有效,作业前应有书面防火交底,作业时备有灭火器材,作业后清理燃物,切断电源、气源。
(10)熬制沥青防火:应在指定地点(远离建筑物和易燃材料30M外)。
(11)项目部设立消防组织机构。
五、施工机械安全防护
施工机械安全防护一般规定:
(1)各种机械设备的操作人员,都必须经过专业与安全技术培训,经有关部门考核合格方准上岗。严禁无证人员操作。
(2)各种机械操作人员,必须懂得所操作机械的性能、安全装置。熟悉安全操作规程,能排除一般故障和日常维护保养。
(3)工作时,操作人员必须穿戴好防护用品,集中思想、服从指挥、谨慎操作,不得擅离职守或将机械随意交给他人操作。
(4)交付现场使用的机械设备,必须性能良好,防护装置齐全,生产及安全所需备品配套,并经设备部门和现场负责人认可,方能使用。
(5)起重机行驶与停置时,必须与沟渠、基坑、输电线保持规定的安全距离(按计算)。
(6)机械设备进入作业点,单位工程负责人应向操作人员进行作业任务和安全技术措施的详细交底。
六、推土机安全操作要求
(1)行驶时,驾驶室外不得载人。
(2)推土机在边坡推土时,刀片不得超过坡边,并在换好倒档后,才能提升刀片倒车。上下坡度不得超过35度。横坡行驶不得超过1度。
(3)停止作业后,铲刀应落地放置。
七、挖掘机安全操作要求
(1)施工前应做好地质、水文和地下设施的调查和勘察工作,并熟悉施工方案。
(2)开挖应从上至下分层进行,禁止超越该机规定的作业高度。
(3)挖掘机作业时,禁止铲斗从运土车辆驾驶室顶上越过。
(4)挖掘机履带到工作面边缘,最少保持1m以上的安全距离。
(5)挖掘机停置或下班后应离开工作面,斗子须落地放置。
一、目标:达到中山市规定文明工地“合格”标准。
二、环境保护措施
本工程为重建水闸工程,工程量较大且多为机械施工,对沿线周围的环境会造成一定的影响,因而制定环境保护措施非常必要。一旦中标后,我公司将认真组织、细致工作,确保施工沿线居民的生活、工作正常进行,并努力使沿线环境的免受破坏。
1、认真搞好施工现场规划,场内布置整齐,紧凑有序。机械设备归类并整齐停放;材料物资等分门别类及时入库或存放在指定位置。
2、施工场地内的淤泥、弃土和其他废弃物等及时清除运输至指定地点,做到施工期间现场整洁。运土车辆的车斗采用蓬布加以覆盖,防止泥土撒落,进出工地时,进行冲洗,保持道路等干净、整洁。施工任务完成退场时,彻底清除必须拆除的临时设施和生活设施。
3、优化施工方法、施工工艺,努力保护周围环境不受污染;对于噪音大的工序,尽可能安排在白天施工,以减少夜间对附近居民的噪音干扰。
4、噪音的设备,如发电机、空压机等加装吸间减振设施,减少噪音并使噪音控制在70分贝以下。在机械选型上要尽可能选择对环境污染小的机械。
5、工地排放的污水、废油等经过处理符合标准后排入附近的沟槽内,严禁有害物质污染土地和周围环境。场地排水系统畅通,建筑垃圾集中堆放,及时处理。
6、做好生活区的卫生管理工作,厕所设化粪池,生活垃圾在指定地点堆放,生活废水排放入沟槽内,使其不遍地乱流,保持生活区的卫生和整洁。
7、施工场地设置必要的临时围栏,平交路口,大门口等设置明显的标志,使施工场地尽可能自成一体,以减少和外界的相互干扰。
8、施工便道作好管理养护工作,路面保持平整,两侧排水良好,雨季无沆积水;旱季适当洒水,防止尘土飞扬。对进出工地的车辆进行冲洗,保持道路干净、整洁。同时积极创造条件,努力减少施工期间对行人和车辆通行的影响。
三、文明施工保证措施
文明施工是施工企业的追求,同时也是建筑业和社会的需要。文明施工管理的水准是反映一个现代企业的综合管理水平和竞争能力的重要特征,特别是该工程是政府投资的重点工程。按照建设工程现场文明施工管理办法的用关规定,对派驻工程的一切人员进行教育,提高文明素质,提高管理水平,以崭新的精神面貌展现给社会各方面,把文明施工做为维护企业形象、企业信誉基本工作,要求全体员工自觉自愿地积极参与。为获得两个文明双丰收采取以下规划和措施对现场文明施工加强管理,争创文明样板工地。
1、现场围栏设计:
工地现场设置连续、密闭的砖砌围墙,高度不低于2.3米,牢固完整,整齐美观,围墙外部做简易装饰,色彩与周围环境协调。
2、现场工程标志牌设计
严格按照相关文件规定的尺寸和规格制作各类工程标志标牌:
施工总平面图、工程概况牌、文明施工管理牌、组织网络牌、安全纪录牌、防火须知牌。
其中,工程概况牌设置在工地大门入口处,载明项目名称、规模,开竣工日期、施工许可证号、建设单位。设计单位、质量、安全监督单位、施工单位、监理单位和联系电话等。
3、临设布置:
临时建筑物、构筑物包括办公用房、宿舍、食堂、卫生间及化粪池、水池皆用砖砌,要求稳固、安全、整洁,并满足消防要求,集体宿舍与作业区隔离,人均床铺面积不小于2平方米,适当分隔,防潮、通风,采光性能良好。按规定架设用电线路,严禁任意拉线接电,严禁使用电炉和明火烧煮食物。
4、成品、半成品、原材堆放:
严格按施工组织设计中的平面布置图划定的位置堆放成品、半成品和原材料,所有材料应堆放整齐。
5、现场场地和道路
场内道路要平整、坚实、畅通。主要场地应全部硬底化,并设置相应的安全防护设施和安全标志。施工现场内有完善的排水措施,不允许有积水存在。
6、污水的处理和排放:
场内设沉淀池和化粪池,并做到:
(1)所有的生活或其它污水必须分别处理后才能排入市政排水管道。杜绝运输中泥浆、散体、流体物料撒漏。车辆出工地前,轮胎、车身必须冲洗干净,并防止掉土污染路面。
(2)如有施工产生的泥浆,未经沉淀不得排入市政管网或河流。废浆和淤泥应使用封闭的专用车辆进行运输。
7、粉尘控制:
(1)未做硬地化的场地,要定期压实地面和洒水,减少灰尘对周围环境的污染。
(2)禁止在施工现场焚烧有毒、有害和有恶臭气味的物质。
(3)装卸有粉尘的材料时,应洒水湿润和仓库内进行。
(4)严禁向建筑物外抛掷垃圾。
8、噪音控制:
(1)尽量采用低噪音的施工工艺和方法。
(2)当施工作业噪音可能超过施工现场的噪声限值时,应在开工前向建设行政主管部门和环保部门申请,核准后才能开工。
(3)禁止在夜间11点至早上7点、中午12点至下午2点进行产生噪音的建筑施工作业。若由于施工不能中断的技术原因和其他特殊情况,确需在该时段连续施工作业的,应向建设行政主管部门和环保部门申请,核准后才能开工。
9、运输车辆:
(1)运输车辆必须冲洗干净后才能离场上路行使。
(2)装运建筑材料、土石方。建筑垃圾及工程渣土的车辆,应采取有效措施,保证行使途中不污染道路和环境。
10、现场卫生管理:
(1)明确施工现场各区域的卫生责任人。
(2)食堂必须申领卫生许可证,并应符合卫生标准,生、熟食操作应分开,熟食操作时应有防蝇间或防蝇罩。禁止使用食用塑料制品作熟食容器,炊事员和茶水工需持有效的健康证明上岗。
(3)施工现场应设置卫生间并有水源供冲洗,同时设简易化粪池或集粪池,加盖并定期喷药,每日有专人负责清洁。
(4)设置足够的垃圾池和垃圾桶,定期搞好环境卫生、清理垃圾,施药除“四害”。
(5)建筑垃圾必须集中堆放并及时清运。做到工完场清。
(6)工地应设茶水亭和茶水桶,做到有盖、加锁和有标志。
(7)夏季施工备有防暑降温措施。
(8)配备保健药箱,购置必要的急救、保健药品。
11、现场安全、保卫:
(1)建立健全安全、保卫制度,落实治安、防火等工作管理责任人。
(2)施工现场配备专职保卫人员,昼夜值班,做好进入施工现场人员的登记手续,防止外来人员随便进入施工现场。施工现场的车辆必须登记进场,在场内要服从现场人员的调度安排。
(3)施工现场的管理人员、作业人员必须配佩工作卡,标明相片、姓名、单位、工种或职务,管理人员和作业人员的标卡应分颜色区别。
(4)现场不准留宿家属及闲杂人员。
12、文明施工教育:
施工现场要利用黑板报和其它形式对员工进行法纪宣传教育工作,使施工现场各类施工人员知法、懂法并自觉遵守和维护国家的法律法令,提高员工的法纪观念,防止和杜绝盗窈、斗殴及进行黄、赌、毒等非法活动的发生。
我公司承诺,一旦我公司中标,定严格按照有关规定对工程及现场进行管理,保证施工期间不发生重大安全事故,轻伤事故率控制在 3‰的范围内,安全检查达《建筑施工安全检查标准》(JGJ59-99)所规定的合格标准,文明施工达到中山市规定文明工地“合格”标准,否则责任由我公司负责,并按照合同要求接受甲方的处罚。
一、对工期的响应
保证 10个月内竣工交付使用,若我单位未能在合同约定竣工时间前全部完工的,我方自愿接受按每延误一天扣2000元的扣罚。并将采取有效措施加快工程进度,且赶工费用由我方承担。并保证达到以下控制进度:
(1)要求2009年4月15日前必须完成所有水下工程验收;
(2)要求2009年6月30日前完成所有主体工程;
(3)要求2009年10月底全部工程完工。
二、对工程质量的响应
工程质量:保证全部工程质量须符合设计要求及水利部门颁布的《水利水电工程施工质量检验与评定规程《SL176-2007》中优良标准。若工程验收时达不到上述要求的,工程结算时我单位自愿接受按中标价累进扣罚质量违约金:中标价的300万元以下部分扣罚5%,中标价超出300万元、不足500万元的部分扣罚3%, 中标价超出500万元的部分扣罚2%。在施工过程中我方严格按照工序进行施工,在检查中若发现某工序我方未按设计和规范要求施工,即使验收前抽检合格,我单位自愿接受扣除该施工工序的全部造价。
三、对保修期的响应
工程质量保修期按《建设工程质量管理条例》第六章有关规定执行,在工程竣工验收后,向建设方出具质量保修书,保修期自工程移交证书中写明的全部工程完工日开始算起,本工程保修期限为1年。保修期内,我方负责未移交或已移交的工程和工程设备的全部日常维护和缺陷修复工作。
四、对施工安全、文明施工的响应
施工安全保证施工期间不发生重大安全事故,轻伤事故率控制在3‰的范围内,文明施工达到中山市规定文明工地“合格”标准。
在本项目的施工中,我公司将采用全站仪(SOKIA SET2110型)和计算机联合进行测量控制,通过我司在以往工程中的应用,能明显提高测量控制的准确性,和加快施工测量放样工作的效率,为工程施工顺利进展和保证施工质量奠定基础。
水力开槽土工膜垂直防渗技术是采用射水法造孔机机具在海堤外港侧开出一定宽度和深度的沟槽,利用垂直铺膜机在沟槽内铺设土工膜,然后回填沟槽,使其形成一个以土工膜为隔水体的连续防渗帷幕,起到垂直防渗的作用。施工过程应着重抓好连续造孔开槽,槽内挡水、挡土保护,土工膜铺设与接头处理,槽沟回填等方面工艺。该技术具有适应性强,施工简单,速度快,投资少等优点,具有广阔的推广应用前景。近年来在福建省闽侯县多个堤段采用此法防渗。
影响钢筋砼结构耐久性的因素很多,但最主要的还是砼材料自身的性能,使用高性能砼(HPC)能够彻底解决海工混凝土结构耐久性的问题。HPC具有较高的抗渗性能,具有的密实度高,孔隙小,低收缩等优良特性,使盐难以渗入砼内部,从而延缓砼内部钢筋的锈蚀,延长砼结构的使用寿命。HPC配制只是在普通砼中加入适当的高效减水剂、膨胀剂及粉煤灰,其他原材料不变。因此采用HPC不仅能起到有效防腐作用,而且能比较经济。
复合土工膜是用聚乙烯或聚氯乙烯的增强改性,压延成膜与涤纶针刺土工布热合而成,具有抗拉、抗顶破、抗撕强度高,延伸性能好,变形模量大,耐老化,防渗性能好,使用期长等特点,在堤防防渗处理中推广采用,取得了良好的经济效益和社会效益。
在防渗及坝身加固工程中,堤坡面采用复合土工膜防渗,复合土工膜上下部分别与堤顶路肩梁和滩地射水造墙墙顶锚固,射水造墙与迎水坡复合土工膜连接在一起,形成一道防渗帷幕。设计复合土工膜直接铺在堤坡面上,上部铺5cm厚卵石垫层,表层为10cm厚砼预制块保护层。
在复合土工膜铺设前,大堤迎水面土方填筑及坡面修整完毕,坡面平整度、压实度均达到设计要求并经监理工程师验收合格后方可进行复合土工膜的铺设,复合土工膜铺设的工艺流程如下图:

复合土工膜铺设前编好施工组织设计,说明铺设方法和技术措施,经监理批准后方使用,施工人员均应穿平底布鞋或软胶底鞋进行铺设,严禁穿钉鞋以防踩坏土工膜,做到随铺随压,复合土工膜铺设要与保护层铺设相协调。拼接中复合土工膜焊缝质量是拼接关键,施工中尤其要加强接缝检测,检测方法有一目测法、二现场检漏。目测法:复合土工膜焊接好后,观察有无漏接,接缝是否烫损,有无褶皱,是否拼接均匀等。现场检漏采用充气法对全部焊缝进行检测,焊缝为双条,两条之间留有约10mm的空腔,将待测段两端封死,插入气针,充气至0.05mpa~0.20mpa,静观0.5min,观察真空表,如气压无下降,表明不漏,焊缝合格,否则要查找原因及时修补。复合土工膜上下部锚固是重要的环节,严格按施工图纸并经监理验收后施工。
若以上新技术在本工程中未采用,或由于采用新技术而导致工程质量和工期达不到要求,我公司自愿承担全部后果,同时,对由此造成的工期以及质量和业主的直接、间接经济损失,由我公司全额赔偿。
一、总平面布置原则
根据本工程建筑物布置的特点和业主提供的施工用地情况,总体布置原则如下:
1、水闸北侧布置生活区和生产区。
2、生产区包括:砂石、水泥堆场、钢筋场、模板场、施工仓库、弃碴场等设施。
3、施工生产、生活用水采用自来水,在进场后与当地供水部门协商解决;施工用电由甲方提供电源接口和采取自备柴油发电机组配合解决。
具体布置详见附图“某水闸水闸重建工程――施工总平面布置图”
二、场内外交通
1、对外交通
工程范围内有公路通至神湾镇,可以满足工程车辆、设备的进出要求,水闸出口为西江水道,水陆交通方便。
2、场内交通及施工道路
本工程的施工工作面较广阔,临时施工道路结合原有地面及开挖、运输工作面要求进行布置。
3、施工道路维护
组织由2名专职人员组成的养路队,主要负责对外交通道路以及工区内的主要施工道路的维护保养。
三、施工生产和生活区布置
施工生产设施主要为辅助施工工厂,包括钢筋加工厂(含堆放场)、模板加工厂和材料堆放场、施工仓库等,材料仓库主要包括备用配件及零材库等。生活区设施主要包括办公设施和生活设施。
1、钢筋场
本工程的钢筋由钢筋场集中加工。钢筋材料的供应,我们将同商家紧密联系,并要求商家组织专门供应线,因此,工地不用设置大型钢筋材料储藏仓库,钢筋加工厂内布置存放点即可。
2、模板场
在生产区设一模板场(含模板堆放场)。具体位置见附图“施工总平面布置图”所示。
模板加工均在模板场进行。
在模板堆放场主要堆放已加工好的普通钢模、大型木模板及加固用水管、方钢、脚手架等。
3、仓库
常用材料仓库布置于生产区,主要存放工地备用配件及零材库、机油库等。
4、设备停放场地
为搞好文明施工,使施工场地内井然有序,各工区必须根据设备数量及使用情况,对设备停放场地进行规划,并严格执行,不得乱停乱放。主要的施工机械、设备临时停放场设在办公、生活区前面。
5、项目部布置
(1)项目部的位置
本工程项目部集中布置在施工场地内广阔处。具体位置见附图“施工总平面布置图”所示。
(2)项目部布置内容
项目部布置宿舍、饭堂、浴室、厕所和项目经理部办公室、资料室、实验室、娱乐室等生活、办公设施。
① 项目经理部是工程施工的指挥中心,主要设施包括有办公、生活、活动场地及其他等。
② 生活区设施主要包括宿舍、饭堂、浴室、厕所和项目经理部办公室等;其他设施娱乐室等。
③ 设小型停车场一个。
(3)项目部的管理
项目部是办公和职工休息、生活的地方,其环境的好坏直接影响职工工作质量。
① 对于项目部的设置,要因地制宜、规范整洁、注重环保,树文明施工形象。
② 临时房屋要排水系统顺畅,路灯、公厕等公共设施齐全,为保证项目部的安全,项目部外围用铁丝网围蔽。
③ 生活区中的厨房和宿舍是重点消防对象,在厨房、宿舍附近设消防栓以防为险。
④ 为保证项目部的宁静、卫生,制订生活区守则,规范项目部区内的活动。
6、施工区、办公生活区占地面积
生产区设施和生活区设施及占地面积分别见表“生产区一览表”和“办公、生活区设施一览表”。
生产区一览表
序号 | 施工工厂 | 单位 | 面积 | 备注 |
1 | 砼拌和站 | m2 | 80 |
|
2 | 钢筋场 | m2 | 200 |
|
3 | 模板场 | m2 | 100 |
|
4 | 水泥库 | m2 | 100 |
|
5 | 砂石料堆场 | m2 | 400 |
|
6 | 设备停放场 | m2 | 350 |
|
7 | 施工仓库 | m2 | 200 |
|
8 | 弃碴场 | m2 | 600 |
|
项目部设施一览表
序号 | 生活区设施 | 单位 | 建筑面积 | 备注 |
1 | 项目部办公室 | m2 | 80 |
|
2 | 资料、实验室 | m2 | 30 |
|
3 | 职工、工人宿舍 | m2 | 450 |
|
4 | 饭堂、浴室、厕所 | m2 | 110 |
|
5 | 娱乐室 | m2 | 50 |
|
6 | 停车场 | m2 | 250 |
|
四、施工用水用电及通讯
1、施工用水
施工用水和办公生活用水均使用自来水。
2、施工用电
由自备发电机组接驳点接入生活和施工布置区来满足施工用电。
3、施工期间的通讯
生活区安装2台程控电话,其中一部接传真机。对外联络以程控电话及移动电话为主。工地生产配备10台对讲机,以方便工地管理和联系需要。
为实现本工程建设的优质、高速、安全。文明、低耗的目标而奋斗,本工程采用项目法施工的管理体制。
1、施工管理体制的设置原则
(1)形成有一定权威性的统一指挥,协调各方面的关系,确保工程按要求顺利完成。
(2)根据本工程规模、技术复杂程度等因素建立管理组织。
(3)采用项目管理体制的同时,经济合同手段辅助以部分行政手段,明确各方面责、权、利。
2、项目法施工
在本工程施工中实施项目法施工的管理模式,组建本工程的项目经理部,对工程施工全过程的进度、质量、安全、成本及文明施工等负全责。项目经理部要以工程项目管理为核心,以优质、高速、安全、文明为主轴,加强动态、科学管理,优化生产要素,精心施工,大力推广先进施工技术,在创质量优良的同时,力争提前完成施工任务。在推行项目法施工的同时,从文件控制、材料采购到产品标识、过程控制等过程中,切实执行ISO9002标准和公司质量保证体系文件,达到创优质高效的目标。
项目经理对工程项目行使计划、组织、协调、控制、监督、指挥职能、全权处理项目事务,其下设技术组、经营组及材料设备组。项目经理部对公司实行经济责任承包。项目内部工程技术管理人员通过岗位目标责任制和行为准则来约束,共同为优质、安全、高速、低耗地完成项目任务而努力工作。
3、组建项目经理部
本工程拟实行项目法施工管理,委派我公司实践经验丰富和管理水平高的同志担任项目部主要负责人,选聘技术、管理水平高的技术人员、管理人员、专业工长组建项目部。
项目管理层由项目经理、项目副经理、技术负责人、安全主管、质量主管、材料主管、保卫主管、机械主管和后勤主管等成员组成,在建设单位、监理单位和公司的指导下,负责对本工程的工期、质量、安全、成本等实施计划。组织、协调、控制和决策,对各生产施工要素实施全过程的动态管理。
项目经理部对工程项目进行计划管理。计划管理主要体现在工程项目综合进度计划和经济计划。
进度计划包括:施工总进度计划,分部分项工程进度计划,施工进度控制计划,设备供应进度计划,竣工验收和试生产计划。
经济计划包括:劳动力需用量及工资计划,材料计划,构件及加工半成品需用量计划,施工机具需用量计划,工程项目降低成本措施及降低成本计划,资金使用计划,利润计划等。
作业层人员的配备:施工人员均挑选有丰富施工经验和劳动技能的正式工和合同工,分工种组成作业班组,挑选技术过硬、思想素质好的正式职工带班。
为保证项目部管理层指令畅通有效,工作安排采用“施工任务书”的形式。要求签发人和执行人签字,项目经理层作为执行的监督者。施工任务书的工作内容完成后由签发人封闭并签字,如未能封闭必须找出原因并对执行人进行处罚。
二、项目组织机构

项目部组织机构图
详见本标书企业绩信中《拟投入本合同工作的主要人员表》
说 明
星欣设计图库资料专卖店拥有最新最全的设计参考图库资料,内容涉及景观园林、建筑、规划、室内装修、建筑结构、暖通空调、给排水、电气设计、施工组织设计等各个领域的设计素材和设计图纸等参考学习资料。是为广大艺术设计工作者优质设计学习参考资料。本站所售的参考资料包括设计方案和施工图案例已达几十万套以上,总量在数千G以上。
联系QQ:447255935
电话:13111542600