剪力墙住宅
某施工单位
2006年02月21日
目 录
概述 1
工程概况 1
1
2
施工条件 3
施工部署 4
项目经理部管理机制 4
4
4
施工总体部署 6
施工顺序 6
6
7
7
7
7
项目责任目标 7
7
7
7
施工准备 7
7
8
施工平面规划 10
施工道路规划 10
暂设工程 10
10
11
主要施工机械布置 11
11
12
施工现场临时用水 14
14
14
现场临时用电 15
施工现场平面布置图 15
15
15
15
15
15
主要施工方法 16
施工测量控制 16
16
16
16
16
16
土方开挖施工方法 16
16
16
17
17
17
钢筋工程 17
17
18
18
22
22
模板工程 23
23
23
26
模板附图 27
砼工程 39
39
39
41
模板附图 42
转换层框支梁施工技术 55
55
55
55
60
60
61
二期地下室基坑支护内撑拆除施工 61
一期地下室加固施工技术 61
61
62
砖砌体工程 64
64
64
64
65
65
玻璃纤维增强水泥轻质多孔(GRC)隔墙条板施工方法 66
66
66
67
装饰工程施工 67
67
69
外墙装修施工 71
71
74
防水工程 75
75
77
季节性施工技术措施 82
82
82
82
外脚手架工程 84
外架选择 84
挑架构造形式 84
85
85
86
施工总进度计划 87
施工进度部署 87
87
87
87
确保工期技术组织措施 87
87
88
88
88
88
88
89
施工机械选择与供电设计 90
设计说明 90
90
90
91
91
91
91
91
主要施工机械配备表 91
91
92
92
92
93
93
93
施工供电系统分路 93
施工供电系统图 93
总用电量的计算 94
计算分路电流量和导线截面积选择 94
二级分电箱的要求 95
末级开关箱 95
线开选择 95
资源计划 97
材料计划 97
劳力计划 97
确保工程质量的技术组织措施 100
建立质量体系,确保工程质量管理的规范化 100
100
101
保证工程质量制度组织措施 101
工程质量检查组织措施 102
102
103
确保工程质量的技术措施 105
105
105
预防地下室外墙砼裂缝的技术措施 107
107
107
107
107
对目前出现的楼板裂缝质量通病采取以下措施: 108
108
对楼地面起砂常见病采取下列措施 108
确保安全文明的技术组织措施 110
安全文明施工的目标 110
110
110
确保安全文明施工的技术组织措施 110
110
111
“三宝”、“四口”安全防护措施 112
115
116
117
117
环境保护管理及技术措施 119
119
119
施工协调管理 120
与设计单位间的工作协调 120
与监理工作的协调 120
与分包单位间的协调 120
水电安装配合协调 121
协调方式 121
-GCMC位于***,本工程用地平坦,呈东西长方形,三面临规划路,北临城市干道古田路宽,东临能源巷,西临规划路;地下部分为满铺2层地下室,层高3.7m,为停车及设备用房,建筑面积11489m2,;地上24层建筑面积为42751 m2,其中一、二层为商场、门厅等,层高4.3m,第三层为住宅辅助用房,活动中心、棋牌室,阅览室等;四~二十四层为住宅标准层,层高3.0米,其中一期标准层面积为807.4m2,二期标准层为860.1 m2;用地面积8082平方米,总建筑面积54060平方米;本工程耐火等级为一级,耐火年限为一级100年以上。
本工程一期、二期三层以下为钢筋混凝土框架剪力墙结构,三层楼面为转换层,三层以上为纯剪力墙结构。抗震设防烈度为七度,剪力墙抗震等级为二级,框支梁、柱按一级抗震构造,场地土类别为Ⅲ类。基础采用静压预制钢筋混凝土桩。
表 1混凝土强度等级
部位 | -0.050以下 | -0.050~16.750 | 16.750~34.750 | 34.750~58.750 | 58.750以上 | |
一期 | 剪力墙及柱 | C45 | C45 | C40 | C35 | C30 |
楼面梁及板 | C35 | C40 | C35 | C35 | C30 | |
二期 | 剪力墙及柱 | C45 | C45 | C40 | C35 | C30 |
楼面梁及板 | C40 | C40 | C35 | C35 | C30 | |
外墙及分户内墙用200厚的承重多孔烧结砖,厨房、卫生间隔墙采用100厚承重多孔烧结砖,其余隔墙为轻质隔墙,重度为1KN/M2,砖强度等级为MU7.5,用MU5的混合砂浆砌筑。
地下室墙厚200mm、250mm、300mm、350mm、400㎜等。
本工程拟建场地地形平坦,一期地下室已于97年施工至±0.00标高,二期地下室基坑支护已施工完毕,土方已经开挖到-3.20米。现场场地东侧为能源巷,北侧为城市主干道古田路。现有二期基坑边紧靠围墙,只有南向一条5.0米宽左右的通道。现场水源已引至场地西北角,东南角有315千瓦电源,具有开工条件。
本工程属于高层建筑。据此特点拟组建一个由具有资质、丰富高层建筑施工经验的项目经理负责的项目经理部,严格按照项目法组织施工,实行项目经理负责制。以项目经理为核心,建立项目经理部的组织管理机构及施工力量。(具体详见项目部组织机构框图)

⑴负责施工、生产全过程的质量、安全和进度控制。
⑵做好工序的技术交底和安全技术交底。
⑶负责分项、分部工程的工序检查和质量控制。
⑷办理隐蔽工程的验收和各种登记控制。
⑸落实成品和半成品的保护措施。
⑹负责对分承包项目的质量、进度、安全进行协调和管理。
⑴负责项目经理部的技术保障和技术监督指导。
⑵在项目技术负责人的领导下,对项目的质量全面负责,检查监督项目部各成员做好技术交底和质量自互检、交接检,以及分项工程质量评定。
⑶负责工程技术文件与资料(规范、规程、图集和施工图纸、会审纪要、设计变更等)的收集、保管 和发放。
⑷负责工程技术管理与工程质量记录资料,以安全技术内业资料的收集、保存工作。
⑸与业主或监理办理轴线标高的现场与书面的移交工作,建立测量控制网。协助施工组做好单位工程的放样工作,并及时予以复核。
⑹按有关规范标准及操作规程进行现场试验,现场常规取样和见证取样等工作,并对过程的试验状态进行标识。
⑺对施工作业环境与安全防护进行检查、监督。做好工人进场三级安全教育,检查督促施工员做好安全技术交底。
⑻组织有关人员对工程项目分部分项的核定。
⑴按计划组织材料进、退场和材料采购。
⑵负责材料的搬运、贮存、堆放和发放工作。
⑶负责进场材料的验收和收集质保资料。
⑷做好材料的产品标识和检试状态的标识。
⑴对本项目的工程合同、劳动合同、工程分承包合同进行管理。及时反馈合同变更的信息,参与合同履约的监督、考核。
⑵负责编制施工图预算和“三费”成本分析工作。对施工成本进行适时合算,动态跟踪。
⑶办理竣工决算工作。
⑴落实机械设备的进场、安装等事宜,参与机械设备的验收、试运行和接收工作。
⑵督促做好机械设备的维护、保养工作,确保机械设备的正常使用。
⑶做好施工用电管理。
项目经理部各成员的具体职责详见第九章管理职责。
本次招标工程为_GCMC,一、二期的土建和安装部分,计划总工期560日历天,工期特别紧,为此确定以下原则:
外墙装修搭设满堂落地脚手架,从上到下全面铺开工作面。
本工程地下室和地上部分均分为二个区施工,二个区同时施工不进行流水。

土方开挖→废桩、工程桩处理→底板、承台砖胎模→底板垫层→防水及砂浆保护层→扎底板钢筋→浇底板混凝土→扎地下二层墙柱钢筋→立地下二层墙柱模板→浇注混凝土→立地下一层梁板模,扎钢筋,浇梁板混凝土→支护内支撑拆除→扎地下一层墙柱钢筋→立地下一层墙柱模板→立±0.00层梁板模板→浇筑地下一层墙柱混凝土→扎±0.00层梁板钢筋→浇捣±0.00层梁板混凝土
弹线→绑扎墙柱钢筋、安装预埋→立墙柱模板→立梁板模板→浇注墙柱混凝土→绑扎梁板钢筋→浇梁板混凝土。
顶棚粉刷→门窗安装→门窗护角→墙面粉刷→顶棚墙面涂料→楼地面→门窗油漆→电器安装
砌体→外墙粉刷→门窗安装→外墙装饰→墙面清理→落外架
严格按照本工程施工图纸(含设计单位提供的设计变更图纸)图纸会审纪要等技术资料和按现行的国家、本地区有关的施工技术规范、规程、质量验评标准、施工组织设计等组织施工,保证综合评定指标达到优良工程标准。
无重大安全事故,轻伤频率控制在6‰以下,创文明施工工地。
本工程确保在560日历天内完成全部施工任务,通过竣工验收并办理工程移交手续。
根据我司质量保证体系,制定和建立本工程的质量保证体系。
项目经理部在与建设单位办理好现场交接手续后,根据建设单位或监理单位提供的定位轴线和高程基准点,现场检查、复核并建立测量控制网,设置场区永久性控制坐标和水准基桩,做好记录,提交有关部门备案。
基于本工程特点采用以下几种测量仪器来确保测量的精度:
积极推广和应用新技术、新工艺、新材料,依靠科学技术求质量、保工期、创效益。同时,结合本工程特点及设计要求,拟采用以下新技术、新工艺、新材料:
按照施工总平面布置规划,搭设办公室、仓库、宿舍、食堂、浴厕、临时设施等。所有场地内材料堆场的地面均作硬地处理。
本工程一期场内临时道路已硬化处理,二期地下室以外周边,按照施工总平面布置,留设场内道路,道路路面均采用砼浇筑,其余的地面均硬地处理,场内四周设排水沟,排水沟端部设沉淀池,再排至市政下水口。
现场甲方已设有一台315千瓦变压器供施工用电。根据现场用电设备和用电容量进行导线截面选择,做好临时用电敷设布置,为了防止因停电而停工,现场设一台120千瓦的柴油发电机作为备用电源。
本工程现场建设单位已将水源引入场地东北角,施工现场内用φ50的水管将水源分别接至各单位工程附近和生活区内。楼层用水主要是用高压水泵供水,为了防止停水而影响施工,现场设置2个20t水池,由市政管网供水。
在场地搭设一间临时厕所,污水通过化粪池后排入市政管网。
通过对现场的实地观测并对照总平面设计图,现有主出入口设置在东南角,在西北角设有一备用出入口,具体的道路布置详施工总平面布置图。
施工通道路面作法为将地面夯实,浇筑100厚C20砼,施工道路东南角入口处宽度为6.0m,进入现场后道路宽4m。
根据项目部的机构设置,各部门办公室布置如下表:
办公用房 | 面积(m2) | 间数 | 使用部门 |
经理室 | 12 | 1 | 项目经理、技术负责人 |
生产机电管理室 | 40 | 1 | 施工生产组 |
技术安质组 | 20 | 1 | 技术安质组 |
经营室 | 12 | 1 | 经营管理组 |
材料组 | 16 | 1 | 材料管理组 |
会议室 | 60 | 1 | 共用 |
合计 | 160 | 6 |
|
表 2现场办公用房分配表
生活设施拟布置在场地的西向。生活设施内容包括:浴室,临时食堂,工人宿舍、厕所,一定面积的工人活动室,管理人员休息室等,他们所需面积如下:
⑴管理人员值班休息室:2.0 m2 /人×10人 =20m2
⑵工人宿舍: 2.0m2 /人×150人 =300m2
⑶临时食堂: 0.5m2/人×200人=100m2
⑷浴室: 0.07m2 /人×200人 =14.0m2
⑸厕所: 0.06m2 /人×200人 =12.8m2
⑹活动室: 0.1m2 /人×200人=20m2
以上面积合计为446m2 。
钢筋、模板堆场为露天式堆放,具体位置详平面布置图。
根据本工程平面布置和结构质式,二座主楼均为77.0米高,标准层一期单层面积为807.4m2,二期单层面积为860.1m2;为剪力墙结构,标准层单层垂直运输主要为钢筋和模板(砼采用泵送),二座单层钢筋量为120t左右,模板约5000m2。QTZ125塔吊臂长55.0m时,吊运能力为1.5t/吊,每个台班产量为80~120吊次,标准层施工进度按月施工4层计,则布置1台QTZ125塔吊才能满足施工要求。
塔吊布置在原一期地下室施工时塔吊布置位置处,即一期地下室汽车坡道上,由于一期地下室施工时塔吊承台是按80t.m塔吊进行设计施工,而本次招标
要求一、二期同时施工,80t.m塔吊吊臂长度不够,吊运能力满足不了施工要求,现改为QTZ125需对原塔吊承台进行加固,预埋螺栓需重新预埋。
加固方法:由于80t.m塔吊与125t.m塔吊标准节尺寸不同,故需把现有底座标准节拆除,重新按125t.m塔吊的标准节尺寸要求埋设地脚螺栓,螺栓埋设采用喜得利植筋技术,地脚螺栓埋设完毕,对原承台基础面层砼进行凿毛,用水清洗干净,再绑扎一层φ16@150钢筋双向,φ16钢筋必须与新旧预埋螺栓焊接,然后浇捣250mm高C30砼。(如右图)
注意:
(1)旧的预埋地脚螺栓不要把它割掉,与φ16钢筋焊接。
(2)新预埋的螺栓与旧螺栓采用短钢筋将其焊接相连接。
电梯采用2台,一、二期主楼各一台,布置在地下室顶板C轴~D轴之间(具体见下图),电梯处地下室顶板需进行加固处理,加固采用φ48钢管,支撑至地下室二层底板。

供水管径选择DN50mm。考虑到场地较大,故水管分3 路到现场及生活区,每路用 50mm镀锌管连接,进入施工楼层采用25mm管径,具体见平面布置图(见附图)。
施工用水量:按日用水量最大的浇筑混凝土工程量计算:
![]()
式中K1取1.05,K2取1.5,N1取2000,Q1取80
![]()
式中P1取300人,N3取50L/人班,K4取1.4
则q2=![]()
q3=
式中P2取150人,N4取100L,K5取2.3
则q3=![]()
q1+q2+q3=9.88<q4=10(L/s)
故取Q=q4=10(L/S)
D=![]()
因此供水管径可采用φ100的上水管。
详见第七章
详附图1
详附图2
详见附图3
详附图4
详附图5
详附图1
详附图2
详见附图3
详附图4
详附图5
本工程支护结构采用内撑式围护结构即冲(钻)孔灌注桩作为围护桩,高压旋喷(搅拌旋喷)桩(≥500)作悬挂式止水帷幕,用多排500水泥搅拌桩进行基坑底被动区土体加固,现浇钢筋混凝土作为水平支撑体系。钻孔灌注桩作直立式坑壁,钻孔灌注桩直径为φ700m、φ800mm和φ900mm,桩身长度φ700m、φ800mm为15.0m;φ900mm为18.0m。桩间距为φ700m@900、φ800@1100和φ900@1140。基坑东、南、北侧外侧设置一排直径≥φ500的高压旋喷桩,设计有效桩长为13.0m,作为悬挂式止水帷幕。由于基坑周边紧邻建筑物和市政道路,各种市政管道密集。为了减少对周围的影响,采用多排φ500水泥搅拌桩进行基坑底被动区加固,桩距为450,搭接长度为50,设计有效桩长为5.0m和3.0m。水泥搅拌桩的水泥掺合量为15%;设一层支撑系统,其支撑顶标高为-2.40m,支撑采用钢筋砼结构。基坑水平向角点设置桁架角撑,基坑南北向长边设置一道对撑,支撑断面有1000×700、800×700、600×600和500×500;为增加坑壁整体性,在钻孔灌注桩顶部设置钢筋砼圈梁,断面为1000×500,在-2.40处设置钢筋砼围檩,断面为1200×700;由于本工程采用一道内支撑,并且离基坑开挖面距离较大,为减少墙体变形,和基坑开挖对临近管线和建筑物的影响,本工程采用对基坑内侧开挖面以下土体采用深层水泥搅拌桩进行地基加固,地基加固深度为5.0和3.5m。
由于目前基坑土方已开挖至-3.2米处,坑内没有留任何斜坡道,车辆无法直接进入坑内装运土,车辆只能在坑顶装运土,故根据本工程的特点车辆停在南面出入口处装运土。土方白天采用人工开挖塔吊吊运至坑内临时卸土点,再由一台挖掘机在坑顶从临时卸土点盘土装车。由于本工程现有地下室只到38轴处,故38轴与39轴间的部分土方不开挖到底,留住作为缓压土,以免此处坑顶运土车辆和挖掘机作业影响基坑稳定。
第一层土开挖采用一台小型挖掘机配合人工分别从基坑的西北角和北边开挖,逐步往基坑东南角卸土点退挖,挖深在-2.8m左右,一次性挖到标高-6.0米;第二层土方开挖同第一层土开挖,由于挖土机械不得碰撞内支撑,故角撑下土采用人工开挖塔吊配合运土。白天把土方堆放在临时卸土点挖掘机作业区范围,然后晚上由挖掘机盘运装车。第三层承台土方开挖全部采用人工开挖。
为了减少雨季对支护结构及地下室结构施工的影响,在基坑护壁四周设置排水沟与集水井,排水沟与集水井同坑内排水沟,集水井做法相同(此排水沟已施工)。在基坑内四周沿支护周边设置环形连通排水明沟组织排水,明沟净尺寸为350(宽)×350(高)采用120厚砖砌,2‰找坡,1:3 水泥砂浆内侧粉刷。在基坑内每隔30米设一个集水井,集水井净尺寸为0.8m(宽)×0.8m(长)×1.0(高),集水井采用240厚砖砌筑,内壁用1:3水泥砂浆粉刷。并设置一个抽水污水泵,污水泵Φ100行程30m,抽到地面集水井排至现场污水池后再排入市政排水管网,地面水直接排至地面明沟汇集至集水井后排放。
挖土机械上支撑面,必须铺垫路基箱,挖土应倒退进行,不得在下部无土的支撑面上行驶停放。
本工程钢筋用量大。规格型号多直径大(最大为Φ32), 布筋排列密集,特别是地下室底板厚度厚,其中大承台底板厚2.0m,钢筋排列密集。框架柱梁断面尺寸大,配筋密集(最大柱为 1650×900配筋为32φ25)。转换层处梁断面尺寸较大(最大尺寸为1100×2200,配18根φ25钢筋),转换层以下为框剪结构,以上为纯剪力墙结构,配筋设计复杂,因此本工程钢筋需精心组织钢筋工、电焊工等工种的施工及交叉配合作业,保证质量。
所有钢筋的采购,由我司材料分公司从经我司审批确认合格的供货商处采购。当钢筋进场时都要由项目部安排人员按图纸设计及规范的要求进行验收。检查出厂质量证明书和试验报告,验收都合格后,方由采购员和仓库保管员在验收单上签字,然后在验收合格的钢筋上做好合格标识,入库保存使用,对于不合格品坚持不予入库,以确保钢筋原材料的质量。
由于本工程所用钢筋量多,现场场地紧,为了更加文明施工,决定由公司综合加工厂加工,同时在现场设备用钢筋加工设备以便加工零星钢筋。
钢筋调直机、切断机、弯曲成型机,对焊机及相应吊装设备等。
各种规格、各种级别的钢筋,必须有出厂合格证,进厂后须经物理力学性能检定,对于进口钢材增加化学检验,经检验合格后方能使用。
本工程地下室面积较大,其中一期工程地下室已施工完毕;二期工程地下室采用现浇钢筋混凝土结构,基础底板最厚达2.0m,地下室用钢量占整个工程用钢量的1/3,框架剪力墙厚度厚,配筋密集、直径粗(Φ25、Φ22、Φ20间距150mm), 绑扎安装难度大。
底板钢筋的运输
由于地下室深度深,故整个地下室底板钢筋,均需由塔吊从地面吊运到底板安装。
底板钢筋的安装
底板钢筋支撑架设计
由于地下室底板面积大,厚度为2.0米,钢筋为Φ25@150,分布密,上下皮钢筋高差大,采用传统的钢筋马凳,稳定性差。经研究决定采用粗钢筋接成支架来支承上皮钢筋的重量,控制钢筋的标高和上部的全部施工荷载。
根据图纸的底板钢筋排列节点大样,支架采用Φ28钢筋焊接而成,大样如附图所示,施工荷载按1.5KN/m2考虑,规范规定基础底板保护层允许偏差为10mm,布置如下图所示。

底板钢筋卸料平台设计
用钢管在底板中各塔设2个临时卸料平台,钢筋由塔吊吊运到卸料平台,然后再由人工搬运到安装地点,卸料平台直接用钢管加固而成。
安装要点
本工程底板由于是双向受力的钢筋,故在绑扎时,除四周钢筋交叉点,应每点扎牢外,其他钢筋交叉点也必须全部扎牢。上下层钢筋有接头的应按规范要求错开,其位置和塔接长度均要符合规范和设计要求。墙、柱主筋插入基础深度要符合设计要求,并根据弹好的墙柱位置,将预留插筋点焊固定牢固,以确保位置准确。
底板混凝土上放线后应再次校正预埋插筋,移位严重时要按规定认真处理,必要时应找设计单位共同商定。墙模宜“跳间支模”,以利钢筋施工。
先绑2~4根竖筋,并画好分档标志,然后于下部及齐胸处绑两根横筋定位,并在横筋上画好分档标志,然后绑其余竖筋,最后绑其余横筋。
墙、柱等竖向结构中的钢筋,按设计要求Φ25及以上主筋均按冷挤压连接,Φ22~Φ16主筋用电渣压力焊连接,Φ16以下主筋及构造筋用绑扎接头连接。
墙钢筋应逐点绑扎,采用双层钢筋网时,在两层钢筋之间应按图纸设计要求设置拉筋,钢筋外皮套保护层垫块。
为保证门洞口标高位置正确,在洞口竖筋上划标高线,洞口要按设计要求加绑附加钢筋。钢筋有180°弯钩时,弯钩应朝向混凝土内, 墙水平钢筋在两端头,转角十字节点,连梁等部位的锚固长度及门洞口上下梁两端锚入墙内长度要符合设计要求。
合模后,对伸出的钢筋应进行修整,并在搭接处绑一道临时横筋定位,浇筑混凝土时派专人看管,浇筑后再次调整以保证钢筋位置的准确。
配合其他工种安装预埋铁管件,预留洞口的位置,标高均应符合设计要求。
纵向受力钢筋出现双层或多层排列时,两排钢筋之间应垫以直径25mm的短钢筋,如纵向钢筋直径大于25mm时,短钢筋直径规格与纵向钢筋相同规格。
箍筋的接头应交错设置,并与两根架立筋绑扎,其余做法与柱相同。
板的钢筋网绑扎与基础底板相同,注意板上部的负钢筋要防止被踩下。
板、次梁与主梁交叉处,板的钢筋在上,次梁的钢筋在中层,主梁的钢筋在下。
本工程柱子截面大钢筋密,应按图纸要求间距,计算好每根柱箍筋数量,先将箍筋都套在下层伸出的搭接筋上,然后立柱子钢筋,先绑扎成型柱芯钢筋及箍筋,再绑扎外围周边钢筋,即由里到外,由上到下顺序绑扎安装。在搭接长度内,绑扎扣不少于三个,绑扣要向里。
竖向钢筋的弯钩应朝向柱心,角部钢筋的弯钩平面与模板面夹角,对矩形柱应为45°角,中间钢筋的弯钩与模板成90度。
对于≥Φ25的墙、柱主筋采用冷挤压连接,对Φ22~Φ16主筋采用电渣压力焊连接,而对Φ16以下主筋采用绑扎。绑扎接头的搭接长度应符合设计及规范要求。
在立好的柱子钢筋上用粉笔划出箍筋间距,然后将已套好的箍筋往上移动,由上往下采用缠扣绑扎。箍筋与主筋垂直,箍筋转角与主筋交点均要绑扎,主筋与箍筋非转角部分的相交点成梅花式交错绑扎。箍筋的接头应交错排列垂直放置,绑扎箍筋时,铁线扣要相互成八字形绑扎。在柱基、柱顶、梁柱交接等处,箍筋间距应按设计要求加密。
当上下层柱截面有变化时,其下层柱钢筋的露出部分,必须在绑扎梁钢筋之前,先行收分准确,尺寸要符合设计要求。柱筋保护层砼垫块应绑在柱主筋外皮上,间距一般1000mm左右,以保证主筋保护层厚度的正确。
墙的钢筋网绑扎同地下室,钢筋有180°弯钩时,弯钩应朝向混凝土内。
采用双层钢筋时,在两层钢筋方向,应按要求设置马凳撑铁以固定钢筋的间距。
按图纸设计梁纵向受力钢筋有相当部分是双层或多层排列,在两排钢筋之间垫上短头钢筋,其排距应符合设计要求,由于框架梁高度高,拟采用模内钢筋绑扎,绑扎顺序:在主梁模板上按图纸划好箍筋的间距→主筋穿好箍筋且按已画好的间距逐个分开→固定弯起筋和主筋→穿次梁弯起筋和主筋并套好箍筋→放主梁架立筋、次梁架立筋→隔一定间距将梁底主筋与箍筋绑住→绑架立筋→再绑主筋。
箍筋的接头应交错设置,箍筋弯钩均为135°,对于悬臂梁则箍筋接头在下。弯起筋和负弯矩钢筋位置要准确,在梁柱交接处梁钢筋锚入柱内长度应符合设计要求。
梁钢筋直径大于等于25mm时采用冷挤压连接,直径为25mm及小于25mm时钢筋采用焊接连接,均应符合设计及规范要求。
框架梁节点处钢筋穿插十分稠密,应注意梁顶面主筋间的净间距要留有30mm,以利灌筑混凝土之需要。受力钢筋的混凝土保护层厚度,应符合设计要求。
板筋绑扎时,先要清扫板上刨花,碎木、电线管头等杂物,并用粉笔在模板上划好主筋,分布筋间距,然后按画好的间距,先摆受力立筋,后分布筋,预埋件、电线管、预留孔等及时配合安装。
板受力主筋直径大于等于16mm的连接同梁,小于等于16mm采用绑扎连接,钢筋搭接长度应符合设计要求。
本工程板厚较厚,多处板为双层钢筋,须在两层筋之间加钢筋马凳,以确保上部钢筋的位置正确,在板上部的负钢筋也应采用马凳来严格控制负筋位置,且在绑扎负弯矩钢筋时,每个扣均要绑扎,最后在主筋下垫垫块,以确保保护层厚度15mm。
板、次梁与主梁交叉处,板的钢筋在上,次梁的钢筋在中层,主梁的钢筋在下。
在楼梯段底模上画主筋和分布筋的位置线。
根据设计图纸主筋,分布筋的分向,先绑扎主筋后绑扎分布筋,每个交点均绑扎,如果有楼梯梁时,先绑梁后绑板筋,且板筋要锚固到梁内。
主筋接头数量和位置均要符合施工及验收规范要求。
底板筋绑完,待踏步模板吊邦支好后再绑扎踏步钢筋。
根据本工程设计要求决定柱剪力墙等竖向结构中Φ25及以上主筋采用冷挤压连接,Φ22~Φ16主筋按电渣压力焊连接,Φ16以下主筋及构造筋按绑扎接头连接。对于梁板等水平结构,Φ25以下主筋按焊接连接,Φ25及Φ25以上按冷挤压连接。(各种钢筋连接操作工艺详见有关操作规程)
地下室底板后浇带钢筋表面均刷素水泥砂浆一道保护,后浇带上铺混凝土预制盖板,防水砂浆作浆灌缝以防污水浸泡钢筋。
内外钢筋砼墙厚度较大,一次性浇筑高度较高,地下外墙砼厚为300-400 mm,墙模板量大,一次浇筑高度大等。
根据投标要求,施工工期紧,单层梁板模板量大,且层较高,因此在保证进度和质量的情况下,如何减少模板一次投入,提高效益是模板设计的关键。
针对以上所概述的本工程模板的特点、难点,我们进行了针对性的模板设计的制定。
地下室外墙面板采用18厚胶合板,尺寸915mm×1830mm,竖楞采用70×150间距为366mm,横楞采用2Φ48壁厚3.5mm的钢管间距为915mm,对拉螺栓采用Φ12@366×915mm。具体详本章节附图。
板厚主要有: 100、120、130,150、160、200、230、250mm等;
板厚为100-150mm楼板面板采用规格0.915×1.83m胶合板进行拼装,次龙骨采用50×100松木方条沿短边方向布置,间距650mm,主龙骨采用70×150,沿长边方向布置,采用门架,间距为1800-2000,具体详附图。
板厚为150mm以上楼板面板采用规格0.915×1.83m胶合板进行拼装,次龙骨采用50×100松木方条沿短边方向布置,间距650mm,主龙骨采用70×150,沿长边方向布置,采用钢管支撑,间距900mm,水平拉杆间距为1800mm具体详本章节附图。
梁底、梁侧模板面板拟采用胶合板加工组拼而成。
对于梁高大于800的梁模板采用18mm厚九合板,主龙骨采用70mm×150mm,间距450mm,钢管架支撑;侧模竖楞采用50mm×100mm,间距350mm,横楞采用50mm×100mm,间距350mm,在梁侧横楞设φ12对拉螺栓,间距 600mm具体详本章节附图。
对于梁高小于800的梁模板采用18mm厚九合,纵楞采用70mm×150mm,门架支撑;侧模竖楞采用50mm×100mm,间距350mm,横楞采用50mm×100m,间距400mm, 间距 900mm,具体详本章节附图。
墙模面板采用18厚胶合板,尺寸915×1830,竖楞采用8#槽钢,间距为366mm,横楞采用10#槽钢,龙骨间距为915mm,Φ14对拉螺栓连接,具体详本章节附图。
⑴模板材料的选择
地下室底板后浇带宽1000mm,底板上下各有二层双向板筋,因此后浇带模板若采用常规木模板施工方法时,存在以下施工难点:
1)模板安装难,支撑不到位。
2)模板拆除后,难以取走木模板和进行必要的砼清理。
其特点和优点
钢丝网作为作为消耗材料来使用的。当混凝土浇筑时,网眼上的斜角片就镶嵌在混凝土里,形成一个与临近浇注块相连的楔形。接缝的质量受到严格的控制,其粘贴及剪切方面的强度可与经过良好处理的粗琢缝合相比美。
(2)后浇带的支撑
后浇带由于在主体封顶后浇捣,因此,此部分模板须留下,具体详本章节附图,。
地梁承台采用标准砖1:2.5水泥砂浆砌筑砖模,2.0厚承台底板砖模采用240厚;其余的承台砖摸均采用120厚,面层均采用1:2.5水泥砂浆抹平。

⑴地下室结构模板
墙柱模板和梁板模板各配置一套。
柱、墙模板采用18mm厚木胶合板作面板,松方木作内楞。柱采用槽钢柱箍,对拉螺栓加固。墙外楞采用Φ48钢管配置3型扣件和对拉螺栓加固。梁板采用18mm厚木胶合板作面板,松方木作龙骨,支撑采用门架和钢管相结合的形式。
⑵上部结构模板
采用18mm厚木胶合板作面板,梁板模板支撑采用门架与钢管支撑相结合的方式。梁板模板采用散装散拆的方式。柱、墙模板各配置一套,每周转层3次整修一次。梁板模板配置3套,支撑配置3套。
1)操作工艺流程
墙、柱模板完工后→支梁模及板模→调整梁底支架、支梁底模→(绑梁筋)支顶板模,梁侧模,穿梁模拉杆绑板筋→调直梁模,拧紧拉杆螺栓→梁模处于待浇混凝土状态。
2)注意事项
①支梁模时应按规范要求在梁腹起拱。
②除支梁架外必须在梁底间隔2m,支单管撑。
③梁侧模应按三套考虑,进行周转。
1)施工艺流程
柱筋验收后,支柱架→焊柱墙定位限位→按柱模弹线安装柱墙模,将每块柱模临时拉在柱筋上→按柱截面尺寸穿对拉螺栓→调直柱模,拧紧对拉螺栓→柱模处于待浇混凝土状态。
2)注意事项
①柱截面变化较大,不用的拉杆孔眼用塑料堵塞封好。
②因柱模自身的精度要求较高,所以,在砂浆找平时,尽量满足找平要求,必要时,用木契垫平。
模板附图












内外钢筋砼墙厚度较大,一次性浇筑高度较高,地下外墙砼厚为300-400 mm,墙模板量大,一次浇筑高度大等。
根据投标要求,施工工期紧,单层梁板模板量大,且层较高,因此在保证进度和质量的情况下,如何减少模板一次投入,提高效益是模板设计的关键。
针对以上所概述的本工程模板的特点、难点,我们进行了针对性的模板设计的制定。
地下室外墙面板采用18厚胶合板,尺寸915mm×1830mm,竖楞采用70×150间距为366mm,横楞采用2Φ48壁厚3.5mm的钢管间距为915mm,对拉螺栓采用Φ12@366×915mm。具体详本章节附图。
板厚主要有: 100、120、130,150、160、200、230、250mm等;
板厚为100-150mm楼板面板采用规格0.915×1.83m胶合板进行拼装,次龙骨采用50×100松木方条沿短边方向布置,间距650mm,主龙骨采用70×150,沿长边方向布置,采用门架,间距为1800-2000,具体详附图。
板厚为150mm以上楼板面板采用规格0.915×1.83m胶合板进行拼装,次龙骨采用50×100松木方条沿短边方向布置,间距650mm,主龙骨采用70×150,沿长边方向布置,采用钢管支撑,间距900mm,水平拉杆间距为1800mm具体详本章节附图。
梁底、梁侧模板面板拟采用胶合板加工组拼而成。
对于梁高大于800的梁模板采用18mm厚九合板,主龙骨采用70mm×150mm,间距450mm,钢管架支撑;侧模竖楞采用50mm×100mm,间距350mm,横楞采用50mm×100mm,间距350mm,在梁侧横楞设φ12对拉螺栓,间距 600mm具体详本章节附图。
对于梁高小于800的梁模板采用18mm厚九合,纵楞采用70mm×150mm,门架支撑;侧模竖楞采用50mm×100mm,间距350mm,横楞采用50mm×100m,间距400mm, 间距 900mm,具体详本章节附图。
墙模面板采用18厚胶合板,尺寸915×1830,竖楞采用8#槽钢,间距为366mm,横楞采用10#槽钢,龙骨间距为915mm,Φ14对拉螺栓连接,具体详本章节附图。
⑴模板材料的选择
地下室底板后浇带宽1000mm,底板上下各有二层双向板筋,因此后浇带模板若采用常规木模板施工方法时,存在以下施工难点:
1)模板安装难,支撑不到位。
2)模板拆除后,难以取走木模板和进行必要的砼清理。
其特点和优点
钢丝网作为作为消耗材料来使用的。当混凝土浇筑时,网眼上的斜角片就镶嵌在混凝土里,形成一个与临近浇注块相连的楔形。接缝的质量受到严格的控制,其粘贴及剪切方面的强度可与经过良好处理的粗琢缝合相比美。
(2)后浇带的支撑
后浇带由于在主体封顶后浇捣,因此,此部分模板须留下,具体详本章节附图,。
地梁承台采用标准砖1:2.5水泥砂浆砌筑砖模,2.0厚承台底板砖模采用240厚;其余的承台砖摸均采用120厚,面层均采用1:2.5水泥砂浆抹平。

⑴地下室结构模板
墙柱模板和梁板模板各配置一套。
柱、墙模板采用18mm厚木胶合板作面板,松方木作内楞。柱采用槽钢柱箍,对拉螺栓加固。墙外楞采用Φ48钢管配置3型扣件和对拉螺栓加固。梁板采用18mm厚木胶合板作面板,松方木作龙骨,支撑采用门架和钢管相结合的形式。
⑵上部结构模板
采用18mm厚木胶合板作面板,梁板模板支撑采用门架与钢管支撑相结合的方式。梁板模板采用散装散拆的方式。柱、墙模板各配置一套,每周转层3次整修一次。梁板模板配置3套,支撑配置3套。
1)操作工艺流程
墙、柱模板完工后→支梁模及板模→调整梁底支架、支梁底模→(绑梁筋)支顶板模,梁侧模,穿梁模拉杆绑板筋→调直梁模,拧紧拉杆螺栓→梁模处于待浇混凝土状态。
2)注意事项
①支梁模时应按规范要求在梁腹起拱。
②除支梁架外必须在梁底间隔2m,支单管撑。
③梁侧模应按三套考虑,进行周转。
1)施工艺流程
柱筋验收后,支柱架→焊柱墙定位限位→按柱模弹线安装柱墙模,将每块柱模临时拉在柱筋上→按柱截面尺寸穿对拉螺栓→调直柱模,拧紧对拉螺栓→柱模处于待浇混凝土状态。
2)注意事项
①柱截面变化较大,不用的拉杆孔眼用塑料堵塞封好。
②因柱模自身的精度要求较高,所以,在砂浆找平时,尽量满足找平要求,必要时,用木契垫平。
模板附图












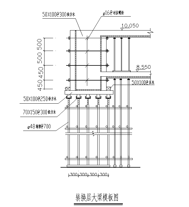
本工程一、二期在第三层均设梁式转换层,梁面标高10.050,混凝土强度等级为C40。转换层框支梁有900mm×2200mm、850mm×2200mm、800mm×2200mm、500mm×2200mm和600mm×2200mm,以及600mm×1700mm等。
弹线→绑扎二层框支柱、墙钢筋(墙水平筋及柱箍筋绑至框支梁底)→立框支梁底和标高8.37m以下梁内侧模、三层梁板模板→套框支梁箍筋和铺放梁底钢筋、绑扎三层楼板梁板钢筋→用钢管搭设支承架至框支梁面钢筋标高处→铺设框支梁梁面钢筋,绑扎腰筋、箍筋→立框支梁外侧模→三层楼板梁板混凝土浇捣→绑扎框支梁三层以上的墙水平筋→立墙模→立转换层楼板梁板模→绑扎转换层楼板梁板钢筋→上部竖向钢筋插筋→浇筑轻换层混凝土→养护→拆模
采用胶合板组合模板,由18mm厚胶合板,50mm×100mm承力背楞、φ48×3.5mm钢管及M16对拉螺栓和活动钢管支柱组成。框支梁模板安装时要求按2.5‰L起模,(L为梁跨度)。根据结构设计要求转换层大梁混凝土需分二次浇捣,即三层楼板面以下浇捣一次,约700高,标高8.850~10.050再浇捣一次,经计算在转换层框支梁下竖向对应位置应保持三层支撑,即应支撑至±0.00地下室顶板,模板设计计算如下,取900mm×2200mm进行设计计算。

强度验算:
底板承受荷载:
底模板自重:0.3×0.9=0.27 KN/m
混凝土自重:25×0.9×2.2=49.5 KN/m
钢筋自重: 1.5×0.9×2.2=2.97 KN/m
振动荷载: 2.0×0.9=1.8 KN/m
恒载:q=(0.27+49.5+2.97)×1.2=63.288KN/m
活载:q’=1.8×1.4=2.52KN/m
钢管架间距300,底模横楞间距250
按五跨连续梁计算,最不利何载布置,查表可得,
250 250 250 250 250
Mmax=Kmql2=(0.105×63.288+0.119×2.52)×0.252=0.434KN.m
Vmax=Kvql=(0.606×63.288+0.620×2.52) ×0.25=10.000KN.m
σmax=Mmax=0.434×103/(1/6×0.9×0.0182)
=7.0×106(N/m2)=7.0(N/mm2)<[f]=10.0(N/mm2)
τmax=3Vmax/2bh=3×10.000×103/(2×0.9×0.018)
=0.925×106(N/m2)=0.925(N/mm2)<[fv]=1.4(N/mm2)
挠度验算
ωmax=Kwql4/100EI
=0.632×63.288×0.254/(100×10000×106×1/12×0.9×0.0183)
=0.01mm<[ω]=1mm
满足要求。
300 300 300 300
荷载计算
恒载:q=(25×2.2+1.5×2.2)×1.2=69.96KN/m2
活载:q’=2.0×1.4=2.8KN/m2
恒载:q=99.96×0.25==24.99KN/m2
活载:q’=0.25×2.8=0.7KN/m2
Mmax=Kmql2=(0.107×24.99+0.121×0.7)×0.32=0.250KN.m
Vmax=Kvql=(0.607×24.99+0.620×0.7) ×0.3=4.676KN.m
σmax=Mmax=0.250×103/(1/6×0.05×0. 12)
=3.0×106(N/m2)=3.0(N/mm2)<[f]=10.0(N/mm2)
τmax=3Vmax/2bh=3×4.676×103/(2×0.05×0. 1)
=1.40×106(N/m2)=1.4(N/mm2)<[fv]=1.4(N/mm2)
挠度验算
ωmax=Kwql4/100EI
=0.632×24.99×0.254/(100×10000×106×1/12×0.05×0. 13)
=0.01mm<[ω]=1mm

700 700 700 700
强度验算:
F=24.99×0.3=7.497 KN
Fq=0.7×0.3=0.21KN
Mmax=0.169FL+0.21 FqL
=0.169×7.497×0.7+0.21×0.21×0.7
=0.887+0.0308=0.918
Vmax=0.661F+0.580 Fq
=0.661×7.497+0.580×0.21
=4.956+0.122=5.078
σmax=Mmax/Wx=0.918×106/(1/6×70×1502)
=3.49(N/mm2)<[f]=10(N/mm2)
τmax=3Vmax/2bh=3×5.078×103/(2×70×150)
=0.73N/mm2)<[fv]=1.4(N/mm2)
满足要求。
挠度验算:
ωmax=1.079Fl3/100EI
=1.079×5.078×7003/(100×10000×1/12×70×1503)
=0.09mm<[ω]=l/250=2.8mm
满足要求。
钢管支撑验算:

700 700 700 700
立杆最大压力
R=(0.661+0.554) ×7.497+(0.580+0.027) ×0.21
=1.215×7.497+0.607×0.21
=9.237
i2=(d2+d12)/4=482+422/4
i=31.90
λ=L/i=1.2/0.0319=37.6<[λ]=150
查表得φ=
δ=N/φA=9.237×103/φ×4.24×10-4
侧压力计算:
F=0.22γcβ1β2V1/2
=0.22×25×200/(40+15) ×1.2×21/2=33.94KN/m2
P=25H=25×2.2=55KN/m2
取二者较小值P=33.94KN/m2计算
振捣荷载取4KN/M2
q=1.2×33.94×1.0=40.73KM/M
q’=1.4×4=5.6KN/M
强度验算

300 300 300 300
Mmax=Kmql2=(0.107×40.73+0.121×5.6)×0.32=0.453KN.m
Vmax=Kvql=(0.607×40.73+0.62×5.6) ×0.3=8.46KN
σmax=Mmax/Wx=0.453×106/(1/6×1000×182)
=8.35(N/mm2)<[f]=10(N/mm2)
τmax=3Vmax/2bh=3×8.46×103/(2×1000×18)
=0.7(N/mm2)<[fv]=1.4(N/mm2)
满足要求。
挠度验算:
ωmax=Kwql4/100EI
=0.632×40.73×3004/(100×10000×1/12×1000×183)
=0.498mm<[ω]=1mm
满足要求。
转换层钢筋施工重点在框支梁,由于框支梁跨度大,梁主筋均为直径25~32mm,且框支梁配筋密集,现场施工难度大。
框支梁钢筋直径25mm以下采用闪光对焊接头;直径25~32mm的主筋在现场就位后,采用冷挤压机械连接接头,同一截面接头数量不超过40%。
框支梁面筋接头设在跨中1/3范围内;底筋接头在跨边1/3范围内,钢筋弯起点10d外并应避开框支梁端部箍筋加密区。
梁箍筋就位→框支梁底筋铺放冷挤压连接→梁面筋就位冷挤压连接→梁面筋绑扎→穿构造钢筋→绑扎梁底筋→绑扎构造钢筋、拉结筋→拆除梁面筋支承架体→整理验收。
梁底筋搁置在梁底模上,底筋铺置后搭设支承架至上部钢筋的底排筋标高处,搁置钢筋的支承架标高应严格控制。上部钢筋底排铺置到位后用直径25mm钢筋垫铁隔开,铺放顶排梁面筋。
延缓拆模时间。在浇筑混凝土后7d拆除第一层(30mm厚草袋)保温层,第15d拆除梁侧模。
本工程二期地下室基坑支护采用排桩支护加一道钢筋混凝土内撑,内支撑梁和腰梁采用C20混凝土,截面尺寸为本1200×700、1000×700、800×700、600×600和500×500,梁面标高-2.40。地下室施工,地下一层梁板需进行换撑才能拆除钢筋混凝土内撑,然后继续施工地下一层结构。由于本工程底下室支护结构设计按原结构设计,现地下室已收至38轴,故东边地下室外墙支护墙距离有6350mm,按原支护结构设计要求,基坑土方开挖至设计标高后,立即施工地下室底板结构及底板与围护桩之间的传力带,待地下室二层外墙及地下一层楼面达到设计强度后方可进行地下二层外侧墙的填土,回填完成并满足要求后,进行地下一层楼面处的传力带施工,待传力带混凝土达到设计强度后方可拆除水平支撑。
本工程一期地下室按原来的设计图纸已97年施工完毕,现由于平面布置做局部调整,故相应结构需进行局部更改。结构修改钢筋采用喜得利植筋技术,部分加固措施采用碳纤维(碳纤维加固施工方案待中标后另由专业队伍编制)。
原构件砼面凿毛→植筋→表面处理→钢筋绑扎→支模板→浇筑混凝土
按设计要求植筋深度为15d,d为主筋直径。
钻孔→清刷孔壁→吹出灰尘→用粘合剂填孔→插入钢筋→待粘合剂凝固愈合后进行钢筋绑扎等后续工序。
植筋孔的施工
测量放线:根据施工要求,在欲钻孔的构件上放出钻孔位置线。将构件表面的混凝土保护层剔凿干净,露出受力钢筋。
根据钢筋直径确定钻孔深度,调整电钻上的孔深标尺。用孔刷将刚钻的孔穴侧壁上的灰尘刷净。用气筒将孔内刷落的灰尘吹出。
安装注射系统
将装有粘合剂的箔罐放入把手,混合器旋上箔罐后再放入MD2000分配器。
注射粘合剂并插入钢筋
自孔穴底部开始喷射粘合剂,填满约2/3孔深,确保粘合剂填实。粘合剂的用量V可根据钢筋直径φ、孔径D、孔深ι三个参数计算得到,即V=ι(D2-φ2)/1000。插入钢筋,钢筋对直扶正,待粘合剂凝固一定时间后方可进行绑扎钢筋等工序。在粘合剂凝固并愈合期严禁碰撞钢筋。粘合剂凝固愈合时间随基础材料的温度而变化。
表 6 粘合剂凝固愈合时间随基础材料温度变化表
基础材料温度(℃) | Pl pl pl 凝固时间(min) | 愈合时间(min) |
-5 0 5 20 30 40 | 25 18 13 5 4 2 | 360 180 90 45 25 15 |
墙体构件表面除去浮碴、尘土,用清水洗净,再在新旧混凝土交接处刷道水泥浆。
新增加部份钢筋绑扎和连接需按规范要求进行施工。
模板均采用胶合板模板,支撑采用钢管撑,如下图所示:对于梁加固和新增加的梁,模板一次性支模到位;对于柱墙加固,模板先安装楼层一段高度,混凝土浇注一段,再支撑上部模板。
本工程构件加固新浇注的混凝土等级均为C35,由于构件加固部份加配钢筋,结构尺寸较小,不利于混凝土的浇筑,因而在施工中将采用高流动性细石混凝土,振动采用直径35mm的振动棒内振动外侧敲打。
在梁侧模每隔700mm预留一个200×200浇注孔,混凝土浇筑时,用φ35mm的振动棒由此插入进行振动,如下图所示。

柱墙加固部位混凝土分段支模浇注混凝土,为了保证墙柱在顶梁板外混凝土具有较好的密实性,墙柱模板分次安装到位,混凝土从上层楼板处开洞往下浇筑,洞口尺寸视具体加固尺寸而定,一般为200×200~150×150mm。
(1)原材190×190×90,90×90×90多孔承重烧结砖,砖强度等级MU7.5,有出厂合格证和检验单(按每5万块为一批,不足为一批)。
(2)水泥:PO32.5或PO42.5
(3)砂:用中砂,并通过5mm筛孔,配制M5混合砂浆
(4)掺合料:石灰膏或粉煤灰,石灰膏熟化时间不少于7天。
砂浆搅拌机、电梯
应备有大铲、瓦刀、托线板、线垂、水平尺、皮数杆、灰桶、筛子、斗车、磅称等。
弹线→摆砖→砌筑→停歇三天→砌筑顶砖→清理墙面
⑴使用多孔砖砌筑外墙时,为提高砌体防水能力,砖之朝外面应选择棱角齐全,竖缝饱满度应达到80%以上。为了满足竖缝饱满度要求,采用勾抹子仔细补喂灰浆勾填的操作方法。
⑵砌筑外墙若留有脚手眼,应于抹灰前2天以上安排专人堵砌,其堵砌质量须经检查合格。堵砌砂浆应提高一级。
⑶框架填充的外墙斜顶砌之上下灰缝,应于抹灰前3天于外操作架上再仔细检查一次,遇有未勾又沉裂的应补勾填实。沉裂缝应踢出宽度不小于10mm的大缝,以保证重勾填实。
木质门应予砌安埋有经防腐的木砖的砼块,木砖放置应使安装时钉与木纹垂直。砼予埋块与墙同厚,长、高等于砖组合模数,使用C20细石砼。当予埋砼固定较大门窗时,予埋块应留拉结钢筋砌入墙体增强。
本工程标准层除了外墙及分户内墙、厨房、卫生间隔墙采用承重多孔烧结砖外,其余内隔墙均采用轻质隔墙GRC板。
清理楼地面并放样→配板→安装钢卡→配制胶结料→接口抹灰→立板→板缝处理(贴玻纤带)→取木楔、捻楔口→板面装修。
按配合比(低碱水泥:107胶:水)为2:1:0.2配制胶结料,所配制的材料应在30min内用完。
先用棕刷将板的结合面扫净,再用107胶(107:水=1:1)或界面处理剂涂刷板的企口及顶底部、接口带粘接部分,然后用制好的胶结料将企口凹槽刮平。若隔断到顶时,顶部刮成八字形。
将板立起定位在“U”型钢卡内后,用撬棍将板枯压实粘牢,一侧用人力推挤,使粘结面密实,缝隙≤5mm为宜,(若隔断到顶则用木楔将下口坚固)然后用依托架,靠尺校正,再按大面为准复验平直。最后用L型钢卡固定好板的下端。
一般用腻子刀将接口处(即裁口缝)挤出的胶结料刮平即可,若板下口缝隙大于20mm时,可和1:1.2细石混凝土捻口,小于20mm时用1:2.5水泥砂浆捻口,捻口砂浆渗入缝内深度不得小于20mm。若板下口缝有木楔加固时,应待上述工序完成三天后方能取出木楔,并随即将楔孔捻口。
清除裁口处接口带残渣余灰,刷107胶一遍,随即将浸胶玻纤带贴在板缝处压平赶实,并用胶结料将接口带刮平,再在接口上下端用角钢加固。
玻纤带尺寸:所有阳角处粘结200mm宽(每边各100mm)
板缝尺寸:拼缝处为贴50mm宽
以上均贴二遍为宜
对丁字墙或十字墙的板组装宜采用1.2厚L50的短角钢用射钉固定,其数量应根据墙板的尺寸(即层高关系)而论,每个锚固点之间距离不少于800mm;楼层所设定隔墙长度当超过6mm时,中间应设立柱,以加强隔断整体性。
按取木楔、捻楔口:粘结完毕的墙体,须用C20干硬性细石砼将板下口堵严,当混凝土强度达到10MPa以上,撤去板下木楔,并用同等强度的干硬性砂浆灌实。
拼板时应注意戴好安全帽,防止条板倾履砸伤,登梯固定条板时,应有人扶好梯子,避免人身坠落。
施工范围:地下室一至三层为汽车停车、车道等。
若为分格缝地面,在撒水泥砂子干灰面、过杆和木抹子搓平以后,应在地面上弹线,用铁抹子在弹线两侧各20cm宽范围内抹压一遍,再用溜缝抹子划缝;以后随大面压光时沿分格缝用溜缝抹子抹压两遍,然后交活。
基层处理:若混凝土表面很光滑,应对其表面进行“毛化处理”其方法有两种:一种是将其光滑表面用钻子剔毛,剔去光面,使其粗糙不平。另一种方法是将光滑的表面刷洗干净,并用10%碱水除去油污晾干后,在其表面用机械喷涂或用扫帚甩上一层1:1黎粥状水泥砂浆(内掺20%水重的107胶),使之凝固在光滑的基层表面,用手掰不动为止。
吊垂直、套方找规矩:按墙面上已弹的基准线,分别在门窗口角,垛,墙面等处吊垂直,套方抹灰饼。并按灰饼充筋。以墙面上充筋来控制墙面的平整。
抹底层砂浆:刷掺10%水重的107胶水泥浆一道,紧跟抹1:3水泥砂浆,每遍厚度宜在5~7mm,应分层分遍与所充筋抹平,并用大杠刮平找直,木抹子挫毛。
抹面层砂浆:底层砂浆抹好后,第二天即可抹面层砂浆,首先应将墙面洇湿,按图示分格尺寸弹分格线,粘分格条,滴水槽,抹面层砂浆,面层砂浆应采用1:2.5水泥砂浆或1:0.5:3.5水泥混合砂浆。 抹时先薄薄地刮一层灰使其与底层灰抓牢,紧跟抹第二道,与分格条抹平,并用靠尺板或小本将所抹灰层与分格条刮平,要横竖刮平,用木抹子挫平,铁抹子溜光压实。待表面无明水后,用刷子蘸水按垂直于地面的同一方向,轻刷一遍,以保持面层灰的颜色一致。及时将分格条起出,用素水泥膏将缝子勾平勾严,用抹子轻轻地压一下灰层,这样做是保证面层与底灰粘结牢固,不会因为起分格条时将面层灰拉起,造成干后空鼓。对于难起的分格条,则应待灰层干透后再起,防止起坏边棱。
如采用先打底,待底层灰全部抹完后,再反上去从上往下抹面层砂浆时,应注意先检查底层灰是否有空裂现象,如发现空裂现象应剔凿反修后再做面层,另外应注意底层砂浆上的污垢尘土等应清理干净,浇水湿润后,方可进行面层抹灰。
养护:水泥砂浆抹灰层,应在湿润的条件下养护。
基层处理:将墙面上残存的废余砂浆、污垢、灰尘等清扫干净,并用水浇墙,将砖缝中的尘土冲掉并将墙面湿润。
吊垂直、套方找规矩同上。
抹底层砂浆:可采用1:3水泥砂浆或常温时采用1:0.5:4混合砂浆,底灰应分遍与所充筋抹平,用大杠横竖刮平,木抹子搓毛,终凝后浇水养护。
面层砂浆的配合比可采用1:2.5水泥砂浆,或1:0.5:3.5混合砂浆,根据施工需要可任选其中之一。
滴水线(槽)作法及养护方法同上。
适用于本工程地下室内墙面,主楼楼梯间、卫生间、阳台、天棚等。
根据涂料工程施工及验收规范,混凝土及抹灰内墙、顶棚表面薄涂料工程,按中级要求施工。
刷第一遍乳胶漆:乳胶漆在使用前要先用萝斗过滤。涂刷顺序是先刷顶板后刷墙柱面,墙柱面是先上后下。乳胶漆用排笔涂刷。使用新排笔时,将活动的排笔毛拔掉。乳胶漆使用前应搅拌均匀,适当加水稀释,防止头遍漆刷不开。由于乳胶漆漆膜干燥较快,因此应连续迅速操作。涂刷时,从一头开始,逐渐向另一头推进,要上下顺刷,互相衔接,后一排笔紧接前一排笔,避免出现干燥后接头。待第一遍乳胶漆干燥后,复补腻子,腻子干燥后用砂纸磨光,清扫干净。
刷第二遍乳胶漆:第二遍乳胶漆操作要求同第一遍。使用前要充分搅拌,如不很稠,不宜加水或少加水,以防露底。
以上是混凝土及抹灰表面涂刷中级乳胶漆的做法。施涂普通级或高级乳胶漆时,要相应减少或增加工序,其余做法与施涂中级乳胶时基本相同。
墙柱表面的乳胶漆未干前,室内不得清扫地面,以免尘土粘污墙柱面,干燥后也不得往墙柱面泼水,以免沾污。
墙柱面涂刷乳胶漆完成后,要妥善保护,不得碰撞。
涂刷墙柱面时,不得沾污地面、门窗、玻璃等已完的工程。
基层处理→吊垂线找规矩→弹线分格→找底层砂浆→抹面层砂浆→抹聚合物水泥复合材料→滴水线(槽)→养护
外墙砼柱、墙梁与砖墙交接处,采用钢丝网宽度300mm,网目10×10用射钉固定牢固。
外墙高度分格缝按设计图所示进行分格,可采用木压条固定一缝宽30mm。
基层毛处理后可用。聚合物防水材料,水泥砂浆进行粘结层。
如采用先打底,待底层灰全部抹完后,再反上去从上往下抹面层砂浆时,应注意先检查底层灰是否有空裂现象,如发现空裂现象应剔凿反修后再做面层,另外应注意底层砂浆上的污垢尘土等应清理干净,浇水湿润后,方可进行面层抹灰。


一般半截大桶、小油桶、铜丝箩、橡皮刮板、笤帚、刷子、排笔、砂纸、棉丝、擦布等。
可用32.5普通硅酸盐水泥或白水泥加建筑用胶水搅拌均匀后,批括墙面,填平所有的洞孔、裂缝和粗糙地方,再用砂纸打磨平整,打磨的越平整越光滑越好。如果墙面面积过大,这里需要采用在墙面上做分格线的方法,用此方法将大面积墙面分割成为小面积,以造成视觉上的相对平整。
基层处理→修补腻子→第一遍满刮腻子→第二遍满刮腻子→弹分色线→刷第一道涂料底涂→刷第二道面层涂料。
外墙底涂在干透后应做到完全遮盖墙面,无发花、泛青现象,若干透后发现发花、泛青现象,则说明在滚刷时滚得太薄或不匀所致。
地下室采用硅橡胶防水涂料
基层处理→节点细部密封处理→节点附加增强层处理→涂布防水涂料→末端收头处理→检查、修整、验收→保护层施工。
先在处理好的基层表面均匀地涂刷一遍1号涂料,待其渗透到基层并固化干燥后(视环境温度、湿度而定,一般约5—10h)再涂刷下一遍涂料。
第一遍涂层成膜后,分别用2号涂料和1号涂料交替涂刷数遍直至达到设计要求的厚度,后一遍涂层需待前一遍涂层固化成膜后再涂布,每遍约需相隔5—10h的固化成膜时间。
末遍2号料涂布后,需静置固化24h,再涂刷表面1号料。
涂刷法施工时,用长把滚刷、油漆刷、排笔等分层分遍采用“十字交叉”法进行涂布,即上下、左右均匀涂刷,涂刷的方向和行程长短应一致,不得漏涂。

热熔法:用火焰喷枪或喷灯烘烤卷材底面和基层表面,使卷材表面的沥青熔化,边烘烤边向前滚铺卷材,随后用压辊滚压,使其与基层或卷材粘结牢固。
卷材铺贴
基层处理剂干燥后,首先按设计要求对屋面防水工程,地下防水工程需做附加层的部位进行铺设附加层处理。
铺贴顺序为先高跨,后低跨;同等高度,先远后近;同一平面,从低处开始铺贴。
平行于屋脊搭接缝顺流水方向。







宜安排在夜间浇筑,避免砼出现干缩裂缝。
根据本工程结构特点和施工进度要求,外脚手架采用钢管脚手架。裙楼三层采用钢管落地满堂脚手架,2座主楼结构施工阶段采用钢管翻转挑架(具体如下所示),当结构封顶进入外墙装修时,主楼上部采用满堂钢管脚手架,即在原来翻转挑架的下面再搭设钢管架,形成满堂钢管脚手架进行外墙装修,以便于外墙施工质量控制和加快施工进度。
本工程采用双排架的结构形式,搭设4层8步架子,架子步高为1.2m,以两层为一标准段进行翻转。外架平面布置如下图所示。
各构件搭设及要点:
剪刀撑应设架高连续布置,每对剪刀撑应跨越3~4柱距,且不得大于6m,斜杆与地面夹角为45°~60°。而且剪刀撑不得搭接,必须用两个以上旋转扣件绑接,绑接距离不小于50cm。
需加设1.2m高扶手栏杆,与0.18m高踢脚杆,以策安全。

高层建筑搭设外架施工要在第二层搭设水平安全网,其余各层安全挂网要随架子满挂上去。架子以下每四层一道封闭式安全水平网。(包括一道疏网,一道密网)并及时对防护网进行清理。窗台以上窗洞内侧应挂安全立网。
为了对工期总目标进行宏观控制,实现质量、效益、工期、安全等各项指标。优选施工方案,合理调配人工、材料和机械设备,力求减少投入,增加产出,提高工效;将先进的施工技术和科学的施工管理溶合在施工生产的全过程中,通过周密的调查、研究,进行了大量的计算,反复平衡和优化,精心编制出综合网络计划。本工程综合网络计划采取三级网络的形式,一级网络为施工进度总控制网络,在把施工总工期控制在同合工期以内的前提下,规定了各个分部分项工程的控制工期,作为施工的控制目标。根据在一级网络中的进度控制,制定出单位工程的网络计划即为二级网络。二级网络对各分部分项工程的施工提供具体的指导。单位工程能否按照一、二级网络所要求的进度进行施工,核心问题是各工序搭接与材料供应情况以及外界因素影响施工进度。因此合理安排各道工序施工的起始时间及工序搭接,是保证施工进度的关键,因而在中标后开始施工时应编制以小时为单位的施工三级网络进度计划。
为了实现工期目标本工程从以下几个节点进行工期控制:一、二期同时开工,一期结构封顶控制在290日历天,一期竣工控制在502日历天;二期地下室施工控制在115日历天,结构封顶控制在340日历天,竣工工期为560日历天。为了使工序安排流水合理,充分利用时间、空间确保工期,二期地下室结构安排结构三层施工时进行验收,一、二期10层以下结构均安排在本期13层结构施工时穿插进行验收;以便尽早插入砌体装修施工。
本网络计划假定开工时间为2002年5月1号,具体开工时间由甲方通知。
采用施工进度总计划与月、周计划相结合的各级网络计划进行施工进度计划的控制与管理。在施工生产中抓主导工序、找关键矛盾,组织流水交叉,安排合理的施工程序,做好劳动组织调动和协调工作,通过施工网络切点控制目标的实现来保证各控制点工期目标的实现,从而进一步通过各级控制点工期的实现来确保工期控制进度计划的实现。
⑴施工项目部应根据施工进度计划要求,认真做好月、旬的材
料、机具需要量计划,及时安排材料、机具进场。
⑵认真进行工期计划交底,并将短期进度要求在宣传栏中予以公布,
明确提前或延误工期的奖罚办法,各工序各班组都应有明确的施工期限和责任范围。
⑶各分管施工员应及时落实各项施工准备工作,详细记录各作业班组施工进度情况、工人出勤情况和工作面条件,以日报表形式报至内业管理员和项目经理,由内业管理员进行汇总并在实际进度一览表中予以标记。
⑷加强施工现场调度工作,项目经理每周作一次施工进度定期检查,组织班组长以上的管理人员例会,听取班组长及各专业施工员对施工进度情况的汇报和施工现场存在的问题,合理调整施工工作面、施工顺序和施工机械使用,当场审议各班的进度情况,当场兑现奖罚措施。根据施工过程的具体性和施工进度计划要求,检查进度滞后工序与计划主导工序的影响情况,重新调整进度计划,以保证关键线路上各工序按计划的持续时间完成,从而保证工程竣工期限,实现工期控制目标。
⑸精心安排工序搭接,合理安排工期,科学地进行工序搭接和穿插作业,组织有节奏流水施工,形成工序的搭接,为各工种赶工施工提供必需的工作面。为了使上部结构与下部局部内装修同时进行,另外把混凝土的浇筑时间尽量安排在晚上,从而把白天的时间让给木工和钢筋工。
⑹办理建材运输特别通行证,保证材料运输的畅通无阻。
本工程将按我公司项目法管理体制,实行项目法施工,建立项目经理责任制,对本工程行使计划、组织、指挥、协调、实施、监督六项基本职能,并在公司系统内选择施工班组,能打硬仗的,并有施工过大型建筑业绩的施工队伍组成作业层,承担本施工任务。
实行合理的工期目标奖罚制度,根据工作需要,主要工序采取每日两班制度,即12小时一班连续工作浇筑砼等作业。
整个工程层层实行项目承包,签订合同,引入竞争机制,实行重奖重罚,严格执行奖罚兑现,以经济手段保工期,对于层、段施工作业设计,实行重奖、重罚。
建立生产例会制度,利用动态管理实行三周滚动计划,每星期设一次例会,检查上一次例会以来的计划执行情况,布置下一次周会前的计划,对拖延进度计划要求的工作内容找出原因,并及时采取有效措施保证计划完成。举行与监理、建设、质监等部门的联席办公会议,及时解决施工中出现的问题。
最大限度地提高机械化施工程度,以精良的技术装备保证工期。120t.m塔吊1台,施工电梯2台,备用一台120千瓦柴油发电机作为备用电源。详机械配备表。
施工前期积极主动办理相关的手续,保证工程能够顺利开工。做好施工准备工作,施工要有预见性,把工程上的问题解决在施工之前,以便为工程赢得宝贵时间。
本工程标准层每层施工操作面不大,但主楼层数多,因此,为缩短工期,一、二期同时施工,增加劳动力,模板、钢管等周围材料,各需配齐三套定型模板,供流水使用。
为了缩短网络施工中的“技术间歇时间”,砼配制时宜采用高强快硬水泥,以及经试验确定对砼添加早强性砼外加剂,以提高砼的早期强度。采用砼输送泵解决砼的垂直与水平运输问题。
严把工程质量关,杜绝反工重修等现象出现,另我公司委派多名技术过硬、经验丰富的工程技术人员,透彻图纸了解设计意图,对设计不合理的地方(如预留孔洞位置不正确、墙在梁外等)提前告诉甲方,及时修改。否则既成事实后翻工,既误工期,又给业主带来不必要的经济损失。
公司已把推广应用新技术与创优、科技进步、降低成本、提高工效等有机地结合起来,认真总结、不断探索、力求创新。因此,我们项目部决定在此项目基础上,推广以下新技术:
冷挤压连接应用在主体结构、基础钢筋工程上提高工效质量。
采用施工进度总计划与月、周计划相结合的各级网络计划进行施工进度计划的控制与管理。在施工生产中抓主导工序、找关键矛盾,组织流水交叉,安排合理的施工程序,做好劳动组织调动和协调工作,通过施工网络切点控制目标的实现来保证各控制点工期目标的实现,从而进一步通过各级控制点工期的实现来确保工期控制进度计划的实现。
⑴施工项目部应根据施工进度计划要求,认真做好月、旬的材
料、机具需要量计划,及时安排材料、机具进场。
⑵认真进行工期计划交底,并将短期进度要求在宣传栏中予以公布,
明确提前或延误工期的奖罚办法,各工序各班组都应有明确的施工期限和责任范围。
⑶各分管施工员应及时落实各项施工准备工作,详细记录各作业班组施工进度情况、工人出勤情况和工作面条件,以日报表形式报至内业管理员和项目经理,由内业管理员进行汇总并在实际进度一览表中予以标记。
⑷加强施工现场调度工作,项目经理每周作一次施工进度定期检查,组织班组长以上的管理人员例会,听取班组长及各专业施工员对施工进度情况的汇报和施工现场存在的问题,合理调整施工工作面、施工顺序和施工机械使用,当场审议各班的进度情况,当场兑现奖罚措施。根据施工过程的具体性和施工进度计划要求,检查进度滞后工序与计划主导工序的影响情况,重新调整进度计划,以保证关键线路上各工序按计划的持续时间完成,从而保证工程竣工期限,实现工期控制目标。
⑸精心安排工序搭接,合理安排工期,科学地进行工序搭接和穿插作业,组织有节奏流水施工,形成工序的搭接,为各工种赶工施工提供必需的工作面。为了使上部结构与下部局部内装修同时进行,另外把混凝土的浇筑时间尽量安排在晚上,从而把白天的时间让给木工和钢筋工。
⑹办理建材运输特别通行证,保证材料运输的畅通无阻。
本工程将按我公司项目法管理体制,实行项目法施工,建立项目经理责任制,对本工程行使计划、组织、指挥、协调、实施、监督六项基本职能,并在公司系统内选择施工班组,能打硬仗的,并有施工过大型建筑业绩的施工队伍组成作业层,承担本施工任务。
实行合理的工期目标奖罚制度,根据工作需要,主要工序采取每日两班制度,即12小时一班连续工作浇筑砼等作业。
整个工程层层实行项目承包,签订合同,引入竞争机制,实行重奖重罚,严格执行奖罚兑现,以经济手段保工期,对于层、段施工作业设计,实行重奖、重罚。
建立生产例会制度,利用动态管理实行三周滚动计划,每星期设一次例会,检查上一次例会以来的计划执行情况,布置下一次周会前的计划,对拖延进度计划要求的工作内容找出原因,并及时采取有效措施保证计划完成。举行与监理、建设、质监等部门的联席办公会议,及时解决施工中出现的问题。
最大限度地提高机械化施工程度,以精良的技术装备保证工期。120t.m塔吊1台,施工电梯2台,备用一台120千瓦柴油发电机作为备用电源。详机械配备表。
施工前期积极主动办理相关的手续,保证工程能够顺利开工。做好施工准备工作,施工要有预见性,把工程上的问题解决在施工之前,以便为工程赢得宝贵时间。
本工程标准层每层施工操作面不大,但主楼层数多,因此,为缩短工期,一、二期同时施工,增加劳动力,模板、钢管等周围材料,各需配齐三套定型模板,供流水使用。
为了缩短网络施工中的“技术间歇时间”,砼配制时宜采用高强快硬水泥,以及经试验确定对砼添加早强性砼外加剂,以提高砼的早期强度。采用砼输送泵解决砼的垂直与水平运输问题。
严把工程质量关,杜绝反工重修等现象出现,另我公司委派多名技术过硬、经验丰富的工程技术人员,透彻图纸了解设计意图,对设计不合理的地方(如预留孔洞位置不正确、墙在梁外等)提前告诉甲方,及时修改。否则既成事实后翻工,既误工期,又给业主带来不必要的经济损失。
公司已把推广应用新技术与创优、科技进步、降低成本、提高工效等有机地结合起来,认真总结、不断探索、力求创新。因此,我们项目部决定在此项目基础上,推广以下新技术:
冷挤压连接应用在主体结构、基础钢筋工程上提高工效质量。
采用施工进度总计划与月、周计划相结合的各级网络计划进行施工进度计划的控制与管理。在施工生产中抓主导工序、找关键矛盾,组织流水交叉,安排合理的施工程序,做好劳动组织调动和协调工作,通过施工网络切点控制目标的实现来保证各控制点工期目标的实现,从而进一步通过各级控制点工期的实现来确保工期控制进度计划的实现。
⑴施工项目部应根据施工进度计划要求,认真做好月、旬的材
料、机具需要量计划,及时安排材料、机具进场。
⑵认真进行工期计划交底,并将短期进度要求在宣传栏中予以公布,
明确提前或延误工期的奖罚办法,各工序各班组都应有明确的施工期限和责任范围。
⑶各分管施工员应及时落实各项施工准备工作,详细记录各作业班组施工进度情况、工人出勤情况和工作面条件,以日报表形式报至内业管理员和项目经理,由内业管理员进行汇总并在实际进度一览表中予以标记。
⑷加强施工现场调度工作,项目经理每周作一次施工进度定期检查,组织班组长以上的管理人员例会,听取班组长及各专业施工员对施工进度情况的汇报和施工现场存在的问题,合理调整施工工作面、施工顺序和施工机械使用,当场审议各班的进度情况,当场兑现奖罚措施。根据施工过程的具体性和施工进度计划要求,检查进度滞后工序与计划主导工序的影响情况,重新调整进度计划,以保证关键线路上各工序按计划的持续时间完成,从而保证工程竣工期限,实现工期控制目标。
⑸精心安排工序搭接,合理安排工期,科学地进行工序搭接和穿插作业,组织有节奏流水施工,形成工序的搭接,为各工种赶工施工提供必需的工作面。为了使上部结构与下部局部内装修同时进行,另外把混凝土的浇筑时间尽量安排在晚上,从而把白天的时间让给木工和钢筋工。
⑹办理建材运输特别通行证,保证材料运输的畅通无阻。
本工程将按我公司项目法管理体制,实行项目法施工,建立项目经理责任制,对本工程行使计划、组织、指挥、协调、实施、监督六项基本职能,并在公司系统内选择施工班组,能打硬仗的,并有施工过大型建筑业绩的施工队伍组成作业层,承担本施工任务。
实行合理的工期目标奖罚制度,根据工作需要,主要工序采取每日两班制度,即12小时一班连续工作浇筑砼等作业。
整个工程层层实行项目承包,签订合同,引入竞争机制,实行重奖重罚,严格执行奖罚兑现,以经济手段保工期,对于层、段施工作业设计,实行重奖、重罚。
建立生产例会制度,利用动态管理实行三周滚动计划,每星期设一次例会,检查上一次例会以来的计划执行情况,布置下一次周会前的计划,对拖延进度计划要求的工作内容找出原因,并及时采取有效措施保证计划完成。举行与监理、建设、质监等部门的联席办公会议,及时解决施工中出现的问题。
最大限度地提高机械化施工程度,以精良的技术装备保证工期。120t.m塔吊1台,施工电梯2台,备用一台120千瓦柴油发电机作为备用电源。详机械配备表。
施工前期积极主动办理相关的手续,保证工程能够顺利开工。做好施工准备工作,施工要有预见性,把工程上的问题解决在施工之前,以便为工程赢得宝贵时间。
本工程标准层每层施工操作面不大,但主楼层数多,因此,为缩短工期,一、二期同时施工,增加劳动力,模板、钢管等周围材料,各需配齐三套定型模板,供流水使用。
为了缩短网络施工中的“技术间歇时间”,砼配制时宜采用高强快硬水泥,以及经试验确定对砼添加早强性砼外加剂,以提高砼的早期强度。采用砼输送泵解决砼的垂直与水平运输问题。
严把工程质量关,杜绝反工重修等现象出现,另我公司委派多名技术过硬、经验丰富的工程技术人员,透彻图纸了解设计意图,对设计不合理的地方(如预留孔洞位置不正确、墙在梁外等)提前告诉甲方,及时修改。否则既成事实后翻工,既误工期,又给业主带来不必要的经济损失。
公司已把推广应用新技术与创优、科技进步、降低成本、提高工效等有机地结合起来,认真总结、不断探索、力求创新。因此,我们项目部决定在此项目基础上,推广以下新技术:
冷挤压连接应用在主体结构、基础钢筋工程上提高工效质量。
第一路,由配电房引到1#配电箱,主要供二期施工电梯,焊机高压承泵其用电。
第二路,由配电房引到2#配电箱,主要供一期塔楼施工电梯焊机,高压承泵共用电。
第三路,电配电房引到3#配电箱,主要供,120Tm塔吊,地下室照明,地下室通风等用电。
第四路,由配电房引到4#配电生机盎然主要供暂设照明,钢筋机械等用电。
![]()
![]()
![]()
P机——电动机名牌正的额定功率(千瓦)
ΣP机——表示名台电动机额定功率的总和(千瓦)
η——表示各台电动机的平均效率,0.86
COS表示各台电动机的平均功率系数取0.9
Kc取0.6
由主要施工机械配备表中取得ΣP机=472.4
ΣP机=75+90+75+12+6+8.8+48+10+4.4+6+8.8+15+=314

由供电系统和主要施工机械配备表得
各路用电动率分别为
ΣP1=45+6+29+7.5=87.5(kw)
ΣP2=45+6+29+7.5=57.5(kw)
ΣP3=75+20×3=135(kw)
ΣP3=4.5+3.5+75=83(kw)
η系数取0.86 COSφ取=0.83 Kc取0.7
因此各分路电流量分别是:
![]()
I线=1.5ΣP
I1=1.5×87.5=131.3(A)
I2=1.5×87.5=131.3(A)
I3=1.5×135=202.5(A)
I4=1.5×83=124.5(A)
根据计算得出各路电流量在230A以下。所节三第采用502以外,其它各路均可采用352的三芯铜电缆。
所有一级配电箱都必须固定设置不得移动,箱内必须设一个总开关和足够分路,以满足分配的需求;二级分配电箱,在施工过程中不得随意移动,箱内同样必须设一个总开关和足够的分路,以满足末级开关箱的需求。
末级开关箱可根据施工要求做适当的移动,但不得超出规范要求。末级开关箱供地下室施工中的潜水泵、套丝机、电焊机以及移动小型机具和灯具使用。
总配电房到一、二级配电箱必须采用五芯电缆连接;一级配电箱到二级分配电箱和二级分配电箱到末级开关箱,可根据现场施工需要而定。
表 8土建材料计划表
表 1劳力计划表
根据本工程施工的特点、复杂性及工程创优的要求,我们将进行全面、全员、全过程的管理和控制,确保质量管理目标的实现。
根据招标文件要求,本工程综合评定指标达到优良工程标准,我司将按照优良工程目标进行组织施工,为此我司确定了如下的分阶段、分部、分项质量目标。
单位工程质量综合评定指标达到优良工程标准。
地基与基础工程为优良,主体结构工程为优良,装饰工程为优良,楼地面工程为合格,门窗工程为合格,屋面工程为优良。建筑采暖卫生工程为合格,建筑电气安装工程为优良。
表 10 分部、分项工程创优目标表
分部 工程 | 分 项 工 程 | 分项工程创优目标 | 分部工程创优目标 | ||
地基 与基 础工 程 | 1 | 桩基、土方 | 合格 | 优
良 | |
2 | 钢筋 | 优良 | |||
3 | 混凝土 | 优良 | |||
4 | 防水结构砼 | 合格 | |||
5 | 涂料防水 | 优良 | |||
6 | 砌砖 | 合格 | |||
主体 工程 | 1 | 钢筋 | 优良 | 优 良 | |
2 | 混凝土 | 优良 | |||
3 | 砌体 | 合格 | |||
楼地面 工程 | 1 | 地面基层 | 合格 | 合格 | |
2 | 整体楼、地面、板块 | 合格 | |||
装饰 工程 | 1 | 一般抹灰 | 优良 | 优 良 | |
2 | 饰面砖 | 优良 | |||
3 | 油漆 | 合格 | |||
4 | 刷浆 | 优良 | |||
屋面 工程 | 1 | 屋面找平层 | 优良 | 优 良 | |
2 | 屋面保温隔热层 | 优良 | |||
3 | 屋面卷材防水工程 | 优良 | |||
4 | 水落管、变形缝 | 合格 | |||
建筑 采暖 卫生 工程 | 1 | 室内给水管道工程安装 | 优良 | 合
格 | |
2 | 给水管道附件及卫生器具 | 合格 | |||
3 | 室内排水管道工程安装 | 合格 | |||
4 | 卫生器具工程安装 | 合格 | |||
5 | 室内给水附属设备安装 | 优良 | |||
建筑 电气 安装 工程 | 1 | 电缆线路工程安装 | 优良 | 优
良 | |
2 | 配管及管内穿线工程安装 | 优良 | |||
3 | 母线槽安装工程 | 优良 | |||
4 | 金属桥架安装 | 合格 | |||
5 | 电气器具及配电箱安装 | 优良 | |||
6 | 避雷针及接地装置工程 | 优良 | |||
7 | 成套配电柜(盘)及动力开关柜安装 | 优良 | |||
依据本公司有关质量安全管理职责执行。
施工员应对现场施工的每个环节应明确,特殊部位、重要部位编制单项工程作业指导书或施工方案作为班组的施工依据,并在施工中做好各工序的检查、验收工作。
对施工质量的控制,关键在于原材料的质量控制和施工过程的工艺、操作的控制。把好施工过程的质量,就从根本上控制了工程质量,减少了人为的浪费和返工,从而也为企业提高了经济效益。
⑴自行采购材料质量控制程序:
对于重要物资、大批量采购物资以及对工程最终质量有影响的物资。如:钢材、水泥、砂、石、防水材料、焊接材料、保温(冷)材料、面砖、装饰材料、电线、电缆、配电箱、等自行采购的物资,只有按以下工作流程进行采购、质量检查,对采购的物资质量才有保证。
⑴入库主要材料验证和检验;
1) 检查产品质量证明文件、进货单;
2)检察外观质量,检验产品标牌、型号、几何尺寸;
3)计量或点收产品数量
⑵重要的工程物资要按相应的国家标准和行业主管部门的规定进行验证。
⑶有产品质量文件的材料、如钢材、水泥、砖、防水材料等在没有接到质量保证书或经验证质量不合格的,禁止供应使用。
⑷产品质量保证书由材料员进行验证,验证合格符合要求的由技术内业员负责登记,保管。
⑸验证发现质量证明文件内容有问题,应对该批物资进行取样验证。
过程质量检验主要包括班组自检、质检员专职检、专业施工员间交接检、监理、建设单位参与的隐蔽工程检验、公司定期检验,分项、分部评定以及中间验收等程序:
⑴班组自检
施工员应依照作业指导书、规范、规程和图纸设计要求等在工序开始施工前以书面形式对班组进行操作工艺,施工方法、次序等技术交底,班组应严格按照技术要求进行施工,在工序施工过程,专业施工员应时刻对班组操作工艺,施工方法进行监督检查和指导;在施工工序完成后,专业施工员应组织班组长及操作者按验评规范进行自检,做好自检记录。
⑵质检员专职检
专业施工员组织的自检合格后,由施工员整理好相关的质保资料提交质检员检查。在项目技术管理组织下,质检员会同施工员,班组长按照验评规范要求进行专职检验。专职检验合格后,才能转入下道工序施工。同时应做好专职检记录,并将质保资料交技术内业员保管。
⑶交接检
①在施工过程中,开展“三工序”活动,即“检查上道工序,保证本道工序,服务下道工序”,实现对工序检验的控制。
②工序转换应在自检、专职检合格手续基础上,由本道专业施工员组织下道工序专业施工员、班组长及相关专业的施工员进行交接检验和交底,并办理交接手续、填写《工序自检、专职检、交接检记录》
③在不同工种进行交接和转换时,应办理交接会签手续,填写会签单。如砼浇筑前的会签。
⑷隐蔽工程检验
隐蔽工程在隐蔽前,应由质检员先行检验。检验合格后,由施工员填写报验单,向监理(业主)申请报验,经监理(业主)代表验证同意后,办理《隐蔽工程验收记录》的签证手续,而后方可隐蔽。
⑸技术复核
在每一个施工过程中,均要对轴线和标高以及预埋件,预留孔洞等进行技术复核。由施工员进行放样,质检员随后进行复核。复核的具体情况应记录在《技术复核记录》表中,未经技术复核或检查不合格的不得予以放行。
⑹公司定期检验
在公司总工程师的主持下,公司技术部每季度组织有关人员对本工程进行一次全面质量检查,分公司在主任工程师的主持下技术科每月组织有关人员对本工程进行一次全面质量检查,对专职检进行核定,对自检、交接检、隐蔽工程检验、技术复核、技术内业资料等工作情况进行抽查。并提出整改意见及改进措施。
⑺分项,分部检验评定
①每个分项工程结束或完成一个阶段,施工员应负责对该分项进行检验评定,填写《分项工程质量检验评定表》,项目工程部进行核定,项目部技术负责人进行签字。
②每个分部工程完成后,专职质检员应将该分部的各个分项工程检验评定进行汇总,项目工程部组织进行分部工程质量评定工作,并填写《分部工程质量检验评定表》报项目技术负责人核定。其中地基与基础分部,主体分部应报公司技术部核定。
③项目工程部每月应将工程的质量检验结果进行汇总,核定,报送公司技术部进行审核,以便公司能及时了解项目的工程质量情况。及时调整制定质保措施。
⑻中间结构工程验收
验收前,项目工程部应整理好有关技术质保资料报送公司技术部核查,经核查认为资料齐全,现场质量符合要求后,由项目经理部报给现场监理,再由建设单位发出通知给项目部、监理单位、设计院和监督站等部门进行结构验收。
过程试验分为:现场实施的试验,企业中心试验室实施的企业内部检查、验证的试验及按规定取样送检的试验。
⑴现场实施的试验
现场实施的试验应由受过培训的有上岗证的试验员来完成,试验员按有关规范标准及操作规程进行试验,并填写相应试验记录及试验报告,试验报告上交项目技术负责人签字认可。
⑵取样送检试验和委托试验
根据规范要求及省、市建委的规定,本工程必须取样送检和委托试验的内容有:钢筋的连接、钢筋原材、水泥、砼强度、砂浆强度、防水材料等。
以上试验内容必须送至 有资质的检测中心见证取样,或委托他们到现场实验。
取样时,试验员要按规范、规程的规定进行随机取样,必要时请甲方及监理现场代表参与试件的取样和送检。
对施工质量的控制,关键在于原材料的质量控制和施工过程的工艺、操作的控制。把好施工过程的质量,就从根本上控制了工程质量,减少了人为的浪费和返工,从而也为企业提高了经济效益。
⑴自行采购材料质量控制程序:
对于重要物资、大批量采购物资以及对工程最终质量有影响的物资。如:钢材、水泥、砂、石、防水材料、焊接材料、保温(冷)材料、面砖、装饰材料、电线、电缆、配电箱、等自行采购的物资,只有按以下工作流程进行采购、质量检查,对采购的物资质量才有保证。
⑴入库主要材料验证和检验;
1) 检查产品质量证明文件、进货单;
2)检察外观质量,检验产品标牌、型号、几何尺寸;
3)计量或点收产品数量
⑵重要的工程物资要按相应的国家标准和行业主管部门的规定进行验证。
⑶有产品质量文件的材料、如钢材、水泥、砖、防水材料等在没有接到质量保证书或经验证质量不合格的,禁止供应使用。
⑷产品质量保证书由材料员进行验证,验证合格符合要求的由技术内业员负责登记,保管。
⑸验证发现质量证明文件内容有问题,应对该批物资进行取样验证。
过程质量检验主要包括班组自检、质检员专职检、专业施工员间交接检、监理、建设单位参与的隐蔽工程检验、公司定期检验,分项、分部评定以及中间验收等程序:
⑴班组自检
施工员应依照作业指导书、规范、规程和图纸设计要求等在工序开始施工前以书面形式对班组进行操作工艺,施工方法、次序等技术交底,班组应严格按照技术要求进行施工,在工序施工过程,专业施工员应时刻对班组操作工艺,施工方法进行监督检查和指导;在施工工序完成后,专业施工员应组织班组长及操作者按验评规范进行自检,做好自检记录。
⑵质检员专职检
专业施工员组织的自检合格后,由施工员整理好相关的质保资料提交质检员检查。在项目技术管理组织下,质检员会同施工员,班组长按照验评规范要求进行专职检验。专职检验合格后,才能转入下道工序施工。同时应做好专职检记录,并将质保资料交技术内业员保管。
⑶交接检
①在施工过程中,开展“三工序”活动,即“检查上道工序,保证本道工序,服务下道工序”,实现对工序检验的控制。
②工序转换应在自检、专职检合格手续基础上,由本道专业施工员组织下道工序专业施工员、班组长及相关专业的施工员进行交接检验和交底,并办理交接手续、填写《工序自检、专职检、交接检记录》
③在不同工种进行交接和转换时,应办理交接会签手续,填写会签单。如砼浇筑前的会签。
⑷隐蔽工程检验
隐蔽工程在隐蔽前,应由质检员先行检验。检验合格后,由施工员填写报验单,向监理(业主)申请报验,经监理(业主)代表验证同意后,办理《隐蔽工程验收记录》的签证手续,而后方可隐蔽。
⑸技术复核
在每一个施工过程中,均要对轴线和标高以及预埋件,预留孔洞等进行技术复核。由施工员进行放样,质检员随后进行复核。复核的具体情况应记录在《技术复核记录》表中,未经技术复核或检查不合格的不得予以放行。
⑹公司定期检验
在公司总工程师的主持下,公司技术部每季度组织有关人员对本工程进行一次全面质量检查,分公司在主任工程师的主持下技术科每月组织有关人员对本工程进行一次全面质量检查,对专职检进行核定,对自检、交接检、隐蔽工程检验、技术复核、技术内业资料等工作情况进行抽查。并提出整改意见及改进措施。
⑺分项,分部检验评定
①每个分项工程结束或完成一个阶段,施工员应负责对该分项进行检验评定,填写《分项工程质量检验评定表》,项目工程部进行核定,项目部技术负责人进行签字。
②每个分部工程完成后,专职质检员应将该分部的各个分项工程检验评定进行汇总,项目工程部组织进行分部工程质量评定工作,并填写《分部工程质量检验评定表》报项目技术负责人核定。其中地基与基础分部,主体分部应报公司技术部核定。
③项目工程部每月应将工程的质量检验结果进行汇总,核定,报送公司技术部进行审核,以便公司能及时了解项目的工程质量情况。及时调整制定质保措施。
⑻中间结构工程验收
验收前,项目工程部应整理好有关技术质保资料报送公司技术部核查,经核查认为资料齐全,现场质量符合要求后,由项目经理部报给现场监理,再由建设单位发出通知给项目部、监理单位、设计院和监督站等部门进行结构验收。
过程试验分为:现场实施的试验,企业中心试验室实施的企业内部检查、验证的试验及按规定取样送检的试验。
⑴现场实施的试验
现场实施的试验应由受过培训的有上岗证的试验员来完成,试验员按有关规范标准及操作规程进行试验,并填写相应试验记录及试验报告,试验报告上交项目技术负责人签字认可。
⑵取样送检试验和委托试验
根据规范要求及省、市建委的规定,本工程必须取样送检和委托试验的内容有:钢筋的连接、钢筋原材、水泥、砼强度、砂浆强度、防水材料等。
以上试验内容必须送至 有资质的检测中心见证取样,或委托他们到现场实验。
取样时,试验员要按规范、规程的规定进行随机取样,必要时请甲方及监理现场代表参与试件的取样和送检。
普通砼中掺入适量膨胀剂,可配制成膨胀砼(补偿收缩砼)它在养护期能产生适度体积膨胀,在钢筋和邻位约束情况下能对钢筋产生一定的拉应力,从而对砼产生压缩作用,因而在砼中建立一定的化学预应力,使它能大致抵消因砼干缩产生的拉应力,从而达到补偿收缩。但膨胀剂的掺入量(为UEA)要以钢筋砼的收缩量为参照通过设计限制膨胀来确定。而不能仅以经验掺量进行配合比设计。
在本公司几个地下室工程中,通过采用该措施,收到了较好的效果。该措施即经济,又能有效地防止外墙砼开裂。
该措施的具体作法是:在外墙砼浇筑时,每隔一段距离设一垂直施工缝,垂直施工缝一般设在应力可能集中的外墙转角、墙柱交接点附近,且又要便于此后施工,根据我司施工经验,地下室外墙厚350~450cm的,若是采用预拌砼(有掺入12%粉煤灰)的,施工缝距离采取20~30m较为适宜,即布置在外28~34轴之间,38轴11E~G轴之间,施工缝宽度一般采用600~800mm,施工缝处的防水构造措施同大多数工程地下室底板的后浇带,即在施工缝外加设一道防水卷材附加层,并将施工缝的砼采用高一等级的微膨胀砼浇筑。垂直施工缝砼的浇筑时宜在外墙砼浇筑后15天~28天。浇筑时新旧砼交接处应处理到位。
砼干缩随龄期增长而减少,而大部分干缩发生在早龄期,而早龄期砼抗拉强度低。因而,砼易在早龄期发生干缩裂缝。为此,加强砼早期湿养护,可以推迟产生收缩的时间。这样也可以减少干缩裂缝。
由于本工程一期地下室与二期地下室连为一体,目前一期地下室施工时预留的钢筋须进行除锈清理,采用钢丝刷人工进行除锈清理干净;对于新旧混凝土接触处应对旧混凝土面进行凿毛,清除灰尘、浮渣后在涂刷一道界面处理剂;为了保证新旧混凝土相接处地下室外墙不漏水,采取在新旧混凝土相接处设一道BW橡胶遇水膨胀止水条。
合理养护:3d洒水养护时间内其上不准走人。
“以人为本”,杜绝死亡、重伤事故,轻伤频率控制在6‰以下,实现“五无”安全施工工程(无死亡、无重伤、无重大火灾事故、无重大交通事故、无重大设备事故)。
道路场地硬地化、沟池排水网络化、文明施工标准化、后勤设施规范化,创建一个文明的代表企业形象的“窗口”工程。
为了确保工程能更安全的有次序地生产,根据本工程施工特点,参照有关建筑的安全生产的技术资料,定出安全可靠的管理措施。
对特殊工种、电气、起重、焊接、机械和登高作业等接触不安全因素较多的工种,用脱产和半脱产以及办训练班等方式进行专门训练,并且经过严格理论和实践考试合格后,发给安全操作许可证方准作业,采用新工艺、新技术、新设备、新产品之前也要按新的安全操作规程对参加操作的岗位工人和有关人员进行专门教育,并经考试合格后方可独立操作。
本工程为高层建筑,采用TN-S三相五线制系统。
高处作业防护应严格按照JGJ59-99《建筑施工高处作业安全技术规范》的要求进行防护。


机械设备是否完好是一个工程能否顺利施工的一个重要条件。本工程主要设备采用1台塔吊,2台电梯,这些设备的操作及运行均应严格按操作规程进行。
为了创建安全文明工地的要求,项目经理部采取一系列的技术及管理措施以保证目标的实现。项目部应明确项目经理为文明施工管理的第一责任人,文明安全管理制度及措施均需按照有关管理规定严格执行。
一般事故率小于6‰,重大事故为零;
杜绝人员伤亡;杜绝重大交通、机械设备、触电、火灾事故。
进入施工现场应正确使用“三宝”与做好“四口”的防护。
登高用钢爬梯必须牢牢固定,所有挂篮必须符合构造和安全要求。作业人员应从规定的通道和走道上下来往,不得在柱上等非规定通道攀爬。
现场所排施工污水进入下水道之前应先集中经过临时沉淀池过滤后方可排出,防止堵塞下水道。严格控制排放水的质量标准:
工地及时、定期处理沉淀池内沉淀物以便其顺利工作,施工现场设一个临时化粪池,生活污水经化粪池到污水池后方可排出。
大门设洗车台及高压水泵,对进出车辆进行清洗,防止污染道路及扬尘。
现场采用自拌砼.为减少了粉尘,砼、砂浆搅拌机应搭设防护棚,并适量洒水,减少扬尘。
协调各施工分包单位在施工中需与设计院协商解决的问题,协助设计院解决诸如因多管道并列等原因引起的标高、几何尺寸的平衡协调工作,协助设计院解决不可预测因素引起的沉降、裂缝等变化。
按部位或分项、工序检验的质量,严格执行“上道工序不合格,下道工序不施工”的准则,使监理工程师能顺利开展工作。对可能出现的工作意见不一的情况,遵循“先执行监理的指导后予以磋商统一”的原则,在现场质量管理工作中,维护好监理工程师的权威性。
总承包商应不断加强对各分包施工单位的教育,提请分包单位增强员工对产品的保护,做到上道工序对下道工序负责,完工产品对甲方负责,使产品不污、不损。
为使土建主体施工顺利进行,土建、水电应协调配合及时工序的搭接,减少不必要的摩擦和相互影响。及时准确无误的水电预埋配合对缩短工期,保证整体工程质量的致关重要的一环。
健全水电安装预埋配合的工程质量管理体系:为使水电预埋配合及时、准确、无误,施工现场应完善水电安装的质量管理保证体系,使水电安装预埋严格按照施工验收规程和质量验收标准进行施工,工程技术的交底、检验、复核和隐蔽工程的验收签证等工作都应及进有序的进行,不得有半点的马虎。以确保水电预埋配合的工程质量,做到准确、无误、优质,为下一步的水电安装创优,提供有力的保证。
为使土建主体施工顺利进行,土建、水电应协调配合及时工序的搭接,减少不必要的摩擦和相互影响。及时准确无误的水电预埋配合对缩短工期,保证整体工程质量的致关重要的一环。
健全水电安装预埋配合的工程质量管理体系:为使水电预埋配合及时、准确、无误,施工现场应完善水电安装的质量管理保证体系,使水电安装预埋严格按照施工验收规程和质量验收标准进行施工,工程技术的交底、检验、复核和隐蔽工程的验收签证等工作都应及进有序的进行,不得有半点的马虎。以确保水电预埋配合的工程质量,做到准确、无误、优质,为下一步的水电安装创优,提供有力的保证。
说 明
星欣设计图库资料专卖店拥有最新最全的设计参考图库资料,内容涉及景观园林、建筑、规划、室内装修、建筑结构、暖通空调、给排水、电气设计、施工组织设计等各个领域的设计素材和设计图纸等参考学习资料。是为广大艺术设计工作者优质设计学习参考资料。本站所售的参考资料包括设计方案和施工图案例已达几十万套以上,总量在数千G以上。
联系QQ:447255935
电话:13111542600