建筑防腐蚀工程施工及验收规范GB50212-81 |
主编部门:中华人民共和国化学工业部
批准部门:中华人民共和国建设部
施行日期:1992年7月1日
关于发布国家标准《建筑防腐蚀工程施工及验收规范》的通知
建标〔1991〕817号
根据国家计委计综〔1986〕2630号文的要求,由化学工业部会同有关部门共同修订的《建筑防腐蚀工程施工及验收规范》,已经有关部门会审。现批准《建筑防腐蚀工程施工及验收规范》GB50212—91为国家标准,自1992年7月1行起施行。原国家标准《建筑防腐蚀工程施工及验收规范》TJ212—75同时废止。本标准由中国化学工业部负责管理。具体解释等工作由化工部施工技术研究所负责。出版发行由建设部标准定额研究所负责组织。
中华人民共和国建设部
1991年11月15日
修订说明
本规范是根据国家计委计综(1986)2630号文的要求,由我部负责主编,具体由化工部施工技术研究所会同冶金工业部、航空航天工业部、中国石油化工总公司和化学工业部所属的有关单位对原《建筑防腐蚀工程施工及验收规范》(TJ212—76)进行全面修订而成。
在修订过程中,编制组进行了广泛的调查研究,认真总结了我国近10余年来建筑防腐蚀工程施工、工程应用和科研等方面的经验,并多次广泛征求了全国有关单位的意见,经过反复修改后,由我部会同有关部门审查定稿。
本规范共包括十二章和四个附录,其中第一、二、十一、十二章为通用部分,其余各章为按材料划分的各种防腐蚀工程的特殊要求,第八、十一章为本次修订时新增内容。
随着建设事业的不断发展,新技术、新工艺将不断涌现,希望各单位在执行本规范的过程中,认真总结经验,注意积累资料。若发现需要修改和补充之处,请将意见和有关资料寄交化学工业部施工技术研究所(地址:河北省石家庄市槐中中路,邮政编码:050021),以便今后修订时参考。
化学工业部
1990年6月
第一章 总则
第1.0.1条 为保证建筑物和构筑物防腐蚀工程的施工质量,以减少因腐蚀而造成的损失,制订本规范。
第1.0.2条 本规范适用于新建、改建、扩建的建筑物和构筑物防腐蚀工程的施工及验收。
第1.0.3条 防腐蚀工程所用的原材料,必须符合本规范的规定,并具有出厂合格证或检验资料。对原材料的质量有怀疑时,应进行复验。
第1.0.4条 对施工配合比有要求的防腐蚀材料,其配合比应经试验确定,并不得任意改变。
第1.0.5条 防腐蚀工程的施工,除应符合本规范的规定外,尚应符合国家现行有关标准的规定。
第二章 基层处理及要求
第一节水泥砂浆或混凝土基层
第2.1.1条 水泥砂浆或混凝土基层,必须坚固、密实、平整;基层的坡度和强度应符合设计要求,不应有起砂、起壳、裂缝、蜂窝麻面等 现象。平整度应用2m直尺检查,允许空隙不应大于5mm。
第2.1.2条 当在水泥砂浆或混凝土基层表面进行块材铺砌施工时,基层的阴阳角应做成直角;进行其它种类防腐蚀施工时,基层的阴阳角 应做成斜面或圆角。
第2.1.3条 基层必须干燥。在深为20mm的厚度层内含水率不应大于6%当设计对湿度有特殊要求时,应按设计要求进行施工。 注:当使用湿固化型环氧树脂固化剂施工时,基层的含水率可不受此限制,但基层表面不得有浮水。
第2.1.4条 基层表面必须洁净。防腐蚀施工前,应将基层表面的浮灰、水泥渣及疏松部位清理干净。基层表面的处理方法,宜采用砂轮或 钢丝刷等打磨表面,然后用干净的软毛刷、压缩空气或吸尘器清理干净。当有条件时,可采用轻度喷砂法,使基层形成均匀粗 糙面。
第2.1.5条 已被油脂、化学药品污染的表面或改建、扩建工程中已被侵蚀的疏松基层应进行表面预处理处理方法应符合下列规定:
一、被油脂、化学药品污染的表面,可使用溶剂、洗涤剂、碱液洗涤或用火烤、蒸汽吹洗等方法处理,但不得损坏基层;
二、被腐蚀介质侵蚀的疏松基层,必须凿除干净,用细石混凝土等填补,养护之后按新的基层进行处理。
第2.1.6条 凡穿过防腐层的管道、套管、预留孔、预埋件,均应预先埋置或留设。
第二节钢结构基层
第2.2.1条 钢结构表面应平整,施工前应把焊渣、毛刺铁锈、油污等清除干净。
第2.2.2条 钢结构表面处理的等级应分为两级并应符
合下列规定:
一、一级钢结构表面无可见的油脂、污垢、氧化皮、铁锈和油漆涂层等附着物,任何残留的痕迹只能是点状或条纹状的轻微色斑
二、二级钢结构表面无可见的油脂和污垢,并且没有附着不牢的氧化皮、铁锈和油漆涂层等附着物。
第2.2.3条 钢结构表面的处理方法,可采用干法喷砂、酸洗处理、机械除锈或手工除锈。
第2.2.4条 对污染严重的钢结构和改建、扩建工程中腐蚀严重的钢结构,应进行表面预处理,处理方法应符合下列规定:
一、被油脂污染的钢结构表面,可采用有机溶剂、热碱液或乳化剂以及烘烤等方法除去油脂;
二、被氧化物污染或附着有旧漆层的钢结构表面,可采用烘烤、铲除等方法清理。
第2.2.5条 经处理过的钢结构基层,应及时刷上底涂料间隔时间不应超过8h。
第三节木质基层
第2.3.1条 木质基层表面,应平整、光滑,无油脂、树脂并将表面的浮灰清除干净。
第2.3.2条 木质基层应干燥,含水率不应大于15%。
第2.3.3条 基层表面被油脂污染时,可先用砂纸磨光,再用汽油等溶剂洗净。
木质基层有节疤、树脂时,应用脂胶清漆等作封闭处理。 |
建筑防腐蚀工程施工及验收规范GB50212-81 |
第三章 块材防腐蚀工程
第一节原材料和制成品的质量要求
第3.1.1条 块材的品种、规格及等级,应符合设计要求;当设计无要求时,应符合下列规定:
一、耐酸砖、缸砖、耐酸陶板、铸石板的耐酸率和吸水率,应符合表3.1.1的规定,其热稳定性应符合本规范附录三中合格的规定。
耐酸砖、缸砖、耐酸陶板、铸石板的质量 表 3.1.1 项 目 | 耐酸离(%) | 吸水率(%) | 耐 酸 砖 | 一类 | ≥99.80 | ≤0.5 | 二类 | ≥99.80 | ≤2.0 | 三类 | ≥99.70 | ≤4.0 | 缸 砖 | ≥94.00 | ≤7.0 | 耐 酸 陶 板 | ≥97.00 | ≤7.0 | 铸 石 板 | ≥99.00 | |
二、花岗石及其它条石块材应组织均匀,不得有裂纹或不耐酸的夹层,其耐酸率不应小于95%;浸酸安定性应合格;吸水率不应大于1%; 抗压强度不应小于100MP。
三、聚合物浸渍混凝土块材的抗压强度,不应小于70MPaa;吸水率不应大于1%;抗渗性应大于4MPa;其表面的浸渍深度不应小于20mm。 浸渍液宜采用配合比为9∶1的苯乙烯环氧树脂液或苯乙烯不饱和聚酯树脂液。
四、沥青浸渍砖,其浸渍用砖宜采用75号粘土砖。当使用温度小于30℃时,浸渍用沥青的标号,宜采用60号;当使用温度为30~40℃时, 宜采用30号。浸渍深度不应小于15mm。第3.1.2条胶泥、砂浆的质量要求及配制,铺砌块材的要求,应符合本规范有关章节的规定。
第二节块材的施工及检查
第3.2.1条 块材使用前应经挑选,并应洗净、干燥后备用。
第3.2.2条 块材铺砌前,宜先试排;铺砌时,铺砌顺序应由低往高,先地坑、地沟,后地面、踢脚板或墙裙。阴角处立面块材应压住平面 块材,阳角处平面块材应盖住立面块材。块材铺砌不应出现十字通缝,多层块材不得出现重迭缝。
第3.2.3条 块材的结合层及灰缝应饱满密实,粘结牢固,不得有疏松、裂纹和起鼓现象,灰缝的表面应平整,灰缝的尺寸应符合本规范有 关章节的规定。
第3.2.4条 需作勾缝的块材面层,铺砌时,应随时刮除缝内多余的胶泥或砂浆;勾缝前,应将灰缝清理干净。
第3.2.5条 块材面层的平整度和坡度,应符合下列规定:
一、地面的面层应平整,并应采用2m直尺检查,其允许空隙不应大于下列数值:耐酸砖、缸砖、耐酸陶板、铸石板的面层4mm花岗石及其 它条石块材的面层8mm聚合物浸渍混凝土块材的面层6mm沥青浸渍砖的面层6mm
二、块材面层相邻块材之间的高差,不应大于下列数值:耐酸砖、缸砖、耐酸陶板、铸石板的面层1.5mm花岗石及其它条石块材的面层 3mm聚合物浸渍混凝土块材的面层2mm沥青浸渍砖的面层2mm
三、坡度应符合设计要求,其允许偏差应为坡长的±0.2%,最大偏差值不得大于30mm;做泼水试验时,水应能顺利排除。
第四章 沥青类防腐蚀工程
第一节 一般规定
第4.1.1条 沥青类防腐蚀工程包括下列内容:
一、沥青稀胶泥铺贴的油毡隔离层、涂覆的隔离层;
二、沥青胶泥铺砌的块材面层;
三、沥青砂浆和沥青混凝土铺筑的整体面层或垫层;
四、碎石灌沥青垫层。
第4.1.2条 施工环境的温度,不宜低于5℃;施工时的工作面,应保持清洁干燥。
第4.1.3条 沥青应按不同品种和标号分别堆放,不宜曝晒和沾染杂物。
第二节原材料和制成品的质量要求
第4.2.1条 道路石油沥青、建筑石油沥青和普通石油沥青应符合国家现行标准《道路石油沥青》、《建筑石油沥青》和《普通石油沥青》 以及表4.2.1的规定。
道路、建筑和普通石油沥青的质量 表 4.2.1
项 目 | 道路石油沥青 | 建筑石油沥青 | 普通石油沥青 | 60号甲 | 60号乙 | 30号甲 | 30号乙 | 10号 | 75号 | 65号 | 55号 | 针入度(25℃,100g,1燉10mm) | 51~80 | 41~80 | 21~40 | 21~40 | 05~20 | 75 | 65 | 55 | 延度(25℃,cm) | ≥70 | ≥40 | ≥3 | ≥3 | ≥1 | ≥2 | ≥1.5 | ≥1 | 软化点(环球法,℃) | 45~50 | ≥45 | ≥70 | ≥60 | ≥95 | ≥60 | ≥80 | ≥100 |
第4.2.2条 石油沥青油毡、沥青玻璃布油毡和再生胶油毡应符合国家现行标准《石油沥青油毡》、《沥青玻璃布油毡》和《再生胶油毡》 的规定;石油沥青油毡的标号,不应低于350号。
第4.2.3条 纤维状填料宜采用6级角闪石棉或温石棉;温石棉应符合现行国家标准《温石棉》的规定。
第4.2.4条 粉料的耐酸率不应小于95%;其细度要求为0.15mm筛孔筛余量不应大于5%,0.09mm筛孔筛余量应为10%~30%;亲水系数不应大 于1.1。
第4.2.5条 细骨料的耐酸率,不应小于95%。含泥量不应大于1%,其颗粒级配应符合表4.2.5的规定。
细骨料颗粒级配 表 4.2.5
筛孔(mm) | 5.0 | 1.25 | 0.315 | 0.16 | 累计筛余量(%) | 0~10 | 35~65 | 80~95 | 90~100 |
第4.2.6条粗骨料的耐酸率不应小于95%,浸酸安定性应合格,空隙率不应大于45%,含泥量不应大于1%。
第4.2.7条沥青胶泥的质量,应符合表4.2.7的规定。
沥青胶泥的质量 表 4.2.7
项 目 | 使用部位的最高温度(℃) | ≤30 | 31~40 | 41~50 | 51~60 | 耐热稳定性(℃) | ≥40 | ≥50 | ≥60 | ≥70 | 浸酸后质量变化率(%) | ≤1 |
|
建筑防腐蚀工程施工及验收规范GB50212-81 |
第4.2.8条 沥青砂浆和沥青混凝土的抗压强度,20℃时不应小于3MPa,50℃时不应小于1MPa。饱和吸水率(体积计)不应大于1.5%,浸 酸安定性应合格。
第三节沥青胶泥、沥青砂浆和沥青混凝土的配制
第4.3.1条 沥青胶泥的施工配合比,应根据工程部位、使用温度和施工方法等因素确定。施工配合比可按本规范附录一附表1.1选用。
第4.3.2条 沥青胶泥的配制,应符合下列规定:
一、沥青应破成碎块,均匀加热至160~180℃,不断搅拌、脱水,至不再起泡沫,并除去杂物。
二、当建筑石油沥青升温至200~230℃、普通石油沥青升温至250~270℃时,按施工配合比,将预热至120~140℃的干燥粉料(或同时加 入纤维状填料)逐步加入,并不断搅拌,直至均匀。当施工环境温度低于5℃时,应取最高值。熬好的沥青胶泥,可按附录一中附表 1.1的要求取样做软化点试验。
注:①用普通石油沥青(多蜡沥青)配制沥青胶泥时,应掺入沥青总量30%~50%的建筑石油沥青或掺入外加剂后使用,外加剂宜为1% ~1.8%的氯化锌。
②掺入氯化锌时,应在上述规定温度内加入,并不断搅拌,待泡沫消失后再加入粉料。氯化锌应保存在密闭的容器中。
三、熬制好的沥青胶泥应一次用完,在未用完前,不得再加入沥青或填料。取用沥青胶泥时,应先搅匀,以防填料沉底。
第4.3.3条 沥青砂浆、沥青混凝土的施工配合比,应符合下列规定:
一、粉料和骨料之间颗粒级配,应符合表4.3.3的规定。
粉料和骨料混合物的颗粒级配 表 4.3.3 种 类 | 混 合 物 累 计 筛 余 量 (%) | 25 | 15 | 5 | 2.5 | 1.25 | 0.63 | 0.315 | 0.16 | 0.08 | 沥青砂浆 | | | 0 | 20~38 | 33~57 | 45~71 | 55~80 | 63~86 | 70~90 | 细粒式沥青混凝土 | | 0 | 22~37 | 37~60 | 47~70 | 55~78 | 65~88 | 70~88 | 75~90 | 中粒式沥青混凝土 | 0 | 10~20 | 30~50 | 43~67 | 52~75 | 60~82 | 68~87 | 72~92 | 77~92 |
二、采用平板振动器振实时,沥青用量占粉料和骨料混合物质量的百分率(%)为:沥青砂浆11~14细粒式沥青混凝土8~10中粒式沥青 混凝土7~9
注:①普通石油沥青不宜用于配制沥青砂浆和沥青混凝土。
②涂抹立面的沥青砂浆,沥青用量可达25%。
三、当采用平板振动器或热滚筒压实时,沥青标号宜用30号;当采用辗压机压实时,宜采用60号。
第4.3.4条 沥青砂浆、沥青混凝土的配制,应符合下列规定:
一、沥青的熬制,应符合本规范第4.3.2条第一款的规定。
二、按施工配合比量,将预热至140℃左右的干燥粉料和骨料混合均匀,随即将熬至200~230℃的沥青逐渐加入,不断翻拌至全部粉料和 骨料被沥青覆盖为止。拌制温度宜为180~210℃。
第四节 隔离层的施工
第4.4.1条 基层的表面,应先均匀涂刷冷底子油两遍。涂刷冷底子油的表面,应保持清洁,待干燥后,方可进行隔离层的施工。冷底子油 的质量配比,应符合下列规定:
一、第一遍,建筑石油沥青与汽油之比为30∶70;第二遍,建筑石油沥青与汽油之比为50∶50。
二、建筑石油沥青与煤油或轻柴油之比为40∶60。
第4.4.2条 沥青稀胶泥的浇铺温度,不应低于下列数值:建筑石油沥青190℃建筑和普通石油沥青混合220℃普通石油沥青240℃当环境温 度低于5℃时,应采取措施提高温度后方可施工。
第4.4.3条 油毡隔离层的铺贴,应符合下列规定:
一、油毡使用前,表面撒布物应清除干净,并保持干燥。
二、油毡铺贴顺序,应由低往高,先平面后立面,地面隔离层应延续铺至墙面的高度为100~150mm;贮槽等构筑物的隔离层,应延续铺 至顶部。转角处应增加油毡一层。
三、油毡隔离层的施工应随浇随贴,必须满浇,每层沥青稀胶泥的厚度不应大于2mm,油毡必须展平压实接缝处应粘牢油毡的搭接宽度, 短边和长边均不应小于100mm;上下两层油毡的搭接缝,同一层油毡的短边搭接缝均应错开。
四、隔离层上采用水玻璃类材料施工时,应在铺完的油毡层上浇铺一层沥青胶泥,并随即均匀稀撒预热的粒径为2.5~5mm的耐酸粗砂粒; 砂粒嵌入沥青胶泥的深度宜为1.5~2.5mm。
第4.4.4 条 涂覆隔离层的层数,当设计无要求时,宜采用两层,其总厚度宜为2~3mm。当隔离层上采用水玻璃类耐酸材料施工时,应随 即均匀稀撒干净预热的粒径为1.2~2.5mm耐酸砂粒。
第五节 沥青胶泥铺砌块材
第4.5.1条 基层表面若未设置隔离层,应按本规范第4.4.1条的规定,预先涂刷冷底子油。
第4.5.2条 块材铺砌前宜进行预热;当环境温度低于5℃时,必须预热,预热温度不应低于40℃。
第4.5.3条 沥青胶泥的浇铺温度不应低于下列数值:建筑石油沥青胶泥180℃建筑和普通石油沥青混合胶泥200℃普通石油沥青胶泥220℃ 当环境温度低于5℃时,应采取措施提高温度后方可施工。
第4.5.4条 块材结合层的厚度和灰缝的宽度,应符合表4.5.4的规定。
块材结合层厚度和灰缝宽度 表 4.5.4
块材种类 | 结合层厚度(mm) | 灰缝宽度(mm) | 挤逢法 灌缝法 | 刮浆铺砌法 分段浇灌法 | 挤缝法、刮 浆铺砌法、 分段浇灌法 | 灌缝法 | 标形耐酸砖、缸砖、铸石板 | 3~5 | 5~7 | 3~5 | 6~8 | 平板形耐酸砖、耐酸陶板 | 3~5 | 5~7 | 2~3 | 5~7 | 花岗石及其它条石块材面层 | | | | 8~15 |
注:当花岗石及其它条石块材的结合层采用沥青砂浆时,其厚度应为10~15mm,沥青用量可达25%。
第4.5.5条 平面块材的铺砌,可采用挤缝法或灌缝法。
|
建筑防腐蚀工程施工及验收规范GB50212-81 |
一、挤缝法:应随浇沥青胶泥,随铺砌块材。沥青胶泥的浇铺厚度,应按结合层要求增厚2~3mm;铺砌时,灰缝应挤严灌满,表面平整。
二、灌缝法:沥青胶泥应浇铺刮平,块材应粘结牢固,不得浮铺。灌缝前,灰缝处宜预热。
第4.5.6条 立面块材的铺砌,可采用刮浆铺砌法或分段浇灌法。
一、刮浆铺砌法:应随刮随铺,趁热挤实压平。
二、分段浇灌法(图4.5.6结合层应饱满,表面应平整。  图4.5.6分段浇灌法
1——先用刮浆铺砌法贴块材1~2块;2——浮贴块材约5~6块;3——留出结合层5~7mm,然后浇灌沥青胶泥。
第六节 沥青砂浆和沥青混凝土的施工
第4.6.1条 沥青砂浆和沥青混凝土,应采用平板振动器或辗压机和热滚筒压实。墙脚等处,应采用热烙铁拍实。
第4.6.2条 沥青砂浆和沥青混凝土摊铺前,应在已涂有沥青冷底子油的水泥砂浆或混凝土基层上,先涂一层沥青稀胶泥,沥青与粉料的质 量配比,应为100∶30。
第4.6.3条 沥青砂浆和沥青混凝土摊铺后,应随即刮平进行压实。每层的压实厚度,沥青砂浆和细粒式沥青混凝土不宜超过30mm;中粒式 沥青混凝土不应超过60mm。虚铺的厚度应经试压确定,用平板振动器振实时,宜为压实厚度的1.3倍。
第4.6.4条 沥青砂浆和沥青混凝土用平板振动器振实时,开始压实温度应为150~160℃,压实完毕的温度不应低于110℃。当施工环境的 温度低于5℃时,开始压实温度应取最高值。
第4.6.5条 垂直的施工缝应留成斜槎,用热烙铁拍实。继续施工时,应将斜槎清理干净,并预热。预热后,涂一层热沥青,然后连续摊 铺沥青砂浆或沥青混凝土。接缝处应用热烙铁仔细拍实,并拍平至不露痕迹。当分层铺砌时,上下层的垂直施工缝应相互错 开;水平的施工缝应涂一层热沥青。
第4.6.6条 立面涂抹沥青砂浆应分层进行,最后一层抹完后,应用烙铁烫平。当采用沥青砂浆预制块铺砌时,应按本规范
第4.5.6条 的规定施工。
第4.6.7条 铺压完的沥青砂浆和沥青混凝土,应与基层结合牢固。其面层应密实、平整,并不得用沥青作表面处理,和不得有裂纹、起 鼓和脱层等现象。当有上述缺陷时,应先将缺陷处挖除,清理干净,预热后,涂上一层热沥青然后用沥青砂浆或沥青混凝土 进行填铺、压实地面面层的平整度应采用2m直尺检查其允许空隙不应大于6mm。其坡度应符合本规范第3.2.5条第三款的规定。
第七节碎石灌沥青
第4.7.1条 碎石灌沥青的垫层,不得在有明水或冻结的基土上进行施工。
第4.7.2条 沥青软化点应低于90℃;石料应干燥,材质应符合设计要求。
第4.7.3条 碎石灌沥青的垫层施工时,先在基土上铺一层粒径为30~60mm的碎石,夯实后,再铺一层粒径为10~30mm的碎石,找平、拍 实,随后浇灌热沥青,沥青渗入深度应符合设计要求。当设计要求垫层表面平整时,应在浇灌热沥青后,随即均匀撒一层粒 径为5~10mm的细石,整平后再浇一层热沥青。
第五章 水玻璃类防腐蚀工程
第一节 一般规定
第5.1.1条 水玻璃类防腐蚀工程包括下列内容:
一、水玻璃耐酸胶泥、水玻璃耐酸砂浆(以下简称水玻璃胶泥、水玻璃砂浆)铺砌的块材面层。
二、水玻璃耐酸混凝土及改性水玻璃耐酸混凝土(以下简称水玻璃混凝土及改性水玻璃混凝土)灌筑的整体面层、设备基础和构筑物。
第5.1.2条 水玻璃类防腐蚀工程施工的环境温度,宜为15~30℃;相对湿度不宜大于80%。当施工的环境温度低于10℃时,应采取加热 保温措施。原材料使用时的温度,不应低于10℃。水玻璃在装运及贮存直至使用时,应防止受冻。当受冻时,可通过加热及 充分搅拌均匀后方可使用。
第5.1.3条 水玻璃类防腐蚀工程在施工及养护期间,严禁与水或水蒸汽接触,并应防止早期过快脱水。
第二节原材料和制成品的质量要求
第5.2.1条 水玻璃的质量,应符合现行国家标准《硅酸钠》及表5.2.1的规定,其外观应为无色、略带色的透明或半透明s粘稠液体。
水玻璃的质量 表 5.2.1 项目 | 指标 | 项目 | 指标 | 密度(20℃,g燉cm3) | 1.44~1.47 | 二氧化硅(%) | ≥25.7 | 氧化钠(%) | ≥10.2 | 模数(M) | 2.6~2.9 |
施工用水玻璃的密度(20℃,g燉cm3),应符合下列规定:
用于胶泥1.40~1.43
用于砂浆1.40~1.42
用于混凝土1.38~1.42
第5.2.2条 氟硅酸钠的纯度不应小于95%,含水率不应大于1%,细度要求全部通过孔径0.15mm的筛。当受潮结块时,应在不高于100℃ 的温度下烘干并研细过筛后方可使用。
第5.2.3条 粉料的耐酸率不应小于95%,含水率不应大于0.5%,细度要求0.15mm筛孔筛余量不应大于5%,0.09mm筛孔筛余量应为 10%~30%。
第5.2.4条 细骨料的耐酸率不应小于95%,含水率不应大于1%,并不得含有泥土。当细骨料采用天然砂时,含泥量不应大于1%。水玻璃 砂浆采用细骨料时,粒径不应大于1.2mm。水玻璃混凝土用的细骨料的颗粒级配,应符合表5.2.4的规定。
细骨料的颗粒级配 表 5.2.4
筛孔(mm) | 5 | 1.25 | 0.315 | 0.16 | 累计筛余量(%) | 0~10 | 20~55 | 70~95 | 95~100 |
|
建筑防腐蚀工程施工及验收规范GB50212-81 |
第5.2.5条 粗骨料的耐酸率不应小于95%,浸酸安定性应合格,含水率不应大于0.5%,吸水率不应大于1.5%,并不得含有泥土。
粗骨料的最大粒径,不应大于结构最小尺寸的1燉4。粗骨料的颗粒级配,应符合表5.2.5的规定。
粗骨料的颗粒级配 表 5.2.5 筛孔(mm) | 最大粒径 | 1燉2最大粒径 | 5 | 累计筛余量(%) | 0~5 | 30~60 | 90~100 |
第5.2.6条 水玻璃胶泥的质量,应符合表5.2.6的规定,其浸酸安定性应符合附录三中合格的规定。
水玻璃胶泥的质量 表 5.2.6
项目 | 指标 | 项目 | 指标 | 初凝时间(min) | >30 | 与耐酸砖粘结强度(MPa) | ≥1.0 | 终凝时间(h) | <8 | 煤油吸收率(%) | <16 | 抗拉强度(MPa) | >2.5 | | |
第5.2.7条 水玻璃砂浆的抗压强度,不应小于15MPa。水玻璃混凝土的抗压强度,不应小于20MPa。改性水玻璃混凝土的抗压强度,不应小 于25MPa,抗渗标号不小于1.2MPa。浸酸安定性均应合格。
第三节 水玻璃胶泥、水玻璃砂浆和水玻璃混凝土的配制
第5.3.1条 水玻璃材料的施工配合比,可按本规范附录一附表1.2选用,并应符合下列规定:
一、水玻璃胶泥稠度为33±3mm,施工时,应有足够的流动性及稠度,既易于施工又能保持铺砌好的块材的原来位置。水玻璃砂浆圆锥沉 入度,当用于铺砌块材时,宜为3~4cm;当用于涂抹时,宜为4~6cm。水玻璃混凝土的坍落度,当机械捣实时,不应大于2cm;当人 工捣实时,不应大于3cm。
二、氟硅酸钠的用量,应按下式计算:
G=1.5×N1/N2×100(5.3.1)式中G——氟硅酸钠用量占水玻璃用量的百分率(%);N1——水玻璃中含氧化钠的百分率(%);N2 ——氟硅酸钠的纯度(%)。
三、填料混合物的空隙率,应符合下列规定:
水玻璃砂浆所用粉料、细骨料的混合物,不应大于25%。
水玻璃混凝土所用粉料、粗细骨料的混合物,不应大于22%。
第5.3.2条 水玻璃胶泥、水玻璃砂浆的配制,应符合下列规定:
一、机械搅拌:先将粉料、细骨料与氟硅酸钠加入搅拌机内,干拌均匀,然后加入水玻璃湿拌,湿拌时间不应少于2min,当配制水玻璃 胶泥时,不加入细骨料。
二、人工搅拌:先将粉料和氟硅酸钠混合,过筛两遍后,加入细骨料干拌均匀,然后逐渐加入水玻璃湿拌,直至均匀,当配制水玻璃胶 泥时,不加细骨料。
第5.3.3条 水玻璃混凝土及改性水玻璃混凝土的配制,应符合下列规定:
一、机械搅拌应采用强制式混凝土搅拌机,将细骨料、已混匀的粉料和氟硅酸钠、粗骨料加入搅拌机内,干拌均匀,然后加入水玻璃湿 拌,直至均匀。配制改性水玻璃混凝土时,若加入糠醇单体或多烃醚化三聚氰胺外加剂时,可将水玻璃与外加剂一起加入,湿拌直 至均匀;当加入木质素磺酸钙及水溶性环氧树脂外加剂时,应先计算出调整水玻璃密度所需总加水量,将木质素磺酸钙溶解后再与 水溶性环氧树脂及水玻璃加入搅拌机内湿拌直至均匀。
二、人工搅拌:应先将粉料和氟硅酸钠混合,过筛后,加入细骨料、粗骨料,干拌均匀,最后加入水玻璃湿拌不宜少于3次,直至均匀。
第5.3.4条 拌好的水玻璃胶泥、水玻璃砂浆、水玻璃混凝土内严禁加入任何物料,并必须在初凝前用完。
第四节 水玻璃胶泥、水玻璃砂浆铺砌块材
第5.4.1条 施工前应将块材和基层表面清理干净。
第5.4.2条 施工时,块材的结合层厚度和灰缝宽度,应符合表5.4.2的规定。
结合层厚度和灰缝宽度 表 5.4.2
块材种类 | 结合层厚度(mm) | 灰缝宽度(mm) | 水玻璃胶泥 | 水玻璃砂浆 | 水玻璃胶泥 | 水玻璃砂浆 | 标形耐酸砖、缸砖、铸石板 | 5~7 | 6~8 | 3~5 | 4~6 | 平板形耐酸砖、耐酸陶板 | 5~7 | 6~8 | 2~5 | 4~6 | 花岗石及其它条石块材 | | 10~15 | | 8~12 |
第5.4.3条 当铺砌砖、板时,应采用揉挤法;铺砌花岗石及其它条石块材时,应采用座浆填缝法。
第5.4.4条 当立面铺砌块材时,应防止变形。在水玻璃胶泥或水玻璃砂浆终凝前,一次铺砌的高度应以不变形为限,待凝固后再继续施 工。当平面铺砌块材时,应防止滑动。
第5.4.5条 水玻璃类材料在不同养护温度下的养护期,应符合表5.4.5的规定。
水玻璃类材料的养护期 表 5.4.5
养护温度(℃) | 养护时间(昼夜) | 养护温度(℃) | 养护时间(昼夜) | 10~20 | ≥12 | 31~35 | ≥3 | 21~30 | ≥6 | | |
第5.4.6条 水玻璃类防腐蚀工程养护后,应采用浓度为20%~25%盐酸或30%~40%硫酸作表面酸化处理,酸化处理至无白色结晶钠盐析出 为止。酸化处理次数不宜少于3次,每次间隔时间不应少于8h,每次处理前应清除表面的白色析出物。
第五节 水玻璃混凝土的施工
第5.5.1条 模板应支撑牢固,拼缝严密,表面平整,并应涂矿物油脱模剂。
第5.5.2条 水玻璃混凝土内的预埋铁件必须除锈,并应涂刷环氧树脂漆或过氯乙烯漆等防腐蚀涂料。
第5.5.3条 水玻璃混凝土的灌筑,应符合下列规定:
一、水玻璃混凝土应在初凝前振捣密实。
二、当采用插入式振动器时,每层灌筑厚度不宜大于200mm,插点间距不应大于作用半径的1.5倍,振动器应缓慢拔出,不得留有孔洞。 当采用平板振动器和人工捣实时,每层灌筑厚度不应大于100mm。当灌筑厚度大于上述规定时,应分层连续灌筑。分层灌筑时,上一 层应在下一层初凝以前完成。当超过初凝时间应待下一层凝固后,按施工缝的施工方法处理。耐酸贮槽的灌筑必须一次完成,严禁 留设施工缝。
三、最上层捣实后,表面应在初凝前压实抹平。
四、灌筑地面时,应随时控制平整度和坡度;平整度应采用2m直尺检查,其允许空隙不应大于4mm;其坡度应符合本规范第3.2.5条第三 款的规定。
第5.5.4条 当需留施工缝时在继续灌筑前应将该处打毛清理干净,薄涂一层水玻璃稀胶泥稍干后再继续灌筑。地面施工缝应留成斜槎。
第5.5.5条 水玻璃混凝土在不同环境温度下的拆模时间,应符合表5.5.5的规定。
|
建筑防腐蚀工程施工及验收规范GB50212-81 |
水玻璃混凝土的拆模时间 表 5.5.5 环境温度(℃) | 拆模时间(昼夜) | 环境温度(℃) | 拆模时间(昼夜) | 10~15 | ≥5 | 21~30 | ≥2 | 16~20 | ≥3 | 31~35 | ≥1 |
第5.5.6条 承重模板的拆除,应在混凝土的抗压强度达到设计强度的70%时方可进行。拆模后不得有蜂窝、麻面、裂纹等缺陷。当有上述 缺陷时,应将该处的混凝土凿去,清理干净,薄涂一层水玻璃稀胶泥,待稍干后用水玻璃胶泥或水玻璃砂浆进行修补。
第5.5.7条 水玻璃混凝土的养护和酸化的处理,应符合本规范第5.4.5条和第5.4.6条的规定。
第六章硫磺类防腐蚀工程
第一节 一般规定
第6.1.1条 硫磺类防腐蚀工程包括下列内容:
一、硫磺胶泥、硫磺砂浆浇灌的块材面层。
二、硫磺混凝土灌筑的地面、设备基础和贮槽等。
第6.1.2条 硫磺类防腐蚀工程的施工环境温度,不宜低于5℃,相对湿度不应大于80%,并宜在施工完成2h后方可使用,设备基础、贮槽 等构筑物必须在25h后方可使用。
第6.1.3条 硫磺类防腐蚀材料在冷固前,严禁与水接触;施工中使用的材料、器具,必须保持清洁干燥。
第二节 原材料和制成品的质量要求
第6.2.1条 硫磺的质量,应符合现行国家标准《工业硫磺及其测定方法》和表6.2.1的规定,硫磺中不得含有机械杂质。
硫磺的质量 表 6.2.1
第6.2.2条 粉料的耐酸率不应小于95%,细度要求为0.15mm筛孔筛余量不应大于5%,0.09mm筛孔筛余量为10%~30%含水率不应大于0.5%。
第6.2.3条 细骨料的耐酸率不应小于95%,含泥量不应大于1%,粒径要求为1mm筛孔筛余量不应大于5%。
第6.2.4条 粗骨料宜采用碎石,并不得含有泥土,其耐酸率不应小于95%浸酸安定性应合格。粒径为20~40mm碎石的含量不应小于85%, 10~20mm的含量不应大于15%。
第6.2.5条 改性剂应采用半固态黄绿色聚硫甲胶、半固态灰黄色聚硫乙胶或棕褐色粘稠状液体聚硫橡胶,其质量应符合表6.2.5的规定。
聚硫橡胶的质量 表 6.2.5
项目 | 聚硫甲胶 | 聚硫乙胶 | 液态聚硫橡胶 | 柔软度(20℃,S) | 10~70 | 5~50 | | 水分(%)) | <2.0 | <1.0 | <0.1 | 粘度(25℃,Pa,S) | | | 50~120 | pH值 | 6~8 | 6~8 | 6~8 |
第6.2.6条 硫磺胶泥、硫磺砂浆的质量,应符合表6.2.6的规定。
硫磺胶泥、硫磺砂浆的质量 表 6.2.6
项目 | 硫磺胶泥 | 硫磺砂浆 | 抗拉强度(MPa) | ≥4.0 | ≥3.5 | 与耐酸砖粘结强度(MPa) | ≥1.3 | ≥1.3 | 急冷急热残余抗拉强度(MPa) | ≥2.0 | | 分层度 | | 0.7~1.3 | 浸酸后 | 抗拉强度降低率(%) | ≤20 | ≤20 | 质量变化率(%) | ≤1 | ≤1 |
第6.2.7条 硫磺混凝土的抗压强度,不应小于40MPa;抗折强度,不应小于4MPa。
第三节 硫磺胶泥和硫磺砂浆的熬制
第6.3.1条 硫磺胶泥和硫磺砂浆的施工配合比,可按本规范附录一附表1.4选用。
第6.3.2条 硫磺胶泥和硫磺砂浆的熬制,应符合下列规定:
一、先将块状硫磺打成小块,再在130~150℃条件下熔化脱水。
二、将已烘干的粉料、细骨料及聚硫橡胶分别加入锅中,搅拌熬制,熬制温度应为140~160℃,当熬制硫磺胶泥时不应加细骨料。
三、熬制硫磺胶泥和硫磺砂浆时,宜采用砂浴加热和搅拌。
第6.3.3条 硫磺胶泥和硫磺砂浆熬制至液面无气泡时,应取样检查,外观检查合格后方可使用,或浇灌成锭备用。从锅中取出硫磺胶泥 或硫磺砂浆时,必须搅拌均匀。
注:①外观检查方法:将硫磺胶泥或硫磺砂浆在140℃时浇入“8”字型抗拉试模中,应无起鼓现象,将试件打断,颈部断面内肉眼可见 小孔不宜多于5个。
②强度的检查,应符合本规范附录三的有关规定。
第四节 硫磺胶泥和硫磺砂浆浇灌块材
第6.4.1条 浇灌前块材应预热,当施工环境温度低于5℃时,必须预热,预热温度不应低于40℃。
第6.4.2条 硫磺胶泥或硫磺砂浆的浇灌温度,应为135~145℃。
第6.4.3条 块材结合层的厚度和灰缝的宽度,应符合表6.4.3的规定。
结合层厚度和灰缝宽度 表 6.4.3
块块种类 | 结合层厚度(mm) | 灰缝宽度度(mm) | 耐酸砖、缸砖、耐酸陶板、铸石板 | 6~10 | 5~8 | 花岗石及其它条石块材 | 10~15 | 8~15 |
|
建筑防腐蚀工程施工及验收规范GB50212-81 |
第6.4.4条 浇灌块材应符合下列规定:
一、浇灌前应采用硫磺胶泥或其它耐酸小块将块材垫平;当浇灌立面时,外侧应撑牢。
二、面积较大的块材面层,应分段分行浇灌。段、行边缘的缝隙应堵严,堵缝材料不得沾有油污。
三、平面块材的灰缝在浇灌时宜盖以玻璃条,并留出排气孔。立面块材的灰缝,应用软棉布或牛皮纸浸水玻璃封贴严密。
四、浇灌时应设若干浇灌点,同时连续进行浇灌,至该段全部灌满为止;平面浇灌的顺序,应沿坡度方向自低而高进行。
五、面层的灰缝不饱满时,应立即进行补灌;高出块材部分的硫磺胶泥或硫磺砂浆应铲除或烫平,烫平温度应为140~160℃。
六、当施工环境温度低于5℃时,对已浇灌的块材表面,应立即覆盖保温。
第6.4.5条 当将块材制成预制块时,其施工方法应符合本规范第6.4.4条的规定。预制块的制作,应符合下列规定:
一、将块材反铺在平整的底板上,底板面应先薄涂矿物油脱模剂,块材间留出灰缝的宽度,边缘处应封严。
二、浇灌硫磺胶泥或硫磺砂浆时,不应高出块材面。
三、使用时平整面应向上。
第五节 硫磺混凝土的施工
第6.5.1条 硫磺混凝土的施工,应符合下列规定:
一、模板应支撑牢固,拼缝必须严密,表面平整、干燥,并应薄涂脱模剂。脱模剂宜采用矿物油,但施工缝处的模板不应涂脱模剂。
二、粗骨料必须干燥,并应预热,然后浮铺在模板内,其每层厚度不宜大于400mm,并预留浇灌孔。浇灌时的温度,应为40~60℃。浇 灌孔的预留方法,可将直径约50mm的钢管,按300~400mm的间距,在铺放粗骨料时预先埋入,待粗骨料铺完后将钢管缓慢抽出。浇 灌孔预留后应加以保护,不得堵塞。
三、硫磺胶泥或硫磺砂浆应同时向预留的各浇灌孔浇灌,至全部灌满为止,中间不得中断。浇灌的温度应符合本规范第6.4.2条的规定。
四、浇灌平面时,应分块进行,每块面积宜为2~4m2,待一块灌完并冷固收缩后,再浇灌相邻块。硫磺混凝土的面层表面,应露出石 子,最后用硫磺胶泥或硫磺砂浆找平;找平后面层的平整度,应采用2m直尺检查,其允许空隙不应大于6mm。
五、浇灌立面时,每层硫磺混凝土的水平施工缝,应露出石子;垂直施工缝应相互错开。
六、在面层找平或浇灌第二层硫磺混凝土前,应将下一层硫磺混凝土表面收缩孔中的针状物凿除。
七、当施工环境温度低于5℃时,对已浇灌的硫磺混凝土表面,应立即覆盖保温。
第6.5.2条 当硫磺混凝土制成硫磺混凝土预制块时其浇灌方法应符合本规范第6.4.4条的规定硫磺混凝土预制块的制作应符合下列规定:
一、将活动模板放置在平整钢板上,钢板表面薄涂矿物油脱模剂。
二、模板底部先浇灌一层厚为3mm的硫磺胶泥或硫磺砂浆,作为预制块的面层。
三、将干燥的粗骨料按规定厚度浮铺在硫磺胶泥或硫磺砂浆层上,随之浇灌硫磺胶泥或硫磺砂浆,待冷固后方可拆模。
四、使用时平整面向上。
第七章 树脂类防腐蚀工程
第一节 一般规定
第7.1.1条 本章所列的树脂应采用环氧、不饱和聚酯、呋喃、酚醛以及环氧煤焦油、环氧呋喃、环氧酚醛树脂。树脂类防腐蚀工程包括 下列内容:
一、树脂胶料铺衬的玻璃钢整体面层和隔离层。
二、树脂胶泥和砂浆铺砌、树脂胶泥勾缝或树脂稀胶泥灌缝的块材面层。
三、用树脂稀胶泥、砂浆制作的单一的或复合的整体面层。
第7.1.2条 施工环境温度宜为15~25℃,相对湿度不宜大于80%%。施工环境温度低于10℃时,应采取加热保温措施,并不得用明火或蒸 汽直接加热。施工时原材料的温度,不应低于本条规定的施工环境温度。注:当采用苯磺酰氯作固化剂时温度不得低于17℃。
第7.1.3条 当采用呋喃树脂或酚醛树脂进行防腐施工时在基层表面必须采用环氧树脂类涂料、不饱和聚酯树脂类涂料或玻璃钢作隔离层。
第7.1.4条 树脂类防腐蚀工程在施工及养护期间,应防火、防曝晒。
第7.1.5条 树脂、固化剂、稀释剂等材料,均应密封贮存在阴凉、干燥的通风处,并应防火。
第二节 原材料和制成品的质量要求
第7.2.1条 环氧树脂的质量,应符合国家现行标准《E型环氧树脂》及表7.2.1的规定,其外观应为淡黄色至棕黄色粘厚透明液体。
E型环氧树脂的质量 表 7.2.1 项目 | E-44 | E-42 | 环氧值(当量燉100g) | 0.41~0.47 | 0.38~0.45 | 软化点(℃) | 10~20 | 21~27 |
第7.2.2条 环氧酚醛、环氧呋喃和环氧煤焦油树脂,应由环氧树脂与酚醛、呋喃树脂或煤焦油混合而成。其混合比例宜符合下列规定:
一、环氧树脂与酚醛树脂之比为70∶30;
二、环氧树脂与呋喃树脂之比为70∶30;
三、环氧树脂与煤焦油之比为50∶50。
第7.2.3条 双酚A型和二甲苯型和邻苯型不饱和聚酯树脂的质量,应符合表7.2.3的规定。其外观:双酚A型和邻苯型应为黄色透明液;二 甲苯型应为黄色、棕黄色粘稠液。
不饱和聚酯树酯的质量 表 7.2.3
项目 | 指标 | 双酚A型 | 二甲苯型 | 邻苯型 | 酸值(氢氧化钾mg燉g) | 12~23 | <40 | 17~27 | 粘度(25℃,Pa.S) | 0.25~0.85 | 0.25~0.55 | 0.25~0.75 | 固体含量(%) | 50~65 | 64~72 | 60~70 | 胶化时间(250℃,min) | 8~30 | 60 | 10~30 |
注:不饱和聚酣树脂的贮存期20℃时不应超过6个月;30℃时不应超过3个月。
第7.2.4条 呋喃树脂的质量,应符合表7.2.4的规定。其外观:糠酮型应为棕褐色粘稠液;糠醇糠醛型、糠酮糠醛型应为棕黑色液。
呋喃树脂的质量 表 7.2.4 项目 | 指标 | 糠酮型 | 糠醇糠醛型 | 糠酮糖醛型 | 树脂含量(%) | >94 | | | 灰分(%) | <3 | | | 含水率(%) | <1 | | | pH值 | 7 | | | 粘度(涂-4粘度计,25℃,S) | | 20~30 | 50~80 |
注:①呋喃树脂的贮存期,不宜超过12个月。
②糠酮型呋喃树脂主要用于配制环氧呋喃树脂。 |
建筑防腐蚀工程施工及验收规范GB50212-81 |
第7.2.5条 酚醛树脂的质量,应符合表7.2.5的规定,其外观应为棕红色粘稠液体。
酚醛树脂的质量 表 7.2.5 项 目 | 指标 | 项 目 | 指标 | 游离酚含量(%) | <10 | 含水率(%) | <12 | 游离醛含量(%) | <2 | 粘度(落球粘度计,25℃,S)(%) | 45~65 |
注:①酚醛树脂常温下的贮存期,不应超过1个月。
②当采用冷藏法或加入10%的苯甲醇时,贮存期不宜超过3个月。
第7.2.6 煤焦油的质量,应符合国家现行标准《煤焦油》及表7.2.6的规定。
煤焦油的质量 表 7.2.6 项 目 | 指 标 | 一级 | 二级 | 密度(g燉cm3) | ≤1.2~1.20 | ≤1.13~1.22 | 含水率(%) | ≤4.0 | ≤4.0 | 灰分(%) | ≤0.15 | ≤0.15 | 游离炭(%) | ≤6.0 | ≤10.0 | 粘度(E80) | ≤5.0 | ≤5.0 |
当使用煤焦油时,应在110~150℃时脱水,滤去杂质,冷却后备用,其含水率不应大于1%。
第7.2.7条 环氧、环氧酚醛、环氧呋喃、环氧煤焦油树脂的固化剂,应优先选用低毒固化剂,也可采川乙二胺等各种胺类固化剂,对潮 湿基层可采用湿固化型环氧树脂固化剂。
第7.2.8条 不饱和聚酯树脂的固化剂应包括引发剂和促进剂。常用的引发剂应为过氧化环己酮二丁酯糊、过氧化甲乙酮二丁酯糊、过氧 化苯甲酰二丁酯糊;促进剂应为环烷酸钴苯乙烯液、二甲基苯胺苯乙烯液。
第7.2.9条 呋喃树脂的固化剂应为酸性固化剂。糠醇糠醛树脂的固化剂已混入粉料内。糠酮糠醛树脂使用苯磺酸型固化剂。
第7.2.1条 酚醛树脂常用固化剂宜采用苯磺酰氯和硫酸乙酯等。硫酸乙酯中硫酸与无水乙醇的质量比宜为1∶2~1∶3,当硫酸乙酯与苯 磺酰氯复合使用时,其质量比为1∶1。使用硫酸乙酯应预先配制,先把无水乙醇放入容器中,在不断搅拌下缓慢加入比例量 的浓硫酸,控制反应温度不超过50℃。严禁将无水乙醇加入浓硫酸中。配制好的硫酸乙酯在室温下贮存于耐腐蚀的密闭容器 中备用。
第7.2.11条 环氧树脂稀释剂宜采用丙酮、乙醇、二甲苯、甲苯;不饱和聚酯树脂的稀释剂应为苯乙烯酚醛树脂的稀释剂应为无水乙醇。
第7.2.12条 树脂玻璃钢使用的增强材料,应采用非石蜡乳液型的无捻粗纱玻璃纤维方格平纹布;其厚度宜为0.2~0.4mm;经纬密度应为 每cm24×4~8×8纱根数或厚度为0.2~0.4mm的玻璃纤维毡。无纺涤纶布的经纬密度,应为每cm28×8纱根数。
第7.2.13条 粉料的耐酸率不应小于95%,当使用酸性固化剂时不应小于98%。其体积安定性应合格,含水率不应大于0.5%。细度要0.15mm 筛孔筛余量不应大于5%,0.09mm筛孔筛余量为10%~30%。
第7.2.14条 树脂砂浆用的细骨料耐酸率不应小于95%,当使用酸性固化剂时,不应小于98%。其含水率不应大于0.5%,粒径不应大于2mm。
第7.2.15条 树脂类材料制成品的质量,应符合表7.2.15的规定。
树脂类材料制成品的质量 表 7.2.15
项目 | 环氧树脂 环氧酚醛树脂 环氧呋喃树脂 | 环氧煤焦 油树脂 | 不饱和聚酯树脂 | 呋喃树脂 | 酚醛树脂 | 双酚A型 | 邻苯型 | 抗拉强度 (MPa) | 胶泥 | ≥11 | ≥5 | ≥11 | ≥11 | ≥6 | ≥6 | 砂浆 | ≥11 | ≥4 | ≥9 | ≥8 | ≥6 | | 玻璃钢 | ≥100 | ≥60 | ≥100 | ≥90 | ≥80 | ≥60 | 粘结强度 (MPa) | 与小形砖 | ≥3~4 | ≥5.0 | ≥2.5 | ≥1.5 | ≥1.5 | ≥1 | 与标形砖 | ≥1.7 | ≥1.7 | ≥1.7 | | ≥1.0 | ≥1.0 |
第三节 树脂类材料的配制
第7.3.1条 树脂类材料的施工配合比,可按本规范附录一附表1.5~1.8选用。
第7.3.2条 配料用的容器及工具,应保持清洁、干燥、无油污、无固化残渣等。
第7.3.3条 环氧树脂、环氧酚醛、环氧呋喃和环氧煤焦油玻璃钢胶料、胶泥和砂浆的配制,应符合下列规定:
一、将预热至40℃左右的环氧树脂及稀释剂或环氧树脂及稀释剂与酚醛树脂、呋喃树脂或煤焦油按比例加入容器中,搅拌均匀并冷却至 室温,配制成环氧或环氧酚醛、环氧呋喃、环氧煤焦油等各种树脂备用。使用时取定量的各种树脂,按比例加入固化剂搅拌均匀, 配制成各种玻璃钢胶料;若再加入粉料搅匀制成胶泥,加入 粉料和细骨料搅匀制成砂浆。
二、当配制彩色玻璃钢胶料、胶泥或砂浆时,应先将矿物颜料用稀释剂调匀,然后再与各种树脂液混合均匀。
三、配制好的环氧材料应在40min内用完;环氧酚醛材料应在30min内用完;环氧呋喃和环氧煤焦油材料应在60min内用完。
第7.3.4条 不饱和聚酯树脂玻璃钢胶料、胶泥和砂浆的配制,应符合下列规定:
一、按施工配合比先将不饱和聚酯树脂与引发剂混匀,再加入促进剂混匀,配制成玻璃钢胶料,然后加入粉料或粉料与砂搅拌均匀,配 制成胶泥或砂浆。
二、当配制彩色树脂胶泥或砂浆时,应先将矿物颜料用稀释剂调匀,然后再与树脂混合均匀。
三、配制好的材料,应在45min内用完。
第7.3.5条 酚醛树脂玻璃钢胶料、胶泥的配制,应符合下列规定:
一、在容器中称取定量酚醛树脂,加入稀释剂搅匀,再加入固化剂搅匀,配制成玻璃钢胶斜;当再加入粉料搅匀,配制成胶泥。配制胶 泥时不宜加入稀释剂。
二、配制好的材料应在45min内用完。
第7.3.6条 呋喃树脂玻璃钢胶料、胶泥和砂浆的配制,应符合下列规定:
一、在容器中将糠醇糠醛树脂按比例与糠醇糠醛玻璃钢粉糠醇糠醛胶泥粉或糠醇糠醛胶泥粉与砂搅拌均匀制成玻璃钢胶料、胶泥或砂浆。
二、在容器中将糠酮糠醛树脂与苯磺酸型固化剂混匀,加入粉料搅匀制成胶泥,加入粉料和砂搅匀制成砂浆。
三、配制好的各种呋喃材料,应在45min内用完。
第7.3.7条 当树脂胶料、胶泥和砂浆有凝固、结块等现象时,不得继续使用。
|
建筑防腐蚀工程施工及验收规范GB50212-81 |
第四节 树脂玻璃钢的施工
第7.4.1条 玻璃钢的施工宜采用手糊法,手糊法分间断法和连续法。酚醛玻璃钢的施工,必须采用间断法。
第7.4.2条 间断法的施工,应符合下列规定:
一、在基层的表面,应均匀地涂刷打底料,不得有漏涂、流挂等缺陷。酚醛玻璃钢和呋喃玻璃钢在施工时,基层应涂两遍环氧类树脂作 打底料,自然固化不宜少于24h。
二、基层的凹陷处,应用腻子修平。自然固化不宜少于24h,酚醛玻璃钢应用环氧腻子刮平,修平表面后,进行衬布施工。
三、先在基层上均匀涂刷一层衬布胶料,随即衬上一层玻璃布,玻璃布必须贴实,使胶料浸入布的纤维内,并赶净气泡。胶料应饱满, 应固化24h,修整表面后,再按上述衬布程序铺衬以下各层玻璃布。如此反复,铺衬至设计要求的层数或厚度。
每间断一次,均应检查衬布层的质量,当有毛刺、脱层和气泡等缺陷时,应进行修补。
衬布时,同层布的搭接宽度不应小于50mm。上下两层布的接缝应错开,错开距离不得小于50mm。阴阳角处应增加一至二层玻璃布。
四、应均勾涂刷面层胶料。当涂刷两层以上时,待第一层硬化后,再涂刷下一层。
第7.4.3条 当采用连续法施工时,其打底、刮腻子和涂面层胶料施工,均应与间断法相同。衬布应连续铺衬到设计要求的层数或厚度, 并应自然养护24h,然后进行面层胶料的施工。
第7.4.4条 当采用玻璃钢作隔离层时,打底、刮腻子、衬布的施工应符合本规范第7.4.2条和第7.4.3条的规定。在铺完最后一层布后, 应涂刷一层面层胶料,同时应均匀稀撒一层粒径为0.7~1.2mm的石英砂。
第五节 树脂胶泥、树脂砂浆铺砌块材和树脂胶泥勾缝与灌缝施工
第7.5.1条 在水泥砂浆、混凝土或金属基层上用树脂胶泥、砂浆铺砌块材时,基层的表面,应均匀涂刷打底料。固化后再进行块材的铺 砌。当采用酸性固化剂配制胶泥时,应涂刷两遍环氧树脂类打底料。
当基层上有玻璃钢隔离层时,可涂刷一遍与衬砌用树脂相同品种的打底料,然后进行块材的铺砌。
第7.5.2条 块材结合层厚度、灰缝宽度和勾缝成灌缝的尺寸,均应符合表7.5.2的规定。
结合层厚度、灰缝宽度和勾缝或灌缝的尺寸 表 7.5.2 块材种类 | 铺砌(mm) | 勾缝或灌缝(mm) | 结合层厚度 | 灰缝宽度 | 缝宽 | 缝深 | 标形耐酸砖、缸砖 | 4~6 | 2~4 | 6~8 | 15~20 | 平板形耐酸砖、耐酸陶板 | 4~6 | 2~3 | 6~8 | 10~12 | 铸石板 | 4~6 | 3~5 | 6~8 | 10~12 | 花岗石及其它条石块材 | 4~12 | 4~12 | 8~15 | 20~30 |
7.5.3条 块材的铺砌,除应符合本规范第3.2.2条的要求外,尚应符合下列规定:
一、块材的铺砌应采用揉挤法,铺砌花岗石及其它条石块材应采用座浆法。
二、结合层和灰缝的胶泥或砂浆应饱满密实,并应采取防止块材滑移的措施。
三、立面块材的连续铺砌高度,应与胶泥硬化时间相适应,并应采取防止砌体受压变形的措施。
四、当铺砌块材时,应在胶泥或砂浆初凝前,将缝填满压实,灰缝的表面应平整光滑。
第7.5.4条 块材的勾缝与灌缝,应符合下列规定:
一、树脂胶泥的勾缝与灌缝,必须待铺砌块材用的胶泥或砂浆养护后方可进行。
二、勾缝或灌缝时,必须将灰缝清理干净,不得沾有污垢。
三、勾缝必须填满压实,不得有气泡,灰缝的表面应平整光滑。
四、灌缝时,缝内必须密实,表面应平整光滑。
第六节 树脂稀胶泥、树脂砂浆整体面层的施工
第7.6.1条 当进行树脂稀胶泥整体地坪施工时,应符合下列规定:
一、在基层上应均匀涂刷打底料。
二、在打底料硬化后,将稀胶泥摊铺在基层表面,用锯齿形刮板按设计要求厚度将稀胶泥刮平。
第7.6.2条 当进行树脂砂浆整体地坪和防腐面层的施工时,应符合下列规定:
一、在基层上应均匀涂刷打底料,表干后再涂刷一遍打底料,同时均匀稀撒一层粒径为0.7~1.2mm的砂,硬化后进行树脂砂浆的施工。
二、将砂浆摊铺在基层的表面,摊铺时可用塑料条或钢条控制摊铺的厚度。铺好的树脂砂浆,应立即压实抹光。树脂砂浆整体防腐蚀的 面层不宜留施工缝,必须留施工缝时,应留斜槎。当连续施工时,应将留槎处清理干净,边涂刷打底料,边进行摊铺的施工。
三、对要求作面层胶料的工程,应均匀涂刷面层胶料或刮涂一层稀胶泥。当进行两层胶料的施工时,第一层胶料硬化后,再进行第二层 胶料的施工。
第七节 树脂类防腐蚀工程的养护和质量检查
第7.7.1条 常温下,树脂类防腐蚀工程的养护期,应符合表7.7.1的规定。
树脂类防腐蚀工程的养护天数 表 7.7.1
树脂类别 | 养护期天数 | 地面 | 贮槽 | 环氧树脂 | ≥7 | ≥15 | 酚醛树脂 | ≥10 | ≥20 | 环氧酚醛树脂 | ≥10 | ≥20 | 环氧呋喃树脂 | ≥10 | ≥20 | 环氧煤焦油树脂 | ≥15 | ≥30 | 不饱和聚酯树脂 | ≥7 | ≥15 | 呋喃树脂 | ≥7 | ≥15 |
第7.7.2条 玻璃钢、稀胶泥和砂浆的面层,均应平整光滑、色泽均匀,与基层结合牢固,无脱层、起壳和固化不完全等缺陷;块材结合 层及灰缝的质量,应符合本规范第3.2.3条的规定。
第7.7.3条 对于金属的基层,应使用磁性测厚仪测定树脂类防腐蚀面层的厚度。使用电火花探测器检查针孔,电火花长度宜为15~20mm, 电压宜为3~3.5kv。对不合格处必须进行修补。对于水泥砂浆和混凝土基层,在其上进行树脂类防腐蚀面层的施工时,应同 时做出试板,测定厚度。
第7.7.4条 玻璃钢、树脂稀胶泥、树脂砂浆面层防腐蚀工程的平整度,应采用2m直尺检查,允许空隙不应大于5mm。
第7.7.5条 地坪的坡度和块材面层的平整肥,应符合本规范第3.2·
第八章 氯丁胶乳水泥砂浆防腐蚀工程
第一节 一般规定
第8.1.1条 氯丁胶乳水泥砂浆防腐蚀工程包括下列内容:
一、在混凝土、砖石结构或钢结构表面上铺抹的整体面层。
二、铺砌的耐酸砖和耐酸陶板的块材面层。
第8.1.2条 当进行氯丁胶乳水泥砂浆施工时,基层的表面应干净、无尘、无油。多孔性材料的表面应预先用水浸湿;钢基层表面应清除 浮锈。
第8.1.3条 施工的环境温度,宜为10~30℃,不应低于5℃。
第8.1.4条 胶乳、复合助剂及水泥等应分别堆放,不得雨淋日晒和杂物污染;冬季应采取防冻措施。
|
建筑防腐蚀工程施工及验收规范GB50212-81 |
第二节 原材料和制成品的质量要求
第8.2.1条 配制水泥砂浆应采用硅酸盐水泥或普通硅酸盐水泥,其标号不得低于425号,其质量应符合现行国家标准《硅酸盐水泥、普通 硅酸盐水泥》的规定。
第8.2.2条 细骨料宜采用石英砂,砂的颜色不得深于标准色,其颗粒的级配和质量应符合表8.2.2-1和表8.2.2-2的规定。
细骨料的颗粒级配 表 8.2.2-1 筛孔(mm) | 5.0 | 2.5 | 1.25 | 0.63 | 0.315 | 0.16 | 筛余量(%) | 0 | 0~25 | 10~50 | 41~70 | 70~92 | 90~100 |
细骨料的质量 表 8.2.2-2
项 目 | 含泥量(%) | 云母含量(%) | 硫化物含量(%) | 指 标 | ≤3 | ≤1 | ≤1 |
第8.2.3条 阳离子氯丁胶乳的质量,应符合表8.2.3的规定。
阳离子氯丁胶乳的质量 表 8.2.3
项目 | 指标 | 优级品 | 一级品 | 合格品 | 总固物含量(%) | ≥50 | ≥48 | ≥47 | 粘度(MPa·S) | 10~35 | 10~45 | 10~55 | 表面张力(10-3N燉m) | 20~40 | 20~50 | 20~50 | 密度(g燉cm3) | ≥1.100 | ≥1.085 | ≥1.080 |
第8.2.4条 复合助剂应由消泡剂、稳定剂、pH节剂等配制而成,配合比可按本规范附录一选用。消泡剂宜采用有机硅类消泡剂。稳定剂 宜采用月桂醇与环氧乙烷缩合物(平平加0-20)烷基酚与环氧乙烷缩合物(OP-10)及十六烷基三甲基氯化铵等乳化剂。pH 调节剂可采用氨水、氢氧化钠或氧化镁。复合助剂的质量,应符合下列规定:
一、与胶乳混合后,拌制的水泥砂浆应有良好的和易性,砂浆中不应有大量气泡。
二、应能使胶乳由酸性变为碱性,不应在拌和水泥时出现胶乳破乳现象。
第8.2.5条 拌和好的水泥砂浆,初凝时间不得少于45min,终凝时间不得超过12h。
第8.2.6条 氧丁胶乳水泥砂浆制成品经28D养护后的质量,应符合表8.2.6的规定。
氯丁胶乳水泥砂浆制成品的质量 表 8.2.6
项目 | 指标 | 项目 | 指标 | 抗压强度(MPa) | ≥20 | 与水泥砂浆粘结强度(MPa) | ≥1.2 | 抗折强度(MPa) | ≥7.5 | 与钢铁粘结强度(MPa) | ≥2.0 |
第三节 砂浆的配制
第8.3.1条氯丁胶乳水泥砂浆的施工配合比,可按本规范附录一附表1.9选用。
第8.3.2条 氯丁胶乳水泥砂浆宜采用手工拌和,拌制时,不宜剧烈搅动。拌匀后不宜反复搅拌及中途加水。配制好的砂浆应在1h内用完。
第8.3.3条 砂浆的配制,应按比例称取氯丁胶乳与复合助剂,加入适量自来水,充分搅拌均匀备用。自来水的加入量,应根据细骨料的 含水量经现场试验确定。将水泥和细骨料干拌均匀,倒入胶乳和复合助剂混合物后,再拌制均匀。
第四节 施工及养护
第8.4.1条 当做整体面层时,厚度不应小于10mm。当一次施工面积较大时,应留施工缝或分片错开施工每块的面积不宜超过10~15m2, 应视现场环境而定。补缝或分片错开施工的间隔时间不应少于24h。
第8.4.2条 在混凝土或砖石结构的立面和钢结构的表面上做整体面层时,应分两次进行,每次的间隔时间不应少于24h。当进行最后一次 抹面时,应一次抹平,不得反复抹压。
第8.4.3条 当铺砌块材时,宜采用揉挤法施工。并应控制缝宽和结合层的厚度,其要求应符合表8.4.3的规定。
结合层厚度和灰缝宽度 表 8.4.3 块材 | 结合层厚度(mm) | 灰缝宽度(mm) | 耐酸砖、耐酸陶板 | 6~8 | 4~6 |
第8.4.4条 氯丁胶乳水泥砂浆施工后,必须先湿养护3~7d后,再干养护,湿养护时表面不得有积水。养护28d后方可使用。
第九章 涂料类防腐蚀工程
第一节 一般规定
第9.1.1条 本章所列防腐蚀涂料包括:过氯乙烯漆、沥青漆、漆酚树脂漆、酚醛树脂漆、环氧树脂漆、聚氨基甲酸酯漆、氯化橡胶漆和 氯磺化聚乙烯漆。
第9.1.2条 防腐蚀涂料的质量,应符合本规范附录二的规定。
第9.1.3条 腻子、底漆、磁漆、清漆的配套使用,应符合设计要求。不同厂家、不同品种的防腐蚀涂料,当需掺合使用时,应经试验确 定;未经试验的不得掺合使用。
第9.1.4条防腐蚀涂料工程的施工,环境温度宜为15~30℃,相对湿度不宜大于80%;施工时应通风良好,在前一遍漆未干前不得涂刷第 二遍漆。全部涂层完成后,应自然干燥7昼夜以后方可交付使用。不得在雨、雾、雪天进行室外施工不宜在强烈日光照射下施工。
第9.1.5条 防腐蚀涂料和稀释剂在贮存、施工及干燥过程中,不得与酸、碱及水接触。严禁明火,并应防尘、防曝晒。
第9.1.6条 配漆所用的填料应干燥,其耐酸率不应小于95%,含水率不应大于0.5%,细度要求0.075mm筛孔筛余不应大于15%。
第9.1.7条 进行防腐蚀涂料施工时,应先进行试涂。
第9.1.8条 使用防腐蚀涂料时,应先搅拌均匀;当有碎漆皮及其它杂物时,必须过筛除净后,方可使用。开桶使用后的剩余涂料,必须 密封保存。
第9.1.9条 基层的表面应清除干净,如有凹陷不平等缺陷,应使用腻子涂刮平整。当在水泥砂浆、混凝土及木质基层上涂刮腻子时,应 先用稀释的清漆打底,然后再刮腻子。腻子实干后,应打磨平整,擦拭干净,然后再进行底漆的施工。金属基层的表面处 理,应符合本规范第2.2.2条中一级的规定;水泥砂浆、混凝土及木质基层的表面要求,应符合本规范第二章的有关规定。
|
建筑防腐蚀工程施工及验收规范GB50212-81 |
第9.1.10条 金属的表面涂刷防腐蚀涂料时,应使用温度计测定金属的表面温度用温湿度计测定环境的温度和相对湿度,然后按图9.1.10 查出露点温度金属的表面温度必须高于露点温度3℃时方可进行施工。也可按下式进行验证:
ф=eP(1A-1B)×100%(9.1.10)
式中ф——环境相对湿度;
P——当地大气压力;
A——露点温度(K);
B——环境温度(K);
e=2.718。  图9.1.10露点温度
图中斜线表示环境相对湿度。
A=B时,则RH=100%就结露。A取决于B和RH(相对湿度)的条件,当金属表面温度低于A则结露,高就不结露。
第9.1.11条 防腐蚀涂料的施工,宜采用刷涂或喷涂。刷涂时,层间应纵横交错,除乙烯磷化底漆和过氯乙烯漆除外,每层应往复进行。 当采用空气喷涂时,喷嘴与被喷面的距离,平面宜为200~300mm;圆弧面宜为400mm,喷涂角度以与工作面垂直为原则,在 两端以45°为限,在角隅部分应将喷枪移近喷涂点进行断续喷涂。压缩空气的压力,宜为0.3~0.6MPa。大面积施工时,可 采用高压无气喷涂。刷涂、喷涂都应均匀,不得漏涂。施工的工具应保持干燥清洁。
第二节 涂料的配制及施
第9.2.1条 乙烯磷化底漆的配制与施工,应符合下列规定:
一、乙烯磷化底漆(以下简称磷化底漆)可用于钢材表面的磷化处理,但不得代替防腐蚀涂料中的底漆使用;磷化底漆应符合国家现行 标准《X06-1乙烯磷化底漆》(分装)的规定。
二、磷化底漆的质量配合比,应为底漆与磷化液之比为4∶1。配制时,应先将搅匀的底漆放入非金属容器中边搅拌边慢慢加入磷化液, 混合均匀放置30min后方可使用,并应在12h内用完。
三、磷化底漆应涂覆一层,厚度宜为8~12μm,耗漆量宜为80g燉m2,宜采用喷涂法施工,当采用刷涂时,不宜往复进行。
四、磷化底漆施工粘度宜为15s。调整粘度所用的稀释剂为乙醇和丁醇的混合液,其质量配比为工业乙醇与丁醇之比为3∶1。
五、涂覆磷化底漆2h后,应立即涂覆配套防腐蚀涂料的底漆,涂覆时间不得超过24h。
第9.2.2条 过氯乙烯漆的配制与施工,应符合下列规定:
一、在水泥砂浆、混凝土及木质的基层上,应先用过氯乙烯防腐清漆打底,再涂覆过氯乙烯底漆。在金属的基层上,当采用喷砂处理 时,喷砂后应先涂覆乙烯磷化底漆,再用过氯乙烯底漆打底;当采用人工除锈时,除锈后应用铁红醇酸底漆或铁红环氧酯底漆打 底;底漆实干后,方可进行各涂层的施工。
二、过氯乙烯漆必须配套使用,按底漆、磁漆、清漆(面漆)的顺序施工,并应在底漆与磁漆及磁漆与清漆之间涂覆过渡漆,过渡漆的 质量配比为底漆比磁漆或磁漆比清漆为1∶1。
三、除底漆外,过氯乙烯漆的施工,应连续进行。如前一层漆膜已实干,在涂覆下层漆时,宜先用X-3过氯乙烯漆的稀释剂喷润一遍。 X-3过氯乙烯漆的稀释剂,应符合国家现行标准《X-3过氯乙烯漆稀释剂》的规定。
四、过氧乙烯漆的施工,宜采用喷涂;当采用刷涂时,不宜往复进行。
五、过氯乙烯漆的施工粘度:喷涂时应为14~25s;刷涂时,底漆应为30~40s,磁漆、清漆、过渡漆应为20~40s;调整粘度的稀释 剂应采用X-3过氯乙烯漆稀释剂,严禁使用醇类稀释剂或汽油。
六、当施工的环境湿度大于70%时,宜减少稀释剂用量,在稀释剂内可加入30%的F-2过氯乙烯漆防潮剂或醋酸丁酯。F-2过氯乙烯漆防 潮剂和醋酸丁酯,应符合国家现行标准《F-2过氯乙烯漆防潮剂》和《醋酸丁酯》的规定。
第9.2.3条 沥青漆的配制与施工,应符合下列规定:
一、在水泥砂浆、混凝土及木质的基层上,应先用稀释的沥青清漆打底;在金属的基层上,宜用铁红醇酸底漆或红丹酚醛防锈漆打底。 底漆实干后,方可涂刷沥青耐酸漆或沥青漆。沥青耐酸漆也可不用底漆,直接涂刷在金属的基层上。
二、当进行刷涂施工时,每层漆应在前层漆实干后涂刷,施工的间隔宜为24h。
三、刷涂时的施工粘度,应为25~50s。当粘度过大时,可用200号溶剂油稀释。当施工的环境温度较低、干燥较慢时,可加入不超过涂 料量5%的催干剂。
第9.2.4条 漆酚树脂漆的配制与施工,应符合下列规定:一、在水泥砂浆、混凝土及木质的基层上,应先用稀释的漆酚树脂清漆打底, 再刮腻子、涂刷底漆。当需衬布时,可在底漆上贴衬浸透漆酚树脂漆的纱布,衬布应贴紧压实,不得有气泡;在金属的基层 上,应用漆酚树脂底漆或漆酚环氧防腐漆直接打底。底漆实干后,方可进行过渡漆、面漆的施工。每层漆应在前一层漆实干 后涂刷,施工的间隔宜为24h。
二、漆酚树脂漆的施工环境温度宜为15~30℃,相对湿度宜为75%~85%,当现场湿度低于75%时,应采用加湿措施。当涂料干燥速度减慢 时,可在涂料中添加涂料量0.5%的醋酸铵或0.5%的二氧化锰。当施工环境温度低于15℃时,保养期应为15~30d。
三、漆酚树脂漆的施工粘度,应为30~50s。当粘度过大时,可用二甲苯或200号溶剂油进行稀释。漆酚环氧防腐漆的施工粘度应为40~ 80s,当粘度过大时,可用质量比,丁醇与二甲苯之比为1∶1的混合液或二甲苯进行稀释。
四、当设计对漆酚树脂漆和漆酚环氧防腐漆涂刷层数与厚度未作要求时,宜涂刷四层,面漆不少于两层,每层厚度宜为30μm。漆酚树脂 漆的施工配合比,可按本规范附录一附表1.10选用。
第8.2.5条 酚醛漆的配制与施工,应符合下列规定:
一、在水泥砂浆、混凝土及木质的基层上,宜先用质量比为清漆与稀释剂之比为3∶1的酚醛清漆打底,再涂刷红丹酚醛防锈漆或铁红酚 醛底漆;在金属的基层上,应用红丹酚醛防锈漆或铁红酚醛底漆直接打底。底漆实干后,方可涂刷酚醛耐酸漆。每层漆应在前一层 漆实干后涂刷,施工的间隔宜为24h。酚醛耐酸漆也可不用底漆,直接涂刷在金属和木质的基层上。
二、刷涂时的施工粘度,应为30~50s。当粘度过大时,可用200号溶剂油或松节油进行稀释。
第9.2.6条 环氧树脂漆的配制与施工,应符合下列规定:
一、环氧树脂漆包括环氧酯底漆、胺固化环氧树脂漆和胺固化环氧沥青漆。环氧酯底漆为单组份。胺固化环氧树脂漆、胺固化环氧沥青 漆均为双组份。配合比应按产品说明书,使用时将两组份按配比准确你量,混合搅匀,并放置1h后,方可使用,并宜有6h内用完。
二、在水泥砂浆、混凝土及木质的基层上,宜先用质量比为清漆与稀释剂之比为5∶1~7∶1的稀释清漆打底,然后再涂刷环氧酯底漆或 环氧沥青底漆;在金属的基层上应用环氧酯底漆或环氧沥青底漆直接打底。底漆实干后,方可进行其它各层漆的施工,每层漆应在 前一层漆实干后涂刚,施工的间隔宜为6~8h。
三、施工粘度刷涂时应为30~40s;喷涂时应为18~25s。当粘度过大时,可用稀释剂稀释,环氧酯底漆、胺固化环氧树脂漆使用的稀 释剂其质量比为二甲苯与丁醇之比为7∶3;胺固化环氧沥青漆使用的稀释剂为甲苯与丁醇与环己酮与氯化苯之比为7∶1∶1∶1。 |
建筑防腐蚀工程施工及验收规范GB50212-81 |
第9.2.7条 聚氨基甲酸酯漆的配制与施工,应符合下列规定:
一、聚氨基甲酸酯漆(以下简称聚氨酯漆)宜采用S07-1聚氨酯腻子、S06-2聚氨酯底漆、S04-4聚氨酯磁漆和S01-2聚氨酯清漆配套 使用。腻子、底漆、磁漆、清漆均按规定的配套组份配制而成。其配套组份应符合表9.2.7的规定。
腻子、底漆、磁漆、清漆的配套组份 表 9.2.7 
| S07-1 聚氨酯腻子 | S06-2 聚氨酯底漆 | S04-4 聚氨酯磁漆 | S01-2 聚氨酯清漆 | 组份一 | 314蓖麻油 预聚物 | 预聚物 | 314蓖麻油 预聚物 | 组份二 | E-42环氧液 | E-42环氧液 | E-42环氧液 | E-42环氧液 | 组份三 | 二甲基乙醇胺 | 组份四 | 腻子填料 | | | |
二、按产品说明书的施工配合比计算出各组份用量,称取组份
二、组份一置于清洁干燥容器中,搅匀后加入稀释剂二甲苯,二甲苯的加入量:清漆为10%~25%,底漆、过渡漆、磁漆均为10%,然后加 入组份三,充分搅匀,气泡溢出后方可使用;当调制腻子时,应先配成清漆,再加入组份四。
三、用底漆和磁漆配制过渡漆时,当涂刷一层时,配比为1∶1;当涂两层时,第一层配比为3∶1,第二层配比为1∶1。配制好的漆宜8h 内用完。
四、在水泥砂浆、混凝土及木质的基层上,应先用稀释的聚氨酯清漆打底,再涂刷聚氨酯底漆;在金属基层上,直接用聚氨酯底漆打底, 底漆实干后,方可进行其它各层漆的施工,每层漆应在前一层漆实干后涂刷,间隔时间宜为8~20h。
五、施工粘度刷涂时应为30~50s,喷涂时应为20~35s。当粘度过大时,宜采用专用稀释剂进行稀释。当采用二甲苯作稀释剂时,必 须控制含水率。
注:二甲苯含水率检验方法,取二甲苯10ml,置于带磨口塞的试管中,将试管放在冰浴中静置3min后,观察透明度,不混浊为合格。
第9.2.8条 氯化橡胶漆的配制与施工,应符合下列规定:
一、氯化橡胶漆为单罐包装,分为一般型漆与厚浆型漆。
二、氯化橡胶漆施工前,应先用氯化橡胶云铁防锈漆或环氧富锌底漆打底。底漆实干后,方可进行各层漆的施工。每层漆必须在前一层 漆实干后涂刷,施工的间隔时间,应符合表9.2.8的规定。
施工的间隔时间 表 9.2.8 气温(℃) | -20~0 | 0~15 | 15~30 | 30以上 | 间隔时间(h) | ≥24 | ≥12 | ≥8 | ≥6 |
三、氯化橡胶漆的施工,可采用刷涂、喷涂、滚涂,使用前必须搅匀,不得有沉淀。氯化橡胶漆的施工环境温度应为-20~50℃。
四、氧化橡胶漆不宜加稀释剂,当气温过低或粘度过大时,应采用氧化橡胶漆专用稀释剂进行稀释,其用量不得超过漆量的5%,也可用 少量的200号溶剂油或二甲苯稀释。
五、氯化橡胶漆的贮存期,不宜超过一年。
第9.2.9条 氯磺化聚乙烯漆的配制与施工,应符合下列规定:
一、氯磺化聚乙烯漆为双组份,使用时必须按规定的配比配制,配合比按产品说明书,配漆前A、B组份必须充分搅匀,配制好的漆必须 在12h内用完。
二、氯磺化聚乙烯漆的施工,可采用刷涂、喷涂、浸涂每层漆施工间隔时间为30~40min。全部施工完毕后,常温下熟化5~7d方可使用。
三、涂刷有油性漆的表面,不宜再涂刷氯磺化聚乙烯漆。
四、当漆液粘度过大时,必须采用X-1型溶剂或二甲苯稀释。
五、氯磺化聚乙烯漆的贮存期,不宜超过一年。
第三节 质量检查
第9.3.1条 外观的检查:涂层薄膜应光滑平整,颜色一致,无气泡、流挂及剥落等缺陷,用5~10倍放大镜检查,无针孔者为合格。
第9.3.2条 涂层厚度的检查:涂层厚度应均匀,对于金属的基层应用磁性测厚仪测定,对于水泥砂浆、混凝土的基层和木质的基层,在 其上进行涂料施工时,应同时做出样板,测定厚度。
第十章 耐酸陶管工程
第一节 一般规定
第10.1.1条 本章所列陶管工程的接口材料,应包括沥青胶泥、硫磺砂浆、环氧树脂胶泥和水玻璃胶泥。
第10.1.2条 在陶管工程施工前,对敷设陶管的地基或基础,应办理工序交接手续。当管道敷设在受震、受压、穿墙、穿渠和过路等部位 时,其保护措施应符合设计规定。
第10.1.3条 耐酸陶管及配件应符合现行国家标准《化工陶管及配件》的规定,敷设前应逐根进行外观的质量检查。
第10.1.4条 陶管敷设时,可采用预制拼装管段。预制拼装管段的节数宜为2~4节。拼装的各节管应保持同心垂直。
第10.1.5条 陶管的就位,应符合下列规定:
一、承插式陶管,应按流水方向使承口向上游,插口向下游。下管时应防止受震或撞击。当采用预制拼装管段时,严禁损坏接口。
二、陶管放入管沟经检查无破损后,方可由下游往上游进行对口找正。对口的间隙,应为3~6mm(图10.2.4)。承插口之间的环缝宽度 应均匀。陶管的就位,应严格控制轴线、坡度及标高的准确性。
三、陶管就位后,应防止移动。接口时,接口部位必须清扫干净。
第二节 沥青胶泥接口
第10.2.1条 接口用的沥青胶泥施工配合比和配制要求,应符合本规范第四章第三节的规定。管径大于250mm的陶管,宜在沥青胶泥中掺 入30%的细砂,其最大粒径不大于2.5mm。
第10.2.2条 陶管的接口部位应涂刷沥青冷底子油,涂刷冷底子油后的表面应保持清洁,干燥后方可进行下一道工序的施工。
第10.2.3条 沥青浸渍的石棉绳,应符合下列规定:
一、石棉绳按接口周长加100mm下料。
二、沥青溶液的质量配比为30号建筑石油沥青比汽油为40∶60。
三、石棉绳应浸透,浸透时间宜为2~4h。
四、浸透后的石棉绳,应挤掉表面多余的沥青,晾干后方可使用。
第10.2.4条 承插式接口的施工,应符合下列规定:
|
筑防腐蚀工程施工及验收规范GB50212-81 |
一、承插口内应先填入10mm厚的沥青砂浆(图10.2.4)。  图10.2.4沥青泥胶接口示意图
二、沥青浸渍石棉绳的搭接头应放在环缝上部。打实应对称进行,其深度为环缝深的1燉2。
三、浇灌沥青胶泥时,承口外端部的挡板应卡严,上端应留浇灌口和排气口。沥青胶泥应在不低于190℃的温度下徐徐灌入,一次灌满。 当施工的环境温度低于5℃时,浇灌胶泥前,应将承插口预热至40~60℃。
四、沥青胶泥冷固拆除挡板后,接口的外端应及时抹上沥青砂浆。
第10.2.5条 套环式接口的沥青浸渍石棉绳的填塞,应同时从套环的两端对称进行,其它施工技术要求应与承插式接口的要求相同。
第三节 硫磺砂浆接口
第10.3.1条 接口用的硫磺砂浆施工配合比和熬制,应符合本规范第六章第三节的规定。
第10.3.2条 承插式接口的施工,应符合下列规定:
一、承插口的粘结面应干燥。
二、承插口的接口间隙,应用干燥填充物(如石棉绳)封严(图10.3.2)。 图10.3.2硫磺砂浆接口示意图
三、硫磺砂浆浇灌前承口外端宜用橡皮管封闭,在管道顶部一侧的部位留出浇灌口,上设一漏斗。浇灌时,严防杂质落入缝内,并应注意 排气。每个接口必须一次灌完。硫磺砂浆冷固后,应将橡皮管拆除。
四、当施工环境温度低于5℃时,在浇灌前,承插口应预热至40~60℃,浇灌完毕,应立即覆盖保温。
第四节 环氧树脂胶泥接口
第10.4.1条 接口用的环氧树脂胶泥施工配合比和配制,应符合本规范第七章第三节的规定。
第10.4.2条 在陶管的接口部位,应涂刷一层树脂打底料,固化后方可进行下一道工序的施工。
第10.4.3条 陶管接口用的石棉绳,必须用树脂打底料浸透后方可使用。
第10.4.4条 承插式接口的施工,应符合下列规定:
一、承插口内应先填入厚度为10~15mm的树脂砂浆,再填入浸透树脂打底料的石棉绳,其深度为环缝深的1燉2,石棉绳的接头应放在环 缝上部。
二、当浇灌树脂胶泥时,承口外端部的挡板应卡严,上端应留浇灌口和排气口,将树脂胶泥徐徐灌入。胶泥应填充饱满。当施工环境温 度低于10℃时,应采取加热保温措施。
三、树脂胶泥完全固化拆除挡板后,接口的外端应及时抹上树脂砂浆。
第10.4.5条 配制好的树脂胶泥、树脂砂浆及树脂打底料,应在40min内用完。当施工过程中有胶凝现象时,不得继续使用。
第五节 水玻璃胶泥接口
第10.5.1条 接口用的水玻璃胶泥施工配合比和配制,应符合本规范第五章第三节的规定。
第10.5.2条 在陶管的接口部位表面均匀涂刷一层水玻璃稀胶泥,其质量配比为水玻璃与粉料与氟硅酸钠之比为1∶1∶0.15。凝固后,方 可进行下一道工序的施工。
第10.5.3条 陶管接口用的石棉绳,必须用水玻璃稀胶泥浸透后方可使用。
第10.5.4条 承插式接口的施工,应符合下列规定:
一、承插接口应清理干净,再充填浸透水玻璃稀胶泥的石棉绳,其深度为环缝深的1燉2。
二、将配制好的水玻璃胶泥在初凝前填入缝内,填充必须密实。
第10.5.5条 水玻璃胶泥接口的施工完毕后,应按本规范
第5.4..5.6条 的规定进行养护及酸化处理。
第六节 检漏与回填
第10.6.1条 陶管敷设完毕后,应按设计要求作检漏试验。一般是在两窨井间管段内注满水,经24h后,不得有渗漏现象。
第10.6.2条 检漏试验合格后,即可回填土,当回填至管顶以上500mm时,应再对管道进行检漏试验。宜将两个窨井间注满水,经24b后, 观察窨井水位下降情况,除蒸发量外,无显著下降为合格。试验合格后,即可继续回填。
第10.6.3条 在管道两侧及顶部300mm以内的回填土中,不得含有砖石、冻土等硬块。回填应在陶管两侧同时对称进行,并用较轻的夯锤分 层夯实;当填土高度距管顶800mm以上时,方可用较重的夯锤夯实。
第十一章 安全技术要求
第11.0.1条 防腐蚀工程的安全技术和劳动保护,除应符合本规范的规定外,尚应符合国家现行有关标准的规定。
第11.0.2条 参加防腐蚀工程的施工操作和管理人员,施工前必须进行安全技术教育,制订安全操作规程。
第11.0.3条 易燃、易爆和有毒材料不得堆放在施工现场,应存放在专用库房内,并设有专人管理。施工现场和库房,必须设置消防器材
第11.0.4条 施工现场应有通风排气设备,现场的有害气体、粉尘不得超过最高允许浓度,其值应符合表11.0.4的规定
施工现场有害气体、粉尘的最高允许浓度 表 11.0.4 物质名称 | 最高允许浓度 (mg燉m3) | 物质名称 | 最高允许浓度 (mg燉m3) | 二甲苯 | 100 | 溶剂油 | 350 | 甲苯 | 100 | 硫化氢 | 10 | 苯乙烯 | 40 | 二氧化硫 | 15 | 苯(皮) | 40 | 甲醛 | 3 | 环己酮 | 50 | 含有10%以上游离二氧化 硅粉尘(石英、石英岩等) | 2 | 丙酮 | 400 | 含有10%以下游离二氧化 硅的水泥粉尘 | 6 | 酚(皮) | 5 | | |
注:①有“(皮)”标记者为除经呼吸道外,还易经皮肤吸收的有毒物质。
②本表所列各项有毒物质的检验方法,应按国家现行标准《车间空气监测检验方法》执行。
第11.0.5条 在易燃、易爆区域内动火时,必须采取防范措施,办理动火证后,方可动火。
第11.0.6条 进入油库、易燃、易爆区域和地沟阴井等密闭处时,严禁携带火种及其它易产生火花、静电的物品,不得穿带钉鞋和化纤工 作服。
第11.0.7条 临时用电线路、设备,必须经认真检查,符合安全使用要求后,方可使用。用电设备必须进行接地,在防爆区域内施工,其 照明灯具必须用防爆灯。
第11.0.8条 高处作业时,使用的脚手架、吊架、靠梯和安全带等,必须认真检查合格后,方可使用。
第11.0.9条 熬炼沥青、硫磺的锅灶,应设置在通风处,上方不得有架空电线,并必须采取防雨水、防火措施。
第11.0.10条 当用水稀释浓硫酸时,必须不断搅拌,应将硫酸慢慢倒入水中,不得将水倒入硫酸内。
第11.0.11条 当进行防腐蚀施工时,操作人员必须穿戴防护用品,并应按规定佩戴防毒面具。 |
建筑防腐蚀工程施工及验收规范GB50212-81 |
第十二章 工程验收
第12.0.1条 建筑防腐蚀工程的验收,包括中间验收和交工验收,工程未经交工验收,不得投入生产使用。
第12.0.2条 建筑防腐蚀工程施工前,必须对基层检查验收,合格后办理工序交接手续。
第12.0.3条 防腐蚀工程的交工验收,应提交下列资料: 一、原材料的出厂合格证或复验报告。
二、耐腐蚀胶泥、砂浆、混凝土、玻璃钢胶料和涂料的配合比及其主要技术性能的试验报告。
三、设计变更单、材料代用单。
四、隐蔽工程记录。
五、陶管工程管线敷设坡度的实测记录和接口检漏试验报告。
六、修补和返工记录。
第12.0.4条 建筑防腐蚀工程的施工及验收记录可按表12.0.4-1填写。防腐胶泥、砂浆、混凝土和胶料试验报告可按表12.0.4-2填写。
建筑防腐蚀工程施工及验收记录表工程编号或名称: 表 12.4-1 防腐部位 | 基层的表面处理 | 隔离层 | 防腐面层 | 处理方法 | 检验结果 (等级) | 名称 | 层数或 厚度 | 检验结果 | 名称 | 层数或 厚度 | 检验结果 | | | | | | | | | | 年·月·日 | | | | 施工班(组) | | | |
技术负责人: 质检员:
防腐胶泥、砂浆、混凝土和胶料试验报告表12.0.4-2
工程编号或名称: 年 月 日 制品名称: | 使用部位及用途: | 原材料技术指标: | 施工配合比: | 养护条件: | 试验项目及结果 主管: 审核: 试验者:
|
附录一施工配合比
沥青胶泥的施工配合比和耐热性能附 表 1.1 沥青软化点 (℃) | 配合比(质量比) | 胶泥耐热性能(℃) | 用途 | 沥青 | 石英粉 | 6级石棉 | 软化点 | 耐热稳定性 | ≥75 ≥90 ≥110 | 100 | 30 | 5 5 5 | ≥75 ≥95 ≥110 | 40 50 60 | 隔离层用 | ≥75 ≥90 ≥110 | 100 | 80 | 5 5 5 | ≥95 ≥110 ≥115 | 40 50 60 | 灌缝用 | ≥75 ≥90 ≥110 | 100 | 100 | 5 10 5 | ≥95 ≥120 ≥120 | 40 60 70 40 | 铺砌平面块材用 | ≥65 ≥75 ≥90 ≥110 | 100 | 150 | 5 5 10 5 | ≥105 ≥110 ≥125 ≥135 | 40 50 60 70 | 铺砌立面块材用 | ≥65 ≥75 ≥90 ≥110 | 100 | 200 | 5 5 10 5 | ≥120 ≥145 ≥145 ≥145 | 40 50 60 70 | 灌缝法施工 时,铺砌平面结 合层用 |
|
建筑防腐蚀工程施工及验收规范GB50212-81 |
水玻璃类材料的施工配合比附 表 1.2 材 料 名 称 | 配 合 比 (质量比) | 水 玻 璃 | 氟 硅 酸 钠 | 粉 料 | 骨 料 | 铸石粉 | 铸石粉∶石 英粉=1∶1 | 细骨料 | 粗骨料 | 水玻璃胶泥 | 1 | 1.0 | 0.15~0.18 | 2.55~2.7 | | | | 2 | | 2.2~2.4 | | | 水玻璃砂浆 | 1 | 1.0 | 0.15~0.17 | 2.0~2.2 | | 2.5~2.7 | | 2 | | 2.0~2.2 | 2.5~2.6 | | 水玻璃混凝土 | 1 | 1.0 | 0.15~0.16 | 2.0~2.2 | | 2.3 | 3.2 | 2 | | 1.8~2.0 | 2.4~2.5 | 3.2~3.3 |
注:表中氟硅酸钠用量是按水玻璃中氧化钠含量的变动而调整的,氟硅酸钠纯度按100%计。
改性水玻璃混凝土的施工配合比附 表 1.3 配方编号 | 配合比(质量比) | 水玻璃 | 氟硅酸钠 | 铸石粉 | 石英砂 | 石英石 | 外加剂 | 1 | 100 | 15 | 180 | 250 | 320 | 糠醇单体3~5 | 2 | 100 | 15 | 180 | 260 | 330 | 多羟醚化三聚氰胺8 | 3 | 100 | 15 | 210 | 230 | 320 | 木质素磺酸钙2、 水溶性环氧树脂3 |
注:①水玻璃的密度(g燉cm3):配方3应为1.42,其它配方应为1.38~1.40。
②氟硅酸钠纯度以100%计。
③糠醇单体应为淡黄色或微棕色液体,有苦辣气味,密度1.13~1.14g燉cm3,纯度不应小于98%。
④多羟醚化三聚氰胺应为微黄色透明液体,固体含量约40%,游离醛不得大于2%,pH值应为7~8。
⑤水溶性环氧树脂应为黄色透明粘稠液体,固体含量不得小于55%,水溶性(1∶10)呈透明。
⑥木质素磺酸钙应为黄棕色粉末,密度为1.06g燉cm3,碱水素含量应大于55%,pH值应为4~6,水不溶物含量应小于12%,还原物含 量小于12%。
硫磺类材料的施工配合比附 表 1.4 材料名称 | 配合比(质量比) | 硫磺 | 填料 | 改性剂 | 石英粉或铸石粉 | 石墨粉 | 细骨料 | 聚硫橡胶 | 硫磺胶泥 | 1 | 58~60 | 38~40 | | | 2 | 2 | 70~72 | | 26~28 | | 2 | 硫磺砂浆 | 50 | 17 | | 30 | 3 |
注:①石墨粉应用于耐氢氟酸工程。
②硫磺砂浆亦可加入不大于1%的6级石棉。 材料名称 | 配合比(质量比) | 双酚A型、二甲苯型或邻苯型树脂 | 50%过氧化环己酮二丁酯糊、过氧化苯甲酰二丁酯糊和过氧化甲乙酮 | 环烷酸钴苯乙烯液、二甲基苯胺苯乙烯液 | 苯 乙 烯 | 矿物颜料 | 苯乙烯石蜡液100∶5) | 粉 料 | 细骨科 | 耐酸粉 | 重晶石粉 | 石英砂 | 重晶石砂 | 玻 璃 钢 胶 料 | 打底料 | 100 | 2~4 | 0.5~4 | 0~15 0~10 | | | 0~15 | | | | 腻子料 | | | 200~350 | (400~500) | | | 衬布胶料与面 层胶料 | | 0~2 | | 0~15 | | | | 封面料 | | 3~5 | | | | | 胶 泥 | 砌筑或勾缝料 | 100 | 2~4 | 0.5~4 | 0~10 | | | 200~300 | (250~350) | | | 砂 浆 | 打底料 | 100 | 2~4 | 0.5~4 | 0~15 | | | 0~15 | | | | 砂浆料 | 0~10 | 0~2 | | 150~200 | (350~400) | 300~400 | (600~750) | 封面料 | | 3~5 | | | | |
注:①表中()内的数据应用于耐氢氟酸工程。
②二甲苯型不饱和聚酯树脂的引发剂应采用过氧化苯甲酰二丁酯糊,促进剂就采用二甲基苯胺苯乙烯液;双酚A型或邻苯型不饱和聚 酯树脂当引发剂。采用过氧化环己酮二丁酯糊或过氧化甲乙酮时,促进剂应采用环烷酸钻苯乙烯液。当引发剂采用过氧化苯甲酰 二丁酯糊时,促进剂应采用二甲基苯胺苯乙烯液。过氧化甲乙酮的加入量应为1~2。
③减少胶泥内粉用量,可用作灌缝或稀胶泥整体面层。 |
建筑防腐蚀工程施工及验收规范GB50212-81 |
环氧类玻璃钢胶料、胶泥和砂浆的施工配合比附 表 1.6 材 料 名 称 | 配 合 比 (质量比) | 环氧 树脂 | 环氧 呋喃 树脂 | 环氧 酚醛 树脂 | 环氧煤 焦油树 脂 | 稀释剂 | 乙二胺 | 矿物 颜料 | 耐酸粉料 | 石英砂 | 玻
璃
钢
胶
料 | 打底料 | 100 | 100 | 100 | 100 | 40~60 10~15 40~60 10~15 | 6~8 4.2~5.6 4.2~5.6 3.5~4.0 | | 0~20 0~15 0~20 0~15 | | 腻子料 | 100 | 100 | 100 | 100 | 10~20 10~15 13~20 10~15 | 6~8 4.2~5.6 4.2~5.6 3.5~4.0 | | 150~200 150~200 150~200 200~250 | | 衬布胶 料与面 层胶料 | 100 | 100 | 100 | 100 | 10~20 10~15 13~20 10~15 | 6~8 4.2~5.6 4.2~5.6 3.5~4.0 | 0~2 | 0~20 0~15 0~20 0~15 | | 胶
泥 | 砌筑或 勾缝料 | 100 | 100 | 100 | 100 | 10~20 10~15 13~20 10~15 | 6~8 4.2~5.6 4.2~5.6 3.4~4.0 | | 150~200 250~200 150~200 200~250 | | 砂
浆 | 打底料 | 100 | | | 100 | 40~60 10~15 | 6~8 3.5~4.0 | | 0~20 0~15 | | 砂浆料 | 100 | 100 | | 100 | 10~20 | 6~8 4.2~5.6 3.5~4.0 | 0~2 | 150~200 | 300~400 | 面层胶料 | 同衬布胶料配方 |
注:①环氧呋喃树脂的配方应为环氧树脂比呋喃树脂为70∶30;环氧酚醛树脂的配方应为环氧树脂比酚醛树脂为70∶30;环氧煤焦油树 脂配方为环氧树脂比煤焦油为50∶50。
②固化剂除乙二胺外,还可用其它各种胺类固化剂,应优先选用低毒固化剂,用量可按产品说明书或经试验确定。
③减少胶泥内粉料用量可配制灌缝用或稀胶泥整体面层用胶泥。
呋喃树脂玻璃钢胶料、胶泥和砂浆的施工配合比附 表 1·7 材 料 名 称 | 配 合 比 (质量比) | 糠醇糠 醛树脂 | 糠酮糠 醛树脂 | 糠醇糠醛 树脂玻璃 钢粉 | 糠醇糠 醛树脂 胶泥粉 | 苯磺酸 型固化 剂 | 稀释剂 | 耐酸粉料 | 石英砂 | 玻 璃 钢 胶 料 | 打底料 | 同环氧类玻璃钢打底料 | 腻子料 | 100 | | 40~50 | | | | 100~150 | | 衬布胶料与 面层胶料 | 100 | | 40~50 | | | | | | 胶
泥 | 灌缝用 | 100 | | | 250~300 | | | | | 砌筑或勾缝料 | 100 | | | 250~300 | | | | | | 100 | | | 15~18 | | 200~400 | | | | | | | | | | | | | | | 0~10 | | | 砂
浆 | 打底料 | 同环氧类砂浆底料 | 砂浆料 | 100 | | | 250 | | | | 250~300 | | 100 | | | 15~18 | | 200 | 400 |
注:糠醇糠醛树脂玻璃钢粉料和胶泥粉内已混有酸性固化剂。
酚醛玻璃纲胶料、胶泥的施工配合比附 表 1·8 材 料 名 称 | 配 合 比 (质量比) | 酚醛树脂 | 稀释剂 | 苯磺酰氯 | 耐酸粉料 | 玻 璃 钢 胶 料 胶 | 打底料 | 同环氧类玻璃钢打底料 | 腻子料 | 100 | 0~15 | 8~10 | 120~180 | 衬布胶料与面层胶料 | 0~15 | 胶 泥 | 砌筑或勾缝料 | 100 | 0~15 | 8~10 | 150~200 |
氯丁胶乳水泥砂浆的施工配合比附 表 1·9
材料名称 | 水泥 | 砂子 | 胶乳 | 稳定剂 | 消泡剂 | 水 | 配合比(质量比) | 100 | 150~200 | 38~50 | 0.6~0.8 | 适量 | 适量 |
注:胶乳浓度按40%计,当采用其它浓度的氯丁胶乳时,可按比例换算。
漆酚树脂漆的施工配合比附 表 1.10 材 料 名 称 | 配合比(质量比) | 漆酚树脂漆 | 溶剂油或二甲苯 | 耐酸粉料 | 腻子 | 1.0 | 按施工粘度要求确定 | 1.5~2.0 | 底漆 | 0.5~0.8 | 过渡漆 | 0.35~0.45 | 面漆 | |
|
建筑防腐蚀工程施工及验收规范GB50212-81 |
附录二 防腐蚀涂料的质量要求乙烯磷化底漆、过氯乙烯漆、沥青漆、漆酚树脂漆、酚醛漆、环氧漆、聚氨酯漆、氯化橡胶漆、氯磺化聚乙烯漆及其配套底漆的质量要求
附表2.1 涂 料 名 称 | 指 标 | 漆膜颜色及外观 | 粘度 (涂-4粘度计、s) | 干燥时间 (25±1℃,相对湿度65±5%,h) | 附着力 (级) | 乙化 烯底 磷漆 | X06-1乙烯磷化底漆 ZBG51007-87 | 黄绿色半透明 | 30~70 | 实干≤0.5 | ≤1 | 过 氯 乙 烯 漆 | G07-3各色过氯乙烯腻子 ZBG51066-87 | 色调不规定,涂刮腻子平整、无粗粒 | | ≤3 | | G06-4锌黄、铁红过氯乙烯底漆ZBG51065-87 | 锌黄、铁红色调不规定,漆膜平整无粗粒 | 60~140 | | ≤2 | G52-31各色过氯乙烯防腐漆 ZBG51067-87 | 符合标准样板及色差范围,漆膜平整光亮 | 30~75 | | ≤3 | G52-2过氯乙烯防腐清漆 ZBG51068-87 | 浅黄色透明溶液,允许带乳光,无机械杂质 | 20~25 | | | 沥 青 漆 及 配 套 底 漆 | L50-1沥青耐酸漆 ZBG51032-87 | 黑色漆膜,平整光滑 | 50~80 | 表干≤6 实干≤24 | | L01-6沥青清漆 ZBG51029-87 | 黑色漆膜,平整光滑 | 20 | 表干≤1燉3 实干≤2 | ≤2 | F53-31红丹酚醛防锈漆 ZBG51090-87 | 桔红色,漆膜平整,允许略有刷痕 | 40 | 表干≤5 实干≤24 | | 沥 青 漆 及 配 套 底 漆 | C06-1铁红醇酸底漆 ZBG51010-87 | 铁红色,色调不 规定,漆膜平整 | 60 | 表干≤2 实干≤24 | ≤1 | T07-2各色酯胶腻子 ZBG51016-87 | 色调不规定,涂刮后腻子层平整,无明显粗粒,无刮痕,无气泡,干后无裂纹 | | 自干≤24 烘干≤2 (100±2℃) | | 漆 酚 树 脂 漆 | 漆酚树脂清漆 (1001)漆酚树脂漆) | 深棕色,漆 膜平整光滑 | 30~50 | 表干≤2 实干≤24 | | 漆酚环氧防腐漆 (6001)漆酚防腐漆 | 铁红色,米黄色,红棕色,漆膜平整光滑 | 40~80 (红棕色 250~35) | 表干≤0.5 实干≤24 | | 酚 醛 漆 | 各色酚醛耐酸漆 | 符合标准样板及色差范围,漆膜平整光滑 | 70~120 | 表干≤6 实干≤18 | | F06-8锌黄,铁红灰酚醛底漆ZBG51024-87 | 色调不规定,漆膜平整 | 60~80 | 表干≤4 实干≤24 | ≤1 | F53-31红丹酚醛防锈漆 ZBG51090-87 | 桔红色,漆膜平整,允许略有刷痕 | 40 | 表干≤5 实干≤24 | | F01-1酚醛清漆 ZBG51018-87 | 透明,无机械杂质 | 60~90 | 干表≤5 实干≤15 | | T07-2各色酯胶腻子 ZBG51016-87 | 色调不规定,涂刷后腻子层平整,无明显粗粒,无擦痕,无气泡,干后无裂纹 | | 自干≤24 烘干≤2 (100±2℃) | | 环 氧 漆 | H07-5各色环氧酯腻子 ZBG51050-87 | 色调不规定,涂刮后腻子层平整,无明显粗粒,无擦痕,无气泡,干后无裂纹 | | 自干≤24 | | HO6-2铁红、锌黄、铁黑环氧酯底漆ZBG51048-87 | 色调不规定,漆膜平整 | 50~80 | 实干≤24 | ≤1 | 各色环氧防腐漆 | 符合标准样板及色差范围,漆膜平整光滑 | 50~70 | 表干≤3 实干≤24 | ≤1 | 环氧清漆 | 浅棕色,无机械杂质 | 12~20 | ≤2 | ≤2 | 环氧沥青清漆 | 黑色,漆膜平整光滑 | 90~120 | 表干≤4 实干≤24 | | 环氧沥青底漆 | 色调不规定,漆膜 平整光滑 | | 表干≤4 实干≤24 | | 环氧沥青漆 | 黑色,漆膜 平整光滑 | (甲组份) 20~40 | 表干≤4 实干≤24 | | 聚 氨 酯 漆 | 铁红、棕黄聚氨酯底漆 | 色调不规定 ,漆膜平整 | | ≤24 | ≤2 | 各色聚氨酯磁漆 | 符合标准样板及色差范围,漆膜平整光亮 | 25~50 | 表干≤2 实干≤12 | ≤2 | 聚氨酯清漆 | 黄或棕色,漆膜 透明,无机械杂质 | 15~30 | 表干≤2 实干≤24 | ≤2 | 氯 化 橡 胶 漆 | 氯化橡胶云铁防腐漆 | 灰、黑色,漆 膜平整光滑 | | 表干≤2 实干≤8 | | 氯化橡胶浅灰 色面漆(厚浆型) | 近似标准样板, 无可见粗粒 | | 表干≤4 实干≤16 | | 防 腐 漆 氯 磺 化 聚 乙 烯 | 氯磺化聚乙烯 防酸碱盐腐蚀漆 | 各色平光漆 | | 表干≤0.5 实干≤48 | ≤2 | 氯磺化聚乙烯 煤气柜防腐底漆 | 黑色、棕色, 漆膜平整光滑 | | 表干≤12 实干≤48 | | 氯 磺 化 聚 乙 烯 防 腐 漆 | 氯磺化聚乙烯 煤气柜防腐磁漆 | 符合标准样板及色差范围,漆膜平整光亮 | | 表干≤1 实干≤48 | | 氯磺化聚乙烯 耐氢氟酸腐蚀漆 | 半透明清漆 | 69~90 | | | 氯磺化聚乙烯 厚浆管道防腐底漆 | 红棕色平光漆 | 70~100 | | ≤1 | 氯磺化聚乙烯 厚浆管道防腐磁漆 | 各色平光漆 | 90~120 | | ≤1 | 氯磺化聚乙烯 腻子(双组份) | 各色 | | 24~28 | |
|
建筑防腐蚀工程施工及验收规范GB50212-81 |
附录三原材料和制成品的试验方法本规范所列试验方法凡现行国家标准有规定者按现行国家标准执行,无现行国家标准者按本规范试验执行。
原材料经试验结果不合格者,应加倍取样,进行重复试验,如仍不合格者,则不得使用。
(一)主要原材料的取样法
一、耐酸砖和铸石板的取样,应按《耐酸砖》(GB8488—87)或《铸石制品检验、验收、标志、包装运输规则》(JC253—81)执行。缸 砖和耐酸陶板的取样,可参照《耐酸砖》(GB8488—87)执行。
二、花岗石及其它条石块材应从每批中抽取3块,加工成3个5cm×5cm×5cm的试块,供测定抗压强度;浸酸安定性和吸水率的测定,可采 用块径约5cm的碎块各4块;耐酸率的测定,亦可采用碎块。
三、粉料应从每批中的不同点(不少于5处)共取5kg,经拌匀后取样1kg。
四、骨料应从每批中的不同点(不少于5处)取样各取砂子5kg各取石子20~30kg。然后以四分法取样,取砂子5kg,取石子20~35kg。
五、块状沥青从每批中的不同点(不少于10处)各凿取2~3块,混熔后,取其平均试样。膏状桶装沥青的取样桶数,应为总桶数的10%。 将取样器旋入桶中,直旋入桶底为止,取出取样器,铲下螺旋上的沥青。取样的数量应按需要确定。
六、水玻璃取样时,应用直径1cm的玻璃管以管内外液面相平的速度插入铁桶或塑料桶的底部取样桶装时每批取样的桶数,不得少50%, 且不得少于3桶。取不得少于500g的平均试样,装入清洁、干燥带有盖子的塑料瓶中以供检验。
七、硫磺应从每批中的不同点(不少于10处)共取1kg,经混合均匀(块状应先打成小块)后,取样200g。
八、树脂分桶取样时,试样不应少于500g。桶内树脂表面若有析出水分,应在取样前倒去。
九、耐酸陶管应从每批中抽取6根做水压试验。耐酸率和吸水率的试验,可用破裂的陶管。
(二)原材料的试验方法
一、耐酸砖、缸砖、铸石板、花岗石及其它条石块材、骨料和粉料的耐酸率测定法,应符合下列规定:
1.耐酸砖耐酸率的测定,应按《耐酸砖》(GB8488—87)执行:
2.铸石板耐酸率的测定,应按《铸石板耐酸碱腐蚀性能试验方法》(JC258—81)执行;
3.缸砖、耐酸陶板、花岗石及其它条石块材、骨料和粉料耐酸率的测定:
粉料的细度,应取原有细度;其它材料,应取粒径为0.51.0mm的细度,用蒸馏水洗净。
将试样在105~110℃烘干至恒重,冷却后用1‰天平称取试样1g,置于250ml的锥形烧瓶内,加入95%~98%化学纯硫酸25ml,并在烧瓶上连接冷凝管,将烧瓶加热至沸腾,保持1h后停止加热。待瓶内硫酸蒸汽完全消失时,拆去冷凝管。一面摇动锥形烧瓶,一面慢慢注入蒸馏50ml,同时用少量蒸馏水冲洗冷凝管和塞子,并将冲洗后的水收集在同一烧瓶内。
为了避免试样损失,过滤时可向烧瓶内加入少量用无灰滤纸制成的纸浆。过滤时先将定量纸浆放在带有中速滤纸(蓝带的)的漏斗底上,用热蒸馏水冲洗烧瓶,并将此水注入漏斗,然后用热蒸馏水洗涤滤纸上的残渣,至洗涤水(用0.1%甲基橙溶液试验)无反应为止。将带有残渣的滤纸干燥并在瓷柑埚内灰化,灼烧至恒重。
耐酸率应按下式计算:
耐酸率(%)=G1/G×100(附3-1)
式中G1——灼烧后残渣的质量(g);
G——试样的质量(g)。
取两次平行试验的平均值应作为试验结果,平行试验的误差应在0.5%以内。
二、耐酸砖、缸砖、耐酸陶板和花岗石及其它条石块材的吸水率测定法,应符合下列规定:
1.耐酸砖吸水率的测定,应按《耐酸砖》(GB8488—87)执行;
2.缸砖、耐酸陶板、花岗石及其它条石块材的吸水率测定:
应取试块2块,每块体积为30~80CM3。若为砖板,应取中间部位,并应保持原有的厚度;异形制品则不受形状限制。
试外表面如有严重裂纹,不得采用。选好的试块应刷去灰尘碎屑,在105~110℃烘干至恒重。冷却、称重后(准确至0.01g),置于盛水容器内,加热至沸腾。经1h后,将盛试块的容器放在水中完全冷却至室温。从水中取出试块,用拧干的湿毛巾擦去表面多余水分,迅速称量,准确至0.01g。
吸水率应按下式计算:
吸水率(%)=G1-G/G×100(附3-2)
式中G1——煮沸后试块的质量(g);
G——烘干后试块的质量(g)。
取两次平行试验的平均值作为试验结果,平行试验的误差应在0.5%以内。
三、耐酸砖和铸石板的热稳定性测定法,应符合下列规定:
1.耐酸砖热稳定性的测定,应按《耐酸砖》(GB8488—87)执行;
2.铸石板材耐急冷急热性能的测定,应按《铸石板材耐急冷急热性能试验方法》(JG261—81)执行。
四、化岗石及其它条石块材抗压强度和浸酸安定性的测定法,应符合下列规定:
1.抗压强度的测定:将已加工成5cm×5cm×5cm的试块,每组3块,作抗压强度测定。试块在试验前应用放大镜仔细检查,无裂纹者方可 选用。测定方法,应按《普通混凝土力学性能试验方法》(GBJ81—85)执行。
2.浸酸安定性的测定:应取块径约5cm的碎块4块(在试验前用放大镜仔细检查,无裂纹者方可选用),在20±5℃的温度下放入盛有95% ~98%化学纯硫酸的带盖容器中,试块底面应架空,侧面应隔开,酸液应高出试块表面。在浸泡期内,应经常检查试块外观变化,并 保持酸液浓度。浸泡45昼夜后,取出试块,用水冲洗,然后用纱布擦干,检查试块有无裂纹、剥落和膨胀现象。若试块完整,试块表 面和浸泡酸液亦无显著变色,则为合格。
五、粉料的含水率、细度和耐酸粉料体积安定性的测定法,应符合下列规定:
1.含水率的测定:应用1%天平称取试样100g,在105~110℃烘干至恒重,冷却后称重。
含水率应按下式计算:含水率(%)=G-G1/G×100(附3-3) |
建筑防腐蚀工程施工及验收规范GB50212-81 |
式中G——烘干前试样的质量(g);
G1——烘干后试样的质量(g)。
2.细度的测定:应用1%天平称取已烘干至恒重的试样50g,倒入规定筛@的筛内。过筛时,应往复摇动、拍打,并使试样均匀分布在筛布 上,摇动速度为每分钟125次。将近筛完时,除去筛底改在纸上筛动至每分钟通过筛孔的质量不超过0.05g为止。称量筛余物,以其克 数乘2,即得筛余百分数。
当用两种筛孔的筛子控制细度时,通过上一级筛孔的试样,应全部倒入下一级筛孔的筛内,进行过筛,不得散失。
3.耐酸粉料的体积安定性测定:应将酚醛树脂与比例量的酸性固化剂混合均匀,然后加入适量耐酸粉料,搅拌均匀;若为糠醇糠醛型, 加入比例量的糠醇糠醛型玻璃钢粉,再加入适量耐酸粉料,搅拌均匀。将拌制好的酚醛树脂胶泥或呋喃树脂胶泥装入30mm×30mm× 30mm的试模内,振实并刮平表面,试件硬化后表面无起鼓现象即为安定性合格。
六、粉料的亲水系数测定法,应符合下列规定:应用1%天平称取经烘干至恒重并冷却至室温的粉料5g各两份,分别置于两个瓷皿内。在 一个瓷皿内加入蒸馏水15~30ml,用橡皮杆仔细研磨5min,然后将试样冲洗到100ml的量筒内(量筒刻度为0.5ml,该刻度应用滴管 加以校正),使量筒的水面读数为50ml。在另一个瓷皿内,以脱水煤油代替蒸馏水,按上述同样方法进行处理。当两个量筒内的沉 积粉料膨胀停止后,读其体积数。
亲水系数=V1/V2 (附3-4)
式中V1——水中沉积物的体积(cm3);
V2——煤油中沉积物的体积(cm3)。
取两次试验的平均值作为试验结果。两次试验的差值,在用同样液体时的读数不超过±0.2cm3,而亲木系数不得超过±3%。
七、粗骨料的浸酸安定性测定法,应符合下列规定:碎石应取实际选用的最大粒径,数量不少于20颗,在20±5℃时放入盛有95%~98%的 化学纯硫酸的带盖容器中,酸液应高出试样表面。浸泡5昼夜后,取出试样,检查外观和酸液的变化。
试样无裂纹、剥落和破碎等现象,试样表面和浸泡的酸液亦无显著变色,则为合格。选用卵石时,需测定不耐酸颗粒含量。不耐酸颗粒含量不超过试样总质量的3%,方为合格。
测定方法如下:将不少于25kg的试样洗净、晾干、称量,然后仔细挑选其中不耐酸可疑颗粒,在20±5℃时称量后放入盛有95%~98%化学纯硫酸的带盖容器中。试样浸泡1个月后取出,仔细检查有无表面开裂、剥落、膨胀的颗粒。将上述不耐酸颗粒去掉,把剩余的试样洗净擦干并称量。卵石不耐酸颗粒含量应按下式计算:
式中G1——不耐酸可疑颗粒的质量(kg);
G2——浸泡后,试样中耐酸颗粒的质量(kg);
G——试样的质量(kg)。
八、粗、细骨料的颗粒级配、空隙率、含水率和含泥量的测定法,应按普通混凝土集料的试验方法进行测定。
九、填料混合物的空隙率测定法,应符合下列规定:应将填料混合物充分拌合均匀后,装入金属量筒内,然后放置在振动台上,振动至 体积不变为止。
填料混合物的空隙率,应按下式计算:
式中ρ——混合物的混合密度(kg燉m3);
ρ′——混合物振实后的密度(kg燉m3);
ρ1ρ2ρ3——石、砂、粉的密度(kg燉m3);
n1n2n3——石、砂、粉分别占混合集料的百分数。
十、石油沥青的针入度、延度和软化点的测定法,应符合下列规定:
1.针入度的测定,应按《石油沥青针入度测定法》(GB4509—84)执行;
2.延度的测定,应按《石油沥青延度测定法》(GB4508—84)执行;
3.软化点的测定,应该《石油沥青软化点测定法》(GB4507—84)执行。
十一、再生胶油毡的抗拉强度、延伸率和吸水率的测定法,应符合下列规定:
1.抗拉强度和延伸率的测定,应按《硫化橡胶拉伸性能的测定》(GB528—82)执行;
2.吸水率的测定,应按《沥青纸胎防水卷材检验方法》(GB328—73)执行。
十二、水玻璃的模数测定法:对氧化钠含量的测定、二氧化硅含量的测定、模数的计算,均应按《硅酸钠》(GB4209—84)执行。
十三、水玻璃的密度测定法,应符合下列规定:应将试样置于250ML的量筒内,温度调节至200℃。并应把四位读数的标准比重计轻轻浸 入试液内,待其停止下沉。平视液面,应读出比重计数值,加上单位g燉cm3即为密度。
十四、氟硅酸钠的纯度、含水率和细度的测定法,应按《氟硅酸钠》(HG1—211—65)执行。
十五、耐酸水泥中氟硅酸钠含量的测定法,应符合下列规定:
应从混有氟硅酸钠的耐酸水泥中精确称取试样1g,置于300ml烧杯中,加入150ml热蒸馏水,搅拌后煮沸15min,然后趁热过滤,用热水洗净,洗净次数至少10次,保存滤液,滤液中加入4~5滴酚酞,用0.1N氢氧化钠标准液滴定至微红色。氟硅酸钠的含量,应按下式计算:

式中N——氢氧化钠的浓度(标准溶液);
V——消耗氢氧化钠标准液的用量(ml);
G——试样的质量(g)。
十六、硫磺含硫量的测定法,应按《工业硫磺中硫含量的测定方法》(GB2451—81)执行。
十七、工业硫磺中水分的测定法,应按《工业硫磺中水分的测定方法》(GB2452—81)执行。
十八、聚硫橡胶柔软度和水分及粘度的测定法,应符合下列规定:
1.柔软度的测定:
试样的制备:试样模型应为铁制,中间有两个20mm×20mm×20mm的槽,将胶坚实地填满槽内并用刀片削平表面,将模打开取出试样。为使试样不粘模型,保持好试样形状,可在模型内涂一层凡士林油以便脱模。每批样品制备9块,将做好的试样于20±1℃下放置60min,或直接将试样置于恒温水浴中控制温度,以待测定。
测定的过程:将上述立方体取出9块迅速放在塑度计平板上成品字形,彼此间的距离不得小于20mm,然后放下上部的活动平板并同时开动秒表,待试样被压缩到10mm时停止秒表,记下秒表时间,并应按此方法将其余6块试样分两次测定,取三次平均数值作为结果。
2.水分的测定:
应用最小刻度为0.01ml的细长形量管作为接受量管的水分测定器和二级试剂的甲苯进行测定。测定的过程应为:称取均匀样品50g,精确到0.1g,放入干燥的圆底烧瓶中,加甲苯150ml,摇动使试样溶解,然后将整套仪器放入甘油油浴锅中,加热回流,并用调压器调节温度,使其回流速度为每秒2~3滴。回流40min后,应用少量甲苯冲洗冷凝器一次,然后再回流20min。将仪器从油浴锅中取出,冷却至室温,读出量筒中水的体积。同时做一空白试验。 |
建筑防腐蚀工程施工及验收规范GB50212-81 |
聚硫橡胶的水分,应按下式计算:
式中x%——样品中水分的百分数:
G——样品的质量(g);
V1——样品中蒸出水的体积(ml);
V2——空白试验蒸出水的体积(ml);
dt——室温t℃时水的密度(g燉cm3)平行误差:水分小于0.1%时为0.04%。
3.粘度的测定:应采用NDJ-2型旋转粘度计测定液态聚硫橡胶的粘度,其测定方法,应按《橡胶浆粘度测定方法(旋转粘度计法)》 (HG4—1470—82)执行。
十九、E型环氧树脂的环氧值和软化点测定法,应按《E型环氧树脂》(HG2—741—72)执行。
二十、酚醛树脂的游离酚含量、游离醛含量、含水率和粘度的测定法,应符合下列规定:
1.游离酚含量的测定:
应用万分之一天平称取试样1g,置于1000ml的圆底烧瓶内,加入乙醇20ml使其溶解。加入蒸馏水50ml,然后用蒸汽馏出游离酚,馏出物收集在1000ml的容量瓶内,控制蒸馏速度为40~50min内蒸出蒸馏物约500ml。当以饱和嗅水滴入蒸馏物内无白色沉淀时停止蒸馏。将馏分用水稀释至1000ml刻度,充分摇匀。应用移液管吸取馏出物100ml,移入容积为500ml带塞的锥形瓶内。加入0.1n溴溶液25ml,再加入试剂级的盐酸5ml,在室温下放在暗处15min。加入10%碘化钾溶液20ml,在暗处再放10min。然后加入氯仿1ml。用0.01N硫代硫酸钠溶液滴定至碘色将近消失时再加入淀粉指示剂约1ml,继续滴定至蓝色恰好退尽为止。
同时进行空白试验。应把20ml乙酵用蒸馏水稀释至1000ml;然后取其100ml,并应按上述步骤进行试验。游离酚的含量应按下式计算:
式中V1——空白试验耗用硫代硫酸钠溶液的体积(ml);
V2——试样试验耗用硫代硫酸钠溶液的体积(ml);
N——硫代硫酸钠溶液的当量数;
G——试样的质量(g)。
2.游离醛含量的测定:
应用万分之一天平称取试样3g,置于300ml的烧瓶内。加入无水乙醇100ml,用玻璃棒搅拌均匀,制成试样溶液,盖好备用。在烧杯内加入无水乙醇50ml,加入1%酚嗅蓝指示剂3滴,再加入试样溶液10ml,然后用稀盐酸中和至黄色。加入10%羟基胺盐酸10ml,摇动10~15min,用0.1n氢氧化钠溶液滴定至绿色。不加入试样溶液应按上述同样方法作空白试验。游离醛的含量应按下式计算:
式中V1——试样试验耗用氢氧化钠溶液的体积(ml);
V2——空白试验耗用氢氧化钠溶液的体积(ml);
N——氢氧化钠溶液的当量数;
G——试样的质量(g)。
3.含水率的测定:
应用万分之一天平称取试样10g,置于250ml的圆底烧瓶内。并应加入三混甲酚50ml,再加入水饱和苯80ml。装上蒸馏接收器和回流冷凝器,应控制温度使溶剂回流速度每分钟2~5滴,回流1h以上,至无水分馏出为止。
含水率应按下式计算:
式中G1——蒸馏水分的质量(g);
G——试样的质量(g)。
4.粘度的测定,应按《涂料粘度测定法》(GB1723—79)执行。
二十一、呋喃树脂的固体含量、灰分、含水率和粘度测定法,应符合下列规定:
1.固体含量的测定:应先将表面皿在105~110℃烘干至恒重。并应在干燥器内冷却至室温。应用万分之一天平在表面皿中称取试样10g, 在170℃的温度下烘干至恒重。固体的含量应按下式计算:
式中G1——试样烘干后的质量(g);
G——试样烘干前的质量(g)。
2.灰分的测定:先将瓷坩埚灼烧至恒重,并应冷却至室温。然后应用万分之一天平称取试样1g,置于埚内,再灼烧至恒重。灰分应按下 式计算:
灰分(%)=G1/G×100(附3-13)
式中G1——灼烧后试样的质量(g);
G——灼烧前试样的质量(g)。
3.含水率的测定:应先取试样约1g置于比色管中,加入无水乙醇溶解,再加入0.1g无水硫酸铜,摇匀后观察无水硫酸铜是否呈蓝色,如 呈蓝色则说明有水分存在。
然后应用万分之一天平称取试样10g,置于容积为250ml的围底烧瓶内,加入甲苯100ml。接上蒸馏接收器和回流冷凝器,应回流1h以上,至无水分离出为止。
含水率应按下式计算:
含水率(%)=G1G×100(附3-14)
式中G1——蒸出水分的质量(g);
G——试样的质量(g)。
4.粘度的测定,应按《涂料粘度测定法》(GB1723—79)执行。
二十二、煤焦油的含水率测定法,应按《煤焦油》(YB294—75)执行。
二十三、乙二胺的纯度测定法,应符合下列规定:应预先将30ml乙醇放入200ml烧杯中,加0.2~0.25g试样,再加约5m195%的水杨酸,摇 匀使成结晶状。再加40ml蒸馏水,应在10℃以下放置1h。
用3号砂芯吸滤管,其一端与抽吸管迹接,另一端插入溶液中进行抽气过滤,除去滤液。并应将沉淀物每次用10ml清水洗涤两次,仍用抽气管除去洗液。应将洗净之沉淀物用30ml左右0.5n盐酸溶液溶解,加甲基橙指示剂1~2滴,再以0.5n氢氧化钠溶液滴定过量之酸。乙二胺的纯度应按下式计算:
式中N——盐酸溶液的当量数;
V——耗用盐酸溶液的体积(ml);
N1——氢氧化钠溶液的当量数;
V1——耗用氢氧化钠的体积(ml);
G——试样的质量(g)。
二十四、苯磺酰氯的纯度测定法,应符合下列规定:应用万分之一天平称取试样1.5g,置于300ml锥形瓶内,用100ml移液管准确吸取 100ml0.25N氢氧化钠溶液加入锥形瓶内,装上冷凝器,回流1h后,冷却至室温。并应加酚酞指示剂3滴,以0.5N盐酸溶液滴定 至红色消失为止。苯磺酰氯的纯度应按下式计算:

式中N——氢氧化钠溶液的当量数;
V——耗用氢氧化钠溶液的体积(ml);
N1——盐酸溶液的当量数;
V1——耗用盐酸溶液的体积(ml);
G——试样的质量(g)。
二十五、氯丁胶乳水泥砂浆中细骨料质量的测定法,应符合下列规定: 细骨料中的含泥量、云母含量、硫化物含量及有机物含量的测定 方法,均应按《普通混凝土甲砂的质量标准及检验方法》(JGJ52—79)执行。
二十六、阳离子氯丁胶乳的质量测定法,应符合下列规定:1.总固物含量的测定,应按《合成胶乳总固物含量测定法》(GB2958—82) 执行;
2.粘度的测定,应按《合成胶乳粘度测定法》(GB2956—82)执行;
3.表面张力的测定,应按《合成胶乳的表面张力测定法》(GB2960—82)执行;
4.密度的测定,应按《合成胶乳的密度测定法》(GB2959—82)执行。 |
建筑防腐蚀工程施工及验收规范GB50212-81 |
(三)制成品的试验方法
一、水泥砂浆或混凝土基层含水率的测定法,应符合下列规定:
1.称重法:
应在基层表面3~4处用长钻钻取或凿取表层20mm的厚度层内的试样。用天平称量。然后将所取试样混合在一起磨碎,应在100~105℃的温度下烘至恒重,称取烘干后的质量。
含水率应按下式计算:
式中G——烘干前试样的质量(g);
G1——烘干后试样的质量(g)。
2.塑料薄膜覆盖法:
应将尺寸为45cm×45cm的透明聚乙烯薄膜周边用胶带纸牢固地粘贴密封在基层表面上,避免阳光照射或损坏薄膜。并应在16h后观察塑料薄膜,无水珠或湿气存在即为合格。每40cm2宜做一试样。
二、沥青类制成品的怀能测定法,应符合下列规定:
1.沥青胶泥的耐热稳定性测定:
应根据烘箱尺寸,预制成1:3水泥砂浆底板,养护7昼夜,干燥至含水率不大于6%,然后在底板上涂刷沥青冷底子油两遍,待干后用沥青胶泥铺贴150mm×150mm×20mm的耐酸板3块。耐酸板应相互分开铺贴,沥青胶泥的结合层厚度为3mm,挤出的沥青胶泥应刮除干净。
耐酸板贴完后应在室温下放置1昼夜,然后连同底板垂直放入烘箱内。烘箱的起始温度应比估计的沥青胶泥的耐热稳定性低10℃,以后每升温10℃,应保持5h,并观察耐酸板有无下滑。耐酸板开始下滑的温度减去10℃,即为该沥青胶泥的耐热稳定性。
2.沥青胶泥的浸酸后质量变化率测定:
应将熬制好的沥青胶泥注入预先涂过黄油的2cm×2cm×2cm的试模内,每组6块,并高出1~2mm。待冷却至室温后用热刮刀将高出试模的沥青胶泥切去、修平。并应在脱模后在常温下养护2h,用纱布擦拭干净,然后用1%天平称重。
将试块浸入盛有55%硫酸的带盖容器中,试块底面应架空,侧面应隔开,酸液应高出试块表面,浸泡30昼夜后,取出试块,用水冲洗,再用纱布擦拭干净,然后在空气中干燥10h。检查试块的表面,不得出现裂纹、掉角、起鼓和酥松等缺陷,试块的表面和浸泡的酸液应无显著变色。检查合格后,称量试块。
浸酸后质量变化率应按下式计算:
式中G1——浸酸后试块的质量(g);
G——浸酸前试块的质量(g)。
3.沥青砂浆和沥青混凝土抗压强度的测定:
沥青砂浆应用直径和高度均为50.5mm的圆柱试模;沥青混凝土应用直径和高度均为71.4mm的圆柱形试模;试模并应擦净、烘热。
应将拌制好的沥青砂浆或沥青混凝土装满试模,每组3块,用热刮刀均匀插捣10次,然后加上成型压力恒压3min。当施工采用平板振动器压实时,沥青砂浆的成型压力应为0.25MPa,沥青混凝土的成型压力应为5MPa。恒压后即可脱模。
试块应完整、平滑、无缺角,高差不大于1mm,上下两面应平行。
试块在室温下养护1昼夜后,应放入规定温度的水中2h,测定20℃的抗压强度时,水的温度应为20℃;测定50℃的抗压强度时,水的温度应为50℃。取出试块后应用布擦干,并在试块的上下两面,各垫一张纸,然后进行试压。试压时,压力机活塞上升的速度应为每分钟3cm,极限荷载由测力计在指针不再转动时读出。
抗压强度应按下式计算:R=P/F(附3-19)
式中R——抗压强度(MPa);
P——极限荷载(N);
F——试块的受压面积(mm3)。
取3块试块的平均值应为最后结果。每块测定的偏差,当R20时不得大于10%,当R50时不得大于5%。
4.沥青砂浆和沥青混凝土的饱和吸水率测定:
在制备抗压强度试块的同时,应制备供测定饱和吸水率用的试块,每组3块。试块脱模后,应在常温下养护1昼夜,并用纱布擦拭干净。试块在空气中称重后,再置于水中称重,精确至0.01g。称重后,把试块放入盛水的容器中,试块应全部被水淹没,水温为22±2℃,然后将容器连同试块放入真空干燥器或真空罩内,进行抽真空至剩余压力为10~15mm水银柱,保持1h以上。恢复正常气压后,试块仍在水中保持1h。然后取出试块,用纱布擦去表面的水分,在空气中称重精确至0.01g。
饱和吸水率应按下式计算:

式中G1——抽真空前,试块在空气中的质量(g);
G2——抽真空前,试块在水中的质量(g);
G3——抽真空后,试块在空气中的质量(g)。
取3块试块平行试验的平均值为最后结果。平行试验的误差不应大于0.2%。
5.沥青砂浆和沥青混凝土的浸酸安定性测定:
在制备抗压强度试块的同时,应制备浸酸用的试块,每组为6块。试块脱模后,应在常温下养护2h,并用纱布擦拭干净。将试块浸入盛有55%硫酸的带盖容器中,试块底面应架空,侧面应隔开,酸液应高出试块的表面。浸泡30昼夜后,应取出试块,用水冲洗,然后用纱布擦试干净,并应检查试块有无裂纹、掉角、起鼓和酥松等现象,若试块完整,试块表面和浸泡酸液亦无显著变色,则为合格。
三、水玻璃类制成品的性能测定法,应符合下列规定:
1.水玻璃胶泥稠度的测定:
试验所用的锥形稠度仪,应符合《水泥物理检验仪器——净浆标准稠度与凝结时间测定仪》(G83350.6—82)的规定。将粉料按配合比放入拌和器(机)内混合均匀,然后加入水玻璃,湿拌2min左右,同时记录时间,将拌和均匀的水玻璃胶泥一次装入圆锥模内,振动25次,亦可用人工捣实法,然后将多余胶泥刮去,整平表面。
将盛胶泥的圆锥模移至锥形稠度仪的下面,应放松制动螺丝。将锥为降至胶泥的表面,刚接触时应拧紧制动螺丝,同时应调整标尺指针在0位,加入水玻璃湿拌10min时进行测定。突然放松制动螺丝,同时启动秒表,让试锥自由沉入胶泥中,待5s时应拧紧制动螺丝,此时标尺读数即为胶泥稠度。测定时,圆锥模不应受任何震动,并应保持在温度为20~30℃,相对湿度小于80%的空气环境中。取两次测定的平均值应为最后结果。
2.水玻璃砂浆的稠度测定,应按《砖石工程施工及验收规范》(GBJ204—83)中附录三执行。
测定用的锥形稠度仪,应符合《水泥物理检验仪器——净浆标准稠度与凝结时间测定仪》(GB3350.6—82)的规定。
3.水玻璃胶泥的凝结时间测定:
可将拌和均匀的水玻璃胶泥,一次装入圆锥模内,连同底板振动25次,亦可用人工捣实方法,然后用湿布擦过的抹刀将多余胶泥刮去,整平表面。将盛胶泥的圆锥模,移至净浆标准稠度与凝结时间测定仪的试针下面,试针的直径为1.1±0.04mm,质量为300±2g。放松制动螺丝,将试针下端降至与胶泥的表面接触时,应拧紧制动螺丝,然后,突然放松制动螺丝,让试针自由沉入胶泥中。在刚开始测定期间,应轻轻扶住试针上端的活动杆,以防试针猛然冲击底板而弯曲,但初凝时间仍应以自由降落测定的结果为准。初凝前,应每5min测定一次;初凝后,应每15min测定一次。每次测定后,应将试针擦拭干净。每次测定须将圆锥模连同底板稍稍移动,不使试针再针入原针孔内。 由加入水玻璃时起,至试针沉入胶泥深度为39.0~39.5mm而不再沉入时,所需的时间为初凝时间;由加入水玻璃时起,至试针沉入胶泥中不得超过1mm时,所需时间为终凝时间。
测定时,圆锥模不应受任何震动,并应保持在温度为20~25℃、相对湿度小于80%的空气环境中。
4.水玻璃胶泥的抗拉强度和浸酸安定性测定:
可将拌和均匀的水玻璃胶泥装入12个“8”字型试模内,连同底板置于跳桌上,用手稍扶住,跳动25次,亦可用人工捣实方法,刮去多余胶泥并整平表面。应在温度为20~25℃、相对湿度小于80%的空气中养护2昼夜后脱模,并应继续在上述环境中养护14昼夜。取出6个试块,并应按《水泥胶砂强度检验方法》(GB177—85)进行抗拉强度测定;另6块应置于浓度为40$的工业硫酸中煮沸1h,并应在该酸液中缓慢冷却至常温,取出试块后,应用水冲洗。并应用毛巾或滤纸擦干。1昼夜后,应检查试块有无裂纹、掉角、疏松和膨胀等现象。若试块完整,表面和酸液亦无显著变色,则为合格。 |
|
建筑防腐蚀工程施工及验收规范GB50212-81 |
4.水玻璃胶泥的抗拉强度和浸酸安定性测定:
可将拌和均匀的水玻璃胶泥装入12个“8”字型试模内,连同底板置于跳桌上,用手稍扶住,跳动25次,亦可用人工捣实方法,刮去多余胶泥并整平表面。应在温度为20~25℃、相对湿度小于80%的空气中养护2昼夜后脱模,并应继续在上述环境中养护14昼夜。取出6个试块,并应按《水泥胶砂强度检验方法》(GB177—85)进行抗拉强度测定;另6块应置于浓度为40%的工业硫酸中煮沸1h,并应在该酸液中缓慢冷却至常温,取出试块后,应用水冲洗。并应用毛巾或滤纸擦干。1昼夜后,应检查试块有无裂纹、掉角、疏松和膨胀等现象。若试块完整,表面和酸液亦无显著变色,则为合格。
5.水玻璃胶泥的煤油吸收率测定:
应将配制好的水玻璃胶泥装满预先涂过黄油的、衬有厚度不小于0.05聚乙烯薄膜的30mm×30mm×30mm的试模内,每组4块,连同底板振动25次,然后用湿布擦过的刮刀将多余的胶泥刮去,整平表面。试块应在温度为20~25℃、相对湿度小于80%陷最少的2个试块,经称重后精确至0.01g,放在玻璃容器内,并在1h内分3次注入密度为0.81~0.84g燉cm3煤油,液面应高出试块1cm。浸泡7昼夜,应取出试块,用拧干的湿毛巾擦去试块表面多余的煤油,立即进行称重,精确至0.01g。
吸水率应按下式计算:
式中G1——浸泡后试块的质量(g);
G——浸泡前试块的质量(g);
ρ——煤油的密度(g燉cm3)。
6.水玻璃砂浆和水玻璃混凝土的抗压强度测定:
水玻璃砂浆以7.07cm×7.07cm×7.07cm的试块为准,应用人工捣实成型。水玻璃混凝土以15cm15cm×15cm的试块为准,若为20cm×20cm×20cm的试块时,其结果应乘以系数1.05;若为10cm×10cm×10cm的试块时,其结果应乘以系数0.95。
混凝土若用振动器捣实时,将混凝土装入试模内,并稍有余量,然后将试模放在振动台上,用手稍扶住,开动振动台,振至混凝土表面呈现浆状为止,不宜超过0.5min。振动结束后,应用金属直尺沿试模边缘将多余的混凝土刮去,并随即用抹刀将表面抹平。若用人工捣实混凝土时,应将混凝土分两次装入试模内,每次装入的高度相等。每次捣固的次数:试模为20cm×20cm×20cm时,约50次;试模为15cm×15cm×15cm时,约25次;试模为10cm×10cm×10cm时,约12次,捣固应按螺旋方向从边缘向中心均匀进行。
捣实后,应在温度为20~25℃、湿度小于80%的空气中养护2昼夜后即可脱模。脱模后,应继续在上述环境中养护14昼夜,然后在压力机上进行试压。
每组试块为3块,试压结果取3块的平均值。当3个试块中的过大或过小的强度值与中间值相比超过15%时,应以中间值代表该组的混凝土试块的强度。
7.水玻璃砂浆和水玻璃混凝土的浸酸安定性测定:
试块应按水玻璃砂浆和水玻璃混凝土的抗压强度测定法成型和养护。然后把试块浸入盛有40工业硫酸的带盖容器中,试块底面应架空,侧面应隔开,酸液应高出试块的表面,并应保持浸泡温度为20~25℃。浸泡28昼夜后,应取出试块,用水冲洗,阴干24h,检查试块有无裂纹、起鼓、发酥和掉角等现象。若试块完整,试块表面和浸泡酸液亦无显著变色,则为合格。
8.水玻璃耐酸胶泥与耐酸砖的粘结强度测定(又称十字交叉试验方法):
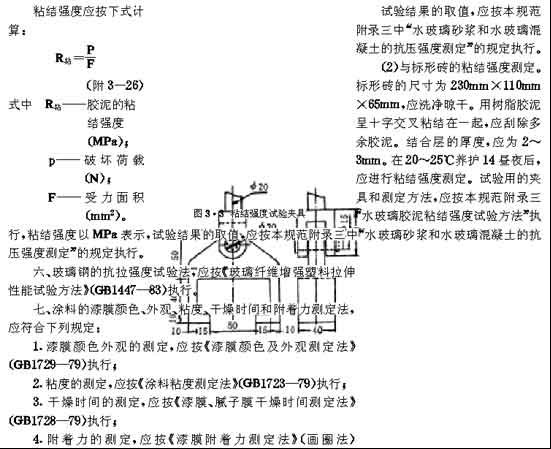
按配合比称量物料。先将粉料与氟硅酸钠放入搅拌锅内混匀后,加入水玻璃拌匀。砖板的粘结力试验均应采用230mm×110mm×65mm的标形耐酸砖,用水洗净烘干,冷却至室温备用。
将拌制好的胶泥,抹在两块砖粘结面的中部,应用挤浆法使两块砖十字交叉粘牢,胶泥层厚度为3mm。挤出的多余胶泥用刮刀刮除,在温度20~25℃、相对湿度小于80%的空气环境中养护14昼夜后测定粘结强度。
应将粘结力支座(附图3.1)放在压力机上固定住,对正位置,调节好距离,将试块放好。开动压力机均匀加载,压力机运行速度为6mm燉min,加载至试件拉开。记录压力机表盘读数。
附图3.1粘结力支座
粘度强度应按下式计算:
式中R粘——胶泥的粘结强度(MPa);
P——破坏荷载(N);
A——受拉面积(mm2)。
粘结强度应取3个试件的平均值为最后结果。精确度为0.1MPa。若其中一件试验结果超出平均值15%时应取其余两件的平均值作最后结果。
9.水玻璃耐酸混凝土的抗渗性测定:
按配合比称量物料,先将粉料与氟硅酸钠混合均匀,再放至铁板上与砂石混合均匀,然后加入水玻璃或改性水玻璃搅拌均匀,宜翻拌3次。
应将拌好的混凝土装入涂有机油的抗渗试模中,并稍有余量,试模尺寸为底面直径185mm,顶面真径175mm,高150mm,然后将试模放在振动台上,振至表面泛浆为止,不宜超过1.5min并用抹刀抹平表面,每组3块。混凝土试块在20~25℃温度下养护1昼夜后脱膜,养护14昼夜后,方可进行抗渗性测定。 |
建筑防腐蚀工程施工及验收规范GB50212-81 |
应在养护好的试件表面上涂刷一层熔化的黄蜡或石蜡,试件的顶面和底面下涂蜡,稍冷后将试件装入有一定热度的抗渗套模中。
应将上述试件连同套模装到混凝土渗透仪上,垫好橡胶垫圈,上紧螺丝。
如预计抗渗压力小于或等于0.8MPa时,开始试验时的水压应为0.1MPa,以后每隔8h增加水压0.1MPa。如预计抗渗压力大于0.8MPa时,开始试验时的水压应为0.2MPa,以后每隔8h增加水压0.2MPa,并且要随时注意试件端面情况。在试件端面呈现有渗水现象时,应记下当时的水压。
混凝土的抗渗性,应按6个试件中4个试件在未发现有渗水现象时的最大水压计算。
四、硫磺类制成品的性能测定法,应符合下列规定:
1.硫磺胶泥和硫磺砂浆的抗拉强度测定:
取6个“8”字型的抗拉试模,在颈部压盖一金属片或玻璃片,试模可涂少量甘油作脱模剂。将硫磺胶泥或硫磺砂浆在140℃浇注成型,浇注后试块的收缩孔应立即进行补浇。试块冷固后拆模,在20±5℃空气中养护48h。抗拉强度的测定应按《水泥胶砂强度检验方法》(GB177—85)执行。
2.硫磺胶泥或砂浆与耐酸砖的粘结强度测定:浇注硫磺胶结料用的模具,应由1mm厚钢板制作(附图3.2)。
耐酸砖应预先标明粘结部位,并用“+”字标记标出加压部位。应将耐酸砖在105~110℃烘干24h,然后冷却至室温。浇注后待试块冷固后拆模,应在20±5℃空气中养护48h。十字交叉试件做成
中浸放5min,试块应悬挂在水中,勿使局部过热,放置间距不小于10mm;水面高出试块不小于20mm,然后将试块再放入上述条件的热水及冷水中,如此循环5次,应立即按《水泥胶砂强度检验方法》(GB177—85)进行测定,其抗拉强度即为急冷急热残余抗拉强度。
4.硫磺砂浆的分层度测定:
取高20cm,直径2.0~2.5cm的玻璃试管放在140±2℃的油浴中,应将熔融的硫磺砂浆在140±2℃注满试管。浇注30min后,应将试管从油浴中取出,放入15~20℃水中,待硫磺砂浆冷固后,打破试管,按上、中、下等分三段,取上部及下部的试样,分别敲碎,碎粒粒径不大于1mm。应用1‰天平称取试样各1g,在500℃灼烧后,称量残渣。
分层度应按下式计算:
(附3-23)
5.硫磺胶泥和硫磺砂浆的浸酸后抗拉强度降低率和质量变化率测定:
按硫磺胶泥和硫磺砂浆抗拉强度测定法成型并养护“8”字型抗拉试块12个,将其中6个在空气中继续养护,另6个经称重后浸入盛有33%硫酸的带盖容器中,试块底面应架空,侧面应隔开, 酸液应高出试块表面。浸泡45昼夜后取出试块,应用水冲洗。并应用湿布擦去表面水分后称重。应将浸泡后的试块与在空气中养护的同龄期试块进行抗拉强度测定。
浸酸后的抗拉强度降低率,应按下式计算:
式中R——同龄期未浸酸试块的抗拉强度(MPa);
R1——浸酸后试块的抗拉强度(MPa)。
质量变化率应按下式计算:
式中G——浸酸前试块的质量(g);
G1——浸酸后试块的质量(g)。
6.硫磺混凝土的抗压强度和抗折强度测定:
应取15cm×15cm×15cm抗压试模及10cm×10cm×60cm抗折试模各3个,内薄涂润滑油,装入施工时用的粗骨料,然后浇注140℃的硫磺胶泥或硫磺砂浆。浇注后试块的收缩孔,应立即进行补浇,待试块冷固后拆模。在20±5℃空气中养护48h后,应按《普通混凝土力学性能试验方法》(GBJ81—85)进行测定。
五、树脂胶泥制成品的性能测定法,应符合下列规定:
1.树脂胶泥的抗拉强度测定:
应将“8”字型试模擦拭干净薄涂一层脱膜剂,并将树脂胶泥装入模内在跳桌上振动25次刮去多余的胶泥,整平表面。在20~25℃养护14昼夜后,应测定抗拉强度。以3个试块为一组抗拉强度的测定方法应按《水泥胶砂强度检验方法》(GB177—85)执行。
2.树脂胶泥与耐酸砖的粘结强度测定:
(1)与小形砖的粘结强度测定。小形砖的尺寸为70mm×30mm×25mm~30mm,可用耐酸砖加工,洗净晾干,用树脂胶泥呈十字交叉粘结在 一起,刮除多余胶泥。结合层的厚度应为2~3mm。在20~25℃养护14昼夜后,应进行粘结强度测定。将十字交叉的试件放在夹具 (附图3.3)内,应开动拉力机均匀加载,至试件拉开,记录拉力机读数,粘结强度以MPa表示。 |
建筑防腐蚀工程施工及验收规范GB50212-81 |
 (GB1720—79)执行。
八、陶管性能的试验法,应符合下列规定:
1.抗压强度的试验,应按《陶管抗外压强度试验方法》(GB2832—81)执行;
2.吸水率的试验,应按《陶管吸水率试验方法》(GB2834—81)执行;
3.耐酸性能的试验,应按《陶管耐酸性能试验方法》(GB2835—81)执行;
4.水压的试验,应按《陶管水压试验方法》(GB2836—81)执行。
九、氯丁胶乳水泥砂浆的强度测定法,应按《水泥胶砂强度检验方法》(GB177—85)执行。
十、氯丁胶乳水泥砂浆的粘结强度测定法,应符合下列规定:
1.与水泥砂浆的粘结强度测定:
采用养护好的40mm×40mm×80mm的水泥砂浆试块2块,将拌和好的氯丁胶乳水泥砂浆放在试块的中部,两块试块呈十字交叉粘在一起,结合层厚度为3mm,水泥终凝后铲去缝外的砂浆,干湿交替养护28昼夜后,应按本规范附录三中“水玻璃耐酸胶泥与耐酸砖的粘结强度测定”测定粘结强度。
2.与钢铁的粘结强度测定:
将直径35.7mm(端面的面积为1000mm2)试棒端面用0号砂纸打磨,并用酒精洗净烘干,用拌和均匀的氯丁胶乳水泥砂浆粘结2块试棒,缝宽为3mm,除去四周溢出的砂浆,养护28昼夜后,于拉力试验机上测定抗拉强度。
粘结强度应按下式计算:
式中R粘——砂浆的粘结强度(MPa);
P——破坏荷载(N)。
试验结果的取值,应按本规范附录三中“水玻璃砂浆和水玻璃混凝土抗压强度测定”的规定执行。
附录四本规范用词说明
一、执行本规范条文时,对于要求严格程度的用词说明如下:
1.表示很严格,非这样做不可的用词:
正面词采用“必须”; 反面词采用“严禁”。
2.表示严格,在正常情况下均应这样做的用词:
正面词采用“应”;反面词采用“不应”或“不得”。
3.表示允许稍有选择,在条件许可时,首先应这样做的用词:
正面词采用“宜”或“可”;
反面词采用“不宜”。
二、条文中指明应按其它有关标准和规范执行的写法为“应按……执行”或“应符合……要求或规定”。
附加说明
本规范主编单位、参加单位和主要起草人名单
主编单位:中国化学工程总公司施工技术研究所
参加单位:中国化学工程总公司第二建设公司
冶金部建筑研究总院
兰州化学工业公司化工建设公司
航空航天部第四规划设计研究院 化工部大连制碱工业研究所
主要起草人:杨路钧、唐荣植、徐兰洲、霍永志、文浩、汪家塘、卢天、孔德英、李昌木 |