办公楼空调改造施工组织设计方案

目录

              2

              3

              4

              4

              6

              10

              11

              17

              26

              29

              37

              47


竣工、服务及承诺

12.1工程具备验收条件后,由业主、监理、设计与我方共同对所施工项目按国家有关验收规范的相应规定进行检验验收,如检验符合规定要求,由业主开具竣工验收单作为竣工验收的依据。

12.2在竣工验收移交业主后,向业主提供如下培训服务: 

12.2.1向业主运行人员讲解本工程系统结构。

12.2.2向业主运行人员进行操作程序讲解。 

12.2.3向业主运行人员进行实际操作示范。  

12.2.4向业主运行人员讲解操作要领和注意事项。

12.2.5回答业主运行人员的有关疑问。

12.3本公司工程保质期为设备安装投入运行后两年,并且安装调试人员随时免费为业主提供服务,协助业主服务人员共同工作,保证全套设备安全正常运行。

12.4在正常使用期内,我方免费定期回访。

 

 

降低造价措施

11.1施工全过程应充分发挥科学技术是第一生产力的作用,做好科技开发工作,广泛推广应用新材料、新技术、新工艺,开展以增产节约为中心的技术革新、合理化建议等活动。

11.2加强现场材料保管工作,对不同材料或设备有不同的管理措施,进场时间要适宜,进场后应码放整齐、妥善保管、定量发放,防止材料设备的变形及损坏,并及时回收现场的剩余材料,确保现场整洁,防止丢失;

11.3施工中要坚持长材不短用,大材不小用,优材不劣用,做到活完脚下清,节约点滴材料。

11.4在大面积施工前做好样板,杜绝返工浪费现象。

11.5配合相关专业,合理安排工序,编制综合进度计划;避免重复施工和返修造成的浪费。

11.6在设备、材料采购方面,我公司在保证质量的前提下货比多家,选购质量价格比较好的东西。

11.7加强施工管理

通过采取以上措施加强施工管理,预计可以有效的降低施工成本,在现场经费、文明施工及环保管理增加费和企业管理费等方面可降低造价。

 

 

环境保护与文明施工措施

10.1依据公司的环境管理方针和已建立环境管理体系,加强环保意识,普及环保知识,教育施工人员施工过程中避免对环境的破坏。

10.2注意保护环境,加强材料管理措施,防止施工材料污染环境。

10.3施工现场注意节约用水,增强大家的节水意识。

10.4努力减少施工过程中产生的噪音,防止由此产生的扰民及噪音污染。

10.5现场材料和工具用具等码放整齐,加以标识。

10.6施工完毕,清理场地务必彻底,避免垃圾遍地的情况发生。

10.7现场外运建筑垃圾要采取遮盖措施,确保外运途中不造成遗洒。

 

 

成品保护措施

9.1工长应对该工程的成品保护工作全面负责,负有直接责任,应结合工程具体情况向有关施工人员做好成品保护交底;

9.2工人班组操作过程中对各种成品、半成品的保护负责,操作时,必须严格执行国家规范、规程、规定及企业工艺标准中有关成品保护的规定;

9.3安装完的管道、设备、保证表面光洁,暂停施工的系统,应将各开口处封闭,防止杂物进入;

9.4交叉作业较多的场地,严禁以安装完的管道作为支架。不允许将其他支、吊架焊在或挂在管道、法兰和管道支吊架上;

9.5设备系统接口前应认真检查设备内是否有异物,手动盘车确定无异物后,方可连接,安装就绪后,未正式移交使用单位的情况下,应有专人保护,防止损坏,丢失零部件。

9.6要严格按图、按工艺标准施工,施工中要密切配合相关专业进度,不颠倒工序,不得损坏结构;

9.7设备安装阶段采取挂牌制,任务落实到个人,防止脏物污染和砸碰损坏,结合现场情况制定保护措施;

9.8焊接施工中,要注意不得污染或损坏屋顶、墙面。

9.9弹线或射钉等工作更应注意不得损坏或污染墙面。

9.10设备等的搬运、贮存、安装均应轻拿轻放,妥善保管,精心施工,以避免造成损坏或丢失。

9.11要贯彻生产者对成品负责的原则和精神,要关心和爱护自己与他人的劳动成果,发现问题要及时处理;

9.12施工中,要随时提请其他工种施工、管理人员配合保护好本专业成品,要做好交工验收前后防损、防盗的措施;

9.13要加强思想教育,使职工牢固坚定爱护成品的意识,建立和执行奖罚制度,尤其对造成严重损失的责任者要给予适当的惩罚;

9.14保护各个工种的施工成品人人有责;全体施工及管理人员在提高成品保护意识、养成文明施工习惯的同时,要坚决与盗窃、破坏施工成品的现象作斗争。

 

 

安全生产及消防保卫措施

8.1认真贯彻安全第一,预防为主的方针,明确安全生产、消防安全责任制。

8.2进入施工现场,必须遵守施工现场安全管理制度,要戴安全帽,严禁吸烟;

8.3每日施工前,组长或施工负责员要根据当天的施工特点做口头安全和消防交底,并填写班前安全讲话记录;施工中要精神集中,不嘻戏打闹,每项工作均应遵守相关的安全操作规程,违者应予停工;

8.4施工现场内要注意各种危险信号及标志;

8.5电焊、气焊施焊应注意的事项:

8.5.1电焊、气焊施焊必须取得现场用火许可证,并持有劳动局颁发的特种作业操作证,消防局颁发的特殊工种考核合格证;

8.5.2施焊前应清理用火范围的易燃易爆物品,携带消防水桶并设专人看火;

8.5.3在隐蔽部位(如顶棚、夹层内等)使用电气焊时,工长必须向焊工进行书面交底,施焊完毕施工人员要请消防人员详细检查确无隐患后方可离去;

8.5.4电焊机设置的地点应防潮、防雨、防砸,焊机、把线移位或焊机移动时均需拉闸断电,每台电焊机必须装触电保护器;

8.5.5电焊机一、二次接线端子应有可靠的防护罩,焊把线与焊机和焊把连接应紧密牢固,焊把线应双线到施焊部位且中间无接头、无破损、绝缘良好;

8.5.6焊把不准与气焊的氧气、乙炔皮管放在一起,不能把焊把线盘在焊机或焊件上;

8.5.7气焊设备的安全附件应齐全有效,氧气、乙炔皮管完好无损,放置气瓶罐的位置和距离应符合安全要求;

8.5.8在焊接时,必须按操作规程和有关防火要求操作,以确保安全施工;

8.5.9成立义务消防队并设专人负责。

8.6高凳使用前应先检查其有无缺损并系好防滑绳,禁止二人同在一高凳上作业,禁止站在最高一层踏步上工作;

8.7没经过验收并交付使用的架子不准上人,交付使用的架子不得随意拆改;

8.8使用套管机、砂轮、无齿锯、电锤、电钻等电动工具必须绝缘良好,配电箱金属外壳、二层板、机具外壳应可靠接零或接地,并采用漏电保护装置,进口电动工具、未曾使用过的新型电动工具均应熟悉使用说明书后方可操作,各类电动工具应按期检测,及时保养,使用电动旋转工具不得戴手套;

8.9砂轮必须装设不小于180°的防护罩和牢固的工作托架,严禁使用不圆、有裂纹和磨损剩余部分小于25mm的砂轮;

8.10使用射钉枪不得摘下保护碗,使用时要先装钉子后装子弹,子弹由使用者负责保管,不得遗失或做他用,射钉枪要经常清洗保养,以确保枪支安全完好;

8.11局部照明灯、行灯、标志灯的电压不应超过38V,在特别潮湿的场所及金属容器内工作的照明电压不得超过12V;

8.12搬运料具、设备要求先勘察路面,排除路障,集体搬运要统一指挥,前后呼应,动作一致,车运料设备要绑扎牢固,垂直搬运不得超过吊车负载;

8.13使用电炉子要有批准手续,电炉子最好采用封闭式或半封闭式,且外壳要接零或接地,电炉子要安放在石板、砖等不燃材料基座上,其周围要有隔热防火的措施,使用中取放物品要先拉闸,使用完毕及时断电,待炉子冷却后收好;

8.14工长要根据施工建筑的特点、施工的对象、班组人员的状态等情况,按分项工程有针对性地做好安全和消防工作的书面交底,并协助施工班组落实具体的安全消防技术措施。

8.15夏季施工,必须认真执行分公司颁发的雨季施工措施,并由项目部编制具有针对性的季节施工措施交底,组织实施。

8.16吊装及搬运

8.16.1吊装工作的受力点应牢固可靠,吊点或锚点在建筑物上时应经核算,不允许任意将锚点栓于未经核算的砖柱、砖墙或其它建筑物上,防止破坏结构,造成事故。

8.16.2搬运重物时应统一指挥、协调一致。搬运前应将路线上障碍物清走,以确保安全。

8.16.3组装时,应握紧工具(扳手、锤子等),以免用力过猛而滑脱伤人。

8.16.4搬运设备等重物时,严禁非操作人员进入工作区,防止发生事故。起吊重物下严禁站人或行走。

8.16.5吊装用的机具吊索具等,在使用时要进行细致检查,不符合安全要求的不准使用,严禁超负荷使用。

8.16.6使用滚杠拖运设备,管子粗细应一致,填滚杠时,大拇指应放在滚杠的上表面,其他四指伸入管内,严禁戴手套和一把抓滚杠。

8.16.7在倒链吊起的部件下检修、组装时,应将链子打结保险,并必须使用道木或支架等垫稳。

8.16.8吊管或设备时,应先试吊后起吊。利用倒链时,必须绑牢固,并有防滑措施,设专人指挥,以免滑脱伤人。

8.16.9用小车运管或重物时,应先清理好道路,并把重物放在车上绑牢,以防滑下伤人。

 

工期保证措施

7.1在施工中保证千方百计克服一切困难,依据顾客方对工期的要求,严格按照甲方及其他有关单位批准的进度网络图进行施工,保证将工程按期优质地交给甲方。

7.2施工管理人员及班组要提前进入施工现场并熟悉图纸及施工工艺作法。

7.3施工过程中所需的材料、设备及各种机具要按施工进度有计划的组织进场。

7.4各分项工程应做到随做随检查,发现问题及时修改,避免大面积返工耽误工期。严格按进度计划施工。

 

 

质量保证体系及措施

6.1管理职责

6.1.1项目经理:

1.组织制定工程项目质量计划,确定质量目标,并组织实施。

2.坚持质量第一的方针,正确处理质量与进度的关系。对工程质量负责。

3.认真执行质量管理制度和质量控制程序,严格按规定程序操作。对项目部人员违反操作规程造成的质量问题负责。

4.组织好均衡生产,加强过程管理,确保施工全过程受控。

5.落实项目部人员的岗位责任制,对质量指标的完成负责。

6.定期召开质量例会,及时组织不合格品的质量分析会,提出纠正措施。及时向公司反馈各种质量信息。

7.督促检查各部门人员、操作人员做好生产过程中的各种原始记录,保证资料的完整性、准确性和可追溯性。

8.组织项目部职工的质量教育工作,支持职工积极开展QC小组活动。

9.参加招标文件、标书、合同评审工作,配合公司做好工程结算工作。

10.负责现场文明施工。

6.1.2现场材料员

1.协助公司材料供应管理工作。

2.根据施工工程的需求,将工长提供的材料计划整理并上报公司。

3.负责对顾客提供物资的验证、标识、记录、贮存、维护。

4.负责施工现场物资的质量验证。

5.负责施工现场物资的保管工作。

6.执行国家、地方的有关法规和公司质量方针,实现质量目标。负责现场施工机械设备的日常使用管理工作。

6.1.3工长

1.执行国家、行业、地方的技术标准和公司质量方针,实现质量目标。对所承担的分项、分部工程进度、工程质量负责。

2.参加工程设计交底,编制工程施工方案、质量计划、作业指导书和交底。编制施工进度计划。

3.负责工程任务书的编制、下达。按施工网络计划组织施工,保证施工过程符合图纸、规范、规程要求,使分项、分部工程质量达到规定标准。

4.负责具体组织自检、交接检,填写预检、隐检等工程质量记录,并组织分项工程质量检验评定。

5.收集、保管工程技术资料,保证有效文件及时送达有关施工人员。

6.负责编制工程物资计划及外加工计划。

7.填写施工日志。

8.配合有关人员对进场材料、物资质量把关。

9.负责成品保护工作,并配合有关单位做好工程回访保修工作。

6.1.4综合管理员

1.执行国家、地方的有关法规和公司质量方针,实现质量目标。

2.负责编制年、季、月生产计划,协助主管领导定期召开生产会。

3.检查施工作业计划的执行情况,掌握施工现场机械设备进出场情况。

4.编制统计资料及报表,建立统计台帐,为领导决策提供依据。

5.参加公司和现场生产办公会,并检查落实会议执行情况。

6.负责劳务、工资、统计、劳动定额、劳动合同、社会保险、劳动保护、职工管理工作。

7.建立合格分包方花名册,掌握分包人员变化情况。负责管理文件的收、发、借阅、保管工作。

8.负责计量器具的管理工作,保证在用器具处于合格状态。

9.督促使用人员对计量器具的日常维护保养工作,并进行检查。

6.1.5安全员

1.执行国家、地方的有关法规和公司质量方针,实现质量目标。负责生产安全管理工作。

2.协助主管领导和工长编制工程的安全技术措施,并监督措施的贯彻实施。

3.负责对进入现场的施工人员进行入场安全教育。协助组织对特殊工种操作人员进行培训,并办理上岗证。

4.负责对施工人员的安全操作进行监督、检查、指导。对违章指挥、违章作业、冒险蛮干现象进行制止,纠正和处罚。对不安全隐患督促有关人员进行整改。

5.协助主管领导对现场的各类安全事故进行调查、分析、记录、报告、处理及制定防范措施。

6.1.6质量检查员

1.执行国家、行业、地方的技术标准和质量检验评定标准,执行公司的《质量手册》和《程序文件》。

2.对工程质量负监督、检查责任,对分项工程质量评定结果负责。

3.负责向上级反映工程存在的质量问题,提出改正意见。

4.参加工程的隐、预检工作。

5.参加对不合格项和不合格物资的评审和处置,参加纠正和预防措施的制定。

6.负责对工程实体不合格品的标识、验证。

7.参加施工过程检验和最终检验,核定分项工程质量和观感评定质量。

8.负责对劳务分包方施工质量的监督检查。

6.2质量保证措施

6.2.1施工前应认真熟悉图纸,按照设计图纸、洽商、规范、图册,结合本方案要求明确做法;

6.2.2要与土建专业密切配合,凡需剔凿的应在土建装修前做完,剔洞尺寸及需断筋处应严格执行有关规定,须办理手续的应及时办理;

6.2.3每个分项工程施工前,工长应组织班组人员根据图纸及本方案有关要求,结合现场实际情况进行技术交底,不能盲目施工;

6.2.4各项技术资料应及时办理,手续齐全,严格执行有关规定,以保证竣工时按时上报;

6.2.5坚持按图施工,认真按工艺要求操作,对同类项目施工应做样板间、样板项,经检验合格后再大面积施工;

6.2.6一定要贯彻操作者对质量全面负责的方针,施工班组认真执行自检、互检,使工程质量牢固的建立在班组的基础上;

6.2.7质检人员要坚持质量评定标准。不姑息迁就,一定要把问题消灭在萌芽状态中,配合全体施工人员、管理人员确保工程质量;

6.2.8管路安装时,应考虑避开其他专业的管道,以防各专业相互交叉打架;

6.2.9施工班组对各种设备、管道的甩口、座标、标高要随时进行复查,凡超出偏差的应及时修复;对所有管道的设备甩口及敞口处都必须做到及时加堵、堵严;

6.2.10工长在编制分项工程技术交底时,要明确主要材料设备的选用;

6.2.11材料、设备的加工订货要严把质量关,每批订货应有书面技术质量交底;大批量的订货应按样品或样板进行生产;对进场的设备、材料、器具配件、加工产品等要及时进行检查验收,并收集产品合格证,达不到质量标准的应提出更换,否则不得安装;

6.2.12班组使用的各种机具分别按规定按期保养,达到机具的完好率和利用率的要求。

6.2.13为防止因管材质量、施工操作质量及其他工种施工造成管路堵塞,管道安装时应采取防堵预防措施:

1.检查管材质量,应管径标准、壁厚均匀、无劈裂、无棱刺、无砂眼、不凹扁,小口径管子可使用吹气法检查管子是否畅通,不合格管材严禁使用;

 

 

土建部分

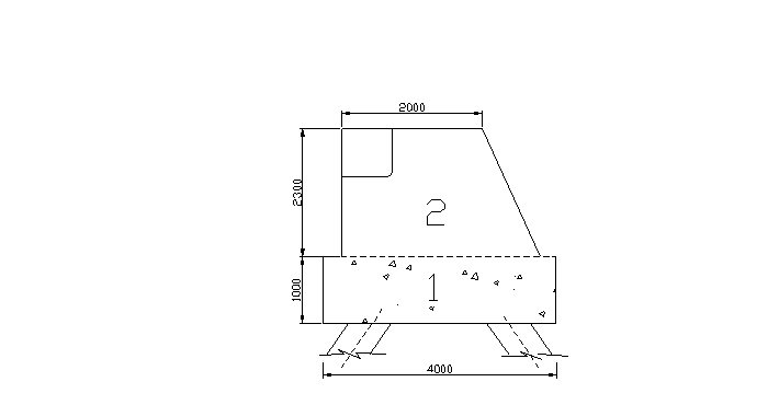
5.1概况

5. 1部大楼空调机组改造工程在新楼地下室,共三间房间:泵房两间和一间冷冻机组房;原冷冻机房及泵房地面为水泥砂浆地面,轻钢龙骨吸音石膏板吊顶,墙面为轻钢龙骨吸音石膏板、内加岩棉保温层。

5. 1泵房间地面需要拆除,重铺地砖地面;原吊顶已损坏,需要拆除重作,作轻钢龙骨矿棉吸音板吊顶;施工中尽量保护,在安装完毕后局部修复,重刷乳胶漆。机组房间地面不拆除,在原有地面上铺地砖。

5. 1泵房及机组房间的基础不拆除,在原水泵基础上重新作C25砼基础;冷冻机组基础重作钢板;水处理器作槽钢基础。

5. 1屋面冷水塔拆除,重作I25钢基础;利用原有基础及基础上的钢板,将工字钢焊接成钢网架,架在原有基础上。

5. 1.  5地面作排水沟、配电柜基础和砌砖电缆沟。

1.  6 原屋面防水已大面积空鼓、损坏,需要重新铺贴;防水作法:二层SBS防水。

5.2施工布署

5. 2本工程以空调机组改造为主,土建工程为辅,配合空调机组及管道安装。土建施工要穿插在机组与管道施工的过程中。

5. 2在冷却塔配管完毕后,进行层面防水层的施工。在屋面上部冷却塔及管道安装过程中,要注意原有防水层的保护,以防止下雨影响下部办公室的正常办公。

5. 2在室内管道安装完毕后,在430左右,即可进行室内吊顶及墙面的施工。吊顶及墙面的施工要分成三间不间断的施工,同时保证保温及试水的进行。

5. 2室内地面的施工从系统调试及试运行开始后可开始,在地面施工时,中间可进行管道的调试等。地面施工要分成三部分组成小面积的流水施工。地面施工时注意地面的标高及与调试的配合,以确保地面的铺贴质量。

5. 25   冷水泵基础,砖砌电缆沟,冷却机组的钢板基础和配电柜及起动柜的基础要在机组等进现场前施工完毕。排水沟可在机组及管道安装完后施工。

5. 2.  6   屋面冷却塔支架及各钢件焊接后作好防腐.

5. 27    屋面冷却塔支架焊接质量要求高,由管道焊接人员施工。施工过程保证三台冷却塔的基础底平标高相同。

2. 8工字钢直接吊运到屋面进行焊接操作。

52. 9  在屋面进行拆除及进行钢架焊接时,要注意屋面防水的保护:在拆除时,在较重的钢材下面铺垫木方;在焊接作业时,在施焊面的下部铺上钢板,防止焊渣等烧坏防水层;在拆除屋面防水时,要作好防雨准备,备好塑料布等,在屋面开口处封盖。

5210 机关大楼为国家重要工作部门,为保证其正常工作,如凿墙、打孔及管道焊接和大型管材的吊运,均安排在夜间进行施工。

5211 屋面施工中要作好防尘及防火工作。

5.3 主要工程量

 

 

序号

工程项目名称

单位

数量

备注

1

轻钢龙骨矿棉板吊顶

M2

247.6

 

2

地砖地面

M2

230

 

3

轻钢龙骨石膏板墙面

M2

待定

 

4

屋面防水

M2

540

 

5

冷却塔工字钢基础

T

5

 

6

地面砼垫层

M3

13

 

7

排水沟其它用砼C20

M3

4

 

8

冷水泵基础砼C25

M3

2

 

5.4主要劳动力的安排

序号

工种

人数

备注

1

木工

6

 

2

瓦工

4

 

3

壮工

6

 

4

焊工

1

 

5

其他

2

 

5.5 主要的施工方法

 

5.  5.1  轻钢龙骨石膏板吊顶施工工艺

a.工艺流程:弹顶棚标高水平线划分龙骨分档线安主龙骨吊杆安主、次龙骨安罩面板(及刷防锈漆)

b. 弹顶棚标高水平线:据楼层标高线,测量顶棚设计标高,在墙和柱四周弹顶棚标高水平线;

c.划分龙骨分档线:按设计要求或施工标准中的主次龙骨的间距布置,在已弹好的顶棚标高水平线上划龙骨分档线;

d.安主龙骨吊杆:按已弹好的分档位置,确定吊杆下端标高,在顶板上打孔,用膨胀螺栓将吊杆固定在楼板上,吊杆等铁件应刷防锈漆;

e. 安主龙骨、次龙骨:按设计要求方向将主次龙骨吊挂在吊杆上;

f. 安罩面板及刷防锈漆:在安装罩面板前应对顶棚内的各种管线检查验收,合格后才能安装罩面板; 托卡固定法:采用T型龙骨时,罩面板由顶棚中平行次龙骨的一端开始,先装一根卡档次龙骨,再将板槽托入T形龙骨翼缘,然后安装另一侧卡档龙骨,按上述程序分行进行安装。

g、质量要求:龙骨应无变形,且要顺直;罩面板表面平整、洁净和无反锈等;

 

 

 

 

 

 

 

 

 

 

h.轻钢龙骨罩面板顶棚允许偏差:mm

项次

项类

项  目

石棉板

检 验 方 法

1

 

龙骨

龙骨间距

2

尺量检查

2

龙骨水平

2

尺量检查

3

起拱高度

±10

短跨1/200拉线尺量

4

四周水平

±5

尺量检查

5

 

罩面板

表面平整

3

2靠尺检查

6

接缝平直

3

5米线检查

7

接缝高低

1

用直尺和塞尺检查

8

四周水平

±5

拉线检查

9

压条

压条平直

3

5米线检查

10

压条间距

2

尺量检查

5 .5地砖铺贴工艺

基层处理----水泥砂浆打底----做冲筋----抹找平层----规方、弹线、拉线----铺贴地砖----勾缝----养护

层清理:基层上有油污的,需要10%火碱水刷洗干净后用清水冲洗扫净;扫除地面浮尘;松动处剔除后补强。

水泥砂浆打底:在清理好的基层上刷素水泥浆。在基层上洒水润湿后撒素水泥面,用扫帚扫匀。

做冲筋:房间四周从+500mm水平控制线下返,弹出地面砖上平线和找平层基准上平线,用与找平层相同的水泥砂浆抹标志块与找平层上口线平齐,然后做冲筋。在房间中每隔1.5左右作一道冲筋,有地漏处向地漏处做5%坡度的放射状冲筋,以保证地漏处为最低。冲筋使用干硬性砂浆,厚度控制在2030mm左右,然后拍实,再用杠尺刮平,使展开的砂浆与冲筋找齐

抹找平层:用1314的水泥根据冲筋的标高填砂浆至比标筋稍高一些,用大靠尺检查其平整度及标高,然后用木抹子搓毛,24小时后洒水养护找平层。

在房间内纵横方向排好尺寸,将缝宽计算在内。当尺寸不足砖的整倍时,用切砖机切割成小块用于边角处,当尺寸相差较小时用调整砖缝的方法解决。据确定后的砖数和缝宽,先在房间中部弹十字线,然后弹纵横控制线,每隔24块砖弹一根控制线或在房间四周贴标砖,以便拉控制线控制方正和平整度。

铺贴地砖:从门口开始,纵向先铺几行砖,找标准,标砖高应与房间四周墙上砖面控制线齐平。两间相通房间则应从两高度间相通的门口划一中心线相通两间房,在中心线上先铺一行砖,以此为准,向两边铺贴。具体操作方法是:先在找平层浇水泥素浆,扫平,边浇浆边铺砖,在砖背面抹满、抹匀12.5的粘结砂浆,厚度为10~15mm,砂浆应随拌随用。按照纵横控制线将抹好砂浆的地砖,准确地铺贴在浇好水泥素浆的找平层上,砖的上口要跟线找平,要随时注意横平竖直,然后用木拍板敲实、找平,并要经常用八字尺侧口检查砖的平整度。

勾缝;将铺好的地砖稍放一会后,待其增长些强度,再在砖面上洒水、湿润砖面,撒干水泥面勾缝隙,用扫帚将灰浆扫入砖缝内,最后用锯末或棉丝将灰浆擦净。

养护:地砖铺完后,应放置48小时后洒水养护3~4天。养护期间不得上人。

质量标准:地砖地面面层的允许偏差和检验办法

单位:mm

项次

项目

偏差

检验方法

1

表面平整度

4

2靠尺和楔形塞尺检查

2

缝格平直

3

5拉通线和尺量检查

3

接缝高低差

15

尺量和楔形塞尺检查

4

间隙宽度不大于

2

尺量检查

l. 施工中常见通病及防治措施:

(1).泛水过小或局部倒坡是因为地漏标高过高、基层的小坑、基层坡度末找好。防治措施给准墙上+500mm水平线,地漏的标高要准确,并要根据放射标筋的标高和坡度施工,应使地漏低于周围面层5mm

(2).地面不平,出现小的高差:砖的厚度不一致,没有严格选砖;地面不平或铺砖末拍平、敲实;上人过早;养护不利等造成。防治措施:首先要选好砖,不合规格、不标准的砖不用;铺贴时要拍平、拍实;严防上人过早,撒锯末养护到了天数以后方可上人。

(3).面层空鼓:原因一:基层清理不净,浇水不透,早期脱水所致;二是上人过早,粘结砂浆末达到强度时受外力振动而使面砖与粘结层脱离所致。防治措施:加强基层清理和施工前基层的检查;注意控制上人施工的时间;加强养护工作。

m.成品保护要求:

(1) 施工时,不得破坏成品和半成品。要用围挡或钉木箱子扣上,或)利用脚手架满铺,以免掉物砸碎设备等。

(2) 地砖铺完后,要关上门或设围挡,将铺完的地砖保护住,防止上人过早。

(3) 在地砖上进行施工时,不得向地面上扔工具和其它物品,防治将地砖砸碎。

 

电气工程

本阶段为整个工程的重中之重,穿线缆、安装箱盒及器具、安装灯具都在此阶段完成。

8.5.1工艺流程:

管道埋设  扫管穿带线 穿电缆电线  →  箱盒、器具安装

→  灯具安装及保护 

(1) 管路检查,清点出线口位置、数量无误后开始扫管。

(2) 管内穿线(缆)工程 工艺流程:




                                               

                                 




                                           

(3) 考虑导线(电缆)截面大小,根数多少,将导线(缆)与带线进行本

管内穿线工艺流程:

4.1选择导线:

4.1.1应根据设计要求选择导线。

4.1.2相线、零线及保护地线的颜色应加以区分,用黄绿双颜色的导线做保护地线,淡蓝色为工作零线。

4.2穿带线,扫管

4.3放线及断线

4.3.1放线前应根据施工图纸对导线的规格、型号进行核对。

4.3.2放线时导线应置于放线架及放线车上。

4.3.3接线盒、开关盒、插销盒、及灯头盒内导线的预留长度应为15cm

4.3.4配电箱内导线的预留长度应为配电箱体周长的12

4.3.5公用导线在分支处,可不剪断导线而直接穿过。

4.4导线与带线的绑扎

4.5管内穿线:

4.5.1同一交流回路的导线必须穿于同一管内。

4.5.2不同回路、不同电压和交流与直流的导线,不得穿入同一管内,但以下几种情况除外:

1.标称电压为50V以下的回路;

2.同一设备或同一流水作业设备的电力回路和无特殊防干扰要求的控制回路;

4.5.3导线在变形缝处,补偿装置应活动自如。导线应留有一定的余量。

4.5.4敷设于垂直管路中的导线,当超过下列长度时应在管口处和接线盒中加以固定:1)截面积为50mm2及以上的导线为30m;截面积为7095 mm2及以上的导线为20m;截面积为180240 mm2之间的导线为18m

4.5.5穿入管内的绝缘导线,不准接头和局部绝缘破损及死弯。导线外径总截面不应超过管内面积的40%。

4.6导线连接

4.7线路检查及绝缘摇测:

4.7.1线路检查:接、焊、包全部完成后,应进行自检和互检;检查导线接、焊、包是否符合施工验收规范及质量验评标准的规定。检查无误后再进行绝缘摇测。

4.7.2绝缘摇测:线路的绝缘摇测一般选用500V、量程为0500MΩ的兆欧表。

 

空调工程安装

3.1 工程概况

本工程为国家安全生产监督管理局办公楼空调系统改造工程,施工范围主要为地下室制冷机房内设备及管道全部改造,屋顶冷却塔及管道更换。

地下室冷冻机房设约克水冷螺杆式冷水机组3台,型号为YSEAEXS45CIE型,单台制冷量为350RT,即标准工况制冷量为1231KW;设有卧式离心冷冻水泵NP125/315V-30/43台,卧式离心冷却水泵NP125/315V-37/43台;冷冻、冷却水系统设有全程水处理器各1台。屋顶设角型横流式冷却塔CTA-300UFWS3台。

冷冻水系统供、回水温度为712℃,采用高位膨胀水箱补水定压,冷却塔进出水温度为3732℃

3.2工艺流程(见下图)

 

安装准备 基础施工 设备安装 →  干管及阀门安装

 

支管及阀门安装 设备配管    管道试压 管道冲洗 管道保温

 

单机运转  系统试运行 

 

 

 

3.3系统施工做法及要求

3.3.1空调水管道施工要点

1)材料、设备要求

1)各种管材、角钢、槽钢及各种阀部件在进场后必须认真检查,必须符合国家或部颁标准,并有材质及产品合格证。

2)设备开箱检查:建设单位、监理单位、设备供方及施工单位共同参加,开箱前检查包装外观有无损坏和受潮;开箱后认真检查设备名称、规格、型号是否与图纸相符,说明书、合格证是否齐全;按装箱清单和设备技术文件,检查主机,附件、专用工具是否齐全;设备表面有无缺陷、损坏、锈蚀、受潮等现象;将检验结果作好记录,参与检查人员签字盖章,作为交接资料和设备技术档案依据。

3)设备进场后核对设备基础预留螺栓孔及基础尺寸。

2)套管安装

冷冻、冷却水管道穿墙均须加套管,套管采用厚1mm的钢板卷圆而成。根据所穿墙的厚度及管径尺寸确定套管规格、长度,下料后套管内外均刷防锈漆两道。管道安装时,把预制好的套管穿好,除特别外,管道与套管之间的间隙用保温材料密实填充。

3)型钢支、吊架安装

1)管道支、吊架做法详见《91SB6》,空调冷冻供回水管与其支、吊架之间采用与保温层厚度相同的经过防腐处理的木托防冷桥。

2)管道先放线,按设计图纸和要求测定好吊卡位置和标高,找好坡度,墙上生根支架,将预制好的型钢吊架放在剔好的洞内,再用M20细石混凝土或水泥沙浆填入洞内,塞紧抹平;顶板或梁上生根支架,在保证结构安全之下,用胀栓固定。

3)所用型钢先调直后下料,边长50mm型钢用机械切割;直径13mm的孔采用机械钻孔,不得用汽焊切割。

4)型钢与支吊架焊缝要饱满、牢固并刷两道防锈漆。

4)管道安装施工方法

1)冷冻、冷却水管道均采用热轧无缝钢管,焊接或法兰连接;冷却塔补水管、管道泄水管采用热镀锌钢管,丝扣连接。

2)管道焊接要求

管路焊接前清理焊口,不能留有油漆等杂物。

焊条的强度选择要不低于母材强度。

焊缝用全熔透式,插入部分不能超过管壁,焊缝最少要两层。环境温度低于-17℃,不可进行焊接。

焊接点要层式,焊纹一致。当完成第一道焊道后,清理焊面焊渣后再焊第二层。管道的焊缝不得埋于墙内或不便于维修的地方。

管壁厚5mm必须铲坡口并清除氧化皮。坡口角度、钝边尺寸、对口间应符合规范要求。

法兰不得直接焊在弯头处,焊口距法兰不小于一个管径且100mm,焊缝距管道支吊架50mm

3)管道安装前必须清除内部污垢和杂物,安装中管道敞口处应及时封堵。成排管道的间距应保持相等,保温管道应留出保温量。

4)各种阀门在安装前应作强度及严密性实验,合格后方可使用。

5)与设备连接的管道,连接前必须将管内冲洗干净,冲洗到见清水为止,固定焊口应尽量远离设备,以减弱焊接应力的影响设备连接后,不允许对设备产生附加外力。

5)管道试压

1)保温的管道在隐蔽前做好单项水压试验。管道系统安装完毕后进行系统试压。冷冻水系统的试验压力为工作压力的1.5倍,应先将压力升到试验压力0.8MPa,观察10分钟,压力降≤0.02 Mpa,工作压力下检查无渗漏为合格。水压试验时放净空气,充满水后进行加压,压力升到规定要求时停止加压,进行检查,如各接口和阀门均无渗漏,持续到规定时间,观察其压力下降至允许范围内,通知有关人员验收,办理交接手续。然后把水泄净,待做完防腐处理,再进行隐蔽工作。

2)试压范围为机房内冷冻水系统及全部冷却水系统,因此,试压前用阀门或盲板将试压范围外用户系统隔离开。

6)管道系统冲洗

1)管道试压合格后,调试、运行前进行管道系统的冲洗。

2)管道冲洗进水口及排水口选择适当位置,并能保证将管道系统内的杂物冲洗干净。

3)冲洗时以系统内可能达到的最大压力和流量运行,直到流出的水无污物为止(以目测出水口与进水口水色一致)。

4)冲洗时将设备隔离开,特别是冷水机组不能进污物。

7)防腐与保温

1)防腐:管道应在涂漆前进行表面除锈去污,非保温管道刷铁红防锈漆两道;保温管道刷防锈漆两道,设备的支吊架均应在除锈后刷防锈漆两道,银粉两道。

2)保温:空调冷冻水管、地下室冷却水管均采用黑色难燃橡塑管壳保温,冷冻水管保温厚度为20㎜,地下室冷却水管保温厚度为10㎜,保温接缝间先用专用胶水粘接严密,再用黑色专用胶带缠紧,不得存在漏气现象。

3.3.2设备安装

1)设备开箱点件

设备在运输就位前必须进行开箱验收,协同业主代表检查外观有无一次搬运造成的损伤,有无保管不善造成的锈蚀进水问题,检查设备零部件是否符合装箱单,并做好四方签认记录。主要检查项目有:

外观检查;

出厂合格证;

设备性能说明;零部件的数量。

2)设备运输

设备运输时用卷扬机拉地平车或用木排、滚杠、倒链等方法按预留的设备口水平或垂直运输到位,冷却塔用吊车送至屋顶。

3)设备安装

所有设备安装前应核对设备订货单,设备合格证及设备基础,并在基础验收合格后方可进行安装。

设备安装前进行检查,清洗干净,并按厂方提供的说明书要求及严格招待国家标准GB502432002,《通风与空调工程施工质量验收规范》和华北标图集《91SB6》有关的设备安装条款要求。

4).隔震减噪

水泵、冷水机组应按设计要求做好减震措施。

3.3.3 试车及调试

1.设备单机试转 :水泵及冷却塔风机均要按规范进行单机运转。

2.系统调试

本工程按合同所规定的范围全部安装完工后按有关规定认真进行水系统调试。

3.作业条件:
      1) 本空调水系统必须安装完毕,运转调试之前会同业主进行全面检查,全部符合设计、施工质量验收规范的要求后,才能进行运转和调试。

2) 通风空调系统运转所需用的水、电、汽及压缩空气等,应具备使用条件,现场清理干净。
      3) 运转调试之前做好下列工作准备:
      应有运转调试方案,内容包括调试目的要求、时间进度计划、调试项目、程序和采取的方法等。
      按运转调试方案,备好仪表和工具及调试记录表格。
      熟悉空调水系统的全部设计资料,计算的状态参数,领会设计意图,掌握冷源系统、电系统的工作原理。
     4)系统调试之前,先应对水泵及冷却塔进行单机试运转,设备完好符合设计要求后,方可进行系统调试工作。

4.系统调试:根据设备说明书及设计图纸编制调试方案。

 

施工部署

按照设计和有关标准、规范及甲方代表按合同发出的指令要求并接受监督部门和甲方检查监督,依据国家施工质量验收规范标准要求,工程质量达到优良标准,同时建立健全质量保证体系、制定质量保证措施,确保达到质量目标。

我公司将按照公司质量保证体系和环境体系的要求,对工程的施工管理、竣工交付使用及服务,进行全过程的质量管理和控制,恪守本公司的质量方针。在工程的施工中,实现一流的服务和一流的管理,本着干一个工程,交一方朋友的宗旨,切实在本空调工程中创出精品。

2.1施工准备

2.1.1工程施工图是施工的主要依据,平面图上表明了管道部件及附属机构在建筑物内的平面坐标,剖面图表示了其安装标高尺寸,施工时两者应互相对照,施工图的设计说明包含了工程性质、规模、服务对象和系统的工作原理、系统的设计参数、系统的划分和组成、施工质量和特殊施工方法,因此施工前应认真熟悉工程施工图,并对以上问题作到心中有数。结合原冷冻机房实际情况,弄清冷却水系统、冷冻水系统的划分,弄清冬、夏季系统功能切换的阀门及所在部位,弄清原系统甩口并注明,以便新安装时管道准确碰头。结合现场实际情况,研究设计方案的可行性。

2.1.2施工前参加由建设单位、监理单位、施工单位联合组织的图纸交底,从施工操作的可行性、方便性、安全性提出意见和建议,并接受设计单位技术交底、办理图纸变更手续。由施工技术人员根据设计图纸、施工方案、施工验收规范、质量评定标准向上岗人员进行安装技术交底和安全技术交底并办理有关手续。

2.1.3技术资料应按设计要求选用国标、院标、图集和其他技术资料,同时对于设备及配件的生产厂家产品说明书中的型号规格、尺寸进行核对。

2.1.4 依据ISO9001质量管理和质量保证标准编制工程项目质量计划,确定关键工序并编制作业指导书。

2.1.5 收集已建工程质量通病信息,明确施工重点与难点,设置质量管理点,制定相应的质量保证措施。

2.1.6作好现场暂设用水用电,平整施工现场,清理地下机房及施工道路,做到三通一平。作好现场围护及安全设施。

2.1.7 机具准备

根据甲方对工期的要求,本工程在施工机具的选择上本着精而全的原则,以保证施工任务的顺利完成。具体的施工机具配备如下表

                主要机具需用计划表                                                          

序号

机具名称

规格型号

单位

数量

1

交流电焊机

AC-380V

3

2

气焊工具

 

3

3

大、小套管机

 

1

4

倒链

 

1

5

砂轮锯

 

2

6

台  钻

 

1

7

角向磨光机

 

2

8

手动试压泵

 

1

9

电  锤

 

4

10

电动起重葫芦

1T

1

11

千斤顶

3T

2

12

小推车

承重1

1

 

2.1.7劳动力准备

由于工期十分紧,我公司将集中熟练工人进行该工程的施工,确保施工任务的顺利完成。具体的劳动力安排如下表

 

序号

工  种

数量

1

管  工

12

2

焊  工

5

3

电  工

10

 

 

 

 

2.2施工人员及进度部署:

现场施工组织机构和主要管理人员

2.2.1项目经理部组织机构

为了加强项目管理保证工期质量目标的圆满实现,公司将调集具有同类似工程施工经验,综合素质高、管理能力强的人员,设置机构图如下:

 

 

项目部组织机构表

序号

职 务

姓 名

职 称

1

项目经理

康俊利

工程师

2

技术主任

何  强

工程师

3

电气工长

程军飞

工程师

4

预 算 员

毛志杰

 

5

暖通工长

姬生忠

 

6

土建工长

刘良平

 

7

安 全 员

周国栋

 

8

材 料 员

刘  东

 

9

质 检 员

史晓东

 

10

资 料 员

张家驷

 

 

 

 

 

    2.2.2工期:61保证系统正式运行,具体进度计划见下表:

施工进度计划表

时间(2003年)

劳动力(人)

    

地下室设备基础施工

32443

6

冷冻、冷却水泵要求月底前进场,全程水处理器、机组进场时间不迟于410

屋顶冷却塔基础

4月10日前

8

冷却塔进场时间不迟于415

地下室冷冻、冷却供回水干管

414月14日

10

331前彻底拆除机房内冷冻供回水干管及机组

屋顶冷却供回水干管

45415

6

 

干管试压及冲洗

413415

6

 

设备稳装

41415

10

冷冻、冷却水泵要求410日前稳装完毕

泵房设备配管

411415

10

阀门等410日前进场,电动阀进场时间不迟于415

冷冻机组及冷却塔配管

415420

10

阀门等410日前进场,电动阀进场时间不迟于415

系统试压及冲洗

421423

6

 

各系统完善、及潜污泵安装

421431

10

 

管道保温及标志

421431

4

 

系统充水、设备单机试运转

42555

10

设备单机试运转可用临时电

系统调试及试运行

56525

6

必须具备正式通电调试条件

竣工交验

525531

4

 

 

2.2.3质量目标:优良。

2.3各工种之间的施工配合

(1)管道、电气专业安装的配合

由于管道规格较大,其上方有桥架等电气管道,各工种施工应严格按图纸的标高安装。施工安装前绘测综合布置图,发挥整体协调控制能力。指导原则是小管道让大管道,有压管道让无压管道,先上后下的原则进行安装。

(2)隔热保温施工

按施工作业分段、分系统,管道安装完后,应及时进行水压试压,分验合格后交保温施工。

(3)设备安装与管道、电气的配合

设备到货后,应尽快就位,为管道配管和电气接线创造条件。

(4)设备试运转及空调调试的配合

设备试运转应由电气先做电机单机试运转,测试合格(如冷却塔、水泵、风机)后,再运转设备进入调试。

设备试运转(如冷水机组、冷却塔)应按合同要求进行。安装各专业、监理、厂家组成调试小组,进行试车调试,到时应编制调试方案。

5)安装与土建的配合

i剔凿的配合

不得随意割断建筑钢筋。与土建结构有矛盾处,应及时与设计、土建、监理协调解决。

ii设备基础及预留孔洞的配合

设备基础应尽早浇筑,设备安装时强度应达到70%以上,基础位置尺寸和留孔间距由土建放线,安装复查,并办理基础交验手续。

iii成品保护的配合

安装施工不得随意在墙体上剔洞,安装施工应注意对墙面吊顶的保护。

土建施工人员不得随意损坏已安装好的管路、线路开关、阀门。

2.4与业主、监理单位配合

(1)业主供应的设备和材料及业主确定厂家的产品,业主应按施工单位的进度计划及时提供。

(2)业主按规定的数量及时提供图纸资料。安装过程中的重大变更由业主与设计单位协调。

(3)在施工过程中,配合业主和监理部门对安装质量进行监督,设备开箱检查、隐蔽验收、试压、试车应请业主、监理公司参加和验收。

(4)业主按施工进度及时解决工程进度款和设备订货款。

2.5特殊环境作业部署

因施工环境特殊,必须采取相应的方案,以便顺利施工。

1屋顶冷却塔安装及配管:为避免因施工影响办公楼正常上班,屋顶设备及管道均利用周末由南外檐用吊车集中一天垂直运输,为节约机械台班及便于统筹安排,存于屋顶的拆除设备及管道新安装时同新设备及管道一块吊运。

2)地下室设备及管道运输方案:由北边首层地面原预留设备吊装孔进出,吊装孔正上方设大型门字架,用吊链及电动起重葫芦垂直运输。因吊链起重时噪音较大,为减轻影响,大型设备及管道晚间或周末吊运。

3为避免因施工影响办公楼正常上班,施工人员及料具进出均由设备吊装孔进出,吊装孔四周应做好安全防护栏。

 

 

编制依据

 

1.1、建设单位及设计单位交底

1.2、设计新、旧图纸

1.3、规程、规范、标准及图集

《建筑施工安全生产手册》

《通风与空调工程施工质量验收规范》          GBJ50243-2002                

《建筑安装分项工程施工工艺规程》(第三册)      DBJ01-26-96      

《北京市建筑工程暖卫设备安装质量若干规定 》质检总站036

《建筑工程资料管理规程》                    DBJ01-51-2003  

工业金属管道工程施工及验收规范》             GB50235-97 

《机械设备安装工程施工及验收规范通用规范 》    GB50231-96 

《压缩机、风机、泵安装工程施工及验收规范》       GB50275-96 

《建筑设备施工安装通用图集暖气工程》                91SB1  

《建筑设备施工安装通用图集通风与空调工程》          91SB6

《电气装置工程施工及验收规范》

《建筑电气安装工程图集》

《混凝土工程施工验收规范》                    GB50204-95

 

 

施工组织设计

1、概况

1.1工程简介

    中心渔港一期工程位于舟山本岛普陀山浦东西两侧。

1.1.1工程内容

1)中心渔港:300-500吨级浮码头栈桥四条(3#栈桥140.5*64#栈桥

136.5*65#栈桥137.1*66#栈桥133.3*6),8个撑墩。

2)渔政东海基地:千吨级固定码头一座(平台104.0*101#栈桥165.5*6

米),浮码头2#栈桥148.1*63个撑墩。

1.1.2工程结构

1)引桥结构:靠岸的九跨采用Ф800mm钻孔灌注桩基础,每个排架2根,排架间距为9.5-10;其余靠海打桩船能进入的地方采用600*600mm预应力钢筋混凝土空心方桩。桩上为现浇横梁,横梁上搁置预制空心大板。

2)撑墩结构:采用600*600mm预应力钢筋混凝土空心方桩基础,每个

撑墩4根桩,上部结构为现浇墩台结构。

3)码头结构:1000吨级码头采用高桩梁板结构。总长104,分为各52

米的2个结构段,宽10,桩基为600*600mm预应力钢筋混凝土空心方

桩,排架间距7,每个排架4根桩,桩上为现浇横梁,横梁上搁置纵梁,

面板为叠合板。平台前沿设置人员上落的踏步平台及固定钢爬梯。

 

1.1.3主要工程数量表

    根据投标文件,本次投标的主要工程数量见下表:

主 要 工 程 量

序号

工程项目

单位

工程数量

中心渔港

东海基地

合计

1

钻孔桩工作平台

m2

1754

875.8

2629.8

2

钻孔桩钢护筒埋设

t

22.234

11.12

33.354

3

水上钻孔灌注桩成孔

m

2255

1160

3415

4

800mm钻孔灌注桩(C30)

/m3

72/1347.8

36/729.28

108/2077.1

5

800mm钻孔灌注桩钢筋

t

84.528

42.266

126.794

6

600*600预制方桩(C45)

m3

949.78

1115.83

2065.61

7

预应力方桩施打

88

108

196

8

现浇纵横梁(C30)

m3

497.52

768.66

1266.18

9

现浇混凝土板及板接缝

m3

54.31

63.11

117.42

10

现浇码头及引桥面层

m3

525.7

416.5

942.2

11

现浇引桥墩台

m3

106

26.5

132.5

12

现浇护轮坎

m3

62

48.3

110.3

13

现浇撑墩

m3

280.75

105.28

386.03

14

制安靠船构件

/ m3

 

16/19.76

16/19.76

15

制安水平撑,剪刀撑

/ m3

 

18/22.82

18/22.82

16

制安纵梁

/ m3

 

56/181.8

56/181.8

17

制安空心板

/ m3

 

130/174.46

130/174.46

18

制安空心大板

/ m3

224/989.96

132/572.4

356/1562.36

19

预应力钢筋

t

110.062

122.467

232.529

20

预制件钢筋

t

181.283

163.945

345.228

21

现浇钢筋

t

85.821

87.766

173.587

22

150KN系船柱

9

9

18

23

预埋铁件

t

8.397

9.449

17.846

24

橡胶支座

936

546

1482

 

1.1.4施工技术标准

本工程施工中的所有材料、设备、工艺和施工质量均符合如下技术规范的要求,施工组织设计的编写遵循施工技术规范和工程质量检验评定标准,    本工程施工及验收应遵循的主要施工技术规范和验收标准如下:

1)交通部《水运工程混凝土施工规范》(JTJ268-96);

2)交通部《水运工程混凝土质量控制标准》(JTJ269-96);

3)交通部《港口工程地基规范》(JTJ250-98);

4)交通部《高桩码头设计与施工规范》(JTJ291-98);

5)交通部《港口工程质量检验评定标准》(JTJ221-98);

6)国家和地方政府颁布的有关技术法规和规范。

    在工程施工期间,如上述标准或规范有修改或重新颁布业将遵循执行。

1.2、自然条件

1.2.1气象

工程位于舟山本岛,地处纬度地带,属北亚热带季风海洋性气候。冬季受蒙古高压的控制,盛行偏北和西北风;夏季盛行温热的东南风。

该地区常风向为NSE,频率为11%;其次为NWNN向,频率为9%。实测最大风速为18m/sESESSENW)。多年平均风速为3.97m/s

1.2.2水文

码头处的潮汐变化过程属于不规则半日潮型,港域内潮流呈往复流,涨潮由东南向西北,落潮由西北往东南。涨潮流速大于落潮流速,潮流流向与水道走向一致。

    设计高潮位:+1.96m

    设计低潮位:-1.65m

    极端高水位:+2.92m

    极端低水位:-2.31m

根据舟山市水文站提供的高程基准面资料,85国家基准面在定海潮站基准面以上7.538m

码头位置处的波要素是:H1%=1.74mHs=1.15m,波向135°,波长21.9m,原始波向SE

1.2.3地质

根据所提供的设计图纸的说明,工程区的地质情况,其土质分为7个地质单元体:

1)淤泥:层厚度约为0.3-1.4m,土层压缩性大,物理力学性质较差,不能作为基础持力层。

2)淤泥质粉质粘土:层厚度约为13.6-36.7m,顶板标高约为1.2-8.7m,土层压缩性大,含水量较高。

3)粘土:层厚度约为13.1-14.7m,顶标高约为-22.6- -23.5m,该土层的地基承载力较高,但土层分布不均匀,大部分钻孔中未见该土层。

4)粉质粘土:层厚度约为5.4-42.2m,顶标高约为-19.9- -38.5m,土层分布较为均匀,地质承载力较高,是桩基的持力层。

5)砂层:以中细砂、中粗砂为主,层厚度约为0.7-3.7m,顶标高约为-31- -45.6m,分布不均匀,多夹在粉质粘土中。

6)粘土混砂砾、砂砾混粘土及碎石土层。

7)风化基岩(J3):棕红、肉红色,钻进厚度约为1.4-2.4m,顶标高约为-42.2- -43.5m

2、施工总体安排

根据本工程的结构型式和现场的施工条件,总体施工安排上作如下考虑:分两部份,采用二种不同的施工工艺,基本上同时进行施工。

一、陆上施工部分

1.施工范围:

11~6#栈桥的全部钻孔灌注桩。

2)上述桩的现浇横梁。

31~6#栈桥的全部预制空心大板。

41~6#栈桥的全部现浇面层砼。

2.施工顺序:

 

 

 

 

 

 

 

 

 

 

 

3、主要施工方法:

1)施工作业平台搭设

平台采用支撑在钢管桩上的型钢横梁、纵梁、木板面层结构,宽度6,长度满足各栈桥施工作业需要。同时搭设两座平台。搭设方法:用兵15~25吨履带吊机吊加30KW电动振动锤,由岸向海逐跨搭设。

2)钻孔灌注桩施工

每座平台上二台钻机,由海向陆逐跨施工,下钢筋笼和浇注砼既可以用钻机的起重设备,又可用吊机辅助作业。

3)横梁浇注

紧跟桩基逐跨施工,利用平台纵、横梁悬吊底侧模,人工手推车浇注砼。

4)空心大板预制

在海堤后方的陆上适当位置建设临时预制场。

5)空心大板安装

用贝雷片组装成双导梁架桥机,由岸向海逐跨安装。

二、水上施工部分

    1.施工范围

1)全部预应力钢筋混凝土空心方桩的沉桩。

21#~6#栈桥方桩基础的横梁施工。

3)全部撑墩的施工。

4)千吨级固定码头的施工。

2、施工方法

与常规的码头施工相同。

以上总体施工安排的优点是:两部分同时施工,互不影响,有利于缩短工期。缺点是:投入较大。无论是设备和管理力量的投入都比较大。但我单位有足够的设备和管理能力,实施上述施工方案,总工期可以缩短21天。

3、施工总流程图

3.1.钻孔灌注桩基础栈桥施工流程图

 

 

 

 

 

 

 

 

 

 

 

 

 

 

 

 

 

 

 

 

3.2.千吨级码头施工流程图

 

 

 

 

 

 

 

 

 

 

 

 

 

 

 

 

 

 

 

 

 

 

4、主要工程项目施工方法

4.1施工测量及试验和试验设备

4.1.1施工基线和水准点的布设

根据业主提供的平面控制点和高程控制点,在施工区域内布置并测设施工基线和水准点,程序如下:

1)复核业主提供的平面布置控制点和水准点;

2)布置并测设施工基线和水准点,基点布设在通视良好,不易被干扰和损坏的地方并能有效覆盖整个施工区域。考虑到施工现场情况,基点用混凝土墩做成(混凝土墩下打木桩做基础),点位以十字铜头标记,并设置明显的保护标志;

3)整理测量报告和绘制施工测量平面图,报工程师审批,

4)施工期间定期对基线及水准点进行复核。

4.1.2测量仪器

名称

型号

数量

产地

全站仪

TC2002

1

瑞士

经纬仪

T2

4

瑞士

水准仪

N3

2

瑞士

4.1.3测量精度控制

1)施工基线方向的允许角度误差值为12秒。

2)施工基线长度的允许误差值为1/10000

4.1.4试验和试验设备

本工程在进场后临时设施建设时,设立现场实验室,面积约80m2(见施工总平面布置图)

工地实验室配备足够人员,实验室工作人员均要有相应资质和上岗证。     工地实验室为检验工程所用原材料及混凝土施工质量控制而设立,主要试验项目及配备检测设备仪器见下表:

 

 

 

 

 

 

 

 

 

 

 

 

 

 

 

 

 

主要试验项目及配备检测设备仪器表

名称

检  测  项  目

主要设备名称

 

 

 

 

 

 

 

 

 

 

 

 

 

 

 

标准稠度和凝结时间

标准稠度和凝结时间测定仪

安定性

雷氏夹

细度

负压筛

比表面积

比表面积测定仪

胶砂强度

标准试模4*4*16

比重

比重瓶

钢材

力学性能及拉弯性能检测

万能材料试验机

焊接性能

万能材料试验机

表观密度及堆积密度

李氏比重瓶及测量筒

颗粒级配筛分

摇筛机及分析筛

含泥量及有机质含量

玻璃器皿

碎石

粒径级配

分析筛

针片状含量

石针、片状规准仪

压碎指标

压碎指标测定仪

含泥量及泥块含量

玻璃器皿

表观密度及堆积密度

比重瓶及测量筒

混凝土

混凝土配合比设计

搅拌机、试模、压力机

混凝土3d28d抗压强度

抗压强度试模

坍落度

坍落度筒

初(终)凝时间

电动阻力贯入仪

含气量

含气量测定仪

保护层厚度

探测仪

其他

抗渗、砂浆试模、维勃稠度仪,标准养护室、电动取芯机等

 

    实验室内设置力学性能,物理性能,水泥试验检测室,混凝土配合比搅拌成型室,标准养护室,样品储藏室和办公室。

在建立工地实验室的同时,选取1-2家具有CMA认证资质的检测单位,并申报监理工程师批准后,作为工地实验室的补充,进行工地实验室不具备检测条件的项目检测。如减水剂性能测试,必要时进行砂中氯离子含量测定及钢材的化学分析等。

所有结构用料运到现场后,均要按规范频率和数量抽检,取样及检测过程配合监理工程师执行见证取样规定,所有试验项目在自检的同时执行监理工程师的平行抽检的指令或规定。

 

 

 


   4.2.钻孔灌注桩基础栈桥施工

  本工程一共有六座栈桥,由东向西方向分布分别是1#~6#栈桥。接岸段总工程量如下:φ800水下灌注桩106根;岸上空心板预制及安装348块,其中。栈桥施工包括:钻孔灌注桩平台施工、钻孔灌注桩施工、现浇横梁施工、陆上预制空心板、陆上空心板安装、现浇面层砼施工六分项工程。六座栈桥由东向西方向施工,每两座为一个工作段,共分为三个工作段。下一个工作段的施工等上一个工作段的施工材料回收后再进行。每座栈桥的施工流程如下:

钻孔灌注桩平台施工   

   钻孔灌注桩施工

现浇横梁施工

陆上预制空心板  陆上空心板安装 

   现浇面层砼施工

  

 

 

 

 

4.2.1.钻孔灌注桩平台施工

钻孔灌注桩施工平台搭设的施工工艺流程图如下:

 

 

 

沉钢管桩

 

支架搭设

 

支架焊接

 

模板铺设

 

栏杆焊接

      

  根据现场环境的勘测,钻孔灌注桩的施工场地处于浅滩上,而浅滩面上2~3m为淤泥层,不能支承施工机械及施工时的荷载。因此,在钻孔灌注桩施工前,先采取震动下沉φ400钢管桩作为支承桩,【20槽钢作支架,50mm厚的木板作面板搭设施工平台,作为钻孔灌注桩的施工工作面用。而钢管桩长度的确定,由于在投标图纸总说明当中,地质勘测中第二个单元的土体没有具体标明土层标高等详细的情况,目前钢管桩的长度暂时按照10~12m设计,在施工当中如遇到不满足要求的情况再作加长。1#~6#栈桥的结构形式基本相同,在施工方案中就不一一列举,现以3#栈桥为例,说明其具体的施工方法。

    a.测量放线

  首先要设定施工平台的顶面标高。3#引桥中最高的钻孔灌注桩桩顶标高为+2.50m,现浇横梁的最高点为+3.85m,根据施工方便的原则,设定3#引桥的面标高为+3.85m,设定此标高是因为在钻孔灌注桩以及现浇横梁的施工中,需要有如履带吊机,及钻孔桩机等机械在走动,施工平台太低,会造成钻孔灌注桩的桩头或预留钢筋高出施工平台而对施工造成影响。而施工平台太高,又会因高差大对钻孔灌注桩及现浇横梁施工带来不便。实际测量时用经纬仪定向,水准仪控制标高。        

b.沉钢管桩

  根据测量所放样所定出的方向及位置,采用履带吊机加电动震动锤从岸边开始将10~12mφ400钢管桩沉入土中。用水准仪控制,沉至设定的标高时,检查单桩的承载力是否能满足施工荷载的要求,如不满足,则接桩再打,满足则进行下一根桩的施工。钢管桩的中心间距为4.0m,每跨长度为5.0m3#引桥φ400钢管桩沉桩顺序见下图:

  c.槽钢支架搭设及焊接

  每一排钢管桩上安放背靠背焊接起来的[20槽钢横梁,槽钢与钢管桩要紧密接触,然后焊接,如接触不平整还需在钢管桩面上先焊接一块钢板再安放槽钢横梁,槽钢横梁长度为6~6.5m。横梁焊接好后,在横梁上按照0.75~1.0m的间距安装[20槽钢纵梁,纵梁与横梁接触点要电焊机焊接。在主要的干道上,纵梁要用2~3根槽钢安装。

  d.模板铺设及栏杆焊接

  整个支架成型以后,为了便于人员的行走和安全通过,在纵梁的面上铺设50mm厚木板,在横梁上焊接小钢管及挂上安全网。每沉桩一跨,就安装一跨的槽钢支架,铺摊一跨的厚木板,如此循环,直到满足最离岸一根钻孔灌注桩可以施工为止。到此,整个施工平台的施工就算完成,在整个施工的过程中,测量人员要是始终控制好施工平台施工的方向及标高,防止位置的偏移。施工平台的施工进度按照10m/天计算,一座施工平台要在10天内完成,钻孔灌注桩施工平台施工简见下图:

    4.2.2.钻孔灌注桩施工

  4.2.2.1.钻孔灌注桩的施工工艺流程如图:

    

 

 

 

 

 

 

 

 

 

 

 

 

 

 

 

 

 

 

 

 

 

 

 

 

 

 

 

 

 

 

 

 

 

 

 

 

 

 

4.2.2.2施工方法

a.护筒埋设

  钻孔桩护筒采用3mm厚钢板制作,高3~4m,直径为设计桩径+0.02m,护筒埋设高出桩顶60cm以上,并保证护筒底部低于淤泥层底标高。钢护筒采用震动锤震动埋设的施工方法,埋设要保持垂直,桩位钢护筒中心与桩中心偏差不大于50mm,护筒斜度偏差小于1%

  b.泥浆池设置

  泥浆循环池布置根据现场施工场地情况,沿引桥两侧边布置,由钢板焊接形成,泥浆处理池由泥浆池和沉淀池组成,形成泥浆循环系统。因钻孔灌注桩数量不多,钻孔桩施工时,对沉淀池中沉渣及灌筑砼时溢出的废弃泥浆及时用手推车运至允许的弃土区,严防泥浆溢流污染海面。

   c.泥浆配制泥浆系统:

  根据每孔的实际量确定泥浆池及废浆池的容量,该工程采用每台机用一个循环池,泥浆采用原土造浆,遇砂层等不良层时,加适当膨润土造浆。制备的泥浆应满足下述要求:

    粘度:一般地层1622S,松散砂层1928S

    含砂率:新制泥浆小于4%,循环泥浆不大于8%

    胶体率:不小于90%

    PH值: 810

    比重:粘性土中,泥浆比重1.11.2kg/L,砂土和较厚的夹砂层为1.21.3,砂卵石层为1.31.5,清孔泥浆比重为1.15kg/L

      d.成孔及清孔:

  根据我单位施工经验及现场情况,采用TXB-1000A型回转钻机带动笼式合金钻头成孔,在正常的施工条件下,1~1.5天可以完成一根钻孔灌注桩的成孔及清孔工作,在施工过程中,一座引桥采用两台钻机,按先离岸后近岸的顺序施工。

钻机安装就位后,底座和顶端应平稳,不得产生位移。顶部的起吊滑轮缘、转盘中心和桩孔中心在同一铅垂线上,其偏差不得大于20mm,以确保钻孔桩垂直度误差小于或等于0.5%HH为桩长)的要求。                                                                                                                                                    

  正式钻进前,先启动泥浆泵,使之空转一段时间,待泥浆输入孔口一定数量后方可正式钻进。开始钻进时,应控制进尺速度及钻压,采用低压慢进措施,待钻至护筒下1m后,再以正常速度钻进。

  钻进速度根据土层类别、钻孔深度、供水量确定,对淤泥钻进速度不宜大于1m/分钟,以不超负荷为准。成孔须一次完成,中间不能间断施工作业,成孔完毕至灌注砼的间隔时间不能大于24小时。在成孔施工过程中应勤测泥浆比重,并定期测定粘度、含砂量、胶体率和稳定性,并应经常注意土层变化。

  当钻孔距设计标高1m时,注意控制钻进速度和深度,防止超钻,并核实地质资料,判断是否达到设计要求的地层。钻孔到设计深度后,应对孔深、孔径和孔形等进行检查,检查合格后通知监理等有关各方进行终孔验收签证,验收合格后应立即进行清孔工作。  

  成孔至设计深度后,采用钻头在孔底空钻的方法进行第一次清换孔内泥浆。由于本工程粘土层较厚,成孔时应调整泥浆的粘度及比重,(粘度1622S、比重1.11.2)根据现场踏勘情况,局部地区位于在淤泥层下有夹层存在,主要是以碎石、块石为主,夹有中粗砂、粉砂,成孔过程中应加以注意,如果遇到这种情况则需要调整泥浆的粘度及比重(粘度1928S、比重1.31.5)。如果钻进困难,应采用冲锤处理。

  e.钢筋笼制作安装

  钢筋笼制作在现场进行,钢筋笼成型后采用吊机配合载重汽车吊运至相应桩位进行吊装就位。

  制作:钢筋笼纵筋下料,应按钢筋笼大样图尺寸要求,驳接时焊口必须符合规范规定,应按规范错开(同一截面内的接口不超过总数50%)。加劲箍筋焊接成闭合的圆箍,且应设在纵向钢筋的内侧,并与纵向钢筋的交接点全部焊接牢固,以便其真正起到加劲钢筋的作用,使钢筋在运吊中避免产生不可恢复的变形。螺旋箍在纵向钢筋的外侧,其焊接应均匀,间隔距离符合设计和规范要求。控制平整度误差不超过50mm。钢筋笼成型后应经有关人员验收合格方可安装。吊装钢筋笼的桩孔,应预先清理干净,并标出定高度。钢筋笼入孔后,应按其保护层厚度要求调正固定,使其在灌注砼时,不移动不上浮。钢筋笼制作的允许偏差应满足规范要求。

  吊装:吊装钢筋笼入孔时,不得碰撞孔壁。灌注砼时,应采取措施,校正设计标高固定钢筋位置。为了便于运吊和避免钢筋笼产生较大的变形,钢筋笼过长,可采取分段接驳的方式,上下节拼接时,主筋采用单面搭接焊,搭接长度为10d

  f.砼灌注:

  采用自制的螺纹接头法兰导管浇筑水下砼。砼由陆上搅拌站搅和,手推车运输,砼坍落度1822cm,砼面上升速度大于2m/h,埋管深度为26m,严禁埋管过深和灌浆管拔出砼面,并做好试件留样工作并按标准条件养护,以备试验用。 

  桩体水下混凝土采用425#普通硅酸盐水泥,粗骨料采用碎石,其最大粒径不大于导管内径的1/61/8和钢筋净距的1/4,同时不大于40mm,细骨料采用中砂。混凝土的配制强度应大于设计强度15%,混凝土的含砂率4050%,水灰比采用0.45,为使混凝土拌合物有良好的和易性,在运输和灌注过程中无显著离析、泌水,其塌落度取1822cm(以孔口检测的指标为准)。每立方米混凝土的水泥用量不小于360kg,宜掺外加剂。

  灌注水下砼是确保成桩质量的关键工序,灌注前应做好一切准备工作,保证砼灌注连续紧凑地进行。单桩砼灌注时间不应超过6小时,上升速度不小于2m/h。砼灌注用导管直径250mm,壁厚大于5mm,导管第一节管大于6m,标准节长度2m。导管应全部安装在桩孔内,安装位置居中,导管底端距孔底0.30.5m。隔水塞用混凝土预制或袋装砼,用铁丝悬挂于导管内。砼灌入前应先在储料斗内灌入少量水泥砂浆,然后再灌注砼,等储料斗内初灌砼足量后,方可截断隔水塞的导结钢丝,将砼灌注孔底。砼初灌量应能保证砼灌放后,导管埋入砼深度不少于1.0m

  砼灌注过程中导管应始终埋在砼中,严格控制导管不能提出砼面。导管埋入砼面以下的深度保持在24m之间,最小埋入深度不得小于1m,最大埋入深度不大于6m。导管应勤提勤拆,一次提留拆管不得超过6m。砼灌制中应防止钢筋上浮。砼实际灌注高度应比设计桩顶标高高出0.6m,以确保桩顶砼能符合设计强度要求。

  必须对每一根桩做好一切施工记录,每根桩留取混凝土抗压强度试件2组,并提交试验结果,整理好资料提交给监理工程师。

  4.2.2.3施工布置及施工机具配置

  施工布置

  a.钻孔桩施工分二个桩机组施工,每个桩机组2台桩机。第一桩机组负责1#3#5#栈桥,共50根桩,第二桩机组负责2#4#6#栈桥,共56根桩,每座栈桥在施工平台搭设完成后,由海侧向岸侧逐根施工钻孔灌注桩。

  b.泥浆池在施工平台两侧布置,钢筋笼加工场地设于岸边空地,施工平台留出施工便道。

主要施工机具如下表所示:

名  称

用       途

规  格

1

钻桩机

成孔

施工

TXB-1000A

台套

4

2

泥浆泵

3PNL

6

3

电焊机

钢筋笼制安

ZX5BX1

3

4

钢筋切割机

CT14-40

1

5

钢筋弯曲机

H-400

1

6

灌浆导管

砼浇筑

Φ250mm

4

7

砼料斗

1m3 

4

8

吊车

8t

1

9

柴油发电机

200kW

台套

1

10

其它机具

根据施工需要配备

 

  因为施工的工期较紧,每座引桥的钻孔灌注桩数量为16~20根,目前按照每台两天一根桩的速度计算,两台钻机20天可完成一座引桥的施工。

  4.2.3.现浇横梁施工

  1#~6#栈桥的现浇横梁一共有60根,其编号及断面尺寸如下表:

 

             陆上现浇横梁数量分类表

横梁编号

断面尺寸

数量

C30砼方量

ZHL2

500*650/1200*900*6000

54

111.24

ZHL3

500*650/1200*900*7000

6

14.40

合计

 

60

125.64

       

  现浇横梁施工工艺流程如下:

     桩头凿除 模板安装 钢筋绑扎 砼浇注

   

模板拆除               

 

  a.钻孔灌注桩桩头头凿除

  在钻孔灌注桩强度达到100%后,就可以进行桩头凿除的施工,为保证桩头凿除完后桩顶的砼强度符合设计的要求,而且桩头凿除的工程数量不大,采取人工凿除的施工方法,凿除后的桩顶标高以伸入横梁5cm控制。

  b.现浇横梁模板制安

  在桩头凿除及清洗完之后,可进行横梁模板的安装。横梁模板采用悬吊散拼的形式,直接计算横梁的标高及平面位置尺寸后,在钻孔灌注桩施工平台的纵梁上用【20槽钢焊接现浇横梁的立柱及底梁。支架焊接完成后先拼装底板及侧板,模板拼装后要调整至规范允许的范围内,两端的封头板要等钢筋绑扎完成后才能安装。

  c.钢筋开料及绑扎

  钢筋开料在岸边的加工场地进行,开料时严格按照施工图纸施工,由于与钻孔桩同时施工,为防止材料的混乱,开料后马上做好标示或用轻便运输工具运往现场。

  模板安装经监理验收通过后,开始钢筋的绑扎。由于现浇横梁的钢筋都比较简单,施工时主要是要注意钢筋的数量及预埋件的安装位置。

  d.现浇横梁砼浇注

  钢筋绑扎通过验收后,开始砼的浇注。由于现浇横梁的砼方量不大,现浇横梁砼的搅拌与陆上预制空心板统一安排,砼采用手推车运至现场浇注,为保证砼的质量,整个砼浇注过程中相关各工种要有人现场值班。

  e.现浇横梁的砼强度达到75%后,横梁的模板就可以拆除,每拆除完一根横梁的模板后,履带吊机配合震动锤开始回收该跨的施工材料。

  现浇横梁模板拼装见下图:

  

 

 

 

 

 

 

 

 

 

     4.2.4.引桥空心板预制

    六座引桥的空心板预制共348块,其中钻孔灌注桩上部安装的数量为216块,具体的规格及数量如下表: 

构件编号

数量

结构尺寸

KB1

116

(1420/1470)*550*9500

KB2

116

(1400/1500)*550*9500

KB1

12

(1420/1470)*550*9460

KB2

12

(1400/1500)*550*9460

KB3

2

(1420/1470)*550*3360

KB4

2

(1400/1500)*550*3360

KB5

22

(1420/1470)*550*9000

KB6

22

(1400/1500)*550*9000

KB5

12

(1420/1470)*550*8960

KB6

12

(1400/1500)*550*8960

KB7

2

(1420/1470)*550*4210

KB8

2

(1400/1500)*550*4210

KB9

2

(1420/1470)*550*6610

KB10

2

(1400/1500)*550*6610

KB11

2

(1420/1470)*550*4910

KB12

2

(1400/1500)*550*4910

KB13

2

(1420/1470)*550*3610

KB14

2

(1400/1500)*550*3610

KB15

2

(1420/1470)*550*4210

KB16

2

(1400/1500)*550*4210

合计

348

 

   

    预制场地选择

  根据现场的地形及六座引桥的分布,5#~6#引桥与1#~4#引桥没有施工道路相连,因此选用两个施工场地作为空心板的预制,1#预制场地预制1#~4#引桥的空心板,2#预制场地预制5#~6#引桥的空心板。两个预制场地都设于靠近道路的某个合适场地上。

  由于预制构件的数量较多,预制构件的周转期需要10天左右,为满足施工的进度要求,1#预制场地配置10条的生产线,每条生产线可施工4~5块的空心板。2#预制场地的数量可以减半,每个预制场地配置有各自的钢筋加工场、模板加工场及搅拌设备。空心板预制的施工流程及机械设备配置如下:

 

模板制作     混凝土拌制

¯          ¯

钢筋加工绑扎®模板安装®混凝土浇注®养护、转堆

 

 

主要机械设备如下:

  拌和系统:四台0.4m3自落式混凝土搅拌机;

  手推车20台;

  15t轮胎吊机一台;

  15t平板车二辆;

  风电焊、D40插入式振捣棒等配套设施;

  a.  钢筋

  钢筋在车间开料加工好,运送到现场,直接在底模上绑扎成形。

  b.  模板

  底模:底模采用C20混凝土结构,四周边上铺设φ20mm左右的透明软塑料管作止浆用,防止构件裙脚漏浆。底模两侧预埋[10槽钢作侧模支撑用。如下图:

  侧模及封头板:侧模全部采用整片式钢模板或定型钢模板拼制,中间空心部分采用冲汽胶囊内胆形成,冲汽胶囊由厂家定做。端头有冲汽胶囊部分采用木模板。加工套数为6套。

  脱模剂:采用柴油、石腊、滑石粉按一定配合比混合而成。

  c.  混凝土浇注

  混凝土由拌和机供应,手推车运送到现场。混凝土入仓根据各构件特征,制作手推车的上料支架,砼直接用手推车入仓。D40插入式振捣棒振捣密实,人工抹面。

  构件面上按设计要求需凿毛处理。处理方法为:在已浇注完成的砼面上涂刷缓凝剂,在适当的时间砼初凝后,用高压水枪冲涮混凝土表面,至露出骨料而成毛面,但应确保骨料不松动或掉落。当上述方法处理效果不满意时,人工凿毛加以补充。混凝土浇注完后,洒淡水潮湿养护14天。

  e.  构件转堆

  构件混凝土强度达到设计强度的70%后,即可进行转堆作业,转堆用45t汽车吊机将构件吊到平板车上,到堆场后再由20t汽车吊机堆放。采用多点支垫,堆高3~4层。堆放时做好标示,便于安装时出运,堆场场地应平整并压实。

  空心板预制每天完成3~4块,四个月内全部完成。

  4.2.5.陆上空心板安装

所有陆上安装的空心板都在陆上预制场地预制。在现浇横梁及预制空心板的强度达到100%强度满足设计要求后,即可进行预制空心板安装工作。由于重量最大的空心板约11.5t,安装采用拼装20吨双导梁式架桥机施工,配以龙门吊和运梁平车。安装施工时,注意构件规格及位置的准确性,避免返工情况的出现,空心板的安装应符合图纸及规范范的要求。

a.空心板安装的施工流程如下;

 

 

 

 

 

 

 

 

 

 

 

 

 

                                              

 

 

 

 

   

    b.安装方法

    引桥空心板采用20吨龙门吊及20吨双导梁架桥机配合安装。导梁移至安装跨后,将中、后支墩的行走轮系统转向90度,放下前支墩。空心板用轮胎吊及20t平板车运至引桥根部,通过龙门吊将空心板置于运梁小车上,沿轨道将梁运到安装跨的后方,然后由架桥机上的平车起吊空心板通过架桥机导梁移至安装跨,安装的位置由横移小车控制,确定位置准确后安装。如此重复,安装完一跨后,中、后支墩行走轮系统转向90度,前移导梁至下一安装跨。导梁前移时,将上横梁等移至后端,并加平衡压重,收起前支腿缓慢前行,以确保安全。加长铺设运梁小车轨道,进行下一跨的安装工作,直至全部安装完成。

桥侧最外边梁安装由于位于架桥机导梁下,无法一次性安装就位,且受梁间距影响,施工时须先将最外边梁安放,然后进行滑梁、横移安装就位后,才进行中梁一次性安装。空心板安装示意图如下:

4.2.6.现浇面层砼施工

在整座引桥的空心板安装完成后,开始进行面层砼的浇注。施工的顺序是由引桥端部向岸边施工,具体的施工方法如下:

a.清理引桥顶面:先人工彻底清除空心板顶面的施工垃圾,凿除松动混凝土、浮浆及各种油渍,然后采用高压水冲洗主梁顶面,待安装完钢筋网后,再次用高压水清洗干净主梁顶面方可浇注混凝土。

b.测量放样:首先对整个主梁顶面的实际标高进行全面的复测,以便采取措施,保证面板层厚度比较均匀一致,不小于设计厚度。测量定出模板安装高度。

c.钢筋绑扎架立砼浇注通道:按照图纸的规格和数量绑扎钢筋,超过12m的钢筋需要采取搭接的方法绑扎,搭接长度为35d。浇注混凝土前架设混凝土运输机具的通道,避免机具碾压钢筋网发生变形、变位,使钢筋网位置始终保持在距引桥面有保护层的距离,并使其在假缝的地方要连续通过。

    d.浇注混凝土:混凝土采用C30混凝土,由砼搅拌机拌制,手推车运输到现场浇筑,浇注混凝土前,对主空心板顶面淋水,在梁顶潮湿时浇混凝土:一是利于主梁于铺装混凝土紧密结合,二是对主梁降温,降低混凝土水化热减少混凝土收缩。尤其夏天,除对砂石淋水降温外,避开酷暑时间而选择在傍晚时候开始浇注混凝土,同时搭设好防雨遮荫棚。混凝土采用 f30插入式振动棒与平板振动器交叉振捣密实。

 


4.3.构件预制

4.3.1 预应力方桩预制

    本工程的桩基础除栈桥部分的钻孔灌注桩外,尚采用C45600mm×600mm预应力空心钢筋混凝土方桩,2065.61m3/196根。其中渔政东海基地一期工程,在栈桥深水区撑墩和千吨级码头上,共1115.83 m3/108根;中心渔港工程,在栈桥深水区撑墩上共949.78 m3/88根。主要工程量及规格如下表:

桩长(m)

渔政东海基地一期工程

中心渔港工程

备注

桩数量()

砼方量(m3/)

桩数量()

砼方量(m3/)

 

27

8

769

8

769

 

32

8

904

2

904

 

33

8

931

2

931

 

34

19

956

2

956

 

35

7

985

6

985

 

36

13

1012

22

1012

 

37

14

1038

18

1038

 

38

5

1066

2

1066

 

39

8

10928

 

 

 

40

 

 

4

11202

 

41

2

11476

 

 

 

42

8

1175

 

 

 

43

2

1202

 

 

 

44

6

1229

 

 

 

45

 

 

16

1256

 

46

 

 

2

1193

 

47

 

 

2

1229

 

48

 

 

2

1265

 

  

a.  预制场地选择及机械设备配备

根据现场情况,预应力钢筋砼空心方桩600mm×600mm196根,安排在我单位在附近租用的专业预制场内进行预制。预制场共布置4条预应力桩生产线,每条线可使用长度为100,可同时预制23根桩,每条线周转为3天,平均每月预制100根桩左右。详见现场预制场平面布置图。  

根据本工程实际情况,预制场拟配备以下机械设备

序号

设备名称

规格型号

单位

数量

  

1

750L 

2

 

2

65t

1

方桩预制

3

16t

1

梁板和其他构件预制

4

15t

2

梁板等构件运输

5

平板汽车

5t

2

运输砼

6

装载机

3m3 

2

拌和站用

7

张拉设备

4

 

b.  施工工艺流程

预应力混凝土预制方桩施工工艺流程见预制方桩施工工艺流程图图所示。

c.  施工方法

    (a)  模板工程

    模板采用定型钢底模和钢侧模。空心部分根据桩长订购直径为φ330mm的充气胶囊,预应力桩桩尖加钢桩靴。

 

 

                     钢筋加工、对焊          校核张拉机具

                                            

                        钢筋绑扎              调整初应力

                                            

                      安放钢筋骨架

清理台座 吊装侧模板                 入胶囊  施加预应力

                      及安装联合器            

                                              胶囊充气    

                                            

                                      安装桩顶、桩尖模板

                                        (安装压钢筋卡)

                                                     

水泥、砂、石、水、减水剂   搅拌砼       浇筑砼    制砼试块

                                               

                                      胶囊放气、拔出

                                          

                                        拆模、养护

                                          

        出运    转堆   脱模   编号   放松、切断预应力筋

                                              

       养护           压试块,砼抗压强度达70%

  

  为了防止胶囊在砼振捣作用下而导致上浮,沿胶囊通长方向按设计要求布置胶囊固定钢筋并与钢筋骨架固定牢固。

    模板在砼浇注前要认真检查,确保模板安装的允许偏差满足规范要求。

    在砼浇注过程中,配备木工值班,检查模板有无变形、支顶松动现象,确保模板在施工过程中符合要求。

    拆模应在砼强度能保证其表面及棱角不因拆模而受到损坏时,方可拆除(一般宜在浇注完后24小时进行,胶囊放气及拨出时间应在砼确保其不因胶囊放气而发生沉陷及出现裂缝为准),一般约在砼浇注后23小时进行。

    (b)  钢筋工程

    钢筋原材料必须有出厂检验合格证书,加工前必须按规范分批量抽样试验。检验合格后方可使用。

    主筋搭接采用闪光对焊。为了保证对焊接头质量,施焊前,必须对每个焊接工人每种钢筋的焊接产品按规范取样进行抗拉、冷弯试验,不合格者,取消其焊接资格。闪光对焊的接头应定期分批进行外观检查和机械性能检验,以保证焊接质量。

    主筋对焊后应进行冷拉加工,以便调直、除锈和提高钢筋强度,冷拉采用控制冷拉率的单控方法进行。

钢筋在车间开料加工好后运至现场绑扎成型,钢筋骨架绑扎必须注意主筋接头的面积在同一截面内不得大于主筋总面积的50%。

    (c)  施加预应力

    施加预应力采用先张法,初始张拉必须均匀加载,并调整均匀,以防止张拉钢筋受力不均匀造成断筋。为了减少预应力筋的松驰影响,采用超张拉方法进行张拉。

    张拉程序:

            放松调整            持荷2min

    0  0.6sk            0       1.05sk                sk

 

    砼浇注完成后,当砼强度达到设计强度的70%时才能放松预应力钢筋。预应力筋的放松采用楔形放松器放松的方法。

    张拉过程应做好详细记录,并提交给监理工程师审核。

    (d)  砼工程

    所需用水泥、砂、石、水、外加剂等原材料必须符合规范要求,并事先将出厂合格证、抽样试验资料提交给监理工程师验证。

    砼配合比在试验室设计试拌,并提交给监理工程师审核。

    砼由拌和站拌制,用5t平板汽车车卡放置灰罐运送至现场,吊机吊灰罐沿线连续浇注,D50插入式振捣棒振捣密实,振捣应均匀,避免漏振,并应尽量避免碰撞钢筋、模板和充气胶囊,瓦工二次抹面。

    在砼浇注过程中,充气胶囊要始终保持足够气压,内充气压大小为0.030.035Mpa

    因桩头部分钢筋较密,所以浇注桩头砼时,采用较小级配碎石的砼浇注,并用D30插入式振捣棒振捣密实,保证桩头部分砼的质量。

    砼浇注完成后及时覆盖麻袋,洒淡水潮湿养护14天。

(e)  转堆

    当桩砼强度达到70%时,放松、切断预应力钢筋后,用65t履带吊进行水平吊运转堆,起吊按设计要求采用四点吊。

    桩在堆场用方木多点支垫,堆放层数不多于三层,同一型号的桩放在一起。堆放场地应平整、坚实,避免不均匀沉降。垫木要坚实、耐用,安放时,由测量工测标高,保证各垫木顶标高在同一水平面上。

    (f)  桩出运

  当桩砼强度达到100%并经外观检查合格后方可出运。用65t履带吊将桩直接吊入停靠在出运码头旁边的1000t方驳上,425kw拖轮拖运至现场施打。

  桩出运按沉桩顺序分层装驳,装驳层数不多于三层。方驳拖运过程中采取加固措施:方驳两侧焊设封仓架,桩与封仓架、桩与桩之间采用木枋、木尖支顶牢固,避免桩在拖运过程中发生平移、倾倒事故。

d   施工进度安排

  本工程共196根预应力砼方桩,平均每月预制100根,共二个月完成。

4.3.2 头构件预制

本工程预制构件总数212件,混凝土总量380.66m3。工程数量统计如下:

 

 

 

 

 

 

 

 

 

 

                 

序号

  构件种类

数量()

方量(m3/)

总量(m3)

1

面板B1

114

1.39

158.46

2

面板B2

6

1.34

8.04

3

面板B3

6

0.63

3.78

4

纵梁ZL1

28

3.7

103.6

5

纵梁ZL2

1

3.22

3.22

6

纵梁ZL2

1

3.22

3.22

7

边梁BL1

26

2.76

71.76

8

靠船构件KCJ1

2

1.22

2.44

9

靠船构件KCJ2

12

1.24

14.88

10

靠船构件KCJ3

2

1.22

2.44

11

水平撑SPC

14

0.63

8.82

 

 

212

 

380.66

预制场地布置

    构件预制安排在与预应力方桩同一预制场内进行,详见施工总平面布置图。

预制场机械设备配备详见预制预应力桩部分。

 

 

 

 

 

 

 

 

 

b 主要施工工艺流程及预制顺序

 

 

 

 

 

 








预制顺序按照各种预制构件安装顺序进行,即按先安装先预制的原则进行:

  

c 施工方法

   (1) 钢筋

    钢筋在车间开料加工好,运送到现场,直接在底模上绑扎成形。

(2) 模板

    底模

    底模采用C20砼结构,采用帮包底形式,四周边上铺设φ20mm左右的透明软塑料管作止浆用,防止构件裙脚漏浆。底模两侧预埋[10槽钢作侧模支撑用。   

侧模

    侧模全部采用整片式钢模板或定型钢模板拼制,端头有外露钢筋部分采用木模板。加工套数为面板8套、纵梁2套、靠船构件2套。

脱模剂

    采用柴油、石腊、滑石粉按一定配合比混合而成。

    模板装拆用16t轮胎吊机配合进行。

    3  砼浇注

    混凝土由拌和站供应,用5t平板汽车车卡放置灰罐运送至现场,浇筑时根据各构件特征,采用吊机+吊罐和人工打铲入模等方法进行,然后用D40插入式振捣棒振捣密实,人工抹面。

    构件端头有外露钢筋面按设计要求需凿毛处理。处理方法为:在该侧面的模板上涂刷缓凝剂,在适当的时间拆模后,用高压水枪冲涮混凝土表面,至露出骨料而成毛面,但应确保骨料不松动或掉落。

    当上述方法处理效果不满意时,人工凿毛加以补充。

    混凝土浇注完后,洒淡水潮湿养护14天。

    4  预埋件

    砼浇注前,应根据设计图纸和施工需要仔细设置、检查核对构件上的各种预埋件、孔洞,位置准确,安装牢固。

    5  构件转堆、出运

    构件砼强度达到设计强度的70%后,即可进行转堆作业,转堆用16t轮胎吊加15t平板车以及65t履带吊机将构件从底模转到堆场上。梁采用不设支点的单层存放,板采用多点支垫,堆高三层。堆场场地应平整并压实。

    构件混凝土达到设计强度后,方可出运安装。出运时,在堆场用16t轮胎吊装车,15t平板车运送构件至出运码头前沿,利用65t履带吊装上方驳上运至施工现场。

    d  施工进度安排

   预制构件共212件,计划51天完成。

4.4  千吨级码头施工

  4.4.1  水上沉桩

渔政东海基地一期工程共108600mm×600mm预应力钢筋砼空心方桩,其中直桩44根,斜桩64根。中心渔港工程共82600mm×600mm预应力方桩,其中直桩46根,斜桩36根。

  a.  主要船机配备

  根据本工程实际情况,本工程的桩最长为48m,最大重量约32t。根据打桩船性能及本工程水域施工条件,本工程沉桩选用我单位自有的打桩船配MB70柴油锤进行施工,运桩采用1000t方驳,425kw拖轮拖运。打桩船性能如下,能满足本工程沉桩需求。

  打桩船主要性能:

    桩船尺寸(长××高)  43.8m×20.0m×3.6m 

    桩架高                  53.55m

    最大桩径                管桩φ1200,方桩600×600

    最大桩长                42m+水深

    最大桩重                40t

    最大倾角                30°

主要船机配备表

序号

船机名称

   

备注

1

打桩船

53.55m高桩架

1

 

2

 

MB70

1

 

3

 

1000t ×宽:50×13.5 m

1

 

4

 

421kw

2

 

5

 

120HP

1

 

     b.  沉桩技术要求

  沉桩以标高控制为主,贯入度作为校核,当桩尖已达到设计标高而贯入度仍较大时,继续锤击,使其贯入度达到15mm/击内,且继续锤击下沉深度一般不超过1m,当桩尖距离设计标高较大而贯入度已较小,且沉桩有困难时,继续锤击20击,其平均贯入度不大于控制贯入度,但桩尖距设计标高不宜超过12m。桩锤施打过程必须重锤轻击,严格按设计提供的控制标准进行施工,如沉桩过程中出现无法满足沉桩控制标准时,应及时会同业主、监理等研究解决。

  沉桩质量检验标准为:

  基桩沉放后,直桩桩顶偏位不大于50mm;斜桩桩顶偏位不大于100mm。桩身垂直度:£1%。

  c.  沉桩顺序

  根据现场情况和工期要求结合打桩船的平面尺寸,沉桩平面施工顺序为:

 

 

 

 

 

 

 

 

 

    其中结构沉桩顺序为:先施打栈桥靠岸侧的基桩,然后往海侧逐根施打,最后施打码头平台(撑墩)基桩。详见千顿级固定码头基桩沉放顺序图。2#6#栈桥及撑墩基桩沉放顺序与千顿级固定码头基桩沉放顺序相类似,先施打栈桥基桩,然后施打撑墩基桩。

  沉桩前,应先将编制好的沉桩顺序报监理工程师审批。

  d.  船位布置

  桩船沉桩时,抛八字锚,带缆控制船横向移位,首尾抛锚带缆,控制前后移位,装桩方驳与打桩船两船纵轴线成T型布置。

  e.  测量控制

  利用设置在陆侧平行码头前沿线的基线进行打桩测量控制,采用经纬仪前方任意角交会控制。斜桩的定位标高设在施工水位以上,并尽可能接近桩顶标高,桩的平面扭角由打桩船上用六分仪对岸标进行控制。打桩时,用三台经纬仪测量控制,其中两台用于定位,一台用于校核,标高测量用水准仪。

    打桩测量程序如下:

    (1由打桩主管工程师编制打桩顺序;

    (2)  测量工程师根据打桩顺序依次计算每根桩的座标及各个测站的测量控制数据,打桩主管工程师复核测量内业计算成果,主任工程师审核。将有关资料报监理工程师审批。

    (3)  将打桩测量控制数据交给负责各测站司测的测量员进行现场测量。

    (4)  测量工程师及主管工程师在打桩船上随时对打桩测量过程中出现的问题进行处理。

     f.  沉桩要求

  (1沉桩前,先根据桩位布置图结合沉桩允许偏差,校核各桩是否相碰;

  (2)  对施工区域原有障碍物进行探明及清理;

  (3在斜坡上定位,应根据现场实际操作的情况及已有施工经验,适当确定提前量定位下桩;

  (4锤击过程中,桩锤、替打和桩应保持在同一直线上,避免偏心锤击;

  (5桩垫的材料和厚度应严格按设计要求加工制作;

  (6沉桩应尽量连续,不要中途停锤,以免土壤恢复而增加沉桩阻力;

  (7每根桩必须作好原始记录,沉桩过程中出现的任何不正常现象都作好详细记录,并及时通知业主、监理工程师研究解决。打桩完成后,应及时将该桩的沉桩记录提交给监理工程师。

    g.  夹桩

      沉桩完毕后应即时进行夹桩,夹桩采用10×15cm[12槽钢,纵横夹桩,将单个墩台的桩联成一稳定网络结构,增强稳定性。

    h.  桩头处理

    桩施打完毕后,若桩顶标高高于设计值,应将高出部分凿除,凿桩时,测量放出桩顶标高,利用夹桩材料搭设简易平台,砼桩头用人工凿除,用趸船配合吊住桩头,以策安全,并将长出桩头吊入趸船仓内运上岸。

  i.  施工进度计划安排

本工程共196600mm×600mm预应力混凝土方桩,沉桩进度按平均每天4根,总工期安排60天完成。

4.4.2  现浇横梁施工

    桩基施工完成后,即可进行码头现浇横梁施工。现浇横梁分为HL1HL22HL3三种,其主要工程量如下表所示:

横梁规格及数量

序号

规格

砼强度等级

件数

数量(m3)

备注

1

横梁HL1

C30

4

4×20.8

 

2

横梁HL2

C30

8

8×22.32

 

3

横梁HL3

C30

4

4×21.5

 

4

   

C30

16

347.76

 

a   施工流程

横梁施工顺序与沉桩方向一致,当横梁的基桩施打完成后,马上进行



横梁施工,其施工工艺流程如下:













   

    b.  模板工程

    底模支承采用10×15cm木枋及[12槽钢作两层井字型夹桩,用Ф22螺栓与基桩夹紧成整体。然后在夹桩木长度方向铺设[14槽钢作为底模的支撑,底模面板和侧模采用定型钢模板,外侧用对拉螺栓固定。详见横梁模板示意图:

     模板在岸上木工车间内加工,然后由工作船运至现场趸船配合安装。

    钢筋工程

      所有进场钢筋均要有出厂要有合格证,并按规定取样进行试验。不合格品不得用于工程。

    先根据构件的尺寸和分层浇筑情况编制好钢筋配料单。然后根据钢筋配料单在陆上钢筋车间内加工,工作船运至现场人工绑扎。

    混凝土工程

    i.  混凝土供应及运输

    砼采用0.75m3砼搅拌机进行拌和,1t翻斗车运输至工作码头,通过溜槽将砼卸入装在交通船上的砼吊斗内,吊斗容积约1.5m3,交通船运至浇注地点,由趸船吊吊斗入仓。

    ii.  混凝土浇注

混凝土浇注必须连续进行,横梁分下横梁和上横梁二次浇筑,第一次浇注至纵梁的搁置面,厚度为0.9m,浇筑方量为11.82m3,第二次在码头纵梁安装后浇注,厚度为1.5m,浇筑方量为10.5m3。如下图:


新旧混凝土接缝处进行凿毛处理,并在浇注新混凝土之前先用水清洗,再铺一层砂浆。砂浆厚12cm

     混凝土分层浇注,每层厚度不大于50 cm,插入式振捣棒振捣密实,为保证上、下层砼结合成整体,振捣棒插入下层砼5cm。并进行二次振捣,二次抹面。

    e.  养护

砼养护由专人进行,采用拆模后喷涂养护液进行。

4.4.3 头构件安装

   码头构件安装包括码头纵梁、边梁及面板等。共212,如下表示。栈桥空心板的安装采用陆上安装。详见陆上安装部分。

 

 

     

序号

     

 

     

1

纵梁

30

2

边梁

26

3

面板

126

4

靠船构件

16

5

14

 

  

212

    a  船机配备

本工程预制构件单件最重约10t,码头构件安装跨度为10m以内,拟配备以下船机进行构件安装:

 

 

 

                

序号

  

1

起重船

30t

1

 

2

 

1000t

2

 

3

 

 

1

 

4

 

 

1

 

 

  b 安装顺序

      安装靠船构件®安装水平撑®安装纵梁、边梁®现浇节点砼®安装面板

   c 安装工艺流程

    在支承点处表面(或侧面)测放梁板等构件安装的端边线和侧边线®测量支承点处的标高®水泥砂浆找平®起重船吊构件就位安装®检查合格后解扣®焊接加固。

    d 施工方法及要求

   (1)  构件安装前,先根据分段流水作业的部署仔细编排各类构件的安装顺序,以此安排构件装驳顺序。并在出运时逐件检查,以防出错。

  (2)  构件安装时,应严格控制搁置面的平整度,保证构件底面与搁置面接触紧密,安装完后要及时勾缝。

   (3)  用水泥砂浆铺填预制件搁置面时,砂浆应随铺随安,不得等砂浆硬化后安装构件,水泥砂浆不宜太厚,一般为12cm,以座浆饱满,安装后略有余浆挤出缝口为准。

   (4)  码头前、后沿线和侧边线的构件安装时,要用经纬仪控制其边线,确保码头边线的位置准确及平直。

   (5)  安装靠船构件及悬臂板时,须将主筋与横梁焊接牢固后方可松钩,以保证构件的安全稳定。构件安装完成后,要及时将外露钢筋焊接牢固,增强抗风浪能力,必要时要进行加焊、拉、顶等加固措施。并且要及时跟上节点砼的施工,及早成为整体结构,保证台风期的安全。

  注意事项

上部构件安装完毕后,应进行验收:核对构件编号,检查安装位置并复核标高。

在已安装完毕的构件上面,堆放临时荷载或使机械进行运输安装时,应验算构件强度及稳定性。

  施工进度安排

本工程的构件安装所需工期约为45

4.4.4  现浇面层砼施工

    现浇面层包括码头和1#2#栈桥两部分,其中码头现浇面层由130mm的现浇层和5060mm的磨耗层组成,栈桥现浇层由100mm的现浇层和4560mm的磨耗层组成,砼强度等级为C30,砼方量共416.5 m3。其施工方法与4.2.5 钻孔灌注桩基础栈桥现浇面层砼施工一样,详见该部分。

4.5  撑墩施工


本工程共有11个撑墩,砼方量为:384.78 m3。在基桩完成后即可进行撑墩施工,撑墩分二次浇筑,第一次先浇筑底座,厚度为:1m,浇筑方量为16m3;第二次浇筑上部墩身,厚度2.3m,浇筑方量为18.98m3,如下图示。

 

a.预埋件加工

上部墩身的预埋件为10mm厚的钢板和Ф50的锚环,每个撑墩各预

埋一个,在浇筑第二次砼时需要预埋,严格按照图纸的尺寸,选用合格的钢材在车间内加工,然后运至现场安装。

b.预埋件安装

钢筋绑扎好后,按照图纸位置尺寸进行测量放样安装,利用钢筋焊

接固定在已绑扎成型的钢筋骨架上,砼浇筑过程中严禁碰撞。

     c. 撑墩的模板、钢筋及砼浇筑工艺与横梁施工一样,详见4.4.2 现浇横梁施工部分。

5、投入本合同工程的主要施工船机设备

5.1主要施工船机设备表

船  机

名  称

规  格

型  号

额定功率(KW)或容量(m3)或吨位(t)

厂牌及出厂时间

数      量

备注

小计

其   中

自有

新购

租赁

钻桩机

(TXB-1000A)

96

4

4

 

 

 

泥浆泵

(3PNL)

 

93

6

6

 

 

 

电焊机

(ZX5,BX1)

 

94

8

8

 

 

 

振动锤

 

30KW

95

1

1

 

 

 

发电机

 

200KW

92

1

1

 

 

 

履带吊机

 

35t

90

1

1

 

 

 

搅拌机

 

0.75m3 

99

2

2

 

 

 

履带吊机

 

65t

95

1

1

 

 

 

汽车吊机

 

16t

99

1

1

 

 

 

平板车

 

15t

98

2

2

 

 

 

平板汽车

 

5t

97

2

2

 

 

 

装载机

 

3m3 

93

2

2

 

 

 

钢筋加工设备

 

 

95

2

2

 

 

 

打桩船

(54m高桩架)

85

1

1

 

 

 

起重船

 

30t

88

 

 

 

1

当地租赁

方驳

 

1000t

84

2

2

 

 

 

拖轮

 

442KW

87

1

1

 

 

 

交通船

 

 

90

2

 

 

2

 

工作船

(100~200t)

89

3

 

 

3

当地租赁

张拉设备

 

 

96

4

4

 

 

当地租赁

木工加工设备

 

 

98

2

2

 

 

 

 


5.2主要船机进场计划

设备名称规格型号

2002

2003

七月

八月

九月

十月

十一月

十二

一月

1

钻桩机(TXB-1000A)

4

 

 

 

 

 

 

 

2

泥浆泵(3PNL)

6

 

 

 

 

 

 

 

3

电焊机(ZX5,BX1)

8

 

 

 

 

 

 

 

4

振动锤(60KW)

1

 

 

 

 

 

 

 

5

发电机(200KW)

1

 

 

 

 

 

 

 

6

履带吊机(35t)

1

 

 

 

 

 

 

 

7

搅拌机(0.75m3)

2

 

 

 

 

 

 

 

8

履带吊机(65t)

1

 

 

 

 

 

 

 

9

汽车吊机(16t)

1

 

 

 

 

 

 

 

10

平板车(15t)

2

 

 

 

 

 

 

 

11

平板汽车(5t)

2

 

 

 

 

 

 

 

12

装载机(3m3)

2

 

 

 

 

 

 

 

13

钢筋加工设备

2

 

 

 

 

 

 

 

14

打桩船(54m高桩架)

1

 

 

 

 

 

 

 

15

起重船(30t)

1

 

 

 

 

 

 

 

16

方驳(1000t)

3

 

 

 

 

 

 

 

17

拖轮(442KW)

2

 

 

 

 

 

 

 

18

交通船

2

 

 

 

 

 

 

 

19

工作船(100~200t)

3

 

 

 

 

 

 

 

20

张拉设备

4

 

 

 

 

 

 

 

21

拼装式架桥机

1

 

 

 

 

 

 

 

 

6、主要物质进场计划

主要物质名称

2002

2003

七月

八月

九月

十月

十一月

十二

一月

1

钻孔桩平台用料

Φ400钢管桩

80

40

40

 

 

 

 

 

 

20#槽钢

2400

m

1000

1400

 

 

 

 

 

 

5cm厚木板

1300

m2

300

1000

 

 

 

 

 

 

2

钻孔桩钢护筒

33.4

t

 

11.2

6.0

5.0

11.1

 

 

 

3

钻孔桩钢筋

126.8

t

 

45

22

22

37.8

 

 

 

4

预应力钢筋

232.6

t

 

150

82.6

 

 

 

 

 

5

预制件钢筋

345.3

t

 

100

100

100

45.3

 

 

 

6

现浇钢筋

173.5

t

 

 

50

50

40

33.5

 

 

7

150KN系船柱

18

 

 

 

18

 

 

 

 

8

预埋铁件

17.9

t

 

 

10

7.9

 

 

 

 

9

橡胶支座

1482

 

 

 

500

500

482

 

 

10

水泥

4362.8

t

 

800

900

900

1000

862.8

 

 

11

海水耐蚀剂

484.8

t

 

90

100

95

105

94.8

 

 

12

碎石

8253

m3

 

1600

1700

1700

2000

1253

 

 

13

中粗砂

4602

m3

 

900

1000

1000

1200

502

 

 

 

7、劳动力安排计划

人员名称

2002

2003

七月

八月

九月

十月

十一月

十二

一月

1

项目经理

 

1

1

1

1

1

1

1

1

1

1

1

1

1

1

1

1

1

1

1

1

2

项目副经理

 

1

1

1

1

1

1

1

1

1

1

1

1

1

1

1

1

1

1

1

1

3

项目总工

 

1

1

1

1

1

1

1

1

1

1

1

1

1

1

1

1

1

1

1

1

4

技术管理人员

 

2

4

4

4

4

6

6

6

8

8

8

8

8

8

8

6

4

4

4

4

5

测量工

 

0

4

4

4

4

4

4

4

4

8

8

8

8

8

8

8

6

6

6

4

6

电工

 

0

2

4

4

4

4

4

4

4

4

4

4

4

4

4

4

4

4

2

2

7

机驶工

 

0

2

4

8

8

8

8

8

8

8

8

8

8

8

8

8

8

4

4

2

8

起重工

 

0

2

4

4

4

4

4

8

8

12

12

12

16

16

16

16

8

8

4

4

9

木工

 

0

0

4

8

10

10

10

12

12

12

16

16

16

16

20

20

20

20

8

8

10

钢筋工

 

0

0

4

10

12

12

20

20

20

20

20

20

20

20

25

25

25

25

10

4

11

铁焊工

 

8

12

12

15

15

15

15

15

15

20

20

20

20

20

20

20

20

15

15

4

12

砼工

 

0

0

0

8

8

16

16

24

24

24

24

24

243

24

24

24

24

12

12

4

13

修理工

 

0

2

2

4

4

4

8

8

8

8

8

8

8

8

8

8

8

8

4

2

14

试验工

 

0

0

0

2

2

2

2

2

2

4

4

4

4

4

4

4

4

4

4

2

15

钻桩工

 

0

0

0

8

8

8

8

8

8

8

8

8

0

0

0

0

0

0

0

0

16

司机

 

2

2

4

4

4

4

6

6

6

6

6

6

6

6

6

6

6

6

6

4

17

普工

 

20

40

40

60

60

60

60

80

80

80

80

80

80

80

80

80

80

80

20

10

合    计

 

35

73

89

146

150

160

174

208

210

225

229

229

233

225

234

232

220

199

102

57

 


 

8、 工程质量的技术组织措施

8.1、质量保证体系

8.1.1、政策声明

    我单位在承建本工程中,将完全按照合同条款、工程图纸、技术规格书进行施工,并对施工全过程实施有计划、有系统的质量管理,给业主提供充分的质量信任,确保合同范围内的各项工程的施工质量满足合同规定的要求并使业主和监理工程师满意。

8.1.2、本工程质量目标

    严格按照规范精心施工,争创优质工程。按招标文件要求,施工质量按《港口工程质量检验评定标准》(JTJ221-98)检验评定,工程质量达到优良等级。

8.2、质量保证体系

    我单位已按GB/T19001-2000idt ISO9001:2000标准建立并实施质量保证体系,在1997年通过了质量认证公司的现场审核,并获得了该公司颁发的质量认证证书。

8.2.1 质量方针、质量目标和质量承诺

    1.质量方针

      科学管理、持续改进、优质高效、顾客满意。

    2质量目标

    (1) 确保质量体系按GB/T19001-2000idt ISO9001:2000标准有效运行;

    (2) 竣工工程合格率为100%,经评定的竣工工程优良品率达到85%以上。

    (3) 树立良好的社会信誉。

    3质量承诺

    鼓励和支持全体员工对工程和服务质量精益求精,积极推动企业技术进步,努力提高质量水平。

8.2.2 主要质量体系文件

――质量手册:QM

――管理程序:

1.              QP4-1              文件和资料控制程序

2.              QP4-2              记录控制程序

3.              QP6-1              人力资源控制程序

4.              QP6-2              船机设备控制程序

5.              QP7-1              施工组织设计编制程序

6.              QP7-2              合同评审控制程序

7.              QP7-3              采购控制程序

8.              QP7-4              生产和服务过程控制程序

9.              QP7-5              产品标识和可追溯性程序

10.QP7-6              监视和测量装置控制程序

11.QP8-1              顾客满意度监视测量程序

12.QP8-2              内部审核控制程序

13.QP8-3              产品的监视和测量控制程序

14.QP8-4              不合格品控制程序

15.QP8-5              纠正措施和预防措施控制程序

16.QP9-1              安全生产控制程序

 

――作业指导书:

共编制37个作业指导文件,对工序施工进行具体指导。

我单位质量保证体系履盖我单位各施工单位。质量方针是我单位质量工作的宗旨;质量目标是我们工程施工的最终目标。质量手册、程序文件和作业指导书是我单位质量保证体系文件。质量保证体系也将在本工程中得到有效的运行。

8.2.3 质量保证遵守的原则

  (1) 按照GB/T19001-2000idt ISO9001:2000标准及质量管理八项原则,并结合本工程的特点建立有效的质量保证体系并使之有效运行。

  (2) 根据谁施工谁负责质量,谁操作谁保证质量的原则,实施生产者自觉控制质量的工序管理。

  (3) 坚持质量的三检和严格的监督检查制度,防止不合格品产生。

  (4) 坚持不合格的材料、半成品、成品不得使用或交付。

  (5) 坚持试验、检验和工程验收制度。

  (6) 遵守施工技术规范、质量检验评定标准,严格按照设计图纸施工。

8.3、质量管理组织机构

8.3.1 概述

    我单位总部将抽调技术水平高、施工经验丰富的人员组建实施本工程的项目部,总部将对工程进度、质量、安全等方面对项目部进行指导、协助、监督,并在人、财、物等方面给予全面的支持和配合,确保工程质量满足业主的要求。

    总部与质量有关的部门有质保办、工程管理处、技术处、经营处、组人处、财务处、劳资处、安全处、综合处、办公室等,这些机构包含了从事与质量有关的管理、执行和验证工作的部门和人员。

    项目部与质量有关的部门有质保部、质检部(含试验站)、安全部、技术部、工程部、机务部、财务部、劳资部、合约部、物资部、办公室等。

8.3.2 质量保证机构

(1) 总部质保办

    质保办是独立行使质量保证职权的管理部门,其主要职责是通过组织内部质量体系审核及平时的质保监督,及时发现存在的或潜在的问题,责成责任部门采取纠正和预防措施,质保人员跟踪验证,从而确保质量保证体系的有效运行。总部质保办向管理者代表报告工作。

(2) 项目部质保部

    质保部是项目部内独立行使质量保证职权的管理部门,其主要职责是通过参与内部质量体系审核及进行平时的质保监督,发现存在的或潜在的问题并跟踪验证项目部纠正和预防措施的实施,从而确保项目部内质量体系的有效运行。质保部在业务上受总部质保办的监督、协助和指导,在项目部内向项目经理报告工作。

8.3.3 检验和试验机构

  (1) 总部工程管理处

    工程管理处是总部独立行使质量监督、检验、试验的职能部门,其主要职责是监督、指导、检查,通过对进货的产品、过程中半成品及最终产品的检验和试验,确保不合格的产品不使用、转序或交付。工程管理处向总部主管质量的领导报告工作。

  (2) 项目部质检部(下设试验站)

    质检部是项目部内独立行使质量监督、检验、试验的职能部门,其主要职责是具体实施项目部内进货产品、过程中半成品及最终产品的检验和试验工作,对不符合规范规定施工或对工程质量造成严重危害的施工方法的操作过程有权加以制止,对经核实不符合质量标准的项目有权制止继续施工,确保项目工程质量。下设的试验站负责对工程所用材料检测工作,由质检部直接领导。质检部向项目部总工程师报告工作。

8.3.4 以顾客为关注焦点

    我们将实现顾客满意作为本单位质量方针和质量目标的重要内容。

  (1) 规定识别顾客明确的或隐含的需求和期望的职责权限、工作程序并控制执行。

  (2) 将顾客的需求转化为产品的技术和服务的要求。

  (3) 通过质量管理体系的有效运行,实现顾客要求。

  (4) 制定各种激励政策,鼓励员工主动在满足顾客要求方面提出改进措施,并对切实可行的改进措施积极采纳。

8.3.5 质量保证体系组织框图

质量保证体系组织框图

 

 

 

 

 

 

 

 

 

 

 

 

 

 

 

 

8.4、工程质量保证措施

8.4.1 生产过程控制

生产过程控制从签订合同,完成设计图纸后开始,其控制程序如下图所示:

 

 

 

 

 

 

 

 

 

 

 

 

 

 

 

 

 

 

 

 

 

 

 

生产过程控制程序

 

8.4.2 采购控制

    物资部根据工程部编制的材料请购计划和技术要求制定材料采购计划,对于构成工程产品的结构材料,将对供应厂商进行调查、评价,确定其为合格的分供方后,才能实施采购,以确保工程用材料的质量满足规定的要求。结构材料进场时,要求厂家提供材质证书,之后,由工地试验站按规定进行抽样检验。

8.4.3 检验和试验控制

8.4.3.1 进货检验和试验

    用于工程的所有的结构材料进场后,均应对其验证合格后方能用于工程。对于对工程质量影响较大的材料(如钢筋、水泥、砂、碎石等),除应由供贷单位提供材料出厂材质证明书外,进场后还应按规定由项目试验站进行抽样检验,当试验项目超出项目部实验站的能力范围,可委托具有相应资质等级的试验单位进行试验。对于无法进行检验的结构材料,应由质检员对其外观和厂家提供的材质证书进行验证,合格后方能用于工程。结构材料检验程序如下图所示:

   

 

 

 

 

 

 

 

 

 

 

 

 

 

 

 

 

 

 

 

 

 

 

 

 

 

 

结构材料检验程序

 

8.4.3.2 施工过程检验和试验

  (1) 根据国家有关规范的要求,对本工程进行分部、分项工程的划分,施工时对各工序、分项工程、分部工程逐级进行检查控制、验收和评定,以确保本工程质量达到优良标准。

  (2) 设立质量管理点

    对工程主要部位,影响质量的关键工序或材料作为重点控制对象,即以质量管理点加以控制管理。施工前按设计要求、规范、标准等制定相应的技术措施、检查手段、工具、方法,并制定成文件。

  (3) 施工中严格按照下图所示的质量监督检查程序搞好工程质量的自检、互检和监督检查:

 

 

 

 

 

 

 

 

 

 

质量监督检查程序

 

 

 

                   质量监督检查程序

 

  (4) 测量基线、水准点、隐蔽工程的检查验收

    基线、水准点在项目部自检合格的基础上由上一级派出专职的测量工程师进行复查验收,经测量工程师检查合格后报业主代表和监理复核确认,经监理工程师检查确认后方能开始后续工序的施工。

    隐蔽工程在项目部质检员自检合格的基础上报请业主代表和监理工程师检查验收,经检验签认后,方能进行下一工序的施工。

8.4.3.3 最终检验和试验控制

    当所有的进货、工序、分项和分部工程检验和试验均已完成且验证合格后才能进行最终的工程验收。项目部质检部负责组织收集、整理竣工资料,检查否齐全及准确无误之后向总部递交完工申请,由总部派出验收小组对工程实物质量及竣工资料进行验收,合格后方能向业主申请验收。星欣设计图库资料专卖店拥有最新最全的设计参考图库资料,内容涉及景观园林、建筑、规划、室内装修、建筑结构、暖通空调、给排水、电气设计、施工组织设计等各个领域的设计素材和设计图纸等参考学习资料。是为广大艺术设计工作者优质设计学习参考资料。本站所售的参考资料包括设计方案和施工图案例已达几十万套以上,总量在数千G以上。

 图库网址http://www.xingsc.cn

ftp://xingxin.oicp.net

联系QQ447255935

电话:13111542600