安徽省某段高速公路施工组织设计

目录

              3

              3

              5

              7

              15

              17

              20

              21

              34

              124

              125

              129

              130

              133

              134

              135

              137


第1章安徽某大桥施组

第1节工程概况

本合同段路线位于岳*****村,起迄里程K117+008K112+120,全长4.112Km。路线三次跨越105 国道后,止于**屋隧道内。主要控制点有:国道105、秦河及**屋隧道进口位置。

1主要设计标准

序号

单位

技术指标

序号

单位

技术指标

1

公路等级

 

高速公路

6

最大纵坡

%

4

2

路线长度

4112

7

最大坡长

4100

3

行车速度

Km/h

80

8

桥梁荷载

 

公路-I

4

路基宽度

24.5

9

洪水频率

 

特大桥:1/300 其余:1/100

5

最小曲线半径

700

10

地震烈度

 

1.2 主要工程数量

序号

单位

数量

备注

1

路线长度

公里

4.112

 

 

2

路基土石方

 

填方

千立方米

154.394

断面方

 

挖方

千立方米

186.944

断面方

3

路基防护及排水

 

浆砌片石

千立方米

2.000

 

水泥砼

千立方米

0.223

 

4

挡土墙工程数量

千立方米

0.322

浆砌片石

5

特大桥

/

1010/1

 

大桥

/

1075.8/2

 

涵洞

2

 

6

隧道

分离式隧道

/

2605/1

单洞总长

1.3 工程条件

地质 地层为岩性岩浆侵入形成的花岗岩、花岗岩脉岩,全风化层普遍厚度不大。

气象 项目区属北亚热带湿润季风气候类型,具有季风显著、四季分明、气候温和、雨量充沛、光照充足、无霜期长等气候特点,常有旱、涝、风、雹等自然灾害发生。

水系 区域内地表水较为发育,主要为秦家河支沟河流,常年流水不断,水质清澈无污染,地表水和地下水对砼无腐蚀性。

地震烈度 根据《中国地震动峰值加速度区划图》,路线经过区域地震基本烈度为度。

工程材料:

片石、碎石 本合同段现有石料场3 处,分布于岳*、潜山两县。石料场有少量开采。

砂场分布在潜山县水吼镇及野寨镇两地。为中粗砂,储量丰富。

潜河岸边有105 国道运输便利。

水泥 工程所需水泥可采用巢湖水泥厂、安庆红旗水泥厂、皖西中天集团、寿县水泥厂等厂家生产的符合设计要求的优质水泥。

1.4 建设工期

业主建设工期24 个月,计划2005 6 30 日开工。

 

第2节工程特点分析

2.1 工程特点

本合同段的主要工程特点可归纳为以下四点:

一是桥隧密集。桥梁占线路长度的50.85%,隧道占31.75%,几乎是桥隧相连,工程量大。

二是场地狭窄。本合同段位于大别山腹地,设计标准为山岭重丘高速公路。沿秦河一线山峦叠嶂,地形复杂,山坡陡峭,施工场地极为有限。

三是运输困难。本合同段沿线山势起伏陡峭,既有道路极少,运输条件差,基本无直接进场道路,需要修建相当数量的施工便道以用于施工设备、建筑材料和隧道、路基弃方运输。施工便道开劈困难。

四是施工难度大。本合同段桥隧密集,工程规模大,技术含量高,施工场地窄小,运输条件差,地方供电有限,施工现场自然条件困难。

本合同段三座桥梁具有明显的设计共性与特点:河东特大桥结构与秦家河大桥相似,而两桥的引桥结构又与桐树湾大桥相同,为了突出重点,本施工组织设计拟以极具代表性的河东特大桥作为重点进行编制,故对秦家河和桐树湾大桥不予赘述。

2.2 重点和难点工程

1)、河东特大桥 该桥设计长1010m。桥梁跨径组成:8×30m+(66m+4×120m+66m)+5×30m。主桥为6 P.C.变截面连续刚构-连续箱梁组成,单箱单室截面,梁高6.62.6m0 号段以外梁底按二次抛物线变化。主桥桥墩采用砼薄壁空心墩。主桥墩高3283m,桩基础。引桥上部结构为30m 等截面砼先简支后连续箱梁,下部结构采用钢筋砼桩柱墩,桩基础。

该桥长度占主线桥梁的48.5%,也是本合同段最大的桥梁工程。由于其结构较为复杂,工程量大,技术含量高,现场地形起伏大,进场道路艰难,施工场地狭窄,该桥将成为本合同段的重点和难点。

2)、秦老屋隧道 该隧道主线左线长1290m,右线长1315m。由于两相邻合同段分界点处于该隧道中部,施工时只能单口掘进,工序多,循环效率有限,隧道弃碴运距远,运输道路困难,施工周期长,加上该隧道直接与桐树弯大桥相连,进口处地势陡峭,场地狭小,桥隧施工相互干扰,将影响本隧道的正常施工。此隧道施工也将成为该合同段的重点和难点。

 

第3节总体施工部署

3.1 施工组织机构设置

根据本项目工程合同和施工管理的需要,按项目法组织施工。成立以项目经理总负责,工程技术人员为主要管理力量的项目经理部。

 

 

 

 

 

 

 

 

3.2 队伍部署、任务划分

队伍部署和任务划分一览表

项目经理部

K119+400 300

全合同段管理

桥梁工程一队

K118+120 180

河东特大桥施工

桥梁工程二队

K119+100 120

秦家河和桐树湾大桥施工

预制安装工程队

K117+400 路基上,K118+900 右侧270 米,K119+600路基上

全合同段箱梁预制安装 及砼搅拌

隧道工程一队

K119+800 110

左幅隧道施工

隧道工程二队

K119+750 50

右幅隧道施工

路基工程队

K117+200 120

全合同段土石方及防护工程施工

3.3 人员计划

项目管理人员计划表

 

 

 

 

 

名称

定员(人)

名称

定员(人)

备注

项目经理(正副)

2

安全监察室

2

含专业工程师

总工程师

1

环保部

1

工程管理部

工程测量室

3

办公室

1

工程技术室

4

派出所

1

计量合同室

1

财务部

2

计划统计室

1

机物部

2

工地试验室

5

生活及后勤人员

5

质量监察室

1

合计

32

施工人员计划表

序号

管理人员

技术工人

普通工人

1

桥梁工程一队

500

30

390

80

2

桥梁工程二队

575

34

451

90

3

预制安装工程队

125

7

98

20

4

隧道工程一队

130

8

97

25

5

隧道工程二队

130

8

97

25

6

路基工程队

80

5

65

10

1540

92

1198

250

3.4 临时设施规划

1)、临时便道

线路附近的105 国道三次下穿线路桥梁,可作为主道路。我部根据施工需要,拟在线路附近新建与国道相连和方便施工的的临时便道并整修部分乡村道路以满足施工需要。本合同段共新修便道3850 米,整修便道1750 米。

2)、临时便桥

在临时便道跨跃河沟的地方修建临时便桥以满足施工需要。本合同段在跨越秦河和汇水沟时共需新修便桥91 /3 座。

3)、临时供电

拟利用地方电网就近设置变压器以解决施工用电。为了防止意外停电和因地方供电不足以致影响施工,计划在砼搅拌站、隧道口等用电集中的地方自备发电机组以满足施工需要。

4)、临时供水

秦河水质清澈无污染,可饮用。采用直接抽取秦河水作为生产和生活用水,并在各个搅拌站及生活区分别设置120m350m3的蓄水池以满足生产生活需要。

5)、临时房屋

项目附近可利用的房屋很少,采用全部新建临时房屋以满足生产生活需要。

办公、生活及公用房屋计划表

施工队伍

新建房屋(㎡)

位置

说明

项目经理部

270

K119+400300

含办公生活及公用房屋

桥梁工程一队

2120

K118+120180

桥梁工程二队

2420

K119+100120

预制安装工程队

680

K117+400 路基上,K118+900右侧270 米,K119+600路基上

隧道工程一队

620

K119+800 110

隧道工程二队

620

K119+750 50

路基工程队

430

K117+200 120

合计

7160

 

6)、砼搅拌站

本合同段的砼用量多,达14 万立方米,使用比较分散。因工地运输条件差,为方便施工,根据需要建设四座砼搅拌站:在每座预制场内设置一座砼搅拌站,为箱梁预制和附近桥梁施工提供各种配比的砼;隧道口建一座搅拌站专为隧道施工提供砼。1#2#3#预制场各配一台生产能力4860m3/h HL502F1000 型砼搅拌设备,4#砼搅拌站配一台生产能力7290m3/h HL752F1500 型砼搅拌设备。

7)、预制场

本合同段设计30m 预制箱梁共264 片,考虑到预制箱梁梁体重,便道运输条件差,不便于运输,计划建设三座预制场以满足制梁需要。河东特大桥桥头挖方段路基成型后在K117400 处设一座预制场为河东特大桥0#台引桥提供64 片箱梁预制(1#预制场4600m2),秦家河大桥下面K118900 处设一座预制场为河东特大桥19#台引桥和秦家河引桥提供160

箱梁预制(2#预制场9000m2);桐树湾大桥桥头挖方段路基尽快成型后在K119600 处路基上设一座预制场,为桐树湾大桥提供40 片箱梁预制(3#预制场3400m2);

8)、炸药库

本同段的路基石方和隧道开挖所需要的炸药量比较大,为了满足施工生产需要,按照报批程序,在得到当地公安部门的批准后,于地形安全和相对较偏僻的地方设置炸药库房并派专人看守。炸药和雷管按照规范要求的安全距离分开存放(炸药房24m2,雷管房10m2,看守房24m2,包括安全范围共计占地2 亩)。

9)、油库

本项目施工机械油料使用量大,工地偏僻,油料运输不便,为满足施工生产需要,计划修建油库一座。油库设置在运输方便和安全的位置,并派专人看守。

3.5 临时用地计划

见投标书附表6 临时用地计划表

3.6 施工总平面布置

见表4 施工总平面布置

 

第4节设备、人员动员周期和设备、人员、材料运到施工现场的方法

4.1 人员、设备动员周期

从江西赣定高速公路、陕西107 环山公路、山东国道206 线烟台至黄山馆段高速公路等已完工程项目调遣施工人员、机械设备担负本工程的施工。中标后,对人员进行紧急开工动员。安排人员设备分批进场。

1)、人员动员周期

人员动员周期表

序号

人员分类

人数

第一批

第二批

第三批

2005.6.307.20

2005.7.218.20

2005.8.212006.1.31

1

项目经理部

32

24

8

 

2

桥梁工程

1200

100

250

850

3

隧道工程

260

20

50

190

4

路基工程

80

20

40

20

合计

1572

164

348

1060

2)、设备动员周期

设备动员周期表

序号

单位

数量

第一批

第二批

第三批

第四批

2005.6.30 7.15

2005.7.16 7.31

2008.8.1 8.31

2005.9.1 2006.1.1

1

路基机械

41

15

20

6

 

 

2

桥涵机械

351

51

100

146

54

 

3

隧道机械

140

30

40

70

 

 

合计

532

96

160

222

54

 

4.2 人员、设备、材料运到施工现场的方法

人员:人员乘火车到达潜山,再转乘汽车到达工地。

设备:大型设备利用铁路运输到潜山站,再用大型平板拖车运到施工现场。小型设备采用汽车直接运至施工现场。

材料:本合同的主要材料(如钢筋、钢绞线、水泥、桥梁支座等)的采购和管理,按业主在工程实施中下发的具体管理办法实施。地方产砂、石料,经试验和监理工程师批准后,直接与料场签订合同,利用社会运输力量运到施工现场。燃油就近与石油公司签订合同,用自备油罐车直接运至工地油库。其余材料就近采购。

 

第5节施工进度计划

5.1 总体计划目标

本合同段业主要求总体工期24 个月,计划23 个月完成本合同段工程,比业主计划工期提前1 个月竣工。

5.2 阶段工期控制目标

阶段工期控制目标

序号

项目名称

施工准备

施工

竣工交验

1

桥梁工程

2005.6.302005.7.31

2005.8.12007.4.30

2007.5.12007.5.31

2

隧道工程

2005.6.302005.8.31

2005.9.12007.4.15

2007.4.162007.5.31

3

路基工程

2005.6.302005.7.31

2005.8.12006.9.15

2006.9.162007.5.31

5.3 分项工程进度计划

分项工程进度计划表

序号

计划开工时间

计划完成时间

计划作业时间()

1

2005.8.1

2006.9.15

13.5

2

桥梁工程

河东特大桥

桩基

2005.8.1

2005.11.30

4

承台

2005.9.1

2005.12.31

4

墩台

2005.10.1

2006.7.31

10

悬浇主梁

2006.4.1

2006.12.31

9

引桥箱梁预制

2005.10.1

2006.9.30

12

引桥箱梁安装

2005.11.16

2006.11.15

12

桥面系

2006.11.16

2007.4.30

5.5

其他桥梁

基础工程

2005.8.1

2006.2.28

7

墩台

2005.9.1

2006.8.31

12

悬浇主梁

2005.4.1

2006.11.15

7.5

箱梁预制

2005.10.1

2006.10.31

13

箱梁安装

2005.11.16

2006.12.15

13

桥面系

2006.10.1

2007.4.30

7

3

隧道工程

洞口及明洞

2005.9.1

2005.11.30

3

洞身开挖及支护

2005.12.1

2006.12.31

13

洞身衬砌

2006.1.1

2007.2.15

13.5

洞内水沟、路面

2006.10.1

2007.3.15

5.5

洞内安装、装饰

2007.1.1

2007.4.15

3.5

5.4 施工总体计划

见表7 施工总体计划表

5.5 施工网络计划

见附件:施工网络计划图

 

第6节各分项工程施工顺序

6.1 总体施工顺序安排基本原则

根据本合同段工程的特点,为了保证重点、确保工期,实现连续和均衡施工,拟优先安排施工工程量大、结构复杂、工期长的河东特大桥、秦家河大桥和秦老屋隧道。对工程量小,施工难度不大的路基、防护、排水工程作为主体工程的调剂和配合,安排在主体工程中穿插进行,以保证各项工序的有序衔接。总体施工顺序安排遵循先重点,后一般;先主体,后附属;先通右幅,再通全幅的基本原则。

6.2 各分项工程的施工顺序

1)、桥梁工程 本合同段设计桥梁三座,其中特大桥一座,大桥二座。全线桥梁总长占设计线路长度的51%。由于桥梁密集,桥隧相接,桥梁工程施工顺序的安排显得尤为重要。施工时,拟按先重点,后一般;先主桥,后引桥的次序组织施工。

2)、隧道工程 秦老屋隧道单洞2605 延长米,占合同段总长的32%,是本合同段的重点和难点。按双洞单口同时施工。整体顺序为:先明洞,后洞内开挖、支护,然后衬砌,最后进行水沟、路面和装饰施工。洞内路面施工由里向外。

3)、路基工程 根据本合同段桥隧密集,路基工程量小,大部分挖方需要废弃的工程特点,为了给施工运输和桥隧施工创造条件,计划首先修筑进场道路,配合桥梁预制场地和洞口临时设施施工,将断面内挖方用于便道和场地填筑,其次在设计断面内移挖作填,最后按规划的弃碴场集中弃运。

 

第7节主要工程项目的施工方案、施工方法

7.1 桥梁工程施工方案、施工方法

根据该合同段桥梁工程量大,施工条件艰巨的特点,为了保证工程质量和建设工期,拟采取以下施工方案。

1)、砼工程:全线建立4 座搅拌站,配备搅拌能力4860m3/h 的搅拌楼3 座,7290m3/h 的搅拌站1 座,承担全线桥梁、隧道、箱梁预制场的砼集中供应任务。现浇砼采用砼搅拌运输车运输,砼输送泵灌注。

2)、钻孔灌注桩施工:采用反循环冲击钻成孔,钢护筒加固孔口,检孔器检孔,抽浆法清孔,汽车吊吊装钢筋骨架,导管法灌注。水下砼采用搅拌站集中搅拌,砼搅拌运输车运输,砼泵灌注。

3)、挖孔灌注桩施工:部分桩位因纵、横向地面坡度较大,机械无法成孔。无地下水时,采用人工挖孔灌注桩。施工时用砼护壁,慢速卷扬机提升,遇岩石须爆破时采用浅孔松动爆破,电雷管引爆。通风法抽烟。

4)、主桥桥墩施工:采用翻模施工,塔吊垂直运输,厂制大块钢模现场拼装,集中加工钢筋,现场绑扎成型。集中供应砼,搅拌运输车运输,泵送入模。

5)、主桥连续箱梁施工:采用菱型挂篮对称施工,塔吊垂直运输,厂制大块钢模,制式拼装现浇支架,集中拌制砼,泵送浇筑。

6)、组合箱梁预制、架设:本合同段设计30m 组合箱梁,共264 片,拟分散就近预制,预制场设120t 龙门吊,承担场内材料运输、移梁和装车作业。采用厂制钢模板,搅拌站集中供应砼,低压泵送灌注,插入式和附着式振动器振捣,自然养生。架桥机架设。

7)、桥面铺装:按设计宽度加工强度和刚度满足施工要求的桁架式振捣梁,采用半幅一次浇筑成型方式施工。

7.2 隧道工程施工方案、施工方法

本合同段主线隧道2605m/1 座,拟2 个隧道队平行作业。

隧道采用新奥法施工。按短开挖、弱破爆、强支护、勤量测、紧跟衬砌的原则组织施工。

1)、洞身开挖:采用钻爆法,人工配合机械钻眼;级围岩采用分部开挖,级围岩采用正台阶法,级围岩全断面法。

2)、洞身支护:采用超前小导管、超前锚杆、钢拱架支撑、挂网锚喷联合支护体系。不同围岩根据设计采用不同联合支护体系。

3)、洞内出碴:采用机械挖、装、运。

4)、洞身衬砌:采用全断面一次性衬砌,砼集中拌和,砼搅拌运输车运输、泵送灌注。

5)、洞内运输:采用无轨运输方式。

6)、洞内排水:采用逐级抽排方式。

7)、洞内通风:采用压入式通风。

7.3 路基工程施工方案、施工方法

路基工程挖土方7.5 万方,挖石方11.2 万方,填方15.4 万方。防护及排水工程约3000 方。

1)、施工方案

路基土石方采用机械化、人工辅助施工。涵洞采用机械开挖基础人工砌筑。盖板、小型构件集中预制。防排水工程人工砌筑,机械拌制砂浆。

2)、施工方法

土石方:土方采用挖掘机开挖;石方采用潜孔钻钻孔,边坡采用预裂爆破,中间松动爆破开挖,非电起爆系统起爆。挖掘机装土,自卸汽车运输,分层填筑及振动压路机碾压。

涵洞:挖掘机开挖,人工砌筑基础、墙身砼采用拼装模板现场浇注,砼集中供应,吊车安装盖板。

防排水:人工开挖及砌筑,搅拌机拌和砂浆。

小型构件预制:预制厂预制,运至现场人工安装。

3)、路基工程施工顺序

1)、施工便道:为便于桥涵、隧道施工设备尽早就位,优先开辟主桥和隧道口施工便道。在线路左侧105国道有一条土路与隧道口相连,计划将这条土路加宽,并新建便道110米与隧道口相连。

2)、场地清理:路基清场采用挖掘机清除表层土,自卸汽车运至弃土场。清场次序计划为:桥涵 隧道 路基。

3)、路基填筑:在K119+495+646K117+496两处计划设置预制厂,先期施工此两段,再施工K118+502+585及起点段路基土石方。填石路基,石块最大粒径路床顶面以下025cm内不超过10cm2550cm内不超过17cm50cm以下不超过27cm9496区填筑完成后,按业主对压实度的要求补充压实。

、填土施工工艺流程

、填石施工工艺流程

4)路堑开挖:

土方开挖:采用挖掘机由上而下分层开挖。

石方开挖:采用芬兰CHA660型潜孔钻钻孔,边坡2m范围按挖方边坡分级逐级采用深孔微差预裂爆破一次成型,中部采用深孔微差松动爆破,塑料导管传爆,非电起爆系统起爆,边坡孤石以人工凿平,炸药选用2号岩石硝铵炸药,炮孔装药结构如下图示。

    

 

主炮孔装药结构示意图                 预裂孔装结构示意图

注:h1底部装药长度,h2中间装药长度, h0炮泥堵塞长度, a空气柱长度。

、石方爆破施工工艺流程

 

5)、填挖交界及半填半挖施工

、填挖交界:沿线路纵向在路床范围内挖 10m长超挖段,深度为路床顶以下80cm处,并在路床上、下两面铺设双向土工格栅。

、半填半挖:原地在坡度大于15坡面,挖2米宽并向内倾斜4%坡度的台阶,沿线路纵向设置15m填筑过渡段,土质地段采用级配较好填料,石质地段采用填石路堤过渡,并在台阶上、下两面铺设双向土工格栅。

、施工工艺流程

 

 

 

 

 

 

 

 

 

 

 

 

 

 

 

 

 

 

 

 

 

 

 

 

6)、防护排水施工

、为防止路基冲刷水毁,结合沿线地形地质特点,路基以集中排水为主,散排水为辅,并在充分利用自然地形条件的基础上,将汇

集在路基范围内的水通过边沟、排水沟、横向排水涵等排水设施引离路基,施工时在路基填方段两侧结合永久排水系统挖临时排水沟及临时急流槽,路堑分层开挖防止积水,并与临时排水连通。

、喷播草子

将草子、营养液、高效肥料、稳定剂、添加剂、水按一定比例采用机械拌和均匀湿式喷法进行喷播。

、喷播草子施工工艺流程

 

 

 

 

 

 

 

 

 

 

 

 

 

 

 

 

 

 

 

 

 

 

 

 

 

 

 

 

 

 

 

 

第8节重点和难点工程的施工方案、方法、工艺流程及其措施

8.1 河东特大桥

河东特大桥桥长1010m,位于R=1500m 的平曲线和R=60000m 的竖曲线上。全桥跨径组合为8m×30m+(66+4×120+66)m+5×30m,主桥设计为变截面预应力砼连续刚构-连续箱梁。引桥采用装配式部分预应力砼连续箱梁。下部结构主桥采用空心薄壁墩、承台、桩基;引桥采用柱式墩、桩基、桩柱式和肋式桥台。

8.1.1 桩基施工

本合同段共有桩基5086 /304 根。其中河东特大桥有2848 /136根,桩长1230m,桩径1.52.0m,为嵌岩桩。桩基直径大,嵌入岩层深,石质坚硬,施工难度较大。

8.1.1.1 桩基施工方案

桩基主要采用反循环冲击钻成孔。部分桩因为地面纵横向坡度大,机械成孔困难,无地下水时,采用人工挖孔施工。钢筋笼集中分段制作,运至施工现场后焊接,汽车吊吊装入孔。砼由搅拌站集中提供,搅拌运输车运输,导管法泵送灌注。

8.1.1.2 桩基施工方法

1)、钻孔方法

根据桩位地质条件、桩径和孔深,采用CJF-20 型和JH-300 型反循环冲击钻成孔。

2)、钻机地基加固

根据现场地表松散土质、钻机自重大、主墩桩位密集的特点,为了避免钻机在钻进过程中下沉失稳,影响钻孔垂直度,拟对钻机地基采取平整压实后铺垫枕木的加固措施。

3)、泥浆池设置

为了减少钻孔施工时泥浆对环境的污染,计划左右幅两个桥墩桩基施工时共用一个泥浆池。

8.1.1.3 桩基施工工艺流程

1)、钻孔桩施工工艺流程

1)、施工准备

修建必要的临时道路以满足钻机进场,对场地进行平整、压实和地基加固,并做好排水系统。放出桩位,并做好护桩,复查后钻机就位。

2)、护筒埋设

采用人工开挖埋设护筒,其直径大于桩径2040cm,露出地面高度及埋设深度符合规范及施工要求。

3)、泥浆拌制

采用优质粘质土或膨胀土调制合适的钻孔泥浆。

合理布设泥浆池,储浆池、沉淀池。泥浆循环系统示意如下图:

泥浆循环示意图

 

4)、钻进施工

、钻机准确就位,保持稳定。

、钻进时,根据地质条件控制进尺速度。钻进中,如遇地质情况与设计发生差异,及时报告处理。

、护筒内水位缓慢下降时,要及时补浆。如泥浆太稠进尺缓慢时,应及时抽换泥浆。

、为控制泥浆比重,及时取样进行检查,并对泥浆稠度进行调整,确保其满足施工要求。

5)、检孔

孔深达到设计标高后,及时按监理程序对孔径、孔深、平面位置、垂直度及孔内沉淀物等进行检测。

6)、清孔

当钻孔至设计标高后,将钻头提起,进行第一次清孔,直至泥浆合格。钢筋笼就位后进行二次清孔,直至孔底沉渣厚度符合设计及规范要求。

7)、钢筋笼制作安装

、钢筋笼在加工棚内加工成型,钢筋骨架内加焊内撑架以保证有足够的刚度。

、为便于运输、吊装和减少就位时接头数量,根据钢筋笼骨架总长合理确定单节长度,安装时再分段焊接。搭焊接头按规范要求错开。钢筋笼采用吊车吊装就位。

、骨架横向圆周按设计要求均匀设置保护层厚度定位钢筋,以保证骨架定位准确。

、钢筋笼顶端应与护筒焊接,使其定位牢固,防止在灌注过程中沉降和上浮。

8)、砼浇筑

砼由搅拌站提供,搅拌运输车运输,导管法泵送灌注。

水下砼灌注示意图

、砼储料容量应满足桩基首批砼的灌注量要求。

、根据灌注时间,按规范要求可在砼中加入适当减水剂和缓凝剂以加强砼流动性及延长初凝时间。砼连续灌注,中间不得间断。

、导管采用高强钢管制成,使用前进行水密、承压和接头抗拉试验。首批灌注砼数量应能满足导管初次埋置深度和填充管底部间隙的需要。

、在整个灌注时间内,管底应在砼顶面以下2m,以防止泥浆及水冲入管内,且不宜大于6m

、灌注桩顶标高应比设计标高高出一定高度,以保证桩顶砼强度。

9)、桩基检测

桩基灌注完成后,按招标文件和技术规范要求对桩基进行检测。

2)、挖孔桩施工工艺流程:

 

 

 

 

 

 

 

 

 

 

 

 

 

 

 

 

 

 

 

 

 

 

 

 

施工控制措施:

1)、根据地质情况选择合适的孔壁支护方案。

2)、遇岩层须爆破时应专门设计,爆破后应通风排烟并经检查无有害气体后,方可下井继续作业。

8.1.2 承台、主墩施工

8.1.2.1 承台施工方案

承台基坑采用机械开挖、人工辅助修整。采用大块钢模板,集中加

工钢筋,运至现场绑扎成型。由搅拌站集中供应砼,搅拌运输车运输,

泵送入模,插入式振动棒振捣。

8.1.2.2 承台施工方法

1)、桩头处理

承台基坑开挖至设计标高后,对高出设计部分的桩头,砼强度达到规范和设计要求后进行凿除。

2)、基坑开挖

土方基坑采用机械开挖,人工辅助修整。基坑四周设引水沟将水汇入集水井排除。石方基坑采用小型机械打孔,小型松动爆破,机械出碴,人工辅助修整。基底浇筑一层10cm C15 砼垫层。

3)、模板

承台采用大块钢模现场拼装。

4)、钢筋

在钢筋加工棚集中加工,运至施工现场绑扎成型。钢筋与侧模、底模间用同标号砼垫块支撑,以保证钢筋保护层厚度符合要求。

5)、砼施工

1)、配合比设计

主墩单个承台砼数量达321.4m3,配合比除满足设计强度的同时尽量降低水泥用量。砼数量大,施工浇筑时间较长,必要时在砼中加入适量缓凝剂以适应施工需要,配合比经过对各种材料的优化选择,并经过多次试配后确定。

2)、砼浇筑

、采用分层连续浇筑,可利用砼层面散热,便于振捣,分层厚度为30cm。层内砼从承台一边开始,向对边水平、满幅、连续浇筑,并在下层砼初凝前或能重塑前浇筑完成上层砼,保证层间无冷缝发生。

、砼采用插入式振动棒振捣密实。振捣时应快插慢抽,严格控制振捣时间,避免因振捣不密实,出现蜂窝麻面,或因振捣时间过长而产生离析。

、在砼振捣平整以后,初凝之前进行表面抹压,以清除早期产生的塑性裂纹。

、砼拆模后立即进行覆盖养生。

8.1.2.3 承台施工工艺流程

 

 

 

 

 

 

 

 

 

 

 

 

 

 

 

 

 

8.1.2.4 主墩施工方案

主墩采用翻模施工。厂制大块钢模板。塔吊垂直运输。模板现场拼装。钢筋集中加工,现场绑扎成型。由搅拌站集中供应砼,搅拌运输车运输,泵送入模,插入式振动棒振捣。

8.1.2.5 主墩施工方法

1)、模板

根据空心墩设计高度和截面尺寸及现场施工条件,翻模设计为3 节,每节高2 米,每节4 块。加工时将横桥向和顺桥向模板加工成大致相等长度,每节模板靠近顶部附设一工作平台,以方便施工。每节模板上下、左右对接口及预留孔位置要精密加工,保证每节模板之间都能精确拼装。模板采用企口缝并用双面泡沫胶带压缝,保证模板的密封性。内模采用大型组合模板。

立模时,先立外模,绑扎好钢筋后,再立内模。立内模时,可与搭设内支架平台同时进行。

主墩翻模施工模板防倾覆,主要采用外模、内模及井架平台固结的方法,确保模板稳定。

模板安装平面图示意如下:

墩身模板的施工顺序是:当第一节砼浇注完毕并已达到强度要求后,先将A 模拆除,然后将其安装并固定在C 模上,A 模装好后,同样将B 模拆下,安装在已就位的A 模上,C 模不动,这样第二节砼的模板安装完毕。以后每节砼浇注时模板的翻升依此类推,以此实现翻模施工。墩身模板施工程序如下图示:

2)、钢筋

钢筋在钢筋棚内集中下料、加工,并绑扎成钢筋网片,运至现场拼装成型。

3)、砼施工

浇注砼时,在墩顶搭设临时工作平台,砼由砼泵输送到平台,由人工辅助入模。浇注时均匀分层进行,层厚控制在30cm 以内,及时振捣。

4)、桥墩砼施工措施

1)、模板组装前,应在基础顶面放出墩台中线及墩台实样。

2)、在每层砼灌注前,应将已浇筑砼表面清扫干净。

3)、砼灌注速度:桥墩砼的配制、输送及灌筑的速度必须满足下式:VSh/t

式中:V---砼配制、输送及灌筑的容许最小速度以m3/h

S---灌筑的面积

h---灌筑层的厚度

t---所用水泥的初凝时间以小时计

4)、在砼灌筑过程中,应随时观察所设置的预埋螺栓、预留孔等位置是否移动,若发现移位应及时纠正。

5)模板翻转时结构的砼强度必须满足拆模时的强度要求。

5)、施工垂直运输

主墩施工及主梁悬浇时,除砼采用砼泵输送外,其他大量钢筋、模板、挂蓝、预埋件等施工材料均需作垂直运输,故需安装一台可靠、效率高能满足施工技术要求的塔吊。

塔吊安装:基底施工完毕,砼达到一定强度后,方可进行塔吊安装。塔吊安装前必须对基座顶面进行找平,保持塔吊底面在同一水平面上。为保证塔吊的稳定性,在墩身横隔板处(墩身每20m 设置一个横隔板)埋设附着点,塔吊通过支撑臂与附着点连接。塔吊施工如下图示。

塔吊施工示意图

8.1.2.6 主墩施工工艺流程

 

 

 

 

 

 

 

 

 

 

 

 

 

8.1.2.7 大体积砼温控措施

承台设计尺寸为11.2m×8.2m×3.5m,薄壁墩身截面尺寸为6.5m×6.0m,均为大体积砼。其水泥水化热量大,内外温差过大就可能使砼产生裂缝。为了防止裂缝发生,采用内散、外蓄、保温的养护方案。具体措施如下:

1)、优化配合比,选用合适的水泥品种,适量减少水泥用量,在经许可的条件下掺合部分优质粉煤灰以减少水泥水化热。

2)、控制砼的入模温度,砼原材料要防止日晒,砼在运输过程中采取降温措施,在浇筑过程中减小浇筑层厚,以加快砼散热速度。

3)、砼浇筑完成后采用蓄热法养生,以减少砼内外温差。砼内外温差控制在25以内。

4)大体积砼的浇筑在一天中气温较低时进行。

8.1.3 主桥箱梁挂篮施工

主桥箱梁长度为66+4×120+66=612m,采用单箱室断面,根部梁高6.6m,跨中梁高2.6m,梁底曲线按二次抛物线变化。顶板宽度11.8m,底板宽度6.5m,两侧翼板悬臂长度2.75m,采用挂篮分段悬浇施工。

8.1.3.1 主桥箱梁总体施工方案

主桥箱梁拟在墩旁支架上浇筑0 号、1 号段以后,2 号至合龙口梁段采用挂篮对称施工。

1)、0 号、1 号段施工

将墩顶0 号段和两个与之对称的1 号段作为一个施工单元采用墩旁支架法现浇施工。梁段采用全断面一次浇筑成型施工方案。

2)、2 号~14 号悬浇段施工

连续梁0 号段与墩身临时固结后,2 号~14 号梁段采用挂篮对称悬臂浇筑。根据连续梁设计分段长度、梁段重量、外形尺寸、断面形状及各种施工荷载,确定采用菱型挂篮。

3)、边跨现浇段施工

边跨现浇段采用膺架法施工。膺架利用六五式军用墩及型钢按一跨搭设。为避免支架基础产生不均匀沉降,临时墩基础均采用桩基。靠近8号及14 号墩旁的临时墩支立在该墩承台上。

4)、合龙段施工

按设计要求该箱梁按先边跨,后次中跨,最后中跨的顺序对称同步进行合龙。除边跨合龙段利用部分膺架进行合龙外,中间合龙段采用吊架施工。

5)、砼施工

本桥各部位所需砼采用搅拌站集中供应,砼搅拌运输车运输,砼输送泵输送入模。

6)、悬浇施工中的挠度控制

悬浇施工中梁体由于受自重、温度、外荷载等因素影响会产生挠度,砼自身的收缩、徐变等因素也会使箱梁产生标高变化,这种变化随着跨度的加大而增加。为了使成桥后的桥面线形达到或接近设计曲线,便于顺利合龙,必须在悬臂浇筑时进行标高控制。为此,本桥拟采用现场观测的方法,对已浇筑或准备浇筑的梁段进行跟踪观测,以此随时控制施工的梁底高程。

8.1.3.2 0 号、1 号段施工

1)、支架设计与施工

支架采用六五式军用墩于墩身两侧对称布置,横向6 排立柱,间距按2.0m 标准间距排列,纵向为满足悬臂长度需要而布置2 排,间距仍为2.0m。为加强支架横向稳定性,墩身预埋铁件与军用墩立柱联结,墩身两侧立柱节点用20 号槽钢和螺栓联结,支架上铺设槽钢,组成支架平台。支架作为抗倾覆措施待合龙后拆除。

2)、模板设计与施工

1)、0 号段模板设计

0 号段设计有两道横隔板,其结构尺寸复杂,内模采用木模板。为提高砼外观质量,外模板采用优质胶合板。内外模均采用木框架支撑。

2)、1 号段模板设计

采用挂篮内外侧模板和内外侧模框架。内侧模为组合钢模板,外侧模板则为钢框胶合板,内外模架均为钢结构,模板与框架用钩头螺栓联结。内模框架悬浇时固定在走行梁上,用于1 号段时用方木临时支撑在钢板凳上。

3)、模板安装

模板用墩旁塔吊按梁段整体吊装就位,吊装顺序为先远后近、先外后内、外侧模就位后用缆风绳固定,以增强其稳定性。

4)、内模上浮控制

0 号、1 号段一次浇筑成型时,砼对箱梁内模有较大的上浮力作用。为防止内模移位,于内外模之间设多道φ20 钢筋拉杆固定,外侧模上端部采用长拉杆固定,外侧模框架坐于底横梁上,用扒钉钉牢。

3)、支架预压

0 号、1 号、1号段梁体砼268m3,重达697t,为了减小膺架变形,

支架设计采用六五式军用墩拼装成多支点连续梁。

根据各节段砼重量与分节情况,于重量分配位置按荷载预压方式施加预压重,以消除非弹性变形,测定弹性变形量,并据此确定该梁段底模高程。

施工预压加重时,考虑到上部加载条件困难,拟采用在承台砼浇筑时,于施工设计位置预埋铁件,上部支架重量分配位置固定钢绞线,在承台上利用千斤顶和测力装置通过钢绞线施加拉力以达到支架预压的目的。

4)、支座和临时支座安装

永久支座 主梁设计永久支座为盆式橡胶支座,采用墩旁塔吊整体吊装的方式进行安装。

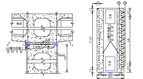
临时支座 为保证施工中的安全,按设计要求设置临时支座,在体系转换后拆除。每个连续梁处主墩上设41.5cm 高,100cm 宽,650cm 长的C40 爆炸砼临时支座和56 JL32 精轧螺纹预应力粗钢筋,墩身预应力粗钢筋张拉后用连接器拉长至箱梁顶面进行张拉,将悬臂梁临时锚固于墩顶上。临时支座拆除时考虑在浇筑临时支座C40 爆炸砼时预留炮孔,放松0 号段顶临时锚固预应力粗钢筋,用控制爆炸方法破碎临时支座,以达到解除约束的目的。

支座临时固结构造

 

5)、砼施工

1)、配合比设计

连续箱梁采用C50 级砼,按泵送砼设计,由于0 号、1 号一次立模整体浇筑,要求砼可泵性好,流动性大,以便于砼泵送和在钢筋、管道密布的条件下入模和振捣。另一方面砼初凝时间需适当延长。

2)、砼运输

0 号、1 号段采用泵送砼一次浇筑成型方案。

3)、砼入模

腹板高度6.6m,厚度70cm,梁高壁薄。腹板、底板砼通过串筒入模,以防止砼自由下落与钢筋管道碰撞产生离析。

4)、砼振捣

底板采用振动力大的插入式振捣固,顶板用插入式振捣器振捣。虽腹板振捣难度较大,但由于砼坍落度较大,采用插入式振捣器也能满足振捣要求。

8.1.3.3 挂篮设计、制作及性能试验

8.1.3.3.1 挂篮主要性能

挂篮要满足以下使用条件,要适用最大梁段重1450KN56.2m3),梁段长度3.54.5m,梁顶宽度11.8m,梁底宽度6.5m,梁高6.62.6m,走行方式为无平衡重自行,每套挂篮自重60T。在13m 长的起步长度内,同时安装2 套挂篮,前后端作业面开阔,便于砼的运输和浇筑,拆模方便,就位准确,便于调整,刚度大,弹性变形小。

8.1.3.3.2 挂篮结构形式

挂篮结构形式采用菱形挂篮,由菱型桁架、提吊系统、走行锚固系统及模板系统共4 部分组成。

1)、菱形桁架

菱形桁架是挂篮的主要承重结构。桁架分两片立于箱梁腹板位置,其间用角钢组成平面联结系,每片桁架除斜杆用2[30b Q235 槽钢组焊而成外,余均由2[30c Q235 组焊,节点处用20mm 节点板和M30 螺栓联结。前上节点处和前上横梁联结,前上横梁由[16a Q235 组焊而成桁架结构,上设10 个吊点,其中4 个吊外侧模,2 个吊内侧模,4 个吊底模架。

2)、提吊系统

1)、前吊带 前吊带的作用是将悬臂浇筑的底板、腹板砼及底模板重量传至桁架上。前吊带由160×32 160×20 两种18Mn 钢板用φ5020CrMnTi)钢销组合而成。前吊带下端与底模架前横梁销接,上端吊在前上横梁上,每组用2 320KN 手动千斤顶及扁担梁调节底模标高。

2)、后吊带 后吊带的作用是将底模架荷载传至已成的箱梁底板。后吊带用3 160×32 16Mn 钢板加工而成,上部设置调节孔,以适应梁底板厚度的变化,下端与底模后横梁销接,上端穿过箱梁底板(预留孔),每个吊带用2 320KN 手动螺旋千斤顶及扁担梁支撑在已成箱梁的底板上。

3)、模板系统 箱梁外侧外框架由L75×75×6 [12 组焊而成。模板围檩,用[10,模板采用大块钢框胶合板模板组装而成。根据梁段的高度和长度可随意接拼和拆卸。外侧模支撑在外模走行梁上,后端通过吊杆悬吊在已浇好的箱梁顶板(在浇筑顶板时设预留孔),后吊杆与走行梁间设有后吊架,后吊架上装有滚动轴承,挂篮行走时,外侧模走行梁与外侧模一起沿后吊架滑行。

内模由内模框架以及组合钢模等组成。内模安置在由内模桁架、竖带和斜支撑组成的内模框架上,内模框架支撑在内模走行梁上,走行梁前端通过倒链悬吊在前上横梁上,后端通过吊杆悬吊在已浇好的箱梁顶板上(在浇筑顶板时设预留孔),后吊杆与走行梁间设有后吊架,后吊架上装有滚动轴承,挂篮行走时,外侧模走行梁与内模走行梁一起沿吊架滑行。底模由底模架和底模板组成。底模纵梁桁架式,用[12 L75×75×8 组焊而成,前后横梁用2[40a Q235 槽钢制作。底模为钢框架胶合板模板,用18cm×16cm 方木垫在底模架上,宽度比箱梁底小8mm,两外缘固定56mm 橡胶条,在浇筑砼时,外模与底模夹紧,以防漏浆。底模架前端连有角钢可组成操作平台。

4)、走行及锚固系统

、挂篮走行系统 在两片桁架下的箱梁顶面铺设两根轨道(轨道用钢板组焊,按梁段长度制作,锚固在竖向筋上)。主桁前端设有前支座,沿轨道滑行(支座与轨道间垫聚四氟乙烯板);主桁后端设有后支座,后支座用反扣轮沿轨道下缘滚动,不需加平衡重,用两个5T 手动葫芦牵引,挂篮即可前移。

、锚固系统 挂篮用φ32 精轧螺纹钢和后锚扁担梁把菱型桁架后节点锚固在轨道上。每片桁架用6 根精轧螺纹钢,整套挂篮用12 根精轧螺纹钢。

挂篮设计图

8.1.3.3.3 挂篮结构计算

1)、设计参数

序号

项目

参数

序号

项目

参数

1

最大梁段自重

145t

7

挂篮与梁段砼质量比值

0.30.5

2

挂复自重

54t

 

8

允许最大变形(含吊带变形总和)

20mm

3

模板及基它机具质量

6t

 

9

施工、行走时的抗倾覆安全系数

 

4

箱梁纵向最大分段长度

4.5m

 

10

自锚固系统的安全系数

 

5

箱梁纵向高度变化

6.62.6m

 

11

斜拉水平限位系统安全系数

 

6

挂篮工作坡度

2.5

 

12

上水平限安全系数

 

2)、结构计算

挂篮设计按弹性理论进行内力和位移分析。根据菱型挂篮的结构与受力特点分成四个部分进行分析,即主桁架、前上横梁、底模前后横梁、底模架纵梁,并对挂篮行走和悬浇时的稳定进行验算。

8.1.3.3.4 挂篮加工制作

1)、菱型桁架各杆件的型钢,选材时严格把关,没有出厂合格证和有挠曲变形者禁止使用。在焊接缀板时,要有工作平台及夹具,均匀施焊,防止杆件变形挠曲。

2)、桁架节点板及各杆件的栓孔,必须制作样板,栓孔的公差为±2mm,孔距的公差为±0.5mm,确保栓孔位置准确,减少安装时的困难和使用时的非弹性变形。

3)、对重要部位的焊接,应由有经验的技工施焊,确保焊接质量。

8.1.3.3.5 挂篮性能试验

按照现行《公路桥涵施工技术规范》要求,在挂篮正式使用前,应于挂篮试拼后进行荷载试验,以验证挂篮的可靠性和消除其非弹性变形,测出挂篮在不同荷载下的实际变形量,为箱梁施工控制提供数据,同时检验挂篮加工制作质量。

为了检验挂篮的设计性能和安全稳定性,以便在施工中消除结构的变形,拟采用试验台加载法对挂篮进行荷载试验。

根据挂篮设计结构尺寸,利用主桥桥墩承台作为加载试验台,用预埋在承台中的拉力筋锚住主桁梁后端,前端按最大荷载计算值施力,并通过穿心千斤顶逐级施加拉力,测出挂篮非变形值和变形数据,以此作为施工中控制悬浇高程的依据。

挂篮试验台试压示意图

 

8.1.4 2 号至14 号悬浇段施工

8.1.4.1 挂篮拼装

墩顶0 号、1 号段施工完毕后,利用墩旁塔吊将已经整体性能试验后的挂篮构件吊上1 号、1号箱梁顶面进行拼装。拼装时按构件编号及总装图进行。拼装程序见下表:

步骤

第1步

第2步

第3步

第4步

第5步

部位

走行系统

菱型桁架

锚固系统

底模板

内外模

1)、在箱梁腹板顶面铺好钢枕、木枕,在竖向预应力筋位置,连接好轨道连接杆(连接杆用45 号钢加工而成),从0 号段中心向两边安装轨道各两根,测量轨道顶面标高,量测轨道中心距,确认无误后,用加工好的螺帽把轨道锁定。

2)、安装前后支座,吊装菱型桁架。由于受起重能力限制,桁架分两片安装,先吊装一片并加以临时支撑后,再吊装另一片,随后安装两片之间的联结系。

3)、用φ25 精轧螺纹钢筋及扁担梁将桁架后端锚固在轨道下的钢枕上,然后吊装前上横梁及前后吊带。

4)、吊装底模架及底模板。

5)、吊装内模架走行梁,安装好前后吊带,安装外侧模。安装前将外侧模走行梁插入外模框架内,并安装好前后吊架吊带,将外侧模吊起,用5T 倒链拖动外侧模至2 号梁段位置。

6)、调整立模标高。根据挂篮试验测出的弹性变形及非弹性变形值,再加上线形控制提供的立模标高定出2 号梁段的立模标高。

8.1.4.2 挂篮行走

每个T 构从2 号、2号段开始,对称拼装好挂篮后,即进行2 号段的悬臂浇筑施工,施工完2 号段后,挂篮要前移至3 号梁段,其行走程序如下:

1)、2 号、2号梁段顶面找平铺设钢(木)枕及轨道。

2)、放松底模和前后吊带,底模和后横梁用2 10T 倒链悬挂在外模走行梁上。

3)、拆除后吊带与底模架的联结。

4)、解除桁架后端长锚固螺杆。

5)、轨道顶面安装2 5T 倒链,并标记好前支座移动的位置(支座中心距梁端60cm)。

6)、用倒链牵引前支座,使菱型桁架、底模、外模一起向前移动,注意T 构两边挂篮要对称同步前移,以免对墩身产生较大的不平衡弯矩。

7)移动到位后,安装后吊带,将底模架吊起。

8)、解除外模走行梁上的一个后吊带,将吊架移至2 号梁段顶板预留孔处,然后再与吊带联结,用同样的办法将另一吊架移至2 号梁段处。

9)、调整立模标高后,重复上述施工步骤进行3 号梁段的施工,直至14 号梁段。

8.1.4.3 悬浇施工

2 号梁段开始,利用挂篮悬臂浇筑连续箱梁,直至14 号梁段。各梁段施工工艺流程如下图:

8.1.4.4 钢筋安装

为缩短梁段施工循环周期,保证钢筋绑扎质量,梁体钢筋采取预制钢筋骨架式网片,吊装就位。其步骤如下:

第一步:绑扎底板下层钢筋网片。

第二步:绑扎底板管道定位网片。

第三步:绑扎底板上层钢筋网片,底板上下层钢筋网片用л形钢筋垫起焊牢,防止人踩变形以保持上下层钢筋网的设计间距。钢筋架立呈梅花形布置。

第四步:绑扎好腹板骨架钢筋后,再绑扎腹板下倒角的斜筋,安装底板上的锚垫板及螺旋筋,然后穿底板波纹管。

第五步:腹板钢筋骨架内安装曲线管道,固定管道骨架。

第六步:绑扎顶板和翼板下层钢筋。

第七步:安装顶板管道定位网片、顶板锚垫板及螺旋筋,穿顶板波纹管。

第八步:绑扎顶板上层钢筋,用л形架立筋焊在上下网片间,使上下网片保持设计间距。

8.1.4.5 波纹管施工

主桥下弯束和底板束采用塑料波纹管,其它均采用钢波纹管。

1)、纵向管道: 安装时必须用铁丝将波纹管与钢筋托架绑在一起,以防浇筑砼时波纹管上浮而引起严重的质量事故,安装就位过程中应尽量避免反复弯曲,以防管壁开裂,同时,还应防止电焊火花烧伤管壁。

波纹管接头必须用套管旋紧,保证有1520cm 的相互重叠,并沿长度方向用两层胶布在接口处缠5cm 左右。

2)、横向管道: 本桥仅在0 号段横隔板位置设计有横向预应力,其管道在砼浇筑前预先按设计就位。

3)、竖向管道: 它用于放置预应力钢筋,管道极易堵塞,安放时设定位钢筋,保证预应力钢筋准确就位并将压浆管引出梁体外。

8.1.4.6 砼施工

主梁砼的制配采用同一厂家,同一品牌的水泥,尽量采用同一料场的砂、石料,外加剂、脱模剂采用同一品牌的产品,以求保持外观色调一致。

1)、配合比设计

砼除保证砼28d 强度标准值达到设计要求外,还要保证3d 强度达到设计强度的80%,即40MPa

2)、砼施工

1)、为使砼泵送顺利,管道流畅,严格控制碎石进料粒径,最大粒径超过25mm,个别>30mm 的碎石通过输送泵进料口箅子除去。

2)、砼泵送剂直接加入搅拌筒中。搅拌时间满足技术要求。

3)、砼坍落度在气温2025损失较大,因此,需在水平输送管道上盖以麻袋或草袋洒水降温,减少阳光直晒,以保证坍落度不小于14cm

4)、砼全部浇筑完成后,在底板和顶板砼表面暴露处,覆盖养生草袋、麻布等物以防砼中水分蒸发过快。在气温较低季节砼浇筑完成后,将砼检查试件同结构物一起,上部盖3cm 左右的麻布、草袋等物保温养生,利用水泥硬化过程中放出的水化热,提高砼早期强度。

3)、砼浇筑施工顺序

桥墩两侧梁段悬浇施工进度应保持平衡,实际不平衡偏差不应超过设计要求值15%

梁段砼浇筑应遵守由前往后,两腹向中对称浇筑的顺序。两腹板对称同时浇筑,然后灌中间部位的底板;浇筑顶板及翼板砼时,应从两侧向中央推进,以防发生裂纹。

8.1.4.7 预应力束安装

1)、纵向预应力束安装

1)、钢绞线下料采用砂轮锯切割,在切口处两端20mm 范围内用细铁丝绑扎牢,以防止头部松散,禁止用电、气焊切割,以防热损伤。

2)、为便于穿束,将穿入端用铜焊制成锥体状,且加以包裹,以防穿坏波纹管。采用卷扬机穿束的长、曲束,可将该束中间一根按两倍长度下料,端头亦应处理,穿束时可先穿此较长一根,然后与卷扬机联接牵引。

2)、横向预应力束安装

本桥主梁仅在0 号段横隔板位置一处设有横向预应力束,施工时在预埋管道内穿入预应力JL32 精轧螺纹钢筋,然后进行对称张拉。

3)、竖向预应力钢筋安装。预应力钢筋与竖向管道按设计同时就位。

8.1.4.8 预应力施工

悬臂浇筑的梁段,每浇筑完一段,当砼强度达到设计强度的85%时,

即进行预应力的施工。

1)、张拉机具

本桥主梁根据预应力筋的不同种类、不同规格和所处不同位置选择与张拉吨位相匹配的张拉千斤顶:张拉纵向钢绞线用YCW250YCW400 型千斤顶,张拉横向和竖向钢筋用YC70 型空心式单作用千斤顶。油泵采用与之配套的油泵和工作油表。

2)、预应力张拉

1)、张拉顺序

主梁悬浇施工过程中预应力筋的张拉顺序应符合设计要求,纵向预应力与竖向预应力张拉同步进行。分批对称张拉。

结构体系转换时纵向连续束的张拉按照先顶板、后底板、再腹板;

先短束、后长束的顺序对称进行张拉。

2)、纵向预应力束张拉

、张拉准备:检查张拉梁段的砼强度,达到设计强度方可进行张拉。检查锚垫板下砼是否有蜂窝和空洞,必要时采取补强措施。向孔内压风,清除孔内杂物。清除锚垫板上的砼,用特制样板的周边圈修正孔口,用石笔绘出锚圈安放位置。钢绞线对号穿束。为了校验预应力值,在张拉过程中应测出预应力筋的实际伸长值,如与计算值相差±6%以上时,应查清其原因,采取措施后再行张拉。

、本工程预应力砼强度达到设计标准的85%以上后进行。张拉时采取张拉力和伸长量双控。

、张拉程序为:σ 初应力 σcon(持荷2min 锚固)

、张拉控制应力符合设计要求。采用应力控制、伸长值校核的方法进行张拉。

、张拉注意事项:

a、千斤顶、油泵、油压表及锚具安装应符合要求。

b、千斤顶、锚圈与孔口必须在一个同心圆内。

c、初张拉值为控制张拉值的10%,主要是使每束钢铰线受力均匀,并在初张拉后划量测伸长值记号。

d、预应力筋采用两端同时张拉。

e、所有需要校验的张拉机具不准超过校验有效期限。若张拉过程中出现故障应立即停止张拉。

3)、横向预应力钢筋张拉

砼强度达到设计标准的85%以上后,采用应力控制为主,以伸长值进行校核的方法进行张拉。张拉力为54T。张拉顺序为上、下,左、右对称进行。

4)、竖向预应力钢筋张拉

、竖向预应力为JL32 精轧螺纹钢筋,下料后将两端戴帽逐根在张拉台上进行预拉,预拉力为100%~105σcon

、主梁砼强度达到设计标准的85%以上后,竖向预应力与纵向预应力同步张拉。张拉时采用张拉力与延伸量双控方法,竖向预应力筋控制张拉力为54T。按左右对称顺序进行张拉。

8.1.4.9 孔道压浆

1)、真空压浆法

按设计要求主梁塑料波纹管预应力采用真空压浆法。该工艺是在普通压浆的基础上,采用真空泵排除孔内多余空气,使孔内形成0.1Mpa 的负压然后再压浆,操作时抽真空与压浆是一个连续过程,从而使孔道压浆压达到饱满而密实的效果。真空压浆工艺设备的组成和工艺流程如下图所示。

1)、首先关闭除与真空泵连接外的所有压浆口、通风口、排水口、出浆口等的气密阀,然后启动真空泵,从孔内排除空气。若真空压力表达到0.095Mpa 的负压时,表明孔道密封良好。

2)、孔道在负压下,将浆体用压力泵送入孔内,压浆过程可通过透明出浆管得知。压浆过程连续进行,直至浆体从出浆口进入负压容器,当流出浆体达到合适稠度时,关闭出浆口阀门。

3)、在压浆泵正压力下,打开通风孔、排水孔关闭的气密阀,在锚端盖帽进浆口和通风孔处压入一定量的浆体,关闭阀门。

4)、当孔道压浆加压到0.04MPa 正压时,在加压情况下,关闭进浆口阀门之前持续一定时间,一般12min

真空压浆操作示意图

真空压浆两端工艺组成示意图

2)、普通压浆法

选用HP-13 型灰浆泵(最大工作压力为1.8MPa,垂直输送距离为150m,输送量3m3/h),配以HJ200 型灰浆拌和机。贮桶自制,配有低速搅拌设备。

张拉工艺完毕后,应尽早压浆将锚塞周围预应力筋间隙用水泥浆封锚,封锚水泥浆抗压强度不足10MPa,不得压浆。同一孔道压浆作业一次完成,不得中断。压浆顺序应先压注下层孔道,后压上层孔道。对曲线孔道和竖向孔道从最低点的压浆孔压入,由最高点的排气孔排气和泌水。并应将集中在一处的孔道一次压完,以免漏浆堵塞邻近孔道。

8.1.5 边跨段现浇施工

边跨段采用膺架法施工,膺架支墩基础采用φ120 砼桩,凿除桩顶后浇筑承台砼。用六五式军用墩杆件在支墩和承台上搭设支架。支架上拼装型钢组焊的施工托架,在支架上浇筑边跨梁段。

安装好边跨现浇支架和模板并经预压后绑扎钢筋,现浇段的浇筑顺序是靠近边墩(台)的先浇,逐段向合龙段靠拢,逐渐调整现浇梁段的标高,使合龙高差在允许误差内。浇筑砼前确保支架与梁底之间能相对滑动,使边跨合龙时现浇段能随原浇筑体自由伸缩,避免砼拉应力过大。

8.1.6 合龙段施工

主桥连续梁施工采用先T 构后连续的方法,即先按T 构悬臂浇筑然后各T 构合龙,体系转换后形成连续梁。

1)、合龙段施工顺序

主梁合龙按先边跨,后次中跨,最后中跨的顺序对称同步施工。

合龙段施工顺序示意图

2)、合龙段砼临时锁定施工

合龙段劲性结构是一组固结在合龙段两侧悬臂上的一组型钢,它是临时锁定装置。其作用是克服由于天气、施工荷载、砼重量、合龙段砼早期收缩等各种因素的影响会导致合龙段砼拉裂或压坏,临时锁定是合龙的关键,是实际意义上的合龙。采用刚性支撑临时锁定合龙段两端,使其成为可以在降温时不受拉,升温时能保证劲性刚架稳定。刚性支撑锁定时间须待合龙段温度变化与梁端高程及合龙段长度变化的关系观测确定后视具体情况而定,在规定的设计合龙段1015温度范围内将按设计制作成的骨架于短时间内焊成一体,迅速完成对称临时锁定工作。设计合龙段骨架构造如下图:

合龙段骨架构造示意图

 

3)、合龙段砼浇筑准备工作

1)、合龙段钢筋及预应力管道

合龙段设计有非预应力钢筋、纵、竖向预应力管道、结构比较复杂。因底板束管道长,根数多,合龙后穿束比较困难,需在合龙前把钢绞线穿入波纹管内。

2)、合龙段施工测量观测

合龙前应对主梁顶面标高和轴线进行联测,连续观测气温变化和梁体相对标高和轴线偏移量,观测合龙段在温度影响下的梁长变化。

设计要求合龙段两端断面标高差不能大于±10mm,特别是底板标高误差要求更高。合龙段砼浇筑时要用精密水准仪观测,以便发现问题及时处理。

3)、合龙段后期工作

014 号段浇筑张拉完成后,清除不必要的施工荷载,其它施工荷载移至0 号段,使施工荷载处于相对平衡状态,以避免在合龙段端部造成相对变形以及产生剪差变位,影响合龙精度。

014 号段张拉完成后,即对全桥的桥面标高以及桥轴线进行联测,观测气温变化与梁体相对标高(竖向及水平)的关系,观测合龙段的长度随温度而变化的情况,观测时间不少于48h,观测间隔为3h,画出梁端水平变形、竖向变形与温度关系曲线。

4)、合龙段砼浇筑

为使合龙段砼浇筑过程中结构体系处于稳定状态,待刚性支承锁定后预先在悬臂端施加配重,配重相当于合龙段砼的重量。浇筑砼时,卸下相应配重的重量移至0 号段后再卸至桥下。合龙段砼浇筑应在气温较低且温差变化较小的时间内完成。合龙段砼的配合比应作专项试验。合龙段的砼强度等级可提高一段,以尽早张拉。施工时加强施工管理,加强振捣,切实注意养生,防止发生裂缝。

1)、边跨合龙段砼施工

、边跨合龙段吊架构造如下图

边跨合龙段吊架构造示意图

、边跨合龙段施工工艺流程

2)、中跨合龙段砼施工

、中跨合龙段吊架构造如下图

中跨合龙段吊架构造示意图

、中跨合龙段施工工艺流程

5)、结构体系转换

合龙是连续梁施工和体系转换的重要环节,合龙施工必须满足受力状态的设计要求和保持梁体线型,控制合龙段的施工误差。利用连续梁成桥设计的负弯矩预应力筋为支承是连续梁分段悬浇施工的受力特点。

悬浇过程中各独立梁体处于负弯矩状态,随着各段梁体的依次合龙,梁体也依次转化为成桥状态的正负弯矩交替分布形式,这一转化就是连续梁的体系转换。

转换工作是在合龙段纵向连续束张拉、压浆后进行的。即从墩旁托架上临时支座的反力全部转换到桥墩的永久支座上,从而结构体系也实现了转换。

体系转换时要注意:

1)、连续束的张拉按照先顶板、后底板、再腹板,先短束、后长束制作砼试件的顺序进行,并对称实施张拉。

2)、正弯矩束张拉过程中间,要有专人观察记录锯齿板后端梁断面的变化,检查是否出现裂纹。

3)、在解除临时支座时,注意观察永久支座的下沉量并作好记录。

8.1.7 挂篮悬浇施工控制

在大跨径桥梁悬臂浇筑施工过程中,由于有许多确定的和不确定的因素影响,施工中的实际结构状态将偏离预先确定的目标,在变形和内力两方面必须随时进行控制和调整。本合同段将采用根据计算机跟踪控制技术进行悬浇施工的线型控制,保证结构的各种控制变量的偏差在允许的范围内。悬浇过程中对桥梁的中轴线和高程进行测量观测,误差应在允许范围:高程:±10mm;中轴线偏差:5mm

1)、预拱度

1)、基本假设

、砼为均质材料。

、施工及运营过程中梁体截面的应力σn<0.5Ra,并可认为这种应力范围内,徐变应与应力成线性关系。

、叠加原理适用于徐变计算,即应力增量引起的徐变变形可以累加求和。

、忽略预应力筋和普通钢筋对砼受力及变形的影响。

2)、预拱度计算

在上述假设的基础上考虑到各节段砼龄期不同所导致的收缩徐变差异将连续梁施工所经历的收缩徐变过程划分为与施工过程相同的时段,即浇新梁段,张拉预应力筋,移动挂篮,体系转换等,每一时段结构单元数与实际结构梁段数一致,在每一时段都对结构进行一次全面的分析,求出该时段内产生的全部节点位移增值,对所有时段进行分析,即可叠加得出最终预拱度值。结合本桥的实际,将主桥施工过程划分为多个时段进行分析,得出预拱度值。

2)、节段前缘施工标高

1)、施工标高确定

节段前缘施工立模标高Hi由两部分(设计标高Hi和综合预拱度fi)组成。

设计标高 Hi=H0+Hi

式中 H0---墩顶0 号段标高;

Hi---梁体坡度引起的增量;

综合预拱度 fi= fi1+fi2+fi3+fi4

式中 fi1---节段预拱度;

fi2---为挂篮变形预留的增量值;

fi3---考虑支座压缩量所设的增量值,根据支座性能取10mm

fi4---基础沉降的影响值。

节段前缘施工标高为:

Hi = Hi+ fi= H0+Hi+ fi1+fi2+fi3+fi4

2)、挂篮变形计算

计算挂篮的弹性变形和非弹性变形。按挂篮的结构推力模型,根据各个梁段的不同重量、荷载分别计算其弹性变形。挂篮的非弹性变形由挂篮荷载试验测得。

3)、现场施工控制

1)、施工放样

梁段施工时,中线按设计给出的控制点进行控制测量,立模放样的测点设在底模板梁段的前缘,在立模时将上述立模标高换算成坐标标高。

在施工过程中对全桥中线和临时水准点进行定期复核和检查,确保各个梁段和部位施工测量的准确性。

2)、施工观测

施工中,对主墩和主梁进行有针对性的施工监测控制,以保证结构物的强度和稳定。本桥重点是对主墩悬浇进行施工观测,按照施工顺序,每悬浇一段,在挂篮就位后,浇筑砼前、浇筑砼后、张拉纵向预应力束前、建立纵向预应力后、移动挂篮前(即进行下一节段作业前)各观测一次。每次观测要记录好标高、温度、主墩、承台沉降等。

8.1.8 挂篮悬浇进度计划

主梁悬浇计划采用20 套挂篮同时施工。分别承担两幅连续箱梁的悬臂浇筑施工。悬浇各工序计划时间见下表。

悬浇段工序计划时间表

序号

工序

时间(h

序号

工序

时间(h

1

移挂篮

5

6

浇筑砼准备

2

2

安装底模、外侧模

4

7

浇筑砼

8

3

绑扎底板钢筋, 安装管道

12

8

砼养护、拆内模、 穿束

7296

4

安装内模

3

9

纵、竖向预应力束张拉

10

5

绑扎顶板钢筋、 安装顶板管道

810

10

压浆、养护

72

总计

196222

8.1.9 引桥施工

8.1.9.1 引桥墩柱、盖梁施工

引桥墩台设计主要为柱式墩、柱式及肋板式台。

1)、墩柱及盖梁施工方案

墩、台采用厂制大块钢模。集中加工钢筋,运至现场绑扎成型。由搅拌站集中供应砼,搅拌运输车运输,泵送入模,插入式振动棒振捣。

2)、墩、台及盖梁施工工艺流程

1)、墩身施工工艺流程

2)、盖梁施工工艺流程

墩台盖梁采用托架法现浇,如下图所示:

托架法施工盖梁示意图

 

设置预留孔时,在墩柱边缘设置钢垫板,防止集中应力损坏砼。利用预留的孔洞安装托架纵、横梁,在横梁上拼装好底模。然后绑扎盖梁钢筋,再拼装侧模。砼泵泵送砼入模,浇筑时从盖梁的两端向中部分层进行,插入式振动棒振捣。盖梁施工工艺如下图示:

 

 

 

 

 

 

 

 

 

 

 

 

 

 

 

 

 

 

 

 

 

 

 

 

 

 

 

3)、施工控制措施

1)、施工前准确放样定位。

2)、承台施工前凿除桩基顶面超灌砼,清除桩顶松散部分。

3)、钢筋在钢筋棚内加工,运至现场安装。

4)、墩身砼浇筑前,基础表面凿出新鲜砼面,用水冲洗干净。浇筑

砼期间设专人对模架、钢筋和预埋件进行检查,若发生位移应及时纠正。

5)、砼的浇筑保证连续不间断一次施工成型。砼浇筑采用水平分层浇筑。插入式振动棒振捣,每层厚度控制在30cm 以内。

6)、墩台砼体积较大时,须采取温控措施,避免砼因内外温差较大而引起表面及内部拉裂。

7)、砼拆模后及时进行覆盖养生。

河东特大桥及秦家河大桥主墩施工见本施工组织设计重点和难点工程8.1.2 承台、主墩施工

8.1.9.2 引桥30m 箱梁预制

1)、场地布置

本桥30 米后张预应力箱梁共计104 片,采用在1#2#预制场集中预制。预制场布置图示意如下:

搅拌站、预制场平面布置示意图

箱梁吊装示意图

2)、后张箱梁预制施工工艺流程

1)、台座

根据本桥30m 箱梁预制工程量和工期安排及现场预制条件,建设适量的简易台座。

台面按设计要求跨中做成向下17mm 的抛物线预拱度。

台座两侧设置排水槽以利养护和施工排水。

2)、模板

采用大块厂制钢模。外模每节长度不小于3m,外模对接口及预留孔要精密加工,保证模板之间能精确拼装。钢模加工要有足够的刚度和强度,以确保梁体截面尺寸。模板采用企口缝并用双面泡沫胶带压缝,保证模板密封性。内模采用组合钢模拼装。模板构造及安装示意图如下:

后张预应力箱梁内、外模示意图

3)、钢筋

钢筋集中下料,加工成网片,运到台座组装、绑扎。

4)、波纹管安装

、安装前按设计图中预应力筋的曲线坐标在箍筋设置定位箍圈,间距500mm,保证波纹管位置准确。波纹管接头用比制孔波纹管大一号、长度为20cm 的波纹管连接。

、浇注砼前用棉纱或封孔塞封堵两端波纹管,防止砼或杂质进管形成堵塞。

5)、场内运输

采用场内的门吊进行模板、钢筋、砼、箱梁装车等水平垂直运输。

6)、砼施工

、砼水平分层、连续施工、两次浇筑成型。第一次浇筑箱梁底板,然后安装内模,绑扎顶板钢筋,接着浇筑腹板、顶板砼。

、由搅拌站集中供应砼,龙门吊配料斗送入模内。腹板采用插入式配合附着式振捣器振捣,顶部和翼板用插入式配合平板式振捣器振捣成型。

7)、砼养生

采用麻袋覆盖洒水养生,冬季时采用蒸汽养生。

8)、张拉

、穿束前用检查波纹管预留孔道是否通畅,若有杂质或堵塞,则要清除杂物、疏通孔道,再穿钢绞线束,钢绞线按孔位编号分束入孔。

、梁体砼强度达到设计90%后,采用两端对称双控张拉。

9)、孔道压浆

采用HP-13 型灰浆泵,配以HJ200 型灰浆拌和机进行孔道压浆。

10)、移梁

水泥净浆的强度达到设计要求后,利用场内龙门吊移梁至存梁区。

8.1.9.3 引桥30m 箱梁安装

箱梁采用JQ130 型架桥机架设。架桥机架梁示意图如下:

平车运梁示意图

JQ130 架桥机作业立面图

1)、箱梁架设施工工艺流程

2)、架桥机拼装

架桥机采用JQ130 型。利用吊车在台后路基上拼装架桥机,为使架桥机在空载状态下安全跨墩,必须确保架桥机后段有足够的配重。

3)、架设准备

1)、在墩台盖梁上标注永久性支座、临时性支座位置。

2)、凿除砼表面的水泥砂浆和松弱层,安放好永久性支座、临时性支座。临时支座采用硫磺砂浆制成,硫磺砂浆内埋入电热丝,箱梁安装好之后采用电热法解除临时支座。

3)、箱梁吊装均采用捆绑式吊装,施工时吊点附近应采取适当措施以防吊绳磨损。

4)、梁体运输

桥下预制场箱梁采用运梁拖车运输到桥头后,利用龙门吊配合小平车喂梁,桥头预制场的箱梁采用门吊装车,轨道运梁平车至桥头给架桥机喂梁。

8.1.9.4 引桥30m 箱梁现浇接头施工

本桥两端引桥分别为8×30m 5×30m 预制箱梁,上部结构为先简支后连续箱梁结构体系。

1)、施工顺序

连续接头砼浇筑,按设计从一联两端向中间对称,间隔进行施工。其施工顺序如下:

现浇接头示意图

2)、箱梁现浇接头施工工艺流程

施工控制措施:

1)、临时支座顶面标高应与永久支座齐平,以防止解除临时支座时箱梁发生下沉。

2)、现浇接头时,箱梁横梁及顶板负弯矩束同长度范围内的桥面板一同浇筑。

3)、现浇接头砼强度达到95%以后两端张拉负弯矩预应力。横桥向(左、右)对称纵向同步张拉。

4)、从箱梁预制到浇完横向湿接缝的时间应不超过三个月。

3)、纵向湿接缝施工

纵向接缝和预制箱体中横梁均采用吊架法施工,吊架构造示意如下:

横梁吊架构造示意图

纵向缝吊架构造示意图

 

8.2 秦老屋隧道

8.2.1 明洞施工

1)、施工方案

明挖法施工,边仰坡采用锚喷支护。

2)、施工方法

采用明挖法,挖掘机配合人工开挖,自卸汽车运输。边仰坡采用边开挖边锚喷支护的方法。

3)、工艺流程

4)、技术措施

1)、明洞开挖前,先修好洞顶截水沟,搞好线路复测工作。

2)、开挖后根据边仰坡地质情况,相应采取地表注浆、打锚杆、挂钢筋网、喷射砼等加固措施。

8.2.2 洞身开挖施工

1)、施工方案

本隧道在级围岩地段为小净距隧道,对级围岩采用台阶分部法开挖和单侧壁导坑法开挖,级围岩采用正台阶法开挖,级围岩采用全断面开挖法。人行横洞、车行横洞采用正台阶法开挖。

2)、施工方法

洞身开挖采用钻爆法施工。爆破器材为岩石二号硝铵炸药,国产型系列毫秒雷管。级围岩采用风镐开挖;级围岩采用风钻打眼,人工装药;级围岩实行光面爆破,凿岩台车钻孔,人工装药。

3)、开挖顺序

4)、炮眼布置

5)、循环作业时间

1)、级类围岩:

开挖作业循环时间 (时间单位:min

2)、IV 级围岩:

开挖作业循环时间图 (时间单位:min

3)、级围岩

开挖作业循环时间图 (时间单位:min

4)、级围岩

开挖作业循环时间图 (时间单位:min

6)、工艺流程

 

7)、技术措施

1)、钻爆开挖前,根据工程地质条件、开挖断面、开挖方法、掘进循环进尺、爆破对围岩及构造物振动速度要求、钻眼机具和爆破材料进行钻爆设计。在施工中通过对炮痕保存率、炮眼利用率、装药量、残眼深度、抛碴距离、块度等数据进行分析,不断修改爆破设计,选择合理的钻爆参数。

2)、由测量人员严格按隧道设计轮廓和钻爆设计图在开挖作业面上精确画定轮廓线和钻眼位置。

3)、钻孔时对位准确,并掌握好方向,尤其要使周边孔钻孔做到平顺、整齐。

4)、周边眼采用小直径乳化炸药卷,以提高周边眼光爆效果。

5)、起爆时,严格按爆破设计分段。引爆雷管采用8 号工业火雷管。

6)、严格按爆破设计装药结构进行装药,提高装药质量,做好炮眼的堵塞。

7)、装药、联网完成后进行全面检查,确认无误后方可起爆。

8.2.3 施工支护

1)、湿喷砼

1)、施工方案:人工配合机械施工。

2)、施工方法:

首先在开挖后及时进行初喷砼,初喷砼厚5cm。然后施作小导管、锚杆、挂网,再次喷射砼,每次喷射厚度24cm,直至达到设计要求厚度。

喷射砼顺序为自下而上、以不断旋转的方式逐层喷射。

3)、工艺流程

 

 

 

 

 

 

 

 

 

 

 

2)、锚杆、挂网施工

1)、施工方案:人工配合机械加工,人工施作。

2)、施工方法:

锚杆:采用手风钻钻孔,钻至设计深度后,用高压风吹孔,用牛角泵向孔内灌入孔深2/3 的水泥砂浆,打入锚杆。若孔口砂浆不满,则用泵补灌,最后用砂浆将孔口抹平。

挂网:先制成2×2 米的钢筋网片,运至现场后将其焊接在锚杆端上,网片力求紧贴在初喷砼面上。挂网后及时复喷砼。

3)、钢拱架

级围岩地段设计有工字钢支撑及格栅钢架支撑。

1)、施工方案:人工配合机械加工,人工施作。

2)、施工方法:

钢拱架的制作:钢拱架在钢筋棚内集中制作。

钢拱架的安装:在初喷砼及挂钢筋网后进行安装。安装时拱架与拱架之间纵向用Φ20 钢筋焊接连接,有超前小导管的地段,钢拱架与小导管的钢管端头焊接成整体,使其与锚杆、钢筋网、喷射砼构成联合支护体系。

3)、工艺流程

 

 

 

 

 

 

 

 

 

 

4)、技术措施

1)、砂浆锚杆钻孔时,钻孔直径大于锚杆直径15mm,控制孔位偏差小于±15cm,孔深误差±5cm

2)、孔内注浆前先用高压风清除孔内积水、粉碴等杂物。

3)、注浆用砂采用1.5mm 的方孔筛过筛。

4)、注浆压力控制在0.4Mpa 以内。注浆时将注浆管插入孔底,随着浆液的注入逐渐拔出注浆管,直到孔口有浆液流出为止。

5)、每隔100 根锚杆随机抽样三根,作拉拔试验,以了解锚杆的锚固质量。

6)、钢拱架安装前,由测量人员准确测定出隧道中线,确定高程,然后再测定其横向位置;安装位置的允许偏差按以下控制:距隧道中线位置支距不大于3cm,垂直度5%,前后两榀间距±10cm,矢高积累+5cm

7)、钢拱架安装时,垂直方向用吊锤球线检查钢架是否垂直,并进行矫正。钢架安设后及时喷射砼。

8)、在砼拌和时,加入适量的速凝剂并严格控制集料粒径和配合比,以减少回弹量和控制堵管事件,保证施工顺利进行。

9)、采用锤击听声的方法检查喷射砼的密实情况,对空鼓脱壳处采用凿除重喷的方法及时进行处理。

8.2.4 开挖辅助作业

1)、超前小导管注浆

1)、施工方案:机械钻孔、顶进、注浆。

2)、施工方法:

钻孔:采用手风钻和凿岩台车钻孔,钻头采用钻孔直径为58mm 的大钻头,靠近开挖掌子面沿拱部开挖轮廓线夹角为120°的范围内布置。

小导管安装:钻孔完成后,用高压风管吹除孔内残渣,即进行插管。采用锤击或钻机顶入的方法将加工好的导管插入孔内,顶入长度不小于管长的90%

注浆:采用压浆泵注浆,注浆液采用11 C30 水泥浆液,注浆压力控制在0.51.0mpa 以内。

3)、工艺流程:

 

 

 

 

 

 

 

 

 

 

 

 

 

 

2)、超前锚杆

级围岩段围岩采用4m φ25mm 注浆锚杆超前支护。环向间距按设计要求,采用风钻钻孔将锚杆沿孔打入或风钻顶入。

锚杆在开挖轮廓线上按设计位置及角度打入,钻孔仰角按设计要求控制。锚杆不侵入隧道衬砌界内,相邻锚杆不相撞或立交。

8.2.5 出碴运输

1)、施工方案:机械挖装运、无轨运输。

2)、施工方法:隧道出碴采用ZL50 装载机装碴,自卸汽车运输。

3)、技术措施:

1)、出碴前,对开挖面仔细彻底找顶,防止危石坠落对人员及设备造成伤害。

2)、设立专职联络员对各类运输设备、各种管路作业进行管理,确保运输道路畅通和施工安全。

8.2.6 洞身衬砌

1)、施工方案:

隧道衬砌在初期支护和围岩变形基本稳定后进行。采用液压衬砌台车,搅拌站集中拌制、砼输送车运输、泵送砼连续浇注。

2)、施工方法

衬砌台车就位后,用木板将端头封牢。首先将砼输送泵输送管道通过台车上部的天窗接入模内,砼搅拌运输车将砼送入输送泵受料斗内,再由输送泵将砼通过管道压入模内。浇筑时两侧对称进行,附着式振捣器振捣,压入式封顶。

3)、工艺流程

4)、技术措施

1)、模板台车第1 次移位前,在准备衬砌部位的两侧边墙下方先灌注墙基砼,高度700mm,并沿隧道方向每隔1500mm,预埋地脚螺栓,以便固定钢模板的最低边缘。

2)、隧道衬砌封顶采用钢管压注法,选择合适的砼塌落度,从拱部的灌注口压注封顶。

3)、进行配合比的优化设计,将水灰比控制在0.50.55 之间,并掺入适量高效早强减水剂,以改善砼的性能,使砼具有良好的密实性、耐久性,满足抗压、抗折、抗渗指标。

8.2.7 防排水

1)、洞内施工防排水

洞内施工防排水采用防、排、截、堵相结合的措施。

施工前先对地表进行详细勘查,了解地表出水点的情况,对地表进行必要处理,以防止地表水下渗,并预测可能遇到地下水的地段。

本隧道进口施工为反坡排水。洞内设φ150mm 排水钢管,每隔500m设一处集水井、排水泵站,用大扬程抽水机将水分级提升排出洞外。

洞内排水设施布置示意图

2)、结构防排水

1)、施工方案:预埋排水管道及设置防水材料。

2)、施工方法:

本隧道在初期支护与二次衬砌之间铺设土工布加EVA 防水板防水,环向设φ100 Ω型排水半圆管集水至墙脚,墙脚处纵向设φ110 半边打孔PVC 排水管,横向设φ100 PVC 管,连通隧道中心排水沟,二次衬砌施工缝处全环设10mm(厚)×300mm(宽)橡胶止水带防水。

3)、技术措施:

、提高喷射砼的质量。采用湿喷工艺喷射砼,准确控制喷射砼配合比,使喷射砼密实并紧贴岩面,提高其抗压、抗渗强度。

、安装EVA 防水板采用热熔焊接方式。铺设时,将初期支护面不平处补平,并将外露的钢筋等清理干净。

、为了充分发挥砼结构自身防水作用,洞身衬砌采用抗渗防水砼。

、搞好施工缝、变形缝处的防水。在施工缝、变形缝处安装遇水膨胀橡胶止水条时,将加工成型的钢筋由待筑模筑砼一侧穿入,内侧卡紧止水带之半,另一半止水带平贴在挡头板上,待筑模筑砼凝固后拆除挡头板,将止水带中心钢筋拉直,然后弯曲钢筋套上止水带,模筑下一环砼。

8.2.8 监控量测

1)、量测方案

隧道监控量测项目和方法按下表进行:

施工监控量测一览表

序号

监控量测项目

方法及工具

量测间隔时间(开挖后)

115

16天~1个月

1~3个月

3个月以后

 

 

1

地质和支护状态观察

岩性、结构面产状及支护裂缝观察和描述,地质罗盘等

开挖后及初期支护后进行

每次爆破后及初期支护后

判断围岩稳定和预测开挖面前方地质条件,判断隧道稳定性和检验支护参数

2

周边位移、拱顶下沉

围岩周边收敛计,水平仪、水准尺、钢尺、或测杆

1050m 一个断面,每断面23 对测点

12 次/天

1 次/2

12 次/周

13 次/月

判断围岩稳定性,进行位移反分析,检验支护参数,并为二次衬砌施作提供依据

3

锚杆抗拔试验及锚杆轴向力

锚杆测力计及拉拔器

10m 一个断面,每个断面 3

12 /

1 / 2

12 /

13 /

检验锚杆的作用及对围岩和隧道稳定性的影响

4

地表 下沉

精密水平仪

洞室中心线上,并与洞轴线正交平面平面的一定范围内布设必要数量测点

开挖面距量测断面前后<2B时,1 2 次/天;开挖面距量测断面前后<5B 时,1 次/2天;开挖面距量测断面前后>5B时,1次/周

分析隧道开挖后地表下沉及地表稳定情况

2)、主要监控方法

1)、地质及支护状态观测

每次爆破后,根据隧道围岩岩性、结构面产状及支护裂缝进行观察并作好记录,以判断围岩稳定和预测开挖面前方地质条件,判断隧道稳定性和检验支护参数。

2)、周边位移监控量测

洞内周边位移收敛测点,按隧道纵向间距每1050m 一个断面,与拱顶下沉测点同在一个监控量测横断面上。周边位移收敛量测采用QJ85收敛仪按时量测。如下图所示。

周边位移测点布置示意图

3)、拱顶下沉监控量测

采用精密水平仪,钢尺等仪器进行量测。测点布置如下图:

拱顶下沉监控点布置示意图

4)、锚杆内力、抗拔力监控量测

锚杆内力、抗拔力采用锚杆测力计和ZX-20 型锚杆拔力计进行量测。

5)、地表下沉监控量测

测量仪器采用精密水准仪进行。量测断面布置拟定如下:

地表下沉监控点布置示意图

8.2.9 风、水、电作业及通风防尘

1)、供风:在洞口附近设空气压缩机站,为同时共用的各种风动机具提供足够的风压。

2)、供水:在山顶距隧道顶部不小于50 米的地方修建200 立方米的蓄水池一个,供隧道施工用水。

3)、供电与照明

洞内施工用电:采用三相四线系统供电。

洞内施工照明:成洞地段,额定电压220V;作业地段,额定电压36V

洞内管线布置示意图如下。

洞内管线布置图

4)、通风、防尘、防有害气体

本隧道独头掘进,采用压入式通风方案。主风机110 千瓦,通风布置如下图:

压入式通风示意图

洞内爆破后和机械作业过程中,会产生对人体有害粉尘和气体,施工时通过通风排烟和水幕降尘等措施来减少洞内污染。

8.2.10 洞内水泥砼路面

1)、施工方案

砼由砼搅拌站供应,插入式振捣器配合振捣梁振捣,从里到外分段

施工。

2)、施工方法

水泥砼路面施工采用真空吸水工艺施工。

砼采用搅拌运输车运到施工现场,机械摊铺,平板振捣器配合插入

式振捣器振捣,振动梁振捣刮平,抹面机抹面,压纹机压槽,切缝机切缝;覆盖洒水养护。

3)、技术措施

1)、拌和前,各种材料应按技术规范准确计量。

2)、浇注砼前,检查模板直顺,顶面标高出现偏差及时调整。

3)、吸水机真空泵、真空度控制在6073Kpa

4)、浇注完成12 小时后,方可拆模养生,砼强度达到设计要求后方可切缝。

 

第9节资源配置

9.1 拟投入本合同工程的主要施工机械

桥梁工程

土石方工程

隧道工程

351

41

140

投标书附表3

9.2 拟配备本合同工程主要的材料试验、测量、质检仪器设备

试验仪器

质检仪器

测量仪器

备注

36

38

26

投标书附表4

9.3 主要工程材料用量

材料名称

材料名称

钢筋

T

13967

钢管

T

145

钢绞线

T

2035

铸铁

Kg

121453

高强钢丝

T

596

燃油

Kg

3533653

波纹管钢带

T

228

水泥

T

69212

锚杆

M

22947

碎石

M3

138266

钢板

T

249

M3

87711

 

第10节确保工程质量和工期的措施

10.1 确保工程质量措施

10.1.1 组织保证措施

成立以项目经理为组长的全面质量管理领导小组。由经理部安质部质检工程师及项目队质量自检小组对各项工程进行施工质量控制和现场自检。

1)、建立工地试验室,负责对所有工程进行试验检测。

2)、成立精测组负责主要全段精密控制测量和监测。

3)、成立QC 小组,开展TQC 全面质量管理活动。

10.1.2 制度保证措施

1)、建立健全质量申报、质量会议和质量奖惩管理制度。

2)、技术管理方面,建立技术图纸复核、技术交底、测量复核、隐蔽工程检查、试验检验、质量检查制度。

10.1.3 技术保证措施

1)、桥梁工程技术保证措施

1)、精确控制桥梁中线、墩台位置和细部尺寸。

2)、砼施工时,施工员、技术员跟班作业,确保孔桩灌筑时无坍孔、断桩现象。

3)、每根钻孔桩在浇筑14 天后均进行超声波无破损检测,按规范要求进行钻芯取样试验。

4)、砼外模选用整体刚度好、表面平整的厂制大块刚模。

2)、隧道工程技术保证措施

1)、加强现场监控量测,及时处理、分析数据,掌握围岩和支护在施工过程中的力学动态及稳定程度,保障施工安全,为评价和修改初期支护参数、力学分析、调整开挖方式及二次衬砌施作时间提供信息依据。

2)、施工过程中作好光爆,严格控制超、欠挖,使开挖轮廓平整圆顺,围岩与初期支护及衬砌砼结合良好,共同受力,抑制位移,使结构稳定。

3)、严格按工艺要求锚固防水板、土工布,保证防水板的焊接质量和铺设质量;把住砼的质量关和工作缝处理,确保隧道不渗不漏。

10.2 工期保证措施

1)、从机构组织和管理力量上保证

根据合同和工程管理需要,配备强有力的项目管理班子;建立以项目管理为核心的责、权、利体系,明确项目内部岗位责任,按以事定岗,以岗定责,以责定人的原则,定员定岗,各负其责,各行其职。

2)、从编制施工组织设计和制定施工计划上保证

经现场深入细致的施工调查后,编制科学合理的实施性施工组织设计,制定切实可行的施工方案和阶段施工计划,全面指导施工生产。

3)、从材料物资供应、机械设备调配上保证

按施工进度计划编制材料采购计划和设备调配计划。由机物部合理组织、调配,保证物资、材料的正常供应和设备正常运转。

4)、从施工技术管理上保证

任命具有丰富施工经验的高级工程师担任项目总工程师,配备足够的技术人员。实行图纸会审制度,及时解决施工图纸、技术规范和其他技术文件中的疑点问题。

在隧道施工中,充分利用人行横洞与车行横洞与隧道正洞形成的通道,开辟洞内附属工程施工工作面,加快隧道施工进度。

5)、从安全生产上保证

搞好安全培训工作,制订各项安全操作规程,在施工全过程加强安全检查、监督和整改工作,防止出现安全事故以致影响施工进度。

6)、从外部环境协调方面保证

加强与业主、监理工程师、设计单位的工作联系,处理好与地方政府及群众的关系,取得他们对工程建设的支持,使工程施工顺利进行。

 

第11节冬季和雨季的施工安排

11.1 冬季施工安排

1)、当室外日平均气温连续5 天低于5时,编制冬季施工方案报业主和监理工程师审批后实施。

2)、钢筋加工在室内进行。预应力钢筋张拉时气温不宜低于-15

3)、冬季搅拌砼时,骨料不得带有冰雪和冻结团块。严格控制砼的配合比和坍落度;投料前,应先用热水或蒸汽冲洗搅拌机,投料顺序为骨料、水,搅拌,再加水泥搅拌,时间应较常温时延长50%。砼拌和物的出机温度不宜低于10,入模温度不得低于5

11.2 雨季施工安排

1)、设立以项目经理为组长的防汛领导小组,提前作好防护布置,统一调度,统一指挥防汛工作。

2)、编制雨季施工方案,对在雨季施工的工程做出合理安排。改进完善排水设施,保持排水系统畅通,备足雨季施工材料和防洪设施。

 

第12节质量、安全保证体系

12.1 质量保证体系

12.1.1 质量目标

分项工程合格率100%,分部工程优良率95%以上,单位工程优良率95%以上;保省优,争创国优。

12.1.2 质量保证体系

12.2 安全保证体系

12.2.1 安全目标

本项目安全目标如下:

1)、三无:无工伤死亡和重伤事故、无交通死亡事故、无火灾、水灾事故。

2)、一控:年负伤频率控制在2以下。

3)、三消灭:消灭违章指挥、消灭违章操作、消灭惯性事故。

12.2.2 安全保证体系

12.2.3 紧急救援预案

1)、工作原则:统一领导,分级负责。项目经理接受业主指挥部或有关部门的指挥,项目经理部内各抢险小组统一接受项目经理指挥。

2)、灾情、险情发生后,由项目经理部成立抢险救灾指挥部,各项目队精选出的不少于20 人的抢险基本队伍作为抢险救灾的骨干力量,现场每个员工都自觉的参加抢险救灾。

3)、灾情发生后,对抢险安排、进程及灾害损失情况逐级上报。

 

第13节环保及廉政措施

13.1 环境保护、文明施工措施

1)、成立环保及文明施工领导小组,项目经理任组长,各部门负责人为组员,负责开展环境保护及文明施工管理工作,结合现场实际情况制定环境保护、文明施工管理细则。

2)、严格执行国家环境保护法以及当地政府有关规定,对参建员工进行文明施工和环境保护教育。

3)、尽量降低夜间车辆出入频率,夜间不安排噪音大的机械施工作业。

4)、在合同段起讫点、结构物处设置醒目的标识牌,施工过程中设置有关宣传、警示、安全防护的标语牌。

5)、进场前,对预制场、拌和场、材料机械堆放场、生活区等临时设施进行统一规划,合理布置。防止弃碴没在规定地点弃置,并做好安全防护,做到先挡后弃。工程竣工后拆除施工临时设施,及时复耕,绿化,做到工完料净,场地清

13.2 预防灾害措施

1)、临时房屋尽可能修建在无雨水冲刷的安全地带,并在外围安装防护装置,以防自然因素对其造成危害。

2)、在所有临时房屋周围修建排水沟,以排除雨水。

13.3 廉政措施

1)、严格遵守党和国家有关法律法规及交通部、安徽省的有关廉政规定,严格履行廉政合同。

2)、坚持业务往业公开、透明的原则,不损害国家利益和集体利益,不违反工程建设规章制度。

 

第14节其他应说明的事项

14.1 对外协调和处理地方关系措施

1)、调查了解施工区内的通信、电力、给排水管线分布情况,积极与相关部门取得联系,及时进行加固、改移或拆迁。

2)、详细了解当地的民风民情,尊重当地习俗,正确妥善处理施工过程中与当地居民的各种矛盾,建立良好的地方关系。

14.2 缺陷责任期和保修期内对工程的维护措施

1)、配备技术人员组成检查小组,每星期进行一次例行巡视,每个月进行一次全面检查。

2)、对发现变形的建筑结构,设置变形观测点,定期观测其变化情况,分析其对结构物产生的影响,及时采取措施予以消除或加固;及时修补质量缺陷,如被雨水冲刷后的路基边坡等。

14.3 竣工文件人员计划和保障措施

本项目采用计算机对施工数据进行管理。主体工程完工后,安排58 名技术人员对施工中形成的技术资料进行整理、归档,按合同及业主要求尽快编制完成竣工文件。

 

第2章施工工艺框图路基

 

 

施工方法:挖掘机装石,自卸汽车运输,推土机摊铺整平,人工码砌边坡及填塞缝隙,冲击压路机压实.

 

第3章施工工艺框图桥隧

5-2、挖孔桩施工工艺

 

 

 

 

 

 

 

 

 

 

 

 

 

 

 

 

 

 

 

 

 

 

 

 

 

 

 

 

 

 

 

 

 

 

 

 

施工方法:人工开挖,现浇混凝土护壁,遇石浅眼松动爆破。钢筋笼集中制作,

集中供应混凝土,搅拌运输车运输,导管法灌注。

 

 

 

 

 

 

 

 

 

 

 

 

 

5-3、承台施工工艺

 

 

 

 

 

 

施工方法:机械开挖,人工修整承台基坑,大块厂制钢模。集中加工钢筋,运至

现场绑扎成型。集中供应混凝土,搅拌运输车运输,泵送入模,插入式振动棒振捣。

 

 

 

 

 

 

 

 

 

 

 

 

 

 

 

5-4、主墩施工工艺

 

 

 

 

 

 

 

 

 

 

 

 

 

 

 

 

 

 

 

 

 

 

 

 

 

 

 

 

 

 

 

 

施工方法:采用翻模施工,塔吊垂直运输。厂制大块钢模板。集中加工风筋,现场拼装成型。集中供应混凝土,搅拌运输车运输,泵送入模,插入式振动棒振捣。

 

 

 

 

 

 

 

 

 

 

 

 

 

 

 

 

 

5-5、圆形墩施工工艺

 

 

 

 

 

 

 

 

 

 

 

 

 

 

 

 

 

 

 

 

 

 

 

 

 

 

 

 

 

 

 

 

 

施工方法:厂制大块钢模板。钢筋笼集中加工,运至现场焊接组装,汽车吊垂直运输。集中供应混凝土,搅拌运输车运输,泵送入模,插入式振动棒振捣。

 

 

 

 

 

 

 

 

 

 

 

 

 

 

 

5-6、盖梁施工工艺

 

 

 

 

 

 

 

 

 

 

 

 

 

 

 

 

 

 

 

 

 

 

 

 

 

 

 

 

 

 

 

 

 

 

 

 

 

施工方法:采用托架法施工。厂制大块钢模板。钢筋集中加工,运至现场绑扎成型,汽车吊垂直运输。集中供应混凝土,搅拌运输车运输,泵送入模,插入式振动棒振捣。

 

 

 

 

 

 

 

 

 

 

 

 

 

5-7、主梁悬浇施工工艺

 

 

施工方法:采用菱形挂篮悬浇,塔吊垂直水平运输。集中搅拌混凝土,搅拌运输车运输,泵送浇筑。应力和伸长量双控张拉预应力,吊架法浇筑合龙段混凝土。

 

 

 

 

5-8、主梁边跨合龙段施工工艺

 

 

 

 

 

 

 

 

 

 

 

 

 

 

 

 

 

 

 

 

 

 

 

 

 

 

 

 

 

 

 

 

 

 

 

 

 

 

 

 

施工方法:采用劲性刚架临时锁定装置,吊架法筑合龙段混凝土,连续束张拉按照先顶板,后底板,再腹板;先短束,后长束的顺序进行预应力张拉。

 

 

 

 

 

 

 

5-9、主梁中跨合龙段施工工艺

 

 

 

 

 

施工方法:采用劲性刚架临时锁定装置,吊架法浇筑合龙段混凝土,连续束张拉按照先顶板,后底板,再腹板,先短束,后长束的顺序进行预应力张拉。

 

 

 

 

 

 

 

 

 

 

 

5-10、后张箱梁施工工艺

 

 

施工方法:集中预制,钢筋集中加工现场绑扎,采用厂制定型组合钢模。集中供应混凝土低压泵泵送,插入式配合附首式和平板式振捣蛋器振动,自然养生。

 

 

 

 

 

 

 

 

5-11、箱梁架设施工工艺

 

 

 

 

 

 

 

施工方法:架桥机架设,门员移架装车,运梁小平车运梁。

 

 

 

 

 

 

 

5-12、箱梁现浇接头施工工艺

 

 

 

 

 

 

 

 

 

 

 

 

 

 

 

 

 

 

 

 

 

 

 

 

 

 

 

 

 

 

 

 

 

 

 

 

 

施工方法:采用预埋电热丝硫磺砂浆临时支座,箱梁顶板负弯矩区钢波纹管预制时预埋,现浇接头预应力筋与波纹管一并就位。集中供应混凝土,人工浇筑,机械振捣,两端对称张拉预应力。

 

 

 

 

 

 

 

 

 

 

5-13、桥面铺装(隧道路面)施工工艺

 

 

 

 

 

施工方法:采用集中拌和,混凝土搅拌运输车运输,机械振捣,真空吸水法施工。

 

 

5-14、明洞施工工艺

 

 

 

 

 

施工方法:采用明挖法,挖掘机开挖,自卸汽车运输。

 

 

 

 

 

 

 

 

 

 

 

 

 

5-15、隧道洞身开挖施工工艺

 

施工方法:采用钻爆法开挖,装载机装碴,自卸汽车运输。

 

 

5-16、隧道支护施工工艺

 

 

 

 

5-17、隧道锚杆、挂网支护施工工艺

 

 

 

 

 

施工方法:手风钻钻孔,人工注浆,打锚杆,挂网。

 

5-18、隧道小导管注浆施工工艺

 

 

 

 

 

 

 

 

 

 

 

 

 

 

 

 

 

 

 

 

施工方法:手风钻和凿岩方车钻孔,人工锤击或钻机顶管,压浆泵注浆。

 

 

 

 

 

 

 

 

 

 

 

 

 

 

 

 

 

 

 

 

 

 

 

 

 

 

 

5-19、隧道洞身衬砌施工工艺

 

 

 

 

 

 

 

施工方法:搅拌站集中拌制混凝土,搅拌运输车运输,泵送混凝土浇注。