目录
9
10
10
10
14
14
15
16
16
20
25
25
27
27
28
31
31
32
34
34
34
38
39
39
40
63
72
80
85
92
93
95
96
101
106
109
110
113
116
118
118
±0.000以下主体工程施工 120
120
131
132
133
144
149
156
184
±0.00以上主体结构施工方法 188
188
189
217
232
239
244
249
255
263
266
268
271
283
317
333
347
358
370
370
379
381
386
401
401
403
411
418
448
463
470
475
480
480
482
483
486
495
497
498
499
502
504
505
505
505
506
507
507
508
509
510
511
513
513
515
524
深圳航空公司综合办公楼位于深圳市深南大道与广深高速公路立交桥的东南侧,是框剪结构,两层地下室,地上28 层,建筑物总高度为115.8 米,总建筑面积46508.44 m2。
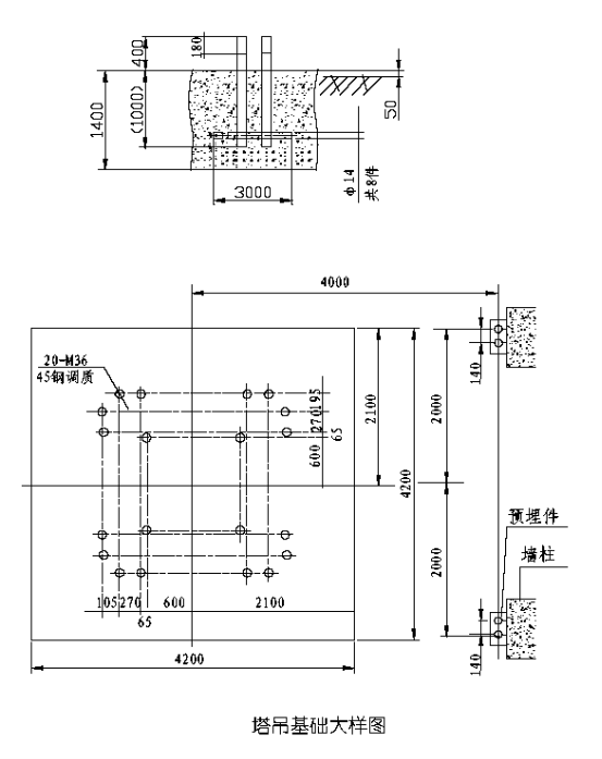
工程施工设置一台QTZ125B 塔吊(韶关新宇建设机械厂生产),中心位置位于2 轴向东1.4 米,D 轴向北9.314 米(详见施工塔吊位置图)。由于场地西向有一条高压电缆穿过,故塔吊前臂只安装50 米。


2、塔机基础
采用天然满堂红基础,基础尺寸宽为5000×5000 米,高1.40米,根据地质报告,地基承载力标准值为230kpa,满足厂家设计要求,详见下基础图。

3、安装所需设备:
(1) 45 吨汽车起重机1 台。
(2) 30 吨千斤顶1 台。
(3) 经纬仪、水准仪各1 台。
(4) 测地摇表1 台。
(5) 套筒板手1 套。
4、安装要求及顺序
根据施工要求,塔吊需穿过地下室两层板,塔吊基础位于地下室地板下(详见基础图),即塔吊基础面标高(—9.350 米)与地下室底板底标高一致,将来施工的底板在塔吊基础面上覆盖即可,塔吊基础采用与地下室底板砼标号的C30S8 抗渗砼。为加快施工进度,塔吊基础先施工,塔吊安装必须待塔吊基础砼强度直到80%之后才能进行。计划第一次安装先安装至最大自由高度即37 米,安装时,先将加强标准节安装在塔身底部,然后再安装塔机及塔冒,平衡臂和起重臂则在施工现场地面分别拼装好进行起吊组装,其安装程序为:加强标准节→外套架→回转轴承→塔冒→平衡臂→接通电源→调试→附拉支架,上部标准节在整机安装完成后,可自行顶升安装,附拉支架根据设计要求规定,第一节附拉支架离地30m,第二节距第一节25m,第三节距离第二节20m,以后塔身每升高15m 加强一道附拉支架。附拉支架固定时应调整好塔庙,其垂直偏差不大于1%,且不大于5cm,(用经纬仪、水准仪观测垂直度)安装要点及顺序厂家提供的安装说明书。
5、当塔机安装完毕,经调试运转正常后,应认真全面地检查一遍,并由公司动力设备科、安全科组织验收,合格后方准投入使用。
立塔时需用一台45t 汽车吊。合理安排塔机安装人员,妥善协调整各种安装和组装步骤,来往通道及组装现场之间的关系,将使用汽车吊的时间减至最少。
b、必须遵循立塔程序。
c、注意吊点的选择,根据吊装部件选用长度适当、质量可靠的吊具。
d、塔机各部件所有可拆的销轴,塔身连接螺体、螺母均是专用特制零件。
e、必须安装并使用和安全措施,如扶梯、平台、枋栏等。
f、必须根据起重臂长,正确确定配重数量,在安装起重臂之前,必须先在平衡臂安装一块2.32t 的平衡重,但严禁超过此数量。
g、装好起重臂后,平衡臂上未装够规定的平衡重前,严禁起重臂吊载。
h、标准袋子的安装不得任意交换方位,否则无法进行。
i、塔机在施工现场的安装位置,必须保证塔机的最大旋转部分如吊臂、吊钩等离输电线5M 上的安全距离。
j、准备辅助吊装设备、枕木、索具、绳扣等常用工具。
k.塔机安装场地的参考尺寸,详见附图。
l、顶前,应将小车开到规定的顶升平衡位置,起重臂转到引进横梁的正确方,然后用回转制动器将塔机的回转锁紧。
m、顶升过程中,严禁旋转起重臂或开动小车使吊钩起升和放下。
n、标准节起节(或放下时),必须尽可能靠近塔身。
当整机按前面的步骤安装完毕后,检查塔身的垂直度,允差为1/1000,再按电路图的要求接通所有电路的电源,试开动各机构进行运转。检查各机构运转是否正确,同时检查各处钢丝绳是否处于正常工作状态。是否与结构件有摩擦,所有不正常情况均予以排除。
如果安装完毕就要使用塔机工作,则必须按有关规定的要求调整好安全装置。
1) 按液压泵站要求给其油箱加油。
2) 清理好各个标准节,在标准节连接处涂上黄油,将待顶升加高用的标准节在顶升位置时的吊臂下排成一排,这样能使塔机在整个顶升加节过程中不用回转机构,能使顶升加节过程所用时间最短。
应该强调:必须先装7 节加强标准节后,再装普通标准节,顺序绝不能颠倒。
3) 放松电缆长度略大于总的顶升高度,并坚固好电缆。
4) 将吊臂旋转至顶升套架前方,平衡臂处于套架的后方(顶升油矩正好位于平衡下方)。
5) 在引进平台上准备好引进滚轮,套架平台上准备好塔身高强螺栓。
4. 2 顶升前塔机的配平
1)塔机配平前,必须先将小车运行到参考位置,并吊起一节标准节或其客观存在重物,然后拆除下支座四个脚与标准节的连接螺栓;
2)将液压顶升系统操纵杆至顶升方向,使套架顶升至下支座支脚刚刚脱离塔身的主弦杆的位置;
3)通过检验下支座支脚与塔身主弦杆是否在一条垂直线上,并观察套架8 个导轮与塔身主弦杆间隙是否基本相同,检查塔机是否平衡。略微高速小车的配平位置,直至平衡。使得塔机上部重心落在顶升油缸梁的位置上。
4)起重臂小车的配平位置,可用布条系在该处的斜腹杆上作为标志,但要注意,这个标志的位置随起重臂长度不同而改变,事后应将该标志取掉。
5)操纵液压系统套架下降,加接好下支座和塔身标准节间的连接螺栓。
4. 3 顶升加节
4. 3.1 顶升前的准备工作
1)将一节加强标准节或普通标准节(统称标准节)吊至顶升套架引进横梁的正上方,在标准节下端装上四只引进滚轮,缓慢落下吊钩,使装在标准节上的引进滚轮比较合适地落在引进横梁上,然后摘下吊钩。
2)将小车至顶升平衡位置。
3)使用回转机构上的回转制动器,将塔机上部机构处于制动状态,并不允许有回转运动。
4)卸下塔身顶部与下支座连接的8 个高强螺栓。
4.3.2 顶升作业
1)将顶升枘梁定在标准节踏步的圆弧槽内(要设专人负责观察顶升横梁两端销轴都必须入圆弧槽内),开动液压系统使活塞杆伸出,将顶升套架及其以上部分顶起,顶起略超半节标准节高度后,使顶升套架的爬爪搁在标准节的上一级踏步上。确认两个爬爪准确地挂在踏步顶端后,将油缸活塞全部缩回,提起顶升横梁,重新使顶升横梁顶在标准节上的上一级踏步上。再次伸出油缸,将塔机上部结构再顶起略超过半节标准节高度,此时塔身上方恰好能有装入一个标准节的空间,将顶升套架引进横梁的标准节引至塔身正上方,稍微缩回油缸,将新引进的标准节落在塔身顶部,并对正,卸下引进滚轮,用12 件或8 件M36 的高强度螺栓(每根高强螺栓必须由两个螺母)将上下标准节连接牢靠(预紧力矩不小于1700KN.M)。
再次缩回油缸,降下支座落在新的塔身顶部上,并对正,用8 件M36 的高强度螺栓将下支座与塔身连接牢靠,每根高度螺栓必须有两个螺母,即完成一节标准节的加节工作,若连续加几节标准节,则可按照以上步骤重复几次即可。为使下支座顺利的落在塔身顶部,并对
准连接螺栓孔。在缩回油缸之前,可在下支座四角的螺栓孔内从上往下插入四根(每角一根)导向杆,将下支座落下。
顶升过程的注意事项:
a、.塔机最高处风速大于8m/s 时,不得进行顶升作业。
b、顶升过程中必须保证起重臂与引入标准节方致,并利用回转机构制动器将吊臂制动住,小车必须需停在规定的顶升配平位置。
c、若要连续加几节标准节,则每加完一节后,用塔机自身起吊下一节标准节前,塔身各主弦杆和下支座必须有8 个M36 的螺栓连续,唯有在这种情况下,允许这8 根螺栓每根只用一个螺母。
d、所加标准节上的踏步,必须与已有标准节对正。
e、在下支座与塔身没有用M36 螺栓连接好之前,严禁吊臂回转、小车变幅和吊装作业。
f、.在顶升过程中,若液压顶升系统出现导常,应立即停止顶升,将下支座落在塔身顶部,并用8 件M36 高强螺栓将下支将与塔身连接牢靠后,再排除液压系统的故障。
g、塔机加节达到所需工作高度(但不超过独立高度)后,应旋转起重臂至不同的高度,检查塔身各接头处,基础地脚螺栓的拧紧问题(哪一根主弦杆位于平衡臂正下方时就把这根弦杆从下到上的所有螺母拧紧,上述连接处均为双螺母防松)。
塔机投入使用前的工作,是为了保证塔机能正确操纵,并在安全条件下运行。这些工作主要是:对塔机部件的检查及调试各安全装置。
5. 1 部件检查
为了检查架设工作的正确性和保证安全动转,应对塔机各部件进行一系列试运转和检查工作。
a、各部件之间的紧固连接状况检查;
b、检查支承平台及护栏的安装情况;
e、检查钢丝绳穿绕是否正确,及其不能与塔机构和结构进行摩擦;
f、检查电缆通行状况;
g、检查平衡臂配重的固定状况;
h、检查平台上有无杂物,防止塔机运转时下坠伤人;
i、检查各润滑面和润滑点。
5. 2 安全装置调试
塔机安全装置主要包括:行程限位器和荷载限制器。行程限位器有:起升高度限位器、回转限位器、幅度限位器。荷载限制器有:
起重力矩限制器、起重量限制器。此外还包括风速仪。
5. 3 立塔后检查项目(见下表)
检查项目 | 检查内容 |
底架 | 检查地脚螺栓的紧固情况; 检查输电线距塔机最大旋转部分有5 米的安全; 距离并检查临时性缆通过状况,以防损坏。 |
塔身 | 标准节螺栓的连接紧固情况。 |
套架 | 检查与下支座的连接情况; 检查顶升时与标准节接触的支承;轴和;连接情况和是否灵活可靠; 检查走道,扶栏的紧固情况。 |
上、下支座司机室 | 检查与回转支承连接的螺栓紧固情况; 检查电缆的通行状况(电缆应从上支座右边和梯子上、下端的钢环里通过);检查与司机室的连接情况; 司机室内严禁存放润滑油、油棉纱与其它易燃物品。 |
塔顶 | 检查吊臂、平衡臂位杆的安装情况; 检查扶梯、平台、护栏的安装情况; 保证起升钢丝绳穿绕正确。 |
吊臂 | 检查各处连接轴、垫圈、开口销安装的正确性; 检查变幅小车安装运行情况,载人吊栏的紧固情况; 检查起升,变幅钢丝绳的缠绕及紧固情况。 |
平衡臂 | 检查平衡臂的固定情况;检查平衡臂护栏及走道的安装情况,保证走道无杂物。 |
吊具 | 检查自动换倍率装置,吊钩的防脱绳装置是否安全可靠; 检查吊钩组有无影响使用的缺陷;检查起升、娈幅钢丝绳的规格、型号应条例要求; 检查钢丝绳的磨损情况。 |
机构 | 检查各机构的安装、运行情况; 各机构的制动器间隙调整合适; 检查牵引机构,当小车分别运行最小和最大幅度处,卷筒处钢丝绳上至少应有3 圈安全圈; 检查各钢丝绳绳头的压紧有无松动。 |
安全装置 | 检查吊臂、平衡臂位杆的安装情况; 检查扶梯、平台、护栏的安装情况; 保证起升钢丝绳穿绕正确。 |
润滑 | 根据使用说明书检查润滑情况,进行润滑工作。 |
5. 4 塔机组装好后,应依次进行下理试验(每转移一个工地都必须进行)
1) 空载试验
各机构应别进行数次运行,然膈再做三次综合动作运行,运行过程不得发生任何异常现象,否则应及时排除故障。
2) 静态超载试验
空载试验合格后,进行静态载试验。
根据不同重臂长,以及起升机构选用的不同方案,进行静态超载在以上15 米和50 米,以最低安全速度将对应的吊重离地0.5 米左右,记录下离地距离,保持10 分钟,卸载后检查金属结构和焊缝的质量情况及有无永久变形。
3)超载动态试验
在50 米处,吊重1.43t(50m 臂1.98t,44m 臂2.64t),对各机构对应的全程范围内进行8-10 次动作,各机构应动作灵活,制动器作可靠。机械及结构各部件无异常,连接无松动和破坏。
根据厂家技术要求,本工程施工塔吊每七层扶墙一次,共计需扶墙4 道。以后加高顶升时,必须安装好扶墙后,才可加高。
1、塔机长时间暂停工作时,吊钩应起到最高处,小车拉到最近点,大臂按顺风向停置。为了确保工程进度与塔机安全,塔机须确保驾驶室内24 小时有塔机司机值班。交班、替班人员未当面交接,不得离开驾驶室,交接班时,要认真做好交接班记录。
2、各作业人员必须严格执行“十不吊”的规定:
a、指挥信号不明不准吊;
b、斜牵斜挂不准吊;
c、吊物重量不明或超负荷不准吊;
d、散物捆扎不牢或物料装放过满不准吊;
e、吊物上有人不准吊;
f、埋在地下物不准吊;
g、机械安全装置失灵或带病时不准吊;
h、现场光线暗看不清吊物起落点不准吊;
I、棱刃物与钢丝绳直接接触无保护措施不准吊;
J、六级以上强风不准吊;
4、塔机与信号指挥人员必须配备对讲机;对讲机经统一确定频锁频,使用人员无权调改频率;在专机专用,不得转借。
5、信号指挥人员应与塔机操作人员相对固定,无特殊原因不得随意更换人员;指挥人员未经主管负责人同意,不得私自换岗,交班必须当面交接。
6、现场所用指挥语言一律采用普通话。指挥语言应规范,防止以生指挥错误。
7、指挥过程中,严格执行信号指挥人员与塔机司机的应答制度,即:信号指挥人员发出动作指令时,先呼被指挥的塔机编号,塔机司机应答后,信号指挥人员方可发出塔机动作指令。
8、指挥过程中,要求信号指挥人员必须时刻目视塔机吊钩与被吊物,塔机转臂过程中,信号指挥人员还须环顾相邻塔机的工作状态,并发出安全提示语言。安全提示语言明确、简短、完整、清晰。
9、起重工要掌握被吊物重心,按规定对被吊物进行绑扎,绑扎必须牢靠。在被吊物跨越幅度大的情况下,要确保安全可靠,杜绝发生“天女散花”的现象。
10、起重工在作业前、作业中、交班时,必须对钢丝绳进行全面检查与鉴定,不合格的钢丝绳严禁使用。
11、加强塔机顶升的管理。与相邻单位无影响的塔机要根据本单位的实际需要确定本塔的顶升高度和顶升时间,同时必须书面上报塔机指挥中心;塔机指挥中心用计算机辅助管理,各塔机必须按塔机指挥中心确定的高度、时间如期完成顶升,不得提前或延时。
a、塔机拆出工地之前,顶升机构由于长期停止使用,应对顶升机构进行保养和试运转。
b、在试运转过程中,应有目的地对限位器,回转机构的制动器等进行可靠性检查。
c、在塔机标准节已拆出,但下支座与塔身还没有用M36 高强度螺栓连接好之前,严禁使用回转机构、变幅机构和起升 机构。
d、塔机拆卸对顶升机构来说是重载连续接作业,所以应对顶升机构底主要受力件经常检查。
e、顶升机构工作时,所有操作人员应集中精力观察各种相对运动件的相对位置是否正常(如滚轮与主弦之间,套架与塔身之间),如果套架在上升时,套架与塔身之间发生偏斜,应停止上升,立即下降。
f、拆卸时风速应低于8m/S。由于拆卸塔机时,建筑物已建完,工作场地受限制,应注意工作程序,吊装堆放位置,不可马虎大意,否则容易发生人身安全事故。
拆卸步骤与立塔组装的步骤相反。必须严格执行本说明书的规定,严禁违反操作程序。
拆塔具体程序如下:
a、降塔身标准节(如有附着装置,相应地拆卸);
b、拆下平衡臂配重(留一块2.32t 的配重);
c、起重臂的拆卸;
d、平衡臂的拆卸;
e、拆卸司机室;(亦可待至与回转总成一起拆卸)
f、拆卸塔顶;
g、拆卸回转塔身;
h、拆卸回转总成;
i、拆卸套架及塔身加强节。
2. 1 拆卸塔身
将起重臂回转到标准节的引进方向,使回转制动器处于制动状态,小车处于规定的平衡位置。拆塔最上面塔身标准节离开下部标准节2cm 左右,即停止顶升。顶起的标准节沿引进梁推出,回缩油缸,由爬爪支承,顶升横梁降至下面踏步再回缩,下支座与塔身标准节之间用螺栓连接,用小车吊够将标准节防至地面。
注意:将拆掉的标准节推到引进横梁的外端后,在顶升套架的下落过程中,当顶升套架上的活动地爬爪通过塔身标准节主弦杆踏步时,须用人工翻转活动爬爪,以便顶升套架能顺利地落到下一个标准节的顶端。
重复上述动作,将顶升加节上来的塔身标准节依次拆下。
2.3 拆卸平衡臂配重
将小车固定在吊臂根部,借助辅助吊车拆卸配重。
拆开配重块的连板,按装置重的相反顺序,钭各块配重依次卸下。
仅留下一块配重块。
2. 3 起重臂的拆卸
从小车及吊臂将起升钢丝绳卸下,同时应地钢丝绳全长认真进行检查。
a、对吊装点进行拆卸;
b、轻轻提起起重臂,使位杆系统放松,拆掉连接销轴;
c、放下起重臂,并搁在垫有枕木的支座上。
2. 4 平衡臂的拆卸
将配重块首先吊下,后通过平衡臂上的四个安装吊起平衡臂,使平衡臂拉杆处于放松状态,拆下拉杆连接销轴。然后拆掉平衡臂与回转塔身的连接,将平衡臂轻轻放至一面。
2. 5 拆卸司机室
2. 6 拆卸塔顶
拆卸前,检查与相邻的组件之间是否有电缆连接.
2. 7 拆卸回转塔身
2. 8 拆卸回转总成
吊住套架,拆下其与下支座脚的连接螺栓,并将其用爬爪支承在塔身上,用吊索将回转总成吊起卸下。
2. 9 拆走套架及塔身加强节
a、吊起套架,缓缓地沿标准节主弦杆吊出,放至地面;
b、依次吊下各节标准节。
3. 2 对主要受力的结构件应检查金属疲劳,焊缝裂纹,结构变形等情况,检查塔机各零部件是否有损坏或碰伤等。
3. 3 检查完毕后,对缺陷、隐患进行修复后,再进行防锈、刷漆处理。
工程施工中的大部分塔机可按常规方式拆卸,运出现场,但两塔的拆卸必须在塔机安装前就应考虑日后拆卸的方法及先后顺序。先拆9#楼塔吊(即低塔),后拆8#楼塔吊。
2、 在安装作业前,必须由专业工种施工作业,对有关人员进行安全技术教育,做到人人心中有数。
3、 由参加安装作业人员上岗必须戴好安全帽,佩带安全带,并穿软底防滑鞋进行作业。
4、 施工现场要求有专人指挥,相互协调配合,确保安全。
5、 参加高处作业的人员要严格遵守高空作业的安全技术规程,一切作业工具要用软绳索套牢固定在某一位置,防止在施工时滑脱发生意外事故。
6、 严禁自上而下抛掷工具、材料等物件,避免砸伤事故的发生。
7、 认真检查吊装用的钢丝绳套,卡环是否可靠,严格按更新标准及时更新。
8、 认真检查各种连接螺栓销轴,发现损坏或疲劳裂纹的及时更新。
9、 液压顶升系统各部分的有接头紧固严密,螺丝扣固紧固牢。
10、 检查电缆、电线的绝缘性能良好性,电机接线是否正确,各行程开关动作要灵敏可靠。
11、 塔身和所有电箱有完好的接地、接零设施,并由专人监护。
12、 现场设置安全警戒线应设安全标志,作业区内禁止一切无关人员进入,力求做到不出现安全事故。
13、 附着式、塔式起重机的使用需注意以下几点:
a、四级风以上应停止爬升,如爬升过程中突然遇到大风必须停止作业,并将塔身螺丝禁固。
b、爬升过程中,严禁回转,必须按说明书规定步骤操作,注意撑脚和销子的到位,塔吊的升节必需有专职安全监护。
c、附着形式和位置,必须按施工组织设计进行。垂直偏差需校正在千分之一内。
d、每次附着升节后必须按规定验收通过后,才能投入施工。
14、 塔吊操作人员安全责任制
a、认真学习,严格执行安全技术操作规程,模范遵守安全生产规章制度。
b、积极参加安全活动,认真执行安全交底,不违章作业,服从安全人员的指导。
c、对不安全作业要积极提出意见,并有权拒绝违章指令。
d、操作人员必须参加过有关部门组织的学习、培训,经考核合格后领取上岗证后,方可进行作业。
e、业前,必须对工作现场周围环境、形式线路、架空电线、建筑物及构件重量和分布情况进行全面了解。
f、操作人员在进行起重回转、升幅和吊钩升降等动作前,应鸣声示意。
g、起重机的操作人员和指挥人员必须密切配合,指挥人员必须熟悉所指挥的起重机的性能。操作人员应严格执行指挥人员信号,如信号不清或错误时,操作人员可拒绝执行,如果由于指挥失误而造成事故,应由指挥人员负责。
h、塔机作业前,应检查起吊物下方有无人员停留或通过,禁止用起重机吊人员,否则,按的关奖罚制度进行处罚。
i、塔吊机械必须按规定的起重性能作业,不得超负荷和起吊不明重量的物体,对特殊情况需超负荷时必须有保证安全的技术措施。
经企业技术人员批准,并有专有在现场监护下,方可起吊。
__
本施工组织设计作为指导施工的依据,编制时对目标工期、工程质量、项目管理机构设置、劳动力组织、施工进度计划控制、机械设备及周转材料配备、主要分部分项工程施工方法、安全保证措施、文明施工及环境保护措施、降低成本措施等诸多因素尽可能充分考虑,突出科学性及可行性。
本施工组织设计依据以下几项编制:
1、深圳航空公司颁发的“深圳航空公司综合办公楼招标文件”。
2、深圳市**建筑与工程设计有限公司设计的深圳航空公司综合办公楼的建筑、结构、电气、给排水施工图。
3、中南地区通用建筑标准设计“建筑配件图集”2000 合订本。
4、建筑防水工程技术规程(DBJ15-19-97)SJ.A 图集。
5、本企业通过认证的ISO9001:2000 质量体系文件(质量保证体系、程序文件、作业指导书)。
6、深圳市建设局文件《深圳市建设工程现场文明施工管理办法》。
7、地震出版社出版的《建筑安装工程施工组织设计集》。
8、广东省及深圳市有关建筑工程文件及规定。
9、施工现场的条件。
10、本企业积累的施工经验、资源条件。
11、现行国家有关建筑工程规范、标准和规程:
防水部分
建筑防水工程技术规程 DBJ-15-19-97
地下防水工程质量验收规范 GB 50208-2002
基础部分
建筑地基基础工程施工质量验收规范 GB 50202-2002
钢筋部分
钢筋焊接及验收规程 JGJ 18-96
钢筋机械连接通用技术规程 JGJ 107-96
钢砼构件部分
混凝土结构工程施工质量验收规范 GB 50204-2002
砼、砂浆部分
普通混凝土配合比设计规程 JGJ 55-2000
砌筑砂浆配合比设计规程 JGJ 98-2000
混凝土泵送施工技术规程 JGJ/T 10-95
回弹法检测混凝土抗压强度技术规程 JGJ/T 23-2001
脚手架、井架部分
建筑施工扣件式钢管脚手架安全技术规范 JGJ130-2001
建筑施工门式钢管脚手架安全技术规范 JGJ128-2001
龙门架及井架物料提升机安全技术规范 JGJ 88-92
建筑施工高处作业安全技术规范 JGJ 80-91
砌体、门窗、装修部分
建筑地面工程施工质量验收规范 GB 50209-2002
屋面工程质量验收规范 GB 50207-2002
建筑装饰装修工程质量验收规范 GB 502140-2001
砌体工程施工质量验收规范 GB 50203-2002
非承重混凝土小型空心砌块墙体技术规程 SJG 06-1997
外墙饰面砖工程施工及验收规程 JGJ 126-2000
水、暖、电部分
给水排水管道工程施工及验收规范 GB 50268-97
建筑电气工程施工质量及验收规范 GB 50303-2002
施工综合性规范
建筑工程施工质量验收统一标准 GB 50300-2001
建筑内部装修设计防火规范 GB 50222-95
工程测量基本术语标准 GB /T 50228-96
建设工程项目管理规范 GB/T 50326-2001
建筑施工安全检查标准 JGJ 59-99
深圳市房屋建筑白蚁预防工程技术规程 JGJ 08-99
一、施工图纸内包括
深圳市**建筑与工程设计有限公司设计的深圳航空公司综合办公楼的建筑、结构、电气、给排水施工图(二次装修不包括在内)。
二、施工图纸外包括
1、施工现场临时设施的布置。
2、施工现场及周围建筑物、道路及地下管道的保护、安全和环保等措施。
3、施工期间防洪、防台风措施。
4、工程完工后建筑物周围10 米内的清理平整。
深圳航空公司综合办公楼是深圳航空公司自筹资金组织建设综合性办公楼。
1、工程名称:深圳航空公司综合办公楼;
2、工程地址:深圳市深南大道与广深高速公路立交桥的东南侧;
3、施工现场条件和周围环境:已具备三通一平条件;
4、工程位置:如下图

工程位置图
2、建筑物室内地面标高±0.000 相当于绝对标高8.200m;
3、本工程为框剪结构体系,抗震设防烈度为七度,主体结构耐入年限50 年。
(1) 经济技术指标一览表
| 施工图设计 | 规划设计要点 |
用地性质 | C5 | C5 |
总用地面积 | 4767.2 | 4767.2 |
建筑容积率 | 8.1 | 8.1 |
建筑覆盖率 | 36% | 40% |
建筑层数 | 28 | 29 |
汽车泊车位 | 地面21 地下165 | 208 |
建筑物后退红线 | 东>6.00m 南>10.7m 西>14.18m 北>17.34m | 东>10m( 后国土局调整为6m 南>10m 西>10m( 后国土局调整为6m 北>15m |
(2) 建筑面积及经济技术指标一览表

(3) 人防地下室经济技术指标表

1、室内地面除特别注明外,混凝土垫层一般不设变形缝,但应分仓浇捣,每仓面积不宜大于40 平方米。
2、当地面采用无筋细石混凝土面层时,厚度应≥30,标号C25,且应划分为不大于6 米见方的分格缝,缝宽10 缝内填弹性嵌缝材料。
3、楼地面做法:(由上而下)



1、本工程砌体除人防地下室370 抗爆墙用机制砖战时砌筑体均为非承重混凝土小型空心砌块墙。
2、外墙体:均采用190 厚非承重混凝土小型空心砌块墙,M5 混合砂浆砌筑。
3、内墙体:1)地下室内隔墙均采用190 厚非承重混凝土小型空心砌块墙,M5 混合砂浆砌筑。
2)±0.000m 以上内隔墙卫生间及管道井采用90 厚非承重混凝土小型空心砌块墙外,其余内隔墙除注明外均采用100 厚埃特板。
4、为方便起见墙体厚度标志尺寸90 厚为100,190 厚为200。
5、除整体板材外,所有墙体砌块在与梁板顶部连接处,均应盲孔反砌,且用斜砖挤浆顶砌。
6、管道井除送风,排风管井外,楼板内钢筋不应剪断,待管线安装后,再进行封堵。
7、有关墙体与钢筋混凝土结构拉结,构造梁柱的分布以及有关墙体的技术要求,均按照《深圳市非承重小型空心砌块墙体技术规程》SJG061997执行。
8、内外墙做法表:
编号 | 名称 | 构造做法 | 部位名称 | 备注 |
内墙1 | 水泥砂浆墙面 |
| 地下车库 |
|
内墙2 | 乳胶漆墙面 | 1. 刷水泥浆一道 配合比为107 胶: 水1.4 2.12 厚1:1:4 水泥 石灰砂浆 3.8 厚1:0.8:3 水泥 石灰砂浆 4.满刮腻子二道, 打磨平整 5.白色乳胶漆,至 少二遍 | 地下室楼梯 间,前室 | 钢筋混凝土 墙面上涂刷 界面处理剂 |
内墙3 | 吸声墙 |
| 制冷机房,水泵房,柴油发电机房 |
|
踢脚 |
| 面层材料同相应 楼地面 |
| 高度为120 |
顶棚1 | 水泥砂浆顶 棚 |
| 地下车库及 设备用房 |
|
顶棚2 | 乳胶漆 | 1. 钢筋混凝土底 | 地下室楼梯 |
|
|
| 面清理干净2.1:1:4 水泥石灰砂浆8 厚3.1:0.8:3 水泥石灰砂浆7 厚4.满刮腻子二道, 打磨平整5. 白色乳胶漆二道 | 间,前室 |
|
外墙1 | 白色高级外 墙涂料 | 1. 小型混凝土空 心砌块墙表面划 出纹道 2.20 厚聚合物水 泥砂浆找平 3. 白色仿金属外墙涂料 |
|
|
外墙2 | 白色高级外墙涂料 | 1.钢筋混凝土面2.20 厚1:3 水泥砂浆找平层3. 白色仿金属外墙涂料 |
|
|
外墙3 | 浅灰色单层铝板 | 应由具专业设计施工资质的公司根据本工程设计制作 |
|
|
外墙4 | 中灰色单层铝板 |
|
| |
±0.000 以上内墙装修由业主委托装饰公司进行二次设计 | ||||
1、本工程防水等级为二级,二道防水设防,其中刚性防水层层宜设分格缝,双向间距不大于6m。
2、建筑物屋面利用栏杆做为环形避雷带。
3、建筑物层面以2%坡度坡向排水沟。
4、防水层的找平层设分格缝缝宽宜为20mm,并应留在板端缝处其纵横间距不宜大于6m,缝内填密封材料。
5、屋面做法表:
编号 | 名称 | 构造做法 | 部位名称 | 备注 |
屋1 | 种植屋面 | 1.种植土 2.40 厚C30 细石混凝 土内配双向Φ4@150 内加纤维,减水剂 3.1.5 厚合成高分子防 水卷材 4.20 厚1:3 水泥砂浆 找平层, 上刷基层 处理剂一道 5.1:8 水泥珍珠岩找坡 2%最薄处20 厚 6. 3 厚高聚物改性沥 青防水卷材隔汽层, 高出保温层150mm 7. 20 厚1:3 水泥砂 浆找平 8. 钢筋混凝土 |
| 标志厚度 400 |
|
|
| ||
|
| |||
|
| |||
|
| |||
|
| |||
|
| |||
|
| |||
|
| |||
|
| |||
|
| |||
屋2 | 上人屋面 | 屋1 中种植土改为5 厚聚合物水泥砂浆铺 贴浅色地砖 |
|
|
屋3 |
| 屋1 中种植改为20 厚 1:3 水泥砂浆 |
|
|
1、本工程地下室防水应满足广东省《建筑防水工程技术技术规程》粤建科字[1997]118 号的规定;
2、本工程地下室防水以钢筋混凝土结构自防水为主,施工时应满足侧壁混凝土抗渗标号≥S8,底板混凝土抗渗标号≥S8;
3、混凝土选用的外加剂应满足抗渗,减水、膨胀、密实、抗裂等性能要求。
4、附加防水层侧壁设置在迎水面,由内到外做法:
1)300~400 厚钢筋混凝土侧壁;
2)20 厚水泥砂浆找平;
3)3 厚合成高子防水卷材;
4)30 厚聚苯板保护层;
5)回填土分层夯实(避免大块硬质废料在回填过程中对附加防吕层的破坏)。
5、底板设置在背水面做法:(由上至下)
1)50 厚C30 细石混凝土面层;
2)130 厚C20 混凝土;
3)2 厚合成高分子防水卷材;
4)15 厚1:2 水泥砂浆找平;
5)600 厚防水钢筋混凝土底板;
6)30 厚中等防腐蚀水泥砂浆找平(配比按照《岩土工程勘察规范》GBJ500021-94 中表13-4-1 防腐蚀等级为中等腐蚀做);
7)100 厚C10 混凝土垫层。
6、地下室顶板防水做法:(由上至下)
1)40 厚C20 细石混凝土内配双向Φ4@150;
2)聚脂毡隔离层;
3)2 厚合成高分子防水卷材;
4)20 厚1:3 水泥砂浆找平;
5)防水钢筋混凝土顶板。
7、生活水池防水做法:
1)池壁1:a. 250 厚钢筋混凝土主体墙
b. 一道沥青隔离层
c. 200 厚钢筋混凝土主体水池壁
d. 15 厚1:2.5 水泥砂浆嵌平补实
e. 7 厚聚合物水泥砂浆
f. 无毒、防霉、防菌涂膜防护五道
2)池壁2:a. 钢筋混凝土水池壁,15 厚1:2.5 水泥砂浆嵌平补实
b. 7 厚聚合物水泥砂浆
c. 无毒、防霉、防菌涂膜防护五道
3)池壁3:a. 250 厚钢筋混凝土主体墙
b. 15 厚1:2.5 水泥砂浆嵌平补实
4)池底1:a. 防水钢筋混凝土底板
b. 一道沥青隔离层
c. 200 厚钢筋混凝土主体水池壁
d. 15 厚1:2.5 水泥砂浆嵌平补实
e. 7 厚聚合物水泥砂浆
f. 无毒、防霉、防菌涂膜防护五道
5)顶板度1:(自上而下)a.钢筋混凝楼板
b. 20 厚1:2.5 水泥砂浆嵌平补实
1)钢筋:I 级(Φ)fy=210N/mm2 II 级(Φ)fy=210N/mm2
2)钢材:A3(钢板、钢管、普通热轧槽钢、工字钢、角钢)
3)螺栓:精致(A 类)
4)焊条:E43 系列(用于I 级钢筋)
E50 系列(用于II 级钢筋)
2、本工程焊缝质量要求:二级(未注明长度的焊缝一律满焊)直锚筋与锚板采用T 形焊焊缝高度不小于0.6 倍锚筋直径;
3、合格钢材进厂后须进行表面除锈,清理并用涂刷氧化铁红底漆一道,拼装后再涂刷防锈漆一道;
4、所有不露明金属制品均刷防锈漆二道;
5、金属件油漆前均应彻底去油除锈,保证成品漆膜光亮,避免面层剥落。
6、钢制栏杆直线部位应严格调直并应保持边角整齐,切割部位须挫平磨光,不得留有切割痕迹,要求尺寸精确表面光洁凡露明焊缝均应满焊并保持焊缝均匀再经挫平磨光。
7、室外楼梯及平台栏杆均刷防锈漆二度,白色醇酸磁漆二度,室外钢架外喷白色烤漆。
8、本次设计钢结构部分图纸,仅为专业公司二次设计条件图,详细钢结构施工图应由具有钢结构设计施工资质的专业公司进行二次设计,并通过我公司审核确认后方可施工。
9、室内钢梁、钢架等承重钢构件均涂刷防火涂料,其厚度应达到一级耐火等级要求。
1、所有门窗及玻璃幕墙制作前均需仔细核对数量,洞口尺寸及开启方向,核对无误后方可制作安装,除特别注明外所有门窗应含全套配件。
2、木门:1)除设计另有说明外,所有木门安装与开启方向墙面平。
2)木门均二次装修另行设计。
3)凡木料与砌体接触部分均满涂防腐沥青。
4)所有木门窗及木制品均采用I 级杉木,木材含水率应符合施工验收技术规范及有关图纸规定。
3、铝合金门窗、雨棚及玻璃幕墙:
1)应由具备专业设计施工资质的公司根据本工程设计提供的设计条件图包括立面,分格尺寸、开启部位,用料、颜色等设计要求进行二次设计,经本公司审核单独出图。
2)本次设计所示铝合金门窗立面一律由外向内立视,且仅作分格示意。
3)幕墙玻璃采用无色半钢化玻璃,雨棚玻璃采用钢化夹胶玻璃,铝合金门窗玻璃采用浅灰色半反射镀膜玻璃。
4、防火门及防火卷材:
1)防火门等级详见门窗表。
2)防火门制作安装前应仔细核对防火门的开启方向。
3)防火卷帘上部与梁板之门空障处应用双面15 厚镀锌钢板中间夹岩棉进行防火分隔。
5、人防地下室防护密闭门悬板活门:
1)严格按照人防标准图集预留所有洞口及铁件。
2)严格按照人防部门指定生产厂家提供产品。
6、门窗与外墙接缝处,应采用聚合物水泥砂浆挤填密实,并用密封胶封闭。
1、有关电梯井道、底坑、机房、电气配置,施工要求事项根据特定品牌的电梯技术标准执行。
2、电梯门、门框、指示盘及轿箱内装修配合二次装修统一设计。
3、电梯机房及井道预留孔洞由电梯厂商配合施工。
4、消防电梯门的防火性能应达到乙级防门的防要求,并在底层安装消防专用按钮。
1、总图防火设计:在基地内部形成沿大厦四周的环形消防通道,而且该环形消防通道的宽度以及转弯半径均可达到消防设计规范的要求。在本建筑东西北3 个周边长皆可做消防登高面。
2、建筑防火设计:本建筑室外地面至屋面总高为99.600 米,为一类高层建筑,建筑耐火等级为一级。
1)防火分区:地下室每层一个防火分区,设备用房与车库相邻处采用甲级防火门,地上部分1-6 层中厅及一二层设成一个防火分区与相邻空间采用特级防火卷帘进行分隔,东侧三~五层分别形成一个防火分区;七~二十八层为一个防火分区。
2)防烟分区:每个防火分区每500 平方米设一个防烟分区,并以不少于500cm 的挡烟垂直进行分隔。
3)安全疏散:每个防火分区均设有两座供人员疏散的防烟楼梯或室外楼梯,并设有一部1000kg,速度为2.0m/s 的消防电梯供消防人员发生火灾时使用。
4)消防控制室设在地下一层并有直通室外的安全疏散楼梯
1、设计依据:《人民防空设计规范》(内部发行)GB50038-94《人民防空工程设计防火规范》GB50098-98《人防工程防护设备选用图集》(第二册)
2、工程概况:深航办公楼地上29 层,地下2 层,其中1~2 层为商业用房,7 层为职工餐厅,9~15 层为单身公寓,16~18 层为招待所,其余为办公,总建筑面积46548.44m2,总高度99.6m,其中38649.09 m2 计入容积率,地下两层7859.35 m2 不计入容积率首层建筑面积1736.68 m2,主体结构形式为框筒体系。
(1)地面出入口为不影响平时地面通行,楼梯仅施工至地下-1.35m 标高处,并用钢筋混凝土盖板盖好,战时揪起做出入口口部施工。
3、人防工程
1)本工程地下2 层,部分为战时6 级人防地下室,战时是一般城市居民掩蔽所,平时做汽车停车库使用。
2)地下室人防建筑面积为1988 m2,分为两个防护单元,其中第一防护单元建筑面积为926 m2,掩蔽面积为720 m2,掩蔽人数为720 人,第二防护单建筑面积为1062 m2,掩蔽面积为677 m2,掩蔽人数为677 人。
3)每个防护单元又分为两个抗爆隔墙战时用370 厚机制砖砌筑。
4)第一防护单元与第二防护单元分别设两个出入口,一个直通室外的主要出入口,一个次要出入口:出入口处设有筒易洗消间或滤毒室。每个防护单元内均设置战时男,女旱厕,各出入口门按人防规范设置防护密闭门、密闭门、排风口处设有扩散室战时扩散室战时进排风通过抗曝活门进入扩散室。
5)临空墙处平时需汽车通过的门采用防护密闭门并在战时用370 机制墙进行口部封堵。
名称 | 单位 | 工程量 | |
1 | 机械挖III 土 | 立方米 | 5676 |
2 | 人工挖III 土 | 立方米 | 567.6 |
3 | 回填土 | 立方米 | 3198 |
| 砼砌块 | 立方米 | 3469.82 |
| 模板制安 | 平方米 | 123531.5 |
| 混凝土 | 立方米 | 24259.67 |
| 钢筋 | 吨 | 4587.053 |
| 幕墙 | 平方米 | 1433.25 |
| 铝合金门窗 | 平方米 | 9813.14 |
| 木门 | 平方米 | 734.3 |
| 抹灰 | 平方米 | 4040.32 |
| 外墙脚手架 | 平方米 | 29754.7 |
1、设计标高±0.000 相当于绝对标高+8.200m,本图中各楼层标高均为扣除建筑面层厚度的标高。
2、本工程建筑位于地震基本烈度七度区,按丙类建筑抗震设防,设防烈度为七度,场地类别为II 类,结构安全等级为一级。钢筋混凝土结构抗震等级分别为:
框架:二级
剪力墙:二级
3、地下二层部分区域为人防地下室,抗力等级为六级。
部位 | 等级 | 抗渗等级 | |
基础垫层 | C10 |
| |
承台 | C30 |
| |
水池、地下室底板、地下室外墙及与外墙相连的剪力墙 | C30 | S8 | |
地下二层~第九层 | 混凝土墙和柱 | C45 |
|
梁和楼板 | C35 |
| |
第十层~第二十一层 | 混凝土墙和柱 | C40 |
|
梁和楼板 | C30 |
| |
第二十一层以上 | 混凝土墙和柱 | C35 |
|
梁和楼板 | C25 |
| |
2、钢材
I 级钢筋(ф)fy=210N/mm2 II 级钢筋(Ф)fy=310N/mm2型钢及钢板均用Q235(A3 钢)
焊接型钢、钢板及I 级钢筋时采用E43 焊条,焊接II 级钢筋时采用E50焊条。
3、砌体:填充墙种类容重不宜大于7KN/m3,砌筑砂浆强度等级不低于M5,并优先选用混合砂浆。
1、除注明外外的构造措施必须符合(00G101)中关于相应抗震等级的梁、柱、墙、节点等的构造规定。
2、混凝土保护层厚度:承台底面为100,侧面为35,顶面为25。
基础梁底面和侧面均为35,顶面为25。
地下室外墙外侧为25,内侧为15。
地下室底板板底为25,板顶为15。
梁、柱(暗柱):25 当梁柱箍筋直柱>10 时,箍筋保护层厚不小于15。
3、钢筋接头、锚固
(1)框架梁、柱(暗柱)、墙纵向钢筋的锚固和接头应符合(00G101)要求。
(2)框架梁应采用机械接头或焊接接头,贯通面筋接头应设在跨中,底筋接头应设在距支座1/3 跨度处。
(3)支座两端框架梁直径相同的面筋应贯通不得截断。
(4)连续配置的板内受力钢筋面在跨中搭接,底筋在支座处搭接。
(5)板和梁受力钢筋接头位置应尽量错开,同一截面钢筋接头面积不得超过该截面筋总面的50%(焊接)或45%(绑扎),且接头间距≥45d。
4、钢筋位置
(1)双向板板底短向钢筋应在长向钢筋之下,板面短向钢筋应在长向钢筋之上。
(2)当主次梁梁高相同时,次梁纵筋应放在主梁纵筋内侧并在主梁内次梁两侧各附加两道间距50 的箍筋。
(3)当两个方向的次梁梁高相同时,短跨次梁纵筋应放在长跨次梁纵筋外侧,两个方向的次梁都应在相交处每侧各附加两道间距50 的箍筋。
5、构件开洞及补强
(1)预留孔洞和预埋件穿墙套管必须与有关专业图纸配合施工,及时预埋管和套管,及时校验预留洞和预埋铁件的位置,不得后期开凿。
(2)框架柱、剪力墙暗柱不应有横向或竖向穿过管线及留洞。
(3)梁上应尽可能的不留孔洞,若无法避免则孔洞位置设在拉力和剪力较小的部位,洞口尽可能为圆形并加设钢套管,洞边加强筋,未经设计人员同意不得自行在梁内留洞或凿洞。
(4)板上预留洞尺寸小于或等于300 时,板筋不切断,可绕过洞口,洞口尺寸大于300 且小于或等于1000 时,应设加强筋,每侧加强筋不于被切断钢筋面积的一半。
(5)凡须浇注楼板的各类管道井,在该层楼面施工时先铺好板配筋,待管道安装完后再用微膨胀混凝土补浇该部分楼板,安装时尽量不切断钢筋,如有断筋应作补强处理。
(6)剪力墙(包括地下室墙体)上预留洞洞口边长或直径≤300 钢筋可以不切断而绕洞口而过,300<洞口边长或直径≤800 洞口每侧设不少于被切断钢筋面积一半的且少于2Φ12 的加强筋。
2、防水混凝土所有模板必须光滑平整缝隙严密,支撑牢固,尽量不用螺栓拉杆或铁丝贯穿防水结构以免造成引水通路,若无法避免采用铁丝或螺栓贯穿防水混凝土壁来固定模板时必须拆模后在该处凿入20 毫米,在螺栓根部割断后,用1:2 水泥砂浆填补抹平。
3、地下室侧壁与底板必须连续浇柱,不得留垂直施工缝,考虑到施工情况,地下室侧壁可在底板顶面以上300mm 的位置设置水平施工缝,并如下图设置钢板止水带,在浇灌上层前应对缝表面凿毛并用压力水冲净浮尘,然后在施工缝面上涂刷水灰比小于或等于0.4 的水泥浆二遍,接着铺设10mm 左右的防水混凝土强度等级相同的水泥砂浆,捣压密实,直至表面泛浆再接浇上部的混凝土。
4、地下室与土壤接触的侧壁、承台和基础梁均应砖模,混凝土浇注前砖模应充分湿润以保证结构施工质量。
5、大体积混凝土施工时应采取有效措施降低水化热,温度控制在25。
C 以内,混凝土应振捣密实,避免漏振,并且加强湿润养护,养护时不少于14 天。
6、地下室顶板及外侧墙壁防水层完工后应及时沿基坑四周均匀回填土,回填土应分导夯实,每层厚约300mm,密实度不小于0.93。
7、本工程地下室以下地下水对混凝土具有中等腐蚀性,基础及地下室施工应根据《岩土工程勘察规范》GB50021-94 的要求采取防护措施。
1、板中与梁平行的钢筋距梁边不大于50mm,板中主受力筋靠外,分布筋(次受力筋)靠内,除注明外分布筋均为Φ6~200。
2、板的面筋直钩长度为板厚减去板顶保护层厚度,板负筋应伸入支座LaE,底筋应伸入支座不小于10d 和150mm,且应伸过支座中心板上下钢筋锚入核心筒剪力墙长度均为LaE。
3、各板角负筋纵横两个方向必须重叠设置成网格状,具有拐角的悬挑板应在拐角处45。方向放射状设置面筋6Φ10~100。
4、本有双层双向钢筋的楼板(含板的面筋部份)要求设有钢支撑钢筋(梅花形布置,间隔宜小于1m)以保证两层钢筋网的间距。
5、板内埋设的管线必须位于板内受力筋的内侧,管径不得大于1/3 板厚。
6、混凝土井筒外角周边板底和板面应示沿45。方向放射状各设置钢筋6Φ10~100,钢筋伸出墙边2000mm。
1、梁、柱墙混凝土强度等级相差>Pa 时,节点区混凝土应按高等级强度混凝土施工,不同强度混凝土分界面应在墙柱外边500mm 处。
2、剪力墙墙体的混凝土必须分层振捣,每次每层高度不超过1m,只允许留水平施工缝,接口表面必须清扫干净,确保混凝土接合良好。
3、梁顶标高有高差的梁端的通长钢筋不得在高差处设置接头,通长钢筋应以1:6 的坡度弯折拉通.
4、对于跨度L>7m 或悬挑长度L>1.5 的梁支模时应按施工规范要求起拱。
5、对于梁宽大于柱边长的节点应在梁内加设垂直拉筋和水平箍筋.
6、主次梁相交处应在主梁内次梁两侧各附加两道间距50 的箍筋,箍筋大小和肢数同主梁箍筋。
7、支座两端梁面纵筋数量不等时,直径相同的钢筋应拉通。
1、砌体填充墙与混凝土墙柱交接处,沿墙高度每500mm 在灰缝内配置2Φ6 通长拉结筋,拉结筋锚入混凝土墙或柱内200mm。
2、填充墙墙高大于4m 或墙厚小于200mm 且高度大于3m 时,应在半高处加设圈梁一道,圈梁宽同墙厚且不小于150mm,高200mm,上下各配2Φ12 纵筋,箍筋Φ6-250,混凝土强度等级同相邻的墙、柱,纵筋锚入钢筋混凝土柱或墙500mm。
3、砌至板底梁底的砌体必须用斜砌块楔紧或采用其他楔紧措施。
4、砌体填充墙的门窗上设置过梁,过梁混凝土强度等级为C25,过梁两端支座长度各为300mm。
5、填充墙墙度>5m 时墙体中部加设间距不大于5m 的构造柱,当砌体填充墙的拐角处无框架柱时,在拐角处也应设构造柱。构造柱混凝土强度等级为C25,距4Φ12 纵筋,箍筋Φ6@200,须先砌墙后浇注。
本工程地下部分做1000mm 宽的后浇带,具体位置见有关图纸,后浇带的保留时间不宜少于两个月,然后用比设计强度提高一级的掺有微膨胀剂的无收缩混凝土将后浇带补齐并加强养护,要求后浇带潮湿养护不少于15 天,后浇带两侧宜采用钢筋支架铅丝网或单层钢板网隔断,使先浇的混凝土成锯齿形。
1、电梯井壁、底坑及电梯机房应由生产厂家配合预留各种空洞及埋件。
2、凡有防雷要求的柱,每柱内两根纵向钢筋从底至顶均应焊接并与底板外圈钢筋焊牢,连接板必须同上述两根主筋相连。
3、本工程沉降观测点共设置24 个,分别设在核芯筒的四角和主楼20根框架柱上,在施工期间应每完成一层观测一次,竣工后第一年每季一次,第二年每半年一次,以后每年一次直到沉降稳定为止,若突然发生严重裂缝或大量沉降则应增加观测次数。
2、《火灾自动报警系统设计规范》(GB50116-98)。
3、《汽车库、停车库、停车场设计防火规范》(GB50067-97)。
4、《人民防空工程设计防火规范》(GBJ98-87)。
5、《民用建筑电气设计规范》(JGJ/T16-92)。
6、《深圳市民用建筑设计技术要求与规定》。
7、各相关专业和设备厂商提供的技术资料。
2、建筑物室外及景观照明仅予留配电回路,与室外景观设计时统一考虑。
3、10KV 电源进线由供电部门定。
1、本工程属一类高层建筑,按一级负荷要求供电,鉴于深市供电现状,仅由市政引一路10KV 电源,并设一柴油发电作为备用电源。
2、电气设备安装容量及负荷计算,见下表:
需要系统负荷计算简表
序号 | 用电设备组名称 | 设备 容量 | 计算负荷 | |||
|
| Ps(kw) | Pis (kw) | Qjs(kvar) | Sjs (KVA) | |
1 | 空调负荷 | 1571.5 | 1100.1 | 825.0 | 1375.1 | |
2 | 乘以同时系数及无功补偿后 | 1100.1 | 462.0 | 1193.2 | ||
3 | 选择变压器1TM:SCB9-1600/10,1600KVA-台,负荷率74.6% | |||||
4 | 11~28F 照明 | 1170.0 | 819.0 | 393.1 | 908.5 | |
5 | 乘以同时系数及无功补偿后 | 737.1 | 309.6 | 799.5 | ||
6 | 选择变压器1TM:SCB9-1000/10,1000KVA-台,负荷率79.9% | |||||
7 | 公用负荷 | 480.5 | 294.3 | 194.9 | 354.2 | |
8 | 1~10F 照明 | 692.5 | 484.8 | 232.7 | 537.7 | |
9 | 合计 | 1173.0 | 779.1 | 427.6 | 891.9 | |
10 | 乘以同时系数及无功补偿后 | 701.2 | 265.6 | 749.8 | ||
11 | 选择变压器3TM:SCB9-1000/10,1000KVA-台,负荷率75.0% | |||||
12 | 应急负荷 | 525.0 | 239.3 | 165.4 | 290.9 | |
13 | 保障负荷 | 370.5 | 210.9 | 144.6 | 256.3 | |
14 | 选择柴油发电机1GD:DFCC-312KW(390KVA) 一台, 负荷率74.3% | |||||
3、变压器的选择
根据负荷计算结果并结合本工程功能要求,选用两台1000KVA,一台1600KVA,SCB9-Dyn11-10±2*2.5/0.4/0.23KV,50HZ 树脂浇注干式变压器。
4、高压供电方式
高压供电采用一进一出单环网供电方式
5、低压配电系统
(1)配电电压为380/220V,系统接地形式采用TN-S 系统。
(2)为确保供电的可靠性和灵活性,正常情况下,三台变压吕(1~3TM)分列运行,单母线分段(I、II、III 段),其中两台(2.3TM)互为备用,中间设母联开关,母联开关可手动投入,关与变压器出线开关之间设有电气及机械联锁。
(3)另设有应急母线段(IV 段),市电故障时,柴油发机能在15 秒内自动投入运行,确保消防负荷及重要负荷,而当发生火灾时,由消防控制室断开非消防负荷,保障消防负荷,应急母联开关正常时闭合,与发电机出线天关互锁。
(4)低压配电方式采用树干式和放射式相结合。
(5)消防负荷均为双回路电源末端切换。
6、高、低村配电室
高、低压配电室设在地下一层,高压柜、变压器及低压柜共室设置。
7、应急柴油发电机组
本工程选用康明斯DFCC-312KW 柴油发电机组,当市电故障时,在15 秒内自动启动,柴油发电机设在地下一层。
8、功率因数补偿方式
按供电部门要求,在变压器低压侧设功率因数自动补偿,补偿容量为526.4Kvar,补偿后功率因数为0.92。
2、光源及灯具的选择。
本工程以绿色照明为本。采用节能型光源为主,并采用高效节能灯具。
3、应急照明
(1)疏散照明
本工程的安全出口、疏散走道、电梯间、防烟楼梯间及前室均设安全出口标制灯,疏散指示标志灯及疏散照明灯。
(2)备用照明
在消防控制室、高低压配电室、水泵房、风机房及地下车库所设置备用照明。
本工程导线以阻燃型和耐火型为主,除注明为电缆桥架,线槽或钢管外,其余皆为穿阻燃PCV 管敷设。
1、防直击雷
采用装设在建筑物女儿墙等突出屋面的环状避雷带,并在屋面敷设10m×10m 的网格,相互焊接连成网作为接闪器、避雷带及支架为Φ12 镀锌圆钢,支架高为0.1m,间距为1.0m,转角处为0.5m.
利用建筑物外围柱,剪力墙内的主钢筋(DN>16mm,不少于两根),包括建筑外廊各个角上的柱内钢筋搭接焊惯通,作为引下线(其上端与接闪器焊接,下端在室外地坪下-1.0m 处焊出一根Φ16 镀锌圆钢,并伸向室外,距离皮>1m,且其在建筑物外廊的间距<18m)。
利用基础承台内的钢筋网(其钢筋DN>10mm)作为接地装置。
以上三部分焊连成一闭合的电气通路。
2、防侧击雷和等电位保持措施
本工程将建筑物45m 及以上部分每隔三层的圈梁内主钢筋(若无圈梁,则在建筑物外墙内敷设一Φ12mm 镀锌圆钢环),至少两根焊接成环后与引下线,建筑物内各种竖向金属管道,楼板内钢筋及外墙上的金属栏杆、门窗等焊接成电气通路,形成均压环,同时上述各种竖向金属管道应在应在顶端和底端和底端与防雷装置连接构成等电位。
3、防雷电波侵入
室外装电缆和金属管道入户时,将电缆金属外皮金属管道与防雷接地装置相连。
4、接地端子板
在变配电室、柴油发电机房、消防控制室、电信机房及竖井内均设接地端子板,和附近防雷接地系统钢筋焊接,接地端子板为50×5 镀锌扁钢。
本工程采用共用接地方式,接地电阻<1 欧姆。
2、各办公室层电源进线开关具有隔离,过流及漏电保护功能,同时插座回路均设漏电保护,并辅以总等电位联结。
3、设置MEB,为降低建筑物内电气装置的接触电压及自外部窜入的危险电压本工程实施总等电位联结(MEB),即利用接地端子板将保护母线(16mm2 铜芯塑料线)汇接起来,并在卫生间等潮湿场所进行局部等电位联结。
1、电气施工人员应密切配合土建施工,做好管线预埋及孔洞的预留,尤其做好MEB。确保保护线及等电位联结的电气性能良好。
2、为防止火灾蔓延,凡穿越墙、楼板的母线槽、桥架、线管等处均用防火材料封堵。
1、选用低损耗、低噪声节能型干式变压器,及智慧型数码控制应急柴油发电机。
2、全面采用绿色照明,选用节能光源及高效节能灯具,并采取合理的控制方式。
3、推行以塑代钢,采用难燃PVC 管。
2、《火灾自动报警系统设计规范》(GB50116-98)。
3、《汽车库、停车库、停车场设计防火规范》(GB50067-97)。
4、《人民防空工程设计防火规范》(GBJ98-87)。
5、《民用建筑电气设计规范》(JGJ/T16-92)。
6、《深圳市民用建筑设计技术要求与规定》。
7、各相关专业和设备厂商提供的技术资料。
本工程保护等级为一级,系统采用控制中心报警系统,消防控制室位于地下一层,系统由一台火灾报警控制器,一台专用消防联动控制设备组成。
系统包括:
1、火灾自动报警系统
系统根据爱德华(EDWARDS)EST-3 智能火灾报警控制系统设计,系统能集中显示火灾报警信号和联动控制信号。
在办公室、电梯厅、走道等部位采用感烟探测器,在地下车库、厨房等处采用感温探测器。
2、消防联动控制系统
消防控制在确认火灾后,消防控制设备应能实现如下功能:
(1)自动切断着火层及相关层的非消防电源,并接通火灾应急照明和疏散标志灯。
(2)控制电梯全部停于首层,并接收其反馈信号。
(3)对室内消火栓系统,自动喷淋系统,气体火灾系统,防烟,排烟系统,防火卷帘等设备进行自动控制,并能显示其工作及故障状态。
消防水泵、防烟和排烟风机的控制设备除采用总线编码模块控制外,还在消防控制中心设置手动直接控制装置。
3、火灾应急广播
火灾应急广播与公共广播合用,火灾时应能在消防控制室将火灾疏散层的扬声器强制转入火灾应急广播状态。
4、火灾警报装置
消防控制室在确认火灾后,自动接通着火层及相关层的警报装置。
5、消防专用电话
在变配电室、电梯机房、水泵房及与消防联动控制有关的机房设置消防专用电话,在消防控制中心设置可直报警的外线电话。
6、布线
火灾报警线路皆为穿阻燃PVC 管暗敷。
电信机房设在5 层,自市政网络引来市话网络及数据通信光纤,机房内设语音配线架及网络机柜等设备。
在办公室、商场等处设置信息出门,各层弱电竖井兼作弱电配线间,内设配线架等设备及电源插座。
有线电视节目源取自城市有线电视网络,有线电视前端机柜设于5 层电信机房,在办公室、商场等出设置有线电视插座。
BA 系统按西门子(SIEMENS)智能监控控系统S600 设计,用于建筑物的空调给排水、电力、照明、电梯等设备的控制和管理。
S600 系统设备中央位于地下1 层BA 控制室,对全楼各类机电设备进行集中控制和管理、设备现场设DDC 分站,每个分站均能独立工作,具备通讯接口,实现对各类传感器和执行器的数据采集,转换和发送功能。
在建筑物的各主要出入口、电梯间、电梯轿箱内及地下车库等处设置摄像头,信号传输至地下1 层监控室。
建筑物通道出入控制(门禁),防盗报警和巡更系统的设置,可根据实际使用功能和管理需要另行设计安装。
除消防系统外的其他弱电系统设备选型、数量及管线配置由系统集成商或专业公司在深化设计时选定,系统信息点的设置由二次装修时确定。
除消防系统外的所有弱电线路均采用沿弱电线槽敷设于楼板下,弱电竖井、吊顶内。再经地面线槽和穿管敷设至各信息点。
弱电系统工作接地和建筑物防雷接地共用接地装置,接地电阻值不应大于1 欧姆。
1、给水管管材及接口:卫生间内采用PE 管熔接,其余管道采用孔网钢骨架塑料复合管熔接。
2、管道安装:给水塑料管的立管及横管段用钩钉或支架固定,支承间距应符合下列规定:
公称直径(mm) | 15 | 20 | 25 | 32 | 40 | 50 | 70 | 80 | 100 | |
立管(m) | 0.7 | 0.8 | 0.9 | 1 | 1.3 | 1.6 | 1.8 | 2.2 | 2.5 | |
横管(m) | 冷水管 | 0.5 | 0.6 | 0.7 | 0.8 | 1.0 | 1.2 | 1.4 | 1.6 | 2.0 |
热水管 | 0.3 | 0.3 | 0.35 | 0.4 | 0.5 | 0.6 | 0.7 | 0.8 | 1.0 | |
3、给水横管宜有0.2%~0.5%的坡度坡向泄水装置。
4、热水横管的坡不应小于0.3%,以便放气和泄水。
5、水压试验:室内给水管道试验压力为:工作压力+0.5Mpa,本工程实验压力:低区变频为140m 水柱,高区变频为190m 水柱,在10 分钟内压力降不大于5 米水柱,然后将试验压力防到工作压力作外观观察,以不漏为合格。
6、在天面上铺设的水平管段,在闸阀、三通管、弯道及直线段适当间距的下部应设管墩,用100 号混凝土捣制。
7、在有可能经常检修的给水排水附件前(或后)及支管的阀件前(或后)应装活接头以利于检修,设计图中未标明具体位置,但应注意装设,不可遗漏,吊顶内给水管及消防管是否作保温由甲方决定,材料为一般自熄性聚苯乙烯泡沫塑料瓦,厚35mm,作法:缝隙填石棉泥,外缠镀锌铁丝,再包玻璃丝布一道,铅油一道。
8、给水管道埋深若图未注明时,可按下述原则施工:
在阀门井处为地面以下1.0 米,室外管段地面以下0.5 米。
室内管段地以下0.3 米;埋深变化段用管道纵坡调整,不用弯管等配件。
1、室内消防栓安装高度这消防栓口离楼(地)面1.1 米,出水方向宜向下或与设置消防栓的墙面成90 度角。
2、室内消防给水系统管材:
消防、喷淋管皆采用镀锌钢管、沟槽式连接。
3、室外消防水泵结合器按图集86S164 安装。
4、自动喷水灭火设施安装,详见全国通用建筑标准设计给排水试用图集〈室内自动喷水灭火设施安装〉89SS175。
5、消火栓箱:用铝合金箱(购成品)。
消火栓直径:DN65(为SN 系列)。
衬胶水龙带每根长:L=25 m
铝合金水枪:枪口口径19mm。
消防软管卷盘:包括Dg25 软管20 米及灭火喉。
管道试验压力为210 米水柱。
6、每个楼梯口应悬挂两个手提式干粉灭火器。
7、柴油发电机房采用CO 灭火系统;变配电室、25 层公司自用机房消防控制室设干粉灭火器保护,建议由厂家负责设计与施工。
8、镀锌或非镀锌管的横管段用钩钉或支加固定钩钉按国际S161/55-24,34 页施工,固定点间距不大于下表规定。
钢管管道支架的最大间距
公称直径(mm) | 15 | 20 | 25 | 32 | 40 | 50 | 70 | 80 | 100 | 125 | 50 | 200 | |
支架的最大间距(m) | 保温管 | 1.5 | 2 | 2 | 2.5 | 3 | 3 | 4 | 4 | 4.5 | 5 | 6 | 7 |
不保 温管 | 2.5 | 3 | 3.5 | 4 | 4.5 | 5 | 6 | 6 | 6.5 | 7 | 8 | 9.5 | |
9、立管管卡安装:层高小于或等于5 米,每层须安装一个;层高大于5 米,每层不得少于2 个并应在立管下端弯头处设100 号混凝土支墩。
2、管道安装:
(1)排水管道的横管与横管,横管与立管的连接,应采用45 度三通或45 度四通和90 度斜三能或90 度斜四通,立管与排出管端部的连接必须采用两个45 度弯头。
(2)生活污水管道的坡度当图中未注明按下表采用:
生活污水管道的标准坡度
序号 | 管径 | 标准坡度 |
1 | 50 | 0.035 |
2 | 75 | 0.025 |
3 | 100(110) | 0.02 |
4 | 125 | 0.015 |
5 | 150(160) | 0.01 |
6 | 200(210) | 0.008 |
括号内数字为UPVC 管的公称外径 | ||
(3)排水立管上检查口应安装在离地面1.0 米高处,检查口的朝向应便于检修,暗装立管在检查口处应设检修门。
(4)清扫口应安装在上一层地面上,其顶盖高出地面5 毫米。
(5)排水地漏的顶面应比净地面低0.01 米,地面并应有不小于0.01坡向地漏的坡度。
(6)雨水管与雨水斗连接应采用封闭式,不得设置开口水斗。
(7)排水管道上的吊钩或卡箍应固定在承重结构上,固定件间距:横管不固定件,立管底部的弯管处应设支墩。
(8)安装排水塑料管必须装设膨胀伸缩节:
①.当层高<(=)4 米时UPVC 立管应每层设一个伸缩节。
②.悬吊横管上每二个[固定支承之间应安装伸缩节一个。
③.最远端横支管上合流配件至立管的直线距离超过2 米时应装伸缩节。
④.立管与楼板交接处应设防水环、阻火圈。
(9)排水塑料管的接口,应用粘接剂粘牢,粘接剂的理化性能必须符合产品说明和设计要求。
(10)排水横吊管应在端头设管堵,管长大于10 米时,还应在管中墩设三通,以便清通。
3、卫生设备选型要求:
除设计注明选用进口卫生器具外,凡选用国产器具均应注意下列几点:大便器(高、低)冲洗水箱全部用陶瓷水箱、铜杆配件,不得采用塑料水箱、塑料配件。
蹲式大便器采用平蹲式,卫生间地漏采用防返溢地漏,阳台采和普通地漏坐式大便器、洗脸盆、浴盆型号,由甲方自定。
4、灌水:(1)污水和洗浴废水管做灌水试验,灌水高度为一层楼,但排出管应以最低层用不设备至室外检查井之全高程灌注满注满水试验,在三十分钟不渗不漏为合格。
采用大口径中空壁缠绕管,电热熔带连接。
2、管道敷设在老土上需做砂垫层基础。
3、管道敷设在回填土上应把土夯实,并做180 度混凝土带形基础。
4、污、雨水管道的施工应由单体到室外,由上游到下游逐段施工。
2、给水管必须铺设在老土层上,且不能铺设在石块、木垫、砖垫或其他垫块上当管底为软弱土质时,应换用粘土夯实后铺管,其密实度不低于5%。
当管底为岩石或半岩层时,应在管底铺中砂或粗砂厚200mm 作基础。
管道回填土中不能夹有石块、砖块、草皮、树根等杂物。
采用焊接钢管或无缝钢管,铸铁管埋地者,先将管外壁除锈,再刷冷底子油二道,涂热沥青二道;明装者除锈后刷线丹二遍,再刷防锈漆二遍;埋地镀锌钢管刷二道热沥青防腐。
1、阀门:DN<50 者采用铜截止阀,DN>(=)50 者采用闸阀或碟阀。
2、止回阀:泵房不泵了出口上采用静音止回阀,其余采用旋起式。
一、现场三通一平:施工临时用电已具备,已接至施工现场20 米;临时用水已接至现场20 米;现场位于深南大道与广深高速公路立交桥地东南角,施工道路畅通无阻;施工现场场地平整;现场已具备三通一平的施工条件。
二、工程现状:土方工程、基坑支护、桩基础工程已施工完毕。
三、现场用地及现有设施:
1、工地围墙 :工地围墙在土方开挖及桩基础施工时以砌筑完毕。
2、工地大门:工地大门有两个出入口,位于场地的西南处。
3、场地硬地化:已初步具备硬地化的要求,只要稍加修整就可达到全面硬地化的要求。
4、施工场地状况:由于基坑的开挖,地下室施工时,场地较为狭窄,但只要合理的布置可满足施工现场的要求。
场地总体概况已具备开工条件,只要加以合理的布置及修整,可达到文明工地的要求。
一、在施工中,消防、电梯、电视电话、煤气、防火防盗门、铝合金窗、钢结构等分包工程较多,在施工各个阶段都要有专业施工技术上和管理上的协调配合措施。如何协调好各专业施工队工作的顺利进行是一个施工的重难点。
二、本工程两层地下室的埋深度大,面积也较大,梁的截面大,地下室深梁支模、高支模、满堂红模板顶架的施工是一个重难点工程。
三、地下室地底板和地梁为满足防水要求,必须一起整体浇注,施工措施是一个难点工程。
四、地下室防水工程是一个难点工程。
五、地下室底板混凝土一次性浇注体积较大,大体积混凝土施工及防开裂措施是一个重难点。
六、地下室面积较大,按设计要求设置后浇带,后浇带及止水钢板的施工式一个重难点。
七、群楼的柱、墙、梁截面较大,而且有大部分的圆柱,此部分支模施工是一个重难点。
八、屋面及洗手间的防渗漏、防建筑通病、防水是一个难点工程。
九、外墙防开裂、防渗漏、防建筑通病、防水是一个重难点工程。
十、本工程屋面女儿墙、屋顶形状复杂,施工时必须针对其特点,采取合适的施工方法和施工措施。此部分的施工是一个重难点。
十一、本工程为高层建筑,建筑的垂直运输、外墙脚手架的施工是一个重难点。
十二、在施工中必须做好安全防护、环境保护、噪音和粉尘控制、市容卫生、文明施工等要求非常严格,施工中应确保工地现场的安全和周围居民的休息、生活及工作不受影响。
十三、本工程的强弱电、自动喷淋、消防、通讯工程项目繁多,工程量大,如何合理安排此部分项目的插入土建的预埋、安装等工序是一个重难点。
十四、本工程参与施工的专业工种多,土建施工单位应积极与其他专业队伍配合好,对整个工程的施工进度做好统筹规划,并应认真做好各种预留、预埋工作,同时还应会同业主与监理单位,加强对现场的管理和调度。
十五、本工程场地位于高压线的侧边,工程施工中塔吊的合理布置及防止塔吊的旋转半径内对高压线的安全防护是一个重点。
十六、本工程公司将列为重点工程之一,对文明施工的要求为创建文明样板工地,故现场规划必须合理并在施工过程中必须保持连续性。
十七、本工程的工期为577 天,工期跨越两个雨季、按质按量完成好本工程是一个重难点。
深航综合办公楼是深圳航空公司自筹资金组织兴建的综合办公楼工程,施工质量、工期、安全生产及文明施工都会对整个工程起到至关重要的作用,我公司也将其列为重点工程,公司各级领导、有关部门均给予高度重视,决心在以往建筑施工经验的基础上,巩固成绩,克服缺点,坚持公司“质量第一,信誉为本,顾客至上,服务社会”的质量方针,运用科学管理,制定严格的质量、进度和安全生产的控制措施,大力采用新技术、新工艺和新材料,以科技推动生产,降低成本。在施工过程中,同建设单位、监理单位、设计单位和质检单位密切合作,继续推行项目法施工,实施ISO9001:2000 质量保证体系。责任到人,实行目标管理,精心组织施工,确保优质、高效、高速、安全、文明生产。为此我公司制定以下各项目标:
一、工期:确保577 天内完成招标规定的本工程全部项目。
二、质量:单位工程质量达到优良标准,分部工程全部优良。争创深圳市优良样板工程。
三、安全:按广东省五无标准(无死亡、无重伤、无火灾、无中毒、无倒塌),严格按建设部一标三规范组织施工。
四、文明施工:严格按建设局的文件执行,达到文明样板工地标准。
1、组织各专业人员熟悉图纸,对图纸进行自审,熟悉和掌握施工图纸的全部内容和设计意图。土建、安装各专业相互联系对照,发现问题,提前与建设单位、设计单位协商,参加由建设单位、设计单位和监理单位组织的设计交底和图纸会审。
2、编制施工图预算,根据施工图纸,计算分部分项工程量,按规定套用施工定额,计算所需要材料的详细数量、人工数量、大型机械台班数,以便做进度计划和供应计划,更好地控制成本,减少消耗。
3、根据项目施工的内容,拟定加工及定货计划。
4、做好技术交底工作。本工程每一道工序开工前,均需进行技术交底,技术交底是施工企业技术管理的一个重要制度,是保证工程质量的重要因素,其目的是通过技术交底使参加施工的所有人员对工程技术要求做到心中有数,以便科学地组织施工和按合理的工序、工艺进行施工。
技术交底专业均采用三级制,即各专业工程技术负责人一专业工长一各班组长,技术交底均有书面文字及图表,级级交底签字,工程技术负责人向专业工长进行交底要求细致、齐全、完善,并要结合具体操作部位、关健部位的质量要求,操作要点及注意事项等进行详细的讲述交底,工长接受后,应反复详细地向作业班组进行交底,班组长在接受交底后,应组织工人进行认真讨论,全面理解施工意图,确保工程的质量和进度。
1、建筑材料及安全防护用品准备:对水泥、钢材、木材轻质砌块、管线、外墙砖等大批量材料,均应根据实际情况做好计划,分批进场,编制各项材料计划表,对各种材料的入库,保管和出库制订完善的管理办法,同时加强防盗、防火的管理。
2、施工机具设备:施工中计划投入的大型施工机械包括1 台塔吊、1台施工电梯、1 台混凝土搅拌机、2 台混凝土输送泵、1 台250KW 柴油发电机等施工中所需的各种中小型机具设备均齐备完好,无需订购。
3、修整施工出入口,铺设现场内施工道路,作好地面排水沟、车辆冲洗台,搭设平面布置图中的临建设施,安装好备用柴油发电机。
4、施工管理人员进场后,做好如下准备工作:会同有关单位做好现场的移交工作,包括测量控制点以及有关技术资料,并复核控制点。
5、临时用电、临时用水的搭设、安装、调试。
6、组织施工管理人员及劳动力调配入场,满足施工要求。
7、提前做好预制、预埋件的加工工作。
8、组织制定模板的需求计划和定型模板的加工工作。
项目 | 内容 | 进场后第几天完成 | 承办及审定 单 位 | |
1 | 施工组织设计编制 | 确定施工方案和质量技术安全等措施,并报审。 | 1 | 业主、 监理、公司、 |
2 | 建立施工组织机构 | 成立项目经理部,确定各班组及组成人员。 | 1 | 公司 |
3 | 现场定位放线 | 点线复核,建立平面布置和建筑物的定位和控制细部。 | 3 | 项目部 |
4 | 现场平面布置 | 按总平面图布置水、电及临时设施。 | 4 | 项目部 |
5 | 主要机具进场 | 机械设备进场就位。 |
| 公司、 项目部 |
6 | 主要材料进场 | 部分急用材料进场。 |
| 项目部 |
7 | 劳动力进场与教育 | 组织劳动力陆续进场,进行三级安全技术教育。 | 3 | 项目部 |
8 | 施工方案编制与交底 | 编写详细的施工方案,并向有关人员和班组仔细交底。 |
| 公司、项目部 |
9 | 编写施工预算 | 计算工程量,人工、材料限额量、机械台班。 | 4 | 公司 |
10 | 材料计划 | 原材料和各种半成品需量计划 | 4 | 项目部 |
11 | 图纸会审 | 全部施工图。 | 10 | 业主、监理、 设计单位、公司 |
12 | 砂浆、混凝土配合比 | 各种标号的砂浆,混凝土配合比设计。 | 8 | 实验室 |
13 | 进度计划交底 | 明确总进度安排及各部门的任务和期限。 | 6 | 项目部 |
14 | 质量安全交底 | 明确质量等级特殊要求,加强安全劳动保护。 | 3 | 项目部 |
公司本着“信誉为本、服务社会、质量第一、顾客至上”的质量方针,为实现本工程建设的优质、高速、安全、文明、低耗的目标而奋斗,为我市建筑业和城市建设作出应有的贡献。
实施项目法施工的管理模式,组建本工程的项目经理部,对工程施工全过程的进度、质量、安全、成本及文明施工等负全责。项目经理部要以工程项目管理为核心,以优质、高速、安全、文明为主轴,加强动态、科学管理,优化生产要素,精心施工,大力推广先进施工技术,在创质量优良的同时,力争提前完成施工任务。在推行项目法施工的同时,从文件控制、材料采购到产品标识、过程控制等过程中,切实执行ISO9001:2000标准和公司质量保证体系文件,达到创优质高效的目标。
在本工程施工中实施项目法管理,项目经理对工程项目行使计划、组织、协调、控制、监督、指挥职能、全权处理项目事务,其下设技术组、经营组及材料设备组。项目经理部对公司实行经济责任承包。项目内部工程技术管理人员通过岗位目标责任制和行为准则来约束,共同为优质、安全、高速、低耗地完成项目任务而努力工作。
项目经理部对工程项目进行计划管理。计划管理主要体现在工程项目综合进度计划和经济计划,项目经理部的进度计划包括:施工总进度计划,分部分项工程进度计划,施工进度控制计划,设备供应进度计划,竣工验收和试生产计划。经济计划包括:劳动力需用量及工资计划,材料计划,构件及加工半成品需用量计划,施工机具需用量计划,工程项目降低成本措施及降低成本计划,资金使用计划,利润计划等。
本工程拟实行项目法施工管理,委派我公司实践经验丰富和管理水平高的同志担任项目部主要负责人,选聘技术、管理水平高的技术人员、管理人员、专业工长组建项目部(见下表)。项目管理层由项目经理、项目副经理、技术负责人、安全主管、材料主管和工程质量组成员组成,在建设单位、监理单位和公司的指导下,负责对本工程的工期、质量、安全、成本等实施计划。组织、协调、控制和决策,对各生产施工要素实施全过程的动态管理。
作业层人员的配备:施工人员均挑选有丰富施工经验和劳动技能的正式工和合同工,分工种组成作业班组,挑选技术过硬、思想素质好的正式职工带班。
职务 | 姓名 | 职称 | 学历 | |
1 | 项目经理 |
| 工程师 | 本科 |
2 | 项目副经理 |
| 工程师 | 大专 |
3 | 技术负责人 |
| 高级工程师 | 本科 |
4 | 测量员 |
| 助理工程师 | 本科 |
5 | 施工员 |
| 助理工程师 | 本科 |
6 | 质量员 |
| 助理工程师 | 本科 |
7 | 安全员 |
| 助理工程师 | 本科 |
8 | 预算员 |
| 助理工程师 | 本科 |
9 | 资料员 |
| 助理工程师 | 本科 |
10 | 消防员 |
| 助理工程师 | 大专 |
11 | 材料员 |
| 高级技工 | 大专 |
1、项目部经理:项目部经理是整个工程项目的主要领导者,他对整个工程项目负全面的责任。项目部经理必须对整个项目部的工作进行协调,对外协调好建设单位、监理的关系;对内协调好项目部的运作,使工程项目顺利的按要求进展对工程的质量、进度、安全负全面的责任。
2、项目部技术负责人:项目部技术负责人是掌握整个工程项目施工的技术问题,对工程的质量、进度、安全起负责的责任,并协助总项目部经理对项目部进行管理、运作。
根据本工程的具体情况和施工工期的要求,劳动力的准备按工种及工期要求需要进行制定计划。各工种按各部分及施工进度要求进场。
其计划拟定如下表:
工种 级别 | 按施工阶段投入劳动力情况 | |||||
基础 地下室 | 进场时间 | 地面 主体 | 进场时间 | 装修 阶段 | 进场时间 | |
木工 | 80 | 2002-10-03 | 60 | 2003-2-12 | 20 | —— |
钢筋工 | 60 | 2002-10-04 | 50 | 2003-12-12 | 10 | —— |
混凝土工 | 30 | 2002-09-30 | 25 | 2003-2-12 | 10 | —— |
架子工 | 20 | 2002-11-01 | 20 | 2003-12-12 | 15 | —— |
砌筑工 | 40 | 2002-09-30 | 60 | 2003-2-12 | 50 | —— |
抹灰工 | 20 | 2002-10-4 | 40 | 2003-12-12 | 100 | —— |
电工 | 5 | 2002-09-30 | 5 | 2003-2-12 | 5 | —— |
电焊工 | 10 | 2002-09-30 | 10 | 2003-12-12 | 10 | —— |
油漆工 | —— | 2002-09-30 | 5 | 2003-2-12 | 20 | 2003-9-1 |
防水工 | 20 | 2003-02-12 | 20 | 2003-12-12 | 20 | —— |
管道工 | —— |
| 20 | 2003-02-13 | 20 | —— |
电气工 | —— |
| 20 | 2003-02-13 | 30 | —— |
杂工 | 20 | 2002-09-30 | 20 | 2003-2-12 | 30 | —— |
| 305 | 355 | 340 | |||
主体工程 184 天
砌筑工程 170 天
室内抹灰工程 200 天
楼地面工程 120 天
外墙工程 150 天
水电预埋 300 天
水电安装 180 天
总工期 577 天
具体计划详见施工进度计划横道图及网络图。
根据现场的实际情况,结合地下室及主体工程量的分布及工期要求,施工现场的机械布置、材料堆放场、加工场地、仓库等布置在工程现场东南面。
钢筋加工场及木工加工场采用钢管搭设,不做密封,顶棚采用铁皮瓦。
地面做C15 混凝土面层,厚10cm,比场地高15cm。
2、围墙
现场采用以有围墙做封闭式管理,围墙面作宣传图画,风格与周围建筑物相适应。
3、硬地化
整个场地均做硬地化处理。道路做法:在场内交通部分浇注C15 混凝土,厚15cm。材料堆放场地等部分浇注C15 混凝土,厚10cm。
4、垂直运输机械
垂直运输机械的布置对于建筑施工十分重要,合理布置塔吊和井架可以节省大量的资源和劳动力。
为了加快工程进度,提高工作效益,本工程拟选用1 台塔吊,1 台施工电梯。塔吊基础在基础承台土方开挖时施工,具体布置位置见“施工总平面布置图”。
5、混凝土输送泵布置情况:现场布置2 台砼输送泵。具体布置位置见“施工总平面布置图”。
1、塔吊1 台,回转半径为55 米,用于钢筋、模板和混凝土的垂直及水平运输。
2、搅拌机1 台,主要用于现场的零星混凝土搅拌。
3、砂浆机3 台,主要用于砌筑砂浆及抹灰砂浆搅拌。
4、混凝土输送泵2 台,额定最大输送能力为45M3/h(配备两台备用)。
5、施工电梯1 台,主要用于混凝土垂直运输,砖砌体、装饰材料和安装材料、建筑垃圾的垂直运输以及施工人员的运输。
6、自备发电机1 台,250KVA,备用电源。
7、其它机械设备见下表:主要施工机械设备表。
机械或设备 名称 | 型号 规格 | 数量 | 国别 产地 | 制造 年份 | 额定 功率 (KW) | 生产能力 | 备注 | |
1 | 发电机组 | 250KVA | 1 台 | 佛山 | 1 | —— | 良好 |
|
2 | 挖掘机 | WY100 | 1 辆 | 日本 | 1998 | —— | 良好 | - |
3 | 吊车 | QY16 | 1 辆 | 国产 | 1997 | —— | 良好 | - |
4 | 推土机 | TY100 | 1辆 | 国产 | 1997 | —— | 良好 | - |
5 | 自卸车 | CA3101(5T) | 3 辆 | 上海 | 1997 | —— | 良好 | - |
6 | 塔吊 | QTZ80 | 1 台 | 重庆 | 2002 | 41.9 | 良好 | - |
7 | 混凝土泵 | HBT60 | 2 台 | 长沙 | 2001 | 75 | 良好 | - |
8 | 施工电梯 | SCD200/DL3 0 | 1 台 | 重庆 | 2001 | 21 | 良好 | - |
9 | 混凝土搅拌机 | JG500 | 1 台 | 佛山 | 2000 | 7.5 | 良好 |
|
10 | 打夯机 | HW170 | 2 台 | 佛山 | 1999 | 3 | 良好 | - |
11 | 砂浆搅拌机 | 0.5M3 | 2 台 | 佛山 | 2000 | 3 | 良好 |
|
12 | 钢筋弯曲机 | GW40 型 | 2 台 | 国产 | 1999 | 3 | 良好 | - |
13 | 钢筋剪切机 | GQ40L | 2 台 | 国产 | 1999 | 5.5 | 良好 | - |
14 | 钢筋调直机 | YZ100-4 | 1台 | 国产 | 2000 | 3 | 良好 | - |
15 | 钢筋对焊机 | UN1-125 | 1台 | 国产 | 2000 | 125 | 良好 | - |
16 | 钢筋弧焊机 | DN-5 | 4 台 | 国产 | 2000 | 19 | 良好 | - |
17 | 电渣压力焊机 |
| 1 | 国产 | 2000 | 50 | 良好 |
|
18 | 砼平板振动器 | ZB11 | 4 台 | 国产 | 2000 | 2.2 | 良好 | - |
19 | 砼插入式振动器 | ZX50 | 8 个 | 国产 | 2001 | 2.2 | 良好 | - |
20 | 弯管机 | WYQ-27-108 | 1台 | 国产 | 2001 | 5.5 | 良好 |
|
21 | 圆锯机 | MJ154 | 3台 | 国产 | 2002 | 3 | 良好 |
|
22 | 电刨 | M1B-80/1 | 3个 | 国产 | 2002 | 0.7 | 良好 |
|
23 | 砂轮机 | S3SR-150 | 2台 | 国产 | 2001 | 1.1 | 良好 |
|
24 | 瓷砖切割机 | -- | 6台 | 国产 | 2001 | 1.1 | 良好 | - |
25 | 高压水泵 | YZ100-4 | 3 台 | 佛山 | 2001 | 3 |
|
|
26 | 动力总功率 | 224.5kw |
| |||||
27 | 电焊机总功率 | 251kw |
| |||||
各种机械设备的使用状况均为良好,各种机械设备及各种小型机具均为自备,无须定购。
一、由于本工程用电量较大,故在施工现场设置配电房,设置在工地大门东侧,紧靠围墙。动力电分三级,具体如下图示:

现场机械布置详见 “临电施工总平面布置图”。
二、用电容量
![]()
其中:P1-取224.5KW
η取0.86
K1 取0.6
P 焊=K2×P2=0.5×251=125.5KW
其中:P2 取251KW
K2 取0.5
P 照=(P 动+P 焊)×10%=(156.63+125.5)×0.1=28.21KW
ΣP=P 动+P 焊+P 照=156.63+125.5+28.21=310.34KW
三、导线截面积
计算得载流量为440.08A,查表选用BVV 型铜芯橡皮150mm2 导线。
四、临时用电从甲方提供的电源(变压器)引至配电房,进入配电房,引到用电区域,采用电缆埋地方式敷设主干线。在钢筋加工厂、木工房、室外电梯、塔吊等处均设置配电箱,并每隔一层设一个配电箱。
五、为确保施工其间停电时能正常工作,配1 台250KVA 发电机以备用。
整个工程施工用水量包括生活用水,现场拌和和养护用水及消防用水;详细布置详见附图 “临水施工总平面布置图”。
可按式Q1=1.1/3600(K1Q 施/8+K2Q 附/8+K3Q 机)
K1、K2、K3-水不均匀系数分别取值1.6、1.25、2.0;
Q 施-拌合用水300×50=3×104 升/班
Q 附-养护用水300×40×7=16.8×104 升/班
Q 机-施工机械用水,按200 升/班计
则Q1=1.1/3600(1.6×3×104/8+1.25×16.8×104/8+2×200)=2.24 升/秒
2、生活用水Q2:
可按Q2=K/3600×N×q/8 计取
K-生活用水不均匀系数取2.7
N-高峰人数400 人(考虑临时人员)
q-每人每班耗水量,取10 升/人·班
则Q2=2.7/3600×400×10/8=0.375 升/秒
3、消防用水Q3
按有关规定取Q3=10 升/秒
4、工地总用水量计算Q1+Q2<Q3,则取实际设计用水量为10 升/秒。
布置的原则是在保证正常供水的情况下,管道铺设越短越好,同时还应考虑到,在工程进展期中各段管网应具备有移置的可能性。
管径确定:
主管径D=(4Q×1000/3.14×VV)1/2
VV-流速取2 米/秒
则主管管径取D=100mm
向施工现场沿线输水管管径D1=50mm,同时考虑在施工现场设置1 个蓄水池,现场分布消防水栓。
一、现场应好防水的措施,特别是电气防火,现场所有加工场地应设置防火标志,应设置好临时用的泡沫灭火器及做好消防栓等的引设。
二、工人生活基地的消防设施中应每栋工人宿舍设置四个灭火器及设一处消防栓及蓄水池。
三、电气防火技术措施
1、合理配置、整定、更换各种保护电器,以电路和设备的过载、短路故障进行可靠地保护。
2、在电气装置和线路周围不堆放易燃、易爆和强腐蚀介质;不使用火源。
二、现场文明施工管理和规划严格执行深圳市建设局“深圳市建设工程现场文明施工管理规定”。
三、基坑内采用排水明沟、集水井内抽水排水体系。
四、施工缝的设置和处理:为了保证混凝土浇筑质量,本工程混凝土施工地下室一层采用先墙柱后梁板的方法,施工缝设置在剪力墙连梁底10cm 处,标准层梁板与框架柱一次性浇筑。按设计要求楼板只按要求设置沉降缝,不留施工缝。
五、梁、板采用胶合板木模,剪力墙、电梯井选用进口大模板,主要采用塔吊进行运输。
六、楼板、模板顶架采用满堂红钢管顶架。
七、钢筋现场加工制安,接长以焊接为主,水平钢筋接长采用闪光对焊;坚向钢筋接长采用电渣压力焊为主。
八、混凝土采用现场商品混凝土。混凝土浇筑以泵送为主,塔吊运输为辅。输送泵主要用于浇筑墙、柱、梁板等主要构件。塔吊除协助浇筑上述构件外,还负责浇筑梁板中墙柱节点区高标号混凝土。
九、大体积混凝土浇筑采用“一个坡度、薄层浇筑、循序推进、一次到顶”的施工工艺。
十、后浇带收口处采用永久一次性模板——快易收口网。
十一、脚手架采用落悬挑式双排扣件式钢管脚手架。
十二、施工现场沿建筑物四周搭设人行通道防护棚。
十三、所有工序均遵循“先样板,后施工”的原则。
由于±0.000 以下主体工程的施工进度及质量能否按要求完成直接影响到上部主体结构的施工进度,所以此部分的施工为关键分部工程,拟作以下施工目标及施工方法:
1、工期:确保120 天左右完成±0.000 以下主体工程。
2、质量:单位工程质量达到优良标准。
1、组织各专业人员熟悉图纸,对图纸进行自审,熟悉和掌握施工图纸的全部内容和设计意图。土建、安装各专业相互联系对照,发现问题,提前与建设单位、设计单位协商,参加由建设单位、设计单位和监理单位组织的设计交底和图纸会审。
2、编制施工图预算,根据施工图纸,计算分部分项工程量,按规定套用施工定额,计算所需要材料的详细数量、人工数量、大型机械台班数,以便做进度计划和供应计划,更好地控制成本,减少消耗。
3、根据项目施工的内容,拟定加工及定货计划。
4、做好技术交底工作。本工程每一道工序开工前,均需进行技术交底,技术交底是施工企业技术管理的一个重要制度,是保证工程质量的重要因素,其目的是通过技术交底使参加施工的所有人员对工程技术要求做到心中有数,以便科学地组织施工和按合理的工序、工艺进行施工。
技术交底专业均采用三级制,即各专业工程技术负责人一专业工长一各班组长,技术交底均有书面文字及图表,级级交底签字,工程技术负责人向专业工长进行交底要求细致、齐全、完善,并要结合具体操作部位、关健部位的质量要求,操作要点及注意事项等进行详细的讲述交底,工长接受后,应反复详细地向作业班组进行交底,班组长在接受交底后,应组织工人进行认真讨论,全面理解施工意图,确保工程的质量和进度。
5、建筑材料及安全防护用品准备:对水泥、钢材、木材、轻质砌块、管线、外墙砖等大批量材料,均应根据实际情况做好计划,分批进场,编制各项材料计划表,对各种材料的入库,保管和出库制订完善的管理办法,同时防盗、防火的管理。
6、施工机具设备:施工中计划投入的大型施工机械包括1 台塔吊、台2 台混凝土输送泵,及各种中小型机具设备。
7、修整施工出入口,铺设现场内施工道路,作好地面排水沟、车辆冲洗台,搭设基础施工平面布置图中的临建设施,安装好备用柴油发电机。
8、施工管理人员进场后,做好如下准备工作:会同有关单位做好现场的移交工作,包括测量控制点以及有关技术资料,并复核控制点。
9、临时用电、临时用水的搭设、安装、调试。
10、组织施工管理人员及劳动力调配入场,满足施工要求。
11、提前做好预制、预埋件的加工工作。
12、组织制定模板的需求计划和定型模板的加工工作。
现场布置一台塔吊,两台混凝土输送泵,钢筋加工场、木工加工场、现场办公室、工人生活基地等临时设施,详见±0.000 以下主体结构施工平面布置图。
考虑到施工地下室,现场的排水系统是施工准备的重要工作1、基坑顶及基坑底均做排水沟及集水井,排水为300×300,红砖M5砂浆砌筑。
2、现场排水,坡向基坑旁排水沟,坡度0.5%。
3、道路做法采用地表原土夯实,上浇筑100 厚C15 砼路面,其余场地均做一层50 厚C15 砼面。
根据施工要求及实际情况,本工程设置一台QTZ80 塔吊,臂长50m,其基础5 轴处的后浇带旁边,塔吊需要穿越两层地下室,基础位于底板下20cm 处。
1、塔吊基础位置如下

2、塔吊基础承载力:
根据结构施工图的结构总说明,建筑物的地基承载力为180mpa,满足塔吊基础地基承载力要求。
3、塔吊基础底底板200mm,其基础大样及配筋图如下:


4、塔吊安装
1)安装前准备工作
塔吊基础满足以下要求:
a、已按出厂厂家设计要求浇筑完成钢筋混凝土塔吊基础;
b、基础强度已达100%,预件正确。
(2)安装要求
a、金属结构部分无疲劳损伤,焊缝无漏焊、开裂和脱焊,各部连接螺栓紧固并有防松零件;
b、安全保护装置齐全的有效(五限位、四保险);
c、各制动器调整合理,各传动部分无异声,润滑良好,确保安装后各部旋转零件转动灵活,并不准有任何固定件有摩擦接触的现象;
d、各系统的钢丝绳缠绕正确,所有钢丝绳头部固定可靠,并检查合格。
钢索无断丝、起毛和老化现象,钢丝绳润滑良好,无污泥锈蚀。滑轮组件无裂缝损伤,吊钩无变形、损伤和磨耗超过标准现象。
(3)安装程序
安装底架 → 安装基础节 → 安装配重 → 安装三节标准节 → 吊装顶升套架 → 安装回转装置及驾驶室 →安装塔顶→ 安装平衡臂 → 拼装起重臂及起重臂拉杆 → 吊装平衡重 → 安装起升机构及电器控制箱 →穿绕起升钢丝绳 → 调整垂直度 → 进行规定安装高度的试运转 → 如运转顺利,开始自升加节
塔吊拆除与安装程序相逆。
(4)附着顶升安装程序
塔吊机臂根铰点高度超过厂家设计规定的独立高度后,必须与建筑物进行附着,附着点的位置选择在主梁位置。当附着点不能在设计规定的位置,则降低至下一建筑自然层,确保附着高度等于或小于附着间距。附着支座固定牢靠,附着部位在建筑物结构施工时加配钢筋,混凝土标号不低于厂家设计要求,满足机械使用说明书要求的支座反力。
顶升程序:
油缸顶升工作节→套架销轴入塔架,油缸回缩→标准节放在引进小车→小车引进套架内→油缸顶升标准节,引进小车退出→放下标准节,塔架螺栓栓紧→油缸活塞略顶,套架销轴自动退出→套架与塔架螺栓联接顶升时,达至附着要求的,必须先进行附着,然后才顶升。塔吊下降与顶升程序相逆
(5)检验
新安装(或经大、中修)的塔吊在使用前需经以下检测程序后方可使用
一般技术检验 → 无负荷试验 → 静负荷试验 → 动负荷试验
每次试验记录均应有关人员签字,记入机械履历书中,作为该机技术试验的依据。
第六节 施工段的划分
1、基础部位施工段划分以后浇带为分界分为四段,分为I、II、III、IV四段,施工顺序由左往右施工,其顺序为I、II、III。具体划分情况如下:
I 段:区间G 轴与5 轴相交的东南角
II 段:区间G 轴与5 轴相交的东北角
III 段:区间G 轴与5 轴相交的西南角
IV 段:区间G 轴与5 轴相交的西北角

基础及地下室底板主体施工分段施工,四段进行流水施工,流程如下
项 目 名 称 流 水 段 工 期(示 意)
由于单层面积大(轴网为60800mm×62597),柱与墙的定位是一个难点,应严格按照有关测量规定进行轴网控制测量、复线。在测量过程中,应先用全站仪测出总边线,然后进行分块测量。
1、平面控制网:分别设定地下室右区的主控制轴线,由通过或接近其平面图形形心的两组互相垂直的纵横线构成,测设精度主轴线直角限差±5〃,主控制轴线由所给定的坐标网引测定设定,并做闭合校核。主轴线尽量延长到建筑物总高以外的距离或可靠的较远地点设置标桩和多个保护桩位标定。基坑土方开挖、基础、主体施工所需的控制网则根据主轴线扩展加密成矩形控制网,附合于主轴线上成内控闭合图形,以便闭合校核。控制网设定应距离建筑轴线1.50~2.00 米,以避开竖向构件对放线的影响。
控制网采用激光经纬仪测设投点,测距精度不低于1/10000,测角精度不低于20。
2、竖向投测:竖向投测站尽量离建筑物距离等于或大于其总高度的控制网延长线上选取,后视点尽量取较大距离(或建筑物底层处的标定点),用经纬仪正倒镜取中法向施工层作竖向投测,转动经纬仪望远镜瞄准下部各层的标志点进行垂直准校核。测量偏差层间不超过3mm。
3、高程控制:由所给出的水准点(就近应有两点可进行复核)向建筑物引测,采用联测闭合。高程传递用钢尺丈量每施工段至少在三处用钢尺向上引测,进行相互核对,用水平仪找平。闭合差控制在±5 n (n 为测站数)或20 L mm(L 为测站数)范围内。
4、细部放样:主要控制轴线及控制网设测完成并已经过复核确认无误后方可进行建筑物轴线和基础等细部放样,其容许误差按现行规范有关要求执行。
5、垂直度施工质量控制要求:施工质量垂直度总体偏差不大于H/1000,且不大于30mm,层间偏差不大于5mm。要实现这一目标,必须在施工测量放线、模板安装、混凝土浇筑等几项主要施工环节中全面加强质量管理。
2、承台开挖至底面设计标高,立即施工砖胎模,不得将承台基坑及地梁沟暴晒,泡水。
3、承台基坑及地梁沟下须设垫层,厚度为100mm,周边凸出基础底板100mm。
4、开工前应组织好地面排水工作,防止地面水流入基坑。(详见上图地下室施工排水图)。
根据场地情况,由左向右(即由I→II→III→IV)后退挖土。为保证运土汽车能直接进入基础运土,地下室南边预留一条坡道,保证承台、地梁余土运至场外。
地下室在底板、墙后浇带施工完毕,外防水完成后进行回填土。回填时采用存放在现场的砂砾土回填,分层回填机械夯实。
本工程的沟槽底于底板部分均设砖模。承台、地梁、底板侧壁采用M5水泥砂浆砌MU10 红砖胎模,面批1:2.5 水泥砂浆20mm 厚。以C10 垫层为底模。
地梁砖模做法见下图。


设计要求采用一级钢筋fy=210N/mm2,二级钢筋fy=310N/mm2由于最大承台CT-6 尺寸为11100×19600,长向最长钢筋开料尺寸为φ25L=20200mm,故采用12 米长钢筋闪光对焊一次成型。按规范错开焊口,在钢筋加工棚成型运至现场绑扎。
地梁钢筋长度超过12 米,则同样采用闪光对焊,按规范错开焊口,在钢筋加工棚成型运至现场绑扎。
不到承台底的竖向钢筋应与水平钢筋焊接固定,以免施工过程造成偏位。
为保证CT-6 承台面筋位置的准确,用φ20 钢筋作马凳筋纵横间距1500mm.
钢筋绑扎次序:承台钢筋→地梁钢筋→墙柱插筋→防雷焊接
JL-5 配筋示意图
承台及基础梁钢筋绑扎
①.按弹出的钢筋位置线,先铺承台下层钢筋。根据底板受力情况,决定下层钢筋哪个方向钢筋在下面,一般情况下先铺短向钢筋,再铺长向钢筋。
②.钢筋绑扎时,靠近外围两行的相交点每点都绑扎,中间部分的相交点可相隔交错绑扎,双向受力的钢筋必须将钢筋交叉点全部绑扎。如采用一面顺扣应交错变换方向,也可采用八字扣,但必须保证钢筋不移位。
③.摆放承台混凝土保护层用砂浆垫块,垫块厚度等于保护层厚度,按每1m 左右距离梅花型摆放。
④.底板如有基础梁,可分段绑扎成型,然安装就位,或根据梁位置线就地绑扎成型。
⑤.承台采用双层钢筋时,绑完下层钢筋后,摆放钢筋马凳或钢筋支架(间距以1m 左右一个为宜),马凳上摆放纵横两个方向定位钢筋,钢筋上下次序及绑扣方法同底板下层钢筋。
⑥.承台钢筋如有绑扎接头时,钢筋搭接长度及搭接位置应符合施工规范要求,钢筋搭接规程规定抽取试样外,接头位置也应符合施工规范的规定。
⑦.由于承台及基础梁受力的特殊性,上下层钢筋断筋位置应符合要求。
⑧.根据弹好的墙、柱位置线,将墙、柱伸入承台插筋绑扎牢固,插入承台深度要符合设计要求,甩出长度不宜过长,其上端应采取措施保证甩筋垂直,不歪斜、倾倒、变位。
由于承台、地梁砼设计标号为C30,而底板砼标号为C30 S8 抗渗砼,故底板与承台、地梁砼分两次浇灌,承台、地梁砼第一浇灌标高至底板底,其余部分与底板一起浇灌。由于CT-6 局部厚度达3.7 米,故需考虑砼浇灌水化热问题,防止砼内部水化热出现的温差应力,造成砼开裂。
大体积混凝土的确定:单面散热的结构断面最小厚度在75cm 以上,双面散热在100cm 以上,水化热引起的混凝土内外最高温度预计超过25℃的混凝土结构。
大体积混凝土在水泥水化过程中产生大量的热量,造成混凝土内部温度升高,当其内部的温度应力受外界的约束,会产生裂缝,从而影响混凝土的质量。因此,防止混凝土出现裂缝的关键就是要控制混凝土的内外温差。CT-4 桩承台的体积为19600×11100×3700,应采取大体积混凝土施工时的施工方法。
1、大体积混凝土内外温度差计算
采用C30 泵送商品砼
a、混凝土内部最高温度:

b、当不考虑任何保温措施时,砼表面温度为大气温度25℃。
则砼内部与表面温度差为58.86℃-25℃=33.86℃>25℃,故需考虑保温措施。
选择用草袋进行保温,复盖两层草袋共厚30mm,则

c、混凝土表面温度:

则砼内外部温差为:58.86℃-35.63℃=23.23℃
混凝土内外温差为1.063℃,可用浇水养护降温不得少于7 昼夜。
在施工中我们将采取以下措施确保大体积混凝土的施工质量:
2、选择合理的配合比
a、优先选用水化热较低的矿渣水泥;
b、在保证混凝土标号的前提下,设计配合比时,尽量利用混凝土60 天或90 天的后期强度,以满足减少水泥用量的要求尽可能减少水泥用量;
c、采用较低的水灰比,严禁在现场随意加水以增大坍落度;
d、掺加减水剂和适量的粉煤灰,可减少沉降量,促进工作性和流动性;
e、本工程采用泵送混凝土施工,其配合比应进行试泵送;
f、采用浇水养护不得小于7 昼夜。
3、混凝土生产
本工程采用现浇混凝土,所以对混凝土供应商的控制成为关键,项目部应定期对使用的原材料物理性能进行抽检。
a、控制砂、石的含泥量,确保砂、石的含泥量分别在1%和3%内;
b、在炎热气候,当砂、石料温度过高时,应洒水降温,严格控制砂、石料的入槽温度。
4、施工工艺
a、大体积混凝土的施工,一般宜再低温条件下进行,即最高气温≤30
℃为宜。气温大于30℃时,应周密分析和计算温度(包括收缩)应力,并采取相应的降低温差和减少温度应力的措施。
b、混凝土的配制,应严格掌握各种原料的配合比,其重量吁许误差为:
水泥、外掺合料±2%;粗、细骨料±3%;水、外加挤溶液±2%。混凝土的搅拌时间,自全部拌合装入搅拌筒内起到卸料止,一般不少于1.5~2 分钟。
c、搅拌后的混凝土,应及时运至浇筑地点,入模浇筑。在运送过程中,要防止混凝土离析、灰浆流失、坍落度变化等现象。
d、混凝土浇筑:
浇筑前,砖模应用清水浇湿;浇筑方法采用分段分层浇筑,可使混凝土水化热迅速散发,以减少收缩和温度应力,有利于控制裂缝。若可能应安排CT-6 混凝土在夜间浇筑,以降低较厚处混凝土内部水化热。CT-6 承台将分4 层浇筑,每层1m 左右,层与层之有意预留一定的时间间断,但层与层之间的砼接合时间应控制在砼初凝前完成;泵送混凝土浇筑前,应用清水冲洗混凝土泵及输送管,并保持一定的湿润;在大体积混凝土浇筑过程中,由于混凝土会出现表面泌水、现象,为保证混凝土浇筑质量,要用水泵及时抽除混凝土表面泌水。本工程采用泵送混凝土,混凝土水灰比较大,泌水现象比较严重,若不及时清除,将会降低结构混凝土的质量;操作人员要下到承台下作业点进行振捣,振捣要密实,振捣时间控制在5~15s/次。
大体积混凝土施工,要使用无线电对讲机,加强通讯联络,及时反馈信息。
快速而及时的多方位的通讯联络是顺利泵送的重要保证。


5、混凝土养护
a、浇水养护:刚浇筑的混凝土,处于凝固硬化阶段,水化的速度较快,浇水使其保持在适宜的潮湿状态,可有利于水泥的水化作用,从而提高混凝土的极限拉伸强度,同时可防止混凝土表面脱水而产生干缩裂缝;
b、混凝土表面保温养护:主要的降低大体积混凝土浇筑块体的里外温差值,以降低混凝土块体的自约束力,其次是降低大体积混凝土浇筑块体的降温速度,充分利用混凝土的抗拉强度,以提高混凝土体承受外约束力时的抗裂能力,达到防止或控制温度裂缝的目的。
6、温控监测
为了掌握大体积混凝土的温升和降温的变化规律以及各种材料在各种条件下的温度影响,需要对混凝土进行温度监测控制。
a、在CT-6 承台预埋6 个测温孔,如下图示,对承台内砼温度变化进行测量,为采取保(降)温措施提供依据。
b、在混凝土升温阶段,每2小时测一次,温度下降阶段,每8小时测温一次。测温工作,项目部选择经培训、责任心强的专人进行,测温记录,及时交技术负责人阅签,关作为对混凝土施工和质量的控制依据;
c、选择半导体液晶显示温度计,当发现承台内部与表面温度差超过25℃时,及时加强保温或延续拆除保温材料,以防止混凝土产生温差应力产生裂缝。

从防水要求考虑,在底板施工时,在外墙位置应由底板面反起500mm,该部位外墙体与底板一起施工。外墙模板采用方板木,加对拉螺栓成为模板体系。如下图示:

在绑扎底板钢筋前应清理干净底板垫层杂物。若采用外防水,应施工完防水层后才进行钢筋施工。在钢筋运输及钢筋绑扎时,应注意不要损坏防水层。
1、施工前弹出钢筋位置线,以确保钢筋绑扎后位置的正确性。
2、按弹出的底板钢筋位置线,先铺底板下层钢筋,根据底板受力情况,底板面筋应放在地梁主筋下面。
3、钢筋绑扎时,靠近外围两行的相交点每点都绑扎,中间部分可梅花型绑扎,双向受力钢筋应满绑。
4、底排筋用高标砂浆垫块垫起,间距800,梅花状布置,确保保护层厚度。
5、绑扎完下层钢筋后,摆放钢筋马凳Φ18@1200×1200,面部下层在马凳上纵向或横向固定定位钢筋,然后再绑扎上层钢筋如图“钢筋支撑图”。
6、由于地下室底板面积大,为保证板面标高及平整度,在面筋上用φ6 钢筋2000×2000 设置标高控制点。
1、混凝土浇筑以一台混凝土输送泵向地下室输送为主,塔吊配合吊运,采用商品混凝土供料。
2、采用分段连续浇筑的方法,混凝土输送泵各自的浇筑方向如混凝土浇筑方法示意图所示。混凝土浇注的顺序按分段图至下而上浇注。
3、混凝土浇筑前准确掌握天气情况,避开雨天,浇筑混凝土前需设置马凳及人行通道和操作平台,严禁直接踩踏钢筋,通道谁打谁拆,浇注混凝土时,模板、支撑、钢筋、预埋、预留应设专人值班,如有位移、变形应及时处理,确保混凝土质量。
4、浇筑混凝土底板时,应采用“分段分层、斜面浇筑、一个坡度、薄层浇捣、循序推进、一次到顶”的方式,见地下室底板混凝土浇注方法示意图。这种混凝土自然流淌形成斜坡的浇筑方法,避免了输送管经常拆卸、冲洗、接长,从而提高了泵送混凝土效率,对上下层混凝土间隙时间不超过1.5 小时起到保证作用。根据混凝土自然形成一个坡度的实际情况,在每个浇筑带的前、后布置两道振动器,前一道布置在卸料点,主要解决上部混凝土的捣实;后一道布置在混凝土坡脚处确保下部混凝土的密实。随着混凝土浇筑的推进,振动器也相应的跟进,以确保整个高度混凝土的质量。如图所示。
5、在后浇带处浇筑混凝土时,应先于施工缝表面抹水泥砂浆一层。混凝土要避免直接靠近施工缝下料,机械振捣时,向施工缝处逐渐推进,加强对施工缝接缝处的捣实,使其紧密结合。
6、混凝土浇筑时表面泌水采用真空吸水,若发现表面泌水过多,应及时调整水灰比,混凝土浇至顶端时的泌水排除。
7、由底板面积大、表面会出现较厚的浆层,为保证板面平整度及防止表面出现微细裂缝,在混凝土浇筑结束后,要认真处理,经2~4 小时左右,初步按标高用长刮尺刮平,初凝前用铁滚筒碾压数遍,再用木抹子收平压实,以闭合收水裂缝,约12 小时后,覆盖麻袋,充分浇水湿润养护。
四、其他措施
施工中若遇到大风,应及时复盖塑料薄膜,避免遭遇大风袭击,引起剧烈水分蒸发,形成上部和下部或截面中部与边缘部位硬化不均和差异收缩。
地下室内墙、柱施工采取一次成型,但外墙需分二次成型,第一次成型为墙体下部500mm 与底板起施工,第二次成型为施工至顶部暗梁底;内墙及内柱由地下室底板至顶部梁底一次成型。
1、墙、柱钢筋在独立基础(底板)定位应定位准确,并加水平箍筋两道定位,以免浇注混凝土时引起竖向钢筋地移位。
2、墙、柱钢筋一次搭接至地下室顶板面,外墙搭接口设在底板面上500mm 处,内墙及柱搭接口设在地下室底板面。墙柱钢筋搭接口按50%错开,竖向钢筋接头采用电渣压力焊。
3、由于墙、柱钢筋较高,故在钢筋绑扎时需搭设好钢管柱架。
①.在底板混凝土上弹出墙身门洞口位置互,再次校正预埋插筋,如有位移时,按洽商规定认真处理。墙模板宜采用“跳间支模”,以利于钢筋施工。
②.先绑2~4 根竖筋,度画好横筋分档标志,然后在下部及齐胸绑两根筋定位,并画好竖筋分档标志。一般情况横筋在外,竖筋在里,所以先绑竖筋后绑横筋。横竖筋的间距及位置应符合设计要求。
③.墙筋为双向受力钢筋,所有钢筋交叉点应逐点绑扎,其搭接长度及位置要符合设计图纸及施工规范的要求。
④.双排钢筋之间应绑间距支撑或拉筋,以固定钢筋间距。支撑或拉筋可用Φ8 钢筋制作,间距600mm 左右,以保证双排钢筋之间的距离。
⑤.在墙筋外侧应绑上带有铁丝的砂浆垫块,以保证保护层的厚度。
⑥.为保证门窗洞口标高位置正确,在洞口竖筋上划出标高线。门窗洞口要按设计要求绑扎过梁钢筋,错入墙内长度要符合设计要求。
⑦.各连接点的抗震构造钢筋及锚固长度,均应按计要求进行绑扎。如首层柱的纵向受力钢筋伸入地下室墙体深度;墙端部、内外墙交处受力钢筋锚固长度等,绑扎时应注意。
⑧.配合其他工种安装预埋管件、预留洞口等,其位置,标高均应符合设计要求。
2、地下室外墙的施工缝留两道,底根部留在距底板500mm 上,地下室一层楼板面+0.5m 处。
混凝土浇筑速度:1.5/h
混凝土浇筑温度: T=25℃
模板最大侧压力: F1=0.22γβ1β2 t0ν1/2
=0.22×24×1.0×1.0×1.5×1.51/2
=9.7KN/㎡
F2=24H
=24×1.5
=36KN/㎡
γ=24KN/m2
β1 :不掺外加剂时为1.0;掺外加剂时为1.2.
β2:当砼塌落度小于30mm 时,取0.85;当砼塌落度50—90mm 时,取1.0;当塌落度110—150mm 时,取1.15
t0:200/(T+15)
H:剪力墙高度(m)
取F1、F2 的小值作为计算值,即F=33.7KN/㎡。
2、模板设计:
(1)、外楞采用Φ48×3.5 钢管,双管
(2)、内楞选用18 厚夹板、50×100 水平枋木,木枋a 间距取400mm
b、挠度验算:
支承楞采用50×100 水平枋木
3、对拉螺栓设计:
在内外横楞交叉点加设对拉螺栓, 支座反力为R=2×59×103×0.6×0.4=28320N
选用M18,其容许拉力为29600N。
墙模板图如下所示:

4、地下室外墙拆模,养护28 天后,墙的对拉螺栓留下的孔洞内用“遇水膨胀”软木塞住小孔防水,在墙锥形留孔出补上防水砂浆。

五、墙、柱砼浇注
1、浇筑墙柱混凝土,不允许整吊车或泵管直接输入模内,必须过槽再用人工铲入。对混凝土墙不能一边倒,浇注必须四周均匀,特别是电梯井筒更应注意,为的是避免因浇注高度不均而造成侧移变形。
2、振捣混凝土时力求做到“快插慢拔”,插入式振动棒的移动间距不大于其作用半径的1.5 倍,并插入到下层已振捣的混凝土深度不少于50mm,不得有漏振,超振泛浆产生离析现象,对塑性大的泵送混凝土尤其更应注意。
3、混凝土的浇灌速度应控制在1.5m/小时内,并在浇灌过程中模板工要随班检查模板的情况。
I 段:区间G 轴与5 轴相交的东南角
II 段:区间G 轴与5 轴相交的东北角
III 段:区间G 轴与5 轴相交的西南角
IV 段:区间G 轴与5 轴相交的西北角
其分段图如下:

1、荷载计算:
混凝土浇筑速度:4m/h
混凝土浇筑温度: T=25℃
模板最大侧压力: F1=0.22γβ1β2t0ν1/2
=0.22×24×1.0×1.0×5×41/2
=52.8KN/㎡
F2=24H=24×2.5=60KN/㎡
γ=24KN/㎡
β1 :不掺外加剂时为1.0;掺外加剂时为1.2.
β2:当砼塌落度小于30mm 时,取0.85;当砼塌落度50-90mm 时,取1.0;
当塌落度110-150mm 时,取1.15
t0:200/(T+15)
H:柱高度(m)
取F1、F2 的小值作为计算值,即52.8KN/㎡。
(二)、梁侧模板计算:300×800(700) (A)、梁高h1=h-板高=(700、600,取700 计算)梁侧外楞采用Φ48×3.5 钢管,双管I=2×12.19×104mm4 W=2×5.08×103 mm3 E=21×104N/mm2 f= 210N/mm2
[ω]=3mm
外楞间距(设置一道):900mm

=810mm
取b1、b2 的小值,即 670mm。
(B)梁高h1=h-板高≤900,考虑采用木斜撑,外加钢楞两道。
(C)梁侧内楞选用18 厚夹板、50×100 水平枋木,木枋a 间距取400mm
I= 416.7×104 mm4 W=83.3×103 mm3 E= 9×104 N/mm2 f= 100N/mm2
[ω]=3mm
a、抗弯强度验算:

b、挠度验算:
支承楞采用50×100 水平枋木
道横楞。
故按构造要求,在梁中部设置一道斜撑,以满足要求。
(三)、对拉螺栓设计:
在内外横楞交叉点加设对拉螺栓, 支座反力为R=2×52.8×103×0.4×0.8=33792N选用M20,其容许拉力为38200N。
a、新浇混凝土自重 0.8(梁高)×25000×0.3×1.2(梁宽) N/m
b、模板自重 (216×0.3+3×40)×1.2N/m
c、施工荷载 2500×0.3×1.4N/m
d、振捣砼时产生荷载(水平): 2000×0.3×1.4N/m
合计: q=(a+b+c+d)×10-3 N/m 9.31N/mm
(二)验算:
a、抗弯强度验算:
50×100 枋木(3 排): W= 3×83.3×103 mm3 f=100 N/mm2

b、挠度验算:
支承楞采用50×100 水平枋木
I= 3×416 .7×104 mm4 W=3×83.3×103 mm3
E=9×104N/mm2 [ω]=3mm

(三)梁支承下楞钢管验算:
初步设计考虑@500mm
(1)荷载计算:
a、新浇混凝土自 0.8(砼梁高)×25000×0.3×1.2N/m
b、模板自重 216×0.3+40×3×1.2N/m
c、钢管自重 38.4×1.2N/m
d、施工荷载 2500×0.3×1.4N/m
e、振捣砼时产生荷载(水平): 2000×4×1.4N/m
合计: q=(a+b+c+d+e)×10-3 N/m 17.97N/mm
集中荷载 F=ql/2=17.97×1000/2=8983.93N
(2)验算:
a、抗弯强度验算:
Φ48×3.5 钢管: W= 5.08×103 mm3 f=210 N/mm2
b、挠度验算:
I= 12 .19×104 mm4 E=21×104 N/mm2 [ω]=3mm

(四)、板顶架计算:
1、荷载计算:
a、新浇混凝土自重 0.15(板高)×25000×1.2N/㎡
b、模板自重 (216+40×3.0/0.3+38.4/0.5)×1.2N/㎡
c、支架自重 2500×1.2N/㎡
d、施工荷载 2500×1.4N/㎡
e、振捣砼时产生荷载 2000×1.4N/㎡
合计: q=(a+b+c+d+e) 14631.36 N/㎡
每根立管支承0.12×0.5=0.06 ㎡ 的区格荷载为:
0.06×14631.36=1947.36N
2、验算:
Φ48× 3.5 钢管: W= 489 mm2 i=15.78mm f=215 N/mm2
a、按强度验算:
![]()
b、按稳定性验算:
设计立管水平拉杆为小于1800mm , 故长细比为


故该梁支撑模板及其顶架满足要求。其它不足1000mm 高的梁按图支模。
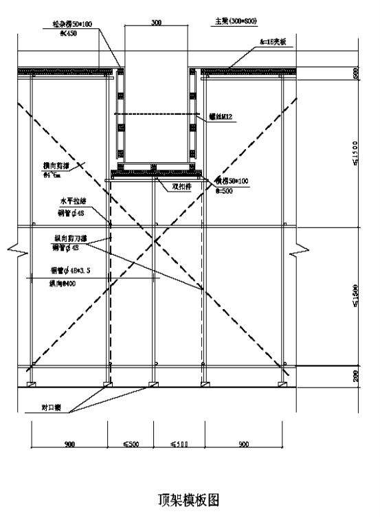
顶架图如下图示:

混凝土楼板支模采用18 厚夹板,上楞采用@500mm 的50×100 枋木,下楞采用@1000mm 的Ф48×3.5 钢管。顶架立杆采用纵横@1000mm 的Ф48×3.5钢管,立杆水平拉杆为@1800mmФ48×3.5 钢管。顶板厚为150mm。
(二)楼板支承上楞木枋验算:
1、荷载计算:
a、新浇混凝土自重 0.2(砼板厚)×25000×0.5× 1.2N/m
b、模板自重 (216×0.5+40)×1.2N/m
c、施工荷载 2500×0.5×1.4N/m
d、振捣砼时产生荷载(水平): 2000×0.5×1.4N/m
合计: q=(a+b+c+d)×10-3 N/mm 6.98N/mm
(三)验算:
a、抗弯强度验算:
50×100 枋木: W= 83.3×103 mm3 f=100 N/mm2

b、挠度验算:
支承楞采用50×100 水平枋木
(四)楼板支承下楞钢管验算:
1、荷载计算:
a、新浇混凝土自重 0.2(砼板厚)×25000×1×1.2N/m
b、模板自重 (216×1+40×2.0)×1.2N/m
c、钢管自重 38.4×1.2N/m
d、施工荷载 2500×1×1.4N/m
e、振捣砼时产生荷载(水平): 2000×1×1.4N/m
合计: q=(a+b+c+d+e)×10-3 N/mm 11.97 N/mm
集中荷载 F=ql/2=11.97×1000/2=5985N
2、验算:
a、抗弯强度验算:
Φ48×3.5 钢管: W= 5.08×103 mm3 f=210 N/mm2
2
b、挠度验算:
支承楞采用50×100 水平枋木
(五)、钢管顶架验算:
1、荷载计算:
a、新浇混凝土自重 0.2(砼板厚)×25000×1.2N/㎡
b、模板自重 (216+40×2.5/1+38.4/1)×1.2N/㎡
c、钢管支架自重 250×1.2N/㎡
d、施工荷载 2500×1.4N/㎡
e、振捣砼时产生荷载(水平): 2000×1.4N/㎡
合计: q=(a+b+c+d+e) 11525.28 N/㎡
每根立管支承1×1=1 ㎡ 的区格荷载为:1×11347.5=11525.28N
(六)、验算:
Φ48×3.5 钢管: A= 489 mm2 i=15.78mm f=215 N/mm2
a、按强度验算:
![]()
b、按稳定性验算:
设计立管水平拉杆为小于1800mm , 故长细比为
![]()

故砼楼板支撑模板及其顶架满足要求。其立杆平面布置图如下:
顶板立杆平面布置图

(1)材料与主要机具:
①. 模板采用木模板,也可采用钢木组合,可增加木模板的刚度及便于连接。
②.支架系统:
a、WDJ 碗扣式满堂架。
b、模板配料:L50×5 角铁、10×10 方木、7.5×10 方木、铁钉等。
c、主要机具:锤、斧、锯、电钻、水平尺、撬棍等。
(2)作业条件:
①模板及支架系统设计:根据工程结构类型和特点,确定流水段划分;确定模壳的平面布置,纵横木楞的规格、数量和排列尺寸;确定模板与次木楞及其它结构构件的连接方式。同时确定模壳支架系统的组合方式。验算模壳和支架的强度、刚度及稳定性。(详见第三章第二节 模板工程)
②.柱(角筒)、楼是梯墙及剪力墙的混凝土强度已达到设计或施工规范要求的再施强度。
③.楼面的轴线、水准标高引测到墙、柱上,并办完预检手续。
2、模板安装的操作工艺
(1)工艺流程:
安装支架→安装主次木楞→调整密肋梁底标高及起拱→安装模壳→质量检验。
(2)支架系统采用钢筋满堂架,采用18mm 厚胶合模板制模。由顶架按梁及板模板设计尺寸进行支模,并在施工中执行模板施工规范。凡设计高度超过3.5m 时,每隔2m 高度应用直角扣件与钢支柱拉接,并与结构柱连接牢靠。
(3)顶托粗调标高后,安装10cm×10cm 主木楞,其间距大约为60~120cm。之后在主木楞上安装75cm×10cm 次木楞,其间距为40~60cm。次木楞的间距要根据密肋的间距确定。次木楞的两侧安装L50×5 的角铁(可预装)。安装次木楞前要在主木楞上放出模板的边线,即准确地放出密肋的位置线,以使次木楞(即密肋)轴线位置准确。
(4)次木楞安装完毕后,要认真调整顶托升降,使次木楞顶面符合设计标高(即密肋底标高符合设计要求)。并根据设计要设要求起拱。设计无要求时,起拱高度为全跨长度的1/1000~3/1000。
(5)按模板分项工程质量评定标准逐项检查模壳模板。检查的重点放在模壳自身刚度的保证措施和连接节点的严密性。办理预检。
3、模板拆除的操作工艺
(1)操作工艺流程:
拆除梁侧模→拆梁底模→拆除板底模→拆除支架。
(2)模板拆除时,混凝土的强度必须达到10MPa。先将支撑角钢拆除,然后用小撬起相对两侧面中点,模壳即可拆下。密肋梁较高时,模壳不易拆除,可采用气动拆模工艺。
拆模不可用力过猛,不乱扔乱撬,要轻拿轻放,防止损坏。
(3)拆除支架:混凝土的强度必须达到规定的拆模强度,才允许拆除支架。
4、质量标准
(1)保证项目:楼板及其支架必须有足够的强度、刚度和稳定性;其支架的支撑部分必须有足够的支撑面积。如安装在基土上,基土必须坚实,并有排水措施。对湿陷性黄土,必须有防水措施;对冻胀性上,必须有防冻融措施。
检查方法:对照模板设计,现场观察或尺量检查。
(2)基本项目:
①.模板接缝宽度不得大于1.5mm。
检查方法:观察和用楔形塞尺检查。
②.模板接触面清理干净,并采取隔离措施。梁的模板上粘浆和漏刷离剂累计面积应大于400cm2。
检查方法:观察和尺量检查。
(3)允许偏差项目见下表:
项目 | 允许偏差(mm) | 检查方法 | |
单层、多层 | 高层框架 | ||
梁轴线位移 | 5 | 3 | 尺量检查 |
梁板截面尺寸 | +4 -5 | +2 -5 | 尺量检查 |
标高 | ±5 | +2 -5 | 用水准仪或拉线和尺量检查 |
相邻两板表面高低差 | 2 | 2 | 用直线或尺量检查 |
表面平整度 | 5 | 5 | 用2m 靠尺和塞尺检查 |
预留钢板中心线位移 | 3 | 3 | 尺量检查 |
预留管、预留孔中心线位线 | 3 | 3 | 尺量检查 |
5、成品保护
(1)在层高1/2 处左右的支架系统的水平栏杆上宜固定一层水平安全网,用于防止人员坠落,同时,拆模板时,拆模板 时,使之坠入安全网,保护模板。
(2)拆除模板壳要用小撬棍,以木楞为支点,先撬模板相对两侧邦中点,模板权动后,依然以木楞为支点,撬模板底脚的内肋,轻问下撬掉模板。切忌硬撬或用铁锤硬砸,也不能使用大撬棍以肋梁混凝土为支点进行撬动,以保护模板和密肋混凝土。
(3)吊运模板、木钢楞、或钢筋时,不得碰撞已安装好的模板,以防模板变形。
(4)要严格遵循混凝土强度达到10MPa 时方可拆模板;混凝土强度达到7.5%,肋跨<8m 时,可拆除支柱;但肋跨>8m 时,混凝土强度必须达100%可方拆除支柱。
6、应注意的质量问题
(1)密肋梁侧面胀出,梁身不顺直,梁底不平:防治的方法是,模板支架系统应有足够的强度、刚度和稳定;支柱底脚应垫通长脚手板,并应支撑在竖实的地面上;模板下端和侧面应设水平和侧向支撑,以补足模板的刚度;密肋梁底楞应按设计和施工规范起拱;支撑角钢与次楞弹平线安装,并销固牢靠。
(2)单向密肋板底部局部下挠;防治的方法是,模板安装应由跨中向两边安装,以减少模板搭接长度的累计误差。安装后要认真调整模板搭接长度,使其不得小于10cm,以保证接口处的刚度。
(3)密肋梁轴线位移,两端边肋不等:防治的方法是,主楞安装调平后,要放出次楞边线再安装次楞,并进行找方校核。安装次楞要严格跟线,并与主楞连接牢靠。
(4)模板安装不严密:这是模板加工的负公差所致。认真检查模板安装缝隙,钉塑料条或橡胶条补严。
7、质量记录
本工艺标准应具备以下质量记录:
(1)模板分项工程技术交底记录。
(2)模板分项工程预检记录。
(3)模板分项工程质量评定。
(1)材料及主要机具
①.钢筋:应有出厂合格证,按规定用力学性能复试。当加要过程中发生脆断等特殊情况,还需作化学成分检验。钢筋应无老狙及油污。
②.铁丝:可采用20~22 号铁丝(火烧丝)或镀锌铁丝(铅丝)。铁丝的切断长度满使用要求。
③.控制混凝土保护层用砂浆垫块、塑料卡、各种挂钩或撑杆等。
④.工具:钢筋钩子、板子、绑扎架、钢丝刷子、手推车、粉笔、尺子等。
(2)作业条件
①.按施工现场平面图规定的位置,将钢筋堆放场地进行清理、平整。
准备好垫木,按钢筋绑扎顺序分类堆放,并将锈蚀进行清理。
②.核对钢筋的级别,型号、形状、尺寸及数量是否与设计图纸及加工配料单相同。
③.当施工现场地下水位较高时,必须有排水及降水措施。
④.熟悉图纸,确定钢筋穿插就位顺序,并与有关工种作好配合工作,如支模、管线、防水施工与绑扎钢筋的关系,确定施工方法,作好技术交底工作。
⑤.根据地下室防施工方案(采用内贴法或外贴施工),底板钢筋绑扎前做完底板下防水层及保护层;支完底板四周模板(或砌完保护墙,做好防水层)。当地下室外墙防水采用内贴法施工时,在绑扎墙体钢筋之前砌完保护墙,做好防水层及保护层。
2、操作工艺
(1)工艺流程
划钢筋位置线→运钢筋到使用部位→绑底板及梁钢筋→绑墙钢筋。
(2)划钢筋位置线:按图纸标明的钢筋间距,算出底实际需用钢筋根据数,一般让靠近底板模板边的那根据钢筋离模板边为5cm,在底板上弹出钢筋位置线(包括基础梁钢筋位置线)。
3、质量标准
(1)保证项目
①.钢筋的品种和质量、焊条、焊剂的牌号、性能及使用的钢板,必须符合设计要求和有关标准的规定。进口钢筋焊接前,必须进行化学成分检验和焊接试验,符合有关规定后方可焊接。
②.钢筋表面必须清洁,带有颗粒状或片状老锈,经、除锈后仍有麻点的钢筋,严禁按原规格使用。
③.钢筋的规格、形状、尺寸、数量、间距、锚固长度、接头设置,必须符合设计要求和施工规范的规定。
④.焊接接头机械性能,必须符合钢筋焊接规范的专门规定。
(2)基本项目
①.绑扎钢筋的缺扣、松扣数量不得超过绑扣数的10%,且不应集中。
②.弯钩的朝向应正确,绑扎接头应符合施工规范的规定,搭接长度不小于规定值。
③.有I 级钢筋制作的箍筋,其数量应符合设计要求,弯钩角度和平直度不小于规定值。
④.对焊接头无横向裂纺和烧伤,焊包均匀。接头处弯折不得大于4。
接头处钢筋轴线的偏移不得大于0.1d,且不大于2mm。
⑤.电弧焊接头缝表面平整,无凹陷、焊瘤,接头处无裂纹、气孔、渣及咬边。接接头尺寸允许偏差不得超过以下规定:
a、绑条沿接头中心的纵向位移 不大于0.5d,接头处弯折不大于4。
b、接头处钢筋轴线的偏移不大于01d,且不大于3mm。
c、焊缝厚度不小于0.05d;
d、焊缝宽度不小于0.1d;
e、焊缝长度不小于0.05d;
f、接头处弯折不大于4。。
(3)允许偏差项目,见下表:
钢筋安装及预埋件位置的允许偏差值
项次 | 项目 | 允许偏差 (mm) | 检验方法 | |
1 | 网眼尺寸 | 焊接 | ±10 | 尺量连续三档,取其最大值 |
绑扎 | ±20 | |||
2 | 骨架宽、高度 |
| ±5 | 尺量检查 |
3 | 骨架长度 |
| ±10 | |
4 | 箍筋、构造筋间距 | 焊接 | ±10 | 尺量连续三档,取其最大值 |
绑扎 | ±20 | |||
5 | 受力钢筋 | 间距 | ±10 | 尺量两端、中间各一点,取其最大值 |
排距 | ±5 | |||
6 | 钢筋弯起点位移 |
| 20 |
|
7 | 焊接预埋件 | 中心线位移 | 5 | 尺量检查 |
水平高差 | +3 -0 | |||
8 | 受力钢筋保护层 | 基础 | ±10 | 尺量检查 |
梁、柱 | ±5 | |||
墙、板 | ±3 | |||
4、成品保护
(1)成型钢筋应按指定地点堆放,有垫木放整齐,防止钢筋变形、锈蚀、油污。
(2)绑扎墙筋时应搭临时架子,不准蹬踩钢筋。
(3)妥善保护基础四周外露的防水层,以免被钢筋碰破。
(4)底板上、下层钢筋绑扎时,支撑马凳要绑牢固,防止操作时踩变形。
(5)严禁随意割断钢筋。
5、应注意的质量问题
(1)墙、柱预埋钢筋位移:墙、柱主筋的插筋与底板上、下筋要固定绑扎牢固,确保位置准确。必要时可附加钢筋电焊焊牢,混凝土浇筑前应有专人检查修整。
(2)露筋:墙、柱钢筋每隔1m 左右加绑带铁丝的水泥砂浆垫块(或塑料卡)。
(3)搭接长度不够:绑扎时应对每个接头进行尺量,检查搭接长度是否设计和规范要求。
(4)钢筋接头位置错误:梁、柱、墙钢筋接头较多时,翻样配料加工时,应根据图纸预先画出施工翻样图,注明各号钢筋搭配顺序,并避开受力钢筋的最大弯矩处。
(5)绑扎接头与对焊接头未错开:经对焊加工下料时,凡现场进行绑扎时,对焊接头要错开搭接位置。因此加工下料时,凡距钢筋端头搭接长度范围以内不得有对焊接头。
6、质量记录
本工艺标准应具备以下质量记录:
(1)钢筋出厂质量证明书或检验报告单。
(2)钢筋力学性能复试报告。
(3)进口钢筋应有化学成分检验报告和可焊性试验报告。国产钢筋在加工过程中发生脆断、焊接性能不良和力性能显著不正常时,应有化学成分检验报告。
(4)钢筋焊接接头试验报告。
(5)焊条、焊剂出厂合格证。
(6)钢筋分项工程质量检验评定资料。
(7)钢筋分项隐蔽工程验收记录。
3、作业准备:浇筑前应将模板内的垃圾、泥土等杂物及钢筋上的油污清除干净,并检查钢筋的水泥砂浆垫块是否垫好。如使用木模板时应浇水使模板湿润。柱子模板的扫除口应在清除杂物及积水后再封闭。剪力墙根部松散混凝土已剔掉清净。
4、泵送混凝土时必须保证混凝土泵连续工作,如果发生故障,停歇时间超过45min 或混凝土出现离析现象,应立即有压力水事其他方法冲冼管内残留的混凝土。
5、混凝土浇筑与振捣的一般要求:
(1)浇筑混凝土时应分段分层连续进行,浇筑层高度应根据结构特点、钢筋疏筋密决定,一般不振捣器作用部分长度的1.25 倍,最大不超过50cm。
(2)使用插入式振捣器应快插慢拨,插点要均匀排列,逐点移动,顺序进行,不得遗漏,做到均匀振实。移动间距不大于振捣作用半径的1.5倍(一般为30~40cm)。振捣上一层时应插入下层5cm,以消除两层间的接缝。表面振动器(或称平板振动器)的移动间距,应保证振动器的平板覆盖已振实部分的边缘。
(3)浇筑混凝土应连续进行。如必须间歇,其间歇时间应尽量缩短,并应在前层混凝土凝结之前,将次层混凝土浇筑完毕,间歇的最长时间应按所用水泥品种、气温及混凝土凝结条件确定,一般超过2h 应按施工缝处理。
(4)浇筑混凝土时应经常观察模板、钢筋、预留孔洞、预埋件和插筋等无移动、变形或堵塞情况,发现问题应立即处理,并应已浇筑的混凝土凝结前修正完好。

由于对水泥混凝土的养护要求较严,因此不宜过早拆模。拆模时防水混凝土的强度必须超过设计强度等级的70%,混凝土表面温度与环境温度之差,不得超过15℃,以防混凝土表面产生裂缝。拆模时应注意勿使模板和防水混凝土结构受损。
本工程地下室底板、侧墙及裙房屋面以下各层板设置宽1.0m 后浇带三道(位置见 “地下室底板分段图”)。
(1)、地下室底板:后浇带1.8 米范围内,做200 厚混凝土垫层,上铺柔性防水材料,并用20 厚1:3 水泥砂浆保护,垫层内设Φ10@150 双层双向钢筋网。


(1)、地梁、底板的跨缝钢筋可以贯通不断开,上部面筋可用分离处理(接合时加搭接焊),钢筋贯通时可在局部位置设人孔,以便清扫在底板中的杂物;楼层梁内钢筋贯通,板底钢筋不断,板上筋可断开。
(2)、后浇带在混凝土施工完2 个月以后,用提高一级的微膨胀混凝土(掺加UEA 膨胀剂)浇筑,并严格养护。
(3)、在后浇带施工前,应清除垃圾、水泥薄膜;松散游离状的混凝土要剔除,同时还应将混凝土表面凿毛,用压力水冲洗干净并充分湿润,并刷水泥净浆;保证钢筋、钢板止水带符合设计要求,表面的油污、浮浆及浮锈应清除干净。在底部加一层3CM 厚的1:1 水泥砂浆,然后浇筑混凝土。
(4)、后浇带混凝土养护要覆盖或挂麻袋,养护时间不得少于28 天。
(5)、外墙后浇带两侧内面须预留支模拉接用防水螺杆;楼层后浇带混凝土未达70%强度时不得拆除两侧的支承模板及底模。
(6)、所有后浇带钢板止水带弯起部分均朝向迎水面。
一、本综合办公楼工程主体进行平行施工,投入三套模板周转材进行施工,施工缝每层二道留在墙的底根部及顶根部距梁10cm 的地方。
二、施工顺序
主体安排施工顺序
梁板混凝土至少养护10 天后才能拆模。
本工程模板施工主要采用18 厚胶合板,采用钢管支撑。为了保证质量,及工期,配备三套模板周转。
墙模自身固定均采用竖向木枋(@≤300)和水平Φ48 钢管(间距同螺杆)组成,用Φ14 螺栓穿在Φ22 硬塑料管内与水平钢管对拉以控制截面,螺杆起步间距≤250,横向间距为≤500mm,竖向间距≤500,楼层上预埋Φ20@500 的钢筋定位桩以定位并防止墙根部浇混凝土时移位。外墙模板的空间固定采用顶撑相结合的方法固定,即钢支撑作为压杆,钢丝绳花篮螺杆作拉杆,压杆与拉杆的间距均为1.8m,内墙模板的空间固定采用钢支撑在墙两侧斜向对顶的方法固定,另外,为了防止外墙根部上下层接头位置胀模,上层模板应落下并低于下层楼面不小于300,并支撑于架设在下层墙顶预埋螺栓上的枋木面上。一层附墙柱用胶合板,自身固定用竖向木枋和水平钢管,Φ14 对拉螺杆控制截面(竖向@≤500)。墙柱支模前可根据楼层放线先用30 宽18 厚胶合板条在混凝土楼面上钉出墙。柱模板位置,这样既便于墙、柱模板定位准确,又便于加强墙、柱模板根部固定,防止墙柱根部混凝土漏浆。
1、梁模板安装
(1)、在柱子上弹出轴线、粱位置和水平线,钉柱头模板。
(2)、梁底模板:按设计标高调整支柱的标高,然后安装梁底模板,并拉线找平。当梁底跨度大于及等于4m 时,跨中梁底处应按设计要求起拱,如设计无要求时,起拱高度为梁跨度的千分之一至三。主次梁交接时,先主梁起拱,后次梁起拱。悬桃梁均需在悬臂端起拱0.6%.
(3)、支顶在楼层高度4.5m 以下时,应设二道水平拉杆和剪刀撑,楼层高度在4 .5m 以上时要另行作施工方案。
(4)、梁侧模板;根据墨线安装梁侧模板、压脚板、斜撑等。梁侧模板制作高度应根据梁高及楼板模板碰旁或压旁来确定。
(5)、当梁高超过750mm 时,梁侧模板要加穿梁螺栓加固,间距@600。
(6)、对于结构中的弧形线条,可采用先配模后安装加固的方法施工,配模方法为将弧形线条划分为若干小段,每段均用小宽度板条拼成设计形状,再在模板面钉一层镀锌铁皮,然后将配好的各小段模扳运至现场拼在一起,并与其他模板合并加固。
2、楼面模板
(1)、根据模板的排列图架设支柱和龙骨。支柱与龙骨的问距,应根据楼板的混凝土重量与施工荷载的大小,在模板设计中确定。一般支柱为800~1200mm,大龙骨间距为600~1200mm,小龙骨间距为400~600mm。支柱排列要考虑设置施工通道。
(2)、通线调节支柱的高度,将大龙骨找平,架设小龙骨。
(3)、铺模板时可从四周铺起,在中间收口。若为压旁时,角位模板应通线钉固。
(4)、楼面模板铺完后,应认真检查支架是否牢固,模板梁面、板面应清扫干净。
3、梁、板模支架系统
第一层支架采用Φ48 钢管支架,其余各层均采用钢支撑,立杆间距为:楼层次梁≤800mm,板≤1000mm。对于第一层大截面框支梁,为了保证混凝土浇筑时不发生变形,其下支架立杆搭设三排,其中两侧立杆间距@≤500mm 立杆间距@≤900mm,另外,考虑到其上为剪力墙,为保证质量,当浇上层混凝土时若该梁混凝土强度未达到100%,下支架不得拆除。
4、墙、梁、板模板的计算
模板设计参考数据及计算
施工荷载
序号 | 名称 | 位置 | 荷载 |
1 | 新浇砼 |
| 25000N/ |
2 | 施工人员及施工设备重力 |
| 2500N/ |
3 | 振捣时产生荷载 |
| 2000N/ |
| 4000N/ | ||
4 | 18 厚夹板 |
| 216N/ |
5 | 50×100 水平枋木 |
| 40N/2 |
6 | ф48×3.5 钢管 |
| 38.4N/m |
7 | □60×40×2.5 |
| 35.9N/m |
8 | □80×40×2.0 |
| 35.5N/m |
9 | □100×50×3.0 |
| 68.7N/m |
②.材料力学指标
a、枋木及钢管
材料 | 截面A (m) | 惯性矩I (mm4 ) | 抵抗矩W (m) | 强度f(N/m) | 弹性模量E(N/m) |
50×100 枋木 | 50×10 | 416 .7×1 04 | 83.3×10 | 100 | 9×104 |
Φ48×3.5 | 4.89×10 | 12.19×104 | 5.08×10 | 210(215) | 21×104 |
□ 60×40×2.5 | 4.57×10 | 21.88×104 | 7.29×10 | 210(215) | 21×104 |
□ 80×40×2.0 | 4.52×10 | 37.13×104 | 9.28×10 | 210(215) | 21×104 |
□ 100×50×3. 0 | 8.64×10 | 112.12×1 04 | 22.42×10 | 210(215) | 21×104 |
b、对拉螺栓
螺栓直径 (mm) | 螺栓内径 (cm) | 容许拉力 (N) | 重量 (kg) |
M12 | 0.985 | 12900 | 0.89 |
M14 | 1.155 | 17800 | 1.21 |
M16 | 1.355 | 24500 | 1.58 |
M18 | 1.493 | 29600 | 2.00 |
M20 | 1.693 | 38200 | 2.46 |
M22 | 1.893 | 47900 | 2.98 |
(一)荷载计算
混凝土浇筑速度:4m/h
混凝土浇筑温度: T=25℃
模板最大侧压力: F1=0.22γβ1β2t0ν1/2
=0.22×24×1.0×1.0×5×41/2
=52.8KN/㎡
F2=24H=24×2.5=60KN/㎡
γ=24KN/m2
β1 :不掺外加剂时为1.0;掺外加剂时为1.2.
β2:当砼塌落度小于30mm 时,取0.85;当砼塌落度50—90mm 时,取1.0;当塌落度110—150mm 时,取1.15
t0:200/(T+15)
H:柱高度(m)
取F1、F2 的小值作为计算值,即52.8KN/㎡。
(二)模板设计
选用Ф48×3.5 钢管双管作柱箍,则
A=2×489mm2 I=2×12.19×104mm4 W=2×5.08×103mm3 E=21×104N/mm2
f= 210N/mm2 [ω]=3mm
1、按抗弯强度计算柱箍间距
长边l2=1300+18+50=1368mm
短边l3=1300+18+50=1368mm

=419.12mm
2、按挠度计算柱箍间距

=242.21mm
取以上计算的最小值,即取为242mm。
(三)对拉螺栓设计
在内外横楞交叉点加设对拉螺栓, 支座反力为R=2 ×52.8×103×0.17×1.0=17952N
选择M16,其容许拉力为24500N。
柱模板图如下图示:
柱2:600×600
(一)荷载计算:
混凝土浇筑速度: 4m/h
混凝土浇筑温度: T=25℃
模板最大侧压力: F1=0.22γβ1β2t0ν1/2
=0.22×24×1.0×1.0×5×41/2
=52.8KN/㎡
F2=24H=24×2.5=60KN/㎡
γ=24KN/m2
β1 :不掺外加剂时为1.0;掺外加剂时为1.2.
β2:当砼塌落度小于30mm 时,取0.85;当砼塌落度50~90mm 时,取1.0;当塌落度110~150mm 时,取1.15
t0:200/(T+15)
H:柱高度(m)
取F1、 F2 的小值作为计算值,即52.8KN/㎡。
(二)模板设计:
选用Ф48×3.5 钢管双管作柱箍,则
A=2 × 489mm2 I=2 × 12 .19×104 mm4 W=2 × 5.08×103mm3
E=21×104N/mm2
f= 210N/mm2 [ω]=3mm
1、按抗弯强度计算柱箍间距
长边l2=600+18+50=668mm
短边l3=600+18+50=668mm

2、按挠度计算柱箍间距

取以上计算的最小值,即取为341m。
(三)对拉螺栓设计
在内外横楞交叉点加设对拉螺栓, 支座反力为R=2 ×52.8×103×0.17×1.0=17952N
选择M16,其容许拉力为24500N。
柱模板图如下图示:

1、荷载计算:
混凝土浇筑速度:4m/h
混凝土浇筑温度: T=25℃
模板最大侧压力: F1=0.22γβ1β2t0ν1/2
=0.22×24×1.0×1.0×5×41/2
=52.8KN/㎡
F2=24H=24×2.5=60KN/㎡
γ=24KN/m2
β1 :不掺外加剂时为1.0;掺外加剂时为1.2.
β2:当砼塌落度小于30mm 时,取0.85;当砼塌落度50-90mm 时,取1.0;
当塌落度110-150mm 时,取1.15
t0:200/(T+15)
H:高度(m)
取F1、F2 的小值作为计算值,即52.8KN/㎡。
(二)、梁侧模板计算:300×800 (A)
梁高h1=h-板高=600
梁侧外楞采用Φ48×3.5 钢管,双管
I=2×12.19×104mm4 W=2×5.08×103 mm3 E=21×104N/mm2 f=210N/mm2 [ω]=3mm
外楞间距(设置一道):900mm


取b1、b2 的小值,即 670mm。
(B)梁高h1=h-板高≤900,考虑采用木斜撑,外加钢楞两道。
(C)梁侧内楞选用18 厚夹板、50×100 水平枋木,木枋a 间距取400mm
I= 416.7×104 mm4 W=83.3×103 mm3 E= 9×104 N/mm2 f=100N/mm2 [ω]=3mm
a、抗弯强度验算:

b、挠度验算:
支承楞采用50×100 水平枋木
I= 416 .7×104 mm4 W=83.3×103 mm3 E=9 × 104N/mm2
[ω]=3mm

不满足要求,所以在中间设置两道横楞。
故按构造要求,在梁中部设置一道斜撑,以满足要求。
(三)、对拉螺栓设计:
在内外横楞交叉点加设对拉螺栓, 支座反力为
R=2×52.8×103×0.4×0.8=33792N
选用M20,其容许拉力为38200N。
(四)、梁底模板设计: 300×800
1、荷载计算(按1m 计算):
a、新浇混凝土自重 0.8 梁高)×25000×0.3×1.2 N/m
b、模板自重 (216×0.5+3×40)×1.2N/m
c、施工荷载 2500×0.3×1.4N/m
d、振捣砼时产生荷载(水平): 2000×0.3×1.4N/m
合计: q=(a+b+c+d)×10-3 N/m 7.03N/mm
2、验算:
a、抗弯强度验算:
50×100 枋木(3 排): W= 3×83.3×103 mm3 f=100 N/mm2
满足要求
b、挠度验算:
支承楞采用50×100 水平枋木
I= 3×416 .7×104 mm4 W=3×83.3×103 mm3
E=9×104N/mm2 [ω]=3mm
满足要求
(五)梁支承下楞钢管验算:
初步设计考虑@500mm
(1)荷载计算:
a、新浇混凝土自 0.8 砼梁高)×25000×0.3×1.2N/m
b、模板自重 216×0.3+40×3×1.2N/m
c、钢管自重 38.4×1.2N/m
d、施工荷载 2500×0.3×1.4N/m
e、振捣砼时产生荷载(水平): 2000×0.3×1.4N/m
合计: q=(a+b+c+d+e)×10-3 N/m 7.25N/mm
集中荷载 F=ql/2=7.25×1000/2=3627.4N
(2)验算:
a、抗弯强度验算:
Φ48×3.5 钢管: W= 5.08×103 mm3 f=210 N/mm2

满足要求
b、挠度验算:
I= 12 .19×104 mm4 E=21×104 N/mm2 [ω]=3mm

满足要求
(六)、板顶架计算:
1、荷载计算:
a、新浇混凝土自重 0.15 板高)×25000×1.2N/㎡
b、模板自重 (216+40×3.0+38.4)×1.2N/㎡
c、支架自重 2500×1.2N/㎡
d、施工荷载 2500×1.4N/㎡
e、振捣砼时产生荷载 2000×1.4N/㎡
合计: q=(a+b+c+d+e) 13349.28 N/㎡
每根立管支承0.12×0.5=0.06 ㎡ 的区格荷载为:
0.06×13349.28=800.96N
2、验算:
Φ48× 3.5 钢管: W= 489 mm2 i=15.78mm f=215 N/mm2
a、按强度验算:

b、按稳定性验算:
设计立管水平拉杆为小于1800mm , 故长细比为
满足要求
故该梁支撑模板及其顶架满足要求。其它不足1000mm 高的梁按图支模。顶架图如下图示:

混凝土楼板支模采用18 厚夹板,上楞采用@500mm 的50×100 枋木,下楞采用@1000mm 的Ф48×3.5 钢管。顶架立杆采用纵横@1000mm 的Ф48×3.5 钢管,立杆水平拉杆为@1800mmФ48×3.5 钢管。顶板厚为150mm。
(二)楼板支承上楞木枋验算:
1、荷载计算:
a、新浇混凝土自重 0.15(砼板厚)×25000×0.5× 1.2N/m
b、模板自重 (216×0.5+40)×1.2N/m
c、施工荷载 2500×0.5×1.4N/m
d、振捣砼时产生荷载(水平): 2000×0.5×1.4N/m
合计: q=(a+b+c+d)×10-3 N/mm 5.58N/mm
(三)验算:
a、抗弯强度验算:
50×100 枋木: W= 83.3×103 mm3 f=100 N/mm2
满足要求
b、挠度验算:
支承楞采用50×100 水平枋木
I= 416 .7×104 mm4 W=83.3×103 mm3 E=9 × 104N/mm2
[ω]=3mm
满足要求
(四)楼板支承下楞钢管验算:
1、荷载计算:
a、新浇混凝土自重 0.15(砼板厚)×25000×1×1.2N/m
b、模板自重 (216×1+40×2.0)×1.2N/m
c、钢管自重 38.4×1.2N/m
d、施工荷载 2500×1×1.4N/m
e、振捣砼时产生荷载(水平): 2000×1×1.4N/m
合计: q=(a+b+c+d+e)×10-3 N/mm 10.30 N/mm
集中荷载 F=ql/2=10.30×1000/2=5150N
2、验算:
a、抗弯强度验算:
Φ48×3.5 钢管: W= 5.08×103 mm3 f=210 N/mm2
满足要求
b、挠度验算:
支承楞采用50×100 水平枋木
I= 12 .19×104 mm4 E=21×104 N/mm2 [ω]=3mm
满足要求
(五)、钢管顶架验算:
1、荷载计算:
a、新浇混凝土自重 0.15(砼板厚)×25000×1.2N/㎡
b、模板自重 (216+40×2.5/1+38.4/1)×1.2N/㎡
c、钢管支架自重 250×1.2N/㎡
d、施工荷载 2500×1.4N/㎡
e、振捣砼时产生荷载(水平): 2000×1.4N/㎡
合计: q=(a+b+c+d+e) 13325.25 N/㎡
每根立管支承1×1=1 ㎡ 的区格荷载为:1×11347.5=13325.28N
(六)、验算:
Φ48×3.5 钢管: A= 489 mm2 i=15.78mm f=215 N/mm2
a、按强度验算:
![]()
b、按稳定性验算:
设计立管水平拉杆为小于1800mm , 故长细比为
满足要求
故砼楼板支撑模板及其顶架满足要求。其立杆平面布置图如下:
顶板立杆平面布置图

1、墙、柱模板及梁侧模必须在平台、梁混凝土浇筑48 小时后方可拆除。
2、宽度≤2.0m 的板,必须在混凝土试块常规养护达到设计混凝土强度标准值的50%时方可拆除;跨度在2.0m~8.0m 之间的板,必须在混凝土试块常规养护达到设计混凝土强度标准值的75%时方可拆除;宽度大于8.0m的板,必须在混凝土试块常规养护达到设计混凝土强度标准值的100%时方可拆除(28 天后);如果上一层的梁板混凝土未施工,则该层的梁板底模拆除后应加支撑。
3、跨度≤8.0m 之间的梁,必须在混凝土试块常规养护达到设计混凝土强度标准值的75%时方可拆除;跨度大于8.0m 的梁,必须在混凝土试块常规养护达到设计混凝土强度标准值的100%时方可拆除(28 天后)。
4、所有悬挑构件均须待混凝土试块常规养护达到设计混凝土强度标准值的100%时(28 天后)方可拆除底模。
5、已经拆除模板及其支架的结构,在混凝土达到设计强度以后,才允许承受计算荷载,施工中严禁堆放过量的建筑材料。
钢筋加工制作时,要将钢筋加工表与设计图复核,检查下料表是否有错误和遗漏,对每种钢筋要按下料表检查是否达到要求,经过这两道检查后,再按下料表放出实样,试制合格后方可成批制作,加工好的钢筋要挂牌堆放整齐有序。
施工中如需要钢筋代换时,必须先充分了解设计意图和代换材料性能,严格遵守现行钢筋混凝土设计规范的各种规定,并不得以等面积的高强度钢筋代换低强度的钢筋。凡重要部位的钢筋代换,须征得设计单位同意,并有书面通知时方可代换。
1、钢筋表面应洁净,粘着的油污、泥土、浮锈使用前必须清理干净,可结合冷拉工艺除锈。
2、钢筋调直,可用机械或人工调直。经调直后的钢筋不得有局部弯曲、死弯、小波浪形,其表面伤痕不应使钢筋截面减小5%。
3、钢筋切断应根据钢筋号、直径、长度和数量,长短搭配,先断长料后断短料,尽量减少和缩短钢筋短头,以节约钢材。
4、钢筋弯钩或弯曲:
(1)、钢筋弯钩。
形式有三种,分别为半圆弯钩、直弯钩及斜弯钩。钢筋弯曲后,弯曲处内皮收缩。外皮延伸、轴线长度不变,弯曲处形成圆弧,弯起后尺寸不大于下料尺寸,应考虑弯曲调整值。
钢筋弯心直径为2.5d,平直部分为3d。钢筋弯钩增加长度的理论计算值:对装半圆弯钩为6.25d,对直弯钩为3.5d,对斜弯钩为4.9d。
(2)、弯起钢筋:中间部位弯折处的弯曲直径D,不小于钢筋直径的5倍。
(3)、箍筋:箍筋的未端应作弯钩,弯钩形式应符合设计要求。箍筋调整值,即为弯钩增加长度和弯曲调整值两项之差或和,根据箍筋量外包尺寸或内皮尺寸而定。
(4)、钢筋下料长度应根据构件尺寸、混凝土保护层厚度、钢筋弯曲调整值和弯钩增加长度等规定综合考虑。
A、直钢筋下料长度=构件长度一保护层厚度十弯钩增加长度
B、弯起钢筋下料长度=直段长度十斜弯长度一弯曲调整值十弯钩增加长度
C、箍筋下料长度=箍筋内周长十箍筋调整值十弯钩增加长度
(二)、钢筋绑扎与安装
钢筋绑扎前先认真熟悉图纸,检查配料表与图纸,设计是否有出入,仔细检查成品尺寸、形状是否与下料表相符。核对无误后方可进行绑扎。
采用20#铁丝绑扎直径12 以上钢筋,22#铁丝绑扎直径10 以下钢筋。
1、柱
(1)、竖向钢筋的弯钩应朝向柱心,角部钢筋的弯钩平面与模板面夹角,对矩形柱应为45°角,截面小的柱,用插入振动器时,弯钩和模板所成的角度不小于15°。
(2)、箍筋的接头应交错排列垂直放置;箍筋转角与竖向钢筋交叉点均应扎牢(箍筋平直部分与竖向钢筋交叉点可每隔一根互成梅花式扎牢)。绑扎箍筋时,铁线扣要相互成八字形绑扎。
(3)、柱筋绑扎时应吊线控制垂直度,并严格控制主筋间距。柱筋搭接处的箍筋及柱立筋应满扎,其余可梅花点绑扎。
(4)、当梁高范围内柱(墙)纵筋斜度b/a≤1/6 时,可不设接头插筋;
当b/a>1/6 时,应增设上下柱(墙)纵筋的连接插筋,锚入柱(墙)内。
如图

(5)、下层柱的竖向钢筋露出楼面部分,宜用工具或柱箍将其收进一个柱筋直径,以利上层柱的钢筋搭接,并与上层梁板筋焊接如图,当上下层柱截面有变化时,其下层柱钢筋的露出部分,必须在绑扎梁钢筋之前,先行收分准确。

2、墙
(1)、墙的钢筋网绑扎同基础。钢筋有180 度弯钩时,弯钩应朝向混凝土内。
(2)、采用双层钢筋网时,在两层钢筋之间,应设置撑铁(钩)以固定钢筋的间距。
(3)、墙筋绑扎时应吊线控制垂直度,并严格控制主筋间距。剪力墙上下三道水平筋处应满扎,其余可梅花点绑扎。
(4)、为了保证钢筋位置的正确,竖向受力筋外绑一道水平筋或箍筋,并将其与竖筋点焊,以固定墙、柱筋的位置如上图,在点焊固定时要用线锤校正。
(5)、外墙浇筑后严禁开洞,所有洞口预埋件及埋管均应预留,洞边加筋详见施工图。墙、柱内预留钢筋做防雷接地引线,应焊成通路。其位置、数量及做法详见安装施工图,焊接工作应选派合格的焊工进行,不得损伤结构钢筋,水电安装的预埋,土建必须配合,不能错埋和漏埋。
(6)、当上下层墙截面有变化时,纵向钢筋处理见图。

3、梁与板
(1)、纵向受力钢筋出现双层或多层排列时,两排钢筋之间应垫以直径25mm 的短钢筋,如纵向钢筋直径大于25mm 时,短钢筋直径规格与纵向钢筋相同规格。
(2)、箍筋的接头应交错设置,并与两根架立筋绑扎,悬臂飘梁则箍筋接头在下,其余做法与柱相同。梁主筋外角处与箍筋应满扎,其余可梅花点绑扎。
(3)、板的钢筋网绑扎与基础相同,但应注意板上部的负钢筋(面加筋)要防止被踩下;特别是雨蓬、挑檐、阳台、窗台等悬臂板,要严格控制负筋位置,在板根部与端部必须加设板凳铁,确保负筋的有效高度。
(4)、板、次梁与主梁交叉处,板的钢筋在上,次梁的钢筋在中层,主梁的钢筋在下,当有圈梁或垫梁时,主粱钢筋在上。
(5)、楼板钢筋的弯起点,如加工厂(场)在加工没有起弯时,设计图纸又无特殊注明的,可按以下规定弯起钢筋,板的边跨支座按跨度1/10L为弯起点。板的中跨及连续多跨可按支座中线1/6L 为弯起点。(L 一板的中一中跨度)。
(6)、框架梁节点处钢筋穿插十分稠密时,应注意梁顶面主筋间的净间距要有留有30mm,以利灌筑混凝土之需要。
(7)、钢筋的绑扎接头应符合下列规定:
A、搭接长度的未端距钢筋弯折处,不得小于钢筋直径的10 倍,接头不宜位于构件最大弯矩处。
B、受拉区域内,Ⅰ级钢筋绑扎接头的未端应做弯钩。
C、钢筋搭接处,应在中心和两端用铁丝扎牢。
D、受拉钢筋绑扎接头的搭接长度,应符合结构设计要求。
E、受力钢筋的混凝土保护层厚度,应符合结构设计要求。
(8)、板筋绑扎前须先按设计图要求间距弹线,按线绑扎,控制质量。
(9)、为了保证钢筋位置的正确,根据设计要求,板筋采用钢筋马凳纵横@600 予以支撑。
(三)、钢筋闪光焊
1、对焊工艺
根据钢筋品种、直径和所用焊机功率大小选用连续闪光焊、预热闪光焊、闪光一预热一闪光焊。对于可焊性差的钢筋,对焊后宣采用通电热处理措施,以改善接头塑性。
(1)、连续闪光焊:工艺过程包括连续闪光和顶锻过程。施焊时,先闭合一次电路,使两钢筋端面轻微接触,此时端面的间隙中即喷射出火花般熔化的金属微粒一闪光,接着徐徐移动钢筋使两端面仍保持轻微接触。形成连续闪光。当闪光到预定的长度,使钢筋端头加热到将近熔点时,就以一定的压力迅速进行顶锻,再灭电顶锻到一定长度,焊接接头即告完成。
(2)、预热闪光焊:工艺过程包括一次闪光、预热。二次闪光及顶锻等过程。一次闪光是将钢筋端面闪平。
预热方法如下两种:
A、连续闪光预热是使两钢筋端面交替地轻微接触和分开,发出断续闪光来实现预热。
B、电阻预热是在两钢筋端面一直紧密接触用脉冲电流或交替紧密接触与分开,产生电阻热(不闪光)来实现预热,此法所需功率较大。二次闪光与顶锻过程同连续闪光焊。
(3)、闪光-预热-闪光焊:是在预热闪光焊前加一次闪光过程。
工艺过程包括一次闪光、预热、二次闪 光及顶锻过程,施焊时首先连续闪光,使钢筋端部闪平,然后同预热闪光焊。焊接钢筋直径较粗时,宜用此法。
(4)、焊后通电热处理:方法是焊毕松开夹具,放大钳口距,再夹紧钢筋;接头降温至暗黑后,即采取低频脉冲式通电加热,当加热至钢筋表面呈暗红色或桔红式时,通电结束;松开夹具,待钢筋冷后取下钢筋。
(5)、钢筋闪光对焊参数
A、对焊电流参数:根据焊接电流和时间不同,分为强参数(即大电流和短时间)和弱参数(即电流较小和时间较长)两种,采用强参数可减J、接头过热并提高焊接效率,但易产生淬硬。
B、闪光对焊参数:为了获得良好的对焊接头,应合理选择对焊参数。
焊接参数包括:调伸长度。闪光留量。闪光速度。顶锻留量。顶锻速度、顶锻压力及变压级次。采用预热闪光焊时,还要有预热留量与预热频率等参数。
2、对焊操作要求:
Ⅱ级钢钢筋对焊:Ⅱ级钢筋的可焊性较好,焊接参数的适应性较宽,只要保证焊缝质量,拉弯时断裂在热影响区就较小。因而,其操作关键是掌握合适的顶锻。
采用预热闪光焊时,其操作要点为:一次闪光,闪平为准;预热充分,频率要高;二次闪光,短、稳、强烈;顶锻过程,快速有力。
3、对焊注意事项
(1)、对焊前应清除钢筋端头约150mm 范围的铁锈污泥等,防止夹具和钢筋间接触不良而引起“打火”。钢筋端头有弯曲应予调直及切除。
(2)、当调换焊工或更换焊接钢筋的规格和品种时,应先制作对焊试件(不小于2 个)进行冷弯试验,合格后,方能成批焊接。
(3)、焊接参数应根据钢筋特性、气温高低,电压。焊机性能等情况由操作焊工自行修正。
(4)、焊接完成,应保持接头红色变为黑色才能松开夹具,平稳地取出钢筋,以免引起接头弯曲。当焊接后张预应力钢筋时,焊后趁热将焊缝毛刺打掉,利于钢筋穿入孔道。
(5)、不同直径钢筋对焊,其两截面之比不宜大于1.5 倍。
(6)、焊接场地应有防风防雨措施。
(四)、电弧焊
钢筋电弧焊分帮条焊、搭接焊、坡口焊和熔槽四种接头形式。
1、帮条焊
帮条焊适用于Ⅰ、Ⅱ钢筋的接驳,帮条宜采用与主筋同级别、同直径的钢筋制作,其操作要点如下:
(1)、先将主筋和帮条问用四点定位焊固定,离端部约20mm,主筋间隙留2-5mm。
(2)、施焊应在帮条内侧开始打弧,收弧时弧坑应填满,并向帮条一侧拉出灭弧。
(3)、尽量施水平焊,需多层焊时,第一层焊的电流可以稍大,以增加焙化深度,焊完一层之后,应将焊渣清除干净。
(4)、当需要立焊时,焊接电流应比平焊减少10%-15%。
(5)、当不能进行双面焊时,可采用单面焊接,但帮条长度要比双面焊加大一倍。
2、搭接焊
搭接焊只适用于Ⅰ、Ⅱ、Ⅲ级钢筋的焊接,其制作要点除注意对钢筋搭接部位的预弯和安装,应确保两钢筋轴线相重合之外,其余则与帮条焊工艺基本相同。
3、坡口焊
坡口焊对接分坡口平焊和坡口立焊对接。
(1)、钢筋坡口平焊宜采用V 型坡口,坡口角度为55°~65°。
(2)、坡口面加工要平顺,污物、氧化铁锈要清除干净,并利用垫板进行定位焊,垫板长度取为40~60mm,宽度为钢筋直径加10mm,坡口根部间隙平焊取4~6mm,操作工艺应注意以下几点:
A、首先由坡口根部引弧,横向施焊数层,接着焊条作之字形运弧,将坡口逐层堆焊填满,焊接时适当控制速度以避免接头产生过热,亦可将几个接头轮流施焊。
B、每填满一层焊缝,都要把焊渣清除干净,再焊下一层,直至焊缝金属略高于钢筋直径0.1d 为止,焊缝加强宽度比坡口边缘加宽2~3mm 为宜。
(3)、钢筋坡口立焊对接
A、钢筋V 型坡口立焊时,坡口角度约为35°~55°,其中下筋为0°~10°,上筋为35°~45°。
B、立焊对接垫板的装配和定位焊与坡口平焊基本相同,但根部间隙取3~5mm。
C、坡口立焊首先在下部钢筋端面上引弧,并在该端面上堆焊一层,使下部钢筋逐渐加热,然后用快速短小的横向焊缝把上下钢筋端面焊接起来,当焊缝超过钢筋直径的一半时,焊条摆动宣采用立焊的运弧方式,一层一层地把坡口填满,其加强高和加强宽与坡曰平焊相同。”
(五)、竖向钢筋电渣压力焊
电渣压力焊是利用电流通过渣池产生的电阻热将钢筋端部熔化,然后施加压力使钢筋焊合。
1、电渣压力焊接工艺
电渣压力焊接工艺分为“造渣过程”和“电渣过程”,这两个过程是不间断的连续操作过程。
(1)、“造渣过程”是接通电源后,上、下钢筋端面之间产生电弧,焊剂在电弧周围熔化,在电弧热能的作用下,焊剂溶化逐渐增多,形成一定深度渣地,在形成渣池的同时电弧的作用把钢筋端面逐渐烧平。
(2)、“电渣过程”是把上钢筋端头浸入渣池中,利用电阻热能使钢筋端面熔化,在钢筋端面形成有利于焊接的形状和熔化层,待钢筋溶化量达到规定后,立即断电顶压,排出全部溶渣和溶化金属,完成焊接过程。
2、电渣压力焊施焊接工艺程序
安装焊接钢筋→安装引弧铁丝球→缠绕石棉绳装上焊剂盒→装放焊剂→接通电源,“造渣”工作电压40~50V,“电渣”工作电压20~25V→造渣过程形成渣池→电渣过程钢筋端面溶化→切断电源顶压钢筋完成焊接→卸出焊剂拆卸焊盒→拆除夹具。
(1)、焊接钢筋时,用焊接夹具分别钳固上下的待焊接的钢筋,上、下钢筋安装时,中心线要一致。
(2)、安放引弧铁丝球:抬起上钢筋,将预先准备好的铁丝球安放在上。
下钢筋焊接端面的中间位置,放下上钢筋,轻压铁丝球,使接触良好。放下钢筋时,要防止铁丝球被压扁变形。
(3)、装上焊剂盒:先在安装焊剂盒底部的位置缠上石棉绳然后再装上焊剂盒,并往焊剂盒满装焊剂。安装焊剂盒时,焊接口宜位于焊剂盒的中部,石棉绳缠绕应严密,防止焊剂泄漏。
(4)、接通电源,引弧造渣:按下开关,接通电源,在接通电源的同时将上钢筋微微向上提,弓燃电弧,同时进行“造渣延时读数,,计算造渣通电时间。造渣过程”工作电压控制在 40~50v 之间,造渣通电时间约占整个焊接过程所电时间的3/4。
(5)、“电渣过程”:随着造渣过程结束,即时转入“电渣过程”的同时进行“电渣延时读数”,计算电渣通电时间,并降低上钢筋,把上钢筋的端部插入渣池中,徐徐下送上钢筋,直至“电渣过程”结束。“电渣过程”工作电压控制在20~25V 之间,电渣通电时间约占整个焊接过程所需时间的1/4。
(6)、顶压钢筋,完成焊接:“电渣过程”延时完成,电渣过程结束,即切断电源,同时迅速顶压钢筋,形成焊接接头。
(7)、卸出焊剂,拆除焊剂盒、石棉绳及夹具。卸出焊剂时,应将料斗卡在剂盒下方,回收的焊剂应除去溶渣及杂物,受潮的焊剂应烘。焙干燥后,可重复使用。
(8)、钢筋焊接完成后,应及时进行焊接接头外观检查,外观检查不合格的接头,应切除重焊。
(1)、钢筋的材质、规格及焊条类型应符合钢筋工程的设计和施工规范,有材质及产品合格证书和物理性能检验,对于进口钢材需增加化学性能检定,检验合格后方能使用。
(2)、钢筋的规格、形状、尺寸、数量、间距、锚固长度、接头位置、保护层厚度必须符合设计要求和施工规范的规定。
(3)、焊工必须持相应等级焊工证才允许上岗操作。
(4)、在焊接前应预先用相同的材料、焊接条件及参数,制作二个抗拉试件,其试验结果大于该类别钢筋的抗拉强度时,才允许正式施焊,此时可不再从成品抽样取试件。
2、基本项目
(1)、钢筋、骨架绑扎,缺扣、松扣不超过应绑扎数的10%,且不应集中。
(2)、钢筋弯钩的朝向正确,绑扎接头符合施工规范的规定,搭接长度不小于规定值。
(3)、所有焊接接头必须进行外观检验,其要求是:焊缝表面平顺,没有较明显的咬边。凹陷。焊瘤。夹渣及气孔,严禁有裂纹出现。
3、机械性能试验、检查方法
根据焊件的机械性能的有关规定进行取样送检。
本工程混凝土采用商品砼由砼运输车运到现场。混凝土水平及垂直运输采用混凝土输送泵为主,塔吊为辅助。
1、根据配合比确定的每盘(槽)各种材料用量,均要过称。
2、装料顺序:一般先装石子,再装水泥,最后装砂子,需加掺合料时,应与水泥一并加入。
3、混凝土搅拌的最短时间根据施工规范要求确定,掺有外加剂时,搅拌时间应适当延长。粉煤灰混凝土的搅拌时间宜比基准混凝土延长10 至30s。
1、混凝土在现场运输工具有手推车、吊斗、滑槽(地下室)、泵送等。
2、混凝土自搅拌机中卸出后,应及时运到浇筑地点,延续时间不能超过初凝时间。在运输过程中,要防止混凝土离析、水泥浆流失、坍落度变化以及产生初凝等现象。如混凝土运到浇筑地点有离析现象不得用于主体结构。
3、混凝土运输道路应平整顺畅,若有凸凹不平,应铺垫桥枋。在楼板施工时,更应铺设专用桥道严禁手推车和人员踩踏钢筋。
(1)、泵送湿凝土前,先把储料斗内清水从管道泵出,达到湿润和清洁管道的目的,然后向料斗内加入与混凝土配比相同的水泥砂浆(或1:2 水泥砂浆),润滑管道后即可开始泵送混凝土。管内的水泥砂浆应按要求均匀摊铺在浇筑面上。
(2)、开始泵送时,泵送速度宜放慢,油压变化应在允许值范围内,待泵送顺利时,才用正常速度进行泵送
(3)、泵送期间,料斗内的混凝土量应保持不低于缸筒口上10mm 到料斗口下150mm 之间为宜。避免吸入效率低,容易吸入空气而造成塞管,太多则反抽时会溢出并加大搅拌轴负荷。
(4)、混凝土泵送宜连续作业,当混凝土供应不及时,需降低泵送速度,泵送暂时中断时,搅拌不应停止。当叶片被卡死时,需反转排队,再正转。
反转一定时间,待正转顺利后方可继续泵送。
(5)、泵送中途若停歇时间超过20min,管道又较长时,应每隔5min开泵一次,泵送小量混凝土,管道较短时,可采用每隔5min 正反转2~3个行程,使管内混凝土蠕动,防止泌水离析,长时间停泵(超过45min),气温高,混凝土坍落度小时可能造成塞管,宜将混凝土从泵和输送管中清除。
(6)、泵送先远后近,在浇筑中逐渐拆管。
(7)、在高温季节泵送,宜用湿草袋覆盖管道进厅降温,以降低入模温度。
(8)、泵送管道的水平换算距离总和应小于设备的最大泵送距离。
2、泵送结束清理工作
(1)、泵送将结束时,应估算混凝土管道内和料斗内储存的混凝土量及浇捣现场所欠混凝土量(Φ125mm 径管每100 米有1.23m3),以便决定混凝土需要量。
(2)、泵送完毕清理管道时,采用空气压缩机推动清洗球,先安好专用清洗管,再启动空压机,渐进加压。清洗过程中,应随时敲击输送管,了解混凝土是否接近排空。当输送管内尚有10m 左右混凝土时,应将压缩机缓慢减压,防止出现大喷爆和伤人。
(3)、泵送完毕,应立即清洗混凝土泵、布料器和管道,管道拆卸后按不同规格分类堆放。
1、浇筑前应对模板浇水湿润,墙、柱模板的清扫口应在清除杂物及积水后再封闭。
2、混凝土浇筑的一般要求
(1)、混凝土自吊斗口下落的自由倾落高度不得超过2 米,如超过2m时必须采取加串筒措施。
(2)、浇筑竖向结构混凝土时,如浇筑高度超过3m 时,应采用串筒、导管、溜槽或在模板侧面开门子洞。
(3)、浇筑混凝土时应分段分层进行,每层浇筑高度应根据结构特点、钢筋疏密决定。一般分层高度为插入式振动器作用部分长度的1.25 倍,大不超过500mm,平板振动器的分层厚度为200mm。
(4)、使用插入式振动器应快插慢拔,插点要均匀排列,逐点移动,按顺序进行,不得遗漏,做到均匀振实。移动问距不大于振动棒作用半径的1.5 倍(一般为300~400mm)。振捣上一层时应插入下层混凝土面50mm,以消除两层间的接缝。平板振动器的移动间距应能保证振动器的平板覆盖已振实部分边缘。
(5)、浇筑混凝土应连续进行。如必须间歇,其间歇时问应尽量缩短。
并应在前层混凝土初凝之前,将次层混凝土浇筑完毕。问歇的最长时间应按所有水泥品种及混凝土初凝条件确定一般超过2 小时应按施工缝处理。
(6)、浇筑混凝土时应派专人经常观察模板钢筋、预留孔洞、预埋件、插筋等有无位移变形或堵塞情况,发现问题应立即停止浇灌,并应在已浇筑的混凝土上初凝前修整完毕。
3、柱、墙混凝土浇筑
(1)、柱、墙浇筑前,或新浇混凝土与下层混凝土结合处,应在底面上均匀浇筑50mm 厚与混凝土配比相同的水泥砂浆。砂浆应用铁铲入模,不应用料斗直接倒入模内。
(2)、柱墙混凝土应分层浇筑振捣,每层浇筑厚度控制在500mm 左右。
混凝土下料点应分散布置循环推进,连续进行。
(3)、浇筑墙体洞口时,要使洞口两侧混凝土高大体一致。混凝土振捣要均匀密实,特别是墙厚较小,门窗洞口结构加筋与连接交错钢筋较密的部位,应采用Φ25 振动棒,其它墙梁部位采用Φ50 振动棒,考虑到墙窗洞下墙体位混凝土封模后无法直接振捣,可事先将窗洞下口留成活口,待混凝土浇至该位置并振捣密实后再行封模和加固。振捣时,振动棒应距洞边300mm 以上,并从两侧同时振捣,以防止洞口变形。大洞口下部模板应开口并补充振捣。
(4)、构造柱混凝土应分层浇筑,每层厚度不得超过300mm。
4、梁,板混凝土浇筑
(1)、肋形楼板的梁板应同时浇筑,浇筑方法应由一端开始用“ 赶浆法”推进,先将梁分层浇筑成阶梯 ,当达到楼板位置时再与板的混凝土一起浇筑。
(2)、楼板浇筑的虚铺厚度应略大于板厚,用平板振动器垂直浇筑方向来回振捣。注意不断用移动标志或插杆检查以控制混凝土板厚度。振捣完毕,用刮尺或拖板抹平表面。
(3)、在浇筑与柱、墙连成整体的梁和板时,应在柱和墙浇筑完毕后停歇1~1.5 小时,使其获得初步沉实,再继续浇筑。
(4)、施工缝设置:宜沿着次梁方向浇筑楼板,施工缝应留置在次梁跨度1/3 范围内,施工缝表面应与次梁轴线或板面垂直。单向板的施工缝留置在平行于板的短边的任何位置。
(5)、施工缝用木板、钢丝网挡牢。
(6)、施工缝处须待已浇混凝土的抗压强度不少于1.2MPa 时,才允许继续浇筑。
(7)、在施工缝处继续浇筑混凝土前,混凝土施工缝表面应凿毛,清除水泥薄膜和松动石子,并用水冲洗干净。排除积水后,先浇一层水泥浆或与混凝土成分相同的水泥砂浆然后继续浇筑混凝土。
5、楼梯混凝土浇筑
(1)、楼梯段混凝土自下而上浇筑。由于楼梯踏步采用封闭式模板,故在踏步面开门子洞。底板混凝土与踏步混凝土一起浇筑,不断连续向上推进。
(2)、楼梯混凝土宜连续浇筑完成。
(3)、施工缝位置:根据结构情况可留设于楼梯平台板跨中或楼梯段1/3 范围内。
6、浇筑粱板混凝土时,墙、柱节点区同按高强度等级混凝土施工,分界面在墙柱边500 处。
7、后浇带:严格按设计图要求施工,后浇带施工前,应先清理杂物,用清水冲冼在所旧砼分接面涂上泥油,确保所旧砼咬接良好。
1、混凝土浇筑完毕后,应在12 小时以内加以覆盖,并浇水养护。
2、混凝土浇水养护日期,掺用缓凝型外加剂或有抗渗要求的混凝土不得小于14 天。在混凝土强度达到1.2MPa 之前,不得在其上踩踏或施工振动。柱、墙带模养护2 天以上,拆模后,用棉布包住,浇水在棉花布上养护,以确保立面结构表面保持湿润状态。
3、每日浇水次数应能保持混凝土处于足够的润湿状态。
砌块的品种、强度等级必须符合设计要求,并应规格一致有出厂合格证明及试验单;
2、水泥
品种与标号应根据砌体部位及所处环境选择,一般采用32.5 号普通硅酸盐水泥或矿渣硅酸盐水泥;应有出厂合格证明和试验报告方可使用;不同品种的水泥不得混合使用。
3、砂
宜采用中砂。配制水泥砂浆或水泥混合砂浆的强度等级等于或大于M5时,砂的含泥量不应超过5%。砂浆强度等级小于M5 时,砂的含泥量不应超过10%。
4、水
应采用不含有害物质的洁净水。
5、掺合料
A、石灰膏:熟化时间不少于7 天,严禁使用脱水硬化的石灰膏。
B、其他掺合料:电石膏、粉煤灰等掺量应经试验室试验决定。
6、其他材料
拉结钢筋、预埋件、木砖、防水粉等均应符合设计要求。
砂浆采用机械拌合,手推车上料,磅称计量。材料运输主要采用井字架作垂直运输,人工手推车作水平运输
(1)、根据试验提供的砂浆配合比进行配料称量,水泥配料精确度控制在2%以内;砂、石灰膏等配料精确度控制在±5%以内。
(2)、砂浆应采用机械拌合,投料顺序应先投砂、水泥、掺合料后加水。
拌和时间自投料完毕算起,不得少于1.5min。
(3)、砂浆应随拌随用,水泥砂浆和水泥混合砂浆必须分别在拌成后3小时和4 个时内使用完毕。
2、组砌方法
(1)、砌块墙砌筑应上下错缝,内外搭砌,灰缝平直,砂浆饱满,水平灰缝厚度和竖向灰缝宽度一般为10mm,但不应小于8mm,也不应大于12mm。
(2)、砖墙的转角处和交接处应同时砌筑,均应错缝搭接,所有填充墙在互相连接、转角处及与混凝土墙连接处均应沿墙高设置2Φ6@500 通长拉结筋。对不能同时砌筑而又必须留置的临地问断处应砌成斜搓。如临时间断处留斜搓确有困难时,除转角处外,也可留直搓,但必须做成阳搓,并加设拉结筋,拉结筋的数量按每12cm 墙厚原放置一根直径6mm 的钢筋,间距沿墙高不得超过50cm,埋入长度从墙的留搓处算起,每边均不应小于50cm,未端应有90°弯钩。
(3)、隔墙和填充墙的顶面与上部结构接触处用侧砌块或立砌块斜砌挤紧。
3、砌块墙砌筑
施工顺序:弹划平面线→检查柱、墙上的预留连结筋,遗留的必须补齐→砌筑→安装或现浇门窗过梁→顶部砌体。
(1)、排砌块撂底:一般外墙第一皮砌块撂底时,横墙应排丁砌块,前后纵墙应排顺砌块。根据已弹出的窗门洞位置墨线,核对门窗间墙、附墙柱(垛)的长度尺寸是否符合排砌块模,如若不合模数时,则要考虑好砍砌块及排放的计划。所砍的砌块或丁砌块应排在窗口中间、附墙柱(垛)旁或其他不明显的部位。
(2)、选砌块:选择棱角整齐、无弯曲裂纹、规格基本一致的砌块;
(3)、盘角:砌墙前应先盘角,每次盘角砌筑的砌块墙角度不要超过五皮,并应及时进行吊靠,如发现偏差及时修整。盘角时要仔细对照皮数杆的砌块层和标高,控制好灰缝大小水平灰缝均匀一致。每次盘角砌筑后应检查,平整和垂直完全符合要求后才可以挂线砌墙。
(4)、挂线:砌筑一砌块厚及以下者,采用单面挂线;砌筑一砌块半厚及以上者,必须双层挂线。如果长墙几个人同时砌筑共用一根通线,中间应设几个支线点;小线要拉紧平直,每皮砌块都要穿线看平,使水平缝均匀一致,平直通顺。
(5)、砌砌块:砌砌块宜采用挤浆法,或者采用三一砌砌块法。三一砌砌块法的操作要领是一铲灰、一块砌块、一挤揉,并随手将挤出的砂浆刮去。操作时砌块块要放平、跟线,砌筑操作过程中,以分段控制游丁走缝和乱缝。经常进行自检,如发现有偏差,应随时纠正,严禁事后采用撞砌块纠正。应随砌随将溢出砌块墙面的灰迹块刮除。
(6)、木砖预埋:木砖应经防腐处理,预埋时小头在外,大头在内,数量按洞口高度确定;洞口高度在1.2m 以内者,每边放2 块,高度在2~3m者每边放4 块。预埋木砖的部位一般在洞口上下四皮砌块处开始,中间均匀分布。门窗洞口考虑预留后安装门窗框,要注意门窗洞口宽度及标高符合设计要求。
(7)、门窗过梁为预制钢筋混凝土过梁,在砌块墙上的支承长度不小于240:当支承长度不足时,应按过梁与柱、墙直接连接处理。当门窗洞边无砖墩搁置过梁时,采用在相应洞顶位置的混凝土墙、柱上予埋铁件或插筋,以便和过粱中的钢筋焊接。
安装过梁、梁垫时其标高、位置及型号必须符合设计图纸要求,坐浆饱满;如坐浆厚度超过20mm 时 ,要用细石混凝土铺垫,过梁伸入两端的支承长度应一致。
(8).填充墙墙高≥4 米时,在墙高的一半处或门顶,设一道通长的钢筋混凝土圈梁。
(9).填充墙体与梁板交接的顶砌块用实心小砌块,并斜砌顶紧。
(10).卫生间\厨房四周砌块墙体底部构件120mm 高素砼反边,确保墙脚不渗水。
(2)、砂浆品种符合设计要求,强度必须符合下列规定:
A、同品种、同强度等级砂浆各组试块的平均强度不小于1.0.fm.k
B、任意一组试块的强度不小于0.75fm.k。
C、砌体砂浆必须密实饱满,实心砌块砌体水平灰缝的砂浆饱满度不少于80%。
(3)、外墙的转角处严禁留直搓,其他临时间断处,留搓的做法必须符合施工规范的规定。
楼地面在装修前应先作一、二层样板,经监理单位认可方可大面积施工。楼地面找平层施工时应特别注意各类房间地面的高低差和厨卫间地面的排水坡度。

1、素水泥浆结合层:宜刷水灰比为0.4~0.5 的素水泥浆,也可在基层上均匀洒水湿润后,再撒水泥粉,用竹扫帚均匀涂刷,随刷随做面层,并控制一次涂刷面积不宜过大。
2、灰饼、冲筋:根据+1m 水平线,在地面四周做灰饼,然后拉线打中间灰饼再用干硬性水泥砂浆做软筋,软筋间距约1.5m 左右。在有地漏和坡度要求的地面,应按设计要求做泛水和坡度,对于面积较大的地面,则应用水准仪测出面层平均厚度然后边测标高边做灰饼。
3.地面操作
(1)、混凝土基层通常用干硬性水泥砂浆,砂浆外表湿润松散、手握面团、不泌水分为准。水泥焦渣基层可用一般水泥砂浆。水泥砂浆配比为1:2(水泥:砂),如用32.5 号水泥则用1:2.5 的配比。操作时先在两冲筋之间均匀地铺上砂浆,比冲筋面略高,然后用刮尺以冲筋为准刮平、拍实,待表面水分稍干后(禁止用水泥粉吸水催干),用木抹子打磨,要求把砂眼、凹坑、脚印打磨掉,操作人员在操作半径内打磨完后进行抹光,对于拉毛地面不用压光。向后退着操作,在水泥砂浆初凝前完成。
(2)、第二遍压光:在水泥浆初凝前,即可用铁抹子压抹第二遍(此时人站在上面有脚印但不下陷、要用水泥袋纸包裹平整木板垫脚),要求不漏压,做到压光;凹坑、砂眼和踩的脚印都要填补压平。
(3)、第三遍压光:在水泥砂浆终凝前,此时人踩上去有细微脚印,当拭抹无抹纹时,即可用灰匙抹压第三遍,压时用劲稍大一些,把第二遍压光时留下的抹纹、细孔等抹平,达到压平、压实、压光。
(4)、养护:水泥砂浆完工后,第二天要及时浇水养护,使用矿渣水泥时尤应注意加强养护。必要时可蓄水养护,养护时间宜不少于7 天。
(二)、质量标准
1、保证项目
(1)、面层的材质、强度(配合比)和密实度必须符合设计要求和施工规范规定。
(2)、面层与基层结合必须牢固,无空鼓。
检验方法:用小锤轻击检查,空鼓面积不大于400cm2,无裂纹,且在一个检查范围内不多于二处者,可不计。
2、基本项目
(1)、水泥砂浆面层表面质量应符合以下规定:
合格:表面无明显脱皮和起砂,局部有少数细小收缩裂纹和轻微麻面,但面积不大于800cm2,且在一个检查范围内不多于二处。
检验方法:观察检查。
(2)、地漏及泛水应符合以下规定:
合格:坡度满足排水要求,不倒泛水,无渗漏。
优良:坡度符合设计要求,不倒泛水,无渗漏,无积水;与地漏(管道)结合处严密平顺。
检验方法:观察或泼水检查。
(3)、踢脚线的质量应符合以下规定:
合格:高度一致;与墙柱面结合牢固;局部空鼓长度不大于400mm,且在一个检查范围内不多于二处。
优良:高度一致,厚度均匀,与墙柱面结合牢固,局部空鼓长度不大于200mm,且在一个检查范围内不多于二处。
检查方法:用小锤轻击尺量和观察检查。
(4)、踏步台阶应符合以下规定:
合格:宽度基本一致,相邻两步高差不大于20mm,齿角基本整齐,防滑条顺直。
优良:宽度一致,相邻两步高差不大于10mm,齿角整齐,防滑条顺直。
检查方法:观察和尺量检查。
(5)、镶边应符合以下规定:
合格:各种面层邻接处镶边用料及尺寸符合设计要求和施工规范规定。
优良:各种面层邻接处镶边用料及尺寸符合设计要求和施工规范规定,边角整齐光滑,不同面层、不同颜色的邻接处不混色。
(1)、根据+1.0m 水平线,打灰饼(打墩)及用刮尺推好冲筋。
(2)、浇水湿润基层,再刷水灰比为0.5 素水泥浆。
(3)、根据冲筋厚度,用1:3 干硬性水泥砂浆(以手握成团,不泌水为准)抹铺结合层。结合层应用刮尺及木抹子压平打实(抹铺结合层时,基层应保持湿润,己刷素水泥浆不得有风干现象,结合层抹好后,以人站上面只有轻微脚印而无凹陷为准)。
(4)、对照中心线(十字线)在结合层面上弹上面块料控制线(靠墙一行面块料与墙边距离应保持一致,一般纵横每五块面料设置一度控制线)。
2、面块料铺贴
(1)、根据控制线先铺贴好左右靠边基准行的块料,以后根据基准行由内向外挂线逐行铺贴。
(2)、用水泥膏(约2~3mm 厚)满涂块料背面,对准挂线及缝子,将块料铺贴上,用小木锤着力敲击至平正。
(3)、挤出的的水泥膏及时清干净(缝子比砖面凹1mm 为宜)。
3、灌缝:
待粘贴水泥膏凝固后,用白水泥、颜料(色泽根据面料颜色调配)填平缝(过大缝要拌细砂填灌),用锯未(木糠)、棉丝将表面擦干净至不留残灰为止。
1、抹灰装修工程施工时,室内粗装修随砌体由下往上逐层施工,外墙装饰为一次由上往下施工完成。本次施工只要求内地面水泥砂浆找平,内墙和天棚只要求混合砂浆刮腻子,公用部分按设计装修,外墙也按设计装修。装修工程开始前,各分项工程先做样板,经公司质量控制部和监理单位验收通过后才能正式开始;
2、组织专业的施工班组,分别承担各分项装饰工程,实行定任务、定质量、定标准、定时间。分包到组,实行优质超产重奖,劣质重罚。保证质量,保证工期。
3、材料供应:订货前取样品交设计、甲方审定后方可进货,对易产主色差、规格差的材料的材料应选择同一厂家同一批产品。材料的垂直运输,室内外装修主要用井字架解决,塔吊辅助。水平运输以人工手推车在室内楼面上进行。
4、各层装修顺序为:
结构验收→天棚抹灰→墙面抹灰→门窗框安装→门窗框边填缝→门窗框边抹灰→楼地面找平层→楼地面面层→天棚、墙面刷浆→走廊吊顶安装→门窗扇安装→天棚、墙面最后一道刷浆
1、抹灰工程的砂浆等级应符合设计要求。
2、抹灰工程所用的砂浆配比,材料品种,应按设计要求选用。
3、抹灰砂浆的配合比和稠度等,应经检查合格后,方可使用,掺有水泥或石膏拌制的砂浆,应控制在初凝前用完。
4、砂浆中掺用外加剂时,其掺入量应由试验确定。
5、木结构与砖结构、混凝土结构等的相接处基本表面抹灰,内外墙应先铺钉金属网,并绷紧牢固,金属网与各基体的搭接宽度不应小于70mm。
混凝土面应先甩浆做结合层。
6、室内墙面、柱面和门洞的阳角,宜用1:2.5 水泥砂浆做护角,其高度不应低于1.8m,每侧宽度不小于50mm 。
7、外墙抹灰工程施工前,应安装好门窗。阳台栏杆和预埋铁件等,并将墙上的施工孔用膨胀砂浆堵塞密实。
8、外墙窗台、窗眉、雨篷、阳台,压顶和突出腰线等,上面应做流水坡度,下面应做滴水线或滴水槽,滴水槽的深度和宽度均不应小于10mm,并整齐一致。
9、水泥砂浆的抹灰层应在湿润的条件下养护。
10、大面积的石膏抹面应事先经试验室试验后,得出既保证质量又便于操作的稠度及凝结时间才能施工。
11、一般抹灰按质量要求分为普通、中级和高级三级。我公司按高级抹灰施工:阴阳角找方,设置标筋,分层赶平。修整,表面压光。
12、厨厕、浴室天面等凡有坡水需要的地面抹灰应做成倾向出水口的坡水坡度。
13、凡面层灰浆要压光的,最后一次压光,应在灰浆初凝后(即经过铁抹子压磨而灰浆表层不会变成糊状)及时进行。
14、为了防止雨水溅射使污垢散播在外墙面,因此,外墙完成抹灰工序后应拆去外平桥板,或将平桥部位的墙面加以遮护。
15、抹灰用砂宜用中砂,使用前应过筛,不宜采用特细砂。
16、抹灰用石灰膏,用块状生石灰淋制,淋制时必须用孔径不大于3mm×3mm 的筛过筛,并贮存在沉淀池中。熟化时间:常温下一般不少于15 天。
用于罩面时,不应少于30 天。使用时,石灰膏内不得含有未熟化的颗粒和其他杂质。
17、施工前,应预先做样板,并经有关单位认可后,方可进行。
(二)、墙面抹水泥砂浆
1、基层处理:吊直、套方、灰饼、墙面冲筋。抹底层灰和中层灰等工序的做法与墙面抹纸筋灰浆时基本相同,但底灰和中层灰用1:2.5 水泥砂浆涂抹,施工前湿润墙面,并用木抹子搓平带毛面,在砂浆凝固之前,表面用扫帚扫毛。
2、抹水泥砂浆面层:中层砂浆抹好后第二天,用1:2.5 水泥砂浆或按计要求的水泥混合砂浆抹面层,厚度5~8mm。操作时先将墙面湿润,然后用砂浆薄刮一道使其与中层灰粘牢,紧跟着抹第二遍,达到要求的厚度,用压尺刮平找直后,用铁抹子压实压光。
(三)、顶棚抹灰
1、基层处理:对板底清理干净,并用钢丝刷满刷一遍后浇水湿润。再用1:1:1 水泥聚合物砂浆(水泥:107 胶:细砂),喷洒或用毛刷(横扫)将砂浆甩到基面上。甩点要均匀,终凝后再浇水养护,直至水泥砂浆疙瘩有较高的强度,用手掰不动为止。
2、根据墙柱上弹出的水平墨线,用粉线在四周墙面上(顶板下100mm)弹出一条水平线,作为顶板抹灰的水平控制线。对于面积较大的楼盖顶棚或质量要求较高的顶棚,宜通线设置灰饼。
3、抹底灰:在顶板混凝土湿润的情况下,先刷素水泥浆一道,随刷随打底,打底采用1:1:6 水泥混合砂浆。对顶板凹度较大的部位,先大致找平并压实,待其干后,再抹大面底层灰,其厚度每遍不宜超过8mm,操作时需用力抹压,然后用压尺刮抹顺平,再用抹子抹平,要求平整稍毛,不必光滑,但不得过于粗糙,不许有凹陷深痕。
4、抹罩面灰:待底灰约六、七成干时,即可抹面层纸筋灰。如停歇时间长,底层过分干燥则应用水润湿。涂抹时先分两遍抹平,压实,其厚度不应大于2mm,待面层经过铁抹子抹面,灰浆表面不会变为糊状时要及时压光,不得有抹痕、气泡、接缝不平等现象。天棚与墙边或梁边相交的阴角应成一条水平直线,梁端与墙面梁边丁交处应成垂直线。
(四)、质量标准
1、保证项目
(1)、所用材料品种。质量必须符合设计要求和现行材料标准的规定。
(2)、各抹灰层之间及抹灰层与基体之间必须粘结牢固,无脱层,空鼓,面层无爆灰和裂缝等缺陷(空鼓而不裂的面积不大于200cm2 者可不计)。
2、基本项目
(1).一般抹灰层表面应符合下列规定:
合格:表面光滑、洁净,颜色均匀,线角和灰线平直方正。
优良:表面光滑、洁净,颜色均匀,线角和灰线平直方正,清晰美观。
(2)、孔洞、槽、盒和管道后面的抹灰表面应符合以下规定。
合格:尺寸正确,边缘整齐、管道后面平顺。
优良:尺寸正确、边缘整齐、光滑;管道后面平整。
(3)、护角和门窗框与墙体间缝隙的填塞质量应符合以下规定:
合格:护角材料、高度符合施工规范规定;门窗框与墙体间缝隙填塞密实。
优良:护角符合施工规范规定、表面光滑平顺;门窗框与墙体间缝隙填塞密实,表面平整。
(4)、分格条(缝)的质量应符合以下规定:
合格:宽度、深度基本均匀,楞角整齐,横平竖直。
优良:宽度、深度均匀,平整光滑,楞角整齐。横平竖直、通顺。
(5)、滴水线和滴水槽的质量应符合以下规定:
合格:滴水线顺直;滴水槽深度、宽度均不少于10mm。
优良:流水坡向正确;滴水线顺直;滴水槽深度、宽度均不少于10mm,整齐一致。
3、允许偏差:
一般抹灰的允许偏差和检验方法应符合验收规范的规定。
对已按备料计划进入施工现场的各种饰面材料,必须进行外观与内在质量的验收。验收的原则是:对已到场的饰面材料进行数量清点核对。按设计与各方选定的样品进行外观对比检查,其内容:
(1)、先应检查大宗材料与选定样品的图案、花色、颜色是否相符,有无色差。
(2)、检查各种饰面材的规格是否符合材料标准所规定的尺寸和公差要求。
(3)、检查各种饰面材料是否有表面缺陷、破损情况
2、按照设计与产品选定的样品进行内在质量的检查,其要点:
(1)、检查吸水率是否符合规范要求。
(2)、检查耐骤冷骤热是否符合设计要求。
(3)、检查耐酸碱性能。
以上检查应该强调的是;必须开箱进行全数检查,不得抽样或部分检查,防以劣充忧。因为外墙装饰贴面,如果有一块不合格,则会破坏整个装饰的美观与协调。
饰面工种主要机具:砂浆搅拌机、混凝土搅拌机、铁抹子(铁板)木抹子、阴阳角抹子、托灰板。木刮尺(分长2500~3500m, 2000~2500mm,1500 mm 三种)、方尺、托线板、小铁锤、钢錾、木锤、垫板、开刀、墨斗、水平尺、小线、线锤等。有条件时尚应准备基层抹灰用的电动刮尺。
切割、打孔机具:常用的有电动切割机(即面砖及板切割机),手动切割机,手电钻,自制砂轮台式切割机,冲击手电钻(即电锤)与冲击钻头,型材切割机,电动快速磨石机和电热切割器等。
l、施工单位会同建设单位、监理单位、设计单位、质量监督部门对主体结构进行中间验收,并认可同意隐蔽。饰面施工的上层楼板或屋面,应已完工不漏。全部饰面材料按计划数量完成验收入库。
2、找平层拉线贴灰饼和冲筋己作完,大面积底糙完成,基层经自检、互检,交接检,墙面平整度,垂直度合格。
3、突出基体表面之钢筋头,钢筋混凝土垫头,梁头已剔平,脚手洞眼己封堵完毕。
4、水暖管道经检查无漏敷,试压完成(应绝对合格)。墙洞封闭;电管埋设完;壁上灯具支架作完;预埋件无遗漏。
5、门窗框及其它木制、钢制、铝合金埋件按正确位置预埋完毕,标高符合设计。配电嵌柜等嵌入件已嵌入指定位置,周边用水泥砂浆嵌固完毕。
扶手栏杆装好。
在上述准备工作完成后,方可进入贴面施工。
镶贴饰面层都需要找平层。找平层的优劣,是保证饰面层壤贴质量的关键,然而基层处理又是做好找平层的前提。
1、基层处理
1)、混凝土表面处理
当基体为混凝土时,先剔凿混凝土基体上凸出部分,使基体保持平整,毛糙。然后用火碱水或市售“洗洁精”类洗涤剂,配以钢丝刷将表面上会着的脱模剂、油污等清除干净,最后用清水刷净。基体表面如有凹入部位,则需用1:3 水泥砂浆补平。如为不同材料的结合部位,例如填充墙与混凝土的结合处,还应压盖200 mm 钢板网,用射钉按每米不少于十颗射钉子弹固定接缝。为防止混凝土表面与抹灰层结合不牢,发生空鼓,并采用30%的107 胶加70%水拌合的水泥素浆,满涂基体一道,以增加结合层的附着力。
2)、混凝土空心砌块表面处理
砌块内墙应在基体清净后,先刷107 胶水溶液一道,为保证块料镶贴牢固,应满钉直径0.7 mm、孔径32* 32 mm 的机制镀锌铁丝网一道。钉子用 F6“U”形钉@≤600m m 钉一个,梅花形布置。
3)、砖墙表面处理
当基体为砖砌体时,应用钢塑了剔除砖墙面多余灰浆,然后用钢丝刷清除浮上,并用清水将墙体充分湿水,使润湿深度约 2~3mm。当基体表面处理同时,需挡线、内隔板,阳台阴角以及给排水穿墙洞眼应封堵严实,脚手眼亦应填塞严密,尤其光滑的混凝土面,须用钢尖或扁錾凿坑处理,使表面粗糙。打点凿毛应注意,一是受凿面积应≥70%(即每 1m2 面积打点 200 个),绝不能象征性的打坑。 二是凿点后,应清理凿占面,由于凿井中必然产生凿点高部松动,必须用钢丝刷清刷一道,并用清水冲洗干净,防止产生隔离层。
2、找平层施工
1)、贴饼、冲筋
外墙面作找平层时,应在房屋小角用经纬仪和线锤,按找平层厚度,从顶到底测定垂直线,沿垂线做标志,贴灰饼。垂直线应一次吊线,严禁两次吊线。外柱到顶的外墙,每个外柱边角必须吊线(即柱面双线),做双灰饼,然后再根据垂直线拉横向通线,沿通线每隔1200~1500m:做灰饼:
同时应在门窗或阳台等处拉横向通线,找出垂直方正后,贴好灰饼。应特别注意各层楼的阳台和窗口的水平向、竖向和进出方向必须“三向”成线。
连通灰饼进行冲筋,作为找平层砂浆平整度和垂直度的标准。对于外墙面局部镶贴饰面砖时,应对相同水平部分拉通线,对相同的垂直面吊线锤,进行贴灰讲、冲筋。内墙面应在四角吊垂线、拉通线,确定抹灰厚度后贴灰饼、连通灰饼(竖向,水平向)进行冲筋,作为内墙找平层砂浆垂直度和平整度的标准。
2)、抹底层砂浆
(1)、材料用1:3 水泥砂浆混合砂浆。严格控制找平层砂浆 的稠度。
(2)、湿水基层抹灰必须充分润湿基体,严禁在干燥的混凝土或砖墙上抹砂浆找平层。因为干燥的墙面,尤其当混凝土或砖砌体表 面温度较高时,紧贴基体的砂浆,很快被基体吸干水分,使贴靠基体的砂浆失水,形成抹灰层与基体的隔离层,即“干浆层”。此层水化极不充分,无强度,而引起基层抹灰脱壳和出现裂缝而影响质量。
(3)、基层抹灰(即找平层抹灰)基层抹灰的质量,要控制好垂直及平整度,应分层抹灰,每一层厚度≤7 mm。局部加厚部位应加挂钢丝网。
抹灰时应快抹快找平,不得反复揉压,造成人为空鼓。
(4)、为克服混凝土基层抹灰易于空鼓,可在抹灰前在基体表面刷界面胶粘剂。如YJ-302 和改性环氧树脂EE-1、EE-2、EE-3。
(5)、抹外墙面的找平层时,注意墙面的窗台,腰线、阳角及滴水线等部位饰面层镶贴排砖方法和换算关系,正面砖要往下突3mm 左右,底面砖要做出流水坡度。
(6)、此外还应对照建筑图尺寸核对结构实际偏差情况,决定找平层厚度及排砖楼数。具体操作可采用甩浆处理。即在甩装前将墙面充分润湿,清除油污,然后用适当稠度之水泥素浆用茅草扫帚沾浆用力将装甩至混凝土墙面,使之形成不规则的糙面,并浇水养护3~7d。
(7)、在找平层完成后,应洒水养护3~7d。
3、抹中层砂浆
找平层抹灰完成后,在铺镶块料的头一天,再用1:2 水泥砂浆或1: 1:4水泥石灰砂浆批满。中层砂浆为精找平,厚≤5mm,以解决基层抹灰找平回缩产生的不平,保证找平层“绝对”平整。其操作应随手带平。
1、涂料工程使用的腻子,应坚实牢固,不得粉化、起皮和裂纹。腻子干燥后,应打磨平整、光滑,并清理干净。要按基层、底涂料和面涂料的性能配套使用。
2、室外需使用涂料时,应使用具有耐水性能的腻子(由业主确定)。
3、涂料的工作粘度或稠度,必须加以控制,使其在涂料施涂时不流坠、不显刷纹。施涂过程中不得任意稀释。
4、双组分或多组分涂料在施涂前,应按产品说明规定的配合比,根据使用情况分批混合,并在规定的时间内用完。所有涂料在施涂前和施涂过程中,均应充分搅拌。
5、施涂溶剂型涂料时,后一遍涂料必须在前一遍涂料干燥后进行;施涂水性和乳液涂料时,后遍溶剂型涂料时,后一遍涂料必须在前一遍涂表面干后进行。每一遍涂料应施涂均匀,各层必须结合牢固。
6、采用机械喷涂料时,应将不喷涂的部位遮盖,以防沾污。
7、外墙涂料工程分段进行时,应以分格缝。墙的阴角处或水落管等为分界线。
8、外墙涂料工程,同一墙面应用同一批号的涂料,每遍涂料不宜施涂过厚,涂层应均匀,颜色一致。
9、在强烈日光直接照射下,不得进行施涂涂料。
10、涂料施涂工具使用完毕后,应及时清洗或浸泡在相应的溶剂中。
2.12 厚1:1:4 水泥石灰砂浆
3.8 厚1:0.8:3 水泥石灰砂浆
4.满刮腻子二道,打磨平整
5.白色乳胶漆,至少二遍
(二)、作业条件要求:表面应基本干燥,基层含水率不大于8%;
窗安装完毕,地面施工完毕;墙管道、洞口等已抹灰找平;环境温度保持在20ºC 以上;
(三)在大面积施工前已做好样板间并经鉴定合格。
清现基层——填补缝隙、局部刮腻子、磨平——第一遍满刮腻子——磨平——第二遍满刮腻子、磨平——第一遍涂料——复补腻子、磨平——第二遍涂料、磨光——第三遍涂料
1、基层清理:将墙、柱表面起皮及松动的灰渣清理干净。
2、修基层表面:先用三倍水稀释后的107 胶水涂刷一遍。然后用水石膏将基层表面的坑洞、缝隙补平,干燥后用砂纸将凸出处磨掉,将浮尘扫净。
3、腻子:一般为两遍,腻子以纤维素溶液、福粉,加少量 107 胶,光油和石膏粉拌合而成。第一遍用抹灰钢灰匙横向满刮,一刮板紧接着一刮板,接头不得留槎,要求刮灰平顺干净。待干燥后用砂纸将浮腻子及斑迹磨平磨光,再将墙、柱、顶棚表面清扫干净,第二遍用抹灰钢光匙竖向满刮,所用材料及方法同第一遍腻子,干燥后用砂纸磨平并扫干净。
4、刷第一遍乳胶漆:乳胶漆在使用前应用扫笔搅拌均匀,适当加水稀释,防止头遍漆刷不开。涂刷顺序是先刷顶板后刷墙柱面,整个顺序为先上后下。由于乳胶漆漆膜干燥较快,因此应连续迅速操作。涂刷时,从一头开始,逐渐向另一头推进,要上下顺刷,互相衔接,避免出现干燥后接头。待第一遍乳胶漆干燥后复补腻子,腻子干燥后用砂纸磨光,扫净。
5、刷第二遍乳胶漆:第二遍乳胶漆操作要求与第一遍相同。使用前要充分搅拌,如果很稠,宜加水或少加水,以防露底。干燥后用砂纸磨手打光、扫净。
6、刷第三遍乳胶漆。
1、刷纹明显:乳胶漆使用前一定要撑拌均匀,保证调度要适中,扫笔蘸漆量要适当,为防止刷纹过应大多理多顺。刷分色线时,施工前认真划好粉线,用力均匀,起落要轻,排笔蘸漆量要适当,从上至下或从左至右刷。
2、接槎明显:徐刷时要上下顺刷,后一排笔紧接前一排笔,若间隔时间稍长,就容易看出接头,因此大面积涂刷时,应配足人员,互相衔接。
3、透底:主要原因是涂层不够厚,因此在保证不漏刷外,还应保持乳胶漆的稠度,不可随意加水过多。
4、涂刷带颜色的乳胶漆时,应使用厂家已配好的乳胶漆,保证独立面或每一房间每遍用同一批涂料,并且一次用完,保证颜色一致。
由生产厂家供应木门框,木材含水率不得超过12%,进场时应核对型号。
尺寸、数量、木类。加工质量和出厂合格证。
2、作业条件:
(1)、结构工程已完成并经验收完毕,且质量符合标准要求,室内水平线己弹好。
(2)、门框、扇在安装前应检查无窜角、翘扭、弯曲、劈裂、崩缺、榫槽间结合处无松离,如有上述情况要进行修理。
(3)、门框进场后,组织涂料工将框靠墙的一面涂刷防腐涂料,刷油后分类码放平整,底层应垫平,垫高,露天堆放的应用塑料布遮盖好。
(4).门框安装应在砌墙前或室内、外抹灰前进行;门扇安装应在饰面完成后进行。
(1)、安装时应按设计图纸要求的水平标高和平面位置,按其开启方向,对应编码安放,用通线线锤作水平和吊直校正,然后用拉条与邻近固定物连接牢靠。
(2)、砌墙前安框,应按设计要求在边框预留木砖。
(3)、因受条件限制及其他原因留框洞时:
A、在砌体中预埋木砖,每边固定点应不少于三处,其间距不大于0.8~0.9m。用木楔墙一面,与砌体面贴紧,用木楔将框临时固定在门洞内后,用射钉或钢钉钉牢。
B、在砌体不留木砖时,用宽30mm,长80mm,厚1.5~2mm 直脚铁,先钉固框靠墙一面,与砌体面贴紧,用木楔将框临时固定在门洞内后,用射钉枪或钢钉钉牢。
C、安装时应考虑抹灰层厚度,立框时与抹灰外皮平。
1、铝合金门窗的品种、规格、开启形式符合设计及业主要求,采用质量标准不低于国标标准,各种附件配套齐全,玻璃采用中空(夹胶)玻璃,并具有产品出厂合格证。
2、防腐材料,填缝材料、密封材料、保护材料、清洁材料等符合设计要求和有关标准的规定。
1、门窗洞口已按设计要求施工完毕,并己画好门窗安装位置墨线。
2、检查门窗洞口尺寸是否符合设计要求,如有预埋件的门窗洞口还应检查预埋件的数量、位置及埋没方法是否符合设计要求,如有影响门窗安装的问题及时进行处理。
3、检查铝合金门窗,如有表面损伤、变形及松动等问题,及时进行修整、校正等处理,合格后才能进行安装。
门窗框四周侧面防腐处理如设计有要求时,按设计要求执行。如设计无专门要求时,在门窗框四周侧面涂刷防腐沥青漆。连接铁件、固定件等安装用金属零件,除不锈钢外,均应进行防腐蚀处理。
2、就位和临时固定
根据门窗安装位置墨线,将铝合金门窗安装就位,将木楔塞人门窗框与四周墙体间的安装缝隙,调整好门窗框的水平、垂直、对角线长度等位置及形状偏差符合检评标准,用木楔或其他器具临时固定。
3、门窗框与墙体的连接固定
连接铁件与预埋件焊接固定:适用于钢筋混凝土和砖墙结构。连接铁件用紧固件固定
1)、射钉:用于钢筋混凝土结构。
2)、特种钢钉(水泥钉):用于低标号混凝土和砖墙结构。
3)、金属膨胀锚螺栓:用于混凝土结构。
4)、塑料胀锚螺栓:用于混凝土和砖墙结构。
5)、铁脚至窗角的距离不大于 180mm,铁脚间距按设计要求或间距不大于600mm。
4、门窗框与墙体安装缝隙的密封
1)、铝合金门窗安装固定后,先进行隐蔽工程验收,检查合格后再进行门窗框与墙体安装缝隙的密封处理。
2)、门窗框与墙体安装缝隙的处理,填塞水泥砂浆,如外侧留有密封槽口,填胶防水密封胶。
3)、安装五金配件齐全,并保证其使用灵活。
5、安装门窗扇及门窗玻璃
1)、门窗扇及门窗玻璃的安装在洞口墙体表面装饰工程完工后进行。
2)、地弹簧门在门框及地弹簧主机安装固定好之后安装门窗,先将玻璃嵌入门扇构架并一起入框就位,调整好框扇缝隙,最后再将门扇上的玻璃填嵌密封胶。
3)、平开门窗一般在框与扇构架组装上墙,安装固定好之后安装玻 璃,先调整好框与扇的缝隙,再将玻璃入扇调整,最后镶嵌密封 条和填嵌密封胶。
4)、推拉门窗在门窗框安装固定好之后将配好玻璃的门窗扇整体安装,即将玻璃门扇镶装密封完毕,再入框安装,调整好框与扇的缝隙。
1)、铝合金门窗及其附件质量必须符合设计要求和有关标准的规定。
2)、铝合金门窗的开启方向、安装位置必须符合设计要求。
3)、门窗安装必须牢固,防腐处理和预埋件的数量、位置、埋设连接方法等必须符合设计要求,框与墙体安装缝隙填嵌饱满密实,表面平整光滑无裂缝,填塞材料及方法符合设计要求。并办理隐蔽记录。
2、基本项目
1)、门窗附件齐全安装牢固,位置正确,灵活适用,达到各自的功能,端正美观。
2)、门窗扇开启灵活,关闭严密,定位准确,扇与框指接量符合设计要求。
3)、门窗安装后表面洁净,无明显划痕、碰伤及锈蚀。密封胶表面平整光滑,厚度均匀。
4)、弹簧门扇自动定位准确,开启角度为90罕15º 。关闭时间在6~10 s 范围之内。
(一)、种植屋面
1、种植土
2、40 厚C30 细石混凝土内配双向Φ4@150 内加纤维,减水剂
3、1.5 厚合成高分子防水卷材
4、20 厚1:3 水泥砂浆找平层, 上刷基层处理剂一道
5、1:8 水泥珍珠岩找坡2%最薄处20 厚
6、3 厚高聚物改性沥青防水卷材隔汽层,高出保温层150mm
7、20 厚1:3 水泥砂浆找平
8、钢筋混凝土
(二)上人屋面
种植屋面中种植土改为5 厚聚合物水泥砂浆铺贴浅色地砖
二、施工材料及工具
配套材料有基层处理剂及胶粘剂,工业汽油。
机具名称 | 规格 | 数量 | 用途 |
高压吹风机 | 300W | 一个 | 清理基层 |
电动搅拌机 | 300W | 一台 | 搅拌胶粘剂 |
滚动刷 | 60*250mm | 4 把 | 涂布胶粘剂 |
剪刀 |
| 3 把 | 剪裁油毡 |
钢卷尺 | 2m | 3 把 | 度量尺寸 |
二、施工要点
1、清除基层表面的砂浆、碎砖片、尘土、松散混凝土等杂物,基层上的油渍应用5-10%浓度的火碱水溶液刷洗干净。
2、检查屋面平整度及坡度,测定标高尺寸,确定找平层厚度,并于四周女儿墙上距楼地面0.5 米高处弹好控制线。
3、按1.5m×1.5m 做出通长的冲筋,并注意找好坡度。
4、水泥砂浆应采用机械搅拌,搅拌不少于2min,要求拌合均匀,颜色一致,其稠度不应大于3.5cm。
5、水泥砂浆面层压光一定要严格控制在初凝到终凝之间。
6、水泥砂浆面层成活24 小时后,铺锯木屑浇水养护不少于7 天。
7、基层与突出层面结构的转角处,水泥砂浆粉刷均做成圆弧或钝角。
8、凡管道穿屋面时,屋面留洞孔位置须检查核时后再做防水材料,避免做防水材料后再凿洞。
9、防水材料施工时,必须遵照防水材料说明书上有关说明进行施工,施工时必须做到涂刷均匀,绝对不容许有“砂眼”存在,最小厚度不得小于2mm,以确保其防水效果良好。
10、屋面工程施工应注意的问题是:防水保护层的空鼓,保护层分割缝切割时切忌不能破坏防水层。
11、分割缝要求顺直,油膏密封到位。
三、施工方法
1、结构层
清除基层表面的砂浆、碎砖片、尘土、松散混凝土等杂物,基层上的油渍应用5-10%浓度的火碱水溶液刷洗干净。
2、找坡层
1)、用1:8 水泥陶粒找坡,施工前注意天气预报,避免在雨天施工,同时作好防雨、防水的预防措施。
2)、本工程部分屋面是建筑找坡,找坡层施工后,应检查屋面平整度及坡度,测定标高尺寸,确定找平层厚度,并于四周女儿墙上距楼地面0.5米高处弹好控制线。
3、找平层
1)、用10 厚1:3(体积比)水泥砂浆抹平压光,并要与基层粘接牢固,无松动、空鼓、凹坑、起砂、掉灰等现象。要求水泥标号不低于325 号,洒水养护。
2)、找平层表面应平整光滑,其平整度用2 米长直尺检查,最大空隙不应超过5mm,空隙仅允许平缓变化。凹坑处用水泥:砂:107 胶=1:2.5~3:0.15 砂浆顺平。
3)、基层与突出屋面的结构相连接的阴角,要抹成均匀一致和平整圆滑的小圆角,与水落口等连接处的转角,应抹成光滑的圆弧形,其半径一般在100~150mm 之间。
4)、水泥砂浆应采用机械搅拌,搅拌不少于2min,要求拌合均匀,颜色一致,其稠度不应大于3.5CM。
5)、水泥砂浆必须按设计要求挂线或做标志找准坡度,水泥砂浆面层压光一定要严格控制在初凝到终凝之间。
6)、水泥砂浆面层成活24 小时后,铺锯木屑浇水养护不少于7 天。
4、防水层
1)、待砂浆终凝后3~4 小时涂刷冷底子油,冷底子油涂刷要求薄而均匀,不得有漏刷、麻点和气泡现象。
2)、卷材防水层施工前必须对基层干燥度进行测试,测试时将1m2 防水卷材平坦的铺在找平层上,静置3~4h 后掀开检查,覆盖部位和卷材上未见水印即可施工。
3)、当屋面坡度小于3%时,卷材平行于屋脊铺贴,铺贴从屋面最低标高处的水落口开始,再从檐口贴至屋脊方向。
4)、卷材冷粘法应在基层与卷材底面涂刷胶粘剂,铺贴采用滚铺法或抬铺法。铺后立即用滚筒滚压,彻底排出卷材底部的空气,使卷材不皱折,不起鼓。
5)、铺第一幅卷材时,应在基层上弹好标线,铺第二幅应在已经铺好的卷材上弹标线。
6)、改性沥青卷材搭接宽度如下:
搭接方向 | 短边搭接宽度 | 长边搭接宽度 | ||
铺贴方法 | 满粘法 | 空铺法 点粘法 条粘法 | 满粘法 | 空铺法 点粘法 条粘法 |
改性沥青防水卷材 | 80 | 100 | 80 | 100 |
7)、采取每幅卷材周边密封法,即用密封材料在卷材与基层交接处先行密封。
8)、对铺贴好的卷材检查合格后,用棕刷把接缝处胶粘剂均匀涂刷在翻开的卷材接头的两个粘面上,然后粘合并同时用手持辊滚压。对卷材三层重叠处,必须逐层嵌填密封材料后压实。
9)、搭接后,由专人检查。
10)、凡管道穿屋面时,屋面留洞孔位置须检查核时后再做防水材料,避免做防水材料后再凿洞。
四、屋面穿管施工如下图(SJ.A 2/40)

1、穿过厕浴间楼板的所有立管、套管均已做完并经验收,管周围缝隙用1:2:4 豆石混凝土填塞密实(楼板底需支模板)。
2 、厕浴间地面垫层已做完,向地漏处找2%坡;厚度小于30mm 时用混合灰,大于30mm 厚用1:6 水泥焦渣垫层。
3 、厕浴间地面找平层已做完,表面应抹平压光,坚实平整,不起砂,含水率低于90%(简易检测方法:在基层表面上铺一块lin:橡胶板,静置3—4h,覆盖橡胶板部位无明显水印,即视为含水率达到要求)。
4、 找平层的泛水坡度应在2%以上,不得局部积水,与墙交接处及转角均要抹成小圆角。凡是靠墙的管根处均抹出5%坡度,避免此处存水如下图:

5、厨厕穿楼面防水如下图示:(SJ.A 4/59)
6、在基层做防水涂料之前,在以下部位用建筑密封膏封严。穿过楼板的立管四周、套管与立管交接处、大便器与立管接口处、地漏上口四周等。
7、厕浴间做防水之前必须设置足够的照明及通风设备。
8、易燃、有毒的防水材料要备有防火设施和工作服、软底鞋。
9、操作温度保持+5C 以上。
10、操作人员应经过专业培训、持上岗证,先做样板间,经检查验收合格后,方可全面施工。
1、清扫基层:用铲刀将粘在找平层上的灰皮除掉,用扫帚将尘土清扫干净,尤其是管根、地漏和排水口等部位要仔细清理。如有油污时,应用钢丝刷和砂纸刷掉,,表面必须平整,凹陷处要用l:3 水泥砂浆找平。
2、涂刷底胶:将聚氨酯甲、乙两组份和二甲苯按1:1.5:2 的比例(重量比)配合搅拌均匀,即可使用。用滚动刷或油漆刷蘸底胶均匀地涂刷在基层表面,不得过薄也不得过厚,涂刷量以0.2kg/m2 左右为宜。涂刷后应干燥4h 以上,才能进行下一工序的操作。
3、细部附加层:将聚氨酯涂膜防水材料按甲组份:乙组分=1.1.5 的比例混合搅拌均匀,用油漆刷蘸涂料在地漏、管道根,阴阳角和出水口等容易漏水的薄弱部位均匀涂刷,不得漏刷(的地面与墙角交接处,涂膜防水拐墙上做100mm 高)。
4、第一层涂膜:将聚氨酯甲、乙两组份和二甲苯按1:1.5:0.2 的比例(重量比)配合后,倒入拌料桶中,用电动搅拌器搅拌均匀(约5min),用橡胶刮板或油漆刷刮涂一层涂料,厚度要均匀一致,刮涂量以0.8~1.0kg/m2 为宜,从内往外退着操作。
5、第二层涂膜:第一层涂膜后,涂膜固化到不粘手时,按第一遍材料配比方法,进行第二遍涂膜操作,为使涂膜厚度均匀,涂刮方向必须与第一遍刮涂方向垂直,刮涂量与第一遍同。
6、第三层涂膜:第二层涂膜固化后,仍按前两遍的材料配比搅拌好涂膜材料,进行第三遍刮涂,刮涂量以0.4~O.5kg/m2 为宜,涂完之后未固化时,可在涂膜表面稀撒干净的Φ2~Φ3mm 粒径的石渣,以增加与水泥砂浆覆盖层的粘结力。
在操作过程中根据当天操作量配料,不得搅拌过多。如涂料粘度过大不便涂刮时,可加入少量二甲苯进行稀释;加入量不得大于乙料的10% 。
如甲、乙料混合后固化过快,影响施工时,可加入少许磷酸或苯磺酰氯化缓凝剂,加入量不得大于甲料的0.5%;如涂膜固化太慢,可加入少许二月桂酸二丁基锡作促凝剂;但加入量不得大于甲料的0.3%。
涂膜防水做完,经检查验收合格后可进行蓄水试验,24h 无渗漏可进行面层施工。
1、塑料给水管的施工、粘接工艺
a、用铁弓锯管;
b、去除管道的毛边、1/3 或45 度角;
c、测试管子插入管件的长度并划记号;
d、砂轮或砂布磨擦管道表面;
e、磨擦各接头的配合面;
f、用干净的抹布沾MEK 清洁磨光表面;
g、选择相配的ABS 粘合剂,并搅拌均匀;
h、用干净合适的毛刷刷粘合剂;
i、立刻将管子插入到位、定位10 秒到1 分钟;
j、除去多余粘合剂、放置24 小时后方可使用;
k、胶水用后盖紧粘合剂的盖子;
l、另外注意:
下雨或潮湿的环境下不能粘接;
不使用脏的或有油的抹布;
不同的粘合剂,不要使用同一把刷子,不在附近有明火的地方进行粘接施工,并严禁在施工时吸烟。
2、无缝铜管的安装
该工程给水管道采用无缝铜管,采用专用铜焊条进行施焊,管道切割,按设计图纸的标高长度可采用机械和火焊切割,切割后应清除表面氧化物和金属熔杂。管材切割时,考虑到切割打磨和焊接造成收缩,管道下料时应留1-2mm 余量,
切割后,每段切割料上应作标记移植,标明材质。切割后对未作标记的管材,没有经过鉴定,暂不能使用。
除使用成品弯头和自制弯头以外,需现场制作的弯头、三通等必须按图纸的尺寸进行制作。
管件制作程序
检查→实际测量→放样→样板制作→符合尺寸→碰头
管件制作要求
管件所用材料应与管道材质相同;
热煨弯管的曲率半径不小于3.5 倍管径;
冲压、焊接弯管的曲率半径不小于管径的1.5 倍;
煨弯管椭圆度不应大于8%。但焊接处必须整形;
冲压弯管椭圆度不大于3%。
管件安装要求
在水平管道上安装弯头时,其坡度应与管道坡度一致,弯头两端管子中心与相连的管道中心应在同一直线上;
干管上连接配件时,弯头连接端的中心线应通过干管圆心,其垂直度允许偏差每米不得超过2mm,三通的位置不得有横向焊缝;
对焊工的要求
a、所有焊工,必须经过考试合格,持焊工合格证上岗作业;
b、凡中断焊接工作六个月以上的焊工在正式复焊前,应重新参加焊工考试。
坡口用机械方法或采用火焊切割加工坡口,但必须用角向磨光机磨平,除去氧化渣,坡口角度达到焊接要求,焊前应对坡口内、外表面及两侧各25mm 进行清理,应用棉纱头和钢丝刷除去水、油污、飞溅和油漆。
坡口加工后作外观检查,不得发现有裂纹、夹渣等缺陷,清理和检查合格的坡口,应及时完成焊接工作,并做好记录。
坡口清理
管子、管件的坡口和尺寸,应符合设计及规范的要求。
对已加工好的坡口两侧15mm 边缘还应进一步作清洁工作,要把边缘的油、锈、水垢等杂物清除掉。
管道对口前操作,应先将场地清理平坦,铺设木方。
对口操作工艺流程为:检查管子对口接头尺寸→清扫管道→配管→确保纵向焊缝错开位置→第一次管道找直→找对口间隙尺寸→对口错口找平→第二次管道找直→点焊。
配管时,如管道变径有几种,应选择管壁厚一样的配件连接在一起。
两根管子对口的壁厚相差不得超过3mm。
对口的两纵向焊缝应错开,错开的环向距离不得小于100mm。管道安装时,纵向焊缝应放在管道受力弯矩最小,并易于检修的位置,一般放在管道上半圆中心垂直线左侧或右侧45 度处。
单面焊焊缝组对时,其内壁错边量还应满足:等壁厚对接焊接,应做到内壁齐平。内壁错边量要求为:
II 焊缝不应超过管壁的10%,且不大于1mm;
VI 焊缝不应超过管壁厚度的20%,且不大于2mm。
3)、室内排水管
室内排水管道采用铸铁排水管,水泥打口连接,
a、管道连接前,用麻刀将承口和插口内、外壁擦洗干净,先进行试插,检查承插长度和承插口之间的间隙,用记号笔作好承插长度,一般为管子公称直径的1—1.5 倍,可按下表采用,出、承插口之间的间隙应不大于0.3mm。将承、插口较正、调直后插入,并按记号笔划定的长度,在用铁钎将麻丝均匀打入,用水泥石棉粉在管口周围均匀填满。
b、接口外应擦拭干净,用水及麻布养护,并使接口在不受外力的状况下固化,为力增加强度,
承插长度(mm)
公称直径 | 25 | 32 | 40 | 50 | 65 | 80 | 100 | 125 | 150 | 200 |
承插长度 | 40 | 45 | 50 | 65 | 70 | 80 | 100 | 125 | 150 | 200 |
c、生活污水管道的坡度当图中未注明时按下表采用
生活污水管道的坡度
序号 | 管径 | 标准坡度 | 最小坡度 | 序号 | 管径 | 标准坡度 | 最小坡度 |
1 | DN50 | 0.035 | 0.025 | 4 | DN125 | 0.015 | 0.010 |
2 | DN75 | 0.025 | 0.015 | 5 | DN150 | 0.010 | 0.007 |
3 | DN100 | 0.020 | 0.012 | 6 | DN200 | 0.005 | 0.005 |
设有2 个以上的卫生用具,其明装水平管段的起点处应装带有检查门的管道或三通。
d、排水地漏的顶面应比净地面低0.01m,地面并应有不小于0.01 的坡度向地漏。
4)、焊接钢管连接
a、管道支架、吊架、防晃支架的安装
管道应牢固,管道支架或吊架之间的距离不应大于表中的规定。
管道支架或吊架之间的距离
公称直径(mm) | 25 | 32 | 40 | 50 | 70 | 80 | 100 | 125 | 150 | 200 | 250 | 300 |
距离(m) | 3.5 | 4 | 4.5 | 5 | 6 | 6 | 6.5 | 7 | 8 | 9.5 | 11 | 12 |
b、管道支架、吊架、防晃支架的形式、材质、加工尺寸及焊接质量等符合设计要求和国家现行有关标准的规定;
c、管道支架、吊架的安装位置不应妨碍建筑效果;管道支架、吊架与管高之间
d、配水支管上每一直管段、相邻之间的管段的设置的吊架不宜少于一个;可隔断设置吊架,但吊架的间距不宜大于3.6m;
e、当管子的公称直径等于或大于50mm 时,每段配水干管或配水管设置防晃支架不应少于一个;当管道改变方向时,应增设防晃支架;
f、竖直安装的配水干管应在其始端和终端设防晃支架或采用管卡固定,其安装位置距地面或楼面的距离宜为1.5—1.8m。
二、水泵安装
1)、准备工作:本工程采用3 台水泵,及19 台污水泵,对每台水泵进行验收。
a、开箱检查,请业主及有关部门检查水泵和电机有无损坏,产品合格证书和技术资料是否符和设计要求,零、配件是否齐全;
b、根据水泵的规格,地脚螺栓尺寸,制作现搅混凝土基础,地脚螺栓预留洞,尺寸应与说明书相符。
c、准备安装机具,手动葫芦,电钻等必用工具。
2)、水泵安装
a、在吊装水泵时,索具不允许吊在水泵和电机的螺栓孔或泵的轴承体,更不能在泵和电机的轴上,应挂在底座上。
b、起吊时应选吊装重心,应确保吊装设备的承载力,并防止泵体碰撞,特别应避免泵联轴器处加工配合面的损坏。
c、清理混凝土基础上的污物、油垢等杂物。
d、吊装水泵就位时,在地脚螺栓两侧用垫铁,找正找平后,进行二次灌浆。
e、待强度达到要求后,检查水泵底座水平度,再加减震器,合格后拧上地脚螺母。
f、先调整泵轴,找平找正后,适当上紧螺母,以防走动,待泵端调完后,再安装电机。
g、使泵和电机联轴器之间留有一定的间缝。
h、联轴器平面之间应保持一定的间缝。最好在几个相反的位置上用塞尺测量联轴器之间的间缝,一般为2MM。两联轴器端面间缝一周上最大和最小的间缝差值不得超过0.3MM。
i、泵安装后,进行管道安装,管端与泵连接处应有独立的固定支架,按要求装好各种配套设备。
j、泵在运转时,出水管内的水压大于进水管水压,停车时为瞬时水锤冲击力,使水泵产生向进水方向平移的可能。因此,对于较大型的水泵(扬程大于等于50M,口径大于等于500MM),对泵腿的测量在基础上应加装防移动机构(一般通用的是丝扛螺母机构)。
k、进、出水管、管件都应有独立的支吊架,以免使泵产生过大的承载力而位移、损坏。
l、检查电机的转向,应卸下联轴器的柱销,严禁在泵内无水时空转试车。
m、避免管道与泵强行连接,应在不受外力条件下对正联接接泵法兰和管路法兰。
n、泵的安装高度、管路的长度、直径、流速应符合设计要求。长距离输送时应取较大管径,应尽量减少管路的弯头和附件等不必要的局部阻力损失。泵的吸入管路应短而直,吸入管路直径应大于或等于泵的吸入口直径。泵的吸入管路的弯曲半径应尽量大。压力表不能装在弯管和阀门的旁边,以防不稳定流动的干扰。
o、水泵轴承温升最高不得大于80℃,轴承温度不得超过周围介质温度的40℃。
p、水泵的出水管上应安装压力表,并宜安装检查和试水用的放水阀门;
安装压力表和泄压阀。安装压力表时应加设缓冲装置。压力表和缓冲装置之间安装旋塞,吸水管上的控制阀应在水泵固定于基础上后进行安装,
2)、污水泵安装
污水泵安装在地下室的集水井内,对集水井必须清理干净,检查预留管是否符合要求,每台污水泵用角钢焊接机座,机座用膨胀螺栓固定在水池底,将水泵安装于机座上,保证水泵的底座与水底有15-20CM 的水。
三、卫生洁具安装
1)、开箱检查
卫生洁具的连接管煨弯应均匀一致,不得有凹凸等缺陷。
卫生器具支、托架的安装须平整、牢固与器具接触应紧密。
2)、蹲便器安装
a、检查侧墙、后墙、隔板及相互之间的尺寸要均匀一致。
b、将胶皮碗套在蹲便器进水口上,要套正,套实。用成品喉箍紧固(或用14#铜丝分别绑二道,但不允许压结在一条线上,铜丝拧紧要错位90 度左右)。
c、将预留排水管口周围清扫干净,把临时管堵取下,同时检查管内有无杂物。找出排水管上的中心线,并画在墙上。用水平尺(或线坠)找好竖线。
d、将下水管承口内抹上油灰,蹲便器位置下铺垫白灰膏,再将蹲便器排水口插入排水管承口内稳好。
e、用水平尺放在蹲便器上沿,纵横双向找平、找正。使蹲便器进水口对准墙上中心线。同时蹲便器二侧用砖砌好抹光,将蹲便器排水口与排水管承口接触处的油灰压实、抹光。
f、将蹲便器排水口临时堵封好。
g、稳装多联蹲便器时,应先检查排水管口标高,甩口距离尺寸是否一致。找出标准地面标高,向上测量好蹲便器需要的高度,用小线找平,找好墙面距离,然后按前面所述方法逐个进行稳装。
3)、洗脸盆安装
a、安装脸盆下水口:先将下水口根母、眼圈、胶垫卸下,将上垫垫好油灰后插入脸盆排水口孔内,下水口中的溢水口要对准脸盆排水口中的溢水口眼。外面加上垫好油灰的胶垫,套上眼圈,带上根母,再用自制扳手卡住排水口十字筋,用平口扳手上根母对松紧适度。
b、安装脸盆水嘴:先将水嘴根母、锁母卸下,在水嘴根部垫好胶垫,插入脸盆给水孔眼,下面再套上胶垫眼圈,带上根母后左手按住水嘴,右手用自制八字死扳手将锁母紧至松紧适度。
c、洗脸盆稳装:洗脸盆支架安装,应按照排水管口中心在墙上画出竖线,由地面向上取出规定的高度,画出水平线,根据盆宽在水平线上画了支架位置十字线按印记剔成Φ30*120mm 孔洞。将脸盆支架找平栽牢。再将脸盆置于支架上找平、找正。将专用螺栓上插到脸盆下面固定孔内,下端插入支架孔内,带上螺母拧紧至松紧适度。
d、洗脸盆排水管连接:S 型有水弯的连接,应在脸盆排水口丝扣下缠上聚四氟乙烯生料带,将存水弯立节拧在排水口上,松紧适度。再将存水弯下节的下端缠上油盘根绳插在排水管口内,将胶垫放在存水弯的连接处,把锁母用手拧紧后调直找正。再用扳手拧至松紧适度。用油灰将下水管口塞严,抹平。
e、脸盆给水管连接:首先量好尺寸,配好短管。装上八字水门。再将短管的一端丝扣缠上聚四氟乙烯生料带,拧在预留给水管口(如果是暗装管道,带护口盘,要先将护口盘套在短节上,管子上完后,将护口盘内填满油灰,向墙面找平、找正、按实,清理外溢油灰)至松紧适度。将铜管(或塑料管)煨好灯叉弯之后,按尺寸断好。将八字水门与水嘴上的锁母卸下,背靠背的套在铜管(或塑料管)上,垫好胶垫,分别插入水嘴根部和八字水门出水器中,然后分别拧好上、下锁母至松紧适度。找直、找正。
4)、小便器安装:首先对准给水管中心线画一条垂直线,由地平向上量出规定的高度画一水平线。根据产品规格尺寸,由中心向两侧量出固定孔眼的距离,在横线上画好十字线,地画出上、下孔眼的位置。将孔眼位置剔成Φ10*60mm 的孔眼栽入Φ6mm 的螺栓。托起小便器挂在螺栓上。把胶垫、眼圈套入螺栓,将螺母拧至松紧适度。把小便器找平、找正后,将小便器与墙面的缝隙嵌入白水泥浆补齐、抹光。
5)、淋浴器安装:
a、暗装管道将冷、热水预留管口加试管找平、找正。量好短管尺寸,断管、套丝,缠上聚四氟乙烯生料带将弯头上好。
b、淋浴器锁母外丝丝头处缠上生料带。用自制扳手卡住内筋,上入弯头或管箍内。
c、将淋浴器对准锁母外丝,将锁母拧紧。将固定盘上的孔眼找平、找正。
d、画出标记,卸下淋浴器,将印记剔成Φ10*40mm 的孔眼,栽好铅皮卷,再将锁母外丝口加垫抹油,将淋浴器对准锁母外丝口,用扳手拧至松紧适度。
e、再将固定盘与墙面靠严,孔眼平正,用木螺丝固定在墙上。
f、卫生洁具安装位置应准确。允许偏差:单独器具10mm;成排器具5mm。
g、安装应平直,垂直度的允许偏差不得超过3mm。
6)、地漏应安装在地面的最低处,其篦子顶部应低于地面5mm。
7)、卫生洁具给水配件安装:应符合《建筑给排水及采暖工程施工质量验收规范》GB50242—2002 的规定。见下表:
项次 | 卫生器具给水配件名称 | 给水配件中心 距面高度(mm) | 冷热水龙头距离(mm) |
1 | 架空式污水盆(池)水龙头 | 1000 |
|
2 | 落地式污水盆(池)水龙头 | 800 |
|
3 | 洗涤盆(池)水龙头 | 1000 | 150 |
4 | 洗手盆水龙头 | 1000 |
|
5 | 洗脸盆 |
|
|
水龙头(上配水) | 1000 | 150 | |
冷热水管上下并行其中热水龙 | 1100 |
| |
水龙头(下配水) | 800 | 150 | |
角阀(下配水) | 450 |
| |
6 | 浴盆水龙头(上配水) | 670 |
|
| 冷热水管上下并行其中热水龙 | 770 |
|
7 | 淋浴器 | 2.2 |
|
| 截止阀 | 1150 | 95(成品) |
| 莲蓬头下沿 | 2100 |
|
8 | 蹲式大便器(从台阶面算起) |
|
|
| 高水箱胸阀及截止阀 | 2040 |
|
| 低水箱角阀 | 250 |
|
| 手动式自闭冲洗阀 | 600 |
|
| 高水箱角阀及截止阀 | 2040 |
|
| 低水箱角阀 | 250 |
|
10 | 立式小便器角阀 | 1130 |
|
11 | 挂式小便器角阀及截止阀 | 1050 |
|
12 | 实验室化验龙头 | 1000 |
|
8)、卫生器具的排水管管径的最小坡度,如设计无要求,应符合《建筑给排水及采暖工程施工质量验收规范》GB50242—2002 的规定。
项次 | 卫生器具名称 | 排水管管径(mm) | 管道的最小坡度 |
1 | 污水盆(池) | 50 | 0.025 |
2 | 单双格洗涤盆(池) | 50 | 0.025 |
3 | 洗手盆、洗脸盆 | 32~50 | 0.020 |
4 | 淋浴器 | 50 | 0.020 |
5 | 大便器 |
|
|
高低水箱 | 100 | 0.012 | |
自闭式冲洗阀 | 100 | 0.012 | |
拉管式冲洗阀 | 100 | 0.012 | |
6 | 小便器 |
|
|
手动冲洗阀 | 40~50 | 0.020 | |
自动冲洗水箱 | 40~50 | 0.020 |
9)、卫生洁具安装高度如设计无要求,应符合《建筑给水排水及采暖工程施工质量验收规范》GB50242-2002 的规定。
项次 | 卫生器个名称 | 卫生器具安装高度(mm) 居住和公共建筑 | 备注 | |
1 | 污水盆 | 架空式 | 800 |
|
(池) | 落进式 | 500 |
| |
2 | 洗涤盆(池) | 800 | 自地面至器具上边缘 | |
项次 | 卫生器个名称 | 卫生器具安装高度(mm) 居住和公共建筑 | 备注 | |
3 | 洗脸盆和洗手盆 (有塞、无塞) | 800 | ||
4 | 蹲式大便器 | 高水箱低水箱 | 1800 900 | 自台阶面至高水箱底自台阶面至低水箱底 |
5 | 小便器 | 立式挂式 | 1000 600 | 自地面至上边缘自地面至下边缘 |
四、管道试压
a.热水管试验压力,应为1.0Mpa。
b.管道水压试验应符合下列规定:
c.水压试验之前,管道应固定,接头须明露;
d.管道注满水后,先排出管道内空气,进行水密性检查;
e.加压宜用手动泵,升压时间不小于10min,测定仪器的压力精度应为0.01Mpa;
f.至规定试验压力,测试10min 压力降不得超过0.06Mpa;
g.以上试压合格后,将系统压力除至工作压力,同时检查各个连接处及管道,不得有渗漏。
h.直埋在地坪面层和墙体内的管道,试压工作必须在面层浇捣或封堵前进行,达到试压要求后,土建方能继续施工。
五、管道检验与验收
1、灌水试验记录:
室内排水(污水)管道灌水试验:
注水高度,以一层楼高度为标准(如条件不具备可以以首层下排水水平干管至首层地面高度为准),满水15 分钟地灌满延续5 分钟,液面不下降,不渗漏为合格。有保温的排水管道应在保温前做闭水试验。竖井的排水管道可分层进行灌水试验。
室内雨水管道灌水试验:
雨水管道未经灌水试验不得隐蔽,灌水试验由屋顶(或最上部)雨水漏斗至立管根 部排出口,满水15 分钟,再灌满延续5 分钟,液面不下降不渗漏为合格,每根立管均分别做灌水试验,分别填表。
2、管道嵌装施工结束后,应进行二次试压,二次试压合格后,方可进行土建粉刷。
3、管道二次试压合格后,应先将系统端部配水口的管件固定。在复核标高后,用M10 水泥沙浆窝嵌牢固,管口用堵头进行封堵。
4、土建嵌槽应采用M10 水泥砂浆,分两次进行,第一次窝嵌应超过管中心,待初硬后,第二次再窝到与墙面相平。土建窝嵌时,砂浆应密实饱满,且不得使管道移动或走动。
5、管道系统应根据工程性质和特点进行中间验收和竣工验收,中间验收应由施工单位会同工程监理单位进行,竣工验收应由建设单位负责全面验收或委托工程监理单位进行。必要时,请设计单位进行联合验收,中间验收,竣工验收前施工单位应进行自检。
6、暗装、嵌装管道在隐蔽之前,整个系统安装结束应进行严格的水压试验。
7、给水系统水压试验应按下列要求:

8、暗装、嵌装管道安装符合规定后,应进行二次水压试验。
9、试验压力为1.0Mpa。
10、水压试验之前对试压管道应采取安全有效的固定保护措施,但供试验的接头部位应明露。
11、水压试验合格并作好记录后,方可进行土建工序施工。
12、水压试验应按以下步骤进行:
a、将试压管段各配水点封堵,缓慢注水,注水过程中同时将管内空气排出。
b、管道系统充满水后,进行水密封性检查。
c、对系统加压,加压宜采用手动泵缓慢升压,升压时间不应小于10min。
d、升压至规定的试验压力后,停止加压,观察接头部位有无漏水现象。
e、10min 内压力降不超过0.05Mpa 为合格。
f、以上第一次试压合格后,系统压力除至工作压力0.6Mpa,管道及接口无渗漏现象为合格。
g、管道系统试压后,发现渗漏水或压力下降超过规定值时,应检查管路系统,即使进行排除。故障排除后,再按以上规定进行重新试压,直到符合要求。
h、管道试压合格后,将管道系统内存水放空,进行管路消毒,消毒时应灌注含20—30mg/L 有效氯的溶液,静置消毒不得小于24h,消毒结束,放空管道内消毒液,再用生活饮用水冲洗管道,使其水质符合现行《生活饮用水卫生标准》后,方可交付使用。
六、保温前的准备工作
1、保温前应对保温材料进行检查,保温厚度应为25 ㎜的橡塑,材质、密度必须严格按照设计要求选用。
2、保温材料应具备出厂合格证、质量鉴定文件以及消防报批手续,杜绝采用无证材料。有部分聚乙烯达不到难燃级,所以采购过程中要严格检查消防报批手续。
操作工艺说明
(1)、管道保温应在管道压力试验合格且按设计要求对管道表面清理后进行。保温材料下料要准确,切割面要平齐,在裁料时要使水平、垂直搭接处以短面两头顶在大面上。
(2)、开始保温前,先对已安装管道进行清理,保证管道上无污秽后,再涂刷粘结剂,保温粘接剂必须是合格材料,为保证粘接牢固,粘接的位置必须除油污处理,将粘接剂分别涂在管壁的粘接面上,稍后再将其粘上。
按实际工作量领取适量的材料,然后将保温材料敷上管道,对接缝进行处理,保证无遗漏、无开裂。
(3)、在直线段上,每隔5~7 米应留1 条膨胀缝,间隔为5 ㎜。在弯管处,应留1 条膨胀缝,间隔为20~30 ㎜。膨胀缝用柔性保温材料(石棉绳或玻璃棉)填充。
(4)、保温板材加工后的内径应与保温管的外径相一致,且大于管或小于管的规格管壳都不能用,如果处理不好会进入空气,影响保温效果。
(5)、保温层的端部和管的收头处必须作封闭处理。管口粘贴牢固,无断裂,表面平滑一致。
(6)、搭接宽度符合施工规范规定,封闭良好,无裂缝,搭接缝口朝向低端,搭接顺水流方向,宽度适宜,接口平整,固定牢固,搭接宽度均匀一致,外形美观。
(7)、穿墙、穿楼板处管道必须作保护管,保温管与该管道间的间隙不少于60 毫米,且作保温处理。
(8)、在保温搭接处或适当位置缠胶带,缠绕时应使其相互搭接。保温材料铺覆应使纵、横缝错开。
保温板或保温管在施工时要特别注意板和管之间接头处和拐弯转角处的间隙,不能留有任何小点空间与外部空气接触。对较难处理位置,经过处理后无空间和裂缝且厚度均匀,外观美观,防止凝水外渗。
七、排水
生活污水排入室外化粪池,经处理后排入市政污水管。地下层污水设污水坑,经污水泵提升后排向室外。
八、雨水
场地雨水设计重现期按5 年计算,为迅速排除屋面雨水及解决雨水管与建筑的矛盾,雨棚雨水系统采用虹吸排水系统,排入室外雨水管道。场地排水通过表面坡度及盲沟排入场地周围排水沟后,排入场外雨水管线,地下广场雨水经雨水泵提升后排入室外雨水管线,虹吸雨水系统的设计需与设备供应厂家配合进行。
九、室外管道施工的原则
先整体,后局部,高精度控制精度。
1).施工控制网的测设
根据深圳市高程点在施工现场引测A0+000、A1+460.05 两个控制点,埋深1.5 米,用混凝土浇筑并以钢柱作标记,并测定高程作为工程定位放线依据,精度限差按国家规范执行。
根据现场实际情况,按设计要求,挖土厚度约1~3m,累计挖土方量约600m3。挖土机挖至管底标高,剩下土层的清理用人工随机械作业。
2).沟槽开挖与验收
首先,按图纸要求测出管道的座标与标高后,再按图示方位打桩放线,确定沟槽位置、宽度和深度。其座标和标高应符合设计要求,偏差不得超过设计及规范规定。
当设计无规定时,其沟槽底的宽度应符合下表的要求。
管材名称 |
|
|
|
|
|
|
50~75 | 100~200 | 250~350 | 400~450 | 500~600 | 600~1000 | |
钢管、pvc管 | 0.7 | 0.8 | 0.9 | 1.1 | 1.5 | 1.8 |
钢筋混凝土管 | 0.9 | 1.0 | 1.0 | 1.3 | 1.6 | 1.9 |
注:1、当管径大于1000mm 时,对任何管材沟底净宽均为管箍外径);
2、当用支撑板加固管沟时,沟底净宽加0.1m;当沟深大于2.5m 时,每增深1m,净宽加0.1mm;
3、在地下水位高的土层中,管沟的排水沟宽为0.3~0.5m。
为了防止坍方,沟槽开挖后应留有一定的边坡,边坡的大小与土质和沟深有关,其边坡大小应符合规范规定。
为便于管段下沟,挖沟槽的土应堆放在沟的一侧,且土堆底边与沟边应保持一定距离。距离沟边0.8m 上,不一应堆集弃土和材料,弃土堆置高度不超过1.5m。
机械挖槽应确保槽底上层结构不被扰动或破坏,用机械挖槽或开挖沟槽后,当天不能下管时,沟底应留出0.2m 左右一层不挖,待铺管前用人工清挖。
沟槽开挖时,如与有管道、电缆、建筑物、构筑物或文物古迹,应予保护,并及时与有关单位和设计部门联系,严防事故发生造成损失。
沟底应为坚实的自然土层,如果是松散的回填土或沟底有不易清除的块石时应进行处理,防止管子产生不均匀下沉而造成质量事故。松土层应夯实,加固密实,对块石则应将其上部铲除,然后铺上一层大于150mm 厚度的回填土整平夯实后应黄砂铺平。管道的支撑和支墩不得直接铺设未经处理的松土上,边坡保护。
为保证沟槽边坡上的建筑物及边坡自身的稳定,槽底开挖与边坡支护协调进行,同时做好地表水的疏散和沟槽内水的排放工作。沟槽开挖过程中设专人定点观察边坡的稳定情况,发现情况暂停施工,首先回填危险部位,已挖除的土方要保证边坡稳定。采取措施后再进行施工。
检验合格后的沟槽,即可开挖操作坑。操作坑的大小和深度因土质、管径、接口方法的差异而不同,一般以方便操作为宜。
3).管道制作、管材切割
a.管道切割可采用机械和火焊切割,切割后应清除表面氧化物和金属熔闸。钢管应用切割机切割。
b.管材切割时,考虑到切割打磨和焊接造成收缩,管道下料时应留1-2mm 余量,安装固定口处应留100mm 以上的余量。
c.切割后,每段切割料上应作标记移植,标明材质、壁厚和规格。切割后对未作标记的管材,没有经过鉴定。
4).坡口用机械方法或采用火焊切割加工坡口,但必须用角向磨光机磨平,除去氧化渣,坡口角度达到焊接要求,焊前应对坡口内、外表面及两侧各25mm 进行清理,应用棉纱头和钢丝刷除去水、油污、飞溅和油漆,不锈钢必须使用不锈钢刷清扫。
坡口加工后作外观检查,不得发现有裂纹、夹渣等缺陷,清理和检查合格的坡口,应及时完成焊接工作,并做好记录,坡口清理。
管子、管件的坡口和尺寸,应符合设计及规范的要求。
管道对口前操作,应先将场地清理平坦,铺设木方。
对口操作工艺流程为:检查管子对口接头尺寸→清扫管道→配管→确保纵向焊缝错开位置→第一次管道找直→找对口间隙尺寸→对口错口找平→第二次管道找直→点焊。
5).管道配管时,如管道变径有几种,应选择管壁厚一样的配件连接在一起。两根管子对口的壁厚相差不得超过3mm。
对口的两纵向焊缝应错开,错开的环向距离不得小于100mm。管道安装时,纵向焊缝应放在管道受力弯矩最小,并易于检修的位置,一般放在管道上半圆中心垂直线左侧或右侧45 度处。
当使用螺旋缝电焊钢管对口时,相邻环焊缝的间距不小于管径的1.5倍,且有环焊缝的地方不准开口焊接支管。
下管方式 :施工现场擦组合式下管。先将几根短管事先焊接好,连成较长的管段,然后下入已完成的沟槽。这种方法减少了焊接工作坑的数量,同时焊口在挖槽前即可进行,保证了施焊质量,也缩短了工期。
连接管件的管段,应在焊接部位开挖工作坑,同时,为保证焊接质量,应对工作坑内的余泥、渣土进行清理,不允许带泥作业。
下管时采用倒链进行。
先在沟槽上方横跨搭设跳板,将管子滚至跳板上,再再跳板上方用钢管架设三角塔架,然后将管段吊起,撤掉跳板后,将管子下到槽底。如下图:
对于长距离、重量搭的直线管段,可采用两台汽车起重机代替倒链进行,下管时派专人负责,用统一信号指挥起重机动作。为防止起吊的管子晃动,应用绳子栓住管子的另一端,由人拉住,随时调整方向。
阀门应从每批(同制造厂、同规格、同型号、同时到货)中抽出部分进行强度和严密性试验,如有不合格,再加大抽查比例,如仍有不合格,则需逐个检查。
安装时应注意介质的流向,必须与阀体上所示的箭头方向一致。
安装位置及方向应根据阀件的工作原理确定,同时要尽可能方便以后维修,另外还应考虑到外型美观。
阀门应按设计要求核对无误,并且安装前内部已清洗干净,不存留杂物。
新旧水管接管
断管前必须报有关部门同意后,配合自来水公司停水时间进行施工,在断管处开挖工作坑,对工作坑四周用木楞及模板进行边坡支护,防止市政管网内存留的水造成工作坑坍塌。
在工作坑内放置3~4 个潜污泵,将工作坑内的积水抽至附近的市政排水管;
清理市政管网接管处的管段,特别注意防止带泥焊接;
将预制好的变径三通对口焊接;对接管处进行IPN 加强级防腐施工。
水压试验程序
编写试压方案→连接配件并检查支撑→做好排水措施→接通水源→灌水浸泡→加压至试验压力检查→排水→填写试压记录和隐蔽记录
试压步骤
水压试压系统充水时尽量从管道底部充入,在管道系统最高点将系统内部的空气排尽,最高点必须装压力表。
缓慢升压,达到试验压力后,停压10 分钟,如无压降、目测管道无变形,然后压力降至设计压力,对管道系统全面检查,包括但不限于焊缝、阀门、法兰口,经全面检查管道系统无泄漏、无压降为合格。如果发现泄漏,应该泄压处理,不得带压操作。
管道试压堵板厚度
管径DN≤125mm,厚度不小于管壁厚度
管径DN150~300mm,厚度为8mm
6)管道防腐:试压合格后,对所有焊缝进行防腐,首先用砂轮机除出焊缝部分的铁锈及焊杂,经有关部门认可后方可刷底漆,现场刷漆一般应其自然干燥,多层涂刷的前后间隔时间,应保证油漆干燥,涂层未经充分干燥,不得进行下一工序施工。
焊缝、管件刷底漆及管材底漆已修补完毕,及时填写记录,经有关部门认可后方可刷面漆。
涂层质量符合下列要求:涂层均匀,颜色一致。涂层完整,无损坏,无漏涂。涂层附着牢固,无皱纹、气泡、针孔等。IPN 高分子防腐施工程序钢制管道及管件的内外壁防腐均采用IPN 高分子防腐涂料。详细做法如下:
埋地管采用特加强级防腐,底漆采用IPN8710-1 防腐底漆,面漆采用IPN8710-3 厚浆型面漆,要求按生产厂施工细则执行。
暴露在大气中的管道采用普通级防腐,底漆采用IPN8710-1 防腐底漆,面漆采用IPN8710-2C 耐用不褪色面漆(其中管道用蓝色,阀门用红色)。内防腐采用IPN8710-2B 防腐漆,涂刷三道,具体要求按生产厂施工细则执行。
IPN 系列防腐涂层结构
防腐等级 | 防腐层结构 | 配比 | 油膜厚度 | 涂料用量 |
普通防腐 | 一层底漆(无色)二层面漆 | 甲:乙甲:乙+色 | 总厚度≥130μ m | 0.4kg/ |
特加强 | 一层底漆二层玻璃纤维布 |
| 总厚度≥500μ m | 0.8kg/ |
| (10*10) 三层面漆 |
|
|
|
内防腐 | 涂刷三道 | 甲:乙=1:2.5 | 总厚度≥130μ m | 0.6kg/ |
施工技术要求及质量检查
防腐涂层施工按HQJ229-83 标准中的第8.1.10 实施。
施工环境温度以15~30℃为宜,施工时应通风良好,在前一道刷漆完未干前不得刷第二道漆,全部涂层完毕后,一般需自然干燥10 昼夜以上方可使用,不应在雨、雾、雪天进行野外施工。
IPN 在涂层施工及干燥过程中严防与酸、碱、苯水接触,并应防尘、防暴晒等。
设备、管道焊缝在焊接检查不合格时不得涂刷。
IPN 可采用刷涂、喷涂、滚涂。每涂刷一道应进行检查,不得有针孔、气泡、流淌、褶皱和破窒蟆。
金属表面凹凸不平处应刮腻子,干固后打磨平整,腻子应用IPN 涂料配制。
玻璃布的贴衬顺序一般先立面后平面,先上后下,先里后外,先壁后底。
玻璃布应采用中碱或无碱,无捻、脱脂方格平纹纱玻璃布,厚度0.2~0.4mm 为宜。
玻璃布粘衬一般采用手糊法进行。
a、打底刮子。
b、衬布:在粘衬布部位先均圆涂刷一层与玻璃布同宽的IPN 涂料,随即衬上一层玻璃布,并贴紧,赶走气泡,再图IPN 涂料,每衬一层,均检查其质量,如有毛刺、流淌和气泡等缺陷,应清除修整,玻璃布的搭接宽度不小于50mm。搭接应按物料流动方向,上下层的搭接必须互相错开,其距离不得小于50mm。
c、一般自然固化24 小时后再进行第二道。
d、玻璃布应剪边。
玻璃布衬里质量检查按(HQJ229-83)第六章第五节实施:
应平整光滑,色泽均匀,与金属表面结合牢固,无起鼓、脱层、固化不完全和玻璃纤维露出等现象。
层与层之间如有气泡应及时处理,如每平方米内小于0.5 的气泡不少于3 个工作修补,否则将气泡划破修补,如大面积鼓起或脱层时,应将气泡和脱层全部清除露出金属光泽,用纱布将周围打毛后重新粘衬玻璃布和涂刷面层。
7)、管道回填分层夯实,不得损坏管子及防腐层。沟槽其余部分的回填,也应分层夯实。
分层夯实时,其虚铺厚度如设计无规定,应按下列规定执行:
使用动力打夯机:<0.3m;
人工打夯:<0.2m。
管子接口工作坑的回填必须仔细夯实。
位于道路下的管段,沟槽内管顶以上部分的回填应用砂分层充分夯实。
8)、施工注意事项
a、中断施工或工程完工后,凡开口的部位必须有封闭措施。
管道防腐层必须按设计或规范及时完成。输送腐蚀性较强的水则,钢管及铸铁管;内壁应有水泥砂浆防腐涂层。
b、管沟回填土中不得有碎砖、石块及冻土硬块;应从沟两侧同时回填;
浇注混凝土的管基、管座时,应待混凝土达到5Mpa 以上,方可回土。填土时,不可将土直接砸在抹带及防腐层上。管顶上50cm 范围内,应采用人工夯实。管顶上覆土达1.5m 以上时,方可用机械。
注意给水铸铁管出现裂纹或破管。室外给水在进行水压试验时,或投入运行时,时常因空气排除不利而造成严重的水击现象,造成管子的局部破裂。
给水管在无坡度时,打压试验应设置排气装置;而在整个管网运行中,应随地形及敷设深度,在管网系统的最高点设置双筒排气阀,以保证系统在运行中不致出现破裂。
1、建筑物防雷:利用建筑结构主筋作为引下线引至综合接地网,建筑结构主筋(4 根≮φ16)需与雨棚支撑架可靠联接。
接地保护线引至室内均压环(40×4 镀锌扁钢),所涉及的金属构件需可靠接地。所有埋地进户线入口处,将进户缆线的金属外护套及进户的金属穿墙套管接地,接地线引至综合接地体。
2、接地及安全保护
(1)、本工程所有电气设备、安全保护及建筑物防雷的接地,采用共用接地装置,测试后的综合接地电阻<1Ω,达不到要求时,应采取有效的降阻措施。
(2)、弱电机房工作接地采用BV-1×25 平方毫米铜线穿塑料管直接引至综合接地体。机房内予留接地端子箱。
3、接地体安装
(1)、按设计标高挖沟至要求深度,然后与接地体连接线焊接,焊完后清掉荡皮,刷沥青油,将接地线引出至需要位置,填土夯实,并遥测基地电阻值,填写隐蔽工程测试记录。
(2)、位置标高要正确,焊接要牢固。焊接面:扁钢不小于其宽度的二倍,焊三面;圆钢不小于其直径的六倍,焊二面。
(3)、焊接处应饱满,不得有夹渣、咬肉、裂纹、气孔等缺陷。清除荡皮刷沥青油防腐。
(4)、镀锌扁钢要调直,在直线段上不应有明显弯曲。
(5)、所有镀锌材料,在操作时,不得破坏镀锌层。
(6)、接地体不应埋设在垃圾,灰渣及腐蚀性土壤处,需换土回填,如遇有白灰焦渣层时,应用水泥砂浆全面保护。
(7)、接地装置埋设地点距建筑物入口或人行道小于3mm 时,应在接地装置上面敷设沥青层。
(8)、接地电阻值小于1Ω。
4、防雷引下线敷设
(1)、利用基础地粱的两条钢筋用镀锌圆钢将每根地粱内的两主筋焊接成电气通路,并将两主筋作好记号。
(2)、引下线下端与接地体焊接好,或与断接卡子连接,随着主体结构的增高,将柱内作为引下线的两条钢筋自下而上按作标记的两条钢筋引至屋顶敷设。凡接头处均需焊接,清除荡皮了。
(3)、引下线采用镀锌圆钢直径不小于Φ10。
(4)、引下线须作断接卡子(整线除外),断接卡子螺栓不小于10mm,并需加垫圈,断接卡子须镀锌。
(5)、利用主筋作引下线时,每条引下线钢筋直径大于16mm。不得少于二根主筋。
(6)、焊接面:扁钢不小于其宽度的二倍,焊三面;圆钢不小于其直径的六倍,焊二面。
(7)、焊接饱满,不得有夹渣、咬肉、裂纹、气孔等缺陷,清除荡皮,混凝土内不刷防锈漆。
5、高低压配电房、接地干线
(1)、接地干线应调直、测位、打眼、煨弯、卡子,接点端子装好。然后进行敷设、卡固、焊接,接地体连接要牢固,。
(2)、焊接处,断接卡子,接地端子均应刷防锈漆了,整个干线刷黑色油漆。
(3)、金属部件注意保护镀锌层。
(4)、焊接饱满,不得有夹渣、咬肉、裂纹、气孔等缺陷,清除荡皮,刷防锈漆。
(5)、接地干线穿墙时,应加套管保护;跨越伸缩缝时,应作煨弯补偿,或断开后采用相同截面的软线连接。
(6)、为测量接地电阻而设预备的断接卡子。
(7)、接地干线跨越门口时,应暗敷于地面内(预埋)。
(8)、接地干线的水平连接,其焊接长度为其宽度的二倍,分支连接为其宽度的一倍,均焊三面。
(9)、接地干线距地面宜不大于300mm,距地面宜不大于10mm。
(10)、接地干线敷设应平直。
(11)、转角处,不得有死弯,弯曲半径不小于扁钢厚度的二倍。
6、综合接地体应保证接地电阻≤1Ω,为便于检测在室外设测试手孔井。
1、金属电缆管不应穿有裂缝套管,显著的凹凸及严重锈蚀情况,管子弯制后不应有裂缝或凹凸现象,一般弯扁程度不大于管子外径的1/10,管口应作成喇叭口或磨光。
2、电缆管的弯曲半径应符合所穿入电缆半径的规定。每根电缆套管最多不超过3 个弯,直角弯不应多于2 个,采用钢管作保护管时,应在外表涂防锈油漆。
3、引至设备的管口位置应便于设备连接,并不妨碍设备的拆装和进出,并列敷设的电缆管管口应排列整齐,利用电缆管做接地线时应先焊好接地线,再敷设电缆,电缆敷设应有不小于0.1%的排水坡度。
4、电缆套管埋地敷设埋深大于700MM 电缆敷设后应封堵。
a、电缆进入箱、柜,用绝缘板封,缝隙打玻璃胶。
b、建筑穿过楼板、隔墙的保护套管,先用石棉填充,管口封严,防火胶泥,最后用玻璃胶封死。
1、本工程的照明线路、动力线路一部分暗敷,采用材质包括镀锌钢管、镀锌电线管;等电位连接采用PVC 管暗敷。
2、镀锌管采用螺纹连接,管端套丝时,应注意使其螺纹长度不小于管接头长度的1/2,螺纹表面光滑无缺损,连接后螺纹外露2-3 扣,管接头两端采用专用接地线卡及BV2.5——4 ㎜ 2 的专用PE 铜芯电线跨接,并用平口钳,将接地卡钳紧,牢固,使其保持良好的电气通路。钢管与盒(箱)连接,用护口及锁紧螺母固定,与设备连接采用可挠金属软管连接,外加PE加地线。
3、PVC 管采用配套的管接头用专用胶粘剂粘结,敷设完毕后,要逐个检查接头处是否粘接牢固,避免只套上管接头而忘记使用粘胶剂的虚接情况发生。PVC 管与盒(箱)的连接必须使用专用的盒接头固定,不得采用其他的方式连接固定。
4、公称直径为32mm 及以上的PVC 管,敷设弯管时,弯曲半径不得小于管外径的10 倍,并且必须采用液压弯管器弯制,以防止弯曲处破裂或明显凹瘪;保护管口用扩管器作成喇叭型,管口边缘挫光滑,避免电缆穿保护管时损伤电缆外皮;电缆穿管完毕后,管口要用防火防水填料作妥善密封处理。
5、公称直径25mm 及以上的PVC 管,线管敷设时,钢管采用手动弯管器,PVC 管采用专用弯管器(与管内径匹配的弹簧),弯曲半径不得小于管外径的6 倍。
6、直线长度超过40 米或30 米以上有一个弯、20 米以上有两个弯、12米以上有三个弯的都必须加装接线盒。
7、在本工程中,由于钢管与PVC 管混合使用,必须保证所有钢管和金属盒(箱)与保护地线(PE 线)有可靠的电气连接。
8、线管敷设完毕后,对所有外漏的管口作临时的密封保护,防止杂物进入线管内。在穿线前,钢管管口要倒口、清除毛刺并加塑料护口,防止导线绝缘层损伤。
9、为保证开关、插座面板的安装高度与设计高度一致,在安装开关盒、插座盒稳盒时,要按照砼地面标高提高30—50mm(留出地面砖的高度)。
1、在变压器安装过程中,必须自始至终满足以下三个方面的质量要求:
1)、保持变压器器身和其他绝缘部件不受潮气侵入。
2)、变压器各导电部分的连接可靠,接触良好。
3)、变压器各附件与油箱的连接部位密封良好,不渗漏油。
2、变压器安装
1)、施工准备:进行劳动力组织;施工现场布置;机、工具准备;安装备料。基础的制作、平整、进线管疏通。
2)、绝缘检查和判断,电力变压器绝缘检查的内容包括:油箱的密封检查、抽样化验和线圈绝缘测量,以判断变压器的绝缘状况。
3)、器身检查,变压器因长途运输和装卸,受到振动和冲击,使得在油箱内产生位移,个别紧固件可能松动或脱落,穿心螺栓也常因绝缘损坏而接地。进行器身检查,这些问题可得到及时发现和处理。
a、工作无关的人员,不得进入变压器安装现场,以免给安装工作带来混乱。
b、进安装现场的工具,材料要有专人保管,并登记入帐。器身检查全过程要有专人记录。
c、登变压器的梯子不可直接搭在绕组引线或绝缘件上,更不可攀登引线、支架上下任何与工作无关的金属物件及其他杂物。
d、持安装现场清洁,随时处理地面油污,以免工作滑倒。在器身、油箱、梯子或操作架上的工作人员应注意安全,以免坠落发生人身事故。
e、场应配置灭火器等消防器材,防止火灾。
3、变压器附件安装。变压器的附件安装主要包括套管安装、冷却装置安装、储油柜安装、气体继电器安装、安全气道及呼吸器的安装、分接开关安装和净油器及温度计的安装等。在进行附件安装时,都应按照规定的程序进行。待变压器安装共走全部结束后,应根据有关规定进行综合判断新变压器是否需要干燥。变压器的干燥方法较多,但各种干燥方法的基本特点是一致的,就是加热升温和排潮。变压器加热升温的方法主要有:油箱铁损法、短路法、零序电流法和热油法。排潮的方法主要有真空法、通风法和滤油法。变压器安装完毕,对现场进行清理之后,地面用3-5MM 橡胶垫层作为绝缘。
4、变压器试运行
在变压器安装和整组实验结束后,可进入试运行阶段。变压器的启动试运行是指变压器开始带电,并带可能达到的最大负荷连续运行24H 所经历的过程。
1)、变压器试运行应具备的条件
变压器安装工作完毕。包括变压器本体、冷却装置及所有的附件均无缺陷,且不渗油;轮子制动装置固定牢固;油漆完整,相包标志正确,接地可靠;变压器顶盖上无任何遗留物。
事故排油设施完好,消防设施齐全。
高压套管的接地小套管已接地;电压抽取装置不同时,其抽出端子已接地;套管顶部结构的密封良好。
电压切换装置的位置符合运行要求,有载调压切换装置,操作动作可靠,指示位置正确。
变压器的相位及线圈的连接组别符合并列运行的要求。
温度计指示正确,定值符合要求。
冷却装置运行正常,联动正确,水冷装置的油压应大于水压;强迫油循环的变压器以已启动全部冷却装置,并进行了长时间循环,放完残留空气。
保护装置整定值符合规定,操作及联动试验正确。
2)、变压器试运行
带电,变压器第一次受电时,一般有两种方法:一是变压器从零升压至额定值;若没有条件从零升时,可直接合上高压侧开关,对变压器进行全电压冲击合闸。变压器第一次受电10min 后,若无异常情况,接着对变压器进行5 次全电压冲击合闸试验,以验证励磁涌流能否引起保护装置的误动。变压器首次受电和全电压冲击合闸时,应设专人监视变压器有无异常情况,如有异常情况,应立即停电处理。
定相、定相的目的是要检查变压器各侧的电压相序与运行系统的电压相序是否一致,如果其相序不一致,则不允许并列运行。
经过上述工作后,如果一切情况正常,即可将变压器并入电网运行。
变压器并入电网后,按照电网的供电情况,逐步增加负荷,当达到满负荷以后,连续运行24H,观测变压器的温升和无其他异常情况后,试运工作结束。
1)、主体结构施工完成后,即可进行电缆桥架及金属线槽的安装施工,电缆桥架安装前对所经过的路径用拉线的方法进行测位,根据测位所拉的定位线,安装支架、吊架。支吊架间距一般为1.5——2m,不得超过2m,每段之间不小于2 个,所有支架、吊架均有可见的接地,每节桥架同接地主干线-40×4 镀锌角铁可靠连接,接成良好的电气通路。
2)、电缆桥架直线段每隔30m 应留有不小于20mm 的伸缩缝,伸缩缝两端应进行可靠接地连接。
3)、施工前电缆桥架的标高及位置,在本专业施工图上明确后,还必须与通风空调、消防水等相关专业的施工图严格复核,综合会审后,如与现场实际情况有冲突,则进行酌情调整,防止占用风管、水管及设备生产线的位置。
4)、所有穿越防火区及设备站房隔墙造成的空洞均须采用耐火板、防火涂料进行封堵。电气竖井内上下贯通的空洞应每层进行封堵。
5)、电缆桥架及配件安装按设计要求,并应满足电缆的弯曲半径,过渡自然,所有的电缆桥架必须有保护盖板。
土建结构完毕后,在安装前,必须对母线进行测试,合格后,将母线安装,并校对各插接箱的标高是否符合设计要求,在安装过程中,注意各支承器受力均匀,母线绝缘板、杜绝螺栓用力矩扳手上紧,受力一致。
母线槽安装完毕,对各相序进行绝缘电阻测试,合格后,再用临时电试通电调试。
1、暗装配电箱在配合土建砌筑砖墙留洞,抹灰前由土建定出抹灰层的高度方可将箱壳安装进去,四周用高标号水泥砂浆固定,箱壳的安装高度按图纸要求,壳体垂直,壳体突出墙面为1——2mm,并修正进箱的暗配管长度,管口同箱体用锁紧螺母固定,金属管要做电气连接,保证接地可靠,箱壳安装固定后,用纸箱作保护。在条件具备后,安装芯子及器具。
2、明装的配电箱,采用膨胀螺栓固定,高度按图纸说明,一般箱底距地1.4m,本工程的配电箱地下室为明装,原配管为暗装,经本次图纸会审后改为采用镀锌钢管明装,镀锌钢管明装时,进入箱应采用丝扣,作好接地保护。
3、所有配电箱的外壳都必须进行可靠的接地,可利用TN——S 系统的专用PE 线或接地干线。
4、配电箱安装过程中,要注意保护设备,不要划伤外壳,不要损坏内部原器件。
5、调试前,用纸或塑料薄膜覆盖,以免建筑污染。
a、电缆敷设是低压配电工程的关键工序,是联络用电设备的纽带,直接影响整个低压配电工程的进度,因此必须投入足够的人力,并做重点安排。
b、本工程采用交联电缆,走向复杂,弯曲多,敷设时采用人工牵引法。
c、敷设前要检查所要敷设的电缆型号、规格是否与设计相同,外观是否有纽绞、压扁,断裂等缺陷,并用500V 绝缘摇表测量其绝缘情况,合格后方可敷设。其原则为:先标好标志牌,按走向、电缆型号及上小下大、外小内大确定[排列位置,并要留出以后工艺设备用电缆的位置。
d、敷设中避免电缆交叉、缠绕或纽绞,敷设到位后,电缆头要立即挂牌,在电缆转弯或进出电缆沟处要贴上写有电缆型号的标签。
e、在电缆桥架上敷设时,要搭设工作台,严禁工人站在桥架上拖拉而损坏桥架。大截面电缆要用滑轮协助敷设,避免电缆皮损伤,并提高工作效率。
f、电缆进盘内接线,应先按照电缆本身的编号,避免电缆连接错误,接完线后,将电缆及露出部分排列整齐,绑扎牢固,使电缆头及接线端不受机械拉力,并作到一目了然。电缆头切断时,要留有足够的长度,以便以后的接线。
g、电缆头制作时,应严格遵守工艺规程,根据电缆型号采用浇注式或干包式加塑料护套用机械压线钳压接。制作电缆头时,应在气候良好的条件下进行,并有防尘和防污措施。切割电缆要小心,不能损坏芯线和绝缘层,包缠时应注意清洁,防止污物与潮气侵入绝缘层。电缆头应有明显的鼓凸,三叉口绝缘包扎良好,线耳压接应紧密牢固,相位标志清晰。电缆头施工完毕,必须用摇表再摇一次绝缘,并作好记录。
当管敷设完毕后,房间具备锁门的条件,墙面、楼板抹灰完,初装修完毕即可进行穿线、安装开关、插座和灯具。以上所用材料的型号规格必须符合设计要求,并有出厂合格证,具体技术措施如下:
1、穿线前,管口毛刺要处理掉,并配装相应的护口,防止损坏导线绝缘。
2、当管线较长或转弯有两个以上时,应清扫管道,并且在穿线时往管内吹入适量的滑石粉。
3、导线要留有适当的余量,接线盒内无吊顶时一般留长150mm,有吊顶时留长为:室内净空-吊顶高度+150mm;配电箱内留长为箱周长二分之一,同时需要共用一条回路的导线必须在同一管内、不同回路或不同电压的导线不得穿于同一度超过30 米时,导线在过渡盒管口处加以固定。
4、导线穿完后,要对每一回进行绝缘测试,合格后方可进行开关插座、照明灯具的安装。
5、灯具的金属外壳部分应作好接地或接零保护,器具成排安装中线,允许偏差5mm 以内。
6、成排安装的开关高度一致,高低差不大于2mm,同一室内安装的插座高差不大于5mm,成排安装的插座高低差不应大于0.5mm,面板垂直度0.5mm 以内。
7、同一场所的开关切断位置应一致,灯具电器的开关应装设在相线上。
8、插座的接线必须按以下方式接线:面对插座、左零右火上地。
9、开关插座的安装位置正确,盒内清洁,无杂物,开关插座面板清洁无变形,盖板紧贴建筑物的表面。
10、导线与器具连接时,导线牢固紧密,不伤芯线,压板连接时,无松动,在同一螺栓上不能同时有二根以上导线连接,并有防松垫圈等配件,三相插座的排列要一致,单相三孔插座接线,面对插座右极接相线,左极接零线,上方中为地线。
11、电缆调试
(1)、电缆敷设完毕后,逐条检查绝缘,必须大于0.5 兆欧,校对标牌及开关设备编号,全部正确后方可送电。
(2)、送电后,要在末端和T 接箱处逐点检查,三相电压是否正常,是否有异常声响等情况出现,无异常情况后,即可算送电成功,并作好记录,作为资料归档。
12、电力控制设备调试
(1)、对电力配电箱、控制箱进行调试时,要先查清所有出线是否具备送电条件,因为一经操作,其出线所接用电设备即有可能带电。
(2)、配电箱的主开关、分开关要分别操作几次,每次均应正常,三相开关出线要保证全相。出线开关编号同设备编号要相互对应,送电启动后检查设备运行情况,一看指示是否正确,二听运转声音是否正常,三检查各外壳有无漏电,四检查设备是否过热。全部正常后,调试才完毕,对于结果作好记录。
13、灯具、开关、插座调试
灯具通电控制正确,荧光灯不能有声响,控制开关动作灵活可靠,插座界限正确,面对插座左零右火上地,保护门工作正确,对于装设漏电保护的回路,要对每一漏电开关进行试验,要求动作正确。
14、电动机检查接线与调试
(1)、设备安装好后,与各种设备连接的线路必须采用金属软管连接,在通电前,先用摇表测量电动机定子和转子的绝缘电阻,低压电动机要求不小于20 兆欧,再用电桥测量线圈的直流电阻,和出厂说明一致。
(2)、检查供电线路,接线方式必须同铭牌一致,电动机的接线端子同导线端子必须连接紧密,不受外力。接线盒内裸露的导电端不同相间距和相地间距必须大于20 毫米。绝缘电阻不小于0.5 兆欧,电机的外壳应有可靠接地。
消防防排烟及通风防火措施人防地下室走道,大于50m2 的房间及变电室设消防排烟,排烟口为常闭型,设手动和自动开启装置。变电室设排烟补风机,其余自然补入。防烟楼梯间加压送风。排烟时联锁控制关系;火灾信号→排烟口(阀)打开→排烟风机及对应补风机启动。
风道穿越防火墙、机房变配电室等重要房间,以及垂直风道与每层水平风道交接处设70℃防火阀。穿越防火分区的防火阀均有电信号引至消防控制室。
1、金属风管制作
a、钣金:基本的划线方式是:直角线、垂直平分线、平行线、角平分线、直线等分、圆等分等。展开方法宜采用平行线法、放射线法和三角线法。根据图和大样风管不同的几何形状和规格,分别划线展开,并进行剪切。下料后在轧口之前,板材必须倒角。金属风管采用咬口、铆接、焊接等连接方法。咬口、铆接、焊接均按要求制作。制作金属风管,板材的拼接咬口和圆形风管的闭合咬口,可采用单咬口,矩形风管或配件,可采用转角咬口,联合交咬口,按扣式咬口,圆形弯管可采用立咬口。
钢板厚度小于或等于1.2mm 可采用咬接,大于1.5mm 可采用焊接,翻边对焊宜采用气焊。
b、法兰:方、矩形法兰由地根角钢组焊而成,划线下料时应注意使焊成后的法兰内径不能小于风管的外径,用切割机按线切断,下料调直后放在冲床上冲击或钻床钻铆钉孔、螺栓孔,孔距 不应大于150mm,且须导分均匀,四角有螺栓孔,并且备互换性。冲孔后的角钢放在焊接平台上进行焊接,焊接时按各规格模具卡紧。
圆形法兰用角钢或扁钢制作,先将整根角钢或扁钢放在冷煨法兰圆机上,按所需法兰直径调整机械的可调零件,卷成螺栓形状,将卷好后的型钢画线割开,逐个放在平台上找平找正,并进行焊接、冲孔或钻孔。
铁皮插条法兰和不锈钢,铝板风管法兰按其规定制作,铁皮插条法兰有:U 型插条法兰,平面S 型插条法兰和平面立筋插条法兰等。
c、风管:矩形风管边长大于或等于630mm,其管段长度在1.2M 以上均应采取加固措施。如采用角钢加固、角钢框加固、风管壁棱线加固或风管滚槽加固。
风管与扁钢法兰可采用翻边连接。风管与角钢法兰连接时,风管壁厚度小于或等于1.5mm 可采用翻边铆接,风管壁厚大于1.5mm 可采用翻边点焊或沿风管管口周边满焊。点焊时法兰与管壁外表面贴合,满焊时法兰应伸出风管管口4—5mm。
法兰套在风管上,管端留出7—10mm 左右翻边量,管折方线与法兰平面应垂直。用铆钉将风管与法兰铆固,并留出四周翻边,翻边应平整,不应遮住螺孔,四角应铲平,不应出现豁口,以免漏风。
风管与小部件(风嘴、短支管等)连接处,三通、四通分支处要严密,缝隙处应利用锡焊或密封胶堵严以免漏风。使锡焊、熔焊时锡液不许着水,防止飞溅伤人。
风管支吊架、法兰刷漆防腐不应在低温(底于+5℃)和潮湿(相对湿度不大于80%)的环境下进行。刷漆前应清除表面灰尘、污垢与锈斑,并保持干燥,刷漆时应时漆膜均匀,不得有堆积、漏涂、皱纹、气泡及混色等缺陷。
风管的咬缝必须紧密。咬缝宽度应均匀,无孔洞,半咬口或胀裂等缺陷。直管纵向咬缝应错开。
风管的焊缝严禁有烧穿、漏焊和裂纹及不应有气孔、砂眼、夹渣等缺陷。焊接口钢板的变形应教正,纵向焊缝必须错开。
风管外观质量应达到折角平直,圆弧均匀,两端面平行,无翘角,表面凹凸不大于5mm,风管与法兰孔距应符合设计要求和施工规范的规定,焊接应牢固,焊缝处不设置螺孔,螺孔具备互换性。风管加固应牢固可靠、整齐,间距适宜,均匀对称。铁皮插条法兰宽窄要一致,插入两管端后应牢固可靠。
2、风管部件的制作
各类风口、风阀、罩类、风帽及柔性管等风管部件的制作如下:
a、风口:矩形风口两对角线之差不应大于3mm,圆形风管任意两正交直径的允许偏差不应大于2mm。风管的转动调节部分应灵活,叶片应平直,同边框不得碰撞。插板式或活动蓖板式风口,其插板、蓖板应平整,边缘光滑,拉动灵活。活动蓖板式风口组装后应能达到安全开启和闭合。百叶风口的叶片间距应均匀,两端轴的中心应在用一直线上。手动式风口叶片与边框铆接应松紧适当。散流器的扩散环和调节环应同轴,轴向间距分布均匀。孔板式风口,如轴、轴套的配合等应松紧适宜,并应在装配完成后加注润滑油,钢制风口组装后的焊接可根据不同材料,选择气焊或电焊的焊接方式。铝制风口应采用亚弧焊接。焊接均应在非装饰面处进行,不得对装饰面外观产生不良影响。风口应进行喷漆、镀塑、氧化等处理。
b、风阀:外框及叶片下料应使用机械完成,成型应尽量采用专用模具。
风阀内的转动部件应采用有色金属制作,以免锈蚀。风阀制作要牢固,调节和制动装置应准确、灵活、可靠,并标明阀门的启闭方向。多叶片风阀叶片应贴合严密,间距均匀,搭接一致。止回阀阀轴必须灵活,阀板关闭严密,转动轴采用不易锈蚀的材料制作。防火阀制作所需钢板厚度不得小于2mm,转动部件在任何时候都应转动灵活,易熔片应为批准的并检查合格的正规产品,其熔点温度的允许偏差为-2℃。防火阀在阀体制作完成后要加装执行机构并逐台进行检查。
二、风管与风管部件的安装
一般送排风系统和空调系统的安装,要在建筑物围护结构施工完成,安装部件的障碍物已清理,地面无杂物的条件下进行。对空气洁净系统的安装,应在建筑物内部安装部件的地面作好,墙面已抹灰完毕,室内无灰尘飞扬或有防尘措施的条件下进行。一般除尘系统风管安装,宜在厂房的工艺设备安装完或设备基础已确定,设备的连接管、罩体方位已知的情况下进行。检查施工现场预留孔洞的位置,尺寸是否符合图纸要求,有无遗漏现象等。
风管不许有变形、扭曲、开裂、孔洞、法兰脱落、开焊、漏铆、漏打螺栓孔等缺陷。安装的阀门、消声器、罩体、风口等部件的调节装置应灵活,油漆层无损伤。
确定标高,安装风管支、吊架,除锈后刷防锈漆一道。风管支、吊架的吊点,用膨胀螺栓固定。
按风管的中心线找出吊杆敷设位置,单吊杆在风管的中心线上,也可挂在吊件上。焊接后应涂防锈漆。立管管卡安装时,应先把最在上面的一个管件固定好,再用线锤在中心处吊线,下面的管卡即可按此进行固定。
当风管较长,需要安装一排支架时,可先把两端的安装好,然后以两端的支架为基准,用拉线法找出中间支架的标高进行安装。
支、吊架的标高必须正确,如圆形风管管径由大变小,为保证风管中心线水平,支架型钢上表面标高,应作相应提高,对于有坡度要求的风管,托架的标高也应按风管的坡度要求安装。
支、吊架的预埋件或膨胀螺栓埋入部分不得油漆,并应除出油污。支、吊架不得安装在风口、阀门、检查孔等处。吊架不得直接在法兰上。圆形风管与支架接触的地方垫5—6mm 厚橡胶垫。
为保证法兰接口的严密性,法兰之间应有垫料。一般排风系统的法兰垫料采用8501 密封胶带,软橡胶板,闭孔海绵橡胶板、石棉绳等材料。法兰垫料不得挤入或凸入管内。法兰垫料应尽量减少接头,接头应采用梯形或形连接,并涂胶粘牢。法兰连接后严禁法兰缝隙填塞垫料。
法兰连接时,按设计要求规定垫料,把两个法兰先对正,穿上几个螺栓并载上螺母,暂时不要上紧,然后用尖冲塞进穿不上螺栓的螺孔中,把两个螺孔撬正,直到所有螺栓都穿上后,再把螺栓拧紧。为了避免螺栓滑扣,扣紧螺栓时应按十字交叉逐步均匀的拧紧,连接法兰的螺母应在同一侧,连接好的风管,应以两端法兰为准,拉线检查风管连接是否平直。
抱箍式风管连接主要用于钢板圆形风管和螺旋风管连接。先把每一管段的两端轧制出鼓筋,并使其一端缩为小口,安装时按气流方向把小口插入大口,外面用钢制抱箍将两个管端的鼓箍抱紧连接,最后用螺栓穿在耳环中固定拧紧。
插入式风管连接主要用于矩形或圆形风管连接。先制作连接管,然后插入两侧风管,再用自攻螺丝或拉铆钉将其紧密固定。
插条式风管连接主要用于矩形风管连接,将不同形式的插条插入风管两端,然后压实。常用插条有:平插条、无折耳插条、有折耳插条、立式插条、角式插条、平S 型插条、立S 型插条等。
软管式风管连接主要用于风管与部件(如散流器、静压箱侧送风口等)的连接。安装时,软管两端套在连接的管外,然后用特制软卡把软管箍紧。
风管安装视施工现场而定,可以在地面连成一定的长度,然后采用吊装的方法就位(整个吊装);也可以把风管一节一节地放在支架上逐节连接(分节吊装)一般安装顺序是先干管后支管。竖风管的安装一般由下至上进行。
风管接长安装:是将在地面上连接好的风管,一般可接长10—20m 左右,用倒链或滑轮将风管升至吊架上的方法。即挂好倒链或滑轮,再用麻绳将风管捆绑结实(一般绳索不直接捆绑在风管上,而是用长木版插入麻绳受力部位,或用长木版托住风管底部)四周用软性材料垫牢。起吊风管离地150—200mm 时,应仔细检查倒链或滑轮受力点和捆绑风管的绳索、绳扣是否牢靠,风管重心是否正确,没问题后,再继续吊装。风管放在支、吊架后,将所有托架和吊杆连接好,确认风管稳固后,方可解开绳扣。在吊装过程中,风管上、下严禁站人,拉倒链人员应站在风管两边。
风管分节安装:对于不便悬挂滑轮或因受场地限制,不能进行吊装时,可将风管分节绳索拉到脚手架上,然后抬到支架上对正法兰逐节安装。
三、金属风管咬口(焊接)安装
金属风管的咬接或焊接界限
板厚 (mm) | 材质 | ||
钢板 | 不锈钢板 | 铝板 | |
(不包括镀锌钢管) |
|
| |
δ≤1.5 | 咬接 | 咬接 | 咬接 |
δ>1.5 | 焊接 (电焊) | 焊接 (氩弧焊及电焊) | 焊接 (气焊或氩弧焊) |
风管和配件钢板厚度
圆形风管直径或矩形风管大边长(mm) | 钢板厚度(mm) | |
一般风管 | 除尘风管 | |
100 — 200 | 0.50 | 1.50 |
220 — 500 | 0.75 | 1.50 |
530 — 1400 |
| 2.00 |
560 — 1120 | 1 |
|
1250 — 2000 | 1.20 — 1.50 |
|
1500 — 2000 |
| 3.00 |
4、矩形风管安装
矩形风管法兰
矩形风管大边长(mm) | 法兰用料规格(mm) |
≤630 | L25×25×3 |
>630 — 1250 | L30×30×4 |
<1250 — 2000 | L40×40×4 |
注:矩形法兰的死角应设置螺孔。
矩形风管法兰铆钉规格及铆孔尺寸
类型 | 风管规格 | 铆钉尺寸 | 铆钉规格 |
方法兰 | 120 — 630 | Ф4.5 | Ф4×8 |
| 800 — 2000 | Ф5.5 | Ф5×10 |
圆法兰 | 200 — 500 | Ф4.5 | Ф4×8 |
| 530 — 2000 | Ф5.5 | Ф5×10 |
四、风机安装
1、施工准备
主要的安装机具有:倒链、滑轮、绳索、撬棍、活动扳手、铁锤、钢丝钳、螺丝刀、水平尺、钢板尺、钢卷尺、线坠、平板车、刷子、棉布、板纱头、油桶等。
通风、防排烟的风机安装所使用的主要材料、成品或成品应有出厂合格或质量签定文件。
通风机开箱检查时,应根据设备装箱,核对叶轮、机壳和其他部位的主要尺寸,进、出口位置等应与设计相符,电机滑轨及地脚螺栓等齐备,且无缺损。
2、风机安装
(1)、通风机基础各部位尺寸应符合设计要求,应清除预留孔及基础上的杂物、油污,二次灌浆应采用碎石混凝土,其标号应比基础的混凝土高一级,并捣固密实,地脚螺栓不得歪斜。
(2)、在吊装风机时,绳索的捆绑不得损伤机件表面。转子、轴颈和轴封等处均不应作为捆绑位置。
整体安装风机吊装时,直接放置在基础上,用垫铁找平找正,垫铁一般应放在地脚螺栓两侧,斜垫铁必须成对使用,设备安装好后每一组垫铁应点焊在一起,以免受力时松劲。
风机安装在有减振器的机座上时,地面要平整,各组减振器承受的荷载压缩量应均匀,不偏心,安装后采取保护措施,防止损坏。
(3)、通风机的机轴必须保持水平度,通风机与电动机用联轴器连接时,两轴中心线应在同一直线上。电动机应水平安装在滑座上或固定在基础上。
找正应以通风机为准(应具同心度)。安装在室外的通风机应设防护罩,通风机与电动机用三度皮带传动时进行找正,以保证电动机与通风机的轴线互相平行,并使用两个皮带轮的中心线相重合。三角皮带拉紧程度一般可用于手敲打装好的皮带中间,以稍有弹跳为准。
(4)、通风机的进风管,出风管等装置应有单独的支撑,并与基础或其他建筑物连接牢固,风管与风机连接时,法兰面不得硬拉和别劲。机壳不应承受风管等其他机件的重量,防止机壳变形。风机出风口一般应通过软接头与风管连接。风机采用减振机座时,出风口必须采用软接头。
(5)、通风机的传动装置外露部分应有保护罩,通风机的进风口或进风管路直通大气时,应加装保护网或采取其他安全措施。
(6)、风机调试前,应将轴承、传动部位及调节机构进行拆卸、清洗,装配后使其转动,调节灵活,滚动轴承装配的风机,两轴承架上轴承孔的同心度,可待叶轮和轴装好后,以转动灵活为准。直联传动的风机可不拆卸清洗。
轴流风机组装,叶轮与机壳的间隙应均匀分布,并符合设备设计文件的要求,通风机的叶轮旋转后,每次都不应停留在原来的位置上,并不得碰壳。
(7)、固定通风机的地脚螺栓,除应带有垫圈外,并应有防护装置。
(8)、通风机出口的接出风管应顺叶轮旋转方向接出弯头。在现场条件允许的情况下,应保证出口至弯头的距离大于或等于风口出口长边尺寸的1.5 ~ 2.5 倍。如果受现场条件限制达不到要求,应在弯管内设导流叶片祢补。
(9)、通风机附属的自控设备和观测仪器、仪表安装,应按设备技术文件规定执行。
风机调试
风机试运转前必须加入适度的润滑由,并检查各项的安全措施,盘动叶轮,应无卡阻和摩擦现象,叶轮旋转方向必须正确。试运转持续时间不应小于2H。滑动轴承温升不超过35℃,最高温度不得超过70℃,滚动轴承温升不得超过40℃,最高温度不得超过80℃。转动后,再进行检查风机减振 基础有无移位和损坏现象,作好记录。
风管各管段的连接应为拆卸形式。管段长度宜为1.8 — 4.0m,焊接风管和螺纹旋风管可适当加长。
(10)、风管与配件可拆卸的接口,不得装备在墙和楼板内。
(11)、法兰的垫料厚度应为3—5MM,垫料不得凸入管内。法兰垫料的材质,如设计无要求应符合规定,输送空气温度低于70℃的风管,应用橡胶板、闭孔海绵橡胶板,输送空气或烟气温度高于70℃的风管,应用石棉绳或石棉橡胶板,输送含有腐蚀性介质气体的风管,应用耐酸橡胶或聚氯乙烯板,输送产生凝结水或含有蒸汽的潮湿空气的风管,应用橡胶板或闭孔海绵橡胶板,除尘系统的风管,应用橡胶板。
(12)、风管水平安装,水平度的允许偏差每米不应大于3MM,总偏差不应大于20MM。风管垂直安装,垂直度的允许偏差,每米不应大于2MM,总偏差不应大于20MM。输送产生凝结水或含有整齐的潮湿空气的风管,应按设计要求的坡度安装。
(13)、风管底部不宜设置纵向接缝,如有接缝应做密封处理。
(14)、风管穿出屋面处应设防雨罩,穿出屋面超过1.5M 的立管宜设拉索固定,拉索不得固定在风管法兰上,严禁拉在避雷针或避雷网上。
(15)、风管的调节装置应安装在便于操作的部位,斜插板阀垂直安装,阀般应向上拉启,水平安装,阀板应顺气流向插入,防火阀安装方向位置应正确,要设单独支吊架,易熔件应在系统安装后装入,各类风口的安装应平整、位置正确、转动部分灵活,与风管的连接牢固。各类吸尘罩、排气罩的安装位置正确、牢固,支架不得设置在影响操作的部位。安装柔性短管应松紧适当,不得扭曲。

二、自动喷洒系统施工程序

1、装在消防车便于接近人行道或非机动车行使地段。
2、地下消防水泵结合器应采用铸有“消防水泵结合器”标志的铸铁井盖,并在其附近设置指示其位置固定标志。
3、地上消防水泵结合器应设置与消火栓区别的固定标志。
4、消防水泵结合器的安装应符合设计要求,设计无要求时,其安装高度宜为1.1m,与墙面上的门、窗、孔、洞的净距离不应小于2.0m。其不应安装在玻璃幕墙下方。
二、自动喷水灭火系统设备安装
施工前应对采用的系统组件、管件及其它设备、材料进行现场检查,系统组件、管件及其它设备、材料,应符合设计要求和国家现行有关标准的规定,并应具有出厂合格证;
1、喷头、报警阀、压力开关、水流指示器等主要系统组件应经国家消防产品质量监督检测中心检验合格。管子宜采用机械切割,切割面不得有飞边、毛刺,管子螺纹密封面应符合现行国家标准《普通螺纹基本尺寸要求》、《普通螺纹公差与配合》、《管路旋入端螺纹尺寸系列》的有关规定。
2、当管道变径室,宜采用异径接头,在管道弯头处不得采用补芯,当需要采用补芯时,三通上可用一个,四通上不应超过两个,直径大于50MM的管道不宜采用活接头。
3、螺纹连接的密封填料应均匀附着在管道的螺纹部分拧紧螺纹时,不得将填料挤入管道内,连接后,应将连接处外部清理干净。
4、按设计图纸制作管道、支架、吊架、防晃支架
(1)、管道应固定牢固,管道支架或吊架之间的距离不应大于下表的规定。
管道支架或吊架之间的距离
公称直径(MM) | 25 | 32 | 40 | 50 | 70 | 80 | 100 | 125 | 150 | 200 | 250 | 300 |
距离(M) | 3.5 | 4 | 4.5 | 5 | 6 | 6 | 6.5 | 7 | 8 | 9.5 | 11 | 12 |
(2)、管道支架、吊架、防晃支架等型式、材质、加工尺寸及焊接质量等符合设计要求和国家现行有关标准的规定。。
(3)、管道支架、吊架的安装位置不应妨碍喷头的喷水效果,管道支架、吊架与喷头之间的距离不宜小于300MM,与末端喷头之间距离不宜大于750MM。
(4)、配水支管上每一直管段、相邻两喷头之间的管段的设置的吊架不宜少于一个,当喷头之间距离小于1.8M 时,可隔段设置吊架,但吊架的间距不宜大于3.6M。
(5)、当管子的直径等于或大于50MM 时,每段配水干管或配水管设置防晃支架不应少于一个,当管道改变方向时,应增设防晃支架。
(6)、竖直安装的配水干管应在其始端和终端设防晃支架或采用管卡固定,其安装位置距地面或楼面的距离宜为1.5—1.8M。
(7)、管网在安装中断时,应将管道的敞口封闭。
(8)、喷头安装应在系统试压、冲洗合格后进行。
(9)、喷头安装应在使用专用扳手,严禁利用喷头的框架施拧,喷头的框架、溅水盘产生变形或释放原件损伤时,应采用规格、型号相同的喷头更换。
三、套管
穿墙、窗楼板的管道,留洞尺寸应比其管外径大30MM 左右,其位置必须准确,管道在该处应加设套管,穿墙套管长度不应小于墙厚,穿楼板处套管应高出楼面50MM,穿出屋面的管道一般应有防水肩和防水帽。管道各种接口均不得设在套管内,各种管件不应布置在穿墙洞内。竖管的安装应沿垂,每米允许偏差不得超过2MM。竖管的固定支架应设置在距地面1.5—1.8M 高处,层高在4M 以下时,每层只设置一固定支架。
四、消火栓箱安装
室内消火栓箱安装时,必须取下箱内的水枪、消防水带等部件。不允许用钢钎撬、锤子敲的方法将箱硬塞入预留孔内,而应将其平稳地放入。
定好位后,四周缝隙用填补饱满。消火栓栓口应朝外,栓口中心距地面为1.1m,允许偏差20mm,栓口中心距箱侧面为140mm,距箱后表面为100mm,允许偏差均是5mm。消防水带与快速接头绑扎好后,应根据箱内构造将消防水带挂在钉上或盘绕在带盘上。
五、沟槽机械连接方法
1、消防部分管道采用热浸镀锌钢管沟槽式机械连接,管口该开坡口的应用专用开孔机开口,并保证支管及主管连接紧密,接至栓端用丝扣连接密封。
2、消防系统用热浸镀锌钢管,沟槽连接的施工方法。
(1)、将管子水平放置于架子上,一边放入滚压开槽机具,通过窗轮带动管道旋转;接着,跟踪增强滚轮,自动对管道进行开槽,开槽的宽度根据管道的大小可以调节管沟至轧槽的边缘和开槽的宽度尺寸。
(2)、按设计施工图的尺寸,用切割开槽机切割管子,使各种管道的接触面可靠。
(3)、将制作完毕的管子按所编编号,按规格堆放于现场,对所制作的管道进行检查,管道末端至开槽的外部,必须无刻痕、凸起或滚轮印记,保证防漏密封。
(4)、安装时,检查各种沟槽管件的规格、型号。
a、在管件上安装付垫凸缘和付垫的外侧,使用一层Victaulic 润滑剂或硅润滑剂;
b、把付垫放在管端上,保证付垫凸缘不外伸管端,把管端集合在一起,在槽之间对准付垫中心,付垫部分不应延伸到任何一个槽中。然后用一个螺母和拆下的螺栓,在付垫上变动外壳,并进入两管道的槽口中;
c、插入螺栓,使螺母容易上紧。保证螺栓头进入外壳的凹凸中。
d、轮流上紧螺母,并在角螺栓垫金属片,保证系统成为钢性的接合。
e.须在立管、支管上开孔时,采用开孔器,按设计的标高、位置。
将开孔器安放于管子上,再配上三通的定位安装环,将三通管引出,至消火栓一边开槽,一边套丝。
f.管道安装完毕,试压吹洗按设计要求进行。
采用该系统安装时间短,工程可提前完成。
六、刷油及标志
消火栓管道应加黄色色环与自动喷洒管道区分,部分刷油执行现行规范及相关技术标准。消火栓管刷樟丹二道,红色调和漆二道,自动喷淋系统刷樟丹二道,红色黄色调和漆二道,地下夹层管廊内的金属管道管外层均涂刷防腐树脂,管道支架刷除锈后均刷樟丹二道,灰色调和漆二道。
七、管道系统试压和冲洗
1、管道安装完毕后,对系统必须用水进行冲洗强度试验和密性试验,试验后的压力表不少于两只,精度不低于1.5 级,量程为试压值 的1.5—2倍,对各分段先进行分段试验,再对系统进行系统试验。
2、试压冲洗方案已经批准;对不能参与试压的设备、仪表、阀门及附件应加以隔离或拆除;加设的临时盲板应具有突出与法兰的边耳,且应做明显标志,并记录临时盲板的数量。
3、系统试压过程中,当出现泄漏时,应停止试压,并应放空管网中的试验介质,消除缺陷后,重新再试。
4、系统试压完成后,应及时拆除所有临时盲板及试验用的管道,并应与记录核实对无误,且应按本规范附录A 的格式填写记录。
5、管网冲洗应在试压合格后分段进行。冲洗顺序应按先室外、后室内,先地下、后地上;室内部分的冲洗应按配水干管,配水管、配水支管的顺序进行。
6、管网冲洗宜用水进行。冲洗前,应对系统的仪表采取保护措施。智慧阀和报警阀等应拆除,冲洗工作结束后应及时复位。
7、冲洗前,应对管道支架、吊架进行检查,必要时应采取加固措施。
8、对不经受冲洗的设备和冲洗后可能存留赃物、杂物的管段,应进行清理。
9、管道吹洗:所有高中低压管道均必须进行 冲洗干净,用清水流速度不宜小于3m/s,冲洗直至出水口的水颜色与进水口的颜色一致为合理。
该系统采用安舍产品,系统中所配设的智能烟感探测器均带有独立地址编码,布设在各独立的房间内及一些公共区域、走廊等,在地下内布设了探测器,在一些机房内布设烟感探测器,在防火卷帘门两侧加温感及烟感探测器。接受综合办公楼的消防报警信号,联动其相应的消防排烟风机,正压送风机,消防卷帘门及事故照明。
二、探测区划分:
1、以自然间为单独探测区。
2、走道、电缆竖井、配电小间为单独探测区。
三、事故广播分层、分防火分区强制切换,保证人员有的顺序疏散。
一、火灾自动报警系统布线时, 应根据现行国家标准《火灾自动报警系统设计规范》的规定及深圳市消防部分有关规定, 对导线的种类、电压等级进行检查。屏蔽线、阻燃线、软绞线应严格区分,消防布线原色选用表:
1 红线(R) 交流电相线、探测器正极线 |
2 蓝线(BL)探测器负极、控制、反馈公用线 |
3 白(W) 电话线、通信线 |
4 黄(Y) 广播信号线、联动反馈信号线 |
5 黑(BLK)探测器灯线 |
6 黄绿(YGR)保护接地线 |
7 绿(GR)手动报警确认线 |
8 棕(BR)直流24V 电源正极 |
二、槽式桥架安装在结构施工完成后,进行槽式桥架的安装施工,安装前对所经过的路径用拉线的方法进行测位,根据测位所拉的定位线,在吊顶内敷设各类管路和线槽时, 宜采用单独的卡具吊装或支撑物固定。安装支架、吊架。支吊架间距一般为1.5——2m,每段之间不小于2 个,所有支架、吊架均有可见的接地,每节桥架内敷设接地主干线-40×4镀锌扁铁可靠连接,接成良好的电气通路,并与总接地连接。
三、管内或线槽的穿线, 应在建筑抹灰及地面工程结束后进行。在穿线前, 应将管内或线槽内的积水及杂物清除干净。穿线时,先检测导线是否有断点,做好线标,管口加放护口。穿线时,要有人放线, 并与拉线人做好配合, 拉线时不要用力过猛, 不同系统、不同电压等级、不同电流类别的线路, 不应穿在同一管内或线槽的同一槽孔内。
四、导线在管内或线槽内,不应有接头或扭结。导线的接头,应在接线盒内焊接或用端子连接。
五、敷设在多尘或潮湿场所管路的管口和管子连接处, 均应作密封处理。
六、管路超过下列长度时, 应在便于接线处装设接线盒:
1、管子长度每超过45mm, 无弯曲时;
2、管子长度每超过30mm, 有一个弯曲时;
3、管子长度每超过20mm, 有二个弯曲时;
4、管子长度每超过12mm, 有三个弯曲时。
5、管子入盒时,盒外侧应套锁母,内侧应装护口,在吊顶内敷设时, 盒的内外侧均应套锁母。
七、在本专业范围内管道敷设及排管标高均依据有压管让无压管,水管让风管、给水管、喷洒管可根据具体情况绕道敷设,合理进行施工组织,有序安排。还必须与通风空调、消防水等相关专业的施工图严格复核,综合会审后,如与现场实际情况有冲突,则进行酌情调整,防止占用风管、水管及设备生产线的位置。
八、所有穿越防火区及设备站房隔墙造成的空洞均须采用耐火板、防火涂料进行封堵。
九、在吊顶内敷设各类管路,宜采用单独的卡具吊装或支撑物固定,支吊架及管道安装横平,吊架安装牢固。管子入盒时,盒外侧应套锁母,内侧应装护口,在吊顶内敷设时,盒的内外侧均应套锁母。
十、火灾自动报警系统导线敷设后,应对每路的导线用500V 兆欧表测量绝缘电阻,其对地绝缘电阻值不应小于20mΩ。
十一、探测器的底座应固定牢靠,其导线连接必须可靠压接或焊接。
当采用焊接时,不得使用带腐蚀性的助焊剂。
十二、探测器的“+”线应为红色,“-”线应为兰色,其余线应根据不同用途采用其他颜色区分,但同一工程中相同用途的导线颜色应一致。
十三、探测器底座的外接导线,应留有不小于15cm 的余量,入端处应有明显的标志。
十四、探测器的确认灯,应面向便于人员观察的主要入口方向。
十五、探测器在即将调试时方可安装,在安装前应妥善保管,并应采取防尘、防潮、防腐蚀措施。
十六、手动报警按钮距地1.5〈安装,要牢固可靠,不得斜,外拉导线应有不小于10cm 余量,且端部标志明显。
十七、该项目火灾报警控制器(消防主机)消防控制设备(联动柜)均落地安装,底部须高出地坪0.1—0.2m。
十八、引入控制器的电缆或导线,应符合下列要求:
1、配线应整齐,避免交叉,并应固定牢靠;
2、电缆芯线和所配导线的端部,均应标明编号,并与图纸一致,字迹清晰不易退色;
3、端子板的每个接线端,接线不得超过两根;
4、电缆芯和导线,应留有不小于20cm 的余量;
5、导线应绑成束;
6、导线引入线穿线后,在进线管处应封堵。
十九、控制器的主电源引入线,应直接与消防电源连接,严禁使用电源插头。主电源应有明显标志。控制器的接地应牢固,并有明显标志,消防控制设备在安装前,应进行功能检查,不合格者,不得安装。
二十、消防控制设备的外接导线,当采用金属软管作套管时,其长度不宜大于1m。并应采用管卡固定,其固定点间距不应大于0.5m。金属软管与消防控制设备的接线盒(箱),应采用锁母固定,并应根据配管规定接地。
二十一、消防控制设备外接导线的端部,应有明显标志。消防控制设备盘(柜)内不同电压等级,不同电流类别的端子,应分开,有明显标志。
二十二、工作接地线应采用铜芯绝缘导线或电缆,不得利用镀锌扁铁或金属软管。由消防控制室引至接地体的工作接地线,通过墙壁时,应穿入钢管或其它竖固的保护管。工作接地线与保护接地线,必须分开,保护接地导体不得利用金属软管。接地装置施工完毕后,应及时作隐蔽工程验收。验收应包括下列内容:
1、测量接地电阻,并作记录;
2、查验应提交的技术文件;
3、审查施工质量。
作为安装工程最重要的一个环节,同时是检验现场安装质量的一个检验环节,调试工作应当有组织、按计划 、分步骤的实施,不能通过调试的系统是一个失败的系统。消防调试验收的内容:
1、备用电源自动切换3 次。
2、探测器抽查5%-10%,不少于10 个。
3、消火栓系统:1).工作泵、备用泵转换运行1—3 次,
2).消防控制室内操作启停泵1—3 次,
3).消火栓处的启泵按钮按5%--10%的比例抽查,
4、自动喷淋系统:1).工作泵、备用泵转换运行1—3 次;
2).消防控制室内操作启停泵1—3 次;
3).水流指四器、信号阀按安装数量的5%--10%的比例进行末端放水试验抽查。
5、防火卷帘的抽查按安装数量的10%-20%抽查。
6、通风空调和防排烟设备按实际安装数量10%-20%抽查。
7、消防电梯的检验应进行1-2 次人工控制和自动控制功能的检验。
8、火灾事故广播设备的检验按实际安装数量的10%-20%:
1)、在消防控制室分层广播;
2)、公用的扬声器强行切换试验;
3)、备用扩音机控制功能实验。
9、消防通信设备
1)、消防控制室与各设备间的对讲电话进行1-3 次通话;
2)、消防插孔按实际安装数量的5%-10%进行通话试验;
3)、消防控制室的外线电话与119 台进行1-3 次试验。
二、调试原则
调试工作的组织应按先准备后实施、线检查后试验、先简单后复杂、先模拟后实际,先操作回路后主回路的原则进行,并通过密切的观察进行详细的记录。
三、调试准备
调试准备工作包括人员组织、资料方案的准备以及工具备件的准备。
调试人员应由施工单位、技术工程师、技术人员及施工员、设备厂家人员、建设单位工程师及有关管理人员,监理单位工程师以及设计单位工程师,以便能够协调调试过程中可能出现的各种问题,对出现问题处理方法并互相监督,同时也有利于建设单位人员熟悉系统功能,为顺利移交打基础。
四、火灾报警试验方法
通过火灾报警器上的手动检查装置,检查火灾报警控制器的各区功能是否正常,包括火警、各类故障监控功能、消声功能等是否正常。
切断交流电源,观察备用电源自动投入的工作情况,各项功能是否正常。
观察各电压表,电流表的指示值,应在技术规定的正常范围内。
指示灯、开关、按钮应无损坏及接触不良情况。
通过手动检查火灾控制器功能,性能时,自动灭火。输出控制接点都不应动作,时针也不应动作。
对系统中所安装的探测器每个进行吹烟、检测,温度探测可用电吹风筒加热进行,每个经过试验都能动作为止。
进行火灾探测器的模拟试验时,观察火灾报警控制器的声光、动作状态,各区间联动状况是否合格。
拎下探测器,显示器能够显示故障。
所有防火阀全部调试及动作返回到消防中心显示。
五、消火拴给水系统试远方法
包括水源测试、消防泵、稳压泵、稳压灌性能试验,室内、外消防栓和屋顶消火栓功能试验,系统联动试验等内容.
通过压力表、流速仪等检测仪表,对室内、外消防栓屋顶消防、屋顶消火栓进行测试;对于临时高压系统来讲,还需启动消防水泵;通过消防车从水泵接合器处向室内管网供水、加压、验证室内的消火栓和屋顶消火栓的流量,充实水柱长度,保护面积等功能是否能够满足设计和规范要求。
系统联动试验还应包括:通过消火栓箱上的消防按钮后观查,是否在5min 内启动消防水泵,并使该系统的任何一个消火栓达到设计要求的灭火功能,消防水箱是否有保证火灾初期10min 供水能力等。
上述调试工作,应在建设单位和消防监督部门有关人员在场的情况下进行,并应及时填写试验记录。
玻璃幕墙工程项目等中标后确立玻璃幕墙专业公司分包施工时再考虑详细的施工方案,在这里就不详细论述。
本工程高层建筑,建筑层数为28 层,总建筑面积为46000 平方米。
二、采用扣件式悬挑钢管脚手架
1、材料选用:φ48×3.5 钢管、钢管扣件、Ⅱ钢筋、钢铰索、木脚手板等材料
2、设计依据:JGJ130—2001 J84—2001《建筑施工扣件式钢管脚手架安全技术规范》
3、设计计算:
φ48×3.5 钢管载面特性
A=4.89cm2 I=12.19cm4 W=5.08cm3
i=1.58cm 每米长质量:3.84kg/m
E=2.06×105N/mm2 f=205N/mm2
(1)初步设计:a、立杆横距0.8m,立杆纵距1.5m,立杆步距0.9m;
b、预埋Φ22 钢筋@1.5m,Φ16 钢铰索@1.5m 拉索,φ48×3.5 钢管斜撑@1.5m,预埋φ48×3.5 钢管水平拉杆@1.5m;
c、每四个楼层(高12 米)卸荷一次。
(2)验算:
①.横向水平杆
荷载:
Φ48×3.5 自重 0.0384KN/mm
脚手板自重 0.35×1.5=0.42.5KN/mm
施工均布活荷载 3×1.5=4.5KN/mm

②.纵向水平杆
荷载:拦杆 0.14KN/mm
③.底层立杆(四个楼层共12 米)


④.吊拉构件
⑤.构造要求:
a、在每条钢索拉杆对应部位设一道Φ48×3.5 钢管支撑;
b、与建筑物采用硬性连结,Φ48×3.5 钢管竖向@4m,水平@7m;
c、水平距离每15 米加设一道通高剪力撑;
d.建筑物角部必须设通高剪力撑。
经验算,初步设计安全符合使用要求,故搭设示意见下图示。

三、搭设前的准备工作:
1、制订脚手架的搭设方案,根据建筑物的外形、高度结构形式以及脚手架的使用要求,确定搭设方案,并做好搭设技术交底工作。
2、钢管、扣件要进行检查,如有脆裂、变形、滑丝等不符合要求者,不得使用。
四、脚手架的搭设:
(一)搭设步骤:按设计方案要求埋设好预埋件。双排架先立里排产杆,后立外排立杆,立杆宜先立两头及中间一根,等三点拉成一直线后,再立中间各杆。立杆垂直线偏差不应大于总高度的1/200。相应两立杆的接头上下应错开50cm 以上,力求做到接头不在同一步内,包括内外排立杆之间,装好一部分立杆后,要紧跟着装大横杆,同一步内纵向水平高低差不得超过6cm,同一步里、外两根大横杆接头应互相错开,同一跨间内,上下、里外两根大横杆接头应互相错开,同一跨间内,上下、里外两根大横杆的接头应错开50cm 以上,力求做到接头不在同一跨内,装好部分在横杆后,紧跟着装小横杆,大小横杆应垂直,为防滑脱,小横杆两端应伸出大横杆外10cm 为宜,每搭七步,要及时装剪刀撑,一拉一顶应随施工层及时与梁拉结。
(二)搭设要点:
1、脚手架杆件的搭设应遵守构造图进行。
2、首层,每隔四层及施工层必须满铺脚手板,离墙面不得大于20cm,不得有空隙和探头板。脚手板搭接时,搭接长度不小于20cm,在架子拐弯处脚手板应交叉搭设,不准用砖垫平。
3、斜撑:按设计要求间距搭设,角度为40~60。。
4、剪刀撑:水平间距(小于)15m,设一道剪刀撑。
五、荷载标准:
1、一般砌筑用外脚手架的使用荷载均布荷载不超过270kg/m2,集中荷载不超过150kg/m2,装修用脚手架的使用荷载不超过200Kg/m2,内脚手架使用荷载不超过250Kg/m2。
2、参考数值:操作工人70kg/人;砖3kg/块。
3、操作层处必须架设栏杆和安全网。
4、扣件安装时须注意开口的朝向,连接大横杆的扣件开口朝架子内侧,螺栓朝上,直角扣件开口不得朝下,螺栓需拧紧,但力距应适宜,螺栓拧得过紧会使扣件和螺栓断裂,一般要求扭力矩控制在4—5kg . m,最大不得超过6kg . m。
1、拆除作业必须由上而下逐层进行,严禁上下同时作业;
2、连墙件必须随脚手架逐层拆除,严禁先将连墙件整层或数层拆除后再拆脚手架;分段拆除高差不应大于2 步,如高差大于2 步,应增设连墙件加固;
3、当脚手架拆至下部最后一根长立杆的高度(约6.5m)时,应先在适当位置搭设临时抛撑加固后,再拆除连墙件;
4、当脚手架采取分段、分立面拆除时,对不拆除的脚手架两端,应先按《建筑施工扣件式钢管脚手架安全技术规范》的规定设置连墙件和横向斜撑加固。
二、拆除步骤:
1、 单、双排架的拆除程序与安装程序相反,拆除时,先将最上面的脚手板传递下来,每档内仅剩一块翻下去,人站在脚手板上,去拆除各杆件,拆完后把脚手板再往下翻一步,如此逐步往下拆。剪刀撑随着立杆拆除而卸下,拆下来的钢管要逐根往下传递,不准从高处掷下,以防将钢管摔坏发生砸伤事故,拆下来的扣件要集中放在工具袋,装满后吊下来,不准从上面丢下来。拆除工作不应少于3 人,上面至少2 人,下面1 人负责指挥、清理材料,脚手架拆除时,在建筑物周围应设警戒区,并且指派专人负责警戒。
2、拆除顺序:应按从上到下,先外后内,后安装先拆除的原则:安全网→脚手板→防护拦杆→一拉一顶→剪刀撑→小横杆→大横杆→立杆→斜撑→拉索。
3、脚手架的拆除材料,及时清理,及时堆放,按扣件、小横杆、大横杆和立杆分堆堆好。
三、安全措施:
1、拆除前对全体拆除人员进行安全技术交底,讲解拆除方法。严格按高处作业规定执行和遵守安全纪律、拆除工艺要求。
2、施工人员必须戴好安全帽,系好安全带。
3、拆除现场必须设警戒区域,张挂醒目的警戒标志,警戒区域内严禁操作人员通行或在脚手架下方继续组织施工,地面指派专职监护人员。
4、拆除人员进入岗位以后,先进行检查,加固松动部位,清除步层内留的材料、物件、垃圾块,所有清理物应安全输送至地面,严禁高处抛掷。
5、不允许分立面拆除或上下二步同时拆除,认真做到一步一清,一杆一清。
6、所有脚手板拆除,应自外向里竖搬运,防止自里向外翻起后,板面垃圾、物件直接从高处坠落伤人。
7、脚手架必须使用电焊时,应严格按照国家特殊工种的要求和消防规定执行,并派专职人员,配料斗,防止火星溅落。严禁无证动用焊工具。
8、当日完工后,应仔细检查岗位周围情况,如发现留有隐患的部位,应及时修复或继续完成至一个程序,一个部位的结束,方可撤离岗位。
9、至地面的所有杆件、扣件等物料,应按类堆放整齐。
1、用全站仪对现场甲方提供的红线点进行复核,看其是否有偏移或沉降,要求边长相对误差小于1/1000,角度误差小于3" ,满足要求后方可用其进行轴线控制网的布设,否则应会同甲方等有关部门协商解决。
2、建设单位告之本工程所在地区红线桩位置及坐标体系,进行方位坐标换算后再用(PTS-V2)全站仪引测到本工程按垂直线布设的主轴线控制网。依据主轴线控制网对本工程各轴线进行全方位定位测量。
采用在本工程的±0.000 楼板上精确测定“口”形楼层控制轴线的方法,在往上施工每层的相应位置均预留200×200 的方洞,用激光经纬仪往上投点,上面用透明玻璃接受激光投测点(红点),每次投测完毕后要检测它们的相互关系,要求距离误差小于2mm;每施工完三层主体后均要重新检查一次,及时纠正偏差,确保建筑物的垂直总偏差控制在10mm 以内。
本工程在施工中要严格控制垂直度、除上述的楼层控制轴线传递时的误差控制外,在所有的转角处,用“吊线锤法”逐层做好墙体(剪力墙)大面垂直控制线,使得每层转角处支模时均可按下层墙体大面的垂直控制线来控制偏位误差,从而有效地控制建筑物的垂直度偏差。
依据建设单位提供的水准点将高程引测到相邻轴线控制网点上,并将每个单位工程的±0.000 引测到附近的固定位置作永久标记加以保护,便于高程放样。引测时采用闭合路线,按二等水准观测要求进行,仪器使用DS3型水准仪。竖向标高的引测传递采用吊钢尺法,即沿建筑物外墙(剪力墙)或电梯井用钢尺垂直向上逐层引测标高,每层引测四个点,用DS3 型水准仪进行校核,要求四个导入标高互差值小于3mm,符合要求时取其平均值作为该层标高基准。每隔五层拉一次通尺做高精度复核。
于建筑物首层四角及中部设置测降观测点,观测点为形成闭合的平面。

施工期间,每施工完一层后,进行一次观测,结构完成后,第一年每季度观测一次,第二年每半年观测一次,直至降稳定为止。观测中一定保证;“三定(定人、定仪,定时)”。同时确保每次观测前对使用仪器进行检核,以免影响观测结果。各观测日期、数据均记录完整,并绘成图表存档,观测中如发现异常情况时,立即通知设计单位。
观测的对照点不得少于两个,并采用闭合法,测量精度采用二级水准。
对观测点要严加保护,不得损坏。
塔吊基础满足以下要求:
a、按出厂厂家设计要求浇筑完成钢筋混凝土塔吊基础;
b、基础强度已达100%,预件正确。
(2)安装要求
a、金属结构部分无疲劳损伤,焊缝无漏焊、开裂和脱焊,各部连接螺栓紧固并有防松零件;
b、安全保护装置齐全的有效(五限位、四保险);
c、各制动器调整合理,各传动部分无异声,润滑良好,确保安装后各部旋转零件转动灵活,并不准有任何固定件有摩擦接触的现象;
d、各系统的钢丝绳缠绕正确,所有钢丝绳头部固定可靠,并检查合格。
钢索无断丝、起毛和老化现象,钢丝绳润滑良好,无污泥锈蚀。滑轮组件无裂缝损伤,吊钩无变形、损伤和磨耗超过标准现象。
(3)安装程序
安装底架 → 安装基础节 → 安装配重 → 安装三节标准节 → 吊装顶升套架 → 安装回转装置及驾驶室 →安装塔顶→ 安装平衡臂 → 拼装起重臂及起重臂拉杆 → 吊装平衡重 → 安装起升机构及电器控制箱 →穿绕起升钢丝绳 → 调整垂直度 → 进行规定安装高度的试运转 → 如运转顺利,开始自升加节
塔吊拆除与安装程序相逆。
(4)附着顶升安装程序
塔吊机臂根铰点高度超过厂家设计规定的独立高度后,必须与建筑物进行附着,附着点的位置选择在主梁位置。当附着点不能在设计规定的位置,则降低至下一建筑自然层,确保附着高度等于或小于附着间距。附着支座固定牢靠,附着部位在建筑物结构施工时加配钢筋,混凝土标号不低于厂家设计要求,满足机械使用说明书要求的支座反力。
顶升程序:
油缸顶升工作节→套架销轴入塔架,油缸回缩→标准节放在引进小车→小车引进套架内→油缸顶升标准节,引进小车退出→放下标准节,塔架螺栓栓紧→油缸活塞略顶,套架销轴自动退出→套架与塔架螺栓联接顶升时,达至附着要求的,必须先进行附着,然后才顶升。塔吊下降与顶升程序相逆
(5)检验
新安装(或经大、中修)的塔吊在使用前需经以下检测程序后方可使用
一般技术检验 → 无负荷试验 → 静负荷试验 → 动负荷试验
每次试验记录均应有关人员签字,记入机械履历书中,作为该机技术试验的依据。
塔吊基础满足以下要求:
a、已按出厂厂家设计要求浇筑完成钢筋混凝土基础;
b、基础强度已达100%,预件正确;
c、基础排水措施满足要求。
(2)安装要求
a、金属结构部分无疲劳损伤,焊缝无漏焊、开裂和脱焊,各部连接螺栓紧固并有防松零件;
b、安全保护装置齐全的有效(五限位、四保险);
c、各制动器调整合理,各传动部分无异声,润滑良好,确保安装后各部旋转零件转动灵活,并不准有任何固定件有摩擦接触的现象;
d、各系统的钢丝绳缠绕正确,所有钢丝绳头部固定可靠,并检查合格。
钢索无断丝、起毛和老化现象,钢丝绳润滑良好,无污泥锈蚀。滑轮组件无裂缝损伤,吊钩无变形、损伤和磨耗超过标准现象。
(3)安装程序
安装基础节 → 安装标准节及调整垂直度 → 安装扶墙架 → 安装导轨 → 安装上人笼及传动装置 → 安装安全装置及电控系统 → 调试。
应严格控制自由端高度,自由端高度一般不超过9m ,扶墙杆间隔按工作状况确定一般每隔6—9 米设一道扶墙。
施工外电梯的拆除与安装程序相逆。
由项目副经理及大型机械操作员、电工组成管理小组,负责对现场所有机械的使用、保养的管理。
1、定机定人,严禁非本机操作人员操作本机械,并在每台机械上标识本机管理人员姓名,建立每台机械的档案。
2、机械使用前、使用后均由操作员进行检查,检查内容包括传动系统、电控系统及运转的稳定性等,发现异常情况要立即停止使用,直至找出原因,修复正常为止才可重新使用。严禁施工机械带病作业。
3、按机械的使用特性定期对机械进行大、中维修。
4、每月由保养维修人员对塔吊、施工电梯及高速提升机进行一次保养,其余机械每二个月进行一次保养;在保养维修过程中,本机械的操作人员应参与保养维修工作。
5、每次检验、保养均作记录,并由相关人员签名,归入该机械的使用档案。
6、经拆卸的机械应及时保养并涂上防锈漆。
1、人防地下室工程计两层地下室,防护等级为六级,人防地下室建筑面积约7900 平方米。
2、结构层外围为S8 抗渗混凝土,采用结构防水为主。
二、施工特点及质量控制
地下室的施工质量直接影响到以后的使用功能,因此,对施工中的各主要环节,如混凝土搅拌、运输、浇筑、振捣、养护等,均应严禁遵循施工及验收规范和操作规程的规定进行施工。防水做法严格按照设计技术进行施工。
1、施工准备
①.编制施工组织设计、选择经济合理的施工方案、健全技术管理系统,制定技术措施、落实技术岗位责任制,做好技术交底,以及质量检验和评定的准备工作。
②.进行原材料检验,各种原材料必须符合规定标准;备足材料,并妥善保管,按品种、规格分别堆放,注意防止骨料中掺混泥土等污物。
③.将需用的工具、机械、设备配备齐全,并经检修试验后备用。
④.进行防水混凝土的试配工作,试验室可根据设计抗渗标号,提高0.2N/mm2 进行试配,在此基础上选定施工配合比。
⑤.做好基坑排水和降低地下水位的工作,要防止地面水流入基坑,要保持地下水位在施工底面最低标高以下不小于30cm。以避免在带水或带泥浆的情况下,施工防水混凝土结构。
2、模板
①.模板应平整,且拼缝严密不漏浆,并应有足够的刚度、强度、吸水性要求,以金刚模、木模为宜。
②.模板构造应牢固稳定,可承受混凝土拌合物的侧压力和施工荷载,且应装拆方便。
③.固定模板的螺栓(或铁丝)不宜穿过防水混凝土结构,以避免水沿缝隙渗入。在条件适宜的情况下,可采用滑模施工。
④.当必须采用对拉螺栓固定模板时,应在预埋套管或螺栓上加焊止水环。止水环直径及环数应符合设计规定。若设计无规定,止水环直径一般为8—10cm,且至少一环。
3、钢筋
钢筋相互间应绑扎牢固,以防浇捣混凝土时,因碰撞、振动使绑扣松散、钢筋移位,造成露筋。
绑扎钢筋时,应按设计规定留足保护层,不得有负误差。留设保护层,应以相同配比的细石混凝土或水泥浆制成垫块,将钢筋垫起,严禁以钢筋垫钢筋,或将钢筋用铁钉、铅丝直接固定在模板上。
钢筋及铅笔均不得接触模板,若采用铁马凳架设钢筋时,在不能取掉的情况下,应在铁马凳上加焊止水环,防止水沿铁马凳渗入混凝土结构。
当钢筋排列稠密,以致影响混凝土正常浇筑时,可同设计人员协商,采取措施,以保证混凝土的浇筑质量。
4、混凝土搅拌
严格按施工配合比,准确称量每种用料,投入搅拌机,外加剂应均匀掺在拌合水中投入搅拌机,避免直接投入。
防水混凝土应采用机械搅拌,搅拌时间比普通混凝土略长,一般不少于120s;若掺入引气型外加剂,则搅拌时间约为120~180s。适宜的搅拌时间,可通过现场实测选定。为保证混凝土有良好的匀质性,不宜采用人工搅拌。
5、混凝土运输
混凝土在运输过程中要防止产生离析现象及坍落度和含气量的损失,同时要防止漏浆。拌好的混凝土要及时浇灌,常温下应于半小时内运至现场,于初凝前浇筑完毕。运送距离较远或气温较高时,可渗入缓凝型减水剂。浇灌前发生显著泌水离析现象时,应加入适量的原水灰比的水泥浆复拌均匀,方可浇灌。
6、混凝土浇筑和振捣
浇筑前,应清除模板内的积水、木屑、铅丝、铁钉等杂物,并以水湿润模板。使用钢模应保持其表面清洁无浮浆。
浇筑混凝土的自落高度不得超过1.5m,否则应使用串筒、溜槽或溜管等工具进行浇筑,以防产生石子堆积,影响质量。
在结构中若有密集管群,以及预埋件或钢筋稠密之处,不易使混凝土浇捣密实时,应改用相同抗渗标号的细石混凝土进行浇筑,以保证质量。
在浇筑大体积结构中,遇有预埋大管径套管或面积较大的金属板时,其下部的倒三角形区域不易浇捣密实而形成空隙、造成漏水,为此,可在管底或金属板上预先留置浇筑振捣孔,以利浇捣和排气,浇筑后,再将孔补焊严密。
混凝土浇筑应分层,每层厚度不宜超过30~40m,相邻两层浇筑时间间隔不应超过2h,夏季可适当缩短。
防水混凝土应采用机械振捣,不应采用人工振捣。机械振捣能产生振幅不大、频率较高的振高,使骨料间的摩擦力、粘附力降低,水泥浆的流动性增加,由于振动分散开的粗骨料在沉降过程中,被水泥砂浆充分包裹,形成具有一定数量和质量的砂浆包裹,同时挤出混凝土拌合物中的气泡,以增强密实性和抗渗透性。
机械振捣应按《混凝土结构工程施工质量验收规范 GB 50204-2002》的有关规定依次振捣密实,防止漏振、欠振。
7、混凝土的养护
防水混凝土的养护对其抗渗性能影响极大,特别是早期湿润养护更为重要,一般在混凝土进入终凝(终筑后4~6h)即应覆盖,浇水湿润养护不少于14d。因为在湿润条件下,混凝土内部水分蒸发缓慢,不致形成早期失水,有利于水泥化,特别是浇筑后的前14d,水泥硬化速度快,强度增长几乎达28d 标准强度的80%,由于水泥充分水化,其生成物将毛细孔堵塞,切断毛细通路,并使水泥石结晶致密,混凝土强度和抗渗性均能很快提高;
14d 以后,水泥水化速度逐渐变慢,强度增长亦趋缓慢,虽然继续养护仍然有益,但对质量的影响不如早期大,所以应注意前14d 的养护。
8、拆模板
由于对防水混凝土的养护要求较严,因此不宜过早拆模。拆模时防水混凝土的强度必须超过设计强度等级的70%,混凝土表面温度与环境温度之差,不得超过15℃,以防混凝土表面产生裂缝。拆模时应注意勿使模板和防水混凝土结构受损。
9、防水混凝土结构的保护
地下工程的结构部分拆模后,应抓紧进行下一分项工程的施工,以便及时对基坑回填,这样可以避免因干缩和温差引起开裂,并有利于混凝土后期强度的增长和抗渗性的提高,同时也可以减轻渗水对工程的危害,起一道阻水线的作用。回填土应分层夯实,并严格按照施工规范的要求操作,控制回填土的含水率及容重等指标。同时应做好建筑物周围的散水坡,以保护基坑回填土不受地面水入侵。
混凝土防水结构浇筑后严禁打洞,对出现的小孔洞应及时修补,修补时先将孔洞冲洗干净,涂刷一道水灰比为0.4 的水泥浆,再用水灰比为0.5的1:2.5 水泥砂浆填实抹平。
三、地下室防水砂浆
水泥砂浆防水层施工
(1)刚性多层抹面水泥砂浆防水层
1)原材料及要求
①.水泥:宜采用普通硅酸盐水泥或膨胀水泥,亦可采用矿渣硅酸盐水泥,其标号不低于325 号。在受侵蚀性介质作用时,所用水泥应按设计要求选用。
②.砂:一般以粗砂为主,砂的粒径应在1~3mm 之间,大于3mm 的砂,在使用前应筛除,砂的颗粒要坚硬、粗糙、洁净。
③.水:一般能饮用的自来水和天然水,均可使用。
2)配制
水泥浆和水泥砂浆的配合比应根据防水要求、原材料性能和施工方法确定,可参考下表:
水泥浆与水泥砂浆配合比
材料名称 | 配合比 | 稠度(流动性,cm) | 水灰比 | 配制方法 |
素灰 | 水泥和水拌合 | 7 | 0.37~0.4 | 将水泥放于容器中, 然后加水搅拌 |
水泥浆 | 水泥和水拌合 |
| 0.55~0.6 | 将水泥放于容器中, 然后加水搅拌 |
水泥砂浆 | 水泥:砂=1:2.5 | 7~8 | 0.6~0.65 | 宜用机械搅拌,将水 泥与砂干拌到色泽 一致时再加水搅拌 |
3)基层处理
基层处理十分重要,是保证防水层出不穷和基层牢固结合、不空鼓和密实不透水的关健。主要包括基层处理、浇水、补平等工作,须使基层表面保持潮湿、清结、平整、竖实粗糙,利于与防水层粘结牢固。
基层应具有足够的强度,混凝土应不低于C10。
①.新建混凝土工程,在模板拆除后,立即用钢丝刷将表面打毛,并在抹面前浇水冲洗干净。
②.旧混凝土工程,应先用凿子、剁斧、钢丝恻将表面凿毛,清理整平后再冲水,并用钢丝刷刷洗。
③.无论新旧工程,当遇有混凝土基层表面凹凸不平、蜂窝孔洞等现象时,应根据不同情况分别进行处理。
如凹凸不平处的深度大于10mm 时,先用钻子剔掉,用钢丝刷刷后浇水清洗干净,抹素灰2mm,再抹砂浆找平层,抹后将砂浆表面横向扫成毛面。
如深度较大时,待砂浆凝固后(一般间隔12h)抹素灰2mm,再用砂浆抹至与混凝土平面齐平为止。
如基层表面有蜂窝孔洞时,应先用钻子除掉松散石子,将孔洞四周边缘剔成斜坡,用水清洗干净,然后用2mm 素灰、10mm 水泥砂浆交替抹压直至与基层齐平为止,并将最后一层砂浆表面横向抹成毛面。待砂浆凝固后,再与混凝土表面一起做好防水层。如蜂窝麻面不深,且石子粘结较密实,可用水冲洗干净,再用1:1 水泥砂浆用力压抹平后,将砂浆表面扫毛即可。
混凝土结构的施工缝,在防水层施工前,应先将施工缝处剔成斜坡槽,槽深一般在1cm 左右,斜坡长度各为2.5cm。剔后浇水并用钢丝刷洗干净,在斜坡内抹素灰2mm,然后用1:2 水泥砂浆找平,将砂浆表面扫成平面。
④.基层处理完后,必须浇水充分浸润。
4)施工要点
施工时,务必做到分层交替抹压密实,以使每层的毛细孔道大部分切断,使残留的少量毛细孔无法形成连通的渗水孔网,这样才能保证防水层具有较高的抗渗防水性能。
①.混凝土顶板及墙面四层与五层做法(见四层抹面法表)。
四层抹面法
层次 | 水灰比 | 操作要求 | 作用 |
第一层素灰层 厚2mm | 0.4~0.5 | 1. 分两次抹压,基层浇水润滑后,后均匀刮抹1mm 厚素灰作为结合层, 并用铁抹子往返用力刮抹遍,使素灰 填实基层孔隙,以增加防水层的粘结 力,随后再抹1mm 厚的素灰找平层, 厚度要均匀; 2.抹完后,用湿毛刷或排笔蘸水在 素灰层表面腑次均匀涂刷一遍,以堵 塞和填平毛细孔道,增加不透水性 | 防水层的第一道防线 |
第二层水泥砂浆层厚 4~5mm | 4~0.45 水泥:砂 =1:2.5 | 1. 在素灰初凝时进行,即当素灰干燥到用手指能按入水泥浆层1/4~1/2 时进行, 抹压要轻, 以免破坏素砂层,但也要使水泥砂浆层薄薄 压入素将层约1/4 左右; 2. 水泥砂浆初凝前,用扫帚将表 面扫成贡条纹 | 起骨架和保护作用 |
第三层素 灰层厚2mm | 0.37~0.4 | 1.待第二层水泥砂浆凝固并具有一定强度后(一般隔24h),适当浇水润滑即可进行第三层,操作方法同第一层,其作用也和第一层相同; 2.施工时如第二层表面析出有游离氢氧化钙形成的白色浆膜 ,则需要用水冲刷干净后,再进行第三层,以免影响二、三层之间的粘结,形成 空鼓 | 防水作用 |
第四层水泥砂浆层厚 4~5mm | 4~0.45 水泥:砂 =1:2.5 | 1.配合比与操作方法同第二层水泥砂浆,但抹完后不扫纹,而是在水泥砂浆凝固前,水分蒸发过程中,分用铁抹子压5~6 遍,以增加加密实 性,最后再压光; 2.每次抹压间隔时间应视施工现场湿度大小、气湿高低及通风条件而定,一般抹压前三遍的间隔时间为1~2h, 最后人抹压到压光, 夏季约10~12h, 冬季最长14h, 以免砂浆凝固后反复抹压,破坏了它表面的水泥结晶,使强度降低而产生起砂现象 | 由于水泥砂浆凝固前抹压了5~6 遍,增加了密实性,因此不仅起着保护第三层素灰和骨架作用,还有 防水作用 |
五层抹面法主要用于防水层迎水面,背水面用四层抹面法。五层抹面法与四层抹面法的区别就在于多一道水泥浆,前四层与四层作法相同。当第四层砂浆抹压两遍后,毛刷均匀地将水泥浆涂刷在第四层表面并随第四层抹压压光。
②.施工时应注意素灰层与砂浆层应在同一天内完成。即防水层的前两层基本上连续操作,后两层(或后三层)连续操作,切勿抹完素灰后放置时间过长或次日再抹水泥砂浆,否则会出现粘结不牢与空鼓等现象,影响防水层质量。
③.切实作好素灰抹面、水泥砂浆揉浆及收压三道并键工序。
素灰抹面:素灰层要薄而均匀,不宜过厚,抹面后不宜干撒水泥粉。
水泥砂浆揉浆:揉浆的作用是使水泥砂浆与素灰相互渗透结合牢固,要先薄薄地抹上一层水泥砂浆,用铁抹子来回用力压实,使其渗入素灰层。
如果揉压不透则影响两层之间的粘结。在揉压和赶平砂浆的过程中,严禁加工水。
水泥砂浆收压:在水泥砂浆初凝前,待收水70%(即用手指按压上去,有少许水润出现而不易压成手迹)时,就可以进行收压工作。收压是用铁抹子平光压实。收压时需掌握三点:即砂浆不宜过湿;收压不宜过早,但也不迟于初凝;用铁板抹压而不能用边口刮压。收压一般二道,第一道收压表面要粗毛,第二道收压表面要细毛,使砂浆密实,强度高且不易起砂。
四、地下室防水
1、构造防水
地下工程中因施工操作和结构设计的需要常会留设沉降缝、伸缩缝或施工缝,人们习惯称为地下工程中的“三缝”。这“三缝”既是必须的但又是最容易产生渗漏水的薄弱部分,所以必须选择合理有效的构造措施,确保沉降缝、伸缩缝和施工缝处的防水性能。
(1)施工缝的留设和处理
由于施工缝处容易渗水,因此施工中应尽量不留施工缝。但当混凝土浇筑受开挖、支模以及施工设备等条件限制,无法连续施工一次浇筑完毕时,在施工方案中应考虑在预定位置设施工缝。施工缝位置不应留设在剪力最大处并尽避开底板与边墙交接处。
地下室剪力墙分段支模及浇筑。在墙体根部及剪力墙暗梁底留置施工缝,施工缝预埋止水钢板(详见下图)。

垂直施工缝一般不允许单独留设,垂直施工缝的划分应尽量与变形缝一致。必须留设时,应在施工缝中间埋设橡胶或塑料止水带,也可埋设钢板或紫铜板止水带。水压不大时也可做成企口缝或阶梯缝,但必须在支模时于缝的两侧预留出宽度不小于20cm、深度3cm 的凹槽,以备作不防水抹面或膨胀水泥砂浆抹面。施工时应将原混凝土施工缝凿毛冲洗干净,然后刷一道水泥浆,随后浇捣新混凝土。
(2)变形缝的留设和处理
伸缩缝的宽度为5cm 应在地下室顶板施工时预留好,然后严格按照设计详图施工。
沉降缝的宽度为7cm,沉降缝设有多道防水,在混凝土中间埋设了橡胶止水带,在施工过程中应嵌固牢固,止水带周围混凝土捣固应密实。止水带正确就位和周围混凝土捣固密实后,在迎水面用高级嵌缝胶嵌缝,并加贴高分子防水卷材, 以确保室外沉降缝不漏水。
坚持质量第一、安全第一的方针,把施工安全工作摆在重要位置,行之有效地贯彻到各个环节中去。同时安全工作的特点又体现在它是一项需要持之以恒的、需要全员参加的复杂的系统工作。
达到五无目标,即“无死亡事故,无重大伤人事故,无重大机械事故,无火灾,无中毒事故”。
公司安全工作领导小组领导全面的安全工作,主要职责是领导公司开展安全教育,贯彻宣传各类法规,通知和上级部门的文件精神,制订各类管理条例,每周对各项目工程进行安全工作检查、评比,处理有关较大的安全问题。项目部成立安全管理小组,并设专职安全员,主要职责是负责进行对工人的安全技术交底,贯彻上级精神,每天检查工程施工安全工作,每周召开工程安全会议一次。制订具体的安全规程和违章处理措施,并向公司安全领导小组汇报1 次。各作业班组设立兼职安全员,主要是带领各班组认真操作,对每个工人耐心指导,发现问题即时处理并及时向工地安全管理小组汇报工作。
在施工过程中,除正常的安全检查外,公司每月检查一次,工程处每半月检查一次,项目部每周检查一次,发现问题落实到人,限期整改,消除隐患,确保施工安全。
按照公司的安全教育制度,加强宣传教育,制订科学合理的施工方案,现场组织切合实际的作业程序,正确严格地执行和运用施工及安全规范。
对进场的工人进行摸底测试,统一进行安全教育,增强质量、安全意识。
各专业班组认真钻研设计图纸进行技术交底,认真学习和深刻体会施工技术规范和施工安全规范。经过培训交底达到合格的职工才允许上岗操作,为安全工作顺利圆满开展打下坚实的基础。在施工过程中,建立每周一次的安全教育,由项目经理或专职安全员主持。同时在每道施工工序进行前,由专职安全员做书面的安全技术交底,各班组长带领施工人员认真贯彻落实。
1、在施工总平面设计中人流和货流的安全通道的规划,仓库、物料、机具的布置都要符合消防和安全卫生规定,并落实消防和卫生急救设施,设置不同类型的安全防护棚。
2、主体结构施工针对的结构、模板体系分别详细地在分项工程方案中专门编制安全技术交底。
3、高层建筑施工脚手架应编制专门的搭设和拆除的作业方案和安全使用管理规定。
4、高层建筑施工中物料和人员的垂直运输量大,要编制专门的安全使用管理规定。
1、塔吊:必须保证起重量限制器、力矩限制器、高度限制器、行程限制器、幅度限位器和吊钩保险装置、卷筒保险装置等安全装置。每天设备部操作人员对安全装置进行检查,若出现安全装置工作不正常,有专人负责进行维修和更换,一定在各个安全装置均正常工作时才进行运转。严格按操作规程使用、维修和保养。安装完毕后,经公司安全部门验收后方可是用。
2、井架:井架组装后应进行验收,并进行空载、动载和超载试验。严禁载人和超载运行,附墙架严禁随意拆除,司机离开时,应降下吊篮并切断电源。
3、电梯:按规定安装接地保护;电梯笼周围2.5 米范围必须设置稳固的防护栏杆:限制器、制动器必须由专人管理,并按规定进行调试检查,保证灵敏可靠。每天都对所有的安全装置进行测试才能进行当天的运转。
电梯笼载人、载物时应荷载分布均匀,严禁超载使用;电梯宋切断电源时,司机不得离开岗位,各层通道处应安装栏杆或安全门。每部电梯配备两名司机。安装完毕后,经公司安全部门验收后方可是用。
4、其它机械:按操作规程使用,加强对机械设备的管理,做到常检、常修、常保养,保持良好的工作状态。
电源采用三相五线制,设专用接地线。总配电箱和分配电箱应设防雨罩和设门锁,同时设相应漏电保护器。从底层通往楼层的电路及楼层施工用的电路一律采用质量合格的电缆,并要正确架设。严格做到“一机一闸一漏电保护装置”,一切电气设备必须有良好的接地装置。电动机械必须定机定人专门管理,使用小型手持电动工具时均使用带漏电保护的闸箱。
塔吊及外架必须有避雷措施。防雷接地可与工程的避雷预埋件临时焊接连通,接地电阻达到规定要求,每月检测一次,发现问题及时改正。设专人掌握气象信息,及时作出大风,大雨预报,采取相应技术措施,防止发生事故。禁止在台风、暴雨等恶劣的气候条件下施工。
外墙施工采用落地式双排钢管脚手架和外爬架,外侧采用全封闭密目式安全挂网;脚手架应按施工实际可能承受的最大荷载进行设计和计算。
应在安全人员和技术人员的监督下由熟练工人负责搭设;脚手架的检查分验收检查。定期检查和特别检查。使用中要严格控制架子上的荷载,尽量使之均匀分布,以免局部超载或整体超载;使用时还应特别注意保持架子原。有的结构和状态,严禁乱挖基脚、任意拆卸结构杆件和连墙拉结及防护设施。项目部安全负责人组织分段验收,并报请公司安全部门核验。
1、安全标志:划分安全区域,充分和正确使用安全标志,布置适当的安全标语和标志牌,各种施工机械均需挂设操作规程。
2、安全防护:
(1)、安全防护棚:在人员通道和临近小区道路上方都应采用钢管搭设安全防护棚,安全防护棚要满铺一层模板和一层安全网,侧面用钢筋网做防护栏板。高压电线线路侧面和上方采用竹杆和模板搭设隔离墙和防护棚。
见下图:
(2)、“三宝、四口、五临边”防护
现场人员坚持使用“三宝”。进入现场人员必须戴安全帽并系紧帽带,穿胶底鞋,不得穿硬底鞋、高跟鞋、拖鞋或赤脚、高处作业必须系安全带。
做好“四口”的防护工作。在楼梯口、电梯口、预留洞口设置围拦、盖板、架网,正在施工的建筑物出人口和并字架,门式架进出料口,必须搭设符合要求的防护棚,并设置醒目的标志。
做好“五临边”的防护工作。五临边指阳台周边,屋面周边,框架工程楼层周边,跑道,斜道两侧边,卸料平台的外侧边。“五临边”必须设置1.0M 以上的双层围栏或搭设安全网。




夜间操作要有足够的照明设备,直接用于操作的照明灯采用36V 低压防爆工作灯。
2、项目部建立临时用电施工组织设计和安全用电技术措施的编审批制度,并建立相应的技术档案。
3、建立技术交底制度。
由项目部安全主任及电气主管向专业电工、各类用电人员介绍临时用电施工组织设计和安全用电技术措施的总体意图、技术内容和注意事项,并在技术交底文字资料上履行交底人和被交底人的签字手续,注明交底日期。
4、建立安全检测制度。
从临时用电工程开工始,根据制度要求定期对临时用电工程进行检测,主要内容包括接地电阻值、电气设备绝缘电阻值、漏电保护器动作参数等,以监视临时用电工程是否安全可靠,并作好检测记录。
5、建立电气维修制度。
加强日常和定期维修工作,及时发现和消除隐患,并建立维修记录,记明维修时间、地点、内容、技术措施、处理结果、维修人员、验收人员等。
6、建筑工程竣工后,临时用电工程的拆除应有统一的组织和指挥,并须规定拆除时间、人员、程序、方法、注意事项和防护措施等。
7、建立安全检查和评估制度。
施工管理部门和企业要按照JGJ59-99《建筑安全检查评分标准》定期对现场用电安全情况进行检查评估。
8、建立安全用电责任制。
对临时用电工程各部位的操作、监护、维修分片、分块、分机、落实到人,并辅以必要的奖惩。
9、建立安全教育和培训制度。
定期对专业电工和各类用电人员进行用电安全教育和培训,经过考核合格者持证上岗。禁止无证或随意串岗。
接地与接零
施工现场使用的中性点直接接地的低压电力线中,必须采取三相五线制TN-S 接零保护系统。
①、保护零线应由工作接地线、配电室的零线或第一级漏电保护器电源侧的零线引出;
②、保护零线应与工作零线必须分开单独敷设,不得作它用,保护零线(即PE 线)必须采用绿/黄双色线;
③、保护零线必须在配电室(或总配电箱)配电线路中间和末端至少三处作重复接地,重复接地线应与保护零线相连接;
④、保护零线的截面应不小于工作零线的截面,同时必须满足机械强度的要求,其中,架空敷设间距不大于12 米时,采用绝缘铜线截面不小于10mm2;与电气设备相连接的保护零线为截面不小于2.5mm2 的绝缘多股铜线;
⑤、电气设备的正常情况下不带电的金属外壳、框架、部件、管道、轨道、金属操作台以及靠近带电部分的金属围栏、金属门等均应用保护接零;
⑥、供电电力变压器中性点的直接工作接地电阻值应不小于4 欧姆,保护零线重复接地电阻值应不小于10 欧姆。不得一部分设备作保护接零,另一部分作保护接地。
3、配置漏电保护器
①、施工现场的配电箱(配电室)和开关箱至少配置两级漏电保护器;
②、漏电保护器应选用电流动作型,一般场合漏电保护器的额定漏电动作电流应不大于30MA,额定漏电动作时间应不大于0.1s;潮湿和有腐蚀介质场所的漏电保护器,其额定漏电动作电流和额定漏电动作时间乘积的极限值为(大于)30MA.S;
③、开关箱内漏电保护器的选用应与动力设备的容量大小、相数等实际情况相适应、相配合,如三相电动机则应选用参数匹配的三相三线的漏电保护器;照明用电必须与动力用电分开,照明应选用单相二线的漏电保护器。
4、开关箱按三级设置,即总配电箱 分配电箱 开关箱,开关箱距离机具不能超过三米,开关箱实行一机一闸一漏电保护。
5、外电保护
①、在建工程(含脚手架)的外侧边缘与外电架空线路的边线之间和最小安全操作距离:
电压1KV 以下为4 米;
电压1KV-10KV 之间为6 米;
②、施工现场的机动车道与外电架空线路交叉时的最小垂直距离:
电压1KV 以下为6 米;
电压1KV-10KV 之间为7 米;
6、配电系统
①、所有的电线架设都必须使用电杆、绝缘子、横担等,按规范要求架设;
②、开关电器及电气装置必须完好无损;
③、开关电器及电气装置必须装设端正、牢固,不得拖地放置;
④、带线导线与导线之间的接头必须绝缘包扎,带电导线必须绝缘良好;
⑤、带电导线严禁搭、挂、压在脚手架或其它物体上;
⑥、配电箱与开关箱必须标注名称、用途、分路标记;配电箱、开关箱应配锁并有专人负责;
⑦、电箱内部及其周围临近区域不得有杂物、灌木和杂草等;
⑧、室外用电严禁拉设使用花线,严禁使用铜线或其它金属线代替保险丝使用,严禁工人宿舍内乱拉电线、插座、烧电炉、电饭煲;
⑨、电气装置应定期检修,检修时必须做到:
a.停电;
b.悬挂停电标志牌,挂接必要的接地;
c.由相应级别的专业电工检修;
d.检修人员应穿绝缘鞋和手套,使用电工绝缘工具;
e.有组织和专人统一指挥。
7.照明
①、在夜间施工或自然采光的场所、料具堆放场、道路、仓库、办公室、食堂、宿舍等设备一般照明、局部照明或混合照明;
②、根据使用场所的环境条件选择相应的照明器;
③、行灯电压不超过36V,灯具离地面高度底于2.4 米等场所照明电压不大于36V。潮湿及易触及带电体场所照明电压不大于24V;
④、根据需要设置警卫和红色信号照明和事故照明,其电源应设在施工现场电源总开关的前侧,并配备电源。
8、对现场所有施工人员进行安全用电基本知识培训。
1、建立电气防火教育制,经常进行电气防火知识教育和宣传,提高各类用电人员的电气防火自觉性。
2、建立易燃、易爆物和强腐蚀介质管理制度。
3、建立电气防火责任制,加强电气防火重点场所烟火管制,并设置禁止烟火标志。
4、建立电气防火检查制,发现问题,及时处理。
5、强化电气防火领导体制,组建防火安全队伍。
1、在电气装置和线路周围不堆放易燃、易爆和强腐蚀介质,不使用火源。
2、加强电气设备相间和相一地间绝缘,防止闪烁。
3、合理配置、整定、更换各种保护电器,对电器和设备的过载、短路故障进行可靠的保护。
4、对电气装置相对集中的场所,如配电室、发电机室等配置绝缘灭火器材等,并禁止烟火。
5、设置合理的防雷装置。
第四章 分项工程安全技术措施
第一节 安全技术交底制度
1、工程开工前,应随同施工组织设计,向参加施工的职工认真进行安全技术措施的交底,使广大职工都知道,在什么时候、什么作业应当采取哪些措施,并说明其重要性。
2、每个单项工程开始前,必须重复交代单项工程的安全技术措施,坚决纠正只有编制者知道,施工者不知道的现象。
3、实行逐级安全技术交底制,开工前由技术负责人向全体职工进行交底,两个以上施工队或工种配合施工时,要按工程进度交叉作业的交底,班组长每天要向工人进行施工要求、作业环境的安全交底,在下达施工任务时,必须填写安全技术交底卡。
1、工程开工前,应随同施工组织设计,向参加施工的职工认真进行安全技术措施的交底,使广大职工都知道,在什么时候、什么作业应当采取哪些措施,并说明其重要性。
2、每个单项工程开始前,必须重复交代单项工程的安全技术措施,坚决纠正只有编制者知道,施工者不知道的现象。
3、实行逐级安全技术交底制,开工前由技术负责人向全体职工进行交底,两个以上施工队或工种配合施工时,要按工程进度交叉作业的交底,班组长每天要向工人进行施工要求、作业环境的安全交底,在下达施工任务时,必须填写安全技术交底卡。
1、操作时必须穿胶鞋,以免水泥浇脚。
2、晚上收光地面要有足够的照明。不得随便移动临时照明线,不准把衣物等挂在电线上。
3、在室内推运输小车时,特别是在过道中拐弯时要注意小车把挤手。
人推小车时不准倒退。
4、清理楼地面时,清理出的垃圾杂物等,不得由窗口、阳台、井道随意向下抛掷。
5、井架吊篮提升或下降时,必须关好井架安全门,头、手不准伸入井架内,待吊篮停稳,方能进入吊篮内工作。
6、冬季施工,如需生炉增温,必须经主管防火工作的领导批准,并落实防火措施。
二、电焊工程安全技术措施
1、电焊、气割,严格遵守“十不烧”规程操作。
2、操作前应检查所有工具、电焊机、电源开关及线路是否良好,金属外壳应有安全可靠接地,进出级应有完整的防护罩,进出端应用铜接头焊牢。
3、每台电焊机应有专用电源控制开关。开关的保险丝容量,应为该机的1.5 倍,严禁用其它金属丝代替保险丝,完工后,切断电源。
4、电气焊的弧火花点必须与氧气瓶、电石桶、乙炔瓶、木材、油类等危险物品的距离不少于10 米。与易爆物品的距离不少于20 米。
5、乙炔瓶氧气瓶均应设有安全回火防止器,橡皮管连接处须用轧头固定。
6、氧气瓶,严防沾染油脂、有油脂衣服、手套等,禁止与氧气瓶、减压阀、氧气软管接触。
7、清除焊渣时,面部不应正对焊纹,防止焊渣溅入眼内。
8、经常检查氧气瓶与磅表头处的螺绞是否滑牙,橡皮管是否漏气,焊枪嘴和枪身有无阻塞现象。
9、注意安全用电,电线不准乱拉,电源线均应架空扎牢。
10、焊割点周围和下方应采取防火措施,并应指定专人防火监护。
三、外用电梯操作使用安全技术措施
1、电梯操作人员须经有关部门培训,经考试合格后方准操作。应了解本机构造,熟悉例行保养知识。做到持证上岗。
2、电梯每班首次运行前,操作人员应详细检查操作系统,电器系统,结构和机构系统,制动和保险系统,确认无误后,方可运行。
3、人货电梯载入载货时应尽量做到均布,严禁偏载起载。
4、电梯运行到上限和下限时,操作人员应尽量略前手动停机,尽量减少频繁碰击限位或碰块。
5、电梯操作手在运行中做到精神集中,密切监视运行动态,禁止在工作状态中与他人闲谈逗闹。
6、操作手应作好运转记录,严格执行交接班制度和操作规程。
7、作业完毕,将电梯降到底层,控制手柄应在“0”。切断总开关,锁好电梯门。
8、风力达6 级以上,停止使用电梯,并将货笼降到底层。
四、钢筋工程安全技术措施
1、钢筋加工:
(1)、机械必须设置防护装置,注意每台机械必须一机一闸并设漏电保护开关。
(2)、工作场所保持道路畅通,危险部位必须设置明显标志。
(3)、操作人员必须持证上岗。熟识机构性能和操作规程。
2、钢筋安装:
(1)、搬运钢筋时,要注意前后方向有无碰撞危险或被钩持料物,特别是避免碰挂周围和上下方向的电线。人工抬运钢筋,上户卸料要注意安全。
(2)、起吊或安装钢筋时,应和附近高压线路或电源保持一定安全距离,在钢筋林立的场所,雷雨时不准操作和站人。
(3)、在高空安装钢筋应选好位置站稳,系好安全带。
3、钢筋对焊:
(1)、对焊前应清理钢筋与电极表面污泥、铁锈。使电极接触良好,以免出现“打火”现象。
(2)、对焊完毕不要过早松开夹具,连接头处高温时不要抛掷钢筋接头,不准往高温接头上浇水,较长钢筋对接应安置台架上。
(3)、对焊机选择参数,包括功率和二次电压应与对焊钢筋时相匹配,电极冷却水的温度,不得超过40℃,机身应接地良好。
(4)、闪光火花飞贱的要有良好的防护安全设施。
4、钢筋电弧焊:
(1)、焊机必须接地良好,不准在露大雨水的环境下工作。
(2)、焊接施工场所不能使用易燃材料搭设,现场高空作业必须系好安全带,按规定配戴防护用品。
5、电渣压力焊:
(1)、电渣焊使用的焊机设备外壳应接零或接地,露天放置的焊机应有防雨遮盖。
(2)、焊接电缆必须有完整的绝缘,绝缘性能不良的电缆禁止使用。
(3)、在潮湿的地方作业时,应用干燥的木板或橡胶片等绝缘物作垫板。
(4)、焊工作业,应穿戴焊工专用手套、绝缘鞋、手套及绝缘鞋应保持干燥。
(5)、在大、中雨大时严禁进行焊接施工。在细雨天时,焊接施工现场要有可靠的遮蔽防护措施,焊接设备要遮蔽好,电线要保证绝缘良好,焊药必须保持干燥。
(6)、在高温天气施工时,焊接施工现场要做好防署降温工作。
(7)、用于电渣焊作业的工作台。脚手架,应牢固、可靠、安全、适用。
五、回填土工程安全技术措施
1、装载机作业范围不得有人平土。
2、打夯机工作前,应检查电源线是否有缺陷和漏电,机械运转是否正常,机械是否装置漏电开关保护,按一机一开关安装,机械不准带病运转,操作人员应戴绝缘手套。
3、基坑(槽)的支撑,应按回填的速度,按施工组织设计及时要求依次拆除,即填土时应从深到浅分层进行,填好一层拆除一层,不能事先将支撑拆掉。
六、电梯井道内架子、安全网搭设工程安全技术措施
1、从二层楼面起张设安全网,往上每隔四层设置一道,安全网必须完好无损、牢固可靠。
2、拉结必须牢靠,墙面预埋张网钢筋不小于D14,钢筋埋入长度不少于3Qd。
3、电梯井道防护安全网不得任意拆除,待安装电梯搭设脚手架时,每搭到安全网高度时方可拆除。
4、电梯井道的脚手架一律用钢管、扣件塔设、立杆与横杆均用直角扣件连接,扣件紧固力距应达到4—5Kg.M。
5、脚手架所有横楞两端,均与墙面撑紧,四周横楞与墙面距离,平衡配重一侧为600 毫米,其它三侧均为400 毫米,离墙空档处应加隔排钢管,间距不大于200 毫米,隔排钢管离四周墙面不大于200 毫米。
6、脚手架柱距不大于1.8 米。排距为1.8 米,每底于楼层面200 毫米处加搭一排横楞,横向间距为350 毫米,满铺竹笆,竹笆一律用铅丝与钢管四点绑扎牢固。
7、脚手架拆除顺序应自上而下进行,拆下的钢管、竹笆等须妥善运出电梯井道,禁止乱扔乱抛。
8、电梯井道内的设施,必须由脚手架保养人员定期进行检查、保养,发现隐患及时消除。
9、张设安全网及拆除井道内设施时,操作人员必须戴好安全带,挂点必须安全可靠。
七、金属扣件双排脚手架搭设工程安全技术措施
1、搭设金属扣件双排脚手架,特别用于高层建筑的。必须严格按国家《建筑安装安全技术规程》、上海市建工局关于《高层建筑双排钢管脚手架施工规定》和施工组织设计的要求进行设计和搭设。
2、搭设前应严格进行钢管的筛选,凡严重锈蚀、薄壁。严重弯曲及裂变的杆件不宜采用。
3、严重锈蚀、变形、,螺栓螺纹已损坏的扣件不宜采用。
4、脚手架的基础除按规定设置外,必须做好排水外理。
5、高层钢管脚手架座立于槽钢上的,必须有地杆连接保护普通脚手架立杆必须设底座保护。
6、不宜采用承插式钢管做底步立杆交错之用。
7、所有扣件紧固力矩,应达到4—5kg·m。
8、同一立面的小横杆,应对等交错设置,同时立杆上下对直。
9、斜杆接长,不宜采用对接扣件。应采用叠交方式,二只回转扣件接长,搭接距离视二只扣件间隔不少于0.4M。
10、脚手架的主要杆件,不宜采用木、竹材料。
11、高层建筑金属脚手架的拉杆,不宜采用铅丝攀拉,必须使用埋件形式的钢性材料。
八、金属扣件式双排钢管脚手架拆除上程安全技术措施
1、拆除现场必须设警戒区域,张挂醒目的警戒标志。警戒区域内严禁非操作人员通行或在脚手架下方继续组织施工。地面监护人员必须履行职责。高层建筑脚手架拆除,应配备良好的通讯装置。
2、仔细检查吊运机械包括索具是否安全可靠。吊运机械不允许搭设在脚手架上,应另立设置。
3、如遇强风、雨等特殊气候,不应进行脚手架的拆除。夜间实施拆除作业,应具备良好的照明设备。
4、所有高处作业人员,应严格按高处作业规定执行和遵守安全纪律,拆除工艺要求。
5、建筑立体内所有窗户必须关闭锁好,不允许向外开启或向外伸挑物件。
6、拆除人员进入岗位以后,先进行检查,加固松动部位,清除步层内留的材料、物件及垃圾块。所有清理物应安全输送至地面,严禁高处抛掷。
7、按搭设的反程序进行拆除,即安全网—竖挡笆—垫铺笆—防护栏杆—搁栅—斜拉杆—连墙杆—大横杆—小横杆—立、杆。
8、不允许分立面拆除或上、下二步同时拆除(踏步式)。认真做到一步一清,一杆一清。
9、所有连墙杆、斜拉杆、隔排措施、登高措施必须随脚手架步层拆除同步进行下降。不准先行拆除。
10、所有扦件与扣件,在拆除时应分离,不允许杆件上附着扣件输送地面,或两杆同时拆下输送地面。
11、所有垫铺笆拆除,应自外向里竖立、搬运,防止自里向外翻起后,笆面垃圾物件直接从高处坠落伤人。
12、脚手架内必须使用电焊气割工艺时,应严格按照国家特殊工种的要求和消防规定执行。增派专职人员,配备料斗(桶),防止火星和切割物溅落。严禁无证动用焊割工具。
13、当日完工后,应仔细检查岗位周围情况,如发现留有隐患的部位,应及时修复或继续完成至一个程序、一个部位的结束,方可撤离岗位。
14、输送至地面的所有杆件、扣件等物件,应按类堆放整理。
九、搅拌机使用安全技术措施
1、搅拌机应设置在平坦坚实位置,用方木垫起前后轮轴,使轮胎搁高架空,以免在开动时发生走动。搅拌机架高使用时必须设操作平台,讲设防护拦杆。
2、电源接通后,必须仔细检查,经空车试转认为合格。方可使用。试运转时应校验拌筒转速是否合适,一般情况下,空车速度比重车(装料后)稍快2~3 转,如相差较多,应调整动轮与传动轮的比例。
3、拌筒的旋转方向符合箭头指示方向,如不符时,应更正电机接线。
4、检查传动离合器和制动器是否灵活可靠,钢丝绳有无损坏,轨道渡轮是否良好,周围有无障碍及各部件的润滑情况等。
5、对设有上料斗地坑的搅拌机(如TZ350 型混凝土搅拌机)坑口周围应垫高夯实,以防地面水流入坑内,上料轨道架的底端支承面应夯实或铺砖,轨道架的后面用方木支牢,防止工作时轨道变形。
6、开机后,经常注意搅拌机各部件的运转是否正常,停机时,经常检查搅拌机叶片是否打弯、螺丝有否打落或松动。
7、搅拌机料斗提升后,斗下不能有人过往,以免因制动器失灵发生意外。如确须在斗下检修或清理,须停机并将料斗用保险链条挂牢。
8、作业中,如果机械发生故障不能再运转时,应立即切断电源,将搅拌筒内混凝土清除干净,然后进行维修,如需要操作人员进入筒内清理时,除切断电源外,还应设专人在外监护或卸去熔断器并锁好电闸箱后,方可进人工作。
9、当混凝上搅拌完毕或预计停歇1 小时以上,除将余料出净外,应用石子和清水倒入拌筒内,开机转动,把粘在料筒上的砂浆冲洗干净后全部卸出。料筒内不得有积水,以免料筒和叶片生锈。同时还应清理搅拌筒外积灰,使机械保持清洁完好。
10、下班后及停机不用时,将保险丝取下,以策安全,料斗应落至坑内,必须升起则应用链条扣牢。
十、井架搭拆工程安全技术措施
1、井架搭设高度和起重必须有严格规定,严禁超负荷使用。
2、井架的底座必须安置在坚硬地基上,埋深不得少于1 米,如立在地面上,必须使用轧桩轧牢。底座轧桩不得少于8 恨,轧桩用75x75 毫米角钢,打入地下深度为1.2 米,轧桩上部必须与井架底盘连接牢固。
3、高度为10~15 米的井架应设缆凤绳一组(4~8 根);每增高之以10 米加设一组。缆风绳上端要用吊耳和卸甲连接,并用3 只以上的钢丝绳夹头紧固。缆凤绳必须采用钢丝绳。
4、井架采用附墙者应用钢性支撑与建筑物牢固连接,吊点必须经过计算。井架附墙杆不得附着在脚手架上。
5、井架搭至11 米高度必须设临时缆风,待固定缆风或附墙支撑设置后,方可拆除。缆风绳与地面夹角应为45—60 度,与地锚或桩头必须牢固连接。地锚、桩头要安全可靠,桩头后须有拖桩。如使用木桩,木桩直径不得小于15 厘米,埋深不少于1.5 米。禁止将缆凤绳栓在树木、电杆上。
6、高度在30 米以上的井架,其缆风绳上的花篮螺丝、必须加以保险,穿越马路时,要采取可靠的安全措施。
7、缆风绳不准在高压线上方通过,与高压架空线必须保持规定的安全距离。
8、井架的立柱应垂直稳定,其垂直偏差应不超过高度的千分之一,接头应相互错开,同一平面上的接头不应超过2 个。井架导向滑轮与卷扬机绳筒的距离,带槽卷筒应大于卷筒长度的15 倍,无槽光筒应大于卷筒长度的20 倍。
9、井架运输通道宽度不小于1 米,搁置点必须牢靠,通道两边必须装设防护栏杆,并装有安全门或安全栅栏。
10、井架吊篮必须装有灵敏可靠的停层装置,防坠装置、冲顶限位器和安全门,吊篮两侧装有安全挡板或网片,高度不得低于1 米,防止手推车等物件滑落。吊篮的焊接必须符合规范。
11、井架底层周围及通道口,必须装设安全防护栅,井架高度超过30米,须搭设双层安全棚,如无法设置隔离棚,则井架四周必须挂安全网,安全网应三面包满。
12、井架必须装设可靠的避雷和接地装置、卷扬机应单独接地并装设防雨罩。
13、卷扬机应采用点动开关。
14、并架吊篮与每层楼面必须有醒目的信号装置或标志。
15、装设起重把杆的井架,底部应有3~4 吨的压重物,把杆底座要高出建筑物,把杆顶部不得高于井架;起重把杆与井架的夹角应在45~70 度之间,并设保险钢丝绳。起重钢丝绳应装设限位装置。把杆不得碰到缆凤绳。
16、井架吊篮内严禁乘人。
17、井架进行保养维修工作时,必须停止使用。
18、并架的平撑、斜撑、缆凤绳等严禁随意拆除。
19、拆除井架,应先设置临时缆风。遇设有两层缆风绳的井架,应对下层缆风绳采取可靠的安全措施后,方可拆除顶层缆风绳。
20、搭拆井架要设警戒区,并指定专人负责,操作人员必须穿戴安全带。
21、井架安全装置应由定点厂家制作安装。
十一、模板工程安全技术措施
1、进入施工现场人员必须戴好安全帽,高空作业人员必须佩带安全带,并应系牢。
2、经医生检查认为不适宜高空作业的人员,不得进行高空作业。
3、工作前应先检查使用的工具是否牢固,板手等工具必须用绳链系挂在身上,钉子必须放在工具袋内,以免掉落伤人,工作时要思想集中,防止钉子扎脚和空中滑落。
4、安装与拆除5m 以上的模板,应搭脚手架,并设防护栏杆,防止上下在同一垂直面操作。
5、高空,复杂结构模板的安装与拆除,事先应有切实的安全措施。
6、遇六级以上的大风时,应暂停室外的高空作业。
7、二人抬运模板时要互相配合,协同工作。传递模板、工具应用运输工具或绳子系牢后升降,不得乱抛。组合钢模板装拆时,上下应有人接应。
钢模板及配件应随装拆随运送,严禁从高处掷下,高空拆模时,应有专人指挥。并在下面标出工作区,用绳子和红白旗加以围栏,暂停人员过往。
8、不得在脚手架上堆放大批模板等材料。
9、支撑、牵杠等不得搭在门窗框和脚手架上。通路中间的斜撑、拉杆等应设在1.8m 高以上。
10、支模过程中,如需中途停歇,应将支撑、搭头、柱头板等钉牢。
拆模间歇时,应将已活动的模板、牵杠、支撑等运走或妥善堆放,防止因踏空、扶空而坠落。
11、模板上有预留洞者,应在安装后将洞口盖好,混凝土板上的顶留洞,应在模板拆除后即将洞口盖好。
12、拆除模板一般用长撬棒,人不许站在正在拆除的模板上,在拆除楼板模板时,要注意整块模板掉下,尤其是用定型模板做平台模板时,更要注意,拆模人员要站在门窗洞口外拉支撑,防止模板突然全部掉落伤人。
13、在组合钢模板上架设的电线和使用电动工具,应用36v 底压电源或采取其他有效的安全措施。
14、装、拆模板时禁止使用2x4”木料、钢模板作立人板。
15、高空作业要搭设脚手架或操作台,上、下要使用梯子,不许站立在墙上工作;不准站在大梁底模上行走。操作人员严禁穿硬底鞋及高跟鞋作业。
16、装拆模板时,作业人员要站立在安全地点进行操作,防上上下在同一垂直面工作;操作人员要主动避让吊物,增强自我保护和相互保护的安全意识。
17、拆模必须一次性拆清,不得留下无撑模板。拆下的模板要及时清理,堆放整齐。
18、拆除的钢模作平台底模时,不得一次将顶撑全部拆除,应分批拆下顶撑,然后按顺序拆下搁栅、底模,以免发生钢模在自重荷载下一次性大面积脱落。
19、在钢模及机件垂直运输时,吊点必须符合要求,以防坠落伤人。
模板顶撑排列必须符合施工荷载要求,尤其遇地库吊装,地库顶模板,支撑还另需考虑大型机械行走因素,每平方米支撑数,必须根据载荷要求。
拆模时,临时脚手架必须牢固,不得用拆下的模板作脚手板。脚手板搁置必须牢固平整,不得有空头板,以防踏空坠落。混凝土土板上的预留孔,应在施工组织设计时就作技术交底(预设钢筋网架),以免操作人员从孔中坠落。
20、封柱于模板时,不准从顶部往下套。
21、禁止使用2x4" 木料作顶撑。
十二、附着式塔式起重机的使用安全技术措施
附着式塔式超重机的使用要点,可参照轨道式塔式超重机的使用要求进行。还需注意以下几点:
1、四级风以上应停止爬升。如爬升过程中突然遇到大风必须停工作业,并将塔身螺丝紧固。
2、爬升过程中,严禁回转,必须按说明书规定步骤操作,注意撑脚和销子的到位,Z80 吨米塔吊的升节必须有专职安全监护。
3、附着形式和位置,必须按施工组织设计的规定进行,垂直偏差须校正在千分之一之内。
4、每次附着升节后必须按规定验收通过后,才能投入施工。
十三、砌块工程施工安全技术措施
1、上班前,应对各种起重机械设备、绳索、夹具、临时脚手架和其他施工安全设施进行检查,特别是要检查夹具的有关零件是否灵活牢靠,剪刀夹悬意空吊起后夹具是否自动拉笼,夹板齿或橡胶块是否磨损,夹板齿槽中的垃圾是否清除。夹具还应定期进行检查和有关性能的测试,如发现歪曲变形、裂痕、夹板磨损等情况,应及时修理,不应勉强使用。新夹具在使用前人应认真地验收,尺寸应准确,并进行性能测试。
2、砌块在装夹前,应先检查砌块是否平稳,如果有歪斜不齐时,应在撬正后再夹,夹具的夹板在砌块的中心线上,以防止砌块起吊后歪斜。砌块起吊过程中,如发现有部分破裂,且有脱落危险的砌块,严禁继续起吊,起重拔杆回转时,严禁将砌块停留在操作人员上空或在空中修理、加工砌块,拔杆及吊钩下方不得站人或进行其它操作,砌块吊装时不准在下层楼面进行其它任何工作。利用台灵架吊装较重的构件时,台灵架应加稳绳。
3、台灵架或其它楼面起重机、起重机设备等在就位后,吊装前应检查这些设备的位置、压重、缆绳的锚口等是否符合要求,砌块或其它构件吊装时应注意被吊物体重心的位置,起重量应严格控制在允许范围内,应严格控制起重拔杆的回转半径和变幅角度,不准起吊在台灵架的前支柱之后的砌块或其它构件,不准放长吊索拖拉砌块或构件,起吊砌块后作水平回转时,应由操作人员牵引以免摇摆和碰撞墙体或临时脚乎架等。
4、卸下和堆放砌块地方应平实,无杂物、无块状物体以防止个别砌块在夹具松开后倒下伤人。在楼面卸下、堆放砌块时,应尽量避免冲击,严禁倾卸及憧击楼板,砌块的堆放应尽量靠近楼板的端部,楼面上砌块的备量,应考虑楼面的承载能力和变形情况,楼面荷载不准超过楼板的允许承载能力,否则应采取相应的加固措施,如在楼板底加设支撑等。
5、采用内脚手时,应在房屋四周按照安全技术规定的要求设置安全网,并随施工的高度上升,屋檐下一层安全网,在屋面工程完工前,不准拆除。
6、砌块施工时,不准站在墙身上进行砌筑、划线、检查墙面平整度和垂直度、刮缝、清扫墙面操作,也不准在墙身上行走。
7、砌块吊装就位时,应待砌块放稳后,方可松开夹具。
8、已经就位的砌块,必须立即进行竖缝灌浆,对稳定性较差的窗间墙独立柱和挑出墙面较多的部位,应加临时支撑,以保证其稳定性,在台风季节,应及时进行圈梁施工、加盖楼板或采取其它稳定措施。
9、在砌块、砌体上、不宜拉缆风绳,不宜吊挂重物,也不宜作其它施工临时设施,支撑的支承点,如确实需要时,应采取有效的措施。
10、遇到下列情况时,应停止吊装作业:
1)不能听清信号时。
2)起吊设备、索具、夹具等有不安全因素没有排除时。
3)大雾或照明不足时。
11、大风、大雨等异常气候之后,应检查砌体是否有垂直度的变化,是否产生了裂缝,是否有不均匀下沉等现象。
12、灰浆泵使用前,输浆管各部插口应拧紧、卡牢,管路应顺直,避免折弯,同时还应检查管道是否畅通,压力表、安全阀是否灵敏可靠,操作时应戴保护眼镜、口罩、手套,在操作过程中,应严格按照规定压力进行,如果超压和压浆管道阻塞、应知压检修,拆洗时,应先拆靠身的法兰螺丝,以防砂浆喷出伤人。
十四、砌筑工程安全技术措施
1、在操作之前:必须检查操作环境是否符合安全要求,道路是否畅通,机具是否完好牢固,安全设施和防护用品是否齐全,经检查符合要求后才可施工。
2、砌基础时,应检查和经常注意基坑土质变化情况,有无崩裂现象,堆放砖块材料应离开坑边1m 以上,当深基坑装设挡板支撑时,操作人员应设梯子上下,不得攀跳,运料不得碰撞支撑,也不得踩踏砌体和支撑上下。
3、墙身砌体高度超过地坪1.2m 时,应搭设脚手架,在一层以上或高度超过4m 时,采用里脚手架必须支搭安全网,采用外脚手架应设护身栏杆挡脚笆加立网封闭后才可砌筑。
4、脚手架上堆料量不得超过规定荷戴,堆砖高度不得超过3 皮侧砖。
5、在楼层(特别是预制板面)施工时,堆放机械、砖块等物品不得超过使用荷载,如超过荷载时,必须经过验算采取有效加固措施后方可进行堆放和施工。
6、不准站在墙顶上做划线、刮缝和清扫墙面或检查大角垂直等工作。
7、不准用不稳固的工具或物体在脚手板面垫高操作,更不准在未经过加固的情况下,在一层脚手架上随意再叠加一层,脚手板不允许有空头现象,不准用2*4 厚木料或钢模板作立入板。
8、砍砖时应面向墙内打,注意碎砖跳出伤人。
9、使用于垂直运输的吊笼、绳索具等,必须满足负荷要求,牢固无损,吊运时不得超载,并须经常检查,发现问题及时修理。
10、用起重机吊砖要用砖笼,吊砂浆的料斗不能装得过满,吊件回转范围内不得有人停留。
11、砖料运输车辆两车前后距离平道上不小于2 米,坡道上不小于10米,装砖时要先取高处后取低处,防止倒塌伤人。
12、砌好的山墙,应临时系联系杆(如擅条等)放置各跨山墙上,使其联系稳定,或采取其它有效的加固措施。
13、如遇雨天及每天下班时,要做好防雨措施,以防雨水冲走砂浆,使得砌体倒塌。
14、在同一垂直面内上下交叉作业时,必须设置安全隔板,操作人员必须戴好安全帽。
15、人工垂直向上或往下(深坑)传递砖块,架子上的站人板宽度应不小于60 厘米。
十五、外用电梯(人货电梯)安装拆卸安全技术措施
1、安装外用电梯前,应选择适当位罩,最好在施工组织设计时综合考虑电梯位置。
2、电梯与建筑物的距离,视其本机说明书的技术要求确定,在建筑结构形式施工工艺容许的情况下人应选择最小的距离。
3、外用电梯的机座基础,扶墙杆件连接埋设件应严格按本机说明书要求而设置。
4、应严格控制自由端高度,自由端高度一般不超过9m ,扶墙杆间隔按工作状况确定一般每隔6—9 米设一道扶墙。
5、室外电梯的技术状况应符合(GB10055 一88)的要求。
6、室外电梯的安装应严格控制两个方向的垂直度,不垂直度应控制在升降机安全技术验收规范所规定的数值内。
7、安装人员须经技术培训,应熟悉本机的构造和电梯安拆工作程序。
作业过程中严格按说明书的要求顺序进行安拆。
8、进入现场的作业人员必须遵守安全生产纪律,头戴安全帽,高处作业时身挂安全带。
9、安拆工作中,拆下的零部件应妥善运送,严禁高空抛扔零部件。必须设置安全警戒区域,专人监护,专人负责指挥。
10、经安装的电梯必须整机稳定,连接牢固润滑良好,各部间隙正常,限位灵敏,保险可靠。
11、调试和运行,必须遵循有关规定实施,试运转驱动高度不得超过5米。
12、安拆所需的起重设施,吊索、吊环吊钩等用具应安全可靠,不准带病操作。
十六、混凝土工程安全技术措施
1、搭设行车道板时,两头需搁置平稳,并用钉子固定,在平道板下面每隔1.5 米,需加横楞顶支撑。
2、车道板单车行走不小于1.4 米宽,双车来回不小于2.8 米宽,在运料时,前后应保持一定车距,不准奔跑,抢道或超车。到终点卸料时,双手应扶牢车柄倒料,严禁双手脱把,以防翻车伤人。
3、浇灌混凝土用脚手架,工前应检查,不符合脚手架规程要求,可拒绝使用。施工中应设专人对脚手架和模板、支撑进行检查维护,发现问题,及时处理。
4、用塔吊、料斗浇捣混凝土时,指挥扶斗人员与塔吊驾驶员应密切配合,当塔吊放下料斗时,操作人员应主动退让,应随时注意料斗碰头,并应站立稳当,防止料斗碰人堕落。
5、浇灌混凝土用的溜槽、串筒要连接安装牢固,防止堕落伤人
6、离地面2 米以上浇捣过梁、雨蓬、小平台等,不准站在搭头上操作,如无可靠的安全设备时,必须戴好安全带,并扣好保险勾。
7、使用振动机前应检查电源电压,输电必须安装漏电开关,保护电源线路是否良好,电源线不得有接头,机械运转是否正常,振动机移动时,不能硬拉电线,更不能在钢筋和其它锐利物上拖拉,防止割破拉断电线而造成触电伤亡事故。
8、振动器使用时,插入深度不准超过60cm,时间不能超过一分钟,震捣手要穿胶靴戴胶手套。
9、混凝土搅拌机使用前要检查试运转情况,确信安全可靠再操作。混凝土搅拌机开动时、不准将工具人身伸向卷筒,也不准再向卷筒内投料。
停产、换班或定期维护时,切记切断电源,锁住闸刀箱挂牢吊勾。
10、井架吊篮起吊或放下时必须关好安全门头手不准伸入井架内,待吊篮停稳时方能进入吊篮内工作。
十七、挖土工程安全技术措施
1、挖土中发现管道、电缆及其它埋设物应及时报告,不得擅自处理。
2、挖土时要注意土壁的稳定性,发现有裂缝及倾坍可能时,人员要立即离开并及时处理。
3、人工挖上,前后操作人员问距离不应小于2~3 米,堆土要在1 米以外、并且高度不得超过1.5 米。挖土应自上而下逐层挖掘、严禁采用掏洞的挖掘操作法。
4、每日或雨后必须检查土壁及支撑稳定情况,在确保安全的情况下继续土作,并且不得将上和其它物件堆在支撑上,不得在支撑下行走或站立。
5、机械挖土,启动前应检查离合器、钢丝绳等,经空车试运转正常后再开始作业。
6、机械操作中进铲不应过深,提升不应过猛。
7、机械不得在输电线路下工作,在输电线路一侧工作,不论在任何情况下,机械的任何部位与架空输电线路的最近距离应符合安全操作规程要求。
8、机械应停在坚实的地基上,如基础过差,应采取走道板等加固措施,不得将挖土机覆带与挖空的基坑平行2 米停、驶。运土汽车不宜靠近基坑平行行驶,防止坍方翻车。
9、电缆两侧一米范围内应采用人工挖掘。
10、配合拉铲的清坡、清底工人,不准在机械回转半径下工作。
11、向汽车上卸土应在车子停稳定后进行,禁止铲斗从汽车驾驶室上越过。
12、基坑四周必须设置1.5 公尺高护栏,要设置一定数量临时上下施工扶梯。
13、场内道路应及时整修,确保车辆安全畅通,各种车辆应有专人负责指挥引导。
14、车辆进出门口的人行道下,如有地下管线(道)必须铺设厚钢板,或浇捣硷加固。
15、在开挖杯基坑时,必须设有确实可行的排水措施,以免基坑积水,影响基坑土壤结构。
16、基坑开挖前,必须摸清基坑下的管线排列和地质开采资料,以利考虑开挖过程中的意外应急措施(流砂等特殊情况)。
17、清坡清底人员必须根据设计标高作好清底工作,不得超挖。如果超挖不得将松上回填,以免影响基础的质量。
18、开挖出的土方,要严格按照组织设计堆放,不得堆于基坑外侧,以免引起地面堆载超荷引起土体位移、板桩位移或支撑破坏。
19、挖土机械不得在施工中碰撞支撑,以免引起支撑破坏或拉损。
十八、外檐装饰抹灰工程安全技术措施
1、高空作业时、应检查脚手架是否牢固,特别是在大风及雨后作业。
2、对脚手板不牢固之处和空头板等及时处理:要铺有足够宽度,以保证手推车运灰浆时的安全
3、在架子上工作,工具和材料要放置稳当,不许随便乱扔。
4、用塔吊上料时,要有专人挥挥,遇六级以上大风时暂停作业。
5、砂浆机应有专人操作维修、保养,电器设备应绝缘良好并接地。
6、严格控制脚手架施工超负载。
7、不准随意拆除、斩断脚手架软硬拉结,不准随意拆除脚手架上的安全设施,如妨碍施工必须经施上负责人批准后,方能拆除妨碍部位。
十九、油漆工程安全技术措施
1、施工场地应有良好的通风条件,如在通风条件不好的场地施工时必须安装通风设备,方能施工。
2、在用钢丝制、板挫、气动、电动工具清除铁锈、铁鳞时为避免眼睛沾污和受伤,需戴上防护眼镜。
3、在涂制或喷涂对人体有害的油漆时,需戴上防护口罩,如对眼睛有害,需戴上密团式眼镜进行保护。
4、在涂制红丹防锈漆及含铅颜料的佃漆时,应注意防止铅中毒,操作时要戴口罩。
5、在喷涂硝基漆或其他发挥性、易燃性溶剂稀释的涂料不准使用明火。
6、高空作业需戴安全带。
7、为了避免静电集聚引起事故,对罐体涂漆或喷涂应安装接地线装置。
8、涂刷大面积场地时,(室内)照明和电气设备必须按防火等级规定进行安装。
9、操作人员在施工时感觉头痛、心悸或恶心时,应立即离开工作地点,到通风处换换空气。如仍不舒畅,应去保健站治疗。
10、在配料或提取易燃品对不得吸烟,浸擦过清油、清漆、油的棉纱、擦手布不能随便乱丢。
11、使用人字梯不准有断档,拉绳必须结牢并不得站在最上一层操作,不要站在高梯上移位,在光滑地面操作时,梯子脚下要绑布和胶布。
12、不得在同一脚手板上交插工作面。
13、油漆仓库明火不准人内,须配备灭火机。不准装小太阳灯。
二十、装卸工作安全技术措施
1、搬运工在搬运前必须认真学习本操作规程中的装卸要求,并遵照执行,对零星装卸也要符合安全运输的有关规定。
2、起重搬运各种大小设备时,必须统一规定口号、统一指挥进行操作。
3、起重搬运工具,使用前必须进行检查,不符合安全规定的不准使用。
4、搬运机器,必须查明重量、尺寸、装卸地点后,才能操作。
5、装运各种材料、物件时严禁超载、超高、超宽、超长。
6、车辆未停稳,严禁人在车辆上操作或上下扒车,物件堆放要平稳;
车辆行驶时,禁止人坐在栏板上或车顶高处,并不准站在物件的顶头,防止急刹车物件往前突然移动而轧伤人,装运构件,必须选好头木、挂好紧线器,防止物件倒坍造成事故。
7、密切配合驾驶员,车辆进出照顾前后,倒车、转弯、领车、正常行驶时应注意前后左右马路上的动态。
8、装卸乙炔、氧气瓶时应轻装轻卸,严禁抛、滑、滚、碰。
二十一、装饰工程
1、清理楼面时,禁止从窗口、留洞口和阳台等处直接向外抛扔垃圾。
杂物。
2、剔凿地面时要带防护眼镜。
3、夜间施工或在光线不足的地方施工时,应采用36V 低压照明设备,地库照明用电不超过12V。
4、非机电人员不准乱动机电设备。
5、用卷扬机井架(上落笼)作垂直运输时,要注意联络信号,待吊笼平层稳定后再进行装卸操作。
6、室内推手推车拐弯时,要注意防止车把挤手。
7、室内抹灰时使用的木凳、金属脚手架等架设应平稳牢固,脚手板跨度不得大于2m,架上堆放材料不得过于集中,在同一跨度的脚手板内不应超过两人同时作业。
8、不准在门窗、洗脸池等器件上搭设脚手板。阳台部位粉刷,外侧没有脚手架时、必须挂设安全网。
9、使用砂浆搅拌机搅拌砂浆,往拌筒内投料时,拌叶转动时不得用脚踩或用铁铲。木棒等工具拨刮筒口的砂浆或材料。
10、使用脚手架,应先检查是否牢靠。护身栏,挡脚板。平桥扳是否齐全可靠,发现问题应及时修整好,才能在上面操作;脚手架上放置料具要注意分散并放平稳,不许超过规定荷载,严禁随意向下抛掷杂物。
11、使用手提电动机,应接好地线及防漏电保护开关,使用前应试运转,检查合格后,才能操作。
二十二、油漆工程
1、使用煤油、汽油、松节水、丙酮等易燃物调配油料,应配带好防护产品,不准吸烟。
2、粘染溶剂型涂料或稀释油类的棉纱,破布等物,应全部收集存放在有盖的金属箱内,待不能使用时应集中消毁或用碱剂将油污洗净以备再用
3、用钢丝刷、板挫、气动或电动工具清除铁锈。铁鳞时,需戴上防护眼镜。在涂刷红丹防锈漆及含铅颜料的油漆时,要注意防止铅中毒,操作时要戴口罩。
4、刷涂作业过程中,如感到头痛、恶心、心闷或心悸时,应立即停止作业到户外呼吸新鲜空气。
所有现场使用的施工机械均应在安装完毕后,向公司安全部门验收合格后,才可使用。
1、搅拌机安装平稳、牢固,行走轮要离开地面,极左要离开地面,便于出料。
2、开机前电器及设备良好,空转运行,待机械运转正常后,再加料搅拌。
3、要边加料边加水,不能加足料后再启动,投料不可超过规定容量。
4、加料时,工具不能碰撞搅拌叶,更不能在运转中把工具伸进搅拌斗内扒料。
5、料斗内不得进入杂物,清除杂物时,必须停机进行。
6、发生故障,应断电停机,查找原因,不得用工具撬动等危险方法,强行机械运转。
7、进料口处必须设置安全铁栅,使用时,不能随意拆掉,拆除清理需要及时安装好。
8、工作完毕要将搅拌机清洗干净。清理时不得使电机和闸具受潮。
2、卷扬机司机应经专业培训持证上岗。作业时要精神集中,发现视线内有障碍物时,要及时清除,信号不清时,不得操作。
3、作业前,应先空转确认电气、制动以及环保情况良好才能操作,操作人员应详细了解当班作业的主要内容和工作量。
4、当被吊物没有完全落地在地面时,司机不得离岗。休息或暂停作业时,必须将物件或吊笼降至地面。下班后,应切断电源,关好电闸箱。
5、使用单转卷扬机,必须用刹车控制下降速度,不能过快和猛急刹车,要缓缓落下。
6、留在卷筒上的钢丝绳应保留3—5 圈。
7、司机应随时注意操作条件及钢丝绳的磨损情况。当荷载变化后,第一次提升时,应先离地0.5m 稍停,检查无问题时再继续上升。
8、禁止使用搬把型开关,防止发生碰撞误操作。
9、钢丝绳要定期涂黄油。
1、水泵的安装应牢固、平稳,有防雨措施。多台水泵并列安装时,间距不小于80cm。管径较大的进出水管,须用支架支撑,转动部分要有防护装置。
2、电动机轴应与水泵轴同心,螺栓要坚固,管路密封,接口严密,吸水管阀无堵塞,无漏水。
3、起动时,应将出水阀关闭,起动后逐渐打开。
4、动行中,若出现漏水、漏气、填料部位发热、机温升高、电流突然增大等不正常现象,要停机检修。
5、水泵动行中,不得从机上跨越。
6、升降吸水管量,要站到有防护栏杆的平台上操作。
7、应先停机,后关闭出水阀。
1、安装承受架时,承受架料槽中心线应对准导向筒、调直筒和下切刀孔的中心线。
2、安装完毕后,应先检查电气系统及其元件有无损坏,机器连接零件是否牢固可靠,各转动部分是否灵活。确信各部分正常后,方可试运转。
试动中应检查轴承温度,查看锤头、切刀及剪切齿轮等工件是否正常。确认无异状况时,进料、试验调直和切断。
3、按所需调直钢筋的直径,选适当的调直块、曳引轮槽及传速度。调直块的孔径应比钢筋直径大2—5mm,曳引轮槽宽,应和所需调直钢筋的直径相符。
4、必须注意调整调直块。调直筒内,一般设有五个调直块,第1、5两个调直块须放在中心线上,中间三个可偏离中心线。先使钢筋偏移3mm左右的偏移量,经过试调直,如钢筋仍有慢弯,可逐渐加大偏移量直到调为止。
5、切断三、四根钢筋后,停机检查其长度是否合适。如长度有偏差,可调整限位开关或定尺板。
6、导向筒前部,应安装一根长度为1m 左右的钢管。需调直的钢筋先穿过该钢管,然后穿入导向筒和调直筒,以防止每盘钢筋接近调直完毕时其端头飞出伤人。
7、在调直块未固定、防护罩未盖好前,不得穿入钢筋, 防止开动机器后调直块飞出伤人。
(二)钢筋切断机
1、使用前应查看刀片安装是否正确。固定刀与活动刀间隙以0.5—1mm为宜。
2、必须确认空载试运转正常后方能投入使用。
3、断料时,必须将钢筋握紧,应在活动刀向后退时,把钢筋送入刀口,以防止钢筋末端摆动或飞出伤人。
4、切短钢筋时,必须用钳子夹紧送料。铁屑、铁末等脏物不得用手抹除。
5、严禁切断规定范围外的钢材、烧红的钢筋以及超过刀刃硬度的材料。
6、使用电动液压钢筋切断机时,要先松开放油阀,空载运转几分钟,排掉缸内空气,然后拧紧并用手板动钢筋给活动刀以回程压力,即可进行工作。
(三)钢筋弯曲机
1、使用前,应对钢筋弯曲机进行全面检查,并进行载试转。
2、机身应有接地,电源不允许直接接在按扭上,应另装开关箱。
3、不准在运转中更换中心轴、成型轴或挡铁轴。严禁在运转过程中加油或擦抹机床。
4、钢筋的放置要和挡铁轴、工作盘旋转方向配合,不要放反。
5、不直钢筋,禁止在弯曲机上弯曲,以防发生事故。
6、弯曲钢筋时,严禁超过本机规定的钢筋直径、根数及机械转速。
7、严禁在弯曲钢筋的作业半径内和机身不设销的一侧站人。弯曲好的半成品应堆放整齐,弯钩不得朝上。
(四)钢筋冷拉机
1、冷拉场地在两端地锚外侧设置警戒区,装高防护栏杆及警告标志。
2、作业前,应检查冷拉夹背夹齿必须完好,滑轮、拖拉小车应润滑灵活。拉钩、地锚及防护装置均齐全牢固。确认良好后方可作业。
3、卷扬机操作人员必须看到指挥人员发出信号,并待所有人员离开危险区后方可作业。冷拉应缓慢、均匀地进行,随时注意停车信号或见到有人进入危险区时,应立即停拉,并稍稍放松卷扬机钢丝绳。
4、用延伸率控制的装置,必须装设明显的限位标志,并要有专人负责指挥。
5、电器设备必须安全可靠,导线绝缘必须良好,电动机和起动器外壳必须接地。
6、地垄的设置和抗拉强度的计算,应由满足有关规定要求。
1、锯片上方必须装置安全罩、档板和滴水装置。在锯片后面,离齿10—15mm 处,必须安装弧形楔方。锯片的安装,应保持与轴同心。
2、锯片必须平整,锯齿应尖锐,不得连续缺齿两个,裂纹长度不得超过20mm,裂缝末端应冲上裂纹。
3、圆锯启动后,应待转速正常后方可进行锯料。送料时不得将木料左右晃动或高抬,遇木节要缓缓送料。锯料长度应不小于50mm。接近端头时,应用推杆送料。
4、锯线走偏,应逐渐纠正,不准猛扳,以免损坏锯片。
5、锯片运转时间过长,温度过高时,应用水冷却,直径600mm 以上的锯片的操作中,应喷水冷却。
(二)平面刨(手压刨)
1、必须设置齐全防止刨削手指的护手装置,才准使用。
2、刨料时,手应按在料的上面,手指必须离开刨口50mm 以上。严禁用手在木料后端送料跨越刨口进行刨削。
3、被刨木料的厚度小于30mm,长度小于400mm 时,必须用压板或木棍,不得用手推进。
4、被刨木料如有破裂或硬节等缺陷时,必须处理后再刨。刨旧料前,必须将料上的钉子、杂物清除干净。遇木槎、节疤要缓慢送料。严禁将手放在节疤上送料。
5、刀片和刀片螺丝的厚度、重量必须一致,刀架夹板必须平整贴紧,合金刀片焊缝的高度不得超出刀头,刀片坚固螺丝应嵌入刀片槽内,槽端离刀背不得小于10mm。紧固刀片螺丝钉片螺丝时,用力应均匀一致,不得过松或过紧。
6、机械运转时,不得进行维修,更不得移动或拆除护手装置进行刨削。严禁带手套操作。
1、焊接工作开始前,应首先检查焊机和工具是否完好和安全可靠。如焊钳和焊接电缆的绝缘是否有损坏的地方、焊机的外壳接地和焊机的各线点触是否良好。不允许未进行安全检查就开始操作。
2、在狭小空间、容器和管道内工作时,为防止触电,必须穿绝缘鞋,脚下垫有橡胶板或其他绝缘衬垫;最好两人轮换工作,以便互相照看。否则就需有一名监护人员,随时注意操作人的安全情况,一遇有危险情况,就立即切断电源进行抢救。
3、身体出汗后而使衣服潮湿时,切勿靠在带电的钢板或工件上,以防触电。
4、工作地点潮湿时,地面应铺有橡胶板或其他绝缘材料。
5、更换焊条一定要戴皮手套,不要赤手操作。
6、在带电情况下,为了安全,焊钳不得夹在腋下去搬被焊工件或将焊接电缆挂在脖颈上。
7、推拉闸刀开半时,脸部不允许直对电闸,以防止短路造成的火花炼伤面部。
8、下列操作必须在切断电源后才能进行:
更改焊机接头时;
更换焊件需要改接二次回路时;
更换保险装置时;
焊机发生故障需进行检修时;
转移工作地点搬动焊机时;
工作完毕或临时离开工作现场时。
9、电焊、气割,严格遵守“十不烧”规程操作。
10、操作前应检查所有工具、电焊机、电源开关及线路是否良好,金属外壳应有安全可靠接地,进出级应有完整的防护罩,进出端应用铜接头焊牢。
11、每台电焊机应有专用电源控制开关。开关的保险丝容量,应为该机的1.5 倍,严禁用其它金属丝代替保险丝,完工后,切断电源。
12、电气焊的弧火花点必须与氧气瓶、电石桶、乙炔瓶、木材、油类等危险物品的距离不少于10 米。与易爆物品的距离不少于20 米。
13、乙炔瓶氧气瓶均应设有安全回火防止器,并分开堆放,橡皮管连接处须用轧头固定。
14、氧气瓶,严防沾染油脂、有油脂衣服、手套等,禁止与氧气瓶、减压阀、氧气软管接触。
15、清除焊渣时,面部不应正对焊纹,防止焊渣溅入眼内。
16、经常检查氧气瓶与磅表头处的螺绞是否滑牙,橡皮管是否漏气,焊枪嘴和枪身有无阻塞现象。
17、注意安全用电,电线不准乱拉,电源线均应架空扎牢。
18、焊割点周围和下方应采取防火措施,并应指定专人防火监护。
1、搅拌机应设置在平坦坚实位置,用方木垫起前后轮轴,使轮胎搁高架空,以免在开动时发生走动。搅拌机架高使用时必须设操作平台,并设防护拦杆。
2、电源接通后,必须仔细检查,经空车试转认为合格,方可使用。试运转时应校验拌筒转速是否合适,一般情况下,空车速度比重车(装料后)稍快2-3 转,如相差较多,应调整动轮与传动轮的比例。
3、拌筒的旋转方向符合箭头指示方向,如不符时,应更正电机接线。
4、检查传动离合器和制动器是否灵活可靠,钢丝绳有无损坏,轨道导轮是否良好,周围有无障碍及各部件的润滑情况等。
5、对设有上料斗地坑的搅拌机(如TZ350 型混凝土搅拌机)坑口周围应垫高夯实,以防地面水流入坑内,上料轨道架的底端支承面应夯实或铺砖,轨道架的后面用方木支牢,防止工作时轨道变形。
6、开机后,经常注意搅拌机各部件的运转是否正常,停机时,经常检查搅拌机叶片是否打弯、螺丝有否打落或松动。
7、搅拌机料斗提升后,斗下不能有人过往,以免因制动器失灵发生意外。如确须在斗下检修或清理,须停机并将料斗用保险链条挂牢。
8、作业中,如果机械发生故障不能再运转时,应立即切断电源,将搅拌筒内混凝土清除干净,然后进行维修,如需要操作人员进入筒内清理时,除切断电源外,还应设专人在外监护或卸去熔断器并锁好电闸箱后,方可进人工作。
9、当混凝上搅拌完毕或预计停歇1 小时以上,除将余料出净外,应用石子和清水倒入拌筒内,开机转动,把粘在料筒上的砂浆冲洗干净后全部卸出。料筒内不得有积水,以免料筒和叶片生锈。同时还应清理搅拌筒外积灰,使机械保持清洁完好。
10、下班后及停机不用时,将保险丝取下,以策安全,料斗应落至坑内,必须升起则应用链条扣牢。
1、成立专业小组:由生产主管、技术主管、安质组、起重工、钳工、电工、塔吊司机所组成。由生产主管统一指挥、统一领导。做好安装前的准备工作,如检查基础是否符合要求,安装件是否齐全完好。
2、工作前确定安装方案,使参加人了解其全过程。
3、高空作业人员,必须由有经验的架子工、起重工(持上岗证)组成,并经身体检查无防碍高空作业疾病者方能参加。
4、高空作业人员必须穿戴防滑鞋、安全带、安全帽。
5、高空作业人员要备有工具袋,将工具或紧固件装袋或装箱,不得乱丢。
6、作业期间,所有人员不得饮酒;热天注意防暑。
7、做好工具准备:其中包括专用工具、通用工具、溜绳、撬杠、铅丝等。
8、铺设好电缆,接通电源。
9、设专职安全员一名,围好工作场地,做好行人路口的监督,以防坠落物伤人。作业期间,安全员不离开现场。
(二)使用安全技术措施
附着式塔式起重机的使用要点,可参照轨道式塔式起重机的使用要求进行,还需注意以下几点:
1、四级风以上应停止爬升。如爬升过程中突然遇到大风必须停工作业,并将塔身螺丝紧固。
2、爬升过程中,严禁回转,必须按说明书规定步骤操作,注意撑脚和销子的到位,Z80 吨米塔吊的升节必须有专职安全监护。
3、附着形式和位置,必须按施工组织设计的规定进行,垂直偏差须校正在千分之一之内。
4、每次附着升节后必须按规定经公司安全部验收通过后,才能投入施工。
1、混凝土泵使用前,应压送水、水泥砂浆或水泥湿润输送管线和泵体。
2、开始泵送时,混凝土泵操作人员应使混凝土低速运转,并应注意观察泵的压力和各部分工作情况,待工作正常能顺利泵送后,再提高运转速度、加大行程,转入正常的泵送。正常泵送时,活塞应尽量采用大行程运转。
3、正常泵水过程中宜保持连续泵送,尽量避免泵送中断。若混凝土供应不及时,宁可降低速度,也要保持连续泵送。
4、在泵送过程中,要定时检查活塞的冲程,不使其超过允许的最大冲程。
5、在混凝土泵送过程中,如需接长输送管,须预先用水或砂浆湿润接长的管段。每次接长一般以3m 为宜。
6、在泵送过程中如出现混凝土泵送困难、泵的压力急剧升高或输送管线产生较大的推动力等异常情况时,不应勉强提高压力进行泵送。应用木槌敲击管线中的锥形管、弯管等部位,使泵进行反转或放慢泵送速度,以防止管线堵塞。如输送管线产生堵塞,可用木槌敲击等方法查明堵塞部位,待混凝土卸压后拆卸堵塞管线加以排除。重新泵送时,要待管内空气排尽后,才能将拆卸过的管段接头拧紧。
7、高温气候进行泵送施工时,泵的受料斗和输送管线宜用湿麻袋或草包包裹、覆盖,并经常洒水降温。
8、在泵送混凝土过程中,受料斗内应充满混凝土,以防止吸入空气。
如吸入空气,应立即反泵将混凝土吸回料斗内,支除空气后再转为正常泵送。
9、泵工作时,水箱应充满洗涤水,并应经常更换和补充。工作完毕后,应及时清洗。清洗时,从进料口塞入海绵球,然后泵水或用压缩空气将输送管线中的混凝土推出。清洗用水不得排入浇筑的混凝土内,清洗之前一定要反泵吸料,降低管线内的剩余压力。
1、配电箱应装设在干燥、通风及常温场所,配电箱设有防雨防尘措施。
2、固定式配电箱的下底与地面的垂直距离大于1.3 米、小于1.5 米,移动式配电箱尺寸大于0.6 米、小于1.5 米。
3、每台用电设备备用专用的开关箱,实行“一机一闸、一箱、一锁、一漏电”保护制,严禁用同一开关电器直接控制二台及二台以上的用电设备(含插座),并按规定正确使用漏电开关。
4、配电箱中导线的进出线口设在箱体的下面,进出线加护套分路成束,并做好防水弯,导线束不得与箱体进出口直接接触。
5、配电箱中熔丝必须符合要求,不得堆放杂物,凡现场停止作业一小时以上,应将动力开关箱断电上锁。
1、从二层楼面起张设安全网,往上每隔四层设置一道,安全网必须完好无损、牢固可靠。
2、拉结必须牢靠,墙面预埋张网钢筋不小于D14,钢筋埋入长度不少于30D。
3、电梯井道防护安全网不得任意拆除,待安装电梯搭设脚手架时,每搭到安全网高度时方可拆除。
4、电梯井道的脚手架一律用钢管、扣件搭设、立杆与横杆均用直角扣件连接,扣件紧固力距应达到4—5Kg/m。
5、脚手架所有横楞两端,均与墙面撑紧,四周横楞与墙面距离,平衡配重一侧为600 毫米,其它三侧均为400 毫米,离墙空档处应加隔排钢管,间距不大于200 毫米,隔排钢管离四周墙面不大于200 毫米。
6、脚手架柱距不大于1.8 米,排距为1.8 米,每底于楼层面200 毫米处加搭一排横楞,横向间距为350 毫米,满铺竹笆,竹笆一律用铅丝与钢管四点绑扎牢固。
7、脚手架拆除顺序应自上而下进行,拆下的钢管、竹笆等须妥善运出电梯井道,禁止乱扔乱抛。
8、电梯井道内的设施,必须由脚手架保养人员定期进行检查、保养,发现隐患及时消除。
9、张设安全网及拆除井道内设施时,操作人员必须戴好安全带,挂点必须安全可靠。
1、搭设金属扣件双排脚手架,特别用于高层建筑的。必须严格按国家《建筑安装安全技术规程》、广东省建委关于《高层建筑双排钢管脚手架施工规定》和施工组织设计的要求进行设计和搭设。
2、搭设前应严格进行钢管的筛选,凡严重锈蚀、薄壁、严重弯曲及裂变的杆件不宜采用。
3、严重锈蚀、变形、螺栓螺纹已损坏的扣件不宜采用。
4、脚手架的基础除按规定设置外,必须做好排水管外埋。
5、高层钢管脚手架座立于槽钢上的,必须有地杆连接保护,普通脚手架立杆必须设底座保护。
6、不宜采用承插式钢管做底部立杆交错之用。
7、所有扣件紧固力矩,应达到4—5kg·m。
8、同一立面的小横杆,应对等交错设置,同时立杆上下对直。
9、斜杆接长,不宜采用对接扣件,应采用叠交方式;二只回转扣件接长,搭接距离视二只扣件间隔不少于0.4M。
10、脚手架的主要杆件,不宜采用木、竹材料。
11、高层建筑金属脚手架的拉杆,不宜采用铅丝攀拉,必须使用埋件形式的钢性材料。
1、拆除现场必须设警戒区域,张挂醒目的警戒标志。警戒区域内严禁非操作人员通行或在脚手架下方继续组织施工。地面监护人员必须履行职责。高层建筑脚手架拆除,应配备良好的通讯装置。
2、仔细检查吊运机械包括索具是否安全可靠。吊运机械不允许搭设在脚手架上,应另立设置。
3、如遇强风、雨、台风等特殊气候,不应进行脚手架的拆除。夜间实施拆除作业,应具备良好的照明设备。
4、所有高处作业人员,应严格按高处作业规定执行和遵守安全纪律,按拆除工艺要求进行拆除。
5、建筑立体内所有窗户必须关闭锁好,不允许向外开启或向外伸挑物件。
6、拆除人员进入岗位以后,先进行检查,加固松动部位,清除步层内留的材料、物件及垃圾块。所有清理物应安全输送至地面,严禁高处抛掷。
7、按搭设的反程序进行拆除,即安全网—竖挡笆—垫铺笆—防护栏杆—搁栅—斜拉杆—连墙杆—大横杆—小横杆—立、杆。
8、不允许分立面拆除或上、下二步同时拆除(踏步式)。认真做到一步一清,一杆一清。
9、所有连墙杆、斜拉杆、隔排措施、登高措施必须随脚手架步层拆除同步进行下降,不准先行拆除。
10、所有扦件与扣件,在拆除时应分离,不允许杆件上附着扣件输送地面,或两杆同时拆下输送地面。
11、所有垫铺笆拆除,应自外向里竖立、搬运,防止自里向外翻起后笆面垃圾物件直接从高处坠落伤人。
12、脚手架内必须使用电焊气割工艺时,应严格按照国家特殊工种的要求和消防规定执行。增派专职人员,配备料斗(桶),防止火星和切割物溅落。严禁无证动用焊割工具。
13、当日完工后,应仔细检查岗位周围情况,如发现留有隐患的部位,应及时修复或继续完成至一个程序、一个部位的结束,方可撤离岗位。
14、输送至地面的所有杆件、扣件等物件,应按类堆放整理。
2、井架的底座必须安置在坚硬地基上,埋深不得少于1 米,如立在地面上,必须使用轧桩轧牢。底座轧桩不得少于8 恨,轧桩用75x75 毫米角钢,打入地下深度为1.2 米,轧桩上部必须与井架底盘连接牢固。
3、高度为10-15 米的井架应设缆风绳一组(4-8 根);每增高之以10 米加设一组。缆风绳上端要用吊耳和卸甲连接,并用3 只以上的钢丝绳夹头紧固。缆风绳必须采用钢丝绳。
4、井架采用附墙者应用钢性支撑与建筑物牢固连接,吊点必须经过计算,井架附墙杆不得附着在脚手架上。
5、井架搭至11 米高度必须设临时缆风,待固定缆风或附墙支撑设置后,方可拆除。缆风绳与地面夹角应为45-60 度,与地锚或桩头必须牢固连接。地锚、桩头要安全可靠,桩头后须有拖桩。如使用木桩,木桩直径不得小于15 厘米,埋深不少于1.5 米。禁止将缆风绳栓在树木、电杆上。
6、高度在30 米以上的井架,其缆风绳上的花篮螺丝必须加以保险,穿越马路时,要采取可靠的安全措施。
7、缆风绳不准在高压线上方通过,与高压架空线必须保持规定的安全距离。
8、井架的立柱应垂直稳定,其垂直偏差应不超过高度的千分之一,接头应相互错开,同一平面上的接头不应超过2 个。井架导向滑轮与卷扬机绳筒的距离,带槽卷筒应大于卷筒长度的15 倍,无槽光筒应大于卷筒长度的20 倍。
9、井架运输通道宽度不小于1 米,搁置点必须牢靠,通道两边必须装设防护栏杆,并装有安全门或安全栅栏。
10、井架吊篮必须装有灵敏可靠的停层装置,防坠装置、冲顶限位器和安全门,吊篮两侧装有安全挡板或网片,高度不得低于1 米,防止手推车等物件滑落。吊篮的焊接必须符合规范。
11、井架底层周围及通道口,必须装设安全防护栅,井架高度超过30米,须搭设双层安全棚,如无法设置隔离棚,则井架四周必须挂安全网,安全网应三面包满。
12、井架必须装设可靠的避雷和接地装置、卷扬机应单独接地并装设防雨罩。
13、卷扬机应采用点动开关。
14、井架吊篮与每层楼面必须有醒目的信号装置或标志。
15、装设起重把杆的井架,底部应有3~4 吨的压重物,把杆底座要高出建筑物,把杆顶部不得高于井架;起重把杆与井架的夹角应在45~70 度之间,并设保险钢丝绳。起重钢丝绳应装设限位装置。把杆不得碰到缆风绳。
16、井架吊篮内严禁乘人。
17、井架进行保养维修工作时,必须停止使用。
18、井架的平撑、斜撑、缆凤绳等严禁随意拆除。
19、拆除井架,应先设置临时缆风绳。遇设有两层缆风绳的井架,应对下层缆风绳采取可靠的安全措施后,方可拆除顶层缆风绳。
20、搭拆井架要设警戒区,并指定专人负责,操作人员必须穿戴安全带、安全帽。
21、井架安全装置应由定点厂家制作安装。
1、搬运工在搬运前必须认真学习有关操作规程中的装卸要求,并遵照执行,对零星装卸也要符合安全运输的有关规定。
2、起重搬运各种大小设备时,必须统一规定口号、统一指挥进行操作。
3、起重搬运工具,使用前必须进行检查,不符合安全规定的不准使用。
4、搬运机器,必须查明重量、尺寸、装卸地点后,才能操作。
5、装运各种材料、物件时严禁超载、超高、超宽、超长。
6、车辆未停稳,严禁人在车辆上操作或上下扒车,物件堆放要平稳;
车辆行驶时,禁止人坐在栏板上或车顶高处,并不准站在物件的顶头,防止急刹车物件往前突然移动而轧伤人,装运构件,必须选好枕木、挂好紧线器,防止物件倒坍造成事故。
7、密切配合驾驶员,车辆进出照顾前后,倒车、转弯、领车、正常行驶时应注意前后左右马路上的动态。
8、装卸乙炔、氧气瓶时应轻装轻卸,严禁抛、滑、滚、碰。
工地现场设置连续、密闭的砖砌围墙,高度不低于2.3 米,牢固完整,整齐美观,围墙外部做简易装饰,色彩与周围环境协调。场地出人口庄重美观,门扇作成密闭不透式。
2、现场工程标志牌设计
严格按深圳市建设局文件规定的尺寸和规格制作。
现场设置工程标牌(五牌一图):
施工总平面图
工程概况牌
文明施工管理牌
组织网络牌
安全纪录牌
防火须知牌
其中,工程概况牌设置在工地大门入口处,载明项目名称、规模、开竣工日期、施工许可证号、建设单位、设计单位、质量、安全监督单位、施工单位、监理单位和联系电话等。
3、临设布置
临时建筑物、构筑物包括办公用房、宿舍、食堂、卫生间及化粪池、水池皆用砖砌,要求稳固、安全、整洁,并满足消防要求,集体宿舍位与作业区隔离,人均床铺面积不小于2 平方米,适当分隔,防潮。通风。采光性能良好。按规定架设用电线路,严禁任意拉线接电,严禁使用电炉和明火烧煮食物。(见施工总平面布置图)。
4、成品、半成品、原材堆放
严格按施工组织设计中的平面布置图划定的位置堆放成品、半成品和愿材料,所有材料应堆放整齐。
5、现场场地和道路
场内道路要平整、坚实、畅通。主要场地应全部硬底化。并设置相应的安全防护设施和安全标志。施工现场内有完善的排水措施,不允许有积水存在。
6、污水的处理和排放
场内设沉淀池和化粪池,并做到:
(1)、所有的生活或其它污水必须分别处理后才能排入市政排水管道。
杜绝运输中泥浆、散体。流体物料撒漏。车辆出工地前,轮胎、车身必须冲洗干净,并防止掉土污染路面。
(2)、如有施工产生的泥浆,未经沉淀不得排入市政管网或河流。废浆和淤泥应使用封闭的专用车辆进行运输。
7、粉尘控制
(1)、未做硬地化的场地,要定期压实地面和洒水,减少灰尘对周围环境的污染。
(2)、禁止在施工现场焚烧有毒。有害和有恶臭气味的物质。
(3)、装卸有粉尘的材料时,应洒水湿润和仓库内进行。
(4)、严禁向建筑物外抛掷垃圾。
8、噪音控制
(1)、尽量采用低噪音的施工工艺和方法。
(2)、当施工作业噪音可能超过施工现场的噪声限值时,应在开工前向建设行政主管部门和环保部门申请,核准后才能开工。
(3)、禁止在夜间11 点至早上7 点、中午12 点至下午2 点进行产生噪音的建筑施工作业。若由于施工不能中断的技术原因和其他特殊情况,确需在该时段连续施工作业的,应向建设行政主管部门和环保部门申请,核准后才能开工。
9、运输车辆
(1)、运输车辆必须冲洗干净后才能离场上路行使。
(2)、装运建筑材料、土石方。建筑垃圾及工程渣土的车辆,应采取有效措施,保证行使途中不污染道路和环境。
10、现场卫生管理
(1)、明确施工现场各区域的卫生责任人。
(2)、食堂必须申领卫生许可证,并应符合卫生标准,生、熟食操作应分开,熟食操作时应有防蝇间或防蝇罩。禁止使用食用塑料制品作熟食容器,炊事员和茶水工需持有效的健康证明上岗。
(3)、施工现场应设置卫生间)并有水源供冲洗,同时设简易化粪池或集粪池,加盖并定期喷药,每日有专人负责清洁。
(4)、设置足够的垃圾池和垃圾桶,定期搞好环境卫生、清理垃圾,施药除“四害”。
(5)、建筑垃圾必须集中堆放并及时清运。做到工完场清。
(6)、工地应设茶水亭和茶水桶,做到有盖、加锁和有标志。
(7)、夏季施工应有防暑降温措施。
(8)、配备保健药箱,购置必要的急救、保健药品。
11、现场安全、保卫
(1)、建立健全安全、保卫制度,落实治安、防火。计划生育管理责任人。
(2)、施工现场配备专职保卫人员,昼夜值班,做好进入施工现场人员的登记手续,防止外来人员随便进入施工现场。施工现场的车辆必须登记进场,在场内要服从现场人员的调度安排。
(3)、施工现场的管理人员、作业人员必须配佩工作卡,标明相片、姓名、单位、工种或职务,管理人员和作业人员的标卡应分颜色区别。
(4)、现场不准留宿家属及闲杂人员。
12、文明施工教育
施工现场要利用黑板报和其它形式对员工进行法纪宣传教育工作,使施工现场各类施工人员知法、懂法并自觉遵守和维护国家的法律法令,提高员工的法纪观念,防止和杜绝盗窈、斗殴及进行黄、赌、毒等非法活动的发生。
本工程招标文件要求工期很紧,要在保证质量和安全的基础上,确保施工进度,以总进度网络为依据,按不同施工阶段、不同专业工种分解为不同的进度分目标,以各项技术、管理措施为保证手段,进行施工全过程的动态控制。
一、目标
确保在计划工期内完成任务,力争提前竣工。
二、进度控制的方法
1、按施工阶段分解,突出控制节点。
以关键线路和次关键线路为线索,以网络计划中心起止里程碑为控制点,在不同施工阶段确定重点控制对象,制定施工细则。达到保证控制节点的实现。
2、按施工单位分解,明确分部目标。
以总进度网络为依据,明确各个单位的分包目标,通过合同责任书落实分包责任,以分头实现各自的分部目标来确保总目标的实现。
3、按专业工种分解,确定交接时间。
在不同专业和不同工种的任务之间,要进行综合平衡,并强调相互间的衔接配合,确定相互交接的日期,强化工期的严肃性,保证工程进度不在本工序造成延误。通过对各道工序完成的质量与时间的控制达到保证各分部工程进度的实现。
4、按总进度网络计划的时间要求,将施工总进度计划分解为年度、季度、月度和旬期进度计划。
三、强化进度计划管理
1、工程开工前,必须严格根据施工招标书的工期要求,提出工程总进度计划,并在对其是否科学、合理,能否满足合同规定工期要求等问题,进行认真细致论证。
2、在工程施工总进度计划的控制下,施工过程,坚持逐月(周)编制出具体的工程施工计划和工作安排,并对其科学性、可行性进行认真的推敲。
3、工程计划执行过程,如发现未能按期完成工程计划,必须及时检查分析原因,立即调整计划和采取补救措施,以保证工程施工总进度计划的实现。
四、施工进度的控制
施工进度计划的控制是一个循环渐进内的动态控制过程,施工现场的条件和情况千变万化,项目经理部要及时了解和掌握与施工进度有关的各种信息,不断将实际进度与计划进度进行比较,一旦发现进度拖后,要分析原因,并系统分析对后续工作会产生的影响。调整有施工管理经验的人员担任管理工作,并针对技术、质量、安全、文明施工、后勤保障工作配置两位项目副经理主抓分项工作。
1、建立严格的《工序施工日记》制度,逐日详细记录工程进度,质量、设计修改、工地洽商和现场拆迁等问题,以及工程施工过程必须记录的有关问题。
2、坚持每周定期召开一次,由工程施工总负责人主持,各专业工程施工负责人参加的工程施工协调会议,听取关于工程施工进度问题的汇报,协调工程施工外部关系,解决工程施工内部矛盾,对其中有关施工进度的问题,提出明确的计划调整意见。
3、各级领导必须“干一观二计划三”,提前为下道工序的施工,做好人力、物力和机械设备的准备,确保工程一环扣一环地紧凑施工。对于影响工程施工总进度的关键项目、关键工序,主要领导和有关管理人员必须跟班作业,必要时组织有效力量,加班加点突破难点,以确保工程总进度划的实现。
四、保证工期的技术措施
在施工生产中影响进度的因素纷繁复杂,如设计变更。技术、资金、机械。材料、人力。水电供应、气候、组织协调等等,要保证目标总工期的实现,就必须采取各种措施预防和克服上述影响进度的诸多因素,其中从技术措施入手是最直接有效的途径之一。
1、设计变更因素:是进度执行中最大干扰因素,其中包括改变部分工程的功能引起大量变更施工工作量,以及因设计图纸本身欠缺而变更或补充造成增量、返工,打乱施工流水节奏,致使施工减速、延期甚至停顿。
针对这些现象,项目经理部要通过理解图纸与业主意图,进行自审、会审和与设计院交流,采取主动姿态,最大限度地实现事前预控,把影响降到最低。
2、保证资源配置:
(1)、劳动力配置:在保证劳动力的条件下,优化工人的技术等级和思想、身体素质的配备与管理。以均衡流水为主,对关键工序、关键环节和必要工作面根据施工条件及时组织抢工期及实行双班作业。
(2)、材料配置:按照施工进度计划要求及时进货,做到既满足施工要求,又要使现场无太多的积压,以便有更多的场地安排施工。公司建立有效的材料市场调查和采购、供应部门。
(3)、机械配置:为保证本工程的按期完成,我们将配备足够的中小型施工机械,不仅满足正常使用,还要保证有效备用。如在现场配备自动计量配料的应急混凝土搅拌站,以防止商品混凝土因特殊原因(如交通原因)供应不上导致混凝土施工中断的现象;为确保在市电网停电的情况下也能正常施工,我们计划在工地配备一台250KVA 的柴油发电机备用。另外,要做好施工机械的定期检查和日常维修,保证施工机械处于良好的状态。
(4)、资金配备:根据施工实际情况编制月进度报表,根据合同条款申请工程款,并将预付款、工程款合理分配于人工费、材料费等各个方面,使施工能顺利进行。
(5)、后勤保障:后勤服务人员要作好生活服务供应工作,重点抓好吃、住两大难题,工地食堂的饭菜要保证品种多、味道好,同时开饭时间要随时根据施工进度进行调整。
3、技术因素:
(1)、实行工种流水交叉,循序跟进的施工程序,抢工期间昼夜分两班作业。
(2)、发扬技术力量雄厚的优势,大力应用、推广“三新项目”(新材料、新技术、新工艺),运用1SO9001:2000 国际标准、TQC、网络计划、计算机等现代化的管理手段或工具为本工程的施工服务。
五、施工进度控制系统

2、做好现场排水系统,将地面雨水及时排出场外,确保主要运输道路的畅通,必要时路面加铺防滑材料。
3、混凝土浇捣期间随时注意气象台预报,尽量避开雨天施工混凝土。
4、如遇雨,注意雨后砂石含水量的变化,并及时调整混凝土配合比,现场备足雨布,以防雨大浇筑过程中混凝土被冲刷。
5、防水工程应避免在雨天进行施工。
6、施工期间塔吊顶端应设置防雷措施,六级以上大风应停止高空作业。
7、现场机电设备要做好防雨。防雷、防漏电措施。
1、试配混凝土配比时应考虑到人气炎热的情况,如加缓凝剂延缓混凝土的凝固,降低坍落度损失等。
2、指派专人负责做好混凝土的养护工作,采用浇水蓄水养护,使混凝土表囱经常处于湿润状态,防止发生龟裂现象。
3、做好人员的防暑降温工作。
台风季节应特别提高警惕,随时做好防台风袭击的准备。台风到来之前,应对高耸独立的机械、脚手架、及未装好的钢筋、模板等进行临时加固,堆放在楼面、屋面的小型机具、零星材料要堆放加固好,不能固定的东两要及时搬到建筑物内,吊装机械在台风来前停止作业,塔吊要收起吊钩,并将回转刹车松开,高空作业人员应及时撤到安全地带。台风过后要立即对模板、钢筋特别是脚手架、电源线路进行仔细检查,发现问题要及时处理,经现场负责人同意方可复工。
1、建立消防组织,设立防火小组和消防小分队,进行防火检查,及时消除火灾隐患。
2、编制防火技术措施。
3、按要求配置灭火器材并合理布置。
4、按施工平面布置做好临时消防龙头和消防水池、防火砂池。并时刻保证消防通道的畅通。
5、现场禁止使用明火,动火作业必须履行专职安全员审批制度。
6、工作区和生活区的照明、动力电路皆由专业电工按规定架设,任何人不得乱拉电线。
7、材料保管:对储存物品进行火灾危险性的分类并分开存放,各种气瓶等危险品应单独设库存放。
8、木工作业棚防火:采用阻燃材料搭设,电气设备应密封或采用防爆型,防止电线短路。用电设备过载运行,严禁在作业场所吸烟生火;配备足够的灭火器材。
9、楼层施工防火:设置具有足够扬程的高压水泵、楼层设置消防水龙头。
10、电、气焊作业:焊割作业区与气瓶距离,与易燃易爆物品距离,乙炔发生器与氧气瓶距离都应大于安全规定距离,焊割设备上的安全附件要保证完整有效,作业前应有书面防火交底,作业时备有灭火器材,作业后清理燃物,切断电源、气源。
11、熬制沥青防火:应在指定地点(远离建筑物和易燃材料30M 外。
12、涂喷漆作业防火:保证场所通风良好;禁止焊割作业同时或同部位上下交叉进行;浸有涂料稀释剂的破布、棉纱、手套和工作服等应及时清除,防止堆放生热自燃。
13、项目部设立消防组织机构。
工程的施工成本目标是使工程实际成本始终控制在合同价范围之内,并保证各项上缴费用。在此基础上,通过及时、严密有效地成本管理工作力争多获利润,取得较好的经济效益。
工程项目经理部负责对工程的工期、质量、安全、成本等进行全面管理协调。在预算成本的基础上实行全额经济承包。项目经理部负责项目的成本归集、核算,竣工决算和各项成本分析,直接对工程处负责。
项目预算成本是按照现行深圳市综合定额,二类工程取费,并结合具体情况编制,是考核工程成本的依据,但最终将合同价按费用分解后直接作为项目的预算成本。
计划成本是在预算成本的基础上,根据施工组织设计,和历年来在单位工程上各项费用的开支水平,挖潜的可能性,及上级下达的成本降低指标,按照成本组织的内容经分解后组成。
成本根据判定的成本目标,执行成本管理程序,对成本形式的每项经营活动进行监督和调整,使成本始终控制在预算成本范围内。通过成本管理程序能够及时发现成本偏差,随即分析原因,采取措施预以纠正,达到预期的降低成本目的。在计划成本的初步确定后,为了保证成本计划的实现,业务部门按各自职能范围具体落实。如人工费,内业部门每月按照劳动力计划及其动态曲线,向项目经理提供人员使用情况报表。在每一结构施工面积减少之前,根据施工实情相应减少人数,报与项目经理。尽量减少人员投入。
对材料费用控制:材料费的控制主要从材料采购单价入手,在市场价格低落时购入或签字材料采购合同,将因材料市场价格波动引起费用增加施工工艺。如模板系统采用实用快捷的快拆系统,加速模板周转及施工进度,提高劳动效率。同时注意废旧回收,钢筋合理配料,并采用适宜的形式接长,节约钢筋量。在材料使用过程中,严格按照工程量,采取限额领料的形式,建立起一套从计划→采购→使用的管理制度,减少材料费用在各个环节的耗损因素,做好成本的事前控制。
施工过程中的成本控制是通过经常及时的成本分析,检查各个时期各项费用的使用情况和成本计划的执行情况,分析节约和超支的原因,从而挖掘成的潜力。成本分析工作,每月末进行一次,将本月预算数与实际发生的人工费、材料费、机械费、管理费分项进行对比,考核计划成本的执行情况。着重分析预算成本与实际成本的差异,找出原因,制定调整措施,再进入成本控制循环,使项目成本始终保持在有明确目标的轨迹上。
项目成本管理按照成本管理程序先确定预算成本,在确定预算成本的基础上预测成本降低额,编制计划成本,根据计划成本控制实际成本。施工过程中进行成本分析,找出误差原因,制定解决措施,调整计划成本,使项目成本管理水平不断完善、健全。
本工程施工内容包括土建、水电、防水、电梯、消防、电视、通讯、煤气管道、智能、室外绿化、白蚁防治等,施工过程会出现极多交叉、穿插施工。我公司做为总承包公司,附带分包商责任对整个工程施工向业主负责,合理安排,科学管理,统筹施工。
为向业主负责、全面完满履约, 对现场施工进行全责、全权管理,管理的重点是施工质量、安全、进度和文明施工。对所有分包进场单位均进行现场施工机械布置、临时电气设备布置、临时给排水布置、消防通道、宿舍使用进行交底;对分包商的施工进度要求(配合总计划)进行交底;
技术要求、安全要求、文明施工要求进行交底;对用工制度进行交底。
按施工总进度计划,合理安排分承包商进场、退场,为各分包商提供必要的垂直及水平运输机具、临时设施(办公室、工人宿舍、加工场、材料仓库)、水电设施。
1、协调各分承包商的交叉作业;
2、组织各分包商进行每周例会,通报业主、监理公司的要求;解决各分承包商在施工中存在的实际问题;
3、向业主、监理公司汇报各分包商的施工进度;
4、组织上一分包完工后,交付下一分包的交接协调;
5、协助解决图纸中的问题,提供必要的技术支持;
6、对分包施工中形成的质量记录进行整理,交付业主。
1、施工进度的协调
由于工期比较紧,要协调好施工进度的安排。在施工过程中,土建的分部工程应协调好,在主体施工过程中,模板、钢筋、砼的工序穿插应按照施工进度要求进度协调,做到工作紧凑,不窝工。
2、不同工程的协调
在施工过程中,总施工员应对不同工程进行技术交底,协调好各工种班组施工进场程序及调节好劳动力供应。
二、外部协调
1、电梯工程
承建商应核对建筑与其它专业图纸后作电梯安装之协调工作;如各专业图纸间有电梯井道位置的安装上不一致和不协调之处,须即时通知建筑师,以便修正。
2、消防工程、煤气管道工程
本消防与其它专业的配合,有如下一些具体事宜:
1、土建工程在进行基础施工时,要将采暖管道入口和给排水管道的入出口,按其穿越基础时在图纸上的位置、标高和尺寸留出洞口。
2、在砌筑采暧地沟或过门沟时,要按管道的布置位置核对地沟位置、标高和尺寸是否正确。
3、在砌筑砖墙时,暗装的管道要按有关规定留出墙槽;明装的管道要留出过墙的孔洞;通风管道和轴流风机安装时,也要按其位置、标高和尺寸留孔洞;散热器托钩的孔洞也可按其位置、标高和个数留出。
4、在现浇捣制混凝土楼板上预留孔洞(如暧气主管或给排水主管穿楼板)时,要将所用用的木盒子事先做好(小孔洞可采用相应尺寸的木方外包油纸或红砖缠上草绳代用),在绑扎钢筋前按图纸要求的规格、位置,将木盒子钉牢在模板上。浇灌混凝土时,还要检查木盒有否歪斜或移动位置。
5、混凝土捣制构件预埋管道支架时,应按图纸要求找好位置、尺寸和标高,要木工支模时由水暧工配合,将预埋件固定在模板上,在浇灌混凝土时,要注意看护,防止碰掉。
6、在混凝土楼板上预埋吊环时,在绑扎钢筋前,按图纸要求在模板上找好位置、尺寸、标高,并将吊环一端穿过模板,另一端绑扎完钢筋后,绑在钢筋网上,以便固定吊环。
7、消防水泵、防排烟机等设备基础在施工时,要按图纸要求位置、标高、尺寸进行检查核对。
8、水泵,防排烟机等设备在试运转时,应请消防有关人员进行配合。
在工程施工中,各专业、各工种之间,会有这样或那样的矛盾出现。
因此,要很好协商,密切配合,顺利解决,以保证施工任务的全面完成。
3、防水工程
防水工程施工前应与分包商在共同组织图纸会审,切实掌握施工图中的细部构造和有关技术要求,认真解决设计图和施工中可能出现的问题。
防水工程应当是屋面工程是最后一道工序,当防水层施工完毕,再不允许在上面打眼凿洞。因此,水落口的安装、伸出屋面的管道安装、屋面上部设备的基础,预埋件等都必须在防水层施工前进行。此外,高低跨屋面的高跨建筑或屋面上设备间的结构、装修施工,也要求在防水层施工前完成,否则在已完成的防水层上搭设脚手架及操作施工,势必损伤防水层的完整,尤其对柔性防水层,它的耐穿刺性能差,危害就更大。实践证明,因工序安排不妥,在已完工防水层上继续施工造成的渗漏已屡见不鲜。
在施工中也常遇到屋面上一些设备安装必须在防水层完成后进行,还有防水层上做刚性保护,铺设架空隔热等工作也必须在防水层完成后进行,这种情况下,必须采取有力措施,对已完成的防水层进行保护。如在防水层上铺垫脚手板,或待刚性保护层施工后再进行设备安装。保护层和架空隔热板铺设应遵照前铺法施工,即沿已铺保护层方向进行,在已完成的保护层上铺板进行运输行走,决不允许在防水层上堆放材料和行走小车。
卫生间的管道、设备多,工作面狭小,防水层施工前必须将所有管道安装牢固。防水层试水合格后,可先抹一层水泥砂浆找平层,然后再进行设备的安装和面砖的铺贴。
地下工程防水层的施工尤其在有地下水的情况,必须首先降低地下水位,一般至防水层300mm 以下,并保持水位直至防水层、保护层以及土方回填完成后,如果防水层不作保护层,回填土时必须对防水层进行临时的保护。
另外,屋面防水层施工时,由于所用材料及施工工艺的不同,可能会造成檐口立面的污染,给檐口立面的下道工序施工带来困难。如喷涂料防水层、涂刷基层处理剂或涂刷胶粘剂时,容易顺檐口流淌到立面上,给立面装修带来困难。为了避免污染,可在防水层施工前,在檐口立面上先刷一层滑石粉等隔离剂,待屋面防水层施工后再铲除清洗干净。
防水层是依附于基层的,基层质量好坏,将直接影响防水层的质量,所以基层质量就成了保证防水层施工质量的基础。基层的质量系指结构层的整体刚度,找平层的刚度、平整度、强度、表面完善(无起砂,起皮及裂缝),以及基层的含水率情况等。
如果找平层强度高,表面完整,无凝也是一具备一定的防水能力的,成为一道防水线。相反,如果找平层质量差,凹凸不平、坡度不准、起砂、起皮、开裂,则不但本身无防水能力,而且会直接损害防水层。
因此,施工工序的安排,基层施工质量的高低,将对防水层产生较大的影响。我方将与防水承建商密切配合,合理安排工序,严格按规范施工,保证质量为防水层的施工打下好的基础。
4、电气工程、弱电工程
要摆正电气工程施工在全局的地位。尤其在工业与民用建筑的施工中,电气工程与土建、上下水、供热、通风等各专业之间的关系应摆放正确。
各专业队都要树立一盘棋思想,主动协作,密切配合,互相创造作业条件,克服本位主义。
土建部门在编制施工组织总设计时,要请电气施工部门负责人参加讨论,征求意见,协商解决相线关系问题,并且签字认可。在总设计中要为电气工程施工留有必要的施工工期和创造场地、库房等必要的施工条件,以便电气工程施工能按质、按量地如期完成。
在处理与土建施工关系中,既要坚持“先土建,后电气”,又要相互配合。例如在土建施工过程中,电工要做好预留、预埋工作,尽量减少在建筑物上打洞、剔槽;土建在上层施工,电工在下层作业,需打洞、剔槽的工作必须在土建抹灰立脚点结束,而灯具、开关等电器的安装工作则必须在喷浆后才能开始做。应该指出,打洞、剔槽可能影响结构强度或需要破坏主筋时,要经过土建负责人书面签证,并采取相应的补强措施。
5、玻璃幕墙工程
1、熟悉本工程玻璃幕墙的特点,其中包括骨架设计的特点,玻璃安装的特点及构造方和特点,然后根据基特点,具体研究施工方案。
2、对照玻璃幕墙的骨架设计,复查主体结构的质量。因为主体结构的质量如何,对骨架的位置影响较大。特别是墙面的垂直度、平整度偏差。
将影响整个幕墙的水平位置。所以,放线前,要检查主体结构的施工质量,特别是钢筋混凝土结构。另外,对主体结构的预留孔洞及表面的缺陷,应做好检查记录,及时提请有关单位注意。
3、根据主体结构的质量,最后调整主体结构与玻璃幕墙之间的间隔距离,以便保证安装工作顺利进行。
4、放线是指将骨架的位置弹到主体结构上。这项工作也是玻璃幕墙安装的准备工作。只有准确地将设计要求反映到结构的表面,才能保证设计意图。
5、放线工作应根据土建单位提供的中心线与标高点进行。因为玻璃幕墙的设计,一般是以建筑物的轴线为依据的,玻璃幕墙的布置应与轴线取得一定关系。所以,放线应首先弄清楚建筑物的轴线。对于标高控制点,应进行复校。
6、对于由横竖杆件组成的幕墙骨架,一般先弹出竖向杆件的位置,然后再将竖向杆件的锚固点确定。横向杆件一般是固定在竖向杆件上,与和体结构并不直接发生关系,待竖向杆件通长布置完毕,横向杆件再弹到竖向杆件上。
7、如果是将玻璃直接与和体结构固定,那么应首先将玻璃钢位置弹到地面上,然后再根据外缘尺寸确定锚固点。
8、在主体结构上预埋铁件,连接件与铁件焊牢,但在焊接时要注意焊接质量,对于电焊所采用的焊条型号、焊缝的高度及长度,均应符合设计要求,并应做好检查记录。
9、在主体结构上钻孔,然后用膨胀螺栓将连接件与主体结构相连。这种方法要注意保证膨胀螺栓埋入深度,因为膨胀螺栓的拉拔力大小,与埋入的深度有关。这样,就要求用冲击钻在混凝土结构上钻孔时,按要求的深度钻孔。当遇到钢筋时,应错开位置。
连接件通常用型钢加工而成,其形状可因不同的结构类型、不同的骨架形式、不同安装部位而有所不同。但不论何种形状的连接件,均应固定在结实、坚固的墙上。
一、钢筋机械连接(套筒挤压连接)技术
在高层现浇钢筋混凝土结构施工中,竖向钢筋粗且多,为尽量保证建筑物的使用空间,设计在柱、墙截面要求尽可能小,施工时一方面要保证钢筋受力有效的传递(垂直),另一方面又要保证钢筋与砼之的握裹力。故竖向钢筋使用套筒挤压连接既能保证受力钢筋的垂直,又能保证钢筋与钢筋之间砼的厚度(从而能保证钢筋与砼之的握裹力)。
二、泵送混凝土坍落度损失补偿剂
混凝土拌合物在运输过程及泵送过程中,坍落度会随温度升高和时间延长而降低坍落度,由此会造成砼施工质量达不到原定的效果,故在混凝土拌合物中外掺坍落度损失补偿剂,可提高混凝土的可泵性。
三、易收口网的应用
易收口网是种金属网状材料,在后浇带处可作旁模使用,该网直接埋入砼中不再取出。使用易收口网一方面可保证先后浇的砼接洽处不出现裂缝,另一方面可减少使用模板截口带来繁重的清理工作。
四、UEA 高效膨胀剂应用
为减少混凝土在浇筑过程中出现“冷缝”,根据我公司在多个高层项目的经验,拟在混凝土中外掺UEA 外加剂,其起微膨胀、减水、早强和缓凝等作用,满足同楼层不同混凝土强度等级连续整体浇筑要求。
五、混凝土薄膜养生液
高强度混凝土的养护是保证主体结构质量的关键,也是个重要用不易的工作。常用的水保养即浪费水又不易保存水流失,砼薄膜养生液(乳胶型材料)喷涂成膜,一天保水率达50%以上。其既无毒无味、操作方便,保水效果好,又能降低混凝土养护费用,改善施工条件。
F、干粉脱模剂
干粉脱模剂具有隔离效果好、质量稳定可靠、无毒害污染、利于管理等优点。与液体脱模剂比较,可降低成本25%。
K、微机技术的应用
使用PROJCE、梦龙、OFFICE、CAD 等微机软件对工程项目的进度、施工流程、工料机成本及其它资源实行全面的动态管理。及时根据实际施工情况对各项计划进行调整,以保证项目按计划实施。
工程施工过程中,在控制工伤事故发生的同时,项目部做好必要的防范措施。在项目部成立医务室,配备专职医务人员,归属后勤部。现场医务室配备常用药和急救药,对出现的轻工伤或小病痛进行治疗。对出现不能在施工现场处理的工伤,现场医务人员能作出正确判断,作简单处理后及时送院治疗。
医务人员负责组织对所有从事高空作业的施工人员进行上岗前体检,体检合格者才能上岗。
医务人员负责对所有施工人员进行有害物识辩教育,提高作业人员做好必要的自我保护意识。
医务人员每月对塔吊操作人员、外脚手架搭设工、电焊工进行简单体验。并组织上述作业人员每年一次到政府认可的公立医院进行常规体验。
建立特殊操作人员健康档案。
在高温气候施工时,医务室做好防暑工作,每天配制(或购置)降温凉茶给施工人员饮用。
根据深圳市建设局颁发的《深圳市房屋建筑白蚁预防工程技术规程》SJG08—99 要求所有房屋均应做白蚁防治。
本工程白蚁防治工程由专业公司承担。遵循“高效低毒、残效期长、污染小”的原则。
所有使用的药剂必须符合国家有关部门的批准,且有合格证及使用说明书。
现场药剂的必须分开堆放,由专人保管,出入料必须登记。
本工程在地库施工外墙防水保护构造层施工完毕,回填土完成后沿外墙200mm 范围内进行施药,浓度为1%,渗透有效浓度为300mm。在施药完毕后,及时复盖散水混凝土。
进入室内的所有管道,管顶距室外地坪1m 内均按设计要求做预防处理。外墙洞口用1:30 药土填堵管口四周,宽为200mm,厚为50mm。
穿越外墙的埋地电缆,人出入口处向外延伸2m 范围内进行毒土处理,浓度2%,剂量8L/m。
沉降缝在±0.00 处进行预防处理,浓度为2%,剂量为8L/m。
由于施工过程有一定的危险性,故应由专业人员持证上岗,并做发必要的作业防护措施如:防毒口罩、胶手套、中长筒水鞋,严禁在施工现场抽烟和吃食物,沾到皮肤的药液要及时用清水洗净。
该工序施工完毕后,剩余的药料及时搬走,并对堆放药料的仓库进行清洗。
体现公司全心全意为顾客服务的宗旨,维护和提高公司的信誉。
二、适用范围
适用于本公司本次承接的所有工程竣工项目。
三、参考文件
(1)《ISO9001:2000》4.19;
(2)《质量保证手册》4.19;
(3)《建设工程质量管理办法》(建设部1993 年11 月26 日发布);
(4)《深圳经济特区建设工程质量条例》(1994 年10 月1 日起实施)。
四、保修期限
根据<建设工程质量管理办法>第四十一规定:
建设保修期限是指从竣工验收交付使用日期以下规定的限期:
(1) 民用与公共建筑、一般工业建筑、构筑物的土建工程为一年,其中屋面防水工程为三年。
(2) 建筑物的电气管线、上下水管线安装为六个月。
(3) 建筑物的供热水冷为一个采暧期及供冷期。
(4) 室外的上下和小区道路等市政公用工程为一年。
(5) 其他特殊要求的工程,其保修期限由建筑单位和施工单位在合同中规定。
五、职责
项目经事负责其工程项目的工程回访。
项目经理组织回访顾客投诉。
项目经理制定回访计划,作好回访和顾客投诉记录。
项目经理负责保修工作的实施。
项目经理负责验证保修质量,达到业主满意。
项目经理负责工程质量问题的评审和拟订纠正和预防措施。
六、程序
(1)回访
工程在竣工交付使用后,项目经理安排回访计划。
①.回记内容
A、听取业主对工程质量的意见,重点了解使用中发现的问题。
B、检查业主提出的质量问题的部位和情况。
C、分析所生产的质量问题的原因,与建设单位协商返修内容及进度。
②.回访小组一般由公司工程处负责组织,根据需要可指派负责施工的专业人员参加。
③.回访记录:回访时间、回访内容、存在的问题、处理方案、年理结果的验收,业主的意见都应写进回访记录,作为拟定返修计划、划分经济责任的依据。
(2)保修
①.在工程竣工交付使用时应向业主发送《建筑工程保修单》。
②.在保修期内产品出现质量问题而影响使用,顾客可用口头或书面形式通知公司回访小组,回访小组应尽快组织人员前往处理。
③.已过返修期,而尚未返修完毕的项目,应继续按质按量完成,返修后仍出现问题的部位或项目,负责返修的部门应负责返修。
④.工程返修完毕后,负责返修的部门应作记录,顾客验收签证。
⑤.保修期满以后,顾客提出返修要求,公司工程亦应派人前往调查情况,分析原因与顾客协商返修内容及费用。
⑥.经济责任的划分:按《建设工程质量管理办法》及《深圳经济特区设计工程质量条例》的规定执行。
(3)纠正和预防措施
公司回访小组应根据顾客投诉和回访中发现的质量问题分类总结找出质量管理薄弱环节,及时向公司管理层汇报。需要提出纠正和预防措施,由公司或工程技术部负责发出《纠正和预防措施报告》经管理者代表或公司主管领导批准后,下发责任部门或单位实施,在规定的期限结束时,由工程部进行验证。
工程文件包括施工合同;施工图纸;甲方、乙方、监理公司、设计方来往文件;工程使用材料质量证明;施工过程中的各种质量、安全检验记录;施工中执行的相关的国家规范、标准、技术规程;上级主管部门的规定和指令;公司质量体系文件等,这些文件是工程施工重要依据和质量情况的真实反映。
项目部指定经培训合格的专职工程文件管理员(资料员、安全员),及时收集、记录、归类、登记发放、归档。
一、资料员对项目部使用的相关的国家规范、标准、技术规程,上级主管部门的规定、指令和公司质量体系文件进行统一管理和保管,执行使(借)用审批程序。
二、图纸:在施工前应把所的修改变更在图纸上进行标明或更换新改的施工图,图纸使用人员在施工图纸出现因使用、保管不当造成模糊的,必须及时向资料员申请更新。
三、施工前的各种技术、安全交底,经各班组签字确认后,由资料收集归档。
四、甲方、乙方、监理公司、设计公司来往文件,资料员经确认后,及时转送到相关的管理人员手中,并做好文件发放登记。
五、采购资料:每批材料进场,资料员必须向厂家索取该产品的质量证明书。向监理公司申报,办理准许使用手续。质检员对进行材料进行取样送检,检验结果交由资料员保管。
六、施工过程中的各种检查记录,质检员严格按GBJ301—98《建筑工程质量检验评定标准》如实对质量情况进行记录,并交监理公司确认后,由资料员归档。
七、施工过程中安全监督部门、公司及项目部的各种安全检查记录,应归时归档,并对存在问题的纠正和预防措施的处理进行归档。安全员严格按JGJ59—99《建筑施工安全检查标准》定期对施工过程中的安全情况进行评定,并记录归档。
八、工程满足竣工要求时,由项目经理组织公司、项目部有关人员按GB50300—2001《建筑工程施工质量验收统一标准》对工程进行最终评定,资料员对需归档的质量、安全文件进行整理,整理后送业主、质监站、监理公司核查。保证验收前所有工程归档资料符合归案要求,配合竣工验收工作。
附图2:地下室主体临水施工平面布置图
附图3:地下室主体临电施工平面布置图
附图4:上部主体施工平面布置图
附图5:上部主体临水施工平面布置图
附图6:上部主体临电施工平面布置图
附图7:深圳航空公司综合办公楼地下室主体--施工进度计划横道图
附图8:深圳航空公司综合办公楼地下室主体--施工进度计划网络图
附图9:深圳航空公司综合办公楼--总体施工进度计划横道图
附图10:深圳航空公司综合办公楼--总体施工进度计划网络图
深圳航空公司综合办公楼是深圳航空公司自筹资金组织建设综合性办公楼。位于深圳市深南大道与广深高速公路立交桥的东南侧。为了保证施工质量及安全生产,作以下文明施工措施。
编号 | 名称 | 面积(平方米) |
1 | 门卫值班室 | 24 |
2 | 工地办公室 | 100 |
3 | 浴室、厕所 | 75.0 |
4 | 仓库 | 65 |
5 | 配电房 | 25 |
6 | 钢筋加工场 | 400 |
7 | 管理人员食堂及卫生间 | 63 |
8 | 木工加工场 | 300 |
9 | 医疗室 | 25 |
10 | 工人宿舍搭设在场外 | 约800 |

二、防火责任人:***
三、治安责任人:***
四、计划生育责任人:***
1、围墙外面书写醒目、美观的美术字体,内容包括:工程名称、建设单位、设计单位、施工单位、质量监理单位、安全文明施工监督单位、建筑施工许证号(牌)、联系电话等。
2、施工现场出入安装牢固、庄重、美观的大门,门扇密闭不透式。
3、在开工前,会同建设单位对施工工程现场进行踏勘,对施工区域内有可能损环的周围市政设施、管线、建、构筑物,应制订相应的保护措施,保证施工安全进行。
1、施工现场出入口和主要道路做到硬地化,其厚度为在场内交通部分浇注c25 砼15 厚,路面宽为4m;其余铺石粉层100 厚,确保施工现场不积水,进出顺畅,并设置相应的安全防护设施和安全标志。
2、整个施工现场排水沟涵必须畅通,无任何积水和临时给水管线滴漏及长流水现象,施工污水泥浆和生活污水要设沉淀池处理干净后才能排水入城市排水管网或河流。
3、施工现场必须设置工程标志牌(五牌一图)即:《工程概况牌》、《文明施工管理牌》、《组织网络牌》、《安全纪律牌》、《防火须知牌》、《施工总平面布置图》。五牌一图采用统一规格,蓝底白字,由公司安全部统一定做。各项目部应在工地大门口以内明显位置设置一面防雨的宣传栏,供五牌一图及安全文明施工宣传内容的张帖。
4、临时建筑物,构筑物包括办公室、管理人宿舍(工人宿舍搭设在场外约800 平方米)、食堂、仓库、卫生间、淋浴室及消防水池等,严格按施工组织设计中的平面布置图制定的位置搭建。要求稳固、安全、整洁并满足消防要求,严禁使用用竹棚、石棉瓦、油毡搭建。
5、各种材料、成品、半成品、机械设备的堆放位置应与施工平面图相符。
6、场内的砂、碎石应分类,用砌砖隔栏堆放,其它管材、模板、红砖散材等应分类堆放。
7、钢材按规格分别堆放整齐、并挂设产品标识牌。加工好的半成品应分门别类挂上标识牌,搁置在彻架上。
8、搅拌机、砂浆机、卷扬机等机具必须搭设稳固的操作防护棚,每天使用后的机具应清洗干净。同时,机具周围地面应硬地化。施工机具操作人员及特种作业人员必须持有效操作证上岗。
1、施工作业区与生活区域必须有严格隔离措施,可采用钢管作为隔离拦护。其高度不低于2 米,在护拦上张挂绿色密目安全网,钢管刷上黄、黑间隔两种颜色。并挂设文明施工标语牌或文明施工规章制度牌,危险区域要有醒目的安全警示牌,夜间作业设警示红灯。
2、现场搭设集装箱宿舍,必须做到牢固、具备良好的防潮、通风采光等性能。人均面积不小于2 平方米,房间净高不得低于3 米,进深不少5 米。床铺应设长2 米,宽1 米规格的双层刷油漆的钢床。第一层床距地面0.5 米,第二层床距离第一层床间眨为1 米,每间房间不得超过20 人。宿舍按用电规范标准设计架设线路,严禁任意拉接电线。严禁使用电炉、电饭锅等电器和明火烧煮食物。
3、工地办公室必须张挂有相应的岗位责任制及配套图表,桌椅,办公用品摆放整齐有序,环境保持清洁,设置电开水炉,茶具。
4、施工现场应设置冲水式男、女厕所,设简易粪池或集粪池并加盖和定期喷药。蹲位与人比例为1:20-25 并贴面砖,厕所墙面抹灰刷白,每日有专人负责清洁、消毒,防止蚊蝇兹生。
5、施工现场应设淋浴室,喷头与比例为1:20,铺水泥地面或贴面砖,室内要有排水、排气设施,照明要设防水舟头、防水开关和漏电保护装置,设专人负责保持卫生。
6、食堂内外墙壁、天棚刷白,地面抹水泥面或铺贴地面砖,安装纱门和纱窗及通风、排气、排污水等设施,炉灶台面必须贴瓷砖。
1、施工现场必须制定消防管理制度,明确专人负责消防管理,开展消防安全活动和消防安全知识宣传教育,培训义务消防队员,按规定配备消防器材,并建立消防档案。
2、施工现场要挂设有醒目的消防安全标语、标志牌,明确划分用火作业区。用火作业区与在建工程和其他临时建筑设施之间距离不能小于20 米,乙炔发生器与一切明火距离不小于1 米,距离氧气瓶不小于5 米。
3、办公室、集装箱宿舍、木工加工棚、厨房、仓库等易燃场所分别要设置二台以上挂式灭火器,并按说明定期更换灭火剂,同时配备消防水池和灭火砂池。
4、施工现场凡是有可能产生火源的工程操作完毕后必须认真清理现场,杜绝火灾隐患。
1、明确施工现场各区域卫生责任人,制定卫生管理制度,设置足够的垃圾池和垃圾桶,定期搞好环境卫生,清理垃圾,施药除“四害”,施工现场不得有臭味和有毒气体。
2、操作面及楼层的砖渣、灰砂杂物必须做到工完场清。各楼层的建筑垃圾必须用袋装运到规定的地点卸放。严禁从高处向下抛扔建筑垃圾。建筑垃圾应做一围栏集中堆放清运。
4、运输车辆必须冲洗干净后方能离场上路行驶。
5、装运建筑材料、土石方、建筑垃圾及工程渣土的车辆,应采取有效措施,保证行驶途中不得污染道路和环境。严格执行《关于加强深圳特区土石方运输车辆管理的若干规定》(深圳建字[1997]185 号。
6、宿舍内日常生活用具要放置整齐有序,衣物被褥折叠整齐,鞋类摆放好,室外设晾晒衣绳架,不得在室内晾晒衣服。
7、制定宿舍卫生值日管理制度。每天打扫卫生,保持宿舍内外整洁
8、工地食堂必须申领卫生许可证(到市卫生防疫站办理),并应符合卫生标准。炊事员上岗应穿戴白色工作服(帽),保持个人卫生,炊事人员和茶水人工应每年进行一次健康检查,持有效的健康合格证上岗。
9、食堂炊事应清洁卫生,食品贮藏柜(箱)和菜饭应生、熟分开并有标记。熟食操作时应有防蝇间或防蝇罩。禁止使用用非食用塑料制品作熟食容器。
10、现场应根据就餐人数提供符合卫生条件的就餐场所和配置简易饭桌。同时设有专用保温饮水桶。严禁乱丢废物和剩余的饭菜。
11、工地应设茶水亭和茶水桶,做到有盖、加锁的标志,共用的水杯随时消毒,夏季施工应有防暑降温措施。
12、工地现场应配备医序保健药箱,常用外伤和生活药物应配齐。
1、施工现场内不得有飞扬的粉尘,由于其他原因而未做到的硬地化部位,要定期压实地面和洒水,减少灰尘对周围环境的污染。
2、禁止在施工现场焚烧有毒、有害和有恶臭气味的物质。
3、装卸有粉尘的材料时,应洒水湿润并在仓库内进行。
4、在市区内施工作业的噪声可能超过建筑施工现场的噪声限值时,施工项目部应在开工前向建设行政主管部门和环保部门申报,核准后方能开工。
5、在市区内,禁止中午和夜间进行产生噪音的建筑施工作业(中午12 时至下午2 时,晚上11 时至第二天早上7 时)。由于施工不能中断的技术原因和其他特殊情况,确需中午或夜间连续施工作业的,应向建筑行政主管部门和环保部门申请。
1、施工现场必须建立健全安全、保卫制度,落实治安、防火、计划生育责任人。
2、现场必须设立门卫和专职保卫员值班,建立来访登记制度,不准留宿家属及外来人员。
3、严格招待深圳市有关劳动用工的管理规定,民工入场必须持有“四证”(即生育证、暂住证、应业证、上岗证)项目造好花名删及签证的劳务合同手续。
4、施工现场的管理人员、作业人员必须配戴工作卡。工作卡由公司安全部统一订做,工作卡有公司名称、公司标志、有本人相片、姓名、职务或工种,管理人员和作业人员的工作卡有颜色区别。
5、施工现场的管理人员、作业人员必须统一配戴公司安全部按标准要求订做并配有公司名称标志的安全帽。
6、项目经理应对施工现场所有人员进行文明施工教育,并在安全技术交底的同时进行文明施工内容的教育,且有专门的记录资料。
7、项目经理必须组织本项目的全体职(民工认真学习有关法律、法规知识,增强法制观念,不得寻衅闹事,打架斗殴,严禁现场进行黄、赌、毒等非法活动,杜绝刑事犯罪和违法乱纪行为。
8、施工项目部要主动与工地周边的有关社区单位搞好关系,积极开展共建文明活动,发挥文明窗口的作用,树立良好的建筑企业形象。
9、项目部应根据实际条件,尽可能地设置娱乐活动室,设置报刊、播音、电视等设施供学习、休息、娱乐活动,营造一个健康文明的企业生产基层文化环境。
为保证安全生产,使职工熟悉和自觉遵守安全生产中和各项章程,特制如下制度:
1、凡新吸收或调换工种的工人,上岗前必须进行安全教育,经考试合格后,方准入位操作。
2、特殊工种工人应参加主管部门办的培训班,经考试合格后,持证上岗。
3、要结合安全合同,每年进行一次安全技术知识理论考核,并建立考核成绩档案。
4、安全教育主要内容有:
(1)贯彻党和国家关于安全施工的方针、政策、法令和规定。
(2)安全生产管理规定。
(3)机电及各种安全技术操作规程。
(4)施工生产危险区域和安全工作中的经验教训以及预防措施。
(5)尘毒的危害和防护。
(6)执行入队教育,现场教育、岗位教育等三级安全教育制度。
二、安全技术交底制度
1、工程开工前,应随同施工组织设计,向参加施工的职工认真进行安全技术措施的交底,使广大职工都知道,在什么时候,什么作业应当采取哪些,并说明其重要性。
2、每个单项工程开始前,必须重复交待单项工程的安全技术措施,坚决纠正只有编者知道,施工者不知道的现象。
3、实行逐级安全技术交底制,开工前由技术负责人向全体职工进行交底,二个以上施工队或工种配合施工时,要按工程进度交叉作业的安全交底,班组长每天要向工人进行施工要求、作业环境的安全交底,在下达施工任务时,必须填写安全技术交底卡。
三、安全技术措施和安全技术措施计划
1、安全技术措施:
(1)凡参加施工的作业人员,都要熟悉安全技术规程,安全操作规章,即技术领导人员,必须熟悉“建筑安装工程安全技术规程”工人必须严格遵守“建筑安全工人安全技术操作规程”;
(2)所有工程的施工组织设计(施工方案),都必须有安全技术措施,对于爆破、吊装、水下、高层脚手架、临时施工、拆除、深坑等大型特殊工程,都要编制单项的安全技术方案,否则不准施工;
(3)施工现场的道路、上下水和道、电气线路、材料堆放、临时设施的平面位置,均要符合安全、卫生、防火要求,并加强管理,做到安全生产和文明施工;
(4)各种机电设备的安全防护装置,要齐全有效,否则不能使用,并定期维修、保养。检修机电设备时要同时检修安全防护装置;
(5)脚手架、井字架和安全网搭设完,必须经工程处圾关人员检查验收签证方准使用,使用期间要指定专人维护保养,发现有变形、倾斜等情况及时加固。
(6)现场内的坑、沟、井和各种孔洞,应填平或设围栏、盖板、工地内要有排水沟。场地窄小、来往行人和交通运输频繁的地点交叉路口应设临时指挥;易燃易爆场所、变压器周围、危险处所要设置围栏和安全标志,夜间要红灯示警;
(7)各种安全设施、设备、标志、色标等任何人不准擅自拆动,必须拆动时,要经工地负责人和安全部门同意;
(8)实行逐级安全技术交底制,开工前由技术负责人,向全体职工进行交底,二个以上施工队或工种配合施工时,要按工程进行交叉作业的安全交底、班组长每天要向工人进行施工要求、作业环境的安全交底;
(9)砼搅拌站、沥青加工厂(场地)、采石场及喷漆作业场所都要采取措施,降低尘毒浓度,使其达到规定标准;
(10)采用各种安全技术和工业卫生的革新成果都要经过试验、鉴定和制定相应措施后方能使用;
(11)正确使用个人防护用品,任何人进入施工区域必须戴好安全帽、高处作业挂好安全带等,禁止穿拖鞋、高跟鞋或赤脚进入施工现场;
(12)对不具备安全条件的施工单位,不得发包工程,总包单位要加强对分包单位的安全管理,并统一组织管理现场的安全生产;
(13)施工机械的操作要专机专人,实行操作规程和操作人员挂牌制;
(14)施工现场,木材加工厂(车间)和藏存易爆器材的仓库场所。要建立防火管理制度,备足防火设施和灭火器材,经常检查,保持良好的状态。严禁在易燃易爆附近动火、吸烟。
2、安全措施设计:
(1)公司在编制生产、技术、财务计划的同时,必须编制安全技术措施计划,年度的完全技术措施计划应和年度生产计划同时报上有关部门。
(2)安全技术措施计划的范围为:
①.安全技术措施:以防止工伤事故为目的一切措施,如防护装置,信号装置及保险装置等;
②.工业卫生技术措施:以改善有害职工身体健康的生产环境等;
③.辅助房屋及设施:有关保证生产卫生方面所必须的房屋及一切设施,如沐浴、更衣及消毒室等;
④.安全生产宣传教育:购买安全技术教材,图书仪器及安全训练班等所需的设施。
3、单位领导应对安全技术措施计划的编制和贯彻执行负责,所需经费由技术改造费中提取百分之十(最低标准)要专款专用,不得挪用。
四、特殊作业人员上岗制度
1、凡是从事电工、电焊(气割)、起重机械操作、爆破、井下作业、登高作业等特殊作业的人员,必须经国家规定的有关部门进行安全教育和安全技术培训,并经考核合格取得操作证者,方准独立作业;
2、上岗从事特殊作业的人员,必须具备“工作认真负责、身体健康、没有妨碍从事本作业的疾病和生理缺陷”基本条件,并具有本作业所需的文化程度和安全专业技术知识及实践经验;
3、特殊作业人员要保持相对稳定,不得随意变换工种;
4、作业期间必须执证上岗。严禁违章作业;
5、取得操作证的特殊作业人员。必须按有关规定定期进行复审。
五、安全生产定期检查制度
1、定期检查:公司每月、工程处(厂、场)每旬组织检查一次、公司检查后,对检查情况予以通报;
2、不定期检查:各单位要根据季节变换对危险性较大的工程,适时组织安全检查,如夏季降暑降温、雨季防汛防电、秋季防台风、冬季防火等的检查;
3、节日前后的安全检查:针对节假日前后有些职工纪律松懈的情况,各单位要进行遵章守纪安全生产、消防、文明生产等的综合检查;
4、定期安全检查及季节变换的不定期检查,要有明确的目的计划,并由领导组织有关人员参加,检查要严肃认真,做到加查边改,对查,对查出事故隐患,不能立即事故的,要登记,制订整改计划,定人、定措施、定完成日期,在隐患没有消除前,必须采取可靠的防护措施,如有危及时性身安全的紧急险情,应立即停止作业;
5、各处的每月定期检查,要实行计分制进行检查评定,检查内容、评分标准按国家建设部“建筑施工安全检查评分标准”进行。
六、文明施工管理制度
1、进行工地必须戴好安全帽,严禁穿拖鞋、硬底鞋、高跟鞋,打赤脚上班。
2、班前应检查有关安全生产、文明施工的注意事项。
3、必须按规定张挂安全网,在醒目险要处设置警示牌,工地要安装漏电保护器。
4、必须按平面布置图设机械设备、临时设施、材料堆放,道路畅通,工地内给排水必须保持流畅,不乱排污水,做到工完料尽场地清。
5、不得违章指挥、违章作业。
6、必须做好工地环境卫生,不得乱倒垃圾。
7、特殊工种应持证上岗操作。
8、工地宿舍内外要清洁,不准乱堆杂物、乱拉电线、乱挂衣服等。
9、食堂(厨房)要整洁,无臭无绳,排水要通畅,食物要符合卫生标准。
10、厕所布置合理,达到卫生要求,对环境无影响。
七、施工现场门卫制度
1、对非本现场工作的所有进出人员,门卫有权过问;
2、非现场施工人员,未许可不得进入工地;
3、坚持职责,不随便脱离岗位;
4、对所有进出场材料,认真做好验收手续;
5、认真做好工地防火,防盗工作;
6、必须做好门前环境卫生工作;
7、外来人员未经保卫人员许可,不得留宿工地。
附图: 文明施工平面图
