目录
7
7
8
10
15
15
17
18
18
18
22
混凝土工程 22
模板工程 23
钢筋工程 24
脚手架工程 25
基坑排水工程 25
26
二沉池起重机的选择 26
污泥泵房 26
施工平面布置 27
30
各施工阶段劳动力需用量计划 30
施工机械需用量计划 32
主要材料及构配件需用量计划 33
三大工具需用量计划 34
施工总用电量计算 34
现场临时用水方案 35
37
技术准备 37
生产准备 37
38
38
39
39
39
40
42
43
45
48
50
51
53
53
53
54
54
55
质量管理程序 56
组织管理保证措施 57
质量控制程序 57
技术保证措施 61
61
模板工程技术保证措施 61
钢筋技术保证措施 64
混凝土技术保证措施 66
76
76
77
77
79
79
81
82
82
82
84
84
84
84
85
85
85
86
86
87
承蒙河南省某公司邀请我公司参加某市某污水处理厂工程Ⅱ标段的投标。我们将以“为建设单位提供最优质的服务”为基本指导思想,投入我公司最精良的骨干施工队伍,以最优良的工作质量保证建造令建设单位最满意的优质工程为目标,创造绿色的施工环境,以严格的成本管理,最适宜本工程的新技术、新工艺提高质量,最大限度地降低工料消耗水平,保证建设单位的每一份投入都能获得满意的回报。
《某市某污水处理厂工程施工组织设计》是我公司对新乡市某污水处理厂工程的投标文件之一。这是我公司在认真阅读有关文件,熟悉图纸,了解设计意图和对现场考察的基础上,编制的一部对工程质量、成本、工期等方面程序化的纲领性文件。我们力求在《施工组织设计》中履行我们对建设单位每一项承诺,希望能以经济合理、技术先进、切实可行的施工方案,严谨务实的工作作风,赢得建设单位对我们的信赖。
本《施工组织设计》在编写过程中,力求以较短的篇幅,在较短的时间内,让各位专家知晓本《施工组织设计》所表述的重点和难点;以精当、凝炼的语言,详实的图解,图文并茂地为各位工程专家充分展示仅用一般工程语言难以表达的重点信息,一般的信息作简明阐述,供各位专家选择。另外我公司非常珍惜建设单位给予我们的这次宝贵的机会,若我公司有幸中标,我们将依据本《施工组织设计》确定的原则,遵循我公司的技术管理规定和质量体系文件,在设计交底图纸会审之后编制详细的专项工程施工方案和作业指导书,为工作提供完整的技术性文件,用以指导施工,确保优质、高速,安全地完成本工程的建设,给建设单
位递交一个满意的工程。二○○一年三月二十日
2.公司质量体系保证手册(第三版)
3.公司质量体系程序文件(第三版)
4.建筑安装分项工程施工工艺标准(DBJ01-26-96)
5.土方与爆破工程施工及验收规范(GBJ201-83)
6.地基与基础工程施工及验收规范(GBJ202-83)
7.地下工程防水施工及验收规范(GB50205-95)
9.建筑地面工程施工及验收规范(GB50209-95)
10.屋面工程施工及验收规范(GB50207-94)
11.建筑装饰工程施工及验收规范(JGJ73-91)
12.工程测量规范(GB50026-93)
13. 砌体工程施工及验收规范(GBJ50203-98)
14. 建筑安装工程质量检验评定统一标准(GBJ300-88)
15. 建筑工程质量检验评定标准(GBJ302-88)
16. 地下工程防水技术规范(GBJ108-87)
17. 混凝土检验评定标准(GBJ107-87)
18. 建筑施工安全检查评分标准(JGJ59-88)
19.混凝土质量控制标准(GB50164-92)
20.钢结构工程施工及验收规范(GB50205-95)
21. 预制混凝土构件质量检验评定标准( GBJ321-90)
22. 钢筋焊接及验收规程(JGJ18-96)
23. 给水排水构筑物施工及验收规范(GBJ141-90)
24. 补偿收缩混凝土防水施工工法(YJGF22-92)
25. 粉煤灰混凝土应用技术规程(GBJ146-90)
26. 工程网络计划技术规程(JGJ/T121-99)
27.带肋钢筋套筒挤压连接技术规程(JGJ108-96)
28.混凝土结构工程施工及验收规范(GB50204-92)
29.混凝土外加剂应用技术规程(GBJ119-88)
30.混凝土泵送技术规程(JGJ/T10-95)
本工程是河南省某市某污水处理厂工程,日处理城市污水15万t,本工程是某年河南省重点建设项目,工程总投资24738 万元。
本方案仅适用于II标段。
§2.1 工程名称:某市某污水处理厂。
§2.2 工程地址:本工程位于河南省某市某村东。
§2.3 建设单位: 某市某公司。
§2.4 建设规模:日处理15 万t 城市污水。
§2.5 招标范围:本次招标仅包括二沉池(2 座),配水集泥井(1 座),涡流沉砂池(2 座),细隔栅间(2 座),污泥泵房1 座。
上述工程的全部结构和装饰工程;土方工程、地下降水等。
§2.6 施工工期:建设单位方要求施工工期200d。
§2.7 质量标准:省级优良。
§2.8 场地及地基情况
本工程场地地貌单元层属黄河冲击平原,原为耕地,地势平坦、开阔,场地地面绝对标高71.7 m。地震基本烈度8 度,场地内地下水为潜水,地下水位埋深约2.7m 左右,地下水对混凝土无腐蚀。地下水位标高及基础底标高如表2-1 所示:

§2.9 建筑概况:本工程按使用功能及紧密的连接关系分为3 个群体工程:
(1)细格栅间(2 座)、涡流沉砂池(2 座)。
(2)二沉池(2 座)、配水集泥井(1 座)。
(3)污泥泵房。
§2.9.1 建筑设计:
§2.9.1.1 细格栅间涡流沉砂池工程:细格栅间涡流沉砂池以沉降缝为界,沉降缝处设有橡胶止水带。
§2.9.1.2 二沉池和配水集泥井:二沉池内径45m,贮水量5884 m 3。集泥井为二沉池的配套设施,为一外径16m,贮水量约530m 3 的小型水池。
§2.9.1.3 污泥泵房:污泥泵房为二层建筑,其地上下各一层;地下室层高4.5 m,首层层高5.750 m,室外地坪-0.30 m 总高6.55 m。
II标段各项目由于结构特点不同,它们的±0.00 与绝对高程的相对关系设计如下:
配水集泥井\ 二沉池工程:±0.00 相对绝对高程68.95m。
污泥泵房工程: ±0.00 相对绝对高程72.50m。
细格栅间、涡流沉砂泥工程:±0.00 相对绝对高程69.80m。
§2.9.2.结构设计
本工程结构形式:钢筋混凝土构筑物;结构抗震烈度8 度。
§2.9.2.1 细格栅、涡流沉砂池间建筑结构特点见表2-2。

§2.9.2. 2 二沉池建筑结构特点见表2-3。

§2.9.2. 3 配水集泥井建筑结构特点见表2-4。

§2.9.2.4 污泥泵房结构特点,见表2-5。

§2.9.2.5 污泥泵房装饰做法见表2-6。
§2.10 工程特点:
§2.10.1 各工程构筑物布局比较分散,机械、设备及人工工作效率低。
§2.10.2 本工程地下水位比较高,地下水贮量大,二沉池、集泥井局部和污泥泵房基坑基底位于最高水位以下,基础施工过程中需考虑排水。
§2.10.3 本工程结构复杂,多以曲面和不规则的平面结构为主,异型模板、钢管龙骨、曲线钢筋需用量大,加工制作需放1:1 大样确定。测量定位工作量大。
§2.10.4 直径45m 二沉池结构超长,控制池体混凝土受温度影响而产生的收缩裂缝以及施工缝的处理为本工程的重点所在。
§2.10.5 本工程为大型水工构筑物,水池满足抗渗要求。
§2.10.6 结构施工过程中,工艺管道、预留洞、预埋件工程量大,而且精确度要求高。
§2.10.7 本工程建设单位要求施工工期200d,我方计划工期180d,相对于其复杂的工程结构和工程量180d 的施工工期相当紧迫。
§2.10.8 本工程建筑体量比较大,涉及部门、专业多,专业性极强;需组织多专业队伍配合施工。
§2.10.9 本工程为大型水工构筑物,内外装饰比较简单。
§3.1.2 工期目标和阶段性控制。
§3.1.2.1 本工程工期目标:施工总工期为80d,比建设单位要求的施工工期再提前10%,本工程计划开工日期2001 年4 月1 日。竣工日期:2001 年9 月27 日。
§3.1.2.2 施工阶段控制:根据本工程总的工期目标,确定各施工阶段完工的施工工期目标如表3-1 所示。
表3-1

§3.2.1 由于本工程的建筑规模比较大、施工任务比较重,而且工程质量目标定为“省级优良”标准,为确保工程质量达到预控的质量等级,根据我公司制定的《项目经理部组建办法》及其他相关文件的要求,本工程建立一级项目经理部。项目经理具有国家一级项目经理资质,组成项目经理部的管理成员,优先选用本公司具有较高专业素质和施工经验的技术人员,组成一个织织有力机构健全的项目经理部。项目经理部组织机
构如图3-1 所示。

图3-1 项目经理部组织机构图
根据本工程的建筑结构特点、工程位置情况和我公司生产实际情况,本工程安排3 个土建专业队分别完成细格栅间和涡流沉砂池,二沉池和配水集泥井,污泥泵房子项目的施工。各项目分别组织流水施工。

在本工程施工中,为保证工程质量,根据建筑施工的客观规律制定以下施工程序:先地下,后地上;先主体,后围护;先结构,后装修;先土建,后设备;先干线,后支线的施工原则。
施工流水段的划分原则:以后浇带、沉降缝、施工缝为界划分流水段。
§3.5.1 细格栅间和涡流沉砂池以沉降缝为界划分为两个流水段如图3-3所示.

图3-3 流水段划分图
§3.5.2 细格栅间和涡流沉砂池竖向施工段的划分以施工缝为界划分为3 个流水段如图3-4 所示。


图3-4 细格栅间和涡流沉砂池竖向施工段的划分§3.5.3 二沉池底板、外墙水平施工流水段的划分:以设计施工后浇带为界划分为1、2、3、4、5 流水段,如图3-5 所示。

图3-5 二沉池底板、外墙水平施工流水段的划分
§3.5.4 二沉池底板、中心导流筒、外池壁竖向施工流水段的划分:为便
于施工又能保证工程质量,以水平施工缝为界划分四段如图3-6。

图3-6 二沉池底板、中心导流筒、外池壁竖向施工流水段的划分§3.5.5 配水集泥井平面面积比较小,仅竖向划分施工流水段,为便于安排施工,结构工程划分成3 个流水段如图3-7 所示。

图3-7 配水集泥井施工流水段划分
§3.5.6 污泥泵房施工流水段的划分:为保证地下室结构的整体性和抗渗性能,在水平面内,地下室外墙作为一个整体的施工流水段,地下室内柱墙作为一个流水段。以水平施工缝为界划分为5 个流水段如图3-8。

图3-8 污泥泵房施工流水段的划分
根据本工程结构特点以及施工流水段划分后,二沉池底板和污泥泵房地下室一次浇筑混凝土量比较大,每施工段浇筑混凝土量约60m3/次,其他各施工段一次浇筑混凝土数量都在20m3/次以内,基于以上情况,进行以下安排:
本工程各项目混凝土,均由现场自备搅拌站统一供应,并由混凝土
运输车运至各项目。
本工程二沉池底板及污泥泵房地下部分一次浇筑混凝土用量大,此部分全部采用自拌混凝土,用汽车泵送至工作面。
其余均采用混凝土输送车运输到浇筑工作面,履带吊车吊运入模的方法。
结构工程质量要求很高,而结构外观质量取决于模板的质量;模板的设计体现大型化、系列化、通用性、整体刚度大、易操作、施工方便快捷的特点,能保证混凝土具有较高的外观质量。为此除二沉池池内外模板采用全钢大模板外,其余构筑物基础、池(墙)壁、柱梁以600 系列新型组合钢模板为主局部配少量的小钢模和木模板,所有顶(底)板模板选用竹胶模板,碗扣式脚手架支承体系。
本工程所用大模板由金属结构厂设计加工,现场安装调试。小异形木模板均现场制作。
根据钢筋工程总用量不大,但规格比较多,施工现场比较小的特点,钢筋的供应按计划分批进场,钢筋加工机械的选择体现快捷、高效原则。
例如钢筋冷拉机械选用钢筋冷拉调直机,它集冷拉、调直、下料于一体,精度高,降低人工,无废料,用本机加工钢筋占地面积小等优点。为最大限度降低半成品在现场积压,钢筋的进场速度,钢筋加工速度与施工速度保持同步。
所有各项目用钢筋均由加工厂统一加工,各项目分别绑扎的方法施工。
二沉池池壁及底板环形钢筋现场连接采用钢套筒连接。
为保证异形钢筋的加工精确度,在加工场放1:1 大样确定。
由于本工程结构空间构件体积比较大,室内脚手架选用结构刚度比较大,施工快捷的碗扣式支承体系。外脚手架选用钢管双排脚手架,外围用密目安全网封闭。

地下水贮藏形式为潜水,根据地下水的贮藏特点及工程基础底标高确定基坑排水方法:
(1)污泥泵房、二沉池中心筒及其管基、配水集泥井及其管基坑采用管井降水的方法。
(2)细格栅间、涡流沉砂池、二沉池、配水集泥井底板以上部分,底板较高,预计基坑涌水量很小,可采用基坑明排水。
根据本工程的结构特点、各单位工程的布局和施工要求,二沉池在基础、主体阶段布置一台QUY50 履带起重机,起重机24h 运转,昼间安排支拆模板,绑扎钢筋,夜间辅助浇筑池墙混凝土。底板一次浇筑混凝土约400m3,采用汽车泵送混凝土。
选用龙门架一座完成基础、主体阶段钢筋、模板等材料的垂直运输,位置见施工平面图。
§3.6.6.2 基础和主体阶段混凝土搅拌站的定位配置
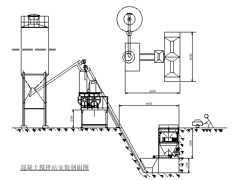
搅拌站的配置体现自动化,计量精度高,机械性能、产量相匹配,混凝土的生产均满足绿色环保施工要求为原则。为此,混凝土搅拌站选用散装水泥,砂、石、水泥、水均能自动计量。混凝土搅拌站的设计生产能力30 m3/h。混凝土搅拌站选用山东方圆集团提供的HZS25Z 组合式混凝土搅拌站。如下图3-9 所示。

图3-9 搅拌站安装剖面图
说明:JS500 型混凝土搅拌机与PLD800 配料机组合,配置贮量20t 的水泥罐2 个。如此配置混凝土搅拌站,装载骨料时可根据混凝土工程量的大小,灵活采用ZL15
型装载机或人工上料;水泥通过螺旋输送机送到水泥称量斗内,单独计量,配料搅拌集中控制。
本工程现场临建设办公室,库房,职工宿舍。职工宿舍和办公用房均采用轻钢结构复合保温板房;临建围墙采用钢制压型板围墙。
由于本工程施工可利用场地有限,大型钢筋、钢结构构件按进度计划随用随进,本工程二沉池底板每一施工段最大浇筑量220m3(为使搅拌站的配置更趋经济合理,在浇筑二沉池底板时,其他项目混凝土暂停浇筑,以消减混凝土浇筑峰值)。混凝土搅拌站的最低配置按预设混凝土需用量计算,现场储备220 m3 混凝土材料用量,每立方混凝土水泥用量按370kg 计算,需水泥82t,实际水泥储存量为100t,砂子为200t,碎石300t,粉煤灰25t 足以满足拌制混凝土需要。现场设2 个贮量50t 的水泥罐,存贮水泥。
施工污水主要是混凝土搅拌站产生的。在搅拌站外侧设计一套污水处理系统---三级沉淀池,经处理的水可再利用。
由于本工程现场狭窄,在基础、主体施工期间,为便于大型车进出场,混凝土搅拌站砂石料场区、钢筋加工厂区和现场主路采用硬化地面。地面做法素土夯实,铺C10 混凝土,以便于大型重载车进出场。
为便于钢筋的1:1 放样,钢筋加工场区安排钢筋放样场——长×宽=30×20 m;钢筋放样场地面浇100mm 厚C10 混凝土,表面抹平压光。
结构施工阶段组合模板、柱模板均在施工部位就近存放,以避免占用施工场区地面、道路。室外回填土前,地坪以下管线在基础施工阶段同时安装、预埋,避免施工场区的重复开挖,占用施工场区。施工现场原材料的进场、存放按施工进度计划有序进场,按施工平面图布置要求存放,大型构件最大限度地避免二次搬运。
§3.7.3.5 施工平面图(见附页)。
本工程按2001 年4 月1 日开工,2001 年9 月27 日竣工,施工总工期180d。



由于本工程在基础阶段用电量最大,施工电源的配置应以满足此阶段用电量为标准进行计算。
说明:两台钢筋对焊机不同时使用,以降低总负荷量。室内外照明用电量按40kW 计算。
施工用电总功率计算:
P=1.1{[0.7 × (13+13.5 × 2+5.5 × 2+10 × 2+5.5 × 2+4.5 × 2+2.2 ×
6+60)/0.65+0.6×(100+30×2)+40]}=324kVA选用324kVA 的供电电源可满足现场施工用电要求。
施工用水量按最大浇筑混凝土用量计算:
施工用水量q1=k1 ∑Q1×N1×K2/(8×3600)
式中未预计施工用水系数k1=1.05。最大日浇筑混凝土量Q1=220m3;
用水定额N1=2100L/ m3;用水不均衡系数K2=1.5。
q1=1.05×220×2100×1.5×/(8×3600) =25.26(L/s)。
因施工机械用水量少,不计q2。
施工现场生活用水量:
生活用水量q3=p1×N3×K4/(t×8×3600)上式中施工现场高峰人数p1=270 人;生活用水量定额N3=40 L/(人×d);用水不均衡系数K4=1.4。每天工作班数:
t=1。
q3=270×40×1.4/(1×8×3600)=0.525(L/s)。
生活区用水量:因本工程全部职工均进入施工现场,昼间生活区人数较少,故生活区用水量不计,q4=0。
消防用水量:本工程施工现场和生活区远小于250000 m2,的规定,故消防用水q5=10(L/s)。
总用水量计算,因现场面积小于250000 m2,而q1 +q2+ q3+q4 =25.25+0+0.525+0 =25.775> q5=10;故取总用水量Q= q1 +q2+ q3+q4=25.755(L/s)。
主干管供水管径计算:施工用水经济流速ν=1.3 m/s.主供水干管供水管径:
D=((4Q/( π× ν×1000))1/2={[×25.755/(π×1.3×1000)]/2=0.158 m,取D=150 ㎜。
§3.8.6.2 给水系统管网设计
:施工用水水源由建设单位提供至施工现场Φ150 市政给水管,可满足施工生产、消防和职工生活用水要求。施工现场设Φ75 环形消防管网,沿建筑物周围设地下式消火栓。生活区设Φ32 的给水支管可满足职工生活用水要求。
排水系统:现场设Φ200 铸铁排水管,将生产生活用水排入市政排水管网。
混凝土搅拌站设一个三级沉淀池,污水经沉淀处理后再利用,或排入市政管网。
§3.9.1.1 开工前组织施工技术人员仔细阅读施工图及相关文件,认真领会设计意图,组织一次图纸交底。
§3.9.1.2 由项目技术负责人组织编制本工程施工组织设计,总公司审批;根据ISO9002-1994 贯标程序标准的要求编制本工程《质量计划》。
§3.9.1.3根据本工程的特点,对本工程所有特殊工种进行一次全面培训考核;对本工程涉及的如下新材料,新工艺进行培训:
(1)防水混凝土施工工艺。
(2)大模板施工工艺。
(3)钢筋套筒冷挤压连接施工工艺。
§3.9.2.1 劳动力进场,临建原材料、三大工具进场,临建施工。
§3.9.2.2 基础施工阶段的施工机械进场并完成安装、调试。
§4.1.1 二沉池和集泥结合井工程,采用光电全站仪以极坐标中心定位,测量放线定位;污泥泵房、涡流沉砂池和细格栅间工程均采用直角坐标法测量放线定位。平行于建筑物主轴线建立平面控制网,作为施工放线的依据,在控制网上用直角坐标法,测定建筑物轴线位置。
§4.1.2 建立高程控制网:根据建设单位提供的高程点引至施工现场,设立三个高程控制点,每次引测闭合差在允许范围内。
§4.1.3 放线程序


§4.1.5 轴线网竖向投测
每层轴线基准控制网上设四个控制点,用经纬仪投测到施工层,建立轴线矩形控制网,每层放线时,首先校核轴线网闭合差,闭合差满足要求,再放建筑细部轴线。
§4.1.6 高程的竖向传递
楼层高程的传递,用钢卷尺从±0.000 基准线量取4 个点到作业层,当4 个点的高差小于3 ㎜,以其平均点高程作为基准线。
二沉池、集泥井和污泥泵房基坑降水,采用管井降水方法,管井深度根据实际地下水位和预埋管基底标高确定,二沉池、集泥井由于降水面积较小,井深以低于预埋管基底设计标高1~1.5m 为宜。
污泥泵房降水面积较大,井深以低于基底设计标高2~3m 为宜。二沉池、配水集泥井和污泥泵房基坑排水管井布置如图4-5 所示。




本工程土方开挖量13525m3,土方开挖采用2 台反铲挖掘机开挖,4台20t 汽车外运土方;全部土方运抵现场指定存贮处,以便回填土方;每天开挖土方按1000m3 计算,需约14d 完成土方开挖工作。基坑边坡控
制采用1:0.5 放坡,以机械开挖为主,人工清理基槽辅修边坡,根据工程的基坑的设计深度,拟分一次开挖到设计基底标高以上0.2 m,以下0.2m 土方由人工开挖。开挖过程中,测量人员全程跟踪挖掘机测量,控制其开挖深度,防止漏挖和超挖。
由于本工程基础和主体跨雨期施工,并且年降水量大、多集中在6-7月份,为提供一个良好的施工环境,所有基坑边坡采用配筋网喷射混凝土护坡,钢筋φ6@300,喷射混凝土30mm 厚。
本工程钢筋用量比较大,绝大多数为异形钢筋,需通过放大1:1 样确定实物形状,因此所有钢筋均现场集中加工,运抵施工作业面绑扎。
在钢筋加工厂,钢筋直径Φ>16 时,钢筋连接采用闪光对焊接长,钢筋直径Φ<16 时,钢筋的接长按绑扎搭接的方法接长配料。
施工作业面钢筋的连接:
柱、墙钢筋直径Φ>16 时,采用电渣压力焊连接:二沉池池壁环形钢筋采用钢筋套筒连接。钢筋直径Φ<16 时,钢筋的接长按绑扎搭接的方法连接。
钢筋绑扎前,须仔细阅读施工图纸,检查成型钢筋的种类、型号、尺寸,完全满足图纸及绑扎作业面要求时方可进行绑扎。绑扎钢筋时,按控制线要求,先绑扎结构钢筋特征部位(暗柱、角柱、预留洞口等),此部位钢筋在三维空间的位置准确时,方可绑扎一般部位的钢筋。钢筋绑扎完成后,于柱、墙、梁钢筋上安装与保护层厚度相对应的塑料限位卡,限位卡纵横向900mm,经小组自检、交接检、专检合格后,完成隐蔽验收,方可进入下一施工段。

模板体系分为以下三种类型§4.2.6.1:二沉池外墙模板采用新型全钢大模板。配模板按每个池的1/4用量配制模板,因使用大模板,池壁上的39 根挑梁不能与池墙同时支模浇筑,为此需在大模板上预留挑梁安装口,用于预埋挑梁钢筋。
全钢大模板及预留安装挑梁模板如图4-7 所示。
全钢大模板板面为6mm 厚钢板,边框、次梁用8mm[钢制作,主梁—加固用主桁架用∟45×5 角钢。大模板用φ16 螺栓固定。池外挑檐板用木模板另行配制。中心筒体采用一次性木模板。木模板板面包0.75mm 厚黑薄钢板。
二沉池第一水平施工缝以下池壁采用特制定型钢模板,φ48×3. 5 钢管“U”形卡固定。模板下安装“H”形托架,以保证模板底标高准确。如图4-8。

图4-8
§4.2.6.2 涡流沉砂池、细格栅间、污泥泵房和配水集泥井均采用60 系列组合钢模板支模, Φ48×3.5 钢管龙骨,M12 螺栓紧固。涡流沉砂池锥形漏斗部分支模如图4-9*所示,模板均为30mm 厚木模板外加50×70@300 木龙骨对拉螺栓布置M12@600。

梁模板:本工程梁模板采用本框竹胶模板;模板根据梁的高度定制。
楼层板模板:楼层板支模采用12 ㎜竹胶板支模;模板次肋采用50×100 木楞,间距300~450 ㎜,主肋采用100×120 木楞,布置间距900㎜,主、次肋选取优质松木。楼板支承采用碗扣式脚手架支承体系。如图4-10 所示。
水池及污泥泵房地下室外墙模板支模如图4-11 所示,加固模板用的螺栓为2M12,机制梯形螺纹,中间盲螺母设Ф80×2 止水翼环。



§4.2.7.1 二沉池底板及池墙混凝土浇筑顺序:
底板及池墙以后浇带为界共划分为5 个施工流水段,底板及池墙混凝土浇筑顺序如图4-12 示。

二沉池底板及污泥泵房地下室选用汽车混凝土输送泵的R=37m 加长布料杆布料。
因二沉池底板每一施工段浇因二沉池底板每一施工段浇筑量400m3,采用混凝土输送泵分段浇筑,浇筑路线如图4-13 所示;混凝土产量30 m3/h,需浇筑约14h。混凝土初凝时间理论值6h,因受气候的影响,实际凝结时间约3h。选用1 台混凝土输送泵,每段浇筑总长度按12 m 计算,底板混凝土折算厚度按0.65 m 计算,每段混凝土浇筑的最大宽度:30×3/(12×2×0.65)≤ 5.76 m;各流水段中当每浇筑一小流水段混凝土的浇筑宽度不超过5.76m 时,不会出现施工冷缝。
§4.2.7.3 混凝土的养护混凝土终凝前,用木抹抹压两遍,最后一遍用铁抹压光;混凝土浇筑12h 后开始养护。
底板混凝土养护,可沿底板后浇带或边沿围堰150 ㎜高蓄水养护,蓄水深度不少于50 ㎜,养护期限不少于14d。池/墙混凝土的养护:混凝土拆模后,覆盖一层湿润麻袋布,外用塑料薄膜封闭,养护期限不少于14d。养护期内在池/墙顶洒水,保持池壁混凝土表面处于湿润状态。

(1) 当水池混凝土强度达到设计强度。
(2) 池内防水砂浆未抹灰。
(3) 外围土方回填前。
§4.2.8.2 水池充水:本工程所有水池试水分四次进行,第一次充水到池底第一水平施工缝以上100 ㎜。当无渗漏时,充水到设计水深的1/3;第三次充水到设计水深的2/3;第四次充水到设计水深。
充水水位上长速度不超过2m/h,想邻的两次充水间隔时间不小于24h。
充水测读24h 的水位下降值计算渗水量,在充水过程中和充水后,对水池做外观检查。当发现渗水量较大时,停止充水。待处理后方可继续充水。
(2) 砂:粒径0.5~3 ㎜粗砂,含泥量小于2%。
(3) 外加剂:膨胀剂UEA-3。
施工顺序如图4-14 所示。

配合比:(水泥+UEA-3):砂=1:2(UEA-3 占水泥重量的3%)基层修补:在水池墙内外壁上剔出止水螺栓限位卡后,经充分湿润后,用同强度等级的干硬性细石混凝土嵌填密实,表面抹平。
防水层的养护方法同水池混凝土的养护方法。
§4.3.1.1 层面工程施工顺序如图4-15 所示。

§4.3.1.2 污泥泵房外墙装饰施工顺序如图4-16 所示。

本工程严格按照《建筑安装工程质量检验标准评定统一标准》(GBJ300-88)的有关要求,现行质量评定标准和施工技术规范进行质量检查评定。工程质量目标:单位工程省级优良。
分部工程预控质量目标如下表5-1 所示。

工程观感评分在87 分以上。
依据我公司质量程序文件,本工程的基础混凝土自防水定为特殊过程;定位放线、模板工程、混凝土工程、钢筋工程和屋面防水为关键过程,项目部依据我公司质量程序文件对上述施工过程进行监控。
我公司是通过ISO9002 国际质量认证的企业,我们的质量方针是“质量第一,科学管理,信守合同,用户满意”。在施工中精心组织,精心施工,创一流的管理,一流的施工质量,强化质量意识。为此我公司依据ISO9002-1994 标准,建立工程质量保证体系和质量管理程序,对工程施工进行严格的质量控制。
质量保证体系如图5-1 所示。


(2)工程质量保证程序(如图5-3)

(3)工程质量预控程序
本工程的模板、钢筋、混凝土的质量预控程序图5-4、图5-5、图5-6
所示。
本工程的质量要求高,质量预控目标:单位工程省级优良。因此,在工程施工过程中,严格执行公司的质量管理程序,建立各级岗位责任制,对工程进行全方位的质量管理。在施工过程中明确分工,落实责任,并建立质量奖惩制度,将各项规章制度落到实处。


我公司在创优活动中取得了优异的成绩,历年来一直参加各种创优质工程活动。在实践工作中,摸索出了我们自己的一条创优成功之路,掌握了一整套利用先进施工技术和工法创建优质工程的先进经验,尤其是在以往的抗渗混凝土施工方面积累了更加成熟的经验。
为达到“省级优良”的目标,使混凝土结构外观达到清水混凝土的要求—混凝土外表面光滑而又密实。在满足结构抗渗要求的前提下,为保证内外抹灰粘结牢固,本工程的二沉池大模板采用全钢大模板并且大模板的板面选用6mm 厚花纹钢板;污泥泵房楼板使用竹胶模板,二沉池中心筒使用定型木制筒模,楼梯使用定型全钢模板,地下室墙体使用新制60 系列组合钢模板。经过几年来多个工程的实践,我公司在墙体全钢大模板的使用上总结了一整套经验,全钢大模板的使用既可以保证墙体结构的清水混凝土效果,不易变形,而且易于管理、运输、存放、周转,操作方便。
全钢大模板和组合钢模板的设计、加工、运输、组装和使用各环节高起点,严要求,严把质量关;模板的设计、加工组装、调试均应满足本工程质量要求标准。模板的验收标准如表5-2 所示。

全钢大模板选用6mm 厚钢板加工制作,便于加工和拼装,便于清理和支拆,而且接缝严密,不错台、不漏浆、混凝土表面光洁。模板拆除后,要及时将表面清除干净,进行修理,刷机油进行保养。
竹胶模板选用加厚12mm 竹胶模板,刚度较好。竹胶模板要在裁口处涂刷封边漆进行保护,以防裁口处生毛边,或者吸水膨胀、松散变形,从而影响模板拼缝质量,缩短模板的使用寿命。
预留洞口采用自制定型木模板,外罩竹胶模板,框内加固定撑,防止模板变形。预留洞口模板和竹胶板,拆除以后,要及时清理表面,涂刷脱模剂。
为保证涡流沉砂池与细格栅间橡胶止水带的安装位置准确,保护橡胶止水带采取以下措施(如图5-7 示)⑴沿止水带安装ф12 固定支架,并用钢线沿止水带外缘绑扎。
⑵外露止水带用木板保护。
有水池池壁的模板均使用如图5-8 示的螺栓,它是一种可重复利用的工具式紧固件,具有紧固、限位、防水于一体,安装拆除方便,不需切割螺栓,螺栓只有带止水翼的中心螺母留在已浇筑的混凝土中。为保证其优良的止水性能,在中心螺母上焊接有Φ80×2 的止水板,水池上拆除螺栓后,用1:2 干硬性水泥砂浆嵌填密实,表面压光,并随池体养护。



本工程吊模均采用“H”形固定支架如图5-8,它具有加固、支承控制模板底标高,又能对池(墙)两侧模板限位的三重作用。
钢筋进场要严把质量关,钢筋料场要分批量、分型号、分级别堆放,垛底用木方垫起,每垛钢筋前立标识牌,标明钢筋的直径、级别、厂家、复试报告单号,钢筋要及时做复试,试验合格的钢筋才能投入生产使用。
结构楼板的梁板钢筋下铁接头应设在梁板一端,上铁应设在跨中部位;对于墙体及暗柱钢筋,接头应设在板上。
受力钢筋的接头要相互错开,对于绑扎接头任何一个接头中心至1.3 倍搭接长度范围内,有接头的受力钢筋截面面积占受力钢筋总截面的允许百分率:受拉区25%,受压区50%。钢筋的搭接长度不小于钢筋直径的45d,且搭接长度不小于300。
电渣压力焊接头,从任一接头中心至长度为45 倍钢筋直径且不小于500mm 的区段范围内,有接头的受力钢筋的截面面积占受力钢筋总截面面积的允许百分率,应符合以下要求:受拉区不大于75%,受压区不限制。
底板钢筋:底板钢筋绑扎前,先要在底板垫层上弹出各轴线、墙体边线、柱边线、梁边线,然后弹出底板钢筋双向间隔线,钢筋绑扎时,依线摆放,以保证其位置和间距准确。
底板下层筋绑扎完后,钢筋下加35mm 厚的水泥砂浆垫块,然后,摆放支撑上层钢筋的马凳,马凳采用φ16 钢筋制作,双向间距1000mm,以保证能支撑上层钢筋处于准确的位置,上层钢筋摆放时,先在已绑扎完的梁钢筋上划出底板双向钢筋间距,以保证钢筋的位置和间距。
墙体钢筋:墙体的底板插筋,要依墙体控制线安装,并要临时固定于底板上筋上,浇筑混凝土时采用水平定距框固定其位置和间距,混凝土浇筑完毕后再拆除下来。具体做法见图5-9。

池/墙体钢筋在绑扎时,先要绑扎好暗柱钢筋,在其上划出墙体钢筋的竖向间距线,墙体部位设置竖向梯子筋。具体做法见图5-10 所示:

本工程二沉池、污泥泵房等全部使用自拌混凝土,要求抗渗混凝土配合比经向建筑科研院技术咨询,进行多组抗渗试验对比后,再优选混凝土配合比,技术要求包括混凝土的强度、抗渗等级、缓凝要求、施工外加剂要求等。后台混凝土搅拌站严格按配合比要求配制混凝土,认真履行职责。

混凝土使用泵送运输,严格控制混凝土的坍落度,保证混凝土泵送的顺利进行。现场由专人负责进行挪、接泵管的工作,做到混凝土及时供应。现场准备一台备用输送泵,保证浇筑混凝土过程中,不因输送泵损坏而影响施工顺利进行。
混凝土浇筑质量,是确保混凝土工程内部质量和观感质量的关键工序,在浇筑过程中要严格执行规范规程,落实“三检制”。浇筑混凝土前,要认真检查模板、钢筋是否合格,做好预检和隐检,检查预留、预埋的情况是否符合要求。对施工中容易产生露浆、错台、接槎处夹杂物、门窗洞口变形移位、钢筋保护层过大或者露筋等地方,要有专人负责处理,并在浇筑过程进行监视。
混凝土浇筑入模方式采用泵管直接入模,当浇筑墙体混凝土,自由高度超过2m 时,混凝土要经串筒注入模板内,保证混凝土拌合物落下高度不大于2m,防止根部混凝土产生离析现象。
混凝土采用分段分层浇筑,应有专人负责进行监控,使用标尺杆控制下料厚度,浇筑过程保证均匀布料。
施工前要对持振捣手进行认真的技术交底,施工中有专人负责对混凝土振捣的监控,切实保证混凝土的振捣时间、振点位置、振捣移动顺序符合要求,不发生露振、过振或振不密实的现象。由于是泵送混凝土,在混凝土振捣完30 分钟后,初凝前进行二次振捣,以提高混凝土的密实度。
每次浇筑混凝土时,试验员要对混凝土拌合物做坍落度试验,确保混凝土的和易性,并及时留制试块,每次开盘浇筑混凝土,不同强度等级的混凝土都要留制试块,在一次浇筑中,每浇筑100m3 混凝土,至少留制一组标准养护试块,以及各种同条件试块,有抗渗要求的要留制抗渗标养试块。现场设立标准养护实验室,存放标养试块。同条件试块留在施工现场浇筑部位。试验员要及时对所做试块做好标记,不能混淆,并按照技术要求,将试块分类保存,及时送到试验室进行抗压或抗渗试验,及时向技术部门提供试验结果和数据。
是水泥和外加剂中的碱(钾、钠碱金属离子Na2O、K2O)与砂、石骨料中的碱活性物质(如SiO2)发生化学反应。生成碱硅酸凝胶(ASR),
水后产生膨胀压力,使混凝土开裂。在工程实践中以消除混凝土中发生“AAR”的条件,以确保混凝土的强度和耐久性。
本工程选用低碱活性集料配制混凝土,使用低碱水泥,水泥中碱含当量低于0.6%。掺低碱外加剂用于改善混凝土的性能,其用量小于混凝土水泥用量的5%,外加剂带入混凝土中碱量,每立方米混凝土不得超过1Kg。本工程混凝土掺合料使用含碱量不大于1.5%的Ⅱ级优质粉煤灰,以并取代25%水泥;这样可保证配制的粉煤灰混凝土总含碱量低于2kg/cm3 标准,进一步防止混凝土的碱集料反应,从而提高混凝土的耐久性。
本工程为水工构筑物,水池底板大部分厚度为400~600mm,已接近大体积混凝土的下限标准,要防止混凝土在硬化过程中,释放的大量的水化热导致内外温差不一致使混凝土产生裂缝,进一步达到抗渗和提高结构混凝土的耐久性是本工程中一个重点也是本工程的难点所在。尤其是二沉池底板和池壁混凝土结构厚实,混凝土方量大、工程条件复杂、对施工技术的要求高,由于水泥产生大量水化热,造成混凝土结构内部温度升高,结构内外温差大,内部和外部存在温差应力,而使结构混凝土表面受拉,当温度应力超过混凝土的受拉应力极限时,表面就会产生裂缝;水泥在硬化的过程中需要大量的水,混凝土表面温度达到30℃以上,使混凝土内部温度升高,水分大量蒸发,从而使结构混凝土干缩变形,在混凝土表面产生很多的裂缝。
因此,在本工程基础底板混凝土施工中,采取综合措施,混凝土外保温法,减小结构内外部温差;调整混凝土表面湿度,杜绝表面干裂就成为施工中的重点。
在本工程混凝土施工中将采取以下措施:
(1)混凝土配合比设计
工程地下室外墙和二沉池底板混凝土设计强度等级为C25/S6,要求混凝土优选配合比;混凝土配合比的技术指标如下:
水泥:32.5 普通硅酸盐水泥。
混凝土中水泥用量不超过360kg/m3。
混凝土强度和抗渗强度等级:C25/S6
混凝土坍落度:120~140 ㎜
混凝土缓凝时间:不少于6h
(2)对混凝土原材料的要求
混凝土搅拌站应对所用原材料采取以下控制措施:
水泥:采用32.5 普通硅酸盐水泥,减缓早期强度上升过快,避免因产生的大量水化热造成的结构温度骤然升高,从而达到配制高强度、低水化热混凝土的要求。
石子:采用粒径5~20 连续级配碎卵石,含泥量控制在0.5%以下,其他技术指标满足施工规范要求。
砂: 中粗砂,含泥量控制在1%以下,有机质含量满足规范要求。
外加剂:选用具有膨胀、减水、缓凝特性的复合型外加剂。在混凝土硬化阶段产生微胀自应力,用于补偿混凝土因自身失水而产生的干缩,消除产生混凝土裂缝的可能性。掺加混凝土缓凝剂,为延缓混凝土的凝结,使混凝土产生的水化热均匀释放,降低混凝土内外温差,消除混凝土因内外温差而产生裂缝的可能性,在混凝土中掺入缓凝剂,可满足浇筑工艺要求,避免出现人为的施工冷缝,从而达到抗渗的目的。
掺合料:为满足施工工艺的要求,使混凝土具有优良的流动性、和易性、可泵性,延缓混凝土水化速度,在混凝土中掺入二级粉煤灰,从而使混凝土内部最高温度进一步降低,达到防渗抗裂的目的。
碱含量:本工程混凝土强度高,水泥、粉煤灰、外加剂用量大,在优选混凝土配合比时,采用低碱材料:水泥、外加剂、粉煤灰,每立方米集料中带入的碱量不得超过2kg。砂、石选择低碱活性集料,防止混凝土产生碱集料反应,使混凝土开裂,降低混凝土的抗渗性能和结构的耐久性。
(3)采用合理的浇筑方法:
混凝土的浇筑采用分段斜面层法连续作业,使混凝土在硬化过程中产生的水化热得到均匀释放。
(4)合理的振捣方法
浇筑混凝土的过程中,实施“二次振捣”和适度振捣相结合的方法,可提高混凝土的密实度,提高混凝土的强度、防裂性能、抗渗性,提高混凝土的耐久性。
(5)混凝土的表面收活
混凝土浇筑成形后,终凝前,用木抹子抹三遍,表面搓平,消除混凝土表面因失水而出现裂缝。合理地布置混凝土后浇带:通过合理地设置后浇带,使混凝土的表面温度应力控制在其抗拉强度下限。
(6)后浇带的处理
本工程水池底板及外墙混凝土强度在达到100%后,方可进行后浇带的施工;水池墙壁及底板后浇带的施工顺序如图5-11 所示。

底板及后浇带两侧混凝土界的处理如图5-12 所示。
底板后浇带未浇筑混凝土前,用木板封闭,防止异物落入后浇带内,难以清理。
为保证后浇带的抗渗性能,后浇带两侧接槎部位混凝土界面剔凿成“【】”形。

后浇带混凝土的浇筑:后浇带混凝土采用比后浇带两侧混凝土高一级的C30 混凝土浇筑;混凝土内掺UEA-3 膨胀剂(掺量:水泥重量的10%~12%),以保证后浇带两侧新老混凝土结合紧密。
混凝土的养护:
(7)混凝土终凝前,用木抹抹压两遍,最后一遍用铁抹压光;混凝土浇筑12h 后开始养护。
底板混凝土养护,可沿底板后浇带或边沿围堰150 ㎜高蓄水养护,蓄水高度不少于50 ㎜,养护期限不少于14d。
池/墙混凝土的养护:混凝土拆模后,覆盖一层湿润麻袋布,外用塑料薄膜封闭,养护期限不少于14d。养护期内在池/墙顶洒水,保持混凝土表面湿润。
防水工程由具有专业施工资质的防水施工队伍施工,操作人员持证上岗;防水材料由北京市建委的认证厂家供应,要有准用证,材料进场后先进行外观检查,合格后抽样做试验,试验合格后,才能使用。
(1)屋面防水
屋面防水层采用一道高聚物改性沥青涂膜,要求按屋面的排水坡度,确定铺贴顺序,按坡度自低处向高处进行涂刷。屋面的特殊部位如女儿墙、出屋面的管道、设备基础、雨水口等部位要增设附加层。收口处理按屋面防水施工规范要求认真操作。防水层做完后,进行外观检查,合格后,作2h 的淋水试验,不渗漏为合格。
(2)水池内防水砂浆

为增强水池混凝土后浇带及水池施工缝处混凝土的防水性能,在其两侧增设防水砂浆加强带(如图5-13);防水砂浆配合比:(水泥+UEA-3):砂=1:2,其中UEA-3 占水泥重量的6~8%。
我公司拥有系统的安全生产、文明施工保证体系,和健全的安全管理制度,保证现场的施工安全文明施工,减少或者避免安全事故的发生,使工程顺利地进行施工。我公司的安全文明施工保证体系见图6-1。

§6.3.1 建立健全施工现场的安全保卫制度,严格执行总公司安全岗位责任制。
§6.3.2 本工程设项目经理兼安全生产负责人,下设专职安全员一名,负责检查督促安全施工检查,防患于未然。
§6.3.3 健全施工现场安全施工设施,“三宝”利用及“四口”防护落实到操作者的心中,项目经理的各项决策,工程施工方案的选择等将
安全生产放在首位。
§6.3.4 针对本工程的特点,制定出安全管理制度、安全生产教育制度、安全生产检查制度、施工现场安全生产管理制度、电气安全生产管理制度、治安、防火、防爆制度、安全交底制度、安全技术措施等。
§6.3.5 由项目经理组织安全人员及各职能部门定期抽查安全生产情况,发现隐患,及时定人员、定措施、定时间落实解决,事后检查。
§6.3.6 吊车进后,经主管部门验收合格后方可投入使用,使用前进行试运行。
§6.3.7 现场临电系统按三相五线制,3 级漏电保护系统配置,在装修阶段,室内施工照明采用36V 安全电压供电。
§6.3.8 施工现场有从事明火操作的人员,事先向安全员开动火证,提出用火申请,制定防火措施。
§6.3.9 施工现场杜绝现场施工人员吸烟,进入施工现场按规定要求佩戴好安全帽。
§6.3.10 从事各项施工的操作人员一律遵守本岗位安全职责,特殊工种作业人员持证上岗。
§6.3.11 污泥泵房地下室顶板设备安装口处,沿外围设防护栏杆安全网封闭。
§6.3.12 做好周一教育,周六检查工作及新工人入厂三级教育,增强广大职工的安全意识。
严禁在现场吊车回转半径内停留。外围搭设双立管双排钢管脚手架,外面用密目式安全网进行封闭。沉基坑外围搭封闭的护身栏杆,夜晚施工现场有足够的亮度。
§6.5.1 为确保施工现场干净整洁,用细石混凝土浇筑半久性施工道路,施工现场设两名执勤人员,每日对施工现场内外作彻底清扫,各施工段划分责任区,各段负责人对各自的环境卫生负责。
§6.5.2 项目部协调管理部门与建设单位、周围村委会、机关单位建立联系,并不断走访听取各方的意见和建议,对各方意见虚心加以改正,创造良好的社会氛围,取得良好社会关系。
§6.5.3 在施工现场西侧主要出入口设立便民服务标志牌,并公布联系人及服务电话,以便发生问题时,及时取得联系,方便群众。
§6.5.4 现场噪声的控制
⑴所有施工机械优先选用低噪音的施工机械,对工人做好教育,杜绝人为环境噪声污染,装卸模板及拆除架管时轻拿轻放,浇筑混凝土时,混凝土振捣器严禁贴靠模板和钢筋振捣,晚22 时至次日凌晨6:00 期间严禁进行高噪音的施工作业。
⑵现场木工棚、搅拌站采取全封闭措施屏蔽噪声。
⑶本工程二沉池池壁使用全钢大模板,其污泥泵房顶板使用竹胶板模板,模板安装和拆除时可降低噪声。
⑷信号工指挥吊车作业时,不能仅吹哨控制,同时使用专业旗语指挥。
§6.5.5 施工现场粉尘控制
⑴现场道路硬化处理,利用设计正式道路的同时,其他临时道路做半永久性混凝土路面。
⑵施工现场内实施适度绿化,施工现场每日派专人洒水降尘。
⑶装修工程采用外脚手架密目安全网封闭,防止施工粉尘外扬,污染环境。
⑷施工现场的垃圾集中存放,不能任意抛洒垃圾,垃圾存放堆表面
需加以覆盖,防止风吹扬尘污染环境。
⑸设专人定时对施工现场进行水力降尘。
§6.5.5 污水的控制
⑴生产污水
主体施工阶段,生产污水主要是由混凝土运输车辆、混凝土输送泵管道冲洗产生的;在装修施工阶段,也产生一定的污水。污水排入市政管网前经过沉淀处理,在现场西侧出入口设立三级沉淀池,所有生产污水经处理后,才能排入市政管网,或者现场回收,可以用于降尘等工作。
⑵生活污水
临时厕所污水全部排入现场化粪池,并经化粪池处理后,排入市政污水管道。食堂污水要经过简易有效隔油池过滤后,再排入市政污水管道,现场设置临时隔油池,隔油池要定期、定人掏油,保证下水管道疏通,以免造成水污染。
本工程计划施工日历天数180d,本工程于2001 年4 月1 日开工,2001 年9 月27 日竣工。为保证工程施工能够按照工期计划进行,项目对施工工期采取以下管理措施:
开工前制定周密的施工准备计划,对准备工作建立严格的责任和检查制,做到有计划、有分工、有布置、有检查,确保工程按期完成。公司全力保证优先安排人力、物力,做好劳动力、材料进场部署,确保工程按计划完成。
在项目部中,建立周密的质量计划,推行质量责任制度,加强质量意识,保证工程质量。工程分部分项一次验收成优,避免工程因质量事故而返工,用高质量保证施工进度计划的落实。
根据总施工进度计划制定详细的月、周计划;切实保证计划的科学性、严肃性。根据总的进度要求,分公司每月编制进度计划,在计划的编制时要充分考虑到各种不利因素的影响,以保证计划的有效性、可行性,经济科学性;项目部每周制订相应的周计划,如发现周计划与总控进度计划相比有滞后现象时,及时采取相应的补救措施,制订详细的工期补救计划,以保证总的形象进度的实现。
采用网络计划跟踪技术和动态管理的方法,坚持周计划内每日工作量保持平衡,周生产协调会,周技术协调会,保证施工计划的实施。
精心组织指挥得力,加强现场的控制协调工作,超前预测,并及时解决好施工过程中可能发生的劳动力、机具、设备、工序交接、材料和资金等方面的矛盾,使施工紧张、有序、有条不紊地进行。
为保证计划的实施,各部门密切配合协调一致,材料、设备供应、劳动力调配,外加工订货提前安排,专业施工队伍的配合等。
开工前要认真做好施工前的准备工作,全部临时设施、材料堆放、机械停放位置要充分考虑各阶段施工需要,最大限度避免二次搬运。
项目部、施工班组严格按施工程序、施工进度计划和施工规范要求安排施工,上道工序验收合格后,方可进行下道工序,防止出现不合格品后层层返工的现象。
选用经济、适用的先进施工机械,采用先进的施工工艺,为实现工期目标积累时间。
基础和主体结构各施工流水段各施工段在施工环节中互相配合,确保工程施工的连续性。
为加快施工进度顶板模板支承体系采用施工方便、操作简便的碗扣式支承体系。
二沉池工程量最大,决定本工程的施工期,采用目前比较先进的全钢大模板施工技术,加快周转速度,从而保证了整个项目施工按期完成。
在本工程现场施工平面图布置时,充分考虑现场的防火要求,如施工平面图所示,配置数量足够的消防器材。
施工用水水源由建设单位提供至施工现场Φ100 市政给水管,可满足施工生产、消防用水要求。施工现场设Φ80 环形消防管网,沿建筑物周围设六个Φ65 地下式消火栓。
工程建立消防安全保障体系,成立消防小组,小组由义务消防队员组成,公司和本工程项目部定期对义务消防队员进行培训,经常组织消防小组进行模拟演练,加强快速反应能力。
施工现场消防工作由专人负责,易燃物资存放的库房由专人负责看管,现场严禁烟火。现场昼夜24h 有人轮流值班,遇有火情迅速进行现场救援和报警。
项目经理部制定严格的消防生产法规,并贯彻执行公司有关消防的规定,建立奖惩制度,加强消防工作的管理。
项目部成立现场保卫小组,由项目经理直接领导。现场的三个大门均由专人看管,实行24h 昼夜值班制。夜间增加值班人员,负责夜间的保卫工作。
§9.1 运用计算机智能网络系统编制网络计划,可以跟踪施工操作中工序间的各项主要矛盾,能在多方案中优选出最佳方案,能明确出各工种间的相互制约、相互依赖的关系,能在计划中找出决定进度的关键工作,利用时间储备进行人力,物力的调配,以达到降低成本的目的。
§9.2 利用大模板的刚度和整体性,使得清水混凝土墙面大大减少了抹灰量,施工现场减少了湿作业,为文明施工创造了有利条件。同时,由于大模板自身的周转使用,为施工组织流水作业提供了保障,各流水段在施工环节中能利用时间的储备进行弥补,确保了计划实施的严肃性,从而也就节省了工期,使项目成本达到了和谐统一。
§9.3 施工中按施工预算严格控制,实行限额领料制度,节约原材料。
§9.4 部分钢筋连接采用电渣压力焊及套筒挤压连接工艺,节约钢材。
§9.5 利用钢筋下脚料制作各种预埋件,节约钢筋。
§9.6 使用碗扣式脚手架支承体系,节约人工,加快模板周转,节约模板租用量,提高施工速度。
§9.7 预留洞采用定型模板,重复利用可节约费用。
§9.8 大模板板面采用凸花纹,在抹灰前减少了水池壁毛化处理工作量。
§10.1 本工程施工组织设计中,应用了全钢大模板、钢筋电渣压力焊、钢筋套筒挤压机械连接、粉煤灰泵送混凝土、计算机网络应用等新技术,为工程降低成本、缩短工期、提高工程质量创造了一定的条件。
§10.2 从水池的长远使用上来看,水池内附加普通水泥砂浆防水层建议改为环氧水泥砂浆防水层。
普通水泥砂浆防水层是一种脆性防水材料,由多种原因(温度、结构变形)引起的变形是不可避免的,施工质量要求严格,不易操作。施工中常采取分格缝分块的控制措施,使每块的绝对变形总量控制在允许范围内,从而防止自由裂缝的产生,如此分格缝又成为新的防水薄弱环节,并不能消除裂缝的产生。严格地说这样的做法仅适用于小型的水池防水,对大型的水池防水是不适合的。而环氧水泥砂浆具有以下优点:
(1) 抗拉、抗渗性能好,强度高,28d 抗压强度达到17.4MPa。抗渗等级S≥10MPa。
(2) 大面积抹环氧水泥砂浆防水层不需设分格缝。
(3) 粘结力强:与混凝土粘结面粘结强度大于2MPa。
(4) 造价低:27 元/m2。
§10.3 我单位在某污水处理厂工程中,成功地应用了防水防腐混凝土施工工艺,如我方有幸中标,我方将在征得建设单位、设计、监理意见后,针对本工程特点针对混凝土防水防腐试配,可取消防水砂浆抹灰层,增强混凝土的抗渗效果,并能缩短工期。