建筑面积 | 36644.11㎡ | 地下室占地面积 | 3500㎡ |
标准层建筑面积 | F1、2、3:404.93㎡ F4-1、2;432.02㎡ | 地下室建筑面积 | 3363㎡ |
地上部分建筑面积 | 33381.11㎡ | 附属房建筑面积 |
|
建筑用途 | 住宅 | 地下层高度 | 3.6 |
地上层数 | 16层 | 标准层高度 | 2.8 |
地下层数 | 1层 | 最大基坑深度 | -8.95 |
±0.00标高 | F1:21.1,F2:21.5 F3:22.0,F4-1、2:22.5 | 建筑总高 | 51.5 |
楼梯结构形式 | 板式 |
|
|
外装修 | 详见建筑施工图 | 内装修 | 详见建筑施工图 |
土质情况
见地质报告
地下水位性质
见地质报告
地下水位
地下水质
地基承载力
渗透系数
地基类别
地下防水做法
结构防水、防水砂浆
基础形式
桩基础
底板厚度
450㎜
地下混凝土类别
抗渗
五级、六级
地下混凝土强度等级
外墙
C40
梁板
C40
简体
垫层C15、C10
内墙
C40
柱
C40
基础
地上结构形式
短肢剪力墙
屋盖结构形式
平屋面
抗震等级
七度
钢筋类别
光圆、热扎带勒钢
钢筋接头类别
电渣压力焊、直镙纹
外墙厚度
地下室350㎜、300㎜,地上200㎜
内墙厚度
地下350㎜、200㎜,地上200㎜
结构参数
典型断面
最大断面
梁截面尺寸
1400*600
柱截面尺寸
1050*600及800*800
地上砼等级
一~五层搂面C35。五层以上C30
本章内容提要:
施工组织设计综合说明
编制依据
现场条件
编制的范围
主要施工技术说明
首先,我们诚恳地表示:我们完全接受业主提出的各项要求,和业主、监理、设计一起共同完成本项目的建设任务。我们通过认真学习和研究招标文件及有关图纸资料,并数次踏勘了施工现场,在分析了各种影响施工的因素和本工程承包的特点、难点后,我们有充分的信心保证高质量、如期、全面完成本工程招标文件规定的工程范围内的任务。
我们一定全力以赴,做好施工前期准备工作,并做好各项施工方案的审定工作,并严格按照审定的施工组织设计进行施工。我们一定发挥本公司的管理优势,合理组织施工,配置足够的技术力量和劳动力,强化计划管理,按照招标文件规定的工期完成工程施工任务。具体措施如下:
1.1.1我公司把本项目列为公司年度重点工程项目,由公司副总经理任总指挥,指定优秀的项目经理任本工程的项目经理,组配经验丰富的管理人员及技术班组进场施工。
1.1.2强化质量管理,认真贯彻各项工程质量标准和质量保证程序,确保工程质量达到招标文件规定的优良质量要求。
1.1.3严格按照有关施工现场标准化管理的规定,组织好现场文明施工,争创文明工地。
1.1.4采用先进的信息化施工管理技术及过程质量控制的方法,管理好本工程的施工,使本工程成为高质量的产品。
1.1.5以一流的服务,一流的干劲,一流的质量,一流的进度,一流的文明向业主献礼。
(1) 本工程的招标文件;
(2)由华森建筑与设计顾问有限公司设计的建筑、结构、水电安装施工图;
(3) 国家颁发的现行建筑安装工程施工操作规程 及验收规范(即GB50203-2002、GB50204-2002、GB50206-2002、GB50207-2002、GB50208-2002、GB50209-2002、GB50210-2001等)和建筑工程施工质量验收统一标准;
(4) 我国现行的有关机具设备和材料的施工要求及标准;
(5) 有关安全生产、文明施工的规定;
(6) 本公司关于质量保证及质量要素程序的有关文件及企业标准。
(1) 场地已平整。
(2) 施工用电已经接通。
(3) 施工用水已接入现场。
(4) 建筑、结构、水电安装等各施工图设计已完成。
本施工组织设计的编制范围即本工程的招标的范围,即F1、F2、F3、F4(F4-1、F4-2)幢住宅的土建及水电安装工程。
(1)本工程中模板采用多层胶合板为面板、50×100木方背楞的木模体系,钢管排架支撑系统。
(2)本工程中底板水平钢筋采用冷压套筒机械连接,其余水平钢筋采用闪光对焊连接,竖向钢筋采用电渣压力焊连接。
(3)本工程中砼±0.00以下采用商品砼,±0.00以上采用现场筹建的搅拌站,现场配备五套泵管(每幢一套),接拖式砼输送泵泵送至浇筑位置浇筑砼。
(4)本工程在F4及F5两幢住宅楼下设一层地下车库,车库在两住宅间设后浇带分隔,后浇带的砼浇筑需待主体封顶后,大部分沉降完成并趋于稳定时浇筑,对这些后浇带部位必须加强质量控制。
(5)本工程的高层住宅外脚手采用普通钢管扣件双排搭设,每隔四至五层设钢管三角挑架分段卸载,以确保施工便利和施工安全。
(6)本工程的垂直运输设备采用塔吊、外用电梯及井架设备,F1、F2共用一台臂长为50m的60tm塔吊(附墙在F2上),F4、F5共用一台臂长为50m的60tm塔吊(附墙在F4上),F3用一台臂长为42m的40tm塔吊;高层住宅每幢各设一台外用双笼施工电梯或货笼。
(7)在现场管理上根据信息化施工的要求,采用计算机实时计划管理,现场的质量人员对整个施工过程进行质量控制。
施工平面布置说明
施工总平面布置
本工程的住宅部分呈梅花形,其有5幢16层剪力墙结构的住宅,其中F4及F5下有地下室一层,在场地的东西南三面有进入场地的主要入口。根据这样的场地现状我们选用了F1、F2共用一台臂长为50m的63tm塔吊(附墙在F2上),F4、F5共用一台臂长为50m的60tm塔吊(附墙在F4上),F3用一台臂长为42m的40tm塔吊的塔吊布置方案,再结合塔吊布置进行钢筋加工与木工制作等场地的安排;考虑到我公司在先期工程的场内已有人员食宿等生活设施,故本次场内不再安排生活临设。按照施工总平面即要布置合理又要贯彻标化管理体现文明施工的原则,我们对本工程的施工平面进行了布置。
(1) 现场设办公室及仓库等临时设施,人员食宿等设施延用原我公司搭设的生活临设。
(2) 施工现场设钢筋成型加工及木工加工制作场地。
(3) 所有场地均采用硬地,做法为:一般场地用碎石垫层100厚上铺80厚C10砼面层;场内主要通道结合工程设计的道路修建临时施工道路,即按设计要求进行道路的基础施工,面层采用100厚C15砼,室外工程施工时再按设计要求的路面完成小区道路的施工。
(4) 现场沿道路两侧设置排水沟,地面水经排水沟再由沉淀池沉淀后用座泵排入市政下水。
(5) 对施工现场进行封闭管理,场地四周设置临时围墙。现场大门处设有五牌一图及宣传栏;现场出入口设值班门卫,并坚持出入制度、场容管理条例、工程简介、安全管理制度,以教育职工树立遵守纪律和维护良好工作秩序的意识。无关人员一律禁止入内,禁止打架、斗殴等流氓行为的发生。
(6) 凡进入现场的材料、设备必须按平面布置图堆放整齐,挂牌标识。
(7) 施工现场的水准点,轴线控制点等要有醒目的标志并加以保护,任何人不得损坏、移动。
(8)临时用电,建设单位已提供施工用电需要的电源。临时用水,建设单位已提供施工需要的水源。施工时,从水源至施工现场段的水管均埋设在地面以下,每隔20m左右设一接水口并安装止水阀以备施工接水之用。
(9)塔吊、货梯安装按机械设备安全规定接好防雷装置。
本章内容提要:
施工总进度计划安排
工程施工总进度计划
进度保证措施
本工程招标文件要求的工期为400天,本工程将严格按照招标文件规定的400天的工期要求来完成施工任务。
开工日期初步拟订为2004年2月18日(具体以开工令为准),竣工日期为2004年3月28日,总工期为400天。
本工程在施工的组织安排上,先施工F1、F2、F3后再进行F4、F5地下室的施工,地下室按照后浇带的布置自然分成两部分,这两部分分别按三段流水组织施工;上部住宅部分由于平面面积不大(长32.5m,宽17.6m)可按二个施工段来组织施工。施工段的划分是组织管理的手段,不是实际意义上的分段,即施工段间的施工仍是连续的,砼浇筑也是连续的,而不是施工缝。
见附图表
运用可靠的、合理的、先进的施工技术,避免出现质量问题甚至质量事故是进度得以实现的基本要求。充分体现我公司的施工技术水平,运用我们先进的模板支撑技术、钢筋连接技术、工程测量技术和质量控制及组织管理技术等,确保工程建设优质高效地进行。
通过对本工程施工图的深入研读,我们充分认识和掌握了本工程施工的特点及重点,对于地下室部分主要为配合基坑支护及降水单位做好基坑的土方开挖,加强对地下室的防水工程以及地下室后浇带施工的质量控制;对于地上的高层住宅部分主要为剪力墙的模板及砼工程,外脚手等。施工技术上的保证是施工进度得以保证的前提,只有在确保施工顺利进行的情况前提下才有施工进度可言。
对本工程的各施工技术特别是重点施工技术须做专项施工组织设计,确保分项的顺利施工。
在模板施工技术上延用常规的多层胶合板模板体系,不仅可保证施工的质量,同时也由于工人在操作上的熟练程度,使得模板的支设速度有了保证。
在钢筋加工制作上地下室底板采用了冷挤压机械连接其余则采用方便可靠的闪光对焊及电渣压力焊连接工艺使钢筋的绑扎成型加快了速度。
采用质量可靠的泵送商品砼施工技术,加快了浇筑速度。
经济合理安全可靠的外脚手体系,为施工提供了便利条件。
总之多种技术的有机合成,体现在本工程中不仅确保了工程的顺利实施,也为加快施工进度提供保证。
充分利用本公司的机械设备优势,提高机械利用率,降低劳动强度,塔吊、货梯等设备是加快整个工程进度的有力保证。
本工程的垂直运输设备采用塔吊及外用电梯;砼采用泵送砼,确保了工程的垂直运输需要。供水供电设备、钢筋加工机械、模板制作机械、砂浆搅拌等本工程必须的各类机械设备,我们一应俱全地备足,并安排有专人对各机械设备进行管理,确保它们的正常使用和充分发挥。
提前做好材料计划,保证供货渠道的畅通,在选择供货商时选择质量和信誉良好的供货商,确保材料的质量合格和及时供货。
本工程中配备了搭配合理素质精良的管理人员,他们参加过较多较大工程的建设并取得过优异的成绩,自身素质较高,管理经验足能力强,是一支能打硬仗的管理干部队伍;本工程中配备了足够的劳动力,熟练技术工人与年富力强的壮工搭配合理,他们大都是长期在现场从事一线施工,有着熟练的操作技能,单兵作战能力强。这样的一支训练有素的施工队伍是无往而不胜的,是必然可以胜任本工程施工的。
采用先进的信息化施工管理技术,信息反馈技术及Project管理软件对本工程的施工进度实行动态管理,确保工期处于受控状态。
由公司副总经理主持召开的每二周一次的项目经理部会议,对本工程施工进度、资金、物资、设备总调度和平衡,解决施工过程中的各类矛盾和问题,使该工程顺利进行。
项目经理部用周计划控制分部分项工程进度,按计划要求,每周召开一次平衡调度会,及时解决劳动力、施工材料、设备调度问题,确保工程按计划实施。
发挥我公司施工管理的优势,组织各作业队,平面分区域流水作业,立体交叉施工,确保工期目标实现。
我公司在长期的施工实践中摸索出了一条适合自身特点的一套管理激励机制,有完善的保障制度和奖励机制,可以充分调动管理人员及作业人员的积极性、灵活性和创造性,每个职工均以公司为荣,公司以拥有这么多的优秀职工为骄傲,这样的管理机制使公司上下凝成一气,形成极具有战斗力的施工队伍。
任何一个工程项目的优质按期的完成都是众多单位紧密协作,齐心协力的结果。本工程原则为土建、安装单位总承包,尽量少分包,其中少部分分包的仍属总承包单位统管,为按期完成本工程项目而共同努力。
(1)安装与土建的图纸要相互参照,安装需土建预埋的部分要提前与土建核对,提前提供大样图,封模时共同检查,做好记录。
(2)各种预留预埋件要提前加工制作,按指定的开头位置牢固设置,并认真进行复核,做好记录。某些箱盒、管线埋前要妥善封口,以免流入水泥浆,造成堵塞。
(3)安装的预留预埋与土建有矛盾时要经设计人员提出处理意见。安装好的管道及箱盒,土建要主动予以保护,其四周的修补亦应由土建进行,以确保修补质量。
(4)上下交叉、内外交叉、工种交叉作业时要有安全防护措施和成品保护措施,工作面交接时要对成品保护和工序质量进行交接验收。
(5)卫生间、盥洗室做防水前要由安装检查其管道位置及地漏标高,确定无误并做好交接记录后,由土建用掺有UEA膨胀剂的细石砼堵洞。
(6)在已砌好的墙上水电安装需开槽时,应先弹线,再用切割机开槽后在墙上凿槽,严禁不用切割机开槽即在墙上凿槽。
(1)在施工全过程中,严格按照经建设单位及监理师批准的“质量计划”、“施工组织设计”进行质量管理,在自检、专检合格的基础上,接受监理师的验收和检查,并按照监理师要求及时做好整改。
(2)贯彻本公司业已建立的《质量手册》、《程序文件》和针对本项目的《质量计划》,确保产品达到省优等级。凡由我方总承包的工作内容,确保全面执行监理师的一切指令。
(3)所有进入现场使用的成品、半成品、设备、材料、器具,均及时向监理师提交产品合格证和质保书,并按规定对需进行物理化学试验检测的材料及时送检,严格按《检验和试验控制程序》执行。
(4)按部位或分项、工序检验质量时,严格执行“上道工序不合格,下道工序不施工”的原则。
(1)按总进度计划制定的控制节点,组织召开现场协调工作会议,检查各节点的实施情况,制订、修正、调整下一节点的实施要求。
(2)项目经理主持施工协调会,一般情况下以周为单位进行。
(3)项目部将会同业主代表、监理工程师定期不定期地组织对节点、工程质量、现场标准化、安全生产、计量状况、工程技术资料、原材料等的检查,并根据投标文件及工程合同有关条款进行必要的奖罚。
(4)项目部以周为单位提出工程简报,向业主和各有关单位反映、通报工程进展状况及需要解决的问题,使有关各方了解工程的进行情况,及时解决施工中出现的困难和问题。随着工程的进展,将不定期地举行各种协调会,协助业主协调与社会各业务部门的关系,以确保工程的顺利进行。
工程横道图
单代号
本章内容提要:
工程简况及施工特点
主要施工部署
施工现场准备工作
工程测量、测量复核及沉降观测
基础及主体结构施工
水电安装工程
一般装饰工程
本工程由5幢住宅楼组成,其中F4及F5两幢住宅下设一层人防地下室,翠岛花城工程位于宁南街道丁墙村,建设单位为南京雨花城镇开发总公司,设计单位为华森建筑与工程设计顾问有限公司(人防地下室部分由江苏省第二建筑设计研究院设计)。
人防地下室部分:
翠岛花城F组团人防地下室平时为地下车库,战时可作为人员掩蔽、人防救护站及区域电站用,人防地下室的建筑面积为3363.8平方米,人防地下室的上部为两幢16层住宅。
人防地下室结构结合上部的住宅结构体系的设计进行,抗震设防烈度为7度。平面尺寸长近100m,宽近50m,在中部设有一道后浇带。地下室底板厚450mm,顶板厚400mm及450mm,砼强度等级均为C40。地下室梁的最大截面尺寸为600×1200;墙的最大截面尺寸为500,外墙为300及350厚;柱的最大截面尺寸为1050×600及800×800;砼强度等级为C30抗渗S8。地下室部分的砼建议用同一等级以便施工。底板顶面标高为-5.15m,顶板顶面标高为-1.55m,地下室层高为3.6m。
住宅部分:
单幢住宅建筑面积在6500m2左右,层高为2800,建筑总高近50m。外墙采用190烧结节能模数砖,内隔墙采用空心砌块;外装修主体部分采用喷涂与仿石面砖进行饰面组合,室外窗采用塑钢窗,无色透明玻璃;屋面防水采用二道防水设防,柔性防水层采用SBS改性沥青防水卷材,另设一道补偿收缩砼刚性防水层。
结构上采用剪力墙结构,一般墙厚为200;五层板面以下采用C35砼,其余采用C30;基础采用直径为1000带扩大头的人工挖孔桩基础,承台顶面标高-1.8m,最大的一个承台长6500宽4100厚1200,桩身砼强度C25。
因此本工程的地下室承台部分属大体积砼施工,因加强大体积砼的温度监控,控制大体积砼的内外温差,确保大体积砼的施工质量;另外地下室中部还设有一条后浇带,对后浇带的留设及后期浇筑砼等应加强控制确保施工质量。对于住宅的主体部分,则主要应控制剪力墙模板的施工质量。
对于这一工程项目,我们公司上下都给予了高度的重视。我们将依靠和运用我公司在众多建筑施工中积累的成熟经验,并充分发挥广大工程技术人员的聪明才智,做到技术领先,充分体现出“科学技术是第一生产力”。
(1)积极开展各项准备工作,对施工现场进行整理以创造便利的施工条件。
(2)本工程的5幢住宅共采用3台塔吊5台施工电梯,其中F1、F2共用一台臂长为50m的63tm塔吊(附墙在F2上),F4、F5共用一台臂长为50m的60tm塔吊(附墙在F4上),F3用一台臂长为42m的40tm塔吊来满足垂直运输的需求。
(3)本工程为从挖土开始的土建及水电安装工程,从总体施工程序上先进行无地下室的住宅的基础施工,创造条件同时进行有地下室的住宅的基础施工,在浇筑砼的安排上5幢住宅间相互错开。主体结构完成40%立即组织验收即着手进行粉刷及内外装饰工程施工,最后进行室外工程的施工。
(4)承台地梁的侧壁采用砖砌胎模,柱、墙、梁板模板均采用胶合板木模。
(5)本工程底板的水平钢筋采用钢筋套筒冷挤压机械连接,其余采用闪光对焊,竖向钢筋采用电渣压力焊连接。
(6)外脚手架采普通钢管扣件式外脚手,高层住宅的每隔4至5层设三角挑架分段卸载。
(1)各种预埋管线穿插在土建的施工过程中进行。
(2)及时向业主提供设备要求进场的时间并配合业主进行设备的进货工作。
(3)做好各种设备的测试、安装、调试等工作。
本工程的装饰工程主要集中在建筑的外立面上,室内主要为粉刷工程。
(1)主体结构完成40%时立即组织验收开始进行各项装饰施工。
(2)装饰施工材料由货梯设备负责运输。
(3)装饰工程采用先样板后全面展开的做法。各装饰分项在立体层间进行交叉流水作业。
(4)对于各种装饰材料要严格把关,严禁使用不合格产品。
(1)为了建设好本工程项目,我们采用信息化施工管理和过程质量控制对各专业施工进行管理。
(2)各专业队伍在工程项目管理部的统一指挥下协调运作,互相配合齐心协力地完成本工程的施工任务。
(3)本着“百年大计,质量第一”的思想,我们制定了详细具体的质量保证计划并按照本公司ISO9002系列文件的质量控制对本工程进行质量管理。
(4)严格现场标准化管理,使场容场貌管理达到一个新的水准,争创文明样板工地。
施工现场实行封闭管理,在施工场地的南侧外围砌筑砖墙并在表面做蓝白图案粉刷,其它地方采用彩钢板围墙。
所有场地均采用硬地,做法为100厚碎石垫层上铺80厚C10砼面层;主要通道结合原有道路设置。
环绕施工场地及道路两侧做排水沟,地面水经排水沟再由沉淀池沉淀后排入市政下水。
中标进场后即对场地进行平整夯实,平整后的场地向排水沟做0.5%的排水坡,排水沟环绕基坑周边布置上盖铁篦子盖板,地面水经排水沟再由沉淀池沉淀后排入市政下水。F1、F2、F3栋施工至±0.00时立即进行土方回填夯实,四周做砼散水及明沟排水。
根据甲方提供的城市供水网的结点,沿现场四周布置临时供水管网,管径2寸,再设支管提供施工用水。
5幢住宅部分设总管径100mm的自来水管,可以满足现场供水要求。
现场水管的布置:
从主供水管引出分管(2”),沿各幢工程平面布置及竖向布置。平面布置的水管均沿建筑物周边环向布设,水管暗埋,每隔20M左右设置分水阀以供施工接水使用。竖向布置的水管在每层布设分水阀以供竖向层间施工用接水。水压不够用蓄水池加座泵加压。
利用甲方提供的电源,设置配电房和配电柜,布设现场供电电缆。电线、电缆必须预埋或架空架设,动力和照明分开。
(1) 施工用电负荷计算
S动 =Ke [ΣP机 ÷(n×COSΦ)]
S总=1.1×S动
S动-表示动力设备所需的容量(KW)
∑P-表示各电动机的功率之和
n-表示各电动机的平均率效n=0.86
e-表示所需系数Ke =0.7
COSΦ=表示电动机平均功率因素COSΦ:0.82
1.1为考虑照明增加的系数
因设备并非同时使用,故现场正常负荷为S总=S总 ×70%=365KW。
经以上的方法计算得现场提供用电容量为850KW即可满足施工用电需要。
动力线路一级送电采用三相五线制;二级送电和现场照明采用三相四线制送电;在现场设分电箱施工用电均从各分电箱就近引接。
为了确保本项目能“优质高速”按时乃至提前完成,劳动力配备必须考虑如下因素:
(1)根据工期要求及进度计划,各施工阶段的作业量和工种状况,劳动力的配备要充足,以满足劳动力调配的需要。
(2)根据工艺要求配备专业施工人员,专业工种要齐全,技术资质满足要求,特别要优先选择干劲足,技术水平高的操作能手,以利于保证质量、进度。
(3)加强机械管理和劳动力的科学调配,充分提高劳动效率。
(4)劳动力的配备计划表(见下表)。
劳 动 力 配 备 计 划 表
工种 范围 | 木工 | 钢筋工 | 砼工 普工 | 瓦工 | 架子工 | 水、电工 | 机操机修工 | 合计 | |||||||||
结构 | 160 | 80 | 60 | 60 | 40 | 30 | 20 | 450 | |||||||||
工种 范围 | 木工 | 钢筋工 | 瓦工 粉刷工 | 架子工 | 水、电工 | 机操机修工 | 五金工 | 合计 | |||||||||
装修 | 150 | 20 | 150 | 25 | 30 | 20 | 20 | 415 | |||||||||
施工机械设备的配备必须保证在任何施工阶段都不影响工程的正常进行,并留有适当的余地,作应急之用。基础结构施工前将塔吊安装完毕,保证基础结构开始施工时正常运转。地上主体结构施工再增加人货电梯、货梯设备。
主要施工机械设备一览表
土建施工主要机械
编
号 | 名 称 型 号 规 格 | 数量 | 额定功率KW | 备注 |
1 | QTZ40塔吊 | 1台 | 45KW/台 |
|
1 | QTZ60塔吊 | 2台 | 55KW/台 |
|
2 | SC100-100施工电梯 | 4台 | 11KW/台 |
|
3 | 200L砂浆机 | 4台 | 7.5KW/台 |
|
4 | GT40-2/6-40型钢筋切断机 | 2台 | 3KW/台 |
|
5 | HYS630型电渣压力焊机 | 10台 | 32KW/台 |
|
5 | VN100型钢筋对焊机 | 2台 | 100KW/台 |
|
6 | 钢筋冷挤压机 | 3台 | 1KW/台 |
|
6 | GTB408/6-40钢筋弯曲机 | 2台 | 3KW/台 |
|
7 | AX3-300-2电焊机 | 6台 | 21.5KW/台 |
|
8 | 砂轮切割机 | 4台 | 1.5KW/台 |
|
9 | 氧气设备 | 3套 |
|
|
10 | 潜水泵 | 10台 | 2.2KW/台 |
|
11 | MJ106木工圆盘锯 | 4台 | 7.5KW/台 |
|
12 | MB106木工压刨机 | 4台 | 7.5KW/台 |
|
13 | MB-F5BA木工平刨机 | 4台 | 3KW/台 |
|
14 | ZX50插入式振动器 | 20台 | 1.5KW/台 |
|
15 | ZWSB8-11平板式振动器 | 3台 | 0.5KW/台 |
|
16 | 砼输送泵 | 1台 | 75KW/台 | 租用 |
16 | 高压扬程泵 | 3台 | 7.5KW/台 |
|
16 | 打夯机 | 2台 | 2.8KW/台 |
|
16 | J2经纬仪 | 3台 |
|
|
17 | DS3水准仪 | 4台 |
|
|
18 | 反铲挖土机 | 2台 |
| 租用 |
19 | 推土机 | 1台 |
| 租用 |
20 | 运输车 | 10台 |
| 租用 |
水电安装施工主要机械设备
序号 | 机具名称 | 规格 | 单位 | 数量 |
1 | 交流电焊机 | B´3-300 | 台 | 1 |
2 | 交流电焊机 | B´3-200II | 台 | 1 |
3 | 直流电焊机 | A´3-300I | 台 | 2 |
4 | 砂轮切割机 |
| 台 | 2 |
5 | 电动套丝机 |
| 台 | 1 |
6 | 气焊工具 |
| 套 | 2 |
7 | 台式钻床 | LT-13 | 台 | 1 |
8 | 冲击电钻 |
| 只 | 4 |
9 | 手枪式电钻 |
| 只 | 4 |
10 | 电动试压泵 | 0-4mpa | 台 | 1 |
11 | 曲线剪 | TN-1600 | 台 | 2 |
12 | 拉铆枪 |
| 台 | 2 |
13 | 煺弯机 煺弯机 |
| 台 | 1 |
14 | 开孔器 |
| 只 | 2 |
15 | 兆欧表 |
| 只 | 2 |
16 | 接地摇表 |
| 只 | 1 |
主要机械设备进场计划表
序号 | 设备名称 | 进 场 时 间 |
1 | 塔吊 | 土方开挖前塔吊安装完毕 |
2 | 施工电梯 | 主体施工至5层时进场安装 |
4 | 钢筋机械 | 开工即进场。 |
5 | 木工机械 | 开工即进场 |
6 | 其它机械 | 随用随到 |
本工程中需投入的施工用周转材料有胶合板、木方、钢管、扣件等;工程使用的材料主要有钢材、木材、水泥、砼、多孔砖等,主要构配件有防火门、塑钢门窗等。所需材料众多,需精心组织材料计划,以确保按期完成本工程的施工任务。
序号
材料或构件名称
数量
拟订的进场时间
备注
1
施工用周转材料
多层胶合板
6000张
开工后随工程施工进度分批进场
规格为1.83m×0.95m
2
木方
300m3
开工后随工程施工进度分批进场
3
木板
100m3
开工后随工程施工进度分批进场
4
钢管
1000t
开工后随工程施工进度分批进场
5
扣件
40000只
开工后随工程施工进度分批进场
6
密目安全网
100000m2
开工后随工程施工进度分批进场
7
竹笆
10000块
开工后随工程施工进度分批进场
2 m×1m
本工程的垂直运输设备采用塔吊、外用电梯设备,砼输送采用砼泵。其中F1、F2共用一台臂长为50m的63tm塔吊(附墙在F2上),F4、F5共用一台臂长为50m的60tm塔吊(附墙在F4上),F3用一台臂长为42m的40tm塔吊;住宅每幢各设一台外用双笼施工电梯。
1.塔吊的布置
根据本工程的平面形状,综合考虑了方便安装拆除,满足覆盖及起重能力与强度等因素,我们采用F1、F2共用一台臂长为50m的60tm塔吊(附墙在F2上),F4、F5共用一台臂长为50m的60tm塔吊(附墙在F4上),F3用一台臂长为42m的40tm塔吊。塔吊布置见施工平面布置图。
2.塔吊的安装
3.塔吊的拆除
主体结构完成后可着手拆除塔吊,拆除顺序逆安装顺序。
4.3.8.2施工电梯
本工程的高层住宅每幢各设一台施工电梯,当施工至6层时,进行电梯的安装,经验收合格后投入使用。主体施工时注意按电梯的附墙要求提前做好预埋件或预留孔的留设。有两台货梯需在地下室顶板上安装的,应在地下室顶板下搭设带可调头的钢管支架进行楼面加固,钢管立杆间距采用@800×800。
(1)测量放线,按照测绘单位提供的测量坐标控制点,布设测量控制网。
(2)观测点应标记显眼,所有的观测点及放线控制点都进行严格有效的保护措施。
(3)组织学习、会审图纸,进行技术交底,有疑问及时与设计单位联系解决。
(4)编制材料、机具设备及周转材料的进场计划。
(5)组织人员进行钢筋、模板翻样工作,出翻样图。
(1)施工工期
本工程施工工期满足招标文件规定要求,确定为400日历天。
(2)工程质量
工程的质量管理按照ISO9002标准执行,工程质量确保符合《建设工程施工质量验收统一标准》规定的质量要求。
(3)安全与消防
本工程安全目标:确保无重大工伤事故,杜绝死亡事故;轻伤频率控制在6‰以内。
消防目标:达到本地区消防部门的验收标准,无火灾隐患,坚决杜绝火灾。
(4)场容管理
现场进行硬化处理,实行CI管理,让业主满意。施工噪音控制在许可范围内,建立环保措施,争创文明工地。
(5)机械利用率
机械利用率=(报告期内机械设备实做台班数÷报告期内机械设备制度台班数)×100%,各机械利用率要求达到90%以上。
(1)本工程之测量任务由工程测量小组专门负责,建立建全复测检查的制度,确保施工全过程中定位、放线、轴线引测、标高控制的准确。
(2)在测量操作上应与设计、施工密切配合,严格遵守施工测量放线工作准则。
(3)现场配备激光经纬仪、自安平水平仪等专用仪器。测量放线方法需因地、因时制宜,灵活运用。
(1)使用S3水准仪,依据建设方提供的水准点、座标,引测出工程的±0.00标高及轴线位置,做到精确无误。场内按图示建立平面定位通视的测量网,作为对上部建筑测量校验的标准。
(2)住宅楼上部主体施工,采用内控法向上传递轴线,即在底层内控基点处架设激光经纬仪,对中校正操平后启动激光电源,激光束通过楼板的预留洞向上投测到测量孔的接收靶上,通过无线对讲机上下人员互相联络,以调校可见光斑直径,使其达到最佳状态,并通知观测人员逆时针旋转准直仪,这样在接收靶处就可见到一个同心圆(光环),取其圆心作为向上的投测点,并将接收靶固定。同样的办法投测到下一个点,保证每一施工工段至少2-3个点,作为角度及距离校核的依据。控制轴线投测至施工层后,应组成闭合图形,且距离不得大于所用的钢尺长度。因住宅楼为剪力墙结构,采用内控法向上传递轴线过程中可能会出现墙体钢筋影响通视的状况,因此要求将在内控点间的通视线上的钢筋进行局部移位,以确保通视,方便轴线测量。
(4)建筑物四角垂直偏差的控制。在建筑物大角的两侧同时或分别架设广角经纬仪,操平后仪器接物镜上的“+”字竖丝对准首层地面上的轴线,固定水平罗盘,向上转动接物镜,仰视观察,找出偏差,检验转角构造柱模板的垂直度及砌筑墙体的垂直度。

住宅内控法轴线定位控制网布置示意图
依据水准点引测±0.00标高线,用钢卷尺量出楼层标高基准点后用水准仪定出轴线的标高。
每层楼层内模板及支撑拆除清理后,每道墙面上均弹室内楼面+1.0m线,作为装饰工程、门窗安装和水电安装的标高控制线。
(1)沉降观察需采用精密水准仪和钢水准尺,进行观察时,应使用固定的观测工具,并事先经检定。
人员宜固定,每次观察均需采用环形方法或往返闭合法当场进行检查。同一个观察点两次观察之差不得大于1mm。
(2)沉降观测的次数和时间,第一次观测应在观测点安装稳定后及时进行,根据设计要求,施工期间每施工三层观测一次;结构封顶后,每隔一个月观测一次;结构封顶六个月后,每隔半年观测一次,直至稳定。
(3)沉降观测资料应及时汇总整理,并附有各种有关规定数据,并将其沉降观测结果绘制降量的分布曲线图表。
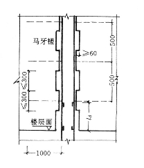
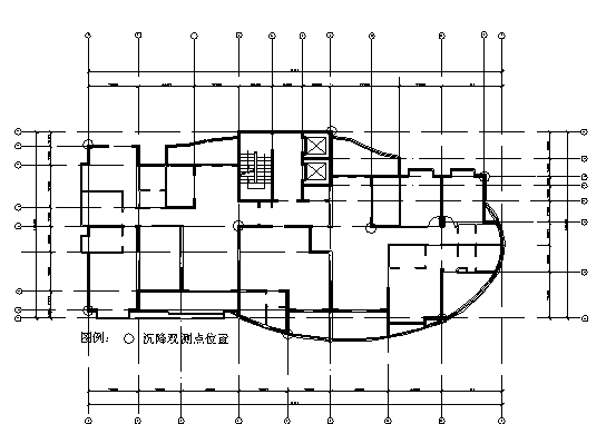
(4)沉降观测点的设定,可在建筑物沉降缝的两侧及四角转角处进行设置,观测点的布置及做法见图。

观测点做法图
住宅沉降观测点分布示意图
4.5.1本工程场地从上而下各地质结构依次为:1、填土层;2、粉质粘土层,层厚0.6-5.9m;3、粉质粘土层1,层厚1.1-8m;4、粉质粘土层2,层厚1.5-10.9m;5、粉质粘土层3,层厚1.2-10.4m;6、卵石层,层厚0.4-5.9m;7、强风化岩层,层厚0.9-5m;8、中风化岩层。地下水主要为潜水,赋层于填土层中。根据本工程的地质条件,F1、2、3基础基土方采用机械开挖,挖至±0.000以下2.1M处,余土部分由人工挖到设计底标高,-2.20M以的承台部分由于本工程桩基工程挖土机无法施工,因此由人工修到设计标高,人工挖土至承台的底标高,人工挖土由前向后推进,统一推进放在基坑内,然后再由挖土机挖出运走.F4、5地下室机械开挖至距设计底板300㎜处,再由人工修到设计标高,承台梁槽挖土均按上述施工顺序进行。支护单位已拟定部分支护部分放坡开挖的方案,坑内明排水,即东北角部采用人工挖孔桩支护,其余采用放坡开挖,其中北侧及西北侧靠近道路段放坡1:0.5,坡面采用水泥砂浆护坡,南侧采用1:1放坡开挖。
挖土过程中严禁扰动桩体,为减少挖土对桩体的扰动挖土采用分层均衡对称开挖,桩体上部暴露出后,人工将桩体保护层破凿凿出桩体钢筋,并截除砼桩体。桩头处理在做垫层前,凿去设计标高以上的多余部分,并留有伸入承台内的锚固长度,桩头顶面应按要求凿毛,同时清理干净,再进行垫层施工。垫层施工时采用水准仪抄平,确保表面标高准确无误。
(2)坑内排水
土方挖至底版设计标高后在四周轴线承台保持一定的施工面外挖一条贯通的排水沟,排水畅通。所有排水沟上铺设砼盖板。
安全措施:按安全生产管理和安全生产操作规程施工。增加管理人员现场巡视,发现问题及时解决。在开挖灰线外围做好护栏,用色标注明区域,开挖时按施工方案放好开挖坡度,由专职安全员负责开挖期间的确安全防护工作,按施工方案及时配合有关工种做好护坡工作,确保安全生产,万无一失。

挖土流向示意图
(2)回填土
现场基坑四周回填土时,应选用粘土并尽可能在土的最佳含水量条件下,用打夯机或人工夯实等方法填筑密实。基槽采用人力夯实或机械夯实,基槽回填土应分层回填夯实,并应两边同时进行,不得单边回填,压实系数大于92%。回填土的质量控制采用每层回填土用环刀法测定土壤密度,符合设计要求即可进行下一层回填土施工。
4.5.2地下室护坡
地下室部分土方开挖好后,由于与原场地高差太大,且由于场地因素无法放坡。为防止塌方和泥浆流入基础沟,采取钢筋细石砼80厚C20进行护坡。先将墙壁土表面铲平,后搭设脚手架。钢筋采用Φ8,间距150。钢筋网片挂壁固定用Φ12的钢筋,间距1500,长度1000为锚杆,间距1500打入土内。
本工程地下室的防水采用自防水砼,抗渗等级S8进行防水。
根据设计要求,本工程中地下室底板、外墙采用自防水砼,砼的抗渗等级为S8。防水砼迎水面砼保护层不小于35mm,在砼施工中做到振捣密实,不漏振,使砼不出现蜂窝麻面现象。砼的配合比,在开工前由试验室确定该防水砼的配合比,下料时配合比必须准确,保证砼的质量。
为达到地下室防水砼的防水效果应加强对超长结构的裂缝控制,依据本工程地下室结构设计说明中的要求,需在砼内掺加微膨胀剂及聚丙烯纤维,成为聚丙烯纤维砼。该项技术是由北京城建集团混凝土公司研发,通过采用膨胀剂(或防水剂)和国产改性聚丙烯单丝纤维相结合配制出用于抗渗防裂要求的预拌泵送混凝土,可使混凝土抗拉、抗折强度有所提高,抗冲击韧性明显改善,抗渗、防裂、防潮、护筋性能良好,有效的改善了混凝土的耐久性,并具有成本低、工作性能好的特点,适合于抗渗防裂要求较高的混凝土工程。聚丙烯纤维是由丙烯聚合物或共聚物制成的烯烃类纤维,比重为0.91,抗拉强度可达300-500Mpa,弹性模量3400-3500Mpa,不吸水,为中性材料,与酸碱不起作用,熔点160-170℃,燃点590℃。掺加在混凝土中的聚丙烯纤维长度一般为12-19mm,直径几十μm。聚丙烯纤维混凝土的施工与常规混凝土基本相同,但聚丙烯纤维混凝土在相同配合下,坍落度比普通混凝土降低30%左右,且泌水速度降低,振捣和收面作业应适当加强。
沿地下室底板向上300的墙体处设水平施工缝,施工缝采用错台留置的形式进行留设,施工缝的砼表面应当凿毛,清除浮碴,在继续浇筑砼前应用水冲洗干净,保持湿润。面先涂刷水泥浆两遍,上铺10厚水泥砂浆一层,砂浆标号及水泥品种应与砼同。钢板止水带做法见下图:

底板外墙施工缝处防水处理示意图

为了达到防水效果,又使方法简便易行,可采取如下做法:清理砼表面灰尘和防水螺栓头子,使墙面湿润,用1:1的107胶水泥浆刷于防水螺杆处,用1:2防水砂浆(内掺5%防水剂)把螺杆处填堵密实,再按设计要求在外墙施工附加防水层。
外墙止水螺栓处的防水处理示意图
为确保外墙混凝土浇筑的整体性、连贯性,防止出现施工冷缝,在外墙混凝土浇筑前,先将独立柱和内墙板混凝土预先浇完,以便集中力量进行外墙混凝土的连续浇捣。外墙混凝土浇筑采用2台混凝土泵车,其中1台为固定泵用硬管接入,另一台为汽车移动泵,软管摆布。混凝土浇筑按斜面分层法振捣,根据浇筑砼时的气温和混凝土的初凝时间,每浇筑一段长度,及时调整泵送管,循序循环推进,以避免出现施工冷缝。为避免外墙混凝土收缩裂缝(一般以竖向裂缝的方式出现)的产生,施工时要求在外墙外侧设水平温度钢筋,间距不大于150mm,且严格控制混凝土的保护层厚度严禁超厚。根据泵送工艺要求,严格控制混凝土坍落度,凡超出范围的,一律退场,专人负责此项工作,绝不允许在现场加水。
本工程中两幢住宅与中部的地下车库间设有沉降缝,后浇带的位置及防水做法如下图示:

地下室后浇带位置示意图

后浇带防水做法示意图
(1)后浇带的留设
按设计图纸中后浇带的位置留设后带,后浇带处的钢筋应连续布置,底板及墙体后浇带侧面设快易收口钢板网,采用板条木模。
对于后浇带穿越梁板结构的部位,后浇带两侧的梁板结构在拆模后应设置可靠支撑,以防梁板呈悬臂的受力状态而在根部产生开裂。
(2)后浇带砼浇筑的条件
本工程中住宅地下室中设置的后浇带起到两大作用,其一是控制砼的收缩,其二是起到施工期间沉降缝的作用,因此此后浇带处砼的浇筑,需待主体封顶后进行。浇筑前需根据沉降观测的资料判定后浇带两侧沉降均衡(若出现不均衡现象则须会同设计人员另行处理)。后浇带的浇筑需由下至上逐层进行并满足后浇带两侧砼龄期的要求。
(3)后浇带处砼的施工
后浇带的砼浇筑宜在气温低于主体施工时的温度或气温较低的季节施工。
后浇带在施工前必须严格按照要求将后浇带内的杂物浮浆等清理干净,并将接逢处的混凝土凿毛,清洗干净,保持湿润并刷纯水泥浆;为便于后浇带处的杂物清理,底板后浇带下的垫层下降100MM,并在后浇带内设集水井。
后浇带的砼采用微膨胀水泥配制,配合比要进行专门的试配确定;后浇带处的砼应按规定做好砼试块。
后浇带的砼养护时间不小于28天。
(4)底板后浇带应着重注意的事项
基础底板后浇带的应着重注意四个方面的内容:①防止外界水的侵入;②防止杂物落入后浇带致使清理困难;③防止后浇带部位由于两边荷载的增大而使土体,垫层上拱导致垫层与后浇带底板钢筋贴实,钢筋推动保护层,同时破坏防水层,影响底板防水;④防止后浇带处混凝土渗水。
1)防止外界水侵入,及时排除后浇带内的积水
在施工前必须采取有效的排水措施,具体做法是:在坑底内四周挖设一圈排水沟,排水沟断面为400×400mm,并按20m间距设置积水坑600×600×600mm,排水沟坡向积水坑,积水坑内设潜水泵,及时抽出抗内积水,为了能及时排出后浇带内的雨水或积水,在后浇带内垫层下设置400×400mm的积水坑,积水坑布置在后浇带两头和中间,每隔25-30m间距设置一个,后浇带两端浇筑一道20cm厚的钢筋砼墙,阻止雨水进入后浇带内。
2)防止杂物后浇带中而使清理困难
为了防止杂物落入后浇带内,在底板后浇带上通常满铺竹胶板,并沿后浇带两侧砌筑水泥砂浆挡水坎,可有效的防止杂物和雨水侵入。
3)防止后浇带部位土体上拱
由于后浇带需待两边主体都封顶并沉降稳定后方可封闭,在此期间,随着两边荷载的逐步加大,地基应力逐渐增大,有可能使后浇带部位的地基土上拱,采取后浇带部位垫层下沉20cm的做法,不仅便于清理,同时还可沉积不易清除的细小杂物。
4)防止后浇带处混凝土渗水
后浇带处的清理:为保证后浇砼与原有砼之间的粘结,后浇带处的松散砼或浮浆要彻底剔凿掉,钢筋表面也要用钢刷把浮浆清除,底部杂物垃圾要清扫干净,施工缝处砼浇筑之前要浇水湿润,以保证接缝处的砼质量。
按设计要求做好后浇带下的附加防水层。
待主楼施工完毕后,后浇带采用混凝土强度高一级微膨胀混凝土浇筑。
承台及地梁侧壁采用砖胎模其做法如下图示:

砖胎模示意图
矩形柱子模板支垫方木肋间距≤300mm,钢管箍夹固,钢管箍沿柱子高度每500mm设一道。为防止柱子模板根部在浇筑混凝土时移位、胀模,在柱脚周围的混凝土楼板上插置钢筋头,作为柱脚模板支垫的固定锚点。柱子支模时注意留置与墙体的拉结筋。

矩形柱模板示意图
圆形柱模按两个半圆加工制作,采用4mm厚Q235钢板卷曲成型,边框及弧形的加强肋均为6mm厚钢板,竖向加强肋为-50×5扁钢,边框四周设17×21椭圆孔作组合连接用。圆柱模板由塔吊吊运至作业地点拼装安装,在圆柱模板置放部位钢筋笼的底部及上部均焊有模板定位用的钢筋(每45度布置一根),支模时模板紧贴定位钢筋即可。

圆柱模板示意图
墙体模板采用多层胶合板木模。内外模板用M12对穿螺杆紧固,外于地下的外墙,螺杆中部需焊50×50×4钢板止水片,对拉螺栓间距为300~400mm(沿多层夹板宽900mm),并沿着穿墙螺杆在紧靠模板内侧的砼墙面处焊上小钢筋头,用于固定砼墙厚,确保砼墙板设计厚度。
墙体模板图
梁板模为满堂钢管支撑,支撑立杆间距800~1000mm,梁侧立杆间距600~800mm,梁板下方木间距:梁150-300mm、板为400mm。
模板的质量要求应符合《GB50204-2002》的规定。

梁板模板示意图

楼梯支模示意图
本工程钢筋采用φ-Ⅰ级钢和Φ-Ⅱ级钢及新Ⅲ级钢。预埋件钢板采用Q235钢板。材料进场后随即分批分类抽样做复试,试验合格方可使用。凡使用的钢筋,如遇钢筋锈蚀严重的,必须进行除锈后方可使用。钢筋工程施工符合GB50204-2002的规定。
钢筋的接头根据设计要求,钢筋的接头位置应设在受力较小处,不宜在钢筋加密区范围内。本工程中梁内水平钢筋的接长采用闪光对焊,钢筋焊接的质量应符合《钢筋焊接接头试验方法》(JGJ/T27-2001)之规定。楼板钢筋以绑扎为主。
钢筋工程必须符合规范《混凝土结构工程施工质量验收规范》GB50204-2002的要求。
本工程中除地下室底板的水平钢筋采用套筒冷挤压机械连接技术外其余水平钢筋的接长采用闪光对焊。
钢筋闪光对焊的原理是利用对焊机使两段钢筋接触,通以低电压的强电流,把电能转化为热能,当钢筋加热到一定程度后,即施加轴向压力顶锻,使两根钢筋焊接在一起。
直径18毫米以下的钢筋采用连续闪光焊,施焊时先闭合一次电路,使两钢筋的端面轻微接触,这时端面的间隙中即喷射出火花,熔化的金属微粒一一闪光,接着徐徐移动钢筋,使两端面仍保持轻微接触,形成连续闪光。当闪光到预定的长度,钢筋端头加热到将近熔点时,就可加一定的压力迅速进行顶锻,先带电顶锻,再无电顶锻到一定长度,焊接接头即告完成。
钢筋直径20毫米以上的采用预热闪光焊。包括一次闪光预热、两次闪光及顶锻等工艺过程,一次闪光是将钢筋端面闪平,预热的方法为断续闪光预热及将两钢筋端面交替的轻微接触和分开,发出断续闪光来实现预热。
钢筋端头如有弯曲,必须加以矫直或切除,并将钢筋端部约150毫米范围内的铁锈、污泥等清除干净,直至露出金属光泽,否则在夹具和钢筋间会造成接触不良,影响正常操作,接触对焊完毕,应等接头处由白红色变为黑红色时才能松开夹具,将钢筋平稳地从夹具中,以避免发生接头弯折现象。
为了获得良好的对焊接头,必须选择恰当的焊接参数。焊接参数包括调伸长度、闪光留量、闪光速度、顶锻留量、顶锻速度、顶锻压力、预热留量以及变压器级次。
钢筋对焊完毕,必须进行质量检验。先对全部接头进行外观检查,接头应具有适当的镦粗和均匀的金属毛刺;钢筋表面没有明显的烧伤及裂纹;接头如有弯折,其角度不得大于4°;接头轴线如有偏差,偏移不得大于0.1d。同时也不得大于2毫米。还必须对对焊接头进行机械性能试验:对焊接头的抗拉强度应大于该级别钢筋的抗拉强度,并且断裂位置应在焊缝每侧20毫米以外;冷弯试验时,接头位置,应弯曲中心处,弯心直径应符合要求。冷弯后接头处或热影响区外侧横向裂缝宽充应不大于0.15毫米。
钢筋接触对焊接头不要放在受力较大的部位,并和钢筋弯曲处相距不应小于10d。对焊接头不要集中在一根钢筋上,在受拉区的同一截面内的焊接接头不允许超过50%,在受压区不限制。
本工程地下室基础底板水平钢筋连接采用套筒冷挤压机械连接。带肋钢筋套筒冷挤压连接,是将两根待接钢筋插入一个专用套管内,用带有半月形内膜的侧压式钢筋机,沿径向挤压钢套管,使之产生塑性变形,经挤压变形后的钢套管与被钢筋纵横肋产生机械咬合力成为整体的钢筋方式。
现场配备3台挤压连接设备进行冷挤压连接施工,按挤压连接施工规程要求,应先预制一半接头,另一半在工位连接。在底板施工时,最好在钢筋挤压连接设备泵站下铺放铁板或竹胶板,便于设备的移动。在连接梁、柱的钢筋施工时,如可能应将泵站和挤压钳之间的连接油管加长,或配置5-10m的长油管,以方便施工作业。
进行水平方向挤压连接,挤压钳放在小滑车上,用两根高压油管将超高压泵站和挤压钳连接。超高压油管安装和使用中,应注意两根油管不得绞缠在一起,也不得弯曲小于弯曲半径的小弯,甚至死弯;不得用脚踩踏,并应避免重物压砸或锋利硬物划伤;安装和拆卸时,庆用手抉油管接头的固定金属件,严禁拉拽或强行拧转油管,以防接头扣件处损坏而产生漏油。油管拆卸后,两端接头诮及时装好防尘塑料帽,同时将换向阀和压钳接头防尘帽拧好,以防液压油外流及泥沙进入油管或设备系统。
电源动力线应按电动机功率要求选择,一般采用1.5mm2或2.0mm2的四芯橡胶绝缘套线。
根据所连接钢筋的直径不同,应安装或更换相应型号的压模。
在挤压连接之前,应清除钢筋端部连接部位的铁锈、油污、砂浆等附着物。
钢筋端部应平直,影响钢套筒安装的马蹄、飞边、毛刺应予以修磨或切除。如遇纵肋过高及影响钢套筒插入时,可适当修磨纵肋。由于钢筋横肋对接头性能有重要影响,因此施工时严禁打磨横肋,若因横肋过高影响钢套筒插入,可针对性选择使用内也直径正偏差的钢套筒。
钢筋端部应按规定要求用油漆划出定位标记和检查标记两条线。标记线应横跨纵肋并与钢筋轴线垂直,长度不宜小于20mm。标记线不宜过粗,以免影响钢筋插入深度的准确度。
定位标记距钢筋端部的距离为钢套筒长度的一半,检查标记与定位标记的距离为a,当钢套筒的长度小于200mm时,a取10mm;当钢套筒长度等于或大于200mm时,a取15mm。定位标记批示钢套筒庆插入的深度位置,当挤压连接成接头后,由于钢套筒变形伸长,定位标记被钢套筒遮盖,接头外钢筋上只能见到检查,通过检查标记的检验,可确定钢套筒中钢筋的位置是否正确。
挤压操作前,对挤压设备必须检查,并根据压接工艺要求,调整相应的工作油压。按连接钢筋规格和钢套筒型选配压模。
挤压操作应做到四个一致,即被连接钢筋的直径、钢套筒型号、压模型号及检验卡板型号一致,严禁混用,见表;特别注意不同直径钢筋相连接时,所用钢套筒型号、压模型号、挤压道数、最小压痕直径及检验卡板型号应严格招行。
挤压连接操作完成后,应先实行自检,每个操作工利用检验工具对自己连接的接头按照标准规定,分别对定位标记、挤压道数、压痕深度、套筒外观进行检查,如发现不合格的接头应立即处理。
挤压接头的现场检验按验收批进行。同一施工条件下用同一批材料的同等级、同型式、同规格接头,以500个为一个验收批,进行检验与验收,不足500个也作为一个验收批。现场检验时应对挤压接头进行外观质量检查和单向拉伸试验。对挤压接头有特殊要求的可另行制定相应的检验项目。挤压接头的外观质量检验应符合下列要求,外形尺寸,挤压后套筒长度为原套筒长度的1.10-1.15倍;或压痕处套筒的外径波动范围为原套筒外径的0.8-0.90倍。工地外观检验时任选其中一种方法即可。挤压接头的压痕道数应符合型式检验确定的道数。接头处弯折不得大于4度。挤压后的套筒不得有肉眼可见的裂缝。
由于电渣压力焊接头质量稳定,能完全满足拉伸试验断于母材而不断于接头的要求,其经济性又好,所以,对本工程的竖向钢筋考虑采用电渣压力焊,对于电渣压力焊接头施工特别注意如下几点:
(1)钢筋端部浮锈、泥砂要清除。
(2)大于Φ22mm的钢筋,与之配套的焊机功率应保证。
(3)在装入电渣时,应插捣均匀,保证钢筋的鼓包均匀。
(4)焊完后,应保留半小时后,再敲除渣壳,以减缓钢筋接头部位冷却速度。
(5)钢筋接头部位的鼓包量应基本满足1.5--1.6倍直径的要求。
(6)对钢筋接头抽样验收时, 要求接头单向拉伸试验断于母体,不断于接头。
电渣压力焊焊接由持操作证的专业班组操作,并由钢筋工长具体负责,严格按不同钢筋直径调整对应不同的工艺参数进行焊接,并注意接头清除油污、锈斑等,431焊剂要防潮,必要时进行烘干,操作上注意焊剂装匀压实,适当延迟敲击渣壳。
本工程的砼±0.00以下全部采用商品砼,±0.00以上全部采用现场搅拌站供给的砼(具体方案另设);地下室结构浇筑砼施工期间采用HBT输送泵(拖式),接硬管布料,一台汽车泵。现场设固定泵一台,F1、F2栋一路主管,上下增设水平管,其它栋号均设一路主管另加上下水平管连接。
本工程±0.00以下全部采用商品砼,商品砼的生产质量主要由供应商进行保证,但为了达到质量控制的目的,应慎重选择供应商,供应商应信誉良好产品可靠。现已选定兰叶商品砼厂家。商品砼供应商应派质量人员到现场负责砼的供应质量。
施工现场提前做好砼浇筑计划,并将道路、泵车就位、接管等准备工作提前做好,确保搅拌车到达到现场后能及时卸料。
随机取样测定砼坍落度,并按规定做试块,进行标准养护以确定砼的质量。
混凝土拌合物要在搅拌车卸料口处随机取样,取样后立即试验,停放时间不得超过15min。
每次或每100m3为一个批量制做一组试块(包括7d、28d两个龄期。制做混凝土试块的试模的边长为150×150×150mm。试块脱模后放在温度为20±3℃、相对湿度为90%的标准养护室内养护或在20±3℃的水中养护(掺早强型减水剂的混凝土试块不得在水中养护)。每个龄期的试块为3块。养护龄期一般为28d。用数理统计方法统计混凝土质量,要求均方差σ≤3.8N/mm2,混凝土合格率为100%。
混凝土浇筑前须对施工缝处的松散游离状的混凝土剔除、凿毛,并用压力水冲洗干净,湿润后在表面浇一层3~5cm厚与混凝土同标号的砂浆,然后浇筑上一层的混凝土。当混凝土浇筑到施工缝处,混凝土振捣要密实,防止烂根、蜂窝、麻面等现象出现,确保砼施工质量。浇筑楼面梁、板混凝土时分别采用插入式和平板式振捣器,振捣时应注意振动棒不能直接触动钢筋,防止损坏已初凝的混凝土质量。楼面局部混凝土不能堆得过高、过厚,防止支撑负荷不够导致底模塌陷。混凝土振捣必须密实,严禁发生蜂窝、麻面、漏振现象,也不能过振,防止混凝土离析。现场安排专职木工看模、专职钢筋工看钢筋,确保混凝土浇筑质量。
混凝土浇筑过程中,中间抽样按规范规定,做好混凝土试块,每工作台班不少于一组,每拌制100m3混凝土不少于一组,现浇楼层每层不少于一组。
混凝土的养护、浇水湿润,连续养护十四个昼夜,碰到天气炎热时,用湿草包覆盖。下雨时,如混凝土须连续浇筑,必须采用塑料薄膜覆盖,防止浇筑好的混凝土表面水泥浆跑掉。当月平均气温低于5℃时,不得浇水,并用草包及塑料薄膜覆盖蓄热养护。
采用Φ50或其它类型插入式振捣器振捣,钢筋密集区如有必要可采用Φ30插入式振捣器。振捣时做到快插、慢拔。每点振捣时间约需20~30秒,振捣间距不大于50cm,振捣棒应插入下一层5cm深,注意振捣密实,振捣以表面水平不再显著下降,不再出现气泡,表面泛出灰浆为准。同时浇筑厚度应控制好。浇筑厚度不宜太高,否则振捣极易不实。
本工程地下车库底板厚度为450mm,砼强度为C40,承台、地梁与底板砼一起浇筑。由于承台地梁的截面尺寸较大,地下室梁的最大截面尺寸为600×1200,最大的承台长6500宽4100厚1200属大体积砼(大体积砼的定义为:结构断面尺寸最小在80cm以上,水化热引起混凝土内最高温度与外界气温之差,预计超过25℃的混凝土。)
基础大体积混凝土施工,由于混凝土内部与表面散热速率不一样,在其表面形成较大的温度梯度,从而引起较大的表面拉应力。同时,此时混凝土的龄期很短,抗拉强度很低,温差产生的表面拉应力,超过此时的混凝土极限抗拉强度,就会在混凝土表面产生表面裂缝。此种裂缝一般产生在混凝土浇筑后的第3天(升温阶段)。
混凝土降温阶段,由于逐渐降温而产生收缩,再加上混凝土硬化过程中,由于混凝土内部拌合水的水化和蒸发以及胶质体的胶凝等作用,促使混凝土硬化时收缩。这两种收缩由于受到基底或结构本身的约束,也会产生很大的拉应力,直至出现裂缝。
为此,应从砼的配合比及施工工艺等多方面着手来控制温度裂缝的产生。砼的配合比设计应减少水泥用量适当掺入磨细粉煤灰,采用减水剂,降低混凝土的单位用水量,降低混凝土浆量体积,增加粗集料用量。施工过程中应振捣密实,及时将泌水汲取,并采取保温养护的方法来延缓降温梯度。
(1)底板砼的浇筑方法
底板混凝土浇筑必须满足整体连续性的要求,不出现施工冷缝。承台及底板砼一次浇筑,承台部位采用集中点式供料浇筑,底板砼采用斜面分层,薄层浇筑,自然流淌,连续浇筑到顶的方法。分层厚度不大于500mm,自然流淌坡度控制在1:6~1:10。
泵送混凝土流动性大,泌水多,影响砼密实性和结构的整体性。在底板及承台的砖胎模四周侧模的上口开设排水孔,使多余的水分从孔中自然排出。
底板砼浇筑后在初凝前1~2h,先用长括尺按标高刮平。在初凝前再用铁滚筒碾压数遍,并用木蟹打磨压平两遍,然后用塑料笤帚顺方向理出均匀细纹,以闭合收缩裂缝。
底板砼浇筑流向示意图
(2)养护方法
底板混凝土的施工正值冬季,此时的环境温度较低,应采取覆盖保温养护的方法进行。
按覆盖层全部采用草袋时,其覆盖的厚度按下式计算确定,
其中的环境温度暂按按较不利时取5度。
![]()
因此采用二层草袋即可满足保温养护的需要。
(3)温度监测
为防止大体积混凝土内外温差超过限值而产生温度裂缝,在混凝土内布置测温点,掌握基础内部实际温度变化情况,监视温差波动,以指导养护工作。
1)测温设备
电子测温设备:采用JDC—2型便携式建筑电子测温仪,它能够直观、准确、快捷地数字显示砼内部温度,可任意布置测温点,具有可靠性好,适用范围广,宽温操作环境;体积小、重量轻、操作简单。并有夜间测温读数功能。仪器由主机和测温探头,测温线构成。主机为便携式仪表。可数字显示被测温度值。测温探头由插头、导线、手柄和外经为5×200 mm的金属管制成,金属管内端封装温敏组件。测温线由插头、导线和温敏组件组成,主机与测温探头、测温线通过插座插头连接。一般测温探头用来测量砼拌合料的温度。测温线用来测量砼内部的温度。
2)测温方法
采用北京建工院发展中心生产的JDC-2型温度测试仪,温度探头预先埋入大体积砼内,在温度测点处,在钢筋骨架上绑扎一根Φ12的螺纹钢筋,且高出板面30cm。将测温线固定在Φ12的螺纹钢筋上,同时亦避免浇筑砼时损坏、折断探头导线。测点布置应避免剪力墙及柱位置,以免上部结构施工影响温度测试。测温线的插头用塑料袋罩好,避免潮湿,保持清洁,为便于测温,留在外面的导线长度不应小于20cm。测温时,按下主机电源开关,将各测温点插头依次插入主机插座中,主机屏幕上即可显示相应测温点的温度。
3)温度测点的布置
①测点布置原则:测点须具有代表性,能全面反映大体积砼内各部位的温度,从大体积混凝土高度断面考虑,应包括底面、中心和上表面,从平面考虑应包括中部和边角区。重点观测厚度较大的核心筒混凝土内温度变化。
②测温点布置:温度监测主要测试底板的承台部位,选择分部于底板中部及近角部及二者的过渡部位中有代表性的承台,承台基本为矩形结构,根据其对称性,取其四分之一布置测点。
③测温制度:测温从混凝土浇筑后24h开始,升温阶段每4h测一次,降温阶段每4h测一次,5天后,每8h测一次。7天后,每天测一次。

④温度测试资料,绘制表格,并给每测点编号。测试时要求记录以下数据:混凝土入模温度;每次测温时间,各测点温度值;各部位保温材料的覆盖和去除时间;浇水养护或恢复保温时间;异常情况如雨、风等发生的时间。
承台大体积砼测温点布置示意图

结构中部的温度探头 靠近结构边部的温度探头
温度探头竖向布置图
4)养护跟踪测温,信息化施工
保温法养护可以满足混凝土保温保湿要求,利用保温材料提高新浇混凝土表面温度,减少混凝土内外温差。但在保温养护过程中,应根据温度的测试情况,随时调整覆盖层的厚度,保证混凝土内外温差小于25℃,满足国家规范要求。同时也控制混凝土降温速率。
底板表面混凝土浇筑结束,用木蟹抹平,铁滚筒打压后,约过12~20小时后,铺上草袋并浇水湿润,保证混凝土表面潮湿。根据温度监测情况,混凝土内部开始升降温之际,调整覆盖时间。
本工程住宅楼主体部分外脚手采用悬挑分段连续搭设的外脚手形式。八层一挑,本文中仅作大概说明。具体内容有单独的脚手架搭设方案。
(1)悬挑脚手构造
钢管扣件式悬挑脚手是用钢管组成三角形承力架,在其上搭设双排外脚手,搭设高度为15步架,供8个楼层施工用。脚手构造如所示。其中主要受力构件为斜杆和水平横杆,脚手的传力顺序:竹笆→脚手架→大横杆→小横杆→立杆→三角承力架→主体结构,水平横杆与框架梁内预埋件焊接,脚手每层搭设,用安全网封闭。

悬挑脚手构造简图
(2)搭设要点
扣件式钢管脚手架的搭设顺序为:地基处理或搭设三角承力架-竖立柱同时安装扫地杆-搭设水平杆-搭设剪刀撑-铺设竹笆操作台-搭设护栏。
三角承力架的斜杆用整根钢管,不设接头,底脚套于预埋入梁板内的φ28钢筋上。底部立杆应采用长度不同的钢管,相邻立杆的接头应错开,其错开距离不小于5OOmm,并不得在同一步距内。立杆接头用对接扣件连接。竖第一根立杆时,每6跨应暂设一根抛撑与地面成45-60度夹角,直至固定杆件搭好后方可视情况拆除。
每根立杆的底部向上2OOmm处应设置纵、横向扫地杆,并用直角扣件与立杆连接。当立杆基础高度不在同一高度上时,应将高处的纵向扫地杆向低处沿长两跨,并与低跨立杆固定。
大横杆钢管长度应不小于3跨,其接头用对接扣件连接,接头应错开,不得在同一跨内。大横杆与立杆相交处用直角扣件连接固定。
双排脚手架的小横杆靠墙一端与墙装饰面的距离一般为150-2OOmm,采用竹笆脚手板时,小横杆宜放于大横杆下方。凡立杆与大横杆相交处均应设置一根小横杆,小横杆距立杆的距离不应大于55mm,并严禁随意拆除。
为防止脚手架内、外倾覆,立杆应从第一步大横杆处开始设置刚性固定件与建筑物可靠连接,固定件布置间距垂直及水平间距均不大于6M。
剪刀撑应设置在脚手架外侧,接头宜采用搭接接头,接头长度不小于lm,并不少于2个回转扣件固定,固定间距不小于80Omm,回转扣件固定应在立杆或小横杆的伸出端上,其交点距中,中心节点距离不应大于15Omm。

住宅外脚手搭设方式示意图
(3)脚手架的拆除
所有参加脚手架拆除的人员、管理人员、监护人员必须参加本施工方案的安全、质量和外装饰保护措施的交底会。
准备拆除段的脚手架范围内的外墙贴面及其它装饰完成后的最后修整和清洁工作,其质量已符合要求并经验收同意后,由现场项目经理签发拆除令。
安全监督人员对拆除段脚手架进行安全检查,确认脚手架不存在严重隐患,如存在影响拆除脚手架安全的隐患,应先对脚手架进行修整和加固,以保证脚手架拆除过程中不发生危险。
场地除要有“上部拆除脚手架,严禁行人通过”的警告牌并设专人监护外,还须做防护栏。
大门处通道防护必须牢固,纵横向再加一层竹片,进出大门的人员一律从防护棚中通行。
合理安排各班组劳动力,外脚手架拆除严禁在垂直方向同时作业,决不允许下部做外饰面和上部脚手架同时进行。
脚手竹片上所有垃圾杂物必须清除,且保证袋装化(水泥蛇皮袋装好并扎好后)从窗洞运至各楼层,再从塔吊上运下,严禁高空向下抛掷,细屑无法用扫帚集中袋装的,可从脚手架内侧向下倾倒。
随着脚手架的向下拆除,对外墙饰面、门及窗要及时做好清洁和保护工作,每组派二位责任心强的同志参加,脚手架连接饰面的修补与脚手架同步进行,饰面修补经认定合格,并做好清洁和保护工作后方可继续向下拆除脚手架。
为尽量减少外墙脚手架饰面修补的工作量,在拆完上一段脚手架后,应在下一段贴面开始前调整脚手架的斜撑杆及连接杆数量,做到该段每层连接点每立面不少与3只,且保证两端的点连接点,原设斜撑楼层的斜撑某杆亦调整至每立面不少于3根(与该层连接杆同位置)。
脚手架拆除与搭设顺序正好相反,即先搭后拆、后搭先拆,其顺序为:安全网——竹片——栏杆——剪力撑(随每步脚手架拆除)——中间搁栅钢管——大横杆——小横杆——立柱。
(1)砌筑用材料
砌筑用多孔砖的品种、规格、强度应符合设计要求,并应符合《烧结多孔砖》标准,砖进场后应检查砖的外观质量并核对出厂合格证,对不合格者一律不得使用。
砌筑用砂浆拌合的水泥应按品种、标号、出厂日期分别堆放,并保持干燥。如遇水泥标号不明或出厂日期超过三个月(快硬硅酸盐水泥超过一个月)时,应复查试验,并按试验结果使用。不同品种的水泥不得混用。砂宜采用中砂,并应过筛,不得含有草根等杂物。拌制砂浆用水宜采用饮用水,当采用其它来源水时,水质必须符合国家现行标准《混凝土拌合用水标准》的规定。
砂浆的配合比采用重量比,配合比应由试验室经试配确定。如砂浆组成材料有变动时,其配合比应重新试验确定。
砂浆用机械拌合,自投料完算起,搅拌时间应符合下列规定:水泥砂浆和水泥混合砂浆,不得少于2min。烧结多孔砖的砂浆稠度在60-80mm,砂浆分层度不宜大于3Omm。砂浆应随拌随用,水泥砂浆和水泥混合砂浆必须分别在拌成后3h和4h内使用完毕,如施工期间最高气温超过3oC时,必须分别在拌成后2h和3h内使用完毕。若发现砂浆出现泌水现象,应在使用前再次拌合。
(2)砌筑工艺
砌筑时,砖应提前1一2d浇水润湿,对于烧结普通砖、多孔砖的含水率宜为10%-15%,现场检测可将砖砍断,四周湿印为15mm即可;对于灰砂砖和粉煤灰砖的含水率宜为8%一12%。
多孔砖与空心砖的装卸与运输严禁倾倒和抛掷,堆放时应按砖的强度等级分别堆放整齐,堆置高度不得超过2m。
多孔砖砌体宜用梅花丁或一顺一丁组砌形式,并用铺灰法砌筑。
砌筑前应试摆,在不够整砖处应配以辅助块,不宜把整砖砍成碎砖。如没有辅助块,可用模数相符的烧结普通砖平砌。
砌筑承重多孔砖砌体,多孔砖的孔洞应垂直于受压面对
于非承重空心砖砌体,其孔洞一般呈水平方向砌筑。
非承重空心砖墙底部至少应砌三皮普通烧结砖。在洞口两侧一砖范围内宜用烧结普通砖砌筑。
每道墙体顶面必须刮浆,即用稀砂浆灌满上部砖的所有灰缝和孔洞,以保证墙体质量,并减少上部混凝土漏浆。
层高超过3.6m或墙长大于7.2m的墙体,应沿墙高每隔5OOmm设置2ф6拉结筋或砌实心砖带,即每隔lm砌三皮烧结普通砖。
门窗洞口的预埋木砖、铁件等均应与多孔砖横截面的规格一致。
砖墙的水平灰缝和竖向灰缝宽度要控制在10mm左右,但不小于8mm,也不得大于12mm,水平灰缝的砂浆饱满度不得小于80%,竖缝应采用挤浆法,不得出现透明缝,严禁用水冲浆灌缝。
墙中的洞口、管道、沟槽和预埋件等应于砌筑时正确留出或预埋,宽度超过300mm的洞口应砌筑平拱或设置过梁。
(3)构造柱
砌砖墙时,从每层构造柱脚开始,砌马牙槎时应先退后进,以保证构造柱脚为大断面。马牙槎内灰缝必须密实饱满,其水平灰缝砂浆饱满度不得低于80%。
砖墙与构造柱间应沿墙高每隔500mm设置2φ6拉结钢筋,每边伸入墙内不小于1m,预留伸出的拉结钢筋不得在施工中任意反复弯折。
构造柱模板,都必须与所在的砖墙面严密紧贴,支撑牢靠,堵严缝隙,以防漏浆。模板支设前应将构造柱根部的砂浆残块、砖渣等杂物清理干净。

构造柱的砼浇筑时,振捣棒应避免直接接触钢筋和砖墙,严禁通过砖墙传振,以免砖墙鼓肚和灰缝开裂。
构造柱与墙体连接示意图
(1)木门的安装施工
木门的运输进场采用专用夹具,竖立排放固定牢靠,每檩之间用软质材料隔开,防止相互压坏或磨损。
外加工成型的木门框进场后要竖直排放在室内,且按规格堆放整齐,底部垫实垫平,距离地面要有一定的空隙,便于通风。
木门框安装前先检查结构留洞尺寸标高是否符合安装要求,确保门框与墙之间有足够的缝隙。
木门框安装时,框的每根立挺的正侧面都要认真进行垂吊,并用靠尺与立挺靠严。
木门框安装应严格按照规范执行,偏差值应在规范规定之内。
注意成品保护,在木门框安装过程中,采取相应的专项措施保护门框不受损伤,对于已安装好的楼层应派专人看护。
(2)塑钢门窗的施工
1)放线
塑钢门窗框安装为后塞口,结构施工期间,按设计洞口尺寸留出。窗框加工的尺寸应比洞口尺寸略小,窗框与结构间的间隙,应按不同的饰面材料而定。施工时,饰面层在与窗、门框垂直相交处,其交接处应该是饰面层与窗框的边缘正好吻合,不应让饰面层盖住窗框。
放线时应注意以下几个方面:
a.同一立面的窗的水平及垂直方向应该做到整齐一致。
b.在洞口弹出窗位置线、窗立于墙的中心线部位。
c.对于门还要特别注意室内地面的标高。地弹簧的表面应该与室内地面标高一致。
2)固定窗框
窗框安装前每个洞扣的下槛浇20cm高C20砼,内配4Φ12、Φ6.5@200的钢筋。按照弹线位置,先将窗框临时用木楔固定,待检查立面垂直,左右间隙、上下位置符合要求后,再用射钉将镀锌锚板的一端固定在结构上。锚板是塑钢门窗固定的连接件。锚板的一端固定在窗框的外侧,另一端用射钉枪固定在密实的基础上。锚固板应固定牢固,不得有松动现象,射钉选择要合理。四周离边角180mm设一点外,其余锚固板的间距应不大于500mm。
3)填缝
塑钢门窗框与墙体间缝隙,应用矿棉条或聚氨酯PU发泡剂等软质保温材料填塞,框四周缝隙须留5-8mm的槽口,用密封胶填嵌。
4)窗扇安装
窗扇安装,应在土建施工基本完成的情况下进行。窗页上方及时做好限位,防止脱框堕落。
5)玻璃安装
a.玻璃安装是窗安装的最后一道工序,其内容包括玻璃裁割、玻璃就位、玻璃封闭与固定。
b.当玻璃单块尺寸较小时,可用双手夹住就位;当玻璃单块尺寸较大时,为便于操作可用玻璃吸盘。
c.玻璃就位后,应及时用胶条固定,橡胶密封条应留有伸缩余量,一般比窗的装配边长20-30mm,在转角应45度斜面断开,并用胶粘剂粘贴牢固。
6)清理
塑钢门窗交工前,应将型材表面的塑料胶纸撕掉。如果发现塑料纸在型材表面留有胶痕,宜用香蕉水清理干净,玻璃应进行擦洗,对浮灰或其他杂物,应全部清理干净。
7)验收
塑钢门窗安装好后,应经喷淋抽检试验,不得有渗漏现象。
本工程住宅楼屋面防水采用二道防水设防,柔性防水层采用SBS改性沥青防水卷材,另设一道补偿收缩砼刚性防水层。超市屋面为水泥基防水涂膜及细石砼刚性防水,做法:细石砼保护层屋面;40厚C20细石砼内配Φ6双向钢筋@200随浇抹平,每小于等于3米留缝宽20,缝内灌防水油膏20厚下为干细砂;干铺油毡一层;40厚聚笨乙烯泡沬板隔热层;20厚1:2.5水泥砂浆保护层;2厚水泥基防水涂膜;20厚1:2.5水泥砂浆找平;1:8水泥砂陶粒砼找2%坡,最薄处30厚;钢筋砼现浇屋面。
屋面工程的防水工程由具备国家规定资质的防水专业队伍或防水工施工。
(1)做防水层前要提供防水材料、质保书、产品合格证和所有材料的复检报告;
(2)做防水层时,一要选择好天气,二要严禁其它工种同时在上操作,施工好的防水层要请业主、监理公司、质监站和公司的有关质量部门验收、签字。
(3)在从最基层至最面层的施工中,所有平面同立面交界处的地方或管道的坐脚等都要做成R形,做好四周女儿墙的出墙飞砖滴水线,所有屋面留设的分格缝、伸缩缝等均要用油膏嵌密。
(4)屋面防水层不应有积水和渗漏现象,检查积水和渗漏一般可在雨后进行,必要时也可以选点浇水或用蓄水方法进行检查。
(5)卷材的接缝部位必须粘接牢固,封密严密,不允许存在皱折、空鼓、翘边、脱层或滑移等缺陷。
(6)涂膜应无水浸、稀释现象,划破处应补严。
(7)在排水口周围、檐口部位或油毡防水层的末端收头处,必须粘结牢固,密封良好。

室内粗装修随砖墙砌筑从底层开始逐层往上施工,精装修由顶层逐层往下施工。
装饰工程施工流程图
1.装饰工程程序
(1)外装修:清理墙面→拉线贴灰饼→窗安装→墙面浇水湿润→刮底糙→粉中层灰木蟹打平→弹线→面层→勾缝→清理。
(2)内装修:内墙管线预埋→清理内墙基层→贴灰饼→门窗框安装→天棚、墙面抹灰→清理楼面→楼地面找平→楼地面面层→踢脚线→吊平顶→墙面饰面→门窗扇安装→油漆→清理→验收。
2.装饰工程的质量要求
(1)要严格控制好原材料的质量,尤其是贴面材料的规格,要一致,无缺棱掉角现象,色彩要均匀一致,无色差。材料要经检验部门试验合格后方可使用。
(2)在正式施工前要先做样板间或样板块,待业主和工程监理有关人员验收认可后方可大面积展开施工。
(3)要严格执行本公司技术质量部门制订颁发的成品保护制度,做到一次性成优。
(4)装饰工程的质量要求标准应符合《JGJ73-91》的规定。
3.施工工艺
外装修工作由上而下进行,内装修按先湿作业后干作业,先上后下的原则进行。
(1)内、外墙面抹灰工程
①抹灰应优先安排厕所间部分,为水电安装创造条件。
②基层抹灰前应待砌体有一定的下沉压缩,砼墙、柱表面基层采用喷浆毛化处理,浆料由801胶与1:1的水泥、砂充分搅拌。对可能出现的收缩缝嵌塞密实后用60cm宽麻布107胶素水泥浆贴缝,再用10cm宽钢丝网保温钉固定号开始粉刷。
③抹灰前应清扫垃圾,基层面浇水润湿。
④拌好的水泥砂浆应在初凝前用完,凡已结硬的水泥砂浆不得继续使用,也不允许加水重新拌和后使用。
⑤面层抹好后,经24h后喷水养护。
(2)天棚抹灰工程
基层抹灰前清理干净,提前用水湿润。
基层满批界面剂一道。
拌好的水泥砂浆应在初凝前用完,凡已结硬的水泥砂浆不得继续使用,也不允许加水重新拌和后使用。
⑤面层抹好后,经24h后喷水养护
(3)内外墙饰面工程
①乳胶漆墙面、天棚
A、刷乳胶漆前必须将基层表面的灰浆、浮土、附着物等清除,并用水冲洗干净。
B、施工后12h内避免雨淋,预计有雨时应停止施工。
C、刷涂要一道紧挨一道进行,不应漏刷,漏刷应及时补刷。
②内墙、顶棚涂料
A、施涂前应将基体或基层的缺棱掉角处,用1:3水泥砂浆修补,表面麻面及缝隙应用腻子填平补齐。
B、内墙涂料工程分段进行时,应以分格缝、墙的阴角处或水落管等为分界线。
C、内墙涂料工程,同一墙面应用同一批号的涂料,全遍涂料不宜施涂过厚,涂层颜色应均匀一致。
瓷砖墙面
A、按设计要求挑选规格一致的白色釉面砖,使用前应在清水中浸泡2-3h后使用(以瓷砖吸足水不冒泡为止),阴干备用。
B、镶贴前要找好规距。用水平尺找平,校核方正,数好纵横皮数和镶贴块数,划出皮数杆,定出水平标准,进行预排。
C、贴时一般从阳角开始,使不成整块的留在阴角。如有水池,应以水池为中心往两面分贴。总之,先贴大面,后贴阴阳角、凹槽等难度大的部位。
(3)水泥砂浆楼地面
楼地面水泥砂浆抹面应做到不空鼓、不起砂、不裂缝、光滑平整、无积水或泛水现象。
1)以所弹的标高墨线为施工依据,检查地漏安装位置标高是否符合设计要求,清净基层,冲筋贴饼,抹砂浆,两遍成活,适时压实压光。
2)成活后一昼夜进行覆盖浇水养护,至少两周。同时应认真做好成品保护工作,防止水泥砂浆、油漆的粘污。
3)卫生间地漏标高,必须准确。地面四面坡向地漏,不得积水倒坡。
4)踢脚线高为100mm,要求上口平直捋光,厚薄一致,立面交角垂直,室内与走道应浇圈。
5)楼梯踏步面层施工完后,应严加保护。
本工程由5幢住宅楼组成,其中F4及F5幢住宅下设一层人防地下室。其安装工程主要内容为给排水、电气系统等。
本安装工程依据设计施工图纸及技术文件的要求,材料、设备、施工必须达到现行的国家、地方、行业质量标准,其主要依据如下:
1.《建筑给排水及采暖工程施工质量验收规范》GB50242-2002
2.《建筑电气工程质量验收规范》GB50303-2002
3.《家用燃气燃烧器安装及验收规程》CJJ12-99
4.《通风与空调工程施工及验收规范》GB50243-97
5.《质量体系、生产、安装和服务的质量保证模式》GB/T19002-1994 idt ISO9002∶1994及本公司的质量标准
给排水工程安装分为三部分,即管道安装、管道附件及卫生设备给水配件安装和附属设备的安装。给排水、消防的管道安装应结合具体条件,合理安排工序,在设计无特殊要求的情况下,应先地下后地上,先安大管后安小管,先安主管后安支管,当出现多种管线交叉作业发生矛盾时,按以下原则进行交叉施工避让。
小管主动让大管;无压力管主动让有压力管;一般管道主动让高温或低温管道;辅助管道主动让物料管道;支管主动让主管;电线管道主动让水管;水管主动让通风管道;排水管道在下,给水管道在上。
各种系统管道安装前,应根据施工图纸配合土建搞好预留孔洞和预埋件。
对于预留孔洞大小,应根据管径的大小及设计安装方式要求进行,在预留时,应做好监护工作,以免浇灌砼时振动移位,留洞与钢筋布置有矛盾,需移位时必须征得设计人员的同意或业主现场技术人员的认可,同时应采取加固措施,并做好详细的隐蔽记录。
室内各种管道固定安装时,必须安装支吊架。支吊架制作加工,必须要固定牢靠、结实,支架型式统一,外表美观,不准粗制滥造。下料时采用手工锯或砂轮切割机下料,层高小于5m,每层装设一个支架,层高大于5m的,每层不得少于2个,管支架的高度距地坪1.5~1.8m。每层安装2个的位置均匀布置,管道水平安装时的距离不得大于规定要求。
(1)室内给水管道施工
1)工艺流程
安装准备→预制加工→干管安装→立管安装→支管安装→ 卡件固定→封口堵洞→水压试验→管道防腐保温
2)主要施工方法及技术措施
本工程给水管采用PEX给水管,管道系统在安装前,应检查管材、管件的质量保证文件是否齐全,是否符合设计要求;且应对材料外观和接头配合进行仔细检查,必须清除管材和管件内污垢和杂物。
管道系统安装过程中,应防止油漆、沥青等有机污物与管件接触。管道穿墙壁、楼板及嵌墙暗敷时,应配合土建预留孔槽及预埋套管。其尺寸设计无规定时,应按下列规定执行:
a.预留孔洞及套管尺寸宜比安装管道的公称外径大二个规格;
b.嵌墙暗管墙槽应顺通,槽壁与管外径净距宜取15-20mm,且墙槽表面平整,不得有尖角等突出物;
c.管道穿越墙壁、楼板时,必须加套管,套管可采用塑料管;穿越地下室、地下构筑物、屋面及水箱时,应采用钢管套管。套管高出楼面30-50mm,高出屋面不小于100mm。
管道系统的横管宜有2‰-5‰的坡度坡向泄水装置。
管道系统坐标、标高的允许偏差应符合下表的规定。
项目 | 允许偏差 | |
坐标 | 埋地 | 15 |
架空或地沟 | 10 | |
标高 | 埋地 | ±10 |
架空或地沟 | ±5 | |
水平管道的纵、横方向的弯曲,立管垂直度,平行管道的成排阀门的安装应符合下表规定。
项目 | 允许偏差 | |
水平管道纵横方向 | 每米 | 5 |
每10米 | ≯10 | |
立管垂直度 | 每米 | 3 |
高度超过5米 | ≯10 | |
10米以上,每10米 | ≯10 | |
平行管道成排阀门 | 在同一直线上间距 | 3 |
配管应符合下列规定:
a.断管工具选用细齿锯、割刀或专用断管机具;
b.断管时,断口应平整,并垂直于管轴线;
c.应去掉断口处的毛刺和毛边,并倒角,倒角坡度宜为10-15度,倒角宽度宜为1-1.5mm。
同种材质的给水管及配件之间采用热熔连接,使用专用的热熔工具加热。热熔工具接通电源,达到工作温度指示灯亮后方能开始操作。
管材与管件的承口和插口应清洁、干燥、无油垢。用卡尺和合适的笔在管端测量并标绘出热熔插接深度,热熔连接技术要求应符合下表规定。
公称外径(mm) | 熔接深度(mm) | 加热时间(s) | 接插时间(S) | 冷却时间(mm) |
20 | 14 | 5 | 4 | 3 |
25 | 16 | 7 | 4 | 3 |
32 | 20 | 8 | 4 | 4 |
40 | 21 | 12 | 6 | 4 |
50 | 22.5 | 18 | 6 | 5 |
63 | 24 | 24 | 6 | 6 |
熔接弯头或三通时,按设计图纸要求,应注意其方向,在管件和管材的直线方向上,用辅助标志标出其位置。连接时,无旋转地把管端插入加热套内,插入到所标志的深度,同时,无旋转地把管件推到加热头上,达到规定标志处,加热时间必须满足热熔连接技术要求的规定。达到加热时间后,立即把管材与管件从加热套与加热头上同时取下,迅速无旋转地直线均匀插入到所标深度,使接头处形成均匀凸缘。在表内的规定的加工时间内,刚熔接好的接头还可校正,但严禁旋转。
立管和水平管的支吊架间距不得大于下表规定。
支吊架最大间距(mm)
公称外径 | 20 | 25 | 32 | 40 | 50 | 63 |
水平管 | 500 | 600 | 700 | 800 | 900 | 1000 |
立管 | 900 | 1000 | 1200 | 1400 | 1600 | 1700 |
管道敷设严禁有轴向扭曲,穿墙或楼板时不得强制校正。管道暗敷在地坪面层内,应按设计图纸位置进行,如现场施工有更改,应有图示记录,且管道上壁距离地坪层不得小于20mm。室内暗敷的聚丙烯管墙槽必须采用1:3水泥砂浆填补。
室内地坪±0.00以下给水管道铺设宜分为两阶段进行。先进行地坪±0.00以下至基础墙外壁段的铺设;待土建施工结束后,再进行户外连接管的铺设。室内地坪以下管道铺设应在土建工程回填土夯实以后,重新开挖进行。严禁在回填土之前或未经夯实的土层铺设。铺设管道的沟底应平整,不得有突出的尖硬物体。土壤的颗粒径不宜大于12mm,必要时可铺100mm厚的砂垫层。
埋地管道回填时,管周回填土不得夹杂尖硬物直接与PEX管壁接触。应先用砂土或颗粒径不大于12mm的土壤回填至顶上侧300mm处,经夯实后方可回填原土。室内埋地管道的埋置深度不宜小于300mm。管道出地坪处应设置护套管,其高度应高出地坪100mm。管道在穿基础墙时,应设置金属套管。套管与基础墙预埋孔上方的净空高度,若设计无规定时不应小于100mm。
在给水管道中安装的阀门必须符合设计要求、规格、型号、耐压强度和严密性试验等都应符合有关规定。安装的位置、进出口方向正确;连接牢固、紧密、启闭灵活,朝向合理,表面洁净。
管道安装完后要进行水压试验,并要甲方、监理在现场检查,作好记录,办理好签证手续,本工程的水压试验压力为1.0MPa。在10分钟内压力降不大于0.05MPa,且无渗漏现象,则认为试验合格。
所有的生活用水管道在交付使用时必须进行管道冲洗,冲洗应用自来水连续进行,同时应保证有充足的流量,以保证管内的清洁,冲洗结束后办理验收手续。
(2)UPVC排水管道施工
1)按设计规定的管道系统和卫生设备位置,结合设备排水口的尺寸与排水管管口施工要求,在墙、柱、和楼地面上划出管道中心线,并确定排水管道预留管口坐标,作出标记。
2)检查各预留孔洞的位置和尺寸,并加以顺通。
3)按管道走向及各管段的中心线标记进行测量,绘制实测小样图,详细说明尺寸,管道距墙、柱尺寸应符合规范有关规定。
4)按实测小样图选定合格的管材,进行配管和断管,预制的管段配制完成后应按小样图核对节点尺寸及管件接口朝向,要注意三通的顺水方向,避免反向安装。
5)选定的支承件和固定支架的形式符合设计要求,安装应平整牢固、金属支承件应作防腐处理。管道支承件的安装间距应符合规范的有关规定。
6)将材料和预制管段运至安装地点,按预留管口位置及管道中心线,依次安装管道和伸缩节,并连接各管口,管道安装一般应自下而上分层进行。先安装立管,后安装横管。
7)立管的安装,可按下列操作工艺进行:
安装立管伸缩节,须先擦净伸缩节的承口,将橡胶圈的软边向下,塞进承口的凹槽内,摆放平整。
检查立管管端插入深度的标记是否符合规定,然后在管端涂抹对橡胶无腐蚀作用的润滑剂,将插口平直插入伸缩节承口橡胶圈中,用力应均衡,不可摇摆,以免将橡胶圈顶歪。
立管的安装,一般应按设计要求设置固定支架或支承件,再进行立管的安装。
全部立管安装完毕后,应由土建支模浇注不低于原楼地坪面标号的细石混凝土堵洞。
8)伸缩节必须按设计要求的位置和数量进行安装。并应符合规范的有关规定。
9)立管安装及土建堵洞完毕后,仍由土建在洞口做高于原楼地坪面1~2cm的防水圈以免厕所厨房地坪积水后,水顺着立管管壁渗漏至下一层。
10)透气管的安装:
透气管穿过屋面的措施应按设计规定执行,设计无要求时应采取有效的防水措施。
透气管施工完毕,应立即安装透气帽。
全部完毕后仍由土建堵洞,做防水圈和做屋面防水处理。
11)横管的安装,可按照下列操作工艺进行:
一般应将预制好的管段用铁丝临时吊挂,查看无误后再进行粘接。
粘接加压时,应迅速摆正位置,按规定校正坡度,用木楔卡牢固接口,紧住铁丝,临时加以固定,待粘接固化后,再紧固支承件。
拆除临时铁丝,将接口临时封严。
支模浇注细石混凝土封堵孔洞,并做防水圈防漏。
12)横管安装并校正坡度后,应立即紧固支承件,但不宜卡箍过紧,并因临时封闭各卫生器具设备预留排水管口和主立管管口。
13)室内管道安装完毕后,随即进行伸顶透气管安装,透气管安装应符合规范的有关规定。
14)管道工程总体安装完毕后,应对管道的外观质量和安装尺寸进行复核检查,再作全系统的通水试验,排水应畅通,应无渗漏。
系统的通水试验应由施工单位主持,邀请有关方面人员参加,共同进行检查验收,并签署文件办理验收手续。
(3)消防管道安装施工
1)安装准备:认真熟悉图纸,核对有关专业图纸,查看各种管道的坐标、标高是否有交叉或排列位置不当,做好预埋件和预留洞施工。
2)干管安装
消火栓系统干管安装应根据设计要求使用管材,按压力要求选用镀锌钢管。
3)消火栓立管安装
立管暗装在竖井内时,在管井内预埋铁件上安装卡件固定,立管底部的支吊架要牢固,防止立管下坠。
立管明装时每层楼板要预留孔洞,立管可随结构穿入,以减少立管接口。
4)消防分层干支管安装
管道的分支预留口在吊装前应先预制好,丝接的用三通定位预留口,焊接可在干管上开口焊上熟铁管箍,调直后吊装。所有预留口均加好临时丝堵。
需要加工镀锌的管道在其他管道未安装前试压、拆除、镀锌后进行二次安装。
5)消火栓及支管安装
消火栓箱体要符合设计要求,产品均应有消防部门的制造许可证及合格证方可使用。
消火栓支管要以栓阀的坐标、标高定位甩口,核定后再稳固消火栓箱,箱体找正稳固后再把栓阀安装好,栓阀侧装在箱内时应在箱门开启的一侧,箱门开启应灵活。
消火栓箱体安装在轻质隔墙上时,应有加固措施。
(3)管道试压、冲洗
1)管道试压一般分单项试压和系统试压两种。单项试压是在干管敷设完后或隐蔽部位的管道安装完毕按设计和规范要求进行水压试验。系统试压是在全部干、立、支管安装完毕,按设计或规范要求进行水压试验。
2)连接试压泵一般设在首层,或室外管道入口处。
3)试压前应将预留口堵严,关闭入口总阀门和所有泄水阀门及低处放风阀门,打开各分路及主管阀门和系统最高处的放风阀门。
4)打开水源阀门,往系统内充水,满水后放净冷风并将阀门关闭。
5)检查全部系统,如有漏水处应做好标记,并进行修理,修好后再充满水进行加压,而后复查,加管道不渗、漏,并持续到规定时间,压力降在允许范围内,应请有关单位验收并办理验收记录。
6)拆除试压水泵和水源,把管道系统内水泄净。
7)冬季施工期间,必须采取可靠措施把水泄净,以防止冻坏管道和设备。
8)管道系统的冲洗应在管道试压合格后,调试运行前进行。
9)管道冲洗进水口及排水口应选择适当位置,并能保证将管道系统内的杂物冲洗干净为宜,排水管截面积不应小于被冲洗管道截面60%,排水管应接至排水井或排水沟内。
10)冲洗时,以系统内可能达到的最大压力和流量进行,直到出口处的水色和透明度与入口处目测一致为合格。
(1)电管敷设:
钢管切割时,必须用钢锯或砂轮切割机切断,断口应用锉刀锉平,并锉掉毛刺,保证管口光滑,严禁用火焰切割。电管弯曲处,不应有折皱,凹穴和裂缝等现象,弯扁程度不大于管外径的10%,弯曲半径,明孔为管外径的6倍,暗孔为10倍,管子焊缝在弯曲方向的侧面。
1)暗面敷设
为减少弯曲、暗孔管宜沿最近路线敷设,埋入墙或商品混凝土内的管子。离表面净距不小于15MM,采用套管连接,套管长度为连接管外径的1.5-3倍,连接管的对接处应在套管的中心,灯口应焊接牢固、严密;钢管进入灯头盒、开关盒、按线盒及配电箱时,可用跨接地线灯接固定型在盒棱边上,严禁管口与敲落孔焊接,管口露出盒(箱)应小于5MM;楼板内暗管敷设应在土建板底钢筋扎好后,板面筋未扎前,将管、箱、盒按图纸要求进行配制到位固定,并对管口、箱、盒进行保护处理,土建浇灌商品混凝土时,现场没有人时行全过程看守,防止管线移位。墙内暗管敷设,在土建做土体时,与土建配合,将墙上电管按图纸要求配制到位并予固定。
2)明管敷设
根据设计测出盒、箱准确位置,把管路的垂直、水平走向弹出线条,安装支、吊架,最孔管应排列整齐,横平竖直,弯子适当美观、固定点的距离应幸均匀;管卡与终端、转弯中点、电气器具或接线盒边缘的距离为150-500MM;水平或垂直敷设允许偏差值,管路在2M以内时,偏差为3MM,全长不应超过管子内径1/2。
3)塑料管敷设
必须采用阻燃性塑料管,管壁厚度不应小于3MM,且塑料管附件,各种灯头盒、开关盒、扦座盒、管箍等宜使用配套的阻燃性制色。硬塑料管的连接应用胶合剂粘接。接口必须牢固、出封,采用套接法连接,套管长度为连接管内径的1.5-3倍,连接管的对口处应在套管的中心;弯曲半径,不小于管径的10倍,不得有凹凸变形等现象,凹偏度不得大于管径的1/10;管路入盒,箱一采用端帽护口,防止异物堵塞管路。
(2)管内穿线
1)管内穿线必须在土建粉刷,地坪等工作完毕后进行。
2)清除管内水分和杂物直到干净为止,最好用压缩空气吹扫。
3)放线时应采用放线架,导线不得绞和,两端做好记号,导线应用规定的多种颜色线,以利识别。
4)不同回路,不同电压的导线不得穿入同一根管子内。
5)除在施工过程中需要做必要的测试外,低压线路装置完工后,接电前应用500V摇表测量线路装置每一分路以及总熔断器和分熔断器之间的线路,导线间和导线对大地的绝缘电阻应大于下列数值,若设计另有规定,则按照设计规定执行。
相对地:大于0.5兆欧;相对相:大于0.5兆欧。
(3)电器控制箱(柜)的安装技术要求
1)箱(柜)安装工艺
按图核对型号、安装位置——弹线定位——明或暗固定——箱(柜)内组装排列——箱内接线——内部检查测试——通电调试——验收签字
2)箱(柜)安装有关技术措施
配电箱的安装,包括各处动力设备配电控制箱、照明系统配电箱以及弱电系统控制箱,安装前应与施工图核对清楚规格、型号、安装的部位是否正确,通进检查确实无误后,方可安装固定。
配电柜应根据设备的大小及要求制作配电控制柜底座,一般用槽钢制作,槽钢选用10#,制作时应平整,将底座与基础或地坪进行预埋固定,然后安装设备箱柜。
引进箱柜内的控制电缆、电线应排列整齐、美观,避免交叉混乱,固定应牢固,而且电缆线应留设一定的余量。
箱柜内接线完毕后,应进行仔细检查测试,检查无误后,方可送电试运行。
各种箱柜通电调试,须请业主方面的有关技术人员参加,并做好测试记录资料。
(3)避雷及接地
施工流程:接地体→接地干线→支架→引下线→避雷网
屋顶避雷带的安装:镀锌扁钢的厚度不得小于4mm,塔接长度不得小于扁钢宽度的两倍,不少于三个棱边焊接,两个长边必焊。焊缝要饱满,无焊接缺陷,焊接部位的焊渣应及时清理并刷两度防锈漆;支持件距离均匀设置(1m±20mm,直角及转弯处对称,为250-300mm);避雷带高度为150mm,设置在女儿墙中心(女儿墙厚度大于300mm)时,避雷带距女儿墙外侧150mm;屋面高于避雷带的所有金属物体必须与避雷带作可靠保护连接,避雷带与屋面的金属部位应有明显、可靠连接点,以保证良好的电气通路。
接地电阻小于设计值。
(1)在项目经理的领导下组织安装项目质量管理班子,实施项目经理管理的责任制,由安装项目管理班子和参加安装施工的全部人员组成现场质量保证体系。
(2)在施工前,施工员针对水、电安装的结合点,熟悉掌握专业图纸,了解各个配件用途和性能,及时解决施工中可能出现的矛盾,消化后向班组交待清楚,以保证系统功能和外观质量。
(3)加强原材料设备的质量检查工作,做好记录,不论国内还是国外设备和材料,坚持不合格产品施工的原则。
(4)安装施工前,施工技术员应对土建结构中预埋、预留的情况进行全面检查,如与预埋的质量标准发生矛盾,应及时与监理、设计院等单位联系,协商解决,妥善处理。
(5)施工员必须加强深化施工技术交底,使班组对施工任务有全面的了解,尽可能地消化图纸,缩短班组的施工准备工作,及时了解技术要求。
(6)贯彻“谁负责施工,谁负责质量”的原则,对安装过程中的各道工序,班组按图纸要求和施工验收规定,认真做好原始记录。
(7)隐蔽工程和中间交工的项目,未经检查合格,办妥验收手续,不得进行下一道工序的施工。
(8)安装过程中,施工员应指导、监督班组严格按图施工,严格执行现行的施工规范操作规程,严格执行施工方案中制定的施工程序,施工技术措施。
(9)每部分分项工程完成后,班组需进行自检互检,施工员应对施工全过程进行仔细检查,一旦发现质量问题,立即整改。
(10)本公司安装质量监督员应在施工的关键阶段对工地进行监督检查,严格按施工规范掌握施工质量,有问题的应立即要求项目体整改,对有严重问题的要提出警告,并处以适当的罚款。
(1)施工人员要认真遵守现场成品保护制度。注意保护建筑物内的装修、成品、设备家具以及各种设施。
(2)本工程的甲供设备、材料,可由本公司负责保管,安装前根据施工进度,把设备、材料等运至现场指定地点。
(3)设备开箱点件后对于易丢失、易损部件应指定专人负责入库妥善保管,各类小型仪表元件及进口零部件,在安装前不要拆包装。设备搬运时明露在外的表面应防治碰撞。
(4)对成品有意损坏的要给予处罚。
(5)各专业施工遇有交叉“打架”现象发生,不得擅自拆改,需经设计、甲方及有关部门协商解决后,方可施工。
(6)对于贵重、易损的仪表、零部件尽量在调试之前再进行安装,必须提前安装的要有妥善的保护措施,以防损坏成品。
地下室人防和消防电气、通风系统、喷淋系统等具体技术方案另编。
本章内容提要:
工程质量要求
工程质量方针
质量保证体系
质量保证措施
工程质量确保达到招标文件规定的质量要求,即达到《建设工程施工质量验收统一标准》的质量规定。
本工程质量方针为过程受控,保质量达标;持续改进,让顾客满意

质量保证体系图
(1)本工程实行目标管理,全体施工人员牢固地树立起“质量第一”的意识,确保工程达到招标文件规定的要求,力争优质工程。
(2)认真执法、实施质量保证体系。实行项目经理、项目工程师质量负责制,施工技术员岗位责任制,并制定严格的奖罚制度。
(3)施工组织设计由公司总工程师审批同意后,工程才能实施施工。为了加强工程技术管理的真实性、科学性,我公司在除了做好通常的对各项施工时技术资料收集整理外,还增加摄像图片资料加以管理,在实施过程中,做到每一项的工作,从原材料的进场、各分部分项工程验收、形象进度等都用图片加以记录在案,在图片上具体能体现各环节相关的人员、时间、地点、部位,这样工程施工在资料上充分体现工程真实性,真真做到“百闻百见”,最终,将图片整理成册存档管理。

(4)工程施工质量实行“工序质量”控制管理方法。对主要工序实行施工技术员事先技术交底;“现场看工”质量跟踪控制;质量员对“工序质量”过程检查。做到以工作质量保证工序质量,以工序质量保证产品质量。
质量保证程序图
(5)工程质量及隐蔽工程验收严格实行验收制度。先由自行检查,再报请监理最终验收通过后,才能进行下一道工序施工。

质量检查程序图
(6)主要分项工程或关键部位可推行“样板项”、“样板段”、“样板间”、“样板层”等引路的施工管理方法,这对工程全面施工、顺利展开是十分有利的。
(7)严格执行材料验收制度和原材料“取样封存”管理方法及“计量”管理制度。
(8)技术资料管理归档必须遵照公司有关规定标准并按企业管理标准,做到及时、齐全、正确、规范。
(9)切实按照本公司的ISO9002系列文件对本工程进行质量控制。
贯彻GB/T19002--ISO9002标准,是企业实现全面质量管理的保证体系,是项目经理部质量管理的基石,必须毫无异议地得到执行。
建筑施工企业质量体系的特点是由建筑工程的特点所决定的,质量体系作为一个“工程”(按ISO8402定义:将输入转化为输出的一组彼此相关的资源和活动),按照系统工程原理,对质量体系进行下述分解:

质量体系分解图
质 量 体 系 要 素 分 配 表
要素 |
|
|
|
|
| 部 |
|
|
|
| 门 |
|
|
|
|
| 要素标题 | 总 | 办 | 公 | 室 | 经营 | 部 |
| 工 | 程 | 部 |
|
| 机施处 | 财 |
代号 |
| 师 | 秘 | 宣 | 劳 | 计 | 合 | 施 | 技 | 质 | 检 | 安 | 材 | 设 | 务 |
|
| 室 | 书 | 教 | 资 | 划 | 同 | 工 | 术 | 量 | 测 | 全 | 料 | 备 | 部 |
4.1 | 管理职责 | ★ | ○ | ○ | ○ | ○ | ○ | ○ | ○ | ○ | ○ | ○ | ○ | ○ | ○ |
4.2 | 质量体系 | ★ | ○ | ○ | ○ | ○ | ○ | ○ | ○ | ○ | ○ | ○ | ○ | ○ | ○ |
4.3 | 合同评定 | ○ |
|
|
|
| ★ | ○ | ○ | ○ |
| ○ | ○ | ○ |
|
4.5 | 文件和资料控制 | ★ | ○ | ○ | ○ | ○ | ○ | ○ | ○ | ○ | ○ | ○ | ○ | ○ | ○ |
4.6 | 采购程序 |
|
|
|
| ○ | ○ | ○ | ○ | ○ |
|
| ★ |
|
|
4.7 | 顾客提供产品的控制 |
|
|
|
| ○ |
| ○ | ○ | ○ |
|
| ★ |
|
|
4.8 | 产品标识和可追溯性 |
|
|
|
|
|
| ○ | ○ |
|
|
| ★ |
|
|
4.9 | 过程控制 |
|
|
| ○ |
|
| ○ | ★ | ○ |
| ○ | ○ | ○ |
|
4.10 | 检验和试验 |
|
|
|
|
|
| ○ | ○ | ★ | ○ |
| ○ |
|
|
4.11 | 检验、测量和试验设备的控制 |
|
|
|
|
|
| ○ | ○ | ○ | ★ |
|
|
|
|
4.12 | 检验和试验状态 |
|
|
|
|
|
| ○ | ○ | ★ | ○ |
| ○ |
|
|
4.13 | 不合格产品的控制 |
|
|
|
|
|
| ○ | ○ | ★ |
|
| ○ |
|
|
4.14 | 纠正和预防措施 | ○ | ○ | ○ | ○ | ○ | ○ | ○ | ○ | ★ | ○ | ○ | ○ | ○ | ○ |
4.15 | 搬运、贮存、防护和交付 |
|
|
|
|
| ○ | ○ | ○ |
|
|
|
| ★ |
|
4.16 | 质量记录的控制 | ★ | ○ | ○ | ○ | ○ | ○ | ○ | ○ | ○ | ○ | ○ | ○ | ○ | ○ |
4.17 | 内部质量审核 | ★ | ○ | ○ | ○ | ○ | ○ | ○ | ○ | ○ | ○ | ○ | ○ | ○ | ○ |
4.18 | 培训 | ○ | ○ | ★ | ○ | ○ | ○ | ○ | ○ | ○ | ○ | ○ | ○ | ○ | ○ |
4.19 | 服务 |
|
|
|
|
|
| ★ | ○ | ○ |
|
|
|
|
|
4.20 | 统计技术 | ○ |
|
|
|
|
| ○ | ○ | ★ |
|
|
|
|
|
注:★责任部门 ○相关部门
(1) 砼搅拌车进场后,应把好砼质量关。检查砼搅拌车发车、运输、到达时间、检查坍落度、可泵性是否符合要求,对于不合格者严格予以退回。
(2) 砼浇捣必须连续进行,就餐时,操作者、管理人员均轮流交替用餐。
(3) 严格把好原材料质量关,水泥、碎石、砂及外掺剂等既要达到国家规范规定的标准,又要满足设计及业主提出的质量标准,各种质量检验报告需报公司质量监督部门审核存档。
(4) 为保证砼工程质量,必须严格执行操作要求,在砼浇捣过程中,由技术、技监人员全面负责,另配监理人员监督振捣质量。
(5) 砼浇捣前对新老砼接缝处的垃圾、杂物应清除干净,浇水湿润,但不得有积水。
(6) 在操作难度较高处和留洞、钢筋密度较大的区域,应做好醒目标志,以加强管理,确保砼浇捣质量。
(7) 混凝土、砌筑砂浆必须由专人负责按规定要求制作足够的试块,并标明标、使用部位、日期及编号。
(8) 楼面砼浇捣时,应铺设架空走道板,禁止人在钢筋上直接踩踏,以免造成钢筋变形位移。
(9)混凝土工程质量程序控制见附图。
(1) 钢筋由钢筋翻样按设计图提出配料清单,同时应满足设计对接头形式及错开要求。搭接长度、弯钩等符合设计及施工规范的规定,品种、规格若要代替时,应征得设计单位同意,并办妥手续。
(2) 所用钢筋具有出厂质量证明,对各钢厂的材料均应进行抽样检查,并附有抽样报告,不得未经试验盲目使用。
(3) 绑扎钢筋前应由钢筋翻样向班组进行交底,内容包括绑扎顺序、规格、间距、位置、保护层、搭接长度与接头错开的位置,以及弯钩型式等要求。
(4) 为了有效地控制钢筋位置的正确性,在钢筋绑扎前必须进行弹线。
(5) 注意满足砼浇捣时的保护层要求。砼垫垫块按设计的保护层厚度事先做好带铁丝的预制砼垫块,砼垫块宜要用普42.5#水泥按1:1-1:2的比例砂浆制作,垫块设置的间距宜控制在每平方米1块。
(6) 弯曲不直的钢筋应校正后方可使用,但不得采用预热法校直,沾染油渍和污泥的钢筋必须清洗干净方可使用。
(7) 加强施工工序质量管理,在钢筋绑扎过程中,除班组做好自检外,看工、技监、技术应随时检查质量,发现问题及时纠正。为防止返工,钢筋可采取按工序分阶段验收,未经隐蔽工程验收合格,不得进行下道工序施工。
(8) 在钢筋绑扎过程中,如发现钢筋与埋件或其它设施相碰时,应会同有关人员研究处理,不得任意弯、割。
(9) 为了保证砼浇灌时顺利下料和振捣,钢筋在绑扎过程中必须注意钢筋的排列布置。特别是在门沿边有暗柱和暗梁的情况时,对暗梁的水平筋布置应尽量预留出下料串管的间隙大于15厘米,若不能按设计要求排列时,应会同技术部门协商统一并经设计认可。
(10) 各分部分项工程中的钢筋质量、技术措施各有侧重点及各自的特殊性,故有关各分部分项工程中的钢筋质量、技术措施将在相应施工方案中详述。
(11)钢筋工程质量程序控制见附图。
(1) 模板在每一次使用前,均应全面检查模板表面光洁度,不允许有残存的砼浆,否则必须进行认真清理,然后喷刷一度无色的薄膜剂或清机油。
(2) 模板的拼缝有明显的缝隙者,必须采用油腻子批嵌。拆除模板必须得到有关技术人员的认可后,方可进行拆模。
(3) 模板在校正或拆除时,绝对不允许用棒撬或用大锤敲打,不允许在模板面上留下铲毛或锤击痕迹。
(4) 对木模本身的质量应认真检查:
a. 钢围檩挠曲不直者不得使用;
b. 木模表面有脱皮,中板有变质者不得使用;
c.木围檩及木搁栅挠曲不直和有关质者不得使用。
(5)模板工程质量程序控制见附图。

模板工程质量程序控制图
钢筋工程质量程序控制图


砼工程质量程序控制图
(1) 测量定位所用的经纬仪、水准仪等测量仪器及工艺控制质量检测设备必须经过鉴定合格,在使用周期内的计量器具按二级计量标准进行计量检测控制。
(2) 测量基准点要严格保护,避免撞击、毁坏。在施工期间,要定期复核基准点是否发生位移。
(3) 总标高控制点的引测,必须采用闭合测量方法,确保引测结果精度。
(4) 所有测量观察点的埋设必须采用闭合测量方法,确保引测结果精度。
(5) 轴线控制点以总标高控制点,必须经监理书面认可方可使用。
(6) 所有测量结果,应及时汇总,并向有关部门提供。
(1)建立装饰工程质量保证体系,坚持质量三检制、样板制、岗位责任制。
(2)装饰工程坚持按高级装饰标准检查验收,贯彻“严格把关”和“积极预防”相结合质量管理办法。坚持先定验收标准、定样板、定材料、定做法,再施工。所有材料须经甲方、监理、施工单位的技术负责人认可后方可进场,并执行验收手续,凡不符要求的材料不得进场。
(3)房间装修要先做样板间,经甲方及质监部门认可后方可全面进行。特殊房间及采用新材料、新工艺的装修项目,都应先编制工艺卡、放大样、做交底,凡没有工艺卡的项目,施工员拒绝施工。
(1)建立安装工程质量保证机构,制定安装工程质量管理制定,层层落实责任制,严格把好质量关,在竣工时达到一次交验。
(2)配备专业质量检查人员,加强现场施工质量检查。
(3)加强原材料和设备的质量检查,凡不合格产品坚决予以退货,杜绝使用质量不合格原料或设备。
(4)严格按图施工,主要设备特别是进口设备要详细地学习说明书和有关资料,掌握设备的有关技术要求和规范,制订出严密的施工方案或技术措施后,在项目总工程师及技术负责人的严密监督指标下方可施工。
(5)在各专业交叉复杂的部位,应预先组织图纸会审,确定施工程序后方可施工,以免造成安装后再拆改。

安装工程质量管理控制流程图
(6)各种设备管道要严格按照顺序施工,做到先室外后室内,先地下后地上,先设备后配管的原则,由大到小组织施工。凡需试压、吹洗、气密性检查的都要认真做好试压、吹洗等工作。
(7)凡被土建、装饰隐蔽的工程内容都要经隐蔽验收并做好记录后方可隐蔽。
(8)凡有施工方案的项目都必须按施工方案进行施工,所有工程都须达到有关规范要求。
须达到有关规范要求。
1、加强成品保护意识教育,切实贯彻成品保护条例。
2、各楼层设专人负责成品保护。
3、对已完成或即将完成的房间,要及时封闭。由专人负责掌管钥匙。班组交接时,要对成品情况先进行交接检查登记,如有损坏要查清责任。
4、严格按程序施工,坚持先上后下,先湿后干、先管道试压后吊顶,严格防止流水。
5、加强原材料,成品及半成品保护工作。各类装修材料在运输过程中要加以覆盖和保护,到现场后也要入库保存。易吸湿材料要有防潮措施。
6、各类地面、楼梯棱角台阶等都采取适当保护措施。任何地面上都不得直接拌制或存放灰浆。
(1) 浇捣砼前应与气象部门作好联系,尽可能避免在在暴雨天内浇捣砼。
(2) 如果浇捣砼时恰逢下雨,应随雨量大小,随时测定砂石含水量,调整砼配合比。
(3) 现场应准备足够的防雨应急材料(如油布、塑料薄膜),以防雨水冲刷新浇砼,确保砼质量。
(4) 做好施工现场的排水和四周的清理工作,防止积水和淤泥。
(5) 如在施工过程中突遇大暴雨,应估好人员配置,加强施工管理力量。确实无法施工时,可留设施工缝,但应做好施工缝的处理工作。
(1) 在高温季节,浇捣完成的砼应及时加强养护,外露部分应覆盖草包。
(2) 砼应按气温与技术性能要求掺加缓凝剂。
(3) 气温高于20℃ 时,砼输送管的表面应包二层麻袋并用水保持湿润状态,避免输送管直接受阳光曝晒,使砼坍落度变小。
(1) 当室外日平均气温连续五天低于5℃或每日最低温度低于3℃时,应按冬期施工要求组织施工。
(2) 采用以蓄热法和掺化学剂相结合的防冻保温办法,并辅以调整砼配合比,控制砼水灰比等措施来保证砼质量。
(3) 根据实际情况,如有必要时可掺加外加剂(如硫酸钠、亚硝酸钠等),外露砼表面应用草包加塑料薄膜覆盖。
(4)做好清除积雪,凿除结冰层等措施。
本章内容提要:
施工组织总体设想
管理组织体系
管理职责
公司质量管理组织体系
安全管理组织体系
质量管理组织体系
(1) 我公司项目管理部全面负责工程质量、进度、安全及文明施工等工作。
(2) 我们上达公司领导、下至甚层施工技术人员,对建好本工程有足够信心,也予以充分重视。为此,由公司主要领导组成本工程指挥领导小组,每月或半月在现场召开办公会议,解决、协调、平衡工程进展过程中有关技术、资金、劳动力、机械等方面的问题,确保工程施工快速优质顺利进行。
6.1.2.1牢固树立“质量第一求效益,用户至上创信誉”的精神,正确处理好“质量、工期、成本、安全“四者关系。
6.1.2.2坚持“三级监督,五步到位” 的质量控制标准,消灭返工现象,以工作质量保证产品质量。
(1) 三级监督
班组自监督→项目经理、技术质量监理监督→业主委托的监理监督。
(2) 五步到位
在分项施工中,管理人员做到:
操作要点交底到位;
上、下工序交接到位;
上、下班交接到位;
关键部位的检查、验收到位;
各种材料和加工件进场验收到位。
依靠和运用我公司在高层建筑和大型建筑施工中的成熟经验,充分发挥广大工程技术人员及施工管理人员的聪明才智,不断运用新工艺、新技术优化施工方案,对各种经过讨论确定的施工方案严格执行,充分发挥技术工作在施工管理中的先进和指导作用。
对工程管理人员加强定岗、定职教育,制定严格的奖罚制度,加强每个管理人员的工作责任感,消除各种可能发生不良后果的隐患。
在工地办公室配有计算机设备,利用计算机实现最优的组织计划安排并根据工程的实际情况及时调整,实现动态的管理;采用计算机对工程的成本进行动态的跟踪与监控,实现经济上的优化。
择优选用劳动力队伍,加强劳动纪律及劳动技能的教育和培训,充分发挥劳务力量的潜在力量,确保工程正常顺利进行。
6.1.7场容及现场标准化管理
我公司在众多工程项目的施工中,获得上级单位及社会上的好评,树立了良好的形象。同样,在本工程的施工过程中,我们将继承发扬以前的良好形象,在确保质量与进度的同时,认真执行有关现行标准化规定,文明施工、处理协调好各方关系,做到“场内优质工程,场外民心工程”。

管理组织体系图
序号 | 岗位名称 | 负责人姓名 |
1 | 项目经理 | 羌锡和 |
2 | 项目副经理 | 黄迪 刘志祥 |
3 | 技术负责人 | 毛金国 |
4 | 施工员 | 孙谦 |
5 | 安全员 | 吴锦华 冯光华 |
6 | 质检员 | 陆银华 |
7 | 资料员 | 陈兴明 羌志锋 |
8 | 预算员 | 毛金国(兼) |
9 | 材料员 | 姜国华 黄继南 |
10 | 保管员 | 何振怀 羌锡成 |
11 | 财务负责人 | 吴周燕 |
12 | 机管员 | 羌志明 |
13 | 保卫员 | 魏金标 任丙新 |
14 | 事务长 | 赵锦华 |
6.3主要管理职责
6.3.1 项目经理
(1)全面负责管理本项目的施工运行,确保项目顺利建设。
(2)决定项目资源配备,明确职能部门的管理职能。
(4)控制工程成本,合理管理项目资金运转。
(5)选择和评审分包和材料供应商,审核其资质并签定分包合同。
(6)做好项目管理人员的人事管理工作。
6.3.2 项目技术负责
(1)全面负责项目技术质量日常管理,具体协调施工技术管理工作。
(2)负责施工组织设计的编制。
(3)解决工程施工过程中出现的重要技术问题。
(4)负责施工过程中的全面质量监控,加强施工过程监控。
6.3.3 项目副经理
(1)全面组织管理施工现场的生产活动,合理调配劳动力资源。参与制定和贯彻项目质量方针目标,并组织实施质量体系。
(2)负责使项目的生产组织、生产管理和生产活动符合施工方案实施要求。
(3)负责项目的安全生产活动,管理项目的安全管理组织系统。进行施工现场的标准化管理,争创文明工地。
6.3.4施工员
(1) 有效、动态地对现场施工活动实施全方位、全过程管理。
(2) 合理安排施工搭接,确保每道工序质量,形成最终优质建筑产品。
(3) 实施作业过程中的施工指导,确保工序管理点的顺利实施。
(4) 合理调配劳动力资源,使工程建设有组织按计划进行。
6.3.5材料设备管理员
(1) 按质量设计和施工方案,提供合格的材料与设备。
(2) 强化原材料、半成品等质量管理,提高设备的完好及使用率。
(3) 严格控制无质保文件和不符合技术规范指标的材料投入施工,杜绝设备带病运行。
(4) 实施工程项目现场管理标准化,使操作现场工作环境不影响工程质量。
6.3.6质检员
(1) 按质量文件和合同要求,实施施工全过程的质量控制和检查、监督工作。
(2) 负责对分部、分项及最终产品的检验和参与最终产品质量评定工作,独立行使施工过程中的质量监督权力。
6.3.7安全员
(3) 负责项目的安全生产和施工现场 的安全保卫工作。
(4) 负责各种质量记录资料的填制、收集、立卷工作。
6.3.8资料员
加强项目基础管理,强化信息传递。负责文件资料的登记、分办、催办、签收、用印、传递、立卷、归档和销毁等工作。
来往文件资料收发应及时登入台帐,视文件资料的内容和性质,准确及时递交项目经理、业主、监理和有关部门批示和办理。
负责接收各部门文件资料责任人按阶段递交的已立卷的文件资料,并按规定进行审核、归档和保管。
注意保密的原则。在工程竣工后,负责将文件资料立卷移交公司。

我公司对本工程的建设予以了充分的重视,通过我公司质量管理体系的运作,将有效地保证工程的建设质量。公司质量管理组织体系如图
公司质量管理组织体系图

安全管理组织体系图

质量管理组织体系图
本章内容提要:
保证安全生产主要措施
文明施工及工地标准化管理计划节约措施
(1)成立安全综合办公室,全面负责施工全过程的安全检查、安全布置、安全监督和安全奖罚。

(2)加强安全教育使全体管理人员牢固树立起“抓安全一刻不忘,管理安全理直气壮的观念,做到施工现场“发现隐患立即整改,发现违章立即制止”,确保项目安全目标的达到。
安全教育程序图
(3)每月组织各部门、各班组进行安全设施大检查,进行总结评比和奖征。

组织安全活动图
(4)所有洞口、临边的安全设施在解除前,应征得安全部门的同意。
(5)每个楼面上均应设若干灭火顺,实施统一管理,在每个楼面上设消防龙头。
(6)各部门应对自己所使用的危险品负责,并将危险品的产品说明和保管说明供应给项目经理部及安全部门。
(7)凡政府规定的持证上岗人员,必须持证上岗。
(8)配备工地保安人员,实行三班值勤和夜间巡逻制度。
(9)制定执行出入大门的规章制度。
(10)工地建立安全管理体系。
(1)严格执行公司等上级机关颁发的有关安全生产法规,特别是在施工区域必须严格遵守安全生产六大纪律,严格执行安全生产规则。
(2)认真做好安全生产教育,对所有参加施工生产的职工(包括外包工、代训工及实习生)均应进行入场生产安全和消防安全教育,未经教育不得上岗,同时应结合工程进度及不同施工工艺,进行针对性的安全知识与遵章守纪教育。
(3)安全施工。施工班组要认真做好安全上岗交底活动记录,每周一上午组织不少于1小时的安全教育活动。
(4)严格执行起重机械三限位、两保险、十不吊规定。
(5)严格遵守“十不烧”规定,执行工程多机多监护制度(操作证、动火证、灭火证、监护人)和1-3级动火界限审批手续。
(6)严格执行现场“四口”、“五临边”的防护措施规定。
(7)夜间施工必须配备足够的照明灯光,用于地下的照明电应为36伏的低压电,以保安全。
(8)现场机电维修人员应该经常检查设备触电漏电保护是否完好有效。
(9)现场用电机具较多,电线不得乱拖、乱拉。材料运输、堆放时,一定要注意保护好电线,防止碰砸电线,造成电线包皮破碎剥落,一经发现有电线露芯或电线包皮破损要及时修调。
(10)现场施工用的机电设备均应有良好的二级防护装置。
(11)电动机械及工具应严格按一机一闸制接线,并设安全漏电开关。
(12)塔吊等起重机械必须配备专业指挥人员,无指挥人员不得作业, 指挥人员必须有醒目的安全帽标志。
(13)塔吊在作业时,严禁将起吊的物体凌空于人行道上空。
(14)小件材料(如扣件、紧固件、拉结螺杆)吊运采用集装箱或料斗,钢筋、钢管等细长物件必须两端捆扎牢固后方能起吊。
(15)所有机械操作人员必须持有操作合格证,否则不准上岗作业。
(16)操作使用的脚手,在施工范围及高度均应铺设好海底笆和栏杆。
(17)上下基坑必须搭设方便牢靠的爬梯,基坑四周的维护及支撑上的扶手,必须经常维修、整理。
(18)施工人员不得用抛运方式传送小件材料,杜绝高空坠落事故发生。
(19)长钢筋运送过程中要有统一指挥,搬运工人动作要一致,防止砸伤事故发生。
(20)楼板上预留的孔洞四周应拉设安全带或设置明显醒目的安全标志。
(21)钢管排架拆除前,须由技术人员全面检查砼养护时间并视现场实际情况决定是否还需要留设一部分临时支撑排架,然后由技术负责人签署拆除命令。钢管排架拆除前必须编制钢管排架拆除方案,不得擅作主张改动拆除方案,整个拆除排架的过程中必须有专人负责监控。
(22)及时挂设安全网,以防止高空附落事故发生。
(1)由项目副经理、安全员组成消防安全领导小组,具体负责实施消防安全工作。
(2)施工现场必须实行动火申报制度。严格执行“十不烧”规章制度,动火必须具有“二证一器一监护“才能进行。
(3)在建筑物楼层内、脚手架上、临时设施四周应按规定设置足够的灭火器村,并由安全员检查落实到位。
(4)酸碱泡沫灭火机由专人维修、保养,定期调换药剂,标明换药时间,确保灭火机效能正常。
(5)施工中的易燃易爆物(如汽油、油漆、氧气瓶、乙炔瓶等都必须按“规定”设置,妥善保管。
(6)楼层必须配有消防供水总管、消防栓、消防带,底层设置高压水泵,并保持器材完好。
(7)严禁在工地利用灯泡和明火取暖;严禁利用煤油炉、电炉烧煮;如有发现则严加处理。
(8)进入施工高峰阶段,制定专项安全、消防、防盗措施,报请业主同意后实施。
(9)加强警卫人员上岗责职,每天下班后对工地临时充施进行一次 防巡查,消灭事故隐患。
(1)本工程实施施工现场标准化管理,力争获得省级文明工地称号。
(2)公司每月由“标化”领导小组组织各部门、条线负责人对工地进行安全生产、文明施工、场容场貌、生活卫生检查、打分评定,以有力地促进项目“标化”工作在到文明工地的要求。
(1)工地实行围墙围设封闭施工、工地四周围墙及门头大门按公司统一标准围设。
(2)在施工现场,设置“五牌一图”,以及安全宣传标语和警告牌。
(3)所有场地均采用硬地,做法为:一般场地用碎石垫层100厚上铺80厚C10砼面层;主要通道利用已有的砼道路。
(4)建筑材料划区域堆放整齐,并采取安全保卫措施,施工区域与生活办公区域分隔,场容场貌整齐、整洁、有序、文明。
(5)在大门进出口处设置车辆清洗场地,场地内布设排水沟及沉淀池,由专人负责对出土的车辆及其它材料运输车辆进行出门前的装载情况进行检查,坚决杜绝散落现象的发生,并在出门前对车轮等部位进行冲洗,以防止泥污随车带出。
(6)由专人负现场区的清洁卫生,随时打扫,保持清洁。
(1)在工地四周的围墙建筑物、办公室外墙等地方、设置反映企业精神、时代风貌的醒目宣传标语,工地内设置宣传栏、黑板报等宣传设施,及时反映工地内各类动态。
(2)开展文明教育,施工人员均遵守市民文明规范。
(3)加强班组建设,有三上岗一讲评的安全记录,有良好的班容班貌。项目部给施工班组提供一定的活动场所,提高班组整体素质。
(4)工地现场做到道路畅通、平坦整洁,不乱堆乱放,无散落物,建筑物周围浇捣散水坡,四周保持洁净,地面平整不积水,无散落的“五头”、“五底”及散物,场地排水构成系统,并保持排水通畅。
(5)施工现场的所有人员建立档案卡片,并级级订立治安防火协议书,对现场人员加强法制教育。
(6)做好社区服务工作。工地有专人负责协调与周围居民、所在地居委会、市政交通、环卫等单位的横向关系,定期主动召开会议,听取他们对工程建设的有关意见,保证工程文明施工,使工程成为爱民工程、便民工程。
(7)现场施工人员均佩戴胸卡,胸卡以工作部门、单位为依据,按一定规则统一编号。
(8)现场施工人员按不同工作单位佩戴不同颜色的安全帽,现场管理人员按不同工作单位穿着不同颜色的工作服装。
(1)工地设有环境卫生宣传标牌和责任区包干图,现场无大面积积水。
(2)防止蚊蝇孳生,落实各项除四害措施,工地内做到排水畅通,无污水外流或堵塞排水沟现象。
(3)现场设置医务室。做好对职工卫生防病的宣传教育工作,针对季节性流行病、传染病等,利用黑板报等形式向职工介绍防病、治病的知识和方法。医务人员对生活卫生要起到监督作用,定期检查现场卫生情况。
(4)现场设水冲式卫生间,由专人负责卫生间的卫生管理,确保其清洁与定期的消毒工作。
控制施工噪音,保证周围居民的正常休息是施工文明的重要体现,是施工管理上水平的重要标志。
(1)按照施工的噪间控制要求,夜间10点以后不安排施工作业。
(2)加强对操作工人的防噪音控制教育。不得故意制造噪音,对正常的施工,也要采取低噪音的方法进行。
(3)定期检查机械设备,保持设备的正常运行,降低机械设备的噪音,对于噪声很大的机械设备,坚决予以更换。
(4)选择合理、先进的施工工艺,控制噪音的发生与发展。
(5)对于无法避免的过大噪音,可进行噪声封闭,以控制噪音的传播。
(1)优化施工方案,科学合理地组织现场施工,依靠“方案领先”加快施工进度,缩短施工总工期,达到节约开支、降低成本的目的。
(2)设计合理的模板脚手体系,确保模板脚手装拆方便,可多次重复周转利用,降低模板消耗。
(3)砼浇捣时严格控制标高,不超标高浇捣,确保设计浇捣量与实际使用量基本相符。
(4)合理利用泵管中的余量砼,制作垫块和门窗过梁等小构件。
(5)加强施工现场管理,由专人对现场的短钢管、短钢筋、扎铁铅丝、扣件等建筑材等建筑材料进行清理收集,减少不必要的浪费。
目 录
1
3
3
4
4
4
4
6
6
7
9
9
9
9
9
10
11
11
11
12
16
16
17
17
18
18
19
19
19
19
20
20
21
22
24
25
26
27
27
27
28
29
29
31
33
34
34
35
36
38
38
39
40
41
41
41
41
42
43
45
46
46
47
48
52
55
57
59
60
63
63
63
63
71
73
74
76
76
76
76
77
77
79
80
81
86
86
86
87
88
90
90
90
90
91
91
91
91
92
93
95
95
96
97
97
97
100
100
101
101
101
102
102
103
================================================================
说 明
星欣设计图库资料专卖店拥有最新最全的设计参考图库资料,内容涉及景观园林、建筑、规划、室内装修、建筑结构、暖通空调、给排水、电气设计、施工组织设计等各个领域的设计素材和设计图纸等参考学习资料。是为广大艺术设计工作者优质设计学习参考资料。本站所售的参考资料包括设计方案和施工图案例已达几十万套以上,总量在数千G以上。
联系QQ:447255935
电话:13111542600