天津开发区海景街海通街蓝领公寓施工组织设计方案

第一章 综合说明

第一节  编制依据

我公司经过认真的阅读本工程设计施工图纸、招标文件、答疑会议纪要和实际踏勘现场,经过项目经理部的研究分析,对整个工程的施工进行了策划部署,在综合考虑了各方面因素的基础上,选择优化施工方案,编制了本工程的施工组织设计,以使本工程的施工组织设计具有科学的针对性、实施的指导性和可操作性,以保证按期、优质、高效、安全地完成本工程的建设任务。

1.施工及验收规范

《建筑地基基础工程施工质量验收规范》GB50202-2002

《混凝土结构工程施工质量验收规范》GB50204-2002

《钢结构工程施工质量验收规范》GB50205-2001

《砌体工程施工质量验收规范》GB50203-2002

《建筑装饰装修工程质量验收规范》GB50210-2001

《建筑地面工程施工质量验收规范》GB50209-2002

《屋面工程质量验收规范》GB50207-2002

《钢筋机械连接通用技术规程》JGJ107-96

《玻璃幕墙工程技术规范》JGJ102-96

《建筑电气工程质量验收规范》GB50303-2002

《地下防水工程质量验收规范》GB50208-2002

《通风与空调工程施工质量验收规范》GB50243-2002

《建筑给水排水及采暖工程施工质量验收规范》GB50242-2002

《电梯工程施工质量验收规范》GB50310-2002

《建筑工程施工质量验收统一标准》GB50300-2001

《施工现场临时用电安全技术规程》JGJ46-88

《建筑施工高处作业安全技术规程》JGJ80-91

《建筑机械使用安全技术规程》JGJ33-2001

《建筑施工现场供用电安全规范》GB50194—93

《电气装置工程低压电气施工及验收规范》GB50254—96

《电气装置工程电气照明装置施工及验收规范》GB50259—96

《电气装置安装工程施工及验收规范》GBJ232—82

国家及天津市现行的其它与本工程相关的技术规范、质量规范及验收规范。

2.施工图纸

第二节  工程概况

1.工程名称:

2.工程地址:

3.建筑设计:

本工程为八幢独立工程总建筑面积73318m2,其中1#、2#公寓楼建筑面积13087m23#、4#公寓楼建筑面积12437 m2,5#、6#公寓楼建筑面积7345m21#6#公寓楼为六层钢筋混凝土框架结构,建筑高度22.80m,7#公寓楼建筑面积3244m2,为三层框架结构,建筑高度11.55m;8#综合楼建筑面积4337m2,为地下一层,地上三层框架结构,建筑高度13.20m

本工程的室内外主要装饰装修项目概况如下:

外墙装饰:本工程外墙采用涂料饰面及部分玻璃幕墙,涂料饰面按设计部位分色装饰。

内墙、梯间、顶棚为水泥砂浆抹灰,表面白色乳胶漆饰面。

地面:铺陶瓷地砖地面

门窗:本工程门窗设计主要有玻璃幕墙、断桥铝合金及普通铝合金窗户;木门、防火门等。

屋面采用70厚挤塑聚苯保温材料,防水层为4mmSBS

4.结构设计工程基础为独立承台基础,主体全部为钢筋混凝土框架结构,砌体结构采用轻集料混凝土砌块,

5.安装设计:本安装工程由建筑电气、弱电、给排水、暖通、消防工程等构成

6.本工程特点和难点

1、本工程位于 为该区 年重点工程。因此文明施工、环境保护、现场周边安全以及组织交通运输和材料设备进出场,均要求十分严格,这将成为本工程的重点管理项目和主要控制内容。

2、施工中如何最大程度的降低施工噪音,保证施工期间附近单位人员正常工作、生活秩序,以及安全施工是本工程施工管理的重点。

3、本工程属多层建筑,应特别做好安全防护措施,防止高空坠物伤人。同时应选择适用的模板及脚手架支撑系统以确保框架结构砼的施工质量和施工安全。

4、本工程部分结构处于冬、雨季施工,如何采取有效措施保证冬雨季施工工作,是本工程施工质量控制点。

5、本工程的设备安装工程专业较多,因此工程施工间的相互配合、相互穿插、相互衔接尤为重要,特别是在主体施工期间的预留、预埋工作必须准确到位。

6、屋面防水施工是本工程施工难点。

  水文地质、气象及周遍情况

1气象资料:

检索资料表明, 地区属暖温带亚湿润大陆性季风气候,部分地区受海洋气候影响,四季分明,冬季寒冷干燥,春季大风频繁,夏季炎热多雨,雨量集中。秋季冷暖变化显著。年平均气温18.5摄氏度,历年最高气温39.9摄氏度,历年极端最低气温-17.0摄氏度,历年平均最高气温16.5摄氏度,历年平均最低气温-9.3摄氏度。雨季平均降水量536.6mm,冻土深度70cm。雨季集中在6~9月,冬季集中在11~第二年2月。

本工程施工周期跨越雨季和冬季,因此要对雨季施工,结合本工程结构特征及工期安排编制雨季施工措施

2)临时用地

    由于工程占地面积较大,红线圈地面积较大,完全满足施工要求。

3)工程周遍情况

本工程建设场地位于天津塘沽开发区场地现状平整,无地上物,周边道路设施完善。现场三通一平,具备施工条件

4)施工用水、电情况

   本工程拟采用城市供电网络,施工用水用市政自来水。

5)现场位置

 

 

 

第四节  施工管理目标

1、工程质量目标

达到国家施工验收规范合格标准 。分部分项工程一次验收合格率100%,工程整体交验合格率100%

2、施工安全目标

杜绝施工安全事故发生,工伤率控制在2以下。

3、文明施工目标

达到天津市市级文明工地标准

4、工期目标

工期: 全部工程完工。

5、环保工作目标

降低扬尘,减少噪声污染、节能降耗。

6、内业管理目标

内业资料立项准确,分类规范,科目齐全,上报及时,程序合理,达到行业标准化要求。

第五节  施工管理班子及主要管理人员

一、施工组织机构

将由我公司具有丰富土建施工经验的人员组建场站项目经理部,实行项目经理负责制,全面认真地履行承包合同。

项目经理部设负责工程的施工管理,设项目经理1名、项目副经理1名、项目技术负责人1名、管理及技术人员共计12人。

(一)施工组织原则

1、以总工期为主线,科学部署,统筹安排,分区分阶段组织施工;

2、组织多工作面作业和平行、交叉、流水作业,力求均衡生产;

3、集中力量打歼灭战,突破重点、难点工程;

4、提高机械化施工程度,充分提高工作效率;

5、强化组织指挥,加强管理,保工期、保质量、保安全;

6、优化资源配置,实行动态管理;

7、精打细算,降低工程成本;

8、加强协调配合,搞好界面接口施工;

9、做到文明施工,加强周围环境保护。

(二)项目经理部人员组织机构图

 

二、职责范围

1、项目经理职责

以我公司法人代表委托人的身份,在本项目按项目法组织领导全体职工全面完成施工承包合同所规定的任务。其职责是:

1)全面负责本工程施工管理,严格执行ISO90002000版质量体系文件《质量管理手册》,对本工程的管理负责第一管理者责任。

2)按弹性编制组建项目的管理层和作业层;按动态管理要求优化、组织各项资源配置。对所属施工队伍进行生产指挥、技术管理、安全质量检查,保证按合同工期完成建设任务。

3)合理使用和调配资金。用好公司拨付的起动资金和建设单位拨付的预付款和计价款。控制施工阶段成本和竣工决算成本。

4)认真履行施工合同,协调内外关系,解决施工中存在的问题。

5)加强全面质量管理,保证工程质量达到国家规定标准和合同要求,以安全、优质、高效、低耗建成本工程,增强公司市场竞争能力。

6)切实抓好安全生产,努力改善劳动条件,提高职工的安全意识,杜绝人身伤亡、机破、火灾事故。

7)有权代表公司会同顾客(建设单位)协商解决施工中的问题,处理本合同一切相关事宜。

8)有权临时处置意外情况,但事后必须及时报告。

2、项目副经理职责

协助项目经理做好本项目施工中的现场组织指挥、安全质量管理、文明施工管理、物质设备使用调配管理、检查督促施工计划的实施,主持交班会工作,主持处理施工现场的生产日常问题。对本工程的施工进度、安全生产、文明施工负直接领导责任。

3、项目技术负责人职责

1)协助项目经理对本标段的施工实施全面管理,主持本项目的技术管理和施工方案的贯彻实施。

2)协助项目经理作好施工进度控制、质量控制、安全生产、文明施工和成本控制。

3)主持编制实施性施工组织设计和年度季度施工生产计划,成本计划及物资设备供应计划,主持制定各项配套措施。

4)主持ISO9001质量体系在本项目的运行,主持编制质量计划和创优规划的实施,组织项目的技术攻关和全面质量管理,主持重大技术交底。

5)主持重大设计变更和方案变更,审查一般设计变更和方案变更。

6)审查控制测量方案,施工监测方案及其成果资料,审阅主要材料、主要工程部位的检测试验资料和分项分部工程验收资料。

7)主持例行的安全质量进度检查。

8)协助项目经理作好单位工程和全标段的内部检查初验,主持项目竣工文件的编制,参加竣工交接。

承担责任:对项目技术管理承担主要责任,对项目质量安全进度管理负领导责任。

4、专业工程师:

1)负责编制施工计划,核算工程量,控制施工进度,负责协调有关方面的关系及现场施工组织。

2)确保整体工程的质量和进度,并承担各种技术性实施方案与措施。

3)负责现场施工所必需的各种点、线和高程,确保施工的准确无误。

4)作好测量成果的整理与积累工作。

5、质检工程师及试验工程师:

1)负责现场质量管理、施工过程质量控制。

2)负责进场原材料的质量检测和验收。

3)负责整个工程的全部试验、检测工作,为施工提供试验依据。

4)负责项目所有试验工作,包括各种原材料试验、土工试验,砂浆、稳定土或其它混和料的配合比试验、强度试验以及各种质量检测试验,作出试验报告。

5)负责现场的有关试验检验工作。

6)负责往来文件的收发及归档工作,及时反馈各种信息。

6、计划统计负责人:

1)负责原材料的采购和管理,对采购材料的成本和质量负责。

2)负责施工机械设备的管理、维护和抢修。

3)负责工程技术内业、合同管理等工作。

4)负责月计量支付资料与报表的整理、汇总及上报工作。

7、安全及文明施工负责人:

1)负责安全管理及安全保卫工作(防火、防盗、交通安全、施工安全、施工及生活用电等)工作,协调地方关系。

2)负责现场的文明施工及环保工作。

8、财务负责人:

1)负责项目部的固定资产台帐。

2)监督管理项目部的往来资金、负责成本核算,为项目的成本控制与管理提供依据

第二章 施工现场平面布置

经理部驻地选址征地红线内,内部设置办公区、生活区。场地布置原则:尽量少占地,布置合理、便于施工。

一、生产、生活区

1、项目经理部办公用房及生活区宿舍均采用彩钢板房

2、生产所用原材料及周转材分类堆放在材料堆放区,为便于施工,设置材料堆放区、加工区。

3、场区内道路硬化、对场区进行绿化,改善生活环境。

二、施工、生活用水

给水:从业主提供的水源接出施工用水管线,为满足现场用水压力需要,计划在水源处设置一个水箱,另配二台水泵备用;临时施工主干管采用ф40镀锌钢管,消防主干管采用ф100镀锌钢管;消防与给水沿周边围墙及施工道路一侧环形布置,支管采用ф25镀锌钢管通向各施工用水点。消防与给水主干管和支管均埋入地下冻土层之下,均埋入地下约300400mm,并设于不通行地沟内,以防土层沉降而断管及冬天管道受冻。施工区域设置三个消防专用水源。竖向供水采用设置临时竖向给水管道供应到用水点,计划设置三处供水点,阀门控制。

三、施工供电

供电从建设单位提供的电源接出。全部采用三相五线制,用五芯绝缘电缆立杆架空铺设,塔吊、及垂直运输电梯的电缆埋入地下,各配电箱电源由电缆接入;竖向施工点的电源采用在建筑物边设置三处供电配电控制箱供电,配电控制箱至用电部位采用橡胶电缆连接考虑到在市区施工,为减少噪音以及环保的需要采用市电电网供电来满足施工需要,必要时配备一定数量的发电机做为应急和备用电源,供电线路敷设采用地埋方式。

四、场地排水

由施工生活产生的废水由我单位地表下安装D400mm的承插口水泥混凝土管排出,在经过沉淀池沉淀过滤后排入市政管网,确保路面清洁,将污染源降低至最低。

五、通讯及办公设施

项目部及分部办公室设程控电话负责对外联络,并配置计算机、打印机、复印机等办公设备。对讲机用于施工场地内联络。

六、消防设施

在办公生活区、材料库房、变配电箱等处,按规定配足、配齐消防器材。

临时设施及临时道路布置详见施工现场总平面布置图

第三章 劳动力计划

1、劳动力的配置

由于该工程属于开发区重点工程,施工任务重,工期紧张,因此劳动力需求量大,因此合理划分好工种,为每个工序部位合理分配劳动力资源,直接决定工程的进度和质量,为此,我们细化了工种,并根据各个施工阶段,施工部位的不同特点来配置不同工种的劳动力人数,力求达到人力资源的最合理利用。

2、劳动力的动态管理

1)劳动力的组织和管理由行政领导和人事劳资员全面负责。

2)劳动力进场:根据项目劳动力动员计划以及现场施工需要,向公司逐月报送劳动力进场计划,并及时组织各类人员进场。现场管理人员根据项目管理人员动员计划,结合项目实际需要,由项目经理会同有关单位,组织各部室人员陆续进场。

3)外部劳动力管理:临时工的使用,由人事劳资员与当地劳动主管部门联系,按照国家的现行政策和天津市的有关文件要求,做到有计划地使用临时工,严格控制,并加强对临时工的管理。

4)按公司现行的有关规定,切实加强岗前培训,加强现场劳动纪律管理,加强法律、法规教育,建立各项考核制度。

劳动力计划表

单位:人

工种、级别

按工程施工阶段投入劳动力情况

基槽开挖

阶段

基础工程

阶段

地上土建工程阶段

装饰工程

阶段

给排水、电气设备安装

阶段

竣工验收

阶段

机械工

10

16

20

20

6

4

电工

10

8

16

16

80

8

木工

8

80

160

60

16

8

钢筋工

0

80

160

8

8

0

瓦工

8

60

60

120

20

8

壮工

60

120

200

200

80

40

抹灰工

0

40

0

160

20

8

油工

0

0

0

80

0

8

水暖工

0

20

20

0

80

0

 

 

第四章 施工进度计划

第一节 计划开工、竣工日期

 

我公司郑重承诺在此工期内完成全部施工任务,圆满交付甲方使用

第二节  施工进度计划

进度计划编制原则

1)施工进度计划的开工、竣工时间满足招标文件要求。

2)根据施工方案和施工方法选定合理的施工施工程序、顺序、流水段和流水走向。

3)采用平行、交叉流水作业,保持均衡、有序生产。

4)保证关键线路施工进度,同时也要严格控制非关键线路施工进度,防止非关键线路转化为关键线路。

5)选用先进合理的进度指标。

详见施工进度甘特             

第五章 施工进度施工工期保证措施

本工程工期短,为确保按期完成本工程,特制订以下工期保证措施

一节  管理保证

1要对过程、进度计划、资源配备进行动态管理,为此网络管理软件进行控制

2做好各专业的协调与接口工作。

3加强与业主、监理单位的联系,同时积极主动与当地其他部门联系,及时解决施工中存在的问题及突发事件,施工过程中取得当地居民及有关部门的谅和支持,为施工创造一个良好、宽松的施工环境,确保施工生产的顺利进行。

4认真做好各项工序的协调工作,缩小工序搭接时间。

5制定工程施工进度主要管理程,做到有章可循

6采用微机技术加强调度管理,合理安排工序穿插和工期,建立主要形象进度控制点,运用网络计划跟踪技术和动态管理方法。坚持月平衡、周调度,确保总进度计划实施。为了充分利用施工空间、时间应用流水段均衡施工工艺,合理安排工序,在绝对保证安全质量的前提下,充分利用施工空间。

7对各专业分包实施严格的管理控制。各专业分包进场前必须根据项目部进度计划编制各专业施工进度计划报项目经理部,各分包必须参加项目工程部每日召开的生产例会,当日问题当天解决。如因专业分包延误影响总进度关键工期,项目部应要求其编制追赶计划并实施,否则对其处以罚款直至解除合同。

8严格各工序施工质量,确保一次验收合格,杜绝返工,以一次成优的良好施工质量获取工期的缩短。

9.工序管理,为最大限度的挖掘关键线路的潜力,各关键工序施工时间尽量压缩。

二节  施工计划管理

1.计划的编制

    根据以往同类工程施工经验和科学的施工组织及先进的计算机网络控制技术,制订了三级网络控制计划。即《施工总体网络计划》、《月、季度施工进度计划》、《周施工进度计划》。科学合理的施工计划是总承包和分包施工有了可靠的指路明灯,是保证总计划实现的关键性措施。

2.计划的执行与控制

建立例会制度:每月一次的工程总结会,做阶段性总结;每周一次的工程例会,安排检查月进度;日巡查会,检查作业进度。并做日报、周报和月报。控制保证计划的层层落实。

3.项目经理部根据总工期制定月完成工程量及工程部位,项目长根据月计划部位要求分包队伍完成指定的工程量及部位,每日检查完成部位情况,存在问题及时调整计划,保证月计划的实现。

4.对影响计划落实的材料,机具,劳动力及技术问题项目经理部要及时解决。

1)劳动力及施工机械化对工期的保证
1)为确保工期完成,我公司将选择专业素质高的施工队进场承担施工任务,该队来自我公司多年的固定劳务分包基地,施工人员相对固定不会因麦收或秋收影响施工。

2)为缩短工期、降低劳动强度我公司将最大限度的采用机械作业。如砼采用混凝土泵输送,各专业配备专用中、小型施工机具,这是完成计划的有利保证。

2)资金材料对工期的保证

我单位若中标,必将此工程列为重点工程,保证资金到位,确保工期目标的实现。

3)施工技术对工期的保证

1)积极推广应用新工艺、新材料,从科技含量上争取工期缩短,钢筋工程是占用工期总时间的主要工作程序,为缩短该工序施工时间采取如下技术措施:钢筋丝扣连接技术。同时采用先进的混凝土外加剂等

2)现场工程师协助施工队及时解决施工中出现的各种技术问题,做详细的施工方案和施工技术交底。与设计、业主随时沟通联系第一时间把问题解决。

良好的外围环境对工期的保证

1)积极主动和各级政府主管部门联系,为施工提供方便。

2)做细致的工作争取学校和居民的理解和支持,减少扰民和民扰,尽量延长工作时间。

季节性施工措施对工期的保证

该工程施工阶段跨越冬季和雨季,做好冬雨季施工是能否保证工期的关键,为此我们制订了完善的季节性施工措施。详见《雨季施工措施》。

第六章 主要施工机械、材料的进场计划

第一节  施工机械的进场计划

1、机械使用计划

根据现场实际情况配备相应的机械设备、仪器。施工机械及主要测量、试验仪器设备使用及具体设备数量和进场时间详见 主要施工机械设备

2、设备进场方法

1、小型施工设备、大型施工设备、所需的料具由汽车通过市区道路网及施工便道运至施工现场。

2、成立调遣工作领导小组,负责组织施工机械设备的进场。

3、机械设配置原则

根据本工程施工进度计划和各工序工程具体需要,合理地选用机械设备的品种和数量,在为每道工序配备施工机械时充分考虑到该部位的机械使用率和时间,作好各个工序间机械的穿插使用,充分发挥机械设备的使用率。

 

主要施工机械表

 

序号

机械或

设备名称

型号

规格

国别产地

制造

年份

额定功率

(kw)

生产

能力

所在地

1

塔吊

QTZ50

4

方圆

2004

40

良好

设备站

2

施工电梯

SC-D200

6

江苏

2001

9.5

良好

设备站

3

龙门架

JL15

2

山东

2001

8

良好

设备站

4

卷扬机

JL25

2

山东

2001

5.5

良好

设备站

5

卷扬机

5t

1

天津

2003

11

良好

设备站

6

挖掘机

小松

1

日本

1997

250

良好

机械站

7

自卸汽车

斯太尔

10

重庆

1998

168

良好

机械站

8

搅拌机

CKY100

1

天津

2000

60

良好

机械站

9

弯曲机

Φ40

4

合肥

1999

4.5

良好

公司

10

切断机

Φ40

2

太原

1999

55

良好

公司

11

平刨

 

2

天津

1999

 

良好

公司

12

压刨

 

2

天津

2000

 

良好

公司

13

电锯

 

2

天津

2000

 

良好

公司

14

振捣器

4-8m

16

天津

1999

 

良好

公司

15

振捣器

 

4

天津

1998

 

良好

公司

16

打夯机

 

 

天津

1999

 

良好

公司

17

潜水泵

QB-25

10

上海

1999

3.2

良好

公司

18

电焊机

BX300

4

济南

1998

300KVA

良好

公司

第二节  主要材料的进场计划

1材料供应安排

本工程所需的全部材料,均由单位按照招标文件要求的厂家进行采供,为确保本工程材料采购质量及供应保障,我单位采取以下几种形式进材料的采购供应。

1、由设备站进行市场调研,选择供货能力强、信誉等级较高的供应商邀请招标。

2、由项目经理部组成招标组进行物资招标从几家供应商中择优选择不少于2家供应商供料;

3、对中标的供应商,在供货过程中,仍要进行跟踪,如发现供货质量及供货料力有异常及时采取措施。

2材料质量检验

1、材料、物资控制程序

    材料、物资进入现场后,由项目经理部材料员负责验证,核对材料、物资的规格、型号、数量及标识,检查外观质量及运输过程中是否损坏,并验证随货的技术文件或产品合格证等,必要时通知项目技术负责人和项目质量检查员参加。

所有进场的材料、物资均应由经理部材料员做好进场验证记录,验证合格后办理验收单,并将进场材料、物资的有关质量证明资料,如产品合格证、出厂试验记录等,按技术资料要求整理后及时转交技术负责人。

本单位负责采购的材料,当需要或业主合同中有规定时,本单位采购人员应在物资供应商处对采购材料、物资进行验证,验证的安排及物资交付方法应在采购合同中明确。若物资在供应商处交付,验证时本单位项目经理部材料员必须参加,必要时项目技术负责人和项目质检员协助验证,项目经理部材料员负责记录和保存。

当合同规定由业主对公司采购物资进行验证时,业主或其代表可以在施工现场、物资供应商处对采购物资进行检验,但该检验不能代替本单位的验证,在供应商处也不能作为物资供应商对其质量进行了有效控制的依据。

验证中发现的不合格品按有关规定进行处理。

2、产品标识

进场物资由项目材料员作出标识,分为料牌和料卡两种形式。

对库存物资使用料卡加以标识,料卡应标明物资名称、规格、型号、物资分类和验证状态等内容。物资入库后,材料员应立即填写料卡并悬挂或粘贴在醒目位置。

露天存放的物资使用木制或铁制标牌加以标识,标牌应标明物资名称、规格、型号、物资分类和验证状态等内容。

3、进货检验和试验

按国家、行业或当地建设主管部门的规定,对必须试验的物资进行进货检验和试验。

材料员负责在材料进场后24小时内通知试验员,试验员按国家现行有关标准的规定取样,做好编号和标记、记录,及时同本企业试验室或当地经主管部门认可的其它试验室进行试验,按时取回试验报告移交项目技术负责人,并将试验结果及时通知材料员。

未经检验及经检验或验证为不合格的物资不得投入使用。

4、检验和试验状态。

所有物资进场后均应作出检验和试验状态的标识。检验和试验状态分为待验合格不合格三种。试验状态应标识在料卡(牌)上,随验证状态的变化而变换。

5、不合格物资的控制

进场物资经验证不合格后,不得用于工程,并由项目经理部材料员按下列程序进行控制:

立即作出不合格标识,区别存放,并做好记录,妥善保存验证记录和资料。

通知原采购人员尽快与供应商取得联系,商定退货等处理办法。

项目库存物资在贮存期间发现不合格后,应立即进行标识,区别存放,并报告项目经理,由项目经理作出决定,材料员负责实施。

分包商自行采购的物资出现不合格时,由分包商作出处理,不得用于工程。

因规格型号不符合而导致不合格时,应尽快与供应商协商,争取及时更换或退货。

不合格物资的处理记录由材料员负责保存。

业主提供的物资验证不合格时,除按规定做好标识和记录外,应及时通知业主,并与业主协商作出处理决定。处理决定应做好记录,除拒绝或报废外,形成书面文件,经业主签字(盖章)认可后方可执行。需要时处理决定的书面文件或复印件应提供给项目经理部其它有关人员。

第七章 基础施工方案或方法

第一节 1#—7#基础部分施工方案

工程1#—7#楼基础形式为独立承台基础,基础桩基建设单位已经施工完成。

施工工艺流程:

1、测量放线:

根据建设单位提供的水准点和导线点,在监理主持下进行交接桩工作,交接桩后立即进行校核。水准点采用精度的水准仪,在水准点校核后,立即进行加设临时水准点,沿道路每100米设置一个,水准点闭合差在12 (L以公里为单位)。

导线点和曲线控制点使用全站仪进行复测,在复测过程中设置平面控制网,控制点闭合差在±√n(n为测设点数)以内,坐标向对闭合差在±10000以内时可平均分配到各点,当偏差超过要求要及时向监理汇报,查找原因。

为了以后施工方便,在控制点合格后,在路面附近固定好位置拴桩,若难以找到适当的位置,要使用Φ8cm-Φ10cmd的木桩 或混凝土预制桩埋设,且顶面钉钉标记,用红油漆写明桩点代号。并定期对控制点及水准点进行校核。

根据控制点将图纸内容进行放样,并作栓桩处理,并报验监理工程师复测合格后,方可下道工序施工。

2.基槽开挖

1)开挖方法

本工程由于为独立基础,土方量小,因此采取明开法,另外由于基槽开挖只有2深,所以设排水沟结合集水井的方法排除少量的地下水。

2)基槽开挖宽度

下口按照垫层每侧预留30cm工作面,上口按照10.5放坡。

3)开挖方法

基槽开挖采用一台挖掘机挖掘,运行车运土,基槽四周不得放土;排水沟随着基槽开挖随做好。

开挖顺序为:一台挖掘机由建筑物基槽长向退出开挖。

槽底标高的控制:基础开挖前,在槽边设置临时水准点,根据此点标高利用水准仪和塔尺测出坑内控制桩桩顶标高,以次作为基槽槽底标高的控制点,采用水准仪跟测法测出其余各点标高。

3.基础结构施工

1)钢筋工程

原材料

本工程所使用的钢筋均为现场加工、安装,对每一种型号的钢筋进入现场后,必须有出厂合格证,经过有关单位进行拉力及冷弯试验,可焊性分析,复检合格后工地方可使用。钢筋表面应清洁无损伤,无污染,无铁锈,在使用前必须清除干部,钢筋应按施工顺序配套加工,每种规格的钢筋必须挂牌标注,堆放整齐。工程中使用的成品钢筋型号、直径、形状、尺寸、数量必须和施工图、料单相符。钢筋按施工图放样并制作后,分规格、型号、部位码放,并书写标志牌。
②钢筋的制作:
    钢筋的制作在现场钢筋制作棚内进行,盘圆钢筋采用卷扬机拉直,钢筋卡头要卡牢,地锚要结实牢固,拉筋时,沿线2m内不得有人通行。制作场地平整,工作台搭牢固,严格按下料单下料,制作好的半成品按品种规格分类码放整齐并挂牌。箍筋要弯成135°弯勾,且平直部分长度不少于10d。

③钢筋的焊接:

钢筋焊接采用搭接双面焊,焊接接头不小于5d,所有焊接件经抽样送检合格后才能用于该工程,焊接接头应相互错开。

④钢筋绑扎

基础钢筋:基坑验槽合格后以免扰动土体,立即浇筑C10混凝土垫层。垫层达到一定强度后,清理垫层后在其上表面弹放墨线标示出钢筋位置。双向主筋的钢筋网,需将全部钢筋相交处扎牢。相邻绑扎点的钢丝扣成八字形,以免网片歪斜变形。

柱钢筋:首先立起柱主筋,主筋底部弯起部分与基础钢筋绑扎牢固。在立好的柱子竖向钢筋上,按照图纸要求用粉笔画出的箍筋间距线。按已画好的箍筋位置线,将已套好的箍筋往上移动,由上往下绑扎,钢丝扣形式为缠扣。箍筋与主筋要垂直,箍筋转角处与主筋交点均要绑扎,非转角部分的相交点成梅花交错绑扎。箍筋的弯钩叠合处应沿柱子竖筋交错布置。

2)模板工程

本次工程全部采用竹胶合板

① 模板组拼

模板组拼前,应先进行模板放样,模板施工中应按放样图施工,以保证拼装后板缝严密。技术人员应现场监督,以便随时解决放样图与实际不符处。

②模板安装

a.模板安装前应弹出模板就位线,并钢筋做好高程控制点。

b.模板安装前板面清理干净,检查几何尺寸是否准确,均匀,涂刷好脱模剂。

c.模板安装应放好内模后,才能安放外模。模板组装顺序为先内模、后外模,模板拼装后,对拉螺栓每m2设置1个,紧固对拉螺栓,调整垂直度,固定。

模板拆除

   管涵内模模板待混凝土强度达到75%以后,方可拆除。预留孔洞的内模,在混凝土强度能保证构件和空洞表面不发生坍塌和裂缝时拆除。

3)混凝土工程

①材料

本次工程所采用混凝土全部为商品砼。

②浇筑与振捣

a.本砼工程分为两次进行浇筑:第一次浇筑至独立基础上皮处,第二浇筑部位为基础柱。基础砼:为保证柱子插筋位置准确,先满铺一层5-10cm厚的混凝土并捣实,然后在对称浇筑。应保证锥体斜面坡度要求,斜面部分的模板应随混凝土浇捣分段支设并顶压紧,以防止模板上浮变形,边角处的混凝土必须捣实,人工将斜坡拍平。基础上部柱后施工,基础上部水平面留设施工缝。柱砼:柱子砼应一次浇筑完毕,采用分层连续进行,厚度不超过50cm砼的振捣采用插入式振捣器振捣,振捣棒插入时应避开钢筋和模板,振捣点间距不应超过其作用半径的1.5倍,插入下层砼5~10cm,每一处振动完毕应边振边徐徐提出。密实的状态是砼停止下沉,不再出气泡,表面呈现平坦、泛浆。

b.施工缝的处理

后浇时将连接处混凝土凿毛清洗,浇筑混凝土前先用同等级的水泥砂浆薄铺摊

平,厚度在10mm-15mm灌入第一层混凝土时应轻倒,避免砂浆挤散形成蜂窝。

除时如发现接缝处不平,先清平后,在施工缝上下20cm内用环氧沥青漆三度涂

外层

c.养护

砼浇筑成型后12h以内及时养护,砼外露面一般采用覆盖并定时浇水湿润。混凝土养护时间不少于7d。养护用水与混凝拌制用水相同。
4.基础砖墙

砌筑材料为MU10烧结页岩砖,砌筑砂浆强度为M10。砌筑厚度为240mm。砌筑形式为三顺一丁。

1        砌筑前,应将砌筑部位清理干净,放出墙身中心线及边线,并浇水湿润。

2        在砖墙的转角处及交接处立皮数杆,之间拉线,依准线逐皮砌筑。

3        砌砖操作方法可采用“三一”砌法,即“一铲灰、一块砖、一挤揉”。

4        砖墙水平灰缝和竖向灰缝宽度为8-12mm。水平灰缝的砂浆饱满度不得小于80%,竖缝采用挤浆方法,不得出现透明缝,严禁用水冲浆灌缝。

5        钢筋混凝土构造柱截面形式为200mm*200mm,砼等级为C20。竖向受力钢筋为4根,直径为12mm。箍筋采用直径6mm,全部为Ⅰ级钢筋,间距为200mm

6        砖墙与构造柱应沿墙高每隔500mm设置2根直径6mm水平拉结钢筋,拉结钢筋两边伸入墙内不应少于1m

7        构造柱模板宜用组合钢模板。浇筑混凝土前必须将砖墙浇水湿润并清理干净。

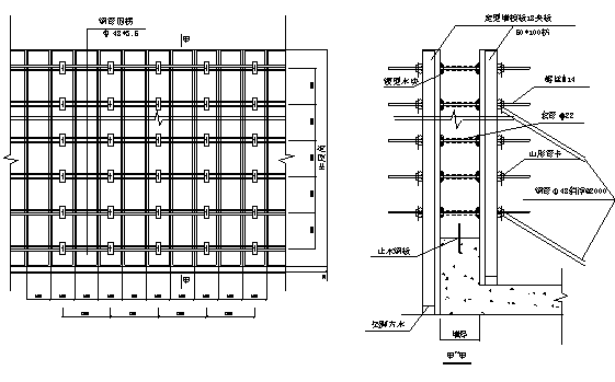
第二节 8#楼地下室施工方案

本工程8#综合楼为地下一层、地上三层钢筋混凝土框架结构。基底最大深度为5.6m

一、基坑降水

本工程计划采用大口井结合排水沟加集水井的方法降水在基坑周围布置大口井,井深10m,同时基坑顶及基坑底均做排水沟及集水井,排水沟为300mm×300mm,红砖M5砂浆砌筑。

二、基坑围护

    本工程基坑深为5.6m,基坑较浅,我公司决定采用先放破开挖2m深土,再打设钢板桩进行支护的方案,钢板桩采用40b工字钢桩,桩长9m,间距1m,入土深度约6m

基坑支护平面图如下:

 

 

三、土方开挖

工艺流程:确定开挖顺序分段分层平均下挖清底

根据本工程特点和现场条件,土方采用机械开挖,采用1m3挖掘机开挖,第一步挖方按11进行放坡,挖深至坑底300mm厚由时停止机械挖土,余土用人工挖除。在挖土过程中,测量员要随挖随测标高,以免超挖。

土方调配,土方除留足符合回填要求的量外,其余用自卸车运至甲方指定地点集中堆放。

四、地下室底板混凝土施工

1、混凝土浇筑以一台混凝土输送泵向地下室输送为主,塔吊配合吊运,采用商品混凝土供料。

2、采用分段连续浇筑的方法,混凝土输送泵各自的浇筑方向如混凝土浇筑方法示意图所示。混凝土浇注的顺序按分段图至下而上浇注。

底板钢筋支撑图

3、混凝土浇筑前准确掌握天气情况,避开雨天,浇筑混凝土前需设置马凳及人行通道和操作平台,严禁直接踩踏钢筋,通道谁打谁拆,浇注混凝土时,模板、支撑、钢筋、预埋、预留应设专人值班,如有位移、变形应及时处理,确保混凝土质量。

4、浇筑混凝土底板时,应采用“分段分层、斜面浇筑、一个坡度、薄层浇捣、循序推进、一次到顶”的方式,见地下室底板混凝土浇注方法示意图。这种混凝土自然流淌形成斜坡的浇筑方法,避免了输送管经常拆卸、冲洗、接长,从而提高了泵送混凝土效率,对上下层混凝土间隙时间不超过1.5小时起到保证作用。根据混凝土自然形成一个坡度的实际情况,在每个浇筑带的前、后布置两道振动器,前一道布置在卸料点,主要解决上部混凝土的捣实;后一道布置在混凝土坡脚处确保下部混凝土的密实。随着混凝土浇筑的推进,振动器也相应的跟进,以确保整个高度混凝土的质量。如图所示。

5、在后浇带处浇筑混凝土时,应先于施工缝表面抹水泥砂浆一层。混凝土要避免直接靠近施工缝下料,机械振捣时,向施工缝处逐渐推进,加强对施工缝接缝处的捣实,使其紧密结合。

6、混凝土浇筑时表面泌水采用真空吸水,若发现表面泌水过多,应及时调整水灰比,混凝土浇至顶端时的泌水排除。

7、由底板面积大、表面会出现较厚的浆层,为保证板面平整度及防止表面出现微细裂缝,在混凝土浇筑结束后,要认真处理,经2~4小时左右,初步按标高用长刮尺刮平,初凝前用铁滚筒碾压数遍,再用木抹子收平压实,以闭合收水裂缝,约12小时后,覆盖麻袋,充分浇水湿润养护。

 

地下室混凝土浇筑方法示意图

五、地下室墙柱

地下室内墙、柱施工采取一次成型,但外墙需分二次成型,第一次成型为墙体下部500mm与底板起施工,第二次成型为施工至顶部暗梁底;内墙及内柱由地下室底板至顶部梁底一次成型。

(一)墙柱钢筋

1、墙、柱钢筋在独立基础(底板)定位应定位准确,并加水平箍筋两道定位,以免浇注混凝土时引起竖向钢筋地移位。

2、墙、柱钢筋一次搭接至地下室顶板面,外墙搭接口设在底板面上500mm处,内墙及柱搭接口设在地下室底板面。墙柱钢筋搭接口按50%错开,竖向钢筋接头采用电渣压力焊。

3、由于墙、柱钢筋较高,故在钢筋绑扎时需搭设好钢管柱架。

.在底板混凝土上弹出墙身门洞口位置互,再次校正预埋插筋,如有位移时,按洽商规定认真处理。墙模板宜采用“跳间支模”,以利于钢筋施工。

.先绑2~4根竖筋,度画好横筋分档标志,然后在下部及齐胸绑两根筋定位,并画好竖筋分档标志。一般情况横筋在外,竖筋在里,所以先绑竖筋后绑横筋。横竖筋的间距及位置应符合设计要求。

.墙筋为双向受力钢筋,所有钢筋交叉点应逐点绑扎,其搭接长度及位置要符合设计图纸及施工规范的要求。

.双排钢筋之间应绑间距支撑或拉筋,以固定钢筋间距。支撑或拉筋可用Φ8钢筋制作,间距600mm左右,以保证双排钢筋之间的距离。

.在墙筋外侧应绑上带有铁丝的砂浆垫块,以保证保护层的厚度。

.为保证门窗洞口标高位置正确,在洞口竖筋上划出标高线。门窗洞口要按设计要求绑扎过梁钢筋,错入墙内长度要符合设计要求。

.各连接点的抗震构造钢筋及锚固长度,均应按计要求进行绑扎。如首层柱的纵向受力钢筋伸入地下室墙体深度;墙端部、内外墙交处受力钢筋锚固长度等,绑扎时应注意。

.配合其他工种安装预埋管件、预留洞口等,其位置,标高均应符合设计要求。

(二)地下室墙模板

1、墙体模板采用胶合板、方木、钢管及螺栓组合成模板体系。

2、地下室外墙的施工缝留两道,底根部留在距底板500mm上,地下室一层楼板面+0.5m处。

地下室外墙模板图

(三)柱模板

柱模板采用胶合板、方木、钢管及螺栓组合成模板体系。

 

 

 

 

 

柱模板图

(四)墙、柱砼浇注

1、浇筑墙柱混凝土,不允许整吊车或泵管直接输入模内,必须过槽再用人工铲入。对混凝土墙不能一边倒,浇注必须四周均匀,特别是电梯井筒更应注意,为的是避免因浇注高度不均而造成侧移变形。

2、振捣混凝土时力求做到“快插慢拔”,插入式振动棒的移动间距不大于其作用半径的1.5倍,并插入到下层已振捣的混凝土深度不少于50mm,不得有漏振,超振泛浆产生离析现象,对塑性大的泵送混凝土尤其更应注意。

3、混凝土的浇灌速度应控制在1.5m/小时内,并在浇灌过程中模板工要随班检查模板的情况。

六、地下室顶板

(一)地下室顶板楼板模板施工

1、施工准备

(1)材料与主要机具:

. 模板采用木模板,也可采用钢木组合,可增加木模板的刚度及便于连接。

.支架系统:

a、WDJ碗扣式满堂架。

b、模板配料:L50×5角铁、10×10方木、7.5×10方木、铁钉等。

c、主要机具:锤、斧、锯、电钻、水平尺、撬棍等。

(2)作业条件:

①模板及支架系统设计:根据工程结构类型和特点,确定流水段划分;确定模壳的平面布置,纵横木楞的规格、数量和排列尺寸;确定模板与次木楞及其它结构构件的连接方式。同时确定模壳支架系统的组合方式。验算模壳和支架的强度、刚度及稳定性。(详见第三章第二节 模板工程)

.柱(角筒)、楼是梯墙及剪力墙的混凝土强度已达到设计或施工规范要求的再施强度。

.楼面的轴线、水准标高引测到墙、柱上,并办完预检手续。

2、模板安装的操作工艺

(1)工艺流程:

安装支架→安装主次木楞→调整密肋梁底标高及起拱→安装模壳→质量检验。

(2)支架系统采用钢筋满堂架,采用18mm厚胶合模板制模。由顶架按梁及板模板设计尺寸进行支模,并在施工中执行模板施工规范。凡设计高度超过3.5m时,每隔2m高度应用直角扣件与钢支柱拉接,并与结构柱连接牢靠。

(3)顶托粗调标高后,安装10cm×10cm主木楞,其间距大约为60~120cm。之后在主木楞上安装75cm×10cm次木楞,其间距为40~60cm。次木楞的间距要根据密肋的间距确定。次木楞的两侧安装L50×5的角铁(可预装)。安装次木楞前要在主木楞上放出模板的边线,即准确地放出密肋的位置线,以使次木楞(即密肋)轴线位置准确。

(4)次木楞安装完毕后,要认真调整顶托升降,使次木楞顶面符合设计标高(即密肋底标高符合设计要求)。并根据设计要设要求起拱。设计无要求时,起拱高度为全跨长度的1/1000~3/1000。

(5)按模板分项工程质量评定标准逐项检查模壳模板。检查的重点放在模壳自身刚度的保证措施和连接节点的严密性。办理预检。

3、模板拆除的操作工艺

(1)操作工艺流程:

拆除梁侧模→拆梁底模→拆除板底模→拆除支架。

(2)模板拆除时,混凝土的强度必须达到10MPa。先将支撑角钢拆除,然后用小撬起相对两侧面中点,模壳即可拆下。密肋梁较高时,模壳不易拆除,可采用气动拆模工艺。

拆模不可用力过猛,不乱扔乱撬,要轻拿轻放,防止损坏。

(3)拆除支架:混凝土的强度必须达到规定的拆模强度,才允许拆除支架。

4、质量标准

(1)保证项目:楼板及其支架必须有足够的强度、刚度和稳定性;其支架的支撑部分必须有足够的支撑面积。如安装在基土上,基土必须坚实,并有排水措施。对湿陷性黄土,必须有防水措施;对冻胀性上,必须有防冻融措施。

检查方法:对照模板设计,现场观察或尺量检查。

(2)基本项目:

.模板接缝宽度不得大于1.5mm

检查方法:观察和用楔形塞尺检查。

.模板接触面清理干净,并采取隔离措施。梁的模板上粘浆和漏刷离剂累计面积应大于400cm2

检查方法:观察和尺量检查。

(3)允许偏差项目见下表:

项  目

允许偏差(mm)

检查方法

单层、多层

高层框架

梁轴线位移

5

3

尺量检查

梁板截面尺寸

+4

-5

+2

-5

尺量检查

标高

±5

+2

-5

用水准仪或拉线和尺量检查

相邻两板表面高低差

2

2

用直线或尺量检查

表面平整度

5

5

2m靠尺和塞尺检查

预留钢板中心线位移

3

3

尺量检查

预留管、预留孔中心线位线

3

3

尺量检查

 

5、成品保护

(1)在层高1/2处左右的支架系统的水平栏杆上宜固定一层水平安全网,用于防止人员坠落,同时,拆模板时,拆模板 时,使之坠入安全网,保护模板。

(2)拆除模板壳要用小撬棍,以木楞为支点,先撬模板相对两侧邦中点,模板权动后,依然以木楞为支点,撬模板底脚的内肋,轻问下撬掉模板。切忌硬撬或用铁锤硬砸,也不能使用大撬棍以肋梁混凝土为支点进行撬动,以保护模板和密肋混凝土。

(3)吊运模板、木钢楞、或钢筋时,不得碰撞已安装好的模板,以防模板变形。

(4)要严格遵循混凝土强度达到10MPa时方可拆模板;混凝土强度达到7.5%,肋跨<8m时,可拆除支柱;但肋跨>8m时,混凝土强度必须达100%可方拆除支柱。

6、应注意的质量问题

(1)密肋梁侧面胀出,梁身不顺直,梁底不平:防治的方法是,模板支架系统应有足够的强度、刚度和稳定;支柱底脚应垫通长脚手板,并应支撑在竖实的地面上;模板下端和侧面应设水平和侧向支撑,以补足模板的刚度;密肋梁底楞应按设计和施工规范起拱;支撑角钢与次楞弹平线安装,并销固牢靠。

(2)单向密肋板底部局部下挠;防治的方法是,模板安装应由跨中向两边安装,以减少模板搭接长度的累计误差。安装后要认真调整模板搭接长度,使其不得小于10cm,以保证接口处的刚度。

(3)密肋梁轴线位移,两端边肋不等:防治的方法是,主楞安装调平后,要放出次楞边线再安装次楞,并进行找方校核。安装次楞要严格跟线,并与主楞连接牢靠。

(4)模板安装不严密:这是模板加工的负公差所致。认真检查模板安装缝隙,钉塑料条或橡胶条补严。

(二)顶板钢筋绑扎与安装工程

1、施工准备

(1)材料及主要机具

①.钢筋:应有出厂合格证,按规定用力学性能复试。当加要过程中发生脆断等特殊情况,还需作化学成分检验。钢筋应无老狙及油污。

.铁丝:可采用20~22 号铁丝(火烧丝)或镀锌铁丝(铅丝)。铁丝的切断长度满使用要求。

③.控制混凝土保护层用砂浆垫块、塑料卡、各种挂钩或撑杆等。

④.工具:钢筋钩子、板子、绑扎架、钢丝刷子、手推车、粉笔、尺子等。

(2)作业条件

①.按施工现场平面图规定的位置,将钢筋堆放场地进行清理、平整。准备好垫木,按钢筋绑扎顺序分类堆放,并将锈蚀进行清理。

②.核对钢筋的级别,型号、形状、尺寸及数量是否与设计图纸及加工配料单相同。

③.当施工现场地下水位较高时,必须有排水及降水措施。

④.熟悉图纸,确定钢筋穿插就位顺序,并与有关工种作好配合工作,如支模、管线、防水施工与绑扎钢筋的关系,确定施工方法,作好技术交底工作。

⑤.根据地下室防施工方案(采用内贴法或外贴施工),底板钢筋绑扎前做完底板下防水层及保护层;支完底板四周模板(或砌完保护墙,做好防水层)。当地下室外墙防水采用内贴法施工时,在绑扎墙体钢筋之前砌完保护墙,做好防水层及保护层。

2、操作工艺

(1)工艺流程

划钢筋位置线→运钢筋到使用部位→绑底板及梁钢筋→绑墙钢筋。

(2)划钢筋位置线:按图纸标明的钢筋间距,算出底实际需用钢筋根据数,一般让靠近底板模板边的那根据钢筋离模板边为5cm,在底板上弹出钢筋位置线(包括基础梁钢筋位置线)。

3、质量标准

(1)保证项目

①.钢筋的品种和质量、焊条、焊剂的牌号、性能及使用的钢板,必须符合设计要求和有关标准的规定。进口钢筋焊接前,必须进行化学成分检验和焊接试验,符合有关规定后方可焊接。

.钢筋表面必须清洁,带有颗粒状或片状老锈,经、除锈后仍有麻点的钢筋,严禁按原规格使用。

.钢筋的规格、形状、尺寸、数量、间距、锚固长度、接头设置,必须符合设计要求和施工规范的规定。

.焊接接头机械性能,必须符合钢筋焊接规范的专门规定。

(2)基本项目

.绑扎钢筋的缺扣、松扣数量不得超过绑扣数的10%,且不应集中。

.弯钩的朝向应正确,绑扎接头应符合施工规范的规定,搭接长度不小于规定值。

.有I级钢筋制作的箍筋,其数量应符合设计要求,弯钩角度和平直度不小于规定值。

.对焊接头无横向裂纺和烧伤,焊包均匀。接头处弯折不得大于4。,接头处钢筋轴线的偏移不得大于0.1d,且不大于2mm

.电弧焊接头缝表面平整,无凹陷、焊瘤,接头处无裂纹、气孔、渣及咬边。接接头尺寸允许偏差不得超过以下规定:

a、绑条沿接头中心的纵向位移 不大于0.5d,接头处弯折不大于4。。

b、接头处钢筋轴线的偏移不大于01d,且不大于3mm

c、焊缝厚度不小于0.05d;

d、焊缝宽度不小于0.1d;

e、焊缝长度不小于0.05d;

f、接头处弯折不大于4。。

(3)允许偏差项目,见下表:

钢筋安装及预埋件位置的允许偏差值

项次

项目

允许偏差

(mm)

检验方法

1

网眼尺寸

焊接

±10

尺量连续三档,取其最大值

绑扎

±20

2

骨架宽、高度

 

±5

尺量检查

3

骨架长度

 

±10

4

箍筋、构造筋间距

焊接

±10

尺量连续三档,取其最大值

绑扎

±20

5

受力钢筋

间距

±10

尺量两端、中间各一点,取其最大值

排距

±5

6

钢筋弯起点位移

 

20

 

7

焊接预埋件

中心线位移

5

尺量检查

水平高差

+3

-0

8

受力钢筋保护层

基础

±10

尺量检查

梁、柱

±5

墙、板

±3

 

4、成品保护

(1)成型钢筋应按指定地点堆放,有垫木放整齐,防止钢筋变形、锈蚀、油污。

(2)绑扎墙筋时应搭临时架子,不准蹬踩钢筋。

(3)妥善保护基础四周外露的防水层,以免被钢筋碰破。

(4)底板上、下层钢筋绑扎时,支撑马凳要绑牢固,防止操作时踩变形。

(5)严禁随意割断钢筋。

5、应注意的质量问题

(1)墙、柱预埋钢筋位移:墙、柱主筋的插筋与底板上、下筋要固定绑扎牢固,确保位置准确。必要时可附加钢筋电焊焊牢,混凝土浇筑前应有专人检查修整。

(2)露筋:墙、柱钢筋每隔1m左右加绑带铁丝的水泥砂浆垫块(或塑料卡)。

(3)搭接长度不够:绑扎时应对每个接头进行尺量,检查搭接长度是否设计和规范要求。

(4)钢筋接头位置错误:梁、柱、墙钢筋接头较多时,翻样配料加工时,应根据图纸预先画出施工翻样图,注明各号钢筋搭配顺序,并避开受力钢筋的最大弯矩处。

(5)绑扎接头与对焊接头未错开:经对焊加工下料时,凡现场进行绑扎时,对焊接头要错开搭接位置。因此加工下料时,凡距钢筋端头搭接长度范围以内不得有对焊接头。

6、质量记录

本工艺标准应具备以下质量记录:

(1)钢筋出厂质量证明书或检验报告单。

(2)钢筋力学性能复试报告。

(3)进口钢筋应有化学成分检验报告和可焊性试验报告。国产钢筋在加工过程中发生脆断、焊接性能不良和力性能显著不正常时,应有化学成分检验报告。

(4)钢筋焊接接头试验报告。

(5)焊条、焊剂出厂合格证。

(6)钢筋分项工程质量检验评定资料。

(7)钢筋分项隐蔽工程验收记录。

(三)顶板混凝土浇注

1、作业准备:浇筑前应将模板内的垃圾、泥土等杂物及钢筋上的油污清除干净,并检查钢筋的水泥砂浆垫块是否垫好。如使用木模板时应浇水使模板湿润。柱子模板的扫除口应在清除杂物及积水后再封闭。剪力墙根部松散混凝土已剔掉清净。

2、泵送混凝土时必须保证混凝土泵连续工作,如果发生故障,停歇时间超过45min或混凝土出现离析现象,应立即有压力水事其他方法冲冼管内残留的混凝土。

3、混凝土浇筑与振捣的一般要求:

(1)浇筑混凝土时应分段分层连续进行,浇筑层高度应根据结构特点、钢筋疏筋密决定,一般不振捣器作用部分长度的1.25倍,最大不超过50cm

(2)使用插入式振捣器应快插慢拨,插点要均匀排列,逐点移动,顺序进行,不得遗漏,做到均匀振实。移动间距不大于振捣作用半径的1.5倍(一般为30~40cm)。振捣上一层时应插入下层5cm,以消除两层间的接缝。表面振动器(或称平板振动器)的移动间距,应保证振动器的平板覆盖已振实部分的边缘。

(3)浇筑混凝土应连续进行。如必须间歇,其间歇时间应尽量缩短,并应在前层混凝土凝结之前,将次层混凝土浇筑完毕,间歇的最长时间应按所用水泥品种、气温及混凝土凝结条件确定,一般超过2h应按施工缝处理。

(4)浇筑混凝土时应经常观察模板、钢筋、预留孔洞、预埋件和插筋等无移动、变形或堵塞情况,发现问题应立即处理,并应已浇筑的混凝土凝结前修正完好。

(四)拆模板

由于对水泥混凝土的养护要求较严,因此不宜过早拆模。拆模时防水混凝土的强度必须超过设计强度等级的70%,混凝土表面温度与环境温度之差,不得超过15℃,以防混凝土表面产生裂缝。拆模时应注意勿使模板和防水混凝土结构受损。

第八章 基础质量保证措施

1.在正式挖槽前,认真对槽线进行放样,确保施工放线的正确。

2.在进行挖槽施工中,设专人控制槽底标高,禁止超挖现象的发生。挖槽前,将水准控制点引至施工现场附近,并做到经常复核。

3.由于施工处在雨季,雨后立即将基坑内的水排出。并采取措施,缩短施工工期,尽快结束基础施工。

4.在进行基础混凝土工程中,严格控制进场材料的质量;控制钢筋下料、绑扎的准确;控制模板支设牢固;控制混凝土的配比、施工中的振捣以及施工后的养护,防止蜂窝、麻面的出现。

第九章 地下管线及其它地上地下设施的加固措施

施工范围内地下管线处理原则: 在施工前,我单位会同建设单位、产权管理单位对所施工现场范围内的地上、地下管线采取有效措施进行保护。须改移的管线应按规划管线综合部门确定的路由就位。

1.地下管线保护方法及措施

    根据制造材料、接口构造、管节长度等不同情况,地下管线大致可分为刚性管线和柔性管线两种。对于刚性管线,当地层移动时,主要考虑是否引起管道的断裂破坏;对于柔性管线,地层移动造成的影响主要是管线接头的断裂破坏。因此,在施工前,必须会同建设单位、产权管理单位详细查清现场施工影响范围内的各种地下管线的情况,并在施工中加强监测。针对不同的管线,在施工过程中将采取拆迁、支吊和原位保护三种保护方案。

2.管线的原位保护

3.加强管线位移的监控量测,采取措施控制管线位移在容许值内。

4.根据监测结果调整施工方案,减少施工和降水对周围环境的影响,控制基坑周边土体位移,确保管线安全。

5.所有地下管线采用支托加固的方法加以保护。

1) 基坑管线选调必须事先设计,其支撑结构强度、刚度、稳定性等应进行验算,确保其稳定可靠。支托及支托横梁的间距应根据不同管道的情况进行结构可靠性验算后布设。

2) 要安排专人对防护管道进行施工全过程监护,当发生变形、渗漏时,及时采用措施进行加固,以确保管道的安全使用及施工。

6.地上设施、周围建筑物的保护措施

1)进场前,积极配合业主和监理工程师做好施工用地及场区范围内必须保存的树木、广告牌、管线、建筑物、构筑物的移交工作,并签署移交文件,采用量、测、拍照、录像等手段做好原始记录。

2).监理责任制,将地面设施、建筑物的保护落实到人。

3).虽然施工方案中已考虑到了对建筑物的保护,施工中还应加强建筑物的监控量测,以掌握建筑物动态的沉降信息,及时调整施工方案,减小施工和降水对周围环境的影响,控制基坑土体位移,控制对建筑物的不利沉降。

4).对树木、路牌、广告牌、电线杆等设立围挡并挂牌,安设夜间亮光标志,确保其不被碰撞。

5).对树木、花草等按期浇水,广告牌、指路牌、电线杆等要及时清洁。

6).保持人行道的平整,对施工损坏的地面砖要及时更换。

第十章 主体结构施工方案

节  模板工程

本工程梁、柱、板模板采用竹胶合模板。配制数量按两层结构模板面积配制,其支撑系统亦按此原则配制。

、柱模板

柱模板安装工艺:搭设安装架子第一层模板安装就位检查对角线、垂直和位置安装柱箍第二、三层柱模板及柱箍安装安有梁口的柱模板全面检查校正群体固定。

    柱模板施工要点:

先将柱子第一层上面模板就位组拼好,每面带一阴角模或连接角模,用U形卡反正交替连接。使模板四面按给定柱截面线就位,并使之垂直,对角线相等。

以第一层模板为基准,以同样方法组拼第二、三层,直至到带梁口柱模板。用U形卡对竖向、水平接缝反正交替连接。在适当高度进行支撑和拉结,以防倾倒。

对模板的轴线位移、垂直偏差、对角线、扭向等全面校正,并安装定型斜撑。检查安装质量,最后进行群体的水平拉(支)杆及剪力支杆的固定。最后将柱根模板内清理干净,封闭清理口。

.、梁的模板

梁模板安装工艺:弹出梁轴线及水平线并复核搭设梁模支架安装梁底楞或梁卡具安装梁底模板梁底起拱绑扎钢筋安装侧梁模安装另一侧梁模安装上下锁口楞斜撑楞及腰楞和对拉螺栓复核梁模尺寸位置与相邻模板连固。梁模板安装施工要点:

    在柱子砼上弹出梁的轴线及水平线(梁底标高引测用),并复核。安装梁模板支架之前,支架基层必须坚实可靠,在专用支柱下脚要铺设通长脚手板,并且楼层间的上下支座应在一条直线上。支柱一般采用双排(设计定),间距以60-100cm为宜。支柱上连固10cm×10cm木楞(或定型钢楞)或梁卡具。支柱中间和下方加横杆或斜杆,立杆加可调底座。

在支柱上调整预留梁底模板的厚度,符合设计要求后,拉线安装梁底模板与底板连接角模用U形卡连接。用梁卡具或安装上下锁口楞及外竖楞,附以斜撑,其间距一般宜为75cm

当梁高超60cm时,需加腰楞,并穿对螺栓(或穿墙螺栓)加固。侧梁模上口要拉线找直,用定型夹子固定。

复核检查梁模尺寸,与相邻梁柱模板连接固定。有楼板模板时,在梁上连接阴角模,与板模拼接固定。

梁的模板支设方法如下图:

 

三、板的模板

.    楼板清水模板安装工艺:搭设支架安装横纵钢(木)楞调整楼板下皮标高及起拱铺设模板块检查模板上皮标高、平整度。

楼板清水模板安装工艺施工要点:

支架搭设前其支架基础同样必须坚实可靠,支架的支柱(可用早拆翼托支柱从边跨一侧开始,依次逐排安装,同时安装钢(木)楞及横拉杆,其间距按模板设计的规定。一般情况下支柱间距为80-120cm,钢(木)楞间距为60-120cm,需要装双层钢(木)楞时,上层钢(木)楞间距一般为40-60cm

支架搭设完毕后,要认真检查板下钢(木)楞与支柱连接及支架安装的牢固与稳定,根据给定的水平线,认真调节支模翼托的高度,将钢(木)楞找平。

铺设定型组合钢框竹(木)模板块:先用阴角模与墙模或梁模连接,然后向跨中铺设平模。相邻两块模板用U形卡满安装连接。U形卡紧方向应反正相间,并用一定数量的钩头螺栓(或按设计)与钢楞连接。亦可用U形卡预组拼单元片模再铺设,以减少仰面,在板面下作业。最后对于不够整模数的模板和窄条缝,采用拼缝模或木方嵌补,但拼缝应严密。

平模铺设完毕后,用靠尺、塞尺和水平仪检查平整度与楼板底标高,并进行校正。

板的支设方法如下图

四、楼梯支设

楼梯支设方法图如下

五、模板支设技术措施

1.节点处理

为防止出现肥梁胖柱的现象,梁、柱节点处先支柱摸进行加固,再支模,特别是外墙梁柱节点拆模时柱模保留,以保证构造柱节点不漏浆。

板模板:梁采用定型组合竹胶合快拆模板系统作为板的模板。在支设板模板时,板跨超过4.2M时中起拱3L起拱。支柱与梁模板交接处,本着板模不压梁侧模,不压柱侧模的原则,防止模

形。

六、模板的拆除

竖向构件的模板拆除以砼棱角达到不被损坏的强度为最短拆除时间,梁板等水平构件必须等砼强度达到70%设计强度时方可拆模,悬挑结构必须等其砼强度达到设计强度100%时方可拆模。砼强度按现场同条件养护试块的强度控制。拆除模板必须按拆除顺序进行,即后支的先拆,先支的后拆;先拆非承重,后拆承重部分。拆下来的模板须进行清理和保养,以提高其周转率。

七、模板质量标准

 

               

序号

                       

允许偏差mm

 

外形尺寸

长和宽

0、-1

肋高

±3

2

1

3

板面局部不平(用300mm长平尺检查)

1

4

板面平整度(用2m长靠尺检查)

2

5

板面和板侧挠度

±1

  钢筋工程

本项结构工程的钢筋为:级热轧光圆钢筋、 级热轧带肋钢筋。为确保钢筋工程质量,钢筋工程的施工按下列要求及规定操作。

1 钢筋材料的要求

带肋钢筋应符合《钢筋混凝土用热扎带肋钢筋》(GB1499-98)的规定,光圆钢筋应符合《钢筋混凝土用热扎光圆钢筋》(GB13013-1991)的规定。钢筋的主要技术要求见表9-1

钢筋主要机械性能(GB1499-1998

9-1

牌号

HRB335

HRB400

HRB500

直径

625

2850

625

2850

625

2850

最小屈服强度(Mpa

335

400

500

最小抗拉强度(Mpa

490

570

630

延伸率б5(%)

16

14

12

180冷弯弯芯直径

3d

4d

4d

5d

6d

7d

2 钢筋的检验

检验以前,每批钢筋应具有易识别的标签。标签上标明制造商试验号及批号,或者其他识别该批钢筋的证明。

3 钢筋的试验

所有钢筋的试验必须在监理工程师同意的试验室进行。提供钢筋时应有工厂质量保证书(或检验合格证),否则不得使用于工程中,当钢筋直径超过12mm时,应进行机械性能及可焊性能试验。

4 钢筋的存储、加工与安装

1) 钢筋的保护及储存

1 钢筋应储存于地面以上0.5m的平台垫木或其它支撑上,并使其不受机械损伤和由于暴露于大气而产生锈蚀和表面破损。

2 钢筋当安装于桥梁工程时,钢筋应无灰尘、有害的锈蚀、松散的锈皮、油漆、油脂、油或其它杂质。

3 应无有害缺陷,例如裂纹及剥离层。

2) 钢筋的调直             

盘筋和弯曲的钢筋,采用冷拉的方法调直。

3) 钢筋的截断及弯曲

1 所有钢筋的截断及弯曲工作均在钢筋加工厂内进行。

2 所有钢筋由主管钢筋负责人抽筋放样后,由操作人员按图纸所示的形状进行弯曲

4) 钢筋的安装、支撑及固定

1 所有钢筋均应准确安设,用支撑将钢筋牢固地固定,钢筋应可靠地联系在一起。

2 本工程用于保证钢筋固定于正确位置的垫块拟采用多凸形水泥垫块。不得用碎石、碎砖、金属管及木块等作为钢筋的垫块。

3 钢筋垫块的间距在横纵向均不得大于1.2m。桥面板混凝土的钢筋安设按照图所示,在竖向的间距偏差不大于5mm

5 钢筋工作完成后,须经监理工程师检查认可以后,再进行下一步施工。

5) 钢筋加工时的要点

钢筋加工时的要点见表

钢筋加工时的要点                       

 

钢筋调直和清除污锈

1.钢筋的表面应洁净,使用前应将表面油渍、漆皮、鳞锈等清除干净;

2.钢筋应平直,无局部弯折,成盘的钢筋和弯曲的钢筋均应调直;

3.采用冷拉方法调直钢筋时,级钢筋的冷拉率不宜大于2%;

钢筋的冷拉率不宜大于1

钢筋断配料要 

   钢筋加工配料时,要准确计算钢筋长度,发吸弯钩或弯起钢筋,应加

其长度,并扣除钢筋弯曲成型的延伸长度,拼配钢筋实际需要长度。同直

径同钢号不同长度的各种钢筋编号(设计编号)应先按顺序填写配料表,

再根据调直后的钢筋长度,统一配料,以便减少钢筋的断头废料和焊接量。

受力主筋制

 

做和末端弯

 

钩形状

钢筋的弯起和末端弯钩应符合设计要求,如设计无规定时,应符合下

列规定(JTJ04189):

弯曲

部位

弯曲角度

   

钢筋

种类

弯曲

直径(D

平直部

分度度

 

180°

2.5d

5d(f20~28)

3d

为钢筋

直径

135°

4d

按设计要求

(一般15d

90°

4d

按设计要求

(一般10d

中间

弯起

°

以下

各类

 

箍筋末

端的弯

钩形式

箍筋末端弯钩角度和形状

           

90°/180°

级钢筋制作的箍筋,其末端应做弯钩,弯钩的弯曲直径应大于受力主筋直径,且不小于箍筋直径的倍。弯钩平直径部分长度,一般结构不腚小于箍筋直径倍,有抗震要求的结构不应小于箍筋直径的倍。

变钩形式,如无设计要求时,可按左图、加工;有抗震要求的结构按图用。

90°/90°

135°/135°

弯曲钢筋应

先做样板

弯曲钢筋时,应先反复修正并完全符合设计的尺寸和形状,作为样板

(筋)使用,然后进行正式加工生产。

5 钢筋接头

1) 一般要求

1 受力钢筋的连接仅允许按图或按标准加工图设置。

2 钢筋连接点不应设于最大应力处,并应使接头交错排列。

2) 焊接接头

1 热扎钢筋采用闪光对焊或电弧焊。所有焊工应持证上岗,焊接工艺、参数应经监理工程师同意。

2 钢筋纵向焊接,拟采用闪光对焊。

3 当采用闪光对焊焊接热扎钢筋时:

  为了保证对焊质量,钢筋的焊接端应在轴线方向切平,两焊接面应彼此平行,焊渣必须清除。

  在箱梁结构中任一有钢筋焊接接头的区段内,焊接接头的钢筋面积,在受拉区不超过总面积的50%。上述区段长度不小于35d且不大于500mm。同一根钢筋在上述区段内不得有两个接头。

4 当采用电弧焊焊接热扎钢筋时,焊接长度、宽度、厚度应符合图纸规定,或按表9-3规定执行。电弧焊焊接接头与钢筋弯曲处的距离不应小于10倍钢筋直径。

6.质量检查

电弧焊的焊接规格             

                      

焊缝规格

1              帮条焊或搭接焊,

每条焊缝长度(L

帮条焊接,  4(双面焊)

5d

帮条焊接,  2(双面焊)

10d

帮条焊接,  2(双面焊)

5d

帮条焊接,  1(双面焊)

10d

2、帮条钢筋总面积

A

3、焊缝总长度

帮条焊接

20d

搭接焊接

10d

4、焊缝宽度

0.7d但不大于10mm

5、焊缝深度

0.3d但不大于4mm

8.钢筋加安装

钢筋安装的检查项目

 

项次

检查项目

规定值或允许偏差(mm

检查方法

1

受力钢

筋间距

()

两排以上排距

+5

每构件检查个截面,用尺量

同排

梁板、拱肋

+10

基础、锚碇、墩台、柱

+20

灌注桩

+20

2

箍筋、横向水平钢筋、螺旋筋间距

0-20

每构件检查5-10个点

3

钢筋骨架

尺寸()

+10

按骨架总数%抽查

高、宽或直径

+5

4

弯起钢筋位置

+20

每骨架抽查30

5

保护层厚度

柱、梁、拱肋

+5

每构件沿模板周

边检查处

基础、锚碇、墩、台

+10

+3

 

钢筋网及钢筋骨架的检验项目

项次

检查项目

规定值和允许偏差

检查方法

1

网的长、宽(mm

+10

用尺量

2

网眼尺寸(mm

+10

用尺量,抽查3网眼

3

对角线差(mm

10

用尺量,抽查3网眼对角线。

4

骨架的宽、高(mm

+5

按骨架总数30%抽查。

5

骨架的长(mm

+10

按骨架总数30%抽查。

6

箍筋间距(mm

+20

用尺量,每个方向抽查3-5个。

7

受力钢筋

间距(mm

+10

用尺量,每个构件二个端面,

每个断面每间距。

排距(mm

+5

第三节  混凝土工程

本工程混凝土采用商品砼由砼运输车运到现场。混凝土水平及垂直运输采用混凝土输送泵为主,塔吊为辅助。

一、自拌混凝土生产

自拌混凝土用于低标号零星混凝土的现场拌制。

1、根据配合比确定的每盘(槽)各种材料用量,均要过称。

2、装料顺序:一般先装石子,再装水泥,最后装砂子,需加掺合料时,应与水泥一并加入。

3、混凝土搅拌的最短时间根据施工规范要求确定,掺有外加剂时,搅拌时间应适当延长。粉煤灰混凝土的搅拌时间宜比基准混凝土延长10至30s。

二、混凝土运输

1、混凝土在现场运输工具有手推车、吊斗、滑槽(地下室)、泵送等。

2、混凝土自搅拌机中卸出后,应及时运到浇筑地点,延续时间不能超过初凝时间。在运输过程中,要防止混凝土离析、水泥浆流失、坍落度变化以及产生初凝等现象。如混凝土运到浇筑地点有离析现象不得用于主体结构。

3、混凝土运输道路应平整顺畅,若有凸凹不平,应铺垫桥枋。在楼板施工时,更应铺设专用桥道严禁手推车和人员踩踏钢筋。

三、泵送混凝土

1、泵送工艺

(1)、泵送湿凝土前,先把储料斗内清水从管道泵出,达到湿润和清洁管道的目的,然后向料斗内加入与混凝土配比相同的水泥砂浆(或1:2水泥砂浆),润滑管道后即可开始泵送混凝土。管内的水泥砂浆应按要求均匀摊铺在浇筑面上。

(2)、开始泵送时,泵送速度宜放慢,油压变化应在允许值范围内,待泵送顺利时,才用正常速度进行泵送

(3)、泵送期间,料斗内的混凝土量应保持不低于缸筒口上10mm到料斗口下150mm之间为宜。避免吸入效率低,容易吸入空气而造成塞管,太多则反抽时会溢出并加大搅拌轴负荷。

(4)、混凝土泵送宜连续作业,当混凝土供应不及时,需降低泵送速度,泵送暂时中断时,搅拌不应停止。当叶片被卡死时,需反转排队,再正转。反转一定时间,待正转顺利后方可继续泵送。

(5)、泵送中途若停歇时间超过20min,管道又较长时,应每隔5min开泵一次,泵送小量混凝土,管道较短时,可采用每隔5min正反转2~3个行程,使管内混凝土蠕动,防止泌水离析,长时间停泵(超过45min),气温高,混凝土坍落度小时可能造成塞管,宜将混凝土从泵和输送管中清除。

(6)、泵送先远后近,在浇筑中逐渐拆管。

(7)、在高温季节泵送,宜用湿草袋覆盖管道进厅降温,以降低入模温度。

(8)、泵送管道的水平换算距离总和应小于设备的最大泵送距离。

2、泵送结束清理工作

(1)、泵送将结束时,应估算混凝土管道内和料斗内储存的混凝土量及浇捣现场所欠混凝土量(Φ125mm径管每100米1.23m3),以便决定混凝土需要量。

(2)、泵送完毕清理管道时,采用空气压缩机推动清洗球,先安好专用清洗管,再启动空压机,渐进加压。清洗过程中,应随时敲击输送管,了解混凝土是否接近排空。当输送管内尚有10m左右混凝土时,应将压缩机缓慢减压,防止出现大喷爆和伤人。

(3)、泵送完毕,应立即清洗混凝土泵、布料器和管道,管道拆卸后按不同规格分类堆放。

四、混凝土的浇筑

1、浇筑前应对模板浇水湿润,墙、柱模板的清扫口应在清除杂物及积水后再封闭。

2、混凝土浇筑的一般要求

(1)、混凝土自吊斗口下落的自由倾落高度不得超过2米,如超过2m时必须采取加串筒措施。

(2)、浇筑竖向结构混凝土时,如浇筑高度超过3m时,应采用串筒、导管、溜槽或在模板侧面开门子洞。

(3)、浇筑混凝土时应分段分层进行,每层浇筑高度应根据结构特点、钢筋疏密决定。一般分层高度为插入式振动器作用部分长度的1.25倍,大不超过500mm,平板振动器的分层厚度为200mm

(4)、使用插入式振动器应快插慢拔,插点要均匀排列,逐点移动,按顺序进行,不得遗漏,做到均匀振实。移动问距不大于振动棒作用半径的1.5倍(一般为300~400mm)。振捣上一层时应插入下层混凝土面50mm,以消除两层间的接缝。平板振动器的移动间距应能保证振动器的平板覆盖已振实部分边缘。

(5)、浇筑混凝土应连续进行。如必须间歇,其间歇时问应尽量缩短。并应在前层混凝土初凝之前,将次层混凝土浇筑完毕。问歇的最长时间应按所有水泥品种及混凝土初凝条件确定一般超过2小时应按施工缝处理。

(6)、浇筑混凝土时应派专人经常观察模板钢筋、预留孔洞、预埋件、插筋等有无位移变形或堵塞情况,发现问题应立即停止浇灌,并应在已浇筑的混凝土上初凝前修整完毕。

3、柱、墙混凝土浇筑

(1)、柱、墙浇筑前,或新浇混凝土与下层混凝土结合处,应在底面上均匀浇筑50mm厚与混凝土配比相同的水泥砂浆。砂浆应用铁铲入模,不应用料斗直接倒入模内。

(2)、柱墙混凝土应分层浇筑振捣,每层浇筑厚度控制在500mm左右。混凝土下料点应分散布置循环推进,连续进行。

(3)、浇筑墙体洞口时,要使洞口两侧混凝土高大体一致。混凝土振捣要均匀密实,特别是墙厚较小,门窗洞口结构加筋与连接交错钢筋较密的部位,应采用Φ25振动棒,其它墙梁部位采用Φ50振动棒,考虑到墙窗洞下墙体位混凝土封模后无法直接振捣,可事先将窗洞下口留成活口,待混凝土浇至该位置并振捣密实后再行封模和加固。振捣时,振动棒应距洞边300mm以上,并从两侧同时振捣,以防止洞口变形。大洞口下部模板应开口并补充振捣。

(4)、构造柱混凝土应分层浇筑,每层厚度不得超过300mm

4、梁,板混凝土浇筑

(1)、肋形楼板的梁板应同时浇筑,浇筑方法应由一端开始用“ 赶浆法”推进,先将梁分层浇筑成阶梯 ,当达到楼板位置时再与板的混凝土一起浇筑。

(2)、楼板浇筑的虚铺厚度应略大于板厚,用平板振动器垂直浇筑方向来回振捣。注意不断用移动标志或插杆检查以控制混凝土板厚度。振捣完毕,用刮尺或拖板抹平表面。

(3)、在浇筑与柱、墙连成整体的梁和板时,应在柱和墙浇筑完毕后停歇1~1.5小时,使其获得初步沉实,再继续浇筑。

(4)、施工缝设置:宜沿着次梁方向浇筑楼板,施工缝应留置在次梁跨度1/3范围内,施工缝表面应与次梁轴线或板面垂直。单向板的施工缝留置在平行于板的短边的任何位置。

(5)、施工缝用木板、钢丝网挡牢。

(6)、施工缝处须待已浇混凝土的抗压强度不少于1.2MPa时,才允许继续浇筑。

(7)、在施工缝处继续浇筑混凝土前,混凝土施工缝表面应凿毛,清除水泥薄膜和松动石子,并用水冲洗干净。排除积水后,先浇一层水泥浆或与混凝土成分相同的水泥砂浆然后继续浇筑混凝土。

5、楼梯混凝土浇筑

(1)、楼梯段混凝土自下而上浇筑。由于楼梯踏步采用封闭式模板,故在踏步面开门子洞。底板混凝土与踏步混凝土一起浇筑,不断连续向上推进。

(2)、楼梯混凝土宜连续浇筑完成。

(3)、施工缝位置:根据结构情况可留设于楼梯平台板跨中或楼梯段1/3范围内。

6、浇筑粱板混凝土时,墙、柱节点区同按高强度等级混凝土施工,分界面在墙柱边500处。

7、后浇带:严格按设计图要求施工,后浇带施工前,应先清理杂物,用清水冲冼在所旧砼分接面涂上泥油,确保所旧砼咬接良好。

五、混凝土的养护

1、混凝土浇筑完毕后,应在12小时以内加以覆盖,并浇水养护。

2、混凝土浇水养护日期,掺用缓凝型外加剂或有抗渗要求的混凝土不得小于14天。在混凝土强度达到1.2MPa之前,不得在其上踩踏或施工振动。柱、墙带模养护2天以上,拆模后,用棉布包住,浇水在棉花布上养护,以确保立面结构表面保持湿润状态。

3、每日浇水次数应能保持混凝土处于足够的润湿状态。

  砌体工程

本工程砖砌体采用轻集料混凝土砌块,M5混合沙浆砌筑.砌块排列图如下:

一、材料

1、砌块

砌块的品种、强度等级必须符合设计要求,并应规格一致有出厂合格证明及试验单;

2、水泥

品种与标号应根据砌体部位及所处环境选择,一般采用32.5号普通硅酸盐水泥或矿渣硅酸盐水泥;应有出厂合格证明和试验报告方可使用;不同品种的水泥不得混合使用。

3、砂

宜采用中砂。配制水泥砂浆或水泥混合砂浆的强度等级等于或大于M5时,砂的含泥量不应超过5%。砂浆强度等级小于M5时,砂的含泥量不应超过10%。

4、水

应采用不含有害物质的洁净水。

5、掺合料

A、石灰膏:熟化时间不少于7天,严禁使用脱水硬化的石灰膏。

B、其他掺合料:电石膏、粉煤灰等掺量应经试验室试验决定。

6、其他材料

拉结钢筋、预埋件、木砖、防水粉等均应符合设计要求。

二、操作工艺

1、拌制砂浆:

砂浆采用机械拌合,手推车上料,磅称计量。材料运输主要采用井字架作垂直运输,人工手推车作水平运输

(1)、根据试验提供的砂浆配合比进行配料称量,水泥配料精确度控制在2%以内;砂、石灰膏等配料精确度控制在±5%以内。

(2)、砂浆应采用机械拌合,投料顺序应先投砂、水泥、掺合料后加水。拌和时间自投料完毕算起,不得少于1.5min。

(3)、砂浆应随拌随用,水泥砂浆和水泥混合砂浆必须分别在拌成后3小时和4 个时内使用完毕。

2、组砌方法

(1)、砌块墙砌筑应上下错缝,内外搭砌,灰缝平直,砂浆饱满,水平灰缝厚度和竖向灰缝宽度一般为10mm,但不应小于8mm,也不应大于12mm

(2)、砖墙的转角处和交接处应同时砌筑,均应错缝搭接,所有填充墙在互相连接、转角处及与混凝土墙连接处均应沿墙高设置2Φ6@500通长拉结筋。对不能同时砌筑而又必须留置的临地问断处应砌成斜搓。如临时间断处留斜搓确有困难时,除转角处外,也可留直搓,但必须做成阳搓,并加设拉结筋,拉结筋的数量按每12cm墙厚原放置一根直径6mm的钢筋,间距沿墙高不得超过50cm,埋入长度从墙的留搓处算起,每边均不应小于50cm,未端应有90°弯钩。

(3)、隔墙和填充墙的顶面与上部结构接触处用侧砌块或立砌块斜砌挤紧。

3、砌块墙砌筑

施工顺序:弹划平面线→检查柱、墙上的预留连结筋,遗留的必须补齐→砌筑→安装或现浇门窗过梁→顶部砌体。

(1)、排砌块撂底:一般外墙第一皮砌块撂底时,横墙应排丁砌块,前后纵墙应排顺砌块。根据已弹出的窗门洞位置墨线,核对门窗间墙、附墙柱(垛)的长度尺寸是否符合排砌块模,如若不合模数时,则要考虑好砍砌块及排放的计划。所砍的砌块或丁砌块应排在窗口中间、附墙柱(垛)旁或其他不明显的部位。

(2)、选砌块:选择棱角整齐、无弯曲裂纹、规格基本一致的砌块;

(3)、盘角:砌墙前应先盘角,每次盘角砌筑的砌块墙角度不要超过五皮,并应及时进行吊靠,如发现偏差及时修整。盘角时要仔细对照皮数杆的砌块层和标高,控制好灰缝大小水平灰缝均匀一致。每次盘角砌筑后应检查,平整和垂直完全符合要求后才可以挂线砌墙。

(4)、挂线:砌筑一砌块厚及以下者,采用单面挂线;砌筑一砌块半厚及以上者,必须双层挂线。如果长墙几个人同时砌筑共用一根通线,中间应设几个支线点;小线要拉紧平直,每皮砌块都要穿线看平,使水平缝均匀一致,平直通顺。

(5)、砌砌块:砌砌块宜采用挤浆法,或者采用三一砌砌块法。三一砌砌块法的操作要领是一铲灰、一块砌块、一挤揉,并随手将挤出的砂浆刮去。操作时砌块块要放平、跟线,砌筑操作过程中,以分段控制游丁走缝和乱缝。经常进行自检,如发现有偏差,应随时纠正,严禁事后采用撞砌块纠正。应随砌随将溢出砌块墙面的灰迹块刮除。

(6)、木砖预埋:木砖应经防腐处理,预埋时小头在外,大头在内,数量按洞口高度确定;洞口高度在1.2m以内者,每边放2块,高度在2~3m者每边放4块。预埋木砖的部位一般在洞口上下四皮砌块处开始,中间均匀分布。门窗洞口考虑预留后安装门窗框,要注意门窗洞口宽度及标高符合设计要求。

(7)、门窗过梁为预制钢筋混凝土过梁,在砌块墙上的支承长度不小于240:当支承长度不足时,应按过梁与柱、墙直接连接处理。当门窗洞边无砖墩搁置过梁时,采用在相应洞顶位置的混凝土墙、柱上予埋铁件或插筋,以便和过粱中的钢筋焊接。

安装过梁、梁垫时其标高、位置及型号必须符合设计图纸要求,坐浆饱满;如坐浆厚度超过20mm时 ,要用细石混凝土铺垫,过梁伸入两端的支承长度应一致。

(8)填充墙墙高≥4米时,在墙高的一半处或门顶,设一道通长的钢筋混凝土圈梁。

(9)填充墙体与梁板交接的顶砌块用实心小砌块,并斜砌顶紧。

(10)卫生间四周砌块墙体底部构件120mm高素砼反边,确保墙脚不渗水。

三、质量标准

(1)、砌块的品种、强度等级必须符合设计要求。

(2)、砂浆品种符合设计要求,强度必须符合下列规定:

A、同品种、同强度等级砂浆各组试块的平均强度不小于1.0.fm.k

B、任意一组试块的强度不小于0.75fm.k。

C、砌体砂浆必须密实饱满,实心砌块砌体水平灰缝的砂浆饱满度不少于80%。

(3)、外墙的转角处严禁留直搓,其他临时间断处,留搓的做法必须符合施工规范的规定。

第五节  屋面工程

屋面工程包括屋面防水工程和屋面保温隔热工程,是房屋建筑的一项重要工程,其施工质量的优劣将直接影响到建筑物的使用寿的重视。防水层采用4mm厚聚酯胎防水卷材,屋面保温层采用7050厚聚苯保温板

保温层施工

本工程保温层为70(或50)厚聚苯保温板块,施工时,注意以下事项:

1)加强对保温材料的的进场检查,检查密度、形状和强度。堆放场设在室内,搬运时应注意轻放,防止损伤断裂、缺棱掉角,保证外形完整。铺设时遇有缺棱掉角破碎不齐的,应锯平拼接使用。

2)铺设板块状保温层的基层表面应平整、干燥、洁净。

3)干铺的珍珠岩块应紧靠在需要保温的结构表面上,铺平、垫稳。

找坡层施工

本工程找坡层为炉渣找坡,施工前应检查其质量,炉渣铺设后应振捣密实,表面抹平。为减少找平层的含水率,找平层分两个层次:将炉渣选成粗细两种粒径,大粒径的干铺于下层,小粒径的按16拌合后湿铺于表面,这样不仅表面平整且容易干燥。在找坡层坡度复核无误后,开始做找平层及防水层。

找平层施工

在防水层施工前,应做好水泥砂浆找平层,本设计均为2013水泥砂

找平,施工时应注意如下几点:

1)操作前,先将基层洒水湿润,扫纯水泥浆一次,随刷随铺砂浆,使之与基层粘结牢固,无松动、空鼓、凹坑、起砂、掉灰等现象。

2)找平层表面平整光滑,其平整度用2m长直尺检查,最大空隙不超过5mm,空隙仅允许平缓变化,凹坑处应用水泥:砂:107=12.530.15砂浆顺平。

3)基层与突出屋面的结构,如女儿墙、穿板管道、等相连接的阴角,应抹成均匀一致和平整光滑的小圆角,基层与檐口、天沟、水落口、屋脊等相连接的转角,应抹成光滑的小圆弧形,其半径控制在100150mm之间,女儿墙与水落口中心距离应在200mm以上。

4)水泥砂浆找平层压实抹光凝固后,应及时洒水养护,养护时间不得少于7天。

5)找平层施工后,为避免收缩裂缝,每间隔46m设分隔缝,用小木条嵌缝,终凝前轻轻取出嵌缝条,或采用切割机切割,缝宽2cm,并及时嵌填密封材料。

防水层施工

1)加强对防水卷材的进场检验。首先检查卷材外观质量,检查其断裂、皱折、孔洞、剥离、边缘整齐情况及是否涂盖均匀等项目。在外观质量检验合格后,再取样送指定试验室进行物理性能试验,检查拉伸性能、耐热度、柔性及不透水性等项目,合格后方可使用。卷材粘结用的胶粘剂也应作物理性能的检验,重点检验其粘结剥离强度、浸水后粘结剥离强度保持率。

2)防水层施工时,应先做好节点。附加层和屋面排水比较集中部位,如屋面与水落口连接处、檐口、檐沟、屋面转角处等的处理,然后由屋面最低标高处向上施工。本屋面为SBS,设计坡度为2%,采用冷粘贴施工。卷材铺贴时,宜平行于屋脊,并按照先远后近的原则铺贴。

3)本设计为两层防水卷材,铺贴时上下层卷材不得相互垂直铺贴,其搭接缝应注意上下层及相邻两幅卷材的搭接缝应错开;在檐沟与屋面的连接处采用叉接法搭接,搭接缝应错开,接缝留在屋面侧面,不宜留在沟底。

4)卷材防水层的搭接缝是屋面防水的薄弱环节之一,最易开缝而导致屋面渗漏,所以卷材搭接缝宽度是确保防水层质量的关键。卷材接缝的搭接宽度为100mm,在接头部位每隔1m左右处,涂刷少许粘剂,待其基本干燥后,再将接头部位的卷材翻开临时粘结固定。将卷材接缝的专用胶粘剂,用油漆刷均匀涂刷在翻开的卷材接头的两个粘结面上,涂胶20秒左右,以指触基本不粘手后,用手一边压合一边驱除空气,粘合后再用压辊滚压一遍。

5)屋面特殊部位的铺贴要点

1)檐口

将铺贴到檐口端头的卷材裁齐后压入凹槽内,然后将凹槽用密封材料嵌填密实。用压条固定时,钉子应嵌入凹槽内,钉帽及卷材端头用密封材料封严。

2)檐沟及水落口

檐沟卷材铺贴前,应先对水落口进行密封处理。在水落口杯埋设时,水落口杯与竖管承插口的连接处用密封材料嵌填密实,防止该部位在暴雨时产生倒水现象,水落口周围直径500mm范围内用密封材料涂封作为附加层,厚度不少于2mm。水落口杯与基础接触处留出宽20mm、深20mm的凹槽,嵌填密封材料。由于檐沟部位流水量较大,防水层经常受雨水冲刷或浸泡,因此在檐沟转角处先用密封材料涂封,每边宽度不少于30mm,干燥后再增铺一层卷材作为附加层。檐沟铺贴卷材应从沟底开始,顺檐沟从水落口向分水岭方向铺贴,边铺边用刮板从沟底中心向两侧刮压,赶出气泡使卷材铺贴平整,粘贴密实。铺至水落口的各层卷材和附加层,均应粘贴在杯口上,用雨水罩的底盘将其压紧,底盘与卷材间应满涂胶结材料予以粘贴,底盘周围用密封材料填封。

3)泛水与卷材收头

泛水由于处于屋面转角与立墙部位,结构变形大,容易受太阳曝晒,因此为了增强接头部位防水层的耐久性,应在该部位加铺卷材。泛水部位卷材铺贴前,应先进行试铺,将立面卷材长度留足,先铺贴平面卷材至转角处,然后从下向上铺贴立面卷材。如先铺立面卷材,由于卷材自重作用,立面卷材张拉过紧,使用过程易产生翘边、空鼓、脱落等现象。卷材铺贴完成后,将端头裁齐。女儿墙上留出凹槽,将端头全部压入凹用压条钉压平服,再用密封材料封严,最后用水泥砂浆抹封凹槽。

6排气洞与伸出屋面管道

防水层铺贴后,上端用沥青麻丝或细铁丝扎紧,最后用密封材料密封。附加层卷材裁剪方法见水落口做法。

第六节 抹灰工程

一、总体安排和要求

1、抹灰装修工程施工时,室内粗装修随砌体由下往上逐层施工,外墙装饰为一次由上往下施工完成。本次施工只要求内地面水泥砂浆找平,内墙和天棚只要求混合砂浆刮腻子,公用部分按设计装修,外墙也按设计装修。装修工程开始前,各分项工程先做样板,经公司质量控制部和监理单位验收通过后才能正式开始;

2、组织专业的施工班组,分别承担各分项装饰工程,实行定任务、定质量、定标准、定时间。分包到组,实行优质超产重奖,劣质重罚。保证质量,保证工期。

3、材料供应:订货前取样品交设计、甲方审定后方可进货,对易产主色差、规格差的材料的材料应选择同一厂家同一批产品。材料的垂直运输,室内外装修主要用井字架解决,塔吊辅助。水平运输以人工手推车在室内楼面上进行。

4、各层装修顺序为:

结构验收→天棚抹灰→墙面抹灰→门窗框安装→门窗框边填缝→门窗框边抹灰→楼地面找平层→楼地面面层→天棚、墙面刷浆→走廊吊顶安装→门窗扇安装→天棚、墙面最后一道刷浆

二、抹灰工程

()、一般规定

1、抹灰工程的砂浆等级应符合设计要求。

2、抹灰工程所用的砂浆配比,材料品种,应按设计要求选用。

3、抹灰砂浆的配合比和稠度等,应经检查合格后,方可使用,掺有水泥或石膏拌制的砂浆,应控制在初凝前用完。

4、砂浆中掺用外加剂时,其掺入量应由试验确定。

5、木结构与砖结构、混凝土结构等的相接处基本表面抹灰,内外墙应先铺钉金属网,并绷紧牢固,金属网与各基体的搭接宽度不应小于70mm。混凝土面应先甩浆做结合层。

6、室内墙面、柱面和门洞的阳角,宜用1:2.5水泥砂浆做护角,其高度不应低于1.8m,每侧宽度不小于50mm

7、外墙抹灰工程施工前,应安装好门窗。阳台栏杆和预埋铁件等,并将墙上的施工孔用膨胀砂浆堵塞密实。

8、外墙窗台、窗眉、雨篷、阳台,压顶和突出腰线等,上面应做流水坡度,下面应做滴水线或滴水槽,滴水槽的深度和宽度均不应小于10mm,并整齐一致。

9、水泥砂浆的抹灰层应在湿润的条件下养护。

10、大面积的石膏抹面应事先经试验室试验后,得出既保证质量又便于操作的稠度及凝结时间才能施工。

11、一般抹灰按质量要求分为普通、中级和高级三级。我公司按高级抹灰施工:阴阳角找方,设置标筋,分层赶平。修整,表面压光。

12、厨厕、浴室天面等凡有坡水需要的地面抹灰应做成倾向出水口的坡水坡度。

13、凡面层灰浆要压光的,最后一次压光,应在灰浆初凝后(即经过铁抹子压磨而灰浆表层不会变成糊状)及时进行。

14、为了防止雨水溅射使污垢散播在外墙面,因此,外墙完成抹灰工序后应拆去外平桥板,或将平桥部位的墙面加以遮护。

15、抹灰用砂宜用中砂,使用前应过筛,不宜采用特细砂。

16、抹灰用石灰膏,用块状生石灰淋制,淋制时必须用孔径不大于3mm×3mm的筛过筛,并贮存在沉淀池中。熟化时间:常温下一般不少于15天。用于罩面时,不应少于30天。使用时,石灰膏内不得含有未熟化的颗粒和其他杂质。

17、施工前,应预先做样板,并经有关单位认可后,方可进行。

()、墙面抹水泥砂浆

1、基层处理:吊直、套方、灰饼、墙面冲筋。抹底层灰和中层灰等工序的做法与墙面抹纸筋灰浆时基本相同,但底灰和中层灰用1:2.5水泥砂浆涂抹,施工前湿润墙面,并用木抹子搓平带毛面,在砂浆凝固之前,表面用扫帚扫毛。

2、抹水泥砂浆面层:中层砂浆抹好后第二天,用1:2.5水泥砂浆或按计要求的水泥混合砂浆抹面层,厚度5~8mm。操作时先将墙面湿润,然后用砂浆薄刮一道使其与中层灰粘牢,紧跟着抹第二遍,达到要求的厚度,用压尺刮平找直后,用铁抹子压实压光。

()、顶棚抹灰

1、基层处理:对板底清理干净,并用钢丝刷满刷一遍后浇水湿润。再用1:1:1水泥聚合物砂浆(水泥:107:细砂),喷洒或用毛刷(横扫)将砂浆甩到基面上。甩点要均匀,终凝后再浇水养护,直至水泥砂浆疙瘩有较高的强度,用手掰不动为止。

2、根据墙柱上弹出的水平墨线,用粉线在四周墙面上(顶板下100mm)弹出一条水平线,作为顶板抹灰的水平控制线。对于面积较大的楼盖顶棚或质量要求较高的顶棚,宜通线设置灰饼。

3、抹底灰:在顶板混凝土湿润的情况下,先刷素水泥浆一道,随刷随打底,打底采用1:1:6水泥混合砂浆。对顶板凹度较大的部位,先大致找平并压实,待其干后,再抹大面底层灰,其厚度每遍不宜超过8mm,操作时需用力抹压,然后用压尺刮抹顺平,再用抹子抹平,要求平整稍毛,不必光滑,但不得过于粗糙,不许有凹陷深痕。

4、抹罩面灰:待底灰约六、七成干时,即可抹面层纸筋灰。如停歇时间长,底层过分干燥则应用水润湿。涂抹时先分两遍抹平,压实,其厚度不应大于2mm,待面层经过铁抹子抹面,灰浆表面不会变为糊状时要及时压光,不得有抹痕、气泡、接缝不平等现象。天棚与墙边或梁边相交的阴角应成一条水平直线,梁端与墙面梁边丁交处应成垂直线。

()、质量标准

1、保证项目

(1)、所用材料品种。质量必须符合设计要求和现行材料标准的规定。

(2)、各抹灰层之间及抹灰层与基体之间必须粘结牢固,无脱层,空鼓,面层无爆灰和裂缝等缺陷(空鼓而不裂的面积不大于200cm2者可不计)。

2、基本项目

(1).一般抹灰层表面应符合下列规定:

合格:表面光滑、洁净,颜色均匀,线角和灰线平直方正。

优良:表面光滑、洁净,颜色均匀,线角和灰线平直方正,清晰美观。

(2)、孔洞、槽、盒和管道后面的抹灰表面应符合以下规定。

合格:尺寸正确,边缘整齐、管道后面平顺。

优良:尺寸正确、边缘整齐、光滑;管道后面平整。

(3)、护角和门窗框与墙体间缝隙的填塞质量应符合以下规定:

合格:护角材料、高度符合施工规范规定;门窗框与墙体间缝隙填塞密实。

优良:护角符合施工规范规定、表面光滑平顺;门窗框与墙体间缝隙填塞密实,表面平整。

(4)、分格条(缝)的质量应符合以下规定:

合格:宽度、深度基本均匀,楞角整齐,横平竖直。

优良:宽度、深度均匀,平整光滑,楞角整齐。横平竖直、通顺。

(5)、滴水线和滴水槽的质量应符合以下规定:

合格:滴水线顺直;滴水槽深度、宽度均不少于10mm

优良:流水坡向正确;滴水线顺直;滴水槽深度、宽度均不少于10mm,整齐一致。

3、允许偏差:

一般抹灰的允许偏差和检验方法应符合验收规范的规定。

第七节  门窗工程

1)、施工准备:

.技术准备:在50线弹好,并复核,窗中线已弹好并复核。各种原材资质报告齐全。

.材料准备:门窗框经检验合格,尺寸偏差已记录,门窗框包装好,框体连接件已准备好。

.机具准备:冲击钻、胶栓。

2)、施工工序:

     

 

 

                       

 

 

 

3)、技术质量保证措施

对于50㎝地平中线,要进行复合;后方向使。预先检查框的尺寸,偏差符合要求。框体材料的厚度,材料要检验,品牌符合要求。安装后要检查垂直度、对角线长度、及水平。

4)检测工具:1.水平尺 2.盒尺 3.靠尺板

  吊顶工程

1)材料要求:

1)石膏板、乳胶漆、600*600铝骨条石膏板、装饰线、15厘大芯板、定型喷塑铝板、C60上人副龙骨、定型实木线、定型石膏线、吊杆、喷塑铝制风口等。

2)各种材料品种、规格、数量、质量符合设计要求。

2)主要机具:

锯、射钉枪、无齿锯、冲击钻、高凳、脚手架。

锯、钢锯冲击钻头、钳子、扳子、螺丝刀、墨斗、小线包。

钢尺、合尺、方尺、刷子、油灰刀、砂纸()、小油漆桶。

各种机具设备随心应手,满足工程施工要求。

3)作业条件:

构主体施工完毕并验收合格,根据规范标准间距900mm布弹设吊杆位置线后,以冲击钻钻孔固定φ12膨胀螺栓。

天花内各种管线及通风道等其它分项施工完毕。各种原材及设备配备齐全。罩面部分应在墙体施工基本完毕安装。高凳及脚手架准备好。样板施工安装完,其起拱、灯槽等设备经试装并通过鉴定、验证认可方可进行大面积施工。

4)施工方法:

四周墙体及内柱上部,根据弹设好顶天花下皮线;并做好主龙骨吊杆位置,膨胀镙栓钻孔(距距900mm)然后锚固好。

角钢30*3φ8钢筋栓为吊杆吊固在顶结构膨胀螺栓上,下端位置满足下道工序施工。

配装好吊杆螺母并在主龙骨上安装好吊挂件,然后依分档位置把吊挂件穿入相应吊杆螺栓拧好螺母。主龙骨相互连接依连接并拉线调整好起拱度。洞口附加主龙骨,以规范相应标准图集构造,设置安装并连接卡固件。边龙骨以膨胀栓固定并以吊挂件挂装。主龙骨单项工序施工完毕并经验收合格后再施下道工序。副龙骨施工前进行纵横中600mm 分档划线,整体布局完毕,以吊挂件吊副龙骨,各相互间距误差符合施工规范标准。待墙作出施工完毕后再施顶天花下道工序。根据已吊挂好的副骨,第一步先把柱四周的石膏板安固,上下、左右位置合理、搭顺直、接缝等符合图纸设计要求。

第二步把四周板根据设计要求及施工规范标准安装到位。

第三步施工整体大面积石膏板,根据天花板大样图中石膏板部位的分段、分层、以攻镙丝(中距200mm)拧固牢实。检查石膏板安装质量其位置、起拱、平整度等项符合图纸及规范要求并经检查检证签字、然后进行刮腻子、磨砂纸,检查整体平整、无裂缝等质量隐患后进行第一遍乳胶漆涂刷。

第一遍乳胶漆施工完凉干后进行木线、石膏线及灯具等表装修施工。表装修施工完毕并经检查验收合格后进行第二遍胶漆涂刷,涂刷时注意顶表面的设施染(必要时进行保护),待晾干后期(约二日)才再将第三遍乳胶漆施工标准涂刷完,合格为止。

5)质量标准:

保证项目:

钢龙骨与罩面板材质、品种、规格、样式均符合设计要求。梁、吊杆、主副龙骨等位置准确,无松动、歪曲现象,坚实牢固。罩面板无折,裂缝、脱层、缺棱角等缺陷。

基本项目:

骨架顺直,无弯曲、变形,吊挂件、连接件等符合产品组装要求。面涂料平整洁净,颜色一致,无污染、返锈现象发生。罩面板接缝严密符合设计要求。罩面板和钢骨架等连接均符合设计、规范标准要求。

第九节  楼地面工程

楼地面在装修前应先作一、二层样板,经监理单位认可方可大面积施工。楼地面找平层施工时应特别注意各类房间地面的高低差和厨卫间地面的排水坡度。

一、水泥砂浆面层

()、施工工艺

   1、素水泥浆结合层:宜刷水灰比为0.4~0.5的素水泥浆,也可在基层上均匀洒水湿润后,再撒水泥粉,用竹扫帚均匀涂刷,随刷随做面层,并控制一次涂刷面积不宜过大。

2、灰饼、冲筋:根据+1m水平线,在地面四周做灰饼,然后拉线打中间灰饼再用干硬性水泥砂浆做软筋,软筋间距约1.5m左右。在有地漏和坡度要求的地面,应按设计要求做泛水和坡度,对于面积较大的地面,则应用水准仪测出面层平均厚度然后边测标高边做灰饼。

3地面操作

(1)、混凝土基层通常用干硬性水泥砂浆,砂浆外表湿润松散、手握面团、不泌水分为准。水泥焦渣基层可用一般水泥砂浆。水泥砂浆配比为1:2(水泥:砂),如用32.5号水泥则用1:2.5的配比。操作时先在两冲筋之间均匀地铺上砂浆,比冲筋面略高,然后用刮尺以冲筋为准刮平、拍实,待表面水分稍干后(禁止用水泥粉吸水催干),用木抹子打磨,要求把砂眼、凹坑、脚印打磨掉,操作人员在操作半径内打磨完后进行抹光,对于拉毛地面不用压光。向后退着操作,在水泥砂浆初凝前完成。

(2)、第二遍压光:在水泥浆初凝前,即可用铁抹子压抹第二遍(此时人站在上面有脚印但不下陷、要用水泥袋纸包裹平整木板垫脚),要求不漏压,做到压光;凹坑、砂眼和踩的脚印都要填补压平。

(3)、第三遍压光:在水泥砂浆终凝前,此时人踩上去有细微脚印,当拭抹无抹纹时,即可用灰匙抹压第三遍,压时用劲稍大一些,把第二遍压光时留下的抹纹、细孔等抹平,达到压平、压实、压光。

(4)、养护:水泥砂浆完工后,第二天要及时浇水养护,使用矿渣水泥时尤应注意加强养护。必要时可蓄水养护,养护时间宜不少于7天。

()、质量标准

1、保证项目

(1)、面层的材质、强度(配合比)和密实度必须符合设计要求和施工规范规定。

(2)、面层与基层结合必须牢固,无空鼓。

检验方法:用小锤轻击检查,空鼓面积不大于400cm2,无裂纹,且在一个检查范围内不多于二处者,可不计。

2、基本项目

(1)、水泥砂浆面层表面质量应符合以下规定:

合格:表面无明显脱皮和起砂,局部有少数细小收缩裂纹和轻微麻面,但面积不大于800cm2,且在一个检查范围内不多于二处。

检验方法:观察检查。

(2)、地漏及泛水应符合以下规定:

合格:坡度满足排水要求,不倒泛水,无渗漏。

优良:坡度符合设计要求,不倒泛水,无渗漏,无积水;与地漏(管道)结合处严密平顺。

检验方法:观察或泼水检查。

(3)、踢脚线的质量应符合以下规定:

合格:高度一致;与墙柱面结合牢固;局部空鼓长度不大于400mm,且在一个检查范围内不多于二处。

优良:高度一致,厚度均匀,与墙柱面结合牢固,局部空鼓长度不大于200mm,且在一个检查范围内不多于二处。

检查方法:用小锤轻击尺量和观察检查。

(4)、踏步台阶应符合以下规定:

合格:宽度基本一致,相邻两步高差不大于20mm,齿角基本整齐,防滑条顺直。

优良:宽度一致,相邻两步高差不大于10mm,齿角整齐,防滑条顺直。

检查方法:观察和尺量检查。

(5)、镶边应符合以下规定:

合格:各种面层邻接处镶边用料及尺寸符合设计要求和施工规范规定。

优良:各种面层邻接处镶边用料及尺寸符合设计要求和施工规范规定,边角整齐光滑,不同面层、不同颜色的邻接处不混色。

二、地砖面层

1、抹结合层

(1)、根据+1.0m水平线,打灰饼(打墩)及用刮尺推好冲筋。

(2)、浇水湿润基层,再刷水灰比为0.5素水泥浆。

(3)、根据冲筋厚度,用1:3干硬性水泥砂浆(以手握成团,不泌水为准)抹铺结合层。结合层应用刮尺及木抹子压平打实(抹铺结合层时,基层应保持湿润,己刷素水泥浆不得有风干现象,结合层抹好后,以人站上面只有轻微脚印而无凹陷为准)。

(4)、对照中心线(十字线)在结合层面上弹上面块料控制线(靠墙一行面块料与墙边距离应保持一致,一般纵横每五块面料设置一度控制线)。

2、面块料铺贴

(1)、根据控制线先铺贴好左右靠边基准行的块料,以后根据基准行由内向外挂线逐行铺贴。

(2)、用水泥膏(约2~3mm厚)满涂块料背面,对准挂线及缝子,将块料铺贴上,用小木锤着力敲击至平正。

(3)、挤出的的水泥膏及时清干净(缝子比砖面凹1mm为宜)。

3、灌缝:

待粘贴水泥膏凝固后,用白水泥、颜料(色泽根据面料颜色调配)填平缝(过大缝要拌细砂填灌),用锯未(木糠)、棉丝将表面擦干净至不留残灰为止。

第十节  安装工程
 

一、施工配合阶段

1、按专业组织配合施工队伍,认真阅读施工图,积极参加设计交底和图纸会审,了解和掌握设计意图及具体要求,对于各类管道的安装标高、敷设位置、轴线、几何尺寸等要认真复核,积极主动的提出建设性意见。

2、及时了解并掌握建设单位供应的设备技术参数、图纸资料,并及时向监理单位和建设单位提出设备的采购、需用计划。

3、完全接受建设单位及监理单位对施工过程的各种检查,对查出的问题及时制定整改措施,并认真进行整改,直到满意为止。

4、隐蔽工程在未隐蔽前先经责任工程师和质量员检查后,再提请监理单位或建设单位的现场代表验收,确认符合规范和图纸要求并经签字认可后,方能隐蔽转入下道工序。

5、埋设的各种暗管、金属支架、钢板及接地的预埋件要按规范要求,将管道和支架及钢板预埋件进行除锈,清除管内杂物按照图纸要求一次配合到位,随时对管口采取保护措施。

6、强弱电的各种暗盒的暗配部分,均应一次配合到位,并要达到平整、标高位置准确并符合设计要求,电管等各类箱盒连接均应锁母连接,并用报纸等物将盒内填满保护。

7、穿顶板和墙板的各种管道的预留孔洞,应根据施工图和施工规范的要求确定具体位置,在浇注砼时,施工现场要有专人进行积极配合,防止孔洞及套管被堵及移位。

二、建筑电气

1、导管敷设

施工程序:测定管路、箱、盒位置——箱、盒、固定——管子煨弯——管子防腐——管路敷设——接地线焊接——检查看护。

施工对钢管预制加工

在管路敷设之前,对工程概况有个了解,特别是管路敷设方式、部位、层高、结构形式等内容。根据以上情况准备好各种加工好的弯管、配电箱、各种盒,一般都是配套产品,特别是配电箱应该使用符合国家标准,并经检测后合格的产品,未经检测的厂家产品不允许用于工程中,从材料的进货上消除工程隐患。施工前的主要工作是加工管子的煨弯。套管的截取及连接管路时跨接线的选择等。

钢管截取:根据图纸标准的管材、管径等情况对钢管进行截取。一般常用钢锯、砂轮切割机等进行切割,将需要的管子长度量准确,切管时断口处应平齐不歪斜,管口要用刮刀铣光滑,扫管后无毛刺,管内清除干净。截取套管时同样用专用工具截取。

钢管煨弯:常用弯管器,电动顶弯机等工具进行煨弯,弯曲处不应有折皱,凹穴和裂缝现象,弯扁程度不应大于外径的1/10;暗配管时,弯曲半径不应小于管外径的6倍;埋设于地下或混凝土楼板内时,不应小于管外径10倍。

钢管防腐:施工前应对钢管进行防腐处理,不得将黑管直接予埋,刷漆前应除锈。

钢管内、外均应刷防腐漆,埋入混凝土内的管外壁可以不刷防腐漆;埋入土层内的钢管和镀锌管应刷两道沥青漆;埋入有腐蚀性的土层内的钢管,应按设计规定进行防腐处理。使用镀锌钢管时,在锌层剥落处,也应刷防腐漆。

基础内钢管敷设施工

基础管路敷设时按设计管路施工。如果设计进线为导线或电缆穿钢管保护进配电箱、柜,则应做好钢管穿墙的预留工作。根据穿墙的数量,标高情况,钢管的管径在基础墙预留出300×300mm洞口,基础回填时及时将做好防腐的钢管埋入土层中分层夯实。这样做的目的是为了防备基础不均匀沉降时管子不致受到破坏,同时也可避免交叉施工时互相影响,埋入土层中钢管必须刷两道沥青漆;镀锌钢管时应在焊接处做好防腐,当管路敷设在地面时,应在管路穿墙部分做好预留或及时敷设管工作,不能在墙上乱剔洞过大过多对工程结构造成缺陷。

钢管在砖墙砌体内施工:

钢管在墙体内施工时应随主体砌筑在墙在中心,为使盒子平整,标高准确,可采取先敷设好,后配合土建工程进度,将图纸设计的配电箱、开关、插座等各种盒的位置在工程实际中做好预检,待主体砌筑到这些位置时预留出比盒、箱略大的孔洞,并距这些位置的底标高300mm左右敷好管子,待稳箱、盒时再接短管,这样可以保证箱、盒的标高准确和盒口的饰面平整。应注意在配电箱处应根据配电箱的宽度进行合理排管,不应里出外进,保证排管在一条线上,管与管之间留有间隙,待入箱时应一管一孔,不影响入箱的质量。在钢管入盒处一定要煨好灯叉弯后再入盒。无论入箱、盒,接短管时一定要套管连接可靠、焊接紧密,在配电箱处应该焊好跨接地线,做法应符合规范要求。配电箱、盒进出线管地线的连接,必须要保证每根线管上的焊接长度。

管与箱、盒连接

开关安装的位置应便于操作,开关边缘距门框的距离为150mm;并列安装的开关,高度差不应大于1mm;同一室内安装的开关插座,高度差不应大于5mm

箱、盒开孔应整齐并与管径相吻合,要求一管一孔,不得开长孔、铁制箱、盒严禁用电气焊孔开孔,并应刷防锈漆。如用定型箱、盒,其敲落孔大而管径小时,可用铁皮垫圈垫严或用沙浆补平不得漏洞。

暗装于墙体等部位的箱、盒,施工人员必须随工程进度密切配合土建工程做好预埋或预留孔洞。在混凝土预埋箱、盒时,应在箱、盒里填实锯末或纸板,用胶带封闭牢固,以防混凝土沙浆涌入,箱口及盒口应与墙体、梁、柱、顶板等装饰面平齐,为保证面板及器具的牢固,方正,缩进装饰面20mm以上的箱盒必须用高标号沙浆封堵严实,并抹平齐,不得空敲。

钢管进出箱盒,钢管暗敷进出箱、盒处可以采用焊接法固定,焊接时在管孔四周点焊3-5处,烧焊处必须做好防腐处理,并涂刷与箱盒本体相同颜色的面漆两道。

成品保护

配管工程安装完毕后,应将施工中造成的孔洞、沟槽修补完整。

在管路敷设或配合预埋过程中,及时将管口用管帽或钢板焊接进行封口。

剔槽不得过大,或过深过宽。预制梁柱和预应力楼板均不得随意剔槽打洞。混凝土楼板,墙等均不得私自断筋。

现浇混凝土时,电工应留人看守,以免振动时损坏配管及箱、盒移位。遇有管路损坏时,应及时修复。

模板拆除后及时清理箱、盒,检查箱、盒是否移位、管口是否畅通,后用盖板及时封堵。

2、管内穿线

相线、中性线及保护地线的颜色加以区分,用淡蓝色导线为中性线,用黄绿相间颜色的导线为保护地线。

穿带线:带线一般采用φ12-φ20mm的铁丝,将其头部弯成不封口的圆圈穿入管内,在管路较长或转弯较多时,可以在敷设管路两端同时搅动,使两根铁丝端头相互钩铰在一起,然后将带线拉出。

穿线前,管口上应装上护口,管路较长、弯曲较多、穿线困难时,可往管内吹入适量的滑石粉润滑。两人穿线时应配合协调好,一拉一送。

单股铜导线一般采用LC安全型压线帽连接,将导线绝缘层剥去1012mm清除氧化物,按规格选用适当的压线帽,将线芯插入压线帽的压接管内,若填不实,可将线芯折回头,填满为止。线芯插到底后,导线绝缘应和压接管平齐,并包在帽壳内专用压接钳压实即可。

多股导线采用相同规格的接线端子压接,削去导线的绝缘层,将线芯紧紧地铰在一起,清除套管,接线端子孔内的氧化膜,将线芯插入,用压接钳压紧,导线外露部分应小于1-2mm

500V兆欧表对线路的干线和支线的绝缘摇测。在电气器具,设备未安装接线前摇测一次,在其安装接线后再摇测一次,确认绝缘摇测无误后再进行送电试运行。

3、配电箱、柜安装

配电柜安装

开箱检查:按照设备清单、施工图纸以及设备技术资料,核对设备本体及附件的规格等应符合设计要求,附件、备件、产品合格证件、技术资料、使用说明书齐全,外观无损伤及变形,油漆完整,柜内电器装置及元件齐全,无损伤,并做好检查记录。

基础型钢安装

按图纸要求预制加工基础型钢支架,并刷好防锈漆,用膨胀螺栓固定在所安装位置的混凝土上,用水平尺找平找正,在基础型钢内预留出接地扁钢端子。配电柜安装后,用接地线与柜内接地排连接好。

柜盘稳装

按施工图纸的布置,按顺序将柜放在基础槽钢上,找平、找正。柜体与基础槽钢、柜体与柜体,柜体与测挡板用镀锌螺丝连接。

进入箱、柜的二次线或电缆,应固定牢固,排列整齐,留有余量,避免交叉,屏蔽电缆的屏蔽层要与接地线连接,接线时必须按图施工,无论插接或螺栓连接,应牢固可靠。一般一个端子压一根线,最多不能超过两根,多股线应刷锡,不准有断股。

试验调整

将所有的接线端子螺丝再紧一次,用500V摇表在端子处测试各回路绝缘电阻,其阻值必须大于0.5兆欧。按图纸要求,分别模拟试验控制、连锁操作、继电保护和信号动作,正确无误,可靠灵敏后接入正式电源。

送电运行验收

在安装作业全部完毕,经质量检查部门检查全部合格后,按程序送电,测量三相电压是否正常,空载运行24h ,若无异常现象后,办理验收手续。

配电箱安装

在主体施工时,按设计留置孔洞,主体完后将配电箱固定在预留洞中,并找好标高和水平尺寸,然后用水泥砂浆填实周边,待水泥砂浆凝固后再安装盘面和贴脸。安装盘面要求平整,周边间隙均匀对称箱门平正,螺丝上齐不歪斜,垂直受力均匀。

配电箱开孔时应用开孔器,严禁用电气焊开孔,应一管一孔,管径与配电管相一致,不能开长孔。开孔大时应采取措施补平齐,管入箱应与孔口平齐,最多不能超过5mm

接线前应对进出线进行加工整理,多股导线应加线鼻子,多股线用顶丝压接时应先刷锡处理。 2.5平方的导线入开关时应将导线回头后再用顶丝压接,盘面布线应整齐有序,按支路绑扎成束并固定。

4、防雷接地

在土建绑扎钢筋时要及时配合土建,对基础、柱及楼板的主筋焊接,达到与土建同步。以建筑物结构柱内两根φ16以上主筋做为引下线,与接地扁钢可靠焊接。

作为防雷引下线的柱内两根主筋应采用搭接焊的方式焊接,下端与接地扁钢,中间与均匀环焊接。搭接长度和焊接长度不小于主筋直径的6倍,要求焊缝饱满、牢固。

屋面应避雷采用φ12mm镀锌园钢焊接,其作业按标准图施工。

在每个柱子或剪力墙有引下线的地方,设接地测试板,必须做好防腐处理。

整个大楼的防雷接地电阻不大于1欧姆。

三、给排水工程

1、管道安装前,必须将管内污物清理干净,施工间歇应当将管口临时封堵,以防施工中杂物掉入。管道施工过程中,应固定牢靠,保证安全。

2、管道敷设排列整齐,垂直度,坡向等均应符合规范规定。丝口连接的管道,丝口必须完整、光滑、连接紧密,麻丝在安装完毕后及时清理干净。管道敷设应严格按设计所设定的坐标位置、标高进行施工,不得随意改动。

3、消火拴安装,栓口均应朝外,坐标位置正确,箱体固定牢固。

4、排水管道横管安装坡度应控制在规定的标准坡度范围内,严禁倒坡,管道连接处粘接剂严密饱满。与器具连接的预留口位置,应与土建施工密切配合,力求做到位置准确。地漏应设于底面最底处,标高以低于地面5mm为宜。

5、法兰焊接质量应符合规范要求,焊接应按施焊工艺要求进行,焊后应及时清除表面焊渣及杂物,并刷漆保护。

6、兰安装应与管道垂直,法兰连接螺栓长度应适宜,方向一致。垫片完整,不得落入管内及使用双垫片。

7、阀门安装前应检查关闭的严密性,开启灵活,安装位置,方向正确。消防管道中阀门投入运行时应锁定在开启位置。

8、卫生器具安装正确,平整牢固。给排水连接紧密,安装后要采取产品保护措施。

9、支架安装应牢固,平整。

10、管道防腐油漆按设计规定进行,锈污应清除干净,刷油均匀无遗漏。

11、管道保温按设计要求采用聚氨脂泡沫管材,施工时保温材料应连接紧密,表面平整美观。

12、试压,清洗时应按系统分别进行,试压要求设计与规范规定执行。系统试压后进行冲洗。卫生器具灌满水进行渗漏试验。

 

十一主体结构质量保证措施

 

为贯彻本公司质量第一,信誉为主,顾客至上,服务社会的质量管理方针,确保本工程施工质量全优的实现,根据该工程施工图纸设计,现行施工规程、规范和质量检查验收的有关要求,特制定本质量保证措施。

第一节 质量目标

达到国家施工验收规范合格标准,创海河杯

第二节 质量保证体系

我公司按照国际标准化组织颁布的1SO90012000质量标准,建立起一套行之有效的文件化的质量保证体系。该体系包括了从工程项目的投标,签定合同到竣工交付使用,直到交工后保修与回访的全过程。该体系以质量手册为核心和指导,以程序文件为日常工作准则,以作业指导书为操作的具体指导,所有质量活动都有质量计划并具体反映到质量记录中,使得施工过程标准化、规范化、有章可循、责任分明。

1、在该工程施工中,按照ISO90012000标准的全部要素组织施工,公司建立以总工程师为首的质量监督检查组织机构,横向包括各职能机构,纵向包括工程处、项目直至施工班组,形成质量管理网络,项目建立以项目经理为总负责,项目质量工程师中间控制,项目质检员基层检查的管理系统,对工程质量进行全过程、全方位、全员的控制。

2、建立健全和严格执行各项制度

、推行施工现场工程组织管理总负责人技术管理工作责任制,用严谨的科学态度和认真的工作作风严格要求自己。正确贯彻执行政府的各项技术政策,科学地组织各项技术工作,建立正常的工程技术秩序,把技术管理工作的重点集中放到提高工程质量,缩短建设工期和提高经济效益的具体技术工作业务上。

、建立健全各级技术责任制,正确划分各级技术管理工作的权限,使每位工程技术人员各有专职、各司其事,有职,有权、有责。以充分发挥每一位工程技术人员的工作积极性和创造性,为本工程建设发挥应有的骨干作用。

、建立施工组织设计的施工方案审查制度,工程开工前,将我公司技术主管部门批准的单位工程施工组织设计报送监理工程师审核。对于重大或关键部位的施工,以及新技术新材料的使用,我施工单位提前一周提出具体的施工方案、施工技术保证措施,以及新技术新材料的试验,鉴定证明材料呈报监理主管工程师审批。

、建立严格的奖罚制度:在施工前和施工过程中项目经理组织有关人员,根据公司有关规定,制定符合本工程施工的详细的规章制度和奖罚措施,尤其是保证工程质量的奖罚措施。对施工质量好的作业人员进行重奖,对违章施工造成质量事故的人员进行重罚,不允许出现不合格品。

、建立健全技术复核制度和技术交底制度,在认真组织进行施工图会审和技术交底的基础上,进一步强化对关键部位和影响工程全局的技术工作的复核。工程施工过程,除按质量标准规定的复查、检查内容进行严格的复查、检查外,在重点工序施工前,必须对关键的检查项目进行严格的复核。如建筑物轴线坐标和高程;基础的土质、位置、标高、尺寸;梁、板、柱混凝土模板的尺寸、位置、标高,以及预埋件(管)和预留孔的位置;混凝土的配合比和钢材、水泥的试验成果资料:特殊项目大样图的形状、尺寸;以及其它需要复核的项目。杜绝重大差错事故的发生。

、坚持三检制度。即每道工序完后,首先由作业班组提出自检,再由施工员项目经理组织有关施工人员、质检员、技术员进行互检和交接检。隐蔽工程在做好三检制的基础上,请监理工程师审核并签证认可。

、坚持三级检查制度。公司每月对项目工程质量全面检查一次,工程处对项目的工程质量检查一次。检查中严格执行有关规范和标准,对在检查中发现的不合格项,提出不合格报告,限期纠正,并进行跟踪验证。质量检查程序见图。

、实施混凝土浇筑令签发制度。混凝土浇灌前,混凝土施工员必须向项目经理提出签发混凝土浇筑令的书面申请,经项目经理审查确认已具备浇灌条件后,签发混凝土浇灌令,否则不得开机进行混凝土工程施工,申请签发混凝土浇灌令时,必须递交以下资料:

混凝土浇灌令申请报告

、由工程监理和质量监督等单位现场代表共同签证的混凝土浇筑部位的各隐蔽项目的隐蔽工程验收记录。

、由各专业技术主管共同签证的专业工程完工会签表

、混凝土配合比试验报告,钢材、水泥的骨料等质量检测报告及合格证。

2、质量保证体系流程图如下:

 

质量保证体系流程图

第三  质量保证措施

一、确保施工质量的技术措施

1、严格执行ISO90012000质量标准,按程序文件进行质量管理,按作业指导书进行操作,是质量水平保持稳定、连续并不断上升的根本保证。

2、加强技术管理,认真贯彻执行国家规定。操作规程和各项管理制度,明确岗位责任制,认真做好技术交底工作,除进行书面交底外,还应组织各班组召开技术交底会,对施工难点和重点进行讲解。

3、各种不同材料必须合理分类、堆放整齐。对于钢筋须挂牌标示,避免锈蚀和污染。加强原材料检验工作,严格执行各项材料的检验制度,水泥、钢材及搭设架子的钢管、钢丝绳都必须有出厂合格证和试验资料。混凝土严格按配合比施工,认真做到开盘交底和拆模申请制度。

4、各工序技术措施

(1)、测量放线

设立专门的测量放线小组,测量仪器及工具事先检查、定期校正。测量控制的重点是保证建筑物垂直的控制。

(2)、模板工程施工

鉴于模板工程是影响工程质量好坏的重要环节,本工程拟采用一次成优的质量控制法,以便在结构工程施工时为装饰工程提供优越的条件,其具体的施工流程说明如下:

A、工程技术人员在工序开工前将各工序部位的模板安装图详细绘出,工人按图施工,质检员严格按图检查验收。

B、认真做好工序交接检,当钢筋工程完工后应组织钢筋、木工班组长和技术员进行现场交接检,凡钢筋位置不符合要求的必须整改完后方可封模。

C、提高模板施工质量标准,垂直平整度均要在规定范围之内,

尤其要重视外墙垂直度,这是影响工程质量的一个重要因素。

D、模板拆模后要进行清理修正,涂刷隔离剂后才能继续使用。

E、为保证板缝能满足优良标准要求,在模板安装完毕后,应用透明胶纸粘贴板缝。

(3)、钢筋工程施工

A、钢筋进场后要及时进行原材料检测试验,合格材料方可使用。

B、钢筋工程施工前要认真做好翻样。交底工作。钢筋密集处既保证钢筋位置准确,又要保证混凝土顺利浇捣。

C、钢筋工程安装后,工程质检人员应对钢筋进行检查,做好隐蔽验收。重点进行下列内容检查。根据设计图,检查钢筋的种类。直径。根数。间距是否正确,特别要检查负筋位置是否准确,检查钢筋接头位置及搭接长度是否符合要求;绑扎是否牢固、有无松动脱变现象,检查混凝土保护层是否符合要求,检查钢筋对焊接头是否符合要求。

D、由于钢筋偏位历来是工程施工中的质量通病,因此本工程在施工中将采取在楼板模上进行二次放线的方法,对墙、柱筋进行重复校核,在浇混凝土前还要再三复核墙。柱筋位置是否正确。

(4)、混凝土工程施工

A、严格执行材料进场验收制度,特别是对水泥要有计划地提前做好化验工作,杜绝不经化验而先使用的现象。

B、预拌混凝土到现场后要有专职质检员进行检验。

C、作业面设技术人员和专职质检员跟班作业,对振捣密实度、下料方法、高低差留置、平整度。墙柱钢筋进行监督检查,对不符合施工工艺标准的将行使质量否决权,有权下令停工修复,直至符合工艺标准才能继续施工。

(5)、土方施工

A、对于挖方区域,机械开挖深度应控制在设计基础底面标高以上200-300mm,以防机械超挖或挠动原土,余土改由人工清除。

B、对于填方区域,必须分段采用水平分层法施工,松铺土层厚度小于300,填筑一层,整平一层,夯实一层,确保填土区密实度达到规范要求。

C、填筑碾压前,要经常测定土料含水量,根据实际情况分别采用凉晒法或洒水法使其接近最佳含水量确保碾压达到最佳效果。

D、各种构筑物背后的填土要特别注意,尽量机械夯实,局部以人工补夯。

二、保证质量的管理措施

1、岗位责任制:按质量目标分解,将质量责任层层挂牌,层层落实。由质检员行使质量否决权和奖罚权。

2、奖罚制;拉大班组优良与合格的上资差距,质量评定按楼层各部位分开进行,实行优质重奖,劣质重罚的方法,最大限度地调动工人的积极性。

3、材料进场检查制:要特别注意杜绝无准用证书水泥的使用。进口钢筋要进行化学分析:商品混凝土进场要核实混凝土强度等级和检验坍落度;装饰材料、门窗等成品。半成品先选定样品,再接样品验收大宗进料。

4、三检制:主要分项工程质量严格检查,坚持自检、交接检、专检三检制。

5、隐检制:根据施工进度安排预检、隐检计划,进行预检、隐检程序,办理预检、隐检手续,并及时履行签字归档。

6、工程例会制:

A、外联工程例会:汇报工程进展情况;听取业主,监理、质检站及设计院等各方面的指导和意见,提出施工或图纸上的问题、方案措施;协调与业主外包专业工程施工单位的矛盾、协作关系。

B、内部工程例会:总结工程施工的进度、质量、安全情况,传达外联工程会议精神,明确各专业的施工顺序和工序穿叉的交接关系及质量责任,加强各专业工种之间的协调、配合及工序交接管理,保证施上顺利进行。定于每星期五下午召开工程例会。

7、成品保护制度:

施工过程中,后插入的工序,应采取确实行措施,如覆盖、防护等进行深护,免遭污染或破坏。

 

第四 防止质量通病措施

一、土方工程

(1)、回填土应按规定每层取样测量夯实后的干容重,在符合设计或规范要求后才能回填卜一层。

(2)、严格控制每层回填厚度,禁止汽车直接卸土入槽。

(3)、严格选用回填土料质量,控制含水量、夯实遍数等是防止回填土下沉的重要环节。

(4)、机械夯填的边角位置及墙与地坪,散水的交接处,应仔细夯实,并应使用细粒土料回填。

(5)、雨大不应进行填方的施工。如必须施工时,应分段尽快完成,且宜采用碎石类土和砂土、石屑等填料。现场应有防雨和排水排施,防止地面水流入坑(槽)内。

 

二、模板工程

(1)、模板安装前,先检查模板的质量,不符质量标准的不得投入使用。

(2)、梁模板

通病现象:

梁身不平直。梁底不平及下挠。梁侧模炸模。局部模板嵌入柱梁间、拆除困难。

防治措施:

A、支模时应遵守边模包底模的原则,梁模与柱模连接处,下料尺寸一般应略为缩短。

B、梁测模必须有压脚板、斜撑、拉线通育后将梁侧钉固。梁底模板按规定起拱。

C、混凝土浇筑前,模板应充分用水浇透。

(3)、柱模板:

通病现象:

炸模、断面尺寸鼓出、漏浆、混凝土不密实,或蜂窝麻面、偏斜、柱身扭曲。

防治措施:

A、根据规定的柱箍间距要求钉牢固。

B、成排柱模支模时,应先立两端柱模,校直与复核位置无误后,顶部拉通长线,再立中间柱模。

C、四周斜撑要牢固。

(4)、板模板

通病现象:

板中部下挠,板底混凝土面不平。

防治措施:

A、楼板模板厚度要一致,搁栅木料要有足够的强度和刚度,搁栅面要平整。

B、支顶要符合规定的保证项目要求。

C、板模按规定起拱。

三、钢筋工程

1、钢筋加工:

(1)、钢筋开料切断尺寸不准,根据结构钢筋的所在部位和钢筋切断后的误差情况,确定调整或返工。

(2)、钢筋成型尺寸不准确,箍筋歪斜,外形误差超过质量标准允许值:对于级钢筋只能进行一次重新调直和弯曲,其他级别钢筋不宜重新调直和反复弯曲。

2、钢筋绑扎与安装

(1)、钢筋骨架外形尺寸不准:绑扎时宜将多根钢筋端部对齐,防止绑扎时,某号钢筋偏离规定位置及骨架扭曲弯形。

(2)、保护层砂浆垫块厚度应准确,垫块间距应适宜,否则导致平板悬臂板面出现裂缝,梁底柱侧露筋。

(3)、钢筋骨架吊装入模时,应力求平稳,钢筋骨架用扁担起吊,吊点应根据骨架外形预先确定,骨架各钢筋交点要绑扎牢固,必要时焊接牢固。

(4)、钢筋骨架绑扎完成后,会出现斜向一方,绑扎时铁线应绑成八字形。左右口绑扎发现箍筋遗漏。间距不对要及时调整好。

(5)、柱子箍筋接头无错开放置,绑扎前要先检查;绑扎完成后再检查,若有错误应即纠正。

(6)、浇筑混凝土时,受到侧压钢筋位置出现位移时,就及时调整。

(7)、同截面钢筋接头数量超过规范规定:骨架未绑扎前要检查钢筋对焊接头数量,如超出规范要求,要作调整才可绑扎成型。避免闪光焊工程质量通病

3、对焊焊接

表面烧伤、接头轴线偏移和弯折,接头结合不良、接头氧化缺陷、接头过烧缺陷、热影响区淬火脆裂以及接头区域有裂纹等现象。

4、电弧焊:

(1)、焊接过程中要及时清渣,焊缝表面光滑平整,加强焊缝平缓过渡,弧坑应填满。

(2)、根据钢筋级别、直径、接头形式和焊接位置,选择适宜焊条直径和焊接电流,保证焊缝与钢筋熔合良好。

(3)、帮条尺寸、坡口角度、钢筋端头间隙以及钢筋轴线等应符合有关规定,保证焊缝尺寸符合要求。

(4)、焊接地线应与钢筋接触良好,防止因起弧而烧伤钢筋。

(5)、钢筋电弧焊时不能忽视因焊接而引起的结构变形,应采下列措施:

A、对称施焊,

B、分层轮流施焊,

C、选择合理的焊接顺序。

5、电渣压力焊:

(1)、在整个焊接过程中,要准确掌握好焊接通电时间,密切监视造渣工作电压和电渣工作电压的变化,并根据焊接工作电压的变化情况提升或降低上钢筋,使焊接工作电压稳定在参数范围内。在顶压钢筋时,要保持压力数秒钟后方可松开操纵杆,以免接头偏斜或接合个良。在焊接结柬时,应立即措施扶正钢筋上端,以防止上、下钢筋错位和夹具变形,钢筋焊接结束时,应立即并检查钢筋是否顺直。如不顺直,要立即趁钢筋还在热塑状态时将其扳直,然后稍延滞12分钟后卸下夹具。

(2)、电渣压力焊焊接工艺适用于直径16~40mm级、级钢筋的焊接,当采用其他品种。规格的钢筋进行焊接时,其焊接工艺的参数应经试验。鉴定后方可采用。

(3)、焊剂要妥善存放,以免受潮变质。

(4)、焊接工作电压和焊接时间是两个重要的参数,在施工时不得随意变更参数,否则会严重影响焊接质量。

(5)、接头偏心和倾斜:主要原因是钢筋端部歪扭不直,在夹具中夹持不正或倾斜;焊后夹具过早放松,接头未冷却使上钢筋倾斜;夹具长期使用磨损,造成上下不同心。

(6)、咬边:主要发生于钢筋。主要原因是焊接时电流太大,钢筋熔化过快;上钢筋端头没有压人熔池中,或压入深度不够,停机太晚,通电时间过长。

(7)、未溶合:主要原因是在焊接过程中上钢筋提升过大或下送速度过慢、钢筋端部熔化不良或形成断弧;焊接电流过小或通电时间不够,使钢筋端部未能得到适宜的熔化量,焊接过程中设备发生故障,上钢筋卡住,未能及时压下。

(8)、焊包不匀:焊包有两种情况,一种是被挤出的熔化金属形成的焊包很不均匀,一边大一边小,小的一面其高不足2mm,另一种是钢筋端面形成的焊缝厚薄不均。主要原因是钢筋端头倾斜过大而熔化量又不足,顶压时熔化金属在接四周分布不匀或采用铁丝引弧时,铁丝球安放不正,偏向一边。

(9)、气孔:主要原因是焊剂受潮,焊接过程中产生大量气体渗入溶池,钢筋锈蚀严重或表面不清洁。

(10)、钢筋表面烧伤:主要原因是钢筋端部锈蚀严重,焊前未除锈;夹具电极不干净;钢筋未夹紧,顶压时发生滑移。

(11)、夹渣:主要原因是通电时间短,上钢筋在熔化过程中还未形成凸面即行顶压,熔渣尤法排出;焊接电流过大或过小;焊剂熔化后形hRft9熔渣粘度人,不易流动,顶压力太小,上钢筋在熔化过程气体渗入溶池,钢筋锈蚀严重或表面不清洁。

(12)、成型不良:主要原因是焊接电流大,通电时间短,上钢筋熔化较多,如顶压时用力过大,上钢筋端头压入熔池较多,挤出的熔化金属容易上翻;焊接过程中焊剂泄漏,熔化铁水失去约束,随焊剂泄漏下流。

四、混凝土工程

1、混凝土浇筑:

(1)、蜂窝

产生原因:振捣不实或漏振;模板缝隙过大导致水泥浆流失,钢筋较密或石子相应过大。

预防措施:按规定使用和移动振动器。中途停歇后再浇捣时,新旧接缝范围要小心振捣。模板安装前应清理模板表面及模板拼缝处的粘浆,才能使接缝严密。若接缝宽度超过2.5mm应予填封,梁筋过密时应选择相应的石子粒径。

(2)、露筋

产生原因:主筋保护层垫块不足,导致钢筋紧贴模板;振捣不实。

预防措施:钢筋垫块厚度要符合设计规定的保护层厚度;垫块放置间距适当,钢筋直径较小时垫块间距宜密些,使钢筋下重挠度减少;使用振动器必须待混凝土中气泡完全排除后才移动。

(3)、麻面

产生原因:模板表面不光滑;模板湿润不够;漏涂隔离剂。

预防措施;模板应平整光滑,安装前要把粘浆清除干净,并满涂隔离剂,浇捣前对模板要浇水湿润。

(4)、孔洞

产生原因:在钢筋较密的部位,混凝土被卡住或漏振。

预防措施:对钢筋较密的部位(如梁柱接头)应分次下料,缩小分层振捣的厚度;按照规程使用振动器。

(5)、缝隙及夹渣

产生原因:施工缝没有按规定进行清理和浇浆,特别是柱头和梯板脚。

预防措施:浇注前对柱头、施工缝、梯板脚等部位重新检查,清理杂物、泥沙、木屑。

(6)、墙柱底部缺陷(烂脚)

产生原因:模板下口缝隙不严密,导致漏水泥浆;或浇筑前没有先浇灌足够50mm厚以上水泥砂浆。

预防措施:模板缝隙宽度超过2.5mm应予以填塞严密,特别防止侧板吊脚;浇注混凝土前先浇足50100mm厚的水泥砂浆。

(7)、梁柱结点处(接头)断面尺寸偏差过大

产生原因:柱头模板刚度差,或把安装柱头模板放在楼层模板安装的最后阶殷,缺乏质量控制和监督。

预防措施:安装梁板模板前,先安装梁柱接头模板,并检查其断面尺寸、垂直度、刚度,符合要求才允许接驳梁模板。

(8)、楼板表面平整度差

产生原因:振捣后没有用拖板、刮尺抹平;跌级和斜水部位没有符合尺寸的模具定位;混凝土未达终凝就在上面行人和操作。

预防措施:浇捣楼面应提倡使用拖板或刮尺抹平,跌级要使用平直、厚度符合要求和模具定位;混凝土达到1.2Mpa后才允许在混凝土面上操作。

(9)、基础轴线位移,螺孔、埋件位移

产生原因:模板支撑不牢,埋件固定措施不当,浇筑时受到碰撞引起。

预防措施:基础混凝土是属厚大构件,模板支撑系统要予以充分考虑;当混凝土捣至螺孔底时,要进行复线检查,及时纠正。浇注混凝土时应在螺孔周边均匀下料,对重要的预埋螺栓尚应采用钢架固定。必要时二次浇筑。

(10)、混凝土表面不规则裂缝

产生原因:一般是淋水保养不及时,湿润不足,水分蒸发过快或厚大构件温差收缩,没有执行有关规定。

预防措施:混凝土终凝后立即进行淋水保养;高温或干燥天气要加麻袋草袋等覆盖,保持构件有较久的湿润时间。厚大构件参照大体积混凝土施工的有关规定。

(11)、缺棱掉角

产生原因:投料不准确,搅拌不均匀,出现局部强度低;或拆模板过早,拆模板方法不当。

预防措施:指定专人监控投料,投料计量准确;搅拌时间要足够;拆模应在混凝土强度能保证其表面及棱角不应在拆除模板而受损坏时方能拆除。拆除时对构件棱角应予以保护。

(12)、钢筋保护层垫块脆裂

产生原因:垫块强度低于构件强度;沉置钢筋笼时冲力过大。

预防措施:垫块的强度不得低于构件强度,并能抵御钢筋放置时的冲击力;当承托上人的梁钢筋时,垫块中应加钢筋或铁丝增强;垫块制作完毕应浇水养护。

(13)、柱混凝土强度高于梁板混凝土强度时,应按图在梁柱接头周边用钢网或木板定位,并先浇梁柱接头,随后浇梁板混凝土。

(14)、计量不准确。砂、石、水泥(包括散装水泥和水)未经计量或计量不准:外加剂没有按程序操作,而导致混凝土质量下降。

(15)、有台阶的构件,应先待下层台阶浇筑层沉实后再继续浇筑上层混凝土,防止砂浆从吊扳下冒出导致烂根。

(16)、浇筑悬臂板

应使用垫块,保证钢筋位置正确。

(17)、混凝土缺陷的处理

A、麻面:先用清水对表面冲刷干净后用1:21:2.5水泥砂浆抹平。

B、蜂窝、露筋:先凿除孔洞周围疏松软弱的混凝土,然后用压力水或钢丝刷洗刷干净,对小的蜂窝孔洞用1:21:2.5水泥砂浆抹平压实,对大的蜂窝露筋按孔洞处理。

C、孔洞:凿去疏松软弱的混凝土,用压力水或钢丝刷洗刷干净,支模后,用高标号混凝土捣实,面涂纯水环氧水泥浆进行封闭处理;裂缝较严重时,可用埋管压力灌浆。

(18)、严禁踩踏钢筋,确保钢筋配置符合设计要求。

2、预拌混凝土生产及运输:

(1)、遇有雨水影响砂、石含水率,应及时通知试验员进行测检,并调整配合比。

(2)、经常检查掺合料、外加剂的自动计量系统的工作状态是否正常。

(3)、混凝土搅拌车卸料前应检查拌简内拌合物是否搅拌均匀。

(4)、混凝土搅拌车在现场交货地点抽检的坍落度超过允许偏差值时应及时处理。

(5)、混凝土搅拌车卸车前已超过配比中规定的缓凝时间,应及时处理。

(6)、搅拌车的转速应按搅拌站对装料。搅拌、卸料等不同要求或搅拌车产品说明书要求进行动转,以保证产品质量。

(7)、搅拌车开工前要用水浇湿拌筒,并在装料前排清积水。

3、泵送混凝土:

(1)、混凝土输送管道的直管布置应顺直,管道接头应密实不漏浆,转弯位置的锚固应牢固可靠。

(2)、混凝土泵与垂直向上管的距离宜大于10m以抵消反堕冲力和保证泵的振动不直接传到垂直管,并在垂直管的根部装设一个截流阀,防止停泵时上面管内混凝土倒流产生负压。

(3)、向下泵送时,混凝土的坍落度应适当减小,混凝土泵前应有一段水平管道和弯上管道才折向下方。并应避免垂直向下装置方式以防止离析和混入空气,对压送不利。

(4)、凡管道经过的位置要平整,管道应用支架或木垫枋等垫固,不得育接与模板。钢筋接触,若放在脚手架上应采取加固措施。

(5)、垂直管穿越每一层楼板时,应用木枋或预埋螺栓加以锚固。

(6)、对施工中途新接驳的输送管应先清除管内杂物,并用水或水泥砂浆润滑管壁。

(7)、尽量减少布料器的转移次数,每次移位前应先请出管内混凝土拌合物。

(8)、用布料器浇注混凝土时,要避免对侧面模板的直接冲射。

(9)、垂直向上管和靠近混凝土泵的起始混凝土输送管宜用新管或磨损较少的管。

(10)、使用预拌混凝土时,如发现坍落度损失过大(超过2cm),经过现场试验员同意,可以向搅拌车内加入与混凝土水灰比相同的水泥浆,或与混凝土配比相同的水泥砂浆,经充分搅拌后才能卸入泵机内,严禁向储料斗或搅拌车内加水。

(11)、泵送中途停歇时间一般不应大于60min,否则要予以清管或添加自拌混凝土,以保证泵机连续工作。

(12)、搅拌车卸料前,必须以搅拌速度揽拌一段时间方可卸入料斗。若发现初出的混凝土拌合物石子多,水泥浆少,应适当加入各用砂浆拌匀方可泵送。

(13)、最初泵出的砂浆应均匀分布到较大的工作面上,不能集中一处浇筑。

(14)、若采用场外供应预拌混凝土时,现场必须适当储备与混凝土配比相同的水泥,以便制砂浆或自拌少量混凝土。

(15)、泵送过程,要做好开泵记录、机械运行记录。压力表压力记录,塞管及处理记录、泵送混凝土量记录、清洗记录,检修时做检修记录,使用预拌混凝土埋要做好坍落度抽查记录。

五、砌体工程

(1)、墙身轴线位移。造成原因:在砌筑操作过程中,没有检查校核砌体的轴线与边线的关系,以及挂准线过长而未能达到平直通光一致的要求。

(2)、水平灰缝厚薄不均。造成原因:在立皮数杆(或框架柱上画水平线)标高不一致,砌砖盘角的时候每道灰缝控制不均匀,砌砖准线没拉紧。

(3)、墙面游丁走缝。造成原因:砖的长、宽尺寸误差较大,砌前没有进行实测及挑选,排砖撂底时没有把竖缝排列均匀,或没将窗口位置引出,使砖的竖缝尽量与窗口边线相齐,在砌筑操作过程中,没有注意到丁砖的中线必须与下层条砖的中线相重合而造成丁砖游走,上下竖缝发生错位;没有在沿墙面每隔2m间距左右竖缝处用托线板吊直弹线向上引伸作为控制游丁走缝的基准。

(4)、同一砖层的标高差一皮砖的厚度。造成原因:砌筑前由于基础顶面或楼板面标高偏差过大而没有找平理顺,皮数杆不能与砖层吻合;在砌筑时,没有按皮数杆控制砖的皮数。

(5)、墙面粗糙。造成原因:砌筑时半头砌集中使用造成通缝,一砖厚墙背面平直度偏差较大;溢出墙面的灰渍(舌头灰)未刮平顺。

(6)、构造柱未按规范砌筑。造成原因:构造柱的侧砖墙没砌成马牙搓,没设置好拉结筋及从柱脚开始先退后进;当齿深120mm时上口一皮没按迸60mm后再上一皮才进120mm;落入构造柱内的地灰、砖渣杂物没清理干净。

(7)、墙体顶部与梁。板底连接处出现裂缝。造成原因:砌筑时墙钵顶部与梁板底连接处没有用侧砖或立砖斜砌(60°)顶贴挤紧。

六、楼地面工程

1、水泥砂浆面层。

(1)、起砂、起泡:

其原因有:水泥质量不好(过期或受潮至使强度降低),水泥砂浆搅拌不均匀,砂于过细或含泥量过大,水灰比过大,压光遍数不够及压光过早或过迟,养护不当等。因此。原材料一定要经试验合格才可使用;严格控制水灰比,用于地面面层的水泥砂浆稠度不宣大5cm(以标准圆锥体沉入度计);掌握好面层的压光时间。水泥地面的压光一般不应少于三遍。第一遍随铺随进行,第二遍压光应在初凝后终凝前完成,第三遍主要是消除抹痕和闭塞细毛孔,亦切忌在水泥终凝后进行,连续养护时间不少于7昼夜。

(2)、面层空鼓(起壳):

其原因有:砂子粒度过细,水灰比过大,基层清理不干净,基层表面不够湿润或表面积水,未做到素水泥浆随扫随做面层砂浆。因此,在面层水泥砂浆施工前应严格处理好底层(清洁、平整、湿润),重视原材料质量,素水泥浆应与铺设面层紧密配合,严格做好随刷随铺。

2、地砖面层:

(1)、面料与基层空鼓:主要是由于基层清理不够干净,不够湿润;水泥浆涂刷不均匀或结合层完成后放置时间过久,铺贴块料时没有洒水湿润;釉面砖、水泥花阶砖铺贴前没有浸水润湿;陶瓷锦砖铺贴前没有用毛刷沾水刷去表面尘土;水泥膏抹涂不均匀等。

(2)、错缝:面料尺寸规格不一,事前没有认真挑选分类使用;铺贴时没有认真严格按挂线标准及对好缝子。

(3)、相邻两板高低不平(剪口大):由于块料本身不平正:铺贴操作不当;铺贴后过早上人行走踩踏或堆物品(有时还出现松动现象)。

七、装饰工程

1、一般抹灰:

(1)、门窗洞口、墙面、踢脚板,墙裙上等抹灰空鼓、裂缝,其主要原因有如下几点:

A、门窗框两边塞灰不严,墙体预埋木砖问距过大或木砖松动,经门窗开关振动,在门窗框周边处产生空鼓、裂缝。应重视门窗框塞缝工作,设专人负责堵塞实。

B、基层清理不干净或处理不当,墙面浇水不透,抹灰后,砂浆中的水分很快被基层(或底灰)吸收。应认真清理和提前浇水。

C、基底偏差较大,一次抹灰过厚,干缩率较大。应分层找平,每遍厚度宜为79mm

D、配制砂浆和原材料质量不好或使用不当,应根据不同基层本配制所需要的砂浆,同时要加强对原材料的使用管理工作。

(2)、抹灰面层起泡,有抹纹。开花(爆灰仔)。主要原因有如下几点:

A、抹完面层灰后,灰浆还未收水就压光,因而出现起泡现象。在基层为混凝土时较为常见。

B、底灰过分干燥,又没有浇透水,抹面层灰后,水分很快被底层吸去,因而来不及压光,故残留抹纹。

C、淋制石灰膏时,对过大灰颗粒及杂质没有过滤好,灰膏熟化时间短。抹灰后,继续吸收水分熟化,体积膨胀,造成抹灰面出现开花(爆灰)现象。

(3)、抹灰表面不平,阴阳角不垂直,不方正。主要是抹灰前吊垂直,套方以及打砂浆墩冲筋不认真,或冲筋后间隔时间过短或过长、造成冲筋被损坏,表面不平;冲筋与抹灰层收缩不同,因而产生高低不平,阴阳角不垂直,不方正。

(4)、门窗洞口,墙面、踢脚扳、墙裙等面灰接搓明显或颜色不一致。主要是操作时随意留施工缝造成。留施工缝应尽量在分格条、阴角处或门窗框边位置。

(5)、踢脚板、水泥墙裙和窗台板上口出墙厚度不一致,上口毛刺和口角不方等。主要是操作不细,墙面抹灰时下部接近踢脚板等处不平整,凹凸偏差大,或踢脚板等施工时的没有拉线找直,抹完后又不反尺把上口赶平、压光。

(6)、管道抹灰不平。主要是工作不认真细致,没有分层找平,压光。

2、釉面砖工程:

(1)、空鼓:基层清理不够干净;抹底灰时,基层没有保持湿润;面砖铺贴前没有事先泡浸或底子灰而没有保持湿润;面砖背抹水泥不够均匀或量不足;砂浆配合比不准,稠度控制不好,砂浆中含砂量过大,以及粘贴砂浆不饱满,面砖勾缝不严均可引起空鼓。

(2)、墙面脏:主要因为铺贴完成后,没有及时将墙面清洗干净,贴砖用水泥膏粘着砖面,以及擦缝时没有将多余白水泥浆彻底清干净。此时可用棉纱稀盐酸加20%水刷洗,然后用清水冲净即可。

3、乳胶漆工程:

(1)、透底:产生原因是涂层薄,因此刷乳胶漆时除应注意不漏刷外,还应保持乳胶漆的稠度,不可随意加水过多。有时磨砂纸时磨穿腻于也会出现透底。

(2)、接槎明显:涂刷时要上下顺刷,后一排笔紧接前一排笔,若间隔时间稍长,容易看出接头,因此大面积涂刷时,应配足人员,互相衔接。

(3)、刷纹明显:乳胶漆稠度要适中,排笔蘸漆量要适当,多理多顺防止刷纹过大。

(4)、刷分色线时,施工前认真划好粉线,用力均匀,起落要轻,排笔蘸漆量要适当,从上至下或从左至右刷。

(5)、涂刷带颜色的乳胶漆时,配料要合适,保证独立面每遍用同一批涂料,并且一次用完,保证颜色一致。

第五 成品保护措施

一、土方工程

1、土方开挖:

(1)、对定位桩、水准点等应注意保护好,挖运土时不得碰撞。并应定期复测,检查其可靠性。

(2)、基坑(槽)的直立壁和边坡,在开挖后应有措施。避免塌陷。

(3)、挖土需要的支护结构,在基础施工的全过程要做好保护,不得任意损坏或拆除。

2、土方回填

(1)、施工时,应注意保护有关轴线和标准高程进点,防止碰撞下沉。

(2)、基础胎膜的砂浆应达到一定的强度,不致受损坏时方可进行回填作业。

二、防水施工

1、施工人员应掌握好作业顺序,减少在己施工的涂层上走动,也不能在防水层上堆放物品。

2、防水涂膜固化后,应及时做保护层。

三、模板工程

1、坚持每次使用后清理板面,涂刷脱模剂。

2、按楼板部位层层复安,减少损耗。

3、材料应按编号分类堆放。

四、钢筋工程

1、钢筋加工:

(1)、各类型钢筋半成品,应按规格、型号、品种堆放整齐,挂好标志牌,堆放场所应有遮盖,防止雨淋日晒。

(2)、转运时钢筋半成品应小心装卸,不应随意抛掷,避免钢筋变形。

2、钢筋安装:

(1)、成型钢筋、钢筋网片应按指定地点堆放,用垫木垫放整齐,防止压弯变形。

(2)、成型钢筋不准踩踏,特别注意负筋部位。

(3)、运输过程注意轻装轻卸,不能随意抛掷。

(4)、成型钢筋长期放置未使用,宣室内堆放垫好,防止锈蚀。

3、钢筋闪光对焊:

(1)、钢筋焊接半成品按规格理分类堆放整齐,堆放场所应有遮盖,防止日晒雨淋。

(2)、转运钢筋对焊半成品不能随意抛掷,以免钢筋变形。

(3)、焊接半成品不能浇水冷却,待冷却后方能移动。

4、电渣压力焊:

(1)、不准过早拆卸卡具,防止接头弯曲变形。

(2)、焊后不得砸钢筋接头,不准往刚焊完的接头浇水。

(3)、焊接时应搭好架子,不准踩踏其他己绑好的钢筋。

五、混凝土工程

1、一般混凝土工程:

(1)、混凝土浇筑期间,及时校对预留伸出钢筋或埋件位置。

(2)、己浇的楼板混凝土强度达到1.2MPa后才准在楼面上进行

(3)、侧面模板应在混凝土度能保证其棱角不因拆模而受损坏时,方可拆模。

(4)、不能用重物冲击模,不准在梁侧板或吊板卜蹬踩。

(5)、使用振动棒时,注意不要触碰钢筋与埋件、预埋螺栓、暗管等,如发现变异应及时校正。

(6)、南期施工应备有足够的防御措施,及时对已浇筑的部位进行遮盖。下雨期间,应避免露大作业。

2、预拌混凝土:

(1)、搅拌车应按额定量装载,不准超载,防止水泥浆流失。

(2)、搅拌车卸混凝土前要检查拌合物不得出现离析,不得超过初凝时间。

3、泵送混凝土:

(1)、泵送混凝土一般掺有缓凝剂,其养护方法与水掺外加剂的混凝土相同。应在混凝土终凝后才浇水养护,并且要加强早期养护。

(2)、为了减少收缩裂缝,待混凝土表面无水渍时,宜进行第二次研压抹光。

(3)、由于泵送混凝土的水泥用量大,宜进行蓄水养护,或覆盖湿草袋。麻袋等物,以减少收缩裂缝。

六、楼地面工程

1、推手推车时不许碰撞门口立边和栏仟及墙柱饰面,门框适当要包铁应保护,以防手推车轴头碰撞门框。

2、施上时不得碰撞水暖立管等。

3、施工时保护好地漏、出水口等部位安放的临时堵头,以防灌入浆液杂物造成堵塞。

4、沾污的墙柱面、门窗框设备立管线要及时清理干净。

5、水泥砂浆面层养护期内(一般宜不少于7天),严禁在饰面推手推车,放重物及随意践踏。

6、地砖面层调整、擦缝的操作人员,要穿软底鞋,踩踏面料时要垫上平整木板。

7、完成后的地面,两天内严禁上人行走及堆放物品,表面要保护。

七、抹灰、面砖工程

1、推小车或搬运物料时,要注意不要碰撞墙角、门框等。压尺和铁铲等工具不要靠在刚完成的墙的面抹灰层上。

2、拆除脚手架时要注意轻拆轻放,不妄撞坏门窗和墙面。

3、要保护好墙上己安装的配件、窗帘钩(罩)。电线槽盒等室内设施,对被砂浆粘上。污染的要及时清刷干净。

4、抹灰层凝结硬化前应防止水冲、撞击、振动和挤压

5、要保护好地漏、粪管等处不被堵塞。

6、粘在门窗框上的砂浆应及时清理干净。

八、乳胶漆工程

1、墙柱表面的未干前,室内不得清扫地面,以免尘土粘污墙柱面,干燥后也不得往墙柱面泼水,以免沾污。

2、墙柱面涂刷乳胶漆完成后,要妥善保护,不得碰撞。

3、涂刷墙柱面时,不得沾污地面、门窗、玻璃等己完的工程。

第十二章 各工序的协调措施

本工程施工工序穿插多;质量要求高;在施工中投入的工种多,施工人员多;故在施工组织中对各工序的协调至关重要。在本工程采取以下协调措施:

1.建立健全现场的计划协调调度管理系统,形成现场施工指挥中心和施工活动的协调中心。

2.建立计划协调调度会议制度,形成施工指挥系统解决问题的一种形式。

3.计划协调管理的主要内容:

(1)监督、检查施工计划和合同执行情况,掌握和控制施工进度、施工质量,及时进行工、料、机的平衡和调配,保证施工的正常进行。

(2)及时解决施工中出现的矛盾,协调各工序;各工种之间的关系。

(3)依照施工要求和采取的施工方案,确定各工序先后施工顺序和相互之间的配合。

(4)明确各工序的职责和工序之间的交接条件。

(5)及时准确传达上级对施工的有关规定,发布调度命令。

4.由生产、技术、质量部门依据设计文件制定出详细的各工序相互交叉点,并向各工种进行详细的交底。

    5.设立专职人员负责日常协调工作。

第十三章 雨季施工措施

第一节  雨季施工措施

为了保证雨季施工的工程质量,防止雨季施工的质量事故,使整个工程的工期得到保障,特别是在雨季施工管理上制定总体保证措施,加强雨季施工项目全面管理,以确保目标实现。

一、管理体系

1、组织机构:为加强项目部的雨季施工协调管理,项目部成立雨季施工工作领导小组。

2、组织职能

1)负责制定雨季施工的质量、安全措施并负责监督各项计划、措施的落实情况,而保证项目部雨季施工目标的实现。

2)施工结构部位以及工程进度的控制,加强对施工质量的检查力度,发现问题,负责组织分析问题,解决问题,制定有针对性的措施。

二、雨季施工各项质量保证措施

1、模板支设与钢筋绑扎要避免在雨天施工,混凝土浇筑同样要尽可能不在雨天进行,如因某种原因而在雨天浇筑混凝土时,要对施工结构物的顶部用塑料布进行遮罩,让模板内不进入雨水,保证浇筑质量。在模板支设好,但尚未浇筑时,要用塑料布将其封闭,以防止雨水冲刷模板或钢筋,造成生锈或其他有损质量的事情发生。

2、钢木加工区设置定型罩棚,以防止施工过程中钢筋及模板被雨淋,影响使用效果。

3、项目经理部实行雨季干部值班制度,设兼职气象员负责搜集各级气象预报部门的气象资料,把天气预报情况与施工安排结合起来,为保证雨季施工的质量、安全、工期等做好信息保证。

4、雨季施工要适当缩小工作面,并随时完善地表水排泄系统,保证雨后无积水现象。

5、钢筋、水泥、模板应有完善的防雨措施。钢筋离开地面30cm进行存放;水泥放在罩棚内的水泥存放平台上。

6、在浇筑大体积混凝土时,如遇大雨应停止浇筑,并作临时防雨措施,不能使雨水直接冲刷浇筑的混凝土表面。

7、施工现场的各类施工机具,应有防雨措施,防止漏电。

三、雨季施工安全保证措施

1、在雨季到来之前,安全员对所有人员进行安全教育,实施内部安全考核制度,不合格者不准上岗,把安全生产责任制落实到岗位和个人,杜绝违章指挥、违章操作。

2、施工现场的所有电器必须设置防雨罩具以及漏电防护装置,临建和堆物与高压线之间要有足够的安全距离,避免漏电伤人事故。

3、雨后要及时排除和清理施工现场的积水、烂泥,以保证过往施工车辆的方便与安全。

4、进行雨季前,应对全体职工做好雨季施工安全主意事项的专题教育,尤其是要提醒施工人员雷雨天气不要在高压杆、大树等易遭雷击的物体下面避雨。

5、施工现场增设排水设备、雨棚等,避免坍塌和水淹。

6、做好变电室、库房、机具设备等要害部门的防雨损工作。

7、有制冷、通风的电器设备必须经电工人员进行专业检查合格后方可使用。室外的电器设备、电闸箱等要采取防雨措施,使用移动电器必须安装漏电保护器,防止触电事故的发生。

四、热期混凝土施工

热期混凝土施工为保证高温条件保证工程质量制定以下措施:

1、混凝土拌合用水冷却,对水管及水箱遮荫和隔热设施,并对砂石进行防晒降温。

2、配合比设计应考虑坍落度损失,掺加减水剂减小水泥用量和提高混凝土早期强度,经常测混凝土坍落度,以调整砼配比,满足坍落度要求。

3、混凝土运输尽量缩短时间,运输搅拌车运输中应慢速搅拌。

4、热期施工混凝土应有全面组织计划,准备工作充分,施工设备有足够备件,保证连续进行。

5、混凝土浇筑温度应控制在32以下,宜选择一天温度较低时间进行。

6、浇筑前对模板钢筋及地基进行喷水降温,但在浇注面上不能有附水。

7、应加快混凝土表面整修速度,修整时可用喷雾器洒少量水,防止表面裂绞。

8、混凝土浇筑完,表面应立即覆盖塑料膜,初凝后采用浸湿土工布覆盖,经常洒水,保湿7天。

第二节  冬季施工措施

1主要物资准备:

材料准备:

所有进场材料必须合格,有材质证明及复试报告。 并且在经复试合格后方可使用。

机械准备:

现场备有足够的冬施设备,进场设备要有安全防护用品装置,必须齐全有效。设备进场后验收合格后方可使用,使用前认真检查,一机一闸一漏保,不符合要求的不得使用。

2人力资源准备:

加强冬季施工的质量意识,对工地技术质量人员进行培训,教育在冬施情况下与常温条件下的应注意的事项。

加强工地管理人员的安全意识,增派安全人员2名以保证在冬季施工中不出安全事故,及把安全隐患降到最低。

3冬施准备工作

1组织措施

1)在入冬前应组织专人编制冬季施工方案。编制的原则是:确保工程质量;经济合理,使增加的费用为最少;所需的热源和材料有可靠的来源,并尽量减少能源消耗;确实能缩短工期。冬季施工方案应包括以下内容:施工程序;施工方法;现场布置;设备、材料、能源、工具的供应计划;安全防火措施;测温制度和质量检查制度等。方案确定后,要组织有关人员学习,并向班组进行交底。

2)进入冬季施工前,应专门组织技术业务培训,学习本工作范围内的有关知识,明确职责,经考试合格后,方准上岗工作。

3)与当地气象台、站保持联系,及时收听天气预报,防止寒流突然袭击。

4)安排专人测量施工期间的室外气温,砂浆、砼的温度并作好记录。

2)图纸准备

凡进行冬季施工的工程项目,必须复核施工图纸,查对其是否能适应冬季施工要求。否则应通过图纸会审解决。

3)现场准备

1)根据实物工程量提前组织有关机具、外加剂和保温材料进场。

2)工地的临时供水管道及白灰膏等材料做好保温防冻工作。

4安全与防火

1)冬季施工时,要采取防滑措施。生活区及施工道路、架子、坡道经常清理积水、积雪、结冰,斜跑道要有可靠的防滑条。

2)大雪后必须将架子上的积雪清扫干净,并检查马道平台,如有松动下沉现象,务必及时处理。

3)施工时如接触热水,要防止烫伤;使用氯化钙、漂白粉时,要防止腐蚀皮肤。

4)现场火源,要加强管理;使用电焊、气焊时,应注意防止发生火灾。

5)电源开关,控制箱等设施要统一布置,加锁保护,防止乱拉电线,设专人负责管理,防止漏电触电。

6)冬季施工中,凡高空作业应系安全带,穿胶底鞋,防止滑落及高空坠落。

7)施工现场水源及消火栓应设标记。

4冬期施工措施

1冬季施工前,应将冬季施工所用的材料、机械、工具等备足备齐、落实到人,专人负责、统一调度。建立健全冬季施工领导班子确保冬季施工措施落到实处。

2在冬季施工中,多注意收集天气预报,做好测温工作。测温工作不仅是提供温度数据对施工起参考作用,而且也是对冬季施工工程质量的签定方法,所以在冬季施工中必须设专人负责定时坚持做好测温工作。

3测温后应将温度变化及时反馈,以便采取相应处理措施。做好每天气象记录,并应及时公布天气预报情况。

4安装塑料管线妥善保管,避免露天放积雪覆盖,使管线变脆,影响工程质量。

5施工时如接触汽源、热水要防止烫伤。现场火源,要加强管理,使用焦碳炭炉,煤炉或煤气时,应注意通风换气,防止煤气中毒。

6严禁食品与施工用品混放。亚硝酸钠有剧毒要严加保管,防止发生误食中毒。

7电源开关、控制箱等设施要统一布置,加锁保护,防止乱拉电线使用电炉、碘钨灯、热水器、大功率灯泡等电器而发生触电事故。设专人负责安全用电管理,每日进行例行检查,确保施工用电安全,并记录在案。

8加强夜间巡逻,做好防火、防盗工作,给工程冬季施工创造有利条件,保证工程质量和工程进度。

第十四章 施工安全保证措施

    百年大计,质量第一,工程建设,安全为本。安全生产,始终是工程项目管理的头等大事。必须认真贯彻国家的安全方针和有关安全生产的各项规定,加强工程建设中安全生产的领导和管理,保证建设者的安全生产管理工作。为了全面贯彻落实安全第一、预防为主的方针,我项目部将认真落实国家和上级部门颁布的有关职业安全卫生管理的法律、法规和文件,确保施工过程中人员的生命安全和身体健康,杜绝死亡事故和重大伤亡事故的发生,控制一般事故的发生频率。

第一节 安全生产管理体系

一、安全生产目标

达到五无目标,即“无死亡事故,无重大伤人事故,无重大机械事故,无火灾,无中毒事故”。

二、安全生产管理体系

公司安全工作领导小组领导全面的安全工作,主要职责是领导公司开展安全教育,贯彻宣传各类法规,通知和上级部门的文件精神,制订各类管理条例,每周对各项目工程进行安全工作检查、评比,处理有关较大的安全问题。项目部成立安全管理小组,并设专职安全员,主要职责是负责进行对工人的安全技术交底,贯彻上级精神,每天检查工程施工安全工作,每周召开工程安全会议一次。制订具体的安全规程和违章处理措施,并向公司安全领导小组汇报1次。各作业班组设立兼职安全员,主要是带领各班组认真操作,对每个工人耐心指导,发现问题即时处理并及时向工地安全管理小组汇报工作。

三、安全检查制度

在施工过程中,除正常的安全检查外,公司每月检查一次,工程处每半月检查一次,项目部每周检查一次,发现问题落实到人,限期整改,消除隐患,确保施工安全。

四、安全教育制度

按照公司的安全教育制度,加强宣传教育,制订科学合理的施工方案,现场组织切合实际的作业程序,正确严格地执行和运用施工及安全规范。对进场的工人进行摸底测试,统一进行安全教育,增强质量、安全意识。各专业班组认真钻研设计图纸进行技术交底,认真学习和深刻体会施工技术规范和施工安全规范。经过培训交底达到合格的职工才允许上岗操作,为安全工作顺利圆满开展打下坚实的基础。在施工过程中,建立每周一次的安全教育,由项目经理或专职安全员主持。同时在每道施工工序进行前,由专职安全员做书面的安全技术交底,各班组长带领施工人员认真贯彻落实。

 

第二 安全生产保证措施

一、技术措施

1、在施工总平面设计中人流和货流的安全通道的规划,仓库、物料、机具的布置都要符合消防和安全卫生规定,并落实消防和卫生急救设施,设置不同类型的安全防护棚。

2、主体结构施工针对的结构、模板体系分别详细地在分项工程方案中专门编制安全技术交底。

3、高层建筑施工脚手架应编制专门的搭设和拆除的作业方案和安全使用管理规定。

4、高层建筑施工中物料和人员的垂直运输量大,要编制专门的安全使用管理规定。

二、施工机械安全

1、塔吊:必须保证起重量限制器、力矩限制器、高度限制器、行程限制器、幅度限位器和吊钩保险装置、卷筒保险装置等安全装置。每天设备部操作人员对安全装置进行检查,若出现安全装置工作不正常,有专人负责进行维修和更换,一定在各个安全装置均正常工作时才进行运转。严格按操作规程使用、维修和保养。安装完毕后,经公司安全部门验收后方可是用。

2、井架:井架组装后应进行验收,并进行空载、动载和超载试验。严禁载人和超载运行,附墙架严禁随意拆除,司机离开时,应降下吊篮并切断电源。

3、电梯:按规定安装接地保护;电梯笼周围2.5米范围必须设置稳固的防护栏杆:限制器、制动器必须由专人管理,并按规定进行调试检查,保证灵敏可靠。每天都对所有的安全装置进行测试才能进行当天的运转。电梯笼载人、载物时应荷载分布均匀,严禁超载使用;电梯宋切断电源时,司机不得离开岗位,各层通道处应安装栏杆或安全门。每部电梯配备两名司机。安装完毕后,经公司安全部门验收后方可是用。

4、其它机械:按操作规程使用,加强对机械设备的管理,做到常检、常修、常保养,保持良好的工作状态。

三、安全用电

电源采用三相五线制,设专用接地线。总配电箱和分配电箱应设防雨罩和设门锁,同时设相应漏电保护器。从底层通往楼层的电路及楼层施工用的电路一律采用质量合格的电缆,并要正确架设。严格做到“一机一闸一漏电保护装置”,一切电气设备必须有良好的接地装置。电动机械必须定机定人专门管理,使用小型手持电动工具时均使用带漏电保护的闸箱。

四、防雨、防雷措施

塔吊及外架必须有避雷措施。防雷接地可与工程的避雷预埋件临时焊接连通,接地电阻达到规定要求,每月检测一次,发现问题及时改正。设专人掌握气象信息,及时作出大风,大雨预报,采取相应技术措施,防止发生事故。禁止在风、暴雨等恶劣的气候条件下施工。

五、脚手架安全

外墙施工采用落地式双排钢管脚手架和外爬架,外侧采用全封闭密目式安全挂网;脚手架应按施工实际可能承受的最大荷载进行设计和计算。应在安全人员和技术人员的监督下由熟练工人负责搭设;脚手架的检查分验收检查。定期检查和特别检查。使用中要严格控制架子上的荷载,尽量使之均匀分布,以免局部超载或整体超载;使用时还应特别注意保持架子原。有的结构和状态,严禁乱挖基脚、任意拆卸结构杆件和连墙拉结及防护设施。项目部安全负责人组织分段验收,并报请公司安全部门核验。

六、安全标志和安全防护

1、安全标志:划分安全区域,充分和正确使用安全标志,布置适当的安全标语和标志牌,各种施工机械均需挂设操作规程。

2、安全防护:

(1)、安全防护棚:在人员通道和临近小区道路上方都应采用钢管搭设安全防护棚,安全防护棚要满铺一层模板和一层安全网,侧面用钢筋网做防护栏板。高压电线线路侧面和上方采用竹杆和模板搭设隔离墙和防护棚。

见下图:

防护棚做法图

(2)、“三宝、四口、五临边”防护

现场人员坚持使用“三宝”。进入现场人员必须戴安全帽并系紧帽带,穿胶底鞋,不得穿硬底鞋、高跟鞋、拖鞋或赤脚、高处作业必须系安全带。

做好“四口”的防护工作。在楼梯口、电梯口、预留洞口设置围拦、盖板、架网,正在施工的建筑物出人口和并字架,门式架进出料口,必须搭设符合要求的防护棚,并设置醒目的标志。

做好“五临边”的防护工作。五临边指阳台周边,屋面周边,

框架工程楼层周边,跑道,斜道两侧边,卸料平台的外侧边。“五临边”必须设置1.0M以上的双层围栏或搭设安全网。

电梯井口防护示意图

 

 楼梯、楼层和阳台防护示意图

 

 

 


 

                    楼梯安全防护

第三 安全用电及防火措施

、安全用电组织措施

1、电工必须持证上岗

2、项目部建立临时用电施工组织设计和安全用电技术措施的编审批制度,并建立相应的技术档案。

3、建立技术交底制度。

由项目部安全主任及电气主管向专业电工、各类用电人员介绍临时用电施工组织设计和安全用电技术措施的总体意图、技术内容和注意事项,并在技术交底文字资料上履行交底人和被交底人的签字手续,注明交底日期。

4、建立安全检测制度。

从临时用电工程开工始,根据制度要求定期对临时用电工程进行检测,主要内容包括接地电阻值、电气设备绝缘电阻值、漏电保护器动作参数等,以监视临时用电工程是否安全可靠,并作好检测记录。

5、建立电气维修制度。

加强日常和定期维修工作,及时发现和消除隐患,并建立维修记录,记明维修时间、地点、内容、技术措施、处理结果、维修人员、验收人员等。

6、建筑工程竣工后,临时用电工程的拆除应有统一的组织和指挥,并须规定拆除时间、人员、程序、方法、注意事项和防护措施等。

7、建立安全检查和评估制度。

施工管理部门和企业要按照JGJ59-99《建筑安全检查评分标准》定期对现场用电安全情况进行检查评估。

8、建立安全用电责任制。

对临时用电工程各部位的操作、监护、维修分片、分块、分机、落实到人,并辅以必要的奖惩。

9、建立安全教育和培训制度。

定期对专业电工和各类用电人员进行用电安全教育和培训,经过考核合格者持证上岗。禁止无证或随意串岗。

二、安全用电技术措施

1、线路及配电安装要求:

接地与接零

施工现场使用的中性点直接接地的低压电力线中,必须采取三相五线制TN-S接零保护系统。

①、保护零线应由工作接地线、配电室的零线或第一级漏电保护器电源侧的零线引出;

②、保护零线应与工作零线必须分开单独敷设,不得作它用,保护零线(即PE线)必须采用绿/黄双色线;

③、保护零线必须在配电室(或总配电箱)配电线路中间和末端至少三处作重复接地,重复接地线应与保护零线相连接;

④、保护零线的截面应不小于工作零线的截面,同时必须满足机械强度的要求,其中,架空敷设间距不大于12时,采用绝缘铜线截面不小于10mm2;与电气设备相连接的保护零线为截面不小于2.5mm2的绝缘多股铜线;

⑤、电气设备的正常情况下不带电的金属外壳、框架、部件、管道、轨道、金属操作台以及靠近带电部分的金属围栏、金属门等均应用保护接零;

⑥、供电电力变压器中性点的直接工作接地电阻值应不小于4欧姆,保护零线重复接地电阻值应不小于10欧姆。不得一部分设备作保护接零,另一部分作保护接地。

3、配置漏电保护器

①、施工现场的配电箱(配电室)和开关箱至少配置两级漏电保护器;

②、漏电保护器应选用电流动作型,一般场合漏电保护器的额定漏电动作电流应不大于30MA,额定漏电动作时间应不大于0.1s;潮湿和有腐蚀介质场所的漏电保护器,其额定漏电动作电流和额定漏电动作时间乘积的极限值为(大于)30MA.S

③、开关箱内漏电保护器的选用应与动力设备的容量大小、相数等实际情况相适应、相配合,如三相电动机则应选用参数匹配的三相三线的漏电保护器;照明用电必须与动力用电分开,照明应选用单相二线的漏电保护器。

4、开关箱按三级设置,即总配电箱   分配电箱   开关箱,开关箱距离机具不能超过三米,开关箱实行一机一闸一漏电保护。

5、外电保护

①、在建工程(含脚手架)的外侧边缘与外电架空线路的边线之间和最小安全操作距离:

电压1KV以下为4

电压1KV-10KV之间为6

②、施工现场的机动车道与外电架空线路交叉时的最小垂直距离:

电压1KV以下为6

电压1KV-10KV之间为7

6、配电系统

①、所有的电线架设都必须使用电杆、绝缘子、横担等,按规范要求架设;

②、开关电器及电气装置必须完好无损;

③、开关电器及电气装置必须装设端正、牢固,不得拖地放置;

④、带线导线与导线之间的接头必须绝缘包扎,带电导线必须绝缘良好;

⑤、带电导线严禁搭、挂、压在脚手架或其它物体上;

⑥、配电箱与开关箱必须标注名称、用途、分路标记;配电箱、开关箱应配锁并有专人负责;

⑦、电箱内部及其周围临近区域不得有杂物、灌木和杂草等;

⑧、室外用电严禁拉设使用花线,严禁使用铜线或其它金属线代替保险丝使用,严禁工人宿舍内乱拉电线、插座、烧电炉、电饭煲;

⑨、电气装置应定期检修,检修时必须做到:

a.停电;

b.悬挂停电标志牌,挂接必要的接地;

c.由相应级别的专业电工检修;

d.检修人员应穿绝缘鞋和手套,使用电工绝缘工具;

e.有组织和专人统一指挥。

7.照明

①、在夜间施工或自然采光的场所、料具堆放场、道路、仓库、办公室、食堂、宿舍等设备一般照明、局部照明或混合照明;

②、根据使用场所的环境条件选择相应的照明器;

③、行灯电压不超过36V,灯具离地面高度底于2.4等场所照明电压不大于36V。潮湿及易触及带电体场所照明电压不大于24V

④、根据需要设置警卫和红色信号照明和事故照明,其电源应设在施工现场电源总开关的前侧,并配备电源。

8、对现场所有施工人员进行安全用电基本知识培训。

三、电气防火组织措施

1、建立电气防火教育制,经常进行电气防火知识教育和宣传,提高各类用电人员的电气防火自觉性。

2、建立易燃、易爆物和强腐蚀介质管理制度。

3、建立电气防火责任制,加强电气防火重点场所烟火管制,并设置禁止烟火标志。

4、建立电气防火检查制,发现问题,及时处理。

5、强化电气防火领导体制,组建防火安全队伍。

四、电气防火技术措施

1、在电气装置和线路周围不堆放易燃、易爆和强腐蚀介质,不使用火源。

2、加强电气设备相间和相一地间绝缘,防止闪烁。

3、合理配置、整定、更换各种保护电器,对电器和设备的过载、短路故障进行可靠的保护。

4、对电气装置相对集中的场所,如配电室、发电机室等配置绝缘灭火器材等,并禁止烟火。

5、设置合理的防雷装置。

第四 分项工程安全技术措施

一、安全技术交底制度

1、工程开工前,应随同施工组织设计,向参加施工的职工认真进行安全技术措施的交底,使广大职工都知道,在什么时候、什么作业应当采取哪些措施,并说明其重要性。

2、每个单项工程开始前,必须重复交代单项工程的安全技术措施,坚决纠正只有编制者知道,施工者不知道的现象。

3、实行逐级安全技术交底制,开工前由技术负责人向全体职工进行交底,两个以上施工队或工种配合施工时,要按工程进度交叉作业的交底,班组长每天要向工人进行施工要求、作业环境的安全交底,在下达施工任务时,必须填写安全技术交底卡。

二、分项工程安全技术措施

、地面工程(细石混凝土、水泥砂浆)安全技术措施

1、操作时必须穿胶鞋,以免水泥浇脚。

2、晚上收光地面要有足够的照明。不得随便移动临时照明线,不准把衣物等挂在电线上。

3、在室内推运输小车时,特别是在过道中拐弯时要注意小车把挤手。人推小车时不准倒退。

4、清理楼地面时,清理出的垃圾杂物等,不得由窗口、阳台、井道随意向下抛掷。

5、井架吊篮提升或下降时,必须关好井架安全门,头、手不准伸入井架内,待吊篮停稳,方能进入吊篮内工作。

6、冬季施工,如需生炉增温,必须经主管防火工作的领导批准,并落实防火措施。

、电焊工程安全技术措施

1、电焊、气割,严格遵守“十不烧”规程操作。

2、操作前应检查所有工具、电焊机、电源开关及线路是否良好,金属外壳应有安全可靠接地,进出级应有完整的防护罩,进出端应用铜接头焊牢。

3、每台电焊机应有专用电源控制开关。开关的保险丝容量,应为该机的1.5倍,严禁用其它金属丝代替保险丝,完工后,切断电源。

4、电气焊的弧火花点必须与氧气瓶、电石桶、乙炔瓶、木材、油类等危险物品的距离不少于10米。与易爆物品的距离不少于20米

5、乙炔瓶氧气瓶均应设有安全回火防止器,橡皮管连接处须用轧头固定。

6、氧气瓶,严防沾染油脂、有油脂衣服、手套等,禁止与氧气瓶、减压阀、氧气软管接触。

7、清除焊渣时,面部不应正对焊纹,防止焊渣溅入眼内。

8、经常检查氧气瓶与磅表头处的螺绞是否滑牙,橡皮管是否漏气,焊枪嘴和枪身有无阻塞现象。

9、注意安全用电,电线不准乱拉,电源线均应架空扎牢。

10、焊割点周围和下方应采取防火措施,并应指定专人防火监护。

、外用电梯操作使用安全技术措施

1、电梯操作人员须经有关部门培训,经考试合格后方准操作。应了解本机构造,熟悉例行保养知识。做到持证上岗。                              

2、电梯每班首次运行前,操作人员应详细检查操作系统,电器系统,结构和机构系统,制动和保险系统,确认无误后,方可运行。

3、人货电梯载入载货时应尽量做到均布,严禁偏载起载。

4、电梯运行到上限和下限时,操作人员应尽量略前手动停机,尽量减少频繁碰击限位或碰块。

5、电梯操作手在运行中做到精神集中,密切监视运行动态,禁止在工作状态中与他人闲谈逗闹。

6、操作手应作好运转记录,严格执行交接班制度和操作规程。

7、作业完毕,将电梯降到底层,控制手柄应在“0”。切断总开关,锁好电梯门。

8、风力达6级以上,停止使用电梯,并将货笼降到底层。

、钢筋工程安全技术措施

1、钢筋加工:

(1)、机械必须设置防护装置,注意每台机械必须一机一闸并设漏电保护开关。

(2)、工作场所保持道路畅通,危险部位必须设置明显标志。

(3)、操作人员必须持证上岗。熟识机构性能和操作规程。

2、钢筋安装:

(1)、搬运钢筋时,要注意前后方向有无碰撞危险或被钩持料物,特别是避免碰挂周围和上下方向的电线。人工抬运钢筋,上户卸料要注意安全。

(2)、起吊或安装钢筋时,应和附近高压线路或电源保持一定安全距离,在钢筋林立的场所,雷雨时不准操作和站人。

(3)、在高空安装钢筋应选好位置站稳,系好安全带。

3、钢筋对焊:

(1)、对焊前应清理钢筋与电极表面污泥、铁锈。使电极接触良好,以免出现“打火”现象。

(2)、对焊完毕不要过早松开夹具,连接头处高温时不要抛掷钢筋接头,不准往高温接头上浇水,较长钢筋对接应安置台架上。

(3)、对焊机选择参数,包括功率和二次电压应与对焊钢筋时相匹配,电极冷却水的温度,不得超过40℃,机身应接地良好。

(4)、闪光火花飞贱的要有良好的防护安全设施。

4、钢筋电弧焊:

(1)、焊机必须接地良好,不准在露大雨水的环境下工作。

(2)、焊接施工场所不能使用易燃材料搭设,现场高空作业必须系好安全带,按规定配戴防护用品。

5、电渣压力焊:

(1)、电渣焊使用的焊机设备外壳应接零或接地,露天放置的焊机应有防雨遮盖。

(2)、焊接电缆必须有完整的绝缘,绝缘性能不良的电缆禁止使用。

(3)、在潮湿的地方作业时,应用干燥的木板或橡胶片等绝缘物作垫板。

(4)、焊工作业,应穿戴焊工专用手套、绝缘鞋、手套及绝缘鞋应保持干燥。

(5)、在大、中雨大时严禁进行焊接施工。在细雨天时,焊接施工现场要有可靠的遮蔽防护措施,焊接设备要遮蔽好,电线要保证绝缘良好,焊药必须保持干燥。

(6)、在高温天气施工时,焊接施工现场要做好防署降温工作。

(7)、用于电渣焊作业的工作台。脚手架,应牢固、可靠、安全、适用。

、回填土工程安全技术措施

1、装载机作业范围不得有人平土。

2、打夯机工作前,应检查电源线是否有缺陷和漏电,机械运转是否正常,机械是否装置漏电开关保护,按一机一开关安装,机械不准带病运转,操作人员应戴绝缘手套。

3、基坑(槽)的支撑,应按回填的速度,按施工组织设计及时要求依次拆除,即填土时应从深到浅分层进行,填好一层拆除一层,不能事先将支撑拆掉。

、电梯井道内架子、安全网搭设工程安全技术措施

1、从二层楼面起张设安全网,往上每隔四层设置一道,安全网必须完好无损、牢固可靠。

2、拉结必须牢靠,墙面预埋张网钢筋不小于D14,钢筋埋入长度不少于3Qd。

3、电梯井道防护安全网不得任意拆除,待安装电梯搭设脚手架时,每搭到安全网高度时方可拆除。

4、电梯井道的脚手架一律用钢管、扣件塔设、立杆与横杆均用直角扣件连接,扣件紧固力距应达到4—5Kg.M。

5、脚手架所有横楞两端,均与墙面撑紧,四周横楞与墙面距离,平衡配重一侧为600毫米,其它三侧均为400毫米,离墙空档处应加隔排钢管,间距不大于200毫米,隔排钢管离四周墙面不大于200毫米。

6、脚手架柱距不大于1.8米。排距为1.8米,每底于楼层面200毫米处加搭一排横楞,横向间距为350毫米,满铺竹笆,竹笆一律用铅丝与钢管四点绑扎牢固。

7、脚手架拆除顺序应自上而下进行,拆下的钢管、竹笆等须妥善运出电梯井道,禁止乱扔乱抛。

8、电梯井道内的设施,必须由脚手架保养人员定期进行检查、保养,发现隐患及时消除。

9、张设安全网及拆除井道内设施时,操作人员必须戴好安全带,挂点必须安全可靠。

、金属扣件双排脚手架搭设工程安全技术措施

1、搭设金属扣件双排脚手架,特别用于高层建筑的。必须严格按国家《建筑安装安全技术规程》、上海市建工局关于《高层建筑双排钢管脚手架施工规定》和施工组织设计的要求进行设计和搭设。

2、搭设前应严格进行钢管的筛选,凡严重锈蚀、薄壁。严重弯曲及裂变的杆件不宜采用。

3、严重锈蚀、变形、,螺栓螺纹已损坏的扣件不宜采用。

4、脚手架的基础除按规定设置外,必须做好排水外理。

5、高层钢管脚手架座立于槽钢上的,必须有地杆连接保护普通脚手架立杆必须设底座保护。

6、不宜采用承插式钢管做底步立杆交错之用。

7、所有扣件紧固力矩,应达到4—5kg·m。

8、同一立面的小横杆,应对等交错设置,同时立杆上下对直。

9、斜杆接长,不宜采用对接扣件。应采用叠交方式,二只回转扣件接长,搭接距离视二只扣件间隔不少于0.4M

10、脚手架的主要杆件,不宜采用木、竹材料。

11、高层建筑金属脚手架的拉杆,不宜采用铅丝攀拉,必须使用埋件形式的钢性材料。

、金属扣件式双排钢管脚手架拆除上程安全技术措施

1、拆除现场必须设警戒区域,张挂醒目的警戒标志。警戒区域内严禁非操作人员通行或在脚手架下方继续组织施工。地面监护人员必须履行职责。高层建筑脚手架拆除,应配备良好的通讯装置。

2、仔细检查吊运机械包括索具是否安全可靠。吊运机械不允许搭设在脚手架上,应另立设置。

3、如遇强风、雨等特殊气候,不应进行脚手架的拆除。夜间实施拆除作业,应具备良好的照明设备。

4、所有高处作业人员,应严格按高处作业规定执行和遵守安全纪律,拆除工艺要求。

5、建筑立体内所有窗户必须关闭锁好,不允许向外开启或向外伸挑物件。

6、拆除人员进入岗位以后,先进行检查,加固松动部位,清除步层内留的材料、物件及垃圾块。所有清理物应安全输送至地面,严禁高处抛掷。

7、按搭设的反程序进行拆除,即安全网—竖挡笆—垫铺笆—防护栏杆—搁栅—斜拉杆—连墙杆—大横杆—小横杆—立、杆。

8、不允许分立面拆除或上、下二步同时拆除(踏步式)。认真做到一步一清,一杆一清。

9、所有连墙杆、斜拉杆、隔排措施、登高措施必须随脚手架步层拆除同步进行下降。不准先行拆除。

10、所有扦件与扣件,在拆除时应分离,不允许杆件上附着扣件输送地面,或两杆同时拆下输送地面。

11、所有垫铺笆拆除,应自外向里竖立、搬运,防止自里向外翻起后,笆面垃圾物件直接从高处坠落伤人。

12、脚手架内必须使用电焊气割工艺时,应严格按照国家特殊工种的要求和消防规定执行。增派专职人员,配备料斗(桶),防止火星和切割物溅落。严禁无证动用焊割工具。

13、当日完工后,应仔细检查岗位周围情况,如发现留有隐患的部位,应及时修复或继续完成至一个程序、一个部位的结束,方可撤离岗位。

14、输送至地面的所有杆件、扣件等物件,应按类堆放整理。

、搅拌机使用安全技术措施

1、搅拌机应设置在平坦坚实位置,用方木垫起前后轮轴,使轮胎搁高架空,以免在开动时发生走动。搅拌机架高使用时必须设操作平台,讲设防护拦杆。

2、电源接通后,必须仔细检查,经空车试转认为合格。方可使用。试运转时应校验拌筒转速是否合适,一般情况下,空车速度比重车(装料后)稍快2~3转,如相差较多,应调整动轮与传动轮的比例。

3、拌筒的旋转方向符合箭头指示方向,如不符时,应更正电机接线。

4、检查传动离合器和制动器是否灵活可靠,钢丝绳有无损坏,轨道渡轮是否良好,周围有无障碍及各部件的润滑情况等。

5、对设有上料斗地坑的搅拌机(如TZ350型混凝土搅拌机)坑口周围应垫高夯实,以防地面水流入坑内,上料轨道架的底端支承面应夯实或铺砖,轨道架的后面用方木支牢,防止工作时轨道变形。

6、开机后,经常注意搅拌机各部件的运转是否正常,停机时,经常检查搅拌机叶片是否打弯、螺丝有否打落或松动。

7、搅拌机料斗提升后,斗下不能有人过往,以免因制动器失灵发生意外。如确须在斗下检修或清理,须停机并将料斗用保险链条挂牢。

8、作业中,如果机械发生故障不能再运转时,应立即切断电源,将搅拌筒内混凝土清除干净,然后进行维修,如需要操作人员进入筒内清理时,除切断电源外,还应设专人在外监护或卸去熔断器并锁好电闸箱后,方可进人工作。

9、当混凝上搅拌完毕或预计停歇1小时以上,除将余料出净外,应用石子和清水倒入拌筒内,开机转动,把粘在料筒上的砂浆冲洗干净后全部卸出。料筒内不得有积水,以免料筒和叶片生锈。同时还应清理搅拌筒外积灰,使机械保持清洁完好。

10、下班后及停机不用时,将保险丝取下,以策安全,料斗应落至坑内,必须升起则应用链条扣牢。

、井架搭拆工程安全技术措施

1、井架搭设高度和起重必须有严格规定,严禁超负荷使用。

2、井架的底座必须安置在坚硬地基上,埋深不得少于1米,如立在地面上,必须使用轧桩轧牢。底座轧桩不得少于8恨,轧桩用75x75毫米角钢,打入地下深度为1.2米,轧桩上部必须与井架底盘连接牢固。

3、高度为10~15米的井架应设缆凤绳一组(4~8根);每增高之以10米加设一组。缆风绳上端要用吊耳和卸甲连接,并用3只以上的钢丝绳夹头紧固。缆凤绳必须采用钢丝绳。

4、井架采用附墙者应用钢性支撑与建筑物牢固连接,吊点必须经过计算。井架附墙杆不得附着在脚手架上。

5、井架搭至11米高度必须设临时缆风,待固定缆风或附墙支撑设置后,方可拆除。缆风绳与地面夹角应为45—60度,与地锚或桩头必须牢固连接。地锚、桩头要安全可靠,桩头后须有拖桩。如使用木桩,木桩直径不得小于15厘米,埋深不少于1.5米。禁止将缆凤绳栓在树木、电杆上。

6、高度在30米以上的井架,其缆风绳上的花篮螺丝、必须加以保险,穿越马路时,要采取可靠的安全措施。

7、缆风绳不准在高压线上方通过,与高压架空线必须保持规定的安全距离。

8、井架的立柱应垂直稳定,其垂直偏差应不超过高度的千分之一,接头应相互错开,同一平面上的接头不应超过2个。井架导向滑轮与卷扬机绳筒的距离,带槽卷筒应大于卷筒长度的15倍,无槽光筒应大于卷筒长度的20倍。

9、井架运输通道宽度不小于1米,搁置点必须牢靠,通道两边必须装设防护栏杆,并装有安全门或安全栅栏。

10、井架吊篮必须装有灵敏可靠的停层装置,防坠装置、冲顶限位器和安全门,吊篮两侧装有安全挡板或网片,高度不得低于1米,防止手推车等物件滑落。吊篮的焊接必须符合规范。

11、井架底层周围及通道口,必须装设安全防护栅,井架高度超过30米,须搭设双层安全棚,如无法设置隔离棚,则井架四周必须挂安全网,安全网应三面包满。

12、井架必须装设可靠的避雷和接地装置、卷扬机应单独接地并装设防雨罩。

13、卷扬机应采用点动开关。

14、并架吊篮与每层楼面必须有醒目的信号装置或标志。

15、装设起重把杆的井架,底部应有3~4吨的压重物,把杆底座要高出建筑物,把杆顶部不得高于井架;起重把杆与井架的夹角应在45~70度之间,并设保险钢丝绳。起重钢丝绳应装设限位装置。把杆不得碰到缆凤绳。

16、井架吊篮内严禁乘人。

17、井架进行保养维修工作时,必须停止使用。

18、并架的平撑、斜撑、缆凤绳等严禁随意拆除。

19、拆除井架,应先设置临时缆风。遇设有两层缆风绳的井架,应对下层缆风绳采取可靠的安全措施后,方可拆除顶层缆风绳。

20、搭拆井架要设警戒区,并指定专人负责,操作人员必须穿戴安全带。

21、井架安全装置应由定点厂家制作安装。

十一、模板工程安全技术措施

1、进入施工现场人员必须戴好安全帽,高空作业人员必须佩带安全带,并应系牢。

2、经医生检查认为不适宜高空作业的人员,不得进行高空作业。

3、工作前应先检查使用的工具是否牢固,板手等工具必须用绳链系挂在身上,钉子必须放在工具袋内,以免掉落伤人,工作时要思想集中,防止钉子扎脚和空中滑落。

4、安装与拆除5m以上的模板,应搭脚手架,并设防护栏杆,防止上下在同一垂直面操作。

5、高空,复杂结构模板的安装与拆除,事先应有切实的安全措施。

6、遇六级以上的大风时,应暂停室外的高空作业。

7、二人抬运模板时要互相配合,协同工作。传递模板、工具应用运输工具或绳子系牢后升降,不得乱抛。组合钢模板装拆时,上下应有人接应。钢模板及配件应随装拆随运送,严禁从高处掷下,高空拆模时,应有专人指挥。并在下面标出工作区,用绳子和红白旗加以围栏,暂停人员过往。

8、不得在脚手架上堆放大批模板等材料。

9、支撑、牵杠等不得搭在门窗框和脚手架上。通路中间的斜撑、拉杆等应设在1.8m高以上。

10、支模过程中,如需中途停歇,应将支撑、搭头、柱头板等钉牢。拆模间歇时,应将已活动的模板、牵杠、支撑等运走或妥善堆放,防止因踏空、扶空而坠落。

11、模板上有预留洞者,应在安装后将洞口盖好,混凝土板上的顶留洞,应在模板拆除后即将洞口盖好。

12、拆除模板一般用长撬棒,人不许站在正在拆除的模板上,在拆除楼板模板时,要注意整块模板掉下,尤其是用定型模板做平台模板时,更要注意,拆模人员要站在门窗洞口外拉支撑,防止模板突然全部掉落伤人。

13、在组合钢模板上架设的电线和使用电动工具,应用36v底压电源或采取其他有效的安全措施。

14、装、拆模板时禁止使用2x4”木料、钢模板作立人板。

15、高空作业要搭设脚手架或操作台,上、下要使用梯子,不许站立在墙上工作;不准站在大梁底模上行走。操作人员严禁穿硬底鞋及高跟鞋作业。

16、装拆模板时,作业人员要站立在安全地点进行操作,防上上下在同一垂直面工作;操作人员要主动避让吊物,增强自我保护和相互保护的安全意识。

17、拆模必须一次性拆清,不得留下无撑模板。拆下的模板要及时清理,堆放整齐。

18、拆除的钢模作平台底模时,不得一次将顶撑全部拆除,应分批拆下顶撑,然后按顺序拆下搁栅、底模,以免发生钢模在自重荷载下一次性大面积脱落。

19、在钢模及机件垂直运输时,吊点必须符合要求,以防坠落伤人。模板顶撑排列必须符合施工荷载要求,尤其遇地库吊装,地库顶模板,支撑还另需考虑大型机械行走因素,每平方米支撑数,必须根据载荷要求。拆模时,临时脚手架必须牢固,不得用拆下的模板作脚手板。脚手板搁置必须牢固平整,不得有空头板,以防踏空坠落。混凝土土板上的预留孔,应在施工组织设计时就作技术交底(预设钢筋网架),以免操作人员从孔中坠落。

20、封柱于模板时,不准从顶部往下套。

21、禁止使用2x4" 木料作顶撑。

十二、附着式塔式起重机的使用安全技术措施

附着式塔式超重机的使用要点,可参照轨道式塔式超重机的使用要求进行。还需注意以下几点:

1、四级风以上应停止爬升。如爬升过程中突然遇到大风必须停工作业,并将塔身螺丝紧固。

2、爬升过程中,严禁回转,必须按说明书规定步骤操作,注意撑脚和销子的到位,Z80吨米塔吊的升节必须有专职安全监护。

3、附着形式和位置,必须按施工组织设计的规定进行,垂直偏差须校正在千分之一之内。

4、每次附着升节后必须按规定验收通过后,才能投入施工。

十三、砌块工程施工安全技术措施

1、上班前,应对各种起重机械设备、绳索、夹具、临时脚手架和其他施工安全设施进行检查,特别是要检查夹具的有关零件是否灵活牢靠,剪刀夹悬意空吊起后夹具是否自动拉笼,夹板齿或橡胶块是否磨损,夹板齿槽中的垃圾是否清除。夹具还应定期进行检查和有关性能的测试,如发现歪曲变形、裂痕、夹板磨损等情况,应及时修理,不应勉强使用。新夹具在使用前人应认真地验收,尺寸应准确,并进行性能测试。

2、砌块在装夹前,应先检查砌块是否平稳,如果有歪斜不齐时,应在撬正后再夹,夹具的夹板在砌块的中心线上,以防止砌块起吊后歪斜。砌块起吊过程中,如发现有部分破裂,且有脱落危险的砌块,严禁继续起吊,起重拔杆回转时,严禁将砌块停留在操作人员上空或在空中修理、加工砌块,拔杆及吊钩下方不得站人或进行其它操作,砌块吊装时不准在下层楼面进行其它任何工作。利用台灵架吊装较重的构件时,台灵架应加稳绳。

3、台灵架或其它楼面起重机、起重机设备等在就位后,吊装前应检查这些设备的位置、压重、缆绳的锚口等是否符合要求,砌块或其它构件吊装时应注意被吊物体重心的位置,起重量应严格控制在允许范围内,应严格控制起重拔杆的回转半径和变幅角度,不准起吊在台灵架的前支柱之后的砌块或其它构件,不准放长吊索拖拉砌块或构件,起吊砌块后作水平回转时,应由操作人员牵引以免摇摆和碰撞墙体或临时脚乎架等。

4、卸下和堆放砌块地方应平实,无杂物、无块状物体以防止个别砌块在夹具松开后倒下伤人。在楼面卸下、堆放砌块时,应尽量避免冲击,严禁倾卸及憧击楼板,砌块的堆放应尽量靠近楼板的端部,楼面上砌块的备量,应考虑楼面的承载能力和变形情况,楼面荷载不准超过楼板的允许承载能力,否则应采取相应的加固措施,如在楼板底加设支撑等。

5、采用内脚手时,应在房屋四周按照安全技术规定的要求设置安全网,并随施工的高度上升,屋檐下一层安全网,在屋面工程完工前,不准拆除。

6、砌块施工时,不准站在墙身上进行砌筑、划线、检查墙面平整度和垂直度、刮缝、清扫墙面操作,也不准在墙身上行走。

7、砌块吊装就位时,应待砌块放稳后,方可松开夹具。

8、已经就位的砌块,必须立即进行竖缝灌浆,对稳定性较差的窗间墙独立柱和挑出墙面较多的部位,应加临时支撑,以保证其稳定性,在台风季节,应及时进行圈梁施工、加盖楼板或采取其它稳定措施。

9、在砌块、砌体上、不宜拉缆风绳,不宜吊挂重物,也不宜作其它施工临时设施,支撑的支承点,如确实需要时,应采取有效的措施。

10、遇到下列情况时,应停止吊装作业:

1)不能听清信号时。

2)起吊设备、索具、夹具等有不安全因素没有排除时。

3)大雾或照明不足时。

11、大风、大雨等异常气候之后,应检查砌体是否有垂直度的变化,是否产生了裂缝,是否有不均匀下沉等现象。

12、灰浆泵使用前,输浆管各部插口应拧紧、卡牢,管路应顺直,避免折弯,同时还应检查管道是否畅通,压力表、安全阀是否灵敏可靠,操作时应戴保护眼镜、口罩、手套,在操作过程中,应严格按照规定压力进行,如果超压和压浆管道阻塞、应知压检修,拆洗时,应先拆靠身的法兰螺丝,以防砂浆喷出伤人。

十四、砌筑工程安全技术措施

1、在操作之前:必须检查操作环境是否符合安全要求,道路是否畅通,机具是否完好牢固,安全设施和防护用品是否齐全,经检查符合要求后才可施工。

2、砌基础时,应检查和经常注意基坑土质变化情况,有无崩裂现象,堆放砖块材料应离开坑边1m 以上,当深基坑装设挡板支撑时,操作人员应设梯子上下,不得攀跳,运料不得碰撞支撑,也不得踩踏砌体和支撑上下。

3、墙身砌体高度超过地坪1.2m时,应搭设脚手架,在一层以上或高度超过4m时,采用里脚手架必须支搭安全网,采用外脚手架应设护身栏杆挡脚笆加立网封闭后才可砌筑。

4、脚手架上堆料量不得超过规定荷戴,堆砖高度不得超过3皮侧砖。

5、在楼层(特别是预制板面)施工时,堆放机械、砖块等物品不得超过使用荷载,如超过荷载时,必须经过验算采取有效加固措施后方可进行堆放和施工。

6、不准站在墙顶上做划线、刮缝和清扫墙面或检查大角垂直等工作。

7、不准用不稳固的工具或物体在脚手板面垫高操作,更不准在未经过加固的情况下,在一层脚手架上随意再叠加一层,脚手板不允许有空头现象,不准用2*4厚木料或钢模板作立入板。

8、砍砖时应面向墙内打,注意碎砖跳出伤人。

9、使用于垂直运输的吊笼、绳索具等,必须满足负荷要求,牢固无损,吊运时不得超载,并须经常检查,发现问题及时修理。

10、用起重机吊砖要用砖笼,吊砂浆的料斗不能装得过满,吊件回转范围内不得有人停留。

11、砖料运输车辆两车前后距离平道上不小于2米,坡道上不小于10米,装砖时要先取高处后取低处,防止倒塌伤人。

12、砌好的山墙,应临时系联系杆(如擅条等)放置各跨山墙上,使其联系稳定,或采取其它有效的加固措施。

13、如遇雨天及每天下班时,要做好防雨措施,以防雨水冲走砂浆,使得砌体倒塌。

14、在同一垂直面内上下交叉作业时,必须设置安全隔板,操作人员必须戴好安全帽。

15、人工垂直向上或往下(深坑)传递砖块,架子上的站人板宽度应不小于60厘米。

十五、外用电梯(人货电梯)安装拆卸安全技术措施

1、安装外用电梯前,应选择适当位罩,最好在施工组织设计时综合考虑电梯位置。

2、电梯与建筑物的距离,视其本机说明书的技术要求确定,在建筑结构形式施工工艺容许的情况下人应选择最小的距离。

3、外用电梯的机座基础,扶墙杆件连接埋设件应严格按本机说明书要求而设置。

4、应严格控制自由端高度,自由端高度一般不超过9m ,扶墙杆间隔按工作状况确定一般每隔6—9米设一道扶墙。

5、室外电梯的技术状况应符合(GB10055一88)的要求。

6、室外电梯的安装应严格控制两个方向的垂直度,不垂直度应控制在升降机安全技术验收规范所规定的数值内。

7、安装人员须经技术培训,应熟悉本机的构造和电梯安拆工作程序。作业过程中严格按说明书的要求顺序进行安拆。

8、进入现场的作业人员必须遵守安全生产纪律,头戴安全帽,高处作业时身挂安全带。

9、安拆工作中,拆下的零部件应妥善运送,严禁高空抛扔零部件。必须设置安全警戒区域,专人监护,专人负责指挥。

10、经安装的电梯必须整机稳定,连接牢固润滑良好,各部间隙正常,限位灵敏,保险可靠。

11、调试和运行,必须遵循有关规定实施,试运转驱动高度不得超过5米

12、安拆所需的起重设施,吊索、吊环吊钩等用具应安全可靠,不准带病操作。

十六、混凝土工程安全技术措施

1、搭设行车道板时,两头需搁置平稳,并用钉子固定,在平道板下面每隔1.5米,需加横楞顶支撑。

2、车道板单车行走不小于1.4米宽,双车来回不小于2.8米宽,在运料时,前后应保持一定车距,不准奔跑,抢道或超车。到终点卸料时,双手应扶牢车柄倒料,严禁双手脱把,以防翻车伤人。

3、浇灌混凝土用脚手架,工前应检查,不符合脚手架规程要求,可拒绝使用。施工中应设专人对脚手架和模板、支撑进行检查维护,发现问题,及时处理。

4、用塔吊、料斗浇捣混凝土时,指挥扶斗人员与塔吊驾驶员应密切配合,当塔吊放下料斗时,操作人员应主动退让,应随时注意料斗碰头,并应站立稳当,防止料斗碰人堕落。

5、浇灌混凝土用的溜槽、串筒要连接安装牢固,防止堕落伤人

6、离地面2米以上浇捣过梁、雨蓬、小平台等,不准站在搭头上操作,如无可靠的安全设备时,必须戴好安全带,并扣好保险勾。

7、使用振动机前应检查电源电压,输电必须安装漏电开关,保护电源线路是否良好,电源线不得有接头,机械运转是否正常,振动机移动时,不能硬拉电线,更不能在钢筋和其它锐利物上拖拉,防止割破拉断电线而造成触电伤亡事故。

8、振动器使用时,插入深度不准超过60cm,时间不能超过一分钟,震捣手要穿胶靴戴胶手套。

9、混凝土搅拌机使用前要检查试运转情况,确信安全可靠再操作。混凝土搅拌机开动时、不准将工具人身伸向卷筒,也不准再向卷筒内投料。停产、换班或定期维护时,切记切断电源,锁住闸刀箱挂牢吊勾。

10、井架吊篮起吊或放下时必须关好安全门头手不准伸入井架内,待吊篮停稳时方能进入吊篮内工作。

十七、挖土工程安全技术措施

1、挖土中发现管道、电缆及其它埋设物应及时报告,不得擅自处理。

2、挖土时要注意土壁的稳定性,发现有裂缝及倾坍可能时,人员要立即离开并及时处理。

3、人工挖上,前后操作人员问距离不应小于2~3米,堆土要在1米以外、并且高度不得超过1.5米。挖土应自上而下逐层挖掘、严禁采用掏洞的挖掘操作法。

4、每日或雨后必须检查土壁及支撑稳定情况,在确保安全的情况下继续土作,并且不得将上和其它物件堆在支撑上,不得在支撑下行走或站立。

5、机械挖土,启动前应检查离合器、钢丝绳等,经空车试运转正常后再开始作业。

6、机械操作中进铲不应过深,提升不应过猛。

7、机械不得在输电线路下工作,在输电线路一侧工作,不论在任何情况下,机械的任何部位与架空输电线路的最近距离应符合安全操作规程要求。

8、机械应停在坚实的地基上,如基础过差,应采取走道板等加固措施,不得将挖土机覆带与挖空的基坑平行2米停、驶。运土汽车不宜靠近基坑平行行驶,防止坍方翻车。

9、电缆两侧一米范围内应采用人工挖掘。

10、配合拉铲的清坡、清底工人,不准在机械回转半径下工作。

11、向汽车上卸土应在车子停稳定后进行,禁止铲斗从汽车驾驶室上越过。

12、基坑四周必须设置1.5公尺高护栏,要设置一定数量临时上下施工扶梯。

13、场内道路应及时整修,确保车辆安全畅通,各种车辆应有专人负责指挥引导。

14、车辆进出门口的人行道下,如有地下管线(道)必须铺设厚钢板,或浇捣硷加固。

15、在开挖杯基坑时,必须设有确实可行的排水措施,以免基坑积水,影响基坑土壤结构。

16、基坑开挖前,必须摸清基坑下的管线排列和地质开采资料,以利考虑开挖过程中的意外应急措施(流砂等特殊情况)。

17、清坡清底人员必须根据设计标高作好清底工作,不得超挖。如果超挖不得将松上回填,以免影响基础的质量。

18、开挖出的土方,要严格按照组织设计堆放,不得堆于基坑外侧,以免引起地面堆载超荷引起土体位移、板桩位移或支撑破坏。

19、挖土机械不得在施工中碰撞支撑,以免引起支撑破坏或拉损。

十八、外檐装饰抹灰工程安全技术措施

1、高空作业时、应检查脚手架是否牢固,特别是在大风及雨后作业。

2、对脚手板不牢固之处和空头板等及时处理:要铺有足够宽度,以保证手推车运灰浆时的安全

3、在架子上工作,工具和材料要放置稳当,不许随便乱扔。

4、用塔吊上料时,要有专人挥挥,遇六级以上大风时暂停作业。

5、砂浆机应有专人操作维修、保养,电器设备应绝缘良好并接地。

6、严格控制脚手架施工超负载。

7、不准随意拆除、斩断脚手架软硬拉结,不准随意拆除脚手架上的安全设施,如妨碍施工必须经施上负责人批准后,方能拆除妨碍部位。

(十九)、装饰工程

1、清理楼面时,禁止从窗口、留洞口和阳台等处直接向外抛扔垃圾。杂物。

2、剔凿地面时要带防护眼镜。

3、夜间施工或在光线不足的地方施工时,应采用36V低压照明设备,地库照明用电不超过12V。

4、非机电人员不准乱动机电设备。

5、用卷扬机井架(上落笼)作垂直运输时,要注意联络信号,待吊笼平层稳定后再进行装卸操作。

6、室内推手推车拐弯时,要注意防止车把挤手。

7、室内抹灰时使用的木凳、金属脚手架等架设应平稳牢固,脚手板跨度不得大于2m,架上堆放材料不得过于集中,在同一跨度的脚手板内不应超过两人同时作业。

8、不准在门窗、洗脸池等器件上搭设脚手板。阳台部位粉刷,外侧没有脚手架时、必须挂设安全网。

9、使用砂浆搅拌机搅拌砂浆,往拌筒内投料时,拌叶转动时不得用脚踩或用铁铲。木棒等工具拨刮筒口的砂浆或材料。

10、使用脚手架,应先检查是否牢靠。护身栏,挡脚板。平桥扳是否齐全可靠,发现问题应及时修整好,才能在上面操作;脚手架上放置料具要注意分散并放平稳,不许超过规定荷载,严禁随意向下抛掷杂物。

11、使用手提电动机,应接好地线及防漏电保护开关,使用前应试运转,检查合格后,才能操作。

第十五章 现场文明施工措施

1、建立文明施工管理体系完善管理制度

1)项目经理部成立文明施工及环境保护领导小组,由一名付经理任组长,施工、技术、物资、安全等部门参加,负责制定文明施工管理办法,并负责现场文明施工、环境保护工作的管理、监督、检查。

2)建立文明施工管理责任制,明确各级管理人员及作业人员的责任,将文明施工和环境保护与工资考核挂钩。

3)制定施工现场场地管理、施工秩序管理、施工安全管理、环境保护管理等细则,并认真落实。

2争创文明示范工地措施

为加强施工现场管理,提高文明施工水平,创建文明工地,要严格认真地落实建委空气质量水平达到良好水平的承诺,合理布置施工现场,进行文明施工设计。

1)施工现场平面布置。

为贯彻文明施工和环境保护要求,布置施工场地时遵循以下原则:

半封闭施工围闭,人员进出施工场地只能通过大门,大门设门卫,防止外人无故进入。大门内设洗车池。

在施工现场悬挂五牌一图等工程标牌。

生活区和施工区分区设置,区内供水、用电、通讯、消防、排水等系统齐全。

场地内均作地面硬化,临时道路混凝土下加设垫层。

2)施工围墙

按施工现场平面布置图图示位置沿临时施工用地和生活区用地边线砌筑围墙,墙体采用普通砖砌,墙厚240mm,墙高2.5m,沿墙纵向每隔4.0m480×480砖立柱,立柱外侧柱面与围墙墙面平,在围墙侧涂刷白色涂料,

3)施工排水

现场施工排水包括生活排水、钻孔桩废泥浆处理之后的废水、基坑降水、基坑抽水、运输车辆冲洗等的排放水,所有施工排水均应经过处理满足《天津市城市排水法》的规定要求,并获得排水许可才能将施工排水排入城市排水系统。

4)办公生活设施

施工与生活区分开,用高2.0m围墙围蔽,生活区侧抹灰,生活通道和施工便道分开。

生活区、办公室做好通风、采光、防潮措施。

生活设施使用砖砌,不使用竹棚、铁皮、石棉瓦、油毡等材料。职工宿舍应保证人均不少于2m2

生活区应设置卫生、文体、娱乐设施,定期除四害、消毒。

5)施工现场

施工现场的施工设备、料具堆放,场地道路、生活设施进行统一规划、合理布局,并纳入施工组织设计。

施工现场进行半封闭施工、封闭方式见围蔽结构图示及说明。

施工场地正门右侧悬挂或绘制五牌一图,即工程概况牌,组织网络牌、安全纪律牌、防火须知牌、文明施工牌和现场平面布置图。

按规定进行卫生间设计和布置,采用水冲式厕所并设简易化粪池,加盖,便槽和地面贴白色瓷砖。

现场照明应保证施工场地内的亮度足够,均匀不闪烁。

施工现场的工地大门内道路、临时设施,室内地面、材料堆放场、施工场地、车库地面等都要硬化,四周设置良好排水系统。

施工现场设置洗车槽,驶出工地的车辆必须在工地洗车槽内洗净后,方允许上路行驶。外运泥浆时不得外溢在工地或道路上。排水系统要畅通,无大面积积水,严禁不经沉淀处理的水泥浆直接排入下水道。

6)消防安全措施

制定消防制度,建立健全消防管理网络,明确各区消防责任人,并报消防管理部门。

现场建立醒目的消防警示标志和紧急疏散标志,保持紧急疏散通道畅通无阻。

现场配备充足的消防器材,并定期对其进行性能检查,各个作业区、生活区和通道咽喉处应配备足够的灭火器。

电焊、气焊等明火操作应严格执行动火证制度,乙炔、氧气瓶分库存放,使用中分散隔离放置。动火施工区应远离生活区及易燃物品。

动力、照明电线按规定布线,主线、支线分明,且外包阻燃材料。

7)卫生管理

建立现场各区域的卫生责任人制度,责任人名单上墙,定期搞好环境卫生,保持现场无臭味。

施工现场坚持工完料清,施工完后要对现场进行清理。

大门设洗车槽,装运材料、土石、垃圾的车辆要覆盖,保证车辆运输过程中不污染道路和环境。

宿舍随时都应保持清洁、干爽,内务整洁有序,个人用品统一。

工地食堂须有卫生许可证,食堂工作人员须有健康证;食堂生、熟食操作应分开,熟食操作时应有防蝇间或防蝇罩。

工地与生活区设符合省市相关文件要求的卫生间和浴室,并设专人管理。卫生间设化粪池,浴室设污水处理池并做到达标排放。工地和生活区垃圾统一按袋装收集,弃于专用垃圾桶并设盖,整个生活区保持无蝇无异味飘逸。

8)治安保卫管理

现场施工安全、保卫工作是文明施工的一个要点,也是使施工能够正常进行的保证。

建立健全安全保卫制度,落实治安、防火责任,配合当地做好综合治理工作。

施工现场的管理人员、作业人员应配戴工作卡,标明姓名、职务、工种。

建立来访登记制度,并验证来访人员的有关证件,不准留宿闲杂人员,对可疑人员坚决清退出场,确保工地安全。项目全部施工人员都要进行统计并办理暂住证。

经常对施工人员进行法纪和文明教育和特区意识教育,一切依法行事,对外文明交往,严禁黄、赌、毒,严禁一切扰民、损害社会风气、破坏环境以及其他一切不守法不文明的现象在施工队伍内发生。

第十六章 施工现场环保措施

一、加强现场维护管理,科学组织作业

    1、合理安排施工顺序,尽量减少工序间的干扰和损伤,凡污染或损伤已完工部位的下道工序开工前,须先采取有效的成品保护措施,否则不许开工。

    2、施工顺序遵循先上后下,先大后小,先硬后软的原则。

    3、凡在成品保护区或半成品区域施工、装卸、运输都必须采取防护措施,严防成品半成品受到损伤或污染。

    4、视成品的具体情况,分别采用四个基本措施,对成品加以保护,可以对成品设隔离栏保护,用塑料布或塑料纸包裹、彩条布覆盖或对受施工干扰的部位进行局部封闭的方法,进行保护。                                      

    5、对结构侧墙可能被污染的混凝土部位,一是要进行遮盖,二是要对混凝土面进行清扫和处理。

    6、浇筑混凝土时,振捣人员不准站在钢筋或模板上振捣,已浇筑的混凝土要进行覆盖并禁止行人踏行。

    7、严禁践踏预埋件或将其作为受力构件。

    8、提倡文明作业,严禁野蛮施工,对野蛮施工的行为要进行制止,一经发现不论是否造成成品损伤,都要给予处分和经济处罚。

二、推行文明施工教育,落实成品保护责任

   1、项目部成立成品保护监察小组,在文明施工领导小组的领导下直接开展工作。

    2、基层班组设成品保护员,负责成品、半成品的保护工作,发现问题及时上报并果断处理。

    3、定期对管理和操作人员进行文明施工、成品保护教育,提高职工自觉保护成品的质量意识。

    4、认真执行天津市地铁工程现场文明施工办法中关于成品保护的规定。

    5、经常对成品保护工作进行监察,发现被撞、损坏、污染及时采取措施进行纠正处理,对责任人给予通报批评和经济处罚。

    6、编制各分项工程成品保护实施细则,对重点工程要仔细研究方案。

7、制定成品保护奖惩办法,用经济手段提高作业人员成品保护意识,促进文明施工水平。

我们将针对工程施工面临的环境问题,依照国家及地方环境相关法规的要求确定出施工过程中环保工作的具体安排,依照《天津市有关环境保护》的规定执行。将环保工作规范、系统的贯穿施工期的全过程。使施工期的环境影响达到相关法规、标准要求。

三、施工期内主要环境污染因素特证

1、噪声:施工噪声包括现场施工产生的噪声和车辆运输产生的噪声。

2、振动:主要来源于重型施工施工机械的运转,重型运输车辆行驶、锤击、夯实等作业产生的振动。

3、大气污染:挖土、拆除、装卸、运输、回填、夯实等施工过程和开挖面、露天堆场等区域会产生大量扬尘,扬尘在大风天气和旱季较为严重,是施工期的主要大气污染。此外,各种施工机械、运输车辆和炉灶等燃具也排放废气。

4、水污染:施工期产生的废水主要有施工废水、地下水、雨水径流、施工人员生活污水,其中施工废水含泥沙量高,需经沉淀后排放。

四、主要环境影响的控制

1、噪声的控制

1)施工场界噪声控制按《建筑施工场界噪声限值》(GB12523-90)要求。

2)对可固定的机械设备如空压机,备用发电机设置等在施工场地建临时房屋内,房屋内设隔音板,使其与外界隔离,最大限度的降低其噪音。

3)对噪声超标造成环境污染的机械施工,其作业时间限制在七时至十二时和十四时至二十二时之内。

4)各项施工均选用低噪声的机械设备和施工工艺。

振动的控制:施工振动对环境的影响按标准要求进行控制。

2、对水污染的控制

1)废水排入城市下水道,悬浮物须符合要求

2)根据不同施工地区排水网的走向和过载能力,选择合适的排口位置和排放方式。

3)在工程开工前完成工地排水和废水处理设施的建设,并保证工地排水和废水处理设施在整个施工过程的有效性,做到现场无积水、排水不外溢、不堵塞、水质达标。

4)在回填土堆放场、泥浆水产生处设沉淀池,沉淀池的大小根据排水量和所需沉淀时间确定。

5)在施工现场设泥浆池和沉淀池及泥浆运输车作为地连墙和地下水排水管道施工时的废浆处理设备。

6)根据施工实际,考虑天津降雨特征,制定雨季、特别是汛期,避免废水无组织排放、外溢、堵塞城市下水道等污染事故发生的排水应急相应工作方案,并在需要时实施。

3、对大气污染的控制

1)对易产生粉尘、扬尘的作业面和装卸、运输过程,制定操作规程和洒水降尘制度,在旱季和大风天气适当洒水,保持湿度。

2)合理组织施工、优化工地布局,使产生扬尘的作业、运输尽量避开敏感点和敏感时段(室外多人群活动的时段)。

3)严禁在施工现场焚烧任何废弃物和会产生有毒有害气体、烟尘、臭气的物质,熔融沥青等有毒物质要使用封闭和带有烟气处理装置的设备。

4)选择合格的运输单位,做到运输过程不散落。

5)车辆出场冲洗车辆,减少车轮携土。

6)拆除构筑物时要有防尘遮挡,在旱季适量洒水。

7)使用清洁能源,炉灶符合烟尘排放规定。

8)施工现场要在施工前做好施工道路的规划和设置,临时施工道路基层要夯实。

 

 

第十 与各协作单位配合服务承诺

 

1、与业主单位间的工作协调

1)如果中标,我们将与业主单位联系,进一步了解业主对建筑是否有变更要求,已便同设计单位联系及早作出准备,有利于控制工程进度,及避免返工。

2)据建设单位的进度要求,排出各控制节点和每月进度计划表,安排项目部力量。

3)对甲方供应设备、材料,由项目部提出到货计划表以便建设单位按施工进度有计划的采购和提供。

4)图纸资料及设计变更、安装与设计的有关事项由建设单位协调。

5)配合建设单位在施工过程中质量进行监督检查。

2、与设计单位间的工作协调

1)如果中标,我们即与设计单位联系进一步了解设计意图及工作要求,根据设计意图提出我们的施工实施方案。

2)主持施工图审查,协助发包方会同建筑师、供应商(制造商)提出建议完善设计内容和设备物资选型。

3)组织地方专业主管部门沟通与建筑师的联系,向设计方提供需主管部门协助的专项工程,如外配电、水、通讯、市政、污水处理、环保等的设计,施工安装、检测等资料,完善整体设计,确保联动调试的成功和使用功能的现况。

4)对施工出现的情况,除按业主、监理的要求处理外,还应积极修正可能出现的设计错误,并会同建筑师按照总进度与整体效果要求,进行部位验收,中途质量验收、竣工验收等。

5)协助建筑师解决诸如因多管道并列等原因引起的标高、几何尺寸的平衡协调工作,协助建筑师解决不可预测因素引起的地质沉降、裂缝等变化。

3、与监理工程师工作的协调

1)在施工全过程中,严格按照经监理师批准的施工组织设计进行对施工单位的质量管理。接受监理工程师的验收和检查,并按照监理要求,予以整改。

2)所有进入现场使用的成品、半成品、设备、材料、器具均主动向监理工程师提交产品合格证或质保书,应按规定使用前需进行物理化学试验检测的材料,主动递交检测结果报告,使所用的材料、设备不给工程造成浪费。

3)按部位或分项,工序检验的质量,严格执行上道工序不合格,下道工序不施工的准则,使监理工程师师能顺利开展工作。对可能出现的工作意见不一的情况,遵循磋商统一的原则,在现场质量管理工作中,维护好监理工程师的权威性。

4、协调方式

1)按总进度计划制定的控制节点,组织协调工作会议,检查本节点实施的情况,制订、修正、调整下一个节点的实施要求。

2)本项目管理部门以月为单位,提出工程简报,向业主和各有关单位反映,通报工程进度状况及需要解决的问题,使有关各方了解工程的进行情况,及时解决施工出现的困难和问题,根据工程进展,我们还将不定期地召开各种协调会,协助业主协调与社会各业务部门的关系以确保工程进度。

 

十八 工程交验后服务措施

一、工程项目控制

1、指定收尾工程施工计划,对零星工程量少的清除杂物及材料、机具等要做出具体安排。

2、竣工前按照合同规定的《工程施工阶段及验收规定》、《工程质量检验评定标准》对已完工程进行检验,找出需完善改进的部位及时落实处理,以确保提供给业主的最终工程质量。提出意见时,项目经理应及时组织修复,达到业主同意接收时为止。

二、竣工资料准备

由项目技术质量部负责组织竣工资料的编制整理。整理好施工记录和质量检测资料,要求全部资料齐全、清除,与现场施工情况一致,不得涂改,签字齐全,竣工资料的编制需按照天津市档案馆和天津市市政工程有关要求认真整理,各相关人员密切配合。

三、工程移交

1、工程移交前所有工程项目及整修部位需全部完成,并由项目组织自检达到标准。

2、所有资料文件完整齐全,符合规范要求。

3、按照业主验交程序申请工程移交。

4、质量回访及包修。移交工程时,项目部制定质量回访计划,并按计划进行质量回访,及时了解、掌握业主对该工程的意见和质量要求。对回访中反映的质量问题,按《质量回访及服务程序》执行,定期对工程进行维护和检修。如工程投入使用中出现问题,要积极配合有关部门及时抢修,确保业主100%满意

 

 

综合说明              1

第一节  编制依据              1

工程概况              2

水文地质、气象及周遍情况              3

施工管理目标              4

施工管理班子及主要管理人员              5

施工现场平面布置              8

劳动力计划              9

施工进度计划              11

施工进度施工工期保证措施              11

第一节  管理保证              11

第二节  施工计划管理              12

第三节  良好的外围环境对工期的保证              13

第四节  季节性施工措施对工期的保证              13

第六章 主要施工机械、材料的进场计划              13

施工机械的进场计划              13

主要材料的进场计划              14

第七章 基础施工方案或方法              17

  1#—7#基础部分施工方案              17

第二节  8#楼地下室施工方案              21

第八章 基础质量保证措施              34

地下管线及其它地上地下设施的加固措施              35

第十章 主体结构施工方案              36

模板工程              36

钢筋工程              40

混凝土工程              44

砌体工程              48

屋面工程              52

抹灰工程              55

门窗工程              58

吊顶工程              59

楼地面工程              60

安装工程              63

十一 主体结构质量保证措施              69

69

69

质量保证措施              72

75

86

第十二章 各工序的协调措施              89

第十三章 冬雨季施工措施              89

雨季施工措施              89

冬季施工措施              91

第十四章 施工安全保证措施              93

94

安全生产保证措施              95

100

103

现场文明施工措施              119

第十六章 施工现场环保措施              122

第十七章 与各协作单位配合服务承诺              125

第十八章 工程交验后服务措施              126


   

 

星欣设计图库资料专卖店拥有最新最全的设计参考图库资料,内容涉及景观园林、建筑、规划、室内装修、建筑结构、暖通空调、给排水、电气设计、施工组织设计等各个领域的设计素材和设计图纸等参考学习资料。是为广大艺术设计工作者优质设计学习参考资料。本站所售的参考资料包括设计方案和施工图案例已达几十万套以上,总量在数千G以上。

 图库网址http://www.xingsc.cn

ftp://xingxin.gnway.net

联系QQ447255935

电话:13111542600