目 录
第1章 脚手架专项施工方案 4
第2章 悬挑脚手架安全施工方案 14
第3章 落地式脚手架搭拆施工方案 18
第4章 模板工程施工方案 23
第5章 模板工程专项施工方案 28
第6章 塔吊施工方案 48
第7章 临时用水用电施工方案 61
一、工程概况: 61
二、确定线路走向、电源线线径及电箱位置 61
三 、安全用电技术措施和电气防火措施 65
四、计算书 67
Pjs 67
Pe 67
第8章 挡墙抗滑桩及支挡施工方案 71
第9章 夯扩桩应用实例 73
第10章 津滨轻轨软基加固真空预压方案 77
第11章 深圳妈湾电厂 82
第1节 振冲挤密砂基新工艺 82
第2节 百米高边坡爆破技术 86
2.1 概况 86
2.2 施工方案的选择 87
2.3 爆破施工 87
2.4 技术经济评估 92
第12章 某仓库施组 94
第1节 编制说明 94
1.1 编制依据 94
1.2 编制内容 94
第2节 工程概况 95
第3节 施工总体安排 95
3.1 组织机构及指挥系统 95
3.2 方针目标管理 96
3.3 施工总体安排 96
3.4 施工进度计划安排 97
第4节 施工准备 97
4.1 技术准备 97
4.2 施工组织准备 97
4.3 施工机械的选择配备 97
4.4 总平面布置 98
4.5 临时用电 98
4.6 临时用水 99
4.7 劳动力配备 99
第5节 主要施工方法 100
5.1 测量放线 100
5.2 基础工程 100
5.3 止水带工程 100
5.4 杯基工程 101
5.5 现场预制工程 101
5.6 吊装工程 103
5.7 砌体工程 105
5.8 钢结构 106
5.9 地面施工 106
5.10 抹灰及饰面 106
5.11 屋面工程 107
第6节 主要技术保证措施 107
6.1 保证施工工期的措施 107
6.2 保证工程质量的措施 107
6.3 保证安全、文明施工的措施 108
第7节 施工试验及计量管理 109
第8节 材料进场管理制度 109
第9节 合理化建议 109
第10节 售前售后服务 110
第11节 工程技术档案资料管理 110
第13章 某总装测试厂房综合施工技术 110
工程概况及特点 110
工程概况 110
工程特点 111
箱型基础底板大体积混凝土每期施工 112
施工技术措施 112
混凝土测温养护 114
实施效果 114
80m高钢混组合柱施工 114
钢柱制作 115
钢柱采用三向平衡定位法安装 115
混凝土工程施工 115
大跨度高空闽箱型屋盖施工技术 116
屋盖工程特点和难点 116
实施效果 120
74m商铜大门施工 120
大门制作 120
大门安装 122
室内特种行车高空安装 122
钢吊车梁采用双吊点法安装 123
行车采用单片水平起吊、高空摆角就位法安装 123
行车调试 123
室内活动平台安装 124
室内活动平台构造 124
结束语 125
第14章 九澳油库工程施工技术 125
第15章 深圳机场二期航站楼钢结构屋盖施组 130
第16章 天津市体育中心屋盖网架工程方案 132
第17章 某工程钢结构施工方案 148
第18章 电梯工程方案 159
第19章 太仓市开放式公园工程施组 160
第20章 土石方围堰施工方案 161
第21章 钢筋、模板组合施工方案 177
施工现场“三通一平”工作已基本就绪, 外地面已做硬底化。
二、设计依据及构造要求
1、本计算根据中国建筑出版社《建筑施工脚手架实用手册》;
2、施工中不允许超过设计荷载。
3、小横杆、大横杆和立杆是传递垂直荷载的主要构件。而剪力撑、
斜撑和连墙件主要保证脚手架整体刚度和稳定性的。并且加强抵抗垂
直和水平作用的能力。而连墙件则承受全部的风荷载。扣件则是架子
组成整体的联结件和传力件。
4、搭设要求:(1)梯间外墙线搭设24m 双排钢管脚手架;(2)其余各搭设21.5m 双排钢管脚手架。
5、采用本方案取最大搭设高度24m 进行验算;
6、采用Φ48×3.5mm 双排钢管脚手架搭设,立杆横距b=1.0m,
主杆纵距l=1.5m,内立杆距墙0.2m。脚手架步距h=1.8m,脚手
板从地面2.0m 开始每1.8m 设一道(满铺),共11 层,脚手架与
建筑物主体结构连接点的位置,其竖向间距H1=2h=2×1.8=3.6
m,水平间距L1=3L=3×1.5=4.5m。根据规定,均布荷载Qk=2.
0KN/㎡。
三、使用材料
1、钢管宜采用力学性能适中的Q235A(3 号)钢,其力学性能应符合
国家现行标准《炭素结构钢》(GB700-89)中Q235A 钢的规定。每
批钢材进场时,应有材质检验合格证。
2、钢管选用外径48mm,壁厚3.5mm 的焊接钢管。立杆、大横杆和斜杆的最大长度为6.5m,小横杆长度1.5m。
3、根据《可铸铁分类及技术条件》(GB978-67)的规定,扣件采用机械性能不低于KTH330-08 的可锻铸铁制造。铸件不得有裂纹、气孔,不宜有缩松、砂眼、浇冒口残余披缝,毛刺、氧化皮等清除干净。
4、扣件与钢管的贴合面必须严格整形,应保证与钢管扣紧时接触良好,当扣件夹紧钢管时,开口处的最小距离应不小于5mm。
5、扣件活动部位应能灵活转动,旋转扣件的两旋转面间隙应小于1mm。
6、扣件表面应进行防锈处理。
7、脚手板应采用杉木制作,厚度不小于50mm,宽度大于等于200mm,长度为4--6m,其材质应符合国家现行标准《木结构设计规定》(GBJ5—88)中对II 级木材的规定,不得有开裂、腐朽。脚手板
的两端应采用直径为4mm 的镀锌钢丝各设两道箍。
8、钢管及扣件报皮标准:钢管弯曲、压扁、有裂纹或严重锈蚀;扣件有脆裂、变形、滑扣应报废和禁止使用。
9、外架钢管采用金黄色,栏杆采用红白相间色,扣件刷暗红色防锈漆。
四、脚手架的计算
(一)、基本条件
地面粗造为C 类,基本风压W0=0.45KN/m2,立网网目尺寸为3.
5 cm×3.5cm,绳径3.2mm,自重0.01KN/m2
(二)、搭设高度计算
验算部位应根据风荷载产生弯曲压应力大小分析确定,故先计算风荷
载产生压应为σw
1、σw 计算
立网封闭的挡风系数及风荷载体型系数《建筑结构荷载规范》近似按
以下方法计算
ξ=(3.5+3.5)×0.32/(3.5×3.5) ×1.05=0.192
1.05 为考虑筋绳的影响
µS=1.2×0.192=0.23
立网传给立柱的风荷载标准值(4-4)计算,计算风压高度系数μZ 按
表4-19 中C 类取值,当H=24 m 时,μz=1.25 ,当H=5m 时,
μz=0.54 本设计最大搭设高度为24 m,故取u2=1.25 。
WK=0.7µzµS W0
其中μ2—风压高度系数
μS—脚手架风荷载体型系数
W0—基本风压
WK=0.7×1.25×0.23×0.45=0.09KN/m2
作用于立柱的风线荷载标准值:
qWK=WK·L=0.09×1.8=0.162KN/m
风荷载产生的弯矩按式4-33 计算
MW=1.4 qWK·h2/10
式中 qWK——风线荷载标准值
WK——垂直于脚手架表面的风荷载标准值
L——脚手架的柱距
W——立柱截面的抵抗矩按表4-31 采用
σW——风荷载对所计算立柱段产生的弯曲压应力,σW= MW/W
MW=1.4×0.162×1.82/10=0.073KN·m
在24 m 高度处立柱段风荷载产生弯曲压力为:
σW= MW/W=(0.073×106) / (5.08×103)=14.37N/mm2
在5m 高度处立柱段风荷载产生弯曲压力为:
σW= 14.37× (0.54 / 1.25)=6.21N/mm2
2、底层立柱段的轴心压力
脚手架结构自重、脚手板及施工荷载的轴心压力
(1)、脚手架结构自重产生的轴心压力NGK 由表4-38 查得一个柱距范围内每米高脚手架结构产生的轴心标准值gk=0.134KN/m,则
21 m 高的脚手架结构自重产生轴心压力标准值
NGK=H·gk=24×0.134=3.21 KN
(2)、脚手架活载产生的轴心压力
一层脚手架自重Qp=0.3KN/m2(除首层外),每1.8m 设一道脚
手架板,共十一层。
则NQ1K=0.5(lb+0.3)·l·∑Qp=0.5(1+0.3)×1.5×0.3×1
1=3.2 KN
敞开式脚手的防护材料产生轴心压查表4-40 得(L=1.5m)0.228
KN立网重量为0.01×1.5×24=0.36 KN
∴NQ2K=0.228+0.36=0.588 KN
二层同时操作,施工均布荷载QK2.03KN/m2 查表4-41 得施工荷
载产生轴心压力:NQ3K=4.86KN
根据公式(4-32),活荷产生轴心压力标准值为
NQiK= NQ1K+ NQ2K+ NQ3K
=3.2+0.588+4.86
=8.65 KN
(3)计算立杆段的轴心压力值:
根据公式(4-31)计算
N= NGK ×1.2/K1+ NQiK
K1—高度调整系数,应按表(4-35 采用)
K1=0.85
N=3.21×1.2/0.85+1.4×8.65=16.6 KN
3、立柱稳定性验算
立网封闭时,立柱稳定应满足下式:
N/ψA+ MW/W≤fc 或N≤ψA(fc-σW)
φ——轴心压杆的稳定系数,根据所计算立柱段的比λ=μh / I
由表4-37 查取
I——立柱截面的回转半径,应按表4-31 查取 i=1.58cm
μ——计算长度系数,应按表4-36 采用M=1.5
h——所计算的立柱段的脚手架步距 h=1.8m
∴λ=μh / i=1.5×1.8 / 1.58×10-2 =170.8
按表4-37 得:φ=0.225
A—立柱截面积,应按表4-31 采用,A=4.89cm2,fc=205N/mm2
ψA(fc-σW)
=0.225×4.89×102(205-14.37)×10-3
=20.97KN>N=16.63 KN(满足)
4、最大允许搭设高度
φAfcw=0.225×4.89×102(205-14.37)=20.97KN
Hd=K·[(φAfcw-1.4NQiK)/1.2gK]
=0.85×[(20.97-1.4×8.65)/(1.2×0.134)]
=47 m
5、结论
满足搭设要求。
(四)、连墙件计算
脚手架占建筑物的连接杆应按轴心受压杆计算
NH≦φAfc
式中:NH—连墙件所受的水平力设计值
NH=HW+3.0KN
HW=风荷载产生的水平力设计值
HW=1.4WK·AW
AW——迎风面积等于连墙件的直与竖直与水平间距的乘积;
φ——轴心受压稳定系数,根据λH=LH/i 按表4-37 采用;
LH——连墙件的计算长度,应取连件两端固定连接点的距离LH=0.2
λH=0.2×1000/1.58×10=126.5mm
φ=0.417
∴φAfc=102×0.417×4.89×20.5=41.8KN
∴NH=1.4WK·AW+3.0
=1.4×0.106×3.6×4.5+3.0
=5.4
∴NH≤φAfc(满足)
(五)、立柱地基承载力计算
立柱地基承载力应按下列计算P=N/Ab≤f
P—立柱基础底面处的平均压力设计值。
N-上部结构传至基础顶面的轴心力设计值。
Ab-基础底面面积。
f-地基承载力设计值,f=Kb·fK
fk-地基承载力标准值
Kb-地基承载力调整系数,应按表4-47 采用
P=16.6/(1.5×0.9)=11.9 KN/m2
素土承载力基本值为fO=120KN/m2>P(满足)
五、搭设技术措施
1、外架搭设
(1)立杆垂直度偏差不得大于架高的1/200。
(2)立杆接头除在顶层可采用搭接外,其余各接头必须采取对接扣件,
对接应符合下要求:
立杆上的对接扣件应交错布置,两相邻立杆接头不应设在同步同跨
内,两相邻立杆接头在高度方向错开的距离不应小于500mm,各接
头中心距主节点的距离不应大于步距的1/3,同一步内不允许有二
个接头。
(3)立杆顶端应高出建筑物屋顶1.5m。
(4)脚手架底部必须设置纵、横向扫地杆。纵向扫地杆应用直角扣件
固定在距垫铁块表面不大于200mm 处的立杆上,横向扫地杆应用
直角扣件固定在紧靠纵向扫地杆下方的立杆上。
(5)大横杆设于小横杆之下,在立杆内侧,采用直角扣件与立杆扣紧,
大横杆长度不宜小于3 跨,并不小于6m。
(6)大横杆对接扣件连接、对接应符合以下要求:对接接头应交错布
置,不应设在同步、同跨内,相邻接头水平距离不应小于500mm。
并应避免设在纵向水平跨的跨中。
(7)架子四周大横杆的纵向水平高差不超过500mm,同一排大横杆
的水平偏差不得大于1/300。
(8)小横杆两端应采用直角扣件固定在立杆上。
(9)每一主节点(即立杆、大横杆交汇处)处必须设置一小横杆,并采
用直角扣件扣紧在大横杆上,该杆轴线偏离主节点的距离不应大于1
50mm,靠墙一侧的外伸长度不应大于250mm,外架立面外伸长
度以10Omm 为宜。操作层上非主节点处的横向水平杆宜根据支承
脚手板的需要等间距设置,最大间距不应大于立杆间距的1/2,施
工层小横杆间距为1m。
(10)脚手板一般应设置在三根以上小横杆上,当脚手板长度小于2
m 时,可采用两根小横杆,并应将脚手板两端与其可靠固定,以防
倾翻。脚手板平铺,应铺满铺稳,靠墙一侧离墙面距离不应大于15
0mm,拐角要交圈,不得有探头板。
(11)搭设中每隔一层外架要及时与结构进行牢固拉结,以保证搭设
过程中的安全,要随搭随校正杆件的垂直度和水平偏差,适度拧紧扣
件。
(12)拉杆必须从第一层与窗口连接,拉杆与脚手架连接的一端可稍
微下斜,不容许向上翘起。保证垂直4m、水平6m 拉接。
(13)脚手架的外立面的两端各设置一道剪刀撑,由底至顶连续设置;
中间每道剪刀撑的净距不应大于15m。
(14)剪刀撑的接头除顶层可以采用搭接外,其余各接头均必须采用
对接扣件连接。
(15)剪刀撑应用旋转扣件固定在与之相交的小横杆的伸出端或立杆
上,旋转扣件中心线距主节点的距离不应大于150mm。
(16)用于大横杆对接的扣件开口,应朝架子内侧,螺栓向上,避免
开口朝上,以防雨水进人,导致扣件锈蚀、锈腐后强度减弱,直角扣
件不得朝上。
(17)外架施工层应满铺脚手板,脚手架外侧设防护栏杆一道和挡脚
板一道,栏杆上皮高1.2m,挡脚板高不应小于180mm。栏杆上立
挂安全网,网的下口与建筑物挂搭封严(即形成兜网)或立网底部压在
作业面脚手板下,再在操作层脚手板下另设一道固定安全网。
(18)剪刀撑是在脚手架外侧交叉成十字形的双杆互相交叉。并与地
面成45°~60°。夹角。作用是把脚手架连成整体,增加脚手架的
整体稳定。
2、过门洞的处理
过门洞,双排脚手架可挑空1.2 根立杆,即在第一步大横杆处断开。
悬空的立杆处用斜杆撑顶,逐根连接三步以上的大横杆,以使荷载分
布在两侧立杆上,斜杆下端与地面的夹角要成60°左右,凡斜杆与
立杆、大横杆相交处均应扣接。
3、过窗洞的处理
单排脚手架遇窗洞时,可增设立杆或吊设一根短大横杆,将荷载传递
到两侧的小横杆若窗洞宽超过1。5m 时,应于室内加设立杆(底部
加铺垫木)和大横杆来承担小横杆传来的荷载。
六、地基处理
1、地基做80mm 厚C10 混凝土地坪,以保证地基不变形;
2、立杆支承在20×20×0.8 的钢板上;
3、场地平整不得积水。
七、搭设工艺流程、搭设图
1、架子搭设工艺流程:
在牢固的地基弹线、立杆定位→摆放扫地杆→竖立杆并与扫地杆扣紧
→装扫地小横杆,并与立杆和扫地杆扣紧→装第一步大横杆并与各立
杆扣紧→安第一步小横杆→安第二步大横杆→安第二步小横杆→加
设临时斜撑杆,上端与第二步大横杆扣紧(装设与柱连接杆后拆除)
→安第三、四步大横杆和小横杆→安装二层与柱拉杆→接立杆→加设
剪力撑→铺设脚手板,绑扎防护及档脚板、立挂安全网。
2、架体与建筑物的拉结(柔性拉结)
采用Φ6 钢筋、顶撑、钢管等组成的部件,其中钢筋承受拉力,压力由
顶撑、钢管等传递。
3、安全网
(1)挂设要求:安全网应挂设严密,用塑料蔑绑扎牢固,不得漏眼
绑扎,两网连接处应绑在同一杆件上。安全网要挂设在棚架内侧。
(2)脚手架与施工层之间要按验收标准设置封闭平网,防止杂物下
跌。
4、安全挡板:
通道口及靠近建筑物的露天作业场地要搭设文全挡板,通道口挡板需
向两侧各伸出1M,向外伸出3M。
5、搭设图(见附图)
八、架子的验收、使用及管理
1、架子的验收、使用及管理
(1)把好验收关。搭设过程中的架子,每搭设一个施工层高度必须由
项目技术负责人组织技术、安全与搭设班组、工长进行检查,符合要
求后方可上人使用。架子未经检查、验收,除架子工外,严禁其他人
员攀登。验收合格的架子任何人不得擅自拆改,需局部拆改时,要经
设计负责人同意,由架子工操作。
(2)工程的施工负责人,必须按架子方案的要求,拟定书面操作要求,
向班组进行安全技术交底,班组必须严格按操作要求和安全技术交底
施工。
(3)基础、卸荷措施和架子分段完成后,应分层由制定架子方案及安
全、技术、施工、使用等有关人员,按项目进行验收,并填写验收单,
合格后方可继续搭设使用。
(4)使用按3kN/m2 考虑,因此架子上不准堆放成批材料,零星材
料可适当堆放。
(5)外架第一步(1.8m 高)开始拉设兜网和立网,以后每隔4 步架子
拉设一道兜网,施工层脚手板和施工层临边必须设兜网和立网,以保
证高处作业人员的安全。
(6)架子搭好后要派专人管理,未经安全科同意,不得改动,不得任
意解掉架子与柱连接的拉杆和扣件。
(7)架子上不准有任何活动材料,如扣件、活动钢管、钢筋,一旦发
现应及时清除。
(8)雨后要检查架子的下沉情况,发现地基沉降或立杆悬空要马上用
木板将立杆楔紧。
(9)在六级以上大风、大雾和大雨天气下不得进行脚手架作业,雨后上架前要防滑措施。
(10)外架实行外挂立网全封闭。外挂安全网要与架子拉平,网边系牢,两网接头严密,不准随风飘。
(11)作业层上的施工荷载应符合设计要求,不得超载,不得将模板、泵送混凝土输送管等支撑固定在脚手架上,严禁任意悬挂起重设备。
2、人员素质要求
(1)高处作业人员必须年满18 岁,两眼视力均不低于1.0,无色盲,无听觉障碍,无高血压、心脏病、癫痫、眩晕和突发性昏厥等疾病,无妨害登高架设作业的其他疾病和生理缺陷。
(2)责任心强,工作认真负责,熟悉本作业的安全技术操作规程。严禁酒后作业和作业中玩笑戏闹。
(3)明确使用个人防护用品和采取安全防护措施。进入施工现场,必须戴好安全帽,在无可靠防护2m 以上处作业必须系好安全带,使用工具要放在工具套内。
(4)操作工必须经过培训教育,考试、体检合格,持证上岗,任何人不得安排未经培训的无证人员上岗作业。
(5)作业人员应定期进行体检(每年体检一次)。
(6)作业所用材料要堆放平稳,高处作业地面环境要整洁,不能杂乱无章,乱摆乱放,所用工具要全部清点回收,防止遗留在作业现场掉落伤人。
3、劳保用品(三宝)要求
(1)安全帽
1)安全帽必须使用建设部认证的厂家供货,无合格证的安全帽禁止使用。工程使用的安全帽一律由分公司统一提供,各分包外联单位不准私购安全帽。
2)安全帽必须具有抗冲击、抗侧压力、绝缘、耐穿刺等性能,使用中必须正确佩戴,安全帽使用期为2.5 年。
(2)安全带
1)采购安全带必须要有劳动保护研究所认可合格的产品。
2)安全带使用2 年后,根据使用情况,必须通过抽验合格方可使用。
3)安全带应高挂低用(架子工除外),注意防止摆动碰撞,不准将绳打结使用,也不准将钩直接挂在安全绳上使用,应挂在连接环上用,要选择在牢固构件上悬挂。
4)安全带上的各种部件不得任意拆掉,更新绳时要注意加绳套。
(3)安全网
1)安全网的技术要求必须符合CB5725—85 规定,方准进场使用。
工程使用的安全网必须由公司认定的厂家供货。大孔安全网用做平网和兜网,其规格为绿色密目安全网1.5m×6m,用作内挂立网。内挂绿色密目安全网使用有国家认证的生产厂家供货,安全网进场要做防火试验。
2)安全网在存放使用中,不得受有机化学物质污染或与其他可能引起磨损的物品相混,当发现污染应进行冲洗,洗后自然干燥,使用中要防止电焊火花掉在网上。
3)安全网拆除后要洗净捆好,放在通风、遮光、隔热的地方,禁止
使用钩子搬运。
九、架子搭设安全技术交底
1、架子搭设安全技术交底
(1)凡是高血压、心脏病、癫痫病、晕高或视力不够等不适合做高处作业的人员,均不得从事架子作业。配备架子工的徒工,在培训以前必须经过医务部门体检合格,操作时必须有技工带领、指导,由低到高,逐步增加,不得任意单独上架子操作。要经常进行安全技术教育。
凡从事架子工种的人员,必须定期(每年)进行体检。
(2)脚手架支搭以前,必须制定施工方案和进行安全技术交底。对于高大异形的架子并应报请上级部门批准,向所有参加作业人员进行书面交底。
(3)操作小组接受任务后,必须根据任务特点和交底要求进行认真讨
论,确定支搭方法,明确分工。在开始操作前,组长和安全员应对施工环境及所需防护用具做一次检查,消除隐患后方可开始操作。
(4)架子工在高处(距地高度2m 以上)作业时,必须佩带安全带。所用的杆子应栓2m 长的杆子绳。安全带必须与已绑好的立、横杆挂牢,不得挂在铅丝扣或其他不牢固的地方,不得“走过档”(即在一根顺水杆上不扶任何支点行走),也不得跳跃架子。在架子上操作应精力集中,禁止打闹和玩笑,休息时应下架子。严禁酒后作业。
(5)遇有恶劣气候(如风力五级以上,高温、雨天气等)影响安全施工时应停止高处作业。
(6)大横杆应绑在立杆里边,绑第一步大横杆时,必须检查立杆是否立正,绑至四步时必须绑临时小横杆和临时十字盖。绑大横杆时,必须2--3 人配合操作,由中间一人结杆、放平,按顺序绑扎。
(7)递杆、拉杆时,上下左右操作人员应密切配合,协调一致。拉杆人员应注意不碰撞上方人员和已绑好的杆子,下方递杆人员应在上方人员接住杆子后方可松手,并躲离其垂直操作距离3m 以外。使用人力吊料,大绳必须坚固,严禁在垂直下方3m 以内拉大绳吊料。使用机械吊运,应设天地轮,天地轮必须加固,应遵守机械吊装安全操作规程,吊运杉板、钢管等物应绑扎牢固,接料平台外侧不准站人,接料人员应等起重机械停车后再接料、解绑绳。
(8)未搭完的一切脚手架,非架子工一律不准上架。架子搭完后由施工人会同架子组长以及使用工种、技术、安全等有关人员共同进行验收,认为合格,办理交接验收手续后方可使用。使用中的架子必须保持完整,禁止随意拆、改脚手架或挪用脚手板;必须拆改时,应经施工负责人批准,由架子工负责操作。
(9)所有的架子,经过大风、大雨后,要进行检查,如发现倾斜下沉及松扣、崩扣要及时修理。
2.架子拆除安全技术交底
(1)外架拆除前,工长要向拆架施工人员进行书面安全交底工作。交底有接受人签字。
(2)拆除前,班组要学习安全技术操作规程,班组必须对拆架人员进行安全交底,交底要有记录,交底内容要有针对性,拆架子的注意事项必须讲清楚。
(3)拆架前在地上用绳子或铁丝先拉好围栏,没有监护人,没有安全员工长在场,外架不准拆除。
(4)架子拆除程序应由上而下,按层按步拆除。先清理架上杂物,如脚手板上的混凝土、砂浆块、U 型卡、活动杆子及材料。按拆架原则先拆后搭的杆子。剪刀撑、拉杆不准一次性全部拆除,要求杆拆到哪一层,剪刀撑、拉杆拆到哪一层。
(5)拆除工艺流程:拆护栏→拆脚手板→拆小横杆→拆大横杆→拆剪刀撑→拆立杆→拉杆传递至地面→清除扣件→按规格堆码。
(6)拆杆和放杆时必须由2--3 人协同操作,拆大横杆时,应由站在中间的人将杆顺下传递,下方人员接到杆拿稳拿牢后,上方人员才准松手,严禁往下乱扔脚手料具。
(7)拆架人员必须系安全带,拆除过程中,应指派一个责任心强、技术水平高的工人担任指挥,负责拆除工作的全部安全作业。
(8)拆架时有管线阻碍不得任意割移,同时要注意扣件崩扣,避免踩在滑动的杆件上操作。
(9)拆架时螺丝扣必须从钢管上拆除,不准螺丝扣在被拆下的钢管上。
(10)拆架人员应配备工具套,手上拿钢管时,不准同时拿板手,工具用后必须放在工具套内。
(11)拆0 定{架休息时不准坐在架子上或不安全的地方,严禁在拆架时嘻戏打闹。
(12)拆架人员要穿戴好个人劳保用品,不准穿胶底易滑鞋上架作业,
衣服要轻便。
(13)拆除中途不得换人,如更换人员必须重新进行安全技术交底。
(14)拆下来的脚手杆要随拆、随清、随运,分类、分堆、分规格码放整齐,要有防水措施,以防雨后生锈。扣件要分型号装箱保管。
(15)拆下来的钢管要定期重新外刷一道防锈漆,刷一道调合漆。弯管要调直,扣件要上油润滑。
(16)严禁架子工在夜间进行架子搭拆工作。未尽事宜工长在安全技术交底中做详细的交底,施工中存在问题的地方应及时与技术部门联系,以便及时纠正。
__
一、工程概况
1、本工程1,9 轴与A,C 轴围合区域为奶粉塔,室外地平至主要屋面高度为38.500 米,框架结构。奶粉塔与其余建筑之间设抗震缝。厂房屋面结构为钢结构,彩钢板屋面。高度12 米。在其上搭设悬挑脚手架。长度60 米,宽14 米。
2、基础处理:详见施工组织设计。
3、建筑物四周无特殊情况。
二、搭设方案
1、材料及规格选择
根据JGJ-99 标准要求,结本工程具体情况,主材采用ф48 钢管,表面应平直光滑,无裂缝、结疤、分层、错位、硬弯、毛刺、压痕和深的划道。并采用钢扣件。
钢管涂有防锈漆及黄警戒色。
剪刀撑钢管应涂有红白漆双色。
2、搭设尺寸
(1)搭设总高度:外架超出建筑物总高度1.8 米。
(2)搭设要求:单排搭设,全封闭式安全立网(1.5×6m)封闭防护。
(3)构造要求:
○1 挑梁作法:挑梁间距为2m,在挑梁上加设横梁,以支持处于挑梁之间的立杆,横梁跨度为6m,使用18~20 号工字钢,悬挂式挑梁一端固定在结构上,另一端用拦、用拉杆拉结到结构上,拉杆应有收紧措施,详见下图:

○2 立杆:排距1.2m,柱距1.5m,步距1.5m;连墙杆间距竖直3.6m,水平5.4m(即二点三跨)。
立杆采用对接,且接头交错布置,高度方向错开500m 以上,相邻接头不应在同步同跨内。
脚手架立杆与挑梁的连接,采用在挑梁上或横梁上焊接长150~200mm 的钢管,其外径比立杆内径小1~5 ㎜,并用接长扣件与立杆连接,同时在立杆下部绑1~2 道扫地杆,以确保脚手架底部的稳定。
○3 大横杆:
大横杆间距控制在1.5m,以便立网挂设,大横杆置于立杆里面,每侧外伸长度不小于100mm,但不大于200mm。
○4 小横杆:
小横杆杆应搭设在大横杆上面,伸出长度不小于10cm,间距不大于0.9m。
○5 剪刀撑:
应逢角必设,由底至顶连续设置,中间各道剪刀撑净距不大于15M。采用四步、四跨搭设方法。斜杆接长采用搭接长度不小于1m,采用不小于2 个旋转扣件固定,端部扣件盖板的边缘至杆端距离不应小于100mm。旋转扣件中心线至主节点距离不大于150mm。
○6 脚手板铺设要求:
脚手板必须潢铺,离墙距离不得大于20 厘米;不得有空隙和探头板,脚手板搭接不得小于20 厘米;对接时应架设双排小横杆,间距不大于20 厘米,在架子拐弯处,脚手板应交叉搭接,垫平脚手板应用木块,并且钉牢,不得用砖垫。翻脚板应两人由里往外按顺序进行,在铺第一块或翻到最外一块脚手板时,必须挂牢安全带。
3、架体与建筑物拉结
连墙杆在高度一层(3~4.5 米)开始设置,以上每4 米(不大于4米)水平6 米(不大于6 米)设一处,外伸大横杆处不小于100 毫米,
伸入墙内固定管外不小于100 毫米,墙内外固定钢管不得小于500 毫米长度,连墙杆应尽量拉接在靠近立杆的大横杆处(小于200 毫米)设置。
三、设计计算书
根据《建筑施工安全检查标准》(JGJ59-99)要求,对立杆、大横杆、小横杆等不进行强度和稳定性验算。
1、小横杆的设计计算
(1)应按荷载实际堆放位置求取简支梁,最大弯距值核算其弯曲强度。
(2)按实际荷载堆放位置的标准值求取简支梁的最大弯矩值,然后换算成等效均布荷载进行挠度核算。
2、大横杆的设计计算
(1)大横杆按三跨连续进行弯曲强度核算。
(2)用标准值的最大反力值最不利荷载布置求取最大弯矩值,然后换算成等效均布值进行挠度核算。
(3)进行大横杆与立杆之间扣件的抗滑核算。
3、立杆强度验算
立杆强度验算应对受力最不利的杆件进行验算,即对第一步架的外侧立杆进行强度验算。
验算公式:
Ó=
An
N ≤fc
式中:N-底部外侧立杆所承受轴压力
N=1.2NGK+1.4NQK
NGK-一个纵距内脚手架自重(Kn/㎡)
NQK-一个纵距内施工荷载(Kn/㎡)
NGK=(q1+q2+q4)/2+q5+q6+q3(Kn/㎡)
其中,q1-脚手架自重(Kn/㎡)
q2 一个纵距内立杆自重(Kn/㎡)
q3-立网自重(Kn/㎡)
q4-一个纵距内大、小横杆自重(Kn/㎡)
q4-一个纵距防护栏杆,外侧立杆自重(Kn/㎡)
An-受压杆件净截面积(以平均直径计算)(mm2)
Fc-抗压强度设计值(N/ mm2)
钢材Fc=205N/ Fc/ mm2
4、立杆稳定性验算
按公式:

式中:N-格构式立杆的轴向压力(N)
N=1.2N’QK+1.4N’QK
N’GK=一个纵距内架体自重所产生的轴力(N)
N’QK=一个纵距内施工荷载所产生的轴力(N)
N’QK=NQK
A0=受压构件的毛截面积(mm2)
ф-纵向稳定性系数
四、脚手架的验收
1、脚手架必须由持证上岗的架子工搭设,由安全员随楼层的增高逐层对其检查及分段验收。
2、必须有验收记录,各级领导签字方可交付使用。
3、必须有量化的验收内容。
五、脚手架的安全技术措施
1、脚手架设置避雷针,分置于外架四周立杆之上,并联通大横杆,形成避雷网络,并检测接地电阻不大30Ω。
2、脚手架不得搭设在距离外电架空线路的安全距离之内,并做好接地。
3、严禁脚手板存在探头板。
4、严格控制施工荷载。
5、搭设人员必须持证上岗。
脚手架搭拆施工方案
上海浦东新区**集团建筑安装有限公司
落地式脚手架搭拆施工方案
一、工程概况
1、工程名称:***苑(二标)工程
2、工程地点: 上浜路与杨新南路
3、工程简介
***苑(二标)工程为商品住宅小区,工程位于上浜路与江杨南路之间,二标段建筑面积为m2。本工程为多层砖混和剪力墙组合结构,主体为六层,局部区域为四层、五层结构,层高均为2.8 米。由于本工程为多层及小高层结构,故采用从落地搭设至顶,选用的材料为钢管,搭设高度最高为19.8M,本标段共十幢房子。外脚手架采取全封闭单根立管钢管脚手架。
一. 材质控制:
1、搭设前必须选好钢管、扣件、安全网、竹笆等,钢管采取外径为48mm、壁厚3.5mm 的钢管,其材质符合GB700-793 号钢的技术要求,
2、扣件、螺栓、丝帽等金属配件、安全网必须符合国家标准,并有出厂合格证和准用证,发现脆裂、变形、滑丝等现象者禁止使用。
二. 脚手架基础:
脚手架基础做20cm 厚C20 砼硬地坪,再在砼基础上铺设预制块,建筑四周做好排水沟,并做好搭设前基础验收。
三. 脚手架搭设
1、脚手架搭设严格按照上海市建委[83]201#、[87]525#规定要求执行,所有脚手架的搭设都必须进行安全交底,必须履行检查验收制度。
2、立杆纵距1.8 米,里外立杆均采用单根钢管,用扣件紧固。
3、里排立杆离墙面30cm,横楞里端离墙面不大于15 厘米,另一端伸出牵杠外边10-15 厘米,脚手架阴阳转角处立杆离建筑物尽端不大于20cm。
4、立杆横距1.2 米,搭设每步高度为1.8 米。
5、立根底部采用不同长度的钢管参差布置,使相邻两根立杆上部接头相互错开,不在同一平面上,保证脚手架的整体性。立杆垂直稳定,底部有扫地杆,横楞相互连接。
6、搭设顺序为:立杆——横楞——牵杠——隔栅——剪刀撑——脚手笆——栏杆——踢脚板。
7、脚手架每步格栅上满铺脚手笆,脚手笆四角用18 号铅丝同牵杠扎牢。
8、施工操作层上靠墙面部位满铺脚手笆,脚手笆离墙面不大于20cm,脚手板沿长向铺设,其端头应伸出搁置点横楞10-15cm,并应重叠搁置。没有重叠搁置处应用铅丝将脚手板与搁置点扎牢。
9、脚手架外侧,每步均必须在外立杆里侧设1 米栏杆,安全立网防护。施工操作层外面绑扎踢脚板,踢脚板高度为20cm、厚3cm 的木板。
10、脚手架每隔四步,在设置附墙拉撑杆的同一水平面处应在里外排立杆间,牵杠下设置水平斜撑。
11、脚手架每隔四步应在里立杆与墙面之间铺设通长的安全底笆。
四. 脚手架的拉与撑。
1、脚手架水平方向,每两个立杆间距(3.6 米)垂直方向每两步(3.6 米),设一拉撑点。
2、拉撑杆一端必须用扣件与脚手架扣牢,另一端与主体结构上预埋铁件相固定,使用预埋铁件时,砼强度必须在C15 以上。
3、拉撑连杆应与脚手架垂直,应拉设在立杆与横楞交接处。
4、拉撑杆的拉力与压力强度,不得低于700 公斤,经试验合格后方能使用。
5、脚手架在非闭合式的脚手架尽端处,拉撑杆加密设置,在断开的尽端截面处,上下步里外排立杆之间设侧向斜撑。
6、无论受拉或受压的拉撑点连杆,一定要到拆除脚手架时才能逐步从上向下拆除,施工中途如因妨碍其他工序操作,需要个别拆除的拉撑连杆,必须经项目部施工负责人同意,并采取有效的加固措施,经检查确认牢固可靠后,方可拆除,任何人不得擅自拆除。
7、脚手架纵向两侧和转角处起,在脚手架外侧面每隔9 米(水平距离)设置剪刀撑,自上而下连续设置,斜杆与地面成45-60度夹角,剪刀撑的搭接长度不小于40cm,并用两只转向扣件锁紧。
8、脚手架四角应有接地保护及避雷装置。
五. 脚手架斜道。
脚手架斜道(直上之字形)走人斜道不小于1:3,运料斜道不大于1:4,并应满浦特殊竹笆(竹笆一律向上),并加设防滑措施,斜道转折处应设置不小于2~4 平方米的平台,其邻边周围用笆防护,斜道纵向外侧及横向两端应设置剪刀撑,斜道两侧设两道防护栏杆,操作面高于2 米的登高平台。
六. 脚手架上的施工荷载:
1、砌筑脚手架270 公斤,堆码数量标准砖不超过单行侧放四侧高,非承重的大三孔不超过单行平放五皮高,且只允许两步脚手架同时堆放。
2、粉刷脚手架均布荷载不超过200 公斤/平方米,只允许三步脚手架内同步施工。
3、本工程脚手架不作砌筑,脚手架使用只准粉刷使用。
4、脚手架由专业定期进行沉降观测,发现问题及时报告,并立即采取措施。
七. 脚手架的管理
1、建立健全脚手架的检查和维修及管理制度,并有专人维修保养。
2、如雨季、台风、暴雨期间要加强检查,发现隐患要立即维修、整改。
3、脚手架必须由架子工严格按规程要求搭设,按规定要求使用。
4、脚手架搭设前,必须对搭设人员进行专项全面安全教育,使用前应对登高作业人员进行专项安全教育,且制定登架人员安全操作规程,挂设在架子上。
5、各种杆件、拉结、安全防护设施不得随意拆除,脚手架主要受力杆件(立杆、大横杆、小横杆、顶撑、剪刀撑、斜撑、扫地杆等)材质一致,严禁钢木混用。
6、不准在脚手架上附装机械设备、摇壁把杆、悬挑平台、拉缆风绳及搭(挂)模板支撑。
7、脚手架分部、分段施工进度验收合格,挂牌后使用,并有记录。
八. 脚手架拆除
1、脚手架拆除前应由单位工程负责人召集有关人员对工程进行全面检查与鉴证,确认建筑物已施工完毕确已不需要脚手架时方可进行拆除。
2、脚手架拆除前应明确专人负责指挥,拆除前应全面检查加固,对拆除人员进行安全技术交底,并做好书面记录签好字。
3、拆除脚手架要设置警戒线,并有专人负责警戒。
4、拆除脚手架前要对脚手架上残留材料、杂物等清除干净。
5、脚手架拆除顺序一般为安全网——脚手笆——栏杆——档脚
板——剪刀撑——格栅——牵杠——横楞——立杆,自上而下先装后拆,后装先拆,逐步拆除一步一清,不得采用踏步式拆法,不准上下同时作业,拆除材料严禁高处抛掷所有扣件,杆件拆除时要分离,不允许杆件上有扣件附着输送地面或二杆连接输送地面。
6、拆除垫铺竹笆时应自外向内竖立,搬运防止自里向外翻起后,笆内垃圾、物件直接从高处坠落伤人。
7、当日完工后应仔细检查周围情况,发现问题及时进行修复或继续完成一个程序、一个部位的结束方可离开,所有材料杆件、扣件等物件应分类堆放整齐。
九. 脚手架计算书
1、脚手架搭设方案
脚手架采用∮48×3.5 钢管,扣件联接沿外墙搭设,搭设高度为19.8M,每步高取决于1.8m,共n=19.8M/1.8×11 步,立杆横距b=1.2m。距骨墙挑头长a=35cm,立杆纵距L=1.8m,每楼层与脚手架连接H1=3.6m(每二步),脚手片(竹)满铺6 层,施工活载QK=2.0KN/M2。
2、验算脚手架整体稳定性
a、求荷载N
N=1.2× (n1×NGK+NGK2)+1.4·NQK
查表得:
一步一纵钢管和扣件重NGK1=0.441KN
一个立杆纵距附设构件及物重NGK2=4.182KN
一个立杆纵距的施工荷载值标准产生的轴力NQK=8.4KN
故:N=1.2× (11×0.441+4.185)+1.4×8.4=22.603KN
b、计算轴心受压构件的稳定系数
格构式压杆的长细比γΧ
γX=H1*2/B=3.6*2/1.5=4.8
查表得长细比系数
∴λ0X=μ·λX=18×4.8=86.4
用插入法查表得轴心受压构件的稳定系数ζ=0.423
c、验算整体稳定性
∵总高度
H<25M
∴高度调整系数0.8
取KA=0.8
∴KA·KR·f=0.8×0.85×205=139.4N/mm2
N/ΨA=22.603×103/(0.423×489×2)=54.64N/mm2
经比较:KA·KR·f>N/ΨA 满足要求,故安全
3、验算单根钢管立杆的局部稳定性
单根钢管最不利的步距位置为第一步,即从上数下第11步,最不利立杆为内立杆。最不利立杆的轴力:N1=1/2×1.2×nNGK1+1.5×1.05+0.3/1.4×(1.2×NGK2+1.4NQK)=1/2 × 1.2 × 11 ×0.441+1.5 × 1.05+0.21 × (1.2 ×4.182+1.4×8.4) =8.01KN
由λ1=h/1=1800/15.78=114
经查表得ξ=0.489
∵因施工活荷载QK=2.0KN/m2 故取QM=35KN/m2
因A1=489 KA=0.8 KH=0.85
∴N1/Ψ·A1+M=8010/0.489×489+35=68.5KN/m2
KA·KR·f=0.8×0.85×205=139.4KN/m2
N1/Ψ·A1+M<KA·KR·f 满足要求
所以安全
4、验算风荷载对脚手架的影响
1、计算风压标准值
ω=0.75·βZ·μstω·ω0
根据钢脚手架计算规定,取βZ=1.0
查表得:μZ=1.17(A 类)
5、验算小横杆大横杆的强度和变形(用竹脚手片)
(1) 强度计算
q=1.2×(GK·C+gk)+1.4·KQ·QK·C
=1.2×(300×0.75+38)+1.4×1.2 ×2000×0.75
=315+2520=2835N/M
∴Mmax=1/8×2835×1.052=3900N/M
故δ=Mmax/WN=390000/5078=76.8N/mm2<[f]=205N/mm2
强度满足要求,所以安全
(2)变形计算
W/b=5863/384E1=5 × 2835 × 10503/384 × 2.06 × 105 × 1211 ×17%=1/588<1/150
符合要求,安全
b、大横杆计算
(1) 强度验算
q1=bq/2+aq=1.05×2835/2+0.35×2835=2480 N/m2
风压体型系数:μstω=ψ·μS×1-nn/1-n ∵n=2
∴μstω=Ψ·μS·(1+n)+0.104×1.2×(1+1)=0.2496
故ω=0.75·βZ·μZ·μstω·ω0Ψ
=0.75×1×1.17×0.2496×0.5KN/m2=0.11KNm2
6、验算边墙点抗风强度
风荷作用对边墙点产生的拉力和压力
根据方案:拉结点水平距离L1=6M
∵ Nt=1.4·H1·L1·ω=1.4×3.6×6×0.11=3.33KN<[Nt](扣件抗滑标准力)
∴安全
7、验算风荷载作用下脚手架的整体稳定性
即验算:N/ΨA+M/bKN/mA≤KA·KR·f
通过以上计算:N/ψA=54.64KN/m2
KA·KR·f=139.4KN/m2
故而只需计算M/bA
取风荷载θ=1.4·L·ω=1.4×1.5×0.11=0.231KN/m2
∴ M=1/θθH12=0.231×3.62/8=0.374N/m2
故:M/bA=0.374106/10504892=0.365N/mm2
比较N/ΨA+M/bA=54.64+0.365=55<=2480N
∴满足要求,安全
因为荷载组成中,绝大部分为活载,恒载可近似不计.
故Mmax=0.2133·K·L=0.231×2480×1.5=792N·m
δ=Mmax/WN=792000/5078=156Nmm2<[f]=205N/mm2
满足要求,安全
(1) 变验算
W/b=1.615×FL2/100E1
=1.615×2480×15002/100×2.06×105×121900
=1/278<1/150
∴满足要求,安全
`8、地耐力说明
因为搭设架子前,距外墙全部硬化,做法如下:素土夯实,100
厚道碴,100 厚C20 级砼,随捣随光。
故能满足要求,合格。
上海浦东新区**集团建筑安装有限公司
2005-4-1
一、编制依据(略):
1、××科技会管、科技馆施工图纸,施工组织设计;
2、建筑施工手册(第三版);
3、建筑施工规范大全;
4、建筑施工现场检查手册等。
二、工程概况:
××科技会堂、科技馆工程主体为框架结构,地下一层,层6.4m 高,地上三层,层高为7.2m。
工程主要结构构件尺寸:柱,600×800、1000×850,梁,300×900、300×900,500×950、750×900;板,120、200 厚;剪力墙,400、300 厚。其中科技馆工程长向梁、地下室外围墙呈弧形。
本工程柱、直形墙、梁拟采用组合钢模板配模,孤形墙、梁、顶板采用多层板或竹模板配模。模板采用Φ48×3.5 钢管进行加固,其中顶板支撑系统采用满堂脚手架。
三、施工准备:
1、据工程各构件尺寸提出模板工程详细材料计划,包括:模板、钢管、扣件、加固用穿墙螺栓、蝶形卡及木方子等。
2、材料部门按计划组织周转工具进场。
3、模板支设以前,应做好各种预留、预埋及钢筋隐验。
四、施工方法:
(一)剪力墙模板施工:
地下室剪力墙全部采用统配组合钢模板配Φ12 整体式穿墙螺栓,用Φ48×3.5双钢管作为纵横龙骨进行加固,其中科技馆工程弧形墙水平龙骨采用钢管或用Φ20 钢筋围成弧圈进行加固。模板主要规格3015,3090,1015,1090。龙骨横向间距600,纵向@700;穿墙螺栓水平方向@700 垂直方向@600。
为保证剪力墙位置及断面尺寸正确,支模前,应在离基础顶面50-80mm处严格按剪力墙位置先焊Φ16 钢筋顶棍(顶棍长和相应剪力墙厚相同),顶棍间距600,以控制模板位置并防止模板位移。支模过程中,每隔绝1500 在墙水平筋上设置16 钢筋顶棍(可临时用铅绑扎固定),以保证墙体厚度。
施工方法:安装好底部钢筋顶辊后,即可进行模板拼装。先安一面模板,相邻模板每个孔要用U 形卡卡紧,然后安装斜撑及穿墙螺栓。清扫干净墙内杂物,放置钢筋顶棍,安装另一侧模板。安装完后,安装纵横龙骨,先安横向(先用铅丝临时固定),后安纵向,同时用穿墙螺栓外垫蝶形卡,两端拧上双螺母固定,调整斜撑并拧紧穿墙螺栓螺母,必须保证模板牢固可靠。
验收要求:模板位置误差≤3mm,垂直误差≤5mm。
注意事项:
(1)支模前先复标高及内外墙线位置,看不清线或受钢筋位移影响不支模;
(2)支模前,模板表面要涂刷离剂;
(3)外围剪力墙所用穿墙螺栓中间必须加止水片。
(4)安装最底层模板时,应高低错开。以保证上部相邻模板水平拼缝错开。
(二) 柱模施工:
柱模施工采用组合钢模配模,钢管柱箍竖向龙骨、斜撑或带手搬葫芦钢丝进行加固、找正。采用钢丝绳进行加固找正时,须在楼层上表面预埋Φ10 钢筋吊环。
施工方法:
(1)首先据柱断面尺寸进行配模,注意相邻模板水平缝应错开。
(2)模板安装前,先放置钢筋顶棍(作用及方法同前),安装时从底部开始逐块四面同时安装,同时安装钢管柱箍(用Φ48*3.5 钢管及十字扣件拉紧)进行加固,柱箍间距600。
(3)安装竖向钢管龙骨,柱每边两棍,用以竖向调直及增加柱模整体性。
(4)找正。柱每边设钢管斜撑或钢丝绳拉索配手搬葫芦,用经纬仪或线坠进行观测,通过每侧手搬葫芦或斜撑进行调整。
(5)模板安装在配模时应留出浇筑口和清扫口,以利于砼浇筑及清除模板内垃圾。
(三) 梁模板施工:
直形梁采用组合钢模板时配模,弧形梁采用竹模板配模。弧形梁底模通过圆弧样板(据梁的弧度和宽度用三合板制作,长为3000mm 左右)制作成定型模板。定型梁底模板据竹模板定尺情况可分段制作,逐段拼接,并逐段编号,现场铺设时据编号逐段拼接,形成梁底模整体。
1、支撑系统:
梁模支撑系统采用双排或三排脚手架,各部位架形式见下图:
部 位 脚的架形式 立杆间距 大横杆步距 小横杆设置
横 向 纵 向加宽梁 三排 500 900 1500 一步一跨
350 宽梁 双排 600 750 1500 一步一跨
300 宽以下梁 双排 梁宽+400 750-900 1500 一步一跨
200 厚板 满堂 750 750 1500 -
120 厚板 满堂 900 9010 1500 -
注:所有支近脚手架均设扫地杆,因操作人员行走要求,第一道大横杆高度可
大为1800mm。
2、施工方法:
(1)梁模
a.放梁位置线:
b.在梁两侧立钢管支柱(间距750-900),支柱下要夯实并铺通长手板;
c.加设扫地杆;
d.按梁底标高调整支柱高度,安设梁底支撑龙骨(间距≯400mm)并将龙骨找平;
e.安装梁底模,并按0.2-0.3%起拱;
f.安装梁底侧模,和底模通过角模进行连接;
g.安装梁侧纵横龙骨及斜撑,竖龙骨间距≯750mm,梁内侧加顶棍,梁模上口用锁口杆(用Φ48×3.5 钢管)拉紧,当梁高超过600mm 进,加穿墙螺栓进行加固。
(2)板模
①.支撑系统:采用Φ48×3.5 满堂钢管脚手架(见脚手架构造形式表)为了实现楼板模板早拆,施工时通过部分竖向支撑将大跨度板变成短跨受力状态。
用于早拆的竖向支撑应单独进行施工,并自成体系。
②.施工方法:
a.配模。制作定形模板。配模时,应据楼板块具体尺寸并结合实现早拆的支撑位置进行,小边小于100mm 的长条形拼块尽量配在板中间,以利于加固。
小块异型模板可用同厚度的木板代替,但均应拼缝严密。
制作完后,对各板块进行分类编号并分别码放整齐,以便施工时"对号入座"加快施工进度。
b.支模。支模时从开间一侧开始逐排设支柱,同时安设大横杆小横杆。调节支柱高度,将板底龙骨100×100 木方找平。
c.铺板模。所有板缝均用不干胶带纸粘贴。
d.模板标检查。
(四)立杆接长方法:
1.利用对接扣件接长。
2.搭接接长(见示意图)。
3.满堂脚手架利用横杆连接。
五、模板拆除:
1.模板拆除前必须申请办理拆模手续,待砼强度报告出来后,砼达到拆模强度模板方要拆除。
2.柱拆模:先拆加固斜撑或手板葫芦拉索,卸去对拉螺栓两端螺母,卸掉竖几龙骨及柱箍,再把连接每片模板的U 型卡拆掉,然后用撬棍轻轻撬动模板,使模板与砼脱离。
3.墙模拆除:先拆除斜撑或拉索,然后卸去穿墙螺母及纵横龙骨,用撬棍轻轻撬撬模板,使模板离开墙体,即可把模板吊运走。
4.梁板模板拆除:
拆除穿墙螺栓母→拆除梁侧模→拆除板底水平拉杆→卸下板底木龙骨→拆除板底支柱→卸下板模→拆梁底小横杆→拆除梁底模。
注意事项:
(1)拆模进严禁将模板直接从高外往下系,以防止模板变形和损坏。
(2)拆模时不得用大锤硬砸或撬棍硬撬,以免损伤砼表面和棱角。
(3)拆下的钢模板,如发现不平或肋边损坏变形,应及时修理。
(4)拆除定形模板时(如弧形梁底、异形板),应注意拆下后按编码放整齐,以备后用。
六、安全措施:
1、安装梁底模板时,应注意随铺随固定,不得虚放及梁底模有探头现象,没有用的模板应及时运用。
2、铺设模板时,板底木骨要及时用铅丝和支撑系统扎牢,不得虚放。
3、现场操作,必须戴好安全帽及安全带。
4、支模时,操作面要按要求搭设护栏及安全操作台,操作台上铺设脚手板,不得站在钢管上操作。
5、独立柱模支设时,应搭独立脚手架,并设护栏、铺脚手板。
6、砼浇筑安全措施:
(1)、本工程砼浇筑均采用送商品砼。砼输送过程中,管道振动较大,因此输送管固定时,不得直接支撑在模板及模板支撑上,以防因输送管振动而使模板及其支撑系统产生变形,应设相对独立的支撑或支架。
(2)、地下室剪力墙及各层柱浇筑时,应搭设砼浇筑操作平台及护栏。操作平台上满铺脚手板,护栏处设200mm 高踢脚板。
(3)、砼浇筑时,人应站在输送管口旁边,不得正对管口,以防砼喷射在人体上。
(4)、输送管支撑或支架应具有良好的稳定性,防止输送过程中发生支倾翻,以至伤人。
(5)、建立信号传递系统(如用电铃),使工作面和输送泵操作人员可随时联系,输送泵操作人员应按信号要求进行操作。
7、拆除模板过程中,严禁往下抛掷物料,应将手持工具放在稳妥处或工具袋内,防止物体从高处坠落伤人。
8、拆除作业完工前,不准留下松动和悬挂的模板。拆下的模板应及时运到指定地点存放。
9、模板拆除作业中,应设专门监护人员及醒目警示牌。
10、拆下的模应及时清除灰浆,清除的模板必须及时涂刷脱模剂。模板及配件应设专人保管和维修,并要按规格、种类分别存放。
11、模板支拆前必须向施工组进行书面安全技术交底。
__
一、工程概况
温州******校区演艺影视中心工程位于****南大门,由温州****投资建设,****设计研究院设计,******监理公司监理,******集团组织施工。本工程为3 层框架结构,局部地下一层,总建筑面积15600m²,分A、B 两区。
二、模板设计配制原则:
1、保证混凝土结构和构件形状、尺寸和相互位置的正确。
2、具有足够强度、刚度和稳定性,能可靠地承重砼浇筑时产生的竖向荷载和侧压力。
3、构造尽可能简单、支拆方便,并便于钢筋的绑扎与安装及砼的浇筑和养护工艺要求。
4、模板接缝严密,无漏浆。
5、拼制模板时,板边要找平刨直。木料上有节疤、缺口等弊病的部位,应放在模板反面或截去,钉子长度宜为模板厚度的2~2.5 倍。合理安排进度。
6、针对工程结构的具体情况,在确保工期、质量的前提下,尽量减少一次性投入,增加模板周转,减少支拆用工,并实现文明施工。
三、模板支设材料
本工程剪力墙,现浇底模采用木胶合板,柱子采用木模十槽钢,木档搁栅采用50×100 松木方料,支架采用Ф48(3~3.5mm 壁厚)钢管,扣件,Ф12—Ф14 对拉螺栓(或止水螺栓),螺栓@200mm,热轧普通槽钢。四、模板支设方法:
1、基础模板:
⑴、砼底板外侧模,反地粱和反承台侧模采用240 砖墙,砖墙必须按底板边线砌筑,砖缝密缝,内侧为正墙。
2、柱模板支设:
本工程普通矩形柱,均采用木模支设,采用四块或多块长柱头板拼装,外加型钢抱箍。对于层高3.8m,350*400 的柱(梁高600mm),松木方料内楞为4 条,Φ48(3-3.5mm 壁厚)钢管柱箍间距为500mm。对于350*500的柱(梁高600mm),松木方料内楞间距为150mm,Φ48(3.5mm 壁厚)钢管柱箍间距为500mm。
施工要点:
⑴、安装前先在基础面上弹出纵横轴线和四周边线。
⑵、排柱模板,应先安装两端柱模板,校正固定,拉通长线校正中间各柱模板。
⑶、为便于拆模,柱模板与梁模板连接时,梁模宜缩短2~3mm 并锯成不斜面。
5 梁、板模板支设:
为保证砼结构的工程质量,提高砼表面观感,在本工程是将使用平整度光洁度好、硬度、强度高的多层夹板用于梁板支模,采用100×50 方木搁栅和钢管扣件支撑。
所有模板均由木工绘制翻样图,经施工、技术人员复核。模板在木工车间内加工预制,现场实地拼装。为了控制现浇梁板的梁与柱节点的制模质量,保证梁柱节点尺寸准确,大梁底板和侧边模板、整块与柱搭接,镶接点设在梁中。跨度中间起拱,起拱设计为全跨长度的1/100~3/1000。模板支设步骤:
⑴、排间距,板底钢管立柱间距为1.2,梁底钢管排架立柱:对于240*600的梁,垂直梁方向为0.8m,沿梁方向为1.2 m。
对于240*600 的梁,梁底及侧面方条间距为300mm,梁侧设Φ12 对拉螺栓一道,间距600 mm。
⑵、支模架搭设时,立柱间距严格控制,纵横拉麻线确保顺直。
⑶、离地面200mm 处设置扫地杆一道,对于层高3.8m 的部位,立杆步距1.4m,在步距处用钢管纵横拉结,使模架支撑体系形成一个整体,并加设水平向剪刀撑(间距9m)。
⑷、支撑架搭设完成确定水平标高后,架设梁底钢管,水平方木搁栅,然后铺设底模。
⑸、所有模板按部位支撑完毕后,复核垂直度并水平拉通线,验收合格后方可转入下一道工序。
6、楼梯模板支设:
⑴、根据大样划好平台标高,先支设基础梁,平台梁平台模板,再支设楼梯底板模板。
⑵、支撑底板的搁栅间距为300mm,支撑搁栅的横木托带间距为1m,托带两端用斜支撑支住,下用单楔楔紧,斜撑间用牵杠互相拉牢,搁栅外面钉上外帮板,其高度与踏步上齐。
五、施工中应注意:
1、模板安装前,项目施工技术人员须审核木工翻工图,对操作班组人员就施工技术专项方案,搭设要求,构造要求和安全质量注意事项等进行书面技术交底,交底双方履行签字手续。
2、柱子砼先浇筑完毕的,在柱子砼达到拆模强度时,最上一段板保留不拆,以利于梁模相接。
3、模板制作:
⑴、在现场木工车间进行,木工间必须进行封闭隔离,木工间内严禁吸烟,并配合足够的灭火器具,做到工完料清,木屑及时清理。
⑵、木工机械设置防护罩,木工操作时要求思想集中,以免发生意外。
⑶模板堆放整齐,地面堆入高度小于2m。
4、模板支撑系统的搭设须严格按方案执行,钢管立杆的间距,材质,纵横拉杆的设置应符合要求,立杆底部用木板垫实,严禁用砖作垫高处理;外架及支模架上的堆载严格控制,施工荷截不超过设计规定,堆料均匀。
5、支模架钢管、扣件必须有产品合格证和法定检测单位的栓测检验报告,生产厂家必须具有技术质量监督部门颁发的生产许可证。钢管、扣件使用前,项目部须按照《金属拉伸试验方法》(GB/T228),《钢管脚手架扣件》(GB15831)和《建筑施工扣件式钢管脚手架安全技术规范》(JGJ130-2001)对钢管、扣件质量进行抽样检测,合格后方可使用。
6、现场建立钢管、扣件使用台帐,落实专人加强钢管、扣件的维修保养工作。凡有裂纹、结疤、分层、错位、硬弯、毛刺、深划道和外径、壁厚端面偏差超过规范要求的钢管,有裂缝、变形、螺栓出现滑丝的扣件必须报废。
7、现场配备力矩板手等检测工具,承重支模架使用前必须组织有关人员进行验收,验收不合格的严禁投入使用。
六、模板的拆除
1、拆模流程示意图
2、拆模程序
拆模应遵循:分段分区块拆除、平面上先拆临边跨再拆内部跨、垂直方向分层分皮自上而下拆除、先拆非承重模板再拆除承重模板;拆梁底模应从梁跨的中间向两边拆除,拆悬臂梁梁底的模板时应从悬臂端向支座端拆除;同时拆除模板时应随拆随清理并堆放整齐,拆模操作顺序如下:(1)、柱模板:搭设作业平台→拆除斜撑/支撑水平杆→自上而下拆除柱箍或横楞→拆除模板间连接螺栓或回形销→拆除模板→清理模板并分类堆放。
(2)、梁、顶板模板:搭设作业平台→拆梁侧支模水平杆/斜撑→拆除梁侧模→板底承重水平横杆→对搭接立杆可拆除上立杆或适当下放上立杆→拆顶板底模板→拆梁底承重水平横杆→拆梁底模板→拆支模架剪刀撑→拆支模架横杆→拆支模架立杆。
3、拆模安全防护措施
⑴、上岗作业人员必须是已经过三级安全教育并经考试合格的人员。
⑵、拆模前应履行拆模审批手续。施工员(或木工翻样)应确认构件强度必须达到(设计和施工规范)允许拆模强度值,作业环境防护符合安全要求后,方可批准拆模。
⑶、拆模前应做好临边防护和洞口防护。
⑷、在拆模前项目部必须对木工和架子班组进行分部分项安全交底,交底应交到班组所有作业人员。上岗时作业人员必须正确使用安全防护用品。严禁酒后作业,严禁睡眠严重不足人员上岗。
⑸、拆模时必须严格遵守拆模方案和操作规程。
⑹、拆模时下方不能有人,拆模区应设警戒线,以防有人误入被砸伤。
⑺、拆模时拆模工人必须有可靠的立足点。对高度超过2m 的模板拆除无安全防护时操作工人必须正确佩戴安全带。
⑻、拆模应遵循先拆非承重模板再拆除承重模板,拆梁底模应从梁跨的中间向两边拆除,拆悬臂梁梁底的模板时应从悬臂端向支座端拆除。
⑼、拆模操作时应按顺序分段进行,严禁猛撬、硬砸或大面积撬落、拉到;作业间断时,现场不得留有松动或悬挂的模板。
⑽、拆下的模板应及时运到指定地点集中有序堆放,防止钉子扎脚。
⑾、项目安全员(包括班组长、班组兼职安全员)必须对模板拆除作业进行巡视,发现有不安全行为或现象时必须立即给予阻止。
七、梁木模板计算书
(一)、梁模板荷载标准值
模板自重= 0.340kN/m2;
钢筋自重= 1.500kN/m3;
混凝土自重= 24.000kN/m3;
施工荷载标准值= 2.500kN/m2;
强度验算要考虑新浇混凝土侧压力和倾倒混凝土时产生的荷载;挠度验算只考虑新浇混凝土侧压力。
新浇混凝土侧压力计算公式为下式中的较小值:
![]()
其中
—— 混凝土的重力密度,取24.000kN/m3;
t —— 新浇混凝土的初凝时间,为0时(表示无资料)取200/(T+15),取6.600h;
T —— 混凝土的入模温度,取15.000℃;
V —— 混凝土的浇筑速度,取2.500m/h;
H —— 混凝土侧压力计算位置处至新浇混凝土顶面总高度,取0.700m;
1—— 外加剂影响修正系数,取1.000;
2—— 混凝土坍落度影响修正系数,取1.150。
根据公式计算的新浇混凝土侧压力标准值F1=16.790kN/m2
实际计算中采用新浇混凝土侧压力标准值F1=16.800kN/m2
倒混凝土时产生的荷载标准值F2= 6.000kN/m2。

图梁底模面板示意图
(二)、梁模板底模计算
梁底模板的高度H = 18mm;
梁底模板的宽度B = 240mm;
本算例中,面板的截面惯性矩I和截面抵抗矩W分别为:
W = 30.00×1.80×1.80/6 = 16.20cm3;
I = 30.00×1.80×1.80×1.80/12 = 14.58cm4;
梁底模板面板按照三跨度连续梁计算,计算简图如下

图梁底模面板计算简图
1.强度计算
强度计算公式要求: f = M/W < [f]
其中f —— 梁底模板的强度计算值(N/mm2);
M —— 计算的最大弯矩(kN.m);
q —— 作用在梁底模板的均布荷载(kN/m);
q=1.2×[0.34×(0.24+2×0.60)+24.00×0.24×0.60+1.50×0.24×0.60]+1.4×2.50×0.24=8.17kN/m
最大弯矩计算公式如下:
![]()
M=-0.10×8.170×0.242=-0.074kN.m
=0.074×106/16200.0=4.539N/mm2
梁底模面板计算强度小于15.00N/mm2,满足要求!
2.挠度计算
最大挠度计算公式如下:

其中q = 0.34×(0.24+2×0.60)+24.00×0.24×0.60+1.50×0.24×0.60=5.933N/mm
三跨连续梁均布荷载作用下的最大挠度
v = 0.677×5.933×300.04/(100×6000.00×145800.0)=0.372mm
梁底模板的挠度计算值: v = 0.372mm小于[v] = 300/400,满足要求!
(三)、梁模板底木方计算
梁底木方的高度H = 100mm;
梁底木方的宽度B = 50mm;
本算例中,面板的截面惯性矩I和截面抵抗矩W分别为:
W = 5.00×10.00×10.00/6 = 83.33cm3;
I = 5.00×10.00×10.00×10.00/12 = 416.67cm4;
梁底木方按照按照集中荷载作用的简支梁计算,计算简图如下

图梁底木方计算简图
1.强度计算
强度计算公式要求: f = M/W < [f]
其中f —— 梁底模板的强度计算值(N/mm2);
M —— 计算的最大弯矩(kN.m);
P —— 作用在梁底木方的集中荷载(kN/m);
P={1.2×[0.34×(0.24+2×0.60)+24.00×0.24×0.60+1.50
×0.24×0.60]+1.4×2.50×0.24}×0.24=2.451kN
最大弯矩计算公式如下:

其中L —— 梁底木方的跨度,L = 300+2×300=900mm
M=2.451×900.000/4=0.551kN.m
=0.551×106/83333.3=6.617N/mm2
梁底木方计算强度小于13.00N/mm2,满足要求!
2.挠度计算
最大挠度计算公式如下:

其中P = [0.34×(0.24+2×0.60)+24.00×0.24×0.60+1.50×0.24×0.60]×0.24=1.780kN
最大挠度
v = 1779.900×900.03/(48×9500.00×4166666.8)=0.683mm
梁底木方的挠度计算值: v = 0.683mm小于[v] = 900/400,满足要求!
(四)、梁模板侧模计算
梁侧模板龙骨按照三跨连续梁计算,计算简图如下

图梁侧模板龙骨计算简图
1.强度计算
强度计算公式要求: f = M/W < [f]
其中f —— 梁侧模板的强度计算值(N/mm2);
M —— 计算的最大弯矩(kN.m);
q —— 作用在梁侧模板的均布荷载(N/mm);
q=(1.2×16.80+1.4×6.00)×0.60=19.992N/mm
最大弯矩计算公式如下:
![]()
M=-0.10×19.992×0.2402=-0.180kN.m
=0.180×106/37800.0=4.760N/mm2
梁侧模面板计算强度小于15.00N/mm2,满足要求!
2.挠度计算
最大挠度计算公式如下:

其中q = 16.80×0.60=11.76N/mm
三跨连续梁均布荷载作用下的最大挠度
v = 0.677×11.760×300.04/(100×6000.00×340200.0)=0.316mm
梁侧模板的挠度计算值: v = 0.316mm小于[v] = 300/400,满足要求!
(五)、穿梁螺栓计算
穿梁螺栓承受最大拉力N = (1.2×16.80+1.4×6.00)×0.60×0.60/1=12.00kN
穿梁螺栓直径为12mm;
穿梁螺栓有效直径为10.4mm;
穿梁螺栓有效面积为84.300mm2;
穿梁螺栓最大容许拉力值为14.331kN;
穿梁螺栓承受拉力最大值为11.995kN;
穿梁螺栓的布置距离为侧龙骨的计算间距600mm。
每个截面布置1 道穿梁螺栓满足要求。
穿梁螺栓强度满足要求!
八、梁模板扣件钢管高支撑架计算书
高支撑架的计算参照《建筑施工扣件式钢管脚手架安全技术规范》(JGJ130-2001)。
支撑高度在4米以上的模板支架被称为扣件式钢管高支撑架,对于高支撑架的计算规范存在重要疏漏,使计算极容易出现不能完全确保安全的计算结果。本计算书还参照《施工技术》2002.3.《扣件式钢管模板高支撑架设计和使用安全》,供脚手架设计人员参考。
模板支架搭设高度为3.8米,
基本尺寸为:梁截面B×D=240mm×600mm,梁支撑立杆的横距(跨度方向) l=1.20米,立杆的步距h=1.30米,

图1 梁模板支撑架立面简图
采用的钢管类型为ф48×3.5。
(一)、梁底支撑大横杆的计算
作用于大横杆的荷载包括梁与模板自重荷载,施工活荷载等,通过木方的集中荷载传递。
1.木方荷载的计算:
(1)钢筋混凝土梁自重(kN):
q1 = 25.000×0.600×0.240×0.240=1.575kN
(2)模板的自重荷载(kN):
q2 = 0.350×0.240×(2×0.600+0.240)=0.179kN
(3)活荷载为施工荷载标准值与振倒混凝土时产生的荷载(kN):
经计算得到,活荷载标准值P1 = (1.000+4.000)×0.240×
0.240=0.450kN
2.木方楞传递集中力计算:
P = (1.2×1.575+1.2×0.179+1.4×0.450)/2=1.367kN
3.大横杆的强度计算:
大横杆按照集中荷载作用下的简支梁计算
集中荷载P取木方传递力,P=1.37kN
大横杆计算简图如下

梁底支撑钢管按照简支梁的计算公式

其中n=1.20/0.30=4
经过简支梁的计算得到
支座反力RA = RB=(4-1)/2×1.37+1.37=3.42kN
通过传递到立杆的最大力为2×2.05+1.37=5.47kN
最大弯矩Mmax=4/8×1.37×1.20=0.82kN.m
截面应力
=0.82×106/4491.0=182.65N/mm2
水平支撑梁的计算强度小于205.0N/mm2,满足要求!
(二)、梁底支撑小横杆计算
小横杆只起构造作用,通过扣件连接到立杆。
(三)、扣件抗滑移的计算:
纵向或横向水平杆与立杆连接时,扣件的抗滑承载力按照下式计算(规范5.2.5):
R ≤ Rc
其中Rc —— 扣件抗滑承载力设计值,取8.0kN;
R —— 纵向或横向水平杆传给立杆的竖向作用力设计值;
计算中R取最大支座反力,R=5.47kN
单扣件抗滑承载力的设计计算满足要求!
当直角扣件的拧紧力矩达40--65N.m时,试验表明:单扣件在12kN的荷载下会滑动,其抗滑承载力可取8.0kN;双扣件在20kN的荷载下会滑动,其抗滑承载力可取12.0kN。
(四)、立杆的稳定性计算:
立杆的稳定性计算公式

其中N —— 立杆的轴心压力设计值,它包括:
横杆的最大支座反力N1=5.47kN (已经包括组合系数1.4)
脚手架钢管的自重N2 = 1.4×0.129×5000=0.903kN
楼板的混凝土模板的自重N3=2.100kN
N = 5.468+0.903+2.100=8.471kN
ф—— 轴心受压立杆的稳定系数,由长细比l0/i 查表得
到;
i —— 计算立杆的截面回转半径(cm);i = 1.60
A —— 立杆净截面面积(cm2); A = 4.24
W —— 立杆净截面抵抗矩(cm3);W = 4.49
—— 钢管立杆受压强度计算值(N/mm2);
[f] —— 钢管立杆抗压强度设计值(N/mm2);[f] = 205.00
l0 —— 计算长度(m);
如果完全参照《扣件式规范》不考虑高支撑架,由公式(1)或(2)计算
l0 = k1uh (1)
l0 = (h+2a) (2)
k1 —— 计算长度附加系数,按照表1取值为1.167;
u —— 计算长度系数,参照《扣件式规范》表5.3.3;u = 1.75
a —— 立杆上端伸出顶层横杆中心线至模板支撑点的长度;
a = 0.30m;
公式(1)的计算结果:
= 120.8,立杆的稳定性计算
< [f],满足要求!
公式(2)的计算结果:
= 168.2,立杆的稳定性计算
< [f],满足要求!
如果考虑到高支撑架的安全因素,适宜由公式(3)计算
l0 = k1k2(h+2a) (3)
k2 —— 计算长度附加系数,按照表2取值为1.000;
公式(3)的计算结果:
= 144.66,立杆的稳定性计算
< [f],
满足要求!
模板承重架应尽量利用剪力墙或柱作为连接连墙件,否则存在安全
隐患。
表1 模板支架计算长度附加系数k1
——————————————————————————————
步距h(m) h≤0.9 0.9<h≤1.2 1.2<h≤1.5
1.5<h≤2.1
k1 1.243 1.185 1.167
1.163
表2 模板支架计算长度附加系数k2
——————————————————————————————
H(m) 4 6 8 10 12 14 16 18
20 25 30 35 40
h+2a或u1h(m)
1.35 1.0 1.014 1.026 1.039 1.042 1.054 1.061 1.081
1.092 1.113 1.137 1.155 1.173
1.44 1.0 1.012 1.022 1.031 1.039 1.047 1.056 1.064
1.072 1.092 1.111 1.129 1.149
1.53 1.0 1.007 1.015 1.024 1.031 1.039 1.047 1.055
1.062 1.079 1.097 1.114 1.132
1.62 1.0 1.007 1.014 1.021 1.029 1.036 1.043 1.051
1.056 1.074 1.090 1.106 1.123
1.80 1.0 1.007 1.014 1.020 1.026 1.033 1.040 1.046
1.052 1.067 1.081 1.096 1.111
1.92 1.0 1.007 1.012 1.018 1.024 1.030 1.035 1.042
1.048 1.062 1.076 1.090 1.104
2.04 1.0 1.007 1.012 1.018 1.022 1.029 1.035 1.039
1.044 1.060 1.073 1.087 1.101
2.25 1.0 1.007 1.010 1.016 1.020 1.027 1.032 1.037
1.042 1.057 1.070 1.081 1.094
2.70 1.0 1.007 1.010 1.016 1.020 1.027 1.032 1.037
1.042 1.053 1.066 1.078 1.091
——————————————————————————————
以上表参照***:《扣件式钢管模板高支撑架设计和使用安全》
(五)、梁和楼板模板高支撑架的构造和施工要求[工程经验]:
除了要遵守《扣件架规范》的相关要求外,还要考虑以下内容
1.模板支架的构造要求:
a.梁板模板高支撑架可以根据设计荷载采用单立杆或双立杆;
b.立杆之间必须按步距满设双向水平杆,确保两方向足够的设计刚度;
c.梁和楼板荷载相差较大时,可以采用不同的立杆间距,但只宜在一个方向变距、而另一个方向不变。
2.立杆步距的设计:
a.当架体构造荷载在立杆不同高度轴力变化不大时,可以采用等步距设置;
b.当中部有加强层或支架很高,轴力沿高度分布变化较大,可采用下小上大的变步距设置,但变化不要过多;
c.高支撑架步距以0.9--1.5m为宜,不宜超过1.5m。
3.整体性构造层的设计:
a.当支撑架高度≥20m或横向高宽比≥6时,需要设置整体性单或双水平加强层;
b.单水平加强层可以每4--6米沿水平结构层设置水平斜杆或剪刀撑,且须与立杆连接,设置斜杆层数要大于水平框格总数的1/3;
c.双水平加强层在支撑架的顶部和中部每隔10--15m设置,四周和中部每10--15m设竖向斜杆,使其具有较大刚度和变形约束的空间结构层;d.在任何情况下,高支撑架的顶部和底部(扫地杆的设置层)必须设水平加强层。
4.剪刀撑的设计:
a.沿支架四周外立面应满足立面满设剪刀撑;
b.中部可根据需要并依构架框格的大小,每隔10--15m设置。
5.顶部支撑点的设计:
a.最好在立杆顶部设置支托板,其距离支架顶层横杆的高度不宜大于400mm;
b.顶部支撑点位于顶层横杆时,应靠近立杆,且不宜大于200mm;
c.支撑横杆与立杆的连接扣件应进行抗滑验算,当设计荷载N≤12kN时,可用双扣件;大于12kN时应用顶托方式。
6.支撑架搭设的要求:
a.严格按照设计尺寸搭设,立杆和水平杆的接头均应错开在不同的框格层中设置;
b.确保立杆的垂直偏差和横杆的水平偏差小于《扣件架规范》的要求;c.确保每个扣件和钢管的质量是满足要求的,每个扣件的拧紧力矩都要控制在45-60N.m,钢管不能选用已经长期使用发生变形的;
d.地基支座的设计要满足承载力的要求。
7.施工使用的要求:
a.精心设计混凝土浇筑方案,确保模板支架施工过程中均衡受载,最好采用由中部向两边扩展的浇筑方式;
b.严格控制实际施工荷载不超过设计荷载,对出现的超过最大荷载要有相应的控制措施,钢筋等材料不能在支架上方堆放;
c.浇筑过程中,派人检查支架和支承情况,发现下沉、松动和变形情况及时解决。
九、柱模板支撑计算书
(一)、柱模板荷载标准值
强度验算要考虑新浇混凝土侧压力和倾倒混凝土时产生的荷载;挠
度验算只考虑新浇混凝土侧压力。
新浇混凝土侧压力计算公式为下式中的较小值:
![]()
其中
—— 混凝土的重力密度,取24.000kN/m3;
t —— 新浇混凝土的初凝时间,为0时(表示无资料)取
200/(T+15),取6.600h;
T —— 混凝土的入模温度,取15.000℃;
V —— 混凝土的浇筑速度,取2.900m/h;
H —— 混凝土侧压力计算位置处至新浇混凝土顶面总高度,取3.800m;
1—— 外加剂影响修正系数,取1.000;
2—— 混凝土坍落度影响修正系数,取1.000。
根据公式计算的新浇混凝土侧压力标准值F1=59.340kN/m2
实际计算中采用新浇混凝土侧压力标准值F1=59.340kN/m2
倒混凝土时产生的荷载标准值F2= 4.000kN/m2。
(二)、柱模板计算简图
柱箍是柱模板的横向支撑构件,其受力状态为拉弯杆件,应按拉弯杆件进行计算。
柱模板的截面宽度B = 350mm;
柱模板的截面高度H = 500mm;
柱模板的高度L = 3800mm;
柱箍的间距计算跨度d = 500mm。
图1 柱箍计算简图
(三)、木方(面板)的计算
木方直接承受模板传递的荷载,应该按照均布荷载下的两跨度连续
梁计算,计算如下

木方计算简图
1.木方强度计算
支座最大弯矩计算公式
![]()
跨中最大弯矩计算公式

其中q为强度设计荷载(kN/m);
q = (1.2×59.34+1.4×4.00)×0.15 = 11.52kN/m
d为柱箍的距离,d = 500mm;
经过计算得到最大弯矩M = 0.125×11.521×0.35×0.50=0.360kN.M
木方截面抵抗矩W = 50.0×100.0×100.0/6=83333.3mm3
经过计算得到= M/W = 0.370×106/83333.3 = 4.320N/mm2
木方的计算强度小于13.0N/mm2,满足要求!
2.木方挠度计算
最大挠度计算公式

其中q混凝土侧压力的标准值,q = 59.340kN/m;
E 木方的弹性模量,E = 9500.0N/mm2;
I 木方截面惯性矩I = 50.0×100.0×100.0×100.0/12=4166667.0mm4;
经过计算得到w =0.521×59.340×500.04/(100×9500×4166667.0) = 0.488mm
[w] 木方最大允许挠度,[w] = 500.000/400 = 1.25mm;
木方的最大挠度满足要求!
(四)、B方向柱箍的计算
本算例中,柱箍采用钢楞,截面惯性矩I和截面抵抗矩W分别为:
钢柱箍的规格: 圆钢管_48_3.5mm;
钢柱箍截面抵抗矩W = 4.49cm3;
钢柱箍截面惯性矩I = 10.78cm4;

B方向柱箍计算简图
其中P为木方传递到柱箍的集中荷载(kN);
P = (1.2×59.34+1.4×4.00)×0.15 × 0.35 = 5.76kN
经过连续梁的计算得到

B方向柱箍剪力图(kN)

B方向柱箍弯矩图(kN.m)
最大弯矩M = 2.448kN.m
最大支座力N = 14.402kN
柱箍截面强度计算公式

其中Mx —— 柱箍杆件的最大弯矩设计值, Mx = 2.45kN.m;
x —— 截面塑性发展系数, 为1.05;
W —— 弯矩作用平面内柱箍截面抵抗矩, W = 17.96cm3;
柱箍的强度设计值(N/mm2): [f] = 205.000
B边柱箍的强度计算值f = 129.83N/mm2;
B边柱箍的强度验算满足要求!
(五)、B方向对拉螺栓的计算
B方向没有设置对拉螺拴!
(六)、H方向柱箍的计算

H方向柱箍计算简图
其中P为木方传递到柱箍的集中荷载(kN);
P = (1.2×59.34+1.4×4.00)×0.15 × 0.50 = 5.76kN
经过连续梁的计算得到

H方向柱箍剪力图(kN)

H方向柱箍弯矩图(kN.m)
最大弯矩M = 2.448kN.m
最大支座力N = 14.402kN
柱箍截面强度计算公式

其中Mx —— 柱箍杆件的最大弯矩设计值, Mx = 2.45kN.m;
x —— 截面塑性发展系数, 为1.05;
W —— 弯矩作用平面内柱箍截面抵抗矩, W = 17.96cm3;
柱箍的强度设计值(N/mm2): [f] = 205.000
H边柱箍的强度计算值f = 129.83N/mm2;
H边柱箍的强度验算满足要求!
十、墙模板的木模板计算书
一、荷载计算
强度验算要考虑新浇混凝土侧压力和倾倒混凝土时产生的荷载;挠度验算只考虑新浇混凝土侧压力。
新浇混凝土侧压力计算公式为下式中的较小值:
![]()
其中
—— 混凝土的重力密度,取24.000kN/m3;
t —— 新浇混凝土的初凝时间,为0时(表示无资料)取
200/(T+15),取6.600h;
T —— 混凝土的入模温度,取15.000℃;
V —— 混凝土的浇筑速度,取2.500m/h;
H —— 混凝土侧压力计算位置处至新浇混凝土顶面总高
度,取5.000m;
1—— 外加剂影响修正系数,取1.000;
2—— 混凝土坍落度影响修正系数,取1.150。
根据公式计算的新浇混凝土侧压力标准值F1=63.360kN/m2
实际计算中采用新浇混凝土侧压力标准值F1=63.360kN/m2
倒混凝土时产生的荷载标准值F2= 4.000kN/m2。
二、墙模板的构造
墙模板的背部支撑由两层龙骨(木楞或钢楞)组成,直接支撑模板的龙骨为次龙骨,即内龙骨;
用以支撑内层龙骨为主龙骨,即外龙骨组装成墙体模板时,通过拉杆将
墙体两片模板拉结,
每个拉杆成为主龙骨的支点。

图1 墙模板组装示意图
内龙骨间距200mm;
外龙骨间距600mm;
三、墙模板面板的计算:
面板为受弯结构,需要验算其抗弯强度和刚度。计算的原则是按照
龙骨的间距和模板面的大小,
按支撑在内龙骨上的三跨连续梁计算。
强度计算公式:
f = M / Wx < [f]
其中f —— 面板的强度计算值(N/mm2);
M —— 面板的最大弯距(N.mm);
Wx —— 面板的净截面抵抗矩,W = 60.00×1.80×1.80/6=32.40cm3;
[f] —— 面板的强度设计值(N/mm2)。
M = ql2 / 10
其中q —— 作用在模板上的侧压力,它包括:
新浇混凝土侧压力设计值,q1= 1.2×0.60×63.36=45.62kN/m;
倾倒混凝土侧压力设计值,q2= 1.4×0.60×4.00=3.36kN/m;
l —— 计算跨度(内楞间距),l = 200mm;
面板的强度设计值[f] = 15.000N/mm2;
经计算得到,面板的强度计算值f = 6.047N/mm2;
面板的强度验算f < [f],满足要求!
木模或胶合板挠度计算公式:
v = ql4 / 150EI < [v] = l/400
其中q —— 作用在模板上的侧压力,q = 48.98N/mm;
l —— 计算跨度(内楞间距),l = 200mm;
E —— 面板的弹性模量,E = 6000N/mm2;
I —— 面板的截面惯性矩,I = 60.00×1.80×1.80×1.80/12=29.16cm4;
面板的最大允许挠度值,[v] = 0.500mm;
面板的最大挠度计算值, v = 0.299mm;
面板的挠度验算v < [v],满足要求!
四、墙模板内外楞的计算:
内楞(木或钢)直接承受钢模板传递的荷载,通常按照均布荷载的三跨连续梁计算。
本算例中,内龙骨采用木楞,截面惯性矩I和截面抵抗矩W分别为:
W = 5.00×10.00×10.00/6 = 83.33cm3;
I = 5.00×10.00×10.00×10.00/12 = 416.67cm4;
内楞强度计算公式:
f = M / W < [f]
其中f —— 内楞的强度计算值(N/mm2);
M —— 内楞的最大弯距(N.mm);
W —— 内楞的净截面抵抗矩;
[f] —— 内楞的强度设计值(N/mm2)。
M = ql2 / 10
其中q —— 作用在内楞的荷载,q = (1.2×63.36+1.4×4.00)×0.20=16.33kN/m;
l —— 内楞计算跨度(外楞间距),l = 600mm;
内楞强度设计值[f] = 13.000N/mm2;
经计算得到,内楞的强度计算值f = 7.053N/mm2;
内楞的强度验算f < [f],满足要求!
内楞的挠度计算公式:
v = ql4 / 150EI < [v] = l/400
其中E —— 内楞的弹性模量,E = 9500.00N/mm2;
内楞的最大允许挠度值,[v] = 1.500mm;
内楞的最大挠度计算值, v = 0.356mm;
内楞的挠度验算v < [v],满足要求!
外楞的作用主要是加强各部分的连接和模板的整体刚度,不是主要受力构件,外楞可以按照内楞的需要设置,不必进行计算。
五、穿墙螺栓的计算:
计算公式:
N < [N] = fA
其中N —— 穿墙螺栓所受的拉力;
A —— 穿墙螺栓有效面积(mm2);
f —— 穿墙螺栓的抗拉强度设计值(N/mm2);
穿墙螺栓的直径(mm): 14
穿墙螺栓有效直径(mm): 12
穿墙螺栓有效面积(mm2): A = 115.400
穿墙螺栓最大容许拉力值(kN): [N] = 19.618
穿墙螺栓所受的最大拉力(kN): N = 15.840
穿墙螺栓强度验算满足要求!
第Ⅰ标段
塔 吊 专 项 方 案
编制:
审核:
审批:
浙江***建设有限公司
二00 五年三月十八日
目录
一、工程概况
二、塔吊的基础设计
三、塔吊基础承载力验算
四、塔吊安装
五、安装注意事项
六、附墙件安装
七、塔吊的操作使用
八、维护与保养
九、塔吊的拆除及安全措施
十、塔吊的沉降、垂直度测定及偏差较正
十一、附图
塔吊施工方案
一、工程概况
杭州***一期工程,位于杭州市东部***城,北侧为已建的6 号渠,东侧为27 号大
街,西侧为一条规划道路。是由杭州***房地产开发公司投资兴建,杭州市***设计研究院设计,浙江***建设公司承建,杭州***公司监理,浙江省***研究院勘察,地下室基坑围护设计方案由浙江省***研究院设计。我公司承建的一标段,包括1#、2#、3#、8#、10#、11#、12#、13#楼,其中1~3#楼为28~32 层,高度98.2 米;8#、10#楼14~18 层,高度约为55 米,11~13#楼为28 层,高度约为82 米,地下室一层。
整个工程在施工中垂直运输工作量很大,材料的运输周转也很大,项目部结合建筑物的高度、结构特点、施工现场环境,综合考虑工期、吊运能力、机械类型等因素,合理安排机械数量和布置位置,计划安排塔吊共计7 台:在1#楼的北侧1-34/1-N(位于地库内)安装一台QTZ60 塔吊;2#楼2-10/2-H(位于地库处)安装一台QTZ60 塔吊;3#楼3-32/3-N(地库内)安装一台QTZ60 塔吊;8#楼8-26/8-R(位于地库内)考虑安装一台QTZ315 塔吊;10#楼10-26/10-A(位于地库内)考虑安装一台QTZ60 塔吊;11#楼安装一台QTZ60 塔吊,13#楼13-15/13-P(地库外)安装一台QTZ60 塔吊,13#楼塔吊兼顾12#楼。
二、塔吊的基础设计
1、地质情况分析
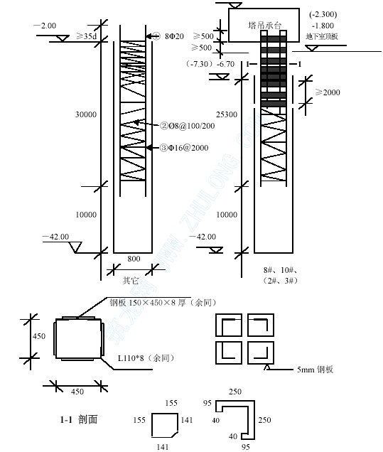
根据浙江省综合勘察研究院地质勘察资料,其土层分布依次如下,1-1 素填土,1-2回填土,2-1 粉土,2-2 粉土,2-3 粉砂、夹粉砂,2-4 粉砂,4-1 粉土,4-2 粉土夹淤泥质粉质粘土,5 淤泥质粉质粘土,6-1 粉质粘土,6-2 含砂粉质粘土,6-3 粉细砂。从本工程的土质情况、土方开挖后承台的支撑以及对边坡支护影响等因素考虑,塔吊采用承台基础,承台下为钻孔灌注桩支撑,以确保塔吊基础的稳定性,基础承载力满足使用要求。钻孔灌注桩的深度根据土层情况,考虑在40~45 米之间,直径800,根据承台尺寸,承台下布置四根桩,四角分别布置,桩中心点距离为3000mm。
2、承台基础和垫层设计
根据地质情况分析, 结合厂家提供的基础施工要求, 承台选用4820mm×4820mm×1250mm(长×宽×高),混凝土强度不低于C30 要求,基础承台采用C30 钢筋砼内配Ф20﹫183 双层双向,纵、横方向每隔2 根主筋设一根Ф20 拉筋。根据土质情况,地库外的塔吊基础承台下设100 厚C15 素混凝土垫层和300 厚块石垫层。
3、桩基础设计桩基础采用桩径为Ø800mm 钻孔灌注桩,位于地库外的塔吊桩桩长40 米,桩顶标高-2.00 米,桩底标高-42.00 米,桩顶嵌入承台100mm,桩身配筋情况:主筋8Φ20,笼长L=30.70 米,螺旋箍Ø8@200,桩顶2 米加密Ø8@100,加强箍为Φ16@2000,主筋的钢筋保护层厚度为70mm。位于地库内的塔吊由于地库防水的需要,桩顶标高设计为-6.70 米,桩底标高-42.00 米,配筋不变,桩径为800,在-6.70 米上为“口”字型钢格构柱,露出顶板1000mm,钢格构柱锚入承台为500mm,钢材采用A3 钢,采用四个角钢通过缀板(350*150*8)组合而成,钢格构柱下端插入钻孔灌注桩中不小于2000mm,施工时先将钢格构柱的四根角钢分别于与下部钻孔桩钢筋笼焊接牢固,再整体吊入孔内,钢格构柱内的钢止水片在土方挖至基底标高后,地下室底板和顶板浇捣前焊上,钢板止水片置于混凝土结构中部。角钢采用L110×8,钢格构柱尺寸为400×400,桩基础混凝土采用C30。土方开挖后,塔吊桩位处的边坡必须加固和加大放坡系数,加长、加密锚杆(同部位加长5 米),减少土体侧移对桩的影响。示意图:

4、施工工序
ⅰ、根据施工要求确定塔吊的基础位置,先施工塔吊的桩基础,再施工塔吊的承台基础,并预埋好螺栓,预埋螺栓时应根据厂家设计图要求预埋准确,尺寸偏差在5mm 内,整个承台面要求平整,平整度控制在1/500。
ⅱ、预埋螺栓采用16 根M30-6g,长1200 高强度螺杆,露出承台面360 毫米,丝扣长100 毫米,丝扣上油后用塑料套保护封闭。螺栓预埋时用电焊固定牢固。
ⅲ、接地必须良好,并按图纸施工,接地避雷器的电阻不得大于4Ω,接地保护装置的电缆与任何一根塔身主弦杆的螺栓连接,并清除螺栓及螺母的涂料。
三、塔吊桩、基础承台承载力验算
1.荷载参数
荷载的计算参数按照QZT60 塔式起重机进行(吨位大),根据厂方说明书,塔机固定在基础上,塔机未采用附着装置前,塔机对基础产生的荷载值最大,基础的设计及验算按荷载最大的状态进行。


平衡重:臂长35 米6.45 吨臂长40 米8.6 吨加长臂50 米9 吨
塔机自身重:独立式28.8 吨附着式52.9 吨
幅度:最大50 米最小2.5 米
起升高度:独立固定40.1 米附着100 米
2、单桩竖向承载力验算
根据浙江省综合勘察研究院的岩土工程勘察报告,对单桩竖向承载力特征值进行计算(因塔吊有7 台,部位不同,选取勘测孔Z3 点进行计算,-6.70 米以上摩阻力不予考虑)。
侧阻:Ra=Up∑ql+qA
=0.80×3.14×(12×1.1+21×8+18×7+14×6.9+10×8.8+25×4.4)
=1511.7KN
端阻:3.14×0.42×1200
=602.9KN
单桩竖向承载力特征值为:Ra=1511.7+602.9=2114.6KN
塔吊工作状态下单桩承台垂直荷载值.
QK=(FK+GK)/n=(90+288+60+726)/4=291KN
QKmax= QK +MXKY/∑Ymax2+MYKX/∑Xmax2 =291+486.9=777.9KN
符合要求!
塔吊非工作状态下单桩承台垂直荷载值.
QK=(FK+GK)/n=(90+288+726/4=276KN
QKmax= QK +MXKY/∑Ymax2+MYKX/∑Xmax2=276+689.4=965.4KN
符合要求!
3、桩、承台受力验算
根据塔机参数(已知):
塔吊自重28.8t,配重(平衡重)9t
最大起重量(Qmax)6t (距吊机中心11.3 米)
最小起重量(Qmin)1.2t (距吊机中心50 米,加长臂)
由于塔吊为活动荷载,承台的厚度、配筋按照以下三种情况进行验算
1)、未吊重物情况
Fk=288+90=378KN
基底净反力Pj=N/A=378/(4.82×4.82)=16.3KN/㎡
A1:考虑冲切荷载时取用的多边形面积
A2:斜裂面水平投影面积
矩形基础又称方形基础取az=bz=1m,L=B=4.82m,h=1.25m
所以:
A1=(L/2-az/2-h0)(L/2+az/2+h0)=(2.41-0.5-1.205)(2.41+.5+1.205)=2.9 m2
A2=(az+h0)h0=(1+1.205)*1.205=2.66m2
FL=A1×Pj=2.9×16.3=47.3KN
(混凝土轴心抗拉强度ft,根据GB50010-2002:C30 ft=1.43N/㎜2)
0.63ftA2=0.63×1430×2.66=2396KN
承载力验算满足FL≤0.6ftA2,因为47.3<2396,所以截面高度符合要求
底板配筋验算:
塔吊标准件柱边MSI=(1/24) Pj(B-bz) 2(2L+ az)
=(1/24) ×16.3×(4.82-1) 2(2×4.82+1)
=105.45KN·m
AS=MS1/(0.9fyh0)=(105.45×106)/(0.9×300×1205) =324.11mm2
(HRB335 fy =300N/㎜2)
2)、吊起6t 重物时,为偏心受压
N=288+90+60=438KN
Mga=60×11.3=678KN.m
e0=Mga/N=678/438=1.5m
Pjmax=(1+6e0/L)N/A=(1+6×1.5/4.82) ×438/4.822=54.06KN/m2
A1=2.9m2
A2=2.66m2
FL=2.9×54.06=156.8KN<<0.6 ftA2=2396KN(截面高度符合要求)
底板配筋验算: Pj1(柱边地基净反力)=438/4.822=18.85KN
M1=(1/48)(Pjmax+Pj1)(L-az) 2(2B+bz)
=(1/48)(54.06+18.85) (4.82-1) 2(2*4.82+1)
=235.84KN.m
AS1=M1/(0.9fyh0)=235.84×106/(0.9×300×1205)=724.9mm2
由于另一柱边M2=105.45 KN.m﹤M1=235.84 KN.m ,可略去,取AS1
3)、吊起1.2t 重物时,为偏心受压
N=28.8+9+1.2=39t=390KN
Mga=12×50=600KN.m
eo=Mga/N=600/390=1.54m
Pjmax=(1+6e0/L)N/A=(1+6×1.54/4.82) ×390/4.822
=48.97KN/m2
A1=2.9m2
A2=2.66m2
FL=2.9×48.97=142KN<<0.6 ftA2(截面高度符合要求)
底板配筋验算:由于起吊1.2t 时产生的弯矩小于6t 时的MⅠ,故可不计算。
综上所述: 经计算一侧向的受力配筋面积最大为724.9mm2(底板配筋为塔吊挂6 t 时最大),由于塔吊可以转动,两侧配筋应相同。实际底板受力钢筋配筋为Ф20@183,面积为1570 ㎜2,实际配筋率ρ=1570/(1000*1205)=0.0013,
ρmax=0.55*(1.43/300)=0.0026
结论:ρ<ρmax,实际配筋符合适筋条件。
4)、抗倾覆验算:
塔吊上部的荷载可能使整个塔吊基础绕桩底转动而倾覆,所以应对倾覆力矩进行验算。
① 倾覆力矩:平衡重Q=90KN 自重G=288KN 最大起重量:W=60KN
塔吊在非工作状态下:(塔吊有向A 点翻到的趋势)
(12.5-1.5)*Q-1.5G-3NB=0 倾翻力矩为MB=3*186=558KN.m
塔吊在工作状态下:∑MA=0 11Q-1.5G+3NB-12.8W=0 NB=210KN
∑F=0 NA+NB-Q-G-W=0 NA=228KN
MA=3*228=684KN
② 抗倾覆力矩:
M 抗=3.14*0.42*(42-6.7)*25*1.5+4.82*4.82*1.25*1.5*25/2=1209 >1.5 M 倾
经计算,符合要求。
4、钢格构柱承载力验算:
⑴、整体强度验算:N/A=581500/6896=84Mpa<f=215Mpa
⑵、稳定性验算长细比:λx=L/i=6000/400=15
λ1=L/i=500/34=14.7 λ0x=√14.72+152 =21 查表得稳定系数为
0.967,所以:
N/AΨ=581500/(0.967×6896)=87 Mpa<f=215Mpa
⑶、结论:符合要求
四、塔吊安装
塔吊安装时采用25t·m 汽车起重机。在安装时准备好常用工具及经纬仪等测量仪器,并配备塔吊司机二名,安装钳工二名,安装电工一名,起重一人,指挥一人。各人员必须技术熟练,持证上岗。
安装步骤:将底架十字架吊装在专用砼基础上,装好四根水平拉杆,校正水平拧紧螺栓,将底架固定在砼基础上。在十字梁上安装基础节,装上四根斜撑杆。吊装二节加强节并用螺栓与下部连接(注意标准节上有踏步的一面,要垂直于建筑物)。将爬升架套入塔身,注意套架上有油缸的一面要对准塔身上有踏步的一面。在地面上,将上、下支座以及回转支承,回转机构等用螺栓联成一体后,吊装到塔身和套架上,并用螺栓锁紧。吊装回转塔身及塔顶。吊装平衡臂,平衡拉杆,然后吊起一块平衡重放最后第二块外。吊装司机室。吊装起重臂,起重臂拉杆。吊装平衡重,穿绕有关绳索系统。检查整机的机械部份结构连接部份,电气和液压部分等无误后开始顶升工作。
五、安装注意事项
1. 塔吊采用三相五线制供电,零线不与塔身连接,塔机要设专用的接地线可靠接地,接地电阻不大于4Ω。
2.塔机臂架范围以外5—10m 内要保证无物。
3.安装完毕通电前,应用兆欧表检测各部件的绝缘电阻,电动机的绝缘电阻应不小于0.5 mΩ,导线间与地绝缘不小于1 mΩ。
4.供电:起重机的供电电缆线载面积不应小于16mm2(铜芯线),电压降应不大于5%,应尽量专设配电屏。
5.塔吊安装完毕,应对重量限制器及力矩限器进行调整。
六、附墙件的安装
1、根据建筑物特点和塔吊的附墙件尺寸,预先确定建筑物的连接点,并要预埋准确。附墙件按照说明书的规定进行设置。
2、安装过程必须用经纬仪检查塔机轴心的垂直度,其垂直度全高不超过1/1000,可调节四根附着用支撑杆上螺丝。
七、塔吊的操作使用
1、起重机的操作人员必须经过训练,了解机械的构造和使用,必须熟知机械的保养和安全操作规程,非安装维护人员未经许可不得攀登塔机。
2、起重机的正常工作气温为20。C—40。C,风速低于20m/s。
3、在夜间工作时,除塔机本身备有照明外,施工现场应备有充足的照明设备。
4、在司机室内禁止存放润滑油,油棉纱及其它易燃易爆物品,严禁使用电炉取暖。5、起重机必须安装避雷针,同时有良好的接地。
6、塔机定机定人,专机专人负责,非机组人员不得进入司机室擅自地蚝操作。在处理电气故障时,须有专职维修人员2 人以上。
7、司机操作严禁按“十不吊”规则执行。
8、塔吊使用前必须由当地部门及公司验收后可使用。
八、起重机的维护与保养
机械设备维护与保养
1、机械的制动器应经常进行检查和调整制动瓦和制动轮的间隙,以保证制动的灵活可靠,其间隙在0.5—1mm 之间,在摩擦面上不应有污物存在,遇有污物即用汽油洗净。
2、减速箱、变速箱、外啮合齿轮等部分的润滑按照润滑指标进行添加或更换。
3、要注意检查各部钢丝绳有无断丝和松股现象,如超过有关规定,必须立即换新。4、经常检查各部的联结情况,如有松动,应予拧紧,塔身联结螺栓应在塔身受压时检查紧松度,所有联结销轴必须带有开口销,并需张开。
5、安装、拆卸和调整回转机构时,要注意保证回转机构与行星减速器的中心线与回转大齿轮圈的中心线平行,回转小齿轮与大齿轮圈的啮合面不小于70%,啮合间隙要合适。金属结构的维护与保养
6、在运输中尽量设法防止构件变形及碰撞损坏。
7、在使用期间,必须定期检修和保养,以防锈蚀。
8、经常检查结构联接螺栓,焊缝以及构件是否损坏、变形和松动。
九、塔吊拆除及安全措施
1.塔吊拆除:
塔吊使用完毕,应通知公司派专门拆除人员进场进行塔吊的拆除工作,塔吊拆除顺序刚好和安装顺序相反即先装的后拆,后装的先拆。
(1) 上部标准节的拆除顺序与其顶升顺序相反,即:先将塔机套架以上部分的重心落在顶升油缸上铰点的位置并顶升,松开欲拆除标准节的八个高强联结螺栓,拉动引进小车,将标准节吊出,放下塔身应进行加固。后将拆除之标准节吊放到地上。如此自上至下逐节拆除。
(2) 当标准节拆到附墙装置上一节时,应进行附墙支架的拆除,附墙支架拆除前应先进行临时固定,然后将各连结螺栓松除。用人工抬至塔吊可吊到位置,用塔吊吊到地面,或用卷扬机运至地面,上部附着支架拆除后,可继续进行下部标准节的拆除。如此可依次将塔吊拆除至最下部。
(3) 当塔吊拆至离地面只有二节标准节时,即应进行塔顶、吊臂、平衡重等拆除。并应切断电源。先松掉钢丝绳,并收好,然后用吊车卸掉各平衡重。接着拆除吊臂拉杆(应用吊车将吊臂前端往上吊起,顺松除交接班杆方可拆除),并将吊臂根部与上支座的联结销轴拆除,以便吊臂与塔身分开,然后将吊臂放至地面,进行逐节分开拆除。吊臂拆除后应用吊车吊离司机室,然后拆除平衡臂,最后拆除塔顶及上、下支座回转机构,回转支承等,并将套架及最底节标准节、锚杆等拆除,保养。如此便完成了塔吊拆除的所有工作。
塔吊拆除时应特别注意事项:
1) 应派专人进行监护,确保拆除现场无其他有关人员出入,特别是拆到最底部分时。
2) 拆最底部分时,应切实切断塔吊电源,拆去电缆。
3) 各拆除人员均应持证上岗,并由专业指挥人员统一指挥。
4) 自上而下部件拆除后应及时将之运出场外进行保养,以空出场地。
2.安全措施:
A.塔吊安拆工作严禁在台风和雨天进行。
B.严禁非专业人员上场操作,违者罚款50 元,责令退出施工现场。
C.未经验收合格,塔吊司机不准上台操作,违者罚款50 元。
D.工地现场随意自升、拆除塔吊处以1000—5000 元罚款。
E.公司定期15 天检查塔吊,发现隐患,随时进行更换维修。
F.对吊装的钢丝绳等另部件,必须进行每天检查三次,发现隐患随时更换、维修。G.严禁超载和6 级风力以上情况严禁起吊,违反者指挥罚款100 元,塔吊司机罚款50 元。
H.夜间施工必须有足够的照明,如不能满足要求,司机有权停止操作。
十、塔吊的沉降、垂直度测定及偏差较正:
1.塔吊基础沉降观测每半月一次。垂直度在塔吊自由高度时半月一次测定。
2.当塔基出现沉降,垂直度偏差超过规定范围时,应进行偏差校正,在附墙未设之前,在最低节与塔吊基脚螺栓间加垫钢片校正,校正过程用高吨位千斤顶顶起塔身,顶塔身之前,塔身用大缆绳四方缆紧,在确保安全的前提下才能起顶塔岙。如需附墙安装,
则通过调节附墙,加设附墙的方法进行垂直度校正。
十一、附图
1、 塔吊基础平面示意图

2、塔吊平面位置图




3、塔吊混凝土基础钢筋示意图

***工程由***房地产开发有限公司投资兴建,***建筑设计院有限公司负责设计,***集团有限公司负责施工。工程位于****,本工程为单体建筑,工程±0.000相当于珠江高程测量的3.800,两层地下室,地面以上六层,建筑面积31023.8平方米.建筑地下室一层高度3.45米,地下室二层高度3.6米,地面以上首层高度5.5米,二层——六层各层层高4.5米,建筑物总高度29.5米。
1、根据施工现场用电设备布置情况,动力与照明分开,由一级电箱分出2路干线(LFG1、2)架空引至各二级分配电箱,再由分配电箱引至各用电设备的开关箱。
(1)LFG1动力电源由一级电箱输出分左路输到井架边,线路上的负荷由吊笼4台、砂浆机3台、焊机2台、水泵5台、介木机3台、平板3台、振棒3支等组成。
(2)LFG2动力电源由一级电箱输出供给钢筋加工场,线路上的负荷由钢筋弯切机2台、焊机2台等组成。
(3)照明电源由一级电箱分出,沿动力电杆架设,引至二级分配电箱后再输出。照明电源不从动力电源分出,即照明电源与动力电源互不影响。
2、据《施工现场临时用电安全技术规范》规定,本供电采用三相五线制供电即(TN-S)系统,采用三级漏电保护制度。
3、配电箱的选择:采用总公司统一规格的各级电箱作配电箱,二级电箱的要求:
(1)箱内设漏电开关(型号:DZ10L-100/3),闸刀开关带保险(型号:HK-100/3)、熔体电流50(A),接线柱(3×100A)组成.
(2)漏电开关的动作电流及动作时间指标分别为(50mA,小于0.1S)。
(3) 二级电箱外壳必须联通保护接地且重复接地。
(4) 各楼层用电考虑施工及敷设方便,宜设在吊笼侧并每层设一个配电箱,由该电箱输出各个流动电箱。
4、级电箱位置及布线原则:
(1)井架式起重机配电箱设在笼架边,便于电源进出线。
(2)砼搅拌机位于水泥库旁、笼架的一侧,其配电箱就设在水泥库旁。
(3)弯切机配电箱设在机侧,采用埋地敷线,以便材料进场。
(4)振捣器配电箱应布置在使用地点附近(即流动电箱)。
(5)砂浆机、灰机的配电箱设在砂场及灰池附近,导线采用架空敷设。
(6)电焊机为可移动设备,采用回路供电,导线采用橡皮套软电缆。
(7)分配电箱距固定式用电设备距离均不超过3米,距交流弧焊机距离不大于5米,、水泵的距离大于1.5米、小于6米。
现场计划用电量统计表 (附表1)
序号 | 名 称 | 功 率 (KW) | 数 量 | 合计功率 (KW) | 备 注 |
1 | 钢筋弯切机 | 3.0 | 2 | 6 |
|
2 | 介木机 | 3 | 4 | 12 |
|
3 | 砂浆机 | 3 | 4 | 12 |
|
4 | 电焊机 | 20 | 4 | 80 | JC=50%需换算到JC=100% |
5 | 振捣机 | 2.5 | 3 | 7.5 |
|
6 | 平板式振动器 | 1.1 | 3 | 3.3 |
|
7 | 水泵 | 1.1 | 5 | 5.5 |
|
8 | 照明 | 20 | 1 | 20 |
|
合计 |
|
|
| 146.3 |
|
5、各支路用电导线截面及电气开关的选择(附件算书)
(1)第一路电线(LFG1):
选择截面的原则:①大部分为动力负荷,按发热条件选择。
查表选线径:相线截面积为25 mm2铜芯线,允许载流量为130(A)、(环境温度35℃)中性线截面为25mm2。
(2) 第二路电线(LFG2):
选择截面的原则:①为动力负荷,按发热条件选择。
查表选线径:相线截面积为16mm2铜芯线,允许载流量为100(A)、(环境温度35℃)中性线截面为10mm2。
(3) 支路引至二级电箱导线截面选择:
查表得:选择16mm2的单支或多股绝缘铜芯导线9BX-3*16),允许载流量为100A,并架空敷设。
(4)二级箱引至三级箱导线截面及箱内电器选择。
A、 5KW以下机械使用
查表得:四芯电缆套管埋地或架空敷设(型号:BX-4*2.5)。或2.5mm2以上单支或多鼓绝缘铜芯线架空敷设。
开关为:闸刀开关带保险(型号:HK1-40/3)其熔体电流3.36-4(A)。
漏电保护器:为三级漏电开关(型号:DZ10L-40/3)。
B、 5KW-12KW机械使用
查表得:四芯电缆套管埋地或架空敷设(型号:BX-4*4)。或4mm2以上单支或多鼓绝缘铜芯线架空敷设。
开关为:闸刀开关带保险(型号:HK-40/3)其熔体电流5-12(A)。
漏电保护器:为三级漏电开关(型号:DZ12L-40/3)。
(4) 三级电箱至电机开关及开关至电机的导线和开关选择
A、 导线
5KW以下机械使用2.5mm2以上的四芯电缆套管埋地或架空敷设。
5KW-12KW机械使用4mm2以上的四芯电缆套管埋地或架空敷设。
B、 开关
搅拌机、水泵使用控制电箱按钮开关(控制箱中的交流接触器根据电机功率而定,且不能和开关放在一起)。
介木机使用密封式开关(禁止使用倒顺及闸刀开关)。
钢筋切铁、拉铁、弯曲机使用倒顺开关(防水、防尘型)。
电焊机、砂轮机使用闸刀开关。
(6) 选择照明线路的导线截面及照明箱内各电气开关
A.假设三相功率不平均分配,按最不利因素考虑,20KW功率全部安装在三相中的一相上,则计算电流为:IJS=Pe/Ue=20/0.22=90.9(A)
查表选择:
导线截面为:单支或多鼓绝缘铜芯线(BX-2*6mm2)。
室内照明导线截面为:2.5mm2以上单支或多鼓绝缘铜芯线,进户时做防水弯头,其架设高度大于或等于2.5(M)。
施工照明及生活照明:采用线径大于或等于2.5mm2的两芯护套线。
一级漏电总开关:三极漏电开关(DZ16L-60/3)。
单相闸刀开关:二极闸刀开关2*30(A)。
二级漏电保护器:二极漏电开关(DZ15L-40/1),其额定漏电动作电流≤30mA,额定动作时间<0.1S。
三级漏电保护器:三极漏电开关(DZ15L-32/1),其额定漏电动作电流≤30mA,额定动作时间<0.1S。
B、 照明线与动力线同杆架设或单独架设,与LFG1同杆,独立供给施工照明、办公室和宿舍照明。
(6)电焊机导线采用三芯橡套软电缆YHH型或YHHR型的规格,焊钳用≥380V*500A且能耐高热的专用焊钳.
(7)照明接零保护线截面:BX-1*6 mm2,与动力线同杆架设。
(8)三级电箱及设备外壳接地采用大于或等于2.5mm2的铜芯线,一、二级电箱外壳接地及重复接地采用大于或等于6mm2的多股铜芯线联接。
(一)技术措施:
1. 工地的一切用电设备必须由电工接线和管理,不得擅自架设和安装电路,电工必须持证上岗,严禁违章操作。
2. 电工在接线、电气设备安装时,应按照施工设计和有关电气安全技术规程进行作业,应正确使用绝缘防护用品和经定期检查校验的绝缘检验工具。电气操作人员严格执行电工操作规程。
3. 电缆架空敷设时,应沿墙壁或电杆设置,并和绝缘子固定,严禁用金属裸线作绑线,室外架空高度不小于3m,室内不小于2.5m。水平沿墙敷放或门口固定最低点不得小于1.8m。
4. 电工人员严禁带电操作,线路上禁止带负荷接线,正确使用电工器具。
5. 电气设备的金属外壳必须做接地、接零保护。
6. 电气设备所用保险丝,禁止用其它金属丝代替,并且需与设备容量相匹配。
7. 凡移动式照明,必须采用安全电压。
8. 施工现场临时用电施工,必须执行施工组织设计和安全操作规程。
9. 开机前认真检查开关箱内的控制开关设备是否齐全有效,漏电保护器是否可靠,方能使用。严禁赤手触摸一切带电绝缘导线。
10. 下班后1小时必须把总电制关好并把电箱门锁上。
11. 电工必须定期检查所有漏电开关是否正常,并认真登记安全生产检查记录。
12. 开关箱距操作者的水平距离不超过3米,按钮开关不能安装在交流接触器一侧。
13. 开关箱内禁止放任何杂物,箱下不能堆放沙子、水泥、白灰、水泥袋等,且灌木、杂草要清除干净。
14. 开关箱安装距地面高度为1.3M-1.5M,且安装牢固,要具有防尘、防雨功能。
15. 开关箱必须完整无缺,并配上锁,锁匙由专人保管。
16. 开关箱必须有当心触电的标志。
17. 三级漏电保护开关的额定漏电动作电流应不大于30mA,额定漏电动作时间应小于0.1S。
18. 其余规定参照《施工现场临时用电安全技术规范》JGJ46-88。
(二)防火措施
1. 在电箱的侧边设置干砂或干粉灭火机。
2. 当发生电火灾时应立即切断电源,用干砂灭火,或和干粉灭火机灭火,严禁使用导电的灭火剂灭火。
3. 电焊机施焊时周围严禁有易燃、易爆物品,并配备灭火器材。
1、计算书中公式符号表示: (附表2)
Pjs | 有功功率计算负荷(KW) | Pe | 换算后的设备容量 (千瓦KW) |
Qjs | 无功功率计算负荷(KVar) | Pn | 电动机铭牌功率 (千瓦KW) |
Sjs | 视在功率计算负荷(KVA) | Pes | 换算后的额定容量 (千瓦KW) |
Ijs | 负荷计算电流 (安A) | Ue | 线电压 (伏U) |
Kx | 设备组的需要系数 | Φ | 相电压与相电流的相角 |
Jc | 铭牌暂载率 | Cos,tg,,Kx的系数值通过套表取得 | |
2、各机械组负荷计算:
(1) 提升机组 Pjs1、Qjs1
查表:Kx=0.3, COSΦ=0.7, tgΦ=1.02
Pjs1=Kx×Pe=0.3×15=4.5 (KW)
Qjs1=Pjs×tg=4.5×1.02=4.59 (KVar)
(2) 钢筋机、弯切机组
查表:Kx=0.7, COSΦ=0.7, tgΦ=1.02
Pjs=Kx×Pe=0.7×3=2.1 (KW)
Qjs=Pjs×tg=2.1×1.02=2.142 (KVar)
(3) 水泵
查表:Kx=0.7, COSΦ=0.7, tgΦ=1.02
Pjs=Kx×Pe=0.7×4.4=3.08 (KW)
Qjs=Pjs×tg=3.08×1.02=3.14 (KVar)
(4) 电焊机组
查表:Kx=0.45, tgΦ=1.98
A. 先将JC=50%统一换算为JC=100%时的额定容量
![]()
![]()
![]()
![]()
Pes= JC ×PN= 0.5 ×60=42.43 (KW)
![]()
JC100
B.计算负荷
Pjs=Kx×Pes=0.45×42.43=19.09 (KW)
Qjs=Pjs×tg=19.09×1.98=37.8 (KVar)
(5) 木工机械组
查表:Kx=0.7, tgΦ=0.88
Pjs=Kx×Pe=0.7×9=5.6 (KW)
Qjs=Pjs×tg=5.6×0.88=4.928 (KVar)
(6) 平板式振动组
查表:Kx=0.7, COSΦ=0.7, tgΦ=1.02
Pjs=Kx×Pe=0.7×3.3=2.31 (KW)
Qjs=Pjs×tg=2.31×1.02=2.3562 (KVar)
(7) 振捣棒组
查表:Kx=0.7, COSΦ=0.7, tgΦ=1.02
Pjs=Kx×Pe=0.7×7.5=5.25 (KW)
Qjs=Pjs×tg=5.25×1.02=5.355 (KVar)
(8) 砂灰机组
查表:Kx=0.7, COSΦ=0.68, tgΦ=1.08
Pjs=Kx×Pe=0.7×9=6.3 (KW)
Qjs=Pjs×tg=6.3×1.08=6.804 (KVar)
(9) 照明组
因所有负载不一定同时使用,取Kx=0.7, COSΦ=1, tgΦ=0,并认为照明负荷均匀分配于三相线路中。
Pjs=Kx×Pe=0.7×20=14 (KW)
Qjs=Pjs×tg=0 (KVar)
总计算负荷(取同期系数,Kx=0.9)
Pjs=K∑(Pjs+...+Pjs)=Pjs (提升机组)+Pjs (钢筋机、弯切机组) +Pjs (水泵) +Pjs (电焊机组) +Pjs (木工机械组) +Pjs (平板式振动组) +Pjs (振捣棒组) +Pjs (砂灰机组) +Pjs (照明组)
=0.9×(4.5+2.1+3.08+19.09+5.6+2.31+5.25+6.3+14)
=0.9×62.23=56.007 (KW)
Qjs= K∑(Qjs+...+Qjs)=Qjs (提升机组)+Qjs (钢筋机、弯切机组) +Qjs (水泵) +Qjs (电焊机组) +Qjs (木工机械组) +Qjs (平板式振动组) +Qjs (振捣棒组) +Qjs (砂灰机组) +Qjs (照明组)
=0.9×(4.59+2.142+3.14+37.8+4.928+2.3562+5.355+6.804+0)
=0.9×67.385=60.646(KVar)
![]()
![]()
![]()
![]()
![]()
Sjs= Pjs2+Qjs2 = 56.0072+60.6462 =82.6 (KW)
3、各干路线上的负荷及电流计算:
第一路线:
计算负荷为K∑=0.9
Pjs=K∑(Pjs+...+Pjs)=0.9×(4.5+6.3+19.09+3.08+5.6+2.31+5.251)=41.52 (KW)
Qjs= K∑(Pjs+...+Pjs)=0.9×(4.59+6.804+37.8+3.14+4.928+2.3562+5.355)=58.48 (KVar)
![]()
![]()
![]()
![]()
![]()
Sjs= P∑js2+Q∑js2 = 41.522+58.482 =75.99 (KW)
![]()
![]()
![]()
![]()
![]()
Ijs=Sjs÷ 3 ×Ue=75990÷ 3 ÷380=115.46(A)>130A
第二线路:
Pjs=K∑(Pjs+...+Pjs)=0.9×(2.1+19.09)=21.19 (KW)
Qjs= K∑(Pjs+...+Pjs)=0.9×(2.142+37.8)=35.95 (KVar)
![]()
![]()
![]()
![]()
![]()
Sjs= P∑js2+Q∑js2 = 21.192+35.952 =41.73 (KW)3
![]()
![]()
![]()
![]()
![]()
Ijs=Sjs÷ 3 ÷Ue=41730÷ 3 ÷380=63.4(A) >100A
1、 级电箱电流计算
(1) 计算电流(开3至5KW以下)
查表:Kx=1,COSΦ=0.68,
![]()
![]()
![]()
![]()
![]()
Ijs=Ks×Pe÷ 3÷Ue COSΦ=1×5000÷ 3 ÷380÷0.68=11.17(A)
(2) 计算电流(开3至5KW-12KW)
查表:Kx=1,COSΦ=0.7,
![]()
![]()
![]()
![]()
![]()
Ijs=Ks×Pe÷ 3÷Ue COSΦ=1×5000÷ 3 ÷380÷0.7=10.85(A)
![]()
![]()
或1×12000÷ 3 ÷380÷0.7=26.07(A)
(3) 计算电流(各分2至开3)
查表:Kx=0.9,COSΦ=0.7,
①3台5KW以下
![]()
![]()
![]()
![]()
![]()
Ijs=Ks×Pe×3÷ 3 Ue COSΦ=0.9×5000 ÷ 3 ÷380÷0.7=29.3(A)
②3台5KW-12KW以内
![]()
![]()
![]()
![]()
![]()
![]()
Ijs=Ks×Pe×3÷ 3 Ue COSΦ=0.9×12000×3÷ 3 ÷380÷0.7=70.32(A)
DK215+560~DK216+015段为丘陵区灌木丛,长满杂草和小灌木,自然坡度10~20°,丘坡表层3~7m为坡残积粉质黏土,下为砂岩夹页岩,厚2.8~7.8m,强风化。该段地下水丰富。DK215+710~+910.25右侧设桩板墙,桩间距6m,桩长11m,共32根,桩身为C20钢筋砼现浇,板采用C20钢筋砼预制槽。DK215+590~DK215+710,DK215+904~+930右侧设M7.5浆片挡墙,墙高3~6m。该段紧邻既有线与既有线间距最小为4m,工程施工受行车影响大。
名称 | 单位 | 规格 | 数量 | |
1 | 165KVA变压器 | 台 |
| 1 |
2 | 2.6m3电动空压机 | 台 | 2.2KW | 4 |
3 | 卷扬机 | 台 | 1t | 4 |
4 | 滚筒式搅拌机 | 台 | 15KW | 1 |
5 | JS500强制式搅拌机 | 台 | 24KW | 1 |
6 | 农用拖拉机 | 台 |
| 2 |
7 | 串筒 | 节 | 1米节 | 30节 |
8 | 风钻 | 台 | 杆长1.5米 | 8台 |
9 | 风镐 | 把 |
| 8台 |
10 | 钢筋调直机 | 台 |
| 1台 |
11 | 抽水机 | 台 |
| 4 |
12 | 通风机 | 台 |
| 5 |
13 | 钢筋切割机 | 台 |
| 1 |
14 | 电焊机 | 台 |
| 1 |
15 | 钢筋弯曲机 | 台 |
| 1 |
16 | 活底斗车 | 辆 |
| 16 |
17 | 捣固棒 | 台 |
| 8 |
工程所位于的杭州市江干区,属于钱塘江冲积平原,地层分布较均匀。地基土上部主要由粉土组成,平均深10m处就有力学性质较好的2d砂质粉土夹粉砂土层,分布广广泛且有一定的厚度,是较理想的桩端持力层.其下边是有一定厚度的软弱土层,至深度30M左右,是力学性能较好的砂砾层,也是较稳定的持力层。该工程是多层农居公寓工程,为六层框架结构,总面积12万m2,钻探资料显示,其地质情况在所在区域具有典型的代表性(见表1) 。根据地质报告,场地地下水主要赋存于上部粉土、粉砂层中的潜水,水位较高,并受大气 降水影响,动态变化较大。地下水能引起粉土膨胀,浅基础不易控制建筑物的不均匀沉降。另外,2c土层为液化土层,也应避免用该土层作为持力层。因此在结构方案阶段就否定了浅基础方案。预制桩基固然可行,但在目前它的价格较高。此外,从地基承载力和造价上分析,灌注桩基础应该是比较理想的,但据调查因成桩难,在该地区很少应用。而将普通沉管灌注桩方法与桩端扩底技术相结合的夯扩桩,可充分发挥端承效果,而且造价相对较低,通过在相邻工程的成功应用,积累了一定的设计和施工经验,技术上较为成熟。经过分析比较,我们选用了夯扩桩基础。
该工程的综合地质资料
土层及其名称 | 层厚(m) | 主要物理性质 | 地基土参数 | 预制桩参数 | 夯扩桩 | ||||||
w(%) | e | wc(%) | Ip(%) | a1~2(MPa) | Es(MPa) | fk(kPa) | qs(kPa) | qp(kPa) | qp(kPa) | ||
2a砂质粉土 | 0.7~1.4 | 30.2 | 0.876 | 31.9 | 5.3 | 0.21 | 7.0 | 110 | 16 |
|
|
2b砂质粉土 | 1.6~2.7 | 25.2 | 0.70 | 28.2 | 6.6 | 0.12 | 12 | 170 | 24 |
|
|
2c砂质粉土 | 4.4~5.8 | 28.3 | 0.771 | 30.1 | 5.5 | 0.14 | 11 | 155 | 22 |
| 780 |
3a砂质粉土夹粉砂 | 9.2~10.9 | 26.0 | 0.725 |
|
| 0.16 | 13 | 180 | 28 | 1700 | 1100 |
桩的极限承载力(抗压)不能简单地理解为极限侧阻力加上极限端阻力。桩土之间出现不大的相对滑动时就出现极限侧阻力,当上部滑动量大的范围内土体发挥了极限剪切强度以后,部分荷载又传回给桩身,依次产生更大的相对滑动并逐渐发展到更大的深度。只有当整个桩身侧阻力达到极限值的瞬间,桩底下面的土体中形成了一种极限强度状态,好像桩尖在排开土 体,力图挤进土层。此时,承载力是极限侧阻力和桩底承载力的组合。极限侧阻力的发挥主要取决于桩土相对位移,称为极限位移。只有当桩底位移Δs足够大时,桩端的极限强度就全部发挥出来,桩的极限承载力(抗压)(在该荷载下的下沉或下沉速率剧烈增大)可由下式确定:Pu=Ppu+ΣPsi(式中Ppu极限桩端承载力;ΣPsi桩端以上土层极限侧阻力的总和)。
该工程地质特点是持力层埋深浅,而上部土层为软弱土层,在不大的荷载下,就能达到整个桩身极限侧阻力。夯扩桩扩大了的桩头,降低了桩端应力水平,阻止了桩尖的刺入破坏。省标准《建筑软弱地基基础设计规范(DBJ 10-1-90)条文说明》中指出,夯扩桩是以端承为主,侧阻力为辅的桩型,适用于上部为软弱土层,在距地表4~14m处有一层性质较好的桩端持力层。这表明在该工程采用夯扩桩是符合设计规范要求,能达到经济、实用、技术合理的目的,是较为可行的设计方案。3a土层是一个较理想的持力层,该土层分布广泛,厚度也较均匀(表1)。根据地质报告提供的参数和省标准《建筑软弱地基础设计规范(DBJ 10-1-90)》,初步确定夯扩设计参数为第一次在外管内灌注的混凝土高度H=1900mm;外管上拔高度h=800mm ;混凝土全部夯出外管后外管和内夯管同步下沉深度h-c=600mm。代入各参数后可取D=600mm。
根据《DBJ 10-1-90》规范的公式;可算得单桩竖向承载力标准值Rk=565kN,设计时取作550kN。由此可见桩端土承载力约占总承载力标准值的75%以上。
桩的承载力,主要是桩端承载力,随着进入持力层的深度(特别是进入砂质粉土类粉砂层的深度)不同而具有不同的变化规律,称之为深度效应。深度效应的主要规律之一是存在着一个临界深度hc。当桩进入持力层的深度h<hc时,桩端极限承载力qpu基本上随深度而线性增大,当h≥hc时,qpu则保持不变,称之为端阻力稳定值,规范中推荐的进入持力层深度为1.50~2.00m。根据本工程地质的实际情况,选择进入持力层深度为1.5m,有效桩长7.5m。
在江干区打沉管灌注桩常出现这样的现象:一种是施工时无法将混凝土灌到设计标高,另一种是开挖后,发现近地表的上段桩虽在,而下段桩身混凝土已流失或仅存部分骨料石子。出现这种现象的主要原因是该地区地基土易液化,打桩时措施不当。
以该工程地基土为例,持力层3a以上土层主要为砂质粉土,松散,孔隙比大,土层粒径在0.01~0.074mm之间的颗粒占86%以上。有关资料表明,平均粒径为0.05~0.1mm的粉砂土的抗液化能力最低。在沉管过程中,一方面由于土体受到震动,使得孔隙中的水产生超静水压力,另一方面在成孔过程中,桩管周围一定范围内的土体受到挤压,使得土的孔隙减小,而孔隙中的水还来不及排出,也产生了超静水压力μ。水在水力梯度(i)下从高能量级向低能量级处流动,此时土中总应力为:σ=σ′+(μ+Δμ)或σ′=σ-(μ+Δμ),式中σ′有效应力;Δμ孔隙水压力增量。可见当Δμ不断增大,直到有效应力σ′减小到零,有效应力使粉砂土产生全部抗剪强度。当σ′=0时土体抗剪强度等于零,便出现了流砂现象,土粒之间压力消失,土粒处于悬浮状态,土体随水流动。地下水的渗流对土单位体积产生的压力GD称为动水压力。在桩外管拔出过程中,桩管中的混凝土也受到GD的作用。当GD较大且桩管中混凝土因自重引起的材料间的摩擦力不足以抵抗GD时,混凝土中的水泥砂就被流砂带走,甚至还会将骨料冲走,导致上述的工程质量问题。随着时间的推移,孔隙水压力逐渐消散。
针对该工程存在液化土层的不利情况,为了成功完成灌注桩的施工,采取适当的防范措施以消除流砂的不利影响是非常必要的。为此在该住宅工程中,主要采取了以下措施:①控制打桩的施工进度;②严格控制拔管速度;③采用有预制桩尖的夯扩桩。并在桩尖颈部设置草绳; ④第一次加灌混凝土后,先进行适当的预夯扩,再拔管至h。经过正式施工前的打试桩,将夯扩设计参数最终确定为H=2500m,h=900mm,h-c=800mm;⑤在第二次加灌混凝土完成后,最终拔出外管时,用内夯管对管内混凝土边拔边压。此外,还了选择合适的桩身混凝土的水灰比、坍落度及合理的打桩顺序等等,这些措施都有效地提高了成桩质量,成功地消除了液化土层的不利影响。
(1)经济性分析:我们专门对夯扩桩、预制桩和振动式沉管灌注桩三种桩型基础方案的经济指标进行了对比,在单位抗力造价上,夯扩桩是最低的(见表2)。如果再考虑到因夯扩桩的承载力明显高于其它两种桩型,总桩数最量较少,相应的桩承台较小的因素,其相应的综合承台施工、土方开挖等项目的费用也同比减少,夯扩桩基础的经济性将更高。
桩型 | 桩径(mm) | 桩长(m) | 单桩工程造价 | 承载力(kN) | 单位抗力造价(元/kN) | ||
工程量 (m3) | 单价 (元/m3) | 合价(元) | |||||
夯扩桩 | 377 | 9.4 | 1.256 | 603.9 | 755 | 550 | 1.373 |
预制管桩 | 350 | 9.4 | (9.4m) | (72元/m) | 677 | 285 | 2.375 |
振动式沉管灌注桩 | 377 | 9.4 | 1.049 | 404 | 424 | 288 | 1.472 |
(2)技术性分析:根据低应变动测报告,不满足规范和设计要求的三类桩仅3根,分别出现不同程度的缩颈、桩身混凝土离析,而无四类桩,其余均为合格的一、二类桩。主体工程于2001年4月竣工后,最近一次沉降观测结果是:最大沉降量18mm,最大不均匀沉降为5mm。说明桩基方案较好地达到了预期效果。
总之,夯扩桩在该工程的应用,显示出了端承效果好,承载力高和综合造价低,经济效益好两大优点,是值得推广的桩基基础。美中不足的是,由于夯扩桩打桩噪声较大,对城区会造成一定程序的声音污染,而且震动较大,对周围建筑容易产生不利影响,其应用受到了一定的限制。同时,夯扩桩还对打桩队伍的素质和工程的施工组织和管理提出了较高的要求。
施工便道:施工便道由DK215+900进葬公路处开4m宽便道进入施工现场,便道在DK215+850~+900段紧靠铁路,要求路边打入钢轨,做醒目标志,作为栏杆。
单位 | 工程数量 | 行车干扰数量 | |
挡土墙挖基土方 | m3 | 342 | 342 |
挡土墙M7.5浆砌片石 | m3 | 971 | 971 |
桩板墙挖孔土方 | m3 | 1780 | 1780 |
桩板墙挖孔石方 | m3 | 1457 | 1457 |
C15砼护壁 | m3 | 1257 | 1257 |
护壁拆除 | m3 | 360 | 360 |
C20砼桩身 | m3 | 1980 | 1980 |
C20砼挡土板 | m3 | 121 | 121 |
桩板墙钢筋 | kg | 97728 | 97728 |
抽水 | m3 | 2550 |
|
天津市区至滨海新区快速轨道交通工程,是天津市改善交通环境的重点工程,线路全长45.409Km,其中路基部分长5.486Km。本工程位于线路终点,地质条件差,工程质量要求高,这给土建工程部分提出较高的要求。路基线路部分的填方通过海相沉积的软土地带。本工程施工段位于天津市开发区,全长1.1Km,该段地基为典型海相沉积和早期吹填形成的软土地基,软土层厚度为10~15m,其含水量大、密度小、压缩性大、强度低,且地下水对混凝工具有中等硫酸盐侵蚀性。
软土路基处理基本有浅层处理法、复合地基法及固结排水法。浅层处理法有换土、抛石排淤、反压护道及排水砂垫层等;排水固结法有砂井、袋装砂井、塑料排水板等;复合地基法有水泥搅拌桩、旋喷桩及粉喷桩等。浅层处理一般适用于软土层埋深浅,厚度薄,上部覆盖层较薄的情况下;复合地基法施工期短,施工方便,见效快,适用于软土中等厚,施工期短的工程,但加固深度一般小于10米;固结排水法适用于厚层软基,为避免工程工后沉降,一般要预压,预压期较长,预压土方大。
真空预压排水固结法对被加固软基抽真空形成的大气压差作为预压荷载,通过排水通道传至设计深度,沿深度基本呈矩形分布,真空预压排水固结法加固软基90kPa预压荷载,不需要施加实体荷载,软基预压排水是在真空吸、挤压共同作用下完成。
本段软基加固工程特点为:加固面呈细长状,单宽侧面比仅为0.6,加固区以东为以工业垃圾为主填筑起来的绿化堤。

题
(1)在塑料排水板打设施工中,确保塑料板平面位置,倾斜度及打设深度均达到设计要求,是确保软基加固效果关键环节之一。
固
(1)经济分析
真空预压法固法是以消除软基有害变形,改善软基自身性能的较理想方法。
孔桩的开挖:孔桩开挖原则是跳桩开挖。在进入桩身以前检查孔口四周做好孔口的清理,引开地表水。进孔前做好孔口的支护。把孔的十字线及标高引到护壁上。孔内开挖砂浆层采用钻爆施工,爆破紧邻既有线,爆破时要注意既有线的安全,要严格控制装药量及爆破引起的飞石,冲击波及震动(爆破图附后)。1#-8#孔的开挖紧邻既有线,开挖出的弃土严禁落到既有线侧沟及道床内,在孔内土方开挖前,用钢管及竹排架做好支挡,主要防止堆放物品侵限及土和其它落入既有线侧沟及道床。孔内的土方提升采用0.5~1t的卷扬机提升。孔内的土方出孔后,用农用车拖走堆入DK215+950处鱼塘堆放,再用大型车辆拖走。孔口范围严禁堆土,以减小孔口的压力,防止下雨后形成稀泥横流。孔桩开挖就位后,经检查,底面高程超欠挖不超过5cm。
本段施工要求:跳桩开挖,全段同开挖的孔桩保持10个孔同时开挖,作业人数: 机修工;2人;电工:2人;爆破工:5人;木工:5人;砼工及其它:60人;钢筋工;10人;汽车司机:2人。该段施工劳力保持在:85人
1、加强爆炸物品的管理。做到放炮前有计划,并及时通知指挥部派出所,爆破器材的领取必须严格领取,清退制度。领取数量不得超过当班使用量,有剩余量马上退回押送人员,当天带回指挥部,工地不准存放爆破器材,爆破器材的管理、使用必须是经培训合格的安全人员或爆破员。
1、严格按照《质量手册》、《程序文件》及经理部下达的《质量计划》来开展质量管理工作,严格按有关《施工规范》《质量评定及验收评定标准》指导施工。
深圳妈湾电厂地处深圳市南头区妈湾港规划中的9一l1号泊位。一期工程为2台300kW机组,所用场地系开山填海而成,生产附属建筑物用地系开山碎石回填后采用强夯法加固地基。主厂房区系砂回填而成,回填后砂面标高为2m,海水平均潮位为0.99m,砂层厚度在6~15m,总方量达60.3万m³,经标准贯入度检验(N4击),为松散饱和的中粗砂。主厂房区主要建筑物基础及主要设备基础采用H型钢桩打入海底岩石承载。为了减小松散砂层沉降对H型钢桩形成负摩擦力,增加钢桩荷载以及防止在地震荷载作用下砂层出现液化,并为了直接承受小型建(构)筑物及小型设备荷载,设计要求砂层达到中密状态,即N³15。
l.方案的选择
由于国内外对新填砂基处理的工程实例很少,无这方面的经验。本工程先后采用了四种方案进行实验。即爆炸挤密法、强夯挤密法、爆炸强夯联合作用密实法以及振冲挤密法。经过实验分析:爆炸法基本上能使6m以下砂层达到中密,但质量很不稳定且施工成孔困难,但时间效应较明显;强夯法虽然施工简单,但只能使6m以上砂层基本达到中密,对6m以下影响很小;爆炸强夯联合法基本上能使砂层达到中密,但爆炸施工时成孔困难;振冲挤密法对于6m以上和6m以下的挤密效果都较好,能使砂基达到中密(N³l5),同时质量稳定。通过对质量、进度、费用等各方面比较,最后确定采用振冲挤密法。
所谓振冲挤密法,概括起来说就是利用高压水冲击将大功率振冲器沉入砂层,到达设计深度后减少水量,留振一段时间后上拔一定距离并回填砂,如此循环,从而将砂层挤密。
2.振冲机具设备
25t~50t吊车1台,钢门架(高15m)1座,导杆(配水管)1根,振冲器(30kW或55kW)1个,控制柜1个,分水器
1个,高压胶皮水管(f50,60m长)7根,电缆100m,电焊机1台(维修水管用),铁锹3把。
3.施工准备
(1) 技术准备:通过实验得出采用ZCQ一30振冲器桩位间距确定为2m,ZCQ-55型振冲器间距为2.6m,桩位采用等边三角形布置。为便于施工组织和施工管理,把需挤密区域划分为30m×31.2m若干小区并给出桩位布置图,同时根据填砂区原水深图确定砂层厚度。桩长为砂层厚度减去50cm(以防高压水冲击把污泥返上,影响挤密效果)。振冲成孔时所需水压为0.8~lMPa,根据砂层渗透系数,保证下冲时水从孔中返出,计算出用水量,确定供水管道直径和水泵功率及数量。
经实验得出两种功率振冲器的留振时间见表4-2-1。
振冲器留振时间 表4-2-1
振冲器规格 | |||
30KW | 55KW | ||
J 挤密电流(A) | 留振时间(S) | 挤密电流(A) | 留振时间(s) |
空载电流+20A 35~55 55~70 ³70 | 90 60 30 10 | 空载电流+20A 55~65 65~100 ³100 | 90 60 30 10 |
(2)人员组织与培训:一台机组需吊车司机I人,反铲司机1人,指挥1人,记录l人,调节水量1人,拖胶皮水管7人(包括一名电焊工),共计12人。
人员齐全后,应先向各操作者介绍本工艺的原理和操作要求,明确各自职责,掌握操作规程后才能上岗。
(3)设备组装:
振冲挤密工艺,根据各机具用途可划分为三个系统。
1)水系统:建立水泵房,铺设铸铁主水管,安装分水器和胶管连接。
2)电气系统:发电机就位,电缆铺设,控制柜连接与检查。
3)机械系统:导杆制作,水管焊于导杆上,钢门架制作,吊车与门架连接,导杆与振冲器连接。最后把胶皮水管和导杆上进水口连接,控制柜与发电机及振冲器连接,整个装置就组装好了(如图4-2-I)。
4.施工操作程序



5.施工体会及注意事项
1). 在上拔过程中出现拔不动的现象,应关闭主、侧喷水阀门,过一段时间再试拔。如仍拔不动,应点动电机,边点边拔,千万不可硬拔。
2). 下冲成孔困难。一种情况是发现振冲器头部有碰撞痕迹,则下有石块,应把桩位移动50mm再成孔,另一种情况是在粗砂、砾砂区下冲到7~8m时,电流超过额定电流,并反复多次,此时应关闭电机(在实验时,有时下冲20~30次尚达不到设计深度),可利用高压水下冲,让砂返出,振冲器徐徐下沉,到达设计深度后再开启电机留振。
3). 在操作中三相电流表指针跳跃很大,且无规律,则为电缆绝缘有破裂,出现漏电,必须检查电缆,维修或更换。
4). 振冲器下沉过程中,偏移原位,导管倾斜。此时为主水管不对称,或水管出水口径大小不一致,此时应更换水管,保证水管对称和各水管出水口大小一致。
5). 下冲过程中导杆打转,使胶管缠绕在导杆上。这种情况发生在边坡砂层,由于振冲器碰到石块,则应修改桩长。
6). 水管堵塞。因为把水管阀门关死、砂倒灌水管,因此不能把阀门关死。
7). 由于导杆与振冲器是由橡胶减振器连接,必须在导杆和振冲器上焊拉环,用钢丝绳连接加固。
8). 电缆在导杆顶端必须固定牢,在导杆内须保持拉直,以免电缆磨破漏电。
9). 胶管必须用钢导管和卡子夹牢,防止高压水冲开伤人。
妈湾电厂厂区是开山劈石、填海造陆的海陆两域场平工程,厂区占地41.7万m²,其中陆域为14.5万m²,填海为27.2万m²,爆破量近392万m3,开山区长1400m,宽约150m,开挖高度最高近百米。东北方为深圳华英通讯公司收讯站,距开挖边界约120m;东南方右炮台山为南海油脂(赤湾)公司油罐区和赤湾仓库,距开挖边界分别为30m和50m。开山山体为花岗岩,其岩石属强风化至中等风化类,而中部石英岩脉贯入和磁体石英岩残留,表面微风化,岩性坚硬,f值为8~14,地下水丰富。
£600mm,海堤心料粒径£300mm;开山最终边坡分8个台阶,阶高12m,阶宽2.5m,边坡坡度1:1~1:0.4(如图4-2-2所示)。
妈湾电厂开山爆破工程施工难度极大。首先,地理位置特殊,由于开挖边界与邻近建(构)筑物相距太近,爆破影响问题严峻;其次,山体崖高坡陡,施工条件困难;另外,爆破粒径、开山边坡要求严格,爆破技术水平高;还有爆破量大且工期紧迫,安全与管理问题突出。
(1)深孔预裂爆破:爆破目的是沿炮孔轴线方向从上而下形成具有一定宽度的贯穿裂缝,把开挖区和保留区岩体分开,在开挖区爆破时,预裂缝起着使保留岩体不被破坏的作用。
l)爆破参数的确定:目前,国内外对这项技术理论尚处在研究、完善阶段,爆破参数主要以实地试验的方法来确定。我们根据妈湾电厂工程地质条件、所用钻孔机械和火工材料性能,参照国内外类似工程经验,在开山区通过三次试爆,确立了初步爆破参数后,在施工中密切观察线装药密度、孔径和孔距三者之间的关系,摸索探讨装药结构和堵塞特点,在不同地质条件下进行合理调整,通过多次试验和施工,最终确定以YZ-150型潜孔钻钻孔,以乳胶炸药、导爆索(爆速大于6500m/s)为一体的深孔爆破参数,见表4-2-2。
深孔预裂爆破参数 表4-2-2
项目 | 符号 | 单位 | 参数 | |
风化岩石 | 无风化岩石 | |||
钻孔直径 钻孔角度 钻孔深度 炮孔间距 不偶合系数 线装药密度 其中:底部 上部 堵塞长度 分段延时 | d α L a m Δ线
L2 Δt | mm ° m cm
g/m g/m g/m m ms | 100 45~75.96 H/sinα 100 3125 200~250 (2~2.5)Δ线 100 1.5~2.5 50 | 100 45~75.96 H/sinα 100~120 3125 80~320 (2~2.6)Δ线 100~150 0.8~1 50 |
注:H为梯段高度
2)施工要点
a.深孔预裂爆破施工,钻孔工艺是关系到能否达到预裂面平整、设计轮廓线准确的关键工序。它主要受钻机性能
和钻孔场地平整的影响,要求钻机钻杆挠度不易过大,场地尽可能平整,保证钻机定位准确。
b.台阶式预裂爆破,对平台基面保护尤为重要,它直接影响各平台预裂孔口段质量。施工中,平台基面保护层必需留足,严禁钻孔超深。
c.在装药结构中,注意药量上小、下大均匀线布药卷,才能有效克服底部岩石夹制力,同时减少了孔口部爆炸波冲击力作用,使孔底段岩体仍完整稳定,半孔痕保留完整。
d.堵塞长度与岩石性质及孔中水深等因素有关,在坚硬岩石、孔中水深时,堵长取小,软性岩石取大。本工程施工环境复杂,在右炮台山、油罐区周围,施工中为保证安全,采取了L2=2.5m的超长堵塞,安全、质量均得到了保证。
e.关于预裂弧线和直角拐点及直线分段的处理,我们从工程实践中观察得知,预裂爆破时,两端裂缝宽度由大到小,区长约l.2~1.5m,裂缝随岩石构造变成无规律。对此,在拐点和段端头,爆破时留一空孔导向。实践证明,能使预裂缝按导向孔预裂成缝,这是因导向孔成了预裂爆破第二自由面,受爆炸应力波反射拉伸和高压气体作用,裂缝宽度增大,方向准确,拐点和端点接头预裂面仍平整光滑。
3)爆破效果:采用如表4-2-2所列的爆破参数,使深孔预裂爆破在本工程实际应用后产生了令人满意的效果,主要表现在:
a.确保了设计保留边坡岩体的稳定,预裂面残留半壁孔痕明显,岩体结构完整,半孔痕保留率在85%以上。
b.预裂爆破后,沿孔轴线明显产生的裂缝宽度约5~20mm。
c.预裂面平整、光滑,设计轮廓面准确,有效控制了超欠挖。
d.基本根除了边坡危石,确保了平台下层施工作业安全。
e.预裂缝减少深孔爆破地震效应强度明显,预测资料表明,预裂缝在冲水5~6m深时,仍降低振动速度50%~70%。(2) 深孔多排微差挤压爆破:该爆破技术是在深孔爆破经验的基础上,应用非电塑料导爆管起爆网络,以非电塑
料导爆管的特性,只用两个段别,组成孔外延期起爆网络。操作简便,一次可以起爆多排、甚至几十排。克服了一般深孔爆破、电雷管起爆网络一次只能起爆2~3排的弱点。
1) 爆破参数的确定:深孔多排微差挤压爆破参数合理与否,直接影响爆破效果和经济效益。施工中,依照填海粒径要求,采用YQ-150型潜孔钻钻孔,通过实地试验,同时对爆破震动进行了监测,为确保建(构)筑物安全无损,根据爆破震动波形分析、整理确定的深孔多排微差挤压爆破参数见表4-2-3。
序号 | 项目 | 符号 | 位 | 参数 | 备注 |
1 | 梯段高度 | H | m | 10~12(10~12) |
|
2 | 钻孔直径 | d | m | 150(105) |
|
3 | 钻孔角度 | α | º | 75(75) |
|
4 | 孔深 | L | m | H/sin +h(H/sin +h) | 平台马道不超深 |
5 | 最小抵抗线或排距 | Wb小 | m | 4~4.5(3.8~4) |
|
6 | 孔距 | a | m | 4.5~5(4.3~4.5) |
|
7 | 超钻深度 | h | m | 0.5~1(0.5) |
|
8 | 药包直径 | d药 | mm | 130 80 (130 80) |
|
9 | 单位耗药量 | q | kg/m³ | 0.45~0.6(0.4~0.45) | 风化岩石取小值 |
10 | 堵塞长度 | L | m | 4.5~5(6.5~7) | 用凿孔石渣堵塞 |
11 | 保护层厚度 | p | m | 1~2(1.5~2) | 最后一排孔至预裂面保留厚度 |
12 | 微差时间 | t | ms | 50(50) |
|
13 | 装药结构 |
|
| 连续柱状宝塔或间隔(装连续药) | |
在施工中,通过对表4-2-3所列爆破参数进行了调整优化,使爆破规模进一步扩大,一次起爆的最多排数达32排,一次起爆药量达15t,大大提高了爆破丁的综合经济效益。
2) 主要技术环节
a.在施工中常采用小斜线式(图4-2-3a)和三角形式(图4-2-3b)起爆网络,降低大块率效果显著,爆堆集中。
b.最大一段安全药量的确定至关重要。深孔多排微差挤压爆破,一次起爆排数多、孔深、药量大,地震破坏作用影响范围比较大。设计提供对附近建,筑物爆破震动速度按小于5cm/s控制。经长期震动观测,华英通讯站的震动速度定为3cm/s,油罐区、赤湾仓库震动速度定为小于5cm/s,同时将观测爆破震动速度值整理分析,建立了经验公式,并据此计算,科学地定出控制最大一段安全药量(见表4-2-4)。
最大一段安全药量控制 表4-2-4
最大一段 安全药量(kg) | 3cm/s |
| 81 | 223 | 651 | 2197 | 5208 |
5cm/s | 43 | 201 | 554 | 1615 | 5452 |
| |
爆心至建(构)筑物距离 | 30 | 50 | 70 | 100 | 150 | 200 | |
经工程监理长期对爆破震动值进行监测,震动速度均小于控制值,爆区附件的建(构)筑物均完好无损。
3)爆破效果
a.大块率大大减少 (指石料粒径大于600mm),据统计资料,第一排大块率为1%~3%,其余各排不超过0.5%,
综合大块率小于1%。因此,二次解炮量也大大减少。
b.爆堆平缓集中、松散性好,抛塌高度及宽度适中,有效地提高了控制效率。
c.爆破网络安全、准爆,元拒爆现象。
d.从爆破施工实践中得出:第一排炮孔的孔底部适当增加超深和药量(比正常炮孔增加5%~l0%),或适当减小底盘抵抗线,便彻底消除了残留炮根。
e.由于最后一排孔的钻孔角度与预裂面坡度一致,爆破后,岩石完全沿预裂面塌落。
(3)深孔微差控制爆破:深孔微差控制爆破是在深孔多排微差挤压爆破技术的基础上,通过现场施工试验发展成的一种特殊深孔爆破技术。所谓“控制",即指爆破产生的危害不超过特殊要求的允许界限。根据控制要求,施工中必须确保华英通讯站、油罐区、赤湾仓库正常工作,严格控制爆破滚石、飞石、冲击波、震动等爆破危害。
1) 爆破参数的确定:施工中,按“控制”要求,对深孔多排微差挤压爆破参数作了针对性调整,并在实践中不断完善,其参数见表4-2-3中括弧内数字。
2) 技术要点
a.装药采用连续结构,降低药柱高度,药量分布于爆孔中、下部,堵塞超长,以减少孔口表面爆轰波等爆破危害。b.起爆网络为排式,一次起爆2~3排,开创良好的爆破临空面,绝对控制起爆方向,减少震动强度等爆破危害。C.在开挖区周围设防滚石沟槽和竹篱笆防护栅栏,爆破表面采用铁丝网、竹芭等多层履盖,控制爆破滚石、飞石等危害。
3) 爆破效果
a.由于爆破的特殊性,使综合大块率达到l.5%,大块石主要分布在爆堆表面,便于二次解炮和挖装。
b.由于最大一次药量合理,有效控制了爆破振动强度,爆破规模得到了扩大,提高了施工工效,同时杜绝了一切安全事故,完全保证了预计的距原有建(构)筑物3~6m的安全距离。
对妈湾电厂开山工程百米高边坡实施预裂爆破后,保留边坡面外观齐整,因此,只需对风化类和岩体完整性差的保留边坡预裂面作简单处理,高边坡就能达到长期稳定的目的,不但可为国家节约大量技资,同时工期缩短。而深圳某电厂,在开山中采用嗣室大爆破,挖运完成后,进行边坡处理,一次投资就达2000多万元,且占用了工期一年多。两者相比,妈湾电厂爆磁工程投资降低约70%,同时工期也相应大大缩短。
(1)特点:
模板:为专用滑模模板,分三种类型,即:固定模板、收分模板和抽拔模板。内模高1.35m,外模高1.50m。
混凝土浇筑高度:每层混凝土的浇筑高度控制在250~300mm。
平台改装:筒体随着高度的增加,直径由21.8m逐步收缩到11m。为保证安全施工,在烟囱标高105m处对平台进行了改装,拆除了20榀辐射梁及桁架、提升架系统,千斤顶由原来的120个减为60个,适度切除了外挑过长的辐射梁,从而减少了外平台面积,减轻了平台自重,改善了操作条件,有效地保证了滑模施工在安全、合理的条件下顺利进行。
零米起滑:安装孔、烟道口区段空滑采用钢筋或混凝土假柱加固,洞口侧模采用随滑模施工逐节支
综合防偏扭预控技术2采用设在地下室中的J2激光经纬仪配合J2经纬仪进行烟囱垂直度以及扭转度的监测,采用水平仪配合千斤顶限位套进行平台水平度控制和调整;跟踪现场施工实况,及时采用平台高差法、千斤顶垫铁法、改变锥度法等纠偏及倒链牵引法等纠扭措施。
钢筋冷挤压接头:采用国家科委、建设部“八五”计划重点推户项目“钢筋冷挤压连接新技术”,接头性能可靠,连接稳定,施工方便且工效高。本工程共做了f20、f22、f25、f28四种规格12800个冷挤压接头,解决了雨天现场竖向钢筋无法焊接的难题,满足了设计和施工要求。
随升井架的安全体系:采用的辐射椅架式整体平台,设计合理,整体性好,易于控制和纠正筒身的偏扭,组装、改装和拆除简便安全;采用双机双绳吊笼的安全保险装置。
混凝土表面综合处理技术:即随滑模施工对出模混凝土表面进行整平压实处理。
滑模平台进行整体拆除:由于平台辐射桁架的上弦杆与平台中鼓筒的连接处设计成饺接,而辐射桁架的其它节点均设计成螺栓连接点,因此,既利于安装,又利于整体拆除。
210m套筒式烟囱钢内简直径7m,钢板厚为:标高0~50m为14mm;标高50~130m为12mm;标高130~210m为10mm。内筒总重量为425.4t。
钢内筒制作:采用“短板长接一次成圆',制作工艺,即将多块短板经剖口后焊在一起接长等于钢筒周长后,经卷板机卷制成圆,再合口焊接后进行整圆滚动,使成规则自然圆筒。每个筒节高度为7.2m。
卷板工艺程序:见图4-2-5。
钢内筒安装:
,结合本工程特点,选用了“卷扬机三级接力提升倒装法”安装2l0m烟囱钢内筒新技术,即在混凝土外筒内壁设置三级滑轮组,标高分别为105m、l70m、205m分节钢筒由下部滑轮组提升到上部滑轮组可接应的高度后,转由上部滑轮组继续提升。这样,通过三级滑轮组的接力传递,完成钢内筒的安装(见图4-2-8)。
®钢内筒®钢平台。但平台未安装之前,旋转钢梯不能贯通,为此,在安装钢梯时应增设措施直梯以方便施工。
£6.3m/min)的不同步问题得到解决。
建设单位一九九九年四月二十日发布的“四川丰田汽车有限公司动力房、仓库工程”招标文书。
本方案根据建设单位提供的招标文件及现场实勘,专门针对招标文件要求的仓库工程而编制。
四川丰田汽车有限公司—仓库工程,由四川旅行车制造厂与日本丰田汽车公司合资兴建。该工程位于成都市东郊跳蹬河南路九号“四川丰田汽车有限公司”厂区内,建筑面积3223㎡,由机械工业部第五设计研究院设计。
一、指挥系统
充分发挥国营一级建筑施工企业的优势,发扬“团结、实干、求实、创新”的三建精神,依据公司质量体系文件规定,制定出严格的质量、安全、工期的控制措施,大力采用新技术、新工艺、新材料,以科技进步推动施工生产,密切与建设单位、设计单位及其它周边相关单位之间的联系,强化项目管理,精心组织施工,确保优质高速地完成施工任务。为使各项目标全面实现,现详述如下:
)、施工安全方面:
施工现场杜绝重大伤亡事故及机械设备事故,轻伤率控制在2‰内。
)、消防安全方面:
施工现场杜绝火灾,火警事故。
)、治安管理方面:
施工现场治安管理必须达标,无刑事犯罪案件,消除“六害”行为。
整个工程施工原则为:先地下后地上,先基础后主体,充分利用平面、空间和时间,组织平面立体流水交叉作业,为及早插入下道工序和各专业施工创造条件,做到科学管理均衡施工。
由于规定工期为132天,我们充分利用人力、物力,发挥我公司的优势,合理调配劳动力,保证在规定工期132天内顺利完工。详见施工总进度计划。
一、组织学习图纸,进行会审
该工程采取公司领导下的项目法施工的组织形式,由公司所属优秀一级项目经理、具有厂房施工丰富经验的项目经理领导班子承担施工。
根据本工程的实物工程量结合工期需要,另外综合考虑本工程的实际情况,现场配置全套钢筋加工机械各一台。
本工程砼采用现场搅拌,经测算现场设置两台JDY350型强制式搅拌机即可满足需求。另现场砼运输采用若干辆手推车加以进行。
另因本工程工期较紧,为确保不因施工现场停电而延误工期,故在施工现场设置一台120kw柴油发电机备用。
本工程主要机械设备的选择见“施工现场主要施工机具一览表”。
主要施工机械机具一览表
序号 | 机械名称 | 规 格 | 单位 | 数量 | 功率(单台) | 备 注 | |
P1(KW) | P2(KVA) | ||||||
1 | 挖掘机 | WY100 | 台 | 1 | 130马力 |
|
|
2 | 强制式搅拌机 | JDY350 | 台 | 2 | 15.55 |
|
|
3 | 钢筋对焊机 | UN1-75 | 台 | 1 |
| 25 |
|
4 | 钢筋切断机 | QJ40-1 | 台 | 1 | 5.5 |
|
|
5 | 电焊机 |
| 台 | 4 |
| 27 |
|
6 | 钢筋弯曲机 | WJ40-1 | 台 | 1 | 2.8 |
|
|
7 | 钢筋调直机 | GJ6-4/8 | 台 | 1 | 5.5 |
|
|
8 | 蛙式打夯机 | HW-201 | 台 | 2 | 1.5 |
|
|
9 | 园盘锯 | M3Y-200 | 台 | 1 | 3 |
|
|
10 | 压 刨 | MB904 | 台 | 1 | 4 |
|
|
11 | 插入式振动器 | HZ6-50 | 台 | 4 | 1.1 |
|
|
12 | 平板振动器 |
| 台 | 2 | 1.1 |
|
|
13 | 静作用压路机 | 3Y12/15 | 辆 | 1 | 80马力 |
|
|
14 | 5t自卸汽车 |
| 辆 | 2 |
|
|
|
15 | 履带式吊车 | W1-50 | 台 | 2 |
|
|
|
根据建设单位提供的现场情况,建筑总平图及现场实勘,遵循经济合理的原则规划修建现场临时设施。
施工现场用电由甲方在厂区东北角的750KVA变电站提供,施工现场用电量按施工最高峰阶段的最大用电量为准进行计算,其中照明用电量按施工机械及动力设备用电量的10%计,则
P=1.05(K1ΣP1/cosф+K2ΣP2)
×61.5/0.75+0.6×133)=144.06KVA
照明及生活用电为:P×10%=14.4KVA
总用电为: P=158.46KVA
·P/ 3· U线·cosφ
=0.7×158.46×1000/1.732×380×0.75=224.71A
故下杆主线选用BLX:S=70mm2,支线用50mm2的铝芯橡皮线。
本工程施工用水、生活、消防用水均由建设单位在厂区西南角予留的Ф100mm干管提供。
公司将根据工程及施工进度,劳动力需用计划,随各阶段施工的用工情况,随时调整、配备、满足工程的需要,形成严密的动态管理。
施工阶段所需劳动力配备情况列于下表。
劳动力需用计划
序号 | 工 种 | 人 数 | 进 场 时 间 |
1 | 钢 筋 工 | 40 | 根 据 工 程 进 度 需 要 进 退 场 |
2 | 木 工 | 60 | |
3 | 砖 工 | 20 | |
4 | 砼 工 | 20 | |
5 | 架 工 | 20 | |
6 | 抹 灰 工 | 10 | |
7 | 电 焊 工 | 20 | |
8 | 机 修 工 | 4 | |
9 | 操 驶 工 | 6 | |
10 | 普 工 | 20 | |
11 | 试 验 工 | 1 | |
12 | 水 电 工 | 3 | |
13 | 其 它 | 10 |
本劳动力需用表人员数量为动态管理,人员高峰时约150人左右。
根据给定的施工图QC24BZ-4-0101,以联合厂房的⑦轴为基准开始放线。向西南方向延长⑦轴,在该延长线上量取决40.5m于A点,,并在A点架经纬仪看⑦轴对零刻度线,尔后左转仪器对90°扫出一条射线,则该射线即为①轴或12轴;在该射线延长线上从A点往东南方向量取18.000m于B点,在该射线上从A点往西北方向量取得30.000m于C点,在B点架经纬仪看A点对零刻度线,尔后左转仪器对90°扫出一条射线,在该射线上量取BD=66.000m于D点,则该射线即为 A 轴或 C 轴;在C点架仪器看A点对零刻度线,尔后右转仪器对90°扫出一条射线,在该射线上量取CE=66.000m于E点,则CE所在直线为 C 轴或 A 轴,连接D、E所得直线即为⒓轴或①轴。根据仓库的平面各轴线间的位置关系即可放线得到其他各轴线的位置。
土方开挖
本工程设计上要求仓库周边设三七灰土止水带,三七灰土分层夯实后外包二层质地较厚的聚乙烯塑料薄膜帷幕。
宽聚乙烯塑料薄膜帷幕先翻至外侧,用木架板压住。
在地基验槽合格后,立即浇筑混凝土垫层。垫层施工完毕再进行杯基施工。
、捣完第一级后拍平表面,在第二级模板外先压以20cm×10cm的压角砼并加以捣实后,再继续浇筑第二级,待压角砼接近初凝时,将其铲平重新搅拌利用。
、砼浇筑时,采用流水作业方式,即顺序先浇一排杯基第一级砼,再回转依次浇第二级,这样对已浇好的第一级砼有个下沉的作用时间,但必须保证每个柱基砼在初凝之前连续施工。
、为保证杯形基础杯口底标高的正确性,宜先将杯口底砼振实并稍停片刻,再浇筑振捣杯口模四周的砼,振动时间尽可能缩短,同时还应特别注意杯口模板的位置,应在两侧对称浇筑,以免杯口模挤向一侧或由于砼泛起而使芯模上升。
、为提高杯口芯模的周转利用率,可在砼初凝后终凝前将芯模拔出,并将杯壁划毛。
柱、基础梁及砼系杆的预制
Þ 安放钢筋骨架
ß
机具准备 Þ 埋设钢管制孔
ß
制作试块 Ü 浇灌砼
ß
抽管
ß
养护拆模清理孔道
ß
锚具及预应力筋制作 Þ 穿筋
ß
校验张拉机具压试块确定混凝土强度 Þ 张拉预应力筋
ß
灌浆机具准备 Þ 孔道灌浆
ß
起吊就位
fL5。
f50无缝钢管,每根长6m,连接采用厚0.5mm,长40cm套管,钢管固定采用钢筋井字架,每150cm与钢筋固架绑扎。钢管表面要求平直圆滑,使用前除锈刷油。振捣混凝土后应每隔10~15min转管一次,在混凝土初凝后终凝前抽管常温下抽管时间约在混凝土浇灌后3~5h,抽管要平直、稳妥、均速,次序为先上后下,采用小型卷扬机拉拔。
®水®浓浆为止。在灌满孔道并封闭排气孔后,宜再加压至0.5---0.6mpa,稍后再用木塞将灌浆孔堵塞,灌浆后应作三组灰浆试块,以便检查强度,当灰浆强度不小于15mpa时,方可移动屋架。
本工程的吊装工程采用两台履带式吊车同时工作。首先将柱子、地梁吊装固定,然后采用综合吊装法吊装屋面结构。
主要施工方法:
屋盖吊装采用综合吊装法,屋架在吊装前应先按平面布置图扶直就位。
®第二榀屋架®屋面垂直支撑®屋架水平支撑®天沟板®第一节间屋面板®第三榀屋架
1、技术力量保证措施
徐荣文 工程师
朱春安 高级工程师
吴明庆 工程师
周开公 工程师
赖柏华 助理工程师
高焕成 技 师
李 杨 工程师
技术员
林祖烈 政工师
刘君贵 技 师
严格按质量体系文件执行,遵守施工规范,安全技术操作规程。开工前必须进行安全、质量、技术交底工作。
本工程砌体采用240标准粘土砖,砌体在工程中只起到隔断和部分围护的作用。
±3mm,且砌块不允许出现缺楞、掉角、裂缝等现象。严禁购进不合格的砌块。
本工程屋架的垂直支撑、水平支撑及钢系杆的制作均在施工现场外进行。
车间内地坪施工时,首先将地坪以下地基土夯实平整,将未经处理的软弱土层按设计要求全部挖除,分层夯实好素土。素土夯实层经检测符合设计要求后再进行300厚三七灰土的分层碾压工作。因软弱土层的范围具有较大的不可预见性,故在实际施工中该部分工程量按实计算。
~4天予以消解,并加以过筛,其粒径不得大于5mm,不得夹有未熟化的生石灰,也不得含过多的水分。其次土料不得含有有机杂质,使用前应过筛,其粒径不得大于15mm。三七灰土分层夯实的施工要点如下:
~250mm,夯实至100~150mm。
~3cm。其次,混凝土应采用机械搅拌;捣实时采用平板振动器,平板振动器的移动间距,应能保证平板覆盖已振实部分的边缘,每一振处应使混凝土表面呈现浮浆和不再沉落。第三,混凝土应按设计要求纵横3m设缝分仓浇筑,且钢筋应断开。最后,混凝土浇筑完毕,应在12小时内用草帘等加以覆盖和浇水养护,浇水养护日期不少于7昼夜。
抹灰工程应在其墙体表面质量经检查合格后,在设备、预埋件安装完毕的前提下,经检查无误后方可施工。
本工程屋面为氯化聚乙烯防水屋面,其作法为:①大型屋面板基层,②水泥聚苯隔热板100厚,③25mm厚1∶2.5水泥砂浆找平层,④氯化聚乙烯橡胶防水层。
本工程作为公司的99重点工程,公司及项目经理部将把质量和工期作为重要内容来抓,并定于在132天将工程任务优质完成。为此提出具体保证措施如下:
公司从人力、物力、财力上大力支持,项目经理将各专业单位、各专业工长签订工期合同,把工期目标与个人的经济利益挂钩。
施工前,技术负责人组织工长、内业、质安员等认真学习和阅读施工图纸及有关规范,并针对本工程制定的方案、规定达成共识,了解和掌握设计意图、工程特点、难点等,组织好图纸预审和会审。
~5小时转动钢管,并在混凝土终凝前将钢管拔出。采用此方法施工,成孔园滑,杜绝了漏浆、变形、孔道堵塞引起穿束困难,确保工期。
现场设专职保卫人员,建立现场治安管理小组,负责治安消防的日常工作,确保一方平安。
计量和试验工作是保证工程质量的基础管理工作,必须把计量和试验贯穿于施工的全过程,应认真贯彻执行国家有关工程施工计量和试验的法规和规定,确保工程质量。
材料员应根据工程进度的需要、准确、及时地将现场所需材料供应到场。
本工程屋架设计选用国标G415(三)及抗补图,结合我司的施工经验,建议采用“国标G415增补”图中相关章节的施工方法。采用高强碳素钢丝,避免了采用二级钢张拉时因不能确保焊接质量而影响整个工程的进度和质量;同时采用高强碳素钢丝对工作面的要求远远小于采用二级钢张拉时的工作面,另外还省去了冷拉等工序,对确保按期完成施工任务提供了有利条件。
【售前服务】
认真贯彻执行国家和四川省计委、档案局及省建委关于工程档案资料管理的通知、规定,对工程从开工到竣工全过程,必须按档案资料的具体内容,填写程序,纸张规格等,做到规范化和标准化。
某总装试厂房是国家“八五”期间重点工程项目之一。该工程是集火箭、飞船、宇航员,进行总装测试及发射前有效荷载进入发射区前,完成一切技术准备的基地,是一项跨世纪的国防重点工程。
本工程位于高原严寒沙漠地区。场区地质属于四世纪堆积层、微倾斜的戈壁平原,为半坚硬、半松散的砂砾层,地下水埋置较深,地震烈度为6度。该区冬寒夏炎,春秋季短,气温温差大(41.2~-34℃),最大冻土深度为1.4m,年平均降水量43.9mm。场区风沙大,平均风速为4m/s,4~6月最大风速达40m/s。
该厂房建筑面积30600m2,占地面积3100m2,平面尺寸74m×46.3m,建筑总高度93.8m,结构布局为“E”字型,中间设两个总装测试大厅。地上14层,地下1层,1~13层层高为6.8m,14层层高为4.2m,地下1层层高为4.5m。13层为非封闭式箱型屋盖,14层为设备层,1~12层为标准层。
整个建筑为现浇钢筋混凝土框架——巨型多筒体结构,基础采用钢筋混凝土整体扩展式箱型基础,埋深9m,天然地基;主体结构由9个钢筋混凝土筒体,24个框架柱组成,其中6个简体内配有20个劲性柱。屋盖为现浇钢筋混凝土箱型屋盖。
厂房测试大厅平面轴线尺寸为26.8m×38.8m,大厅顶板标高为81.6m,大厅南侧为16.6m宽、74m高倒“T”字型巨型升降推拉钢大门,以供组装件整体垂直运出,另外三侧为12层各种工艺测试用房、辅助机房及走道平台,大厅内每层设有固定钢平台及活动工作平台和走道平台相连。二个测试大厅上部分别设有一台起重量为50t/30t的桥式行车,吊车最大起吊高度为75.5m。
该工程电气及设备功能齐全,线路复杂,设备先进。
该工程结构复杂,技术要求高,施工难度大,其工程特点可以归结为:高、大、新、特、难。高——指单层厂房高度是国内之最高;大——指74m高钢大门是国内之最大;新——大跨度钢筋混凝土屋盖结构新颖;特——箱型屋盖由24根框架柱、9个钢筋混凝土简体作支撑,在其中6个筒体内有20个劲性柱,以及悬挑大梁、活动钢平台等为国内少见的独特结构形式;难——上述高、大、新、特所反映的施工难度以及地处沙漠高寒气候条件所带来的施工难度。特别是与世界第一高度单层厂房——美国肯尼迪航天中心39号发射场垂直总装测试厂房相比,它还具有以下特点:美国及法国、日本等国家建造的单层厂房都是采用钢结构,建造时其构件可以在工厂进行加工,现场安装,湿作业少,施工速度快,但造价高,整体刚度小,在风荷载作用下,竖向变形大。而本工程采用钢筋混凝土结构,它具有造价低、整体刚度好,在风荷载作用下不会产生大的竖向变形。但这种结构形式现场湿作业多,施工受环境影响大,且由于其单层高度高、跨度大、屋盖重,因而增加了施工难度。是国内和亚洲当前规模最大、高度最高的单层工业厂房。
本工程处于高寒沙漠地区,气候干燥,冬季最低气温-34℃,冬期施工时间从10月21日至次年4月8日,基础底板大体积混凝土施工正处在1994年12月底(日平均最低气温-15~-25℃),属冬期施工。
钢筋混凝土扩展式箱型基础埋深9m,基础平面形状为并联两个“口”字形,底板厚1.5m,箱体壁厚500mm,混凝土强度C30,抗渗等级为P8。箱体在④—⑤及⑧—⑨轴线间各设后浇带一条,后浇带混凝土强度为C35,掺微膨胀剂UEA10.5%,整个基础底板混凝土量为5200m3。
依据本工程的结构特点和施工条件,通过对施工方案的可行性研究,施工采用暖棚法,即搭设暖棚,热拌混凝土,不加防冻剂,使混凝土达到设计强度标准值的30%后,仍在正温条件下进行养护,以满足抗冻临界强度的要求。施工中对基础底板温度应力的抗裂度进行了理论验算,制定了相应的控制基础底板混凝土温度及混凝土收缩缝等一系列施工技术。
水泥:525号普通硅酸盐水泥,具有早强性;
砂:采用中砂,砂率40%,平均粒径大于0.5mm,含泥量不大于3%;
石子:采用碎卵石,粒径5~40mm,含泥量不大于l%;
外加剂:掺入水泥用量10.5%UEA膨胀剂及0.25%M型高效减水剂。
2.混凝土配合比
经试验确定,同时满足物理力学性能和可泵性要求的施工配合比见表3-l-l。
3.混凝土施工
(1)暖棚搭设:在基坑内根据砖模的平面尺寸,搭设施工暖棚,暖棚长74.6m,跨度l4~l7m,棚高4m,采用扣件式脚手搭设满堂固定棚盖,上铺帆布及草袋各一层,暖棚设两个出入口,出入口挂帆布帘子防护,并由专人负责管理,暖棚搭设见图3-1-1。
(2)供热:现场设两台3t开水锅炉,一台供混凝土搅拌加热,每小时可供量2.6t;一台供暖棚采暖,基坑内沿钢管架设循环供热管道,跨度较大区域范围加2~3道钢支撑。
砂加热采用现场设置“砂炕”(下边为炉灶及烟道,上铺钢板,炉灶前架设4台鼓风机),砂炕附设6个预热水箱,供应热水量每小时7.5t,供给混凝土搅拌使用。并在现场设立预热蓄水池一座,贮存热水30t,以备混凝土拌制时停水和现场临时用水。
(3)混凝土供应及输送:为保证混凝土供应,在现场设自动搅拌站一座。搅拌站由两套物料供给和拌制系统组成,两台搅拌机组出料容量为500L×2,最大生产率2×25m3/h。混凝土输送采用一台HBT60,一台HBT80混凝土输送泵输送,室外泵管用薄膜和草袋包裹保温。
(4)热拌混凝土:开盘前进行砂加热,并使各处加热均匀,砂加热到40℃,将水加热到60℃,其它材料不加热,先让骨料和热水拌合,搅拌150s,拌合物出罐温度为20±5℃,混凝土人模温度>10℃。
(5)混凝土浇筑
1)底板依据后浇带自然分成三个施工段,每段均采用分层斜面浇筑,每层浇筑厚度为300mm。为确保结构整体性,各段混凝土可连续施工,即必须在下层混凝土初凝之前浇筑上层混凝土,以避免出现冷接楼。
2)由于底板钢筋分布很密,为增加混凝土密实性,每台泵车配备6只插入式振捣器,在混凝土斜面上各点均需振捣密实,以提高混凝土强度,减少混凝土收缩。
3)由于大体积混凝土浇筑时泌水较多,各段均留设集水坑,再用高压泵将水排出水坑。
4)混凝土表面处理:在浇筑后约2~3h左右进行,初步按标高用刮尺刮平,在初凝前用滚筒碾压数遍,用木蟹打磨,待混凝土收水后,再二次用木蟹搓平,以闭合收水裂缝。
为保证混凝土早期不受冷,控制混凝土温度裂缝,施工中加强对混凝土进行监控和养护。
(l)底板混凝土蓄热保温保湿养护:混凝土浇筑完表面处理后,在混凝土表面覆盖一层薄膜、二层草袋。通过基坑内布设的循环热水管,加热暖棚,保证棚内温度在5℃以上。
(2)根据本工程底板平面尺寸、形状和厚度,布设测温点64组,用热敏电阻测温。具体做法:将两个热敏电阻分别接在预先埋置的1.5m的钢筋上,系在下部的热敏电阻埋于底板中层80cm处,上部的热敏电阻埋于底板表面层内l0cm处,测温时通电,直接从仪表上读出温度数。为了对比,在各施工段混凝土再埋设一根ø25钢管,深度80cm,待混凝土初凝后拔出,留出测温孔,用温度计读数作比较。
测温频率:混凝土浇筑12~14h后开始测温,第1~7d为1次/2h,第8~18d为1次/8h。
(3)测温后及时按测温孔编号做好记录,并进行整理分析,及时调整养护措施。为防止局部“死角"保温不严,使混凝土受冻,在连接处垫帆布和塑料薄膜。
(4)测温结果。暖棚温度一直保持在5℃以上,前4天混凝土的实际温度为18~30℃之间,实测混凝土中心与表面温差及混凝土表面与环境温差均未超过25℃。实测表明,在上述保温保湿条件下,持续3d,一般可保证混凝土具有足够的抗冻临界强度。
基础底板混凝土均为3~4d拆模,混凝土里实外光,棱角清楚。由于采取了暖棚法施工,经实测混凝土3d、7d、28d及60d的强度分别达到设计强度的76%、84.l%、110%及1l3%。混凝土质量达到了设计及规范要求,防止了混凝土早期受冻,也避免了有害温度裂缝的产生。
为承担箱型屋盖及组装件整体吊运的巨大荷载,在测试大厅的六个简体内共设置有20个截面尺寸为350mm×370mm和360mm×600mm两种高度分别为80.6m、74m和62.7mH型劲性柱,劲性柱带有不同悬挑长度的锚梁和挑梁。其结构平面及劲性柱布置见图3-1-2。
(1)从-1.75~+1.5m为3.25m长,共20段;
(2)一层以上标准段6.8m,共192段;
(3)最顶层段长4.3~8.3m不等,共20段。
采用30mm厚钢板作底座,其余均为20mm钢板切割后焊接而成。为保证加工精度,采用半自动精密气割机气割,放线时预留焊接收缩余量及气割余量,下料应避免在气温过高、过低进行。并采用经校核的统一量具,以消除或减小相对误差。采用船形焊接法焊接,确保焊缝高度及焊接均匀光滑。焊前先设计制作专用卡具、胎具及支撑,确保焊接后构件几何尺寸准确,焊接时采用先点焊再分段对称施焊。并采用跟踪检查外观质量,对有二级焊缝要求的构件和部位,按规范要求进行探伤检查。
钢柱采用三向平衡定位法安装。第一段钢柱安装:先浇筑地下室-1.75m以下的混凝土,其浇筑面标高比钢柱底座设计低30~50mm,待混凝土达到一定强度后,安装第一段带钢板底座的钢柱,并在底座钢板上钻6ø50出气孔,安装时钢柱用ø25~ø32钢筋与地下室简体和暗柱内的钢筋连接固定,经复核无误后浇筑±0.00以下的简体和暗柱混凝土,混凝土中掺l0.5%UEA,并加强振捣,待钢板上每个出气孔冒浆后,再浇筑钢柱底座以上混凝土。
接着进行第二段钢柱安装,先将连接钢板点焊在第一段钢柱的两侧翼缘板上,待钢柱安装就位无误后,再正式施焊。
(1)钢筋工程:简体及暗柱钢筋在现场集中制作,暗柱纵向ø22~ø32钢筋采用电渣压力焊,简体墙内竖向分布钢筋接头采用搭接绑扎,粗直径钢筋制作接长用闪光对焊。钢柱吊装就位后,先绑扎暗柱立筋,再安装绑扎墙体的横向钢筋,箍筋开口安装后用10d焊接成封闭式。在梁、柱交接处,在钢梁腹板上钻孔,使墙体钢筋穿过。
钢筋接头位置,搭接与锚固长度及剪力墙钢筋网片的拉结绑扎等均按图纸要求及验收规范施工。简体墙中暗柱竖向钢筋上下要贯通,钢筋保护层厚度用限位筋控制。
(2)模板工程施工:筒体外模由两块大模板组合成定型模板,并高出楼层100mm,定型模板由18mm厚九夹板制作,横向木楞为55mm×80mm,间距300mm,纵向配双肢ø48×3.5钢管,间距700mm,通过ø16螺栓与胶合板、木楞及钢管连接,组合大模板最大重量1.2t。
筒体内模纵向高度在内楼梯处断开,用小块模板先钻孔,使预留钢筋通过,然后与大模板拼装组合成一体。为了增强墙体模板的稳定,在筒体外侧用ø48钢管作三道斜撑,具体做法是在楼板上预埋ø25短筋,作为斜支撑的与水平钢管的连接支点。
(3)混凝土工程施工:在浇筑混凝土时,由于劲性柱、梁内的混凝土流动及排气受到钢柱、钢梁、锚梁的限制,给混凝土的浇筑增加了施工难度,为保证施工质量结合地区气温条件,采取了以下措施:
1)采用大流动度泵送混凝土进行浇筑,粗骨料选用5~20mm的碎石,坍落度l4~16cm,混凝土中掺“M”型减水剂;
2)混凝土分层高度控制在500mm以内,混凝土从钢柱四面下料,四面振捣;
3)高温季节,混凝土的浇筑尽量安排在傍晚及夜间作业,混凝土入模温度控制在28℃左右;
4)在-20℃之内的条件下冬期施工时,采用综合蓄热法。混凝土中掺水泥用量4.5%FDJ-1型防冻外加剂,水加热,人模混凝土温度控制在10℃以上,并在混凝土浇筑后进行覆盖保温。
十三层为非封闭式箱型屋盖,箱底标高8l.6m,在箱体中部E、F袖,分别为两根7.6m高、0.5m宽、两跨连续墙梁,全长达74.1m。在建筑物南侧A、B轴,分别为2根14.4m高、0.5m宽、两跨连续墙梁。墙梁纵向布置在①~⑥轴及⑦~②轴,每跨26.8m。以此四道墙梁,形成箱体的核心,并与该层的框架——筒体结构连成整体。形成73.6m×45.8m×6.8m高(轴线尺寸)的大型箱型屋盖,该屋盖由1~13层的24根框架柱和9个钢筋混凝土筒体结构为支座,形成两个26.8m×38.6m的大厅,大厅的屋盖模板支撑是工程施工的难点。
2. 6.8m高钢筋混凝土悬挑梁结构特点
在A轴靠近③轴和⑤轴、⑧轴和⑩轴位置,外挑出4根悬臂梁。梁高6.8m、宽l.07m、悬挑长4.15m,每两个悬挑梁组成一个钢大门的固定上嵌,作为安装、固定提升钢大门开启时门扇的安放空间,每个大门共有5扇钢门,门扇提升通过轨道和大型螺栓固定的钢门框运行,提升大门的标高为l6.8~74m,l6.8m以下为两扇推拉门。大挑梁的模板支撑和螺栓安装精度是该工程施工的又一难点。
箱型屋盖施工每个大厅屋盖自重约3260t,关于屋盖施工的支撑形式,先后设想过多种方案,最后采用了钢筋混凝土框架结构和钢椅架相结合的支撑方案。钢筋混凝土结构具有强度、刚度和稳定性好以及节约钢材等优点。屋盖支撑系统见图3-l-3所示。
模板支撑系统
(1)钢筋混凝土框架支撑体系:在④轴和⑨轴两侧的A、B轴和E、F轴位置设置宽6.6m×7m、高72.25m及78.86m的钢筋混凝土框架4个,A、B轴框架柱与预埋在建筑物基础内的钢筋相连接,E、F轴的框架柱基为独立筏式基础。框架柱上设不同标高牛腿三道,作为支承钢桁架的连接节点。
箱型屋盖完成后,钢筋混凝土框架支撑采用分层分段松动爆破,用5t绞车将爆破框架从上而下逐层拆除。爆破时根据建筑物周围的具体条件,分别采用三级、二级或一级防护。防止爆破时伤害人体和损坏已经施工的建筑物。爆破安排在现场无人操作的时间进行。
(2)模板支撑承力支架——钢桁架:钢桁架共采用8种形式,钢桁架和钢筋混凝土框架支撑的布置如图3-1-4所示。
16榀HJ-l桁架、4榀HJ-4桁架和4榀HJ-5桁架,高2.5m,分别使建筑物筒体与框架支撑相连接,形成大厅屋盖模板支撑系统的核心承力支架。为了增强78.86m高的支撑框架竖向的稳定性,减少在竖向受力后的变形,分别在大厅的4、7、10层设置三道共60榀3.4m高的钢桁架,使钢筋混凝土框架支撑与建筑物筒体、框架支撑与框架支撑相连接。
(3)钢桁架上的模板支撑:在钢桁架上铺45a工字钢作主楞,间距2.5m,在主楞上铺16a槽钢作次楞,间距600~900mm,在16a槽钢上铺30mm厚木挑板,在木挑板上立钢管支撑,在模板底加横杆和楞木,形成支撑体系。见图3-1-4所示。
(4)6.8m高大挑梁支撑体系:施工时在墙梁相应位置预埋钢板,作为焊接挑梁支撑用的钢桁架连接钢板。在每根挑梁上各设二榀三角形钢桁架,在三角形钢桁架上铺36a工字钢、16a槽钢作主楞和次楞,形成大挑梁支撑系统。
每个大挑梁的梁底有44根长1.2m、ø32的预埋螺栓。施工时用20mm厚钢板上钻ø34孔作套板,预先将螺栓焊接固定好,支模时,用钢套板作底模,安装就位后,用经纬仪投点找中,保证钢套板的位置和标高准确。
(5)模板工程施工:墙体模板以大模板(九夹板)为主,配合部分组合钢模以及用ø48钢管作横、立楞,用ø16对拉螺栓、间距500mm固定墙体模板。在混凝土后浇带部位采用二层钢板网,外用木板和钢管作支撑。
2.钢筋工程施工
柱、墙竖向Ⅱ级ø28及ø18钢筋采用电渣压力焊,梁板中ø22~ø32Ⅱ级钢筋采用冷挤压连接。由于墙梁钢筋密集,高度很高,墙梁的箍筋分三段加工、三段安装,中部箍筋与上、下箍筋分别搭接400mm,底板上下层钢筋间设Ⅱ级ø14~ø16马凳筋。
3.混凝土工程高空冬期施工
整个箱型屋盖施工正处于1995年未到1996年初,为冬季施工期。
(1)冬期施工方案:结合本工程结构特点和施工作业条件,经多种方案比较,决定采用综合蓄热法施工方案。即热拌混凝土并在混凝土中掺早强型防冻剂,配合搭设防风棚等措施,使混凝土达到设计强度标准值30%后,仍在正温条件下进行养护,以满足抗冻临界强度的要求。
(2)施工段划分:为减小混凝土塔架与顶部钢桁架的一次性荷载,将十三层箱型屋盖分为3个施工层施工。在征得设计单位同意后,水平施工缝分别留在梁高1/3、梁顶和楼面处。这样,犹如叠合构件那样,首先浇筑的l/3梁截面可以承受上部2/3梁高的施工荷载。在1/3梁高施工缝处,按设计要求增设了适量的抗剪销(型钢I20,间距2.7m,插入下层混凝土中1.0m,上露出1.0m),以增加结合面的抗剪能力。
平面上,在中部简体处设1.0m宽后浇带,以解决混凝土收缩问题。结构封顶后,后浇带用膨胀性混凝土(掺UEA14.5%、水泥增加10%)浇筑堵封。
(3)冬期施工材料选用
1)采用R525号早强性普通硅酸盐水泥,中砂和粒径5~25mm连续级配的碎石。入冬前将砂、石洗好,控干水分,加盖草帘一层。
2)防冻剂:要求选用无氯型防冻剂。为保证工程正常施工,按照混凝土入模温度较低、坍落度较大的特定条件,要求外加剂不仅具有较好的减水性,且具有良好的可泵性并对钢筋无腐蚀性作用,经过多种防冻剂的比较,决定选用某建研院研制生产的FDJ-l型防冻剂,掺量为水泥用量的4.5%。
实验结果表明,掺FDJ-1型防冻剂的混凝土和易性、期落度等性能都能满足泵送要求。
(4)混凝土配合比:根据工程重要性和工期要求,为确保质量,经与设计单位商定,在冬期施工中,将混凝土强度等级由原设计C35提高为C40。
混凝土配合比根据混凝土设计强度、可泵性以及气候条件进行试配后确定,并在施工过程中进行调整优化。
该工程实际采用配合比为水泥:水:砂:石子=1:0.41:1.36:2.23,另加防冻剂(为水泥用量4.5%)配制而成。试块先在自然条件下(-10~+5℃)养护了3d,然后进行标准条件下养护28d,获得试块强度资料如表3-1-2所示。
(5)施工过程及质量保证措施
1)热拌混凝土:在现场设自动化搅拌站,砂、石不加热。现场设0.5t/h锅炉l台,将水加热到60℃,先让骨料与热水拌合,最后投入水泥。搅拌时间不少于150s。
2)输送和振捣:混凝土拌和物出罐实测温度+12~+15℃,满足规范大于+10℃的要求。用2台HBT80混凝土输送泵运到高空80m处浇筑。室外泵管采用覆盖草袋的保温措施。实测混凝土入模温度比出罐温度一般高1~3℃,这可能与混凝土在100余米长的泵管内受到的摩阻力有关。振捣完毕后实测温度高于5℃。为确保结构整体性,一个施工层的梁板均连续施工。
3)保温养护:混凝土浇筑初凝后,覆盖1层塑料薄膜和3层草帘,在箱型屋盖四周外围设挡风竹笆墙,挂1层草袋和1层薄膜。在楼板面和操作平台上,并安设36只火炉烤烘,增加环境温度。为了解混凝土表面温度情况,每天对革帘下表面混凝土测温3次,连续28d。实测表明,高空环境温度比地面尚高2~3℃,在上述保湿条件下,持续36h,一般可保证混凝土具有足够的抗冻临界强度。
该工程箱型屋盖冬期施工混凝土量2200m3。拆模后里实外光,棱角清楚,外观良好,试块强度均达到或超过设计要求。经某科研单位现场回弹仪超声波检测评定,混凝土强度达35.1MPa,受到好评,同时还节约了上百万元施工措施费用。
在厂房大厅A轴设有两个74m高、16.6m宽的钢大门。钢大门由钢门框、横档(固定门扇)、升降门扇等组成。
(1)门框构造:两个大门共4根门框,对称制造,每条门框重约51.55t,共由九段拼装而成,总高达78.395m。每条门框上共有七根导轨,导轨全长78.395m,各导轨间距360mm,要求误差±0.5mm,全长平行度≤2mm,直线度≤3mm,且局部<0.5mm/m,每根导轨由2根ㄈ14a槽钢和三条垫片组成。
(2)门扇种类和尺寸。分升降和固定门扇(横档)两种,两个大门共有升降门l2扇,固定门2扇,每个升降门扇由三块门体通过高强螺栓连接而成,且有48个导向轮。门扇外蒙皮由厚2.5mm钢板焊接,内蒙皮由厚1.5mm钢板绑接。固定门扇由4块门体通过高强螺栓连接而成,厚540mm,重约23.42t/扇,尺寸为14.2m×14.44m。
大门总重(包括门框)约746t。
2.钢大门加工制作方案
大门分段、分件加工,重量大、精度要求高,为确保分段、分件加工精度,加工前对门框施工进行了多个方案的对比。最后经反复论证,决定采用方案为单导轨机加工后,再与门框焊接,即采用装焊精度来保证导轨精度。具体工艺为:(1)放l:1足尺大样下料;(2)用激光仪测量、定位、打眼,用画针画线和钢带丈量;(3)制作专用胎具,装配时九个分段的法兰面(连接面)首先定位,再进行杆件安装;(4)采用二氧化碳气体保护焊接工艺施焊,焊接人员定岗定位,对称、间隔分段施焊,并采用适当的电流参数。以减少焊接变形,保证加工精度。
在升降推拉大门设备安装中,有12台(7.5t/台)卷扬机须吊装到垂直厂房13层顶(标高88.4m)进行安装。经充分论证,决定自行设计简易吊装机具进行吊装,通过对传统的人字扒杆机构进行技术革新,设计了小角度倒链变幅铰支人字扒杆机构,与传统的人字扒杆机构相比具有显著特点:刚性人字扒杆;扒杆铰支;倒链变幅;前、后限位挡块;施工卷扬机高置。通过吊装12台卷扬机设备表明:小角度倒链变幅铰支人字扒杆机具有加工制作简单、使用快捷、安装灵活多变、造价经济等优点,实用性好。
2.平板车门扇运输
升降门扇(门档)由于结构的特殊性带来了运输的困难,为使运输达到简便、安全、高效、低耗,通过认真分析决定使用25t平板车,配合托架及防侧翻托滚进行运输。其特征是:用钢托架保护门体;用托滚防止侧翻;使用最低车速。
3.三吊车门扇空中翻身技术
门扇(门档)厚度方向的刚度小,在翻身直立时不允许承受弯矩。为加快施工进度,降低工程费用,选用了整体直立式方案,即在地面拼装好后,运至吊装现场进行翻身支立。设计了三吊车门扇空中翻身技术:一次提升与回转;倒换吊点;二次提升与回转;托架脱落。三吊车门扇空中翻身技术安全可靠、效率高、操作简单,容易实现托架与门扇的分离。在翻身过程昏,托架与地面接触,门扇随托架转动,基本上不承受弯矩。
4.吊篮式吊装技术
厂房门框横档重24t,要求通过72个预埋螺栓铅垂吊挂于86.4m处。要想安全顺利地实现门档安装,必须解决诸如吊点问题、提供安装作业面、预埋螺栓同时人孔、吊装方式等关键性技术问题。吊篮式吊装技术就是为解决这些问题而设计的一项特殊性吊装技术,其要点:吊篮式载体;四台卷扬机抬吊;协调性过渡梁;有机吊点布局。施工中,吊篮的结构形式要依吊件的形状和安装条件而定,吊点群布局要有系统性,以最大限度地减小吊篮受力和顺利实现构件就位为原则。当吊点群的相互协调有困难时,可充分利用过渡梁的调节性能。
5.门框安装四定点精度测控技术
在升降推拉大门系统中,门框是升降门运行和密封的基础,其安装质量的好坏,直接影响着系统的使用功能。门框安装时,其高度方向的位置控制由预埋连接螺栓的位置决定,门洞前后方向的位置控制由预先在厂房上画出的基准线所决定。门框沿厂房门洞左、右方向的位置控制及铅垂度、平行度、对称度、对角线误差的控制,由于无法画出安装基准线而必须采取另外的措施。根据门框的结构特点和安装形式,在仔细分析研究的基础上,制定了四定点测控技术方案,主要内容包括:以面代体;以点代面;门洞前两定点测控,门洞侧两定点测控。保证了门框安装后的空间精度要求。
6.设备钢丝绳卷扬机穿绕技术
设备钢丝绳卷扬机穿绕技术是为了安全、高效、省力地完成l2台卷扬机设备的钢丝绳而设计的一项特种安装技术,其要点是:高空放绳;施工卷扬机钢丝绳反向穿绕;麻绳连接;倒链拉紧。
7.升降推拉大门安装误差控制
为了保证升降门沿推拉侧面轨道运行时的平稳性,必须在技术上要有控制综合误差影响的措施。根据静止误差原理,设计了升降推拉大门误差控制技术。该技术主要包括两个方面:一方面是控制门框各段的安装误差,使其不超出规定值;另一方面是把推拉门下导轨作为一个调整环节,以保证推拉门和升降门所形成的动配合不受破坏。具体来说,就是把下导轨的安装放到最后,并根据动配合状况适当改变下导轨的安装位置,让下导轨来承受综合积累误差。
在室内76m高处安装大型特种行车非同一般,大型吊车和一般桅杆吊装法均不具备使用条件。施工时在箱型屋盖底板相应位置预留吊装孔,并在81m标高上设置300mm×600mm×7000mm钢筋混凝土横梁,作为起吊时的承重构件。
钢吊车梁总重60t,每段约5t,每一系列由三段组成,其总长达31.85m。施工时根据钢吊车梁整体刚度、吊装空间净尺寸及起吊过程中障碍物等因素,采用两段连为一体起吊,然后再吊另一段。由于大厅两侧共有十三层长度3.5~5m不等的钢悬挑梁,对室内吊装影响较大,故吊装时采用远近双吊点起吊,利用其中一吊绳松紧调整钢吊车梁准确就位。
吊车梁安装就位焊接固定后,测量调整吊车梁的标高和二列吊车梁面的中心距离,确保吊车调整轨道的平行度和水平度达到设计要求。
行车总重86.14t,其中大车重量50.794t(单片重25.397t),小车重35.646t,起升高度76.45m。行车在76.45m高空安装,行车顶点距箱型屋盖板底仅1100mm,且大厅两侧从结构简体挑出十三层长度不等的钢悬臂梁,影响吊装作业,给行车的安装造成极大的困难。
考虑吊装方法时,曾设想过两种方案:第一方案:水平起吊,高空倾斜就位。采用此种方法的具体条件是:安装完钢吊车梁后,轨道上翼缘标高为76.45m,至箱型屋盖板底标高(80.55m)距离为4.4m,而行车倾斜就位时最高、最低点的高度需要7.23m,大于吊装空间的净高度(4.4m),此法不能采用。第二方案:水平起吊、高空摆角就位。采用此种方法又可分为整体吊装和单片吊装两种。采用两片组对在一起的整体吊装,高空摆角就位时,行车对角线长为26.33m,②~⑥轴线结构间净距离为26.3m,小于行车摆角时需要的净空,整体吊装方法无法采用。故施工时采用了单片水平起吊、高空摆角就位。采用四台8t卷扬机为起吊设备,一台5t卷扬机辅助行车吊装时的转向。同时还采取了以下技术措施:
(l)将行车同侧两吊点的缆绳死头连接在一起,形成类似两点抬吊的起升系统,避免了多点抬吊造成受力不均。
(2)起吊时在两端固定溜绳,在第6层楼板平台上,由人力操作缆绳在吊装指挥下调整起吊方向。
(3)行车的摆角由卷扬机控制。
由于火箭垂直组装测试的特殊要求,室内76m高空行车安装就位后,调试是吊装后的工作,它由有资格的专业调试人员来完成。由于行车使用的特殊要求,所以为非标准设计,这给调试工作带来了难度,除了按常规进行调试外,着重检验起升机构和运行机构的平稳性及可靠性,吊装时要求负载吊升50min不能有大于8mm的位移,这对于高精尖的航天设施极为重要。此外,行车除以主操纵台为主进行操作外,还要求各分层操纵盒也能操作,这是与一般行车最大不同之处,充分体现了该行车的先进性和复杂性。
活动平台安装在大厅固定平台内侧。活动平台安装在固定平台边的吊杆上。吊杆通过吊架与厂房框架结构拉结联系。
活动平台从上而下共十三层。4~13层活动平台平面尺寸l5.1m×10m,l~3层活动平台平面尺寸18.7m×10m。
活动钢平台具有升降、推进、后缩功能,以适应火箭垂直测试要求。活动钢平台打开后,空间大、层高小、前积大。吊杆轨道安装必须严格控制平行度,吊杆与吊架之间必须保持l5cm,且与预埋件中心对称。
平台由工厂组装成固定段和推拉段两大部分。活动平台安装自下而上,具体安装方法如下:
(1)在平整场地上把平台的两固定段架在支架上,打开支承臂,并把固定段调正、调平,并使支承臂前端上翘3~5mm,然后把推拉段放到位,使翻转段与推拉段相连接,焊接铰支并注意使翻转段略上翘3~5mm。
(2)安装推拉段与翻转段的限位开关和支撑臂转动定位块及限位开关。
(3)根据平台安装高度,把相应的翻转段和推拉段捆绑牢固。
(4)使平台处于撤除状态,用铁丝把翻转段和推拉段捆绑牢固。
(5)平台(一)用40t吊车吊装,平台(二)用厂房内行车吊装,把两半平台分别吊至安装高度,用插销与导轨连接,再移动吊点到固定段前沿,调整滚轮下面的垫片使平台前端(固定段前沿)再上翘3~5mm。
室内活动平台于1996年l2月完成,经调试达到设计要求。
新型的建筑结构,为施工工艺的创新带来了机遇,同时也给施工带来了高难度,因为它结构独特,没有现成的经验可借鉴。只有在施工过程中,反复研究探索,取得经验。实践表明,施工中所开发的各项施工关键技术是成功的,为今后建造同类工业厂房提供了极其宝贵的经验。
九澳油库,是为了履行澳门政府在1989年3月20日公布的有关燃料产品设施安全条例的技术标准(第19号令)规定而建造的。该油库由南光(集团)有限公司通过其下属南光石油化工有限公司与澳门港口管理有限公司合资组成的澳门油库管理有限公司全权负责。油库工程总投资为3.5亿港元,占地逾7万m2。
(1)我公司除负责油库所有设施的安装外,还负责油库各项设施的试运、保运工作及储油罐和液化石油气球形储罐的进油、进气工作(含球形储罐及其液化石油气管线的置换工作),待操作正常后才能交付业主管理。
十多年前,由中石化北京设计院等单位设计制造的装配式铝制内浮顶在上海试制安装成功,并通过部级鉴定,其经济技术指标达到国际先进水平,填补了国内一项空白。由于装配式铝制内浮顶有安装方便、迅速、耐腐蚀、维修成本低、安全稳定等一系列优点,近几年来在国内外得到广泛应用和飞速发展。
(l)铝浮顶全部安装完毕,应清扫铝浮顶表面和罐底,清除各种施工用品,并应按设计要求或验收规范进行检查。
深圳机场二期航站楼钢结构屋盖工程由16榀鹏翼形桁架构成,通过柱帽杆支承在三排混凝土柱顶之上,如图7-6-1,鹏翼形架投影长度135m,基本截面为底、高均为3m的倒置等腰三角形,上弦最大标高25.436m,下弦最低标高13.8m,全部采用材质为Q235B或20号钢的无缝钢管和高频焊管以相贯线焊接而成,每榀桁架重量为55t,钢结构总重约2800t(含屋面板),屋盖投影总面积为26325m2。
结构截面变化多。其截面大小由中部的3m×3m变化到两端及悬挑部分为1.5m×1.5m,而且根据截面受力不同,上弦管(φ245无缝钢管)有6种不同厚度、下弦管(φ299无缝钢管)有5种不同厚度变化。
根据工程特点及工期要求,以及施工现场实际,本着既要保证工期质量,施工技术先进,还要为国家节约开支,为企业创造良好的经济效益的原则,经多方研讨,反复比较,采用工厂管件加工、现场分段制作吊装、高空分榀组装、分单元等标高滑移、逐单元累积就位的施工方案。
屋盖钢结构现场分段制作吊装、高空分榀组装、分单元等标高滑移、累积就位等安装施工均由中国建筑三局钢结构建筑安装工程公司承担,钢结构制作焊接由上海江南造船厂负责。
(l)根据施工图进行图纸深化和细部设计工作,细部设计的主要内容有:
天津市体育中心体育馆工程,位于天津市南开区水上公园南侧,是天津市为承办第43届世乒赛而兴建的主赛馆。室内场地为椭圆形,设有200m的田径跑道,可进行多种球类及体操、田径比赛并兼用多种大型文体活动的场地。![]()
工期紧:依合同要求,网壳的制作及安装总工期仅为85d。
该工程于土建交安时,土建工程已完成φ108m圆周的柱子及上环梁, φ108m圆周外的附房以及φl08m圆周内的看台等结构,因此根本无法采取地面整体制作、整体吊装就位的方法;如若采取地面分片制作,分片吊装就位的方法,由于条件的限制已没有施工要求的吊装机械站位场地,且局限于吊装能力,施工难度极大。
φl08m圆周内,自外向里依次划分为A、C、D、E(中心区)等4个区域环。
φ35m网壳采取地面整体组拼,利用塔梳整体吊装就位。
1.原材料的要求
球 号 规 格 | A Ф600X14 | B Ф500X14 | C Ф450X14 | D Ф400X14 | E Ф350X12 | F Ф300X10 | G Ф500X20 |
数 量 | 48 | 24 | 89 | 65 | 816 | 768 | 96 |
钢球加工允许偏差
项 目 | 规 格 | 极限偏差(mm) | |
球 直 径 | D>300 | 优质品±1.5 | 合格品±2.5 |
球 圆 度 | D>300 | ≤1.5 | ≤2.5 |
壁 厚 减 薄 量 |
| ≤10%且 < 1.2 | ≤13%且<1.5 |
两个半球对口错边 |
| ≤0.5 | ≤1.0 |
焊 缝 高 度 |
| -0.5 | -0.5 |
杆号 | 1 | 2 | 3 | 4 | 5 | 6 | 7 | 8 |
规格 | φ219x10 | φ180x9 | φ159x16 | φ159x12 | φ159x10 | φ140x8 | φ140x5 | φ127x5 |
数量 | 48 | 240 | 96 | 192 | 560 | 208 | 560 | 1032 |
杆号 | 9 | 10 | 11 | 12 | 13 | 14 | 15 | 16 |
规格 | φ114x4 | φ114x6 | φ 89x6 | φ 89x4 | φ89x10 | φ 76x4 | φ219x20 | φ 76x4 |
数量 | 1984 | 144 | 16 | 1596 | 24 | 384 | 96 | 288 |
下料单格式如下:
下料序号 | 编号 | 数量 | 单位 | 下料长度 | 规格 | 备注 |
1 |
|
|
|
|
|
|
2 |
|
|
|
|
|
|
。
1、小单元的划分
,其两端的偏差应<3mm。
1、高空单元组拼前的准备工作
体育中心体育馆屋盖网壳工程,全部施工结束后,由建设、设计、学会及施工等单位,共同组织了全面的验收检查,其质量验评情况如下
类别 | 项目 | JGJ78-91及JGJ7-91允许值(mm) | 实测偏差(mm) |
空 心 球 | 球径 | ±1.5 ±1.5 | 1 2 |
圆度 | ≯1.5 ≯2.5 | 1 2 | |
壁厚减薄量 | ≯13%且≯1.5 | 0.8 | |
对口错边量 | ≯1 | 1 | |
杆 件 | 长度 | ±1 | -1 |
端面垂直度 |
| 0 | |
φ |
|
| |
直度 |
| 1 | |
单元 | 长度 | ±10 | +6 |
支撑点 | 支点高度 |
| 5 |
天津体育中心体育馆屋盖网壳工程,在总结了目前国内外大跨度网壳施工中的高空散装法、分块分条安装法、高空滑移法、整体吊装法、整体顶升法、整体提升法等各种施工工艺的基础上,进行综合分析,各取所长,扬长避短,最终选定了:小单元地面预制、利用吊装机械和局部脚手架进行高空组拼,中心区域地面整体组拼、整体吊装的方法进行施工,既减少了高空作业的投入、降低了施工难度、减小了误差的积累、节省了大型吊装机具的投入和简化了复杂的施工工艺,同时又保证了三维空间的坐标控制,使得直径108m、平面投影为9160m2的目前亚洲第一、国内最大的双层网状球壳,仅以2个半月的实际有效工期顺利完成,并且以优质的产品交付建设单位,取得了良好的经济效益和社会效益。
(1)焊接方法的选择:航站楼钢屋盖结构安装中焊缝达13万延长米,其中大量焊缝为厚壁锥管的环焊缝和相贯焊缝,焊口组对形状复杂,单个接头施焊量大,而且大多处于结构下方、斜下方及悬空部位,焊接工期紧、工程量大、施工难度高,经综合比较手工电弧焊和C02气体保护焊的优缺点后,采用了手工电弧焊和C02气体保护焊相结合的特殊焊接方法。
气体保护焊填充和盖面。
1、工艺流程:
滑移轨道的造型及设计:经过反复的方案优化和设计验算,本工程滑移轨道采用了双工字钢上下弦、槽钢腹板组合钢桁架轨道,在E、H轴支座处的滑移轨道侧翼加大面积钢管檩条翼缘,增加其侧向刚度,抵抗桁架对该处滑移轨道产生的外推力。
利用先进的有限元设计软件SUPER-84进行施工阶段的结构承载力验算,验算结构在不同的滑移单元、不同荷载状况、不同施工约束条件下构件的强度、稳定性、整体桁架的下挠、位移,以及验算桁架支座在A、H轴预偏对结构的影响。
桁架在胎架上进行组装时,A、H轴的半圆球底座在水平方向向内预偏,落放时靠桁架重力作用产生的水平侧移复位。
在桁架单元滑移前增设前后支撑,通过增加支承点的方式来增加其稳定性。
桁架单元滑移采用3台卷扬机在A、E、H轴同步牵拉系统,滑移过程中三轴摩擦阻力及牵拉力不同严重影响其同步,因此采取如下措施来保证滑移同步。
将16榀桁架分成4榀、5榀、5榀、2榀共4个滑移单元,由第15轴开始向第①轴方向牵拉,1~4榀为第一单元,5~9榀为第二单元,10~14榀为第三单元,15~16榀为第四单元。
滑移轨道安装完成,并经砂纸打磨、均匀涂抹黄油。
1、试滑移:
滑移是一个动态系统,滑移过程衔架的约束条件、荷载情况、力学模型与使用阶段的设计约束条件、荷载情况、力学模型均有很大区别,其受力比较复杂,影响因素很多,而这些影响很难通过计算得到准确的结果。因此,非常有必要进行滑移过程杆件内力的连接监控,以验证滑移施工的合理性,并通过监控防止滑移过程中一些复杂因素对结构产生破坏。
滑移过程是一个连续的运动过程,为了提高监控精度,本工程采用计算机位移监控系统进行了滑移全过程的位移、牵拉点同步、支座水平偏移的测量控制。
激光控制点位的布置:根据土0.00层测放的建筑轴线,利用直角座标法,选定4个激光控制点,其平面构成一矩形,四边具对称性,便于引测时进行角度和距离闭合,提高控制精度。
桁架下挠变形观测:在街架下弦杆上设7个观测点,在每榀桁架组装完毕之后进行第一次标高观测,待桁架脱离承重架二之后再进行第二次标高观测,比较桁架变形情况。
(l)科学管理:建立科学管理的组织体系,严格按项目法组织施工,项目与各工段签订工程量定额承包合同,明确责、权、利,最大限度地调动了全体员工的积极性和责任感。
(l)建立严密有效的质量保证体系:根据GB/T19000一IS09000系列标准的要求,建立了组织、职责、程序、过程和资源五位一体的质量保证体系。由项目经理直接负责、项目副经理中间控制、专职质检员作业检查、班组质量监督员自检互检,将每个岗位、每个职工的质量职责都纳入项目承包的岗位合同中并制定严格的奖罚标准,使施工过程中的每一道工序、每一部位都处于受控状态。
航站楼钢结构屋盖工程采用高空分榀组装、单元整体滑移工艺,仅历时100d,完成所有钢桁架及檩条的安装、滑移、定位工作,为深圳机场提前投入使用创造了条件。
铝浮顶的主要质量要求见表5-1-1所示。
表5-1-1
序号 | 实测项目 | 要求 |
1 | 边缘构件与罐壁间距 | 允差:±30mm |
2 | 铝浮顶水平度 | ≤10mm |
3 | 支柱与罐底构件间距 | ≥300mm |
4 | 量油孔上下垂直度 | ≤20mm |
5 | 防旋缆绳垂直度 | ≤5mm/m |
6 | 导线静电电阻 | ≤10Ω |
7 | 真空阀开启高度 | 150~200mm |
8 | 各部件连接 | 紧固 |
9 | 铺板密封 | 无透光 |
10 | 试升降 | 无卡盘、升降自如 |
本工程为广东路联华购物中心工程,总建筑面积约25570平方米,主体为三层钢框架结构局部四层,檐口总高度为19米。框架钢柱为焊接箱型柱,钢梁为焊接H型钢梁,楼面为压型钢板与混凝土叠合楼板,外墙面为压型彩板。主钢构件材质为Q345,檩条采用Q235 C型薄壁型钢。本工程施工范围包括钢结构系统的制作与现场安装施工。
1. 组织有关工程管理和技术人员对设计图纸进行会审。对图纸不明确及施工中有困难的地方,要与设计单位作好变更鉴证手续。
按照工期要求2002年7月8日开工至2002年12月28日竣工,钢结构工程部分在土建施工的基础上保证工期计划,安排好施工进度,组织好施工,具体进度计划见施工进度计划表。
钢结构主体工程施工劳动力计划
钢结构制作:
箱形柱是由四块钢板焊接而成,制作工艺与焊接H型钢大体相同,其工艺过程见流程图。
①此工序为材料检验部分,其内容包括对工程所选用的型号、规格的确认以及材料的质量检查。
①放样划线时,应清楚标明装配标记、螺孔标注、加强板的位置方向、倾斜标记及中心线、基准线和检验线,必要时制作样板。
钢板下料采用数控多头切割机下料,但下料前应将切割表面的铁锈、污物清除干净,以保持切割件的干净和平整,切割后应清除溶渣和飞溅物,操作人员熟练掌握机械设备使用方法和操作规程调整设备最佳参数的最佳值。
±3.0
钢材在组立前应矫正其变形,并达到符合控制偏差范围内,接触毛面应无毛刺、污物和杂物,以保证构件的组装紧密结合,符合质量标准。组立时应有适量的工具和设备,如直角钢尺,以保证组立后有足够的精度。
±2.0
±2.0
①该工序采用设备为门式全自动埋弧焊机。
±2.0
±3.0
±4.0
±3.0
①采用设备:摇臂钻
±1.0 ±1.5
±1.5 ±2.0 ±2.5 ±3.0
①使用设备:翼缘调直机
≤14 1.5
焊接型钢柱梁矫正完成,其端部应进行平头切割,所用设备为端头铣床,端部铣平的允许误差见下表:
±2.0
±0.5
除锈采用专用除锈设备,进行抛射除锈可以提高钢材的疲劳强度和抗腐能力。对钢材表面硬度也有不同程度的提高,有利于漆膜的附和不需增加外加的涂层厚度。除锈使用的磨料必须符合质量标准和工艺要求,施工环境相对湿度不应大于85%。
钢材除锈经检查合格后,在表面涂完第一道底漆,一般在除锈完成后,存放在厂房内,可在24小时内涂完底漆。存放在厂房外,则应在当班漆完底漆。油漆应按设计要求配套使用,第一遍底漆干燥后,再进行中间漆和面漆的涂刷,保证涂层厚变达到设计要求。油漆在涂刷过程中应均匀,不流坠。
①.构件编号在包装前,将各种符号转换成设计图面所规定的构件编号,并用笔(油漆)或粘贴纸标注于构件的规定部位,以便包装时识别。
钢构件出厂前,应提交以下资料:
⑴产品合格证
⑵施工图和设计文件
⑶制作过程技术问题处理的协议文件
本工程钢结构安装,首先复核混凝土基础的轴线及基础顶面标高,采用分件吊装的方法,先吊装所有钢柱,待校正固定灌浆后,依次吊装首层至五层钢梁,随吊随调整,然后进行安装固定,最后吊装屋面支撑及檩条系统。
现场吊装划分为二个施工单元,每个单元分别进行独立作业,一单元采用一台50吨吊车,由8轴至1轴由东向西吊装,二单元采用50吨吊车由9轴至15轴由西向东吊装,吊装顺序见吊装平面图。
①.柱脚螺栓的施工:复核土建基础施工的柱脚定位轴线,埋设地脚螺栓。为保证地脚螺栓的定位准确,将地脚螺栓用钢模板孔套进行定位固定,并进行反复校核无误后方能进行混凝土的浇注施工。地脚螺栓露出地面的部分用塑料布进行包裹保护。
≤10mm
≤10mm
≤5mm
±n(△n+△n+△w)
①.钢柱安装:吊装前首先确定构件吊点位置,确定绑扎方法,吊装时做好防护措施。钢柱起吊后,当柱脚距地脚螺栓约30-40CM时扶正,使柱脚的安装孔对准螺栓,缓慢落钩就位。经过初校待垂直偏差在20MM内,拧紧螺栓,临时固定即可脱钩。
②.钢梁吊装:钢梁吊装在柱子复核完成后进行,钢梁吊装时采用两点对称绑扎起吊就位安装。钢梁起吊后距柱基准面100MM时徐徐慢就位,待钢梁吊装就位后进行对接调整校正,然后固定连接。钢梁吊装时随吊随用经纬仪校正,有偏差随时纠正。
①.钢柱校正:钢柱垂直度校正用经纬仪或吊线锤检验,当有偏差时采用千斤顶进行校正,标高校正用千斤顶将底座少许抬高,然后增减垫板厚度,柱脚校正无误后立即紧固地脚螺栓,待钢柱整体校正无误后在柱脚底板下浇注细石混凝土固定。
①.高强螺栓在施工前必须有材质证明书(质量保证书)必须在使用前做复试。
①、压型钢板围护施工安装之前,订制相应的施工图纸,并根据设计文件编制组织设计及对施工人员进行技术培训和安全生产交底。
墙板安装按檩条位置从一端开始进行,板与板之间必须咬紧,再用螺钉固定,墙板接缝处做好防水处理。压型钢板安装时,应边铺设边调整其位置,边固定。
楼面承压板施工安装之前,绘制相应的排板图,依据图纸进行施工。压型钢板沿楼面的一端开始铺设,边铺设边调整其位置,边固定。遇有洞口处,先安装压型钢板,然后根据实际洞口位置切割洞口大小尺寸。栓钉是楼面梁同钢筋混凝土楼板起组合连接作用的连接件,施工采用拉弧型栓钉焊机(型号:YD-200LS)和焊枪(型号:YS-223G),并使用去氧弧耐热陶瓷座圈。
我公司坚持“用户是上帝,质量是生命”的质量方针,认真运作GB/T19002-9002质量管理模式,对不同工种及每一道工序都进行质量监督,使施工过程中的材料、半成品、成品质量都在受控状态下,从而使工程质量从根本上得到有效的保证。
此结构所选用的钢材必须有出厂合格证及原始资料,同时要求进厂的钢材必须经复试合格后方可使用。
钢结构吊装过程严格执行《GB50205-95钢结构施工及验收规范》及《GB50221-95钢结构工程质量检验评定表标准》
在运输及吊装许可的条件下,应采用长尺寸的板材以减少接缝,提高保温性能和防水效果。
1.施工现场设安全工长进行现场安全措施的落实与管理,对现场施工人员、现场机械设备及现场用电进行统一管理。要求参加施工的特工作业人员必须是经过培训,持证上岗。施工前对所有施工人员进行安全技术交底。进入施工现场的人员必须戴安全帽、穿防滑鞋,电工、电气焊工应穿绝缘鞋,高空作业必须系好安全带。
1.钢结构制作和安装冬季施工严格依据有关钢结构冬季施工规定执行。
1.雨天施工时,宜搭设临时防护棚,雨水不得飘落在炽热的焊缝上.如焊接部位比较潮湿, 必须用干布擦净并在焊接前用氧炔焰烤干,保持接缝干燥,没有残留水分。
1.内业要求各资料及台帐(施工方案、安全教育,安全交底,安全检查、电工日巡视记录、班前讲话记录、台帐)等齐全整齐、记录实事求是,特殊作业持证上岗,安全职责分工明确。
铝浮顶安装完毕并经检验合格后方可进行充水试验。
搭设在井道内的安装电梯脚手架不同于一般的脚手架,应满足下列三点要求:
整栋建筑共设置17台电梯和2台扶梯。
电梯功能划分:
电梯、扶梯编号 | 服务区域或功能 | 备注 |
L1、L2、L3 | 低区客梯 | 2.5m/s高速 |
L4、L5、L6 | 全区客梯 | 2.5m/s高速 |
L7、L8、L9 | 高区客梯 | 2.5m/s高速 |
L10 | 贵宾客梯 | 2.5m/s高速 |
L11、L12 | 停车库客梯 | 无机房电梯 |
L13 | 厨房服务梯 | 无机房电梯 |
L14 | 客梯兼消防梯 |
|
L15 | 客梯兼消防梯 | 2.5m/s高速、无障碍梯 |
L16、L17 | 食梯 |
|
E1、E2 | 展厅 | 0.5m/s |
1、工程名称:太仓市****开放式公园工程
万元
日历天
年4 月1 日
年9 月27 日
绿化种植、土方、广场铺设及附属设施工程
太仓市****开放式公园工程是太仓市2004 年重点工程之一,是提升
拟建工程位于浙江东湖毛纺原料有限公司旧厂区内,南临湖州港,本次工程范围主要包括生化、沉淀、调节池等。由于沉淀池、二沉池位于现水运废旧码头内,现业主要求对河岸处码头入口进行土方围堰施工,码头内清淤后回填矿渣, 再施工沉淀池。新建调节池目前场地为原货物堆放水泥浇筑场地,设计池底标高为现场地下挖4.5 深,挖除土方为码头回填用土
根据工程特点,施工前必须进行土石方围堰施工。排水后清淤进行土方回填,并压实整平。
日历天完成施工任务。
工艺流程:现场勘察→清除废弃码头吊→围堰施工→排水、清淤、码头土方开挖→分层回填压实→挡土墙(邦岸)施工→拆除围堰。
1、测设前根据图纸和业主提供的测设基准资料和测量标志点,平面控制测设采用TDJ2e 经纬纬仪控制,标高控制采用DS3 水准仪控制。
(N 为测点数),坐标相对闭合差为±1/10000。
设立一临时水准点,采用往返闭合法测设,根据场地平整图标高进行标高控制。
围堰工程的主要作用是截流、挡水,为建造二沉池、调节池工程创造施工条件。严防涌水,避免堰堤坍塌是围堰成败的关键,为此,特作如下要求:
米,在堰堤背水一侧边坡中打两排木桩加固。木桩的稍径不小于 10 厘米、长为4~6 米,排距1.5 米,桩距1.0 米交错排列;在木桩的内侧用装满粘土的编织袋筑2 米宽的小堤,后填筑堰体。土石方工程至少3.0 米宽。在堰体迎水面满铺一层太阳布,并铺往河床一侧不少于2 米,上下层太阳布搭接长度为1 米,其余接头搭接为 0.5 米,最后在太阳布上覆盖一层编制袋装土。
米的一层粘土层,以利阻水、减少渗水、漏水。填筑可从两边向中间进行。

剖面图
1、回填土前根据实际情况采用排水疏干,清除淤泥。
左右。
厘米,大粒径不得集中填筑或填于分段接头处或填方接头处,塘渣含泥量应不小于50%。
米,上下层接缝应错开不小于1.0 米。
米,边坡整平拍实,并用蛙式打夯机夯打密实。
毫米。
厘米,有机物含量不大于8%,含泥量不小于50%,不得回填掺有耕表土、淤泥、淤泥质土和建筑垃圾。
1、开挖基槽
宽排水沟、集水井,配4 台Φ100 泥浆泵排水,挖土过程中应注意地下水位变化,及土层的稳定性。挖至基底后,应进行标高找平,修理边坡。土方挖后应及时进行验槽,合格后进行铺块石基础并灌M5 水泥砂浆。
筛孔过筛;砂的含泥量不应超过5%,不得含有草根等杂物。
大锤、托线板、线坠、角尺、水平尺、皮数杆、泥桶、筛子、勾缝条、手推胶轮车、磅称等。
左右,铺会厚度40-50MM。
平方米墙面至少应设置一块拉结石,并应均匀分布,相互错开,在同皮内的中距不应大于2 米。拉结石长度,因墙身厚度大于40CM,可用两块拉结石内外搭接,搭接长度不应小于15CM,且其中一块长度不应小于腔厚的2/3。
米,正常气温下,停歇4 天后可继续垒砌。每砌3-4 皮应大致找平一次,中途停工时,石块缝隙内应填满砂浆,但该层上表面须待继续砌筑时再铺砂浆,砌至墙身高度时,应使用平整的大石块压顶并用砂浆全面找平。
水泥砂浆勾缝。缝条应均匀一致,深浅相同,十子、丁子形搭接处应平整通顺。
1、拆除旧码头吊时,应先切断电源和拆卸上部零件,方可拆除吊身与吊座,严防野蛮拆除、倒杆伤人。
1、工程实行项目管理制。在健全组织机构分工明确的前提下,做好项目管理工作,完成公司下达的工程质量创优目标。
毫米,宽450 毫米。
毫米厚的碎石或块径小于200 毫米的块石保护层。
的斜坡形,并且上下层错缝搭接距离不小于1.0 米。
厘米,并用 10T、12T 压路机碾压密实,保证回填土的压实系数不小于0.90。
平方米至少取样一组作密实度和含水量检验。
米填土后要求边坡整平拍实,并蛙式打夯机夯打密实。
为保证工程有组织,按计划进行施工,要求各专业相互配合按总进度按排精心组织施工,特制定如下工期保证措施。
小时供料,确保施工正常进行,按工期如期
小时连续施工。
1、开工前会同市政、市容、环卫、环保、公安、交通等有关部门召开现场协调会,接受上述单位对现场文明施工的监督和检查。
1、施工现场建立健全安全组织机构,设专职安全员,各工种、各班组设立兼职安全员,项目组根据本工程的特点,制定该项目各级管理人员和各部门的安全生产责任制。
1、建立文明施工领导小组,制定文明生产制度,并且定期检查落实情况,发现问题及时解决。
1、回填塘渣过程中遇雨天时,如雨的大小不影响工程的质量,可照常施工。
1、在业主的协调下进行技术交底、图纸会审、水准点及坐标控制点的移交。
****开放式公园工程土方工作量较大,首先对原有土方进行均衡,
首先将业主移交的水准点及坐标控制点进行闭合,然后做闭合导线
对整个施工现场重新测量,并用石灰将道路、广场、土坡等撒出轮廓线,测量高程,精确的计算出开挖量与回填量,并确定土方均衡方案,然后开始实施土方开挖与回填计划,落实外购土源。土方分东、中、西三个施工段,同步施工,统一调配,形成完整的流水作业施工控制体系。土方调配前,在园路位置铺设施工便道,并在施工场 地内开挖明沟,确保下雨后明水能全部排清,场内不积水。土方均衡后,抓紧时间做坡,并同步施工盲沟。近距离调土采用推土机,其调土距离在20 米至50 米之间,50 米到500 米之内采用铲运机,超出500 米采用机装车运。
采用经纬仪,按设计图提供的坐标,测放出广场轮廓线,根据设计
内,高程控制在±20mm 内,厚度控制在±10mm 内,对二灰进行养护。
砼垫层,先浇平面,后浇侧面,内外支模,模板中间采用砂浆饼控制高程及平整度。因垫层较薄,需调整砼配比,增加砼的和易性。采用平板振动器振捣,铝合金直尺找平,抺长机抺面,木模拉毛
米,带线铺贴。
园路用石灰撒出边线,测出高程桩,按实际进行基槽挖填,两侧开
抺长机抺面,木模拉毛,36 小时后养护。铺设砼垫层,测出侧石高度,带线进行侧石安装,然后勾凹缝。在砼面层弹出各铺砌体所在位置,按实际位置对铺砌料切割铺贴。
广场工程实施时,给水管工程必须同步施工,事先预埋好给水管,
灯柱为砼浇筑体,高度约4 米多,为了施工方便可采取先预制,后安装法进行实施。在浇筑前,事先在中间预埋PCV 穿线管,便于穿线,安装时确定安装高度,在与地面平行处弹线,并在灯柱两侧弹上纵线,
1、放样
以形定位。对于规则式的地块,力求准确;对于景区块,力求“点题”,放样一定要讲究艺术,体现园艺水平。
水分蒸腾抑制剂,降低水分蒸发,且不影响植物呼吸;如果苗太干,则在起挖前两天灌水,保持土壤湿度,保证泥球不易散裂;运输装运尽量在当天或夜间进行,用篷布遮盖以防止水分过量蒸发。
1、种植前土壤处理
的大型土球应在土球外部套钢丝缆起吊。
具有明显主干的落叶乔木应保持原有树形,适当疏枝,对保留的主侧枝应在健壮芽上短截,可剪去枝条1/5 或1/3。
枝条茂密具圆头型树冠的常绿乔木可适量疏枝,枝叶集生树干顶部的苗木可不修剪。具轮生侧枝的常绿乔木用作行道树时,可剪除基部2-3 层轮生侧枝。
灌木修剪应符合下列规定:
苗木修剪质量应符合下列规定:
以上的大枝及粗枝时,截口必须削平并涂防腐剂。
种植的质量应符合下列规定:
种植方法
的营养土(含有腐熟的有机肥料)保证土壤营养的缓释效果。
左右为宜,这样能保证根系的正常生长恢复。根据需要搭荫棚遮荫,以减少光照降低蒸发,促进植物尽快恢复。浇底水:乔木栽植后应立即浇水,浇水多次,反复浇透,并培土保墒。植株喷雾:应适当进行叶面喷雾,降低叶面温度,减少叶面水分蒸发,维护乔木水分的新陈代谢。
的杉木支撑,使之具有抗抗风能力且整齐美观。
的灌水土堰,堰应筑实不得漏水。坡地可采用鱼鳞穴式种植。
时围堰浇足水,再培土盖住泥球。
后轻压,然后喷水,播种后应采用喷雾法浇水,水点宜细密均匀,浸透土层8-10cm,除降雨天气,喷水不得间断,亦可用草帘覆盖保持湿度,至发芽时拆除。
1、合同文件、图纸设计要求;
建立健全质量控制网络体系,逐层逐级明确责任,责任到人。对质量实行奖罚制度,设专职质检员,实行质量一票否决制。施工时,各道工序严格按规范操作规程实施,加强各道工序的自检工作,合格后再进行报验,争取一次性报验合格。树立质量就是生命,以质量求生存的理念,加强员工业务素质的培训。各道工序开工前,均应搞好技术交底,重点部位由专职质检员把好质量关,进行跟踪施工,对违规操作以及有质量隐患处及时返工,避免质量事故的发生。把好原材料进场的质量关,及时做好原材料的复测工作,杜绝不合格材料的进场。施工时严格控制材料级配的计量工作,加强技术资料的收集、整理和归档工作,确保资料的完善,配合好工地监理的工作,共同创造优良工程。
进度控制措施
组织管理网络图
通常现浇框架梁、柱的施工顺序,是在梁、柱预定位置现场绑扎钢筋,支模板后浇筑混凝土。这种施工顺序存在工期长、高空作业量大、不安全、技术安全措施多、费用高等问题。
辽化煤电站主厂房长240m,宽110m,高40m。钢筋混凝土柱截面尺寸为600mm×l200mm,共160根。梁截面尺寸为400mm×2400mm的68根,截面尺寸为400mm×400mm的64根。以单层为主,局部为2层。原设计钢筋混凝土柱和梁组合成门形,在地面预制成80榀构件,用大型机械吊装,就位后焊接。该构件每榀重达80t,吊装高度40m,一般施工单位的起重设备难以完成。经研究决定改门形预制构件为单独的梁、柱,在现场分别制作,按钢筋、模板组合施工方案施工,解决了上述问题。
编制施工方案→制作模板→钢筋下料→钢筋绑扎→地面组装→整体吊装→就位、焊接→节点支模→浇筑混凝土→混凝土养护→拆模。
钢筋下料:按结构设计图纸中钢筋的长度减去弯曲时的延长值。
连接角钢:为使安装对位方便,四角主筋用角钢连接。根据梁、柱的主筋直径和接头位置等来选择角钢型号、长度。一般只在柱截面的四个角上用,其他采用绑条焊(图2-6-3)。连接角钢的型号按等强确定,连接角钢的长度按钢结构中焊缝长度确定。为保证钢筋模板组合骨架的刚度,在梁、柱纵向长度的两端和中间位置焊十字形支撑(图2-6-4)。
1.钢筋、模板组合骨架吊装时,有少数组合骨架扭曲变形,原因是自重大,整体刚度不够。
为解决组合骨架吊装时扭曲、变形问题,必须增加组合骨架刚度。用槽钢垫在组合骨架底部,一同起吊就位后拆除即可。
加强劳动保护工作,做好安全生产,落实“安全第一、预防为主”的方针。加大宣传、教育工作力度,切实把安全工作做到实处,确保施工安全。
1)建立项目经理、项目工程师、施工员、班组长和班组安全员在内,同各业务范围工作标准挂钩的安全责任制和检查监督制度,健全本项目上下配套的安全生产管理网络,同时配备培训合格的专职安全员,负责检查、监督安全生产工作,并处理相关事宜。
1)机械操作应由专人负责,持证上岗,严禁无证操作,以确保安全。
的区域,严禁摆放在马路上,进入工地的苗木,合理安排,不准随意堆放,严禁树木横在马路中央,确保道路畅通。
缷苗时,车子应停靠在路边,前后灯均应打开。
各施工人员应加强自我保护意识,自觉遵守制度,使用好安全保护器具,对生产中不安全因素及隐患要及时进行解决,不能解决的要及时上报。
1、项目部将开展文明教育,施工人员均应遵守太仓市文明规范,措施落实到位,争创文明工地。
1、施工现场的固体废弃物,如草绳以及生活垃圾等集中处理,不随便乱丢;
一、 为了保证苗木的正常生长发育、提高苗木成活率,达到预期植物景观效果,我们拟采取如下综合的养护措施:
度),每天早晚喷雾4 小时,从上午10 时半至下午3 时这段时间内停止喷水。如久旱无雨,土壤干燥则浇水灌溉,时间宜在早晨或傍晚进行。施肥是促进苗木生长健壮的有效手段,施肥须在植物根系损伤恢复,并在开始生长后进行(苗木种植后约6 个月、草坪为3 个月),一般施肥用尿素、复合肥等根肥。对灌木也可追施叶面肥。
一年养护管理具体计划
二刺蛾、天牛、螨类等)及主要病害(白粉病、炭疽病、叶斑病等)。
拟投入的主要机械设备表
拟委任的人员配备及其专业构成
总平面布置图
现场平面布置说明
现场平面布置图
曳引式电梯施工技术施工方案
搭设脚手架前先清理底坑垃圾。若地坑没打混凝土,立柱下可用50mm厚的木板垫平。
mm,壁厚3~3.5mm为宜,组合扣件应用劳动部门批准的单位所制造的合格产品,承重部件必须用玛钢扣件。
m2。
照明应采用不高于 36V的安全电压。从对重曳引孔放入井道右侧,将木方固定在脚手架上,再将照明线固定在木方上。
在井道楼顶下面0.6~0.8m处,用透明塑料管找出样板安装位置的水平点,用水平尺划出样板梁牛腿的位置线。
电梯运行的平稳及噪音的大小与导轨的加工精度和安装质量有直接的关系,导轨架是安装导轨的基础,安装质量的好坏,不仅直接影响导轨质量,而且还会延误工期,增加不必要的材料损失。导轨架宜采用一步安装到位的施工方法,可提高施工速度,确保质量,减轻工人劳动强度。
导轨吊装
导轨找正
找道尺的制作

地坎安装
将上样板上的轿厢中心和对重中心引到机房地面,以此为基准,根据机房图纸要求,把各部位尺寸弹出墨线。
根据现场实际情况,组装做到既安全又方便,又减轻劳动强度。本工程宜采用对重框在一层组装。
电梯的调试验收应严格按照《电梯工程施工质量验收规范》(GB50310-2002)执行。
验收后,及时要求专业分包商提供工程文件,以文本方式,向业主提供电梯施工记录、测试文件、竣工图纸等在内的全部文档。
目前城市居民生活用的石油气属于丙烷和丁烷的混合物,它采用压力容器储存。在一定的温度下,容器内的液化石油气呈气、液相平衡,气相达到饱和蒸气压。当容器内气相液化气导出时,其内压力下降,此时液化石油气以气化来保持原有的平衡状态。由此可见当球形储罐(简称球罐,下同)内压力低于一定温度下的饱和蒸汽压时,即发生气化,反之则发生液化。气化和液化会伴随热传导:气化时吸热,液化时放热。
为了确保油库的绝对安全,在竣工前后试运行的3个月内,对库区及码头的消防系统进行了调试。
================================================================
说 明
星欣设计图库资料专卖店拥有最新最全的设计参考图库资料,内容涉及景观园林、建筑、规划、室内装修、建筑结构、暖通空调、给排水、电气设计、施工组织设计等各个领域的设计素材和设计图纸等参考学习资料。是为广大艺术设计工作者优质设计学习参考资料。本站所售的参考资料包括设计方案和施工图案例已达几十万套以上,总量在数千G以上。
联系QQ:447255935
电话:13111542600